Одноэтажный дом 9x8 - 173.43 м2 за руб.
Планировки
План первого этажа
- 1. Тамбур 3,78 м²
- 2. Санузел 4,62 м²
- 3. ИТП 5,04 м²
- 4. Холл 12,75 м²
- 5. Кабинет 12,30 м²
- 6. Гостиная 25,28 м²
- 7. Кухня-Столовая 14,43 м²
- 8. Крыльцо 4,62 м²
- 9. Терраса 18,07 м²
- Общая площадь первый этаж 100,89 м²
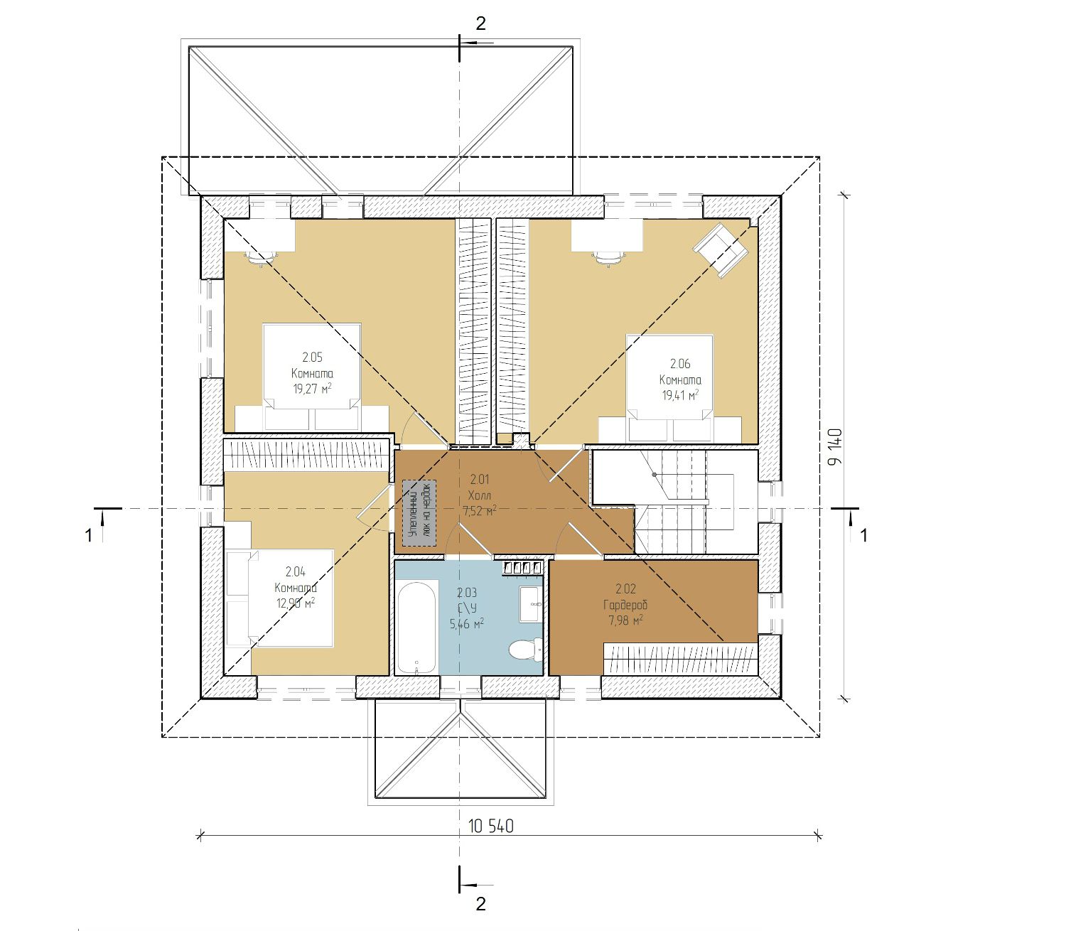
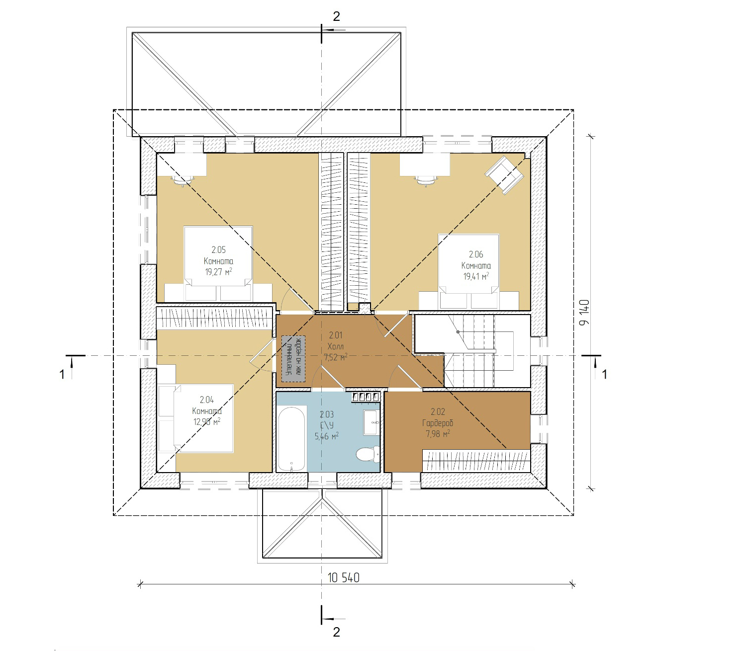
План второго этажа
- 1. Холл 7,52 м²
- 2. Гардероб 7,98 м²
- 3. Санузел 5,46 м²
- 4. Комнаата 12,90 м²
- 5. Комната 19,27 м²
- 6. Комната 19,41 м²
- Общая площадь второй этаж 72,54 м²
Площади дома
| № п/п | Наименование | Ед. из. | Строительная площадь | Полезная площадь |
| 1 | 1 этаж | м2 | 124.33 | 100.89 |
| 2 | 2 этаж | м2 | 89.39 | 72.54 |
| 3 | Итого | м2 | 213.72 | 173.43 |
154 м2
Полезная
площадь
площадь
9 x 8 м
Размеры
1 этаж
Этажей
26 м2
Террасы
и балконы
и балконы
0Без
гаража
гаража
4
Количество
спален
спален
2
Количество
санузлов
санузлов
Калькулятор опций
0₽
В ипотеку от 20 313 ₽/мес.
0₽
0 дней
stdClass Object
(
[id] => 1
[attribute_id] => 1
[name] => Ленточный монолитный ж/б
[material_modifier] => 1
[work_modifier] => 1
[options] => Array
(
[0] => размер 200 х 700 мм
[1] => размер 300 х 900 мм
[2] => размер 400 х 1 000 мм
[3] => размер 500 х 1 100 мм
[4] => размер 600 х 1 200 мм
)
[days] => [20,21,22,25,30]
[material_price] => [2823,3630,4475,5210,12047]
[work_price] => [2154,2826,3731,4577,5293]
[image] => https://akademik-stroy.ru/wp-content/uploads/materials/lentochnyj-monolitnyj-zh-b.jpg
[area_modifier] => 124.33
[parent_name] => Фундамент
[parent_id] => 1
[material_sum] => 442239
[work_sum] => 281197
[total_sum] => 723436
[total_days] => 20
[display_material_sum] => 442 239
[display_work_sum] => 281 197
[display_total_sum] => 723 436
)
1
723 436₽
Работа:281 197 ₽
Материалы:442 239 ₽
Дни:20
stdClass Object
(
[id] => 2
[attribute_id] => 1
[name] => Забивные Ж/Б сваи
[material_modifier] => 1
[work_modifier] => 1
[options] => Array
(
[0] => 150х150х3000мм
[1] => 150х150х4000мм
[2] => 200х200х3000мм
[3] => 200х200х4000мм
[4] => 200х200х5000мм
[5] => 200х200х6000мм
)
[days] => [2,2,2,2,2,2]
[material_price] => [1990,2850,3255,4360,5120,6837]
[work_price] => [1002,1185,1336,1438,1574,1839]
[image] => https://akademik-stroy.ru/wp-content/uploads/materials/zabivnye-zh-b-svai.png
[area_modifier] => 124.33
[parent_name] => Фундамент
[parent_id] => 1
[material_sum] => 311745
[work_sum] => 130808
[total_sum] => 442553
[total_days] => 2
[display_material_sum] => 311 745
[display_work_sum] => 130 808
[display_total_sum] => 442 553
)
1
442 553₽
Работа:130 808 ₽
Материалы:311 745 ₽
Дни:2
stdClass Object
(
[id] => 71
[attribute_id] => 1
[name] => Свайно-ростверковый ж/б
[material_modifier] => 1
[work_modifier] => 1
[options] => Array
(
[0] => ростверк 200х300 мм
[1] => ростверк 300х600 мм
[2] => ростверк 400х900 мм
[3] => ростверк 500х1200 мм
)
[days] => [20,23,25,27]
[material_price] => [3018,3474,7109,9792]
[work_price] => [2024,3012,5635,7022]
[image] => https://akademik-stroy.ru/wp-content/uploads/materials/svajno-rostverkovyj-monolitnyj-zh-b-3.png
[area_modifier] => 124.33
[parent_name] => Фундамент
[parent_id] => 1
[material_sum] => 472787
[work_sum] => 264226
[total_sum] => 737013
[total_days] => 20
[display_material_sum] => 472 787
[display_work_sum] => 264 226
[display_total_sum] => 737 013
)
1
737 013₽
Работа:264 226 ₽
Материалы:472 787 ₽
Дни:20
stdClass Object
(
[id] => 72
[attribute_id] => 1
[name] => Монолитная ж/б плита
[material_modifier] => 1
[work_modifier] => 1
[options] => Array
(
[0] => 200 мм
[1] => 300 мм
[2] => 400 мм
[3] => 500 мм
[4] => 600 мм
)
[days] => [30,33,35,37,40]
[material_price] => [5348,8555,12788,14388,15189]
[work_price] => [4314,4881,7037,8061,10230]
[image] => https://akademik-stroy.ru/wp-content/uploads/materials/monolitnaya-zhb-plita.png
[area_modifier] => 124.33
[parent_name] => Фундамент
[parent_id] => 1
[material_sum] => 837795
[work_sum] => 563178
[total_sum] => 1400973
[total_days] => 30
[display_material_sum] => 837 795
[display_work_sum] => 563 178
[display_total_sum] => 1 400 973
)
1
1 400 973₽
Работа:563 178 ₽
Материалы:837 795 ₽
Дни:30
stdClass Object
(
[id] => 73
[attribute_id] => 1
[name] => Утепленная шведская плита
[material_modifier] => 1
[work_modifier] => 1
[options] => Array
(
[0] => 200 мм
[1] => 300 мм
[2] => 400 мм
[3] => 500 мм
[4] => 600 мм
)
[days] => [32,37,39,42,45]
[material_price] => [10249,12692,13760,14936,16230]
[work_price] => [5960,7337,8072,8878,9765]
[image] => https://akademik-stroy.ru/wp-content/uploads/materials/uteplennaya-shvedskaya-plita.jpg
[area_modifier] => 124.33
[parent_name] => Фундамент
[parent_id] => 1
[material_sum] => 1605565
[work_sum] => 778057
[total_sum] => 2383622
[total_days] => 32
[display_material_sum] => 1 605 565
[display_work_sum] => 778 057
[display_total_sum] => 2 383 622
)
1
2 383 622₽
Работа:778 057 ₽
Материалы:1 605 565 ₽
Дни:32
stdClass Object
(
[id] => 75
[attribute_id] => 1
[name] => Ленточный из ФБС
[material_modifier] => 1
[work_modifier] => 1
[options] => Array
(
[0] => толщ. 300 мм
[1] => толщ. 400 мм
[2] => толщ. 500 мм
[3] => толщ. 600 мм
)
[days] => [20,20,20,20]
[material_price] => [3675,4902,6126,7350]
[work_price] => [2451,3264,4083,4902]
[image] => https://akademik-stroy.ru/wp-content/uploads/materials/lentochnyj-iz-fbs.png
[area_modifier] => 124.33
[parent_name] => Фундамент
[parent_id] => 1
[material_sum] => 575710
[work_sum] => 319969
[total_sum] => 895679
[total_days] => 20
[display_material_sum] => 575 710
[display_work_sum] => 319 969
[display_total_sum] => 895 679
)
1
895 679₽
Работа:319 969 ₽
Материалы:575 710 ₽
Дни:20
stdClass Object
(
[id] => 76
[attribute_id] => 1
[name] => Цокольный этаж из ФБС
[material_modifier] => 1
[work_modifier] => 1
[options] => Array
(
[0] => толщ. 300 мм
[1] => толщ. 400 мм
[2] => толщ. 500 мм
[3] => толщ. 600 мм
)
[days] => [30,32,34,36]
[material_price] => [20916,23299,26680,29060]
[work_price] => [17524,18700,19873,21046]
[image] => https://akademik-stroy.ru/wp-content/uploads/materials/cokolnyj-ehtazh-iz-fbs.jpg
[area_modifier] => 124.33
[parent_name] => Фундамент
[parent_id] => 1
[material_sum] => 3276613
[work_sum] => 2287697
[total_sum] => 5564310
[total_days] => 30
[display_material_sum] => 3 276 613
[display_work_sum] => 2 287 697
[display_total_sum] => 5 564 310
)
1
5 564 310₽
Работа:2 287 697 ₽
Материалы:3 276 613 ₽
Дни:30
stdClass Object
(
[id] => 77
[attribute_id] => 1
[name] => Цокольный этаж монолитный ж/б
[material_modifier] => 1
[work_modifier] => 1
[options] => Array
(
[0] => толщ. 200 мм
[1] => толщ. 300 мм
[2] => толщ. 400 мм
[3] => толщ. 500 мм
[4] => толщ. 600 мм
)
[days] => [40,42,44,46,48]
[material_price] => [25421,29148,32275,35602,37326]
[work_price] => [20441,21907,23375,24841,26306]
[image] => https://akademik-stroy.ru/wp-content/uploads/materials/cokolnyj-etazh-zh-b.jpg
[area_modifier] => 124.33
[parent_name] => Фундамент
[parent_id] => 1
[material_sum] => 3982347
[work_sum] => 2668501
[total_sum] => 6650848
[total_days] => 40
[display_material_sum] => 3 982 347
[display_work_sum] => 2 668 501
[display_total_sum] => 6 650 848
)
1
6 650 848₽
Работа:2 668 501 ₽
Материалы:3 982 347 ₽
Дни:40
stdClass Object
(
[id] => 191
[attribute_id] => 1
[name] => Винтовые сваи
[material_modifier] => 1
[work_modifier] => 1
[options] => Array
(
[0] => 57х200мм
[1] => 76х250мм
[2] => 108х300мм
[3] => 133х350мм
)
[days] => [1,1,2,2]
[material_price] => [1200,1300,1450,1600]
[work_price] => [400,600,900,1100]
[image] => https://akademik-stroy.ru/wp-content/uploads/materials/vintovye-svai.png
[area_modifier] => 124.33
[parent_name] => Фундамент
[parent_id] => 1
[material_sum] => 187987
[work_sum] => 52219
[total_sum] => 240206
[total_days] => 1
[display_material_sum] => 187 987
[display_work_sum] => 52 219
[display_total_sum] => 240 206
)
1
240 206₽
Работа:52 219 ₽
Материалы:187 987 ₽
Дни:1
stdClass Object
(
[id] => 3
[attribute_id] => 2
[name] => Деревянные балки
[material_modifier] => 1
[work_modifier] => 1
[options] => Array
(
[0] => без утепления
[1] => утепление 200 мм
[2] => утепление 250 мм
[3] => утепление 300 мм
[4] => утепление 350 мм
[5] => утепление 400 мм
[6] => утепление 450 мм
[7] => утепление 500 мм
)
[days] => [8,9,9,9,11,12,13,14]
[material_price] => [1634,2042,2344,2947,3149,3652,3354,3557]
[work_price] => [1230,1339,1393,1426,1460,1513,1587,1620]
[image] => https://akademik-stroy.ru/wp-content/uploads/materials/derevyannye-balki.png
[area_modifier] => 124.33
[parent_name] => Перекрытие цоколя
[parent_id] => 2
[material_sum] => 255976
[work_sum] => 160572
[total_sum] => 416548
[total_days] => 8
[display_material_sum] => 255 976
[display_work_sum] => 160 572
[display_total_sum] => 416 548
)
1
416 548₽
Работа:160 572 ₽
Материалы:255 976 ₽
Дни:8
stdClass Object
(
[id] => 4
[attribute_id] => 2
[name] => Сборные ж/б плиты
[material_modifier] => 1
[work_modifier] => 1
[options] => Array
(
[0] => без утепления
[1] => утепление 150мм
[2] => утепление 200мм
[3] => утепление 250мм
[4] => утепление 300мм
[5] => утепление 350мм
[6] => утепление 400мм
[7] => утепление 450мм
[8] => утепление 500мм
)
[days] => [13,15,15,15,15,15,15,15,15]
[material_price] => [3067,5577,5928,6679,7730,8782,9833,10884,11935]
[work_price] => [1520,1956,2102,2247,2392,2537,2684,2829,2974]
[image] => https://akademik-stroy.ru/wp-content/uploads/materials/sbornye-zh-b-plity-2.jpg
[area_modifier] => 124.33
[parent_name] => Перекрытие цоколя
[parent_id] => 2
[material_sum] => 480463
[work_sum] => 198431
[total_sum] => 678894
[total_days] => 13
[display_material_sum] => 480 463
[display_work_sum] => 198 431
[display_total_sum] => 678 894
)
1
678 894₽
Работа:198 431 ₽
Материалы:480 463 ₽
Дни:13
stdClass Object
(
[id] => 78
[attribute_id] => 2
[name] => Монолитная ж/б плита
[material_modifier] => 1
[work_modifier] => 1
[options] => Array
(
[0] => без утепления
[1] => утепление 150 мм
[2] => утепление 200 мм
[3] => утепление 250 мм
[4] => утепление 300 мм
[5] => утепление 350 мм
[6] => утепление 400 мм
[7] => утепление 450 мм
[8] => утепление 500 мм
)
[days] => [18,20,20,20,20,20,20,20,20]
[material_price] => [4837,6572,7224,7375,79426,8177,8728,9180,10031]
[work_price] => [3348,3921,4112,4302,4493,4684,4875,5066,5256]
[image] => https://akademik-stroy.ru/wp-content/uploads/materials/monolitnaya-zh-b-plita-2.jpg
[area_modifier] => 124.33
[parent_name] => Перекрытие цоколя
[parent_id] => 2
[material_sum] => 757744
[work_sum] => 437070
[total_sum] => 1194814
[total_days] => 18
[display_material_sum] => 757 744
[display_work_sum] => 437 070
[display_total_sum] => 1 194 814
)
1
1 194 814₽
Работа:437 070 ₽
Материалы:757 744 ₽
Дни:18
stdClass Object
(
[id] => 6
[attribute_id] => 3
[name] => Пеноблок
[material_modifier] => 1
[work_modifier] => 1
[options] => Array
(
[0] => 300 мм
[1] => 400 мм
[2] => 500 мм
[3] => 600 мм
)
[days] => [29,31,34,39]
[material_price] => [3000,4000,4500,4937]
[work_price] => [5033,5805,6400,8710]
[image] => https://akademik-stroy.ru/wp-content/uploads/materials/penoblok.jpg
[area_modifier] => 124.33
[parent_name] => Стены 1 этаж (несущие)
[parent_id] => 3
[material_sum] => 469967
[work_sum] => 657041
[total_sum] => 1127008
[total_days] => 29
[display_material_sum] => 469 967
[display_work_sum] => 657 041
[display_total_sum] => 1 127 008
)
1
1 127 008₽
Работа:657 041 ₽
Материалы:469 967 ₽
Дни:29
stdClass Object
(
[id] => 79
[attribute_id] => 3
[name] => Керамический блок
[material_modifier] => 1
[work_modifier] => 1
[options] => Array
(
[0] => 380 мм
[1] => 380 мм Thermo
[2] => 440 мм
[3] => 510 мм
)
[days] => [23,23,24,25]
[material_price] => [4510,5098,6093,8013]
[work_price] => [4737,4937,5903,6958]
[image] => https://akademik-stroy.ru/wp-content/uploads/materials/keramicheskij-blok.jpg
[area_modifier] => 124.33
[parent_name] => Стены 1 этаж (несущие)
[parent_id] => 3
[material_sum] => 706518
[work_sum] => 618399
[total_sum] => 1324917
[total_days] => 23
[display_material_sum] => 706 518
[display_work_sum] => 618 399
[display_total_sum] => 1 324 917
)
1
1 324 917₽
Работа:618 399 ₽
Материалы:706 518 ₽
Дни:23
stdClass Object
(
[id] => 80
[attribute_id] => 3
[name] => Кирпич
[material_modifier] => 1
[work_modifier] => 1
[options] => Array
(
[0] => Кирпич 250 мм
[1] => Кирпич 380 мм
[2] => Кирпич 510 мм
[3] => Кирпич 640 мм
[4] => Кирпич 770 мм
)
[days] => [30,30,31,33,36]
[material_price] => [5500,7142,9206,10171,12235]
[work_price] => [8736,10041,12018,15240,18462]
[image] => https://akademik-stroy.ru/wp-content/uploads/materials/kirpich.jpg
[area_modifier] => 124.33
[parent_name] => Стены 1 этаж (несущие)
[parent_id] => 3
[material_sum] => 861607
[work_sum] => 1140454
[total_sum] => 2002061
[total_days] => 30
[display_material_sum] => 861 607
[display_work_sum] => 1 140 454
[display_total_sum] => 2 002 061
)
1
2 002 061₽
Работа:1 140 454 ₽
Материалы:861 607 ₽
Дни:30
stdClass Object
(
[id] => 81
[attribute_id] => 3
[name] => Монолитные
[material_modifier] => 1
[work_modifier] => 1
[options] => Array
(
[0] => 150 мм
[1] => 200 мм
[2] => 250 мм
[3] => 300 мм
[4] => 350 мм
[5] => 400 мм
)
[days] => [45,46,47,49,50,53]
[material_price] => [6545,7876,10175,12011,13908,15204]
[work_price] => [5106,6444,7698,8552,9807,11461]
[image] => https://akademik-stroy.ru/wp-content/uploads/materials/monolitnye.jpg
[area_modifier] => 124.33
[parent_name] => Стены 1 этаж (несущие)
[parent_id] => 3
[material_sum] => 1025312
[work_sum] => 666570
[total_sum] => 1691882
[total_days] => 45
[display_material_sum] => 1 025 312
[display_work_sum] => 666 570
[display_total_sum] => 1 691 882
)
1
1 691 882₽
Работа:666 570 ₽
Материалы:1 025 312 ₽
Дни:45
stdClass Object
(
[id] => 82
[attribute_id] => 3
[name] => Клееный брус
[material_modifier] => 1
[work_modifier] => 1
[options] => Array
(
[0] => 160 мм
[1] => 175 мм
[2] => 200 мм
[3] => 215 мм
[4] => 240 мм
[5] => 270 мм
[6] => 282 мм
)
[days] => [24,28,32,37,40,42,48]
[material_price] => [16975,18773,19950,20545,21599,22159,23275]
[work_price] => [4806,5287,5815,6397,7036,7740,8514]
[image] => https://akademik-stroy.ru/wp-content/uploads/materials/kleenyj-brus.jpg
[area_modifier] => 124.33
[parent_name] => Стены 1 этаж (несущие)
[parent_id] => 3
[material_sum] => 2659232
[work_sum] => 627406
[total_sum] => 3286638
[total_days] => 24
[display_material_sum] => 2 659 232
[display_work_sum] => 627 406
[display_total_sum] => 3 286 638
)
1
3 286 638₽
Работа:627 406 ₽
Материалы:2 659 232 ₽
Дни:24
stdClass Object
(
[id] => 83
[attribute_id] => 3
[name] => Каркасные
[material_modifier] => 1
[work_modifier] => 1
[options] => Array
(
[0] => 150 мм
[1] => 200 мм
[2] => 250 мм
[3] => 300 мм
)
[days] => [15,16,17,18]
[material_price] => [2379,2639,2898,3258]
[work_price] => [2418,2686,2985,3716]
[image] => https://akademik-stroy.ru/wp-content/uploads/materials/karkasnye.jpg
[area_modifier] => 124.33
[parent_name] => Стены 1 этаж (несущие)
[parent_id] => 3
[material_sum] => 372684
[work_sum] => 315661
[total_sum] => 688345
[total_days] => 15
[display_material_sum] => 372 684
[display_work_sum] => 315 661
[display_total_sum] => 688 345
)
1
688 345₽
Работа:315 661 ₽
Материалы:372 684 ₽
Дни:15
stdClass Object
(
[id] => 84
[attribute_id] => 3
[name] => СИП-панели
[material_modifier] => 1
[work_modifier] => 1
[options] => Array
(
[0] => 120 мм
[1] => 170 мм
[2] => 220 мм
)
[days] => [7,7,7]
[material_price] => [1210,1856,2292]
[work_price] => [1410,1551,1706]
[image] => https://akademik-stroy.ru/wp-content/uploads/materials/sip-paneli.jpg
[area_modifier] => 124.33
[parent_name] => Стены 1 этаж (несущие)
[parent_id] => 3
[material_sum] => 189554
[work_sum] => 184071
[total_sum] => 373625
[total_days] => 7
[display_material_sum] => 189 554
[display_work_sum] => 184 071
[display_total_sum] => 373 625
)
1
373 625₽
Работа:184 071 ₽
Материалы:189 554 ₽
Дни:7
stdClass Object
(
[id] => 85
[attribute_id] => 3
[name] => Сухой брус
[material_modifier] => 1
[work_modifier] => 1
[options] => Array
(
[0] => 150 мм
[1] => 180 мм
[2] => 200 мм
)
[days] => [7,8,9]
[material_price] => [6010,7190,8709]
[work_price] => [3204,3845,4229]
[image] => https://akademik-stroy.ru/wp-content/uploads/materials/suhoj-brus.jpg
[area_modifier] => 124.33
[parent_name] => Стены 1 этаж (несущие)
[parent_id] => 3
[material_sum] => 941501
[work_sum] => 418271
[total_sum] => 1359772
[total_days] => 7
[display_material_sum] => 941 501
[display_work_sum] => 418 271
[display_total_sum] => 1 359 772
)
1
1 359 772₽
Работа:418 271 ₽
Материалы:941 501 ₽
Дни:7
stdClass Object
(
[id] => 86
[attribute_id] => 3
[name] => Профилированный брус
[material_modifier] => 1
[work_modifier] => 1
[options] => Array
(
[0] => 150 мм
[1] => 180 мм
[2] => 200 мм
)
[days] => [7,8,9]
[material_price] => [8190,9228,10051]
[work_price] => [3845,4614,5075]
[image] => https://akademik-stroy.ru/wp-content/uploads/materials/profilirovannyj-brus.jpg
[area_modifier] => 124.33
[parent_name] => Стены 1 этаж (несущие)
[parent_id] => 3
[material_sum] => 1283011
[work_sum] => 501951
[total_sum] => 1784962
[total_days] => 7
[display_material_sum] => 1 283 011
[display_work_sum] => 501 951
[display_total_sum] => 1 784 962
)
1
1 784 962₽
Работа:501 951 ₽
Материалы:1 283 011 ₽
Дни:7
stdClass Object
(
[id] => 87
[attribute_id] => 3
[name] => Оцилиндрованное бревно
[material_modifier] => 1
[work_modifier] => 1
[options] => Array
(
[0] => 180 мм
[1] => 220 мм
[2] => 260 мм
[3] => 320 мм
)
[days] => [7,8,9,10]
[material_price] => [75190,9532,10868,13116]
[work_price] => [3845,4691,5535,6863]
[image] => https://akademik-stroy.ru/wp-content/uploads/materials/ocilindrovannoe-brevno-1.jpg
[area_modifier] => 124.33
[parent_name] => Стены 1 этаж (несущие)
[parent_id] => 3
[material_sum] => 11778950
[work_sum] => 501951
[total_sum] => 12280901
[total_days] => 7
[display_material_sum] => 11 778 950
[display_work_sum] => 501 951
[display_total_sum] => 12 280 901
)
1
12 280 901₽
Работа:501 951 ₽
Материалы:11 778 950 ₽
Дни:7
stdClass Object
(
[id] => 88
[attribute_id] => 3
[name] => Срубы
[material_modifier] => 1
[work_modifier] => 1
[options] => Array
(
[0] => 260 мм
[1] => 320 мм
[2] => 360 мм
[3] => 400 мм
[4] => 500 мм
)
[days] => [7,8,9,10,11]
[material_price] => [37975,46709,52314,58069,73167]
[work_price] => [4806,5911,6621,7349,9260]
[image] => https://akademik-stroy.ru/wp-content/uploads/materials/sruby.jpg
[area_modifier] => 124.33
[parent_name] => Стены 1 этаж (несущие)
[parent_id] => 3
[material_sum] => 5949004
[work_sum] => 627406
[total_sum] => 6576410
[total_days] => 7
[display_material_sum] => 5 949 004
[display_work_sum] => 627 406
[display_total_sum] => 6 576 410
)
1
6 576 410₽
Работа:627 406 ₽
Материалы:5 949 004 ₽
Дни:7
stdClass Object
(
[id] => 174
[attribute_id] => 3
[name] => Брус
[material_modifier] => 1
[work_modifier] => 1
[options] => Array
(
[0] => 150 мм
[1] => 180 мм
[2] => 200 мм
)
[days] => [7,8,9]
[material_price] => [5127,6152,7367]
[work_price] => [1602,1922,2115]
[image] => https://akademik-stroy.ru/wp-content/uploads/materials/brus.jpg
[area_modifier] => 124.33
[parent_name] => Стены 1 этаж (несущие)
[parent_id] => 3
[material_sum] => 803174
[work_sum] => 209135
[total_sum] => 1012309
[total_days] => 7
[display_material_sum] => 803 174
[display_work_sum] => 209 135
[display_total_sum] => 1 012 309
)
1
1 012 309₽
Работа:209 135 ₽
Материалы:803 174 ₽
Дни:7
stdClass Object
(
[id] => 175
[attribute_id] => 3
[name] => Газобетон
[material_modifier] => 1
[work_modifier] => 1
[options] => Array
(
[0] => 300 мм
[1] => 375 мм
[2] => 400 мм
[3] => 500 мм
[4] => 600 мм
)
[days] => [29,31,35,37,44]
[material_price] => [4298,5573,6356,7288,9119]
[work_price] => [4538,5251,5926,6733,7195]
[image] => https://akademik-stroy.ru/wp-content/uploads/materials/gazobeton.jpg
[area_modifier] => 124.33
[parent_name] => Стены 1 этаж (несущие)
[parent_id] => 3
[material_sum] => 673307
[work_sum] => 592420
[total_sum] => 1265727
[total_days] => 29
[display_material_sum] => 673 307
[display_work_sum] => 592 420
[display_total_sum] => 1 265 727
)
1
1 265 727₽
Работа:592 420 ₽
Материалы:673 307 ₽
Дни:29
stdClass Object
(
[id] => 176
[attribute_id] => 3
[name] => Блок
[material_modifier] => 1
[work_modifier] => 1
[options] => Array
(
[0] => 300 мм
[1] => 375 мм
[2] => 400 мм
[3] => 500 мм
[4] => 600 мм
)
[days] => [29,31,35,37,44]
[material_price] => [2698,3973,4356,6588,7119]
[work_price] => [5038,5851,6426,8733,9195]
[image] => https://akademik-stroy.ru/wp-content/uploads/materials/blok.jpg
[area_modifier] => 124.33
[parent_name] => Стены 1 этаж (несущие)
[parent_id] => 3
[material_sum] => 422657
[work_sum] => 657693
[total_sum] => 1080350
[total_days] => 29
[display_material_sum] => 422 657
[display_work_sum] => 657 693
[display_total_sum] => 1 080 350
)
1
1 080 350₽
Работа:657 693 ₽
Материалы:422 657 ₽
Дни:29
stdClass Object
(
[id] => 177
[attribute_id] => 3
[name] => Газосиликатный блок
[material_modifier] => 1
[work_modifier] => 1
[options] => Array
(
[0] => 300 мм
[1] => 375 мм
[2] => 400 мм
[3] => 500 мм
[4] => 600 мм
)
[days] => [29,31,35,37,44]
[material_price] => [4298,5573,6356,7288,9119]
[work_price] => [4538,5251,5926,6733,7195]
[image] => https://akademik-stroy.ru/wp-content/uploads/materials/gazosilikatnyj-blok.jpg
[area_modifier] => 124.33
[parent_name] => Стены 1 этаж (несущие)
[parent_id] => 3
[material_sum] => 673307
[work_sum] => 592420
[total_sum] => 1265727
[total_days] => 29
[display_material_sum] => 673 307
[display_work_sum] => 592 420
[display_total_sum] => 1 265 727
)
1
1 265 727₽
Работа:592 420 ₽
Материалы:673 307 ₽
Дни:29
stdClass Object
(
[id] => 178
[attribute_id] => 3
[name] => Керамзитобетонный блок
[material_modifier] => 1
[work_modifier] => 1
[options] => Array
(
[0] => 300 мм
[1] => 375 мм
[2] => 400 мм
[3] => 500 мм
[4] => 600 мм
)
[days] => [23,23,24,25,28]
[material_price] => [3641,4298,5693,7613,9612]
[work_price] => [5737,5737,6903,7958,8901]
[image] => https://akademik-stroy.ru/wp-content/uploads/materials/keramzitobetonnyj-blok.jpg
[area_modifier] => 124.33
[parent_name] => Стены 1 этаж (несущие)
[parent_id] => 3
[material_sum] => 570384
[work_sum] => 748945
[total_sum] => 1319329
[total_days] => 23
[display_material_sum] => 570 384
[display_work_sum] => 748 945
[display_total_sum] => 1 319 329
)
1
1 319 329₽
Работа:748 945 ₽
Материалы:570 384 ₽
Дни:23
stdClass Object
(
[id] => 179
[attribute_id] => 3
[name] => Деревянные
[material_modifier] => 1
[work_modifier] => 1
[options] => Array
(
[0] => 180 мм
[1] => 220 мм
[2] => 260 мм
[3] => 320 мм
)
[days] => [7,8,9,10]
[material_price] => [7950,9458,11961,14472]
[work_price] => [4037,4925,5812,7207]
[image] => https://akademik-stroy.ru/wp-content/uploads/materials/derevyannye.jpg
[area_modifier] => 124.33
[parent_name] => Стены 1 этаж (несущие)
[parent_id] => 3
[material_sum] => 1245414
[work_sum] => 527016
[total_sum] => 1772430
[total_days] => 7
[display_material_sum] => 1 245 414
[display_work_sum] => 527 016
[display_total_sum] => 1 772 430
)
1
1 772 430₽
Работа:527 016 ₽
Материалы:1 245 414 ₽
Дни:7
stdClass Object
(
[id] => 181
[attribute_id] => 3
[name] => Камень
[material_modifier] => 1
[work_modifier] => 1
[options] => Array
(
[0] => 300 мм
[1] => 400 мм
[2] => 500 мм
[3] => 600 мм
)
[days] => [25,27,31,34]
[material_price] => [5262,6844,8330,9815]
[work_price] => [8331,9135,10427,11069]
[image] => https://akademik-stroy.ru/wp-content/uploads/materials/kamen.jpg
[area_modifier] => 124.33
[parent_name] => Стены 1 этаж (несущие)
[parent_id] => 3
[material_sum] => 824323
[work_sum] => 1087583
[total_sum] => 1911906
[total_days] => 25
[display_material_sum] => 824 323
[display_work_sum] => 1 087 583
[display_total_sum] => 1 911 906
)
1
1 911 906₽
Работа:1 087 583 ₽
Материалы:824 323 ₽
Дни:25
stdClass Object
(
[id] => 182
[attribute_id] => 3
[name] => Каркасно-щитовые
[material_modifier] => 1
[work_modifier] => 1
[options] => Array
(
[0] => 150 мм
[1] => 200 мм
[2] => 250 мм
[3] => 300 мм
[4] => 350 мм
[5] => 400 мм
)
[days] => [15,16,17,18,19,20]
[material_price] => [2379,2639,2898,3458,3601,4175]
[work_price] => [2538,2820,3134,3483,4062,5642]
[image] => https://akademik-stroy.ru/wp-content/uploads/materials/karkasno-shchitovye.jpg
[area_modifier] => 124.33
[parent_name] => Стены 1 этаж (несущие)
[parent_id] => 3
[material_sum] => 372684
[work_sum] => 331327
[total_sum] => 704011
[total_days] => 15
[display_material_sum] => 372 684
[display_work_sum] => 331 327
[display_total_sum] => 704 011
)
1
704 011₽
Работа:331 327 ₽
Материалы:372 684 ₽
Дни:15
stdClass Object
(
[id] => 183
[attribute_id] => 3
[name] => Рубленные
[material_modifier] => 1
[work_modifier] => 1
[options] => Array
(
[0] => 150 мм
[1] => 200 мм
[2] => 250 мм
[3] => 300 мм
[4] => 350 мм
[5] => 400 мм
)
[days] => [15,16,17,18,17,18]
[material_price] => [35950,50267,60583,75900,80217,100533]
[work_price] => [9612,12816,16020,19224,22428,25632]
[image] => https://akademik-stroy.ru/wp-content/uploads/materials/rublennye.jpg
[area_modifier] => 124.33
[parent_name] => Стены 1 этаж (несущие)
[parent_id] => 3
[material_sum] => 5631776
[work_sum] => 1254813
[total_sum] => 6886589
[total_days] => 15
[display_material_sum] => 5 631 776
[display_work_sum] => 1 254 813
[display_total_sum] => 6 886 589
)
1
6 886 589₽
Работа:1 254 813 ₽
Материалы:5 631 776 ₽
Дни:15
stdClass Object
(
[id] => 185
[attribute_id] => 3
[name] => Теплоблок
[material_modifier] => 1
[work_modifier] => 1
[options] => Array
(
[0] => 300 мм (с облицовкой, не покрашенный)
[1] => 400 мм (с облицовкой, не покрашенный)
[2] => 300 мм (с облицовкой, покрашенный)
[3] => 400 мм (с облицовкой, покрашенный)
)
[days] => [15,16,15,16]
[material_price] => [2888,3729,3957,4258]
[work_price] => [2564,3229,2949,3713]
[image] => https://akademik-stroy.ru/wp-content/uploads/materials/teploblok.jpg
[area_modifier] => 124.33
[parent_name] => Стены 1 этаж (несущие)
[parent_id] => 3
[material_sum] => 452422
[work_sum] => 334721
[total_sum] => 787143
[total_days] => 15
[display_material_sum] => 452 422
[display_work_sum] => 334 721
[display_total_sum] => 787 143
)
1
787 143₽
Работа:334 721 ₽
Материалы:452 422 ₽
Дни:15
stdClass Object
(
[id] => 186
[attribute_id] => 3
[name] => Арболитовые блоки
[material_modifier] => 1
[work_modifier] => 1
[options] => Array
(
[0] => 300 мм
[1] => 400 мм
[2] => 600 мм
)
[days] => [19,22,27]
[material_price] => [3210,4475,5852]
[work_price] => [4214,4788,5866]
[image] => https://akademik-stroy.ru/wp-content/uploads/materials/arbolitovye-bloki.png
[area_modifier] => 124.33
[parent_name] => Стены 1 этаж (несущие)
[parent_id] => 3
[material_sum] => 502865
[work_sum] => 550123
[total_sum] => 1052988
[total_days] => 19
[display_material_sum] => 502 865
[display_work_sum] => 550 123
[display_total_sum] => 1 052 988
)
1
1 052 988₽
Работа:550 123 ₽
Материалы:502 865 ₽
Дни:19
stdClass Object
(
[id] => 187
[attribute_id] => 3
[name] => Полистиролбетон
[material_modifier] => 1
[work_modifier] => 1
[options] => Array
(
[0] => 300 мм
[1] => 400 мм
[2] => 600 мм
)
[days] => [29,31,35]
[material_price] => [2798,4573,5256]
[work_price] => [5038,5851,6426]
[image] => https://akademik-stroy.ru/wp-content/uploads/materials/polistirolbeton.jpg
[area_modifier] => 124.33
[parent_name] => Стены 1 этаж (несущие)
[parent_id] => 3
[material_sum] => 438323
[work_sum] => 657693
[total_sum] => 1096016
[total_days] => 29
[display_material_sum] => 438 323
[display_work_sum] => 657 693
[display_total_sum] => 1 096 016
)
1
1 096 016₽
Работа:657 693 ₽
Материалы:438 323 ₽
Дни:29
stdClass Object
(
[id] => 188
[attribute_id] => 3
[name] => Шлакоблок
[material_modifier] => 1
[work_modifier] => 1
[options] => Array
(
[0] => 400 мм
[1] => 600 мм
)
[days] => [15,16]
[material_price] => [2391,3471]
[work_price] => [2642,3662]
[image] => https://akademik-stroy.ru/wp-content/uploads/materials/shlakoblok.jpg
[area_modifier] => 124.33
[parent_name] => Стены 1 этаж (несущие)
[parent_id] => 3
[material_sum] => 374564
[work_sum] => 344904
[total_sum] => 719468
[total_days] => 15
[display_material_sum] => 374 564
[display_work_sum] => 344 904
[display_total_sum] => 719 468
)
1
719 468₽
Работа:344 904 ₽
Материалы:374 564 ₽
Дни:15
stdClass Object
(
[id] => 189
[attribute_id] => 3
[name] => Теплая керамика
[material_modifier] => 1
[work_modifier] => 1
[options] => Array
(
[0] => 380 мм
[1] => 380 мм Thermo
[2] => 440 мм
[3] => 510 мм
)
[days] => [23,23,24,25]
[material_price] => [4510,5098,6093,8013]
[work_price] => [4737,4937,5903,6958]
[image] => https://akademik-stroy.ru/wp-content/uploads/materials/teplaya-keramika.jpg
[area_modifier] => 124.33
[parent_name] => Стены 1 этаж (несущие)
[parent_id] => 3
[material_sum] => 706518
[work_sum] => 618399
[total_sum] => 1324917
[total_days] => 23
[display_material_sum] => 706 518
[display_work_sum] => 618 399
[display_total_sum] => 1 324 917
)
1
1 324 917₽
Работа:618 399 ₽
Материалы:706 518 ₽
Дни:23
stdClass Object
(
[id] => 190
[attribute_id] => 3
[name] => Несъемная опалубка
[material_modifier] => 1
[work_modifier] => 1
[options] => Array
(
[0] => 200 мм
[1] => 250 мм
[2] => 300 мм
[3] => 350 мм
)
[days] => [15,17,19,21]
[material_price] => [3302,3902,4108,5008]
[work_price] => [2100,2100,2300,2534]
[image] => https://akademik-stroy.ru/wp-content/uploads/materials/nesemnaya-opalubka.jpg
[area_modifier] => 124.33
[parent_name] => Стены 1 этаж (несущие)
[parent_id] => 3
[material_sum] => 517277
[work_sum] => 274148
[total_sum] => 791425
[total_days] => 15
[display_material_sum] => 517 277
[display_work_sum] => 274 148
[display_total_sum] => 791 425
)
1
791 425₽
Работа:274 148 ₽
Материалы:517 277 ₽
Дни:15
stdClass Object
(
[id] => 251
[attribute_id] => 3
[name] => Бревно
[material_modifier] => 1
[work_modifier] => 1
[options] => Array
(
[0] => 260 мм
[1] => 320 мм
[2] => 360 мм
[3] => 400 мм
[4] => 500 мм
)
[days] => [7,8,9,10,11]
[material_price] => [1874,24045,26930,30972,38825]
[work_price] => [5046,6207,6952,7716,9723]
[image] => https://akademik-stroy.ru/wp-content/uploads/materials/sruby.jpg
[area_modifier] => 124.33
[parent_name] => Стены 1 этаж (несущие)
[parent_id] => 3
[material_sum] => 293573
[work_sum] => 658738
[total_sum] => 952311
[total_days] => 7
[display_material_sum] => 293 573
[display_work_sum] => 658 738
[display_total_sum] => 952 311
)
1
952 311₽
Работа:658 738 ₽
Материалы:293 573 ₽
Дни:7
stdClass Object
(
[id] => 7
[attribute_id] => 4
[name] => Деревянные балки
[material_modifier] => 1
[work_modifier] => 1
[options] => Array
(
[0] => без утепления
[1] => утепление 200 мм
[2] => утепление 250 мм
[3] => утепление 300 мм
[4] => утепление 350 мм
[5] => утепление 400 мм
[6] => утепление 450 мм
[7] => утепление 500 мм
)
[days] => [8,9,9,9,11,12,13,14]
[material_price] => [1634,2042,2344,2947,3149,3652,3354,3557]
[work_price] => [1230,1339,1393,1426,1460,1513,1587,1620]
[image] => https://akademik-stroy.ru/wp-content/uploads/materials/derevyannye-balki.png
[area_modifier] => 124.33
[parent_name] => Перекрытие первого этажа
[parent_id] => 4
[material_sum] => 255976
[work_sum] => 160572
[total_sum] => 416548
[total_days] => 8
[display_material_sum] => 255 976
[display_work_sum] => 160 572
[display_total_sum] => 416 548
)
1
416 548₽
Работа:160 572 ₽
Материалы:255 976 ₽
Дни:8
stdClass Object
(
[id] => 8
[attribute_id] => 4
[name] => Сборные ж/б плиты
[material_modifier] => 1
[work_modifier] => 1
[options] => Array
(
[0] => без утепления
[1] => утепление 150 мм
[2] => утепление 200 мм
[3] => утепление 250 мм
[4] => утепление 300 мм
[5] => утепление 350 мм
[6] => утепление 400 мм
[7] => утепление 450 мм
[8] => утепление 500 мм
)
[days] => [13,15,15,15,15,15,15,15,15]
[material_price] => [3067,5577,5928,6679,7730,8782,9833,10884,11935]
[work_price] => [1520,1956,2102,2247,2392,2537,2684,2829,2974]
[image] => https://akademik-stroy.ru/wp-content/uploads/materials/sbornye-zh-b-plity-2.jpg
[area_modifier] => 124.33
[parent_name] => Перекрытие первого этажа
[parent_id] => 4
[material_sum] => 480463
[work_sum] => 198431
[total_sum] => 678894
[total_days] => 13
[display_material_sum] => 480 463
[display_work_sum] => 198 431
[display_total_sum] => 678 894
)
1
678 894₽
Работа:198 431 ₽
Материалы:480 463 ₽
Дни:13
stdClass Object
(
[id] => 89
[attribute_id] => 4
[name] => Монолитная ж/б плита
[material_modifier] => 1
[work_modifier] => 1
[options] => Array
(
[0] => без утепления
[1] => утепление 150 мм
[2] => утепление 200 мм
[3] => утепление 250 мм
[4] => утепление 300 мм
[5] => утепление 350 мм
[6] => утепление 400 мм
[7] => утепление 450 мм
[8] => утепление 500 мм
)
[days] => [18,20,20,20,20,20,20,20,20]
[material_price] => [4837,6572,7224,7375,79426,8177,8728,9180,10031]
[work_price] => [3348,3921,4112,4302,4493,4684,4875,5066,5256]
[image] => https://akademik-stroy.ru/wp-content/uploads/materials/monolitnaya-zh-b-plita-2.jpg
[area_modifier] => 124.33
[parent_name] => Перекрытие первого этажа
[parent_id] => 4
[material_sum] => 757744
[work_sum] => 437070
[total_sum] => 1194814
[total_days] => 18
[display_material_sum] => 757 744
[display_work_sum] => 437 070
[display_total_sum] => 1 194 814
)
1
1 194 814₽
Работа:437 070 ₽
Материалы:757 744 ₽
Дни:18
stdClass Object
(
[id] => 10
[attribute_id] => 5
[name] => Пеноблок
[material_modifier] => 1
[work_modifier] => 1
[options] => Array
(
[0] => 300 мм
[1] => 400 мм
[2] => 500 мм
[3] => 600 мм
)
[days] => [29,31,34,39]
[material_price] => [3000,4000,4500,4937]
[work_price] => [5033,5805,6400,8710]
[image] => https://akademik-stroy.ru/wp-content/uploads/materials/penoblok.jpg
[area_modifier] => 89.39
[parent_name] => Стены 2 этаж (несущие)
[parent_id] => 5
[material_sum] => 337894
[work_sum] => 472395
[total_sum] => 810289
[total_days] => 29
[display_material_sum] => 337 894
[display_work_sum] => 472 395
[display_total_sum] => 810 289
)
1
810 289₽
Работа:472 395 ₽
Материалы:337 894 ₽
Дни:29
stdClass Object
(
[id] => 90
[attribute_id] => 5
[name] => Керамический блок
[material_modifier] => 1
[work_modifier] => 1
[options] => Array
(
[0] => 380 мм
[1] => 380 мм Thermo
[2] => 440 мм
[3] => 510 мм
)
[days] => [23,23,24,25]
[material_price] => [4510,5098,6093,8013]
[work_price] => [4737,4937,5903,6958]
[image] => https://akademik-stroy.ru/wp-content/uploads/materials/keramicheskij-blok.jpg
[area_modifier] => 89.39
[parent_name] => Стены 2 этаж (несущие)
[parent_id] => 5
[material_sum] => 507968
[work_sum] => 444612
[total_sum] => 952580
[total_days] => 23
[display_material_sum] => 507 968
[display_work_sum] => 444 612
[display_total_sum] => 952 580
)
1
952 580₽
Работа:444 612 ₽
Материалы:507 968 ₽
Дни:23
stdClass Object
(
[id] => 91
[attribute_id] => 5
[name] => Кирпич
[material_modifier] => 1
[work_modifier] => 1
[options] => Array
(
[0] => Кирпич 250 мм
[1] => Кирпич 380 мм
[2] => Кирпич 510 мм
[3] => Кирпич 640 мм
[4] => Кирпич 770 мм
)
[days] => [30,30,31,33,36]
[material_price] => [5500,7142,9206,10171,12235]
[work_price] => [8736,10041,12018,15240,18462]
[image] => https://akademik-stroy.ru/wp-content/uploads/materials/kirpich.jpg
[area_modifier] => 89.39
[parent_name] => Стены 2 этаж (несущие)
[parent_id] => 5
[material_sum] => 619473
[work_sum] => 819957
[total_sum] => 1439430
[total_days] => 30
[display_material_sum] => 619 473
[display_work_sum] => 819 957
[display_total_sum] => 1 439 430
)
1
1 439 430₽
Работа:819 957 ₽
Материалы:619 473 ₽
Дни:30
stdClass Object
(
[id] => 92
[attribute_id] => 5
[name] => Монолитные
[material_modifier] => 1
[work_modifier] => 1
[options] => Array
(
[0] => 150 мм
[1] => 200 мм
[2] => 250 мм
[3] => 300 мм
[4] => 350 мм
[5] => 400 мм
)
[days] => [45,46,47,49,50,53]
[material_price] => [6545,7876,10175,12011,13908,15204]
[work_price] => [5106,6444,7698,8552,9807,11461]
[image] => https://akademik-stroy.ru/wp-content/uploads/materials/monolitnye.jpg
[area_modifier] => 89.39
[parent_name] => Стены 2 этаж (несущие)
[parent_id] => 5
[material_sum] => 737173
[work_sum] => 479247
[total_sum] => 1216420
[total_days] => 45
[display_material_sum] => 737 173
[display_work_sum] => 479 247
[display_total_sum] => 1 216 420
)
1
1 216 420₽
Работа:479 247 ₽
Материалы:737 173 ₽
Дни:45
stdClass Object
(
[id] => 93
[attribute_id] => 5
[name] => Клееный брус
[material_modifier] => 1
[work_modifier] => 1
[options] => Array
(
[0] => 160 мм
[1] => 175 мм
[2] => 200 мм
[3] => 215 мм
[4] => 240 мм
[5] => 270 мм
[6] => 282 мм
)
[days] => [24,28,32,37,40,42,48]
[material_price] => [16975,18773,19950,20545,21599,22159,23275]
[work_price] => [4806,5287,5815,6397,7036,7740,8514]
[image] => https://akademik-stroy.ru/wp-content/uploads/materials/kleenyj-brus.jpg
[area_modifier] => 89.39
[parent_name] => Стены 2 этаж (несущие)
[parent_id] => 5
[material_sum] => 1911918
[work_sum] => 451089
[total_sum] => 2363007
[total_days] => 24
[display_material_sum] => 1 911 918
[display_work_sum] => 451 089
[display_total_sum] => 2 363 007
)
1
2 363 007₽
Работа:451 089 ₽
Материалы:1 911 918 ₽
Дни:24
stdClass Object
(
[id] => 94
[attribute_id] => 5
[name] => Каркасные
[material_modifier] => 1
[work_modifier] => 1
[options] => Array
(
[0] => 150 мм
[1] => 200 мм
[2] => 250 мм
[3] => 300 мм
)
[days] => [15,16,17,18]
[material_price] => [2379,2639,2898,3258]
[work_price] => [2418,2686,2985,3716]
[image] => https://akademik-stroy.ru/wp-content/uploads/materials/karkasnye.jpg
[area_modifier] => 89.39
[parent_name] => Стены 2 этаж (несущие)
[parent_id] => 5
[material_sum] => 267950
[work_sum] => 226952
[total_sum] => 494902
[total_days] => 15
[display_material_sum] => 267 950
[display_work_sum] => 226 952
[display_total_sum] => 494 902
)
1
494 902₽
Работа:226 952 ₽
Материалы:267 950 ₽
Дни:15
stdClass Object
(
[id] => 95
[attribute_id] => 5
[name] => СИП-панели
[material_modifier] => 1
[work_modifier] => 1
[options] => Array
(
[0] => 120 мм
[1] => 170 мм
[2] => 220 мм
)
[days] => [7,7,7]
[material_price] => [1210,1856,2292]
[work_price] => [1410,1551,1706]
[image] => https://akademik-stroy.ru/wp-content/uploads/materials/sip-paneli.jpg
[area_modifier] => 89.39
[parent_name] => Стены 2 этаж (несущие)
[parent_id] => 5
[material_sum] => 136284
[work_sum] => 132342
[total_sum] => 268626
[total_days] => 7
[display_material_sum] => 136 284
[display_work_sum] => 132 342
[display_total_sum] => 268 626
)
1
268 626₽
Работа:132 342 ₽
Материалы:136 284 ₽
Дни:7
stdClass Object
(
[id] => 96
[attribute_id] => 5
[name] => Сухой брус
[material_modifier] => 1
[work_modifier] => 1
[options] => Array
(
[0] => 150 мм
[1] => 180 мм
[2] => 200 мм
)
[days] => [7,8,9]
[material_price] => [6010,7190,8709]
[work_price] => [3204,3845,4229]
[image] => https://akademik-stroy.ru/wp-content/uploads/materials/suhoj-brus.jpg
[area_modifier] => 89.39
[parent_name] => Стены 2 этаж (несущие)
[parent_id] => 5
[material_sum] => 676915
[work_sum] => 300726
[total_sum] => 977641
[total_days] => 7
[display_material_sum] => 676 915
[display_work_sum] => 300 726
[display_total_sum] => 977 641
)
1
977 641₽
Работа:300 726 ₽
Материалы:676 915 ₽
Дни:7
stdClass Object
(
[id] => 97
[attribute_id] => 5
[name] => Профилированный брус
[material_modifier] => 1
[work_modifier] => 1
[options] => Array
(
[0] => 150 мм
[1] => 180 мм
[2] => 200 мм
)
[days] => [7,8,9]
[material_price] => [8190,9228,10051]
[work_price] => [3845,4614,5075]
[image] => https://akademik-stroy.ru/wp-content/uploads/materials/profilirovannyj-brus.jpg
[area_modifier] => 89.39
[parent_name] => Стены 2 этаж (несущие)
[parent_id] => 5
[material_sum] => 922451
[work_sum] => 360890
[total_sum] => 1283341
[total_days] => 7
[display_material_sum] => 922 451
[display_work_sum] => 360 890
[display_total_sum] => 1 283 341
)
1
1 283 341₽
Работа:360 890 ₽
Материалы:922 451 ₽
Дни:7
stdClass Object
(
[id] => 98
[attribute_id] => 5
[name] => Оцилиндрованное бревно
[material_modifier] => 1
[work_modifier] => 1
[options] => Array
(
[0] => 180 мм
[1] => 220 мм
[2] => 260 мм
[3] => 320 мм
)
[days] => [7,8,9,10]
[material_price] => [75190,9532,10868,13116]
[work_price] => [3845,4691,5535,6863]
[image] => https://akademik-stroy.ru/wp-content/uploads/materials/ocilindrovannoe-brevno-1.jpg
[area_modifier] => 89.39
[parent_name] => Стены 2 этаж (несущие)
[parent_id] => 5
[material_sum] => 8468755
[work_sum] => 360890
[total_sum] => 8829645
[total_days] => 7
[display_material_sum] => 8 468 755
[display_work_sum] => 360 890
[display_total_sum] => 8 829 645
)
1
8 829 645₽
Работа:360 890 ₽
Материалы:8 468 755 ₽
Дни:7
stdClass Object
(
[id] => 99
[attribute_id] => 5
[name] => Срубы
[material_modifier] => 1
[work_modifier] => 1
[options] => Array
(
[0] => 260 мм
[1] => 320 мм
[2] => 360 мм
[3] => 400 мм
[4] => 500 мм
)
[days] => [7,8,9,10,11]
[material_price] => [16175,23709,26314,29069,32167]
[work_price] => [4806,5911,6621,7349,9260]
[image] => https://akademik-stroy.ru/wp-content/uploads/materials/suhoj-brus.jpg
[area_modifier] => 89.39
[parent_name] => Стены 2 этаж (несущие)
[parent_id] => 5
[material_sum] => 1821813
[work_sum] => 451089
[total_sum] => 2272902
[total_days] => 7
[display_material_sum] => 1 821 813
[display_work_sum] => 451 089
[display_total_sum] => 2 272 902
)
1
2 272 902₽
Работа:451 089 ₽
Материалы:1 821 813 ₽
Дни:7
stdClass Object
(
[id] => 194
[attribute_id] => 5
[name] => Брус
[material_modifier] => 1
[work_modifier] => 1
[options] => Array
(
[0] => 150 мм
[1] => 180 мм
[2] => 200 мм
)
[days] => [10,13,15]
[material_price] => [5127,6152,7367]
[work_price] => [1602,1922,2115]
[image] => https://akademik-stroy.ru/wp-content/uploads/materials/brus.jpg
[area_modifier] => 89.39
[parent_name] => Стены 2 этаж (несущие)
[parent_id] => 5
[material_sum] => 577461
[work_sum] => 150363
[total_sum] => 727824
[total_days] => 10
[display_material_sum] => 577 461
[display_work_sum] => 150 363
[display_total_sum] => 727 824
)
1
727 824₽
Работа:150 363 ₽
Материалы:577 461 ₽
Дни:10
stdClass Object
(
[id] => 195
[attribute_id] => 5
[name] => Газобетон
[material_modifier] => 1
[work_modifier] => 1
[options] => Array
(
[0] => 300 мм
[1] => 375 мм
[2] => 400 мм
[3] => 500 мм
[4] => 600 мм
)
[days] => [29,31,35,37,44]
[material_price] => [4298,5573,6356,7288,9119]
[work_price] => [4538,5251,5926,6733,7195]
[image] => https://akademik-stroy.ru/wp-content/uploads/materials/gazobeton.jpg
[area_modifier] => 89.39
[parent_name] => Стены 2 этаж (несущие)
[parent_id] => 5
[material_sum] => 484090
[work_sum] => 425934
[total_sum] => 910024
[total_days] => 29
[display_material_sum] => 484 090
[display_work_sum] => 425 934
[display_total_sum] => 910 024
)
1
910 024₽
Работа:425 934 ₽
Материалы:484 090 ₽
Дни:29
stdClass Object
(
[id] => 196
[attribute_id] => 5
[name] => Блок
[material_modifier] => 1
[work_modifier] => 1
[options] => Array
(
[0] => 300 мм
[1] => 375 мм
[2] => 400 мм
[3] => 500 мм
[4] => 600 мм
)
[days] => [29,31,35,37,44]
[material_price] => [2698,3973,4356,6588,7119]
[work_price] => [5038,5851,6426,8733,9195]
[image] => https://akademik-stroy.ru/wp-content/uploads/materials/blok.jpg
[area_modifier] => 89.39
[parent_name] => Стены 2 этаж (несущие)
[parent_id] => 5
[material_sum] => 303880
[work_sum] => 472864
[total_sum] => 776744
[total_days] => 29
[display_material_sum] => 303 880
[display_work_sum] => 472 864
[display_total_sum] => 776 744
)
1
776 744₽
Работа:472 864 ₽
Материалы:303 880 ₽
Дни:29
stdClass Object
(
[id] => 197
[attribute_id] => 5
[name] => Газосиликатный блок
[material_modifier] => 1
[work_modifier] => 1
[options] => Array
(
[0] => 300 мм
[1] => 375 мм
[2] => 400 мм
[3] => 500 мм
[4] => 600 мм
)
[days] => [29,31,35,37,44]
[material_price] => [4298,5573,6356,7288,9119]
[work_price] => [4538,5251,5926,6733,7195]
[image] => https://akademik-stroy.ru/wp-content/uploads/materials/gazosilikatnyj-blok.jpg
[area_modifier] => 89.39
[parent_name] => Стены 2 этаж (несущие)
[parent_id] => 5
[material_sum] => 484090
[work_sum] => 425934
[total_sum] => 910024
[total_days] => 29
[display_material_sum] => 484 090
[display_work_sum] => 425 934
[display_total_sum] => 910 024
)
1
910 024₽
Работа:425 934 ₽
Материалы:484 090 ₽
Дни:29
stdClass Object
(
[id] => 198
[attribute_id] => 5
[name] => Керамзитобетонный блок
[material_modifier] => 1
[work_modifier] => 1
[options] => Array
(
[0] => 300 мм
[1] => 375 мм
[2] => 400 мм
[3] => 500 мм
[4] => 600 мм
)
[days] => [23,23,24,25,28]
[material_price] => [3641,4298,5693,7613,9612]
[work_price] => [5737,5737,6903,7958,8901]
[image] => https://akademik-stroy.ru/wp-content/uploads/materials/keramzitobetonnyj-blok.jpg
[area_modifier] => 89.39
[parent_name] => Стены 2 этаж (несущие)
[parent_id] => 5
[material_sum] => 410091
[work_sum] => 538472
[total_sum] => 948563
[total_days] => 23
[display_material_sum] => 410 091
[display_work_sum] => 538 472
[display_total_sum] => 948 563
)
1
948 563₽
Работа:538 472 ₽
Материалы:410 091 ₽
Дни:23
stdClass Object
(
[id] => 199
[attribute_id] => 5
[name] => Деревянные
[material_modifier] => 1
[work_modifier] => 1
[options] => Array
(
[0] => 180 мм
[1] => 220 мм
[2] => 260 мм
[3] => 320 мм
)
[days] => [7,8,9,10]
[material_price] => [7950,9458,11961,14472]
[work_price] => [4037,4925,5812,7207]
[image] => https://akademik-stroy.ru/wp-content/uploads/materials/derevyannye.jpg
[area_modifier] => 89.39
[parent_name] => Стены 2 этаж (несущие)
[parent_id] => 5
[material_sum] => 895420
[work_sum] => 378911
[total_sum] => 1274331
[total_days] => 7
[display_material_sum] => 895 420
[display_work_sum] => 378 911
[display_total_sum] => 1 274 331
)
1
1 274 331₽
Работа:378 911 ₽
Материалы:895 420 ₽
Дни:7
stdClass Object
(
[id] => 200
[attribute_id] => 5
[name] => Камень
[material_modifier] => 1
[work_modifier] => 1
[options] => Array
(
[0] => 300 мм
[1] => 400 мм
[2] => 500 мм
[3] => 600 мм
)
[days] => [25,27,31,34]
[material_price] => [5262,6844,8330,9815]
[work_price] => [8331,9135,10427,11069]
[image] => https://akademik-stroy.ru/wp-content/uploads/materials/kamen.jpg
[area_modifier] => 89.39
[parent_name] => Стены 2 этаж (несущие)
[parent_id] => 5
[material_sum] => 592666
[work_sum] => 781943
[total_sum] => 1374609
[total_days] => 25
[display_material_sum] => 592 666
[display_work_sum] => 781 943
[display_total_sum] => 1 374 609
)
1
1 374 609₽
Работа:781 943 ₽
Материалы:592 666 ₽
Дни:25
stdClass Object
(
[id] => 201
[attribute_id] => 5
[name] => Каркасно-щитовые
[material_modifier] => 1
[work_modifier] => 1
[options] => Array
(
[0] => 150 мм
[1] => 200 мм
[2] => 250 мм
[3] => 300 мм
[4] => 350 мм
[5] => 400 мм
)
[days] => [15,16,17,18,19,20]
[material_price] => [2379,2639,2898,3458,3601,4175]
[work_price] => [2538,2820,3134,3483,4062,5642]
[image] => https://akademik-stroy.ru/wp-content/uploads/materials/karkasno-shchitovye.jpg
[area_modifier] => 89.39
[parent_name] => Стены 2 этаж (несущие)
[parent_id] => 5
[material_sum] => 267950
[work_sum] => 238215
[total_sum] => 506165
[total_days] => 15
[display_material_sum] => 267 950
[display_work_sum] => 238 215
[display_total_sum] => 506 165
)
1
506 165₽
Работа:238 215 ₽
Материалы:267 950 ₽
Дни:15
stdClass Object
(
[id] => 202
[attribute_id] => 5
[name] => Рубленные
[material_modifier] => 1
[work_modifier] => 1
[options] => Array
(
[0] => 150 мм
[1] => 200 мм
[2] => 250 мм
[3] => 300 мм
[4] => 350 мм
[5] => 400 мм
)
[days] => [15,16,17,18,17,18]
[material_price] => [35950,50267,60583,75900,80217,100533]
[work_price] => [9612,12816,16020,19224,22428,25632]
[image] => https://akademik-stroy.ru/wp-content/uploads/materials/rublennye.jpg
[area_modifier] => 89.39
[parent_name] => Стены 2 этаж (несущие)
[parent_id] => 5
[material_sum] => 4049099
[work_sum] => 902178
[total_sum] => 4951277
[total_days] => 15
[display_material_sum] => 4 049 099
[display_work_sum] => 902 178
[display_total_sum] => 4 951 277
)
1
4 951 277₽
Работа:902 178 ₽
Материалы:4 049 099 ₽
Дни:15
stdClass Object
(
[id] => 203
[attribute_id] => 5
[name] => Теплоблок
[material_modifier] => 1
[work_modifier] => 1
[options] => Array
(
[0] => 300 мм (с облицовкой, не покрашенный)
[1] => 400 мм (с облицовкой, не покрашенный)
[2] => 300 мм (с облицовкой, покрашенный)
[3] => 400 мм (с облицовкой, покрашенный)
)
[days] => [15,16,15,16]
[material_price] => [2888,3729,3957,4258]
[work_price] => [2564,3229,2949,3713]
[image] => https://akademik-stroy.ru/wp-content/uploads/materials/teploblok.jpg
[area_modifier] => 89.39
[parent_name] => Стены 2 этаж (несущие)
[parent_id] => 5
[material_sum] => 325279
[work_sum] => 240656
[total_sum] => 565935
[total_days] => 15
[display_material_sum] => 325 279
[display_work_sum] => 240 656
[display_total_sum] => 565 935
)
1
565 935₽
Работа:240 656 ₽
Материалы:325 279 ₽
Дни:15
stdClass Object
(
[id] => 204
[attribute_id] => 5
[name] => Арболитовые блоки
[material_modifier] => 1
[work_modifier] => 1
[options] => Array
(
[0] => 300 мм
[1] => 400 мм
[2] => 600 мм
)
[days] => [19,22,27]
[material_price] => [3210,4475,5852]
[work_price] => [4214,4788,5866]
[image] => https://akademik-stroy.ru/wp-content/uploads/materials/arbolitovye-bloki.png
[area_modifier] => 89.39
[parent_name] => Стены 2 этаж (несущие)
[parent_id] => 5
[material_sum] => 361547
[work_sum] => 395524
[total_sum] => 757071
[total_days] => 19
[display_material_sum] => 361 547
[display_work_sum] => 395 524
[display_total_sum] => 757 071
)
1
757 071₽
Работа:395 524 ₽
Материалы:361 547 ₽
Дни:19
stdClass Object
(
[id] => 205
[attribute_id] => 5
[name] => Полистиролбетон
[material_modifier] => 1
[work_modifier] => 1
[options] => Array
(
[0] => 300 мм
[1] => 400 мм
[2] => 600 мм
)
[days] => [29,31,35]
[material_price] => [2798,4573,5256]
[work_price] => [5038,5851,6426]
[image] => https://akademik-stroy.ru/wp-content/uploads/materials/polistirolbeton.jpg
[area_modifier] => 89.39
[parent_name] => Стены 2 этаж (несущие)
[parent_id] => 5
[material_sum] => 315143
[work_sum] => 472864
[total_sum] => 788007
[total_days] => 29
[display_material_sum] => 315 143
[display_work_sum] => 472 864
[display_total_sum] => 788 007
)
1
788 007₽
Работа:472 864 ₽
Материалы:315 143 ₽
Дни:29
stdClass Object
(
[id] => 206
[attribute_id] => 5
[name] => Шлакоблок
[material_modifier] => 1
[work_modifier] => 1
[options] => Array
(
[0] => 400 мм
[1] => 600 мм
)
[days] => [15,16]
[material_price] => [2391,3471]
[work_price] => [2642,3662]
[image] => https://akademik-stroy.ru/wp-content/uploads/materials/shlakoblok.jpg
[area_modifier] => 89.39
[parent_name] => Стены 2 этаж (несущие)
[parent_id] => 5
[material_sum] => 269302
[work_sum] => 247977
[total_sum] => 517279
[total_days] => 15
[display_material_sum] => 269 302
[display_work_sum] => 247 977
[display_total_sum] => 517 279
)
1
517 279₽
Работа:247 977 ₽
Материалы:269 302 ₽
Дни:15
stdClass Object
(
[id] => 245
[attribute_id] => 5
[name] => Теплая керамика
[material_modifier] => 1
[work_modifier] => 1
[options] => Array
(
[0] => 380 мм
[1] => 380 мм Thermo
[2] => 440 мм
[3] => 510 мм
)
[days] => [10,10,11,12]
[material_price] => [4510,5098,6093,8013]
[work_price] => [4737,4937,5903,6958]
[image] => https://akademik-stroy.ru/wp-content/uploads/materials/teplaya-keramika.jpg
[area_modifier] => 89.39
[parent_name] => Стены 2 этаж (несущие)
[parent_id] => 5
[material_sum] => 507968
[work_sum] => 444612
[total_sum] => 952580
[total_days] => 10
[display_material_sum] => 507 968
[display_work_sum] => 444 612
[display_total_sum] => 952 580
)
1
952 580₽
Работа:444 612 ₽
Материалы:507 968 ₽
Дни:10
stdClass Object
(
[id] => 246
[attribute_id] => 5
[name] => Несъемная опалубка
[material_modifier] => 1
[work_modifier] => 1
[options] => Array
(
[0] => 380 мм
[1] => 380 мм Thermo
[2] => 440 мм
[3] => 510 мм
)
[days] => [10,10,11,12]
[material_price] => [3302,3902,4108,5008]
[work_price] => [2100,2100,2300,2534]
[image] => https://akademik-stroy.ru/wp-content/uploads/materials/nesemnaya-opalubka.jpg
[area_modifier] => 89.39
[parent_name] => Стены 2 этаж (несущие)
[parent_id] => 5
[material_sum] => 371909
[work_sum] => 197105
[total_sum] => 569014
[total_days] => 10
[display_material_sum] => 371 909
[display_work_sum] => 197 105
[display_total_sum] => 569 014
)
1
569 014₽
Работа:197 105 ₽
Материалы:371 909 ₽
Дни:10
stdClass Object
(
[id] => 254
[attribute_id] => 5
[name] => Бревно
[material_modifier] => 1
[work_modifier] => 1
[options] => Array
(
[0] => 260 мм
[1] => 320 мм
[2] => 360 мм
[3] => 400 мм
[4] => 500 мм
)
[days] => [7,8,9,10,11]
[material_price] => [1874,24045,26930,30972,38825]
[work_price] => [5046,6207,6952,7716,9723]
[image] => https://akademik-stroy.ru/wp-content/uploads/materials/sruby.jpg
[area_modifier] => 89.39
[parent_name] => Стены 2 этаж (несущие)
[parent_id] => 5
[material_sum] => 211071
[work_sum] => 473615
[total_sum] => 684686
[total_days] => 7
[display_material_sum] => 211 071
[display_work_sum] => 473 615
[display_total_sum] => 684 686
)
1
684 686₽
Работа:473 615 ₽
Материалы:211 071 ₽
Дни:7
stdClass Object
(
[id] => 11
[attribute_id] => 6
[name] => Деревянные балки
[material_modifier] => 1
[work_modifier] => 1
[options] => Array
(
[0] => без утепления
[1] => утепление 200 мм
[2] => утепление 250 мм
[3] => утепление 300 мм
[4] => утепление 350 мм
[5] => утепление 400 мм
[6] => утепление 450 мм
[7] => утепление 500 мм
)
[days] => [8,9,9,9,11,12,13,14]
[material_price] => [1634,2042,2344,2947,3149,3652,3354,3557]
[work_price] => [1230,1339,1393,1426,1460,1513,1587,1620]
[image] => https://akademik-stroy.ru/wp-content/uploads/materials/derevyannye-balki.png
[area_modifier] => 89.39
[parent_name] => Перекрытие второго этажа
[parent_id] => 6
[material_sum] => 184040
[work_sum] => 115447
[total_sum] => 299487
[total_days] => 8
[display_material_sum] => 184 040
[display_work_sum] => 115 447
[display_total_sum] => 299 487
)
1
299 487₽
Работа:115 447 ₽
Материалы:184 040 ₽
Дни:8
stdClass Object
(
[id] => 12
[attribute_id] => 6
[name] => Сборные ж/б плиты
[material_modifier] => 1
[work_modifier] => 1
[options] => Array
(
[0] => без утепления
[1] => утепление 150 мм
[2] => утепление 200 мм
[3] => утепление 250 мм
[4] => утепление 300 мм
[5] => утепление 350 мм
[6] => утепление 400 мм
[7] => утепление 450 мм
[8] => утепление 500 мм
)
[days] => [13,15,15,15,15,15,15,15,15]
[material_price] => [3067,5577,5928,6679,7730,8782,9833,10884,11935]
[work_price] => [1520,1956,2102,2247,2392,2537,2684,2829,2974]
[image] => https://akademik-stroy.ru/wp-content/uploads/materials/sbornye-zh-b-plity-2.jpg
[area_modifier] => 89.39
[parent_name] => Перекрытие второго этажа
[parent_id] => 6
[material_sum] => 345441
[work_sum] => 142666
[total_sum] => 488107
[total_days] => 13
[display_material_sum] => 345 441
[display_work_sum] => 142 666
[display_total_sum] => 488 107
)
1
488 107₽
Работа:142 666 ₽
Материалы:345 441 ₽
Дни:13
stdClass Object
(
[id] => 100
[attribute_id] => 6
[name] => Монолитная ж/б плита
[material_modifier] => 1
[work_modifier] => 1
[options] => Array
(
[0] => без утепления
[1] => утепление 150 мм
[2] => утепление 200 мм
[3] => утепление 250 мм
[4] => утепление 300 мм
[5] => утепление 350 мм
[6] => утепление 400 мм
[7] => утепление 450 мм
[8] => утепление 500 мм
)
[days] => [18,20,20,20,20,20,20,20,20]
[material_price] => [4837,6572,7224,7375,79426,8177,8728,9180,10031]
[work_price] => [3348,3921,4112,4302,4493,4684,4875,5066,5256]
[image] => https://akademik-stroy.ru/wp-content/uploads/materials/monolitnaya-zh-b-plita-2.jpg
[area_modifier] => 89.39
[parent_name] => Перекрытие второго этажа
[parent_id] => 6
[material_sum] => 544798
[work_sum] => 314242
[total_sum] => 859040
[total_days] => 18
[display_material_sum] => 544 798
[display_work_sum] => 314 242
[display_total_sum] => 859 040
)
1
859 040₽
Работа:314 242 ₽
Материалы:544 798 ₽
Дни:18
stdClass Object
(
[id] => 164
[attribute_id] => 37
[name] => Металлочерепица
[material_modifier] => 1
[work_modifier] => 1
[options] => Array
(
)
[days] => [20]
[material_price] => [6112]
[work_price] => [5726]
[image] => https://akademik-stroy.ru/wp-content/uploads/materials/metallocherepica.jpg
[area_modifier] => 124.33
[parent_name] => Крыша (Скатная)
[parent_id] => 37
[material_sum] => 957480
[work_sum] => 747509
[total_sum] => 1704989
[total_days] => 20
[display_material_sum] => 957 480
[display_work_sum] => 747 509
[display_total_sum] => 1 704 989
)
1
1 704 989₽
Работа:747 509 ₽
Материалы:957 480 ₽
Дни:20
stdClass Object
(
[id] => 165
[attribute_id] => 37
[name] => Гибкая черепица
[material_modifier] => 1
[work_modifier] => 1
[options] => Array
(
)
[days] => [20]
[material_price] => [6980]
[work_price] => [5950]
[image] => https://akademik-stroy.ru/wp-content/uploads/materials/gibkaya-cherepica.jpg
[area_modifier] => 124.33
[parent_name] => Крыша (Скатная)
[parent_id] => 37
[material_sum] => 1093457
[work_sum] => 776752
[total_sum] => 1870209
[total_days] => 20
[display_material_sum] => 1 093 457
[display_work_sum] => 776 752
[display_total_sum] => 1 870 209
)
1
1 870 209₽
Работа:776 752 ₽
Материалы:1 093 457 ₽
Дни:20
stdClass Object
(
[id] => 166
[attribute_id] => 37
[name] => Цементно-песчаная черепица
[material_modifier] => 1
[work_modifier] => 1
[options] => Array
(
)
[days] => [20]
[material_price] => [10560]
[work_price] => [9456]
[image] => https://akademik-stroy.ru/wp-content/uploads/materials/cementno-peschanaya-cherepica.jpg
[area_modifier] => 124.33
[parent_name] => Крыша (Скатная)
[parent_id] => 37
[material_sum] => 1654285
[work_sum] => 1234448
[total_sum] => 2888733
[total_days] => 20
[display_material_sum] => 1 654 285
[display_work_sum] => 1 234 448
[display_total_sum] => 2 888 733
)
1
2 888 733₽
Работа:1 234 448 ₽
Материалы:1 654 285 ₽
Дни:20
stdClass Object
(
[id] => 167
[attribute_id] => 37
[name] => Композитная черепица
[material_modifier] => 1
[work_modifier] => 1
[options] => Array
(
)
[days] => [20]
[material_price] => [9506]
[work_price] => [8905]
[image] => https://akademik-stroy.ru/wp-content/uploads/materials/kompozitnaya-cherepica.jpg
[area_modifier] => 124.33
[parent_name] => Крыша (Скатная)
[parent_id] => 37
[material_sum] => 1489170
[work_sum] => 1162517
[total_sum] => 2651687
[total_days] => 20
[display_material_sum] => 1 489 170
[display_work_sum] => 1 162 517
[display_total_sum] => 2 651 687
)
1
2 651 687₽
Работа:1 162 517 ₽
Материалы:1 489 170 ₽
Дни:20
stdClass Object
(
[id] => 168
[attribute_id] => 37
[name] => Керамическая черепица
[material_modifier] => 1
[work_modifier] => 1
[options] => Array
(
)
[days] => [20]
[material_price] => [12750]
[work_price] => [9456]
[image] => https://akademik-stroy.ru/wp-content/uploads/materials/keramicheskaya-cherepica.jpg
[area_modifier] => 124.33
[parent_name] => Крыша (Скатная)
[parent_id] => 37
[material_sum] => 1997361
[work_sum] => 1234448
[total_sum] => 3231809
[total_days] => 20
[display_material_sum] => 1 997 361
[display_work_sum] => 1 234 448
[display_total_sum] => 3 231 809
)
1
3 231 809₽
Работа:1 234 448 ₽
Материалы:1 997 361 ₽
Дни:20
stdClass Object
(
[id] => 169
[attribute_id] => 37
[name] => Металлическая фальцевая
[material_modifier] => 1
[work_modifier] => 1
[options] => Array
(
)
[days] => [20]
[material_price] => [8550]
[work_price] => [8190]
[image] => https://akademik-stroy.ru/wp-content/uploads/materials/metallicheskaya-falcevaya.jpg
[area_modifier] => 124.33
[parent_name] => Крыша (Скатная)
[parent_id] => 37
[material_sum] => 1339407
[work_sum] => 1069176
[total_sum] => 2408583
[total_days] => 20
[display_material_sum] => 1 339 407
[display_work_sum] => 1 069 176
[display_total_sum] => 2 408 583
)
1
2 408 583₽
Работа:1 069 176 ₽
Материалы:1 339 407 ₽
Дни:20
stdClass Object
(
[id] => 170
[attribute_id] => 37
[name] => Медная фальцевая
[material_modifier] => 1
[work_modifier] => 1
[options] => Array
(
)
[days] => [20]
[material_price] => [20450]
[work_price] => [16750]
[image] => https://akademik-stroy.ru/wp-content/uploads/materials/mednaya-falcevaya.jpg
[area_modifier] => 124.33
[parent_name] => Крыша (Скатная)
[parent_id] => 37
[material_sum] => 3203611
[work_sum] => 2186654
[total_sum] => 5390265
[total_days] => 20
[display_material_sum] => 3 203 611
[display_work_sum] => 2 186 654
[display_total_sum] => 5 390 265
)
1
5 390 265₽
Работа:2 186 654 ₽
Материалы:3 203 611 ₽
Дни:20
stdClass Object
(
[id] => 171
[attribute_id] => 37
[name] => Зеленая кровля
[material_modifier] => 1
[work_modifier] => 1
[options] => Array
(
)
[days] => [20]
[material_price] => [19850]
[work_price] => [16780]
[image] => https://akademik-stroy.ru/wp-content/uploads/materials/zelenaya-krovlya.jpg
[area_modifier] => 124.33
[parent_name] => Крыша (Скатная)
[parent_id] => 37
[material_sum] => 3109618
[work_sum] => 2190570
[total_sum] => 5300188
[total_days] => 20
[display_material_sum] => 3 109 618
[display_work_sum] => 2 190 570
[display_total_sum] => 5 300 188
)
1
5 300 188₽
Работа:2 190 570 ₽
Материалы:3 109 618 ₽
Дни:20
stdClass Object
(
[id] => 172
[attribute_id] => 37
[name] => Профлист
[material_modifier] => 1
[work_modifier] => 1
[options] => Array
(
)
[days] => [20]
[material_price] => [3450]
[work_price] => [3750]
[image] => https://akademik-stroy.ru/wp-content/uploads/materials/proflist.jpg
[area_modifier] => 124.33
[parent_name] => Крыша (Скатная)
[parent_id] => 37
[material_sum] => 540463
[work_sum] => 489549
[total_sum] => 1030012
[total_days] => 20
[display_material_sum] => 540 463
[display_work_sum] => 489 549
[display_total_sum] => 1 030 012
)
1
1 030 012₽
Работа:489 549 ₽
Материалы:540 463 ₽
Дни:20
stdClass Object
(
[id] => 51
[attribute_id] => 26
[name] => Есть
[material_modifier] => 1
[work_modifier] => 1
[options] => Array
(
[0] => Профиль 58 мм, 3-камерный, стеклопакет 2-камерный до 32 мм
[1] => Профиль 60 мм, 4-камерный, стеклопакет 2-камерный до 32 мм
[2] => Профиль 70 мм, 5-камерный, стеклопакет 2-камерный до 40 мм
[3] => Профиль 72 мм, 5-камерный, стеклопакет 2-камерный до 40 мм
[4] => Алюминиевые окна Alutech профиль 72 мм, стеклопакет 2-камерный
)
[days] => [3,3,3,3,3]
[material_price] => [1339,2124,2867,3023,29596]
[work_price] => [635,647,659,668,2579]
[image] => https://akademik-stroy.ru/wp-content/uploads/materials/okna.jpg
[area_modifier] => 173.43
[parent_name] => Окна
[parent_id] => 26
[material_sum] => 292601
[work_sum] => 115634
[total_sum] => 408235
[total_days] => 3
[display_material_sum] => 292 601
[display_work_sum] => 115 634
[display_total_sum] => 408 235
)
1
408 235₽
Работа:115 634 ₽
Материалы:292 601 ₽
Дни:3
stdClass Object
(
[id] => 52
[attribute_id] => 26
[name] => Нет
[material_modifier] => 2
[work_modifier] => 1
[options] =>
[days] => null
[material_price] => null
[work_price] => null
[image] => https://akademik-stroy.ru/wp-content/uploads/materials/okna.jpg
[area_modifier] => 173.43
[parent_name] => Окна
[parent_id] => 26
[material_sum] => 0
[work_sum] => 0
[total_sum] => 0
[total_days] => 0
[display_material_sum] => 0
[display_work_sum] => 0
[display_total_sum] => 0
)
1
0₽
Работа:0 ₽
Материалы:0 ₽
Дни:0
stdClass Object
(
[id] => 53
[attribute_id] => 27
[name] => Есть
[material_modifier] => 1
[work_modifier] => 1
[options] => Array
(
)
[days] => [1]
[material_price] => [10000]
[work_price] => [5500]
[image] => https://akademik-stroy.ru/wp-content/uploads/materials/dveri.jpg
[area_modifier] => 1
[parent_name] => Двери входные
[parent_id] => 27
[material_sum] => 12600
[work_sum] => 5775
[total_sum] => 18375
[total_days] => 1
[display_material_sum] => 12 600
[display_work_sum] => 5 775
[display_total_sum] => 18 375
)
1
18 375₽
Работа:5 775 ₽
Материалы:12 600 ₽
Дни:1
stdClass Object
(
[id] => 54
[attribute_id] => 27
[name] => Нет
[material_modifier] => 1
[work_modifier] => 1
[options] => Array
(
)
[days] => [0]
[material_price] => [0]
[work_price] => [0]
[image] => https://akademik-stroy.ru/wp-content/uploads/materials/dveri.jpg
[area_modifier] => 1
[parent_name] => Двери входные
[parent_id] => 27
[material_sum] => 0
[work_sum] => 0
[total_sum] => 0
[total_days] => 0
[display_material_sum] => 0
[display_work_sum] => 0
[display_total_sum] => 0
)
1
0₽
Работа:0 ₽
Материалы:0 ₽
Дни:0
stdClass Object
(
[id] => 25
[attribute_id] => 13
[name] => Нет
[material_modifier] => 1
[work_modifier] => 1
[options] => Array
(
)
[days] => [0]
[material_price] => [0]
[work_price] => [0]
[image] => https://akademik-stroy.ru/wp-content/uploads/materials/mineralovata-krov.jpg
[area_modifier] => 124.33
[parent_name] => Утепление кровли (Мансарда)
[parent_id] => 13
[material_sum] => 0
[work_sum] => 0
[total_sum] => 0
[total_days] => 0
[display_material_sum] => 0
[display_work_sum] => 0
[display_total_sum] => 0
)
1
0₽
Работа:0 ₽
Материалы:0 ₽
Дни:0
stdClass Object
(
[id] => 26
[attribute_id] => 13
[name] => Минераловатный
[material_modifier] => 1
[work_modifier] => 1
[options] => Array
(
[0] => 50 мм
[1] => 100 мм
[2] => 150 мм
[3] => 200 мм
[4] => 250 мм
[5] => 300 мм
[6] => 350 мм
[7] => 400 мм
[8] => 450 мм
[9] => 500 мм
)
[days] => [5,5,6,6,6,7,7,7,8,8]
[material_price] => [1158,1414,1772,2230,3602,4060,4974,5890,6408,7718]
[work_price] => [650,846,846,1098,1318,1450,1596,1754,1930,2122]
[image] => https://akademik-stroy.ru/wp-content/uploads/materials/mineralovata-krov.jpg
[area_modifier] => 124.33
[parent_name] => Утепление кровли (Мансарда)
[parent_id] => 13
[material_sum] => 181407
[work_sum] => 84855
[total_sum] => 266262
[total_days] => 5
[display_material_sum] => 181 407
[display_work_sum] => 84 855
[display_total_sum] => 266 262
)
1
266 262₽
Работа:84 855 ₽
Материалы:181 407 ₽
Дни:5
stdClass Object
(
[id] => 123
[attribute_id] => 13
[name] => Эковата (целлюлозная вата)
[material_modifier] => 1
[work_modifier] => 1
[options] => Array
(
[0] => 50 мм
[1] => 100 мм
[2] => 150 мм
[3] => 200 мм
[4] => 250 мм
[5] => 300 мм
[6] => 350 мм
[7] => 400 мм
[8] => 450 мм
[9] => 500 мм
)
[days] => [3,3,4,4,4,5,5,5,5,5]
[material_price] => [820,1638,2458,3276,5734,6552,8190,9828,11466,13104]
[work_price] => [234,304,304,396,474,522,574,632,694,764]
[image] => https://akademik-stroy.ru/wp-content/uploads/materials/ehkovata-krov.jpg
[area_modifier] => 124.33
[parent_name] => Утепление кровли (Мансарда)
[parent_id] => 13
[material_sum] => 128458
[work_sum] => 30548
[total_sum] => 159006
[total_days] => 3
[display_material_sum] => 128 458
[display_work_sum] => 30 548
[display_total_sum] => 159 006
)
1
159 006₽
Работа:30 548 ₽
Материалы:128 458 ₽
Дни:3
stdClass Object
(
[id] => 124
[attribute_id] => 13
[name] => Экструдированный пенополистирол
[material_modifier] => 1
[work_modifier] => 1
[options] => Array
(
[0] => 50 мм
[1] => 100 мм
[2] => 150 мм
[3] => 200 мм
[4] => 250 мм
[5] => 300 мм
[6] => 350 мм
[7] => 400 мм
[8] => 450 мм
[9] => 500 мм
)
[days] => [3,3,4,4,4,5,5,5,5,6]
[material_price] => [1146,2292,3438,4584,8020,9166,11458,13750,16040,18332]
[work_price] => [390,508,508,660,790,870,958,1052,1158,1274]
[image] => https://akademik-stroy.ru/wp-content/uploads/materials/epps-krov.jpg
[area_modifier] => 124.33
[parent_name] => Утепление кровли (Мансарда)
[parent_id] => 13
[material_sum] => 179528
[work_sum] => 50913
[total_sum] => 230441
[total_days] => 3
[display_material_sum] => 179 528
[display_work_sum] => 50 913
[display_total_sum] => 230 441
)
1
230 441₽
Работа:50 913 ₽
Материалы:179 528 ₽
Дни:3
stdClass Object
(
[id] => 125
[attribute_id] => 13
[name] => ПСБ (ППС-пенополистирол)
[material_modifier] => 1
[work_modifier] => 1
[options] => Array
(
[0] => 50 мм
[1] => 100 мм
[2] => 150 мм
[3] => 200 мм
[4] => 250 мм
[5] => 300 мм
[6] => 350 мм
[7] => 400 мм
[8] => 450 мм
[9] => 500 мм
)
[days] => [3,3,4,4,4,5,5,5,5,6]
[material_price] => [476,954,1430,1906,3336,3814,4766,5720,6674,7626]
[work_price] => [390,508,508,660,790,870,958,1052,1158,1274]
[image] => https://akademik-stroy.ru/wp-content/uploads/materials/psb-krov.jpg
[area_modifier] => 124.33
[parent_name] => Утепление кровли (Мансарда)
[parent_id] => 13
[material_sum] => 74568
[work_sum] => 50913
[total_sum] => 125481
[total_days] => 3
[display_material_sum] => 74 568
[display_work_sum] => 50 913
[display_total_sum] => 125 481
)
1
125 481₽
Работа:50 913 ₽
Материалы:74 568 ₽
Дни:3
stdClass Object
(
[id] => 126
[attribute_id] => 13
[name] => ППУ (Пенополиуретан)
[material_modifier] => 1
[work_modifier] => 1
[options] => Array
(
[0] => 50 мм
[1] => 100 мм
[2] => 150 мм
[3] => 200 мм
[4] => 250 мм
[5] => 300 мм
[6] => 350 мм
[7] => 400 мм
[8] => 450 мм
[9] => 500 мм
)
[days] => [2,2,3,3,3,3,4,4,4,4]
[material_price] => [2080,4160,6240,8320,14560,16640,20800,24960,29120,33280]
[work_price] => [234,304,304,396,474,522,574,632,694,764]
[image] => https://akademik-stroy.ru/wp-content/uploads/materials/ppu-krov.jpg
[area_modifier] => 124.33
[parent_name] => Утепление кровли (Мансарда)
[parent_id] => 13
[material_sum] => 325844
[work_sum] => 30548
[total_sum] => 356392
[total_days] => 2
[display_material_sum] => 325 844
[display_work_sum] => 30 548
[display_total_sum] => 356 392
)
1
356 392₽
Работа:30 548 ₽
Материалы:325 844 ₽
Дни:2
stdClass Object
(
[id] => 127
[attribute_id] => 13
[name] => PIR-плиты (пенополиизоцианурат)
[material_modifier] => 1
[work_modifier] => 1
[options] => Array
(
[0] => 50 мм
[1] => 100 мм
[2] => 150 мм
[3] => 200 мм
[4] => 250 мм
[5] => 300 мм
[6] => 350 мм
[7] => 400 мм
[8] => 450 мм
[9] => 500 мм
)
[days] => [3,3,4,4,4,5,5,5,5,6]
[material_price] => [2646,5290,7936,10580,18516,21162,26452,31742,37032,42324]
[work_price] => [390,508,508,660,790,870,958,1052,1158,1274]
[image] => https://akademik-stroy.ru/wp-content/uploads/materials/pir-krov.jpg
[area_modifier] => 124.33
[parent_name] => Утепление кровли (Мансарда)
[parent_id] => 13
[material_sum] => 414511
[work_sum] => 50913
[total_sum] => 465424
[total_days] => 3
[display_material_sum] => 414 511
[display_work_sum] => 50 913
[display_total_sum] => 465 424
)
1
465 424₽
Работа:50 913 ₽
Материалы:414 511 ₽
Дни:3
stdClass Object
(
[id] => 27
[attribute_id] => 14
[name] => Нет
[material_modifier] => 1
[work_modifier] => 1
[options] => Array
(
)
[days] => [0]
[material_price] => [0]
[work_price] => [0]
[image] => https://akademik-stroy.ru/wp-content/uploads/materials/mansardnye-okna-2.jpg
[area_modifier] => 1
[parent_name] => Мансардные окна
[parent_id] => 14
[material_sum] => 0
[work_sum] => 0
[total_sum] => 0
[total_days] => 0
[display_material_sum] => 0
[display_work_sum] => 0
[display_total_sum] => 0
)
1
0₽
Работа:0 ₽
Материалы:0 ₽
Дни:0
stdClass Object
(
[id] => 28
[attribute_id] => 14
[name] => Есть
[material_modifier] => 1
[work_modifier] => 1
[options] => Array
(
[0] => 55x78
[1] => 55x98
)
[days] => [6,7]
[material_price] => [47480,68700]
[work_price] => [17900,19500]
[image] => https://akademik-stroy.ru/wp-content/uploads/materials/mansardnye-okna-2.jpg
[area_modifier] => 1
[parent_name] => Мансардные окна
[parent_id] => 14
[material_sum] => 59825
[work_sum] => 18795
[total_sum] => 78620
[total_days] => 6
[display_material_sum] => 59 825
[display_work_sum] => 18 795
[display_total_sum] => 78 620
)
1
78 620₽
Работа:18 795 ₽
Материалы:59 825 ₽
Дни:6
stdClass Object
(
[id] => 29
[attribute_id] => 15
[name] => Нет
[material_modifier] => 1
[work_modifier] => 1
[options] => Array
(
)
[days] => [0]
[material_price] => [0]
[work_price] => [0]
[image] => https://akademik-stroy.ru/wp-content/uploads/materials/sofit.jpg
[area_modifier] => 124.33
[parent_name] => Подшивка кровли
[parent_id] => 15
[material_sum] => 0
[work_sum] => 0
[total_sum] => 0
[total_days] => 0
[display_material_sum] => 0
[display_work_sum] => 0
[display_total_sum] => 0
)
1
0₽
Работа:0 ₽
Материалы:0 ₽
Дни:0
stdClass Object
(
[id] => 30
[attribute_id] => 15
[name] => Есть
[material_modifier] => 1
[work_modifier] => 1
[options] => Array
(
[0] => Софиты (ПВХ)
[1] => Cedral
[2] => ДПК
[3] => Планкен
)
[days] => [7,10,9,8]
[material_price] => [1803,3213,3025,3150]
[work_price] => [1529,2188,2075,1923]
[image] => https://akademik-stroy.ru/wp-content/uploads/materials/sofit.jpg
[area_modifier] => 124.33
[parent_name] => Подшивка кровли
[parent_id] => 15
[material_sum] => 282450
[work_sum] => 199606
[total_sum] => 482056
[total_days] => 7
[display_material_sum] => 282 450
[display_work_sum] => 199 606
[display_total_sum] => 482 056
)
1
482 056₽
Работа:199 606 ₽
Материалы:282 450 ₽
Дни:7
stdClass Object
(
[id] => 31
[attribute_id] => 16
[name] => Нет
[material_modifier] => 1
[work_modifier] => 1
[options] => Array
(
)
[days] => [0]
[material_price] => [0]
[work_price] => [0]
[image] => https://akademik-stroy.ru/wp-content/uploads/materials/docke-standard-pvh.jpg
[area_modifier] => 124.33
[parent_name] => Водосточная система
[parent_id] => 16
[material_sum] => 0
[work_sum] => 0
[total_sum] => 0
[total_days] => 0
[display_material_sum] => 0
[display_work_sum] => 0
[display_total_sum] => 0
)
1
0₽
Работа:0 ₽
Материалы:0 ₽
Дни:0
stdClass Object
(
[id] => 32
[attribute_id] => 16
[name] => Есть
[material_modifier] => 1
[work_modifier] => 1
[options] => Array
(
[0] => Döcke Standard (ПВХ)
[1] => Металлические Grand Line
)
[days] => [7,7]
[material_price] => [1842,2703]
[work_price] => [1491,1529]
[image] => https://akademik-stroy.ru/wp-content/uploads/materials/docke-standard-pvh.jpg
[area_modifier] => 124.33
[parent_name] => Водосточная система
[parent_id] => 16
[material_sum] => 288560
[work_sum] => 194645
[total_sum] => 483205
[total_days] => 7
[display_material_sum] => 288 560
[display_work_sum] => 194 645
[display_total_sum] => 483 205
)
1
483 205₽
Работа:194 645 ₽
Материалы:288 560 ₽
Дни:7
stdClass Object
(
[id] => 33
[attribute_id] => 17
[name] => Нет
[material_modifier] => 1
[work_modifier] => 1
[options] => Array
(
)
[days] => [0]
[material_price] => [0]
[work_price] => [0]
[image] => https://akademik-stroy.ru/wp-content/uploads/materials/mineralovata.jpg
[area_modifier] => 213.72
[parent_name] => Дополнительное утепление наружных стен
[parent_id] => 17
[material_sum] => 0
[work_sum] => 0
[total_sum] => 0
[total_days] => 0
[display_material_sum] => 0
[display_work_sum] => 0
[display_total_sum] => 0
)
1
0₽
Работа:0 ₽
Материалы:0 ₽
Дни:0
stdClass Object
(
[id] => 34
[attribute_id] => 17
[name] => Минераловатный
[material_modifier] => 1
[work_modifier] => 1
[options] => Array
(
[0] => 50 мм
[1] => 100 мм
[2] => 150 мм
[3] => 200 мм
[4] => 250 мм
[5] => 300 мм
)
[days] => [7,8,10,12,14,15]
[material_price] => [3437,3613,3803,3915,4601,4830]
[work_price] => [2325,2423,2523,2749,2859,3025]
[image] => https://akademik-stroy.ru/wp-content/uploads/materials/mineralovata.jpg
[area_modifier] => 213.72
[parent_name] => Дополнительное утепление наружных стен
[parent_id] => 17
[material_sum] => 925540
[work_sum] => 521744
[total_sum] => 1447284
[total_days] => 7
[display_material_sum] => 925 540
[display_work_sum] => 521 744
[display_total_sum] => 1 447 284
)
1
1 447 284₽
Работа:521 744 ₽
Материалы:925 540 ₽
Дни:7
stdClass Object
(
[id] => 128
[attribute_id] => 17
[name] => Эковата (целлюлозная вата)
[material_modifier] => 1
[work_modifier] => 1
[options] => Array
(
[0] => 50 мм
[1] => 100 мм
[2] => 150 мм
[3] => 200 мм
[4] => 250 мм
[5] => 300 мм
)
[days] => [3,4,5,6,7,8]
[material_price] => [810,1319,1629,1838,2267,2676]
[work_price] => [1225,1323,1423,1549,1659,1725]
[image] => https://akademik-stroy.ru/wp-content/uploads/materials/ehkovata.jpg
[area_modifier] => 213.72
[parent_name] => Дополнительное утепление наружных стен
[parent_id] => 17
[material_sum] => 218123
[work_sum] => 274897
[total_sum] => 493020
[total_days] => 3
[display_material_sum] => 218 123
[display_work_sum] => 274 897
[display_total_sum] => 493 020
)
1
493 020₽
Работа:274 897 ₽
Материалы:218 123 ₽
Дни:3
stdClass Object
(
[id] => 129
[attribute_id] => 17
[name] => Экструдированный пенополистирол
[material_modifier] => 1
[work_modifier] => 1
[options] => Array
(
[0] => 50 мм
[1] => 100 мм
[2] => 150 мм
[3] => 200 мм
[4] => 250 мм
[5] => 300 мм
)
[days] => [5,6,7,8,9,10]
[material_price] => [4560,4300,5119,6292,7010,8583]
[work_price] => [1795,1954,2254,2330,2595,2735]
[image] => https://akademik-stroy.ru/wp-content/uploads/materials/epps.jpg
[area_modifier] => 213.72
[parent_name] => Дополнительное утепление наружных стен
[parent_id] => 17
[material_sum] => 1227950
[work_sum] => 402809
[total_sum] => 1630759
[total_days] => 5
[display_material_sum] => 1 227 950
[display_work_sum] => 402 809
[display_total_sum] => 1 630 759
)
1
1 630 759₽
Работа:402 809 ₽
Материалы:1 227 950 ₽
Дни:5
stdClass Object
(
[id] => 130
[attribute_id] => 17
[name] => ПСБ (ППС-пенополистирол)
[material_modifier] => 1
[work_modifier] => 1
[options] => Array
(
[0] => 50 мм
[1] => 100 мм
[2] => 150 мм
[3] => 200 мм
[4] => 250 мм
[5] => 300 мм
)
[days] => [5,6,7,8,9,10]
[material_price] => [4822,5200,5819,6292,7010,7583]
[work_price] => [1795,1954,2254,2330,2595,2735]
[image] => https://akademik-stroy.ru/wp-content/uploads/materials/psb.jpg
[area_modifier] => 213.72
[parent_name] => Дополнительное утепление наружных стен
[parent_id] => 17
[material_sum] => 1298503
[work_sum] => 402809
[total_sum] => 1701312
[total_days] => 5
[display_material_sum] => 1 298 503
[display_work_sum] => 402 809
[display_total_sum] => 1 701 312
)
1
1 701 312₽
Работа:402 809 ₽
Материалы:1 298 503 ₽
Дни:5
stdClass Object
(
[id] => 131
[attribute_id] => 17
[name] => ППУ (Пенополиуретан)
[material_modifier] => 1
[work_modifier] => 1
[options] => Array
(
[0] => 50 мм
[1] => 100 мм
[2] => 150 мм
[3] => 200 мм
[4] => 250 мм
[5] => 300 мм
)
[days] => [3,4,5,6,7,8]
[material_price] => [2860,3400,4219,4592,5010,5583]
[work_price] => [729,900,980,1120,1280,1530]
[image] => https://akademik-stroy.ru/wp-content/uploads/materials/ppu.jpg
[area_modifier] => 213.72
[parent_name] => Дополнительное утепление наружных стен
[parent_id] => 17
[material_sum] => 770161
[work_sum] => 163592
[total_sum] => 933753
[total_days] => 3
[display_material_sum] => 770 161
[display_work_sum] => 163 592
[display_total_sum] => 933 753
)
1
933 753₽
Работа:163 592 ₽
Материалы:770 161 ₽
Дни:3
stdClass Object
(
[id] => 132
[attribute_id] => 17
[name] => PIR-плиты (пенополиизоцианурат)
[material_modifier] => 1
[work_modifier] => 1
[options] => Array
(
[0] => 50 мм
[1] => 100 мм
[2] => 150 мм
[3] => 200 мм
[4] => 250 мм
[5] => 300 мм
)
[days] => [5,6,7,8,9,10]
[material_price] => [8323,15645,20968,25900,29258,30581]
[work_price] => [800,900,970,1150,1280,1330]
[image] => https://akademik-stroy.ru/wp-content/uploads/materials/pir.jpg
[area_modifier] => 213.72
[parent_name] => Дополнительное утепление наружных стен
[parent_id] => 17
[material_sum] => 2241277
[work_sum] => 179525
[total_sum] => 2420802
[total_days] => 5
[display_material_sum] => 2 241 277
[display_work_sum] => 179 525
[display_total_sum] => 2 420 802
)
1
2 420 802₽
Работа:179 525 ₽
Материалы:2 241 277 ₽
Дни:5
stdClass Object
(
[id] => 37
[attribute_id] => 19
[name] => Нет
[material_modifier] => 1
[work_modifier] => 1
[options] => Array
(
)
[days] => [0]
[material_price] => [0]
[work_price] => [0]
[image] => https://akademik-stroy.ru/wp-content/uploads/materials/imitaciya-brusa.jpg
[area_modifier] => 213.72
[parent_name] => Наружная отделка фасада
[parent_id] => 19
[material_sum] => 0
[work_sum] => 0
[total_sum] => 0
[total_days] => 0
[display_material_sum] => 0
[display_work_sum] => 0
[display_total_sum] => 0
)
1
0₽
Работа:0 ₽
Материалы:0 ₽
Дни:0
stdClass Object
(
[id] => 38
[attribute_id] => 19
[name] => Имитация бруса
[material_modifier] => 1
[work_modifier] => 1
[options] => Array
(
[0] => Сосна
[1] => Ель
[2] => Лиственница
)
[days] => [20,20,20]
[material_price] => [2994,2762,4954]
[work_price] => [1397,1231,1577]
[image] => https://akademik-stroy.ru/wp-content/uploads/materials/imitaciya-brusa.jpg
[area_modifier] => 213.72
[parent_name] => Наружная отделка фасада
[parent_id] => 19
[material_sum] => 806246
[work_sum] => 313495
[total_sum] => 1119741
[total_days] => 20
[display_material_sum] => 806 246
[display_work_sum] => 313 495
[display_total_sum] => 1 119 741
)
1
1 119 741₽
Работа:313 495 ₽
Материалы:806 246 ₽
Дни:20
stdClass Object
(
[id] => 136
[attribute_id] => 19
[name] => Планкен
[material_modifier] => 1
[work_modifier] => 1
[options] => Array
(
[0] => Сосна
[1] => Ель
[2] => Лиственница
)
[days] => [20,20,20]
[material_price] => [3194,2862,5154]
[work_price] => [1537,1354,1735]
[image] => https://akademik-stroy.ru/wp-content/uploads/materials/planken.jpg
[area_modifier] => 213.72
[parent_name] => Наружная отделка фасада
[parent_id] => 19
[material_sum] => 860103
[work_sum] => 344912
[total_sum] => 1205015
[total_days] => 20
[display_material_sum] => 860 103
[display_work_sum] => 344 912
[display_total_sum] => 1 205 015
)
1
1 205 015₽
Работа:344 912 ₽
Материалы:860 103 ₽
Дни:20
stdClass Object
(
[id] => 137
[attribute_id] => 19
[name] => Штукатурка
[material_modifier] => 1
[work_modifier] => 1
[options] => Array
(
[0] => Цементно-песчаная (минеральная)
[1] => Мокрый фасад
)
[days] => [35,35]
[material_price] => [2231,3938]
[work_price] => [1202,2422]
[image] => https://akademik-stroy.ru/wp-content/uploads/materials/shtukaturka.jpg
[area_modifier] => 213.72
[parent_name] => Наружная отделка фасада
[parent_id] => 19
[material_sum] => 600780
[work_sum] => 269736
[total_sum] => 870516
[total_days] => 35
[display_material_sum] => 600 780
[display_work_sum] => 269 736
[display_total_sum] => 870 516
)
1
870 516₽
Работа:269 736 ₽
Материалы:600 780 ₽
Дни:35
stdClass Object
(
[id] => 138
[attribute_id] => 19
[name] => Облицовочный кирпич
[material_modifier] => 1
[work_modifier] => 1
[options] => Array
(
[0] => Керамический
[1] => Клинкерный
[2] => Ручной формовки
[3] => Гиперпрессованный
[4] => Силикатный кирпич
)
[days] => [45,45,45,45,45]
[material_price] => [8174,9148,1040,1257,5876]
[work_price] => [3240,3758,4536,4017,3369]
[image] => https://akademik-stroy.ru/wp-content/uploads/materials/oblicovochnyj-kirpich.jpg
[area_modifier] => 213.72
[parent_name] => Наружная отделка фасада
[parent_id] => 19
[material_sum] => 2201154
[work_sum] => 727075
[total_sum] => 2928229
[total_days] => 45
[display_material_sum] => 2 201 154
[display_work_sum] => 727 075
[display_total_sum] => 2 928 229
)
1
2 928 229₽
Работа:727 075 ₽
Материалы:2 201 154 ₽
Дни:45
stdClass Object
(
[id] => 139
[attribute_id] => 19
[name] => Фасадная плитка
[material_modifier] => 1
[work_modifier] => 1
[options] => Array
(
[0] => Клинкерная
[1] => Керамическая
[2] => Плитка ручной формовки
)
[days] => [40,40,40]
[material_price] => [2974,1487,3470]
[work_price] => [3007,2592,3629]
[image] => https://akademik-stroy.ru/wp-content/uploads/materials/fasadnaya-plitka.jpg
[area_modifier] => 213.72
[parent_name] => Наружная отделка фасада
[parent_id] => 19
[material_sum] => 800860
[work_sum] => 674789
[total_sum] => 1475649
[total_days] => 40
[display_material_sum] => 800 860
[display_work_sum] => 674 789
[display_total_sum] => 1 475 649
)
1
1 475 649₽
Работа:674 789 ₽
Материалы:800 860 ₽
Дни:40
stdClass Object
(
[id] => 140
[attribute_id] => 19
[name] => Сайдинг
[material_modifier] => 1
[work_modifier] => 1
[options] => Array
(
[0] => Виниловый
[1] => Металлический
[2] => Фиброцементный
)
[days] => [20,20,20]
[material_price] => [1263,1944,4147]
[work_price] => [1263,1944,2074]
[image] => https://akademik-stroy.ru/wp-content/uploads/materials/sajding.jpg
[area_modifier] => 213.72
[parent_name] => Наружная отделка фасада
[parent_id] => 19
[material_sum] => 340110
[work_sum] => 283425
[total_sum] => 623535
[total_days] => 20
[display_material_sum] => 340 110
[display_work_sum] => 283 425
[display_total_sum] => 623 535
)
1
623 535₽
Работа:283 425 ₽
Материалы:340 110 ₽
Дни:20
stdClass Object
(
[id] => 141
[attribute_id] => 19
[name] => Камень
[material_modifier] => 1
[work_modifier] => 1
[options] => Array
(
[0] => Травертин
[1] => Дагестанский
[2] => Искусственный
[3] => Натуральный
[4] => Керамогранит
)
[days] => [45,45,45,45,45]
[material_price] => [4536,3888,2592,3240,2462]
[work_price] => [3240,3240,2462,3110,1944]
[image] => https://akademik-stroy.ru/wp-content/uploads/materials/kamen-1.jpg
[area_modifier] => 213.72
[parent_name] => Наружная отделка фасада
[parent_id] => 19
[material_sum] => 1221487
[work_sum] => 727075
[total_sum] => 1948562
[total_days] => 45
[display_material_sum] => 1 221 487
[display_work_sum] => 727 075
[display_total_sum] => 1 948 562
)
1
1 948 562₽
Работа:727 075 ₽
Материалы:1 221 487 ₽
Дни:45
stdClass Object
(
[id] => 142
[attribute_id] => 19
[name] => Термопанели
[material_modifier] => 1
[work_modifier] => 1
[options] => Array
(
)
[days] => [20]
[material_price] => [6221]
[work_price] => [2333]
[image] => https://akademik-stroy.ru/wp-content/uploads/materials/termo.png
[area_modifier] => 213.72
[parent_name] => Наружная отделка фасада
[parent_id] => 19
[material_sum] => 1675236
[work_sum] => 523539
[total_sum] => 2198775
[total_days] => 20
[display_material_sum] => 1 675 236
[display_work_sum] => 523 539
[display_total_sum] => 2 198 775
)
1
2 198 775₽
Работа:523 539 ₽
Материалы:1 675 236 ₽
Дни:20
stdClass Object
(
[id] => 143
[attribute_id] => 19
[name] => Плитка HAUBERK
[material_modifier] => 1
[work_modifier] => 1
[options] => Array
(
)
[days] => [20]
[material_price] => [2786]
[work_price] => [1944]
[image] => https://akademik-stroy.ru/wp-content/uploads/materials/hauberk.jpg
[area_modifier] => 213.72
[parent_name] => Наружная отделка фасада
[parent_id] => 19
[material_sum] => 750234
[work_sum] => 436245
[total_sum] => 1186479
[total_days] => 20
[display_material_sum] => 750 234
[display_work_sum] => 436 245
[display_total_sum] => 1 186 479
)
1
1 186 479₽
Работа:436 245 ₽
Материалы:750 234 ₽
Дни:20
stdClass Object
(
[id] => 144
[attribute_id] => 19
[name] => Фальцевый фасад
[material_modifier] => 1
[work_modifier] => 1
[options] => Array
(
)
[days] => [20]
[material_price] => [3240]
[work_price] => [2592]
[image] => https://akademik-stroy.ru/wp-content/uploads/materials/falcevyj-fasad.jpg
[area_modifier] => 213.72
[parent_name] => Наружная отделка фасада
[parent_id] => 19
[material_sum] => 872491
[work_sum] => 581660
[total_sum] => 1454151
[total_days] => 20
[display_material_sum] => 872 491
[display_work_sum] => 581 660
[display_total_sum] => 1 454 151
)
1
1 454 151₽
Работа:581 660 ₽
Материалы:872 491 ₽
Дни:20
stdClass Object
(
[id] => 145
[attribute_id] => 19
[name] => Комбинированный
[material_modifier] => 1
[work_modifier] => 1
[options] => Array
(
)
[days] => [20]
[material_price] => [4629]
[work_price] => [3499]
[image] => https://akademik-stroy.ru/wp-content/uploads/materials/Kombinirovannyj.jpg
[area_modifier] => 213.72
[parent_name] => Наружная отделка фасада
[parent_id] => 19
[material_sum] => 1246530
[work_sum] => 785197
[total_sum] => 2031727
[total_days] => 20
[display_material_sum] => 1 246 530
[display_work_sum] => 785 197
[display_total_sum] => 2 031 727
)
1
2 031 727₽
Работа:785 197 ₽
Материалы:1 246 530 ₽
Дни:20
stdClass Object
(
[id] => 257
[attribute_id] => 19
[name] => Японские фиброцементные
[material_modifier] => 1
[work_modifier] => 1
[options] => Array
(
)
[days] => [20]
[material_price] => [7043]
[work_price] => [2993]
[image] => https://akademik-stroy.ru/wp-content/uploads/materials/paneli.jpg
[area_modifier] => 213.72
[parent_name] => Наружная отделка фасада
[parent_id] => 19
[material_sum] => 1896590
[work_sum] => 671647
[total_sum] => 2568237
[total_days] => 20
[display_material_sum] => 1 896 590
[display_work_sum] => 671 647
[display_total_sum] => 2 568 237
)
1
2 568 237₽
Работа:671 647 ₽
Материалы:1 896 590 ₽
Дни:20
stdClass Object
(
[id] => 258
[attribute_id] => 19
[name] => Панели Каньон
[material_modifier] => 1
[work_modifier] => 1
[options] => Array
(
)
[days] => [20]
[material_price] => [4543]
[work_price] => [2592]
[image] => https://akademik-stroy.ru/wp-content/uploads/materials/kanon.png
[area_modifier] => 213.72
[parent_name] => Наружная отделка фасада
[parent_id] => 19
[material_sum] => 1223372
[work_sum] => 581660
[total_sum] => 1805032
[total_days] => 20
[display_material_sum] => 1 223 372
[display_work_sum] => 581 660
[display_total_sum] => 1 805 032
)
1
1 805 032₽
Работа:581 660 ₽
Материалы:1 223 372 ₽
Дни:20
stdClass Object
(
[id] => 39
[attribute_id] => 20
[name] => Нет
[material_modifier] => 1
[work_modifier] => 1
[options] => Array
(
)
[days] => [0]
[material_price] => [0]
[work_price] => [0]
[image] => https://akademik-stroy.ru/wp-content/uploads/materials/terrasy.jpg
[area_modifier] => 30
[parent_name] => Террасы, крыльца, навесы
[parent_id] => 20
[material_sum] => 0
[work_sum] => 0
[total_sum] => 0
[total_days] => 0
[display_material_sum] => 0
[display_work_sum] => 0
[display_total_sum] => 0
)
1
0₽
Работа:0 ₽
Материалы:0 ₽
Дни:0
stdClass Object
(
[id] => 40
[attribute_id] => 20
[name] => Есть
[material_modifier] => 1
[work_modifier] => 1
[options] => Array
(
)
[days] => [5]
[material_price] => [10450]
[work_price] => [1950]
[image] => https://akademik-stroy.ru/wp-content/uploads/materials/terrasy.jpg
[area_modifier] => 30
[parent_name] => Террасы, крыльца, навесы
[parent_id] => 20
[material_sum] => 395010
[work_sum] => 61425
[total_sum] => 456435
[total_days] => 5
[display_material_sum] => 395 010
[display_work_sum] => 61 425
[display_total_sum] => 456 435
)
1
456 435₽
Работа:61 425 ₽
Материалы:395 010 ₽
Дни:5
stdClass Object
(
[id] => 41
[attribute_id] => 21
[name] => Нет
[material_modifier] => 1
[work_modifier] => 1
[options] => Array
(
)
[days] => [0]
[material_price] => [0]
[work_price] => [0]
[image] => https://akademik-stroy.ru/wp-content/uploads/materials/balkony.jpg
[area_modifier] => 30
[parent_name] => Балконы
[parent_id] => 21
[material_sum] => 0
[work_sum] => 0
[total_sum] => 0
[total_days] => 0
[display_material_sum] => 0
[display_work_sum] => 0
[display_total_sum] => 0
)
1
0₽
Работа:0 ₽
Материалы:0 ₽
Дни:0
stdClass Object
(
[id] => 42
[attribute_id] => 21
[name] => Есть
[material_modifier] => 1
[work_modifier] => 1
[options] => Array
(
)
[days] => [12]
[material_price] => [3600]
[work_price] => [1950]
[image] => https://akademik-stroy.ru/wp-content/uploads/materials/balkony.jpg
[area_modifier] => 30
[parent_name] => Балконы
[parent_id] => 21
[material_sum] => 136080
[work_sum] => 61425
[total_sum] => 197505
[total_days] => 12
[display_material_sum] => 136 080
[display_work_sum] => 61 425
[display_total_sum] => 197 505
)
1
197 505₽
Работа:61 425 ₽
Материалы:136 080 ₽
Дни:12
stdClass Object
(
[id] => 43
[attribute_id] => 22
[name] => Нет
[material_modifier] => 1
[work_modifier] => 1
[options] => Array
(
)
[days] => [0]
[material_price] => [0]
[work_price] => [0]
[image] => https://akademik-stroy.ru/wp-content/uploads/materials/uteplennaya.jpg
[area_modifier] => 124.33
[parent_name] => Отмостка
[parent_id] => 22
[material_sum] => 0
[work_sum] => 0
[total_sum] => 0
[total_days] => 0
[display_material_sum] => 0
[display_work_sum] => 0
[display_total_sum] => 0
)
1
0₽
Работа:0 ₽
Материалы:0 ₽
Дни:0
stdClass Object
(
[id] => 44
[attribute_id] => 22
[name] => Утепленная отмостка
[material_modifier] => 1
[work_modifier] => 1
[options] => Array
(
)
[days] => [15]
[material_price] => [2550]
[work_price] => [1750]
[image] => https://akademik-stroy.ru/wp-content/uploads/materials/uteplennaya.jpg
[area_modifier] => 124.33
[parent_name] => Отмостка
[parent_id] => 22
[material_sum] => 399472
[work_sum] => 228456
[total_sum] => 627928
[total_days] => 15
[display_material_sum] => 399 472
[display_work_sum] => 228 456
[display_total_sum] => 627 928
)
1
627 928₽
Работа:228 456 ₽
Материалы:399 472 ₽
Дни:15
stdClass Object
(
[id] => 146
[attribute_id] => 22
[name] => Не утепленная отмостка
[material_modifier] => 1
[work_modifier] => 1
[options] => Array
(
)
[days] => [10]
[material_price] => [1650]
[work_price] => [1450]
[image] => https://akademik-stroy.ru/wp-content/uploads/materials/ne-uteplennaya.jpg
[area_modifier] => 124.33
[parent_name] => Отмостка
[parent_id] => 22
[material_sum] => 258482
[work_sum] => 189292
[total_sum] => 447774
[total_days] => 10
[display_material_sum] => 258 482
[display_work_sum] => 189 292
[display_total_sum] => 447 774
)
1
447 774₽
Работа:189 292 ₽
Материалы:258 482 ₽
Дни:10
stdClass Object
(
[id] => 45
[attribute_id] => 23
[name] => Нет
[material_modifier] => 1
[work_modifier] => 1
[options] => Array
(
)
[days] => [0]
[material_price] => [0]
[work_price] => [0]
[image] => https://akademik-stroy.ru/wp-content/uploads/materials/drenazh-2.jpg
[area_modifier] => 124.33
[parent_name] => Дренаж вокруг дома
[parent_id] => 23
[material_sum] => 0
[work_sum] => 0
[total_sum] => 0
[total_days] => 0
[display_material_sum] => 0
[display_work_sum] => 0
[display_total_sum] => 0
)
1
0₽
Работа:0 ₽
Материалы:0 ₽
Дни:0
stdClass Object
(
[id] => 46
[attribute_id] => 23
[name] => Есть
[material_modifier] => 1
[work_modifier] => 1
[options] => Array
(
)
[days] => [5]
[material_price] => [2366]
[work_price] => [1911]
[image] => https://akademik-stroy.ru/wp-content/uploads/materials/drenazh-2.jpg
[area_modifier] => 124.33
[parent_name] => Дренаж вокруг дома
[parent_id] => 23
[material_sum] => 370648
[work_sum] => 249474
[total_sum] => 620122
[total_days] => 5
[display_material_sum] => 370 648
[display_work_sum] => 249 474
[display_total_sum] => 620 122
)
1
620 122₽
Работа:249 474 ₽
Материалы:370 648 ₽
Дни:5
stdClass Object
(
[id] => 47
[attribute_id] => 24
[name] => Нет
[material_modifier] => 1
[work_modifier] => 1
[options] => Array
(
)
[days] => [0]
[material_price] => [0]
[work_price] => [0]
[image] => https://akademik-stroy.ru/wp-content/uploads/materials/septik.jpg
[area_modifier] => 1
[parent_name] => Автономная канализация (септики)
[parent_id] => 24
[material_sum] => 0
[work_sum] => 0
[total_sum] => 0
[total_days] => 0
[display_material_sum] => 0
[display_work_sum] => 0
[display_total_sum] => 0
)
1
0₽
Работа:0 ₽
Материалы:0 ₽
Дни:0
stdClass Object
(
[id] => 48
[attribute_id] => 24
[name] => Есть
[material_modifier] => 1
[work_modifier] => 1
[options] => Array
(
[0] => Для дачи на 4 человека
[1] => Для дома на 5 человек
[2] => Для дома на 6 человек
[3] => Для дома на 7 человек
[4] => Для дома на 10 человек
)
[days] => [7,7,7,8,8]
[material_price] => [196340,220500,240940,264200,293340]
[work_price] => [50000,55000,60500,66550,73206]
[image] => https://akademik-stroy.ru/wp-content/uploads/materials/septik.jpg
[area_modifier] => 1
[parent_name] => Автономная канализация (септики)
[parent_id] => 24
[material_sum] => 247388
[work_sum] => 52500
[total_sum] => 299888
[total_days] => 7
[display_material_sum] => 247 388
[display_work_sum] => 52 500
[display_total_sum] => 299 888
)
1
299 888₽
Работа:52 500 ₽
Материалы:247 388 ₽
Дни:7
stdClass Object
(
[id] => 49
[attribute_id] => 25
[name] => Нет
[material_modifier] => 1
[work_modifier] => 1
[options] => Array
(
)
[days] => [0]
[material_price] => [0]
[work_price] => [0]
[image] => https://akademik-stroy.ru/wp-content/uploads/materials/gkl.jpg
[area_modifier] => 213.72
[parent_name] => Внутренние (не несущие) перегородки
[parent_id] => 25
[material_sum] => 0
[work_sum] => 0
[total_sum] => 0
[total_days] => 0
[display_material_sum] => 0
[display_work_sum] => 0
[display_total_sum] => 0
)
1
0₽
Работа:0 ₽
Материалы:0 ₽
Дни:0
stdClass Object
(
[id] => 147
[attribute_id] => 25
[name] => Каркасно-обшивные
[material_modifier] => 1
[work_modifier] => 1
[options] => Array
(
[0] => 75 мм (без шумоизоляции)
[1] => 75 мм (с шумоизоляцией)
)
[days] => [11,11]
[material_price] => [580,970]
[work_price] => [380,570]
[image] => https://akademik-stroy.ru/wp-content/uploads/materials/gkl.jpg
[area_modifier] => 213.72
[parent_name] => Внутренние (не несущие) перегородки
[parent_id] => 25
[material_sum] => 156187
[work_sum] => 85274
[total_sum] => 241461
[total_days] => 11
[display_material_sum] => 156 187
[display_work_sum] => 85 274
[display_total_sum] => 241 461
)
1
241 461₽
Работа:85 274 ₽
Материалы:156 187 ₽
Дни:11
stdClass Object
(
[id] => 148
[attribute_id] => 25
[name] => Пазогребневые
[material_modifier] => 1
[work_modifier] => 1
[options] => Array
(
[0] => 80 мм
[1] => 100 мм
)
[days] => [5,5]
[material_price] => [1022,1313]
[work_price] => [600,700]
[image] => https://akademik-stroy.ru/wp-content/uploads/materials/pazogrebnevye-bloki.jpg
[area_modifier] => 213.72
[parent_name] => Внутренние (не несущие) перегородки
[parent_id] => 25
[material_sum] => 275212
[work_sum] => 134644
[total_sum] => 409856
[total_days] => 5
[display_material_sum] => 275 212
[display_work_sum] => 134 644
[display_total_sum] => 409 856
)
1
409 856₽
Работа:134 644 ₽
Материалы:275 212 ₽
Дни:5
stdClass Object
(
[id] => 149
[attribute_id] => 25
[name] => Газобетонные
[material_modifier] => 1
[work_modifier] => 1
[options] => Array
(
[0] => 100 мм
[1] => 200 мм
)
[days] => [11,11]
[material_price] => [1160,1920]
[work_price] => [700,900]
[image] => https://akademik-stroy.ru/wp-content/uploads/materials/gazobeton-2.jpg
[area_modifier] => 213.72
[parent_name] => Внутренние (не несущие) перегородки
[parent_id] => 25
[material_sum] => 312373
[work_sum] => 157084
[total_sum] => 469457
[total_days] => 11
[display_material_sum] => 312 373
[display_work_sum] => 157 084
[display_total_sum] => 469 457
)
1
469 457₽
Работа:157 084 ₽
Материалы:312 373 ₽
Дни:11
stdClass Object
(
[id] => 150
[attribute_id] => 25
[name] => Кирпичные
[material_modifier] => 1
[work_modifier] => 1
[options] => Array
(
[0] => 120 мм
[1] => 250 мм
[2] => 360 мм
)
[days] => [7,7,7]
[material_price] => [1785,3570,5355]
[work_price] => [900,1600,1800]
[image] => https://akademik-stroy.ru/wp-content/uploads/materials/kirpich-1.jpg
[area_modifier] => 213.72
[parent_name] => Внутренние (не несущие) перегородки
[parent_id] => 25
[material_sum] => 480678
[work_sum] => 201965
[total_sum] => 682643
[total_days] => 7
[display_material_sum] => 480 678
[display_work_sum] => 201 965
[display_total_sum] => 682 643
)
1
682 643₽
Работа:201 965 ₽
Материалы:480 678 ₽
Дни:7
stdClass Object
(
[id] => 55
[attribute_id] => 28
[name] => Нет
[material_modifier] => 1
[work_modifier] => 1
[options] => Array
(
)
[days] => [0]
[material_price] => [0]
[work_price] => [0]
[image] => https://akademik-stroy.ru/wp-content/uploads/materials/ehlektrika.jpg
[area_modifier] => 173.43
[parent_name] => Электрика
[parent_id] => 28
[material_sum] => 0
[work_sum] => 0
[total_sum] => 0
[total_days] => 0
[display_material_sum] => 0
[display_work_sum] => 0
[display_total_sum] => 0
)
1
0₽
Работа:0 ₽
Материалы:0 ₽
Дни:0
stdClass Object
(
[id] => 56
[attribute_id] => 28
[name] => Есть
[material_modifier] => 1
[work_modifier] => 1
[options] => Array
(
)
[days] => [10]
[material_price] => [650]
[work_price] => [950]
[image] => https://akademik-stroy.ru/wp-content/uploads/materials/ehlektrika.jpg
[area_modifier] => 173.43
[parent_name] => Электрика
[parent_id] => 28
[material_sum] => 142039
[work_sum] => 172996
[total_sum] => 315035
[total_days] => 10
[display_material_sum] => 142 039
[display_work_sum] => 172 996
[display_total_sum] => 315 035
)
1
315 035₽
Работа:172 996 ₽
Материалы:142 039 ₽
Дни:10
stdClass Object
(
[id] => 57
[attribute_id] => 29
[name] => Нет
[material_modifier] => 1
[work_modifier] => 1
[options] => Array
(
)
[days] => [0]
[material_price] => [0]
[work_price] => [0]
[image] => https://akademik-stroy.ru/wp-content/uploads/materials/santekhnika-kanalizaciya-1.jpg
[area_modifier] => 173.43
[parent_name] => Сантехника, канализация в доме
[parent_id] => 29
[material_sum] => 0
[work_sum] => 0
[total_sum] => 0
[total_days] => 0
[display_material_sum] => 0
[display_work_sum] => 0
[display_total_sum] => 0
)
1
0₽
Работа:0 ₽
Материалы:0 ₽
Дни:0
stdClass Object
(
[id] => 58
[attribute_id] => 29
[name] => Есть
[material_modifier] => 1
[work_modifier] => 1
[options] => Array
(
)
[days] => [10]
[material_price] => [600]
[work_price] => [730]
[image] => https://akademik-stroy.ru/wp-content/uploads/materials/santekhnika-kanalizaciya-1.jpg
[area_modifier] => 173.43
[parent_name] => Сантехника, канализация в доме
[parent_id] => 29
[material_sum] => 131113
[work_sum] => 132934
[total_sum] => 264047
[total_days] => 10
[display_material_sum] => 131 113
[display_work_sum] => 132 934
[display_total_sum] => 264 047
)
1
264 047₽
Работа:132 934 ₽
Материалы:131 113 ₽
Дни:10
stdClass Object
(
[id] => 59
[attribute_id] => 30
[name] => Нет
[material_modifier] => 1
[work_modifier] => 1
[options] => Array
(
)
[days] => [0]
[material_price] => [0]
[work_price] => [0]
[image] => https://akademik-stroy.ru/wp-content/uploads/materials/otoplenie-1.jpg
[area_modifier] => 173.43
[parent_name] => Отопление
[parent_id] => 30
[material_sum] => 0
[work_sum] => 0
[total_sum] => 0
[total_days] => 0
[display_material_sum] => 0
[display_work_sum] => 0
[display_total_sum] => 0
)
1
0₽
Работа:0 ₽
Материалы:0 ₽
Дни:0
stdClass Object
(
[id] => 60
[attribute_id] => 30
[name] => Есть
[material_modifier] => 1
[work_modifier] => 1
[options] => Array
(
)
[days] => [5]
[material_price] => [610]
[work_price] => [560]
[image] => https://akademik-stroy.ru/wp-content/uploads/materials/otoplenie-1.jpg
[area_modifier] => 173.43
[parent_name] => Отопление
[parent_id] => 30
[material_sum] => 133298
[work_sum] => 101977
[total_sum] => 235275
[total_days] => 5
[display_material_sum] => 133 298
[display_work_sum] => 101 977
[display_total_sum] => 235 275
)
1
235 275₽
Работа:101 977 ₽
Материалы:133 298 ₽
Дни:5
stdClass Object
(
[id] => 61
[attribute_id] => 31
[name] => Нет
[material_modifier] => 1
[work_modifier] => 1
[options] => Array
(
)
[days] => [0]
[material_price] => [0]
[work_price] => [0]
[image] => https://akademik-stroy.ru/wp-content/uploads/materials/vodyanye.jpg
[area_modifier] => 30
[parent_name] => Теплые полы
[parent_id] => 31
[material_sum] => 0
[work_sum] => 0
[total_sum] => 0
[total_days] => 0
[display_material_sum] => 0
[display_work_sum] => 0
[display_total_sum] => 0
)
1
0₽
Работа:0 ₽
Материалы:0 ₽
Дни:0
stdClass Object
(
[id] => 151
[attribute_id] => 31
[name] => Водяные
[material_modifier] => 1
[work_modifier] => 1
[options] => Array
(
)
[days] => [9]
[material_price] => [10200]
[work_price] => [2500]
[image] => https://akademik-stroy.ru/wp-content/uploads/materials/vodyanye.jpg
[area_modifier] => 30
[parent_name] => Теплые полы
[parent_id] => 31
[material_sum] => 385560
[work_sum] => 78750
[total_sum] => 464310
[total_days] => 9
[display_material_sum] => 385 560
[display_work_sum] => 78 750
[display_total_sum] => 464 310
)
1
464 310₽
Работа:78 750 ₽
Материалы:385 560 ₽
Дни:9
stdClass Object
(
[id] => 152
[attribute_id] => 31
[name] => Электро
[material_modifier] => 1
[work_modifier] => 1
[options] => Array
(
)
[days] => [5]
[material_price] => [6300]
[work_price] => [1500]
[image] => https://akademik-stroy.ru/wp-content/uploads/materials/ehlektricheskij.jpg
[area_modifier] => 30
[parent_name] => Теплые полы
[parent_id] => 31
[material_sum] => 238140
[work_sum] => 47250
[total_sum] => 285390
[total_days] => 5
[display_material_sum] => 238 140
[display_work_sum] => 47 250
[display_total_sum] => 285 390
)
1
285 390₽
Работа:47 250 ₽
Материалы:238 140 ₽
Дни:5
stdClass Object
(
[id] => 63
[attribute_id] => 32
[name] => Нет
[material_modifier] => 1
[work_modifier] => 1
[options] => Array
(
)
[days] => [0]
[material_price] => [0]
[work_price] => [0]
[image] => https://akademik-stroy.ru/wp-content/uploads/materials/shtukaturka-shpatlevka-1.jpg
[area_modifier] => 173.43
[parent_name] => Черновая отделка стен
[parent_id] => 32
[material_sum] => 0
[work_sum] => 0
[total_sum] => 0
[total_days] => 0
[display_material_sum] => 0
[display_work_sum] => 0
[display_total_sum] => 0
)
1
0₽
Работа:0 ₽
Материалы:0 ₽
Дни:0
stdClass Object
(
[id] => 153
[attribute_id] => 32
[name] => Штукатурка и шпатлевка
[material_modifier] => 1
[work_modifier] => 1
[options] => Array
(
)
[days] => [20]
[material_price] => [1850]
[work_price] => [2600]
[image] => https://akademik-stroy.ru/wp-content/uploads/materials/shtukaturka-shpatlevka-1.jpg
[area_modifier] => 173.43
[parent_name] => Черновая отделка стен
[parent_id] => 32
[material_sum] => 404265
[work_sum] => 473464
[total_sum] => 877729
[total_days] => 20
[display_material_sum] => 404 265
[display_work_sum] => 473 464
[display_total_sum] => 877 729
)
1
877 729₽
Работа:473 464 ₽
Материалы:404 265 ₽
Дни:20
stdClass Object
(
[id] => 154
[attribute_id] => 32
[name] => Гипсокортон на стены
[material_modifier] => 1
[work_modifier] => 1
[options] => Array
(
)
[days] => [15]
[material_price] => [950]
[work_price] => [2100]
[image] => https://akademik-stroy.ru/wp-content/uploads/materials/gkl-1.jpg
[area_modifier] => 173.43
[parent_name] => Черновая отделка стен
[parent_id] => 32
[material_sum] => 207596
[work_sum] => 382413
[total_sum] => 590009
[total_days] => 15
[display_material_sum] => 207 596
[display_work_sum] => 382 413
[display_total_sum] => 590 009
)
1
590 009₽
Работа:382 413 ₽
Материалы:207 596 ₽
Дни:15
stdClass Object
(
[id] => 155
[attribute_id] => 32
[name] => Вагонка
[material_modifier] => 1
[work_modifier] => 1
[options] => Array
(
)
[days] => [15]
[material_price] => [1250]
[work_price] => [950]
[image] => https://akademik-stroy.ru/wp-content/uploads/materials/vagonka.jpg
[area_modifier] => 173.43
[parent_name] => Черновая отделка стен
[parent_id] => 32
[material_sum] => 273152
[work_sum] => 172996
[total_sum] => 446148
[total_days] => 15
[display_material_sum] => 273 152
[display_work_sum] => 172 996
[display_total_sum] => 446 148
)
1
446 148₽
Работа:172 996 ₽
Материалы:273 152 ₽
Дни:15
stdClass Object
(
[id] => 65
[attribute_id] => 33
[name] => Нет
[material_modifier] => 1
[work_modifier] => 1
[options] => Array
(
)
[days] => [0]
[material_price] => [0]
[work_price] => [0]
[image] => https://akademik-stroy.ru/wp-content/uploads/materials/styazhka.jpg
[area_modifier] => 173.43
[parent_name] => Черновая отделка полов
[parent_id] => 33
[material_sum] => 0
[work_sum] => 0
[total_sum] => 0
[total_days] => 0
[display_material_sum] => 0
[display_work_sum] => 0
[display_total_sum] => 0
)
1
0₽
Работа:0 ₽
Материалы:0 ₽
Дни:0
stdClass Object
(
[id] => 156
[attribute_id] => 33
[name] => Стяжка + наливные полы
[material_modifier] => 1
[work_modifier] => 1
[options] => Array
(
)
[days] => [10]
[material_price] => [1000]
[work_price] => [900]
[image] => https://akademik-stroy.ru/wp-content/uploads/materials/styazhka.jpg
[area_modifier] => 173.43
[parent_name] => Черновая отделка полов
[parent_id] => 33
[material_sum] => 218522
[work_sum] => 163891
[total_sum] => 382413
[total_days] => 10
[display_material_sum] => 218 522
[display_work_sum] => 163 891
[display_total_sum] => 382 413
)
1
382 413₽
Работа:163 891 ₽
Материалы:218 522 ₽
Дни:10
stdClass Object
(
[id] => 157
[attribute_id] => 33
[name] => ОСБ на пол
[material_modifier] => 1
[work_modifier] => 1
[options] => Array
(
)
[days] => [7]
[material_price] => [580]
[work_price] => [350]
[image] => https://akademik-stroy.ru/wp-content/uploads/materials/osb-1.jpg
[area_modifier] => 173.43
[parent_name] => Черновая отделка полов
[parent_id] => 33
[material_sum] => 126743
[work_sum] => 63736
[total_sum] => 190479
[total_days] => 7
[display_material_sum] => 126 743
[display_work_sum] => 63 736
[display_total_sum] => 190 479
)
1
190 479₽
Работа:63 736 ₽
Материалы:126 743 ₽
Дни:7
stdClass Object
(
[id] => 67
[attribute_id] => 34
[name] => Нет
[material_modifier] => 1
[work_modifier] => 1
[options] => Array
(
)
[days] => [0]
[material_price] => [0]
[work_price] => [0]
[image] => https://akademik-stroy.ru/wp-content/uploads/materials/chistovaya-otdelka.jpg
[area_modifier] => 173.43
[parent_name] => Чистовая отделка стен и полов
[parent_id] => 34
[material_sum] => 0
[work_sum] => 0
[total_sum] => 0
[total_days] => 0
[display_material_sum] => 0
[display_work_sum] => 0
[display_total_sum] => 0
)
1
0₽
Работа:0 ₽
Материалы:0 ₽
Дни:0
stdClass Object
(
[id] => 68
[attribute_id] => 34
[name] => Есть
[material_modifier] => 1
[work_modifier] => 1
[options] => Array
(
)
[days] => [50]
[material_price] => [6000]
[work_price] => [3500]
[image] => https://akademik-stroy.ru/wp-content/uploads/materials/chistovaya-otdelka.jpg
[area_modifier] => 173.43
[parent_name] => Чистовая отделка стен и полов
[parent_id] => 34
[material_sum] => 1311131
[work_sum] => 637355
[total_sum] => 1948486
[total_days] => 50
[display_material_sum] => 1 311 131
[display_work_sum] => 637 355
[display_total_sum] => 1 948 486
)
1
1 948 486₽
Работа:637 355 ₽
Материалы:1 311 131 ₽
Дни:50
stdClass Object
(
[id] => 69
[attribute_id] => 35
[name] => Нет
[material_modifier] => 1
[work_modifier] => 1
[options] => Array
(
)
[days] => [0]
[material_price] => [0]
[work_price] => [0]
[image] => https://akademik-stroy.ru/wp-content/uploads/materials/mnogourovnevyj-gkl.jpg
[area_modifier] => 173.43
[parent_name] => Отделка потолка
[parent_id] => 35
[material_sum] => 0
[work_sum] => 0
[total_sum] => 0
[total_days] => 0
[display_material_sum] => 0
[display_work_sum] => 0
[display_total_sum] => 0
)
1
0₽
Работа:0 ₽
Материалы:0 ₽
Дни:0
stdClass Object
(
[id] => 70
[attribute_id] => 35
[name] => Есть
[material_modifier] => 1
[work_modifier] => 1
[options] => Array
(
[0] => Многоуровневый потолок из гипсокартона
[1] => Многоуровневый потолок из гипсокартона и натяжного потолка
[2] => Одноуровневый потолок из гипсокартона
[3] => Одноуровневый натяжной потолок
)
[days] => [10,10,1,1]
[material_price] => [900,700,700,600]
[work_price] => [1000,800,500,300]
[image] => https://akademik-stroy.ru/wp-content/uploads/materials/mnogourovnevyj-gkl.jpg
[area_modifier] => 173.43
[parent_name] => Отделка потолка
[parent_id] => 35
[material_sum] => 196670
[work_sum] => 182102
[total_sum] => 378772
[total_days] => 10
[display_material_sum] => 196 670
[display_work_sum] => 182 102
[display_total_sum] => 378 772
)
1
378 772₽
Работа:182 102 ₽
Материалы:196 670 ₽
Дни:10
Преимущества работы с нами
7 этапов оплаты
Независимый строительный надзор
Экологически чистые материалы
16 лет гарантии
Онлайн-кабинет с веб-камерой
Строители с опытом более 15 лет
Собственное производство









