Одноэтажный дом 9x9 - 141.94 м2 за руб.
Планировки
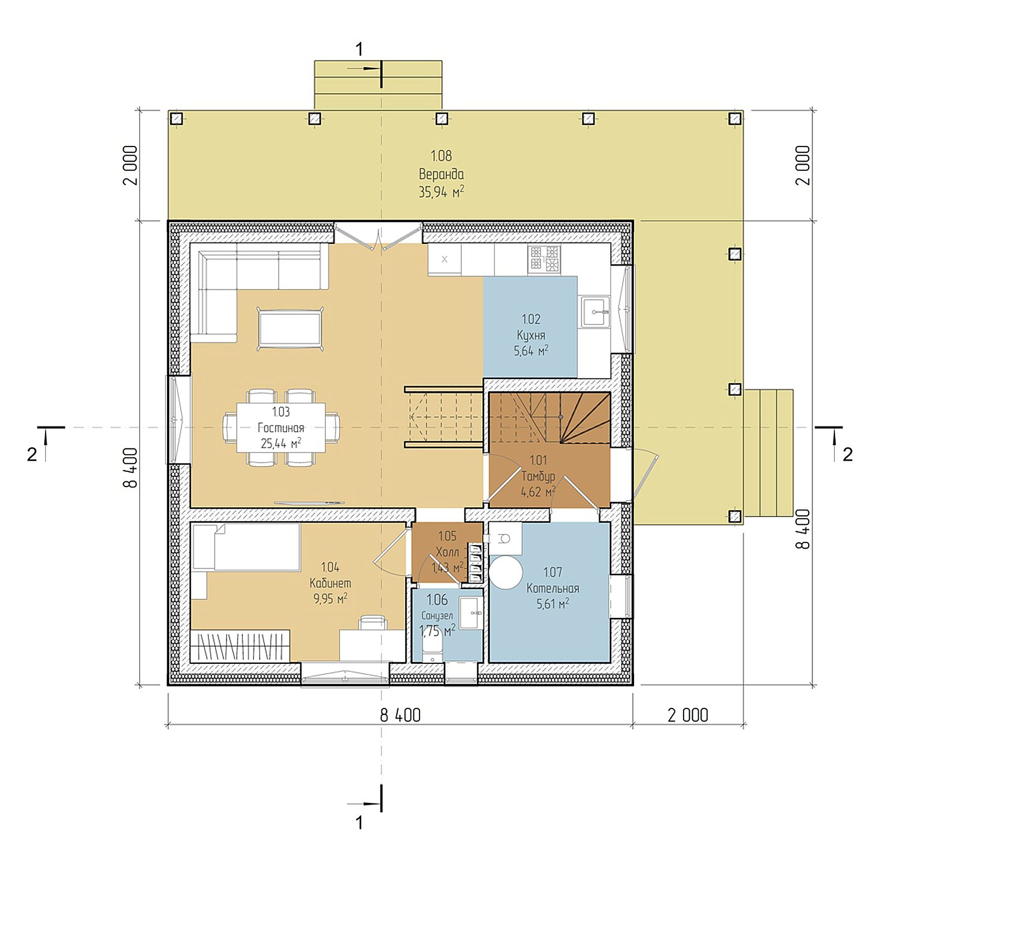
План первого этажа
- 1. Тамбур 4,62 м²
- 2. Кухня 5,64 м²
- 3. Гостиная 25,44 м²
- 4. Кабинет 9,95 м²
- 5. Холл 1,43 м²
- 6. Санузел 1,75 м²
- 7. Котельная 5,61 м²
- 8. Веранда 35,94 м²
- Общая площадь первый этаж 90,38 м²
План второго этажа
- 1. Коридор 3,97 м²
- 2. Санузел 9,24 м²
- 3. Гардероб 3,11 м²
- 4. Спальня 9,95 м²
- 5. Спальня 11,52 м²
- 6. Спальня 13,77 м²
- Общая площадь второй этаж 51,56 м²
Площади дома
| № п/п | Наименование | Ед. из. | Строительная площадь | Полезная площадь |
| 1 | 1 этаж | м2 | 111.38 | 90.38 |
| 2 | 2 этаж | м2 | 63.54 | 51.56 |
| 3 | Итого | м2 | 174.92 | 141.94 |
154 м2
Полезная
площадь
площадь
9 x 9 м
Размеры
1 этаж
Этажей
26 м2
Террасы
и балконы
и балконы
0Без
гаража
гаража
4
Количество
спален
спален
2
Количество
санузлов
санузлов
Калькулятор опций
0₽
В ипотеку от 18 409 ₽/мес.
0₽
0 дней
stdClass Object
(
[id] => 1
[attribute_id] => 1
[name] => Ленточный монолитный ж/б
[material_modifier] => 1
[work_modifier] => 1
[options] => Array
(
[0] => размер 200 х 700 мм
[1] => размер 300 х 900 мм
[2] => размер 400 х 1 000 мм
[3] => размер 500 х 1 100 мм
[4] => размер 600 х 1 200 мм
)
[days] => [20,21,22,25,30]
[material_price] => [2823,3630,4475,5210,12047]
[work_price] => [2154,2826,3731,4577,5293]
[image] => https://akademik-stroy.ru/wp-content/uploads/materials/lentochnyj-monolitnyj-zh-b.jpg
[area_modifier] => 111.38
[parent_name] => Фундамент
[parent_id] => 1
[material_sum] => 415042
[work_sum] => 263904
[total_sum] => 678946
[total_days] => 20
[display_material_sum] => 415 042
[display_work_sum] => 263 904
[display_total_sum] => 678 946
)
1
678 946₽
Работа:263 904 ₽
Материалы:415 042 ₽
Дни:20
stdClass Object
(
[id] => 2
[attribute_id] => 1
[name] => Забивные Ж/Б сваи
[material_modifier] => 1
[work_modifier] => 1
[options] => Array
(
[0] => 150х150х3000мм
[1] => 150х150х4000мм
[2] => 200х200х3000мм
[3] => 200х200х4000мм
[4] => 200х200х5000мм
[5] => 200х200х6000мм
)
[days] => [2,2,2,2,2,2]
[material_price] => [1990,2850,3255,4360,5120,6837]
[work_price] => [1002,1185,1336,1438,1574,1839]
[image] => https://akademik-stroy.ru/wp-content/uploads/materials/zabivnye-zh-b-svai.png
[area_modifier] => 111.38
[parent_name] => Фундамент
[parent_id] => 1
[material_sum] => 292573
[work_sum] => 122763
[total_sum] => 415336
[total_days] => 2
[display_material_sum] => 292 573
[display_work_sum] => 122 763
[display_total_sum] => 415 336
)
1
415 336₽
Работа:122 763 ₽
Материалы:292 573 ₽
Дни:2
stdClass Object
(
[id] => 71
[attribute_id] => 1
[name] => Свайно-ростверковый ж/б
[material_modifier] => 1
[work_modifier] => 1
[options] => Array
(
[0] => ростверк 200х300 мм
[1] => ростверк 300х600 мм
[2] => ростверк 400х900 мм
[3] => ростверк 500х1200 мм
)
[days] => [20,23,25,27]
[material_price] => [3018,3474,7109,9792]
[work_price] => [2024,3012,5635,7022]
[image] => https://akademik-stroy.ru/wp-content/uploads/materials/svajno-rostverkovyj-monolitnyj-zh-b-3.png
[area_modifier] => 111.38
[parent_name] => Фундамент
[parent_id] => 1
[material_sum] => 443711
[work_sum] => 247976
[total_sum] => 691687
[total_days] => 20
[display_material_sum] => 443 711
[display_work_sum] => 247 976
[display_total_sum] => 691 687
)
1
691 687₽
Работа:247 976 ₽
Материалы:443 711 ₽
Дни:20
stdClass Object
(
[id] => 72
[attribute_id] => 1
[name] => Монолитная ж/б плита
[material_modifier] => 1
[work_modifier] => 1
[options] => Array
(
[0] => 200 мм
[1] => 300 мм
[2] => 400 мм
[3] => 500 мм
[4] => 600 мм
)
[days] => [30,33,35,37,40]
[material_price] => [5348,8555,12788,14388,15189]
[work_price] => [4314,4881,7037,8061,10230]
[image] => https://akademik-stroy.ru/wp-content/uploads/materials/monolitnaya-zhb-plita.png
[area_modifier] => 111.38
[parent_name] => Фундамент
[parent_id] => 1
[material_sum] => 786272
[work_sum] => 528543
[total_sum] => 1314815
[total_days] => 30
[display_material_sum] => 786 272
[display_work_sum] => 528 543
[display_total_sum] => 1 314 815
)
1
1 314 815₽
Работа:528 543 ₽
Материалы:786 272 ₽
Дни:30
stdClass Object
(
[id] => 73
[attribute_id] => 1
[name] => Утепленная шведская плита
[material_modifier] => 1
[work_modifier] => 1
[options] => Array
(
[0] => 200 мм
[1] => 300 мм
[2] => 400 мм
[3] => 500 мм
[4] => 600 мм
)
[days] => [32,37,39,42,45]
[material_price] => [10249,12692,13760,14936,16230]
[work_price] => [5960,7337,8072,8878,9765]
[image] => https://akademik-stroy.ru/wp-content/uploads/materials/uteplennaya-shvedskaya-plita.jpg
[area_modifier] => 111.38
[parent_name] => Фундамент
[parent_id] => 1
[material_sum] => 1506824
[work_sum] => 730207
[total_sum] => 2237031
[total_days] => 32
[display_material_sum] => 1 506 824
[display_work_sum] => 730 207
[display_total_sum] => 2 237 031
)
1
2 237 031₽
Работа:730 207 ₽
Материалы:1 506 824 ₽
Дни:32
stdClass Object
(
[id] => 75
[attribute_id] => 1
[name] => Ленточный из ФБС
[material_modifier] => 1
[work_modifier] => 1
[options] => Array
(
[0] => толщ. 300 мм
[1] => толщ. 400 мм
[2] => толщ. 500 мм
[3] => толщ. 600 мм
)
[days] => [20,20,20,20]
[material_price] => [3675,4902,6126,7350]
[work_price] => [2451,3264,4083,4902]
[image] => https://akademik-stroy.ru/wp-content/uploads/materials/lentochnyj-iz-fbs.png
[area_modifier] => 111.38
[parent_name] => Фундамент
[parent_id] => 1
[material_sum] => 540304
[work_sum] => 300292
[total_sum] => 840596
[total_days] => 20
[display_material_sum] => 540 304
[display_work_sum] => 300 292
[display_total_sum] => 840 596
)
1
840 596₽
Работа:300 292 ₽
Материалы:540 304 ₽
Дни:20
stdClass Object
(
[id] => 76
[attribute_id] => 1
[name] => Цокольный этаж из ФБС
[material_modifier] => 1
[work_modifier] => 1
[options] => Array
(
[0] => толщ. 300 мм
[1] => толщ. 400 мм
[2] => толщ. 500 мм
[3] => толщ. 600 мм
)
[days] => [30,32,34,36]
[material_price] => [20916,23299,26680,29060]
[work_price] => [17524,18700,19873,21046]
[image] => https://akademik-stroy.ru/wp-content/uploads/materials/cokolnyj-ehtazh-iz-fbs.jpg
[area_modifier] => 111.38
[parent_name] => Фундамент
[parent_id] => 1
[material_sum] => 3075104
[work_sum] => 2147005
[total_sum] => 5222109
[total_days] => 30
[display_material_sum] => 3 075 104
[display_work_sum] => 2 147 005
[display_total_sum] => 5 222 109
)
1
5 222 109₽
Работа:2 147 005 ₽
Материалы:3 075 104 ₽
Дни:30
stdClass Object
(
[id] => 77
[attribute_id] => 1
[name] => Цокольный этаж монолитный ж/б
[material_modifier] => 1
[work_modifier] => 1
[options] => Array
(
[0] => толщ. 200 мм
[1] => толщ. 300 мм
[2] => толщ. 400 мм
[3] => толщ. 500 мм
[4] => толщ. 600 мм
)
[days] => [40,42,44,46,48]
[material_price] => [25421,29148,32275,35602,37326]
[work_price] => [20441,21907,23375,24841,26306]
[image] => https://akademik-stroy.ru/wp-content/uploads/materials/cokolnyj-etazh-zh-b.jpg
[area_modifier] => 111.38
[parent_name] => Фундамент
[parent_id] => 1
[material_sum] => 3737436
[work_sum] => 2504390
[total_sum] => 6241826
[total_days] => 40
[display_material_sum] => 3 737 436
[display_work_sum] => 2 504 390
[display_total_sum] => 6 241 826
)
1
6 241 826₽
Работа:2 504 390 ₽
Материалы:3 737 436 ₽
Дни:40
stdClass Object
(
[id] => 191
[attribute_id] => 1
[name] => Винтовые сваи
[material_modifier] => 1
[work_modifier] => 1
[options] => Array
(
[0] => 57х200мм
[1] => 76х250мм
[2] => 108х300мм
[3] => 133х350мм
)
[days] => [1,1,2,2]
[material_price] => [1200,1300,1450,1600]
[work_price] => [400,600,900,1100]
[image] => https://akademik-stroy.ru/wp-content/uploads/materials/vintovye-svai.png
[area_modifier] => 111.38
[parent_name] => Фундамент
[parent_id] => 1
[material_sum] => 176426
[work_sum] => 49007
[total_sum] => 225433
[total_days] => 1
[display_material_sum] => 176 426
[display_work_sum] => 49 007
[display_total_sum] => 225 433
)
1
225 433₽
Работа:49 007 ₽
Материалы:176 426 ₽
Дни:1
stdClass Object
(
[id] => 3
[attribute_id] => 2
[name] => Деревянные балки
[material_modifier] => 1
[work_modifier] => 1
[options] => Array
(
[0] => без утепления
[1] => утепление 200 мм
[2] => утепление 250 мм
[3] => утепление 300 мм
[4] => утепление 350 мм
[5] => утепление 400 мм
[6] => утепление 450 мм
[7] => утепление 500 мм
)
[days] => [8,9,9,9,11,12,13,14]
[material_price] => [1634,2042,2344,2947,3149,3652,3354,3557]
[work_price] => [1230,1339,1393,1426,1460,1513,1587,1620]
[image] => https://akademik-stroy.ru/wp-content/uploads/materials/derevyannye-balki.png
[area_modifier] => 111.38
[parent_name] => Перекрытие цоколя
[parent_id] => 2
[material_sum] => 240233
[work_sum] => 150697
[total_sum] => 390930
[total_days] => 8
[display_material_sum] => 240 233
[display_work_sum] => 150 697
[display_total_sum] => 390 930
)
1
390 930₽
Работа:150 697 ₽
Материалы:240 233 ₽
Дни:8
stdClass Object
(
[id] => 4
[attribute_id] => 2
[name] => Сборные ж/б плиты
[material_modifier] => 1
[work_modifier] => 1
[options] => Array
(
[0] => без утепления
[1] => утепление 150мм
[2] => утепление 200мм
[3] => утепление 250мм
[4] => утепление 300мм
[5] => утепление 350мм
[6] => утепление 400мм
[7] => утепление 450мм
[8] => утепление 500мм
)
[days] => [13,15,15,15,15,15,15,15,15]
[material_price] => [3067,5577,5928,6679,7730,8782,9833,10884,11935]
[work_price] => [1520,1956,2102,2247,2392,2537,2684,2829,2974]
[image] => https://akademik-stroy.ru/wp-content/uploads/materials/sbornye-zh-b-plity-2.jpg
[area_modifier] => 111.38
[parent_name] => Перекрытие цоколя
[parent_id] => 2
[material_sum] => 450915
[work_sum] => 186227
[total_sum] => 637142
[total_days] => 13
[display_material_sum] => 450 915
[display_work_sum] => 186 227
[display_total_sum] => 637 142
)
1
637 142₽
Работа:186 227 ₽
Материалы:450 915 ₽
Дни:13
stdClass Object
(
[id] => 78
[attribute_id] => 2
[name] => Монолитная ж/б плита
[material_modifier] => 1
[work_modifier] => 1
[options] => Array
(
[0] => без утепления
[1] => утепление 150 мм
[2] => утепление 200 мм
[3] => утепление 250 мм
[4] => утепление 300 мм
[5] => утепление 350 мм
[6] => утепление 400 мм
[7] => утепление 450 мм
[8] => утепление 500 мм
)
[days] => [18,20,20,20,20,20,20,20,20]
[material_price] => [4837,6572,7224,7375,79426,8177,8728,9180,10031]
[work_price] => [3348,3921,4112,4302,4493,4684,4875,5066,5256]
[image] => https://akademik-stroy.ru/wp-content/uploads/materials/monolitnaya-zh-b-plita-2.jpg
[area_modifier] => 111.38
[parent_name] => Перекрытие цоколя
[parent_id] => 2
[material_sum] => 711143
[work_sum] => 410190
[total_sum] => 1121333
[total_days] => 18
[display_material_sum] => 711 143
[display_work_sum] => 410 190
[display_total_sum] => 1 121 333
)
1
1 121 333₽
Работа:410 190 ₽
Материалы:711 143 ₽
Дни:18
stdClass Object
(
[id] => 6
[attribute_id] => 3
[name] => Пеноблок
[material_modifier] => 1
[work_modifier] => 1
[options] => Array
(
[0] => 300 мм
[1] => 400 мм
[2] => 500 мм
[3] => 600 мм
)
[days] => [29,31,34,39]
[material_price] => [3000,4000,4500,4937]
[work_price] => [5033,5805,6400,8710]
[image] => https://akademik-stroy.ru/wp-content/uploads/materials/penoblok.jpg
[area_modifier] => 111.38
[parent_name] => Стены 1 этаж (несущие)
[parent_id] => 3
[material_sum] => 441065
[work_sum] => 616633
[total_sum] => 1057698
[total_days] => 29
[display_material_sum] => 441 065
[display_work_sum] => 616 633
[display_total_sum] => 1 057 698
)
1
1 057 698₽
Работа:616 633 ₽
Материалы:441 065 ₽
Дни:29
stdClass Object
(
[id] => 79
[attribute_id] => 3
[name] => Керамический блок
[material_modifier] => 1
[work_modifier] => 1
[options] => Array
(
[0] => 380 мм
[1] => 380 мм Thermo
[2] => 440 мм
[3] => 510 мм
)
[days] => [23,23,24,25]
[material_price] => [4510,5098,6093,8013]
[work_price] => [4737,4937,5903,6958]
[image] => https://akademik-stroy.ru/wp-content/uploads/materials/keramicheskij-blok.jpg
[area_modifier] => 111.38
[parent_name] => Стены 1 этаж (несущие)
[parent_id] => 3
[material_sum] => 663067
[work_sum] => 580368
[total_sum] => 1243435
[total_days] => 23
[display_material_sum] => 663 067
[display_work_sum] => 580 368
[display_total_sum] => 1 243 435
)
1
1 243 435₽
Работа:580 368 ₽
Материалы:663 067 ₽
Дни:23
stdClass Object
(
[id] => 80
[attribute_id] => 3
[name] => Кирпич
[material_modifier] => 1
[work_modifier] => 1
[options] => Array
(
[0] => Кирпич 250 мм
[1] => Кирпич 380 мм
[2] => Кирпич 510 мм
[3] => Кирпич 640 мм
[4] => Кирпич 770 мм
)
[days] => [30,30,31,33,36]
[material_price] => [5500,7142,9206,10171,12235]
[work_price] => [8736,10041,12018,15240,18462]
[image] => https://akademik-stroy.ru/wp-content/uploads/materials/kirpich.jpg
[area_modifier] => 111.38
[parent_name] => Стены 1 этаж (несущие)
[parent_id] => 3
[material_sum] => 808619
[work_sum] => 1070317
[total_sum] => 1878936
[total_days] => 30
[display_material_sum] => 808 619
[display_work_sum] => 1 070 317
[display_total_sum] => 1 878 936
)
1
1 878 936₽
Работа:1 070 317 ₽
Материалы:808 619 ₽
Дни:30
stdClass Object
(
[id] => 81
[attribute_id] => 3
[name] => Монолитные
[material_modifier] => 1
[work_modifier] => 1
[options] => Array
(
[0] => 150 мм
[1] => 200 мм
[2] => 250 мм
[3] => 300 мм
[4] => 350 мм
[5] => 400 мм
)
[days] => [45,46,47,49,50,53]
[material_price] => [6545,7876,10175,12011,13908,15204]
[work_price] => [5106,6444,7698,8552,9807,11461]
[image] => https://akademik-stroy.ru/wp-content/uploads/materials/monolitnye.jpg
[area_modifier] => 111.38
[parent_name] => Стены 1 этаж (несущие)
[parent_id] => 3
[material_sum] => 962256
[work_sum] => 625577
[total_sum] => 1587833
[total_days] => 45
[display_material_sum] => 962 256
[display_work_sum] => 625 577
[display_total_sum] => 1 587 833
)
1
1 587 833₽
Работа:625 577 ₽
Материалы:962 256 ₽
Дни:45
stdClass Object
(
[id] => 82
[attribute_id] => 3
[name] => Клееный брус
[material_modifier] => 1
[work_modifier] => 1
[options] => Array
(
[0] => 160 мм
[1] => 175 мм
[2] => 200 мм
[3] => 215 мм
[4] => 240 мм
[5] => 270 мм
[6] => 282 мм
)
[days] => [24,28,32,37,40,42,48]
[material_price] => [16975,18773,19950,20545,21599,22159,23275]
[work_price] => [4806,5287,5815,6397,7036,7740,8514]
[image] => https://akademik-stroy.ru/wp-content/uploads/materials/kleenyj-brus.jpg
[area_modifier] => 111.38
[parent_name] => Стены 1 этаж (несущие)
[parent_id] => 3
[material_sum] => 2495692
[work_sum] => 588822
[total_sum] => 3084514
[total_days] => 24
[display_material_sum] => 2 495 692
[display_work_sum] => 588 822
[display_total_sum] => 3 084 514
)
1
3 084 514₽
Работа:588 822 ₽
Материалы:2 495 692 ₽
Дни:24
stdClass Object
(
[id] => 83
[attribute_id] => 3
[name] => Каркасные
[material_modifier] => 1
[work_modifier] => 1
[options] => Array
(
[0] => 150 мм
[1] => 200 мм
[2] => 250 мм
[3] => 300 мм
)
[days] => [15,16,17,18]
[material_price] => [2379,2639,2898,3258]
[work_price] => [2418,2686,2985,3716]
[image] => https://akademik-stroy.ru/wp-content/uploads/materials/karkasnye.jpg
[area_modifier] => 111.38
[parent_name] => Стены 1 этаж (несущие)
[parent_id] => 3
[material_sum] => 349764
[work_sum] => 296249
[total_sum] => 646013
[total_days] => 15
[display_material_sum] => 349 764
[display_work_sum] => 296 249
[display_total_sum] => 646 013
)
1
646 013₽
Работа:296 249 ₽
Материалы:349 764 ₽
Дни:15
stdClass Object
(
[id] => 84
[attribute_id] => 3
[name] => СИП-панели
[material_modifier] => 1
[work_modifier] => 1
[options] => Array
(
[0] => 120 мм
[1] => 170 мм
[2] => 220 мм
)
[days] => [7,7,7]
[material_price] => [1210,1856,2292]
[work_price] => [1410,1551,1706]
[image] => https://akademik-stroy.ru/wp-content/uploads/materials/sip-paneli.jpg
[area_modifier] => 111.38
[parent_name] => Стены 1 этаж (несущие)
[parent_id] => 3
[material_sum] => 177896
[work_sum] => 172750
[total_sum] => 350646
[total_days] => 7
[display_material_sum] => 177 896
[display_work_sum] => 172 750
[display_total_sum] => 350 646
)
1
350 646₽
Работа:172 750 ₽
Материалы:177 896 ₽
Дни:7
stdClass Object
(
[id] => 85
[attribute_id] => 3
[name] => Сухой брус
[material_modifier] => 1
[work_modifier] => 1
[options] => Array
(
[0] => 150 мм
[1] => 180 мм
[2] => 200 мм
)
[days] => [7,8,9]
[material_price] => [6010,7190,8709]
[work_price] => [3204,3845,4229]
[image] => https://akademik-stroy.ru/wp-content/uploads/materials/suhoj-brus.jpg
[area_modifier] => 111.38
[parent_name] => Стены 1 этаж (несущие)
[parent_id] => 3
[material_sum] => 883600
[work_sum] => 392548
[total_sum] => 1276148
[total_days] => 7
[display_material_sum] => 883 600
[display_work_sum] => 392 548
[display_total_sum] => 1 276 148
)
1
1 276 148₽
Работа:392 548 ₽
Материалы:883 600 ₽
Дни:7
stdClass Object
(
[id] => 86
[attribute_id] => 3
[name] => Профилированный брус
[material_modifier] => 1
[work_modifier] => 1
[options] => Array
(
[0] => 150 мм
[1] => 180 мм
[2] => 200 мм
)
[days] => [7,8,9]
[material_price] => [8190,9228,10051]
[work_price] => [3845,4614,5075]
[image] => https://akademik-stroy.ru/wp-content/uploads/materials/profilirovannyj-brus.jpg
[area_modifier] => 111.38
[parent_name] => Стены 1 этаж (несущие)
[parent_id] => 3
[material_sum] => 1204107
[work_sum] => 471082
[total_sum] => 1675189
[total_days] => 7
[display_material_sum] => 1 204 107
[display_work_sum] => 471 082
[display_total_sum] => 1 675 189
)
1
1 675 189₽
Работа:471 082 ₽
Материалы:1 204 107 ₽
Дни:7
stdClass Object
(
[id] => 87
[attribute_id] => 3
[name] => Оцилиндрованное бревно
[material_modifier] => 1
[work_modifier] => 1
[options] => Array
(
[0] => 180 мм
[1] => 220 мм
[2] => 260 мм
[3] => 320 мм
)
[days] => [7,8,9,10]
[material_price] => [75190,9532,10868,13116]
[work_price] => [3845,4691,5535,6863]
[image] => https://akademik-stroy.ru/wp-content/uploads/materials/ocilindrovannoe-brevno-1.jpg
[area_modifier] => 111.38
[parent_name] => Стены 1 этаж (несущие)
[parent_id] => 3
[material_sum] => 11054554
[work_sum] => 471082
[total_sum] => 11525636
[total_days] => 7
[display_material_sum] => 11 054 554
[display_work_sum] => 471 082
[display_total_sum] => 11 525 636
)
1
11 525 636₽
Работа:471 082 ₽
Материалы:11 054 554 ₽
Дни:7
stdClass Object
(
[id] => 88
[attribute_id] => 3
[name] => Срубы
[material_modifier] => 1
[work_modifier] => 1
[options] => Array
(
[0] => 260 мм
[1] => 320 мм
[2] => 360 мм
[3] => 400 мм
[4] => 500 мм
)
[days] => [7,8,9,10,11]
[material_price] => [37975,46709,52314,58069,73167]
[work_price] => [4806,5911,6621,7349,9260]
[image] => https://akademik-stroy.ru/wp-content/uploads/materials/sruby.jpg
[area_modifier] => 111.38
[parent_name] => Стены 1 этаж (несущие)
[parent_id] => 3
[material_sum] => 5583145
[work_sum] => 588822
[total_sum] => 6171967
[total_days] => 7
[display_material_sum] => 5 583 145
[display_work_sum] => 588 822
[display_total_sum] => 6 171 967
)
1
6 171 967₽
Работа:588 822 ₽
Материалы:5 583 145 ₽
Дни:7
stdClass Object
(
[id] => 174
[attribute_id] => 3
[name] => Брус
[material_modifier] => 1
[work_modifier] => 1
[options] => Array
(
[0] => 150 мм
[1] => 180 мм
[2] => 200 мм
)
[days] => [7,8,9]
[material_price] => [5127,6152,7367]
[work_price] => [1602,1922,2115]
[image] => https://akademik-stroy.ru/wp-content/uploads/materials/brus.jpg
[area_modifier] => 111.38
[parent_name] => Стены 1 этаж (несущие)
[parent_id] => 3
[material_sum] => 753780
[work_sum] => 196274
[total_sum] => 950054
[total_days] => 7
[display_material_sum] => 753 780
[display_work_sum] => 196 274
[display_total_sum] => 950 054
)
1
950 054₽
Работа:196 274 ₽
Материалы:753 780 ₽
Дни:7
stdClass Object
(
[id] => 175
[attribute_id] => 3
[name] => Газобетон
[material_modifier] => 1
[work_modifier] => 1
[options] => Array
(
[0] => 300 мм
[1] => 375 мм
[2] => 400 мм
[3] => 500 мм
[4] => 600 мм
)
[days] => [29,31,35,37,44]
[material_price] => [4298,5573,6356,7288,9119]
[work_price] => [4538,5251,5926,6733,7195]
[image] => https://akademik-stroy.ru/wp-content/uploads/materials/gazobeton.jpg
[area_modifier] => 111.38
[parent_name] => Стены 1 этаж (несущие)
[parent_id] => 3
[material_sum] => 631899
[work_sum] => 555987
[total_sum] => 1187886
[total_days] => 29
[display_material_sum] => 631 899
[display_work_sum] => 555 987
[display_total_sum] => 1 187 886
)
1
1 187 886₽
Работа:555 987 ₽
Материалы:631 899 ₽
Дни:29
stdClass Object
(
[id] => 176
[attribute_id] => 3
[name] => Блок
[material_modifier] => 1
[work_modifier] => 1
[options] => Array
(
[0] => 300 мм
[1] => 375 мм
[2] => 400 мм
[3] => 500 мм
[4] => 600 мм
)
[days] => [29,31,35,37,44]
[material_price] => [2698,3973,4356,6588,7119]
[work_price] => [5038,5851,6426,8733,9195]
[image] => https://akademik-stroy.ru/wp-content/uploads/materials/blok.jpg
[area_modifier] => 111.38
[parent_name] => Стены 1 этаж (несущие)
[parent_id] => 3
[material_sum] => 396664
[work_sum] => 617246
[total_sum] => 1013910
[total_days] => 29
[display_material_sum] => 396 664
[display_work_sum] => 617 246
[display_total_sum] => 1 013 910
)
1
1 013 910₽
Работа:617 246 ₽
Материалы:396 664 ₽
Дни:29
stdClass Object
(
[id] => 177
[attribute_id] => 3
[name] => Газосиликатный блок
[material_modifier] => 1
[work_modifier] => 1
[options] => Array
(
[0] => 300 мм
[1] => 375 мм
[2] => 400 мм
[3] => 500 мм
[4] => 600 мм
)
[days] => [29,31,35,37,44]
[material_price] => [4298,5573,6356,7288,9119]
[work_price] => [4538,5251,5926,6733,7195]
[image] => https://akademik-stroy.ru/wp-content/uploads/materials/gazosilikatnyj-blok.jpg
[area_modifier] => 111.38
[parent_name] => Стены 1 этаж (несущие)
[parent_id] => 3
[material_sum] => 631899
[work_sum] => 555987
[total_sum] => 1187886
[total_days] => 29
[display_material_sum] => 631 899
[display_work_sum] => 555 987
[display_total_sum] => 1 187 886
)
1
1 187 886₽
Работа:555 987 ₽
Материалы:631 899 ₽
Дни:29
stdClass Object
(
[id] => 178
[attribute_id] => 3
[name] => Керамзитобетонный блок
[material_modifier] => 1
[work_modifier] => 1
[options] => Array
(
[0] => 300 мм
[1] => 375 мм
[2] => 400 мм
[3] => 500 мм
[4] => 600 мм
)
[days] => [23,23,24,25,28]
[material_price] => [3641,4298,5693,7613,9612]
[work_price] => [5737,5737,6903,7958,8901]
[image] => https://akademik-stroy.ru/wp-content/uploads/materials/keramzitobetonnyj-blok.jpg
[area_modifier] => 111.38
[parent_name] => Стены 1 этаж (несущие)
[parent_id] => 3
[material_sum] => 535306
[work_sum] => 702886
[total_sum] => 1238192
[total_days] => 23
[display_material_sum] => 535 306
[display_work_sum] => 702 886
[display_total_sum] => 1 238 192
)
1
1 238 192₽
Работа:702 886 ₽
Материалы:535 306 ₽
Дни:23
stdClass Object
(
[id] => 179
[attribute_id] => 3
[name] => Деревянные
[material_modifier] => 1
[work_modifier] => 1
[options] => Array
(
[0] => 180 мм
[1] => 220 мм
[2] => 260 мм
[3] => 320 мм
)
[days] => [7,8,9,10]
[material_price] => [7950,9458,11961,14472]
[work_price] => [4037,4925,5812,7207]
[image] => https://akademik-stroy.ru/wp-content/uploads/materials/derevyannye.jpg
[area_modifier] => 111.38
[parent_name] => Стены 1 этаж (несущие)
[parent_id] => 3
[material_sum] => 1168822
[work_sum] => 494605
[total_sum] => 1663427
[total_days] => 7
[display_material_sum] => 1 168 822
[display_work_sum] => 494 605
[display_total_sum] => 1 663 427
)
1
1 663 427₽
Работа:494 605 ₽
Материалы:1 168 822 ₽
Дни:7
stdClass Object
(
[id] => 181
[attribute_id] => 3
[name] => Камень
[material_modifier] => 1
[work_modifier] => 1
[options] => Array
(
[0] => 300 мм
[1] => 400 мм
[2] => 500 мм
[3] => 600 мм
)
[days] => [25,27,31,34]
[material_price] => [5262,6844,8330,9815]
[work_price] => [8331,9135,10427,11069]
[image] => https://akademik-stroy.ru/wp-content/uploads/materials/kamen.jpg
[area_modifier] => 111.38
[parent_name] => Стены 1 этаж (несущие)
[parent_id] => 3
[material_sum] => 773628
[work_sum] => 1020697
[total_sum] => 1794325
[total_days] => 25
[display_material_sum] => 773 628
[display_work_sum] => 1 020 697
[display_total_sum] => 1 794 325
)
1
1 794 325₽
Работа:1 020 697 ₽
Материалы:773 628 ₽
Дни:25
stdClass Object
(
[id] => 182
[attribute_id] => 3
[name] => Каркасно-щитовые
[material_modifier] => 1
[work_modifier] => 1
[options] => Array
(
[0] => 150 мм
[1] => 200 мм
[2] => 250 мм
[3] => 300 мм
[4] => 350 мм
[5] => 400 мм
)
[days] => [15,16,17,18,19,20]
[material_price] => [2379,2639,2898,3458,3601,4175]
[work_price] => [2538,2820,3134,3483,4062,5642]
[image] => https://akademik-stroy.ru/wp-content/uploads/materials/karkasno-shchitovye.jpg
[area_modifier] => 111.38
[parent_name] => Стены 1 этаж (несущие)
[parent_id] => 3
[material_sum] => 349764
[work_sum] => 310951
[total_sum] => 660715
[total_days] => 15
[display_material_sum] => 349 764
[display_work_sum] => 310 951
[display_total_sum] => 660 715
)
1
660 715₽
Работа:310 951 ₽
Материалы:349 764 ₽
Дни:15
stdClass Object
(
[id] => 183
[attribute_id] => 3
[name] => Рубленные
[material_modifier] => 1
[work_modifier] => 1
[options] => Array
(
[0] => 150 мм
[1] => 200 мм
[2] => 250 мм
[3] => 300 мм
[4] => 350 мм
[5] => 400 мм
)
[days] => [15,16,17,18,17,18]
[material_price] => [35950,50267,60583,75900,80217,100533]
[work_price] => [9612,12816,16020,19224,22428,25632]
[image] => https://akademik-stroy.ru/wp-content/uploads/materials/rublennye.jpg
[area_modifier] => 111.38
[parent_name] => Стены 1 этаж (несущие)
[parent_id] => 3
[material_sum] => 5285427
[work_sum] => 1177643
[total_sum] => 6463070
[total_days] => 15
[display_material_sum] => 5 285 427
[display_work_sum] => 1 177 643
[display_total_sum] => 6 463 070
)
1
6 463 070₽
Работа:1 177 643 ₽
Материалы:5 285 427 ₽
Дни:15
stdClass Object
(
[id] => 185
[attribute_id] => 3
[name] => Теплоблок
[material_modifier] => 1
[work_modifier] => 1
[options] => Array
(
[0] => 300 мм (с облицовкой, не покрашенный)
[1] => 400 мм (с облицовкой, не покрашенный)
[2] => 300 мм (с облицовкой, покрашенный)
[3] => 400 мм (с облицовкой, покрашенный)
)
[days] => [15,16,15,16]
[material_price] => [2888,3729,3957,4258]
[work_price] => [2564,3229,2949,3713]
[image] => https://akademik-stroy.ru/wp-content/uploads/materials/teploblok.jpg
[area_modifier] => 111.38
[parent_name] => Стены 1 этаж (несущие)
[parent_id] => 3
[material_sum] => 424598
[work_sum] => 314136
[total_sum] => 738734
[total_days] => 15
[display_material_sum] => 424 598
[display_work_sum] => 314 136
[display_total_sum] => 738 734
)
1
738 734₽
Работа:314 136 ₽
Материалы:424 598 ₽
Дни:15
stdClass Object
(
[id] => 186
[attribute_id] => 3
[name] => Арболитовые блоки
[material_modifier] => 1
[work_modifier] => 1
[options] => Array
(
[0] => 300 мм
[1] => 400 мм
[2] => 600 мм
)
[days] => [19,22,27]
[material_price] => [3210,4475,5852]
[work_price] => [4214,4788,5866]
[image] => https://akademik-stroy.ru/wp-content/uploads/materials/arbolitovye-bloki.png
[area_modifier] => 111.38
[parent_name] => Стены 1 этаж (несущие)
[parent_id] => 3
[material_sum] => 471939
[work_sum] => 516291
[total_sum] => 988230
[total_days] => 19
[display_material_sum] => 471 939
[display_work_sum] => 516 291
[display_total_sum] => 988 230
)
1
988 230₽
Работа:516 291 ₽
Материалы:471 939 ₽
Дни:19
stdClass Object
(
[id] => 187
[attribute_id] => 3
[name] => Полистиролбетон
[material_modifier] => 1
[work_modifier] => 1
[options] => Array
(
[0] => 300 мм
[1] => 400 мм
[2] => 600 мм
)
[days] => [29,31,35]
[material_price] => [2798,4573,5256]
[work_price] => [5038,5851,6426]
[image] => https://akademik-stroy.ru/wp-content/uploads/materials/polistirolbeton.jpg
[area_modifier] => 111.38
[parent_name] => Стены 1 этаж (несущие)
[parent_id] => 3
[material_sum] => 411366
[work_sum] => 617246
[total_sum] => 1028612
[total_days] => 29
[display_material_sum] => 411 366
[display_work_sum] => 617 246
[display_total_sum] => 1 028 612
)
1
1 028 612₽
Работа:617 246 ₽
Материалы:411 366 ₽
Дни:29
stdClass Object
(
[id] => 188
[attribute_id] => 3
[name] => Шлакоблок
[material_modifier] => 1
[work_modifier] => 1
[options] => Array
(
[0] => 400 мм
[1] => 600 мм
)
[days] => [15,16]
[material_price] => [2391,3471]
[work_price] => [2642,3662]
[image] => https://akademik-stroy.ru/wp-content/uploads/materials/shlakoblok.jpg
[area_modifier] => 111.38
[parent_name] => Стены 1 этаж (несущие)
[parent_id] => 3
[material_sum] => 351529
[work_sum] => 323693
[total_sum] => 675222
[total_days] => 15
[display_material_sum] => 351 529
[display_work_sum] => 323 693
[display_total_sum] => 675 222
)
1
675 222₽
Работа:323 693 ₽
Материалы:351 529 ₽
Дни:15
stdClass Object
(
[id] => 189
[attribute_id] => 3
[name] => Теплая керамика
[material_modifier] => 1
[work_modifier] => 1
[options] => Array
(
[0] => 380 мм
[1] => 380 мм Thermo
[2] => 440 мм
[3] => 510 мм
)
[days] => [23,23,24,25]
[material_price] => [4510,5098,6093,8013]
[work_price] => [4737,4937,5903,6958]
[image] => https://akademik-stroy.ru/wp-content/uploads/materials/teplaya-keramika.jpg
[area_modifier] => 111.38
[parent_name] => Стены 1 этаж (несущие)
[parent_id] => 3
[material_sum] => 663067
[work_sum] => 580368
[total_sum] => 1243435
[total_days] => 23
[display_material_sum] => 663 067
[display_work_sum] => 580 368
[display_total_sum] => 1 243 435
)
1
1 243 435₽
Работа:580 368 ₽
Материалы:663 067 ₽
Дни:23
stdClass Object
(
[id] => 190
[attribute_id] => 3
[name] => Несъемная опалубка
[material_modifier] => 1
[work_modifier] => 1
[options] => Array
(
[0] => 200 мм
[1] => 250 мм
[2] => 300 мм
[3] => 350 мм
)
[days] => [15,17,19,21]
[material_price] => [3302,3902,4108,5008]
[work_price] => [2100,2100,2300,2534]
[image] => https://akademik-stroy.ru/wp-content/uploads/materials/nesemnaya-opalubka.jpg
[area_modifier] => 111.38
[parent_name] => Стены 1 этаж (несущие)
[parent_id] => 3
[material_sum] => 485465
[work_sum] => 257288
[total_sum] => 742753
[total_days] => 15
[display_material_sum] => 485 465
[display_work_sum] => 257 288
[display_total_sum] => 742 753
)
1
742 753₽
Работа:257 288 ₽
Материалы:485 465 ₽
Дни:15
stdClass Object
(
[id] => 251
[attribute_id] => 3
[name] => Бревно
[material_modifier] => 1
[work_modifier] => 1
[options] => Array
(
[0] => 260 мм
[1] => 320 мм
[2] => 360 мм
[3] => 400 мм
[4] => 500 мм
)
[days] => [7,8,9,10,11]
[material_price] => [1874,24045,26930,30972,38825]
[work_price] => [5046,6207,6952,7716,9723]
[image] => https://akademik-stroy.ru/wp-content/uploads/materials/sruby.jpg
[area_modifier] => 111.38
[parent_name] => Стены 1 этаж (несущие)
[parent_id] => 3
[material_sum] => 275518
[work_sum] => 618226
[total_sum] => 893744
[total_days] => 7
[display_material_sum] => 275 518
[display_work_sum] => 618 226
[display_total_sum] => 893 744
)
1
893 744₽
Работа:618 226 ₽
Материалы:275 518 ₽
Дни:7
stdClass Object
(
[id] => 7
[attribute_id] => 4
[name] => Деревянные балки
[material_modifier] => 1
[work_modifier] => 1
[options] => Array
(
[0] => без утепления
[1] => утепление 200 мм
[2] => утепление 250 мм
[3] => утепление 300 мм
[4] => утепление 350 мм
[5] => утепление 400 мм
[6] => утепление 450 мм
[7] => утепление 500 мм
)
[days] => [8,9,9,9,11,12,13,14]
[material_price] => [1634,2042,2344,2947,3149,3652,3354,3557]
[work_price] => [1230,1339,1393,1426,1460,1513,1587,1620]
[image] => https://akademik-stroy.ru/wp-content/uploads/materials/derevyannye-balki.png
[area_modifier] => 111.38
[parent_name] => Перекрытие первого этажа
[parent_id] => 4
[material_sum] => 240233
[work_sum] => 150697
[total_sum] => 390930
[total_days] => 8
[display_material_sum] => 240 233
[display_work_sum] => 150 697
[display_total_sum] => 390 930
)
1
390 930₽
Работа:150 697 ₽
Материалы:240 233 ₽
Дни:8
stdClass Object
(
[id] => 8
[attribute_id] => 4
[name] => Сборные ж/б плиты
[material_modifier] => 1
[work_modifier] => 1
[options] => Array
(
[0] => без утепления
[1] => утепление 150 мм
[2] => утепление 200 мм
[3] => утепление 250 мм
[4] => утепление 300 мм
[5] => утепление 350 мм
[6] => утепление 400 мм
[7] => утепление 450 мм
[8] => утепление 500 мм
)
[days] => [13,15,15,15,15,15,15,15,15]
[material_price] => [3067,5577,5928,6679,7730,8782,9833,10884,11935]
[work_price] => [1520,1956,2102,2247,2392,2537,2684,2829,2974]
[image] => https://akademik-stroy.ru/wp-content/uploads/materials/sbornye-zh-b-plity-2.jpg
[area_modifier] => 111.38
[parent_name] => Перекрытие первого этажа
[parent_id] => 4
[material_sum] => 450915
[work_sum] => 186227
[total_sum] => 637142
[total_days] => 13
[display_material_sum] => 450 915
[display_work_sum] => 186 227
[display_total_sum] => 637 142
)
1
637 142₽
Работа:186 227 ₽
Материалы:450 915 ₽
Дни:13
stdClass Object
(
[id] => 89
[attribute_id] => 4
[name] => Монолитная ж/б плита
[material_modifier] => 1
[work_modifier] => 1
[options] => Array
(
[0] => без утепления
[1] => утепление 150 мм
[2] => утепление 200 мм
[3] => утепление 250 мм
[4] => утепление 300 мм
[5] => утепление 350 мм
[6] => утепление 400 мм
[7] => утепление 450 мм
[8] => утепление 500 мм
)
[days] => [18,20,20,20,20,20,20,20,20]
[material_price] => [4837,6572,7224,7375,79426,8177,8728,9180,10031]
[work_price] => [3348,3921,4112,4302,4493,4684,4875,5066,5256]
[image] => https://akademik-stroy.ru/wp-content/uploads/materials/monolitnaya-zh-b-plita-2.jpg
[area_modifier] => 111.38
[parent_name] => Перекрытие первого этажа
[parent_id] => 4
[material_sum] => 711143
[work_sum] => 410190
[total_sum] => 1121333
[total_days] => 18
[display_material_sum] => 711 143
[display_work_sum] => 410 190
[display_total_sum] => 1 121 333
)
1
1 121 333₽
Работа:410 190 ₽
Материалы:711 143 ₽
Дни:18
stdClass Object
(
[id] => 10
[attribute_id] => 5
[name] => Пеноблок
[material_modifier] => 1
[work_modifier] => 1
[options] => Array
(
[0] => 300 мм
[1] => 400 мм
[2] => 500 мм
[3] => 600 мм
)
[days] => [29,31,34,39]
[material_price] => [3000,4000,4500,4937]
[work_price] => [5033,5805,6400,8710]
[image] => https://akademik-stroy.ru/wp-content/uploads/materials/penoblok.jpg
[area_modifier] => 63.54
[parent_name] => Стены 2 этаж (несущие)
[parent_id] => 5
[material_sum] => 251618
[work_sum] => 351777
[total_sum] => 603395
[total_days] => 29
[display_material_sum] => 251 618
[display_work_sum] => 351 777
[display_total_sum] => 603 395
)
1
603 395₽
Работа:351 777 ₽
Материалы:251 618 ₽
Дни:29
stdClass Object
(
[id] => 90
[attribute_id] => 5
[name] => Керамический блок
[material_modifier] => 1
[work_modifier] => 1
[options] => Array
(
[0] => 380 мм
[1] => 380 мм Thermo
[2] => 440 мм
[3] => 510 мм
)
[days] => [23,23,24,25]
[material_price] => [4510,5098,6093,8013]
[work_price] => [4737,4937,5903,6958]
[image] => https://akademik-stroy.ru/wp-content/uploads/materials/keramicheskij-blok.jpg
[area_modifier] => 63.54
[parent_name] => Стены 2 этаж (несущие)
[parent_id] => 5
[material_sum] => 378266
[work_sum] => 331088
[total_sum] => 709354
[total_days] => 23
[display_material_sum] => 378 266
[display_work_sum] => 331 088
[display_total_sum] => 709 354
)
1
709 354₽
Работа:331 088 ₽
Материалы:378 266 ₽
Дни:23
stdClass Object
(
[id] => 91
[attribute_id] => 5
[name] => Кирпич
[material_modifier] => 1
[work_modifier] => 1
[options] => Array
(
[0] => Кирпич 250 мм
[1] => Кирпич 380 мм
[2] => Кирпич 510 мм
[3] => Кирпич 640 мм
[4] => Кирпич 770 мм
)
[days] => [30,30,31,33,36]
[material_price] => [5500,7142,9206,10171,12235]
[work_price] => [8736,10041,12018,15240,18462]
[image] => https://akademik-stroy.ru/wp-content/uploads/materials/kirpich.jpg
[area_modifier] => 63.54
[parent_name] => Стены 2 этаж (несущие)
[parent_id] => 5
[material_sum] => 461300
[work_sum] => 610594
[total_sum] => 1071894
[total_days] => 30
[display_material_sum] => 461 300
[display_work_sum] => 610 594
[display_total_sum] => 1 071 894
)
1
1 071 894₽
Работа:610 594 ₽
Материалы:461 300 ₽
Дни:30
stdClass Object
(
[id] => 92
[attribute_id] => 5
[name] => Монолитные
[material_modifier] => 1
[work_modifier] => 1
[options] => Array
(
[0] => 150 мм
[1] => 200 мм
[2] => 250 мм
[3] => 300 мм
[4] => 350 мм
[5] => 400 мм
)
[days] => [45,46,47,49,50,53]
[material_price] => [6545,7876,10175,12011,13908,15204]
[work_price] => [5106,6444,7698,8552,9807,11461]
[image] => https://akademik-stroy.ru/wp-content/uploads/materials/monolitnye.jpg
[area_modifier] => 63.54
[parent_name] => Стены 2 этаж (несущие)
[parent_id] => 5
[material_sum] => 548947
[work_sum] => 356879
[total_sum] => 905826
[total_days] => 45
[display_material_sum] => 548 947
[display_work_sum] => 356 879
[display_total_sum] => 905 826
)
1
905 826₽
Работа:356 879 ₽
Материалы:548 947 ₽
Дни:45
stdClass Object
(
[id] => 93
[attribute_id] => 5
[name] => Клееный брус
[material_modifier] => 1
[work_modifier] => 1
[options] => Array
(
[0] => 160 мм
[1] => 175 мм
[2] => 200 мм
[3] => 215 мм
[4] => 240 мм
[5] => 270 мм
[6] => 282 мм
)
[days] => [24,28,32,37,40,42,48]
[material_price] => [16975,18773,19950,20545,21599,22159,23275]
[work_price] => [4806,5287,5815,6397,7036,7740,8514]
[image] => https://akademik-stroy.ru/wp-content/uploads/materials/kleenyj-brus.jpg
[area_modifier] => 63.54
[parent_name] => Стены 2 этаж (несущие)
[parent_id] => 5
[material_sum] => 1423741
[work_sum] => 335911
[total_sum] => 1759652
[total_days] => 24
[display_material_sum] => 1 423 741
[display_work_sum] => 335 911
[display_total_sum] => 1 759 652
)
1
1 759 652₽
Работа:335 911 ₽
Материалы:1 423 741 ₽
Дни:24
stdClass Object
(
[id] => 94
[attribute_id] => 5
[name] => Каркасные
[material_modifier] => 1
[work_modifier] => 1
[options] => Array
(
[0] => 150 мм
[1] => 200 мм
[2] => 250 мм
[3] => 300 мм
)
[days] => [15,16,17,18]
[material_price] => [2379,2639,2898,3258]
[work_price] => [2418,2686,2985,3716]
[image] => https://akademik-stroy.ru/wp-content/uploads/materials/karkasnye.jpg
[area_modifier] => 63.54
[parent_name] => Стены 2 этаж (несущие)
[parent_id] => 5
[material_sum] => 199533
[work_sum] => 169004
[total_sum] => 368537
[total_days] => 15
[display_material_sum] => 199 533
[display_work_sum] => 169 004
[display_total_sum] => 368 537
)
1
368 537₽
Работа:169 004 ₽
Материалы:199 533 ₽
Дни:15
stdClass Object
(
[id] => 95
[attribute_id] => 5
[name] => СИП-панели
[material_modifier] => 1
[work_modifier] => 1
[options] => Array
(
[0] => 120 мм
[1] => 170 мм
[2] => 220 мм
)
[days] => [7,7,7]
[material_price] => [1210,1856,2292]
[work_price] => [1410,1551,1706]
[image] => https://akademik-stroy.ru/wp-content/uploads/materials/sip-paneli.jpg
[area_modifier] => 63.54
[parent_name] => Стены 2 этаж (несущие)
[parent_id] => 5
[material_sum] => 101486
[work_sum] => 98551
[total_sum] => 200037
[total_days] => 7
[display_material_sum] => 101 486
[display_work_sum] => 98 551
[display_total_sum] => 200 037
)
1
200 037₽
Работа:98 551 ₽
Материалы:101 486 ₽
Дни:7
stdClass Object
(
[id] => 96
[attribute_id] => 5
[name] => Сухой брус
[material_modifier] => 1
[work_modifier] => 1
[options] => Array
(
[0] => 150 мм
[1] => 180 мм
[2] => 200 мм
)
[days] => [7,8,9]
[material_price] => [6010,7190,8709]
[work_price] => [3204,3845,4229]
[image] => https://akademik-stroy.ru/wp-content/uploads/materials/suhoj-brus.jpg
[area_modifier] => 63.54
[parent_name] => Стены 2 этаж (несущие)
[parent_id] => 5
[material_sum] => 504076
[work_sum] => 223940
[total_sum] => 728016
[total_days] => 7
[display_material_sum] => 504 076
[display_work_sum] => 223 940
[display_total_sum] => 728 016
)
1
728 016₽
Работа:223 940 ₽
Материалы:504 076 ₽
Дни:7
stdClass Object
(
[id] => 97
[attribute_id] => 5
[name] => Профилированный брус
[material_modifier] => 1
[work_modifier] => 1
[options] => Array
(
[0] => 150 мм
[1] => 180 мм
[2] => 200 мм
)
[days] => [7,8,9]
[material_price] => [8190,9228,10051]
[work_price] => [3845,4614,5075]
[image] => https://akademik-stroy.ru/wp-content/uploads/materials/profilirovannyj-brus.jpg
[area_modifier] => 63.54
[parent_name] => Стены 2 этаж (несущие)
[parent_id] => 5
[material_sum] => 686918
[work_sum] => 268742
[total_sum] => 955660
[total_days] => 7
[display_material_sum] => 686 918
[display_work_sum] => 268 742
[display_total_sum] => 955 660
)
1
955 660₽
Работа:268 742 ₽
Материалы:686 918 ₽
Дни:7
stdClass Object
(
[id] => 98
[attribute_id] => 5
[name] => Оцилиндрованное бревно
[material_modifier] => 1
[work_modifier] => 1
[options] => Array
(
[0] => 180 мм
[1] => 220 мм
[2] => 260 мм
[3] => 320 мм
)
[days] => [7,8,9,10]
[material_price] => [75190,9532,10868,13116]
[work_price] => [3845,4691,5535,6863]
[image] => https://akademik-stroy.ru/wp-content/uploads/materials/ocilindrovannoe-brevno-1.jpg
[area_modifier] => 63.54
[parent_name] => Стены 2 этаж (несущие)
[parent_id] => 5
[material_sum] => 6306396
[work_sum] => 268742
[total_sum] => 6575138
[total_days] => 7
[display_material_sum] => 6 306 396
[display_work_sum] => 268 742
[display_total_sum] => 6 575 138
)
1
6 575 138₽
Работа:268 742 ₽
Материалы:6 306 396 ₽
Дни:7
stdClass Object
(
[id] => 99
[attribute_id] => 5
[name] => Срубы
[material_modifier] => 1
[work_modifier] => 1
[options] => Array
(
[0] => 260 мм
[1] => 320 мм
[2] => 360 мм
[3] => 400 мм
[4] => 500 мм
)
[days] => [7,8,9,10,11]
[material_price] => [16175,23709,26314,29069,32167]
[work_price] => [4806,5911,6621,7349,9260]
[image] => https://akademik-stroy.ru/wp-content/uploads/materials/suhoj-brus.jpg
[area_modifier] => 63.54
[parent_name] => Стены 2 этаж (несущие)
[parent_id] => 5
[material_sum] => 1356643
[work_sum] => 335911
[total_sum] => 1692554
[total_days] => 7
[display_material_sum] => 1 356 643
[display_work_sum] => 335 911
[display_total_sum] => 1 692 554
)
1
1 692 554₽
Работа:335 911 ₽
Материалы:1 356 643 ₽
Дни:7
stdClass Object
(
[id] => 194
[attribute_id] => 5
[name] => Брус
[material_modifier] => 1
[work_modifier] => 1
[options] => Array
(
[0] => 150 мм
[1] => 180 мм
[2] => 200 мм
)
[days] => [10,13,15]
[material_price] => [5127,6152,7367]
[work_price] => [1602,1922,2115]
[image] => https://akademik-stroy.ru/wp-content/uploads/materials/brus.jpg
[area_modifier] => 63.54
[parent_name] => Стены 2 этаж (несущие)
[parent_id] => 5
[material_sum] => 430016
[work_sum] => 111970
[total_sum] => 541986
[total_days] => 10
[display_material_sum] => 430 016
[display_work_sum] => 111 970
[display_total_sum] => 541 986
)
1
541 986₽
Работа:111 970 ₽
Материалы:430 016 ₽
Дни:10
stdClass Object
(
[id] => 195
[attribute_id] => 5
[name] => Газобетон
[material_modifier] => 1
[work_modifier] => 1
[options] => Array
(
[0] => 300 мм
[1] => 375 мм
[2] => 400 мм
[3] => 500 мм
[4] => 600 мм
)
[days] => [29,31,35,37,44]
[material_price] => [4298,5573,6356,7288,9119]
[work_price] => [4538,5251,5926,6733,7195]
[image] => https://akademik-stroy.ru/wp-content/uploads/materials/gazobeton.jpg
[area_modifier] => 63.54
[parent_name] => Стены 2 этаж (несущие)
[parent_id] => 5
[material_sum] => 360485
[work_sum] => 317179
[total_sum] => 677664
[total_days] => 29
[display_material_sum] => 360 485
[display_work_sum] => 317 179
[display_total_sum] => 677 664
)
1
677 664₽
Работа:317 179 ₽
Материалы:360 485 ₽
Дни:29
stdClass Object
(
[id] => 196
[attribute_id] => 5
[name] => Блок
[material_modifier] => 1
[work_modifier] => 1
[options] => Array
(
[0] => 300 мм
[1] => 375 мм
[2] => 400 мм
[3] => 500 мм
[4] => 600 мм
)
[days] => [29,31,35,37,44]
[material_price] => [2698,3973,4356,6588,7119]
[work_price] => [5038,5851,6426,8733,9195]
[image] => https://akademik-stroy.ru/wp-content/uploads/materials/blok.jpg
[area_modifier] => 63.54
[parent_name] => Стены 2 этаж (несущие)
[parent_id] => 5
[material_sum] => 226289
[work_sum] => 352126
[total_sum] => 578415
[total_days] => 29
[display_material_sum] => 226 289
[display_work_sum] => 352 126
[display_total_sum] => 578 415
)
1
578 415₽
Работа:352 126 ₽
Материалы:226 289 ₽
Дни:29
stdClass Object
(
[id] => 197
[attribute_id] => 5
[name] => Газосиликатный блок
[material_modifier] => 1
[work_modifier] => 1
[options] => Array
(
[0] => 300 мм
[1] => 375 мм
[2] => 400 мм
[3] => 500 мм
[4] => 600 мм
)
[days] => [29,31,35,37,44]
[material_price] => [4298,5573,6356,7288,9119]
[work_price] => [4538,5251,5926,6733,7195]
[image] => https://akademik-stroy.ru/wp-content/uploads/materials/gazosilikatnyj-blok.jpg
[area_modifier] => 63.54
[parent_name] => Стены 2 этаж (несущие)
[parent_id] => 5
[material_sum] => 360485
[work_sum] => 317179
[total_sum] => 677664
[total_days] => 29
[display_material_sum] => 360 485
[display_work_sum] => 317 179
[display_total_sum] => 677 664
)
1
677 664₽
Работа:317 179 ₽
Материалы:360 485 ₽
Дни:29
stdClass Object
(
[id] => 198
[attribute_id] => 5
[name] => Керамзитобетонный блок
[material_modifier] => 1
[work_modifier] => 1
[options] => Array
(
[0] => 300 мм
[1] => 375 мм
[2] => 400 мм
[3] => 500 мм
[4] => 600 мм
)
[days] => [23,23,24,25,28]
[material_price] => [3641,4298,5693,7613,9612]
[work_price] => [5737,5737,6903,7958,8901]
[image] => https://akademik-stroy.ru/wp-content/uploads/materials/keramzitobetonnyj-blok.jpg
[area_modifier] => 63.54
[parent_name] => Стены 2 этаж (несущие)
[parent_id] => 5
[material_sum] => 305381
[work_sum] => 400982
[total_sum] => 706363
[total_days] => 23
[display_material_sum] => 305 381
[display_work_sum] => 400 982
[display_total_sum] => 706 363
)
1
706 363₽
Работа:400 982 ₽
Материалы:305 381 ₽
Дни:23
stdClass Object
(
[id] => 199
[attribute_id] => 5
[name] => Деревянные
[material_modifier] => 1
[work_modifier] => 1
[options] => Array
(
[0] => 180 мм
[1] => 220 мм
[2] => 260 мм
[3] => 320 мм
)
[days] => [7,8,9,10]
[material_price] => [7950,9458,11961,14472]
[work_price] => [4037,4925,5812,7207]
[image] => https://akademik-stroy.ru/wp-content/uploads/materials/derevyannye.jpg
[area_modifier] => 63.54
[parent_name] => Стены 2 этаж (несущие)
[parent_id] => 5
[material_sum] => 666789
[work_sum] => 282162
[total_sum] => 948951
[total_days] => 7
[display_material_sum] => 666 789
[display_work_sum] => 282 162
[display_total_sum] => 948 951
)
1
948 951₽
Работа:282 162 ₽
Материалы:666 789 ₽
Дни:7
stdClass Object
(
[id] => 200
[attribute_id] => 5
[name] => Камень
[material_modifier] => 1
[work_modifier] => 1
[options] => Array
(
[0] => 300 мм
[1] => 400 мм
[2] => 500 мм
[3] => 600 мм
)
[days] => [25,27,31,34]
[material_price] => [5262,6844,8330,9815]
[work_price] => [8331,9135,10427,11069]
[image] => https://akademik-stroy.ru/wp-content/uploads/materials/kamen.jpg
[area_modifier] => 63.54
[parent_name] => Стены 2 этаж (несущие)
[parent_id] => 5
[material_sum] => 441339
[work_sum] => 582287
[total_sum] => 1023626
[total_days] => 25
[display_material_sum] => 441 339
[display_work_sum] => 582 287
[display_total_sum] => 1 023 626
)
1
1 023 626₽
Работа:582 287 ₽
Материалы:441 339 ₽
Дни:25
stdClass Object
(
[id] => 201
[attribute_id] => 5
[name] => Каркасно-щитовые
[material_modifier] => 1
[work_modifier] => 1
[options] => Array
(
[0] => 150 мм
[1] => 200 мм
[2] => 250 мм
[3] => 300 мм
[4] => 350 мм
[5] => 400 мм
)
[days] => [15,16,17,18,19,20]
[material_price] => [2379,2639,2898,3458,3601,4175]
[work_price] => [2538,2820,3134,3483,4062,5642]
[image] => https://akademik-stroy.ru/wp-content/uploads/materials/karkasno-shchitovye.jpg
[area_modifier] => 63.54
[parent_name] => Стены 2 этаж (несущие)
[parent_id] => 5
[material_sum] => 199533
[work_sum] => 177391
[total_sum] => 376924
[total_days] => 15
[display_material_sum] => 199 533
[display_work_sum] => 177 391
[display_total_sum] => 376 924
)
1
376 924₽
Работа:177 391 ₽
Материалы:199 533 ₽
Дни:15
stdClass Object
(
[id] => 202
[attribute_id] => 5
[name] => Рубленные
[material_modifier] => 1
[work_modifier] => 1
[options] => Array
(
[0] => 150 мм
[1] => 200 мм
[2] => 250 мм
[3] => 300 мм
[4] => 350 мм
[5] => 400 мм
)
[days] => [15,16,17,18,17,18]
[material_price] => [35950,50267,60583,75900,80217,100533]
[work_price] => [9612,12816,16020,19224,22428,25632]
[image] => https://akademik-stroy.ru/wp-content/uploads/materials/rublennye.jpg
[area_modifier] => 63.54
[parent_name] => Стены 2 этаж (несущие)
[parent_id] => 5
[material_sum] => 3015227
[work_sum] => 671821
[total_sum] => 3687048
[total_days] => 15
[display_material_sum] => 3 015 227
[display_work_sum] => 671 821
[display_total_sum] => 3 687 048
)
1
3 687 048₽
Работа:671 821 ₽
Материалы:3 015 227 ₽
Дни:15
stdClass Object
(
[id] => 203
[attribute_id] => 5
[name] => Теплоблок
[material_modifier] => 1
[work_modifier] => 1
[options] => Array
(
[0] => 300 мм (с облицовкой, не покрашенный)
[1] => 400 мм (с облицовкой, не покрашенный)
[2] => 300 мм (с облицовкой, покрашенный)
[3] => 400 мм (с облицовкой, покрашенный)
)
[days] => [15,16,15,16]
[material_price] => [2888,3729,3957,4258]
[work_price] => [2564,3229,2949,3713]
[image] => https://akademik-stroy.ru/wp-content/uploads/materials/teploblok.jpg
[area_modifier] => 63.54
[parent_name] => Стены 2 этаж (несущие)
[parent_id] => 5
[material_sum] => 242225
[work_sum] => 179208
[total_sum] => 421433
[total_days] => 15
[display_material_sum] => 242 225
[display_work_sum] => 179 208
[display_total_sum] => 421 433
)
1
421 433₽
Работа:179 208 ₽
Материалы:242 225 ₽
Дни:15
stdClass Object
(
[id] => 204
[attribute_id] => 5
[name] => Арболитовые блоки
[material_modifier] => 1
[work_modifier] => 1
[options] => Array
(
[0] => 300 мм
[1] => 400 мм
[2] => 600 мм
)
[days] => [19,22,27]
[material_price] => [3210,4475,5852]
[work_price] => [4214,4788,5866]
[image] => https://akademik-stroy.ru/wp-content/uploads/materials/arbolitovye-bloki.png
[area_modifier] => 63.54
[parent_name] => Стены 2 этаж (несущие)
[parent_id] => 5
[material_sum] => 269232
[work_sum] => 294533
[total_sum] => 563765
[total_days] => 19
[display_material_sum] => 269 232
[display_work_sum] => 294 533
[display_total_sum] => 563 765
)
1
563 765₽
Работа:294 533 ₽
Материалы:269 232 ₽
Дни:19
stdClass Object
(
[id] => 205
[attribute_id] => 5
[name] => Полистиролбетон
[material_modifier] => 1
[work_modifier] => 1
[options] => Array
(
[0] => 300 мм
[1] => 400 мм
[2] => 600 мм
)
[days] => [29,31,35]
[material_price] => [2798,4573,5256]
[work_price] => [5038,5851,6426]
[image] => https://akademik-stroy.ru/wp-content/uploads/materials/polistirolbeton.jpg
[area_modifier] => 63.54
[parent_name] => Стены 2 этаж (несущие)
[parent_id] => 5
[material_sum] => 234676
[work_sum] => 352126
[total_sum] => 586802
[total_days] => 29
[display_material_sum] => 234 676
[display_work_sum] => 352 126
[display_total_sum] => 586 802
)
1
586 802₽
Работа:352 126 ₽
Материалы:234 676 ₽
Дни:29
stdClass Object
(
[id] => 206
[attribute_id] => 5
[name] => Шлакоблок
[material_modifier] => 1
[work_modifier] => 1
[options] => Array
(
[0] => 400 мм
[1] => 600 мм
)
[days] => [15,16]
[material_price] => [2391,3471]
[work_price] => [2642,3662]
[image] => https://akademik-stroy.ru/wp-content/uploads/materials/shlakoblok.jpg
[area_modifier] => 63.54
[parent_name] => Стены 2 этаж (несущие)
[parent_id] => 5
[material_sum] => 200540
[work_sum] => 184660
[total_sum] => 385200
[total_days] => 15
[display_material_sum] => 200 540
[display_work_sum] => 184 660
[display_total_sum] => 385 200
)
1
385 200₽
Работа:184 660 ₽
Материалы:200 540 ₽
Дни:15
stdClass Object
(
[id] => 245
[attribute_id] => 5
[name] => Теплая керамика
[material_modifier] => 1
[work_modifier] => 1
[options] => Array
(
[0] => 380 мм
[1] => 380 мм Thermo
[2] => 440 мм
[3] => 510 мм
)
[days] => [10,10,11,12]
[material_price] => [4510,5098,6093,8013]
[work_price] => [4737,4937,5903,6958]
[image] => https://akademik-stroy.ru/wp-content/uploads/materials/teplaya-keramika.jpg
[area_modifier] => 63.54
[parent_name] => Стены 2 этаж (несущие)
[parent_id] => 5
[material_sum] => 378266
[work_sum] => 331088
[total_sum] => 709354
[total_days] => 10
[display_material_sum] => 378 266
[display_work_sum] => 331 088
[display_total_sum] => 709 354
)
1
709 354₽
Работа:331 088 ₽
Материалы:378 266 ₽
Дни:10
stdClass Object
(
[id] => 246
[attribute_id] => 5
[name] => Несъемная опалубка
[material_modifier] => 1
[work_modifier] => 1
[options] => Array
(
[0] => 380 мм
[1] => 380 мм Thermo
[2] => 440 мм
[3] => 510 мм
)
[days] => [10,10,11,12]
[material_price] => [3302,3902,4108,5008]
[work_price] => [2100,2100,2300,2534]
[image] => https://akademik-stroy.ru/wp-content/uploads/materials/nesemnaya-opalubka.jpg
[area_modifier] => 63.54
[parent_name] => Стены 2 этаж (несущие)
[parent_id] => 5
[material_sum] => 276948
[work_sum] => 146777
[total_sum] => 423725
[total_days] => 10
[display_material_sum] => 276 948
[display_work_sum] => 146 777
[display_total_sum] => 423 725
)
1
423 725₽
Работа:146 777 ₽
Материалы:276 948 ₽
Дни:10
stdClass Object
(
[id] => 254
[attribute_id] => 5
[name] => Бревно
[material_modifier] => 1
[work_modifier] => 1
[options] => Array
(
[0] => 260 мм
[1] => 320 мм
[2] => 360 мм
[3] => 400 мм
[4] => 500 мм
)
[days] => [7,8,9,10,11]
[material_price] => [1874,24045,26930,30972,38825]
[work_price] => [5046,6207,6952,7716,9723]
[image] => https://akademik-stroy.ru/wp-content/uploads/materials/sruby.jpg
[area_modifier] => 63.54
[parent_name] => Стены 2 этаж (несущие)
[parent_id] => 5
[material_sum] => 157178
[work_sum] => 352685
[total_sum] => 509863
[total_days] => 7
[display_material_sum] => 157 178
[display_work_sum] => 352 685
[display_total_sum] => 509 863
)
1
509 863₽
Работа:352 685 ₽
Материалы:157 178 ₽
Дни:7
stdClass Object
(
[id] => 11
[attribute_id] => 6
[name] => Деревянные балки
[material_modifier] => 1
[work_modifier] => 1
[options] => Array
(
[0] => без утепления
[1] => утепление 200 мм
[2] => утепление 250 мм
[3] => утепление 300 мм
[4] => утепление 350 мм
[5] => утепление 400 мм
[6] => утепление 450 мм
[7] => утепление 500 мм
)
[days] => [8,9,9,9,11,12,13,14]
[material_price] => [1634,2042,2344,2947,3149,3652,3354,3557]
[work_price] => [1230,1339,1393,1426,1460,1513,1587,1620]
[image] => https://akademik-stroy.ru/wp-content/uploads/materials/derevyannye-balki.png
[area_modifier] => 63.54
[parent_name] => Перекрытие второго этажа
[parent_id] => 6
[material_sum] => 137048
[work_sum] => 85970
[total_sum] => 223018
[total_days] => 8
[display_material_sum] => 137 048
[display_work_sum] => 85 970
[display_total_sum] => 223 018
)
1
223 018₽
Работа:85 970 ₽
Материалы:137 048 ₽
Дни:8
stdClass Object
(
[id] => 12
[attribute_id] => 6
[name] => Сборные ж/б плиты
[material_modifier] => 1
[work_modifier] => 1
[options] => Array
(
[0] => без утепления
[1] => утепление 150 мм
[2] => утепление 200 мм
[3] => утепление 250 мм
[4] => утепление 300 мм
[5] => утепление 350 мм
[6] => утепление 400 мм
[7] => утепление 450 мм
[8] => утепление 500 мм
)
[days] => [13,15,15,15,15,15,15,15,15]
[material_price] => [3067,5577,5928,6679,7730,8782,9833,10884,11935]
[work_price] => [1520,1956,2102,2247,2392,2537,2684,2829,2974]
[image] => https://akademik-stroy.ru/wp-content/uploads/materials/sbornye-zh-b-plity-2.jpg
[area_modifier] => 63.54
[parent_name] => Перекрытие второго этажа
[parent_id] => 6
[material_sum] => 257238
[work_sum] => 106239
[total_sum] => 363477
[total_days] => 13
[display_material_sum] => 257 238
[display_work_sum] => 106 239
[display_total_sum] => 363 477
)
1
363 477₽
Работа:106 239 ₽
Материалы:257 238 ₽
Дни:13
stdClass Object
(
[id] => 100
[attribute_id] => 6
[name] => Монолитная ж/б плита
[material_modifier] => 1
[work_modifier] => 1
[options] => Array
(
[0] => без утепления
[1] => утепление 150 мм
[2] => утепление 200 мм
[3] => утепление 250 мм
[4] => утепление 300 мм
[5] => утепление 350 мм
[6] => утепление 400 мм
[7] => утепление 450 мм
[8] => утепление 500 мм
)
[days] => [18,20,20,20,20,20,20,20,20]
[material_price] => [4837,6572,7224,7375,79426,8177,8728,9180,10031]
[work_price] => [3348,3921,4112,4302,4493,4684,4875,5066,5256]
[image] => https://akademik-stroy.ru/wp-content/uploads/materials/monolitnaya-zh-b-plita-2.jpg
[area_modifier] => 63.54
[parent_name] => Перекрытие второго этажа
[parent_id] => 6
[material_sum] => 405693
[work_sum] => 234005
[total_sum] => 639698
[total_days] => 18
[display_material_sum] => 405 693
[display_work_sum] => 234 005
[display_total_sum] => 639 698
)
1
639 698₽
Работа:234 005 ₽
Материалы:405 693 ₽
Дни:18
stdClass Object
(
[id] => 164
[attribute_id] => 37
[name] => Металлочерепица
[material_modifier] => 1
[work_modifier] => 1
[options] => Array
(
)
[days] => [20]
[material_price] => [6112]
[work_price] => [5726]
[image] => https://akademik-stroy.ru/wp-content/uploads/materials/metallocherepica.jpg
[area_modifier] => 111.38
[parent_name] => Крыша (Скатная)
[parent_id] => 37
[material_sum] => 898596
[work_sum] => 701538
[total_sum] => 1600134
[total_days] => 20
[display_material_sum] => 898 596
[display_work_sum] => 701 538
[display_total_sum] => 1 600 134
)
1
1 600 134₽
Работа:701 538 ₽
Материалы:898 596 ₽
Дни:20
stdClass Object
(
[id] => 165
[attribute_id] => 37
[name] => Гибкая черепица
[material_modifier] => 1
[work_modifier] => 1
[options] => Array
(
)
[days] => [20]
[material_price] => [6980]
[work_price] => [5950]
[image] => https://akademik-stroy.ru/wp-content/uploads/materials/gibkaya-cherepica.jpg
[area_modifier] => 111.38
[parent_name] => Крыша (Скатная)
[parent_id] => 37
[material_sum] => 1026211
[work_sum] => 728982
[total_sum] => 1755193
[total_days] => 20
[display_material_sum] => 1 026 211
[display_work_sum] => 728 982
[display_total_sum] => 1 755 193
)
1
1 755 193₽
Работа:728 982 ₽
Материалы:1 026 211 ₽
Дни:20
stdClass Object
(
[id] => 166
[attribute_id] => 37
[name] => Цементно-песчаная черепица
[material_modifier] => 1
[work_modifier] => 1
[options] => Array
(
)
[days] => [20]
[material_price] => [10560]
[work_price] => [9456]
[image] => https://akademik-stroy.ru/wp-content/uploads/materials/cementno-peschanaya-cherepica.jpg
[area_modifier] => 111.38
[parent_name] => Крыша (Скатная)
[parent_id] => 37
[material_sum] => 1552548
[work_sum] => 1158530
[total_sum] => 2711078
[total_days] => 20
[display_material_sum] => 1 552 548
[display_work_sum] => 1 158 530
[display_total_sum] => 2 711 078
)
1
2 711 078₽
Работа:1 158 530 ₽
Материалы:1 552 548 ₽
Дни:20
stdClass Object
(
[id] => 167
[attribute_id] => 37
[name] => Композитная черепица
[material_modifier] => 1
[work_modifier] => 1
[options] => Array
(
)
[days] => [20]
[material_price] => [9506]
[work_price] => [8905]
[image] => https://akademik-stroy.ru/wp-content/uploads/materials/kompozitnaya-cherepica.jpg
[area_modifier] => 111.38
[parent_name] => Крыша (Скатная)
[parent_id] => 37
[material_sum] => 1397587
[work_sum] => 1091023
[total_sum] => 2488610
[total_days] => 20
[display_material_sum] => 1 397 587
[display_work_sum] => 1 091 023
[display_total_sum] => 2 488 610
)
1
2 488 610₽
Работа:1 091 023 ₽
Материалы:1 397 587 ₽
Дни:20
stdClass Object
(
[id] => 168
[attribute_id] => 37
[name] => Керамическая черепица
[material_modifier] => 1
[work_modifier] => 1
[options] => Array
(
)
[days] => [20]
[material_price] => [12750]
[work_price] => [9456]
[image] => https://akademik-stroy.ru/wp-content/uploads/materials/keramicheskaya-cherepica.jpg
[area_modifier] => 111.38
[parent_name] => Крыша (Скатная)
[parent_id] => 37
[material_sum] => 1874525
[work_sum] => 1158530
[total_sum] => 3033055
[total_days] => 20
[display_material_sum] => 1 874 525
[display_work_sum] => 1 158 530
[display_total_sum] => 3 033 055
)
1
3 033 055₽
Работа:1 158 530 ₽
Материалы:1 874 525 ₽
Дни:20
stdClass Object
(
[id] => 169
[attribute_id] => 37
[name] => Металлическая фальцевая
[material_modifier] => 1
[work_modifier] => 1
[options] => Array
(
)
[days] => [20]
[material_price] => [8550]
[work_price] => [8190]
[image] => https://akademik-stroy.ru/wp-content/uploads/materials/metallicheskaya-falcevaya.jpg
[area_modifier] => 111.38
[parent_name] => Крыша (Скатная)
[parent_id] => 37
[material_sum] => 1257035
[work_sum] => 1003422
[total_sum] => 2260457
[total_days] => 20
[display_material_sum] => 1 257 035
[display_work_sum] => 1 003 422
[display_total_sum] => 2 260 457
)
1
2 260 457₽
Работа:1 003 422 ₽
Материалы:1 257 035 ₽
Дни:20
stdClass Object
(
[id] => 170
[attribute_id] => 37
[name] => Медная фальцевая
[material_modifier] => 1
[work_modifier] => 1
[options] => Array
(
)
[days] => [20]
[material_price] => [20450]
[work_price] => [16750]
[image] => https://akademik-stroy.ru/wp-content/uploads/materials/mednaya-falcevaya.jpg
[area_modifier] => 111.38
[parent_name] => Крыша (Скатная)
[parent_id] => 37
[material_sum] => 3006592
[work_sum] => 2052177
[total_sum] => 5058769
[total_days] => 20
[display_material_sum] => 3 006 592
[display_work_sum] => 2 052 177
[display_total_sum] => 5 058 769
)
1
5 058 769₽
Работа:2 052 177 ₽
Материалы:3 006 592 ₽
Дни:20
stdClass Object
(
[id] => 171
[attribute_id] => 37
[name] => Зеленая кровля
[material_modifier] => 1
[work_modifier] => 1
[options] => Array
(
)
[days] => [20]
[material_price] => [19850]
[work_price] => [16780]
[image] => https://akademik-stroy.ru/wp-content/uploads/materials/zelenaya-krovlya.jpg
[area_modifier] => 111.38
[parent_name] => Крыша (Скатная)
[parent_id] => 37
[material_sum] => 2918379
[work_sum] => 2055852
[total_sum] => 4974231
[total_days] => 20
[display_material_sum] => 2 918 379
[display_work_sum] => 2 055 852
[display_total_sum] => 4 974 231
)
1
4 974 231₽
Работа:2 055 852 ₽
Материалы:2 918 379 ₽
Дни:20
stdClass Object
(
[id] => 172
[attribute_id] => 37
[name] => Профлист
[material_modifier] => 1
[work_modifier] => 1
[options] => Array
(
)
[days] => [20]
[material_price] => [3450]
[work_price] => [3750]
[image] => https://akademik-stroy.ru/wp-content/uploads/materials/proflist.jpg
[area_modifier] => 111.38
[parent_name] => Крыша (Скатная)
[parent_id] => 37
[material_sum] => 507225
[work_sum] => 459443
[total_sum] => 966668
[total_days] => 20
[display_material_sum] => 507 225
[display_work_sum] => 459 443
[display_total_sum] => 966 668
)
1
966 668₽
Работа:459 443 ₽
Материалы:507 225 ₽
Дни:20
stdClass Object
(
[id] => 51
[attribute_id] => 26
[name] => Есть
[material_modifier] => 1
[work_modifier] => 1
[options] => Array
(
[0] => Профиль 58 мм, 3-камерный, стеклопакет 2-камерный до 32 мм
[1] => Профиль 60 мм, 4-камерный, стеклопакет 2-камерный до 32 мм
[2] => Профиль 70 мм, 5-камерный, стеклопакет 2-камерный до 40 мм
[3] => Профиль 72 мм, 5-камерный, стеклопакет 2-камерный до 40 мм
[4] => Алюминиевые окна Alutech профиль 72 мм, стеклопакет 2-камерный
)
[days] => [3,3,3,3,3]
[material_price] => [1339,2124,2867,3023,29596]
[work_price] => [635,647,659,668,2579]
[image] => https://akademik-stroy.ru/wp-content/uploads/materials/okna.jpg
[area_modifier] => 141.94
[parent_name] => Окна
[parent_id] => 26
[material_sum] => 250876
[work_sum] => 99145
[total_sum] => 350021
[total_days] => 3
[display_material_sum] => 250 876
[display_work_sum] => 99 145
[display_total_sum] => 350 021
)
1
350 021₽
Работа:99 145 ₽
Материалы:250 876 ₽
Дни:3
stdClass Object
(
[id] => 52
[attribute_id] => 26
[name] => Нет
[material_modifier] => 2
[work_modifier] => 1
[options] =>
[days] => null
[material_price] => null
[work_price] => null
[image] => https://akademik-stroy.ru/wp-content/uploads/materials/okna.jpg
[area_modifier] => 141.94
[parent_name] => Окна
[parent_id] => 26
[material_sum] => 0
[work_sum] => 0
[total_sum] => 0
[total_days] => 0
[display_material_sum] => 0
[display_work_sum] => 0
[display_total_sum] => 0
)
1
0₽
Работа:0 ₽
Материалы:0 ₽
Дни:0
stdClass Object
(
[id] => 53
[attribute_id] => 27
[name] => Есть
[material_modifier] => 1
[work_modifier] => 1
[options] => Array
(
)
[days] => [1]
[material_price] => [10000]
[work_price] => [5500]
[image] => https://akademik-stroy.ru/wp-content/uploads/materials/dveri.jpg
[area_modifier] => 1
[parent_name] => Двери входные
[parent_id] => 27
[material_sum] => 13200
[work_sum] => 6050
[total_sum] => 19250
[total_days] => 1
[display_material_sum] => 13 200
[display_work_sum] => 6 050
[display_total_sum] => 19 250
)
1
19 250₽
Работа:6 050 ₽
Материалы:13 200 ₽
Дни:1
stdClass Object
(
[id] => 54
[attribute_id] => 27
[name] => Нет
[material_modifier] => 1
[work_modifier] => 1
[options] => Array
(
)
[days] => [0]
[material_price] => [0]
[work_price] => [0]
[image] => https://akademik-stroy.ru/wp-content/uploads/materials/dveri.jpg
[area_modifier] => 1
[parent_name] => Двери входные
[parent_id] => 27
[material_sum] => 0
[work_sum] => 0
[total_sum] => 0
[total_days] => 0
[display_material_sum] => 0
[display_work_sum] => 0
[display_total_sum] => 0
)
1
0₽
Работа:0 ₽
Материалы:0 ₽
Дни:0
stdClass Object
(
[id] => 25
[attribute_id] => 13
[name] => Нет
[material_modifier] => 1
[work_modifier] => 1
[options] => Array
(
)
[days] => [0]
[material_price] => [0]
[work_price] => [0]
[image] => https://akademik-stroy.ru/wp-content/uploads/materials/mineralovata-krov.jpg
[area_modifier] => 111.38
[parent_name] => Утепление кровли (Мансарда)
[parent_id] => 13
[material_sum] => 0
[work_sum] => 0
[total_sum] => 0
[total_days] => 0
[display_material_sum] => 0
[display_work_sum] => 0
[display_total_sum] => 0
)
1
0₽
Работа:0 ₽
Материалы:0 ₽
Дни:0
stdClass Object
(
[id] => 26
[attribute_id] => 13
[name] => Минераловатный
[material_modifier] => 1
[work_modifier] => 1
[options] => Array
(
[0] => 50 мм
[1] => 100 мм
[2] => 150 мм
[3] => 200 мм
[4] => 250 мм
[5] => 300 мм
[6] => 350 мм
[7] => 400 мм
[8] => 450 мм
[9] => 500 мм
)
[days] => [5,5,6,6,6,7,7,7,8,8]
[material_price] => [1158,1414,1772,2230,3602,4060,4974,5890,6408,7718]
[work_price] => [650,846,846,1098,1318,1450,1596,1754,1930,2122]
[image] => https://akademik-stroy.ru/wp-content/uploads/materials/mineralovata-krov.jpg
[area_modifier] => 111.38
[parent_name] => Утепление кровли (Мансарда)
[parent_id] => 13
[material_sum] => 170251
[work_sum] => 79637
[total_sum] => 249888
[total_days] => 5
[display_material_sum] => 170 251
[display_work_sum] => 79 637
[display_total_sum] => 249 888
)
1
249 888₽
Работа:79 637 ₽
Материалы:170 251 ₽
Дни:5
stdClass Object
(
[id] => 123
[attribute_id] => 13
[name] => Эковата (целлюлозная вата)
[material_modifier] => 1
[work_modifier] => 1
[options] => Array
(
[0] => 50 мм
[1] => 100 мм
[2] => 150 мм
[3] => 200 мм
[4] => 250 мм
[5] => 300 мм
[6] => 350 мм
[7] => 400 мм
[8] => 450 мм
[9] => 500 мм
)
[days] => [3,3,4,4,4,5,5,5,5,5]
[material_price] => [820,1638,2458,3276,5734,6552,8190,9828,11466,13104]
[work_price] => [234,304,304,396,474,522,574,632,694,764]
[image] => https://akademik-stroy.ru/wp-content/uploads/materials/ehkovata-krov.jpg
[area_modifier] => 111.38
[parent_name] => Утепление кровли (Мансарда)
[parent_id] => 13
[material_sum] => 120558
[work_sum] => 28669
[total_sum] => 149227
[total_days] => 3
[display_material_sum] => 120 558
[display_work_sum] => 28 669
[display_total_sum] => 149 227
)
1
149 227₽
Работа:28 669 ₽
Материалы:120 558 ₽
Дни:3
stdClass Object
(
[id] => 124
[attribute_id] => 13
[name] => Экструдированный пенополистирол
[material_modifier] => 1
[work_modifier] => 1
[options] => Array
(
[0] => 50 мм
[1] => 100 мм
[2] => 150 мм
[3] => 200 мм
[4] => 250 мм
[5] => 300 мм
[6] => 350 мм
[7] => 400 мм
[8] => 450 мм
[9] => 500 мм
)
[days] => [3,3,4,4,4,5,5,5,5,6]
[material_price] => [1146,2292,3438,4584,8020,9166,11458,13750,16040,18332]
[work_price] => [390,508,508,660,790,870,958,1052,1158,1274]
[image] => https://akademik-stroy.ru/wp-content/uploads/materials/epps-krov.jpg
[area_modifier] => 111.38
[parent_name] => Утепление кровли (Мансарда)
[parent_id] => 13
[material_sum] => 168487
[work_sum] => 47782
[total_sum] => 216269
[total_days] => 3
[display_material_sum] => 168 487
[display_work_sum] => 47 782
[display_total_sum] => 216 269
)
1
216 269₽
Работа:47 782 ₽
Материалы:168 487 ₽
Дни:3
stdClass Object
(
[id] => 125
[attribute_id] => 13
[name] => ПСБ (ППС-пенополистирол)
[material_modifier] => 1
[work_modifier] => 1
[options] => Array
(
[0] => 50 мм
[1] => 100 мм
[2] => 150 мм
[3] => 200 мм
[4] => 250 мм
[5] => 300 мм
[6] => 350 мм
[7] => 400 мм
[8] => 450 мм
[9] => 500 мм
)
[days] => [3,3,4,4,4,5,5,5,5,6]
[material_price] => [476,954,1430,1906,3336,3814,4766,5720,6674,7626]
[work_price] => [390,508,508,660,790,870,958,1052,1158,1274]
[image] => https://akademik-stroy.ru/wp-content/uploads/materials/psb-krov.jpg
[area_modifier] => 111.38
[parent_name] => Утепление кровли (Мансарда)
[parent_id] => 13
[material_sum] => 69982
[work_sum] => 47782
[total_sum] => 117764
[total_days] => 3
[display_material_sum] => 69 982
[display_work_sum] => 47 782
[display_total_sum] => 117 764
)
1
117 764₽
Работа:47 782 ₽
Материалы:69 982 ₽
Дни:3
stdClass Object
(
[id] => 126
[attribute_id] => 13
[name] => ППУ (Пенополиуретан)
[material_modifier] => 1
[work_modifier] => 1
[options] => Array
(
[0] => 50 мм
[1] => 100 мм
[2] => 150 мм
[3] => 200 мм
[4] => 250 мм
[5] => 300 мм
[6] => 350 мм
[7] => 400 мм
[8] => 450 мм
[9] => 500 мм
)
[days] => [2,2,3,3,3,3,4,4,4,4]
[material_price] => [2080,4160,6240,8320,14560,16640,20800,24960,29120,33280]
[work_price] => [234,304,304,396,474,522,574,632,694,764]
[image] => https://akademik-stroy.ru/wp-content/uploads/materials/ppu-krov.jpg
[area_modifier] => 111.38
[parent_name] => Утепление кровли (Мансарда)
[parent_id] => 13
[material_sum] => 305805
[work_sum] => 28669
[total_sum] => 334474
[total_days] => 2
[display_material_sum] => 305 805
[display_work_sum] => 28 669
[display_total_sum] => 334 474
)
1
334 474₽
Работа:28 669 ₽
Материалы:305 805 ₽
Дни:2
stdClass Object
(
[id] => 127
[attribute_id] => 13
[name] => PIR-плиты (пенополиизоцианурат)
[material_modifier] => 1
[work_modifier] => 1
[options] => Array
(
[0] => 50 мм
[1] => 100 мм
[2] => 150 мм
[3] => 200 мм
[4] => 250 мм
[5] => 300 мм
[6] => 350 мм
[7] => 400 мм
[8] => 450 мм
[9] => 500 мм
)
[days] => [3,3,4,4,4,5,5,5,5,6]
[material_price] => [2646,5290,7936,10580,18516,21162,26452,31742,37032,42324]
[work_price] => [390,508,508,660,790,870,958,1052,1158,1274]
[image] => https://akademik-stroy.ru/wp-content/uploads/materials/pir-krov.jpg
[area_modifier] => 111.38
[parent_name] => Утепление кровли (Мансарда)
[parent_id] => 13
[material_sum] => 389019
[work_sum] => 47782
[total_sum] => 436801
[total_days] => 3
[display_material_sum] => 389 019
[display_work_sum] => 47 782
[display_total_sum] => 436 801
)
1
436 801₽
Работа:47 782 ₽
Материалы:389 019 ₽
Дни:3
stdClass Object
(
[id] => 27
[attribute_id] => 14
[name] => Нет
[material_modifier] => 1
[work_modifier] => 1
[options] => Array
(
)
[days] => [0]
[material_price] => [0]
[work_price] => [0]
[image] => https://akademik-stroy.ru/wp-content/uploads/materials/mansardnye-okna-2.jpg
[area_modifier] => 1
[parent_name] => Мансардные окна
[parent_id] => 14
[material_sum] => 0
[work_sum] => 0
[total_sum] => 0
[total_days] => 0
[display_material_sum] => 0
[display_work_sum] => 0
[display_total_sum] => 0
)
1
0₽
Работа:0 ₽
Материалы:0 ₽
Дни:0
stdClass Object
(
[id] => 28
[attribute_id] => 14
[name] => Есть
[material_modifier] => 1
[work_modifier] => 1
[options] => Array
(
[0] => 55x78
[1] => 55x98
)
[days] => [6,7]
[material_price] => [47480,68700]
[work_price] => [17900,19500]
[image] => https://akademik-stroy.ru/wp-content/uploads/materials/mansardnye-okna-2.jpg
[area_modifier] => 1
[parent_name] => Мансардные окна
[parent_id] => 14
[material_sum] => 62674
[work_sum] => 19690
[total_sum] => 82364
[total_days] => 6
[display_material_sum] => 62 674
[display_work_sum] => 19 690
[display_total_sum] => 82 364
)
1
82 364₽
Работа:19 690 ₽
Материалы:62 674 ₽
Дни:6
stdClass Object
(
[id] => 29
[attribute_id] => 15
[name] => Нет
[material_modifier] => 1
[work_modifier] => 1
[options] => Array
(
)
[days] => [0]
[material_price] => [0]
[work_price] => [0]
[image] => https://akademik-stroy.ru/wp-content/uploads/materials/sofit.jpg
[area_modifier] => 111.38
[parent_name] => Подшивка кровли
[parent_id] => 15
[material_sum] => 0
[work_sum] => 0
[total_sum] => 0
[total_days] => 0
[display_material_sum] => 0
[display_work_sum] => 0
[display_total_sum] => 0
)
1
0₽
Работа:0 ₽
Материалы:0 ₽
Дни:0
stdClass Object
(
[id] => 30
[attribute_id] => 15
[name] => Есть
[material_modifier] => 1
[work_modifier] => 1
[options] => Array
(
[0] => Софиты (ПВХ)
[1] => Cedral
[2] => ДПК
[3] => Планкен
)
[days] => [7,10,9,8]
[material_price] => [1803,3213,3025,3150]
[work_price] => [1529,2188,2075,1923]
[image] => https://akademik-stroy.ru/wp-content/uploads/materials/sofit.jpg
[area_modifier] => 111.38
[parent_name] => Подшивка кровли
[parent_id] => 15
[material_sum] => 265080
[work_sum] => 187330
[total_sum] => 452410
[total_days] => 7
[display_material_sum] => 265 080
[display_work_sum] => 187 330
[display_total_sum] => 452 410
)
1
452 410₽
Работа:187 330 ₽
Материалы:265 080 ₽
Дни:7
stdClass Object
(
[id] => 31
[attribute_id] => 16
[name] => Нет
[material_modifier] => 1
[work_modifier] => 1
[options] => Array
(
)
[days] => [0]
[material_price] => [0]
[work_price] => [0]
[image] => https://akademik-stroy.ru/wp-content/uploads/materials/docke-standard-pvh.jpg
[area_modifier] => 111.38
[parent_name] => Водосточная система
[parent_id] => 16
[material_sum] => 0
[work_sum] => 0
[total_sum] => 0
[total_days] => 0
[display_material_sum] => 0
[display_work_sum] => 0
[display_total_sum] => 0
)
1
0₽
Работа:0 ₽
Материалы:0 ₽
Дни:0
stdClass Object
(
[id] => 32
[attribute_id] => 16
[name] => Есть
[material_modifier] => 1
[work_modifier] => 1
[options] => Array
(
[0] => Döcke Standard (ПВХ)
[1] => Металлические Grand Line
)
[days] => [7,7]
[material_price] => [1842,2703]
[work_price] => [1491,1529]
[image] => https://akademik-stroy.ru/wp-content/uploads/materials/docke-standard-pvh.jpg
[area_modifier] => 111.38
[parent_name] => Водосточная система
[parent_id] => 16
[material_sum] => 270814
[work_sum] => 182674
[total_sum] => 453488
[total_days] => 7
[display_material_sum] => 270 814
[display_work_sum] => 182 674
[display_total_sum] => 453 488
)
1
453 488₽
Работа:182 674 ₽
Материалы:270 814 ₽
Дни:7
stdClass Object
(
[id] => 33
[attribute_id] => 17
[name] => Нет
[material_modifier] => 1
[work_modifier] => 1
[options] => Array
(
)
[days] => [0]
[material_price] => [0]
[work_price] => [0]
[image] => https://akademik-stroy.ru/wp-content/uploads/materials/mineralovata.jpg
[area_modifier] => 174.91
[parent_name] => Дополнительное утепление наружных стен
[parent_id] => 17
[material_sum] => 0
[work_sum] => 0
[total_sum] => 0
[total_days] => 0
[display_material_sum] => 0
[display_work_sum] => 0
[display_total_sum] => 0
)
1
0₽
Работа:0 ₽
Материалы:0 ₽
Дни:0
stdClass Object
(
[id] => 34
[attribute_id] => 17
[name] => Минераловатный
[material_modifier] => 1
[work_modifier] => 1
[options] => Array
(
[0] => 50 мм
[1] => 100 мм
[2] => 150 мм
[3] => 200 мм
[4] => 250 мм
[5] => 300 мм
)
[days] => [7,8,10,12,14,15]
[material_price] => [3437,3613,3803,3915,4601,4830]
[work_price] => [2325,2423,2523,2749,2859,3025]
[image] => https://akademik-stroy.ru/wp-content/uploads/materials/mineralovata.jpg
[area_modifier] => 174.91
[parent_name] => Дополнительное утепление наружных стен
[parent_id] => 17
[material_sum] => 793539
[work_sum] => 447332
[total_sum] => 1240871
[total_days] => 7
[display_material_sum] => 793 539
[display_work_sum] => 447 332
[display_total_sum] => 1 240 871
)
1
1 240 871₽
Работа:447 332 ₽
Материалы:793 539 ₽
Дни:7
stdClass Object
(
[id] => 128
[attribute_id] => 17
[name] => Эковата (целлюлозная вата)
[material_modifier] => 1
[work_modifier] => 1
[options] => Array
(
[0] => 50 мм
[1] => 100 мм
[2] => 150 мм
[3] => 200 мм
[4] => 250 мм
[5] => 300 мм
)
[days] => [3,4,5,6,7,8]
[material_price] => [810,1319,1629,1838,2267,2676]
[work_price] => [1225,1323,1423,1549,1659,1725]
[image] => https://akademik-stroy.ru/wp-content/uploads/materials/ehkovata.jpg
[area_modifier] => 174.91
[parent_name] => Дополнительное утепление наружных стен
[parent_id] => 17
[material_sum] => 187014
[work_sum] => 235691
[total_sum] => 422705
[total_days] => 3
[display_material_sum] => 187 014
[display_work_sum] => 235 691
[display_total_sum] => 422 705
)
1
422 705₽
Работа:235 691 ₽
Материалы:187 014 ₽
Дни:3
stdClass Object
(
[id] => 129
[attribute_id] => 17
[name] => Экструдированный пенополистирол
[material_modifier] => 1
[work_modifier] => 1
[options] => Array
(
[0] => 50 мм
[1] => 100 мм
[2] => 150 мм
[3] => 200 мм
[4] => 250 мм
[5] => 300 мм
)
[days] => [5,6,7,8,9,10]
[material_price] => [4560,4300,5119,6292,7010,8583]
[work_price] => [1795,1954,2254,2330,2595,2735]
[image] => https://akademik-stroy.ru/wp-content/uploads/materials/epps.jpg
[area_modifier] => 174.91
[parent_name] => Дополнительное утепление наружных стен
[parent_id] => 17
[material_sum] => 1052818
[work_sum] => 345360
[total_sum] => 1398178
[total_days] => 5
[display_material_sum] => 1 052 818
[display_work_sum] => 345 360
[display_total_sum] => 1 398 178
)
1
1 398 178₽
Работа:345 360 ₽
Материалы:1 052 818 ₽
Дни:5
stdClass Object
(
[id] => 130
[attribute_id] => 17
[name] => ПСБ (ППС-пенополистирол)
[material_modifier] => 1
[work_modifier] => 1
[options] => Array
(
[0] => 50 мм
[1] => 100 мм
[2] => 150 мм
[3] => 200 мм
[4] => 250 мм
[5] => 300 мм
)
[days] => [5,6,7,8,9,10]
[material_price] => [4822,5200,5819,6292,7010,7583]
[work_price] => [1795,1954,2254,2330,2595,2735]
[image] => https://akademik-stroy.ru/wp-content/uploads/materials/psb.jpg
[area_modifier] => 174.91
[parent_name] => Дополнительное утепление наружных стен
[parent_id] => 17
[material_sum] => 1113309
[work_sum] => 345360
[total_sum] => 1458669
[total_days] => 5
[display_material_sum] => 1 113 309
[display_work_sum] => 345 360
[display_total_sum] => 1 458 669
)
1
1 458 669₽
Работа:345 360 ₽
Материалы:1 113 309 ₽
Дни:5
stdClass Object
(
[id] => 131
[attribute_id] => 17
[name] => ППУ (Пенополиуретан)
[material_modifier] => 1
[work_modifier] => 1
[options] => Array
(
[0] => 50 мм
[1] => 100 мм
[2] => 150 мм
[3] => 200 мм
[4] => 250 мм
[5] => 300 мм
)
[days] => [3,4,5,6,7,8]
[material_price] => [2860,3400,4219,4592,5010,5583]
[work_price] => [729,900,980,1120,1280,1530]
[image] => https://akademik-stroy.ru/wp-content/uploads/materials/ppu.jpg
[area_modifier] => 174.91
[parent_name] => Дополнительное утепление наружных стен
[parent_id] => 17
[material_sum] => 660320
[work_sum] => 140260
[total_sum] => 800580
[total_days] => 3
[display_material_sum] => 660 320
[display_work_sum] => 140 260
[display_total_sum] => 800 580
)
1
800 580₽
Работа:140 260 ₽
Материалы:660 320 ₽
Дни:3
stdClass Object
(
[id] => 132
[attribute_id] => 17
[name] => PIR-плиты (пенополиизоцианурат)
[material_modifier] => 1
[work_modifier] => 1
[options] => Array
(
[0] => 50 мм
[1] => 100 мм
[2] => 150 мм
[3] => 200 мм
[4] => 250 мм
[5] => 300 мм
)
[days] => [5,6,7,8,9,10]
[material_price] => [8323,15645,20968,25900,29258,30581]
[work_price] => [800,900,970,1150,1280,1330]
[image] => https://akademik-stroy.ru/wp-content/uploads/materials/pir.jpg
[area_modifier] => 174.91
[parent_name] => Дополнительное утепление наружных стен
[parent_id] => 17
[material_sum] => 1921624
[work_sum] => 153921
[total_sum] => 2075545
[total_days] => 5
[display_material_sum] => 1 921 624
[display_work_sum] => 153 921
[display_total_sum] => 2 075 545
)
1
2 075 545₽
Работа:153 921 ₽
Материалы:1 921 624 ₽
Дни:5
stdClass Object
(
[id] => 37
[attribute_id] => 19
[name] => Нет
[material_modifier] => 1
[work_modifier] => 1
[options] => Array
(
)
[days] => [0]
[material_price] => [0]
[work_price] => [0]
[image] => https://akademik-stroy.ru/wp-content/uploads/materials/imitaciya-brusa.jpg
[area_modifier] => 174.91
[parent_name] => Наружная отделка фасада
[parent_id] => 19
[material_sum] => 0
[work_sum] => 0
[total_sum] => 0
[total_days] => 0
[display_material_sum] => 0
[display_work_sum] => 0
[display_total_sum] => 0
)
1
0₽
Работа:0 ₽
Материалы:0 ₽
Дни:0
stdClass Object
(
[id] => 38
[attribute_id] => 19
[name] => Имитация бруса
[material_modifier] => 1
[work_modifier] => 1
[options] => Array
(
[0] => Сосна
[1] => Ель
[2] => Лиственница
)
[days] => [20,20,20]
[material_price] => [2994,2762,4954]
[work_price] => [1397,1231,1577]
[image] => https://akademik-stroy.ru/wp-content/uploads/materials/imitaciya-brusa.jpg
[area_modifier] => 174.91
[parent_name] => Наружная отделка фасада
[parent_id] => 19
[material_sum] => 691258
[work_sum] => 268784
[total_sum] => 960042
[total_days] => 20
[display_material_sum] => 691 258
[display_work_sum] => 268 784
[display_total_sum] => 960 042
)
1
960 042₽
Работа:268 784 ₽
Материалы:691 258 ₽
Дни:20
stdClass Object
(
[id] => 136
[attribute_id] => 19
[name] => Планкен
[material_modifier] => 1
[work_modifier] => 1
[options] => Array
(
[0] => Сосна
[1] => Ель
[2] => Лиственница
)
[days] => [20,20,20]
[material_price] => [3194,2862,5154]
[work_price] => [1537,1354,1735]
[image] => https://akademik-stroy.ru/wp-content/uploads/materials/planken.jpg
[area_modifier] => 174.91
[parent_name] => Наружная отделка фасада
[parent_id] => 19
[material_sum] => 737435
[work_sum] => 295720
[total_sum] => 1033155
[total_days] => 20
[display_material_sum] => 737 435
[display_work_sum] => 295 720
[display_total_sum] => 1 033 155
)
1
1 033 155₽
Работа:295 720 ₽
Материалы:737 435 ₽
Дни:20
stdClass Object
(
[id] => 137
[attribute_id] => 19
[name] => Штукатурка
[material_modifier] => 1
[work_modifier] => 1
[options] => Array
(
[0] => Цементно-песчаная (минеральная)
[1] => Мокрый фасад
)
[days] => [35,35]
[material_price] => [2231,3938]
[work_price] => [1202,2422]
[image] => https://akademik-stroy.ru/wp-content/uploads/materials/shtukaturka.jpg
[area_modifier] => 174.91
[parent_name] => Наружная отделка фасада
[parent_id] => 19
[material_sum] => 515096
[work_sum] => 231266
[total_sum] => 746362
[total_days] => 35
[display_material_sum] => 515 096
[display_work_sum] => 231 266
[display_total_sum] => 746 362
)
1
746 362₽
Работа:231 266 ₽
Материалы:515 096 ₽
Дни:35
stdClass Object
(
[id] => 138
[attribute_id] => 19
[name] => Облицовочный кирпич
[material_modifier] => 1
[work_modifier] => 1
[options] => Array
(
[0] => Керамический
[1] => Клинкерный
[2] => Ручной формовки
[3] => Гиперпрессованный
[4] => Силикатный кирпич
)
[days] => [45,45,45,45,45]
[material_price] => [8174,9148,1040,1257,5876]
[work_price] => [3240,3758,4536,4017,3369]
[image] => https://akademik-stroy.ru/wp-content/uploads/materials/oblicovochnyj-kirpich.jpg
[area_modifier] => 174.91
[parent_name] => Наружная отделка фасада
[parent_id] => 19
[material_sum] => 1887223
[work_sum] => 623379
[total_sum] => 2510602
[total_days] => 45
[display_material_sum] => 1 887 223
[display_work_sum] => 623 379
[display_total_sum] => 2 510 602
)
1
2 510 602₽
Работа:623 379 ₽
Материалы:1 887 223 ₽
Дни:45
stdClass Object
(
[id] => 139
[attribute_id] => 19
[name] => Фасадная плитка
[material_modifier] => 1
[work_modifier] => 1
[options] => Array
(
[0] => Клинкерная
[1] => Керамическая
[2] => Плитка ручной формовки
)
[days] => [40,40,40]
[material_price] => [2974,1487,3470]
[work_price] => [3007,2592,3629]
[image] => https://akademik-stroy.ru/wp-content/uploads/materials/fasadnaya-plitka.jpg
[area_modifier] => 174.91
[parent_name] => Наружная отделка фасада
[parent_id] => 19
[material_sum] => 686641
[work_sum] => 578550
[total_sum] => 1265191
[total_days] => 40
[display_material_sum] => 686 641
[display_work_sum] => 578 550
[display_total_sum] => 1 265 191
)
1
1 265 191₽
Работа:578 550 ₽
Материалы:686 641 ₽
Дни:40
stdClass Object
(
[id] => 140
[attribute_id] => 19
[name] => Сайдинг
[material_modifier] => 1
[work_modifier] => 1
[options] => Array
(
[0] => Виниловый
[1] => Металлический
[2] => Фиброцементный
)
[days] => [20,20,20]
[material_price] => [1263,1944,4147]
[work_price] => [1263,1944,2074]
[image] => https://akademik-stroy.ru/wp-content/uploads/materials/sajding.jpg
[area_modifier] => 174.91
[parent_name] => Наружная отделка фасада
[parent_id] => 19
[material_sum] => 291603
[work_sum] => 243002
[total_sum] => 534605
[total_days] => 20
[display_material_sum] => 291 603
[display_work_sum] => 243 002
[display_total_sum] => 534 605
)
1
534 605₽
Работа:243 002 ₽
Материалы:291 603 ₽
Дни:20
stdClass Object
(
[id] => 141
[attribute_id] => 19
[name] => Камень
[material_modifier] => 1
[work_modifier] => 1
[options] => Array
(
[0] => Травертин
[1] => Дагестанский
[2] => Искусственный
[3] => Натуральный
[4] => Керамогранит
)
[days] => [45,45,45,45,45]
[material_price] => [4536,3888,2592,3240,2462]
[work_price] => [3240,3240,2462,3110,1944]
[image] => https://akademik-stroy.ru/wp-content/uploads/materials/kamen-1.jpg
[area_modifier] => 174.91
[parent_name] => Наружная отделка фасада
[parent_id] => 19
[material_sum] => 1047277
[work_sum] => 623379
[total_sum] => 1670656
[total_days] => 45
[display_material_sum] => 1 047 277
[display_work_sum] => 623 379
[display_total_sum] => 1 670 656
)
1
1 670 656₽
Работа:623 379 ₽
Материалы:1 047 277 ₽
Дни:45
stdClass Object
(
[id] => 142
[attribute_id] => 19
[name] => Термопанели
[material_modifier] => 1
[work_modifier] => 1
[options] => Array
(
)
[days] => [20]
[material_price] => [6221]
[work_price] => [2333]
[image] => https://akademik-stroy.ru/wp-content/uploads/materials/termo.png
[area_modifier] => 174.91
[parent_name] => Наружная отделка фасада
[parent_id] => 19
[material_sum] => 1436312
[work_sum] => 448872
[total_sum] => 1885184
[total_days] => 20
[display_material_sum] => 1 436 312
[display_work_sum] => 448 872
[display_total_sum] => 1 885 184
)
1
1 885 184₽
Работа:448 872 ₽
Материалы:1 436 312 ₽
Дни:20
stdClass Object
(
[id] => 143
[attribute_id] => 19
[name] => Плитка HAUBERK
[material_modifier] => 1
[work_modifier] => 1
[options] => Array
(
)
[days] => [20]
[material_price] => [2786]
[work_price] => [1944]
[image] => https://akademik-stroy.ru/wp-content/uploads/materials/hauberk.jpg
[area_modifier] => 174.91
[parent_name] => Наружная отделка фасада
[parent_id] => 19
[material_sum] => 643235
[work_sum] => 374028
[total_sum] => 1017263
[total_days] => 20
[display_material_sum] => 643 235
[display_work_sum] => 374 028
[display_total_sum] => 1 017 263
)
1
1 017 263₽
Работа:374 028 ₽
Материалы:643 235 ₽
Дни:20
stdClass Object
(
[id] => 144
[attribute_id] => 19
[name] => Фальцевый фасад
[material_modifier] => 1
[work_modifier] => 1
[options] => Array
(
)
[days] => [20]
[material_price] => [3240]
[work_price] => [2592]
[image] => https://akademik-stroy.ru/wp-content/uploads/materials/falcevyj-fasad.jpg
[area_modifier] => 174.91
[parent_name] => Наружная отделка фасада
[parent_id] => 19
[material_sum] => 748055
[work_sum] => 498703
[total_sum] => 1246758
[total_days] => 20
[display_material_sum] => 748 055
[display_work_sum] => 498 703
[display_total_sum] => 1 246 758
)
1
1 246 758₽
Работа:498 703 ₽
Материалы:748 055 ₽
Дни:20
stdClass Object
(
[id] => 145
[attribute_id] => 19
[name] => Комбинированный
[material_modifier] => 1
[work_modifier] => 1
[options] => Array
(
)
[days] => [20]
[material_price] => [4629]
[work_price] => [3499]
[image] => https://akademik-stroy.ru/wp-content/uploads/materials/Kombinirovannyj.jpg
[area_modifier] => 174.91
[parent_name] => Наружная отделка фасада
[parent_id] => 19
[material_sum] => 1068749
[work_sum] => 673211
[total_sum] => 1741960
[total_days] => 20
[display_material_sum] => 1 068 749
[display_work_sum] => 673 211
[display_total_sum] => 1 741 960
)
1
1 741 960₽
Работа:673 211 ₽
Материалы:1 068 749 ₽
Дни:20
stdClass Object
(
[id] => 257
[attribute_id] => 19
[name] => Японские фиброцементные
[material_modifier] => 1
[work_modifier] => 1
[options] => Array
(
)
[days] => [20]
[material_price] => [7043]
[work_price] => [2993]
[image] => https://akademik-stroy.ru/wp-content/uploads/materials/paneli.jpg
[area_modifier] => 174.91
[parent_name] => Наружная отделка фасада
[parent_id] => 19
[material_sum] => 1626096
[work_sum] => 575856
[total_sum] => 2201952
[total_days] => 20
[display_material_sum] => 1 626 096
[display_work_sum] => 575 856
[display_total_sum] => 2 201 952
)
1
2 201 952₽
Работа:575 856 ₽
Материалы:1 626 096 ₽
Дни:20
stdClass Object
(
[id] => 258
[attribute_id] => 19
[name] => Панели Каньон
[material_modifier] => 1
[work_modifier] => 1
[options] => Array
(
)
[days] => [20]
[material_price] => [4543]
[work_price] => [2592]
[image] => https://akademik-stroy.ru/wp-content/uploads/materials/kanon.png
[area_modifier] => 174.91
[parent_name] => Наружная отделка фасада
[parent_id] => 19
[material_sum] => 1048893
[work_sum] => 498703
[total_sum] => 1547596
[total_days] => 20
[display_material_sum] => 1 048 893
[display_work_sum] => 498 703
[display_total_sum] => 1 547 596
)
1
1 547 596₽
Работа:498 703 ₽
Материалы:1 048 893 ₽
Дни:20
stdClass Object
(
[id] => 39
[attribute_id] => 20
[name] => Нет
[material_modifier] => 1
[work_modifier] => 1
[options] => Array
(
)
[days] => [0]
[material_price] => [0]
[work_price] => [0]
[image] => https://akademik-stroy.ru/wp-content/uploads/materials/terrasy.jpg
[area_modifier] => 30
[parent_name] => Террасы, крыльца, навесы
[parent_id] => 20
[material_sum] => 0
[work_sum] => 0
[total_sum] => 0
[total_days] => 0
[display_material_sum] => 0
[display_work_sum] => 0
[display_total_sum] => 0
)
1
0₽
Работа:0 ₽
Материалы:0 ₽
Дни:0
stdClass Object
(
[id] => 40
[attribute_id] => 20
[name] => Есть
[material_modifier] => 1
[work_modifier] => 1
[options] => Array
(
)
[days] => [5]
[material_price] => [10450]
[work_price] => [1950]
[image] => https://akademik-stroy.ru/wp-content/uploads/materials/terrasy.jpg
[area_modifier] => 30
[parent_name] => Террасы, крыльца, навесы
[parent_id] => 20
[material_sum] => 413820
[work_sum] => 64350
[total_sum] => 478170
[total_days] => 5
[display_material_sum] => 413 820
[display_work_sum] => 64 350
[display_total_sum] => 478 170
)
1
478 170₽
Работа:64 350 ₽
Материалы:413 820 ₽
Дни:5
stdClass Object
(
[id] => 41
[attribute_id] => 21
[name] => Нет
[material_modifier] => 1
[work_modifier] => 1
[options] => Array
(
)
[days] => [0]
[material_price] => [0]
[work_price] => [0]
[image] => https://akademik-stroy.ru/wp-content/uploads/materials/balkony.jpg
[area_modifier] => 30
[parent_name] => Балконы
[parent_id] => 21
[material_sum] => 0
[work_sum] => 0
[total_sum] => 0
[total_days] => 0
[display_material_sum] => 0
[display_work_sum] => 0
[display_total_sum] => 0
)
1
0₽
Работа:0 ₽
Материалы:0 ₽
Дни:0
stdClass Object
(
[id] => 42
[attribute_id] => 21
[name] => Есть
[material_modifier] => 1
[work_modifier] => 1
[options] => Array
(
)
[days] => [12]
[material_price] => [3600]
[work_price] => [1950]
[image] => https://akademik-stroy.ru/wp-content/uploads/materials/balkony.jpg
[area_modifier] => 30
[parent_name] => Балконы
[parent_id] => 21
[material_sum] => 142560
[work_sum] => 64350
[total_sum] => 206910
[total_days] => 12
[display_material_sum] => 142 560
[display_work_sum] => 64 350
[display_total_sum] => 206 910
)
1
206 910₽
Работа:64 350 ₽
Материалы:142 560 ₽
Дни:12
stdClass Object
(
[id] => 43
[attribute_id] => 22
[name] => Нет
[material_modifier] => 1
[work_modifier] => 1
[options] => Array
(
)
[days] => [0]
[material_price] => [0]
[work_price] => [0]
[image] => https://akademik-stroy.ru/wp-content/uploads/materials/uteplennaya.jpg
[area_modifier] => 111.38
[parent_name] => Отмостка
[parent_id] => 22
[material_sum] => 0
[work_sum] => 0
[total_sum] => 0
[total_days] => 0
[display_material_sum] => 0
[display_work_sum] => 0
[display_total_sum] => 0
)
1
0₽
Работа:0 ₽
Материалы:0 ₽
Дни:0
stdClass Object
(
[id] => 44
[attribute_id] => 22
[name] => Утепленная отмостка
[material_modifier] => 1
[work_modifier] => 1
[options] => Array
(
)
[days] => [15]
[material_price] => [2550]
[work_price] => [1750]
[image] => https://akademik-stroy.ru/wp-content/uploads/materials/uteplennaya.jpg
[area_modifier] => 111.38
[parent_name] => Отмостка
[parent_id] => 22
[material_sum] => 374905
[work_sum] => 214407
[total_sum] => 589312
[total_days] => 15
[display_material_sum] => 374 905
[display_work_sum] => 214 407
[display_total_sum] => 589 312
)
1
589 312₽
Работа:214 407 ₽
Материалы:374 905 ₽
Дни:15
stdClass Object
(
[id] => 146
[attribute_id] => 22
[name] => Не утепленная отмостка
[material_modifier] => 1
[work_modifier] => 1
[options] => Array
(
)
[days] => [10]
[material_price] => [1650]
[work_price] => [1450]
[image] => https://akademik-stroy.ru/wp-content/uploads/materials/ne-uteplennaya.jpg
[area_modifier] => 111.38
[parent_name] => Отмостка
[parent_id] => 22
[material_sum] => 242586
[work_sum] => 177651
[total_sum] => 420237
[total_days] => 10
[display_material_sum] => 242 586
[display_work_sum] => 177 651
[display_total_sum] => 420 237
)
1
420 237₽
Работа:177 651 ₽
Материалы:242 586 ₽
Дни:10
stdClass Object
(
[id] => 45
[attribute_id] => 23
[name] => Нет
[material_modifier] => 1
[work_modifier] => 1
[options] => Array
(
)
[days] => [0]
[material_price] => [0]
[work_price] => [0]
[image] => https://akademik-stroy.ru/wp-content/uploads/materials/drenazh-2.jpg
[area_modifier] => 111.38
[parent_name] => Дренаж вокруг дома
[parent_id] => 23
[material_sum] => 0
[work_sum] => 0
[total_sum] => 0
[total_days] => 0
[display_material_sum] => 0
[display_work_sum] => 0
[display_total_sum] => 0
)
1
0₽
Работа:0 ₽
Материалы:0 ₽
Дни:0
stdClass Object
(
[id] => 46
[attribute_id] => 23
[name] => Есть
[material_modifier] => 1
[work_modifier] => 1
[options] => Array
(
)
[days] => [5]
[material_price] => [2366]
[work_price] => [1911]
[image] => https://akademik-stroy.ru/wp-content/uploads/materials/drenazh-2.jpg
[area_modifier] => 111.38
[parent_name] => Дренаж вокруг дома
[parent_id] => 23
[material_sum] => 347853
[work_sum] => 234132
[total_sum] => 581985
[total_days] => 5
[display_material_sum] => 347 853
[display_work_sum] => 234 132
[display_total_sum] => 581 985
)
1
581 985₽
Работа:234 132 ₽
Материалы:347 853 ₽
Дни:5
stdClass Object
(
[id] => 47
[attribute_id] => 24
[name] => Нет
[material_modifier] => 1
[work_modifier] => 1
[options] => Array
(
)
[days] => [0]
[material_price] => [0]
[work_price] => [0]
[image] => https://akademik-stroy.ru/wp-content/uploads/materials/septik.jpg
[area_modifier] => 1
[parent_name] => Автономная канализация (септики)
[parent_id] => 24
[material_sum] => 0
[work_sum] => 0
[total_sum] => 0
[total_days] => 0
[display_material_sum] => 0
[display_work_sum] => 0
[display_total_sum] => 0
)
1
0₽
Работа:0 ₽
Материалы:0 ₽
Дни:0
stdClass Object
(
[id] => 48
[attribute_id] => 24
[name] => Есть
[material_modifier] => 1
[work_modifier] => 1
[options] => Array
(
[0] => Для дачи на 4 человека
[1] => Для дома на 5 человек
[2] => Для дома на 6 человек
[3] => Для дома на 7 человек
[4] => Для дома на 10 человек
)
[days] => [7,7,7,8,8]
[material_price] => [196340,220500,240940,264200,293340]
[work_price] => [50000,55000,60500,66550,73206]
[image] => https://akademik-stroy.ru/wp-content/uploads/materials/septik.jpg
[area_modifier] => 1
[parent_name] => Автономная канализация (септики)
[parent_id] => 24
[material_sum] => 259169
[work_sum] => 55000
[total_sum] => 314169
[total_days] => 7
[display_material_sum] => 259 169
[display_work_sum] => 55 000
[display_total_sum] => 314 169
)
1
314 169₽
Работа:55 000 ₽
Материалы:259 169 ₽
Дни:7
stdClass Object
(
[id] => 49
[attribute_id] => 25
[name] => Нет
[material_modifier] => 1
[work_modifier] => 1
[options] => Array
(
)
[days] => [0]
[material_price] => [0]
[work_price] => [0]
[image] => https://akademik-stroy.ru/wp-content/uploads/materials/gkl.jpg
[area_modifier] => 174.91
[parent_name] => Внутренние (не несущие) перегородки
[parent_id] => 25
[material_sum] => 0
[work_sum] => 0
[total_sum] => 0
[total_days] => 0
[display_material_sum] => 0
[display_work_sum] => 0
[display_total_sum] => 0
)
1
0₽
Работа:0 ₽
Материалы:0 ₽
Дни:0
stdClass Object
(
[id] => 147
[attribute_id] => 25
[name] => Каркасно-обшивные
[material_modifier] => 1
[work_modifier] => 1
[options] => Array
(
[0] => 75 мм (без шумоизоляции)
[1] => 75 мм (с шумоизоляцией)
)
[days] => [11,11]
[material_price] => [580,970]
[work_price] => [380,570]
[image] => https://akademik-stroy.ru/wp-content/uploads/materials/gkl.jpg
[area_modifier] => 174.91
[parent_name] => Внутренние (не несущие) перегородки
[parent_id] => 25
[material_sum] => 133911
[work_sum] => 73112
[total_sum] => 207023
[total_days] => 11
[display_material_sum] => 133 911
[display_work_sum] => 73 112
[display_total_sum] => 207 023
)
1
207 023₽
Работа:73 112 ₽
Материалы:133 911 ₽
Дни:11
stdClass Object
(
[id] => 148
[attribute_id] => 25
[name] => Пазогребневые
[material_modifier] => 1
[work_modifier] => 1
[options] => Array
(
[0] => 80 мм
[1] => 100 мм
)
[days] => [5,5]
[material_price] => [1022,1313]
[work_price] => [600,700]
[image] => https://akademik-stroy.ru/wp-content/uploads/materials/pazogrebnevye-bloki.jpg
[area_modifier] => 174.91
[parent_name] => Внутренние (не несущие) перегородки
[parent_id] => 25
[material_sum] => 235961
[work_sum] => 115441
[total_sum] => 351402
[total_days] => 5
[display_material_sum] => 235 961
[display_work_sum] => 115 441
[display_total_sum] => 351 402
)
1
351 402₽
Работа:115 441 ₽
Материалы:235 961 ₽
Дни:5
stdClass Object
(
[id] => 149
[attribute_id] => 25
[name] => Газобетонные
[material_modifier] => 1
[work_modifier] => 1
[options] => Array
(
[0] => 100 мм
[1] => 200 мм
)
[days] => [11,11]
[material_price] => [1160,1920]
[work_price] => [700,900]
[image] => https://akademik-stroy.ru/wp-content/uploads/materials/gazobeton-2.jpg
[area_modifier] => 174.91
[parent_name] => Внутренние (не несущие) перегородки
[parent_id] => 25
[material_sum] => 267822
[work_sum] => 134681
[total_sum] => 402503
[total_days] => 11
[display_material_sum] => 267 822
[display_work_sum] => 134 681
[display_total_sum] => 402 503
)
1
402 503₽
Работа:134 681 ₽
Материалы:267 822 ₽
Дни:11
stdClass Object
(
[id] => 150
[attribute_id] => 25
[name] => Кирпичные
[material_modifier] => 1
[work_modifier] => 1
[options] => Array
(
[0] => 120 мм
[1] => 250 мм
[2] => 360 мм
)
[days] => [7,7,7]
[material_price] => [1785,3570,5355]
[work_price] => [900,1600,1800]
[image] => https://akademik-stroy.ru/wp-content/uploads/materials/kirpich-1.jpg
[area_modifier] => 174.91
[parent_name] => Внутренние (не несущие) перегородки
[parent_id] => 25
[material_sum] => 412123
[work_sum] => 173161
[total_sum] => 585284
[total_days] => 7
[display_material_sum] => 412 123
[display_work_sum] => 173 161
[display_total_sum] => 585 284
)
1
585 284₽
Работа:173 161 ₽
Материалы:412 123 ₽
Дни:7
stdClass Object
(
[id] => 55
[attribute_id] => 28
[name] => Нет
[material_modifier] => 1
[work_modifier] => 1
[options] => Array
(
)
[days] => [0]
[material_price] => [0]
[work_price] => [0]
[image] => https://akademik-stroy.ru/wp-content/uploads/materials/ehlektrika.jpg
[area_modifier] => 141.94
[parent_name] => Электрика
[parent_id] => 28
[material_sum] => 0
[work_sum] => 0
[total_sum] => 0
[total_days] => 0
[display_material_sum] => 0
[display_work_sum] => 0
[display_total_sum] => 0
)
1
0₽
Работа:0 ₽
Материалы:0 ₽
Дни:0
stdClass Object
(
[id] => 56
[attribute_id] => 28
[name] => Есть
[material_modifier] => 1
[work_modifier] => 1
[options] => Array
(
)
[days] => [10]
[material_price] => [650]
[work_price] => [950]
[image] => https://akademik-stroy.ru/wp-content/uploads/materials/ehlektrika.jpg
[area_modifier] => 141.94
[parent_name] => Электрика
[parent_id] => 28
[material_sum] => 121785
[work_sum] => 148327
[total_sum] => 270112
[total_days] => 10
[display_material_sum] => 121 785
[display_work_sum] => 148 327
[display_total_sum] => 270 112
)
1
270 112₽
Работа:148 327 ₽
Материалы:121 785 ₽
Дни:10
stdClass Object
(
[id] => 57
[attribute_id] => 29
[name] => Нет
[material_modifier] => 1
[work_modifier] => 1
[options] => Array
(
)
[days] => [0]
[material_price] => [0]
[work_price] => [0]
[image] => https://akademik-stroy.ru/wp-content/uploads/materials/santekhnika-kanalizaciya-1.jpg
[area_modifier] => 141.94
[parent_name] => Сантехника, канализация в доме
[parent_id] => 29
[material_sum] => 0
[work_sum] => 0
[total_sum] => 0
[total_days] => 0
[display_material_sum] => 0
[display_work_sum] => 0
[display_total_sum] => 0
)
1
0₽
Работа:0 ₽
Материалы:0 ₽
Дни:0
stdClass Object
(
[id] => 58
[attribute_id] => 29
[name] => Есть
[material_modifier] => 1
[work_modifier] => 1
[options] => Array
(
)
[days] => [10]
[material_price] => [600]
[work_price] => [730]
[image] => https://akademik-stroy.ru/wp-content/uploads/materials/santekhnika-kanalizaciya-1.jpg
[area_modifier] => 141.94
[parent_name] => Сантехника, канализация в доме
[parent_id] => 29
[material_sum] => 112416
[work_sum] => 113978
[total_sum] => 226394
[total_days] => 10
[display_material_sum] => 112 416
[display_work_sum] => 113 978
[display_total_sum] => 226 394
)
1
226 394₽
Работа:113 978 ₽
Материалы:112 416 ₽
Дни:10
stdClass Object
(
[id] => 59
[attribute_id] => 30
[name] => Нет
[material_modifier] => 1
[work_modifier] => 1
[options] => Array
(
)
[days] => [0]
[material_price] => [0]
[work_price] => [0]
[image] => https://akademik-stroy.ru/wp-content/uploads/materials/otoplenie-1.jpg
[area_modifier] => 141.94
[parent_name] => Отопление
[parent_id] => 30
[material_sum] => 0
[work_sum] => 0
[total_sum] => 0
[total_days] => 0
[display_material_sum] => 0
[display_work_sum] => 0
[display_total_sum] => 0
)
1
0₽
Работа:0 ₽
Материалы:0 ₽
Дни:0
stdClass Object
(
[id] => 60
[attribute_id] => 30
[name] => Есть
[material_modifier] => 1
[work_modifier] => 1
[options] => Array
(
)
[days] => [5]
[material_price] => [610]
[work_price] => [560]
[image] => https://akademik-stroy.ru/wp-content/uploads/materials/otoplenie-1.jpg
[area_modifier] => 141.94
[parent_name] => Отопление
[parent_id] => 30
[material_sum] => 114290
[work_sum] => 87435
[total_sum] => 201725
[total_days] => 5
[display_material_sum] => 114 290
[display_work_sum] => 87 435
[display_total_sum] => 201 725
)
1
201 725₽
Работа:87 435 ₽
Материалы:114 290 ₽
Дни:5
stdClass Object
(
[id] => 61
[attribute_id] => 31
[name] => Нет
[material_modifier] => 1
[work_modifier] => 1
[options] => Array
(
)
[days] => [0]
[material_price] => [0]
[work_price] => [0]
[image] => https://akademik-stroy.ru/wp-content/uploads/materials/vodyanye.jpg
[area_modifier] => 30
[parent_name] => Теплые полы
[parent_id] => 31
[material_sum] => 0
[work_sum] => 0
[total_sum] => 0
[total_days] => 0
[display_material_sum] => 0
[display_work_sum] => 0
[display_total_sum] => 0
)
1
0₽
Работа:0 ₽
Материалы:0 ₽
Дни:0
stdClass Object
(
[id] => 151
[attribute_id] => 31
[name] => Водяные
[material_modifier] => 1
[work_modifier] => 1
[options] => Array
(
)
[days] => [9]
[material_price] => [10200]
[work_price] => [2500]
[image] => https://akademik-stroy.ru/wp-content/uploads/materials/vodyanye.jpg
[area_modifier] => 30
[parent_name] => Теплые полы
[parent_id] => 31
[material_sum] => 403920
[work_sum] => 82500
[total_sum] => 486420
[total_days] => 9
[display_material_sum] => 403 920
[display_work_sum] => 82 500
[display_total_sum] => 486 420
)
1
486 420₽
Работа:82 500 ₽
Материалы:403 920 ₽
Дни:9
stdClass Object
(
[id] => 152
[attribute_id] => 31
[name] => Электро
[material_modifier] => 1
[work_modifier] => 1
[options] => Array
(
)
[days] => [5]
[material_price] => [6300]
[work_price] => [1500]
[image] => https://akademik-stroy.ru/wp-content/uploads/materials/ehlektricheskij.jpg
[area_modifier] => 30
[parent_name] => Теплые полы
[parent_id] => 31
[material_sum] => 249480
[work_sum] => 49500
[total_sum] => 298980
[total_days] => 5
[display_material_sum] => 249 480
[display_work_sum] => 49 500
[display_total_sum] => 298 980
)
1
298 980₽
Работа:49 500 ₽
Материалы:249 480 ₽
Дни:5
stdClass Object
(
[id] => 63
[attribute_id] => 32
[name] => Нет
[material_modifier] => 1
[work_modifier] => 1
[options] => Array
(
)
[days] => [0]
[material_price] => [0]
[work_price] => [0]
[image] => https://akademik-stroy.ru/wp-content/uploads/materials/shtukaturka-shpatlevka-1.jpg
[area_modifier] => 141.94
[parent_name] => Черновая отделка стен
[parent_id] => 32
[material_sum] => 0
[work_sum] => 0
[total_sum] => 0
[total_days] => 0
[display_material_sum] => 0
[display_work_sum] => 0
[display_total_sum] => 0
)
1
0₽
Работа:0 ₽
Материалы:0 ₽
Дни:0
stdClass Object
(
[id] => 153
[attribute_id] => 32
[name] => Штукатурка и шпатлевка
[material_modifier] => 1
[work_modifier] => 1
[options] => Array
(
)
[days] => [20]
[material_price] => [1850]
[work_price] => [2600]
[image] => https://akademik-stroy.ru/wp-content/uploads/materials/shtukaturka-shpatlevka-1.jpg
[area_modifier] => 141.94
[parent_name] => Черновая отделка стен
[parent_id] => 32
[material_sum] => 346617
[work_sum] => 405948
[total_sum] => 752565
[total_days] => 20
[display_material_sum] => 346 617
[display_work_sum] => 405 948
[display_total_sum] => 752 565
)
1
752 565₽
Работа:405 948 ₽
Материалы:346 617 ₽
Дни:20
stdClass Object
(
[id] => 154
[attribute_id] => 32
[name] => Гипсокортон на стены
[material_modifier] => 1
[work_modifier] => 1
[options] => Array
(
)
[days] => [15]
[material_price] => [950]
[work_price] => [2100]
[image] => https://akademik-stroy.ru/wp-content/uploads/materials/gkl-1.jpg
[area_modifier] => 141.94
[parent_name] => Черновая отделка стен
[parent_id] => 32
[material_sum] => 177993
[work_sum] => 327881
[total_sum] => 505874
[total_days] => 15
[display_material_sum] => 177 993
[display_work_sum] => 327 881
[display_total_sum] => 505 874
)
1
505 874₽
Работа:327 881 ₽
Материалы:177 993 ₽
Дни:15
stdClass Object
(
[id] => 155
[attribute_id] => 32
[name] => Вагонка
[material_modifier] => 1
[work_modifier] => 1
[options] => Array
(
)
[days] => [15]
[material_price] => [1250]
[work_price] => [950]
[image] => https://akademik-stroy.ru/wp-content/uploads/materials/vagonka.jpg
[area_modifier] => 141.94
[parent_name] => Черновая отделка стен
[parent_id] => 32
[material_sum] => 234201
[work_sum] => 148327
[total_sum] => 382528
[total_days] => 15
[display_material_sum] => 234 201
[display_work_sum] => 148 327
[display_total_sum] => 382 528
)
1
382 528₽
Работа:148 327 ₽
Материалы:234 201 ₽
Дни:15
stdClass Object
(
[id] => 65
[attribute_id] => 33
[name] => Нет
[material_modifier] => 1
[work_modifier] => 1
[options] => Array
(
)
[days] => [0]
[material_price] => [0]
[work_price] => [0]
[image] => https://akademik-stroy.ru/wp-content/uploads/materials/styazhka.jpg
[area_modifier] => 141.94
[parent_name] => Черновая отделка полов
[parent_id] => 33
[material_sum] => 0
[work_sum] => 0
[total_sum] => 0
[total_days] => 0
[display_material_sum] => 0
[display_work_sum] => 0
[display_total_sum] => 0
)
1
0₽
Работа:0 ₽
Материалы:0 ₽
Дни:0
stdClass Object
(
[id] => 156
[attribute_id] => 33
[name] => Стяжка + наливные полы
[material_modifier] => 1
[work_modifier] => 1
[options] => Array
(
)
[days] => [10]
[material_price] => [1000]
[work_price] => [900]
[image] => https://akademik-stroy.ru/wp-content/uploads/materials/styazhka.jpg
[area_modifier] => 141.94
[parent_name] => Черновая отделка полов
[parent_id] => 33
[material_sum] => 187361
[work_sum] => 140521
[total_sum] => 327882
[total_days] => 10
[display_material_sum] => 187 361
[display_work_sum] => 140 521
[display_total_sum] => 327 882
)
1
327 882₽
Работа:140 521 ₽
Материалы:187 361 ₽
Дни:10
stdClass Object
(
[id] => 157
[attribute_id] => 33
[name] => ОСБ на пол
[material_modifier] => 1
[work_modifier] => 1
[options] => Array
(
)
[days] => [7]
[material_price] => [580]
[work_price] => [350]
[image] => https://akademik-stroy.ru/wp-content/uploads/materials/osb-1.jpg
[area_modifier] => 141.94
[parent_name] => Черновая отделка полов
[parent_id] => 33
[material_sum] => 108669
[work_sum] => 54647
[total_sum] => 163316
[total_days] => 7
[display_material_sum] => 108 669
[display_work_sum] => 54 647
[display_total_sum] => 163 316
)
1
163 316₽
Работа:54 647 ₽
Материалы:108 669 ₽
Дни:7
stdClass Object
(
[id] => 67
[attribute_id] => 34
[name] => Нет
[material_modifier] => 1
[work_modifier] => 1
[options] => Array
(
)
[days] => [0]
[material_price] => [0]
[work_price] => [0]
[image] => https://akademik-stroy.ru/wp-content/uploads/materials/chistovaya-otdelka.jpg
[area_modifier] => 141.94
[parent_name] => Чистовая отделка стен и полов
[parent_id] => 34
[material_sum] => 0
[work_sum] => 0
[total_sum] => 0
[total_days] => 0
[display_material_sum] => 0
[display_work_sum] => 0
[display_total_sum] => 0
)
1
0₽
Работа:0 ₽
Материалы:0 ₽
Дни:0
stdClass Object
(
[id] => 68
[attribute_id] => 34
[name] => Есть
[material_modifier] => 1
[work_modifier] => 1
[options] => Array
(
)
[days] => [50]
[material_price] => [6000]
[work_price] => [3500]
[image] => https://akademik-stroy.ru/wp-content/uploads/materials/chistovaya-otdelka.jpg
[area_modifier] => 141.94
[parent_name] => Чистовая отделка стен и полов
[parent_id] => 34
[material_sum] => 1124165
[work_sum] => 546469
[total_sum] => 1670634
[total_days] => 50
[display_material_sum] => 1 124 165
[display_work_sum] => 546 469
[display_total_sum] => 1 670 634
)
1
1 670 634₽
Работа:546 469 ₽
Материалы:1 124 165 ₽
Дни:50
stdClass Object
(
[id] => 69
[attribute_id] => 35
[name] => Нет
[material_modifier] => 1
[work_modifier] => 1
[options] => Array
(
)
[days] => [0]
[material_price] => [0]
[work_price] => [0]
[image] => https://akademik-stroy.ru/wp-content/uploads/materials/mnogourovnevyj-gkl.jpg
[area_modifier] => 141.94
[parent_name] => Отделка потолка
[parent_id] => 35
[material_sum] => 0
[work_sum] => 0
[total_sum] => 0
[total_days] => 0
[display_material_sum] => 0
[display_work_sum] => 0
[display_total_sum] => 0
)
1
0₽
Работа:0 ₽
Материалы:0 ₽
Дни:0
stdClass Object
(
[id] => 70
[attribute_id] => 35
[name] => Есть
[material_modifier] => 1
[work_modifier] => 1
[options] => Array
(
[0] => Многоуровневый потолок из гипсокартона
[1] => Многоуровневый потолок из гипсокартона и натяжного потолка
[2] => Одноуровневый потолок из гипсокартона
[3] => Одноуровневый натяжной потолок
)
[days] => [10,10,1,1]
[material_price] => [900,700,700,600]
[work_price] => [1000,800,500,300]
[image] => https://akademik-stroy.ru/wp-content/uploads/materials/mnogourovnevyj-gkl.jpg
[area_modifier] => 141.94
[parent_name] => Отделка потолка
[parent_id] => 35
[material_sum] => 168625
[work_sum] => 156134
[total_sum] => 324759
[total_days] => 10
[display_material_sum] => 168 625
[display_work_sum] => 156 134
[display_total_sum] => 324 759
)
1
324 759₽
Работа:156 134 ₽
Материалы:168 625 ₽
Дни:10
Преимущества работы с нами
7 этапов оплаты
Независимый строительный надзор
Экологически чистые материалы
16 лет гарантии
Онлайн-кабинет с веб-камерой
Строители с опытом более 15 лет
Собственное производство









