Традиционный одноэтажный дом 7x16 метров: современный комфорт и проверенные временем решения
Выбирая проект частного дома, каждый будущий хозяин стремится объединить в своем жилище удобство, функциональность и привлекательный внешний облик. Традиционный одноэтажный дом размером 7 на 16 метров — это идеальное сочетание компактности и достаточного пространства для всех членов семьи. С общей полезной площадью в 245 квадратных метров, такой дом вызывает уважение не только размерами, но и продуманной планировкой, позволяющей легко организовать все зоны для жизни, отдыха и работы.
В данной статье мы подробно рассмотрим преимущества и особенности именно этого типа жилья, а также постараемся понять, почему строительство такого дома за сумму около 8 666 926 рублей является разумным вложением для семьи, стремящейся найти оптимальный баланс между качеством и стоимостью. Рассмотрим планировку, функциональные зоны, технические аспекты и бытовые удобства, которые делают одноэтажный дом 7x16 м настоящим семейным гнездом.
Преимущества одноэтажного дома с площадью 245 м²
Одноэтажные дома сегодня пользуются большим спросом среди разных категорий покупателей. Для многих приоритеты — это отсутствие необходимости подниматься по лестницам, безопасность, а также возможность максимально рационального использования пространства. Дом размером 7 на 16 метров с площадью 245 м² как раз отвечает этим критериям.
Во-первых, значительно упрощается перемещение внутри дома. Это особенно важно для семей с пожилыми людьми, маленькими детьми или людьми с ограниченными возможностями. Одноэтажное жилье избавляет от риска травм на лестницах и позволяет гораздо проще организовать внутреннее пространство.
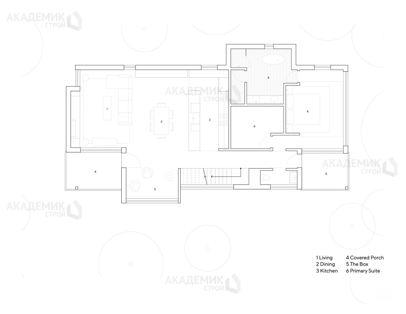
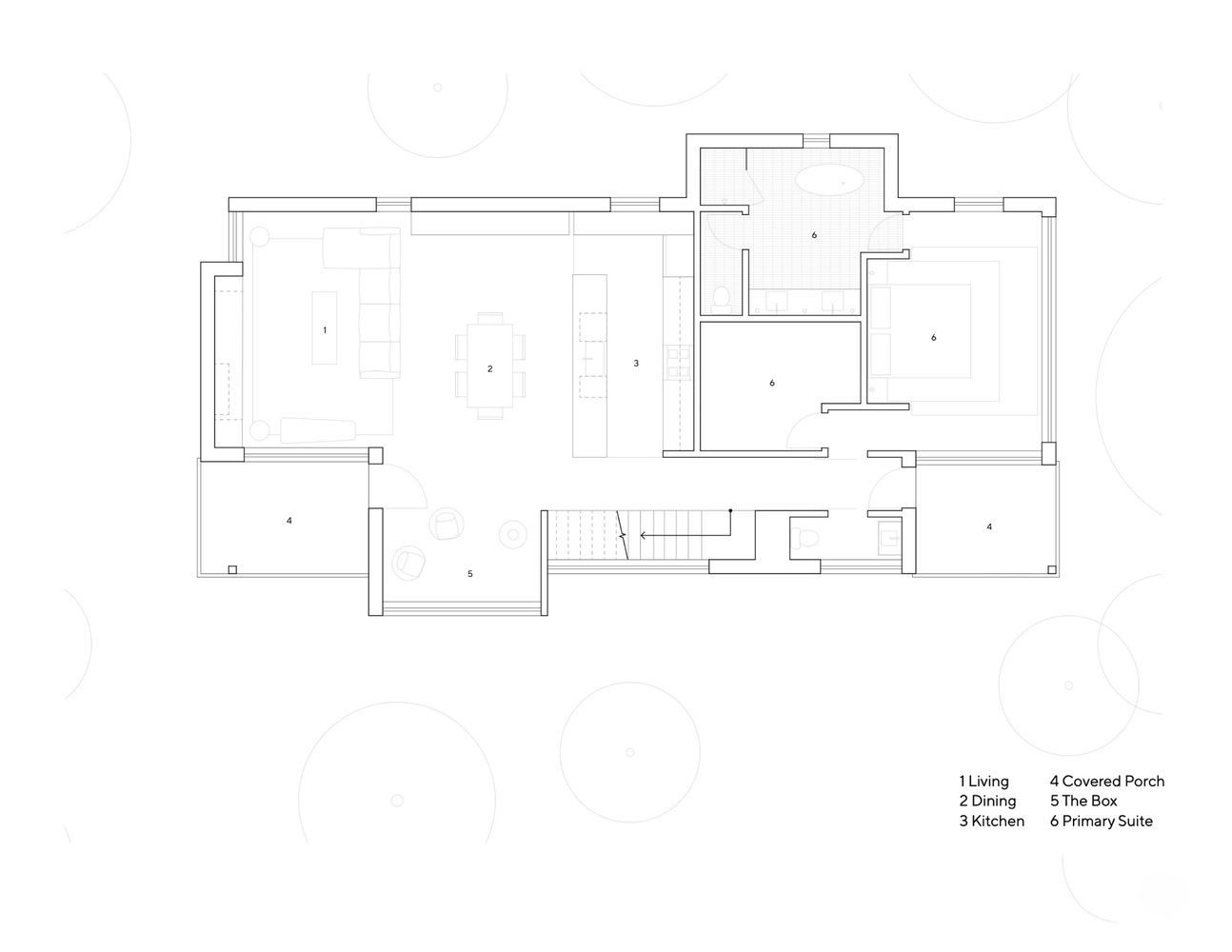
Во-вторых, даже при достаточно компактных габаритах – 7 метров в ширину и 16 — в длину, общая площадь в 245 квадратных метров позволяет разместить все необходимые помещения. Здесь можно комфортно выделить три спальни, три санузла, просторную гостиную и кухню с столовой зоной. Такой дом не ощущается тесным, а дает возможность каждому члену семьи иметь свою приватную территорию.
Особенности планировки: три спальни и три санузла
Одной из ключевых характеристик данного дома является наличие трех полноценных спален, что идеально для семьи из 4-5 человек, а также трех санузлов. Это позволяет коренным образом улучшить качество жизни, избавляя жильцов от неудобств, связанных с ожиданием своей очереди в ванную комнату по утрам или вечерам.
Три спальни, как правило, распределяются так, чтобы максимально использовать пространство с учетом естественного освещения, уюта и приватности. Основная спальня обычно отличается большей площадью и может оснащаться собственной ванной комнатой — так называемым “мастер-сюит”. Остальные две спальни отлично подходят для детей, гостей или просторного кабинета.
Наличие трех санузлов в одноэтажном доме предоставляет значительные преимущества. Помимо ванн и туалетов, некоторые из них могут быть оснащены душевыми кабинами, что удобно для быстрого принятия душа. Такое количество санузлов снижает плотность населения по отношению к инженерным коммуникациям, что особенно удобно в семьях с разным графиком дня.
Распределение пространства между жилыми и бытовыми зонами
Планировка традиционного дома подчинена четкому разделению зон: общественная зона располагается ближе к входу и включает гостиную, столовую и кухню, а приватная — в глубине дома, где размещены спальни и санузлы. Это решение способствует созданию комфортной атмосферы, где дети и взрослые могут отдыхать в тишине, а гости принимать без вторжения в личное пространство.
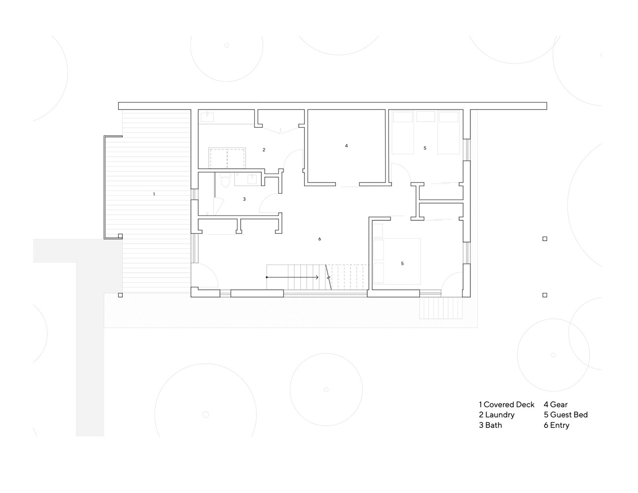
Также важным элементом планировки является наличие кладовых или хозяйственных помещений, позволяющих рационально организовать хранение бытовых принадлежностей и сезонных вещей. В доме такого размера, как 7x16, можно найти место для отдельной прачечной, что значительно облегчает быт и экономит жилое пространство.
Стоимость строительства: как 8 666 926 рублей связаны с качеством и материалами
Цена дома на сегодняшний день является определяющим фактором при выборе проекта. Стоимость в 8 666 926 рублей за одноэтажный дом с площадью 245 м² можно считать сбалансированной и адекватной при правильном подборе материалов и технологий строительства.
В эту сумму обычно включаются все основные работы и материалы: фундамент, стены, кровля, внутренние отделочные работы, монтаж инженерных сетей (водоснабжение, отопление, электричество), а также базовое благоустройство дома. Однако, важно понимать, что конечная стоимость может варьироваться в зависимости от выбранных материалов, региона строительства и конкретных пожеланий заказчика.
Использование современных технологий и качественных материалов позволяет сохранить оптимальное соотношение цена-качество, а также значительно повысить энергоэффективность здания. Это значит, что расходы на отопление и кондиционирование будут минимальны, что, в свою очередь, снижает эксплуатационные затраты в будущем.
Факторы, влияющие на стоимость дома
- Выбор конструктивных решений: кирпич, газобетон, деревянные каркасные технологии.
- Качество и бренд материалов: отделка, окна, двери и кровельные материалы.
- Сложность инженерных систем: отопление, канализация, вентиляция, умный дом.
- Особенности участка: необходимость дополнительного укрепления фундамента или подготовительных работ.
- Трудозатраты и сроки строительства: влияние сезонности и доступность квалифицированных рабочих.
Правильное управление этими факторами позволяет максимально эффективно использовать отведенный бюджет и построить долговечный и комфортный дом, которым семья будет радоваться многие десятилетия.
Технические характеристики и выбор строительных решений
Одноэтажный дом с размерами 7x16 метров обладает уникальной геометрией, которая облегчает вопросы теплоизоляции и конструкции кровли. Компактность размеров упрощает планирование несущих конструкций и минимализирует риск мостиков холода.
Традиционный дом, как правило, строится с учетом использования проверенных материалов и технологий. Это гарантирует долговечность и надежность конструкции при умеренных затратах на обслуживание. Например, применение газобетона позволяет создать теплые и прочные стены, которые быстро возводятся и обеспечивают отличную теплоизоляцию.
Практические рекомендации по возведению дома 7x16
- Подготовка фундамента: выбор типа фундамента (ленточный, монолитный плита) в зависимости от особенностей грунта.
- Возведение стен: качественная кладка с учетом утепления и гидроизоляции.
- Кровля: оптимальный выбор материалов с учетом климатических условий региона.
- Инженерные системы: монтаж отопления, водоснабжения, электричества с профессиональным контролем качества.
- Внутренняя отделка: использование экологичных материалов, удобных в уходе и долговечных.
Несмотря на кажущуюся простоту проекта, каждый этап требует тщательного планирования и контроля, что позволит избежать ошибок и дополнительных затрат в процессе строительства.
Почему одноэтажный дом 7x16 подходит для современной семьи
Жизнь в одноэтажном доме обладает рядом практических преимуществ, особенно для семей с детьми и пожилыми родственниками. Отсутствие лестниц делает дом удобным и безопасным, снижает вероятность несчастных случаев и позволяет планировать интерьер без ограничений.
При размерах дома 7х16 метров и общей полезной площади 245 квадратных метров легко найти баланс между личным пространством и общими зонами для совместного времяпрепровождения. Гостиная предоставит пространство для отдыха всей семьей, кухня — для приготовления вкусной и здоровой пищи, а спальни — для полноценного сна и уединения.
Кроме того, традиционный экстерьер такого дома обеспечивает гармоничное сочетание с любым типом ландшафта — будь то загородный участок в лесу или пригород с зелеными улицами. Яркие фасады и аккуратные архитектурные детали создают уютную и приятную атмосферу, привнося теплоту в домашний очаг.
Таблица: Сравнение ключевых характеристик одноэтажного дома 7x16
| Параметр | Значение | Пояснения |
|---|---|---|
| Площадь полезная | 245 м² | Оптимальный размер для семьи с 3 спальнями и 3 санузлами |
| Размеры дома | 7 x 16 м | Компактный прямоугольный план для простого строительства и эксплуатации |
| Количество этажей | 1 этаж | Безопасность, удобство, экономия на лестницах |
| Количество спален | 3 | Удобно для семьи из 4-5 человек |
| Количество санузлов | 3 | Комфортное распределение по дому, минимизация очередей |
| Стоимость строительства | 8 666 926 руб. | Адекватный бюджет для качественного дома с практичной планировкой |
Эксплуатация и уход за домом: что важно учесть
После завершения строительства дом требует регулярного ухода, который продлевает срок его службы и сохраняет привлекательный внешний вид. В одноэтажном доме, как 7x16, гораздо проще контролировать состояние кровли, фасадов и инженерных коммуникаций благодаря удобному доступу ко всем частям здания.
Особое внимание следует уделять своевременной проверке и очистке систем отопления и вентиляции, чтобы обеспечить качественный микроклимат в жилых помещениях. Также важно следить за состоянием цокольной части дома и гидроизоляцией, чтобы избежать проникновения влаги и возможных повреждений в зимний период.
Советы по уходу за фасадом и крышей
- Проводить визуальный осмотр фасада не реже двух раз в год.
- Удалять мусор и листовой настил с крыши, чтобы избежать засорения водостоков.
- При необходимости подкрашивать или обновлять защитные покрытия фасада, особенно если это деревянные элементы.
- Реагировать на механические повреждения немедленно, чтобы избежать распространения дефектов.
Такой комплексный подход к уходу продлит не только эстетическую привлекательность, но и функциональность дома, сделав его надежным домом на многие годы.
Заключение: традиционный одноэтажный дом 7x16 как практичное решение
Строительство одноэтажного дома размером 7x16 метров с полезной площадью 245 м² — это современный взгляд на классические решения. Такой дом выгодно сочетается с функциональностью, комфортом и эстетикой. Он подходит для разных жизненных ситуаций, от семьи с детьми до пожилых пар, обеспечивая удобство и безопасность в повседневной жизни.
Умеренная стоимость строительства при высоком качестве материалов и продуманной планировке делает этот проект особо привлекательным для тех, кто ценит проверенные временем решения и хочет инвестировать в надежное и уютное жилье. Такой дом станет не просто крышей над головой, а настоящим семейным очагом, дарящим тепло и покой на долгие годы.

























