Одноэтажный дом 9x11 - 188.46 м2 за руб.
Планировки
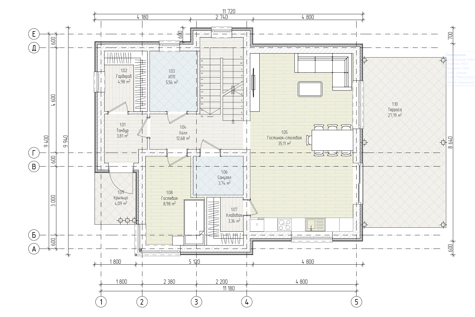
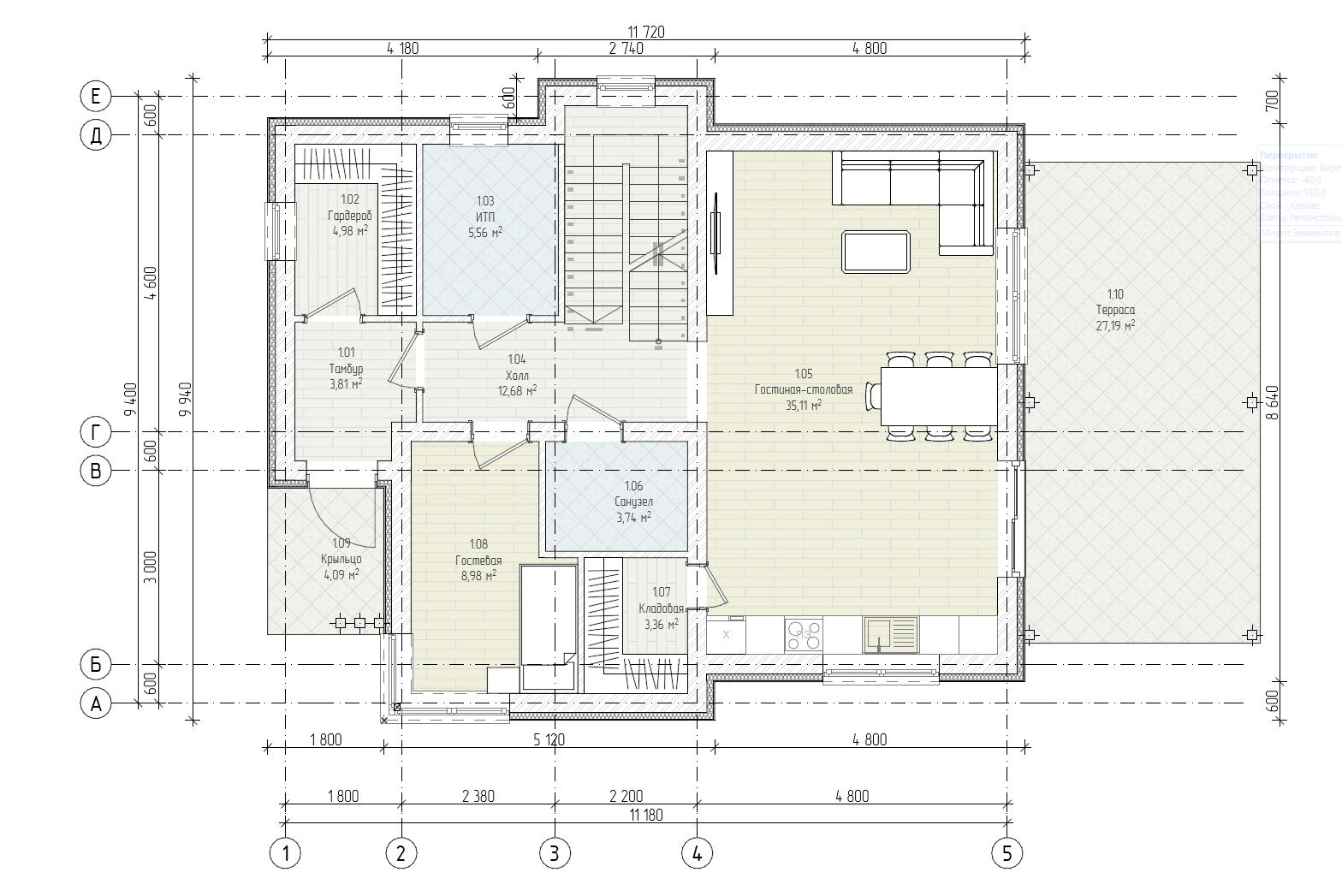
План первого этажа
- 1. Тамбур 3,81 м²
- 2. Гардероб 4,98 м²
- 3. ИТП 5,56 м²
- 4. Холл 12,68 м²
- 5. Гостиная-Столовая-Кухня 35,11 м²
- 6. Санузел 3,74 м²
- 7. Кладовая 3,36 м²
- 8. Комната 8,98 м²
- 9. Крыльцо 4,09 м²
- 10. Терраса 27,19 м²
- Общая площадь первый этаж 109,50 м²
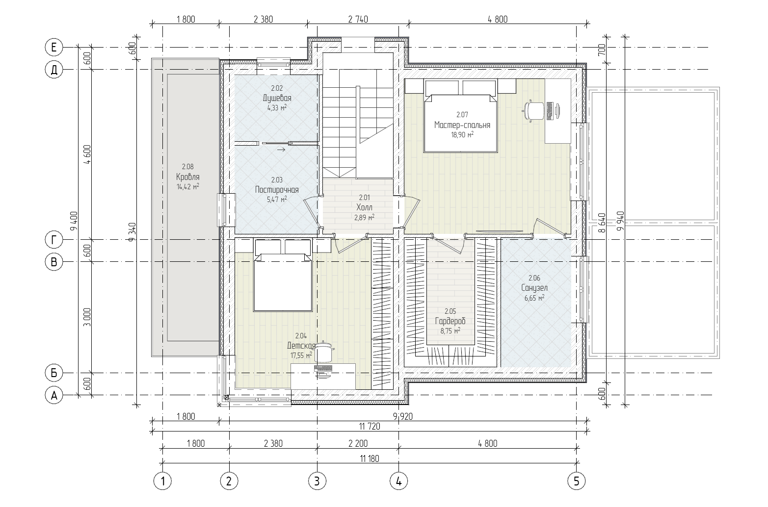
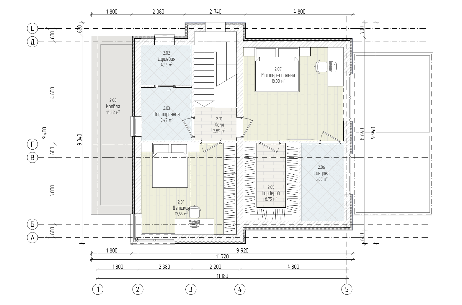
План второго этажа
- 1. Холл 2,89 м²
- 2. Душевая 4,33 м²
- 3. Постирочная 5,47 м²
- 4. Детская 17,55 м²
- 5. Гардероб 8,75 м²
- 6. Санузел 6,65 м²
- 7. Спальня 18,90 м²
- 8. Кровля 14,42 м²
- Общая площадь второй этаж 78,96 м²
Площади дома
| № п/п | Наименование | Ед. из. | Строительная площадь | Полезная площадь |
| 1 | 1 этаж | м2 | 134.94 | 109.5 |
| 2 | 2 этаж | м2 | 97.3 | 78.96 |
| 3 | Итого | м2 | 232.24 | 188.46 |
154 м2
Полезная
площадь
площадь
9 x 11 м
Размеры
1 этаж
Этажей
26 м2
Террасы
и балконы
и балконы
0Без
гаража
гаража
3
Количество
спален
спален
2
Количество
санузлов
санузлов
Калькулятор опций
0₽
В ипотеку от 22 203 ₽/мес.
0₽
0 дней
stdClass Object
(
[id] => 1
[attribute_id] => 1
[name] => Ленточный монолитный ж/б
[material_modifier] => 1
[work_modifier] => 1
[options] => Array
(
[0] => размер 200 х 700 мм
[1] => размер 300 х 900 мм
[2] => размер 400 х 1 000 мм
[3] => размер 500 х 1 100 мм
[4] => размер 600 х 1 200 мм
)
[days] => [20,21,22,25,30]
[material_price] => [2823,3630,4475,5210,12047]
[work_price] => [2154,2826,3731,4577,5293]
[image] => https://akademik-stroy.ru/wp-content/uploads/materials/lentochnyj-monolitnyj-zh-b.jpg
[area_modifier] => 134.94
[parent_name] => Фундамент
[parent_id] => 1
[material_sum] => 479979
[work_sum] => 305194
[total_sum] => 785173
[total_days] => 20
[display_material_sum] => 479 979
[display_work_sum] => 305 194
[display_total_sum] => 785 173
)
1
785 173₽
Работа:305 194 ₽
Материалы:479 979 ₽
Дни:20
stdClass Object
(
[id] => 2
[attribute_id] => 1
[name] => Забивные Ж/Б сваи
[material_modifier] => 1
[work_modifier] => 1
[options] => Array
(
[0] => 150х150х3000мм
[1] => 150х150х4000мм
[2] => 200х200х3000мм
[3] => 200х200х4000мм
[4] => 200х200х5000мм
[5] => 200х200х6000мм
)
[days] => [2,2,2,2,2,2]
[material_price] => [1990,2850,3255,4360,5120,6837]
[work_price] => [1002,1185,1336,1438,1574,1839]
[image] => https://akademik-stroy.ru/wp-content/uploads/materials/zabivnye-zh-b-svai.png
[area_modifier] => 134.94
[parent_name] => Фундамент
[parent_id] => 1
[material_sum] => 338349
[work_sum] => 141970
[total_sum] => 480319
[total_days] => 2
[display_material_sum] => 338 349
[display_work_sum] => 141 970
[display_total_sum] => 480 319
)
1
480 319₽
Работа:141 970 ₽
Материалы:338 349 ₽
Дни:2
stdClass Object
(
[id] => 71
[attribute_id] => 1
[name] => Свайно-ростверковый ж/б
[material_modifier] => 1
[work_modifier] => 1
[options] => Array
(
[0] => ростверк 200х300 мм
[1] => ростверк 300х600 мм
[2] => ростверк 400х900 мм
[3] => ростверк 500х1200 мм
)
[days] => [20,23,25,27]
[material_price] => [3018,3474,7109,9792]
[work_price] => [2024,3012,5635,7022]
[image] => https://akademik-stroy.ru/wp-content/uploads/materials/svajno-rostverkovyj-monolitnyj-zh-b-3.png
[area_modifier] => 134.94
[parent_name] => Фундамент
[parent_id] => 1
[material_sum] => 513134
[work_sum] => 286774
[total_sum] => 799908
[total_days] => 20
[display_material_sum] => 513 134
[display_work_sum] => 286 774
[display_total_sum] => 799 908
)
1
799 908₽
Работа:286 774 ₽
Материалы:513 134 ₽
Дни:20
stdClass Object
(
[id] => 72
[attribute_id] => 1
[name] => Монолитная ж/б плита
[material_modifier] => 1
[work_modifier] => 1
[options] => Array
(
[0] => 200 мм
[1] => 300 мм
[2] => 400 мм
[3] => 500 мм
[4] => 600 мм
)
[days] => [30,33,35,37,40]
[material_price] => [5348,8555,12788,14388,15189]
[work_price] => [4314,4881,7037,8061,10230]
[image] => https://akademik-stroy.ru/wp-content/uploads/materials/monolitnaya-zhb-plita.png
[area_modifier] => 134.94
[parent_name] => Фундамент
[parent_id] => 1
[material_sum] => 909290
[work_sum] => 611238
[total_sum] => 1520528
[total_days] => 30
[display_material_sum] => 909 290
[display_work_sum] => 611 238
[display_total_sum] => 1 520 528
)
1
1 520 528₽
Работа:611 238 ₽
Материалы:909 290 ₽
Дни:30
stdClass Object
(
[id] => 73
[attribute_id] => 1
[name] => Утепленная шведская плита
[material_modifier] => 1
[work_modifier] => 1
[options] => Array
(
[0] => 200 мм
[1] => 300 мм
[2] => 400 мм
[3] => 500 мм
[4] => 600 мм
)
[days] => [32,37,39,42,45]
[material_price] => [10249,12692,13760,14936,16230]
[work_price] => [5960,7337,8072,8878,9765]
[image] => https://akademik-stroy.ru/wp-content/uploads/materials/uteplennaya-shvedskaya-plita.jpg
[area_modifier] => 134.94
[parent_name] => Фундамент
[parent_id] => 1
[material_sum] => 1742580
[work_sum] => 844455
[total_sum] => 2587035
[total_days] => 32
[display_material_sum] => 1 742 580
[display_work_sum] => 844 455
[display_total_sum] => 2 587 035
)
1
2 587 035₽
Работа:844 455 ₽
Материалы:1 742 580 ₽
Дни:32
stdClass Object
(
[id] => 75
[attribute_id] => 1
[name] => Ленточный из ФБС
[material_modifier] => 1
[work_modifier] => 1
[options] => Array
(
[0] => толщ. 300 мм
[1] => толщ. 400 мм
[2] => толщ. 500 мм
[3] => толщ. 600 мм
)
[days] => [20,20,20,20]
[material_price] => [3675,4902,6126,7350]
[work_price] => [2451,3264,4083,4902]
[image] => https://akademik-stroy.ru/wp-content/uploads/materials/lentochnyj-iz-fbs.png
[area_modifier] => 134.94
[parent_name] => Фундамент
[parent_id] => 1
[material_sum] => 624840
[work_sum] => 347275
[total_sum] => 972115
[total_days] => 20
[display_material_sum] => 624 840
[display_work_sum] => 347 275
[display_total_sum] => 972 115
)
1
972 115₽
Работа:347 275 ₽
Материалы:624 840 ₽
Дни:20
stdClass Object
(
[id] => 76
[attribute_id] => 1
[name] => Цокольный этаж из ФБС
[material_modifier] => 1
[work_modifier] => 1
[options] => Array
(
[0] => толщ. 300 мм
[1] => толщ. 400 мм
[2] => толщ. 500 мм
[3] => толщ. 600 мм
)
[days] => [30,32,34,36]
[material_price] => [20916,23299,26680,29060]
[work_price] => [17524,18700,19873,21046]
[image] => https://akademik-stroy.ru/wp-content/uploads/materials/cokolnyj-ehtazh-iz-fbs.jpg
[area_modifier] => 134.94
[parent_name] => Фундамент
[parent_id] => 1
[material_sum] => 3556230
[work_sum] => 2482923
[total_sum] => 6039153
[total_days] => 30
[display_material_sum] => 3 556 230
[display_work_sum] => 2 482 923
[display_total_sum] => 6 039 153
)
1
6 039 153₽
Работа:2 482 923 ₽
Материалы:3 556 230 ₽
Дни:30
stdClass Object
(
[id] => 77
[attribute_id] => 1
[name] => Цокольный этаж монолитный ж/б
[material_modifier] => 1
[work_modifier] => 1
[options] => Array
(
[0] => толщ. 200 мм
[1] => толщ. 300 мм
[2] => толщ. 400 мм
[3] => толщ. 500 мм
[4] => толщ. 600 мм
)
[days] => [40,42,44,46,48]
[material_price] => [25421,29148,32275,35602,37326]
[work_price] => [20441,21907,23375,24841,26306]
[image] => https://akademik-stroy.ru/wp-content/uploads/materials/cokolnyj-etazh-zh-b.jpg
[area_modifier] => 134.94
[parent_name] => Фундамент
[parent_id] => 1
[material_sum] => 4322190
[work_sum] => 2896224
[total_sum] => 7218414
[total_days] => 40
[display_material_sum] => 4 322 190
[display_work_sum] => 2 896 224
[display_total_sum] => 7 218 414
)
1
7 218 414₽
Работа:2 896 224 ₽
Материалы:4 322 190 ₽
Дни:40
stdClass Object
(
[id] => 191
[attribute_id] => 1
[name] => Винтовые сваи
[material_modifier] => 1
[work_modifier] => 1
[options] => Array
(
[0] => 57х200мм
[1] => 76х250мм
[2] => 108х300мм
[3] => 133х350мм
)
[days] => [1,1,2,2]
[material_price] => [1200,1300,1450,1600]
[work_price] => [400,600,900,1100]
[image] => https://akademik-stroy.ru/wp-content/uploads/materials/vintovye-svai.png
[area_modifier] => 134.94
[parent_name] => Фундамент
[parent_id] => 1
[material_sum] => 204029
[work_sum] => 56675
[total_sum] => 260704
[total_days] => 1
[display_material_sum] => 204 029
[display_work_sum] => 56 675
[display_total_sum] => 260 704
)
1
260 704₽
Работа:56 675 ₽
Материалы:204 029 ₽
Дни:1
stdClass Object
(
[id] => 3
[attribute_id] => 2
[name] => Деревянные балки
[material_modifier] => 1
[work_modifier] => 1
[options] => Array
(
[0] => без утепления
[1] => утепление 200 мм
[2] => утепление 250 мм
[3] => утепление 300 мм
[4] => утепление 350 мм
[5] => утепление 400 мм
[6] => утепление 450 мм
[7] => утепление 500 мм
)
[days] => [8,9,9,9,11,12,13,14]
[material_price] => [1634,2042,2344,2947,3149,3652,3354,3557]
[work_price] => [1230,1339,1393,1426,1460,1513,1587,1620]
[image] => https://akademik-stroy.ru/wp-content/uploads/materials/derevyannye-balki.png
[area_modifier] => 134.94
[parent_name] => Перекрытие цоколя
[parent_id] => 2
[material_sum] => 277820
[work_sum] => 174275
[total_sum] => 452095
[total_days] => 8
[display_material_sum] => 277 820
[display_work_sum] => 174 275
[display_total_sum] => 452 095
)
1
452 095₽
Работа:174 275 ₽
Материалы:277 820 ₽
Дни:8
stdClass Object
(
[id] => 4
[attribute_id] => 2
[name] => Сборные ж/б плиты
[material_modifier] => 1
[work_modifier] => 1
[options] => Array
(
[0] => без утепления
[1] => утепление 150мм
[2] => утепление 200мм
[3] => утепление 250мм
[4] => утепление 300мм
[5] => утепление 350мм
[6] => утепление 400мм
[7] => утепление 450мм
[8] => утепление 500мм
)
[days] => [13,15,15,15,15,15,15,15,15]
[material_price] => [3067,5577,5928,6679,7730,8782,9833,10884,11935]
[work_price] => [1520,1956,2102,2247,2392,2537,2684,2829,2974]
[image] => https://akademik-stroy.ru/wp-content/uploads/materials/sbornye-zh-b-plity-2.jpg
[area_modifier] => 134.94
[parent_name] => Перекрытие цоколя
[parent_id] => 2
[material_sum] => 521465
[work_sum] => 215364
[total_sum] => 736829
[total_days] => 13
[display_material_sum] => 521 465
[display_work_sum] => 215 364
[display_total_sum] => 736 829
)
1
736 829₽
Работа:215 364 ₽
Материалы:521 465 ₽
Дни:13
stdClass Object
(
[id] => 78
[attribute_id] => 2
[name] => Монолитная ж/б плита
[material_modifier] => 1
[work_modifier] => 1
[options] => Array
(
[0] => без утепления
[1] => утепление 150 мм
[2] => утепление 200 мм
[3] => утепление 250 мм
[4] => утепление 300 мм
[5] => утепление 350 мм
[6] => утепление 400 мм
[7] => утепление 450 мм
[8] => утепление 500 мм
)
[days] => [18,20,20,20,20,20,20,20,20]
[material_price] => [4837,6572,7224,7375,79426,8177,8728,9180,10031]
[work_price] => [3348,3921,4112,4302,4493,4684,4875,5066,5256]
[image] => https://akademik-stroy.ru/wp-content/uploads/materials/monolitnaya-zh-b-plita-2.jpg
[area_modifier] => 134.94
[parent_name] => Перекрытие цоколя
[parent_id] => 2
[material_sum] => 822408
[work_sum] => 474368
[total_sum] => 1296776
[total_days] => 18
[display_material_sum] => 822 408
[display_work_sum] => 474 368
[display_total_sum] => 1 296 776
)
1
1 296 776₽
Работа:474 368 ₽
Материалы:822 408 ₽
Дни:18
stdClass Object
(
[id] => 6
[attribute_id] => 3
[name] => Пеноблок
[material_modifier] => 1
[work_modifier] => 1
[options] => Array
(
[0] => 300 мм
[1] => 400 мм
[2] => 500 мм
[3] => 600 мм
)
[days] => [29,31,34,39]
[material_price] => [3000,4000,4500,4937]
[work_price] => [5033,5805,6400,8710]
[image] => https://akademik-stroy.ru/wp-content/uploads/materials/penoblok.jpg
[area_modifier] => 134.94
[parent_name] => Стены 1 этаж (несущие)
[parent_id] => 3
[material_sum] => 510073
[work_sum] => 713111
[total_sum] => 1223184
[total_days] => 29
[display_material_sum] => 510 073
[display_work_sum] => 713 111
[display_total_sum] => 1 223 184
)
1
1 223 184₽
Работа:713 111 ₽
Материалы:510 073 ₽
Дни:29
stdClass Object
(
[id] => 79
[attribute_id] => 3
[name] => Керамический блок
[material_modifier] => 1
[work_modifier] => 1
[options] => Array
(
[0] => 380 мм
[1] => 380 мм Thermo
[2] => 440 мм
[3] => 510 мм
)
[days] => [23,23,24,25]
[material_price] => [4510,5098,6093,8013]
[work_price] => [4737,4937,5903,6958]
[image] => https://akademik-stroy.ru/wp-content/uploads/materials/keramicheskij-blok.jpg
[area_modifier] => 134.94
[parent_name] => Стены 1 этаж (несущие)
[parent_id] => 3
[material_sum] => 766810
[work_sum] => 671171
[total_sum] => 1437981
[total_days] => 23
[display_material_sum] => 766 810
[display_work_sum] => 671 171
[display_total_sum] => 1 437 981
)
1
1 437 981₽
Работа:671 171 ₽
Материалы:766 810 ₽
Дни:23
stdClass Object
(
[id] => 80
[attribute_id] => 3
[name] => Кирпич
[material_modifier] => 1
[work_modifier] => 1
[options] => Array
(
[0] => Кирпич 250 мм
[1] => Кирпич 380 мм
[2] => Кирпич 510 мм
[3] => Кирпич 640 мм
[4] => Кирпич 770 мм
)
[days] => [30,30,31,33,36]
[material_price] => [5500,7142,9206,10171,12235]
[work_price] => [8736,10041,12018,15240,18462]
[image] => https://akademik-stroy.ru/wp-content/uploads/materials/kirpich.jpg
[area_modifier] => 134.94
[parent_name] => Стены 1 этаж (несущие)
[parent_id] => 3
[material_sum] => 935134
[work_sum] => 1237778
[total_sum] => 2172912
[total_days] => 30
[display_material_sum] => 935 134
[display_work_sum] => 1 237 778
[display_total_sum] => 2 172 912
)
1
2 172 912₽
Работа:1 237 778 ₽
Материалы:935 134 ₽
Дни:30
stdClass Object
(
[id] => 81
[attribute_id] => 3
[name] => Монолитные
[material_modifier] => 1
[work_modifier] => 1
[options] => Array
(
[0] => 150 мм
[1] => 200 мм
[2] => 250 мм
[3] => 300 мм
[4] => 350 мм
[5] => 400 мм
)
[days] => [45,46,47,49,50,53]
[material_price] => [6545,7876,10175,12011,13908,15204]
[work_price] => [5106,6444,7698,8552,9807,11461]
[image] => https://akademik-stroy.ru/wp-content/uploads/materials/monolitnye.jpg
[area_modifier] => 134.94
[parent_name] => Стены 1 этаж (несущие)
[parent_id] => 3
[material_sum] => 1112810
[work_sum] => 723454
[total_sum] => 1836264
[total_days] => 45
[display_material_sum] => 1 112 810
[display_work_sum] => 723 454
[display_total_sum] => 1 836 264
)
1
1 836 264₽
Работа:723 454 ₽
Материалы:1 112 810 ₽
Дни:45
stdClass Object
(
[id] => 82
[attribute_id] => 3
[name] => Клееный брус
[material_modifier] => 1
[work_modifier] => 1
[options] => Array
(
[0] => 160 мм
[1] => 175 мм
[2] => 200 мм
[3] => 215 мм
[4] => 240 мм
[5] => 270 мм
[6] => 282 мм
)
[days] => [24,28,32,37,40,42,48]
[material_price] => [16975,18773,19950,20545,21599,22159,23275]
[work_price] => [4806,5287,5815,6397,7036,7740,8514]
[image] => https://akademik-stroy.ru/wp-content/uploads/materials/kleenyj-brus.jpg
[area_modifier] => 134.94
[parent_name] => Стены 1 этаж (несущие)
[parent_id] => 3
[material_sum] => 2886164
[work_sum] => 680948
[total_sum] => 3567112
[total_days] => 24
[display_material_sum] => 2 886 164
[display_work_sum] => 680 948
[display_total_sum] => 3 567 112
)
1
3 567 112₽
Работа:680 948 ₽
Материалы:2 886 164 ₽
Дни:24
stdClass Object
(
[id] => 83
[attribute_id] => 3
[name] => Каркасные
[material_modifier] => 1
[work_modifier] => 1
[options] => Array
(
[0] => 150 мм
[1] => 200 мм
[2] => 250 мм
[3] => 300 мм
)
[days] => [15,16,17,18]
[material_price] => [2379,2639,2898,3258]
[work_price] => [2418,2686,2985,3716]
[image] => https://akademik-stroy.ru/wp-content/uploads/materials/karkasnye.jpg
[area_modifier] => 134.94
[parent_name] => Стены 1 этаж (несущие)
[parent_id] => 3
[material_sum] => 404488
[work_sum] => 342599
[total_sum] => 747087
[total_days] => 15
[display_material_sum] => 404 488
[display_work_sum] => 342 599
[display_total_sum] => 747 087
)
1
747 087₽
Работа:342 599 ₽
Материалы:404 488 ₽
Дни:15
stdClass Object
(
[id] => 84
[attribute_id] => 3
[name] => СИП-панели
[material_modifier] => 1
[work_modifier] => 1
[options] => Array
(
[0] => 120 мм
[1] => 170 мм
[2] => 220 мм
)
[days] => [7,7,7]
[material_price] => [1210,1856,2292]
[work_price] => [1410,1551,1706]
[image] => https://akademik-stroy.ru/wp-content/uploads/materials/sip-paneli.jpg
[area_modifier] => 134.94
[parent_name] => Стены 1 этаж (несущие)
[parent_id] => 3
[material_sum] => 205730
[work_sum] => 199779
[total_sum] => 405509
[total_days] => 7
[display_material_sum] => 205 730
[display_work_sum] => 199 779
[display_total_sum] => 405 509
)
1
405 509₽
Работа:199 779 ₽
Материалы:205 730 ₽
Дни:7
stdClass Object
(
[id] => 85
[attribute_id] => 3
[name] => Сухой брус
[material_modifier] => 1
[work_modifier] => 1
[options] => Array
(
[0] => 150 мм
[1] => 180 мм
[2] => 200 мм
)
[days] => [7,8,9]
[material_price] => [6010,7190,8709]
[work_price] => [3204,3845,4229]
[image] => https://akademik-stroy.ru/wp-content/uploads/materials/suhoj-brus.jpg
[area_modifier] => 134.94
[parent_name] => Стены 1 этаж (несущие)
[parent_id] => 3
[material_sum] => 1021847
[work_sum] => 453965
[total_sum] => 1475812
[total_days] => 7
[display_material_sum] => 1 021 847
[display_work_sum] => 453 965
[display_total_sum] => 1 475 812
)
1
1 475 812₽
Работа:453 965 ₽
Материалы:1 021 847 ₽
Дни:7
stdClass Object
(
[id] => 86
[attribute_id] => 3
[name] => Профилированный брус
[material_modifier] => 1
[work_modifier] => 1
[options] => Array
(
[0] => 150 мм
[1] => 180 мм
[2] => 200 мм
)
[days] => [7,8,9]
[material_price] => [8190,9228,10051]
[work_price] => [3845,4614,5075]
[image] => https://akademik-stroy.ru/wp-content/uploads/materials/profilirovannyj-brus.jpg
[area_modifier] => 134.94
[parent_name] => Стены 1 этаж (несущие)
[parent_id] => 3
[material_sum] => 1392500
[work_sum] => 544787
[total_sum] => 1937287
[total_days] => 7
[display_material_sum] => 1 392 500
[display_work_sum] => 544 787
[display_total_sum] => 1 937 287
)
1
1 937 287₽
Работа:544 787 ₽
Материалы:1 392 500 ₽
Дни:7
stdClass Object
(
[id] => 87
[attribute_id] => 3
[name] => Оцилиндрованное бревно
[material_modifier] => 1
[work_modifier] => 1
[options] => Array
(
[0] => 180 мм
[1] => 220 мм
[2] => 260 мм
[3] => 320 мм
)
[days] => [7,8,9,10]
[material_price] => [75190,9532,10868,13116]
[work_price] => [3845,4691,5535,6863]
[image] => https://akademik-stroy.ru/wp-content/uploads/materials/ocilindrovannoe-brevno-1.jpg
[area_modifier] => 134.94
[parent_name] => Стены 1 этаж (несущие)
[parent_id] => 3
[material_sum] => 12784135
[work_sum] => 544787
[total_sum] => 13328922
[total_days] => 7
[display_material_sum] => 12 784 135
[display_work_sum] => 544 787
[display_total_sum] => 13 328 922
)
1
13 328 922₽
Работа:544 787 ₽
Материалы:12 784 135 ₽
Дни:7
stdClass Object
(
[id] => 88
[attribute_id] => 3
[name] => Срубы
[material_modifier] => 1
[work_modifier] => 1
[options] => Array
(
[0] => 260 мм
[1] => 320 мм
[2] => 360 мм
[3] => 400 мм
[4] => 500 мм
)
[days] => [7,8,9,10,11]
[material_price] => [37975,46709,52314,58069,73167]
[work_price] => [4806,5911,6621,7349,9260]
[image] => https://akademik-stroy.ru/wp-content/uploads/materials/sruby.jpg
[area_modifier] => 134.94
[parent_name] => Стены 1 этаж (несущие)
[parent_id] => 3
[material_sum] => 6456677
[work_sum] => 680948
[total_sum] => 7137625
[total_days] => 7
[display_material_sum] => 6 456 677
[display_work_sum] => 680 948
[display_total_sum] => 7 137 625
)
1
7 137 625₽
Работа:680 948 ₽
Материалы:6 456 677 ₽
Дни:7
stdClass Object
(
[id] => 174
[attribute_id] => 3
[name] => Брус
[material_modifier] => 1
[work_modifier] => 1
[options] => Array
(
[0] => 150 мм
[1] => 180 мм
[2] => 200 мм
)
[days] => [7,8,9]
[material_price] => [5127,6152,7367]
[work_price] => [1602,1922,2115]
[image] => https://akademik-stroy.ru/wp-content/uploads/materials/brus.jpg
[area_modifier] => 134.94
[parent_name] => Стены 1 этаж (несущие)
[parent_id] => 3
[material_sum] => 871715
[work_sum] => 226983
[total_sum] => 1098698
[total_days] => 7
[display_material_sum] => 871 715
[display_work_sum] => 226 983
[display_total_sum] => 1 098 698
)
1
1 098 698₽
Работа:226 983 ₽
Материалы:871 715 ₽
Дни:7
stdClass Object
(
[id] => 175
[attribute_id] => 3
[name] => Газобетон
[material_modifier] => 1
[work_modifier] => 1
[options] => Array
(
[0] => 300 мм
[1] => 375 мм
[2] => 400 мм
[3] => 500 мм
[4] => 600 мм
)
[days] => [29,31,35,37,44]
[material_price] => [4298,5573,6356,7288,9119]
[work_price] => [4538,5251,5926,6733,7195]
[image] => https://akademik-stroy.ru/wp-content/uploads/materials/gazobeton.jpg
[area_modifier] => 134.94
[parent_name] => Стены 1 этаж (несущие)
[parent_id] => 3
[material_sum] => 730765
[work_sum] => 642976
[total_sum] => 1373741
[total_days] => 29
[display_material_sum] => 730 765
[display_work_sum] => 642 976
[display_total_sum] => 1 373 741
)
1
1 373 741₽
Работа:642 976 ₽
Материалы:730 765 ₽
Дни:29
stdClass Object
(
[id] => 176
[attribute_id] => 3
[name] => Блок
[material_modifier] => 1
[work_modifier] => 1
[options] => Array
(
[0] => 300 мм
[1] => 375 мм
[2] => 400 мм
[3] => 500 мм
[4] => 600 мм
)
[days] => [29,31,35,37,44]
[material_price] => [2698,3973,4356,6588,7119]
[work_price] => [5038,5851,6426,8733,9195]
[image] => https://akademik-stroy.ru/wp-content/uploads/materials/blok.jpg
[area_modifier] => 134.94
[parent_name] => Стены 1 этаж (несущие)
[parent_id] => 3
[material_sum] => 458726
[work_sum] => 713819
[total_sum] => 1172545
[total_days] => 29
[display_material_sum] => 458 726
[display_work_sum] => 713 819
[display_total_sum] => 1 172 545
)
1
1 172 545₽
Работа:713 819 ₽
Материалы:458 726 ₽
Дни:29
stdClass Object
(
[id] => 177
[attribute_id] => 3
[name] => Газосиликатный блок
[material_modifier] => 1
[work_modifier] => 1
[options] => Array
(
[0] => 300 мм
[1] => 375 мм
[2] => 400 мм
[3] => 500 мм
[4] => 600 мм
)
[days] => [29,31,35,37,44]
[material_price] => [4298,5573,6356,7288,9119]
[work_price] => [4538,5251,5926,6733,7195]
[image] => https://akademik-stroy.ru/wp-content/uploads/materials/gazosilikatnyj-blok.jpg
[area_modifier] => 134.94
[parent_name] => Стены 1 этаж (несущие)
[parent_id] => 3
[material_sum] => 730765
[work_sum] => 642976
[total_sum] => 1373741
[total_days] => 29
[display_material_sum] => 730 765
[display_work_sum] => 642 976
[display_total_sum] => 1 373 741
)
1
1 373 741₽
Работа:642 976 ₽
Материалы:730 765 ₽
Дни:29
stdClass Object
(
[id] => 178
[attribute_id] => 3
[name] => Керамзитобетонный блок
[material_modifier] => 1
[work_modifier] => 1
[options] => Array
(
[0] => 300 мм
[1] => 375 мм
[2] => 400 мм
[3] => 500 мм
[4] => 600 мм
)
[days] => [23,23,24,25,28]
[material_price] => [3641,4298,5693,7613,9612]
[work_price] => [5737,5737,6903,7958,8901]
[image] => https://akademik-stroy.ru/wp-content/uploads/materials/keramzitobetonnyj-blok.jpg
[area_modifier] => 134.94
[parent_name] => Стены 1 этаж (несущие)
[parent_id] => 3
[material_sum] => 619059
[work_sum] => 812858
[total_sum] => 1431917
[total_days] => 23
[display_material_sum] => 619 059
[display_work_sum] => 812 858
[display_total_sum] => 1 431 917
)
1
1 431 917₽
Работа:812 858 ₽
Материалы:619 059 ₽
Дни:23
stdClass Object
(
[id] => 179
[attribute_id] => 3
[name] => Деревянные
[material_modifier] => 1
[work_modifier] => 1
[options] => Array
(
[0] => 180 мм
[1] => 220 мм
[2] => 260 мм
[3] => 320 мм
)
[days] => [7,8,9,10]
[material_price] => [7950,9458,11961,14472]
[work_price] => [4037,4925,5812,7207]
[image] => https://akademik-stroy.ru/wp-content/uploads/materials/derevyannye.jpg
[area_modifier] => 134.94
[parent_name] => Стены 1 этаж (несущие)
[parent_id] => 3
[material_sum] => 1351694
[work_sum] => 571990
[total_sum] => 1923684
[total_days] => 7
[display_material_sum] => 1 351 694
[display_work_sum] => 571 990
[display_total_sum] => 1 923 684
)
1
1 923 684₽
Работа:571 990 ₽
Материалы:1 351 694 ₽
Дни:7
stdClass Object
(
[id] => 181
[attribute_id] => 3
[name] => Камень
[material_modifier] => 1
[work_modifier] => 1
[options] => Array
(
[0] => 300 мм
[1] => 400 мм
[2] => 500 мм
[3] => 600 мм
)
[days] => [25,27,31,34]
[material_price] => [5262,6844,8330,9815]
[work_price] => [8331,9135,10427,11069]
[image] => https://akademik-stroy.ru/wp-content/uploads/materials/kamen.jpg
[area_modifier] => 134.94
[parent_name] => Стены 1 этаж (несущие)
[parent_id] => 3
[material_sum] => 894668
[work_sum] => 1180394
[total_sum] => 2075062
[total_days] => 25
[display_material_sum] => 894 668
[display_work_sum] => 1 180 394
[display_total_sum] => 2 075 062
)
1
2 075 062₽
Работа:1 180 394 ₽
Материалы:894 668 ₽
Дни:25
stdClass Object
(
[id] => 182
[attribute_id] => 3
[name] => Каркасно-щитовые
[material_modifier] => 1
[work_modifier] => 1
[options] => Array
(
[0] => 150 мм
[1] => 200 мм
[2] => 250 мм
[3] => 300 мм
[4] => 350 мм
[5] => 400 мм
)
[days] => [15,16,17,18,19,20]
[material_price] => [2379,2639,2898,3458,3601,4175]
[work_price] => [2538,2820,3134,3483,4062,5642]
[image] => https://akademik-stroy.ru/wp-content/uploads/materials/karkasno-shchitovye.jpg
[area_modifier] => 134.94
[parent_name] => Стены 1 этаж (несущие)
[parent_id] => 3
[material_sum] => 404488
[work_sum] => 359602
[total_sum] => 764090
[total_days] => 15
[display_material_sum] => 404 488
[display_work_sum] => 359 602
[display_total_sum] => 764 090
)
1
764 090₽
Работа:359 602 ₽
Материалы:404 488 ₽
Дни:15
stdClass Object
(
[id] => 183
[attribute_id] => 3
[name] => Рубленные
[material_modifier] => 1
[work_modifier] => 1
[options] => Array
(
[0] => 150 мм
[1] => 200 мм
[2] => 250 мм
[3] => 300 мм
[4] => 350 мм
[5] => 400 мм
)
[days] => [15,16,17,18,17,18]
[material_price] => [35950,50267,60583,75900,80217,100533]
[work_price] => [9612,12816,16020,19224,22428,25632]
[image] => https://akademik-stroy.ru/wp-content/uploads/materials/rublennye.jpg
[area_modifier] => 134.94
[parent_name] => Стены 1 этаж (несущие)
[parent_id] => 3
[material_sum] => 6112377
[work_sum] => 1361895
[total_sum] => 7474272
[total_days] => 15
[display_material_sum] => 6 112 377
[display_work_sum] => 1 361 895
[display_total_sum] => 7 474 272
)
1
7 474 272₽
Работа:1 361 895 ₽
Материалы:6 112 377 ₽
Дни:15
stdClass Object
(
[id] => 185
[attribute_id] => 3
[name] => Теплоблок
[material_modifier] => 1
[work_modifier] => 1
[options] => Array
(
[0] => 300 мм (с облицовкой, не покрашенный)
[1] => 400 мм (с облицовкой, не покрашенный)
[2] => 300 мм (с облицовкой, покрашенный)
[3] => 400 мм (с облицовкой, покрашенный)
)
[days] => [15,16,15,16]
[material_price] => [2888,3729,3957,4258]
[work_price] => [2564,3229,2949,3713]
[image] => https://akademik-stroy.ru/wp-content/uploads/materials/teploblok.jpg
[area_modifier] => 134.94
[parent_name] => Стены 1 этаж (несущие)
[parent_id] => 3
[material_sum] => 491030
[work_sum] => 363285
[total_sum] => 854315
[total_days] => 15
[display_material_sum] => 491 030
[display_work_sum] => 363 285
[display_total_sum] => 854 315
)
1
854 315₽
Работа:363 285 ₽
Материалы:491 030 ₽
Дни:15
stdClass Object
(
[id] => 186
[attribute_id] => 3
[name] => Арболитовые блоки
[material_modifier] => 1
[work_modifier] => 1
[options] => Array
(
[0] => 300 мм
[1] => 400 мм
[2] => 600 мм
)
[days] => [19,22,27]
[material_price] => [3210,4475,5852]
[work_price] => [4214,4788,5866]
[image] => https://akademik-stroy.ru/wp-content/uploads/materials/arbolitovye-bloki.png
[area_modifier] => 134.94
[parent_name] => Стены 1 этаж (несущие)
[parent_id] => 3
[material_sum] => 545778
[work_sum] => 597069
[total_sum] => 1142847
[total_days] => 19
[display_material_sum] => 545 778
[display_work_sum] => 597 069
[display_total_sum] => 1 142 847
)
1
1 142 847₽
Работа:597 069 ₽
Материалы:545 778 ₽
Дни:19
stdClass Object
(
[id] => 187
[attribute_id] => 3
[name] => Полистиролбетон
[material_modifier] => 1
[work_modifier] => 1
[options] => Array
(
[0] => 300 мм
[1] => 400 мм
[2] => 600 мм
)
[days] => [29,31,35]
[material_price] => [2798,4573,5256]
[work_price] => [5038,5851,6426]
[image] => https://akademik-stroy.ru/wp-content/uploads/materials/polistirolbeton.jpg
[area_modifier] => 134.94
[parent_name] => Стены 1 этаж (несущие)
[parent_id] => 3
[material_sum] => 475728
[work_sum] => 713819
[total_sum] => 1189547
[total_days] => 29
[display_material_sum] => 475 728
[display_work_sum] => 713 819
[display_total_sum] => 1 189 547
)
1
1 189 547₽
Работа:713 819 ₽
Материалы:475 728 ₽
Дни:29
stdClass Object
(
[id] => 188
[attribute_id] => 3
[name] => Шлакоблок
[material_modifier] => 1
[work_modifier] => 1
[options] => Array
(
[0] => 400 мм
[1] => 600 мм
)
[days] => [15,16]
[material_price] => [2391,3471]
[work_price] => [2642,3662]
[image] => https://akademik-stroy.ru/wp-content/uploads/materials/shlakoblok.jpg
[area_modifier] => 134.94
[parent_name] => Стены 1 этаж (несущие)
[parent_id] => 3
[material_sum] => 406528
[work_sum] => 374337
[total_sum] => 780865
[total_days] => 15
[display_material_sum] => 406 528
[display_work_sum] => 374 337
[display_total_sum] => 780 865
)
1
780 865₽
Работа:374 337 ₽
Материалы:406 528 ₽
Дни:15
stdClass Object
(
[id] => 189
[attribute_id] => 3
[name] => Теплая керамика
[material_modifier] => 1
[work_modifier] => 1
[options] => Array
(
[0] => 380 мм
[1] => 380 мм Thermo
[2] => 440 мм
[3] => 510 мм
)
[days] => [23,23,24,25]
[material_price] => [4510,5098,6093,8013]
[work_price] => [4737,4937,5903,6958]
[image] => https://akademik-stroy.ru/wp-content/uploads/materials/teplaya-keramika.jpg
[area_modifier] => 134.94
[parent_name] => Стены 1 этаж (несущие)
[parent_id] => 3
[material_sum] => 766810
[work_sum] => 671171
[total_sum] => 1437981
[total_days] => 23
[display_material_sum] => 766 810
[display_work_sum] => 671 171
[display_total_sum] => 1 437 981
)
1
1 437 981₽
Работа:671 171 ₽
Материалы:766 810 ₽
Дни:23
stdClass Object
(
[id] => 190
[attribute_id] => 3
[name] => Несъемная опалубка
[material_modifier] => 1
[work_modifier] => 1
[options] => Array
(
[0] => 200 мм
[1] => 250 мм
[2] => 300 мм
[3] => 350 мм
)
[days] => [15,17,19,21]
[material_price] => [3302,3902,4108,5008]
[work_price] => [2100,2100,2300,2534]
[image] => https://akademik-stroy.ru/wp-content/uploads/materials/nesemnaya-opalubka.jpg
[area_modifier] => 134.94
[parent_name] => Стены 1 этаж (несущие)
[parent_id] => 3
[material_sum] => 561421
[work_sum] => 297543
[total_sum] => 858964
[total_days] => 15
[display_material_sum] => 561 421
[display_work_sum] => 297 543
[display_total_sum] => 858 964
)
1
858 964₽
Работа:297 543 ₽
Материалы:561 421 ₽
Дни:15
stdClass Object
(
[id] => 251
[attribute_id] => 3
[name] => Бревно
[material_modifier] => 1
[work_modifier] => 1
[options] => Array
(
[0] => 260 мм
[1] => 320 мм
[2] => 360 мм
[3] => 400 мм
[4] => 500 мм
)
[days] => [7,8,9,10,11]
[material_price] => [1874,24045,26930,30972,38825]
[work_price] => [5046,6207,6952,7716,9723]
[image] => https://akademik-stroy.ru/wp-content/uploads/materials/sruby.jpg
[area_modifier] => 134.94
[parent_name] => Стены 1 этаж (несущие)
[parent_id] => 3
[material_sum] => 318626
[work_sum] => 714953
[total_sum] => 1033579
[total_days] => 7
[display_material_sum] => 318 626
[display_work_sum] => 714 953
[display_total_sum] => 1 033 579
)
1
1 033 579₽
Работа:714 953 ₽
Материалы:318 626 ₽
Дни:7
stdClass Object
(
[id] => 7
[attribute_id] => 4
[name] => Деревянные балки
[material_modifier] => 1
[work_modifier] => 1
[options] => Array
(
[0] => без утепления
[1] => утепление 200 мм
[2] => утепление 250 мм
[3] => утепление 300 мм
[4] => утепление 350 мм
[5] => утепление 400 мм
[6] => утепление 450 мм
[7] => утепление 500 мм
)
[days] => [8,9,9,9,11,12,13,14]
[material_price] => [1634,2042,2344,2947,3149,3652,3354,3557]
[work_price] => [1230,1339,1393,1426,1460,1513,1587,1620]
[image] => https://akademik-stroy.ru/wp-content/uploads/materials/derevyannye-balki.png
[area_modifier] => 134.94
[parent_name] => Перекрытие первого этажа
[parent_id] => 4
[material_sum] => 277820
[work_sum] => 174275
[total_sum] => 452095
[total_days] => 8
[display_material_sum] => 277 820
[display_work_sum] => 174 275
[display_total_sum] => 452 095
)
1
452 095₽
Работа:174 275 ₽
Материалы:277 820 ₽
Дни:8
stdClass Object
(
[id] => 8
[attribute_id] => 4
[name] => Сборные ж/б плиты
[material_modifier] => 1
[work_modifier] => 1
[options] => Array
(
[0] => без утепления
[1] => утепление 150 мм
[2] => утепление 200 мм
[3] => утепление 250 мм
[4] => утепление 300 мм
[5] => утепление 350 мм
[6] => утепление 400 мм
[7] => утепление 450 мм
[8] => утепление 500 мм
)
[days] => [13,15,15,15,15,15,15,15,15]
[material_price] => [3067,5577,5928,6679,7730,8782,9833,10884,11935]
[work_price] => [1520,1956,2102,2247,2392,2537,2684,2829,2974]
[image] => https://akademik-stroy.ru/wp-content/uploads/materials/sbornye-zh-b-plity-2.jpg
[area_modifier] => 134.94
[parent_name] => Перекрытие первого этажа
[parent_id] => 4
[material_sum] => 521465
[work_sum] => 215364
[total_sum] => 736829
[total_days] => 13
[display_material_sum] => 521 465
[display_work_sum] => 215 364
[display_total_sum] => 736 829
)
1
736 829₽
Работа:215 364 ₽
Материалы:521 465 ₽
Дни:13
stdClass Object
(
[id] => 89
[attribute_id] => 4
[name] => Монолитная ж/б плита
[material_modifier] => 1
[work_modifier] => 1
[options] => Array
(
[0] => без утепления
[1] => утепление 150 мм
[2] => утепление 200 мм
[3] => утепление 250 мм
[4] => утепление 300 мм
[5] => утепление 350 мм
[6] => утепление 400 мм
[7] => утепление 450 мм
[8] => утепление 500 мм
)
[days] => [18,20,20,20,20,20,20,20,20]
[material_price] => [4837,6572,7224,7375,79426,8177,8728,9180,10031]
[work_price] => [3348,3921,4112,4302,4493,4684,4875,5066,5256]
[image] => https://akademik-stroy.ru/wp-content/uploads/materials/monolitnaya-zh-b-plita-2.jpg
[area_modifier] => 134.94
[parent_name] => Перекрытие первого этажа
[parent_id] => 4
[material_sum] => 822408
[work_sum] => 474368
[total_sum] => 1296776
[total_days] => 18
[display_material_sum] => 822 408
[display_work_sum] => 474 368
[display_total_sum] => 1 296 776
)
1
1 296 776₽
Работа:474 368 ₽
Материалы:822 408 ₽
Дни:18
stdClass Object
(
[id] => 10
[attribute_id] => 5
[name] => Пеноблок
[material_modifier] => 1
[work_modifier] => 1
[options] => Array
(
[0] => 300 мм
[1] => 400 мм
[2] => 500 мм
[3] => 600 мм
)
[days] => [29,31,34,39]
[material_price] => [3000,4000,4500,4937]
[work_price] => [5033,5805,6400,8710]
[image] => https://akademik-stroy.ru/wp-content/uploads/materials/penoblok.jpg
[area_modifier] => 97.3
[parent_name] => Стены 2 этаж (несущие)
[parent_id] => 5
[material_sum] => 367794
[work_sum] => 514196
[total_sum] => 881990
[total_days] => 29
[display_material_sum] => 367 794
[display_work_sum] => 514 196
[display_total_sum] => 881 990
)
1
881 990₽
Работа:514 196 ₽
Материалы:367 794 ₽
Дни:29
stdClass Object
(
[id] => 90
[attribute_id] => 5
[name] => Керамический блок
[material_modifier] => 1
[work_modifier] => 1
[options] => Array
(
[0] => 380 мм
[1] => 380 мм Thermo
[2] => 440 мм
[3] => 510 мм
)
[days] => [23,23,24,25]
[material_price] => [4510,5098,6093,8013]
[work_price] => [4737,4937,5903,6958]
[image] => https://akademik-stroy.ru/wp-content/uploads/materials/keramicheskij-blok.jpg
[area_modifier] => 97.3
[parent_name] => Стены 2 этаж (несущие)
[parent_id] => 5
[material_sum] => 552917
[work_sum] => 483956
[total_sum] => 1036873
[total_days] => 23
[display_material_sum] => 552 917
[display_work_sum] => 483 956
[display_total_sum] => 1 036 873
)
1
1 036 873₽
Работа:483 956 ₽
Материалы:552 917 ₽
Дни:23
stdClass Object
(
[id] => 91
[attribute_id] => 5
[name] => Кирпич
[material_modifier] => 1
[work_modifier] => 1
[options] => Array
(
[0] => Кирпич 250 мм
[1] => Кирпич 380 мм
[2] => Кирпич 510 мм
[3] => Кирпич 640 мм
[4] => Кирпич 770 мм
)
[days] => [30,30,31,33,36]
[material_price] => [5500,7142,9206,10171,12235]
[work_price] => [8736,10041,12018,15240,18462]
[image] => https://akademik-stroy.ru/wp-content/uploads/materials/kirpich.jpg
[area_modifier] => 97.3
[parent_name] => Стены 2 этаж (несущие)
[parent_id] => 5
[material_sum] => 674289
[work_sum] => 892513
[total_sum] => 1566802
[total_days] => 30
[display_material_sum] => 674 289
[display_work_sum] => 892 513
[display_total_sum] => 1 566 802
)
1
1 566 802₽
Работа:892 513 ₽
Материалы:674 289 ₽
Дни:30
stdClass Object
(
[id] => 92
[attribute_id] => 5
[name] => Монолитные
[material_modifier] => 1
[work_modifier] => 1
[options] => Array
(
[0] => 150 мм
[1] => 200 мм
[2] => 250 мм
[3] => 300 мм
[4] => 350 мм
[5] => 400 мм
)
[days] => [45,46,47,49,50,53]
[material_price] => [6545,7876,10175,12011,13908,15204]
[work_price] => [5106,6444,7698,8552,9807,11461]
[image] => https://akademik-stroy.ru/wp-content/uploads/materials/monolitnye.jpg
[area_modifier] => 97.3
[parent_name] => Стены 2 этаж (несущие)
[parent_id] => 5
[material_sum] => 802404
[work_sum] => 521654
[total_sum] => 1324058
[total_days] => 45
[display_material_sum] => 802 404
[display_work_sum] => 521 654
[display_total_sum] => 1 324 058
)
1
1 324 058₽
Работа:521 654 ₽
Материалы:802 404 ₽
Дни:45
stdClass Object
(
[id] => 93
[attribute_id] => 5
[name] => Клееный брус
[material_modifier] => 1
[work_modifier] => 1
[options] => Array
(
[0] => 160 мм
[1] => 175 мм
[2] => 200 мм
[3] => 215 мм
[4] => 240 мм
[5] => 270 мм
[6] => 282 мм
)
[days] => [24,28,32,37,40,42,48]
[material_price] => [16975,18773,19950,20545,21599,22159,23275]
[work_price] => [4806,5287,5815,6397,7036,7740,8514]
[image] => https://akademik-stroy.ru/wp-content/uploads/materials/kleenyj-brus.jpg
[area_modifier] => 97.3
[parent_name] => Стены 2 этаж (несущие)
[parent_id] => 5
[material_sum] => 2081101
[work_sum] => 491005
[total_sum] => 2572106
[total_days] => 24
[display_material_sum] => 2 081 101
[display_work_sum] => 491 005
[display_total_sum] => 2 572 106
)
1
2 572 106₽
Работа:491 005 ₽
Материалы:2 081 101 ₽
Дни:24
stdClass Object
(
[id] => 94
[attribute_id] => 5
[name] => Каркасные
[material_modifier] => 1
[work_modifier] => 1
[options] => Array
(
[0] => 150 мм
[1] => 200 мм
[2] => 250 мм
[3] => 300 мм
)
[days] => [15,16,17,18]
[material_price] => [2379,2639,2898,3258]
[work_price] => [2418,2686,2985,3716]
[image] => https://akademik-stroy.ru/wp-content/uploads/materials/karkasnye.jpg
[area_modifier] => 97.3
[parent_name] => Стены 2 этаж (несущие)
[parent_id] => 5
[material_sum] => 291661
[work_sum] => 247035
[total_sum] => 538696
[total_days] => 15
[display_material_sum] => 291 661
[display_work_sum] => 247 035
[display_total_sum] => 538 696
)
1
538 696₽
Работа:247 035 ₽
Материалы:291 661 ₽
Дни:15
stdClass Object
(
[id] => 95
[attribute_id] => 5
[name] => СИП-панели
[material_modifier] => 1
[work_modifier] => 1
[options] => Array
(
[0] => 120 мм
[1] => 170 мм
[2] => 220 мм
)
[days] => [7,7,7]
[material_price] => [1210,1856,2292]
[work_price] => [1410,1551,1706]
[image] => https://akademik-stroy.ru/wp-content/uploads/materials/sip-paneli.jpg
[area_modifier] => 97.3
[parent_name] => Стены 2 этаж (несущие)
[parent_id] => 5
[material_sum] => 148344
[work_sum] => 144053
[total_sum] => 292397
[total_days] => 7
[display_material_sum] => 148 344
[display_work_sum] => 144 053
[display_total_sum] => 292 397
)
1
292 397₽
Работа:144 053 ₽
Материалы:148 344 ₽
Дни:7
stdClass Object
(
[id] => 96
[attribute_id] => 5
[name] => Сухой брус
[material_modifier] => 1
[work_modifier] => 1
[options] => Array
(
[0] => 150 мм
[1] => 180 мм
[2] => 200 мм
)
[days] => [7,8,9]
[material_price] => [6010,7190,8709]
[work_price] => [3204,3845,4229]
[image] => https://akademik-stroy.ru/wp-content/uploads/materials/suhoj-brus.jpg
[area_modifier] => 97.3
[parent_name] => Стены 2 этаж (несущие)
[parent_id] => 5
[material_sum] => 736814
[work_sum] => 327337
[total_sum] => 1064151
[total_days] => 7
[display_material_sum] => 736 814
[display_work_sum] => 327 337
[display_total_sum] => 1 064 151
)
1
1 064 151₽
Работа:327 337 ₽
Материалы:736 814 ₽
Дни:7
stdClass Object
(
[id] => 97
[attribute_id] => 5
[name] => Профилированный брус
[material_modifier] => 1
[work_modifier] => 1
[options] => Array
(
[0] => 150 мм
[1] => 180 мм
[2] => 200 мм
)
[days] => [7,8,9]
[material_price] => [8190,9228,10051]
[work_price] => [3845,4614,5075]
[image] => https://akademik-stroy.ru/wp-content/uploads/materials/profilirovannyj-brus.jpg
[area_modifier] => 97.3
[parent_name] => Стены 2 этаж (несущие)
[parent_id] => 5
[material_sum] => 1004078
[work_sum] => 392824
[total_sum] => 1396902
[total_days] => 7
[display_material_sum] => 1 004 078
[display_work_sum] => 392 824
[display_total_sum] => 1 396 902
)
1
1 396 902₽
Работа:392 824 ₽
Материалы:1 004 078 ₽
Дни:7
stdClass Object
(
[id] => 98
[attribute_id] => 5
[name] => Оцилиндрованное бревно
[material_modifier] => 1
[work_modifier] => 1
[options] => Array
(
[0] => 180 мм
[1] => 220 мм
[2] => 260 мм
[3] => 320 мм
)
[days] => [7,8,9,10]
[material_price] => [75190,9532,10868,13116]
[work_price] => [3845,4691,5535,6863]
[image] => https://akademik-stroy.ru/wp-content/uploads/materials/ocilindrovannoe-brevno-1.jpg
[area_modifier] => 97.3
[parent_name] => Стены 2 этаж (несущие)
[parent_id] => 5
[material_sum] => 9218144
[work_sum] => 392824
[total_sum] => 9610968
[total_days] => 7
[display_material_sum] => 9 218 144
[display_work_sum] => 392 824
[display_total_sum] => 9 610 968
)
1
9 610 968₽
Работа:392 824 ₽
Материалы:9 218 144 ₽
Дни:7
stdClass Object
(
[id] => 99
[attribute_id] => 5
[name] => Срубы
[material_modifier] => 1
[work_modifier] => 1
[options] => Array
(
[0] => 260 мм
[1] => 320 мм
[2] => 360 мм
[3] => 400 мм
[4] => 500 мм
)
[days] => [7,8,9,10,11]
[material_price] => [16175,23709,26314,29069,32167]
[work_price] => [4806,5911,6621,7349,9260]
[image] => https://akademik-stroy.ru/wp-content/uploads/materials/suhoj-brus.jpg
[area_modifier] => 97.3
[parent_name] => Стены 2 этаж (несущие)
[parent_id] => 5
[material_sum] => 1983023
[work_sum] => 491005
[total_sum] => 2474028
[total_days] => 7
[display_material_sum] => 1 983 023
[display_work_sum] => 491 005
[display_total_sum] => 2 474 028
)
1
2 474 028₽
Работа:491 005 ₽
Материалы:1 983 023 ₽
Дни:7
stdClass Object
(
[id] => 194
[attribute_id] => 5
[name] => Брус
[material_modifier] => 1
[work_modifier] => 1
[options] => Array
(
[0] => 150 мм
[1] => 180 мм
[2] => 200 мм
)
[days] => [10,13,15]
[material_price] => [5127,6152,7367]
[work_price] => [1602,1922,2115]
[image] => https://akademik-stroy.ru/wp-content/uploads/materials/brus.jpg
[area_modifier] => 97.3
[parent_name] => Стены 2 этаж (несущие)
[parent_id] => 5
[material_sum] => 628560
[work_sum] => 163668
[total_sum] => 792228
[total_days] => 10
[display_material_sum] => 628 560
[display_work_sum] => 163 668
[display_total_sum] => 792 228
)
1
792 228₽
Работа:163 668 ₽
Материалы:628 560 ₽
Дни:10
stdClass Object
(
[id] => 195
[attribute_id] => 5
[name] => Газобетон
[material_modifier] => 1
[work_modifier] => 1
[options] => Array
(
[0] => 300 мм
[1] => 375 мм
[2] => 400 мм
[3] => 500 мм
[4] => 600 мм
)
[days] => [29,31,35,37,44]
[material_price] => [4298,5573,6356,7288,9119]
[work_price] => [4538,5251,5926,6733,7195]
[image] => https://akademik-stroy.ru/wp-content/uploads/materials/gazobeton.jpg
[area_modifier] => 97.3
[parent_name] => Стены 2 этаж (несущие)
[parent_id] => 5
[material_sum] => 526926
[work_sum] => 463625
[total_sum] => 990551
[total_days] => 29
[display_material_sum] => 526 926
[display_work_sum] => 463 625
[display_total_sum] => 990 551
)
1
990 551₽
Работа:463 625 ₽
Материалы:526 926 ₽
Дни:29
stdClass Object
(
[id] => 196
[attribute_id] => 5
[name] => Блок
[material_modifier] => 1
[work_modifier] => 1
[options] => Array
(
[0] => 300 мм
[1] => 375 мм
[2] => 400 мм
[3] => 500 мм
[4] => 600 мм
)
[days] => [29,31,35,37,44]
[material_price] => [2698,3973,4356,6588,7119]
[work_price] => [5038,5851,6426,8733,9195]
[image] => https://akademik-stroy.ru/wp-content/uploads/materials/blok.jpg
[area_modifier] => 97.3
[parent_name] => Стены 2 этаж (несущие)
[parent_id] => 5
[material_sum] => 330769
[work_sum] => 514707
[total_sum] => 845476
[total_days] => 29
[display_material_sum] => 330 769
[display_work_sum] => 514 707
[display_total_sum] => 845 476
)
1
845 476₽
Работа:514 707 ₽
Материалы:330 769 ₽
Дни:29
stdClass Object
(
[id] => 197
[attribute_id] => 5
[name] => Газосиликатный блок
[material_modifier] => 1
[work_modifier] => 1
[options] => Array
(
[0] => 300 мм
[1] => 375 мм
[2] => 400 мм
[3] => 500 мм
[4] => 600 мм
)
[days] => [29,31,35,37,44]
[material_price] => [4298,5573,6356,7288,9119]
[work_price] => [4538,5251,5926,6733,7195]
[image] => https://akademik-stroy.ru/wp-content/uploads/materials/gazosilikatnyj-blok.jpg
[area_modifier] => 97.3
[parent_name] => Стены 2 этаж (несущие)
[parent_id] => 5
[material_sum] => 526926
[work_sum] => 463625
[total_sum] => 990551
[total_days] => 29
[display_material_sum] => 526 926
[display_work_sum] => 463 625
[display_total_sum] => 990 551
)
1
990 551₽
Работа:463 625 ₽
Материалы:526 926 ₽
Дни:29
stdClass Object
(
[id] => 198
[attribute_id] => 5
[name] => Керамзитобетонный блок
[material_modifier] => 1
[work_modifier] => 1
[options] => Array
(
[0] => 300 мм
[1] => 375 мм
[2] => 400 мм
[3] => 500 мм
[4] => 600 мм
)
[days] => [23,23,24,25,28]
[material_price] => [3641,4298,5693,7613,9612]
[work_price] => [5737,5737,6903,7958,8901]
[image] => https://akademik-stroy.ru/wp-content/uploads/materials/keramzitobetonnyj-blok.jpg
[area_modifier] => 97.3
[parent_name] => Стены 2 этаж (несущие)
[parent_id] => 5
[material_sum] => 446379
[work_sum] => 586121
[total_sum] => 1032500
[total_days] => 23
[display_material_sum] => 446 379
[display_work_sum] => 586 121
[display_total_sum] => 1 032 500
)
1
1 032 500₽
Работа:586 121 ₽
Материалы:446 379 ₽
Дни:23
stdClass Object
(
[id] => 199
[attribute_id] => 5
[name] => Деревянные
[material_modifier] => 1
[work_modifier] => 1
[options] => Array
(
[0] => 180 мм
[1] => 220 мм
[2] => 260 мм
[3] => 320 мм
)
[days] => [7,8,9,10]
[material_price] => [7950,9458,11961,14472]
[work_price] => [4037,4925,5812,7207]
[image] => https://akademik-stroy.ru/wp-content/uploads/materials/derevyannye.jpg
[area_modifier] => 97.3
[parent_name] => Стены 2 этаж (несущие)
[parent_id] => 5
[material_sum] => 974654
[work_sum] => 412440
[total_sum] => 1387094
[total_days] => 7
[display_material_sum] => 974 654
[display_work_sum] => 412 440
[display_total_sum] => 1 387 094
)
1
1 387 094₽
Работа:412 440 ₽
Материалы:974 654 ₽
Дни:7
stdClass Object
(
[id] => 200
[attribute_id] => 5
[name] => Камень
[material_modifier] => 1
[work_modifier] => 1
[options] => Array
(
[0] => 300 мм
[1] => 400 мм
[2] => 500 мм
[3] => 600 мм
)
[days] => [25,27,31,34]
[material_price] => [5262,6844,8330,9815]
[work_price] => [8331,9135,10427,11069]
[image] => https://akademik-stroy.ru/wp-content/uploads/materials/kamen.jpg
[area_modifier] => 97.3
[parent_name] => Стены 2 этаж (несущие)
[parent_id] => 5
[material_sum] => 645111
[work_sum] => 851137
[total_sum] => 1496248
[total_days] => 25
[display_material_sum] => 645 111
[display_work_sum] => 851 137
[display_total_sum] => 1 496 248
)
1
1 496 248₽
Работа:851 137 ₽
Материалы:645 111 ₽
Дни:25
stdClass Object
(
[id] => 201
[attribute_id] => 5
[name] => Каркасно-щитовые
[material_modifier] => 1
[work_modifier] => 1
[options] => Array
(
[0] => 150 мм
[1] => 200 мм
[2] => 250 мм
[3] => 300 мм
[4] => 350 мм
[5] => 400 мм
)
[days] => [15,16,17,18,19,20]
[material_price] => [2379,2639,2898,3458,3601,4175]
[work_price] => [2538,2820,3134,3483,4062,5642]
[image] => https://akademik-stroy.ru/wp-content/uploads/materials/karkasno-shchitovye.jpg
[area_modifier] => 97.3
[parent_name] => Стены 2 этаж (несущие)
[parent_id] => 5
[material_sum] => 291661
[work_sum] => 259295
[total_sum] => 550956
[total_days] => 15
[display_material_sum] => 291 661
[display_work_sum] => 259 295
[display_total_sum] => 550 956
)
1
550 956₽
Работа:259 295 ₽
Материалы:291 661 ₽
Дни:15
stdClass Object
(
[id] => 202
[attribute_id] => 5
[name] => Рубленные
[material_modifier] => 1
[work_modifier] => 1
[options] => Array
(
[0] => 150 мм
[1] => 200 мм
[2] => 250 мм
[3] => 300 мм
[4] => 350 мм
[5] => 400 мм
)
[days] => [15,16,17,18,17,18]
[material_price] => [35950,50267,60583,75900,80217,100533]
[work_price] => [9612,12816,16020,19224,22428,25632]
[image] => https://akademik-stroy.ru/wp-content/uploads/materials/rublennye.jpg
[area_modifier] => 97.3
[parent_name] => Стены 2 этаж (несущие)
[parent_id] => 5
[material_sum] => 4407398
[work_sum] => 982010
[total_sum] => 5389408
[total_days] => 15
[display_material_sum] => 4 407 398
[display_work_sum] => 982 010
[display_total_sum] => 5 389 408
)
1
5 389 408₽
Работа:982 010 ₽
Материалы:4 407 398 ₽
Дни:15
stdClass Object
(
[id] => 203
[attribute_id] => 5
[name] => Теплоблок
[material_modifier] => 1
[work_modifier] => 1
[options] => Array
(
[0] => 300 мм (с облицовкой, не покрашенный)
[1] => 400 мм (с облицовкой, не покрашенный)
[2] => 300 мм (с облицовкой, покрашенный)
[3] => 400 мм (с облицовкой, покрашенный)
)
[days] => [15,16,15,16]
[material_price] => [2888,3729,3957,4258]
[work_price] => [2564,3229,2949,3713]
[image] => https://akademik-stroy.ru/wp-content/uploads/materials/teploblok.jpg
[area_modifier] => 97.3
[parent_name] => Стены 2 этаж (несущие)
[parent_id] => 5
[material_sum] => 354063
[work_sum] => 261951
[total_sum] => 616014
[total_days] => 15
[display_material_sum] => 354 063
[display_work_sum] => 261 951
[display_total_sum] => 616 014
)
1
616 014₽
Работа:261 951 ₽
Материалы:354 063 ₽
Дни:15
stdClass Object
(
[id] => 204
[attribute_id] => 5
[name] => Арболитовые блоки
[material_modifier] => 1
[work_modifier] => 1
[options] => Array
(
[0] => 300 мм
[1] => 400 мм
[2] => 600 мм
)
[days] => [19,22,27]
[material_price] => [3210,4475,5852]
[work_price] => [4214,4788,5866]
[image] => https://akademik-stroy.ru/wp-content/uploads/materials/arbolitovye-bloki.png
[area_modifier] => 97.3
[parent_name] => Стены 2 этаж (несущие)
[parent_id] => 5
[material_sum] => 393540
[work_sum] => 430523
[total_sum] => 824063
[total_days] => 19
[display_material_sum] => 393 540
[display_work_sum] => 430 523
[display_total_sum] => 824 063
)
1
824 063₽
Работа:430 523 ₽
Материалы:393 540 ₽
Дни:19
stdClass Object
(
[id] => 205
[attribute_id] => 5
[name] => Полистиролбетон
[material_modifier] => 1
[work_modifier] => 1
[options] => Array
(
[0] => 300 мм
[1] => 400 мм
[2] => 600 мм
)
[days] => [29,31,35]
[material_price] => [2798,4573,5256]
[work_price] => [5038,5851,6426]
[image] => https://akademik-stroy.ru/wp-content/uploads/materials/polistirolbeton.jpg
[area_modifier] => 97.3
[parent_name] => Стены 2 этаж (несущие)
[parent_id] => 5
[material_sum] => 343029
[work_sum] => 514707
[total_sum] => 857736
[total_days] => 29
[display_material_sum] => 343 029
[display_work_sum] => 514 707
[display_total_sum] => 857 736
)
1
857 736₽
Работа:514 707 ₽
Материалы:343 029 ₽
Дни:29
stdClass Object
(
[id] => 206
[attribute_id] => 5
[name] => Шлакоблок
[material_modifier] => 1
[work_modifier] => 1
[options] => Array
(
[0] => 400 мм
[1] => 600 мм
)
[days] => [15,16]
[material_price] => [2391,3471]
[work_price] => [2642,3662]
[image] => https://akademik-stroy.ru/wp-content/uploads/materials/shlakoblok.jpg
[area_modifier] => 97.3
[parent_name] => Стены 2 этаж (несущие)
[parent_id] => 5
[material_sum] => 293132
[work_sum] => 269920
[total_sum] => 563052
[total_days] => 15
[display_material_sum] => 293 132
[display_work_sum] => 269 920
[display_total_sum] => 563 052
)
1
563 052₽
Работа:269 920 ₽
Материалы:293 132 ₽
Дни:15
stdClass Object
(
[id] => 245
[attribute_id] => 5
[name] => Теплая керамика
[material_modifier] => 1
[work_modifier] => 1
[options] => Array
(
[0] => 380 мм
[1] => 380 мм Thermo
[2] => 440 мм
[3] => 510 мм
)
[days] => [10,10,11,12]
[material_price] => [4510,5098,6093,8013]
[work_price] => [4737,4937,5903,6958]
[image] => https://akademik-stroy.ru/wp-content/uploads/materials/teplaya-keramika.jpg
[area_modifier] => 97.3
[parent_name] => Стены 2 этаж (несущие)
[parent_id] => 5
[material_sum] => 552917
[work_sum] => 483956
[total_sum] => 1036873
[total_days] => 10
[display_material_sum] => 552 917
[display_work_sum] => 483 956
[display_total_sum] => 1 036 873
)
1
1 036 873₽
Работа:483 956 ₽
Материалы:552 917 ₽
Дни:10
stdClass Object
(
[id] => 246
[attribute_id] => 5
[name] => Несъемная опалубка
[material_modifier] => 1
[work_modifier] => 1
[options] => Array
(
[0] => 380 мм
[1] => 380 мм Thermo
[2] => 440 мм
[3] => 510 мм
)
[days] => [10,10,11,12]
[material_price] => [3302,3902,4108,5008]
[work_price] => [2100,2100,2300,2534]
[image] => https://akademik-stroy.ru/wp-content/uploads/materials/nesemnaya-opalubka.jpg
[area_modifier] => 97.3
[parent_name] => Стены 2 этаж (несущие)
[parent_id] => 5
[material_sum] => 404819
[work_sum] => 214547
[total_sum] => 619366
[total_days] => 10
[display_material_sum] => 404 819
[display_work_sum] => 214 547
[display_total_sum] => 619 366
)
1
619 366₽
Работа:214 547 ₽
Материалы:404 819 ₽
Дни:10
stdClass Object
(
[id] => 254
[attribute_id] => 5
[name] => Бревно
[material_modifier] => 1
[work_modifier] => 1
[options] => Array
(
[0] => 260 мм
[1] => 320 мм
[2] => 360 мм
[3] => 400 мм
[4] => 500 мм
)
[days] => [7,8,9,10,11]
[material_price] => [1874,24045,26930,30972,38825]
[work_price] => [5046,6207,6952,7716,9723]
[image] => https://akademik-stroy.ru/wp-content/uploads/materials/sruby.jpg
[area_modifier] => 97.3
[parent_name] => Стены 2 этаж (несущие)
[parent_id] => 5
[material_sum] => 229749
[work_sum] => 515525
[total_sum] => 745274
[total_days] => 7
[display_material_sum] => 229 749
[display_work_sum] => 515 525
[display_total_sum] => 745 274
)
1
745 274₽
Работа:515 525 ₽
Материалы:229 749 ₽
Дни:7
stdClass Object
(
[id] => 11
[attribute_id] => 6
[name] => Деревянные балки
[material_modifier] => 1
[work_modifier] => 1
[options] => Array
(
[0] => без утепления
[1] => утепление 200 мм
[2] => утепление 250 мм
[3] => утепление 300 мм
[4] => утепление 350 мм
[5] => утепление 400 мм
[6] => утепление 450 мм
[7] => утепление 500 мм
)
[days] => [8,9,9,9,11,12,13,14]
[material_price] => [1634,2042,2344,2947,3149,3652,3354,3557]
[work_price] => [1230,1339,1393,1426,1460,1513,1587,1620]
[image] => https://akademik-stroy.ru/wp-content/uploads/materials/derevyannye-balki.png
[area_modifier] => 97.3
[parent_name] => Перекрытие второго этажа
[parent_id] => 6
[material_sum] => 200325
[work_sum] => 125663
[total_sum] => 325988
[total_days] => 8
[display_material_sum] => 200 325
[display_work_sum] => 125 663
[display_total_sum] => 325 988
)
1
325 988₽
Работа:125 663 ₽
Материалы:200 325 ₽
Дни:8
stdClass Object
(
[id] => 12
[attribute_id] => 6
[name] => Сборные ж/б плиты
[material_modifier] => 1
[work_modifier] => 1
[options] => Array
(
[0] => без утепления
[1] => утепление 150 мм
[2] => утепление 200 мм
[3] => утепление 250 мм
[4] => утепление 300 мм
[5] => утепление 350 мм
[6] => утепление 400 мм
[7] => утепление 450 мм
[8] => утепление 500 мм
)
[days] => [13,15,15,15,15,15,15,15,15]
[material_price] => [3067,5577,5928,6679,7730,8782,9833,10884,11935]
[work_price] => [1520,1956,2102,2247,2392,2537,2684,2829,2974]
[image] => https://akademik-stroy.ru/wp-content/uploads/materials/sbornye-zh-b-plity-2.jpg
[area_modifier] => 97.3
[parent_name] => Перекрытие второго этажа
[parent_id] => 6
[material_sum] => 376008
[work_sum] => 155291
[total_sum] => 531299
[total_days] => 13
[display_material_sum] => 376 008
[display_work_sum] => 155 291
[display_total_sum] => 531 299
)
1
531 299₽
Работа:155 291 ₽
Материалы:376 008 ₽
Дни:13
stdClass Object
(
[id] => 100
[attribute_id] => 6
[name] => Монолитная ж/б плита
[material_modifier] => 1
[work_modifier] => 1
[options] => Array
(
[0] => без утепления
[1] => утепление 150 мм
[2] => утепление 200 мм
[3] => утепление 250 мм
[4] => утепление 300 мм
[5] => утепление 350 мм
[6] => утепление 400 мм
[7] => утепление 450 мм
[8] => утепление 500 мм
)
[days] => [18,20,20,20,20,20,20,20,20]
[material_price] => [4837,6572,7224,7375,79426,8177,8728,9180,10031]
[work_price] => [3348,3921,4112,4302,4493,4684,4875,5066,5256]
[image] => https://akademik-stroy.ru/wp-content/uploads/materials/monolitnaya-zh-b-plita-2.jpg
[area_modifier] => 97.3
[parent_name] => Перекрытие второго этажа
[parent_id] => 6
[material_sum] => 593007
[work_sum] => 342048
[total_sum] => 935055
[total_days] => 18
[display_material_sum] => 593 007
[display_work_sum] => 342 048
[display_total_sum] => 935 055
)
1
935 055₽
Работа:342 048 ₽
Материалы:593 007 ₽
Дни:18
stdClass Object
(
[id] => 160
[attribute_id] => 36
[name] => Не эксплуатируемая
[material_modifier] => 1
[work_modifier] => 1
[options] => Array
(
)
[days] => [10]
[material_price] => [8068]
[work_price] => [4163]
[image] => https://akademik-stroy.ru/wp-content/uploads/materials/ne-ehkspluatiruemaya-3.jpg
[area_modifier] => 134.94
[parent_name] => Плоская крыша
[parent_id] => 36
[material_sum] => 1371757
[work_sum] => 589843
[total_sum] => 1961600
[total_days] => 10
[display_material_sum] => 1 371 757
[display_work_sum] => 589 843
[display_total_sum] => 1 961 600
)
1
1 961 600₽
Работа:589 843 ₽
Материалы:1 371 757 ₽
Дни:10
stdClass Object
(
[id] => 161
[attribute_id] => 36
[name] => Зеленая кровля (Эксплуатируемая)
[material_modifier] => 1
[work_modifier] => 1
[options] => Array
(
)
[days] => [10]
[material_price] => [10056]
[work_price] => [8446]
[image] => https://akademik-stroy.ru/wp-content/uploads/materials/zelenaya-krovlya-2.jpg
[area_modifier] => 134.94
[parent_name] => Плоская крыша
[parent_id] => 36
[material_sum] => 1709765
[work_sum] => 1196688
[total_sum] => 2906453
[total_days] => 10
[display_material_sum] => 1 709 765
[display_work_sum] => 1 196 688
[display_total_sum] => 2 906 453
)
1
2 906 453₽
Работа:1 196 688 ₽
Материалы:1 709 765 ₽
Дни:10
stdClass Object
(
[id] => 162
[attribute_id] => 36
[name] => Эксплуатируемая
[material_modifier] => 1
[work_modifier] => 1
[options] => Array
(
)
[days] => [10]
[material_price] => [9593]
[work_price] => [7459]
[image] => https://akademik-stroy.ru/wp-content/uploads/materials/ehkspluatiruemaya-2.jpg
[area_modifier] => 134.94
[parent_name] => Плоская крыша
[parent_id] => 36
[material_sum] => 1631044
[work_sum] => 1056843
[total_sum] => 2687887
[total_days] => 10
[display_material_sum] => 1 631 044
[display_work_sum] => 1 056 843
[display_total_sum] => 2 687 887
)
1
2 687 887₽
Работа:1 056 843 ₽
Материалы:1 631 044 ₽
Дни:10
stdClass Object
(
[id] => 163
[attribute_id] => 36
[name] => Нет
[material_modifier] => 1
[work_modifier] => 1
[options] => Array
(
)
[days] => [0]
[material_price] => [0]
[work_price] => [0]
[image] => https://akademik-stroy.ru/wp-content/uploads/materials/ne-ehkspluatiruemaya-3.jpg
[area_modifier] => 134.94
[parent_name] => Плоская крыша
[parent_id] => 36
[material_sum] => 0
[work_sum] => 0
[total_sum] => 0
[total_days] => 0
[display_material_sum] => 0
[display_work_sum] => 0
[display_total_sum] => 0
)
1
0₽
Работа:0 ₽
Материалы:0 ₽
Дни:0
stdClass Object
(
[id] => 51
[attribute_id] => 26
[name] => Есть
[material_modifier] => 1
[work_modifier] => 1
[options] => Array
(
[0] => Профиль 58 мм, 3-камерный, стеклопакет 2-камерный до 32 мм
[1] => Профиль 60 мм, 4-камерный, стеклопакет 2-камерный до 32 мм
[2] => Профиль 70 мм, 5-камерный, стеклопакет 2-камерный до 40 мм
[3] => Профиль 72 мм, 5-камерный, стеклопакет 2-камерный до 40 мм
[4] => Алюминиевые окна Alutech профиль 72 мм, стеклопакет 2-камерный
)
[days] => [3,3,3,3,3]
[material_price] => [1339,2124,2867,3023,29596]
[work_price] => [635,647,659,668,2579]
[image] => https://akademik-stroy.ru/wp-content/uploads/materials/okna.jpg
[area_modifier] => 188.46
[parent_name] => Окна
[parent_id] => 26
[material_sum] => 317958
[work_sum] => 125656
[total_sum] => 443614
[total_days] => 3
[display_material_sum] => 317 958
[display_work_sum] => 125 656
[display_total_sum] => 443 614
)
1
443 614₽
Работа:125 656 ₽
Материалы:317 958 ₽
Дни:3
stdClass Object
(
[id] => 52
[attribute_id] => 26
[name] => Нет
[material_modifier] => 2
[work_modifier] => 1
[options] =>
[days] => null
[material_price] => null
[work_price] => null
[image] => https://akademik-stroy.ru/wp-content/uploads/materials/okna.jpg
[area_modifier] => 188.46
[parent_name] => Окна
[parent_id] => 26
[material_sum] => 0
[work_sum] => 0
[total_sum] => 0
[total_days] => 0
[display_material_sum] => 0
[display_work_sum] => 0
[display_total_sum] => 0
)
1
0₽
Работа:0 ₽
Материалы:0 ₽
Дни:0
stdClass Object
(
[id] => 53
[attribute_id] => 27
[name] => Есть
[material_modifier] => 1
[work_modifier] => 1
[options] => Array
(
)
[days] => [1]
[material_price] => [10000]
[work_price] => [5500]
[image] => https://akademik-stroy.ru/wp-content/uploads/materials/dveri.jpg
[area_modifier] => 1
[parent_name] => Двери входные
[parent_id] => 27
[material_sum] => 12600
[work_sum] => 5775
[total_sum] => 18375
[total_days] => 1
[display_material_sum] => 12 600
[display_work_sum] => 5 775
[display_total_sum] => 18 375
)
1
18 375₽
Работа:5 775 ₽
Материалы:12 600 ₽
Дни:1
stdClass Object
(
[id] => 54
[attribute_id] => 27
[name] => Нет
[material_modifier] => 1
[work_modifier] => 1
[options] => Array
(
)
[days] => [0]
[material_price] => [0]
[work_price] => [0]
[image] => https://akademik-stroy.ru/wp-content/uploads/materials/dveri.jpg
[area_modifier] => 1
[parent_name] => Двери входные
[parent_id] => 27
[material_sum] => 0
[work_sum] => 0
[total_sum] => 0
[total_days] => 0
[display_material_sum] => 0
[display_work_sum] => 0
[display_total_sum] => 0
)
1
0₽
Работа:0 ₽
Материалы:0 ₽
Дни:0
stdClass Object
(
[id] => 31
[attribute_id] => 16
[name] => Нет
[material_modifier] => 1
[work_modifier] => 1
[options] => Array
(
)
[days] => [0]
[material_price] => [0]
[work_price] => [0]
[image] => https://akademik-stroy.ru/wp-content/uploads/materials/docke-standard-pvh.jpg
[area_modifier] => 134.94
[parent_name] => Водосточная система
[parent_id] => 16
[material_sum] => 0
[work_sum] => 0
[total_sum] => 0
[total_days] => 0
[display_material_sum] => 0
[display_work_sum] => 0
[display_total_sum] => 0
)
1
0₽
Работа:0 ₽
Материалы:0 ₽
Дни:0
stdClass Object
(
[id] => 32
[attribute_id] => 16
[name] => Есть
[material_modifier] => 1
[work_modifier] => 1
[options] => Array
(
[0] => Döcke Standard (ПВХ)
[1] => Металлические Grand Line
)
[days] => [7,7]
[material_price] => [1842,2703]
[work_price] => [1491,1529]
[image] => https://akademik-stroy.ru/wp-content/uploads/materials/docke-standard-pvh.jpg
[area_modifier] => 134.94
[parent_name] => Водосточная система
[parent_id] => 16
[material_sum] => 313185
[work_sum] => 211255
[total_sum] => 524440
[total_days] => 7
[display_material_sum] => 313 185
[display_work_sum] => 211 255
[display_total_sum] => 524 440
)
1
524 440₽
Работа:211 255 ₽
Материалы:313 185 ₽
Дни:7
stdClass Object
(
[id] => 33
[attribute_id] => 17
[name] => Нет
[material_modifier] => 1
[work_modifier] => 1
[options] => Array
(
)
[days] => [0]
[material_price] => [0]
[work_price] => [0]
[image] => https://akademik-stroy.ru/wp-content/uploads/materials/mineralovata.jpg
[area_modifier] => 232.24
[parent_name] => Дополнительное утепление наружных стен
[parent_id] => 17
[material_sum] => 0
[work_sum] => 0
[total_sum] => 0
[total_days] => 0
[display_material_sum] => 0
[display_work_sum] => 0
[display_total_sum] => 0
)
1
0₽
Работа:0 ₽
Материалы:0 ₽
Дни:0
stdClass Object
(
[id] => 34
[attribute_id] => 17
[name] => Минераловатный
[material_modifier] => 1
[work_modifier] => 1
[options] => Array
(
[0] => 50 мм
[1] => 100 мм
[2] => 150 мм
[3] => 200 мм
[4] => 250 мм
[5] => 300 мм
)
[days] => [7,8,10,12,14,15]
[material_price] => [3437,3613,3803,3915,4601,4830]
[work_price] => [2325,2423,2523,2749,2859,3025]
[image] => https://akademik-stroy.ru/wp-content/uploads/materials/mineralovata.jpg
[area_modifier] => 232.24
[parent_name] => Дополнительное утепление наружных стен
[parent_id] => 17
[material_sum] => 1005743
[work_sum] => 566956
[total_sum] => 1572699
[total_days] => 7
[display_material_sum] => 1 005 743
[display_work_sum] => 566 956
[display_total_sum] => 1 572 699
)
1
1 572 699₽
Работа:566 956 ₽
Материалы:1 005 743 ₽
Дни:7
stdClass Object
(
[id] => 128
[attribute_id] => 17
[name] => Эковата (целлюлозная вата)
[material_modifier] => 1
[work_modifier] => 1
[options] => Array
(
[0] => 50 мм
[1] => 100 мм
[2] => 150 мм
[3] => 200 мм
[4] => 250 мм
[5] => 300 мм
)
[days] => [3,4,5,6,7,8]
[material_price] => [810,1319,1629,1838,2267,2676]
[work_price] => [1225,1323,1423,1549,1659,1725]
[image] => https://akademik-stroy.ru/wp-content/uploads/materials/ehkovata.jpg
[area_modifier] => 232.24
[parent_name] => Дополнительное утепление наружных стен
[parent_id] => 17
[material_sum] => 237024
[work_sum] => 298719
[total_sum] => 535743
[total_days] => 3
[display_material_sum] => 237 024
[display_work_sum] => 298 719
[display_total_sum] => 535 743
)
1
535 743₽
Работа:298 719 ₽
Материалы:237 024 ₽
Дни:3
stdClass Object
(
[id] => 129
[attribute_id] => 17
[name] => Экструдированный пенополистирол
[material_modifier] => 1
[work_modifier] => 1
[options] => Array
(
[0] => 50 мм
[1] => 100 мм
[2] => 150 мм
[3] => 200 мм
[4] => 250 мм
[5] => 300 мм
)
[days] => [5,6,7,8,9,10]
[material_price] => [4560,4300,5119,6292,7010,8583]
[work_price] => [1795,1954,2254,2330,2595,2735]
[image] => https://akademik-stroy.ru/wp-content/uploads/materials/epps.jpg
[area_modifier] => 232.24
[parent_name] => Дополнительное утепление наружных стен
[parent_id] => 17
[material_sum] => 1334358
[work_sum] => 437714
[total_sum] => 1772072
[total_days] => 5
[display_material_sum] => 1 334 358
[display_work_sum] => 437 714
[display_total_sum] => 1 772 072
)
1
1 772 072₽
Работа:437 714 ₽
Материалы:1 334 358 ₽
Дни:5
stdClass Object
(
[id] => 130
[attribute_id] => 17
[name] => ПСБ (ППС-пенополистирол)
[material_modifier] => 1
[work_modifier] => 1
[options] => Array
(
[0] => 50 мм
[1] => 100 мм
[2] => 150 мм
[3] => 200 мм
[4] => 250 мм
[5] => 300 мм
)
[days] => [5,6,7,8,9,10]
[material_price] => [4822,5200,5819,6292,7010,7583]
[work_price] => [1795,1954,2254,2330,2595,2735]
[image] => https://akademik-stroy.ru/wp-content/uploads/materials/psb.jpg
[area_modifier] => 232.24
[parent_name] => Дополнительное утепление наружных стен
[parent_id] => 17
[material_sum] => 1411025
[work_sum] => 437714
[total_sum] => 1848739
[total_days] => 5
[display_material_sum] => 1 411 025
[display_work_sum] => 437 714
[display_total_sum] => 1 848 739
)
1
1 848 739₽
Работа:437 714 ₽
Материалы:1 411 025 ₽
Дни:5
stdClass Object
(
[id] => 131
[attribute_id] => 17
[name] => ППУ (Пенополиуретан)
[material_modifier] => 1
[work_modifier] => 1
[options] => Array
(
[0] => 50 мм
[1] => 100 мм
[2] => 150 мм
[3] => 200 мм
[4] => 250 мм
[5] => 300 мм
)
[days] => [3,4,5,6,7,8]
[material_price] => [2860,3400,4219,4592,5010,5583]
[work_price] => [729,900,980,1120,1280,1530]
[image] => https://akademik-stroy.ru/wp-content/uploads/materials/ppu.jpg
[area_modifier] => 232.24
[parent_name] => Дополнительное утепление наружных стен
[parent_id] => 17
[material_sum] => 836900
[work_sum] => 177768
[total_sum] => 1014668
[total_days] => 3
[display_material_sum] => 836 900
[display_work_sum] => 177 768
[display_total_sum] => 1 014 668
)
1
1 014 668₽
Работа:177 768 ₽
Материалы:836 900 ₽
Дни:3
stdClass Object
(
[id] => 132
[attribute_id] => 17
[name] => PIR-плиты (пенополиизоцианурат)
[material_modifier] => 1
[work_modifier] => 1
[options] => Array
(
[0] => 50 мм
[1] => 100 мм
[2] => 150 мм
[3] => 200 мм
[4] => 250 мм
[5] => 300 мм
)
[days] => [5,6,7,8,9,10]
[material_price] => [8323,15645,20968,25900,29258,30581]
[work_price] => [800,900,970,1150,1280,1330]
[image] => https://akademik-stroy.ru/wp-content/uploads/materials/pir.jpg
[area_modifier] => 232.24
[parent_name] => Дополнительное утепление наружных стен
[parent_id] => 17
[material_sum] => 2435496
[work_sum] => 195082
[total_sum] => 2630578
[total_days] => 5
[display_material_sum] => 2 435 496
[display_work_sum] => 195 082
[display_total_sum] => 2 630 578
)
1
2 630 578₽
Работа:195 082 ₽
Материалы:2 435 496 ₽
Дни:5
stdClass Object
(
[id] => 37
[attribute_id] => 19
[name] => Нет
[material_modifier] => 1
[work_modifier] => 1
[options] => Array
(
)
[days] => [0]
[material_price] => [0]
[work_price] => [0]
[image] => https://akademik-stroy.ru/wp-content/uploads/materials/imitaciya-brusa.jpg
[area_modifier] => 232.24
[parent_name] => Наружная отделка фасада
[parent_id] => 19
[material_sum] => 0
[work_sum] => 0
[total_sum] => 0
[total_days] => 0
[display_material_sum] => 0
[display_work_sum] => 0
[display_total_sum] => 0
)
1
0₽
Работа:0 ₽
Материалы:0 ₽
Дни:0
stdClass Object
(
[id] => 38
[attribute_id] => 19
[name] => Имитация бруса
[material_modifier] => 1
[work_modifier] => 1
[options] => Array
(
[0] => Сосна
[1] => Ель
[2] => Лиственница
)
[days] => [20,20,20]
[material_price] => [2994,2762,4954]
[work_price] => [1397,1231,1577]
[image] => https://akademik-stroy.ru/wp-content/uploads/materials/imitaciya-brusa.jpg
[area_modifier] => 232.24
[parent_name] => Наружная отделка фасада
[parent_id] => 19
[material_sum] => 876111
[work_sum] => 340661
[total_sum] => 1216772
[total_days] => 20
[display_material_sum] => 876 111
[display_work_sum] => 340 661
[display_total_sum] => 1 216 772
)
1
1 216 772₽
Работа:340 661 ₽
Материалы:876 111 ₽
Дни:20
stdClass Object
(
[id] => 136
[attribute_id] => 19
[name] => Планкен
[material_modifier] => 1
[work_modifier] => 1
[options] => Array
(
[0] => Сосна
[1] => Ель
[2] => Лиственница
)
[days] => [20,20,20]
[material_price] => [3194,2862,5154]
[work_price] => [1537,1354,1735]
[image] => https://akademik-stroy.ru/wp-content/uploads/materials/planken.jpg
[area_modifier] => 232.24
[parent_name] => Наружная отделка фасада
[parent_id] => 19
[material_sum] => 934636
[work_sum] => 374801
[total_sum] => 1309437
[total_days] => 20
[display_material_sum] => 934 636
[display_work_sum] => 374 801
[display_total_sum] => 1 309 437
)
1
1 309 437₽
Работа:374 801 ₽
Материалы:934 636 ₽
Дни:20
stdClass Object
(
[id] => 137
[attribute_id] => 19
[name] => Штукатурка
[material_modifier] => 1
[work_modifier] => 1
[options] => Array
(
[0] => Цементно-песчаная (минеральная)
[1] => Мокрый фасад
)
[days] => [35,35]
[material_price] => [2231,3938]
[work_price] => [1202,2422]
[image] => https://akademik-stroy.ru/wp-content/uploads/materials/shtukaturka.jpg
[area_modifier] => 232.24
[parent_name] => Наружная отделка фасада
[parent_id] => 19
[material_sum] => 652841
[work_sum] => 293110
[total_sum] => 945951
[total_days] => 35
[display_material_sum] => 652 841
[display_work_sum] => 293 110
[display_total_sum] => 945 951
)
1
945 951₽
Работа:293 110 ₽
Материалы:652 841 ₽
Дни:35
stdClass Object
(
[id] => 138
[attribute_id] => 19
[name] => Облицовочный кирпич
[material_modifier] => 1
[work_modifier] => 1
[options] => Array
(
[0] => Керамический
[1] => Клинкерный
[2] => Ручной формовки
[3] => Гиперпрессованный
[4] => Силикатный кирпич
)
[days] => [45,45,45,45,45]
[material_price] => [8174,9148,1040,1257,5876]
[work_price] => [3240,3758,4536,4017,3369]
[image] => https://akademik-stroy.ru/wp-content/uploads/materials/oblicovochnyj-kirpich.jpg
[area_modifier] => 232.24
[parent_name] => Наружная отделка фасада
[parent_id] => 19
[material_sum] => 2391895
[work_sum] => 790080
[total_sum] => 3181975
[total_days] => 45
[display_material_sum] => 2 391 895
[display_work_sum] => 790 080
[display_total_sum] => 3 181 975
)
1
3 181 975₽
Работа:790 080 ₽
Материалы:2 391 895 ₽
Дни:45
stdClass Object
(
[id] => 139
[attribute_id] => 19
[name] => Фасадная плитка
[material_modifier] => 1
[work_modifier] => 1
[options] => Array
(
[0] => Клинкерная
[1] => Керамическая
[2] => Плитка ручной формовки
)
[days] => [40,40,40]
[material_price] => [2974,1487,3470]
[work_price] => [3007,2592,3629]
[image] => https://akademik-stroy.ru/wp-content/uploads/materials/fasadnaya-plitka.jpg
[area_modifier] => 232.24
[parent_name] => Наружная отделка фасада
[parent_id] => 19
[material_sum] => 870259
[work_sum] => 733263
[total_sum] => 1603522
[total_days] => 40
[display_material_sum] => 870 259
[display_work_sum] => 733 263
[display_total_sum] => 1 603 522
)
1
1 603 522₽
Работа:733 263 ₽
Материалы:870 259 ₽
Дни:40
stdClass Object
(
[id] => 140
[attribute_id] => 19
[name] => Сайдинг
[material_modifier] => 1
[work_modifier] => 1
[options] => Array
(
[0] => Виниловый
[1] => Металлический
[2] => Фиброцементный
)
[days] => [20,20,20]
[material_price] => [1263,1944,4147]
[work_price] => [1263,1944,2074]
[image] => https://akademik-stroy.ru/wp-content/uploads/materials/sajding.jpg
[area_modifier] => 232.24
[parent_name] => Наружная отделка фасада
[parent_id] => 19
[material_sum] => 369582
[work_sum] => 307985
[total_sum] => 677567
[total_days] => 20
[display_material_sum] => 369 582
[display_work_sum] => 307 985
[display_total_sum] => 677 567
)
1
677 567₽
Работа:307 985 ₽
Материалы:369 582 ₽
Дни:20
stdClass Object
(
[id] => 141
[attribute_id] => 19
[name] => Камень
[material_modifier] => 1
[work_modifier] => 1
[options] => Array
(
[0] => Травертин
[1] => Дагестанский
[2] => Искусственный
[3] => Натуральный
[4] => Керамогранит
)
[days] => [45,45,45,45,45]
[material_price] => [4536,3888,2592,3240,2462]
[work_price] => [3240,3240,2462,3110,1944]
[image] => https://akademik-stroy.ru/wp-content/uploads/materials/kamen-1.jpg
[area_modifier] => 232.24
[parent_name] => Наружная отделка фасада
[parent_id] => 19
[material_sum] => 1327335
[work_sum] => 790080
[total_sum] => 2117415
[total_days] => 45
[display_material_sum] => 1 327 335
[display_work_sum] => 790 080
[display_total_sum] => 2 117 415
)
1
2 117 415₽
Работа:790 080 ₽
Материалы:1 327 335 ₽
Дни:45
stdClass Object
(
[id] => 142
[attribute_id] => 19
[name] => Термопанели
[material_modifier] => 1
[work_modifier] => 1
[options] => Array
(
)
[days] => [20]
[material_price] => [6221]
[work_price] => [2333]
[image] => https://akademik-stroy.ru/wp-content/uploads/materials/termo.png
[area_modifier] => 232.24
[parent_name] => Наружная отделка фасада
[parent_id] => 19
[material_sum] => 1820404
[work_sum] => 568907
[total_sum] => 2389311
[total_days] => 20
[display_material_sum] => 1 820 404
[display_work_sum] => 568 907
[display_total_sum] => 2 389 311
)
1
2 389 311₽
Работа:568 907 ₽
Материалы:1 820 404 ₽
Дни:20
stdClass Object
(
[id] => 143
[attribute_id] => 19
[name] => Плитка HAUBERK
[material_modifier] => 1
[work_modifier] => 1
[options] => Array
(
)
[days] => [20]
[material_price] => [2786]
[work_price] => [1944]
[image] => https://akademik-stroy.ru/wp-content/uploads/materials/hauberk.jpg
[area_modifier] => 232.24
[parent_name] => Наружная отделка фасада
[parent_id] => 19
[material_sum] => 815246
[work_sum] => 474048
[total_sum] => 1289294
[total_days] => 20
[display_material_sum] => 815 246
[display_work_sum] => 474 048
[display_total_sum] => 1 289 294
)
1
1 289 294₽
Работа:474 048 ₽
Материалы:815 246 ₽
Дни:20
stdClass Object
(
[id] => 144
[attribute_id] => 19
[name] => Фальцевый фасад
[material_modifier] => 1
[work_modifier] => 1
[options] => Array
(
)
[days] => [20]
[material_price] => [3240]
[work_price] => [2592]
[image] => https://akademik-stroy.ru/wp-content/uploads/materials/falcevyj-fasad.jpg
[area_modifier] => 232.24
[parent_name] => Наружная отделка фасада
[parent_id] => 19
[material_sum] => 948097
[work_sum] => 632064
[total_sum] => 1580161
[total_days] => 20
[display_material_sum] => 948 097
[display_work_sum] => 632 064
[display_total_sum] => 1 580 161
)
1
1 580 161₽
Работа:632 064 ₽
Материалы:948 097 ₽
Дни:20
stdClass Object
(
[id] => 145
[attribute_id] => 19
[name] => Комбинированный
[material_modifier] => 1
[work_modifier] => 1
[options] => Array
(
)
[days] => [20]
[material_price] => [4629]
[work_price] => [3499]
[image] => https://akademik-stroy.ru/wp-content/uploads/materials/Kombinirovannyj.jpg
[area_modifier] => 232.24
[parent_name] => Наружная отделка фасада
[parent_id] => 19
[material_sum] => 1354549
[work_sum] => 853238
[total_sum] => 2207787
[total_days] => 20
[display_material_sum] => 1 354 549
[display_work_sum] => 853 238
[display_total_sum] => 2 207 787
)
1
2 207 787₽
Работа:853 238 ₽
Материалы:1 354 549 ₽
Дни:20
stdClass Object
(
[id] => 257
[attribute_id] => 19
[name] => Японские фиброцементные
[material_modifier] => 1
[work_modifier] => 1
[options] => Array
(
)
[days] => [20]
[material_price] => [7043]
[work_price] => [2993]
[image] => https://akademik-stroy.ru/wp-content/uploads/materials/paneli.jpg
[area_modifier] => 232.24
[parent_name] => Наружная отделка фасада
[parent_id] => 19
[material_sum] => 2060940
[work_sum] => 729849
[total_sum] => 2790789
[total_days] => 20
[display_material_sum] => 2 060 940
[display_work_sum] => 729 849
[display_total_sum] => 2 790 789
)
1
2 790 789₽
Работа:729 849 ₽
Материалы:2 060 940 ₽
Дни:20
stdClass Object
(
[id] => 258
[attribute_id] => 19
[name] => Панели Каньон
[material_modifier] => 1
[work_modifier] => 1
[options] => Array
(
)
[days] => [20]
[material_price] => [4543]
[work_price] => [2592]
[image] => https://akademik-stroy.ru/wp-content/uploads/materials/kanon.png
[area_modifier] => 232.24
[parent_name] => Наружная отделка фасада
[parent_id] => 19
[material_sum] => 1329384
[work_sum] => 632064
[total_sum] => 1961448
[total_days] => 20
[display_material_sum] => 1 329 384
[display_work_sum] => 632 064
[display_total_sum] => 1 961 448
)
1
1 961 448₽
Работа:632 064 ₽
Материалы:1 329 384 ₽
Дни:20
stdClass Object
(
[id] => 39
[attribute_id] => 20
[name] => Нет
[material_modifier] => 1
[work_modifier] => 1
[options] => Array
(
)
[days] => [0]
[material_price] => [0]
[work_price] => [0]
[image] => https://akademik-stroy.ru/wp-content/uploads/materials/terrasy.jpg
[area_modifier] => 30
[parent_name] => Террасы, крыльца, навесы
[parent_id] => 20
[material_sum] => 0
[work_sum] => 0
[total_sum] => 0
[total_days] => 0
[display_material_sum] => 0
[display_work_sum] => 0
[display_total_sum] => 0
)
1
0₽
Работа:0 ₽
Материалы:0 ₽
Дни:0
stdClass Object
(
[id] => 40
[attribute_id] => 20
[name] => Есть
[material_modifier] => 1
[work_modifier] => 1
[options] => Array
(
)
[days] => [5]
[material_price] => [10450]
[work_price] => [1950]
[image] => https://akademik-stroy.ru/wp-content/uploads/materials/terrasy.jpg
[area_modifier] => 30
[parent_name] => Террасы, крыльца, навесы
[parent_id] => 20
[material_sum] => 395010
[work_sum] => 61425
[total_sum] => 456435
[total_days] => 5
[display_material_sum] => 395 010
[display_work_sum] => 61 425
[display_total_sum] => 456 435
)
1
456 435₽
Работа:61 425 ₽
Материалы:395 010 ₽
Дни:5
stdClass Object
(
[id] => 41
[attribute_id] => 21
[name] => Нет
[material_modifier] => 1
[work_modifier] => 1
[options] => Array
(
)
[days] => [0]
[material_price] => [0]
[work_price] => [0]
[image] => https://akademik-stroy.ru/wp-content/uploads/materials/balkony.jpg
[area_modifier] => 30
[parent_name] => Балконы
[parent_id] => 21
[material_sum] => 0
[work_sum] => 0
[total_sum] => 0
[total_days] => 0
[display_material_sum] => 0
[display_work_sum] => 0
[display_total_sum] => 0
)
1
0₽
Работа:0 ₽
Материалы:0 ₽
Дни:0
stdClass Object
(
[id] => 42
[attribute_id] => 21
[name] => Есть
[material_modifier] => 1
[work_modifier] => 1
[options] => Array
(
)
[days] => [12]
[material_price] => [3600]
[work_price] => [1950]
[image] => https://akademik-stroy.ru/wp-content/uploads/materials/balkony.jpg
[area_modifier] => 30
[parent_name] => Балконы
[parent_id] => 21
[material_sum] => 136080
[work_sum] => 61425
[total_sum] => 197505
[total_days] => 12
[display_material_sum] => 136 080
[display_work_sum] => 61 425
[display_total_sum] => 197 505
)
1
197 505₽
Работа:61 425 ₽
Материалы:136 080 ₽
Дни:12
stdClass Object
(
[id] => 43
[attribute_id] => 22
[name] => Нет
[material_modifier] => 1
[work_modifier] => 1
[options] => Array
(
)
[days] => [0]
[material_price] => [0]
[work_price] => [0]
[image] => https://akademik-stroy.ru/wp-content/uploads/materials/uteplennaya.jpg
[area_modifier] => 134.94
[parent_name] => Отмостка
[parent_id] => 22
[material_sum] => 0
[work_sum] => 0
[total_sum] => 0
[total_days] => 0
[display_material_sum] => 0
[display_work_sum] => 0
[display_total_sum] => 0
)
1
0₽
Работа:0 ₽
Материалы:0 ₽
Дни:0
stdClass Object
(
[id] => 44
[attribute_id] => 22
[name] => Утепленная отмостка
[material_modifier] => 1
[work_modifier] => 1
[options] => Array
(
)
[days] => [15]
[material_price] => [2550]
[work_price] => [1750]
[image] => https://akademik-stroy.ru/wp-content/uploads/materials/uteplennaya.jpg
[area_modifier] => 134.94
[parent_name] => Отмостка
[parent_id] => 22
[material_sum] => 433562
[work_sum] => 247952
[total_sum] => 681514
[total_days] => 15
[display_material_sum] => 433 562
[display_work_sum] => 247 952
[display_total_sum] => 681 514
)
1
681 514₽
Работа:247 952 ₽
Материалы:433 562 ₽
Дни:15
stdClass Object
(
[id] => 146
[attribute_id] => 22
[name] => Не утепленная отмостка
[material_modifier] => 1
[work_modifier] => 1
[options] => Array
(
)
[days] => [10]
[material_price] => [1650]
[work_price] => [1450]
[image] => https://akademik-stroy.ru/wp-content/uploads/materials/ne-uteplennaya.jpg
[area_modifier] => 134.94
[parent_name] => Отмостка
[parent_id] => 22
[material_sum] => 280540
[work_sum] => 205446
[total_sum] => 485986
[total_days] => 10
[display_material_sum] => 280 540
[display_work_sum] => 205 446
[display_total_sum] => 485 986
)
1
485 986₽
Работа:205 446 ₽
Материалы:280 540 ₽
Дни:10
stdClass Object
(
[id] => 45
[attribute_id] => 23
[name] => Нет
[material_modifier] => 1
[work_modifier] => 1
[options] => Array
(
)
[days] => [0]
[material_price] => [0]
[work_price] => [0]
[image] => https://akademik-stroy.ru/wp-content/uploads/materials/drenazh-2.jpg
[area_modifier] => 134.94
[parent_name] => Дренаж вокруг дома
[parent_id] => 23
[material_sum] => 0
[work_sum] => 0
[total_sum] => 0
[total_days] => 0
[display_material_sum] => 0
[display_work_sum] => 0
[display_total_sum] => 0
)
1
0₽
Работа:0 ₽
Материалы:0 ₽
Дни:0
stdClass Object
(
[id] => 46
[attribute_id] => 23
[name] => Есть
[material_modifier] => 1
[work_modifier] => 1
[options] => Array
(
)
[days] => [5]
[material_price] => [2366]
[work_price] => [1911]
[image] => https://akademik-stroy.ru/wp-content/uploads/materials/drenazh-2.jpg
[area_modifier] => 134.94
[parent_name] => Дренаж вокруг дома
[parent_id] => 23
[material_sum] => 402278
[work_sum] => 270764
[total_sum] => 673042
[total_days] => 5
[display_material_sum] => 402 278
[display_work_sum] => 270 764
[display_total_sum] => 673 042
)
1
673 042₽
Работа:270 764 ₽
Материалы:402 278 ₽
Дни:5
stdClass Object
(
[id] => 47
[attribute_id] => 24
[name] => Нет
[material_modifier] => 1
[work_modifier] => 1
[options] => Array
(
)
[days] => [0]
[material_price] => [0]
[work_price] => [0]
[image] => https://akademik-stroy.ru/wp-content/uploads/materials/septik.jpg
[area_modifier] => 1
[parent_name] => Автономная канализация (септики)
[parent_id] => 24
[material_sum] => 0
[work_sum] => 0
[total_sum] => 0
[total_days] => 0
[display_material_sum] => 0
[display_work_sum] => 0
[display_total_sum] => 0
)
1
0₽
Работа:0 ₽
Материалы:0 ₽
Дни:0
stdClass Object
(
[id] => 48
[attribute_id] => 24
[name] => Есть
[material_modifier] => 1
[work_modifier] => 1
[options] => Array
(
[0] => Для дачи на 4 человека
[1] => Для дома на 5 человек
[2] => Для дома на 6 человек
[3] => Для дома на 7 человек
[4] => Для дома на 10 человек
)
[days] => [7,7,7,8,8]
[material_price] => [196340,220500,240940,264200,293340]
[work_price] => [50000,55000,60500,66550,73206]
[image] => https://akademik-stroy.ru/wp-content/uploads/materials/septik.jpg
[area_modifier] => 1
[parent_name] => Автономная канализация (септики)
[parent_id] => 24
[material_sum] => 247388
[work_sum] => 52500
[total_sum] => 299888
[total_days] => 7
[display_material_sum] => 247 388
[display_work_sum] => 52 500
[display_total_sum] => 299 888
)
1
299 888₽
Работа:52 500 ₽
Материалы:247 388 ₽
Дни:7
stdClass Object
(
[id] => 49
[attribute_id] => 25
[name] => Нет
[material_modifier] => 1
[work_modifier] => 1
[options] => Array
(
)
[days] => [0]
[material_price] => [0]
[work_price] => [0]
[image] => https://akademik-stroy.ru/wp-content/uploads/materials/gkl.jpg
[area_modifier] => 232.24
[parent_name] => Внутренние (не несущие) перегородки
[parent_id] => 25
[material_sum] => 0
[work_sum] => 0
[total_sum] => 0
[total_days] => 0
[display_material_sum] => 0
[display_work_sum] => 0
[display_total_sum] => 0
)
1
0₽
Работа:0 ₽
Материалы:0 ₽
Дни:0
stdClass Object
(
[id] => 147
[attribute_id] => 25
[name] => Каркасно-обшивные
[material_modifier] => 1
[work_modifier] => 1
[options] => Array
(
[0] => 75 мм (без шумоизоляции)
[1] => 75 мм (с шумоизоляцией)
)
[days] => [11,11]
[material_price] => [580,970]
[work_price] => [380,570]
[image] => https://akademik-stroy.ru/wp-content/uploads/materials/gkl.jpg
[area_modifier] => 232.24
[parent_name] => Внутренние (не несущие) перегородки
[parent_id] => 25
[material_sum] => 169721
[work_sum] => 92664
[total_sum] => 262385
[total_days] => 11
[display_material_sum] => 169 721
[display_work_sum] => 92 664
[display_total_sum] => 262 385
)
1
262 385₽
Работа:92 664 ₽
Материалы:169 721 ₽
Дни:11
stdClass Object
(
[id] => 148
[attribute_id] => 25
[name] => Пазогребневые
[material_modifier] => 1
[work_modifier] => 1
[options] => Array
(
[0] => 80 мм
[1] => 100 мм
)
[days] => [5,5]
[material_price] => [1022,1313]
[work_price] => [600,700]
[image] => https://akademik-stroy.ru/wp-content/uploads/materials/pazogrebnevye-bloki.jpg
[area_modifier] => 232.24
[parent_name] => Внутренние (не несущие) перегородки
[parent_id] => 25
[material_sum] => 299060
[work_sum] => 146311
[total_sum] => 445371
[total_days] => 5
[display_material_sum] => 299 060
[display_work_sum] => 146 311
[display_total_sum] => 445 371
)
1
445 371₽
Работа:146 311 ₽
Материалы:299 060 ₽
Дни:5
stdClass Object
(
[id] => 149
[attribute_id] => 25
[name] => Газобетонные
[material_modifier] => 1
[work_modifier] => 1
[options] => Array
(
[0] => 100 мм
[1] => 200 мм
)
[days] => [11,11]
[material_price] => [1160,1920]
[work_price] => [700,900]
[image] => https://akademik-stroy.ru/wp-content/uploads/materials/gazobeton-2.jpg
[area_modifier] => 232.24
[parent_name] => Внутренние (не несущие) перегородки
[parent_id] => 25
[material_sum] => 339442
[work_sum] => 170696
[total_sum] => 510138
[total_days] => 11
[display_material_sum] => 339 442
[display_work_sum] => 170 696
[display_total_sum] => 510 138
)
1
510 138₽
Работа:170 696 ₽
Материалы:339 442 ₽
Дни:11
stdClass Object
(
[id] => 150
[attribute_id] => 25
[name] => Кирпичные
[material_modifier] => 1
[work_modifier] => 1
[options] => Array
(
[0] => 120 мм
[1] => 250 мм
[2] => 360 мм
)
[days] => [7,7,7]
[material_price] => [1785,3570,5355]
[work_price] => [900,1600,1800]
[image] => https://akademik-stroy.ru/wp-content/uploads/materials/kirpich-1.jpg
[area_modifier] => 232.24
[parent_name] => Внутренние (не несущие) перегородки
[parent_id] => 25
[material_sum] => 522331
[work_sum] => 219467
[total_sum] => 741798
[total_days] => 7
[display_material_sum] => 522 331
[display_work_sum] => 219 467
[display_total_sum] => 741 798
)
1
741 798₽
Работа:219 467 ₽
Материалы:522 331 ₽
Дни:7
stdClass Object
(
[id] => 55
[attribute_id] => 28
[name] => Нет
[material_modifier] => 1
[work_modifier] => 1
[options] => Array
(
)
[days] => [0]
[material_price] => [0]
[work_price] => [0]
[image] => https://akademik-stroy.ru/wp-content/uploads/materials/ehlektrika.jpg
[area_modifier] => 188.46
[parent_name] => Электрика
[parent_id] => 28
[material_sum] => 0
[work_sum] => 0
[total_sum] => 0
[total_days] => 0
[display_material_sum] => 0
[display_work_sum] => 0
[display_total_sum] => 0
)
1
0₽
Работа:0 ₽
Материалы:0 ₽
Дни:0
stdClass Object
(
[id] => 56
[attribute_id] => 28
[name] => Есть
[material_modifier] => 1
[work_modifier] => 1
[options] => Array
(
)
[days] => [10]
[material_price] => [650]
[work_price] => [950]
[image] => https://akademik-stroy.ru/wp-content/uploads/materials/ehlektrika.jpg
[area_modifier] => 188.46
[parent_name] => Электрика
[parent_id] => 28
[material_sum] => 154349
[work_sum] => 187989
[total_sum] => 342338
[total_days] => 10
[display_material_sum] => 154 349
[display_work_sum] => 187 989
[display_total_sum] => 342 338
)
1
342 338₽
Работа:187 989 ₽
Материалы:154 349 ₽
Дни:10
stdClass Object
(
[id] => 57
[attribute_id] => 29
[name] => Нет
[material_modifier] => 1
[work_modifier] => 1
[options] => Array
(
)
[days] => [0]
[material_price] => [0]
[work_price] => [0]
[image] => https://akademik-stroy.ru/wp-content/uploads/materials/santekhnika-kanalizaciya-1.jpg
[area_modifier] => 188.46
[parent_name] => Сантехника, канализация в доме
[parent_id] => 29
[material_sum] => 0
[work_sum] => 0
[total_sum] => 0
[total_days] => 0
[display_material_sum] => 0
[display_work_sum] => 0
[display_total_sum] => 0
)
1
0₽
Работа:0 ₽
Материалы:0 ₽
Дни:0
stdClass Object
(
[id] => 58
[attribute_id] => 29
[name] => Есть
[material_modifier] => 1
[work_modifier] => 1
[options] => Array
(
)
[days] => [10]
[material_price] => [600]
[work_price] => [730]
[image] => https://akademik-stroy.ru/wp-content/uploads/materials/santekhnika-kanalizaciya-1.jpg
[area_modifier] => 188.46
[parent_name] => Сантехника, канализация в доме
[parent_id] => 29
[material_sum] => 142476
[work_sum] => 144455
[total_sum] => 286931
[total_days] => 10
[display_material_sum] => 142 476
[display_work_sum] => 144 455
[display_total_sum] => 286 931
)
1
286 931₽
Работа:144 455 ₽
Материалы:142 476 ₽
Дни:10
stdClass Object
(
[id] => 59
[attribute_id] => 30
[name] => Нет
[material_modifier] => 1
[work_modifier] => 1
[options] => Array
(
)
[days] => [0]
[material_price] => [0]
[work_price] => [0]
[image] => https://akademik-stroy.ru/wp-content/uploads/materials/otoplenie-1.jpg
[area_modifier] => 188.46
[parent_name] => Отопление
[parent_id] => 30
[material_sum] => 0
[work_sum] => 0
[total_sum] => 0
[total_days] => 0
[display_material_sum] => 0
[display_work_sum] => 0
[display_total_sum] => 0
)
1
0₽
Работа:0 ₽
Материалы:0 ₽
Дни:0
stdClass Object
(
[id] => 60
[attribute_id] => 30
[name] => Есть
[material_modifier] => 1
[work_modifier] => 1
[options] => Array
(
)
[days] => [5]
[material_price] => [610]
[work_price] => [560]
[image] => https://akademik-stroy.ru/wp-content/uploads/materials/otoplenie-1.jpg
[area_modifier] => 188.46
[parent_name] => Отопление
[parent_id] => 30
[material_sum] => 144850
[work_sum] => 110814
[total_sum] => 255664
[total_days] => 5
[display_material_sum] => 144 850
[display_work_sum] => 110 814
[display_total_sum] => 255 664
)
1
255 664₽
Работа:110 814 ₽
Материалы:144 850 ₽
Дни:5
stdClass Object
(
[id] => 61
[attribute_id] => 31
[name] => Нет
[material_modifier] => 1
[work_modifier] => 1
[options] => Array
(
)
[days] => [0]
[material_price] => [0]
[work_price] => [0]
[image] => https://akademik-stroy.ru/wp-content/uploads/materials/vodyanye.jpg
[area_modifier] => 30
[parent_name] => Теплые полы
[parent_id] => 31
[material_sum] => 0
[work_sum] => 0
[total_sum] => 0
[total_days] => 0
[display_material_sum] => 0
[display_work_sum] => 0
[display_total_sum] => 0
)
1
0₽
Работа:0 ₽
Материалы:0 ₽
Дни:0
stdClass Object
(
[id] => 151
[attribute_id] => 31
[name] => Водяные
[material_modifier] => 1
[work_modifier] => 1
[options] => Array
(
)
[days] => [9]
[material_price] => [10200]
[work_price] => [2500]
[image] => https://akademik-stroy.ru/wp-content/uploads/materials/vodyanye.jpg
[area_modifier] => 30
[parent_name] => Теплые полы
[parent_id] => 31
[material_sum] => 385560
[work_sum] => 78750
[total_sum] => 464310
[total_days] => 9
[display_material_sum] => 385 560
[display_work_sum] => 78 750
[display_total_sum] => 464 310
)
1
464 310₽
Работа:78 750 ₽
Материалы:385 560 ₽
Дни:9
stdClass Object
(
[id] => 152
[attribute_id] => 31
[name] => Электро
[material_modifier] => 1
[work_modifier] => 1
[options] => Array
(
)
[days] => [5]
[material_price] => [6300]
[work_price] => [1500]
[image] => https://akademik-stroy.ru/wp-content/uploads/materials/ehlektricheskij.jpg
[area_modifier] => 30
[parent_name] => Теплые полы
[parent_id] => 31
[material_sum] => 238140
[work_sum] => 47250
[total_sum] => 285390
[total_days] => 5
[display_material_sum] => 238 140
[display_work_sum] => 47 250
[display_total_sum] => 285 390
)
1
285 390₽
Работа:47 250 ₽
Материалы:238 140 ₽
Дни:5
stdClass Object
(
[id] => 63
[attribute_id] => 32
[name] => Нет
[material_modifier] => 1
[work_modifier] => 1
[options] => Array
(
)
[days] => [0]
[material_price] => [0]
[work_price] => [0]
[image] => https://akademik-stroy.ru/wp-content/uploads/materials/shtukaturka-shpatlevka-1.jpg
[area_modifier] => 188.46
[parent_name] => Черновая отделка стен
[parent_id] => 32
[material_sum] => 0
[work_sum] => 0
[total_sum] => 0
[total_days] => 0
[display_material_sum] => 0
[display_work_sum] => 0
[display_total_sum] => 0
)
1
0₽
Работа:0 ₽
Материалы:0 ₽
Дни:0
stdClass Object
(
[id] => 153
[attribute_id] => 32
[name] => Штукатурка и шпатлевка
[material_modifier] => 1
[work_modifier] => 1
[options] => Array
(
)
[days] => [20]
[material_price] => [1850]
[work_price] => [2600]
[image] => https://akademik-stroy.ru/wp-content/uploads/materials/shtukaturka-shpatlevka-1.jpg
[area_modifier] => 188.46
[parent_name] => Черновая отделка стен
[parent_id] => 32
[material_sum] => 439300
[work_sum] => 514496
[total_sum] => 953796
[total_days] => 20
[display_material_sum] => 439 300
[display_work_sum] => 514 496
[display_total_sum] => 953 796
)
1
953 796₽
Работа:514 496 ₽
Материалы:439 300 ₽
Дни:20
stdClass Object
(
[id] => 154
[attribute_id] => 32
[name] => Гипсокортон на стены
[material_modifier] => 1
[work_modifier] => 1
[options] => Array
(
)
[days] => [15]
[material_price] => [950]
[work_price] => [2100]
[image] => https://akademik-stroy.ru/wp-content/uploads/materials/gkl-1.jpg
[area_modifier] => 188.46
[parent_name] => Черновая отделка стен
[parent_id] => 32
[material_sum] => 225587
[work_sum] => 415554
[total_sum] => 641141
[total_days] => 15
[display_material_sum] => 225 587
[display_work_sum] => 415 554
[display_total_sum] => 641 141
)
1
641 141₽
Работа:415 554 ₽
Материалы:225 587 ₽
Дни:15
stdClass Object
(
[id] => 155
[attribute_id] => 32
[name] => Вагонка
[material_modifier] => 1
[work_modifier] => 1
[options] => Array
(
)
[days] => [15]
[material_price] => [1250]
[work_price] => [950]
[image] => https://akademik-stroy.ru/wp-content/uploads/materials/vagonka.jpg
[area_modifier] => 188.46
[parent_name] => Черновая отделка стен
[parent_id] => 32
[material_sum] => 296825
[work_sum] => 187989
[total_sum] => 484814
[total_days] => 15
[display_material_sum] => 296 825
[display_work_sum] => 187 989
[display_total_sum] => 484 814
)
1
484 814₽
Работа:187 989 ₽
Материалы:296 825 ₽
Дни:15
stdClass Object
(
[id] => 65
[attribute_id] => 33
[name] => Нет
[material_modifier] => 1
[work_modifier] => 1
[options] => Array
(
)
[days] => [0]
[material_price] => [0]
[work_price] => [0]
[image] => https://akademik-stroy.ru/wp-content/uploads/materials/styazhka.jpg
[area_modifier] => 188.46
[parent_name] => Черновая отделка полов
[parent_id] => 33
[material_sum] => 0
[work_sum] => 0
[total_sum] => 0
[total_days] => 0
[display_material_sum] => 0
[display_work_sum] => 0
[display_total_sum] => 0
)
1
0₽
Работа:0 ₽
Материалы:0 ₽
Дни:0
stdClass Object
(
[id] => 156
[attribute_id] => 33
[name] => Стяжка + наливные полы
[material_modifier] => 1
[work_modifier] => 1
[options] => Array
(
)
[days] => [10]
[material_price] => [1000]
[work_price] => [900]
[image] => https://akademik-stroy.ru/wp-content/uploads/materials/styazhka.jpg
[area_modifier] => 188.46
[parent_name] => Черновая отделка полов
[parent_id] => 33
[material_sum] => 237460
[work_sum] => 178095
[total_sum] => 415555
[total_days] => 10
[display_material_sum] => 237 460
[display_work_sum] => 178 095
[display_total_sum] => 415 555
)
1
415 555₽
Работа:178 095 ₽
Материалы:237 460 ₽
Дни:10
stdClass Object
(
[id] => 157
[attribute_id] => 33
[name] => ОСБ на пол
[material_modifier] => 1
[work_modifier] => 1
[options] => Array
(
)
[days] => [7]
[material_price] => [580]
[work_price] => [350]
[image] => https://akademik-stroy.ru/wp-content/uploads/materials/osb-1.jpg
[area_modifier] => 188.46
[parent_name] => Черновая отделка полов
[parent_id] => 33
[material_sum] => 137727
[work_sum] => 69259
[total_sum] => 206986
[total_days] => 7
[display_material_sum] => 137 727
[display_work_sum] => 69 259
[display_total_sum] => 206 986
)
1
206 986₽
Работа:69 259 ₽
Материалы:137 727 ₽
Дни:7
stdClass Object
(
[id] => 67
[attribute_id] => 34
[name] => Нет
[material_modifier] => 1
[work_modifier] => 1
[options] => Array
(
)
[days] => [0]
[material_price] => [0]
[work_price] => [0]
[image] => https://akademik-stroy.ru/wp-content/uploads/materials/chistovaya-otdelka.jpg
[area_modifier] => 188.46
[parent_name] => Чистовая отделка стен и полов
[parent_id] => 34
[material_sum] => 0
[work_sum] => 0
[total_sum] => 0
[total_days] => 0
[display_material_sum] => 0
[display_work_sum] => 0
[display_total_sum] => 0
)
1
0₽
Работа:0 ₽
Материалы:0 ₽
Дни:0
stdClass Object
(
[id] => 68
[attribute_id] => 34
[name] => Есть
[material_modifier] => 1
[work_modifier] => 1
[options] => Array
(
)
[days] => [50]
[material_price] => [6000]
[work_price] => [3500]
[image] => https://akademik-stroy.ru/wp-content/uploads/materials/chistovaya-otdelka.jpg
[area_modifier] => 188.46
[parent_name] => Чистовая отделка стен и полов
[parent_id] => 34
[material_sum] => 1424758
[work_sum] => 692591
[total_sum] => 2117349
[total_days] => 50
[display_material_sum] => 1 424 758
[display_work_sum] => 692 591
[display_total_sum] => 2 117 349
)
1
2 117 349₽
Работа:692 591 ₽
Материалы:1 424 758 ₽
Дни:50
stdClass Object
(
[id] => 69
[attribute_id] => 35
[name] => Нет
[material_modifier] => 1
[work_modifier] => 1
[options] => Array
(
)
[days] => [0]
[material_price] => [0]
[work_price] => [0]
[image] => https://akademik-stroy.ru/wp-content/uploads/materials/mnogourovnevyj-gkl.jpg
[area_modifier] => 188.46
[parent_name] => Отделка потолка
[parent_id] => 35
[material_sum] => 0
[work_sum] => 0
[total_sum] => 0
[total_days] => 0
[display_material_sum] => 0
[display_work_sum] => 0
[display_total_sum] => 0
)
1
0₽
Работа:0 ₽
Материалы:0 ₽
Дни:0
stdClass Object
(
[id] => 70
[attribute_id] => 35
[name] => Есть
[material_modifier] => 1
[work_modifier] => 1
[options] => Array
(
[0] => Многоуровневый потолок из гипсокартона
[1] => Многоуровневый потолок из гипсокартона и натяжного потолка
[2] => Одноуровневый потолок из гипсокартона
[3] => Одноуровневый натяжной потолок
)
[days] => [10,10,1,1]
[material_price] => [900,700,700,600]
[work_price] => [1000,800,500,300]
[image] => https://akademik-stroy.ru/wp-content/uploads/materials/mnogourovnevyj-gkl.jpg
[area_modifier] => 188.46
[parent_name] => Отделка потолка
[parent_id] => 35
[material_sum] => 213714
[work_sum] => 197883
[total_sum] => 411597
[total_days] => 10
[display_material_sum] => 213 714
[display_work_sum] => 197 883
[display_total_sum] => 411 597
)
1
411 597₽
Работа:197 883 ₽
Материалы:213 714 ₽
Дни:10
Преимущества работы с нами
7 этапов оплаты
Независимый строительный надзор
Экологически чистые материалы
16 лет гарантии
Онлайн-кабинет с веб-камерой
Строители с опытом более 15 лет
Собственное производство










