Одноэтажный дом 9x17 - 158.01 м2 за руб.
Планировки
План первого этажа
- 1. Тамбур 3,16 м²
- 2. Коридор 10,99 м²
- 3. Гостиная 21,77 м²
- 4. Кухня-столовая 15,98 м²
- 5. Проход 2,67 м²
- 6. Ванная комната 3,59 м²
- 7. Котельная-прачечная 6,37 м²
- 8. Комната 16,84 м²
- 9. Гараж 26,56 м²
- 10. Крыльцо 5,59 м²
- 11. Терраса 7,60 м²
- Крыльцо 2,10 м²
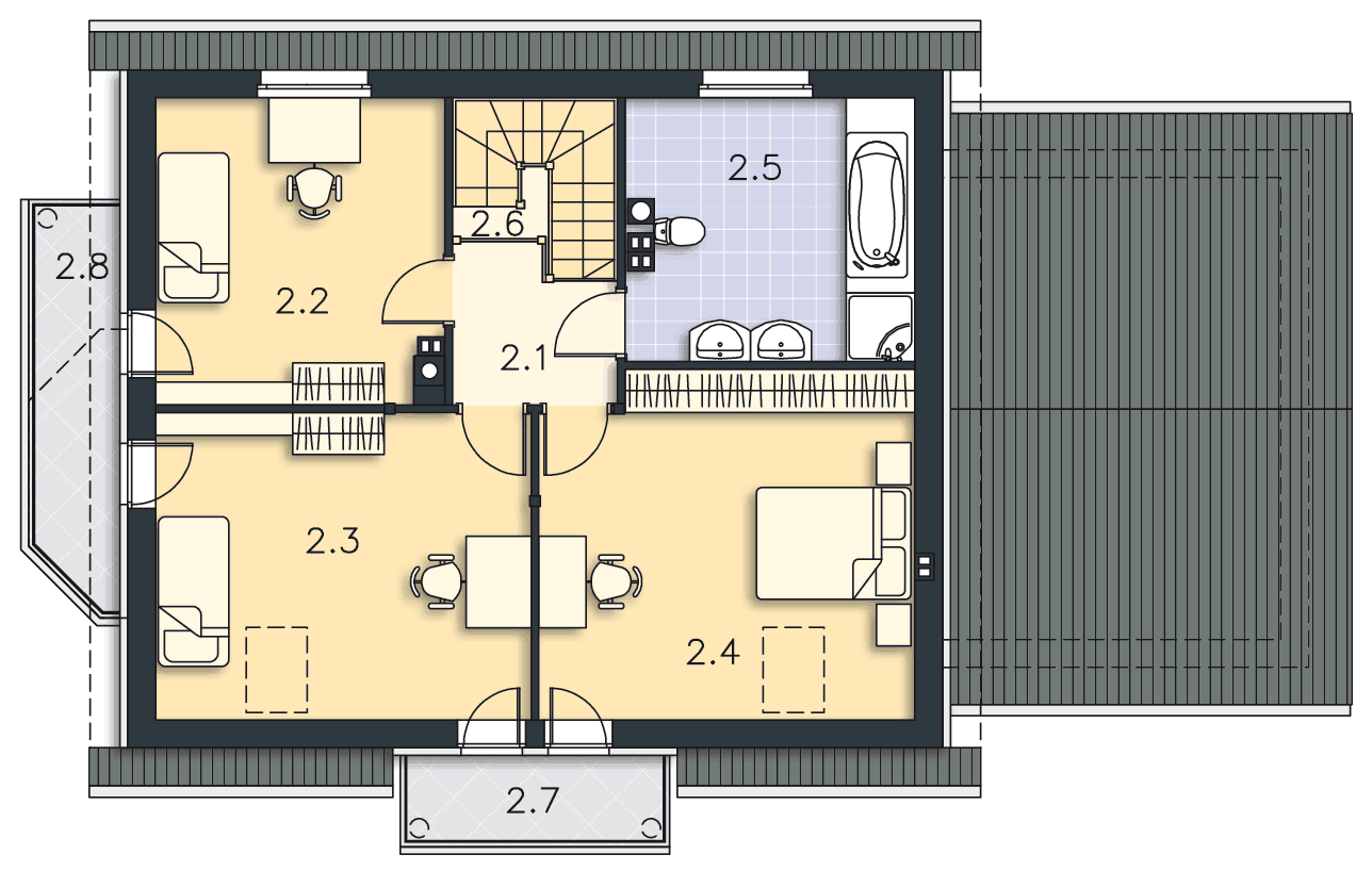
План мансарды
- 1. Коридор 4,03 м²
- 2. Комната 16,16 м²
- 3. Комната 13,51 м²
- 4. Комната 15,68 м²
- 5. Ванная комната 8,04 м²
- 6. Лестница 4,66 м²
- 7. Балкон 4,59 м²
- Балкон 6,69 м²
Площади дома
| № п/п | Наименование | Ед. из. | Строительная площадь | Полезная площадь |
| 1 | 1 этаж | м2 | 125.61 | 101.93 |
| 2 | 2 этаж | м2 | 69.11 | 56.08 |
| 3 | Итого | м2 | 194.72 | 158.01 |
154 м2
Полезная
площадь
площадь
9 x 17 м
Размеры
1 этаж
Этажей
26 м2
Террасы
и балконы
и балконы
1Без
гаража
гаража
4
Количество
спален
спален
2
Количество
санузлов
санузлов
Калькулятор опций
0₽
В ипотеку от 19 646 ₽/мес.
0₽
0 дней
stdClass Object
(
[id] => 1
[attribute_id] => 1
[name] => Ленточный монолитный ж/б
[material_modifier] => 1
[work_modifier] => 1
[options] => Array
(
[0] => размер 200 х 700 мм
[1] => размер 300 х 900 мм
[2] => размер 400 х 1 000 мм
[3] => размер 500 х 1 100 мм
[4] => размер 600 х 1 200 мм
)
[days] => [20,21,22,25,30]
[material_price] => [2823,3630,4475,5210,12047]
[work_price] => [2154,2826,3731,4577,5293]
[image] => https://akademik-stroy.ru/wp-content/uploads/materials/lentochnyj-monolitnyj-zh-b.jpg
[area_modifier] => 125.61
[parent_name] => Фундамент
[parent_id] => 1
[material_sum] => 468068
[work_sum] => 297620
[total_sum] => 765688
[total_days] => 20
[display_material_sum] => 468 068
[display_work_sum] => 297 620
[display_total_sum] => 765 688
)
1
765 688₽
Работа:297 620 ₽
Материалы:468 068 ₽
Дни:20
stdClass Object
(
[id] => 2
[attribute_id] => 1
[name] => Забивные Ж/Б сваи
[material_modifier] => 1
[work_modifier] => 1
[options] => Array
(
[0] => 150х150х3000мм
[1] => 150х150х4000мм
[2] => 200х200х3000мм
[3] => 200х200х4000мм
[4] => 200х200х5000мм
[5] => 200х200х6000мм
)
[days] => [2,2,2,2,2,2]
[material_price] => [1990,2850,3255,4360,5120,6837]
[work_price] => [1002,1185,1336,1438,1574,1839]
[image] => https://akademik-stroy.ru/wp-content/uploads/materials/zabivnye-zh-b-svai.png
[area_modifier] => 125.61
[parent_name] => Фундамент
[parent_id] => 1
[material_sum] => 329952
[work_sum] => 138447
[total_sum] => 468399
[total_days] => 2
[display_material_sum] => 329 952
[display_work_sum] => 138 447
[display_total_sum] => 468 399
)
1
468 399₽
Работа:138 447 ₽
Материалы:329 952 ₽
Дни:2
stdClass Object
(
[id] => 71
[attribute_id] => 1
[name] => Свайно-ростверковый ж/б
[material_modifier] => 1
[work_modifier] => 1
[options] => Array
(
[0] => ростверк 200х300 мм
[1] => ростверк 300х600 мм
[2] => ростверк 400х900 мм
[3] => ростверк 500х1200 мм
)
[days] => [20,23,25,27]
[material_price] => [3018,3474,7109,9792]
[work_price] => [2024,3012,5635,7022]
[image] => https://akademik-stroy.ru/wp-content/uploads/materials/svajno-rostverkovyj-monolitnyj-zh-b-3.png
[area_modifier] => 125.61
[parent_name] => Фундамент
[parent_id] => 1
[material_sum] => 500400
[work_sum] => 279658
[total_sum] => 780058
[total_days] => 20
[display_material_sum] => 500 400
[display_work_sum] => 279 658
[display_total_sum] => 780 058
)
1
780 058₽
Работа:279 658 ₽
Материалы:500 400 ₽
Дни:20
stdClass Object
(
[id] => 72
[attribute_id] => 1
[name] => Монолитная ж/б плита
[material_modifier] => 1
[work_modifier] => 1
[options] => Array
(
[0] => 200 мм
[1] => 300 мм
[2] => 400 мм
[3] => 500 мм
[4] => 600 мм
)
[days] => [30,33,35,37,40]
[material_price] => [5348,8555,12788,14388,15189]
[work_price] => [4314,4881,7037,8061,10230]
[image] => https://akademik-stroy.ru/wp-content/uploads/materials/monolitnaya-zhb-plita.png
[area_modifier] => 125.61
[parent_name] => Фундамент
[parent_id] => 1
[material_sum] => 886726
[work_sum] => 596070
[total_sum] => 1482796
[total_days] => 30
[display_material_sum] => 886 726
[display_work_sum] => 596 070
[display_total_sum] => 1 482 796
)
1
1 482 796₽
Работа:596 070 ₽
Материалы:886 726 ₽
Дни:30
stdClass Object
(
[id] => 73
[attribute_id] => 1
[name] => Утепленная шведская плита
[material_modifier] => 1
[work_modifier] => 1
[options] => Array
(
[0] => 200 мм
[1] => 300 мм
[2] => 400 мм
[3] => 500 мм
[4] => 600 мм
)
[days] => [32,37,39,42,45]
[material_price] => [10249,12692,13760,14936,16230]
[work_price] => [5960,7337,8072,8878,9765]
[image] => https://akademik-stroy.ru/wp-content/uploads/materials/uteplennaya-shvedskaya-plita.jpg
[area_modifier] => 125.61
[parent_name] => Фундамент
[parent_id] => 1
[material_sum] => 1699337
[work_sum] => 823499
[total_sum] => 2522836
[total_days] => 32
[display_material_sum] => 1 699 337
[display_work_sum] => 823 499
[display_total_sum] => 2 522 836
)
1
2 522 836₽
Работа:823 499 ₽
Материалы:1 699 337 ₽
Дни:32
stdClass Object
(
[id] => 75
[attribute_id] => 1
[name] => Ленточный из ФБС
[material_modifier] => 1
[work_modifier] => 1
[options] => Array
(
[0] => толщ. 300 мм
[1] => толщ. 400 мм
[2] => толщ. 500 мм
[3] => толщ. 600 мм
)
[days] => [20,20,20,20]
[material_price] => [3675,4902,6126,7350]
[work_price] => [2451,3264,4083,4902]
[image] => https://akademik-stroy.ru/wp-content/uploads/materials/lentochnyj-iz-fbs.png
[area_modifier] => 125.61
[parent_name] => Фундамент
[parent_id] => 1
[material_sum] => 609334
[work_sum] => 338657
[total_sum] => 947991
[total_days] => 20
[display_material_sum] => 609 334
[display_work_sum] => 338 657
[display_total_sum] => 947 991
)
1
947 991₽
Работа:338 657 ₽
Материалы:609 334 ₽
Дни:20
stdClass Object
(
[id] => 76
[attribute_id] => 1
[name] => Цокольный этаж из ФБС
[material_modifier] => 1
[work_modifier] => 1
[options] => Array
(
[0] => толщ. 300 мм
[1] => толщ. 400 мм
[2] => толщ. 500 мм
[3] => толщ. 600 мм
)
[days] => [30,32,34,36]
[material_price] => [20916,23299,26680,29060]
[work_price] => [17524,18700,19873,21046]
[image] => https://akademik-stroy.ru/wp-content/uploads/materials/cokolnyj-ehtazh-iz-fbs.jpg
[area_modifier] => 125.61
[parent_name] => Фундамент
[parent_id] => 1
[material_sum] => 3467982
[work_sum] => 2421309
[total_sum] => 5889291
[total_days] => 30
[display_material_sum] => 3 467 982
[display_work_sum] => 2 421 309
[display_total_sum] => 5 889 291
)
1
5 889 291₽
Работа:2 421 309 ₽
Материалы:3 467 982 ₽
Дни:30
stdClass Object
(
[id] => 77
[attribute_id] => 1
[name] => Цокольный этаж монолитный ж/б
[material_modifier] => 1
[work_modifier] => 1
[options] => Array
(
[0] => толщ. 200 мм
[1] => толщ. 300 мм
[2] => толщ. 400 мм
[3] => толщ. 500 мм
[4] => толщ. 600 мм
)
[days] => [40,42,44,46,48]
[material_price] => [25421,29148,32275,35602,37326]
[work_price] => [20441,21907,23375,24841,26306]
[image] => https://akademik-stroy.ru/wp-content/uploads/materials/cokolnyj-etazh-zh-b.jpg
[area_modifier] => 125.61
[parent_name] => Фундамент
[parent_id] => 1
[material_sum] => 4214934
[work_sum] => 2824353
[total_sum] => 7039287
[total_days] => 40
[display_material_sum] => 4 214 934
[display_work_sum] => 2 824 353
[display_total_sum] => 7 039 287
)
1
7 039 287₽
Работа:2 824 353 ₽
Материалы:4 214 934 ₽
Дни:40
stdClass Object
(
[id] => 191
[attribute_id] => 1
[name] => Винтовые сваи
[material_modifier] => 1
[work_modifier] => 1
[options] => Array
(
[0] => 57х200мм
[1] => 76х250мм
[2] => 108х300мм
[3] => 133х350мм
)
[days] => [1,1,2,2]
[material_price] => [1200,1300,1450,1600]
[work_price] => [400,600,900,1100]
[image] => https://akademik-stroy.ru/wp-content/uploads/materials/vintovye-svai.png
[area_modifier] => 125.61
[parent_name] => Фундамент
[parent_id] => 1
[material_sum] => 198966
[work_sum] => 55268
[total_sum] => 254234
[total_days] => 1
[display_material_sum] => 198 966
[display_work_sum] => 55 268
[display_total_sum] => 254 234
)
1
254 234₽
Работа:55 268 ₽
Материалы:198 966 ₽
Дни:1
stdClass Object
(
[id] => 3
[attribute_id] => 2
[name] => Деревянные балки
[material_modifier] => 1
[work_modifier] => 1
[options] => Array
(
[0] => без утепления
[1] => утепление 200 мм
[2] => утепление 250 мм
[3] => утепление 300 мм
[4] => утепление 350 мм
[5] => утепление 400 мм
[6] => утепление 450 мм
[7] => утепление 500 мм
)
[days] => [8,9,9,9,11,12,13,14]
[material_price] => [1634,2042,2344,2947,3149,3652,3354,3557]
[work_price] => [1230,1339,1393,1426,1460,1513,1587,1620]
[image] => https://akademik-stroy.ru/wp-content/uploads/materials/derevyannye-balki.png
[area_modifier] => 125.61
[parent_name] => Перекрытие цоколя
[parent_id] => 2
[material_sum] => 270926
[work_sum] => 169950
[total_sum] => 440876
[total_days] => 8
[display_material_sum] => 270 926
[display_work_sum] => 169 950
[display_total_sum] => 440 876
)
1
440 876₽
Работа:169 950 ₽
Материалы:270 926 ₽
Дни:8
stdClass Object
(
[id] => 4
[attribute_id] => 2
[name] => Сборные ж/б плиты
[material_modifier] => 1
[work_modifier] => 1
[options] => Array
(
[0] => без утепления
[1] => утепление 150мм
[2] => утепление 200мм
[3] => утепление 250мм
[4] => утепление 300мм
[5] => утепление 350мм
[6] => утепление 400мм
[7] => утепление 450мм
[8] => утепление 500мм
)
[days] => [13,15,15,15,15,15,15,15,15]
[material_price] => [3067,5577,5928,6679,7730,8782,9833,10884,11935]
[work_price] => [1520,1956,2102,2247,2392,2537,2684,2829,2974]
[image] => https://akademik-stroy.ru/wp-content/uploads/materials/sbornye-zh-b-plity-2.jpg
[area_modifier] => 125.61
[parent_name] => Перекрытие цоколя
[parent_id] => 2
[material_sum] => 508525
[work_sum] => 210020
[total_sum] => 718545
[total_days] => 13
[display_material_sum] => 508 525
[display_work_sum] => 210 020
[display_total_sum] => 718 545
)
1
718 545₽
Работа:210 020 ₽
Материалы:508 525 ₽
Дни:13
stdClass Object
(
[id] => 78
[attribute_id] => 2
[name] => Монолитная ж/б плита
[material_modifier] => 1
[work_modifier] => 1
[options] => Array
(
[0] => без утепления
[1] => утепление 150 мм
[2] => утепление 200 мм
[3] => утепление 250 мм
[4] => утепление 300 мм
[5] => утепление 350 мм
[6] => утепление 400 мм
[7] => утепление 450 мм
[8] => утепление 500 мм
)
[days] => [18,20,20,20,20,20,20,20,20]
[material_price] => [4837,6572,7224,7375,79426,8177,8728,9180,10031]
[work_price] => [3348,3921,4112,4302,4493,4684,4875,5066,5256]
[image] => https://akademik-stroy.ru/wp-content/uploads/materials/monolitnaya-zh-b-plita-2.jpg
[area_modifier] => 125.61
[parent_name] => Перекрытие цоколя
[parent_id] => 2
[material_sum] => 802000
[work_sum] => 462597
[total_sum] => 1264597
[total_days] => 18
[display_material_sum] => 802 000
[display_work_sum] => 462 597
[display_total_sum] => 1 264 597
)
1
1 264 597₽
Работа:462 597 ₽
Материалы:802 000 ₽
Дни:18
stdClass Object
(
[id] => 6
[attribute_id] => 3
[name] => Пеноблок
[material_modifier] => 1
[work_modifier] => 1
[options] => Array
(
[0] => 300 мм
[1] => 400 мм
[2] => 500 мм
[3] => 600 мм
)
[days] => [29,31,34,39]
[material_price] => [3000,4000,4500,4937]
[work_price] => [5033,5805,6400,8710]
[image] => https://akademik-stroy.ru/wp-content/uploads/materials/penoblok.jpg
[area_modifier] => 125.61
[parent_name] => Стены 1 этаж (несущие)
[parent_id] => 3
[material_sum] => 497416
[work_sum] => 695415
[total_sum] => 1192831
[total_days] => 29
[display_material_sum] => 497 416
[display_work_sum] => 695 415
[display_total_sum] => 1 192 831
)
1
1 192 831₽
Работа:695 415 ₽
Материалы:497 416 ₽
Дни:29
stdClass Object
(
[id] => 79
[attribute_id] => 3
[name] => Керамический блок
[material_modifier] => 1
[work_modifier] => 1
[options] => Array
(
[0] => 380 мм
[1] => 380 мм Thermo
[2] => 440 мм
[3] => 510 мм
)
[days] => [23,23,24,25]
[material_price] => [4510,5098,6093,8013]
[work_price] => [4737,4937,5903,6958]
[image] => https://akademik-stroy.ru/wp-content/uploads/materials/keramicheskij-blok.jpg
[area_modifier] => 125.61
[parent_name] => Стены 1 этаж (несущие)
[parent_id] => 3
[material_sum] => 747781
[work_sum] => 654516
[total_sum] => 1402297
[total_days] => 23
[display_material_sum] => 747 781
[display_work_sum] => 654 516
[display_total_sum] => 1 402 297
)
1
1 402 297₽
Работа:654 516 ₽
Материалы:747 781 ₽
Дни:23
stdClass Object
(
[id] => 80
[attribute_id] => 3
[name] => Кирпич
[material_modifier] => 1
[work_modifier] => 1
[options] => Array
(
[0] => Кирпич 250 мм
[1] => Кирпич 380 мм
[2] => Кирпич 510 мм
[3] => Кирпич 640 мм
[4] => Кирпич 770 мм
)
[days] => [30,30,31,33,36]
[material_price] => [5500,7142,9206,10171,12235]
[work_price] => [8736,10041,12018,15240,18462]
[image] => https://akademik-stroy.ru/wp-content/uploads/materials/kirpich.jpg
[area_modifier] => 125.61
[parent_name] => Стены 1 этаж (несущие)
[parent_id] => 3
[material_sum] => 911929
[work_sum] => 1207062
[total_sum] => 2118991
[total_days] => 30
[display_material_sum] => 911 929
[display_work_sum] => 1 207 062
[display_total_sum] => 2 118 991
)
1
2 118 991₽
Работа:1 207 062 ₽
Материалы:911 929 ₽
Дни:30
stdClass Object
(
[id] => 81
[attribute_id] => 3
[name] => Монолитные
[material_modifier] => 1
[work_modifier] => 1
[options] => Array
(
[0] => 150 мм
[1] => 200 мм
[2] => 250 мм
[3] => 300 мм
[4] => 350 мм
[5] => 400 мм
)
[days] => [45,46,47,49,50,53]
[material_price] => [6545,7876,10175,12011,13908,15204]
[work_price] => [5106,6444,7698,8552,9807,11461]
[image] => https://akademik-stroy.ru/wp-content/uploads/materials/monolitnye.jpg
[area_modifier] => 125.61
[parent_name] => Стены 1 этаж (несущие)
[parent_id] => 3
[material_sum] => 1085195
[work_sum] => 705501
[total_sum] => 1790696
[total_days] => 45
[display_material_sum] => 1 085 195
[display_work_sum] => 705 501
[display_total_sum] => 1 790 696
)
1
1 790 696₽
Работа:705 501 ₽
Материалы:1 085 195 ₽
Дни:45
stdClass Object
(
[id] => 82
[attribute_id] => 3
[name] => Клееный брус
[material_modifier] => 1
[work_modifier] => 1
[options] => Array
(
[0] => 160 мм
[1] => 175 мм
[2] => 200 мм
[3] => 215 мм
[4] => 240 мм
[5] => 270 мм
[6] => 282 мм
)
[days] => [24,28,32,37,40,42,48]
[material_price] => [16975,18773,19950,20545,21599,22159,23275]
[work_price] => [4806,5287,5815,6397,7036,7740,8514]
[image] => https://akademik-stroy.ru/wp-content/uploads/materials/kleenyj-brus.jpg
[area_modifier] => 125.61
[parent_name] => Стены 1 этаж (несущие)
[parent_id] => 3
[material_sum] => 2814543
[work_sum] => 664050
[total_sum] => 3478593
[total_days] => 24
[display_material_sum] => 2 814 543
[display_work_sum] => 664 050
[display_total_sum] => 3 478 593
)
1
3 478 593₽
Работа:664 050 ₽
Материалы:2 814 543 ₽
Дни:24
stdClass Object
(
[id] => 83
[attribute_id] => 3
[name] => Каркасные
[material_modifier] => 1
[work_modifier] => 1
[options] => Array
(
[0] => 150 мм
[1] => 200 мм
[2] => 250 мм
[3] => 300 мм
)
[days] => [15,16,17,18]
[material_price] => [2379,2639,2898,3258]
[work_price] => [2418,2686,2985,3716]
[image] => https://akademik-stroy.ru/wp-content/uploads/materials/karkasnye.jpg
[area_modifier] => 125.61
[parent_name] => Стены 1 этаж (несущие)
[parent_id] => 3
[material_sum] => 394451
[work_sum] => 334097
[total_sum] => 728548
[total_days] => 15
[display_material_sum] => 394 451
[display_work_sum] => 334 097
[display_total_sum] => 728 548
)
1
728 548₽
Работа:334 097 ₽
Материалы:394 451 ₽
Дни:15
stdClass Object
(
[id] => 84
[attribute_id] => 3
[name] => СИП-панели
[material_modifier] => 1
[work_modifier] => 1
[options] => Array
(
[0] => 120 мм
[1] => 170 мм
[2] => 220 мм
)
[days] => [7,7,7]
[material_price] => [1210,1856,2292]
[work_price] => [1410,1551,1706]
[image] => https://akademik-stroy.ru/wp-content/uploads/materials/sip-paneli.jpg
[area_modifier] => 125.61
[parent_name] => Стены 1 этаж (несущие)
[parent_id] => 3
[material_sum] => 200624
[work_sum] => 194821
[total_sum] => 395445
[total_days] => 7
[display_material_sum] => 200 624
[display_work_sum] => 194 821
[display_total_sum] => 395 445
)
1
395 445₽
Работа:194 821 ₽
Материалы:200 624 ₽
Дни:7
stdClass Object
(
[id] => 85
[attribute_id] => 3
[name] => Сухой брус
[material_modifier] => 1
[work_modifier] => 1
[options] => Array
(
[0] => 150 мм
[1] => 180 мм
[2] => 200 мм
)
[days] => [7,8,9]
[material_price] => [6010,7190,8709]
[work_price] => [3204,3845,4229]
[image] => https://akademik-stroy.ru/wp-content/uploads/materials/suhoj-brus.jpg
[area_modifier] => 125.61
[parent_name] => Стены 1 этаж (несущие)
[parent_id] => 3
[material_sum] => 996489
[work_sum] => 442700
[total_sum] => 1439189
[total_days] => 7
[display_material_sum] => 996 489
[display_work_sum] => 442 700
[display_total_sum] => 1 439 189
)
1
1 439 189₽
Работа:442 700 ₽
Материалы:996 489 ₽
Дни:7
stdClass Object
(
[id] => 86
[attribute_id] => 3
[name] => Профилированный брус
[material_modifier] => 1
[work_modifier] => 1
[options] => Array
(
[0] => 150 мм
[1] => 180 мм
[2] => 200 мм
)
[days] => [7,8,9]
[material_price] => [8190,9228,10051]
[work_price] => [3845,4614,5075]
[image] => https://akademik-stroy.ru/wp-content/uploads/materials/profilirovannyj-brus.jpg
[area_modifier] => 125.61
[parent_name] => Стены 1 этаж (несущие)
[parent_id] => 3
[material_sum] => 1357945
[work_sum] => 531267
[total_sum] => 1889212
[total_days] => 7
[display_material_sum] => 1 357 945
[display_work_sum] => 531 267
[display_total_sum] => 1 889 212
)
1
1 889 212₽
Работа:531 267 ₽
Материалы:1 357 945 ₽
Дни:7
stdClass Object
(
[id] => 87
[attribute_id] => 3
[name] => Оцилиндрованное бревно
[material_modifier] => 1
[work_modifier] => 1
[options] => Array
(
[0] => 180 мм
[1] => 220 мм
[2] => 260 мм
[3] => 320 мм
)
[days] => [7,8,9,10]
[material_price] => [75190,9532,10868,13116]
[work_price] => [3845,4691,5535,6863]
[image] => https://akademik-stroy.ru/wp-content/uploads/materials/ocilindrovannoe-brevno-1.jpg
[area_modifier] => 125.61
[parent_name] => Стены 1 этаж (несущие)
[parent_id] => 3
[material_sum] => 12466893
[work_sum] => 531267
[total_sum] => 12998160
[total_days] => 7
[display_material_sum] => 12 466 893
[display_work_sum] => 531 267
[display_total_sum] => 12 998 160
)
1
12 998 160₽
Работа:531 267 ₽
Материалы:12 466 893 ₽
Дни:7
stdClass Object
(
[id] => 88
[attribute_id] => 3
[name] => Срубы
[material_modifier] => 1
[work_modifier] => 1
[options] => Array
(
[0] => 260 мм
[1] => 320 мм
[2] => 360 мм
[3] => 400 мм
[4] => 500 мм
)
[days] => [7,8,9,10,11]
[material_price] => [37975,46709,52314,58069,73167]
[work_price] => [4806,5911,6621,7349,9260]
[image] => https://akademik-stroy.ru/wp-content/uploads/materials/sruby.jpg
[area_modifier] => 125.61
[parent_name] => Стены 1 этаж (несущие)
[parent_id] => 3
[material_sum] => 6296452
[work_sum] => 664050
[total_sum] => 6960502
[total_days] => 7
[display_material_sum] => 6 296 452
[display_work_sum] => 664 050
[display_total_sum] => 6 960 502
)
1
6 960 502₽
Работа:664 050 ₽
Материалы:6 296 452 ₽
Дни:7
stdClass Object
(
[id] => 174
[attribute_id] => 3
[name] => Брус
[material_modifier] => 1
[work_modifier] => 1
[options] => Array
(
[0] => 150 мм
[1] => 180 мм
[2] => 200 мм
)
[days] => [7,8,9]
[material_price] => [5127,6152,7367]
[work_price] => [1602,1922,2115]
[image] => https://akademik-stroy.ru/wp-content/uploads/materials/brus.jpg
[area_modifier] => 125.61
[parent_name] => Стены 1 этаж (несущие)
[parent_id] => 3
[material_sum] => 850083
[work_sum] => 221350
[total_sum] => 1071433
[total_days] => 7
[display_material_sum] => 850 083
[display_work_sum] => 221 350
[display_total_sum] => 1 071 433
)
1
1 071 433₽
Работа:221 350 ₽
Материалы:850 083 ₽
Дни:7
stdClass Object
(
[id] => 175
[attribute_id] => 3
[name] => Газобетон
[material_modifier] => 1
[work_modifier] => 1
[options] => Array
(
[0] => 300 мм
[1] => 375 мм
[2] => 400 мм
[3] => 500 мм
[4] => 600 мм
)
[days] => [29,31,35,37,44]
[material_price] => [4298,5573,6356,7288,9119]
[work_price] => [4538,5251,5926,6733,7195]
[image] => https://akademik-stroy.ru/wp-content/uploads/materials/gazobeton.jpg
[area_modifier] => 125.61
[parent_name] => Стены 1 этаж (несущие)
[parent_id] => 3
[material_sum] => 712631
[work_sum] => 627020
[total_sum] => 1339651
[total_days] => 29
[display_material_sum] => 712 631
[display_work_sum] => 627 020
[display_total_sum] => 1 339 651
)
1
1 339 651₽
Работа:627 020 ₽
Материалы:712 631 ₽
Дни:29
stdClass Object
(
[id] => 176
[attribute_id] => 3
[name] => Блок
[material_modifier] => 1
[work_modifier] => 1
[options] => Array
(
[0] => 300 мм
[1] => 375 мм
[2] => 400 мм
[3] => 500 мм
[4] => 600 мм
)
[days] => [29,31,35,37,44]
[material_price] => [2698,3973,4356,6588,7119]
[work_price] => [5038,5851,6426,8733,9195]
[image] => https://akademik-stroy.ru/wp-content/uploads/materials/blok.jpg
[area_modifier] => 125.61
[parent_name] => Стены 1 этаж (несущие)
[parent_id] => 3
[material_sum] => 447342
[work_sum] => 696105
[total_sum] => 1143447
[total_days] => 29
[display_material_sum] => 447 342
[display_work_sum] => 696 105
[display_total_sum] => 1 143 447
)
1
1 143 447₽
Работа:696 105 ₽
Материалы:447 342 ₽
Дни:29
stdClass Object
(
[id] => 177
[attribute_id] => 3
[name] => Газосиликатный блок
[material_modifier] => 1
[work_modifier] => 1
[options] => Array
(
[0] => 300 мм
[1] => 375 мм
[2] => 400 мм
[3] => 500 мм
[4] => 600 мм
)
[days] => [29,31,35,37,44]
[material_price] => [4298,5573,6356,7288,9119]
[work_price] => [4538,5251,5926,6733,7195]
[image] => https://akademik-stroy.ru/wp-content/uploads/materials/gazosilikatnyj-blok.jpg
[area_modifier] => 125.61
[parent_name] => Стены 1 этаж (несущие)
[parent_id] => 3
[material_sum] => 712631
[work_sum] => 627020
[total_sum] => 1339651
[total_days] => 29
[display_material_sum] => 712 631
[display_work_sum] => 627 020
[display_total_sum] => 1 339 651
)
1
1 339 651₽
Работа:627 020 ₽
Материалы:712 631 ₽
Дни:29
stdClass Object
(
[id] => 178
[attribute_id] => 3
[name] => Керамзитобетонный блок
[material_modifier] => 1
[work_modifier] => 1
[options] => Array
(
[0] => 300 мм
[1] => 375 мм
[2] => 400 мм
[3] => 500 мм
[4] => 600 мм
)
[days] => [23,23,24,25,28]
[material_price] => [3641,4298,5693,7613,9612]
[work_price] => [5737,5737,6903,7958,8901]
[image] => https://akademik-stroy.ru/wp-content/uploads/materials/keramzitobetonnyj-blok.jpg
[area_modifier] => 125.61
[parent_name] => Стены 1 этаж (несущие)
[parent_id] => 3
[material_sum] => 603697
[work_sum] => 792687
[total_sum] => 1396384
[total_days] => 23
[display_material_sum] => 603 697
[display_work_sum] => 792 687
[display_total_sum] => 1 396 384
)
1
1 396 384₽
Работа:792 687 ₽
Материалы:603 697 ₽
Дни:23
stdClass Object
(
[id] => 179
[attribute_id] => 3
[name] => Деревянные
[material_modifier] => 1
[work_modifier] => 1
[options] => Array
(
[0] => 180 мм
[1] => 220 мм
[2] => 260 мм
[3] => 320 мм
)
[days] => [7,8,9,10]
[material_price] => [7950,9458,11961,14472]
[work_price] => [4037,4925,5812,7207]
[image] => https://akademik-stroy.ru/wp-content/uploads/materials/derevyannye.jpg
[area_modifier] => 125.61
[parent_name] => Стены 1 этаж (несущие)
[parent_id] => 3
[material_sum] => 1318151
[work_sum] => 557796
[total_sum] => 1875947
[total_days] => 7
[display_material_sum] => 1 318 151
[display_work_sum] => 557 796
[display_total_sum] => 1 875 947
)
1
1 875 947₽
Работа:557 796 ₽
Материалы:1 318 151 ₽
Дни:7
stdClass Object
(
[id] => 181
[attribute_id] => 3
[name] => Камень
[material_modifier] => 1
[work_modifier] => 1
[options] => Array
(
[0] => 300 мм
[1] => 400 мм
[2] => 500 мм
[3] => 600 мм
)
[days] => [25,27,31,34]
[material_price] => [5262,6844,8330,9815]
[work_price] => [8331,9135,10427,11069]
[image] => https://akademik-stroy.ru/wp-content/uploads/materials/kamen.jpg
[area_modifier] => 125.61
[parent_name] => Стены 1 этаж (несущие)
[parent_id] => 3
[material_sum] => 872467
[work_sum] => 1151103
[total_sum] => 2023570
[total_days] => 25
[display_material_sum] => 872 467
[display_work_sum] => 1 151 103
[display_total_sum] => 2 023 570
)
1
2 023 570₽
Работа:1 151 103 ₽
Материалы:872 467 ₽
Дни:25
stdClass Object
(
[id] => 182
[attribute_id] => 3
[name] => Каркасно-щитовые
[material_modifier] => 1
[work_modifier] => 1
[options] => Array
(
[0] => 150 мм
[1] => 200 мм
[2] => 250 мм
[3] => 300 мм
[4] => 350 мм
[5] => 400 мм
)
[days] => [15,16,17,18,19,20]
[material_price] => [2379,2639,2898,3458,3601,4175]
[work_price] => [2538,2820,3134,3483,4062,5642]
[image] => https://akademik-stroy.ru/wp-content/uploads/materials/karkasno-shchitovye.jpg
[area_modifier] => 125.61
[parent_name] => Стены 1 этаж (несущие)
[parent_id] => 3
[material_sum] => 394451
[work_sum] => 350678
[total_sum] => 745129
[total_days] => 15
[display_material_sum] => 394 451
[display_work_sum] => 350 678
[display_total_sum] => 745 129
)
1
745 129₽
Работа:350 678 ₽
Материалы:394 451 ₽
Дни:15
stdClass Object
(
[id] => 183
[attribute_id] => 3
[name] => Рубленные
[material_modifier] => 1
[work_modifier] => 1
[options] => Array
(
[0] => 150 мм
[1] => 200 мм
[2] => 250 мм
[3] => 300 мм
[4] => 350 мм
[5] => 400 мм
)
[days] => [15,16,17,18,17,18]
[material_price] => [35950,50267,60583,75900,80217,100533]
[work_price] => [9612,12816,16020,19224,22428,25632]
[image] => https://akademik-stroy.ru/wp-content/uploads/materials/rublennye.jpg
[area_modifier] => 125.61
[parent_name] => Стены 1 этаж (несущие)
[parent_id] => 3
[material_sum] => 5960697
[work_sum] => 1328100
[total_sum] => 7288797
[total_days] => 15
[display_material_sum] => 5 960 697
[display_work_sum] => 1 328 100
[display_total_sum] => 7 288 797
)
1
7 288 797₽
Работа:1 328 100 ₽
Материалы:5 960 697 ₽
Дни:15
stdClass Object
(
[id] => 185
[attribute_id] => 3
[name] => Теплоблок
[material_modifier] => 1
[work_modifier] => 1
[options] => Array
(
[0] => 300 мм (с облицовкой, не покрашенный)
[1] => 400 мм (с облицовкой, не покрашенный)
[2] => 300 мм (с облицовкой, покрашенный)
[3] => 400 мм (с облицовкой, покрашенный)
)
[days] => [15,16,15,16]
[material_price] => [2888,3729,3957,4258]
[work_price] => [2564,3229,2949,3713]
[image] => https://akademik-stroy.ru/wp-content/uploads/materials/teploblok.jpg
[area_modifier] => 125.61
[parent_name] => Стены 1 этаж (несущие)
[parent_id] => 3
[material_sum] => 478845
[work_sum] => 354270
[total_sum] => 833115
[total_days] => 15
[display_material_sum] => 478 845
[display_work_sum] => 354 270
[display_total_sum] => 833 115
)
1
833 115₽
Работа:354 270 ₽
Материалы:478 845 ₽
Дни:15
stdClass Object
(
[id] => 186
[attribute_id] => 3
[name] => Арболитовые блоки
[material_modifier] => 1
[work_modifier] => 1
[options] => Array
(
[0] => 300 мм
[1] => 400 мм
[2] => 600 мм
)
[days] => [19,22,27]
[material_price] => [3210,4475,5852]
[work_price] => [4214,4788,5866]
[image] => https://akademik-stroy.ru/wp-content/uploads/materials/arbolitovye-bloki.png
[area_modifier] => 125.61
[parent_name] => Стены 1 этаж (несущие)
[parent_id] => 3
[material_sum] => 532235
[work_sum] => 582253
[total_sum] => 1114488
[total_days] => 19
[display_material_sum] => 532 235
[display_work_sum] => 582 253
[display_total_sum] => 1 114 488
)
1
1 114 488₽
Работа:582 253 ₽
Материалы:532 235 ₽
Дни:19
stdClass Object
(
[id] => 187
[attribute_id] => 3
[name] => Полистиролбетон
[material_modifier] => 1
[work_modifier] => 1
[options] => Array
(
[0] => 300 мм
[1] => 400 мм
[2] => 600 мм
)
[days] => [29,31,35]
[material_price] => [2798,4573,5256]
[work_price] => [5038,5851,6426]
[image] => https://akademik-stroy.ru/wp-content/uploads/materials/polistirolbeton.jpg
[area_modifier] => 125.61
[parent_name] => Стены 1 этаж (несущие)
[parent_id] => 3
[material_sum] => 463923
[work_sum] => 696105
[total_sum] => 1160028
[total_days] => 29
[display_material_sum] => 463 923
[display_work_sum] => 696 105
[display_total_sum] => 1 160 028
)
1
1 160 028₽
Работа:696 105 ₽
Материалы:463 923 ₽
Дни:29
stdClass Object
(
[id] => 188
[attribute_id] => 3
[name] => Шлакоблок
[material_modifier] => 1
[work_modifier] => 1
[options] => Array
(
[0] => 400 мм
[1] => 600 мм
)
[days] => [15,16]
[material_price] => [2391,3471]
[work_price] => [2642,3662]
[image] => https://akademik-stroy.ru/wp-content/uploads/materials/shlakoblok.jpg
[area_modifier] => 125.61
[parent_name] => Стены 1 этаж (несущие)
[parent_id] => 3
[material_sum] => 396440
[work_sum] => 365048
[total_sum] => 761488
[total_days] => 15
[display_material_sum] => 396 440
[display_work_sum] => 365 048
[display_total_sum] => 761 488
)
1
761 488₽
Работа:365 048 ₽
Материалы:396 440 ₽
Дни:15
stdClass Object
(
[id] => 189
[attribute_id] => 3
[name] => Теплая керамика
[material_modifier] => 1
[work_modifier] => 1
[options] => Array
(
[0] => 380 мм
[1] => 380 мм Thermo
[2] => 440 мм
[3] => 510 мм
)
[days] => [23,23,24,25]
[material_price] => [4510,5098,6093,8013]
[work_price] => [4737,4937,5903,6958]
[image] => https://akademik-stroy.ru/wp-content/uploads/materials/teplaya-keramika.jpg
[area_modifier] => 125.61
[parent_name] => Стены 1 этаж (несущие)
[parent_id] => 3
[material_sum] => 747781
[work_sum] => 654516
[total_sum] => 1402297
[total_days] => 23
[display_material_sum] => 747 781
[display_work_sum] => 654 516
[display_total_sum] => 1 402 297
)
1
1 402 297₽
Работа:654 516 ₽
Материалы:747 781 ₽
Дни:23
stdClass Object
(
[id] => 190
[attribute_id] => 3
[name] => Несъемная опалубка
[material_modifier] => 1
[work_modifier] => 1
[options] => Array
(
[0] => 200 мм
[1] => 250 мм
[2] => 300 мм
[3] => 350 мм
)
[days] => [15,17,19,21]
[material_price] => [3302,3902,4108,5008]
[work_price] => [2100,2100,2300,2534]
[image] => https://akademik-stroy.ru/wp-content/uploads/materials/nesemnaya-opalubka.jpg
[area_modifier] => 125.61
[parent_name] => Стены 1 этаж (несущие)
[parent_id] => 3
[material_sum] => 547489
[work_sum] => 290159
[total_sum] => 837648
[total_days] => 15
[display_material_sum] => 547 489
[display_work_sum] => 290 159
[display_total_sum] => 837 648
)
1
837 648₽
Работа:290 159 ₽
Материалы:547 489 ₽
Дни:15
stdClass Object
(
[id] => 251
[attribute_id] => 3
[name] => Бревно
[material_modifier] => 1
[work_modifier] => 1
[options] => Array
(
[0] => 260 мм
[1] => 320 мм
[2] => 360 мм
[3] => 400 мм
[4] => 500 мм
)
[days] => [7,8,9,10,11]
[material_price] => [1874,24045,26930,30972,38825]
[work_price] => [5046,6207,6952,7716,9723]
[image] => https://akademik-stroy.ru/wp-content/uploads/materials/sruby.jpg
[area_modifier] => 125.61
[parent_name] => Стены 1 этаж (несущие)
[parent_id] => 3
[material_sum] => 310719
[work_sum] => 697211
[total_sum] => 1007930
[total_days] => 7
[display_material_sum] => 310 719
[display_work_sum] => 697 211
[display_total_sum] => 1 007 930
)
1
1 007 930₽
Работа:697 211 ₽
Материалы:310 719 ₽
Дни:7
stdClass Object
(
[id] => 7
[attribute_id] => 4
[name] => Деревянные балки
[material_modifier] => 1
[work_modifier] => 1
[options] => Array
(
[0] => без утепления
[1] => утепление 200 мм
[2] => утепление 250 мм
[3] => утепление 300 мм
[4] => утепление 350 мм
[5] => утепление 400 мм
[6] => утепление 450 мм
[7] => утепление 500 мм
)
[days] => [8,9,9,9,11,12,13,14]
[material_price] => [1634,2042,2344,2947,3149,3652,3354,3557]
[work_price] => [1230,1339,1393,1426,1460,1513,1587,1620]
[image] => https://akademik-stroy.ru/wp-content/uploads/materials/derevyannye-balki.png
[area_modifier] => 125.61
[parent_name] => Перекрытие первого этажа
[parent_id] => 4
[material_sum] => 270926
[work_sum] => 169950
[total_sum] => 440876
[total_days] => 8
[display_material_sum] => 270 926
[display_work_sum] => 169 950
[display_total_sum] => 440 876
)
1
440 876₽
Работа:169 950 ₽
Материалы:270 926 ₽
Дни:8
stdClass Object
(
[id] => 8
[attribute_id] => 4
[name] => Сборные ж/б плиты
[material_modifier] => 1
[work_modifier] => 1
[options] => Array
(
[0] => без утепления
[1] => утепление 150 мм
[2] => утепление 200 мм
[3] => утепление 250 мм
[4] => утепление 300 мм
[5] => утепление 350 мм
[6] => утепление 400 мм
[7] => утепление 450 мм
[8] => утепление 500 мм
)
[days] => [13,15,15,15,15,15,15,15,15]
[material_price] => [3067,5577,5928,6679,7730,8782,9833,10884,11935]
[work_price] => [1520,1956,2102,2247,2392,2537,2684,2829,2974]
[image] => https://akademik-stroy.ru/wp-content/uploads/materials/sbornye-zh-b-plity-2.jpg
[area_modifier] => 125.61
[parent_name] => Перекрытие первого этажа
[parent_id] => 4
[material_sum] => 508525
[work_sum] => 210020
[total_sum] => 718545
[total_days] => 13
[display_material_sum] => 508 525
[display_work_sum] => 210 020
[display_total_sum] => 718 545
)
1
718 545₽
Работа:210 020 ₽
Материалы:508 525 ₽
Дни:13
stdClass Object
(
[id] => 89
[attribute_id] => 4
[name] => Монолитная ж/б плита
[material_modifier] => 1
[work_modifier] => 1
[options] => Array
(
[0] => без утепления
[1] => утепление 150 мм
[2] => утепление 200 мм
[3] => утепление 250 мм
[4] => утепление 300 мм
[5] => утепление 350 мм
[6] => утепление 400 мм
[7] => утепление 450 мм
[8] => утепление 500 мм
)
[days] => [18,20,20,20,20,20,20,20,20]
[material_price] => [4837,6572,7224,7375,79426,8177,8728,9180,10031]
[work_price] => [3348,3921,4112,4302,4493,4684,4875,5066,5256]
[image] => https://akademik-stroy.ru/wp-content/uploads/materials/monolitnaya-zh-b-plita-2.jpg
[area_modifier] => 125.61
[parent_name] => Перекрытие первого этажа
[parent_id] => 4
[material_sum] => 802000
[work_sum] => 462597
[total_sum] => 1264597
[total_days] => 18
[display_material_sum] => 802 000
[display_work_sum] => 462 597
[display_total_sum] => 1 264 597
)
1
1 264 597₽
Работа:462 597 ₽
Материалы:802 000 ₽
Дни:18
stdClass Object
(
[id] => 10
[attribute_id] => 5
[name] => Пеноблок
[material_modifier] => 1
[work_modifier] => 1
[options] => Array
(
[0] => 300 мм
[1] => 400 мм
[2] => 500 мм
[3] => 600 мм
)
[days] => [29,31,34,39]
[material_price] => [3000,4000,4500,4937]
[work_price] => [5033,5805,6400,8710]
[image] => https://akademik-stroy.ru/wp-content/uploads/materials/penoblok.jpg
[area_modifier] => 69.11
[parent_name] => Стены 2 этаж (несущие)
[parent_id] => 5
[material_sum] => 273676
[work_sum] => 382614
[total_sum] => 656290
[total_days] => 29
[display_material_sum] => 273 676
[display_work_sum] => 382 614
[display_total_sum] => 656 290
)
1
656 290₽
Работа:382 614 ₽
Материалы:273 676 ₽
Дни:29
stdClass Object
(
[id] => 90
[attribute_id] => 5
[name] => Керамический блок
[material_modifier] => 1
[work_modifier] => 1
[options] => Array
(
[0] => 380 мм
[1] => 380 мм Thermo
[2] => 440 мм
[3] => 510 мм
)
[days] => [23,23,24,25]
[material_price] => [4510,5098,6093,8013]
[work_price] => [4737,4937,5903,6958]
[image] => https://akademik-stroy.ru/wp-content/uploads/materials/keramicheskij-blok.jpg
[area_modifier] => 69.11
[parent_name] => Стены 2 этаж (несущие)
[parent_id] => 5
[material_sum] => 411426
[work_sum] => 360111
[total_sum] => 771537
[total_days] => 23
[display_material_sum] => 411 426
[display_work_sum] => 360 111
[display_total_sum] => 771 537
)
1
771 537₽
Работа:360 111 ₽
Материалы:411 426 ₽
Дни:23
stdClass Object
(
[id] => 91
[attribute_id] => 5
[name] => Кирпич
[material_modifier] => 1
[work_modifier] => 1
[options] => Array
(
[0] => Кирпич 250 мм
[1] => Кирпич 380 мм
[2] => Кирпич 510 мм
[3] => Кирпич 640 мм
[4] => Кирпич 770 мм
)
[days] => [30,30,31,33,36]
[material_price] => [5500,7142,9206,10171,12235]
[work_price] => [8736,10041,12018,15240,18462]
[image] => https://akademik-stroy.ru/wp-content/uploads/materials/kirpich.jpg
[area_modifier] => 69.11
[parent_name] => Стены 2 этаж (несущие)
[parent_id] => 5
[material_sum] => 501739
[work_sum] => 664119
[total_sum] => 1165858
[total_days] => 30
[display_material_sum] => 501 739
[display_work_sum] => 664 119
[display_total_sum] => 1 165 858
)
1
1 165 858₽
Работа:664 119 ₽
Материалы:501 739 ₽
Дни:30
stdClass Object
(
[id] => 92
[attribute_id] => 5
[name] => Монолитные
[material_modifier] => 1
[work_modifier] => 1
[options] => Array
(
[0] => 150 мм
[1] => 200 мм
[2] => 250 мм
[3] => 300 мм
[4] => 350 мм
[5] => 400 мм
)
[days] => [45,46,47,49,50,53]
[material_price] => [6545,7876,10175,12011,13908,15204]
[work_price] => [5106,6444,7698,8552,9807,11461]
[image] => https://akademik-stroy.ru/wp-content/uploads/materials/monolitnye.jpg
[area_modifier] => 69.11
[parent_name] => Стены 2 этаж (несущие)
[parent_id] => 5
[material_sum] => 597069
[work_sum] => 388163
[total_sum] => 985232
[total_days] => 45
[display_material_sum] => 597 069
[display_work_sum] => 388 163
[display_total_sum] => 985 232
)
1
985 232₽
Работа:388 163 ₽
Материалы:597 069 ₽
Дни:45
stdClass Object
(
[id] => 93
[attribute_id] => 5
[name] => Клееный брус
[material_modifier] => 1
[work_modifier] => 1
[options] => Array
(
[0] => 160 мм
[1] => 175 мм
[2] => 200 мм
[3] => 215 мм
[4] => 240 мм
[5] => 270 мм
[6] => 282 мм
)
[days] => [24,28,32,37,40,42,48]
[material_price] => [16975,18773,19950,20545,21599,22159,23275]
[work_price] => [4806,5287,5815,6397,7036,7740,8514]
[image] => https://akademik-stroy.ru/wp-content/uploads/materials/kleenyj-brus.jpg
[area_modifier] => 69.11
[parent_name] => Стены 2 этаж (несущие)
[parent_id] => 5
[material_sum] => 1548548
[work_sum] => 365357
[total_sum] => 1913905
[total_days] => 24
[display_material_sum] => 1 548 548
[display_work_sum] => 365 357
[display_total_sum] => 1 913 905
)
1
1 913 905₽
Работа:365 357 ₽
Материалы:1 548 548 ₽
Дни:24
stdClass Object
(
[id] => 94
[attribute_id] => 5
[name] => Каркасные
[material_modifier] => 1
[work_modifier] => 1
[options] => Array
(
[0] => 150 мм
[1] => 200 мм
[2] => 250 мм
[3] => 300 мм
)
[days] => [15,16,17,18]
[material_price] => [2379,2639,2898,3258]
[work_price] => [2418,2686,2985,3716]
[image] => https://akademik-stroy.ru/wp-content/uploads/materials/karkasnye.jpg
[area_modifier] => 69.11
[parent_name] => Стены 2 этаж (несущие)
[parent_id] => 5
[material_sum] => 217025
[work_sum] => 183819
[total_sum] => 400844
[total_days] => 15
[display_material_sum] => 217 025
[display_work_sum] => 183 819
[display_total_sum] => 400 844
)
1
400 844₽
Работа:183 819 ₽
Материалы:217 025 ₽
Дни:15
stdClass Object
(
[id] => 95
[attribute_id] => 5
[name] => СИП-панели
[material_modifier] => 1
[work_modifier] => 1
[options] => Array
(
[0] => 120 мм
[1] => 170 мм
[2] => 220 мм
)
[days] => [7,7,7]
[material_price] => [1210,1856,2292]
[work_price] => [1410,1551,1706]
[image] => https://akademik-stroy.ru/wp-content/uploads/materials/sip-paneli.jpg
[area_modifier] => 69.11
[parent_name] => Стены 2 этаж (несущие)
[parent_id] => 5
[material_sum] => 110382
[work_sum] => 107190
[total_sum] => 217572
[total_days] => 7
[display_material_sum] => 110 382
[display_work_sum] => 107 190
[display_total_sum] => 217 572
)
1
217 572₽
Работа:107 190 ₽
Материалы:110 382 ₽
Дни:7
stdClass Object
(
[id] => 96
[attribute_id] => 5
[name] => Сухой брус
[material_modifier] => 1
[work_modifier] => 1
[options] => Array
(
[0] => 150 мм
[1] => 180 мм
[2] => 200 мм
)
[days] => [7,8,9]
[material_price] => [6010,7190,8709]
[work_price] => [3204,3845,4229]
[image] => https://akademik-stroy.ru/wp-content/uploads/materials/suhoj-brus.jpg
[area_modifier] => 69.11
[parent_name] => Стены 2 этаж (несущие)
[parent_id] => 5
[material_sum] => 548263
[work_sum] => 243571
[total_sum] => 791834
[total_days] => 7
[display_material_sum] => 548 263
[display_work_sum] => 243 571
[display_total_sum] => 791 834
)
1
791 834₽
Работа:243 571 ₽
Материалы:548 263 ₽
Дни:7
stdClass Object
(
[id] => 97
[attribute_id] => 5
[name] => Профилированный брус
[material_modifier] => 1
[work_modifier] => 1
[options] => Array
(
[0] => 150 мм
[1] => 180 мм
[2] => 200 мм
)
[days] => [7,8,9]
[material_price] => [8190,9228,10051]
[work_price] => [3845,4614,5075]
[image] => https://akademik-stroy.ru/wp-content/uploads/materials/profilirovannyj-brus.jpg
[area_modifier] => 69.11
[parent_name] => Стены 2 этаж (несущие)
[parent_id] => 5
[material_sum] => 747134
[work_sum] => 292301
[total_sum] => 1039435
[total_days] => 7
[display_material_sum] => 747 134
[display_work_sum] => 292 301
[display_total_sum] => 1 039 435
)
1
1 039 435₽
Работа:292 301 ₽
Материалы:747 134 ₽
Дни:7
stdClass Object
(
[id] => 98
[attribute_id] => 5
[name] => Оцилиндрованное бревно
[material_modifier] => 1
[work_modifier] => 1
[options] => Array
(
[0] => 180 мм
[1] => 220 мм
[2] => 260 мм
[3] => 320 мм
)
[days] => [7,8,9,10]
[material_price] => [75190,9532,10868,13116]
[work_price] => [3845,4691,5535,6863]
[image] => https://akademik-stroy.ru/wp-content/uploads/materials/ocilindrovannoe-brevno-1.jpg
[area_modifier] => 69.11
[parent_name] => Стены 2 этаж (несущие)
[parent_id] => 5
[material_sum] => 6859223
[work_sum] => 292301
[total_sum] => 7151524
[total_days] => 7
[display_material_sum] => 6 859 223
[display_work_sum] => 292 301
[display_total_sum] => 7 151 524
)
1
7 151 524₽
Работа:292 301 ₽
Материалы:6 859 223 ₽
Дни:7
stdClass Object
(
[id] => 99
[attribute_id] => 5
[name] => Срубы
[material_modifier] => 1
[work_modifier] => 1
[options] => Array
(
[0] => 260 мм
[1] => 320 мм
[2] => 360 мм
[3] => 400 мм
[4] => 500 мм
)
[days] => [7,8,9,10,11]
[material_price] => [16175,23709,26314,29069,32167]
[work_price] => [4806,5911,6621,7349,9260]
[image] => https://akademik-stroy.ru/wp-content/uploads/materials/suhoj-brus.jpg
[area_modifier] => 69.11
[parent_name] => Стены 2 этаж (несущие)
[parent_id] => 5
[material_sum] => 1475568
[work_sum] => 365357
[total_sum] => 1840925
[total_days] => 7
[display_material_sum] => 1 475 568
[display_work_sum] => 365 357
[display_total_sum] => 1 840 925
)
1
1 840 925₽
Работа:365 357 ₽
Материалы:1 475 568 ₽
Дни:7
stdClass Object
(
[id] => 194
[attribute_id] => 5
[name] => Брус
[material_modifier] => 1
[work_modifier] => 1
[options] => Array
(
[0] => 150 мм
[1] => 180 мм
[2] => 200 мм
)
[days] => [10,13,15]
[material_price] => [5127,6152,7367]
[work_price] => [1602,1922,2115]
[image] => https://akademik-stroy.ru/wp-content/uploads/materials/brus.jpg
[area_modifier] => 69.11
[parent_name] => Стены 2 этаж (несущие)
[parent_id] => 5
[material_sum] => 467712
[work_sum] => 121786
[total_sum] => 589498
[total_days] => 10
[display_material_sum] => 467 712
[display_work_sum] => 121 786
[display_total_sum] => 589 498
)
1
589 498₽
Работа:121 786 ₽
Материалы:467 712 ₽
Дни:10
stdClass Object
(
[id] => 195
[attribute_id] => 5
[name] => Газобетон
[material_modifier] => 1
[work_modifier] => 1
[options] => Array
(
[0] => 300 мм
[1] => 375 мм
[2] => 400 мм
[3] => 500 мм
[4] => 600 мм
)
[days] => [29,31,35,37,44]
[material_price] => [4298,5573,6356,7288,9119]
[work_price] => [4538,5251,5926,6733,7195]
[image] => https://akademik-stroy.ru/wp-content/uploads/materials/gazobeton.jpg
[area_modifier] => 69.11
[parent_name] => Стены 2 этаж (несущие)
[parent_id] => 5
[material_sum] => 392086
[work_sum] => 344983
[total_sum] => 737069
[total_days] => 29
[display_material_sum] => 392 086
[display_work_sum] => 344 983
[display_total_sum] => 737 069
)
1
737 069₽
Работа:344 983 ₽
Материалы:392 086 ₽
Дни:29
stdClass Object
(
[id] => 196
[attribute_id] => 5
[name] => Блок
[material_modifier] => 1
[work_modifier] => 1
[options] => Array
(
[0] => 300 мм
[1] => 375 мм
[2] => 400 мм
[3] => 500 мм
[4] => 600 мм
)
[days] => [29,31,35,37,44]
[material_price] => [2698,3973,4356,6588,7119]
[work_price] => [5038,5851,6426,8733,9195]
[image] => https://akademik-stroy.ru/wp-content/uploads/materials/blok.jpg
[area_modifier] => 69.11
[parent_name] => Стены 2 этаж (несущие)
[parent_id] => 5
[material_sum] => 246126
[work_sum] => 382994
[total_sum] => 629120
[total_days] => 29
[display_material_sum] => 246 126
[display_work_sum] => 382 994
[display_total_sum] => 629 120
)
1
629 120₽
Работа:382 994 ₽
Материалы:246 126 ₽
Дни:29
stdClass Object
(
[id] => 197
[attribute_id] => 5
[name] => Газосиликатный блок
[material_modifier] => 1
[work_modifier] => 1
[options] => Array
(
[0] => 300 мм
[1] => 375 мм
[2] => 400 мм
[3] => 500 мм
[4] => 600 мм
)
[days] => [29,31,35,37,44]
[material_price] => [4298,5573,6356,7288,9119]
[work_price] => [4538,5251,5926,6733,7195]
[image] => https://akademik-stroy.ru/wp-content/uploads/materials/gazosilikatnyj-blok.jpg
[area_modifier] => 69.11
[parent_name] => Стены 2 этаж (несущие)
[parent_id] => 5
[material_sum] => 392086
[work_sum] => 344983
[total_sum] => 737069
[total_days] => 29
[display_material_sum] => 392 086
[display_work_sum] => 344 983
[display_total_sum] => 737 069
)
1
737 069₽
Работа:344 983 ₽
Материалы:392 086 ₽
Дни:29
stdClass Object
(
[id] => 198
[attribute_id] => 5
[name] => Керамзитобетонный блок
[material_modifier] => 1
[work_modifier] => 1
[options] => Array
(
[0] => 300 мм
[1] => 375 мм
[2] => 400 мм
[3] => 500 мм
[4] => 600 мм
)
[days] => [23,23,24,25,28]
[material_price] => [3641,4298,5693,7613,9612]
[work_price] => [5737,5737,6903,7958,8901]
[image] => https://akademik-stroy.ru/wp-content/uploads/materials/keramzitobetonnyj-blok.jpg
[area_modifier] => 69.11
[parent_name] => Стены 2 этаж (несущие)
[parent_id] => 5
[material_sum] => 332151
[work_sum] => 436132
[total_sum] => 768283
[total_days] => 23
[display_material_sum] => 332 151
[display_work_sum] => 436 132
[display_total_sum] => 768 283
)
1
768 283₽
Работа:436 132 ₽
Материалы:332 151 ₽
Дни:23
stdClass Object
(
[id] => 199
[attribute_id] => 5
[name] => Деревянные
[material_modifier] => 1
[work_modifier] => 1
[options] => Array
(
[0] => 180 мм
[1] => 220 мм
[2] => 260 мм
[3] => 320 мм
)
[days] => [7,8,9,10]
[material_price] => [7950,9458,11961,14472]
[work_price] => [4037,4925,5812,7207]
[image] => https://akademik-stroy.ru/wp-content/uploads/materials/derevyannye.jpg
[area_modifier] => 69.11
[parent_name] => Стены 2 этаж (несущие)
[parent_id] => 5
[material_sum] => 725240
[work_sum] => 306897
[total_sum] => 1032137
[total_days] => 7
[display_material_sum] => 725 240
[display_work_sum] => 306 897
[display_total_sum] => 1 032 137
)
1
1 032 137₽
Работа:306 897 ₽
Материалы:725 240 ₽
Дни:7
stdClass Object
(
[id] => 200
[attribute_id] => 5
[name] => Камень
[material_modifier] => 1
[work_modifier] => 1
[options] => Array
(
[0] => 300 мм
[1] => 400 мм
[2] => 500 мм
[3] => 600 мм
)
[days] => [25,27,31,34]
[material_price] => [5262,6844,8330,9815]
[work_price] => [8331,9135,10427,11069]
[image] => https://akademik-stroy.ru/wp-content/uploads/materials/kamen.jpg
[area_modifier] => 69.11
[parent_name] => Стены 2 этаж (несущие)
[parent_id] => 5
[material_sum] => 480027
[work_sum] => 633331
[total_sum] => 1113358
[total_days] => 25
[display_material_sum] => 480 027
[display_work_sum] => 633 331
[display_total_sum] => 1 113 358
)
1
1 113 358₽
Работа:633 331 ₽
Материалы:480 027 ₽
Дни:25
stdClass Object
(
[id] => 201
[attribute_id] => 5
[name] => Каркасно-щитовые
[material_modifier] => 1
[work_modifier] => 1
[options] => Array
(
[0] => 150 мм
[1] => 200 мм
[2] => 250 мм
[3] => 300 мм
[4] => 350 мм
[5] => 400 мм
)
[days] => [15,16,17,18,19,20]
[material_price] => [2379,2639,2898,3458,3601,4175]
[work_price] => [2538,2820,3134,3483,4062,5642]
[image] => https://akademik-stroy.ru/wp-content/uploads/materials/karkasno-shchitovye.jpg
[area_modifier] => 69.11
[parent_name] => Стены 2 этаж (несущие)
[parent_id] => 5
[material_sum] => 217025
[work_sum] => 192941
[total_sum] => 409966
[total_days] => 15
[display_material_sum] => 217 025
[display_work_sum] => 192 941
[display_total_sum] => 409 966
)
1
409 966₽
Работа:192 941 ₽
Материалы:217 025 ₽
Дни:15
stdClass Object
(
[id] => 202
[attribute_id] => 5
[name] => Рубленные
[material_modifier] => 1
[work_modifier] => 1
[options] => Array
(
[0] => 150 мм
[1] => 200 мм
[2] => 250 мм
[3] => 300 мм
[4] => 350 мм
[5] => 400 мм
)
[days] => [15,16,17,18,17,18]
[material_price] => [35950,50267,60583,75900,80217,100533]
[work_price] => [9612,12816,16020,19224,22428,25632]
[image] => https://akademik-stroy.ru/wp-content/uploads/materials/rublennye.jpg
[area_modifier] => 69.11
[parent_name] => Стены 2 этаж (несущие)
[parent_id] => 5
[material_sum] => 3279546
[work_sum] => 730714
[total_sum] => 4010260
[total_days] => 15
[display_material_sum] => 3 279 546
[display_work_sum] => 730 714
[display_total_sum] => 4 010 260
)
1
4 010 260₽
Работа:730 714 ₽
Материалы:3 279 546 ₽
Дни:15
stdClass Object
(
[id] => 203
[attribute_id] => 5
[name] => Теплоблок
[material_modifier] => 1
[work_modifier] => 1
[options] => Array
(
[0] => 300 мм (с облицовкой, не покрашенный)
[1] => 400 мм (с облицовкой, не покрашенный)
[2] => 300 мм (с облицовкой, покрашенный)
[3] => 400 мм (с облицовкой, покрашенный)
)
[days] => [15,16,15,16]
[material_price] => [2888,3729,3957,4258]
[work_price] => [2564,3229,2949,3713]
[image] => https://akademik-stroy.ru/wp-content/uploads/materials/teploblok.jpg
[area_modifier] => 69.11
[parent_name] => Стены 2 этаж (несущие)
[parent_id] => 5
[material_sum] => 263458
[work_sum] => 194918
[total_sum] => 458376
[total_days] => 15
[display_material_sum] => 263 458
[display_work_sum] => 194 918
[display_total_sum] => 458 376
)
1
458 376₽
Работа:194 918 ₽
Материалы:263 458 ₽
Дни:15
stdClass Object
(
[id] => 204
[attribute_id] => 5
[name] => Арболитовые блоки
[material_modifier] => 1
[work_modifier] => 1
[options] => Array
(
[0] => 300 мм
[1] => 400 мм
[2] => 600 мм
)
[days] => [19,22,27]
[material_price] => [3210,4475,5852]
[work_price] => [4214,4788,5866]
[image] => https://akademik-stroy.ru/wp-content/uploads/materials/arbolitovye-bloki.png
[area_modifier] => 69.11
[parent_name] => Стены 2 этаж (несущие)
[parent_id] => 5
[material_sum] => 292833
[work_sum] => 320352
[total_sum] => 613185
[total_days] => 19
[display_material_sum] => 292 833
[display_work_sum] => 320 352
[display_total_sum] => 613 185
)
1
613 185₽
Работа:320 352 ₽
Материалы:292 833 ₽
Дни:19
stdClass Object
(
[id] => 205
[attribute_id] => 5
[name] => Полистиролбетон
[material_modifier] => 1
[work_modifier] => 1
[options] => Array
(
[0] => 300 мм
[1] => 400 мм
[2] => 600 мм
)
[days] => [29,31,35]
[material_price] => [2798,4573,5256]
[work_price] => [5038,5851,6426]
[image] => https://akademik-stroy.ru/wp-content/uploads/materials/polistirolbeton.jpg
[area_modifier] => 69.11
[parent_name] => Стены 2 этаж (несущие)
[parent_id] => 5
[material_sum] => 255248
[work_sum] => 382994
[total_sum] => 638242
[total_days] => 29
[display_material_sum] => 255 248
[display_work_sum] => 382 994
[display_total_sum] => 638 242
)
1
638 242₽
Работа:382 994 ₽
Материалы:255 248 ₽
Дни:29
stdClass Object
(
[id] => 206
[attribute_id] => 5
[name] => Шлакоблок
[material_modifier] => 1
[work_modifier] => 1
[options] => Array
(
[0] => 400 мм
[1] => 600 мм
)
[days] => [15,16]
[material_price] => [2391,3471]
[work_price] => [2642,3662]
[image] => https://akademik-stroy.ru/wp-content/uploads/materials/shlakoblok.jpg
[area_modifier] => 69.11
[parent_name] => Стены 2 этаж (несущие)
[parent_id] => 5
[material_sum] => 218119
[work_sum] => 200847
[total_sum] => 418966
[total_days] => 15
[display_material_sum] => 218 119
[display_work_sum] => 200 847
[display_total_sum] => 418 966
)
1
418 966₽
Работа:200 847 ₽
Материалы:218 119 ₽
Дни:15
stdClass Object
(
[id] => 245
[attribute_id] => 5
[name] => Теплая керамика
[material_modifier] => 1
[work_modifier] => 1
[options] => Array
(
[0] => 380 мм
[1] => 380 мм Thermo
[2] => 440 мм
[3] => 510 мм
)
[days] => [10,10,11,12]
[material_price] => [4510,5098,6093,8013]
[work_price] => [4737,4937,5903,6958]
[image] => https://akademik-stroy.ru/wp-content/uploads/materials/teplaya-keramika.jpg
[area_modifier] => 69.11
[parent_name] => Стены 2 этаж (несущие)
[parent_id] => 5
[material_sum] => 411426
[work_sum] => 360111
[total_sum] => 771537
[total_days] => 10
[display_material_sum] => 411 426
[display_work_sum] => 360 111
[display_total_sum] => 771 537
)
1
771 537₽
Работа:360 111 ₽
Материалы:411 426 ₽
Дни:10
stdClass Object
(
[id] => 246
[attribute_id] => 5
[name] => Несъемная опалубка
[material_modifier] => 1
[work_modifier] => 1
[options] => Array
(
[0] => 380 мм
[1] => 380 мм Thermo
[2] => 440 мм
[3] => 510 мм
)
[days] => [10,10,11,12]
[material_price] => [3302,3902,4108,5008]
[work_price] => [2100,2100,2300,2534]
[image] => https://akademik-stroy.ru/wp-content/uploads/materials/nesemnaya-opalubka.jpg
[area_modifier] => 69.11
[parent_name] => Стены 2 этаж (несущие)
[parent_id] => 5
[material_sum] => 301226
[work_sum] => 159644
[total_sum] => 460870
[total_days] => 10
[display_material_sum] => 301 226
[display_work_sum] => 159 644
[display_total_sum] => 460 870
)
1
460 870₽
Работа:159 644 ₽
Материалы:301 226 ₽
Дни:10
stdClass Object
(
[id] => 254
[attribute_id] => 5
[name] => Бревно
[material_modifier] => 1
[work_modifier] => 1
[options] => Array
(
[0] => 260 мм
[1] => 320 мм
[2] => 360 мм
[3] => 400 мм
[4] => 500 мм
)
[days] => [7,8,9,10,11]
[material_price] => [1874,24045,26930,30972,38825]
[work_price] => [5046,6207,6952,7716,9723]
[image] => https://akademik-stroy.ru/wp-content/uploads/materials/sruby.jpg
[area_modifier] => 69.11
[parent_name] => Стены 2 этаж (несущие)
[parent_id] => 5
[material_sum] => 170956
[work_sum] => 383602
[total_sum] => 554558
[total_days] => 7
[display_material_sum] => 170 956
[display_work_sum] => 383 602
[display_total_sum] => 554 558
)
1
554 558₽
Работа:383 602 ₽
Материалы:170 956 ₽
Дни:7
stdClass Object
(
[id] => 164
[attribute_id] => 37
[name] => Металлочерепица
[material_modifier] => 1
[work_modifier] => 1
[options] => Array
(
)
[days] => [20]
[material_price] => [6112]
[work_price] => [5726]
[image] => https://akademik-stroy.ru/wp-content/uploads/materials/metallocherepica.jpg
[area_modifier] => 125.61
[parent_name] => Крыша (Скатная)
[parent_id] => 37
[material_sum] => 1013401
[work_sum] => 791167
[total_sum] => 1804568
[total_days] => 20
[display_material_sum] => 1 013 401
[display_work_sum] => 791 167
[display_total_sum] => 1 804 568
)
1
1 804 568₽
Работа:791 167 ₽
Материалы:1 013 401 ₽
Дни:20
stdClass Object
(
[id] => 165
[attribute_id] => 37
[name] => Гибкая черепица
[material_modifier] => 1
[work_modifier] => 1
[options] => Array
(
)
[days] => [20]
[material_price] => [6980]
[work_price] => [5950]
[image] => https://akademik-stroy.ru/wp-content/uploads/materials/gibkaya-cherepica.jpg
[area_modifier] => 125.61
[parent_name] => Крыша (Скатная)
[parent_id] => 37
[material_sum] => 1157320
[work_sum] => 822117
[total_sum] => 1979437
[total_days] => 20
[display_material_sum] => 1 157 320
[display_work_sum] => 822 117
[display_total_sum] => 1 979 437
)
1
1 979 437₽
Работа:822 117 ₽
Материалы:1 157 320 ₽
Дни:20
stdClass Object
(
[id] => 166
[attribute_id] => 37
[name] => Цементно-песчаная черепица
[material_modifier] => 1
[work_modifier] => 1
[options] => Array
(
)
[days] => [20]
[material_price] => [10560]
[work_price] => [9456]
[image] => https://akademik-stroy.ru/wp-content/uploads/materials/cementno-peschanaya-cherepica.jpg
[area_modifier] => 125.61
[parent_name] => Крыша (Скатная)
[parent_id] => 37
[material_sum] => 1750903
[work_sum] => 1306545
[total_sum] => 3057448
[total_days] => 20
[display_material_sum] => 1 750 903
[display_work_sum] => 1 306 545
[display_total_sum] => 3 057 448
)
1
3 057 448₽
Работа:1 306 545 ₽
Материалы:1 750 903 ₽
Дни:20
stdClass Object
(
[id] => 167
[attribute_id] => 37
[name] => Композитная черепица
[material_modifier] => 1
[work_modifier] => 1
[options] => Array
(
)
[days] => [20]
[material_price] => [9506]
[work_price] => [8905]
[image] => https://akademik-stroy.ru/wp-content/uploads/materials/kompozitnaya-cherepica.jpg
[area_modifier] => 125.61
[parent_name] => Крыша (Скатная)
[parent_id] => 37
[material_sum] => 1576144
[work_sum] => 1230413
[total_sum] => 2806557
[total_days] => 20
[display_material_sum] => 1 576 144
[display_work_sum] => 1 230 413
[display_total_sum] => 2 806 557
)
1
2 806 557₽
Работа:1 230 413 ₽
Материалы:1 576 144 ₽
Дни:20
stdClass Object
(
[id] => 168
[attribute_id] => 37
[name] => Керамическая черепица
[material_modifier] => 1
[work_modifier] => 1
[options] => Array
(
)
[days] => [20]
[material_price] => [12750]
[work_price] => [9456]
[image] => https://akademik-stroy.ru/wp-content/uploads/materials/keramicheskaya-cherepica.jpg
[area_modifier] => 125.61
[parent_name] => Крыша (Скатная)
[parent_id] => 37
[material_sum] => 2114016
[work_sum] => 1306545
[total_sum] => 3420561
[total_days] => 20
[display_material_sum] => 2 114 016
[display_work_sum] => 1 306 545
[display_total_sum] => 3 420 561
)
1
3 420 561₽
Работа:1 306 545 ₽
Материалы:2 114 016 ₽
Дни:20
stdClass Object
(
[id] => 169
[attribute_id] => 37
[name] => Металлическая фальцевая
[material_modifier] => 1
[work_modifier] => 1
[options] => Array
(
)
[days] => [20]
[material_price] => [8550]
[work_price] => [8190]
[image] => https://akademik-stroy.ru/wp-content/uploads/materials/metallicheskaya-falcevaya.jpg
[area_modifier] => 125.61
[parent_name] => Крыша (Скатная)
[parent_id] => 37
[material_sum] => 1417634
[work_sum] => 1131620
[total_sum] => 2549254
[total_days] => 20
[display_material_sum] => 1 417 634
[display_work_sum] => 1 131 620
[display_total_sum] => 2 549 254
)
1
2 549 254₽
Работа:1 131 620 ₽
Материалы:1 417 634 ₽
Дни:20
stdClass Object
(
[id] => 170
[attribute_id] => 37
[name] => Медная фальцевая
[material_modifier] => 1
[work_modifier] => 1
[options] => Array
(
)
[days] => [20]
[material_price] => [20450]
[work_price] => [16750]
[image] => https://akademik-stroy.ru/wp-content/uploads/materials/mednaya-falcevaya.jpg
[area_modifier] => 125.61
[parent_name] => Крыша (Скатная)
[parent_id] => 37
[material_sum] => 3390716
[work_sum] => 2314364
[total_sum] => 5705080
[total_days] => 20
[display_material_sum] => 3 390 716
[display_work_sum] => 2 314 364
[display_total_sum] => 5 705 080
)
1
5 705 080₽
Работа:2 314 364 ₽
Материалы:3 390 716 ₽
Дни:20
stdClass Object
(
[id] => 171
[attribute_id] => 37
[name] => Зеленая кровля
[material_modifier] => 1
[work_modifier] => 1
[options] => Array
(
)
[days] => [20]
[material_price] => [19850]
[work_price] => [16780]
[image] => https://akademik-stroy.ru/wp-content/uploads/materials/zelenaya-krovlya.jpg
[area_modifier] => 125.61
[parent_name] => Крыша (Скатная)
[parent_id] => 37
[material_sum] => 3291233
[work_sum] => 2318509
[total_sum] => 5609742
[total_days] => 20
[display_material_sum] => 3 291 233
[display_work_sum] => 2 318 509
[display_total_sum] => 5 609 742
)
1
5 609 742₽
Работа:2 318 509 ₽
Материалы:3 291 233 ₽
Дни:20
stdClass Object
(
[id] => 172
[attribute_id] => 37
[name] => Профлист
[material_modifier] => 1
[work_modifier] => 1
[options] => Array
(
)
[days] => [20]
[material_price] => [3450]
[work_price] => [3750]
[image] => https://akademik-stroy.ru/wp-content/uploads/materials/proflist.jpg
[area_modifier] => 125.61
[parent_name] => Крыша (Скатная)
[parent_id] => 37
[material_sum] => 572028
[work_sum] => 518141
[total_sum] => 1090169
[total_days] => 20
[display_material_sum] => 572 028
[display_work_sum] => 518 141
[display_total_sum] => 1 090 169
)
1
1 090 169₽
Работа:518 141 ₽
Материалы:572 028 ₽
Дни:20
stdClass Object
(
[id] => 51
[attribute_id] => 26
[name] => Есть
[material_modifier] => 1
[work_modifier] => 1
[options] => Array
(
[0] => Профиль 58 мм, 3-камерный, стеклопакет 2-камерный до 32 мм
[1] => Профиль 60 мм, 4-камерный, стеклопакет 2-камерный до 32 мм
[2] => Профиль 70 мм, 5-камерный, стеклопакет 2-камерный до 40 мм
[3] => Профиль 72 мм, 5-камерный, стеклопакет 2-камерный до 40 мм
[4] => Алюминиевые окна Alutech профиль 72 мм, стеклопакет 2-камерный
)
[days] => [3,3,3,3,3]
[material_price] => [1339,2124,2867,3023,29596]
[work_price] => [635,647,659,668,2579]
[image] => https://akademik-stroy.ru/wp-content/uploads/materials/okna.jpg
[area_modifier] => 158.01
[parent_name] => Окна
[parent_id] => 26
[material_sum] => 279280
[work_sum] => 110370
[total_sum] => 389650
[total_days] => 3
[display_material_sum] => 279 280
[display_work_sum] => 110 370
[display_total_sum] => 389 650
)
1
389 650₽
Работа:110 370 ₽
Материалы:279 280 ₽
Дни:3
stdClass Object
(
[id] => 52
[attribute_id] => 26
[name] => Нет
[material_modifier] => 2
[work_modifier] => 1
[options] =>
[days] => null
[material_price] => null
[work_price] => null
[image] => https://akademik-stroy.ru/wp-content/uploads/materials/okna.jpg
[area_modifier] => 158.01
[parent_name] => Окна
[parent_id] => 26
[material_sum] => 0
[work_sum] => 0
[total_sum] => 0
[total_days] => 0
[display_material_sum] => 0
[display_work_sum] => 0
[display_total_sum] => 0
)
1
0₽
Работа:0 ₽
Материалы:0 ₽
Дни:0
stdClass Object
(
[id] => 53
[attribute_id] => 27
[name] => Есть
[material_modifier] => 1
[work_modifier] => 1
[options] => Array
(
)
[days] => [1]
[material_price] => [10000]
[work_price] => [5500]
[image] => https://akademik-stroy.ru/wp-content/uploads/materials/dveri.jpg
[area_modifier] => 1
[parent_name] => Двери входные
[parent_id] => 27
[material_sum] => 13200
[work_sum] => 6050
[total_sum] => 19250
[total_days] => 1
[display_material_sum] => 13 200
[display_work_sum] => 6 050
[display_total_sum] => 19 250
)
1
19 250₽
Работа:6 050 ₽
Материалы:13 200 ₽
Дни:1
stdClass Object
(
[id] => 54
[attribute_id] => 27
[name] => Нет
[material_modifier] => 1
[work_modifier] => 1
[options] => Array
(
)
[days] => [0]
[material_price] => [0]
[work_price] => [0]
[image] => https://akademik-stroy.ru/wp-content/uploads/materials/dveri.jpg
[area_modifier] => 1
[parent_name] => Двери входные
[parent_id] => 27
[material_sum] => 0
[work_sum] => 0
[total_sum] => 0
[total_days] => 0
[display_material_sum] => 0
[display_work_sum] => 0
[display_total_sum] => 0
)
1
0₽
Работа:0 ₽
Материалы:0 ₽
Дни:0
stdClass Object
(
[id] => 25
[attribute_id] => 13
[name] => Нет
[material_modifier] => 1
[work_modifier] => 1
[options] => Array
(
)
[days] => [0]
[material_price] => [0]
[work_price] => [0]
[image] => https://akademik-stroy.ru/wp-content/uploads/materials/mineralovata-krov.jpg
[area_modifier] => 125.61
[parent_name] => Утепление кровли (Мансарда)
[parent_id] => 13
[material_sum] => 0
[work_sum] => 0
[total_sum] => 0
[total_days] => 0
[display_material_sum] => 0
[display_work_sum] => 0
[display_total_sum] => 0
)
1
0₽
Работа:0 ₽
Материалы:0 ₽
Дни:0
stdClass Object
(
[id] => 26
[attribute_id] => 13
[name] => Минераловатный
[material_modifier] => 1
[work_modifier] => 1
[options] => Array
(
[0] => 50 мм
[1] => 100 мм
[2] => 150 мм
[3] => 200 мм
[4] => 250 мм
[5] => 300 мм
[6] => 350 мм
[7] => 400 мм
[8] => 450 мм
[9] => 500 мм
)
[days] => [5,5,6,6,6,7,7,7,8,8]
[material_price] => [1158,1414,1772,2230,3602,4060,4974,5890,6408,7718]
[work_price] => [650,846,846,1098,1318,1450,1596,1754,1930,2122]
[image] => https://akademik-stroy.ru/wp-content/uploads/materials/mineralovata-krov.jpg
[area_modifier] => 125.61
[parent_name] => Утепление кровли (Мансарда)
[parent_id] => 13
[material_sum] => 192002
[work_sum] => 89811
[total_sum] => 281813
[total_days] => 5
[display_material_sum] => 192 002
[display_work_sum] => 89 811
[display_total_sum] => 281 813
)
1
281 813₽
Работа:89 811 ₽
Материалы:192 002 ₽
Дни:5
stdClass Object
(
[id] => 123
[attribute_id] => 13
[name] => Эковата (целлюлозная вата)
[material_modifier] => 1
[work_modifier] => 1
[options] => Array
(
[0] => 50 мм
[1] => 100 мм
[2] => 150 мм
[3] => 200 мм
[4] => 250 мм
[5] => 300 мм
[6] => 350 мм
[7] => 400 мм
[8] => 450 мм
[9] => 500 мм
)
[days] => [3,3,4,4,4,5,5,5,5,5]
[material_price] => [820,1638,2458,3276,5734,6552,8190,9828,11466,13104]
[work_price] => [234,304,304,396,474,522,574,632,694,764]
[image] => https://akademik-stroy.ru/wp-content/uploads/materials/ehkovata-krov.jpg
[area_modifier] => 125.61
[parent_name] => Утепление кровли (Мансарда)
[parent_id] => 13
[material_sum] => 135960
[work_sum] => 32332
[total_sum] => 168292
[total_days] => 3
[display_material_sum] => 135 960
[display_work_sum] => 32 332
[display_total_sum] => 168 292
)
1
168 292₽
Работа:32 332 ₽
Материалы:135 960 ₽
Дни:3
stdClass Object
(
[id] => 124
[attribute_id] => 13
[name] => Экструдированный пенополистирол
[material_modifier] => 1
[work_modifier] => 1
[options] => Array
(
[0] => 50 мм
[1] => 100 мм
[2] => 150 мм
[3] => 200 мм
[4] => 250 мм
[5] => 300 мм
[6] => 350 мм
[7] => 400 мм
[8] => 450 мм
[9] => 500 мм
)
[days] => [3,3,4,4,4,5,5,5,5,6]
[material_price] => [1146,2292,3438,4584,8020,9166,11458,13750,16040,18332]
[work_price] => [390,508,508,660,790,870,958,1052,1158,1274]
[image] => https://akademik-stroy.ru/wp-content/uploads/materials/epps-krov.jpg
[area_modifier] => 125.61
[parent_name] => Утепление кровли (Мансарда)
[parent_id] => 13
[material_sum] => 190013
[work_sum] => 53887
[total_sum] => 243900
[total_days] => 3
[display_material_sum] => 190 013
[display_work_sum] => 53 887
[display_total_sum] => 243 900
)
1
243 900₽
Работа:53 887 ₽
Материалы:190 013 ₽
Дни:3
stdClass Object
(
[id] => 125
[attribute_id] => 13
[name] => ПСБ (ППС-пенополистирол)
[material_modifier] => 1
[work_modifier] => 1
[options] => Array
(
[0] => 50 мм
[1] => 100 мм
[2] => 150 мм
[3] => 200 мм
[4] => 250 мм
[5] => 300 мм
[6] => 350 мм
[7] => 400 мм
[8] => 450 мм
[9] => 500 мм
)
[days] => [3,3,4,4,4,5,5,5,5,6]
[material_price] => [476,954,1430,1906,3336,3814,4766,5720,6674,7626]
[work_price] => [390,508,508,660,790,870,958,1052,1158,1274]
[image] => https://akademik-stroy.ru/wp-content/uploads/materials/psb-krov.jpg
[area_modifier] => 125.61
[parent_name] => Утепление кровли (Мансарда)
[parent_id] => 13
[material_sum] => 78923
[work_sum] => 53887
[total_sum] => 132810
[total_days] => 3
[display_material_sum] => 78 923
[display_work_sum] => 53 887
[display_total_sum] => 132 810
)
1
132 810₽
Работа:53 887 ₽
Материалы:78 923 ₽
Дни:3
stdClass Object
(
[id] => 126
[attribute_id] => 13
[name] => ППУ (Пенополиуретан)
[material_modifier] => 1
[work_modifier] => 1
[options] => Array
(
[0] => 50 мм
[1] => 100 мм
[2] => 150 мм
[3] => 200 мм
[4] => 250 мм
[5] => 300 мм
[6] => 350 мм
[7] => 400 мм
[8] => 450 мм
[9] => 500 мм
)
[days] => [2,2,3,3,3,3,4,4,4,4]
[material_price] => [2080,4160,6240,8320,14560,16640,20800,24960,29120,33280]
[work_price] => [234,304,304,396,474,522,574,632,694,764]
[image] => https://akademik-stroy.ru/wp-content/uploads/materials/ppu-krov.jpg
[area_modifier] => 125.61
[parent_name] => Утепление кровли (Мансарда)
[parent_id] => 13
[material_sum] => 344875
[work_sum] => 32332
[total_sum] => 377207
[total_days] => 2
[display_material_sum] => 344 875
[display_work_sum] => 32 332
[display_total_sum] => 377 207
)
1
377 207₽
Работа:32 332 ₽
Материалы:344 875 ₽
Дни:2
stdClass Object
(
[id] => 127
[attribute_id] => 13
[name] => PIR-плиты (пенополиизоцианурат)
[material_modifier] => 1
[work_modifier] => 1
[options] => Array
(
[0] => 50 мм
[1] => 100 мм
[2] => 150 мм
[3] => 200 мм
[4] => 250 мм
[5] => 300 мм
[6] => 350 мм
[7] => 400 мм
[8] => 450 мм
[9] => 500 мм
)
[days] => [3,3,4,4,4,5,5,5,5,6]
[material_price] => [2646,5290,7936,10580,18516,21162,26452,31742,37032,42324]
[work_price] => [390,508,508,660,790,870,958,1052,1158,1274]
[image] => https://akademik-stroy.ru/wp-content/uploads/materials/pir-krov.jpg
[area_modifier] => 125.61
[parent_name] => Утепление кровли (Мансарда)
[parent_id] => 13
[material_sum] => 438721
[work_sum] => 53887
[total_sum] => 492608
[total_days] => 3
[display_material_sum] => 438 721
[display_work_sum] => 53 887
[display_total_sum] => 492 608
)
1
492 608₽
Работа:53 887 ₽
Материалы:438 721 ₽
Дни:3
stdClass Object
(
[id] => 27
[attribute_id] => 14
[name] => Нет
[material_modifier] => 1
[work_modifier] => 1
[options] => Array
(
)
[days] => [0]
[material_price] => [0]
[work_price] => [0]
[image] => https://akademik-stroy.ru/wp-content/uploads/materials/mansardnye-okna-2.jpg
[area_modifier] => 1
[parent_name] => Мансардные окна
[parent_id] => 14
[material_sum] => 0
[work_sum] => 0
[total_sum] => 0
[total_days] => 0
[display_material_sum] => 0
[display_work_sum] => 0
[display_total_sum] => 0
)
1
0₽
Работа:0 ₽
Материалы:0 ₽
Дни:0
stdClass Object
(
[id] => 28
[attribute_id] => 14
[name] => Есть
[material_modifier] => 1
[work_modifier] => 1
[options] => Array
(
[0] => 55x78
[1] => 55x98
)
[days] => [6,7]
[material_price] => [47480,68700]
[work_price] => [17900,19500]
[image] => https://akademik-stroy.ru/wp-content/uploads/materials/mansardnye-okna-2.jpg
[area_modifier] => 1
[parent_name] => Мансардные окна
[parent_id] => 14
[material_sum] => 62674
[work_sum] => 19690
[total_sum] => 82364
[total_days] => 6
[display_material_sum] => 62 674
[display_work_sum] => 19 690
[display_total_sum] => 82 364
)
1
82 364₽
Работа:19 690 ₽
Материалы:62 674 ₽
Дни:6
stdClass Object
(
[id] => 29
[attribute_id] => 15
[name] => Нет
[material_modifier] => 1
[work_modifier] => 1
[options] => Array
(
)
[days] => [0]
[material_price] => [0]
[work_price] => [0]
[image] => https://akademik-stroy.ru/wp-content/uploads/materials/sofit.jpg
[area_modifier] => 125.61
[parent_name] => Подшивка кровли
[parent_id] => 15
[material_sum] => 0
[work_sum] => 0
[total_sum] => 0
[total_days] => 0
[display_material_sum] => 0
[display_work_sum] => 0
[display_total_sum] => 0
)
1
0₽
Работа:0 ₽
Материалы:0 ₽
Дни:0
stdClass Object
(
[id] => 30
[attribute_id] => 15
[name] => Есть
[material_modifier] => 1
[work_modifier] => 1
[options] => Array
(
[0] => Софиты (ПВХ)
[1] => Cedral
[2] => ДПК
[3] => Планкен
)
[days] => [7,10,9,8]
[material_price] => [1803,3213,3025,3150]
[work_price] => [1529,2188,2075,1923]
[image] => https://akademik-stroy.ru/wp-content/uploads/materials/sofit.jpg
[area_modifier] => 125.61
[parent_name] => Подшивка кровли
[parent_id] => 15
[material_sum] => 298947
[work_sum] => 211263
[total_sum] => 510210
[total_days] => 7
[display_material_sum] => 298 947
[display_work_sum] => 211 263
[display_total_sum] => 510 210
)
1
510 210₽
Работа:211 263 ₽
Материалы:298 947 ₽
Дни:7
stdClass Object
(
[id] => 31
[attribute_id] => 16
[name] => Нет
[material_modifier] => 1
[work_modifier] => 1
[options] => Array
(
)
[days] => [0]
[material_price] => [0]
[work_price] => [0]
[image] => https://akademik-stroy.ru/wp-content/uploads/materials/docke-standard-pvh.jpg
[area_modifier] => 125.61
[parent_name] => Водосточная система
[parent_id] => 16
[material_sum] => 0
[work_sum] => 0
[total_sum] => 0
[total_days] => 0
[display_material_sum] => 0
[display_work_sum] => 0
[display_total_sum] => 0
)
1
0₽
Работа:0 ₽
Материалы:0 ₽
Дни:0
stdClass Object
(
[id] => 32
[attribute_id] => 16
[name] => Есть
[material_modifier] => 1
[work_modifier] => 1
[options] => Array
(
[0] => Döcke Standard (ПВХ)
[1] => Металлические Grand Line
)
[days] => [7,7]
[material_price] => [1842,2703]
[work_price] => [1491,1529]
[image] => https://akademik-stroy.ru/wp-content/uploads/materials/docke-standard-pvh.jpg
[area_modifier] => 125.61
[parent_name] => Водосточная система
[parent_id] => 16
[material_sum] => 305413
[work_sum] => 206013
[total_sum] => 511426
[total_days] => 7
[display_material_sum] => 305 413
[display_work_sum] => 206 013
[display_total_sum] => 511 426
)
1
511 426₽
Работа:206 013 ₽
Материалы:305 413 ₽
Дни:7
stdClass Object
(
[id] => 33
[attribute_id] => 17
[name] => Нет
[material_modifier] => 1
[work_modifier] => 1
[options] => Array
(
)
[days] => [0]
[material_price] => [0]
[work_price] => [0]
[image] => https://akademik-stroy.ru/wp-content/uploads/materials/mineralovata.jpg
[area_modifier] => 194.72
[parent_name] => Дополнительное утепление наружных стен
[parent_id] => 17
[material_sum] => 0
[work_sum] => 0
[total_sum] => 0
[total_days] => 0
[display_material_sum] => 0
[display_work_sum] => 0
[display_total_sum] => 0
)
1
0₽
Работа:0 ₽
Материалы:0 ₽
Дни:0
stdClass Object
(
[id] => 34
[attribute_id] => 17
[name] => Минераловатный
[material_modifier] => 1
[work_modifier] => 1
[options] => Array
(
[0] => 50 мм
[1] => 100 мм
[2] => 150 мм
[3] => 200 мм
[4] => 250 мм
[5] => 300 мм
)
[days] => [7,8,10,12,14,15]
[material_price] => [3437,3613,3803,3915,4601,4830]
[work_price] => [2325,2423,2523,2749,2859,3025]
[image] => https://akademik-stroy.ru/wp-content/uploads/materials/mineralovata.jpg
[area_modifier] => 194.72
[parent_name] => Дополнительное утепление наружных стен
[parent_id] => 17
[material_sum] => 883413
[work_sum] => 497996
[total_sum] => 1381409
[total_days] => 7
[display_material_sum] => 883 413
[display_work_sum] => 497 996
[display_total_sum] => 1 381 409
)
1
1 381 409₽
Работа:497 996 ₽
Материалы:883 413 ₽
Дни:7
stdClass Object
(
[id] => 128
[attribute_id] => 17
[name] => Эковата (целлюлозная вата)
[material_modifier] => 1
[work_modifier] => 1
[options] => Array
(
[0] => 50 мм
[1] => 100 мм
[2] => 150 мм
[3] => 200 мм
[4] => 250 мм
[5] => 300 мм
)
[days] => [3,4,5,6,7,8]
[material_price] => [810,1319,1629,1838,2267,2676]
[work_price] => [1225,1323,1423,1549,1659,1725]
[image] => https://akademik-stroy.ru/wp-content/uploads/materials/ehkovata.jpg
[area_modifier] => 194.72
[parent_name] => Дополнительное утепление наружных стен
[parent_id] => 17
[material_sum] => 208195
[work_sum] => 262385
[total_sum] => 470580
[total_days] => 3
[display_material_sum] => 208 195
[display_work_sum] => 262 385
[display_total_sum] => 470 580
)
1
470 580₽
Работа:262 385 ₽
Материалы:208 195 ₽
Дни:3
stdClass Object
(
[id] => 129
[attribute_id] => 17
[name] => Экструдированный пенополистирол
[material_modifier] => 1
[work_modifier] => 1
[options] => Array
(
[0] => 50 мм
[1] => 100 мм
[2] => 150 мм
[3] => 200 мм
[4] => 250 мм
[5] => 300 мм
)
[days] => [5,6,7,8,9,10]
[material_price] => [4560,4300,5119,6292,7010,8583]
[work_price] => [1795,1954,2254,2330,2595,2735]
[image] => https://akademik-stroy.ru/wp-content/uploads/materials/epps.jpg
[area_modifier] => 194.72
[parent_name] => Дополнительное утепление наружных стен
[parent_id] => 17
[material_sum] => 1172059
[work_sum] => 384475
[total_sum] => 1556534
[total_days] => 5
[display_material_sum] => 1 172 059
[display_work_sum] => 384 475
[display_total_sum] => 1 556 534
)
1
1 556 534₽
Работа:384 475 ₽
Материалы:1 172 059 ₽
Дни:5
stdClass Object
(
[id] => 130
[attribute_id] => 17
[name] => ПСБ (ППС-пенополистирол)
[material_modifier] => 1
[work_modifier] => 1
[options] => Array
(
[0] => 50 мм
[1] => 100 мм
[2] => 150 мм
[3] => 200 мм
[4] => 250 мм
[5] => 300 мм
)
[days] => [5,6,7,8,9,10]
[material_price] => [4822,5200,5819,6292,7010,7583]
[work_price] => [1795,1954,2254,2330,2595,2735]
[image] => https://akademik-stroy.ru/wp-content/uploads/materials/psb.jpg
[area_modifier] => 194.72
[parent_name] => Дополнительное утепление наружных стен
[parent_id] => 17
[material_sum] => 1239401
[work_sum] => 384475
[total_sum] => 1623876
[total_days] => 5
[display_material_sum] => 1 239 401
[display_work_sum] => 384 475
[display_total_sum] => 1 623 876
)
1
1 623 876₽
Работа:384 475 ₽
Материалы:1 239 401 ₽
Дни:5
stdClass Object
(
[id] => 131
[attribute_id] => 17
[name] => ППУ (Пенополиуретан)
[material_modifier] => 1
[work_modifier] => 1
[options] => Array
(
[0] => 50 мм
[1] => 100 мм
[2] => 150 мм
[3] => 200 мм
[4] => 250 мм
[5] => 300 мм
)
[days] => [3,4,5,6,7,8]
[material_price] => [2860,3400,4219,4592,5010,5583]
[work_price] => [729,900,980,1120,1280,1530]
[image] => https://akademik-stroy.ru/wp-content/uploads/materials/ppu.jpg
[area_modifier] => 194.72
[parent_name] => Дополнительное утепление наружных стен
[parent_id] => 17
[material_sum] => 735107
[work_sum] => 156146
[total_sum] => 891253
[total_days] => 3
[display_material_sum] => 735 107
[display_work_sum] => 156 146
[display_total_sum] => 891 253
)
1
891 253₽
Работа:156 146 ₽
Материалы:735 107 ₽
Дни:3
stdClass Object
(
[id] => 132
[attribute_id] => 17
[name] => PIR-плиты (пенополиизоцианурат)
[material_modifier] => 1
[work_modifier] => 1
[options] => Array
(
[0] => 50 мм
[1] => 100 мм
[2] => 150 мм
[3] => 200 мм
[4] => 250 мм
[5] => 300 мм
)
[days] => [5,6,7,8,9,10]
[material_price] => [8323,15645,20968,25900,29258,30581]
[work_price] => [800,900,970,1150,1280,1330]
[image] => https://akademik-stroy.ru/wp-content/uploads/materials/pir.jpg
[area_modifier] => 194.72
[parent_name] => Дополнительное утепление наружных стен
[parent_id] => 17
[material_sum] => 2139264
[work_sum] => 171354
[total_sum] => 2310618
[total_days] => 5
[display_material_sum] => 2 139 264
[display_work_sum] => 171 354
[display_total_sum] => 2 310 618
)
1
2 310 618₽
Работа:171 354 ₽
Материалы:2 139 264 ₽
Дни:5
stdClass Object
(
[id] => 37
[attribute_id] => 19
[name] => Нет
[material_modifier] => 1
[work_modifier] => 1
[options] => Array
(
)
[days] => [0]
[material_price] => [0]
[work_price] => [0]
[image] => https://akademik-stroy.ru/wp-content/uploads/materials/imitaciya-brusa.jpg
[area_modifier] => 194.72
[parent_name] => Наружная отделка фасада
[parent_id] => 19
[material_sum] => 0
[work_sum] => 0
[total_sum] => 0
[total_days] => 0
[display_material_sum] => 0
[display_work_sum] => 0
[display_total_sum] => 0
)
1
0₽
Работа:0 ₽
Материалы:0 ₽
Дни:0
stdClass Object
(
[id] => 38
[attribute_id] => 19
[name] => Имитация бруса
[material_modifier] => 1
[work_modifier] => 1
[options] => Array
(
[0] => Сосна
[1] => Ель
[2] => Лиственница
)
[days] => [20,20,20]
[material_price] => [2994,2762,4954]
[work_price] => [1397,1231,1577]
[image] => https://akademik-stroy.ru/wp-content/uploads/materials/imitaciya-brusa.jpg
[area_modifier] => 194.72
[parent_name] => Наружная отделка фасада
[parent_id] => 19
[material_sum] => 769549
[work_sum] => 299226
[total_sum] => 1068775
[total_days] => 20
[display_material_sum] => 769 549
[display_work_sum] => 299 226
[display_total_sum] => 1 068 775
)
1
1 068 775₽
Работа:299 226 ₽
Материалы:769 549 ₽
Дни:20
stdClass Object
(
[id] => 136
[attribute_id] => 19
[name] => Планкен
[material_modifier] => 1
[work_modifier] => 1
[options] => Array
(
[0] => Сосна
[1] => Ель
[2] => Лиственница
)
[days] => [20,20,20]
[material_price] => [3194,2862,5154]
[work_price] => [1537,1354,1735]
[image] => https://akademik-stroy.ru/wp-content/uploads/materials/planken.jpg
[area_modifier] => 194.72
[parent_name] => Наружная отделка фасада
[parent_id] => 19
[material_sum] => 820955
[work_sum] => 329213
[total_sum] => 1150168
[total_days] => 20
[display_material_sum] => 820 955
[display_work_sum] => 329 213
[display_total_sum] => 1 150 168
)
1
1 150 168₽
Работа:329 213 ₽
Материалы:820 955 ₽
Дни:20
stdClass Object
(
[id] => 137
[attribute_id] => 19
[name] => Штукатурка
[material_modifier] => 1
[work_modifier] => 1
[options] => Array
(
[0] => Цементно-песчаная (минеральная)
[1] => Мокрый фасад
)
[days] => [35,35]
[material_price] => [2231,3938]
[work_price] => [1202,2422]
[image] => https://akademik-stroy.ru/wp-content/uploads/materials/shtukaturka.jpg
[area_modifier] => 194.72
[parent_name] => Наружная отделка фасада
[parent_id] => 19
[material_sum] => 573435
[work_sum] => 257459
[total_sum] => 830894
[total_days] => 35
[display_material_sum] => 573 435
[display_work_sum] => 257 459
[display_total_sum] => 830 894
)
1
830 894₽
Работа:257 459 ₽
Материалы:573 435 ₽
Дни:35
stdClass Object
(
[id] => 138
[attribute_id] => 19
[name] => Облицовочный кирпич
[material_modifier] => 1
[work_modifier] => 1
[options] => Array
(
[0] => Керамический
[1] => Клинкерный
[2] => Ручной формовки
[3] => Гиперпрессованный
[4] => Силикатный кирпич
)
[days] => [45,45,45,45,45]
[material_price] => [8174,9148,1040,1257,5876]
[work_price] => [3240,3758,4536,4017,3369]
[image] => https://akademik-stroy.ru/wp-content/uploads/materials/oblicovochnyj-kirpich.jpg
[area_modifier] => 194.72
[parent_name] => Наружная отделка фасада
[parent_id] => 19
[material_sum] => 2100966
[work_sum] => 693982
[total_sum] => 2794948
[total_days] => 45
[display_material_sum] => 2 100 966
[display_work_sum] => 693 982
[display_total_sum] => 2 794 948
)
1
2 794 948₽
Работа:693 982 ₽
Материалы:2 100 966 ₽
Дни:45
stdClass Object
(
[id] => 139
[attribute_id] => 19
[name] => Фасадная плитка
[material_modifier] => 1
[work_modifier] => 1
[options] => Array
(
[0] => Клинкерная
[1] => Керамическая
[2] => Плитка ручной формовки
)
[days] => [40,40,40]
[material_price] => [2974,1487,3470]
[work_price] => [3007,2592,3629]
[image] => https://akademik-stroy.ru/wp-content/uploads/materials/fasadnaya-plitka.jpg
[area_modifier] => 194.72
[parent_name] => Наружная отделка фасада
[parent_id] => 19
[material_sum] => 764408
[work_sum] => 644075
[total_sum] => 1408483
[total_days] => 40
[display_material_sum] => 764 408
[display_work_sum] => 644 075
[display_total_sum] => 1 408 483
)
1
1 408 483₽
Работа:644 075 ₽
Материалы:764 408 ₽
Дни:40
stdClass Object
(
[id] => 140
[attribute_id] => 19
[name] => Сайдинг
[material_modifier] => 1
[work_modifier] => 1
[options] => Array
(
[0] => Виниловый
[1] => Металлический
[2] => Фиброцементный
)
[days] => [20,20,20]
[material_price] => [1263,1944,4147]
[work_price] => [1263,1944,2074]
[image] => https://akademik-stroy.ru/wp-content/uploads/materials/sajding.jpg
[area_modifier] => 194.72
[parent_name] => Наружная отделка фасада
[parent_id] => 19
[material_sum] => 324629
[work_sum] => 270524
[total_sum] => 595153
[total_days] => 20
[display_material_sum] => 324 629
[display_work_sum] => 270 524
[display_total_sum] => 595 153
)
1
595 153₽
Работа:270 524 ₽
Материалы:324 629 ₽
Дни:20
stdClass Object
(
[id] => 141
[attribute_id] => 19
[name] => Камень
[material_modifier] => 1
[work_modifier] => 1
[options] => Array
(
[0] => Травертин
[1] => Дагестанский
[2] => Искусственный
[3] => Натуральный
[4] => Керамогранит
)
[days] => [45,45,45,45,45]
[material_price] => [4536,3888,2592,3240,2462]
[work_price] => [3240,3240,2462,3110,1944]
[image] => https://akademik-stroy.ru/wp-content/uploads/materials/kamen-1.jpg
[area_modifier] => 194.72
[parent_name] => Наружная отделка фасада
[parent_id] => 19
[material_sum] => 1165890
[work_sum] => 693982
[total_sum] => 1859872
[total_days] => 45
[display_material_sum] => 1 165 890
[display_work_sum] => 693 982
[display_total_sum] => 1 859 872
)
1
1 859 872₽
Работа:693 982 ₽
Материалы:1 165 890 ₽
Дни:45
stdClass Object
(
[id] => 142
[attribute_id] => 19
[name] => Термопанели
[material_modifier] => 1
[work_modifier] => 1
[options] => Array
(
)
[days] => [20]
[material_price] => [6221]
[work_price] => [2333]
[image] => https://akademik-stroy.ru/wp-content/uploads/materials/termo.png
[area_modifier] => 194.72
[parent_name] => Наружная отделка фасада
[parent_id] => 19
[material_sum] => 1598986
[work_sum] => 499710
[total_sum] => 2098696
[total_days] => 20
[display_material_sum] => 1 598 986
[display_work_sum] => 499 710
[display_total_sum] => 2 098 696
)
1
2 098 696₽
Работа:499 710 ₽
Материалы:1 598 986 ₽
Дни:20
stdClass Object
(
[id] => 143
[attribute_id] => 19
[name] => Плитка HAUBERK
[material_modifier] => 1
[work_modifier] => 1
[options] => Array
(
)
[days] => [20]
[material_price] => [2786]
[work_price] => [1944]
[image] => https://akademik-stroy.ru/wp-content/uploads/materials/hauberk.jpg
[area_modifier] => 194.72
[parent_name] => Наружная отделка фасада
[parent_id] => 19
[material_sum] => 716087
[work_sum] => 416389
[total_sum] => 1132476
[total_days] => 20
[display_material_sum] => 716 087
[display_work_sum] => 416 389
[display_total_sum] => 1 132 476
)
1
1 132 476₽
Работа:416 389 ₽
Материалы:716 087 ₽
Дни:20
stdClass Object
(
[id] => 144
[attribute_id] => 19
[name] => Фальцевый фасад
[material_modifier] => 1
[work_modifier] => 1
[options] => Array
(
)
[days] => [20]
[material_price] => [3240]
[work_price] => [2592]
[image] => https://akademik-stroy.ru/wp-content/uploads/materials/falcevyj-fasad.jpg
[area_modifier] => 194.72
[parent_name] => Наружная отделка фасада
[parent_id] => 19
[material_sum] => 832778
[work_sum] => 555186
[total_sum] => 1387964
[total_days] => 20
[display_material_sum] => 832 778
[display_work_sum] => 555 186
[display_total_sum] => 1 387 964
)
1
1 387 964₽
Работа:555 186 ₽
Материалы:832 778 ₽
Дни:20
stdClass Object
(
[id] => 145
[attribute_id] => 19
[name] => Комбинированный
[material_modifier] => 1
[work_modifier] => 1
[options] => Array
(
)
[days] => [20]
[material_price] => [4629]
[work_price] => [3499]
[image] => https://akademik-stroy.ru/wp-content/uploads/materials/Kombinirovannyj.jpg
[area_modifier] => 194.72
[parent_name] => Наружная отделка фасада
[parent_id] => 19
[material_sum] => 1189794
[work_sum] => 749458
[total_sum] => 1939252
[total_days] => 20
[display_material_sum] => 1 189 794
[display_work_sum] => 749 458
[display_total_sum] => 1 939 252
)
1
1 939 252₽
Работа:749 458 ₽
Материалы:1 189 794 ₽
Дни:20
stdClass Object
(
[id] => 257
[attribute_id] => 19
[name] => Японские фиброцементные
[material_modifier] => 1
[work_modifier] => 1
[options] => Array
(
)
[days] => [20]
[material_price] => [7043]
[work_price] => [2993]
[image] => https://akademik-stroy.ru/wp-content/uploads/materials/paneli.jpg
[area_modifier] => 194.72
[parent_name] => Наружная отделка фасада
[parent_id] => 19
[material_sum] => 1810265
[work_sum] => 641077
[total_sum] => 2451342
[total_days] => 20
[display_material_sum] => 1 810 265
[display_work_sum] => 641 077
[display_total_sum] => 2 451 342
)
1
2 451 342₽
Работа:641 077 ₽
Материалы:1 810 265 ₽
Дни:20
stdClass Object
(
[id] => 258
[attribute_id] => 19
[name] => Панели Каньон
[material_modifier] => 1
[work_modifier] => 1
[options] => Array
(
)
[days] => [20]
[material_price] => [4543]
[work_price] => [2592]
[image] => https://akademik-stroy.ru/wp-content/uploads/materials/kanon.png
[area_modifier] => 194.72
[parent_name] => Наружная отделка фасада
[parent_id] => 19
[material_sum] => 1167689
[work_sum] => 555186
[total_sum] => 1722875
[total_days] => 20
[display_material_sum] => 1 167 689
[display_work_sum] => 555 186
[display_total_sum] => 1 722 875
)
1
1 722 875₽
Работа:555 186 ₽
Материалы:1 167 689 ₽
Дни:20
stdClass Object
(
[id] => 39
[attribute_id] => 20
[name] => Нет
[material_modifier] => 1
[work_modifier] => 1
[options] => Array
(
)
[days] => [0]
[material_price] => [0]
[work_price] => [0]
[image] => https://akademik-stroy.ru/wp-content/uploads/materials/terrasy.jpg
[area_modifier] => 30
[parent_name] => Террасы, крыльца, навесы
[parent_id] => 20
[material_sum] => 0
[work_sum] => 0
[total_sum] => 0
[total_days] => 0
[display_material_sum] => 0
[display_work_sum] => 0
[display_total_sum] => 0
)
1
0₽
Работа:0 ₽
Материалы:0 ₽
Дни:0
stdClass Object
(
[id] => 40
[attribute_id] => 20
[name] => Есть
[material_modifier] => 1
[work_modifier] => 1
[options] => Array
(
)
[days] => [5]
[material_price] => [10450]
[work_price] => [1950]
[image] => https://akademik-stroy.ru/wp-content/uploads/materials/terrasy.jpg
[area_modifier] => 30
[parent_name] => Террасы, крыльца, навесы
[parent_id] => 20
[material_sum] => 413820
[work_sum] => 64350
[total_sum] => 478170
[total_days] => 5
[display_material_sum] => 413 820
[display_work_sum] => 64 350
[display_total_sum] => 478 170
)
1
478 170₽
Работа:64 350 ₽
Материалы:413 820 ₽
Дни:5
stdClass Object
(
[id] => 41
[attribute_id] => 21
[name] => Нет
[material_modifier] => 1
[work_modifier] => 1
[options] => Array
(
)
[days] => [0]
[material_price] => [0]
[work_price] => [0]
[image] => https://akademik-stroy.ru/wp-content/uploads/materials/balkony.jpg
[area_modifier] => 30
[parent_name] => Балконы
[parent_id] => 21
[material_sum] => 0
[work_sum] => 0
[total_sum] => 0
[total_days] => 0
[display_material_sum] => 0
[display_work_sum] => 0
[display_total_sum] => 0
)
1
0₽
Работа:0 ₽
Материалы:0 ₽
Дни:0
stdClass Object
(
[id] => 42
[attribute_id] => 21
[name] => Есть
[material_modifier] => 1
[work_modifier] => 1
[options] => Array
(
)
[days] => [12]
[material_price] => [3600]
[work_price] => [1950]
[image] => https://akademik-stroy.ru/wp-content/uploads/materials/balkony.jpg
[area_modifier] => 30
[parent_name] => Балконы
[parent_id] => 21
[material_sum] => 142560
[work_sum] => 64350
[total_sum] => 206910
[total_days] => 12
[display_material_sum] => 142 560
[display_work_sum] => 64 350
[display_total_sum] => 206 910
)
1
206 910₽
Работа:64 350 ₽
Материалы:142 560 ₽
Дни:12
stdClass Object
(
[id] => 43
[attribute_id] => 22
[name] => Нет
[material_modifier] => 1
[work_modifier] => 1
[options] => Array
(
)
[days] => [0]
[material_price] => [0]
[work_price] => [0]
[image] => https://akademik-stroy.ru/wp-content/uploads/materials/uteplennaya.jpg
[area_modifier] => 125.61
[parent_name] => Отмостка
[parent_id] => 22
[material_sum] => 0
[work_sum] => 0
[total_sum] => 0
[total_days] => 0
[display_material_sum] => 0
[display_work_sum] => 0
[display_total_sum] => 0
)
1
0₽
Работа:0 ₽
Материалы:0 ₽
Дни:0
stdClass Object
(
[id] => 44
[attribute_id] => 22
[name] => Утепленная отмостка
[material_modifier] => 1
[work_modifier] => 1
[options] => Array
(
)
[days] => [15]
[material_price] => [2550]
[work_price] => [1750]
[image] => https://akademik-stroy.ru/wp-content/uploads/materials/uteplennaya.jpg
[area_modifier] => 125.61
[parent_name] => Отмостка
[parent_id] => 22
[material_sum] => 422803
[work_sum] => 241799
[total_sum] => 664602
[total_days] => 15
[display_material_sum] => 422 803
[display_work_sum] => 241 799
[display_total_sum] => 664 602
)
1
664 602₽
Работа:241 799 ₽
Материалы:422 803 ₽
Дни:15
stdClass Object
(
[id] => 146
[attribute_id] => 22
[name] => Не утепленная отмостка
[material_modifier] => 1
[work_modifier] => 1
[options] => Array
(
)
[days] => [10]
[material_price] => [1650]
[work_price] => [1450]
[image] => https://akademik-stroy.ru/wp-content/uploads/materials/ne-uteplennaya.jpg
[area_modifier] => 125.61
[parent_name] => Отмостка
[parent_id] => 22
[material_sum] => 273579
[work_sum] => 200348
[total_sum] => 473927
[total_days] => 10
[display_material_sum] => 273 579
[display_work_sum] => 200 348
[display_total_sum] => 473 927
)
1
473 927₽
Работа:200 348 ₽
Материалы:273 579 ₽
Дни:10
stdClass Object
(
[id] => 45
[attribute_id] => 23
[name] => Нет
[material_modifier] => 1
[work_modifier] => 1
[options] => Array
(
)
[days] => [0]
[material_price] => [0]
[work_price] => [0]
[image] => https://akademik-stroy.ru/wp-content/uploads/materials/drenazh-2.jpg
[area_modifier] => 125.61
[parent_name] => Дренаж вокруг дома
[parent_id] => 23
[material_sum] => 0
[work_sum] => 0
[total_sum] => 0
[total_days] => 0
[display_material_sum] => 0
[display_work_sum] => 0
[display_total_sum] => 0
)
1
0₽
Работа:0 ₽
Материалы:0 ₽
Дни:0
stdClass Object
(
[id] => 46
[attribute_id] => 23
[name] => Есть
[material_modifier] => 1
[work_modifier] => 1
[options] => Array
(
)
[days] => [5]
[material_price] => [2366]
[work_price] => [1911]
[image] => https://akademik-stroy.ru/wp-content/uploads/materials/drenazh-2.jpg
[area_modifier] => 125.61
[parent_name] => Дренаж вокруг дома
[parent_id] => 23
[material_sum] => 392295
[work_sum] => 264045
[total_sum] => 656340
[total_days] => 5
[display_material_sum] => 392 295
[display_work_sum] => 264 045
[display_total_sum] => 656 340
)
1
656 340₽
Работа:264 045 ₽
Материалы:392 295 ₽
Дни:5
stdClass Object
(
[id] => 47
[attribute_id] => 24
[name] => Нет
[material_modifier] => 1
[work_modifier] => 1
[options] => Array
(
)
[days] => [0]
[material_price] => [0]
[work_price] => [0]
[image] => https://akademik-stroy.ru/wp-content/uploads/materials/septik.jpg
[area_modifier] => 1
[parent_name] => Автономная канализация (септики)
[parent_id] => 24
[material_sum] => 0
[work_sum] => 0
[total_sum] => 0
[total_days] => 0
[display_material_sum] => 0
[display_work_sum] => 0
[display_total_sum] => 0
)
1
0₽
Работа:0 ₽
Материалы:0 ₽
Дни:0
stdClass Object
(
[id] => 48
[attribute_id] => 24
[name] => Есть
[material_modifier] => 1
[work_modifier] => 1
[options] => Array
(
[0] => Для дачи на 4 человека
[1] => Для дома на 5 человек
[2] => Для дома на 6 человек
[3] => Для дома на 7 человек
[4] => Для дома на 10 человек
)
[days] => [7,7,7,8,8]
[material_price] => [196340,220500,240940,264200,293340]
[work_price] => [50000,55000,60500,66550,73206]
[image] => https://akademik-stroy.ru/wp-content/uploads/materials/septik.jpg
[area_modifier] => 1
[parent_name] => Автономная канализация (септики)
[parent_id] => 24
[material_sum] => 259169
[work_sum] => 55000
[total_sum] => 314169
[total_days] => 7
[display_material_sum] => 259 169
[display_work_sum] => 55 000
[display_total_sum] => 314 169
)
1
314 169₽
Работа:55 000 ₽
Материалы:259 169 ₽
Дни:7
stdClass Object
(
[id] => 49
[attribute_id] => 25
[name] => Нет
[material_modifier] => 1
[work_modifier] => 1
[options] => Array
(
)
[days] => [0]
[material_price] => [0]
[work_price] => [0]
[image] => https://akademik-stroy.ru/wp-content/uploads/materials/gkl.jpg
[area_modifier] => 194.72
[parent_name] => Внутренние (не несущие) перегородки
[parent_id] => 25
[material_sum] => 0
[work_sum] => 0
[total_sum] => 0
[total_days] => 0
[display_material_sum] => 0
[display_work_sum] => 0
[display_total_sum] => 0
)
1
0₽
Работа:0 ₽
Материалы:0 ₽
Дни:0
stdClass Object
(
[id] => 147
[attribute_id] => 25
[name] => Каркасно-обшивные
[material_modifier] => 1
[work_modifier] => 1
[options] => Array
(
[0] => 75 мм (без шумоизоляции)
[1] => 75 мм (с шумоизоляцией)
)
[days] => [11,11]
[material_price] => [580,970]
[work_price] => [380,570]
[image] => https://akademik-stroy.ru/wp-content/uploads/materials/gkl.jpg
[area_modifier] => 194.72
[parent_name] => Внутренние (не несущие) перегородки
[parent_id] => 25
[material_sum] => 149078
[work_sum] => 81393
[total_sum] => 230471
[total_days] => 11
[display_material_sum] => 149 078
[display_work_sum] => 81 393
[display_total_sum] => 230 471
)
1
230 471₽
Работа:81 393 ₽
Материалы:149 078 ₽
Дни:11
stdClass Object
(
[id] => 148
[attribute_id] => 25
[name] => Пазогребневые
[material_modifier] => 1
[work_modifier] => 1
[options] => Array
(
[0] => 80 мм
[1] => 100 мм
)
[days] => [5,5]
[material_price] => [1022,1313]
[work_price] => [600,700]
[image] => https://akademik-stroy.ru/wp-content/uploads/materials/pazogrebnevye-bloki.jpg
[area_modifier] => 194.72
[parent_name] => Внутренние (не несущие) перегородки
[parent_id] => 25
[material_sum] => 262685
[work_sum] => 128515
[total_sum] => 391200
[total_days] => 5
[display_material_sum] => 262 685
[display_work_sum] => 128 515
[display_total_sum] => 391 200
)
1
391 200₽
Работа:128 515 ₽
Материалы:262 685 ₽
Дни:5
stdClass Object
(
[id] => 149
[attribute_id] => 25
[name] => Газобетонные
[material_modifier] => 1
[work_modifier] => 1
[options] => Array
(
[0] => 100 мм
[1] => 200 мм
)
[days] => [11,11]
[material_price] => [1160,1920]
[work_price] => [700,900]
[image] => https://akademik-stroy.ru/wp-content/uploads/materials/gazobeton-2.jpg
[area_modifier] => 194.72
[parent_name] => Внутренние (не несущие) перегородки
[parent_id] => 25
[material_sum] => 298155
[work_sum] => 149934
[total_sum] => 448089
[total_days] => 11
[display_material_sum] => 298 155
[display_work_sum] => 149 934
[display_total_sum] => 448 089
)
1
448 089₽
Работа:149 934 ₽
Материалы:298 155 ₽
Дни:11
stdClass Object
(
[id] => 150
[attribute_id] => 25
[name] => Кирпичные
[material_modifier] => 1
[work_modifier] => 1
[options] => Array
(
[0] => 120 мм
[1] => 250 мм
[2] => 360 мм
)
[days] => [7,7,7]
[material_price] => [1785,3570,5355]
[work_price] => [900,1600,1800]
[image] => https://akademik-stroy.ru/wp-content/uploads/materials/kirpich-1.jpg
[area_modifier] => 194.72
[parent_name] => Внутренние (не несущие) перегородки
[parent_id] => 25
[material_sum] => 458799
[work_sum] => 192773
[total_sum] => 651572
[total_days] => 7
[display_material_sum] => 458 799
[display_work_sum] => 192 773
[display_total_sum] => 651 572
)
1
651 572₽
Работа:192 773 ₽
Материалы:458 799 ₽
Дни:7
stdClass Object
(
[id] => 55
[attribute_id] => 28
[name] => Нет
[material_modifier] => 1
[work_modifier] => 1
[options] => Array
(
)
[days] => [0]
[material_price] => [0]
[work_price] => [0]
[image] => https://akademik-stroy.ru/wp-content/uploads/materials/ehlektrika.jpg
[area_modifier] => 158.01
[parent_name] => Электрика
[parent_id] => 28
[material_sum] => 0
[work_sum] => 0
[total_sum] => 0
[total_days] => 0
[display_material_sum] => 0
[display_work_sum] => 0
[display_total_sum] => 0
)
1
0₽
Работа:0 ₽
Материалы:0 ₽
Дни:0
stdClass Object
(
[id] => 56
[attribute_id] => 28
[name] => Есть
[material_modifier] => 1
[work_modifier] => 1
[options] => Array
(
)
[days] => [10]
[material_price] => [650]
[work_price] => [950]
[image] => https://akademik-stroy.ru/wp-content/uploads/materials/ehlektrika.jpg
[area_modifier] => 158.01
[parent_name] => Электрика
[parent_id] => 28
[material_sum] => 135573
[work_sum] => 165120
[total_sum] => 300693
[total_days] => 10
[display_material_sum] => 135 573
[display_work_sum] => 165 120
[display_total_sum] => 300 693
)
1
300 693₽
Работа:165 120 ₽
Материалы:135 573 ₽
Дни:10
stdClass Object
(
[id] => 57
[attribute_id] => 29
[name] => Нет
[material_modifier] => 1
[work_modifier] => 1
[options] => Array
(
)
[days] => [0]
[material_price] => [0]
[work_price] => [0]
[image] => https://akademik-stroy.ru/wp-content/uploads/materials/santekhnika-kanalizaciya-1.jpg
[area_modifier] => 158.01
[parent_name] => Сантехника, канализация в доме
[parent_id] => 29
[material_sum] => 0
[work_sum] => 0
[total_sum] => 0
[total_days] => 0
[display_material_sum] => 0
[display_work_sum] => 0
[display_total_sum] => 0
)
1
0₽
Работа:0 ₽
Материалы:0 ₽
Дни:0
stdClass Object
(
[id] => 58
[attribute_id] => 29
[name] => Есть
[material_modifier] => 1
[work_modifier] => 1
[options] => Array
(
)
[days] => [10]
[material_price] => [600]
[work_price] => [730]
[image] => https://akademik-stroy.ru/wp-content/uploads/materials/santekhnika-kanalizaciya-1.jpg
[area_modifier] => 158.01
[parent_name] => Сантехника, канализация в доме
[parent_id] => 29
[material_sum] => 125144
[work_sum] => 126882
[total_sum] => 252026
[total_days] => 10
[display_material_sum] => 125 144
[display_work_sum] => 126 882
[display_total_sum] => 252 026
)
1
252 026₽
Работа:126 882 ₽
Материалы:125 144 ₽
Дни:10
stdClass Object
(
[id] => 59
[attribute_id] => 30
[name] => Нет
[material_modifier] => 1
[work_modifier] => 1
[options] => Array
(
)
[days] => [0]
[material_price] => [0]
[work_price] => [0]
[image] => https://akademik-stroy.ru/wp-content/uploads/materials/otoplenie-1.jpg
[area_modifier] => 158.01
[parent_name] => Отопление
[parent_id] => 30
[material_sum] => 0
[work_sum] => 0
[total_sum] => 0
[total_days] => 0
[display_material_sum] => 0
[display_work_sum] => 0
[display_total_sum] => 0
)
1
0₽
Работа:0 ₽
Материалы:0 ₽
Дни:0
stdClass Object
(
[id] => 60
[attribute_id] => 30
[name] => Есть
[material_modifier] => 1
[work_modifier] => 1
[options] => Array
(
)
[days] => [5]
[material_price] => [610]
[work_price] => [560]
[image] => https://akademik-stroy.ru/wp-content/uploads/materials/otoplenie-1.jpg
[area_modifier] => 158.01
[parent_name] => Отопление
[parent_id] => 30
[material_sum] => 127230
[work_sum] => 97334
[total_sum] => 224564
[total_days] => 5
[display_material_sum] => 127 230
[display_work_sum] => 97 334
[display_total_sum] => 224 564
)
1
224 564₽
Работа:97 334 ₽
Материалы:127 230 ₽
Дни:5
stdClass Object
(
[id] => 61
[attribute_id] => 31
[name] => Нет
[material_modifier] => 1
[work_modifier] => 1
[options] => Array
(
)
[days] => [0]
[material_price] => [0]
[work_price] => [0]
[image] => https://akademik-stroy.ru/wp-content/uploads/materials/vodyanye.jpg
[area_modifier] => 30
[parent_name] => Теплые полы
[parent_id] => 31
[material_sum] => 0
[work_sum] => 0
[total_sum] => 0
[total_days] => 0
[display_material_sum] => 0
[display_work_sum] => 0
[display_total_sum] => 0
)
1
0₽
Работа:0 ₽
Материалы:0 ₽
Дни:0
stdClass Object
(
[id] => 151
[attribute_id] => 31
[name] => Водяные
[material_modifier] => 1
[work_modifier] => 1
[options] => Array
(
)
[days] => [9]
[material_price] => [10200]
[work_price] => [2500]
[image] => https://akademik-stroy.ru/wp-content/uploads/materials/vodyanye.jpg
[area_modifier] => 30
[parent_name] => Теплые полы
[parent_id] => 31
[material_sum] => 403920
[work_sum] => 82500
[total_sum] => 486420
[total_days] => 9
[display_material_sum] => 403 920
[display_work_sum] => 82 500
[display_total_sum] => 486 420
)
1
486 420₽
Работа:82 500 ₽
Материалы:403 920 ₽
Дни:9
stdClass Object
(
[id] => 152
[attribute_id] => 31
[name] => Электро
[material_modifier] => 1
[work_modifier] => 1
[options] => Array
(
)
[days] => [5]
[material_price] => [6300]
[work_price] => [1500]
[image] => https://akademik-stroy.ru/wp-content/uploads/materials/ehlektricheskij.jpg
[area_modifier] => 30
[parent_name] => Теплые полы
[parent_id] => 31
[material_sum] => 249480
[work_sum] => 49500
[total_sum] => 298980
[total_days] => 5
[display_material_sum] => 249 480
[display_work_sum] => 49 500
[display_total_sum] => 298 980
)
1
298 980₽
Работа:49 500 ₽
Материалы:249 480 ₽
Дни:5
stdClass Object
(
[id] => 63
[attribute_id] => 32
[name] => Нет
[material_modifier] => 1
[work_modifier] => 1
[options] => Array
(
)
[days] => [0]
[material_price] => [0]
[work_price] => [0]
[image] => https://akademik-stroy.ru/wp-content/uploads/materials/shtukaturka-shpatlevka-1.jpg
[area_modifier] => 158.01
[parent_name] => Черновая отделка стен
[parent_id] => 32
[material_sum] => 0
[work_sum] => 0
[total_sum] => 0
[total_days] => 0
[display_material_sum] => 0
[display_work_sum] => 0
[display_total_sum] => 0
)
1
0₽
Работа:0 ₽
Материалы:0 ₽
Дни:0
stdClass Object
(
[id] => 153
[attribute_id] => 32
[name] => Штукатурка и шпатлевка
[material_modifier] => 1
[work_modifier] => 1
[options] => Array
(
)
[days] => [20]
[material_price] => [1850]
[work_price] => [2600]
[image] => https://akademik-stroy.ru/wp-content/uploads/materials/shtukaturka-shpatlevka-1.jpg
[area_modifier] => 158.01
[parent_name] => Черновая отделка стен
[parent_id] => 32
[material_sum] => 385860
[work_sum] => 451909
[total_sum] => 837769
[total_days] => 20
[display_material_sum] => 385 860
[display_work_sum] => 451 909
[display_total_sum] => 837 769
)
1
837 769₽
Работа:451 909 ₽
Материалы:385 860 ₽
Дни:20
stdClass Object
(
[id] => 154
[attribute_id] => 32
[name] => Гипсокортон на стены
[material_modifier] => 1
[work_modifier] => 1
[options] => Array
(
)
[days] => [15]
[material_price] => [950]
[work_price] => [2100]
[image] => https://akademik-stroy.ru/wp-content/uploads/materials/gkl-1.jpg
[area_modifier] => 158.01
[parent_name] => Черновая отделка стен
[parent_id] => 32
[material_sum] => 198145
[work_sum] => 365003
[total_sum] => 563148
[total_days] => 15
[display_material_sum] => 198 145
[display_work_sum] => 365 003
[display_total_sum] => 563 148
)
1
563 148₽
Работа:365 003 ₽
Материалы:198 145 ₽
Дни:15
stdClass Object
(
[id] => 155
[attribute_id] => 32
[name] => Вагонка
[material_modifier] => 1
[work_modifier] => 1
[options] => Array
(
)
[days] => [15]
[material_price] => [1250]
[work_price] => [950]
[image] => https://akademik-stroy.ru/wp-content/uploads/materials/vagonka.jpg
[area_modifier] => 158.01
[parent_name] => Черновая отделка стен
[parent_id] => 32
[material_sum] => 260717
[work_sum] => 165120
[total_sum] => 425837
[total_days] => 15
[display_material_sum] => 260 717
[display_work_sum] => 165 120
[display_total_sum] => 425 837
)
1
425 837₽
Работа:165 120 ₽
Материалы:260 717 ₽
Дни:15
stdClass Object
(
[id] => 65
[attribute_id] => 33
[name] => Нет
[material_modifier] => 1
[work_modifier] => 1
[options] => Array
(
)
[days] => [0]
[material_price] => [0]
[work_price] => [0]
[image] => https://akademik-stroy.ru/wp-content/uploads/materials/styazhka.jpg
[area_modifier] => 158.01
[parent_name] => Черновая отделка полов
[parent_id] => 33
[material_sum] => 0
[work_sum] => 0
[total_sum] => 0
[total_days] => 0
[display_material_sum] => 0
[display_work_sum] => 0
[display_total_sum] => 0
)
1
0₽
Работа:0 ₽
Материалы:0 ₽
Дни:0
stdClass Object
(
[id] => 156
[attribute_id] => 33
[name] => Стяжка + наливные полы
[material_modifier] => 1
[work_modifier] => 1
[options] => Array
(
)
[days] => [10]
[material_price] => [1000]
[work_price] => [900]
[image] => https://akademik-stroy.ru/wp-content/uploads/materials/styazhka.jpg
[area_modifier] => 158.01
[parent_name] => Черновая отделка полов
[parent_id] => 33
[material_sum] => 208573
[work_sum] => 156430
[total_sum] => 365003
[total_days] => 10
[display_material_sum] => 208 573
[display_work_sum] => 156 430
[display_total_sum] => 365 003
)
1
365 003₽
Работа:156 430 ₽
Материалы:208 573 ₽
Дни:10
stdClass Object
(
[id] => 157
[attribute_id] => 33
[name] => ОСБ на пол
[material_modifier] => 1
[work_modifier] => 1
[options] => Array
(
)
[days] => [7]
[material_price] => [580]
[work_price] => [350]
[image] => https://akademik-stroy.ru/wp-content/uploads/materials/osb-1.jpg
[area_modifier] => 158.01
[parent_name] => Черновая отделка полов
[parent_id] => 33
[material_sum] => 120972
[work_sum] => 60834
[total_sum] => 181806
[total_days] => 7
[display_material_sum] => 120 972
[display_work_sum] => 60 834
[display_total_sum] => 181 806
)
1
181 806₽
Работа:60 834 ₽
Материалы:120 972 ₽
Дни:7
stdClass Object
(
[id] => 67
[attribute_id] => 34
[name] => Нет
[material_modifier] => 1
[work_modifier] => 1
[options] => Array
(
)
[days] => [0]
[material_price] => [0]
[work_price] => [0]
[image] => https://akademik-stroy.ru/wp-content/uploads/materials/chistovaya-otdelka.jpg
[area_modifier] => 158.01
[parent_name] => Чистовая отделка стен и полов
[parent_id] => 34
[material_sum] => 0
[work_sum] => 0
[total_sum] => 0
[total_days] => 0
[display_material_sum] => 0
[display_work_sum] => 0
[display_total_sum] => 0
)
1
0₽
Работа:0 ₽
Материалы:0 ₽
Дни:0
stdClass Object
(
[id] => 68
[attribute_id] => 34
[name] => Есть
[material_modifier] => 1
[work_modifier] => 1
[options] => Array
(
)
[days] => [50]
[material_price] => [6000]
[work_price] => [3500]
[image] => https://akademik-stroy.ru/wp-content/uploads/materials/chistovaya-otdelka.jpg
[area_modifier] => 158.01
[parent_name] => Чистовая отделка стен и полов
[parent_id] => 34
[material_sum] => 1251439
[work_sum] => 608339
[total_sum] => 1859778
[total_days] => 50
[display_material_sum] => 1 251 439
[display_work_sum] => 608 339
[display_total_sum] => 1 859 778
)
1
1 859 778₽
Работа:608 339 ₽
Материалы:1 251 439 ₽
Дни:50
stdClass Object
(
[id] => 69
[attribute_id] => 35
[name] => Нет
[material_modifier] => 1
[work_modifier] => 1
[options] => Array
(
)
[days] => [0]
[material_price] => [0]
[work_price] => [0]
[image] => https://akademik-stroy.ru/wp-content/uploads/materials/mnogourovnevyj-gkl.jpg
[area_modifier] => 158.01
[parent_name] => Отделка потолка
[parent_id] => 35
[material_sum] => 0
[work_sum] => 0
[total_sum] => 0
[total_days] => 0
[display_material_sum] => 0
[display_work_sum] => 0
[display_total_sum] => 0
)
1
0₽
Работа:0 ₽
Материалы:0 ₽
Дни:0
stdClass Object
(
[id] => 70
[attribute_id] => 35
[name] => Есть
[material_modifier] => 1
[work_modifier] => 1
[options] => Array
(
[0] => Многоуровневый потолок из гипсокартона
[1] => Многоуровневый потолок из гипсокартона и натяжного потолка
[2] => Одноуровневый потолок из гипсокартона
[3] => Одноуровневый натяжной потолок
)
[days] => [10,10,1,1]
[material_price] => [900,700,700,600]
[work_price] => [1000,800,500,300]
[image] => https://akademik-stroy.ru/wp-content/uploads/materials/mnogourovnevyj-gkl.jpg
[area_modifier] => 158.01
[parent_name] => Отделка потолка
[parent_id] => 35
[material_sum] => 187716
[work_sum] => 173811
[total_sum] => 361527
[total_days] => 10
[display_material_sum] => 187 716
[display_work_sum] => 173 811
[display_total_sum] => 361 527
)
1
361 527₽
Работа:173 811 ₽
Материалы:187 716 ₽
Дни:10
Преимущества работы с нами
7 этапов оплаты
Независимый строительный надзор
Экологически чистые материалы
16 лет гарантии
Онлайн-кабинет с веб-камерой
Строители с опытом более 15 лет
Собственное производство








