Одноэтажный дом 203.62 м2 за руб.
Планировки
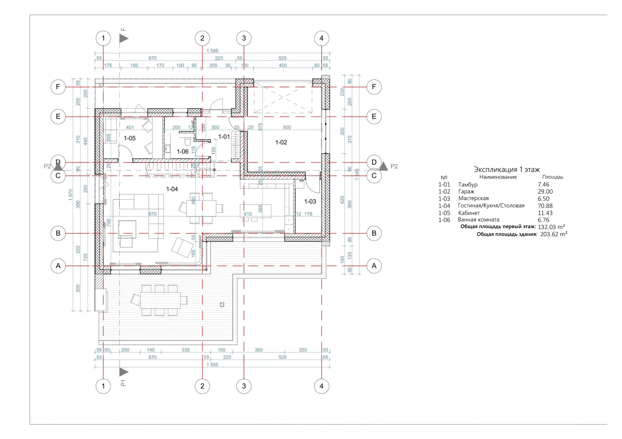
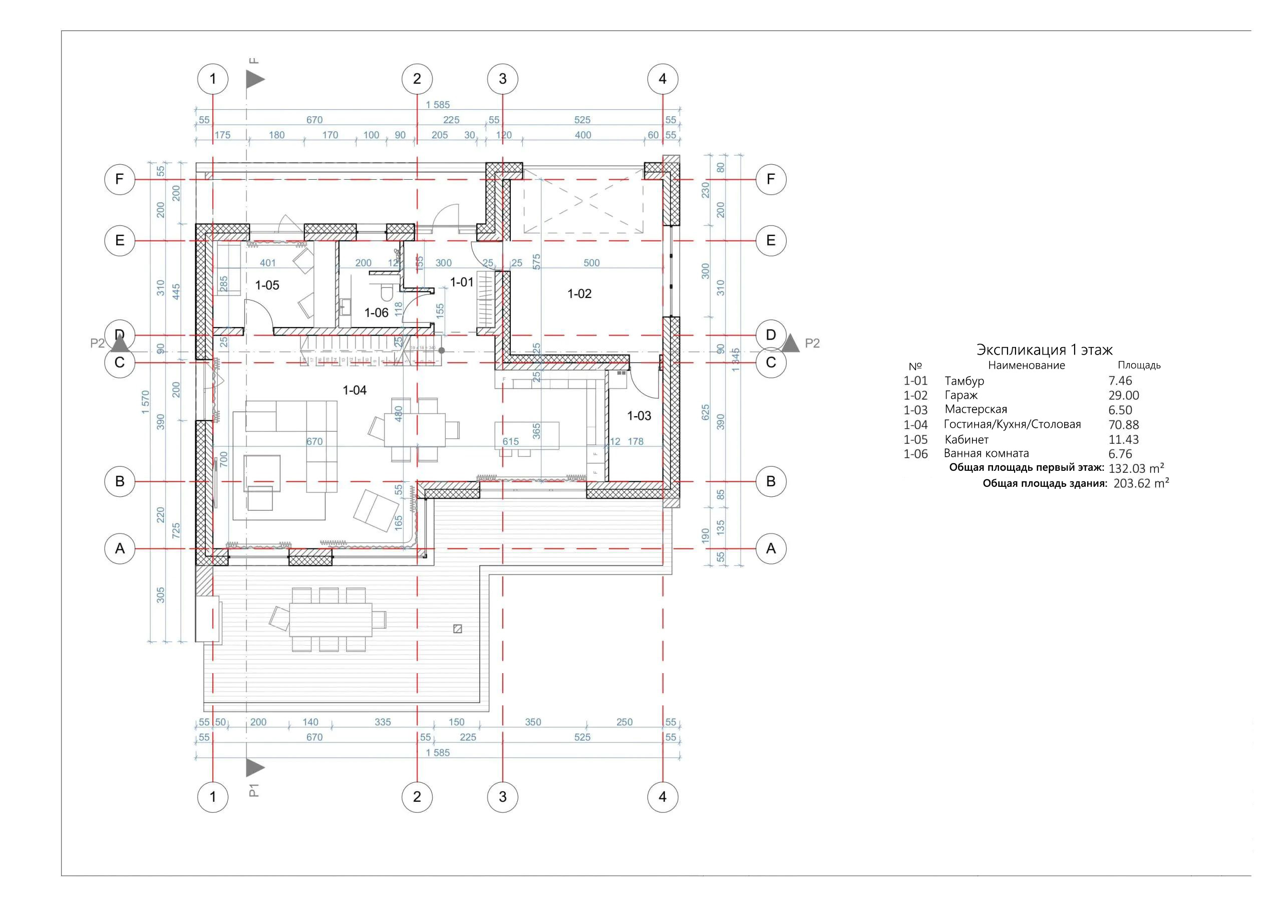
План первого этажа
- 1. Тамбур 7,46 м²
- 2. Гараж 29,00 м²
- 3. Мастерская 6,50 м²
- 4. Гостиная-Кухня-Столовая 70,88 м²
- 5. Кабинет 11,43 м²
- 6. Ванная комната 6,76 м²
- Общая площадь второй этаж 132,03 м²
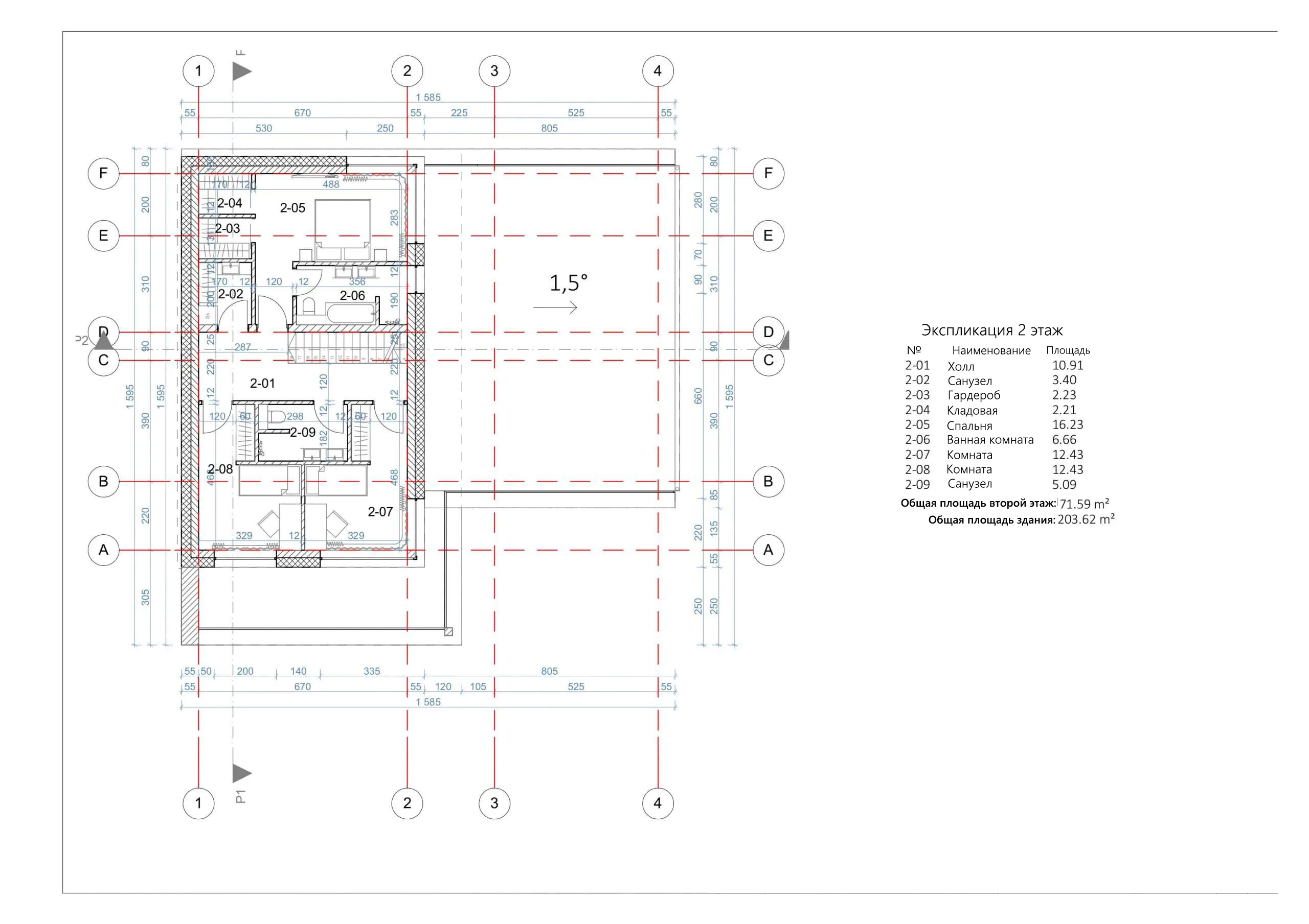
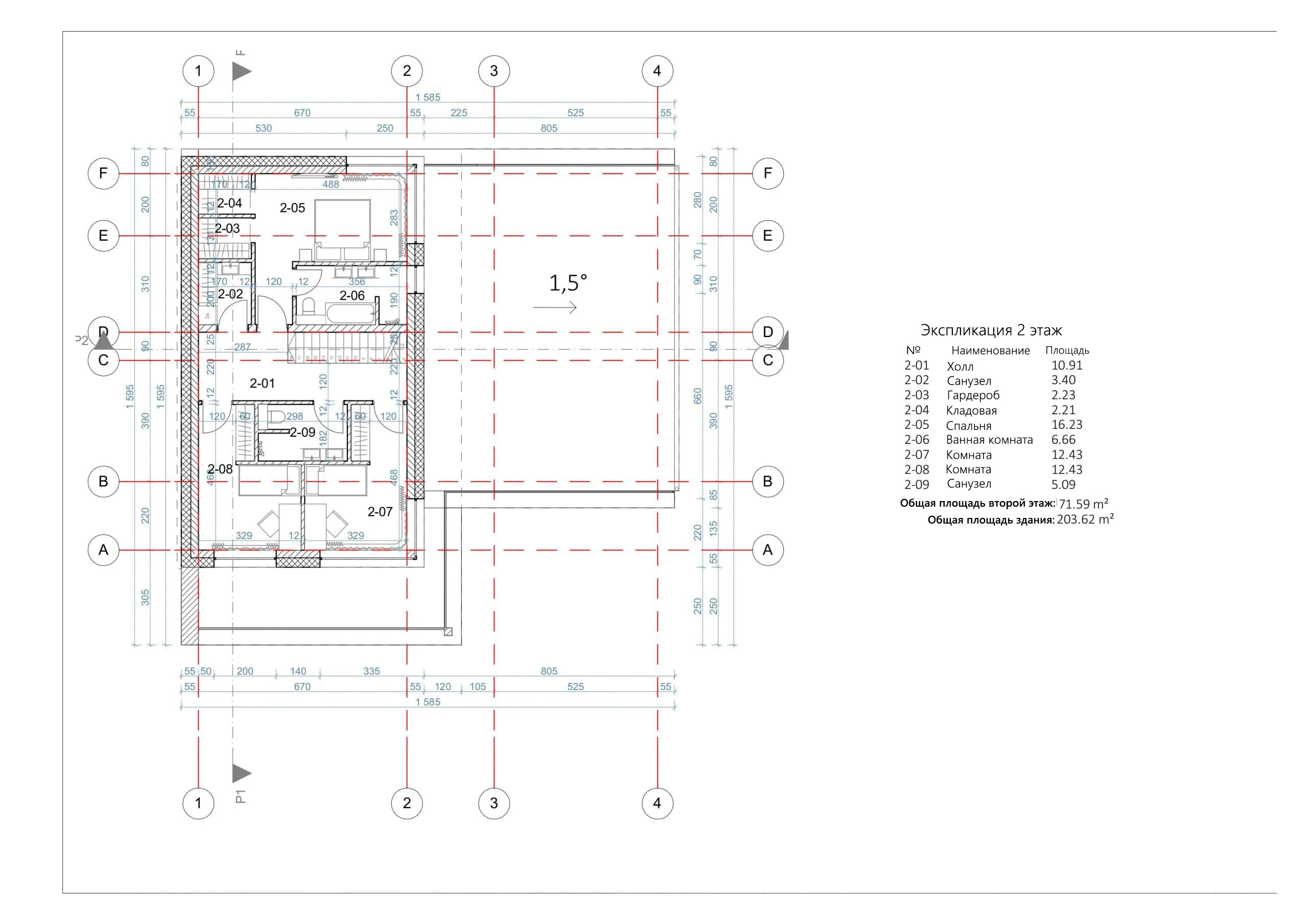
План второго этажа
- 1. Холл 10,91 м²
- 2. Санузел 3,40 м²
- 3. Кладовая 2,21 м²
- 4. Спальня 16,23 м²
- 5. Ванная комната 6,66 м²
- 6. Комната 12,43 м²
- 7. Комната 12,43 м²
- 8. Санузел 5,09 м²
- Общая площадь второй этаж 71,59 м²
Площади дома
| № п/п | Наименование | Ед. из. | Строительная площадь | Полезная площадь |
| 1 | 1 этаж | м2 | 162.7 | 132.03 |
| 2 | 2 этаж | м2 | 88.22 | 71.59 |
| 3 | Итого | м2 | 250.92 | 203.62 |
154 м2
Полезная
площадь
площадь
1 этаж
Этажей
26 м2
Террасы
и балконы
и балконы
1Без
гаража
гаража
4
Количество
спален
спален
4
Количество
санузлов
санузлов
Калькулятор опций
0₽
В ипотеку от 24 999 ₽/мес.
0₽
0 дней
stdClass Object
(
[id] => 1
[attribute_id] => 1
[name] => Ленточный монолитный ж/б
[material_modifier] => 1
[work_modifier] => 1
[options] => Array
(
[0] => размер 200 х 700 мм
[1] => размер 300 х 900 мм
[2] => размер 400 х 1 000 мм
[3] => размер 500 х 1 100 мм
[4] => размер 600 х 1 200 мм
)
[days] => [20,21,22,25,30]
[material_price] => [2823,3630,4475,5210,12047]
[work_price] => [2154,2826,3731,4577,5293]
[image] => https://akademik-stroy.ru/wp-content/uploads/materials/lentochnyj-monolitnyj-zh-b.jpg
[area_modifier] => 162.7
[parent_name] => Фундамент
[parent_id] => 1
[material_sum] => 578721
[work_sum] => 367979
[total_sum] => 946700
[total_days] => 20
[display_material_sum] => 578 721
[display_work_sum] => 367 979
[display_total_sum] => 946 700
)
1
946 700₽
Работа:367 979 ₽
Материалы:578 721 ₽
Дни:20
stdClass Object
(
[id] => 2
[attribute_id] => 1
[name] => Забивные Ж/Б сваи
[material_modifier] => 1
[work_modifier] => 1
[options] => Array
(
[0] => 150х150х3000мм
[1] => 150х150х4000мм
[2] => 200х200х3000мм
[3] => 200х200х4000мм
[4] => 200х200х5000мм
[5] => 200х200х6000мм
)
[days] => [2,2,2,2,2,2]
[material_price] => [1990,2850,3255,4360,5120,6837]
[work_price] => [1002,1185,1336,1438,1574,1839]
[image] => https://akademik-stroy.ru/wp-content/uploads/materials/zabivnye-zh-b-svai.png
[area_modifier] => 162.7
[parent_name] => Фундамент
[parent_id] => 1
[material_sum] => 407954
[work_sum] => 171177
[total_sum] => 579131
[total_days] => 2
[display_material_sum] => 407 954
[display_work_sum] => 171 177
[display_total_sum] => 579 131
)
1
579 131₽
Работа:171 177 ₽
Материалы:407 954 ₽
Дни:2
stdClass Object
(
[id] => 71
[attribute_id] => 1
[name] => Свайно-ростверковый ж/б
[material_modifier] => 1
[work_modifier] => 1
[options] => Array
(
[0] => ростверк 200х300 мм
[1] => ростверк 300х600 мм
[2] => ростверк 400х900 мм
[3] => ростверк 500х1200 мм
)
[days] => [20,23,25,27]
[material_price] => [3018,3474,7109,9792]
[work_price] => [2024,3012,5635,7022]
[image] => https://akademik-stroy.ru/wp-content/uploads/materials/svajno-rostverkovyj-monolitnyj-zh-b-3.png
[area_modifier] => 162.7
[parent_name] => Фундамент
[parent_id] => 1
[material_sum] => 618696
[work_sum] => 345770
[total_sum] => 964466
[total_days] => 20
[display_material_sum] => 618 696
[display_work_sum] => 345 770
[display_total_sum] => 964 466
)
1
964 466₽
Работа:345 770 ₽
Материалы:618 696 ₽
Дни:20
stdClass Object
(
[id] => 72
[attribute_id] => 1
[name] => Монолитная ж/б плита
[material_modifier] => 1
[work_modifier] => 1
[options] => Array
(
[0] => 200 мм
[1] => 300 мм
[2] => 400 мм
[3] => 500 мм
[4] => 600 мм
)
[days] => [30,33,35,37,40]
[material_price] => [5348,8555,12788,14388,15189]
[work_price] => [4314,4881,7037,8061,10230]
[image] => https://akademik-stroy.ru/wp-content/uploads/materials/monolitnaya-zhb-plita.png
[area_modifier] => 162.7
[parent_name] => Фундамент
[parent_id] => 1
[material_sum] => 1096351
[work_sum] => 736982
[total_sum] => 1833333
[total_days] => 30
[display_material_sum] => 1 096 351
[display_work_sum] => 736 982
[display_total_sum] => 1 833 333
)
1
1 833 333₽
Работа:736 982 ₽
Материалы:1 096 351 ₽
Дни:30
stdClass Object
(
[id] => 73
[attribute_id] => 1
[name] => Утепленная шведская плита
[material_modifier] => 1
[work_modifier] => 1
[options] => Array
(
[0] => 200 мм
[1] => 300 мм
[2] => 400 мм
[3] => 500 мм
[4] => 600 мм
)
[days] => [32,37,39,42,45]
[material_price] => [10249,12692,13760,14936,16230]
[work_price] => [5960,7337,8072,8878,9765]
[image] => https://akademik-stroy.ru/wp-content/uploads/materials/uteplennaya-shvedskaya-plita.jpg
[area_modifier] => 162.7
[parent_name] => Фундамент
[parent_id] => 1
[material_sum] => 2101065
[work_sum] => 1018177
[total_sum] => 3119242
[total_days] => 32
[display_material_sum] => 2 101 065
[display_work_sum] => 1 018 177
[display_total_sum] => 3 119 242
)
1
3 119 242₽
Работа:1 018 177 ₽
Материалы:2 101 065 ₽
Дни:32
stdClass Object
(
[id] => 75
[attribute_id] => 1
[name] => Ленточный из ФБС
[material_modifier] => 1
[work_modifier] => 1
[options] => Array
(
[0] => толщ. 300 мм
[1] => толщ. 400 мм
[2] => толщ. 500 мм
[3] => толщ. 600 мм
)
[days] => [20,20,20,20]
[material_price] => [3675,4902,6126,7350]
[work_price] => [2451,3264,4083,4902]
[image] => https://akademik-stroy.ru/wp-content/uploads/materials/lentochnyj-iz-fbs.png
[area_modifier] => 162.7
[parent_name] => Фундамент
[parent_id] => 1
[material_sum] => 753382
[work_sum] => 418717
[total_sum] => 1172099
[total_days] => 20
[display_material_sum] => 753 382
[display_work_sum] => 418 717
[display_total_sum] => 1 172 099
)
1
1 172 099₽
Работа:418 717 ₽
Материалы:753 382 ₽
Дни:20
stdClass Object
(
[id] => 76
[attribute_id] => 1
[name] => Цокольный этаж из ФБС
[material_modifier] => 1
[work_modifier] => 1
[options] => Array
(
[0] => толщ. 300 мм
[1] => толщ. 400 мм
[2] => толщ. 500 мм
[3] => толщ. 600 мм
)
[days] => [30,32,34,36]
[material_price] => [20916,23299,26680,29060]
[work_price] => [17524,18700,19873,21046]
[image] => https://akademik-stroy.ru/wp-content/uploads/materials/cokolnyj-ehtazh-iz-fbs.jpg
[area_modifier] => 162.7
[parent_name] => Фундамент
[parent_id] => 1
[material_sum] => 4287822
[work_sum] => 2993713
[total_sum] => 7281535
[total_days] => 30
[display_material_sum] => 4 287 822
[display_work_sum] => 2 993 713
[display_total_sum] => 7 281 535
)
1
7 281 535₽
Работа:2 993 713 ₽
Материалы:4 287 822 ₽
Дни:30
stdClass Object
(
[id] => 77
[attribute_id] => 1
[name] => Цокольный этаж монолитный ж/б
[material_modifier] => 1
[work_modifier] => 1
[options] => Array
(
[0] => толщ. 200 мм
[1] => толщ. 300 мм
[2] => толщ. 400 мм
[3] => толщ. 500 мм
[4] => толщ. 600 мм
)
[days] => [40,42,44,46,48]
[material_price] => [25421,29148,32275,35602,37326]
[work_price] => [20441,21907,23375,24841,26306]
[image] => https://akademik-stroy.ru/wp-content/uploads/materials/cokolnyj-etazh-zh-b.jpg
[area_modifier] => 162.7
[parent_name] => Фундамент
[parent_id] => 1
[material_sum] => 5211356
[work_sum] => 3492038
[total_sum] => 8703394
[total_days] => 40
[display_material_sum] => 5 211 356
[display_work_sum] => 3 492 038
[display_total_sum] => 8 703 394
)
1
8 703 394₽
Работа:3 492 038 ₽
Материалы:5 211 356 ₽
Дни:40
stdClass Object
(
[id] => 191
[attribute_id] => 1
[name] => Винтовые сваи
[material_modifier] => 1
[work_modifier] => 1
[options] => Array
(
[0] => 57х200мм
[1] => 76х250мм
[2] => 108х300мм
[3] => 133х350мм
)
[days] => [1,1,2,2]
[material_price] => [1200,1300,1450,1600]
[work_price] => [400,600,900,1100]
[image] => https://akademik-stroy.ru/wp-content/uploads/materials/vintovye-svai.png
[area_modifier] => 162.7
[parent_name] => Фундамент
[parent_id] => 1
[material_sum] => 246002
[work_sum] => 68334
[total_sum] => 314336
[total_days] => 1
[display_material_sum] => 246 002
[display_work_sum] => 68 334
[display_total_sum] => 314 336
)
1
314 336₽
Работа:68 334 ₽
Материалы:246 002 ₽
Дни:1
stdClass Object
(
[id] => 3
[attribute_id] => 2
[name] => Деревянные балки
[material_modifier] => 1
[work_modifier] => 1
[options] => Array
(
[0] => без утепления
[1] => утепление 200 мм
[2] => утепление 250 мм
[3] => утепление 300 мм
[4] => утепление 350 мм
[5] => утепление 400 мм
[6] => утепление 450 мм
[7] => утепление 500 мм
)
[days] => [8,9,9,9,11,12,13,14]
[material_price] => [1634,2042,2344,2947,3149,3652,3354,3557]
[work_price] => [1230,1339,1393,1426,1460,1513,1587,1620]
[image] => https://akademik-stroy.ru/wp-content/uploads/materials/derevyannye-balki.png
[area_modifier] => 162.7
[parent_name] => Перекрытие цоколя
[parent_id] => 2
[material_sum] => 334973
[work_sum] => 210127
[total_sum] => 545100
[total_days] => 8
[display_material_sum] => 334 973
[display_work_sum] => 210 127
[display_total_sum] => 545 100
)
1
545 100₽
Работа:210 127 ₽
Материалы:334 973 ₽
Дни:8
stdClass Object
(
[id] => 4
[attribute_id] => 2
[name] => Сборные ж/б плиты
[material_modifier] => 1
[work_modifier] => 1
[options] => Array
(
[0] => без утепления
[1] => утепление 150мм
[2] => утепление 200мм
[3] => утепление 250мм
[4] => утепление 300мм
[5] => утепление 350мм
[6] => утепление 400мм
[7] => утепление 450мм
[8] => утепление 500мм
)
[days] => [13,15,15,15,15,15,15,15,15]
[material_price] => [3067,5577,5928,6679,7730,8782,9833,10884,11935]
[work_price] => [1520,1956,2102,2247,2392,2537,2684,2829,2974]
[image] => https://akademik-stroy.ru/wp-content/uploads/materials/sbornye-zh-b-plity-2.jpg
[area_modifier] => 162.7
[parent_name] => Перекрытие цоколя
[parent_id] => 2
[material_sum] => 628741
[work_sum] => 259669
[total_sum] => 888410
[total_days] => 13
[display_material_sum] => 628 741
[display_work_sum] => 259 669
[display_total_sum] => 888 410
)
1
888 410₽
Работа:259 669 ₽
Материалы:628 741 ₽
Дни:13
stdClass Object
(
[id] => 78
[attribute_id] => 2
[name] => Монолитная ж/б плита
[material_modifier] => 1
[work_modifier] => 1
[options] => Array
(
[0] => без утепления
[1] => утепление 150 мм
[2] => утепление 200 мм
[3] => утепление 250 мм
[4] => утепление 300 мм
[5] => утепление 350 мм
[6] => утепление 400 мм
[7] => утепление 450 мм
[8] => утепление 500 мм
)
[days] => [18,20,20,20,20,20,20,20,20]
[material_price] => [4837,6572,7224,7375,79426,8177,8728,9180,10031]
[work_price] => [3348,3921,4112,4302,4493,4684,4875,5066,5256]
[image] => https://akademik-stroy.ru/wp-content/uploads/materials/monolitnaya-zh-b-plita-2.jpg
[area_modifier] => 162.7
[parent_name] => Перекрытие цоколя
[parent_id] => 2
[material_sum] => 991595
[work_sum] => 571956
[total_sum] => 1563551
[total_days] => 18
[display_material_sum] => 991 595
[display_work_sum] => 571 956
[display_total_sum] => 1 563 551
)
1
1 563 551₽
Работа:571 956 ₽
Материалы:991 595 ₽
Дни:18
stdClass Object
(
[id] => 6
[attribute_id] => 3
[name] => Пеноблок
[material_modifier] => 1
[work_modifier] => 1
[options] => Array
(
[0] => 300 мм
[1] => 400 мм
[2] => 500 мм
[3] => 600 мм
)
[days] => [29,31,34,39]
[material_price] => [3000,4000,4500,4937]
[work_price] => [5033,5805,6400,8710]
[image] => https://akademik-stroy.ru/wp-content/uploads/materials/penoblok.jpg
[area_modifier] => 162.7
[parent_name] => Стены 1 этаж (несущие)
[parent_id] => 3
[material_sum] => 615006
[work_sum] => 859813
[total_sum] => 1474819
[total_days] => 29
[display_material_sum] => 615 006
[display_work_sum] => 859 813
[display_total_sum] => 1 474 819
)
1
1 474 819₽
Работа:859 813 ₽
Материалы:615 006 ₽
Дни:29
stdClass Object
(
[id] => 79
[attribute_id] => 3
[name] => Керамический блок
[material_modifier] => 1
[work_modifier] => 1
[options] => Array
(
[0] => 380 мм
[1] => 380 мм Thermo
[2] => 440 мм
[3] => 510 мм
)
[days] => [23,23,24,25]
[material_price] => [4510,5098,6093,8013]
[work_price] => [4737,4937,5903,6958]
[image] => https://akademik-stroy.ru/wp-content/uploads/materials/keramicheskij-blok.jpg
[area_modifier] => 162.7
[parent_name] => Стены 1 этаж (несущие)
[parent_id] => 3
[material_sum] => 924559
[work_sum] => 809245
[total_sum] => 1733804
[total_days] => 23
[display_material_sum] => 924 559
[display_work_sum] => 809 245
[display_total_sum] => 1 733 804
)
1
1 733 804₽
Работа:809 245 ₽
Материалы:924 559 ₽
Дни:23
stdClass Object
(
[id] => 80
[attribute_id] => 3
[name] => Кирпич
[material_modifier] => 1
[work_modifier] => 1
[options] => Array
(
[0] => Кирпич 250 мм
[1] => Кирпич 380 мм
[2] => Кирпич 510 мм
[3] => Кирпич 640 мм
[4] => Кирпич 770 мм
)
[days] => [30,30,31,33,36]
[material_price] => [5500,7142,9206,10171,12235]
[work_price] => [8736,10041,12018,15240,18462]
[image] => https://akademik-stroy.ru/wp-content/uploads/materials/kirpich.jpg
[area_modifier] => 162.7
[parent_name] => Стены 1 этаж (несущие)
[parent_id] => 3
[material_sum] => 1127511
[work_sum] => 1492415
[total_sum] => 2619926
[total_days] => 30
[display_material_sum] => 1 127 511
[display_work_sum] => 1 492 415
[display_total_sum] => 2 619 926
)
1
2 619 926₽
Работа:1 492 415 ₽
Материалы:1 127 511 ₽
Дни:30
stdClass Object
(
[id] => 81
[attribute_id] => 3
[name] => Монолитные
[material_modifier] => 1
[work_modifier] => 1
[options] => Array
(
[0] => 150 мм
[1] => 200 мм
[2] => 250 мм
[3] => 300 мм
[4] => 350 мм
[5] => 400 мм
)
[days] => [45,46,47,49,50,53]
[material_price] => [6545,7876,10175,12011,13908,15204]
[work_price] => [5106,6444,7698,8552,9807,11461]
[image] => https://akademik-stroy.ru/wp-content/uploads/materials/monolitnye.jpg
[area_modifier] => 162.7
[parent_name] => Стены 1 этаж (несущие)
[parent_id] => 3
[material_sum] => 1341738
[work_sum] => 872284
[total_sum] => 2214022
[total_days] => 45
[display_material_sum] => 1 341 738
[display_work_sum] => 872 284
[display_total_sum] => 2 214 022
)
1
2 214 022₽
Работа:872 284 ₽
Материалы:1 341 738 ₽
Дни:45
stdClass Object
(
[id] => 82
[attribute_id] => 3
[name] => Клееный брус
[material_modifier] => 1
[work_modifier] => 1
[options] => Array
(
[0] => 160 мм
[1] => 175 мм
[2] => 200 мм
[3] => 215 мм
[4] => 240 мм
[5] => 270 мм
[6] => 282 мм
)
[days] => [24,28,32,37,40,42,48]
[material_price] => [16975,18773,19950,20545,21599,22159,23275]
[work_price] => [4806,5287,5815,6397,7036,7740,8514]
[image] => https://akademik-stroy.ru/wp-content/uploads/materials/kleenyj-brus.jpg
[area_modifier] => 162.7
[parent_name] => Стены 1 этаж (несущие)
[parent_id] => 3
[material_sum] => 3479909
[work_sum] => 821033
[total_sum] => 4300942
[total_days] => 24
[display_material_sum] => 3 479 909
[display_work_sum] => 821 033
[display_total_sum] => 4 300 942
)
1
4 300 942₽
Работа:821 033 ₽
Материалы:3 479 909 ₽
Дни:24
stdClass Object
(
[id] => 83
[attribute_id] => 3
[name] => Каркасные
[material_modifier] => 1
[work_modifier] => 1
[options] => Array
(
[0] => 150 мм
[1] => 200 мм
[2] => 250 мм
[3] => 300 мм
)
[days] => [15,16,17,18]
[material_price] => [2379,2639,2898,3258]
[work_price] => [2418,2686,2985,3716]
[image] => https://akademik-stroy.ru/wp-content/uploads/materials/karkasnye.jpg
[area_modifier] => 162.7
[parent_name] => Стены 1 этаж (несущие)
[parent_id] => 3
[material_sum] => 487700
[work_sum] => 413079
[total_sum] => 900779
[total_days] => 15
[display_material_sum] => 487 700
[display_work_sum] => 413 079
[display_total_sum] => 900 779
)
1
900 779₽
Работа:413 079 ₽
Материалы:487 700 ₽
Дни:15
stdClass Object
(
[id] => 84
[attribute_id] => 3
[name] => СИП-панели
[material_modifier] => 1
[work_modifier] => 1
[options] => Array
(
[0] => 120 мм
[1] => 170 мм
[2] => 220 мм
)
[days] => [7,7,7]
[material_price] => [1210,1856,2292]
[work_price] => [1410,1551,1706]
[image] => https://akademik-stroy.ru/wp-content/uploads/materials/sip-paneli.jpg
[area_modifier] => 162.7
[parent_name] => Стены 1 этаж (несущие)
[parent_id] => 3
[material_sum] => 248052
[work_sum] => 240877
[total_sum] => 488929
[total_days] => 7
[display_material_sum] => 248 052
[display_work_sum] => 240 877
[display_total_sum] => 488 929
)
1
488 929₽
Работа:240 877 ₽
Материалы:248 052 ₽
Дни:7
stdClass Object
(
[id] => 85
[attribute_id] => 3
[name] => Сухой брус
[material_modifier] => 1
[work_modifier] => 1
[options] => Array
(
[0] => 150 мм
[1] => 180 мм
[2] => 200 мм
)
[days] => [7,8,9]
[material_price] => [6010,7190,8709]
[work_price] => [3204,3845,4229]
[image] => https://akademik-stroy.ru/wp-content/uploads/materials/suhoj-brus.jpg
[area_modifier] => 162.7
[parent_name] => Стены 1 этаж (несущие)
[parent_id] => 3
[material_sum] => 1232062
[work_sum] => 547355
[total_sum] => 1779417
[total_days] => 7
[display_material_sum] => 1 232 062
[display_work_sum] => 547 355
[display_total_sum] => 1 779 417
)
1
1 779 417₽
Работа:547 355 ₽
Материалы:1 232 062 ₽
Дни:7
stdClass Object
(
[id] => 86
[attribute_id] => 3
[name] => Профилированный брус
[material_modifier] => 1
[work_modifier] => 1
[options] => Array
(
[0] => 150 мм
[1] => 180 мм
[2] => 200 мм
)
[days] => [7,8,9]
[material_price] => [8190,9228,10051]
[work_price] => [3845,4614,5075]
[image] => https://akademik-stroy.ru/wp-content/uploads/materials/profilirovannyj-brus.jpg
[area_modifier] => 162.7
[parent_name] => Стены 1 этаж (несущие)
[parent_id] => 3
[material_sum] => 1678966
[work_sum] => 656861
[total_sum] => 2335827
[total_days] => 7
[display_material_sum] => 1 678 966
[display_work_sum] => 656 861
[display_total_sum] => 2 335 827
)
1
2 335 827₽
Работа:656 861 ₽
Материалы:1 678 966 ₽
Дни:7
stdClass Object
(
[id] => 87
[attribute_id] => 3
[name] => Оцилиндрованное бревно
[material_modifier] => 1
[work_modifier] => 1
[options] => Array
(
[0] => 180 мм
[1] => 220 мм
[2] => 260 мм
[3] => 320 мм
)
[days] => [7,8,9,10]
[material_price] => [75190,9532,10868,13116]
[work_price] => [3845,4691,5535,6863]
[image] => https://akademik-stroy.ru/wp-content/uploads/materials/ocilindrovannoe-brevno-1.jpg
[area_modifier] => 162.7
[parent_name] => Стены 1 этаж (несущие)
[parent_id] => 3
[material_sum] => 15414100
[work_sum] => 656861
[total_sum] => 16070961
[total_days] => 7
[display_material_sum] => 15 414 100
[display_work_sum] => 656 861
[display_total_sum] => 16 070 961
)
1
16 070 961₽
Работа:656 861 ₽
Материалы:15 414 100 ₽
Дни:7
stdClass Object
(
[id] => 88
[attribute_id] => 3
[name] => Срубы
[material_modifier] => 1
[work_modifier] => 1
[options] => Array
(
[0] => 260 мм
[1] => 320 мм
[2] => 360 мм
[3] => 400 мм
[4] => 500 мм
)
[days] => [7,8,9,10,11]
[material_price] => [37975,46709,52314,58069,73167]
[work_price] => [4806,5911,6621,7349,9260]
[image] => https://akademik-stroy.ru/wp-content/uploads/materials/sruby.jpg
[area_modifier] => 162.7
[parent_name] => Стены 1 этаж (несущие)
[parent_id] => 3
[material_sum] => 7784951
[work_sum] => 821033
[total_sum] => 8605984
[total_days] => 7
[display_material_sum] => 7 784 951
[display_work_sum] => 821 033
[display_total_sum] => 8 605 984
)
1
8 605 984₽
Работа:821 033 ₽
Материалы:7 784 951 ₽
Дни:7
stdClass Object
(
[id] => 174
[attribute_id] => 3
[name] => Брус
[material_modifier] => 1
[work_modifier] => 1
[options] => Array
(
[0] => 150 мм
[1] => 180 мм
[2] => 200 мм
)
[days] => [7,8,9]
[material_price] => [5127,6152,7367]
[work_price] => [1602,1922,2115]
[image] => https://akademik-stroy.ru/wp-content/uploads/materials/brus.jpg
[area_modifier] => 162.7
[parent_name] => Стены 1 этаж (несущие)
[parent_id] => 3
[material_sum] => 1051045
[work_sum] => 273678
[total_sum] => 1324723
[total_days] => 7
[display_material_sum] => 1 051 045
[display_work_sum] => 273 678
[display_total_sum] => 1 324 723
)
1
1 324 723₽
Работа:273 678 ₽
Материалы:1 051 045 ₽
Дни:7
stdClass Object
(
[id] => 175
[attribute_id] => 3
[name] => Газобетон
[material_modifier] => 1
[work_modifier] => 1
[options] => Array
(
[0] => 300 мм
[1] => 375 мм
[2] => 400 мм
[3] => 500 мм
[4] => 600 мм
)
[days] => [29,31,35,37,44]
[material_price] => [4298,5573,6356,7288,9119]
[work_price] => [4538,5251,5926,6733,7195]
[image] => https://akademik-stroy.ru/wp-content/uploads/materials/gazobeton.jpg
[area_modifier] => 162.7
[parent_name] => Стены 1 этаж (несущие)
[parent_id] => 3
[material_sum] => 881099
[work_sum] => 775249
[total_sum] => 1656348
[total_days] => 29
[display_material_sum] => 881 099
[display_work_sum] => 775 249
[display_total_sum] => 1 656 348
)
1
1 656 348₽
Работа:775 249 ₽
Материалы:881 099 ₽
Дни:29
stdClass Object
(
[id] => 176
[attribute_id] => 3
[name] => Блок
[material_modifier] => 1
[work_modifier] => 1
[options] => Array
(
[0] => 300 мм
[1] => 375 мм
[2] => 400 мм
[3] => 500 мм
[4] => 600 мм
)
[days] => [29,31,35,37,44]
[material_price] => [2698,3973,4356,6588,7119]
[work_price] => [5038,5851,6426,8733,9195]
[image] => https://akademik-stroy.ru/wp-content/uploads/materials/blok.jpg
[area_modifier] => 162.7
[parent_name] => Стены 1 этаж (несущие)
[parent_id] => 3
[material_sum] => 553095
[work_sum] => 860667
[total_sum] => 1413762
[total_days] => 29
[display_material_sum] => 553 095
[display_work_sum] => 860 667
[display_total_sum] => 1 413 762
)
1
1 413 762₽
Работа:860 667 ₽
Материалы:553 095 ₽
Дни:29
stdClass Object
(
[id] => 177
[attribute_id] => 3
[name] => Газосиликатный блок
[material_modifier] => 1
[work_modifier] => 1
[options] => Array
(
[0] => 300 мм
[1] => 375 мм
[2] => 400 мм
[3] => 500 мм
[4] => 600 мм
)
[days] => [29,31,35,37,44]
[material_price] => [4298,5573,6356,7288,9119]
[work_price] => [4538,5251,5926,6733,7195]
[image] => https://akademik-stroy.ru/wp-content/uploads/materials/gazosilikatnyj-blok.jpg
[area_modifier] => 162.7
[parent_name] => Стены 1 этаж (несущие)
[parent_id] => 3
[material_sum] => 881099
[work_sum] => 775249
[total_sum] => 1656348
[total_days] => 29
[display_material_sum] => 881 099
[display_work_sum] => 775 249
[display_total_sum] => 1 656 348
)
1
1 656 348₽
Работа:775 249 ₽
Материалы:881 099 ₽
Дни:29
stdClass Object
(
[id] => 178
[attribute_id] => 3
[name] => Керамзитобетонный блок
[material_modifier] => 1
[work_modifier] => 1
[options] => Array
(
[0] => 300 мм
[1] => 375 мм
[2] => 400 мм
[3] => 500 мм
[4] => 600 мм
)
[days] => [23,23,24,25,28]
[material_price] => [3641,4298,5693,7613,9612]
[work_price] => [5737,5737,6903,7958,8901]
[image] => https://akademik-stroy.ru/wp-content/uploads/materials/keramzitobetonnyj-blok.jpg
[area_modifier] => 162.7
[parent_name] => Стены 1 этаж (несущие)
[parent_id] => 3
[material_sum] => 746412
[work_sum] => 980080
[total_sum] => 1726492
[total_days] => 23
[display_material_sum] => 746 412
[display_work_sum] => 980 080
[display_total_sum] => 1 726 492
)
1
1 726 492₽
Работа:980 080 ₽
Материалы:746 412 ₽
Дни:23
stdClass Object
(
[id] => 179
[attribute_id] => 3
[name] => Деревянные
[material_modifier] => 1
[work_modifier] => 1
[options] => Array
(
[0] => 180 мм
[1] => 220 мм
[2] => 260 мм
[3] => 320 мм
)
[days] => [7,8,9,10]
[material_price] => [7950,9458,11961,14472]
[work_price] => [4037,4925,5812,7207]
[image] => https://akademik-stroy.ru/wp-content/uploads/materials/derevyannye.jpg
[area_modifier] => 162.7
[parent_name] => Стены 1 этаж (несущие)
[parent_id] => 3
[material_sum] => 1629766
[work_sum] => 689661
[total_sum] => 2319427
[total_days] => 7
[display_material_sum] => 1 629 766
[display_work_sum] => 689 661
[display_total_sum] => 2 319 427
)
1
2 319 427₽
Работа:689 661 ₽
Материалы:1 629 766 ₽
Дни:7
stdClass Object
(
[id] => 181
[attribute_id] => 3
[name] => Камень
[material_modifier] => 1
[work_modifier] => 1
[options] => Array
(
[0] => 300 мм
[1] => 400 мм
[2] => 500 мм
[3] => 600 мм
)
[days] => [25,27,31,34]
[material_price] => [5262,6844,8330,9815]
[work_price] => [8331,9135,10427,11069]
[image] => https://akademik-stroy.ru/wp-content/uploads/materials/kamen.jpg
[area_modifier] => 162.7
[parent_name] => Стены 1 этаж (несущие)
[parent_id] => 3
[material_sum] => 1078721
[work_sum] => 1423226
[total_sum] => 2501947
[total_days] => 25
[display_material_sum] => 1 078 721
[display_work_sum] => 1 423 226
[display_total_sum] => 2 501 947
)
1
2 501 947₽
Работа:1 423 226 ₽
Материалы:1 078 721 ₽
Дни:25
stdClass Object
(
[id] => 182
[attribute_id] => 3
[name] => Каркасно-щитовые
[material_modifier] => 1
[work_modifier] => 1
[options] => Array
(
[0] => 150 мм
[1] => 200 мм
[2] => 250 мм
[3] => 300 мм
[4] => 350 мм
[5] => 400 мм
)
[days] => [15,16,17,18,19,20]
[material_price] => [2379,2639,2898,3458,3601,4175]
[work_price] => [2538,2820,3134,3483,4062,5642]
[image] => https://akademik-stroy.ru/wp-content/uploads/materials/karkasno-shchitovye.jpg
[area_modifier] => 162.7
[parent_name] => Стены 1 этаж (несущие)
[parent_id] => 3
[material_sum] => 487700
[work_sum] => 433579
[total_sum] => 921279
[total_days] => 15
[display_material_sum] => 487 700
[display_work_sum] => 433 579
[display_total_sum] => 921 279
)
1
921 279₽
Работа:433 579 ₽
Материалы:487 700 ₽
Дни:15
stdClass Object
(
[id] => 183
[attribute_id] => 3
[name] => Рубленные
[material_modifier] => 1
[work_modifier] => 1
[options] => Array
(
[0] => 150 мм
[1] => 200 мм
[2] => 250 мм
[3] => 300 мм
[4] => 350 мм
[5] => 400 мм
)
[days] => [15,16,17,18,17,18]
[material_price] => [35950,50267,60583,75900,80217,100533]
[work_price] => [9612,12816,16020,19224,22428,25632]
[image] => https://akademik-stroy.ru/wp-content/uploads/materials/rublennye.jpg
[area_modifier] => 162.7
[parent_name] => Стены 1 этаж (несущие)
[parent_id] => 3
[material_sum] => 7369822
[work_sum] => 1642066
[total_sum] => 9011888
[total_days] => 15
[display_material_sum] => 7 369 822
[display_work_sum] => 1 642 066
[display_total_sum] => 9 011 888
)
1
9 011 888₽
Работа:1 642 066 ₽
Материалы:7 369 822 ₽
Дни:15
stdClass Object
(
[id] => 185
[attribute_id] => 3
[name] => Теплоблок
[material_modifier] => 1
[work_modifier] => 1
[options] => Array
(
[0] => 300 мм (с облицовкой, не покрашенный)
[1] => 400 мм (с облицовкой, не покрашенный)
[2] => 300 мм (с облицовкой, покрашенный)
[3] => 400 мм (с облицовкой, покрашенный)
)
[days] => [15,16,15,16]
[material_price] => [2888,3729,3957,4258]
[work_price] => [2564,3229,2949,3713]
[image] => https://akademik-stroy.ru/wp-content/uploads/materials/teploblok.jpg
[area_modifier] => 162.7
[parent_name] => Стены 1 этаж (несущие)
[parent_id] => 3
[material_sum] => 592046
[work_sum] => 438021
[total_sum] => 1030067
[total_days] => 15
[display_material_sum] => 592 046
[display_work_sum] => 438 021
[display_total_sum] => 1 030 067
)
1
1 030 067₽
Работа:438 021 ₽
Материалы:592 046 ₽
Дни:15
stdClass Object
(
[id] => 186
[attribute_id] => 3
[name] => Арболитовые блоки
[material_modifier] => 1
[work_modifier] => 1
[options] => Array
(
[0] => 300 мм
[1] => 400 мм
[2] => 600 мм
)
[days] => [19,22,27]
[material_price] => [3210,4475,5852]
[work_price] => [4214,4788,5866]
[image] => https://akademik-stroy.ru/wp-content/uploads/materials/arbolitovye-bloki.png
[area_modifier] => 162.7
[parent_name] => Стены 1 этаж (несущие)
[parent_id] => 3
[material_sum] => 658056
[work_sum] => 719899
[total_sum] => 1377955
[total_days] => 19
[display_material_sum] => 658 056
[display_work_sum] => 719 899
[display_total_sum] => 1 377 955
)
1
1 377 955₽
Работа:719 899 ₽
Материалы:658 056 ₽
Дни:19
stdClass Object
(
[id] => 187
[attribute_id] => 3
[name] => Полистиролбетон
[material_modifier] => 1
[work_modifier] => 1
[options] => Array
(
[0] => 300 мм
[1] => 400 мм
[2] => 600 мм
)
[days] => [29,31,35]
[material_price] => [2798,4573,5256]
[work_price] => [5038,5851,6426]
[image] => https://akademik-stroy.ru/wp-content/uploads/materials/polistirolbeton.jpg
[area_modifier] => 162.7
[parent_name] => Стены 1 этаж (несущие)
[parent_id] => 3
[material_sum] => 573596
[work_sum] => 860667
[total_sum] => 1434263
[total_days] => 29
[display_material_sum] => 573 596
[display_work_sum] => 860 667
[display_total_sum] => 1 434 263
)
1
1 434 263₽
Работа:860 667 ₽
Материалы:573 596 ₽
Дни:29
stdClass Object
(
[id] => 188
[attribute_id] => 3
[name] => Шлакоблок
[material_modifier] => 1
[work_modifier] => 1
[options] => Array
(
[0] => 400 мм
[1] => 600 мм
)
[days] => [15,16]
[material_price] => [2391,3471]
[work_price] => [2642,3662]
[image] => https://akademik-stroy.ru/wp-content/uploads/materials/shlakoblok.jpg
[area_modifier] => 162.7
[parent_name] => Стены 1 этаж (несущие)
[parent_id] => 3
[material_sum] => 490160
[work_sum] => 451346
[total_sum] => 941506
[total_days] => 15
[display_material_sum] => 490 160
[display_work_sum] => 451 346
[display_total_sum] => 941 506
)
1
941 506₽
Работа:451 346 ₽
Материалы:490 160 ₽
Дни:15
stdClass Object
(
[id] => 189
[attribute_id] => 3
[name] => Теплая керамика
[material_modifier] => 1
[work_modifier] => 1
[options] => Array
(
[0] => 380 мм
[1] => 380 мм Thermo
[2] => 440 мм
[3] => 510 мм
)
[days] => [23,23,24,25]
[material_price] => [4510,5098,6093,8013]
[work_price] => [4737,4937,5903,6958]
[image] => https://akademik-stroy.ru/wp-content/uploads/materials/teplaya-keramika.jpg
[area_modifier] => 162.7
[parent_name] => Стены 1 этаж (несущие)
[parent_id] => 3
[material_sum] => 924559
[work_sum] => 809245
[total_sum] => 1733804
[total_days] => 23
[display_material_sum] => 924 559
[display_work_sum] => 809 245
[display_total_sum] => 1 733 804
)
1
1 733 804₽
Работа:809 245 ₽
Материалы:924 559 ₽
Дни:23
stdClass Object
(
[id] => 190
[attribute_id] => 3
[name] => Несъемная опалубка
[material_modifier] => 1
[work_modifier] => 1
[options] => Array
(
[0] => 200 мм
[1] => 250 мм
[2] => 300 мм
[3] => 350 мм
)
[days] => [15,17,19,21]
[material_price] => [3302,3902,4108,5008]
[work_price] => [2100,2100,2300,2534]
[image] => https://akademik-stroy.ru/wp-content/uploads/materials/nesemnaya-opalubka.jpg
[area_modifier] => 162.7
[parent_name] => Стены 1 этаж (несущие)
[parent_id] => 3
[material_sum] => 676917
[work_sum] => 358754
[total_sum] => 1035671
[total_days] => 15
[display_material_sum] => 676 917
[display_work_sum] => 358 754
[display_total_sum] => 1 035 671
)
1
1 035 671₽
Работа:358 754 ₽
Материалы:676 917 ₽
Дни:15
stdClass Object
(
[id] => 251
[attribute_id] => 3
[name] => Бревно
[material_modifier] => 1
[work_modifier] => 1
[options] => Array
(
[0] => 260 мм
[1] => 320 мм
[2] => 360 мм
[3] => 400 мм
[4] => 500 мм
)
[days] => [7,8,9,10,11]
[material_price] => [1874,24045,26930,30972,38825]
[work_price] => [5046,6207,6952,7716,9723]
[image] => https://akademik-stroy.ru/wp-content/uploads/materials/sruby.jpg
[area_modifier] => 162.7
[parent_name] => Стены 1 этаж (несущие)
[parent_id] => 3
[material_sum] => 384174
[work_sum] => 862033
[total_sum] => 1246207
[total_days] => 7
[display_material_sum] => 384 174
[display_work_sum] => 862 033
[display_total_sum] => 1 246 207
)
1
1 246 207₽
Работа:862 033 ₽
Материалы:384 174 ₽
Дни:7
stdClass Object
(
[id] => 7
[attribute_id] => 4
[name] => Деревянные балки
[material_modifier] => 1
[work_modifier] => 1
[options] => Array
(
[0] => без утепления
[1] => утепление 200 мм
[2] => утепление 250 мм
[3] => утепление 300 мм
[4] => утепление 350 мм
[5] => утепление 400 мм
[6] => утепление 450 мм
[7] => утепление 500 мм
)
[days] => [8,9,9,9,11,12,13,14]
[material_price] => [1634,2042,2344,2947,3149,3652,3354,3557]
[work_price] => [1230,1339,1393,1426,1460,1513,1587,1620]
[image] => https://akademik-stroy.ru/wp-content/uploads/materials/derevyannye-balki.png
[area_modifier] => 162.7
[parent_name] => Перекрытие первого этажа
[parent_id] => 4
[material_sum] => 334973
[work_sum] => 210127
[total_sum] => 545100
[total_days] => 8
[display_material_sum] => 334 973
[display_work_sum] => 210 127
[display_total_sum] => 545 100
)
1
545 100₽
Работа:210 127 ₽
Материалы:334 973 ₽
Дни:8
stdClass Object
(
[id] => 8
[attribute_id] => 4
[name] => Сборные ж/б плиты
[material_modifier] => 1
[work_modifier] => 1
[options] => Array
(
[0] => без утепления
[1] => утепление 150 мм
[2] => утепление 200 мм
[3] => утепление 250 мм
[4] => утепление 300 мм
[5] => утепление 350 мм
[6] => утепление 400 мм
[7] => утепление 450 мм
[8] => утепление 500 мм
)
[days] => [13,15,15,15,15,15,15,15,15]
[material_price] => [3067,5577,5928,6679,7730,8782,9833,10884,11935]
[work_price] => [1520,1956,2102,2247,2392,2537,2684,2829,2974]
[image] => https://akademik-stroy.ru/wp-content/uploads/materials/sbornye-zh-b-plity-2.jpg
[area_modifier] => 162.7
[parent_name] => Перекрытие первого этажа
[parent_id] => 4
[material_sum] => 628741
[work_sum] => 259669
[total_sum] => 888410
[total_days] => 13
[display_material_sum] => 628 741
[display_work_sum] => 259 669
[display_total_sum] => 888 410
)
1
888 410₽
Работа:259 669 ₽
Материалы:628 741 ₽
Дни:13
stdClass Object
(
[id] => 89
[attribute_id] => 4
[name] => Монолитная ж/б плита
[material_modifier] => 1
[work_modifier] => 1
[options] => Array
(
[0] => без утепления
[1] => утепление 150 мм
[2] => утепление 200 мм
[3] => утепление 250 мм
[4] => утепление 300 мм
[5] => утепление 350 мм
[6] => утепление 400 мм
[7] => утепление 450 мм
[8] => утепление 500 мм
)
[days] => [18,20,20,20,20,20,20,20,20]
[material_price] => [4837,6572,7224,7375,79426,8177,8728,9180,10031]
[work_price] => [3348,3921,4112,4302,4493,4684,4875,5066,5256]
[image] => https://akademik-stroy.ru/wp-content/uploads/materials/monolitnaya-zh-b-plita-2.jpg
[area_modifier] => 162.7
[parent_name] => Перекрытие первого этажа
[parent_id] => 4
[material_sum] => 991595
[work_sum] => 571956
[total_sum] => 1563551
[total_days] => 18
[display_material_sum] => 991 595
[display_work_sum] => 571 956
[display_total_sum] => 1 563 551
)
1
1 563 551₽
Работа:571 956 ₽
Материалы:991 595 ₽
Дни:18
stdClass Object
(
[id] => 10
[attribute_id] => 5
[name] => Пеноблок
[material_modifier] => 1
[work_modifier] => 1
[options] => Array
(
[0] => 300 мм
[1] => 400 мм
[2] => 500 мм
[3] => 600 мм
)
[days] => [29,31,34,39]
[material_price] => [3000,4000,4500,4937]
[work_price] => [5033,5805,6400,8710]
[image] => https://akademik-stroy.ru/wp-content/uploads/materials/penoblok.jpg
[area_modifier] => 88.22
[parent_name] => Стены 2 этаж (несущие)
[parent_id] => 5
[material_sum] => 333472
[work_sum] => 466212
[total_sum] => 799684
[total_days] => 29
[display_material_sum] => 333 472
[display_work_sum] => 466 212
[display_total_sum] => 799 684
)
1
799 684₽
Работа:466 212 ₽
Материалы:333 472 ₽
Дни:29
stdClass Object
(
[id] => 90
[attribute_id] => 5
[name] => Керамический блок
[material_modifier] => 1
[work_modifier] => 1
[options] => Array
(
[0] => 380 мм
[1] => 380 мм Thermo
[2] => 440 мм
[3] => 510 мм
)
[days] => [23,23,24,25]
[material_price] => [4510,5098,6093,8013]
[work_price] => [4737,4937,5903,6958]
[image] => https://akademik-stroy.ru/wp-content/uploads/materials/keramicheskij-blok.jpg
[area_modifier] => 88.22
[parent_name] => Стены 2 этаж (несущие)
[parent_id] => 5
[material_sum] => 501319
[work_sum] => 438793
[total_sum] => 940112
[total_days] => 23
[display_material_sum] => 501 319
[display_work_sum] => 438 793
[display_total_sum] => 940 112
)
1
940 112₽
Работа:438 793 ₽
Материалы:501 319 ₽
Дни:23
stdClass Object
(
[id] => 91
[attribute_id] => 5
[name] => Кирпич
[material_modifier] => 1
[work_modifier] => 1
[options] => Array
(
[0] => Кирпич 250 мм
[1] => Кирпич 380 мм
[2] => Кирпич 510 мм
[3] => Кирпич 640 мм
[4] => Кирпич 770 мм
)
[days] => [30,30,31,33,36]
[material_price] => [5500,7142,9206,10171,12235]
[work_price] => [8736,10041,12018,15240,18462]
[image] => https://akademik-stroy.ru/wp-content/uploads/materials/kirpich.jpg
[area_modifier] => 88.22
[parent_name] => Стены 2 этаж (несущие)
[parent_id] => 5
[material_sum] => 611365
[work_sum] => 809224
[total_sum] => 1420589
[total_days] => 30
[display_material_sum] => 611 365
[display_work_sum] => 809 224
[display_total_sum] => 1 420 589
)
1
1 420 589₽
Работа:809 224 ₽
Материалы:611 365 ₽
Дни:30
stdClass Object
(
[id] => 92
[attribute_id] => 5
[name] => Монолитные
[material_modifier] => 1
[work_modifier] => 1
[options] => Array
(
[0] => 150 мм
[1] => 200 мм
[2] => 250 мм
[3] => 300 мм
[4] => 350 мм
[5] => 400 мм
)
[days] => [45,46,47,49,50,53]
[material_price] => [6545,7876,10175,12011,13908,15204]
[work_price] => [5106,6444,7698,8552,9807,11461]
[image] => https://akademik-stroy.ru/wp-content/uploads/materials/monolitnye.jpg
[area_modifier] => 88.22
[parent_name] => Стены 2 этаж (несущие)
[parent_id] => 5
[material_sum] => 727524
[work_sum] => 472974
[total_sum] => 1200498
[total_days] => 45
[display_material_sum] => 727 524
[display_work_sum] => 472 974
[display_total_sum] => 1 200 498
)
1
1 200 498₽
Работа:472 974 ₽
Материалы:727 524 ₽
Дни:45
stdClass Object
(
[id] => 93
[attribute_id] => 5
[name] => Клееный брус
[material_modifier] => 1
[work_modifier] => 1
[options] => Array
(
[0] => 160 мм
[1] => 175 мм
[2] => 200 мм
[3] => 215 мм
[4] => 240 мм
[5] => 270 мм
[6] => 282 мм
)
[days] => [24,28,32,37,40,42,48]
[material_price] => [16975,18773,19950,20545,21599,22159,23275]
[work_price] => [4806,5287,5815,6397,7036,7740,8514]
[image] => https://akademik-stroy.ru/wp-content/uploads/materials/kleenyj-brus.jpg
[area_modifier] => 88.22
[parent_name] => Стены 2 этаж (несущие)
[parent_id] => 5
[material_sum] => 1886893
[work_sum] => 445185
[total_sum] => 2332078
[total_days] => 24
[display_material_sum] => 1 886 893
[display_work_sum] => 445 185
[display_total_sum] => 2 332 078
)
1
2 332 078₽
Работа:445 185 ₽
Материалы:1 886 893 ₽
Дни:24
stdClass Object
(
[id] => 94
[attribute_id] => 5
[name] => Каркасные
[material_modifier] => 1
[work_modifier] => 1
[options] => Array
(
[0] => 150 мм
[1] => 200 мм
[2] => 250 мм
[3] => 300 мм
)
[days] => [15,16,17,18]
[material_price] => [2379,2639,2898,3258]
[work_price] => [2418,2686,2985,3716]
[image] => https://akademik-stroy.ru/wp-content/uploads/materials/karkasnye.jpg
[area_modifier] => 88.22
[parent_name] => Стены 2 этаж (несущие)
[parent_id] => 5
[material_sum] => 264443
[work_sum] => 223982
[total_sum] => 488425
[total_days] => 15
[display_material_sum] => 264 443
[display_work_sum] => 223 982
[display_total_sum] => 488 425
)
1
488 425₽
Работа:223 982 ₽
Материалы:264 443 ₽
Дни:15
stdClass Object
(
[id] => 95
[attribute_id] => 5
[name] => СИП-панели
[material_modifier] => 1
[work_modifier] => 1
[options] => Array
(
[0] => 120 мм
[1] => 170 мм
[2] => 220 мм
)
[days] => [7,7,7]
[material_price] => [1210,1856,2292]
[work_price] => [1410,1551,1706]
[image] => https://akademik-stroy.ru/wp-content/uploads/materials/sip-paneli.jpg
[area_modifier] => 88.22
[parent_name] => Стены 2 этаж (несущие)
[parent_id] => 5
[material_sum] => 134500
[work_sum] => 130610
[total_sum] => 265110
[total_days] => 7
[display_material_sum] => 134 500
[display_work_sum] => 130 610
[display_total_sum] => 265 110
)
1
265 110₽
Работа:130 610 ₽
Материалы:134 500 ₽
Дни:7
stdClass Object
(
[id] => 96
[attribute_id] => 5
[name] => Сухой брус
[material_modifier] => 1
[work_modifier] => 1
[options] => Array
(
[0] => 150 мм
[1] => 180 мм
[2] => 200 мм
)
[days] => [7,8,9]
[material_price] => [6010,7190,8709]
[work_price] => [3204,3845,4229]
[image] => https://akademik-stroy.ru/wp-content/uploads/materials/suhoj-brus.jpg
[area_modifier] => 88.22
[parent_name] => Стены 2 этаж (несущие)
[parent_id] => 5
[material_sum] => 668055
[work_sum] => 296790
[total_sum] => 964845
[total_days] => 7
[display_material_sum] => 668 055
[display_work_sum] => 296 790
[display_total_sum] => 964 845
)
1
964 845₽
Работа:296 790 ₽
Материалы:668 055 ₽
Дни:7
stdClass Object
(
[id] => 97
[attribute_id] => 5
[name] => Профилированный брус
[material_modifier] => 1
[work_modifier] => 1
[options] => Array
(
[0] => 150 мм
[1] => 180 мм
[2] => 200 мм
)
[days] => [7,8,9]
[material_price] => [8190,9228,10051]
[work_price] => [3845,4614,5075]
[image] => https://akademik-stroy.ru/wp-content/uploads/materials/profilirovannyj-brus.jpg
[area_modifier] => 88.22
[parent_name] => Стены 2 этаж (несущие)
[parent_id] => 5
[material_sum] => 910377
[work_sum] => 356166
[total_sum] => 1266543
[total_days] => 7
[display_material_sum] => 910 377
[display_work_sum] => 356 166
[display_total_sum] => 1 266 543
)
1
1 266 543₽
Работа:356 166 ₽
Материалы:910 377 ₽
Дни:7
stdClass Object
(
[id] => 98
[attribute_id] => 5
[name] => Оцилиндрованное бревно
[material_modifier] => 1
[work_modifier] => 1
[options] => Array
(
[0] => 180 мм
[1] => 220 мм
[2] => 260 мм
[3] => 320 мм
)
[days] => [7,8,9,10]
[material_price] => [75190,9532,10868,13116]
[work_price] => [3845,4691,5535,6863]
[image] => https://akademik-stroy.ru/wp-content/uploads/materials/ocilindrovannoe-brevno-1.jpg
[area_modifier] => 88.22
[parent_name] => Стены 2 этаж (несущие)
[parent_id] => 5
[material_sum] => 8357910
[work_sum] => 356166
[total_sum] => 8714076
[total_days] => 7
[display_material_sum] => 8 357 910
[display_work_sum] => 356 166
[display_total_sum] => 8 714 076
)
1
8 714 076₽
Работа:356 166 ₽
Материалы:8 357 910 ₽
Дни:7
stdClass Object
(
[id] => 99
[attribute_id] => 5
[name] => Срубы
[material_modifier] => 1
[work_modifier] => 1
[options] => Array
(
[0] => 260 мм
[1] => 320 мм
[2] => 360 мм
[3] => 400 мм
[4] => 500 мм
)
[days] => [7,8,9,10,11]
[material_price] => [16175,23709,26314,29069,32167]
[work_price] => [4806,5911,6621,7349,9260]
[image] => https://akademik-stroy.ru/wp-content/uploads/materials/suhoj-brus.jpg
[area_modifier] => 88.22
[parent_name] => Стены 2 этаж (несущие)
[parent_id] => 5
[material_sum] => 1797968
[work_sum] => 445185
[total_sum] => 2243153
[total_days] => 7
[display_material_sum] => 1 797 968
[display_work_sum] => 445 185
[display_total_sum] => 2 243 153
)
1
2 243 153₽
Работа:445 185 ₽
Материалы:1 797 968 ₽
Дни:7
stdClass Object
(
[id] => 194
[attribute_id] => 5
[name] => Брус
[material_modifier] => 1
[work_modifier] => 1
[options] => Array
(
[0] => 150 мм
[1] => 180 мм
[2] => 200 мм
)
[days] => [10,13,15]
[material_price] => [5127,6152,7367]
[work_price] => [1602,1922,2115]
[image] => https://akademik-stroy.ru/wp-content/uploads/materials/brus.jpg
[area_modifier] => 88.22
[parent_name] => Стены 2 этаж (несущие)
[parent_id] => 5
[material_sum] => 569903
[work_sum] => 148395
[total_sum] => 718298
[total_days] => 10
[display_material_sum] => 569 903
[display_work_sum] => 148 395
[display_total_sum] => 718 298
)
1
718 298₽
Работа:148 395 ₽
Материалы:569 903 ₽
Дни:10
stdClass Object
(
[id] => 195
[attribute_id] => 5
[name] => Газобетон
[material_modifier] => 1
[work_modifier] => 1
[options] => Array
(
[0] => 300 мм
[1] => 375 мм
[2] => 400 мм
[3] => 500 мм
[4] => 600 мм
)
[days] => [29,31,35,37,44]
[material_price] => [4298,5573,6356,7288,9119]
[work_price] => [4538,5251,5926,6733,7195]
[image] => https://akademik-stroy.ru/wp-content/uploads/materials/gazobeton.jpg
[area_modifier] => 88.22
[parent_name] => Стены 2 этаж (несущие)
[parent_id] => 5
[material_sum] => 477754
[work_sum] => 420359
[total_sum] => 898113
[total_days] => 29
[display_material_sum] => 477 754
[display_work_sum] => 420 359
[display_total_sum] => 898 113
)
1
898 113₽
Работа:420 359 ₽
Материалы:477 754 ₽
Дни:29
stdClass Object
(
[id] => 196
[attribute_id] => 5
[name] => Блок
[material_modifier] => 1
[work_modifier] => 1
[options] => Array
(
[0] => 300 мм
[1] => 375 мм
[2] => 400 мм
[3] => 500 мм
[4] => 600 мм
)
[days] => [29,31,35,37,44]
[material_price] => [2698,3973,4356,6588,7119]
[work_price] => [5038,5851,6426,8733,9195]
[image] => https://akademik-stroy.ru/wp-content/uploads/materials/blok.jpg
[area_modifier] => 88.22
[parent_name] => Стены 2 этаж (несущие)
[parent_id] => 5
[material_sum] => 299902
[work_sum] => 466675
[total_sum] => 766577
[total_days] => 29
[display_material_sum] => 299 902
[display_work_sum] => 466 675
[display_total_sum] => 766 577
)
1
766 577₽
Работа:466 675 ₽
Материалы:299 902 ₽
Дни:29
stdClass Object
(
[id] => 197
[attribute_id] => 5
[name] => Газосиликатный блок
[material_modifier] => 1
[work_modifier] => 1
[options] => Array
(
[0] => 300 мм
[1] => 375 мм
[2] => 400 мм
[3] => 500 мм
[4] => 600 мм
)
[days] => [29,31,35,37,44]
[material_price] => [4298,5573,6356,7288,9119]
[work_price] => [4538,5251,5926,6733,7195]
[image] => https://akademik-stroy.ru/wp-content/uploads/materials/gazosilikatnyj-blok.jpg
[area_modifier] => 88.22
[parent_name] => Стены 2 этаж (несущие)
[parent_id] => 5
[material_sum] => 477754
[work_sum] => 420359
[total_sum] => 898113
[total_days] => 29
[display_material_sum] => 477 754
[display_work_sum] => 420 359
[display_total_sum] => 898 113
)
1
898 113₽
Работа:420 359 ₽
Материалы:477 754 ₽
Дни:29
stdClass Object
(
[id] => 198
[attribute_id] => 5
[name] => Керамзитобетонный блок
[material_modifier] => 1
[work_modifier] => 1
[options] => Array
(
[0] => 300 мм
[1] => 375 мм
[2] => 400 мм
[3] => 500 мм
[4] => 600 мм
)
[days] => [23,23,24,25,28]
[material_price] => [3641,4298,5693,7613,9612]
[work_price] => [5737,5737,6903,7958,8901]
[image] => https://akademik-stroy.ru/wp-content/uploads/materials/keramzitobetonnyj-blok.jpg
[area_modifier] => 88.22
[parent_name] => Стены 2 этаж (несущие)
[parent_id] => 5
[material_sum] => 404723
[work_sum] => 531424
[total_sum] => 936147
[total_days] => 23
[display_material_sum] => 404 723
[display_work_sum] => 531 424
[display_total_sum] => 936 147
)
1
936 147₽
Работа:531 424 ₽
Материалы:404 723 ₽
Дни:23
stdClass Object
(
[id] => 199
[attribute_id] => 5
[name] => Деревянные
[material_modifier] => 1
[work_modifier] => 1
[options] => Array
(
[0] => 180 мм
[1] => 220 мм
[2] => 260 мм
[3] => 320 мм
)
[days] => [7,8,9,10]
[material_price] => [7950,9458,11961,14472]
[work_price] => [4037,4925,5812,7207]
[image] => https://akademik-stroy.ru/wp-content/uploads/materials/derevyannye.jpg
[area_modifier] => 88.22
[parent_name] => Стены 2 этаж (несущие)
[parent_id] => 5
[material_sum] => 883700
[work_sum] => 373951
[total_sum] => 1257651
[total_days] => 7
[display_material_sum] => 883 700
[display_work_sum] => 373 951
[display_total_sum] => 1 257 651
)
1
1 257 651₽
Работа:373 951 ₽
Материалы:883 700 ₽
Дни:7
stdClass Object
(
[id] => 200
[attribute_id] => 5
[name] => Камень
[material_modifier] => 1
[work_modifier] => 1
[options] => Array
(
[0] => 300 мм
[1] => 400 мм
[2] => 500 мм
[3] => 600 мм
)
[days] => [25,27,31,34]
[material_price] => [5262,6844,8330,9815]
[work_price] => [8331,9135,10427,11069]
[image] => https://akademik-stroy.ru/wp-content/uploads/materials/kamen.jpg
[area_modifier] => 88.22
[parent_name] => Стены 2 этаж (несущие)
[parent_id] => 5
[material_sum] => 584909
[work_sum] => 771709
[total_sum] => 1356618
[total_days] => 25
[display_material_sum] => 584 909
[display_work_sum] => 771 709
[display_total_sum] => 1 356 618
)
1
1 356 618₽
Работа:771 709 ₽
Материалы:584 909 ₽
Дни:25
stdClass Object
(
[id] => 201
[attribute_id] => 5
[name] => Каркасно-щитовые
[material_modifier] => 1
[work_modifier] => 1
[options] => Array
(
[0] => 150 мм
[1] => 200 мм
[2] => 250 мм
[3] => 300 мм
[4] => 350 мм
[5] => 400 мм
)
[days] => [15,16,17,18,19,20]
[material_price] => [2379,2639,2898,3458,3601,4175]
[work_price] => [2538,2820,3134,3483,4062,5642]
[image] => https://akademik-stroy.ru/wp-content/uploads/materials/karkasno-shchitovye.jpg
[area_modifier] => 88.22
[parent_name] => Стены 2 этаж (несущие)
[parent_id] => 5
[material_sum] => 264443
[work_sum] => 235097
[total_sum] => 499540
[total_days] => 15
[display_material_sum] => 264 443
[display_work_sum] => 235 097
[display_total_sum] => 499 540
)
1
499 540₽
Работа:235 097 ₽
Материалы:264 443 ₽
Дни:15
stdClass Object
(
[id] => 202
[attribute_id] => 5
[name] => Рубленные
[material_modifier] => 1
[work_modifier] => 1
[options] => Array
(
[0] => 150 мм
[1] => 200 мм
[2] => 250 мм
[3] => 300 мм
[4] => 350 мм
[5] => 400 мм
)
[days] => [15,16,17,18,17,18]
[material_price] => [35950,50267,60583,75900,80217,100533]
[work_price] => [9612,12816,16020,19224,22428,25632]
[image] => https://akademik-stroy.ru/wp-content/uploads/materials/rublennye.jpg
[area_modifier] => 88.22
[parent_name] => Стены 2 этаж (несущие)
[parent_id] => 5
[material_sum] => 3996101
[work_sum] => 890369
[total_sum] => 4886470
[total_days] => 15
[display_material_sum] => 3 996 101
[display_work_sum] => 890 369
[display_total_sum] => 4 886 470
)
1
4 886 470₽
Работа:890 369 ₽
Материалы:3 996 101 ₽
Дни:15
stdClass Object
(
[id] => 203
[attribute_id] => 5
[name] => Теплоблок
[material_modifier] => 1
[work_modifier] => 1
[options] => Array
(
[0] => 300 мм (с облицовкой, не покрашенный)
[1] => 400 мм (с облицовкой, не покрашенный)
[2] => 300 мм (с облицовкой, покрашенный)
[3] => 400 мм (с облицовкой, покрашенный)
)
[days] => [15,16,15,16]
[material_price] => [2888,3729,3957,4258]
[work_price] => [2564,3229,2949,3713]
[image] => https://akademik-stroy.ru/wp-content/uploads/materials/teploblok.jpg
[area_modifier] => 88.22
[parent_name] => Стены 2 этаж (несущие)
[parent_id] => 5
[material_sum] => 321022
[work_sum] => 237506
[total_sum] => 558528
[total_days] => 15
[display_material_sum] => 321 022
[display_work_sum] => 237 506
[display_total_sum] => 558 528
)
1
558 528₽
Работа:237 506 ₽
Материалы:321 022 ₽
Дни:15
stdClass Object
(
[id] => 204
[attribute_id] => 5
[name] => Арболитовые блоки
[material_modifier] => 1
[work_modifier] => 1
[options] => Array
(
[0] => 300 мм
[1] => 400 мм
[2] => 600 мм
)
[days] => [19,22,27]
[material_price] => [3210,4475,5852]
[work_price] => [4214,4788,5866]
[image] => https://akademik-stroy.ru/wp-content/uploads/materials/arbolitovye-bloki.png
[area_modifier] => 88.22
[parent_name] => Стены 2 этаж (несущие)
[parent_id] => 5
[material_sum] => 356815
[work_sum] => 390347
[total_sum] => 747162
[total_days] => 19
[display_material_sum] => 356 815
[display_work_sum] => 390 347
[display_total_sum] => 747 162
)
1
747 162₽
Работа:390 347 ₽
Материалы:356 815 ₽
Дни:19
stdClass Object
(
[id] => 205
[attribute_id] => 5
[name] => Полистиролбетон
[material_modifier] => 1
[work_modifier] => 1
[options] => Array
(
[0] => 300 мм
[1] => 400 мм
[2] => 600 мм
)
[days] => [29,31,35]
[material_price] => [2798,4573,5256]
[work_price] => [5038,5851,6426]
[image] => https://akademik-stroy.ru/wp-content/uploads/materials/polistirolbeton.jpg
[area_modifier] => 88.22
[parent_name] => Стены 2 этаж (несущие)
[parent_id] => 5
[material_sum] => 311018
[work_sum] => 466675
[total_sum] => 777693
[total_days] => 29
[display_material_sum] => 311 018
[display_work_sum] => 466 675
[display_total_sum] => 777 693
)
1
777 693₽
Работа:466 675 ₽
Материалы:311 018 ₽
Дни:29
stdClass Object
(
[id] => 206
[attribute_id] => 5
[name] => Шлакоблок
[material_modifier] => 1
[work_modifier] => 1
[options] => Array
(
[0] => 400 мм
[1] => 600 мм
)
[days] => [15,16]
[material_price] => [2391,3471]
[work_price] => [2642,3662]
[image] => https://akademik-stroy.ru/wp-content/uploads/materials/shlakoblok.jpg
[area_modifier] => 88.22
[parent_name] => Стены 2 этаж (несущие)
[parent_id] => 5
[material_sum] => 265777
[work_sum] => 244731
[total_sum] => 510508
[total_days] => 15
[display_material_sum] => 265 777
[display_work_sum] => 244 731
[display_total_sum] => 510 508
)
1
510 508₽
Работа:244 731 ₽
Материалы:265 777 ₽
Дни:15
stdClass Object
(
[id] => 245
[attribute_id] => 5
[name] => Теплая керамика
[material_modifier] => 1
[work_modifier] => 1
[options] => Array
(
[0] => 380 мм
[1] => 380 мм Thermo
[2] => 440 мм
[3] => 510 мм
)
[days] => [10,10,11,12]
[material_price] => [4510,5098,6093,8013]
[work_price] => [4737,4937,5903,6958]
[image] => https://akademik-stroy.ru/wp-content/uploads/materials/teplaya-keramika.jpg
[area_modifier] => 88.22
[parent_name] => Стены 2 этаж (несущие)
[parent_id] => 5
[material_sum] => 501319
[work_sum] => 438793
[total_sum] => 940112
[total_days] => 10
[display_material_sum] => 501 319
[display_work_sum] => 438 793
[display_total_sum] => 940 112
)
1
940 112₽
Работа:438 793 ₽
Материалы:501 319 ₽
Дни:10
stdClass Object
(
[id] => 246
[attribute_id] => 5
[name] => Несъемная опалубка
[material_modifier] => 1
[work_modifier] => 1
[options] => Array
(
[0] => 380 мм
[1] => 380 мм Thermo
[2] => 440 мм
[3] => 510 мм
)
[days] => [10,10,11,12]
[material_price] => [3302,3902,4108,5008]
[work_price] => [2100,2100,2300,2534]
[image] => https://akademik-stroy.ru/wp-content/uploads/materials/nesemnaya-opalubka.jpg
[area_modifier] => 88.22
[parent_name] => Стены 2 этаж (несущие)
[parent_id] => 5
[material_sum] => 367041
[work_sum] => 194525
[total_sum] => 561566
[total_days] => 10
[display_material_sum] => 367 041
[display_work_sum] => 194 525
[display_total_sum] => 561 566
)
1
561 566₽
Работа:194 525 ₽
Материалы:367 041 ₽
Дни:10
stdClass Object
(
[id] => 254
[attribute_id] => 5
[name] => Бревно
[material_modifier] => 1
[work_modifier] => 1
[options] => Array
(
[0] => 260 мм
[1] => 320 мм
[2] => 360 мм
[3] => 400 мм
[4] => 500 мм
)
[days] => [7,8,9,10,11]
[material_price] => [1874,24045,26930,30972,38825]
[work_price] => [5046,6207,6952,7716,9723]
[image] => https://akademik-stroy.ru/wp-content/uploads/materials/sruby.jpg
[area_modifier] => 88.22
[parent_name] => Стены 2 этаж (несущие)
[parent_id] => 5
[material_sum] => 208309
[work_sum] => 467416
[total_sum] => 675725
[total_days] => 7
[display_material_sum] => 208 309
[display_work_sum] => 467 416
[display_total_sum] => 675 725
)
1
675 725₽
Работа:467 416 ₽
Материалы:208 309 ₽
Дни:7
stdClass Object
(
[id] => 11
[attribute_id] => 6
[name] => Деревянные балки
[material_modifier] => 1
[work_modifier] => 1
[options] => Array
(
[0] => без утепления
[1] => утепление 200 мм
[2] => утепление 250 мм
[3] => утепление 300 мм
[4] => утепление 350 мм
[5] => утепление 400 мм
[6] => утепление 450 мм
[7] => утепление 500 мм
)
[days] => [8,9,9,9,11,12,13,14]
[material_price] => [1634,2042,2344,2947,3149,3652,3354,3557]
[work_price] => [1230,1339,1393,1426,1460,1513,1587,1620]
[image] => https://akademik-stroy.ru/wp-content/uploads/materials/derevyannye-balki.png
[area_modifier] => 88.22
[parent_name] => Перекрытие второго этажа
[parent_id] => 6
[material_sum] => 181631
[work_sum] => 113936
[total_sum] => 295567
[total_days] => 8
[display_material_sum] => 181 631
[display_work_sum] => 113 936
[display_total_sum] => 295 567
)
1
295 567₽
Работа:113 936 ₽
Материалы:181 631 ₽
Дни:8
stdClass Object
(
[id] => 12
[attribute_id] => 6
[name] => Сборные ж/б плиты
[material_modifier] => 1
[work_modifier] => 1
[options] => Array
(
[0] => без утепления
[1] => утепление 150 мм
[2] => утепление 200 мм
[3] => утепление 250 мм
[4] => утепление 300 мм
[5] => утепление 350 мм
[6] => утепление 400 мм
[7] => утепление 450 мм
[8] => утепление 500 мм
)
[days] => [13,15,15,15,15,15,15,15,15]
[material_price] => [3067,5577,5928,6679,7730,8782,9833,10884,11935]
[work_price] => [1520,1956,2102,2247,2392,2537,2684,2829,2974]
[image] => https://akademik-stroy.ru/wp-content/uploads/materials/sbornye-zh-b-plity-2.jpg
[area_modifier] => 88.22
[parent_name] => Перекрытие второго этажа
[parent_id] => 6
[material_sum] => 340919
[work_sum] => 140799
[total_sum] => 481718
[total_days] => 13
[display_material_sum] => 340 919
[display_work_sum] => 140 799
[display_total_sum] => 481 718
)
1
481 718₽
Работа:140 799 ₽
Материалы:340 919 ₽
Дни:13
stdClass Object
(
[id] => 100
[attribute_id] => 6
[name] => Монолитная ж/б плита
[material_modifier] => 1
[work_modifier] => 1
[options] => Array
(
[0] => без утепления
[1] => утепление 150 мм
[2] => утепление 200 мм
[3] => утепление 250 мм
[4] => утепление 300 мм
[5] => утепление 350 мм
[6] => утепление 400 мм
[7] => утепление 450 мм
[8] => утепление 500 мм
)
[days] => [18,20,20,20,20,20,20,20,20]
[material_price] => [4837,6572,7224,7375,79426,8177,8728,9180,10031]
[work_price] => [3348,3921,4112,4302,4493,4684,4875,5066,5256]
[image] => https://akademik-stroy.ru/wp-content/uploads/materials/monolitnaya-zh-b-plita-2.jpg
[area_modifier] => 88.22
[parent_name] => Перекрытие второго этажа
[parent_id] => 6
[material_sum] => 537667
[work_sum] => 310129
[total_sum] => 847796
[total_days] => 18
[display_material_sum] => 537 667
[display_work_sum] => 310 129
[display_total_sum] => 847 796
)
1
847 796₽
Работа:310 129 ₽
Материалы:537 667 ₽
Дни:18
stdClass Object
(
[id] => 160
[attribute_id] => 36
[name] => Не эксплуатируемая
[material_modifier] => 1
[work_modifier] => 1
[options] => Array
(
)
[days] => [10]
[material_price] => [8068]
[work_price] => [4163]
[image] => https://akademik-stroy.ru/wp-content/uploads/materials/ne-ehkspluatiruemaya-3.jpg
[area_modifier] => 162.7
[parent_name] => Плоская крыша
[parent_id] => 36
[material_sum] => 1653956
[work_sum] => 711186
[total_sum] => 2365142
[total_days] => 10
[display_material_sum] => 1 653 956
[display_work_sum] => 711 186
[display_total_sum] => 2 365 142
)
1
2 365 142₽
Работа:711 186 ₽
Материалы:1 653 956 ₽
Дни:10
stdClass Object
(
[id] => 161
[attribute_id] => 36
[name] => Зеленая кровля (Эксплуатируемая)
[material_modifier] => 1
[work_modifier] => 1
[options] => Array
(
)
[days] => [10]
[material_price] => [10056]
[work_price] => [8446]
[image] => https://akademik-stroy.ru/wp-content/uploads/materials/zelenaya-krovlya-2.jpg
[area_modifier] => 162.7
[parent_name] => Плоская крыша
[parent_id] => 36
[material_sum] => 2061500
[work_sum] => 1442872
[total_sum] => 3504372
[total_days] => 10
[display_material_sum] => 2 061 500
[display_work_sum] => 1 442 872
[display_total_sum] => 3 504 372
)
1
3 504 372₽
Работа:1 442 872 ₽
Материалы:2 061 500 ₽
Дни:10
stdClass Object
(
[id] => 162
[attribute_id] => 36
[name] => Эксплуатируемая
[material_modifier] => 1
[work_modifier] => 1
[options] => Array
(
)
[days] => [10]
[material_price] => [9593]
[work_price] => [7459]
[image] => https://akademik-stroy.ru/wp-content/uploads/materials/ehkspluatiruemaya-2.jpg
[area_modifier] => 162.7
[parent_name] => Плоская крыша
[parent_id] => 36
[material_sum] => 1966584
[work_sum] => 1274258
[total_sum] => 3240842
[total_days] => 10
[display_material_sum] => 1 966 584
[display_work_sum] => 1 274 258
[display_total_sum] => 3 240 842
)
1
3 240 842₽
Работа:1 274 258 ₽
Материалы:1 966 584 ₽
Дни:10
stdClass Object
(
[id] => 163
[attribute_id] => 36
[name] => Нет
[material_modifier] => 1
[work_modifier] => 1
[options] => Array
(
)
[days] => [0]
[material_price] => [0]
[work_price] => [0]
[image] => https://akademik-stroy.ru/wp-content/uploads/materials/ne-ehkspluatiruemaya-3.jpg
[area_modifier] => 162.7
[parent_name] => Плоская крыша
[parent_id] => 36
[material_sum] => 0
[work_sum] => 0
[total_sum] => 0
[total_days] => 0
[display_material_sum] => 0
[display_work_sum] => 0
[display_total_sum] => 0
)
1
0₽
Работа:0 ₽
Материалы:0 ₽
Дни:0
stdClass Object
(
[id] => 51
[attribute_id] => 26
[name] => Есть
[material_modifier] => 1
[work_modifier] => 1
[options] => Array
(
[0] => Профиль 58 мм, 3-камерный, стеклопакет 2-камерный до 32 мм
[1] => Профиль 60 мм, 4-камерный, стеклопакет 2-камерный до 32 мм
[2] => Профиль 70 мм, 5-камерный, стеклопакет 2-камерный до 40 мм
[3] => Профиль 72 мм, 5-камерный, стеклопакет 2-камерный до 40 мм
[4] => Алюминиевые окна Alutech профиль 72 мм, стеклопакет 2-камерный
)
[days] => [3,3,3,3,3]
[material_price] => [1339,2124,2867,3023,29596]
[work_price] => [635,647,659,668,2579]
[image] => https://akademik-stroy.ru/wp-content/uploads/materials/okna.jpg
[area_modifier] => 203.62
[parent_name] => Окна
[parent_id] => 26
[material_sum] => 343535
[work_sum] => 135764
[total_sum] => 479299
[total_days] => 3
[display_material_sum] => 343 535
[display_work_sum] => 135 764
[display_total_sum] => 479 299
)
1
479 299₽
Работа:135 764 ₽
Материалы:343 535 ₽
Дни:3
stdClass Object
(
[id] => 52
[attribute_id] => 26
[name] => Нет
[material_modifier] => 2
[work_modifier] => 1
[options] =>
[days] => null
[material_price] => null
[work_price] => null
[image] => https://akademik-stroy.ru/wp-content/uploads/materials/okna.jpg
[area_modifier] => 203.62
[parent_name] => Окна
[parent_id] => 26
[material_sum] => 0
[work_sum] => 0
[total_sum] => 0
[total_days] => 0
[display_material_sum] => 0
[display_work_sum] => 0
[display_total_sum] => 0
)
1
0₽
Работа:0 ₽
Материалы:0 ₽
Дни:0
stdClass Object
(
[id] => 53
[attribute_id] => 27
[name] => Есть
[material_modifier] => 1
[work_modifier] => 1
[options] => Array
(
)
[days] => [1]
[material_price] => [10000]
[work_price] => [5500]
[image] => https://akademik-stroy.ru/wp-content/uploads/materials/dveri.jpg
[area_modifier] => 1
[parent_name] => Двери входные
[parent_id] => 27
[material_sum] => 12600
[work_sum] => 5775
[total_sum] => 18375
[total_days] => 1
[display_material_sum] => 12 600
[display_work_sum] => 5 775
[display_total_sum] => 18 375
)
1
18 375₽
Работа:5 775 ₽
Материалы:12 600 ₽
Дни:1
stdClass Object
(
[id] => 54
[attribute_id] => 27
[name] => Нет
[material_modifier] => 1
[work_modifier] => 1
[options] => Array
(
)
[days] => [0]
[material_price] => [0]
[work_price] => [0]
[image] => https://akademik-stroy.ru/wp-content/uploads/materials/dveri.jpg
[area_modifier] => 1
[parent_name] => Двери входные
[parent_id] => 27
[material_sum] => 0
[work_sum] => 0
[total_sum] => 0
[total_days] => 0
[display_material_sum] => 0
[display_work_sum] => 0
[display_total_sum] => 0
)
1
0₽
Работа:0 ₽
Материалы:0 ₽
Дни:0
stdClass Object
(
[id] => 31
[attribute_id] => 16
[name] => Нет
[material_modifier] => 1
[work_modifier] => 1
[options] => Array
(
)
[days] => [0]
[material_price] => [0]
[work_price] => [0]
[image] => https://akademik-stroy.ru/wp-content/uploads/materials/docke-standard-pvh.jpg
[area_modifier] => 162.7
[parent_name] => Водосточная система
[parent_id] => 16
[material_sum] => 0
[work_sum] => 0
[total_sum] => 0
[total_days] => 0
[display_material_sum] => 0
[display_work_sum] => 0
[display_total_sum] => 0
)
1
0₽
Работа:0 ₽
Материалы:0 ₽
Дни:0
stdClass Object
(
[id] => 32
[attribute_id] => 16
[name] => Есть
[material_modifier] => 1
[work_modifier] => 1
[options] => Array
(
[0] => Döcke Standard (ПВХ)
[1] => Металлические Grand Line
)
[days] => [7,7]
[material_price] => [1842,2703]
[work_price] => [1491,1529]
[image] => https://akademik-stroy.ru/wp-content/uploads/materials/docke-standard-pvh.jpg
[area_modifier] => 162.7
[parent_name] => Водосточная система
[parent_id] => 16
[material_sum] => 377614
[work_sum] => 254715
[total_sum] => 632329
[total_days] => 7
[display_material_sum] => 377 614
[display_work_sum] => 254 715
[display_total_sum] => 632 329
)
1
632 329₽
Работа:254 715 ₽
Материалы:377 614 ₽
Дни:7
stdClass Object
(
[id] => 33
[attribute_id] => 17
[name] => Нет
[material_modifier] => 1
[work_modifier] => 1
[options] => Array
(
)
[days] => [0]
[material_price] => [0]
[work_price] => [0]
[image] => https://akademik-stroy.ru/wp-content/uploads/materials/mineralovata.jpg
[area_modifier] => 250.92
[parent_name] => Дополнительное утепление наружных стен
[parent_id] => 17
[material_sum] => 0
[work_sum] => 0
[total_sum] => 0
[total_days] => 0
[display_material_sum] => 0
[display_work_sum] => 0
[display_total_sum] => 0
)
1
0₽
Работа:0 ₽
Материалы:0 ₽
Дни:0
stdClass Object
(
[id] => 34
[attribute_id] => 17
[name] => Минераловатный
[material_modifier] => 1
[work_modifier] => 1
[options] => Array
(
[0] => 50 мм
[1] => 100 мм
[2] => 150 мм
[3] => 200 мм
[4] => 250 мм
[5] => 300 мм
)
[days] => [7,8,10,12,14,15]
[material_price] => [3437,3613,3803,3915,4601,4830]
[work_price] => [2325,2423,2523,2749,2859,3025]
[image] => https://akademik-stroy.ru/wp-content/uploads/materials/mineralovata.jpg
[area_modifier] => 250.92
[parent_name] => Дополнительное утепление наружных стен
[parent_id] => 17
[material_sum] => 1086639
[work_sum] => 612558
[total_sum] => 1699197
[total_days] => 7
[display_material_sum] => 1 086 639
[display_work_sum] => 612 558
[display_total_sum] => 1 699 197
)
1
1 699 197₽
Работа:612 558 ₽
Материалы:1 086 639 ₽
Дни:7
stdClass Object
(
[id] => 128
[attribute_id] => 17
[name] => Эковата (целлюлозная вата)
[material_modifier] => 1
[work_modifier] => 1
[options] => Array
(
[0] => 50 мм
[1] => 100 мм
[2] => 150 мм
[3] => 200 мм
[4] => 250 мм
[5] => 300 мм
)
[days] => [3,4,5,6,7,8]
[material_price] => [810,1319,1629,1838,2267,2676]
[work_price] => [1225,1323,1423,1549,1659,1725]
[image] => https://akademik-stroy.ru/wp-content/uploads/materials/ehkovata.jpg
[area_modifier] => 250.92
[parent_name] => Дополнительное утепление наружных стен
[parent_id] => 17
[material_sum] => 256089
[work_sum] => 322746
[total_sum] => 578835
[total_days] => 3
[display_material_sum] => 256 089
[display_work_sum] => 322 746
[display_total_sum] => 578 835
)
1
578 835₽
Работа:322 746 ₽
Материалы:256 089 ₽
Дни:3
stdClass Object
(
[id] => 129
[attribute_id] => 17
[name] => Экструдированный пенополистирол
[material_modifier] => 1
[work_modifier] => 1
[options] => Array
(
[0] => 50 мм
[1] => 100 мм
[2] => 150 мм
[3] => 200 мм
[4] => 250 мм
[5] => 300 мм
)
[days] => [5,6,7,8,9,10]
[material_price] => [4560,4300,5119,6292,7010,8583]
[work_price] => [1795,1954,2254,2330,2595,2735]
[image] => https://akademik-stroy.ru/wp-content/uploads/materials/epps.jpg
[area_modifier] => 250.92
[parent_name] => Дополнительное утепление наружных стен
[parent_id] => 17
[material_sum] => 1441686
[work_sum] => 472921
[total_sum] => 1914607
[total_days] => 5
[display_material_sum] => 1 441 686
[display_work_sum] => 472 921
[display_total_sum] => 1 914 607
)
1
1 914 607₽
Работа:472 921 ₽
Материалы:1 441 686 ₽
Дни:5
stdClass Object
(
[id] => 130
[attribute_id] => 17
[name] => ПСБ (ППС-пенополистирол)
[material_modifier] => 1
[work_modifier] => 1
[options] => Array
(
[0] => 50 мм
[1] => 100 мм
[2] => 150 мм
[3] => 200 мм
[4] => 250 мм
[5] => 300 мм
)
[days] => [5,6,7,8,9,10]
[material_price] => [4822,5200,5819,6292,7010,7583]
[work_price] => [1795,1954,2254,2330,2595,2735]
[image] => https://akademik-stroy.ru/wp-content/uploads/materials/psb.jpg
[area_modifier] => 250.92
[parent_name] => Дополнительное утепление наружных стен
[parent_id] => 17
[material_sum] => 1524520
[work_sum] => 472921
[total_sum] => 1997441
[total_days] => 5
[display_material_sum] => 1 524 520
[display_work_sum] => 472 921
[display_total_sum] => 1 997 441
)
1
1 997 441₽
Работа:472 921 ₽
Материалы:1 524 520 ₽
Дни:5
stdClass Object
(
[id] => 131
[attribute_id] => 17
[name] => ППУ (Пенополиуретан)
[material_modifier] => 1
[work_modifier] => 1
[options] => Array
(
[0] => 50 мм
[1] => 100 мм
[2] => 150 мм
[3] => 200 мм
[4] => 250 мм
[5] => 300 мм
)
[days] => [3,4,5,6,7,8]
[material_price] => [2860,3400,4219,4592,5010,5583]
[work_price] => [729,900,980,1120,1280,1530]
[image] => https://akademik-stroy.ru/wp-content/uploads/materials/ppu.jpg
[area_modifier] => 250.92
[parent_name] => Дополнительное утепление наружных стен
[parent_id] => 17
[material_sum] => 904215
[work_sum] => 192067
[total_sum] => 1096282
[total_days] => 3
[display_material_sum] => 904 215
[display_work_sum] => 192 067
[display_total_sum] => 1 096 282
)
1
1 096 282₽
Работа:192 067 ₽
Материалы:904 215 ₽
Дни:3
stdClass Object
(
[id] => 132
[attribute_id] => 17
[name] => PIR-плиты (пенополиизоцианурат)
[material_modifier] => 1
[work_modifier] => 1
[options] => Array
(
[0] => 50 мм
[1] => 100 мм
[2] => 150 мм
[3] => 200 мм
[4] => 250 мм
[5] => 300 мм
)
[days] => [5,6,7,8,9,10]
[material_price] => [8323,15645,20968,25900,29258,30581]
[work_price] => [800,900,970,1150,1280,1330]
[image] => https://akademik-stroy.ru/wp-content/uploads/materials/pir.jpg
[area_modifier] => 250.92
[parent_name] => Дополнительное утепление наружных стен
[parent_id] => 17
[material_sum] => 2631393
[work_sum] => 210773
[total_sum] => 2842166
[total_days] => 5
[display_material_sum] => 2 631 393
[display_work_sum] => 210 773
[display_total_sum] => 2 842 166
)
1
2 842 166₽
Работа:210 773 ₽
Материалы:2 631 393 ₽
Дни:5
stdClass Object
(
[id] => 37
[attribute_id] => 19
[name] => Нет
[material_modifier] => 1
[work_modifier] => 1
[options] => Array
(
)
[days] => [0]
[material_price] => [0]
[work_price] => [0]
[image] => https://akademik-stroy.ru/wp-content/uploads/materials/imitaciya-brusa.jpg
[area_modifier] => 250.92
[parent_name] => Наружная отделка фасада
[parent_id] => 19
[material_sum] => 0
[work_sum] => 0
[total_sum] => 0
[total_days] => 0
[display_material_sum] => 0
[display_work_sum] => 0
[display_total_sum] => 0
)
1
0₽
Работа:0 ₽
Материалы:0 ₽
Дни:0
stdClass Object
(
[id] => 38
[attribute_id] => 19
[name] => Имитация бруса
[material_modifier] => 1
[work_modifier] => 1
[options] => Array
(
[0] => Сосна
[1] => Ель
[2] => Лиственница
)
[days] => [20,20,20]
[material_price] => [2994,2762,4954]
[work_price] => [1397,1231,1577]
[image] => https://akademik-stroy.ru/wp-content/uploads/materials/imitaciya-brusa.jpg
[area_modifier] => 250.92
[parent_name] => Наружная отделка фасада
[parent_id] => 19
[material_sum] => 946581
[work_sum] => 368062
[total_sum] => 1314643
[total_days] => 20
[display_material_sum] => 946 581
[display_work_sum] => 368 062
[display_total_sum] => 1 314 643
)
1
1 314 643₽
Работа:368 062 ₽
Материалы:946 581 ₽
Дни:20
stdClass Object
(
[id] => 136
[attribute_id] => 19
[name] => Планкен
[material_modifier] => 1
[work_modifier] => 1
[options] => Array
(
[0] => Сосна
[1] => Ель
[2] => Лиственница
)
[days] => [20,20,20]
[material_price] => [3194,2862,5154]
[work_price] => [1537,1354,1735]
[image] => https://akademik-stroy.ru/wp-content/uploads/materials/planken.jpg
[area_modifier] => 250.92
[parent_name] => Наружная отделка фасада
[parent_id] => 19
[material_sum] => 1009812
[work_sum] => 404947
[total_sum] => 1414759
[total_days] => 20
[display_material_sum] => 1 009 812
[display_work_sum] => 404 947
[display_total_sum] => 1 414 759
)
1
1 414 759₽
Работа:404 947 ₽
Материалы:1 009 812 ₽
Дни:20
stdClass Object
(
[id] => 137
[attribute_id] => 19
[name] => Штукатурка
[material_modifier] => 1
[work_modifier] => 1
[options] => Array
(
[0] => Цементно-песчаная (минеральная)
[1] => Мокрый фасад
)
[days] => [35,35]
[material_price] => [2231,3938]
[work_price] => [1202,2422]
[image] => https://akademik-stroy.ru/wp-content/uploads/materials/shtukaturka.jpg
[area_modifier] => 250.92
[parent_name] => Наружная отделка фасада
[parent_id] => 19
[material_sum] => 705351
[work_sum] => 316686
[total_sum] => 1022037
[total_days] => 35
[display_material_sum] => 705 351
[display_work_sum] => 316 686
[display_total_sum] => 1 022 037
)
1
1 022 037₽
Работа:316 686 ₽
Материалы:705 351 ₽
Дни:35
stdClass Object
(
[id] => 138
[attribute_id] => 19
[name] => Облицовочный кирпич
[material_modifier] => 1
[work_modifier] => 1
[options] => Array
(
[0] => Керамический
[1] => Клинкерный
[2] => Ручной формовки
[3] => Гиперпрессованный
[4] => Силикатный кирпич
)
[days] => [45,45,45,45,45]
[material_price] => [8174,9148,1040,1257,5876]
[work_price] => [3240,3758,4536,4017,3369]
[image] => https://akademik-stroy.ru/wp-content/uploads/materials/oblicovochnyj-kirpich.jpg
[area_modifier] => 250.92
[parent_name] => Наружная отделка фасада
[parent_id] => 19
[material_sum] => 2584285
[work_sum] => 853630
[total_sum] => 3437915
[total_days] => 45
[display_material_sum] => 2 584 285
[display_work_sum] => 853 630
[display_total_sum] => 3 437 915
)
1
3 437 915₽
Работа:853 630 ₽
Материалы:2 584 285 ₽
Дни:45
stdClass Object
(
[id] => 139
[attribute_id] => 19
[name] => Фасадная плитка
[material_modifier] => 1
[work_modifier] => 1
[options] => Array
(
[0] => Клинкерная
[1] => Керамическая
[2] => Плитка ручной формовки
)
[days] => [40,40,40]
[material_price] => [2974,1487,3470]
[work_price] => [3007,2592,3629]
[image] => https://akademik-stroy.ru/wp-content/uploads/materials/fasadnaya-plitka.jpg
[area_modifier] => 250.92
[parent_name] => Наружная отделка фасада
[parent_id] => 19
[material_sum] => 940257
[work_sum] => 792242
[total_sum] => 1732499
[total_days] => 40
[display_material_sum] => 940 257
[display_work_sum] => 792 242
[display_total_sum] => 1 732 499
)
1
1 732 499₽
Работа:792 242 ₽
Материалы:940 257 ₽
Дни:40
stdClass Object
(
[id] => 140
[attribute_id] => 19
[name] => Сайдинг
[material_modifier] => 1
[work_modifier] => 1
[options] => Array
(
[0] => Виниловый
[1] => Металлический
[2] => Фиброцементный
)
[days] => [20,20,20]
[material_price] => [1263,1944,4147]
[work_price] => [1263,1944,2074]
[image] => https://akademik-stroy.ru/wp-content/uploads/materials/sajding.jpg
[area_modifier] => 250.92
[parent_name] => Наружная отделка фасада
[parent_id] => 19
[material_sum] => 399309
[work_sum] => 332758
[total_sum] => 732067
[total_days] => 20
[display_material_sum] => 399 309
[display_work_sum] => 332 758
[display_total_sum] => 732 067
)
1
732 067₽
Работа:332 758 ₽
Материалы:399 309 ₽
Дни:20
stdClass Object
(
[id] => 141
[attribute_id] => 19
[name] => Камень
[material_modifier] => 1
[work_modifier] => 1
[options] => Array
(
[0] => Травертин
[1] => Дагестанский
[2] => Искусственный
[3] => Натуральный
[4] => Керамогранит
)
[days] => [45,45,45,45,45]
[material_price] => [4536,3888,2592,3240,2462]
[work_price] => [3240,3240,2462,3110,1944]
[image] => https://akademik-stroy.ru/wp-content/uploads/materials/kamen-1.jpg
[area_modifier] => 250.92
[parent_name] => Наружная отделка фасада
[parent_id] => 19
[material_sum] => 1434098
[work_sum] => 853630
[total_sum] => 2287728
[total_days] => 45
[display_material_sum] => 1 434 098
[display_work_sum] => 853 630
[display_total_sum] => 2 287 728
)
1
2 287 728₽
Работа:853 630 ₽
Материалы:1 434 098 ₽
Дни:45
stdClass Object
(
[id] => 142
[attribute_id] => 19
[name] => Термопанели
[material_modifier] => 1
[work_modifier] => 1
[options] => Array
(
)
[days] => [20]
[material_price] => [6221]
[work_price] => [2333]
[image] => https://akademik-stroy.ru/wp-content/uploads/materials/termo.png
[area_modifier] => 250.92
[parent_name] => Наружная отделка фасада
[parent_id] => 19
[material_sum] => 1966826
[work_sum] => 614666
[total_sum] => 2581492
[total_days] => 20
[display_material_sum] => 1 966 826
[display_work_sum] => 614 666
[display_total_sum] => 2 581 492
)
1
2 581 492₽
Работа:614 666 ₽
Материалы:1 966 826 ₽
Дни:20
stdClass Object
(
[id] => 143
[attribute_id] => 19
[name] => Плитка HAUBERK
[material_modifier] => 1
[work_modifier] => 1
[options] => Array
(
)
[days] => [20]
[material_price] => [2786]
[work_price] => [1944]
[image] => https://akademik-stroy.ru/wp-content/uploads/materials/hauberk.jpg
[area_modifier] => 250.92
[parent_name] => Наружная отделка фасада
[parent_id] => 19
[material_sum] => 880820
[work_sum] => 512178
[total_sum] => 1392998
[total_days] => 20
[display_material_sum] => 880 820
[display_work_sum] => 512 178
[display_total_sum] => 1 392 998
)
1
1 392 998₽
Работа:512 178 ₽
Материалы:880 820 ₽
Дни:20
stdClass Object
(
[id] => 144
[attribute_id] => 19
[name] => Фальцевый фасад
[material_modifier] => 1
[work_modifier] => 1
[options] => Array
(
)
[days] => [20]
[material_price] => [3240]
[work_price] => [2592]
[image] => https://akademik-stroy.ru/wp-content/uploads/materials/falcevyj-fasad.jpg
[area_modifier] => 250.92
[parent_name] => Наружная отделка фасада
[parent_id] => 19
[material_sum] => 1024356
[work_sum] => 682904
[total_sum] => 1707260
[total_days] => 20
[display_material_sum] => 1 024 356
[display_work_sum] => 682 904
[display_total_sum] => 1 707 260
)
1
1 707 260₽
Работа:682 904 ₽
Материалы:1 024 356 ₽
Дни:20
stdClass Object
(
[id] => 145
[attribute_id] => 19
[name] => Комбинированный
[material_modifier] => 1
[work_modifier] => 1
[options] => Array
(
)
[days] => [20]
[material_price] => [4629]
[work_price] => [3499]
[image] => https://akademik-stroy.ru/wp-content/uploads/materials/Kombinirovannyj.jpg
[area_modifier] => 250.92
[parent_name] => Наружная отделка фасада
[parent_id] => 19
[material_sum] => 1463501
[work_sum] => 921868
[total_sum] => 2385369
[total_days] => 20
[display_material_sum] => 1 463 501
[display_work_sum] => 921 868
[display_total_sum] => 2 385 369
)
1
2 385 369₽
Работа:921 868 ₽
Материалы:1 463 501 ₽
Дни:20
stdClass Object
(
[id] => 257
[attribute_id] => 19
[name] => Японские фиброцементные
[material_modifier] => 1
[work_modifier] => 1
[options] => Array
(
)
[days] => [20]
[material_price] => [7043]
[work_price] => [2993]
[image] => https://akademik-stroy.ru/wp-content/uploads/materials/paneli.jpg
[area_modifier] => 250.92
[parent_name] => Наружная отделка фасада
[parent_id] => 19
[material_sum] => 2226709
[work_sum] => 788554
[total_sum] => 3015263
[total_days] => 20
[display_material_sum] => 2 226 709
[display_work_sum] => 788 554
[display_total_sum] => 3 015 263
)
1
3 015 263₽
Работа:788 554 ₽
Материалы:2 226 709 ₽
Дни:20
stdClass Object
(
[id] => 258
[attribute_id] => 19
[name] => Панели Каньон
[material_modifier] => 1
[work_modifier] => 1
[options] => Array
(
)
[days] => [20]
[material_price] => [4543]
[work_price] => [2592]
[image] => https://akademik-stroy.ru/wp-content/uploads/materials/kanon.png
[area_modifier] => 250.92
[parent_name] => Наружная отделка фасада
[parent_id] => 19
[material_sum] => 1436311
[work_sum] => 682904
[total_sum] => 2119215
[total_days] => 20
[display_material_sum] => 1 436 311
[display_work_sum] => 682 904
[display_total_sum] => 2 119 215
)
1
2 119 215₽
Работа:682 904 ₽
Материалы:1 436 311 ₽
Дни:20
stdClass Object
(
[id] => 39
[attribute_id] => 20
[name] => Нет
[material_modifier] => 1
[work_modifier] => 1
[options] => Array
(
)
[days] => [0]
[material_price] => [0]
[work_price] => [0]
[image] => https://akademik-stroy.ru/wp-content/uploads/materials/terrasy.jpg
[area_modifier] => 30
[parent_name] => Террасы, крыльца, навесы
[parent_id] => 20
[material_sum] => 0
[work_sum] => 0
[total_sum] => 0
[total_days] => 0
[display_material_sum] => 0
[display_work_sum] => 0
[display_total_sum] => 0
)
1
0₽
Работа:0 ₽
Материалы:0 ₽
Дни:0
stdClass Object
(
[id] => 40
[attribute_id] => 20
[name] => Есть
[material_modifier] => 1
[work_modifier] => 1
[options] => Array
(
)
[days] => [5]
[material_price] => [10450]
[work_price] => [1950]
[image] => https://akademik-stroy.ru/wp-content/uploads/materials/terrasy.jpg
[area_modifier] => 30
[parent_name] => Террасы, крыльца, навесы
[parent_id] => 20
[material_sum] => 395010
[work_sum] => 61425
[total_sum] => 456435
[total_days] => 5
[display_material_sum] => 395 010
[display_work_sum] => 61 425
[display_total_sum] => 456 435
)
1
456 435₽
Работа:61 425 ₽
Материалы:395 010 ₽
Дни:5
stdClass Object
(
[id] => 41
[attribute_id] => 21
[name] => Нет
[material_modifier] => 1
[work_modifier] => 1
[options] => Array
(
)
[days] => [0]
[material_price] => [0]
[work_price] => [0]
[image] => https://akademik-stroy.ru/wp-content/uploads/materials/balkony.jpg
[area_modifier] => 30
[parent_name] => Балконы
[parent_id] => 21
[material_sum] => 0
[work_sum] => 0
[total_sum] => 0
[total_days] => 0
[display_material_sum] => 0
[display_work_sum] => 0
[display_total_sum] => 0
)
1
0₽
Работа:0 ₽
Материалы:0 ₽
Дни:0
stdClass Object
(
[id] => 42
[attribute_id] => 21
[name] => Есть
[material_modifier] => 1
[work_modifier] => 1
[options] => Array
(
)
[days] => [12]
[material_price] => [3600]
[work_price] => [1950]
[image] => https://akademik-stroy.ru/wp-content/uploads/materials/balkony.jpg
[area_modifier] => 30
[parent_name] => Балконы
[parent_id] => 21
[material_sum] => 136080
[work_sum] => 61425
[total_sum] => 197505
[total_days] => 12
[display_material_sum] => 136 080
[display_work_sum] => 61 425
[display_total_sum] => 197 505
)
1
197 505₽
Работа:61 425 ₽
Материалы:136 080 ₽
Дни:12
stdClass Object
(
[id] => 43
[attribute_id] => 22
[name] => Нет
[material_modifier] => 1
[work_modifier] => 1
[options] => Array
(
)
[days] => [0]
[material_price] => [0]
[work_price] => [0]
[image] => https://akademik-stroy.ru/wp-content/uploads/materials/uteplennaya.jpg
[area_modifier] => 162.7
[parent_name] => Отмостка
[parent_id] => 22
[material_sum] => 0
[work_sum] => 0
[total_sum] => 0
[total_days] => 0
[display_material_sum] => 0
[display_work_sum] => 0
[display_total_sum] => 0
)
1
0₽
Работа:0 ₽
Материалы:0 ₽
Дни:0
stdClass Object
(
[id] => 44
[attribute_id] => 22
[name] => Утепленная отмостка
[material_modifier] => 1
[work_modifier] => 1
[options] => Array
(
)
[days] => [15]
[material_price] => [2550]
[work_price] => [1750]
[image] => https://akademik-stroy.ru/wp-content/uploads/materials/uteplennaya.jpg
[area_modifier] => 162.7
[parent_name] => Отмостка
[parent_id] => 22
[material_sum] => 522755
[work_sum] => 298961
[total_sum] => 821716
[total_days] => 15
[display_material_sum] => 522 755
[display_work_sum] => 298 961
[display_total_sum] => 821 716
)
1
821 716₽
Работа:298 961 ₽
Материалы:522 755 ₽
Дни:15
stdClass Object
(
[id] => 146
[attribute_id] => 22
[name] => Не утепленная отмостка
[material_modifier] => 1
[work_modifier] => 1
[options] => Array
(
)
[days] => [10]
[material_price] => [1650]
[work_price] => [1450]
[image] => https://akademik-stroy.ru/wp-content/uploads/materials/ne-uteplennaya.jpg
[area_modifier] => 162.7
[parent_name] => Отмостка
[parent_id] => 22
[material_sum] => 338253
[work_sum] => 247711
[total_sum] => 585964
[total_days] => 10
[display_material_sum] => 338 253
[display_work_sum] => 247 711
[display_total_sum] => 585 964
)
1
585 964₽
Работа:247 711 ₽
Материалы:338 253 ₽
Дни:10
stdClass Object
(
[id] => 45
[attribute_id] => 23
[name] => Нет
[material_modifier] => 1
[work_modifier] => 1
[options] => Array
(
)
[days] => [0]
[material_price] => [0]
[work_price] => [0]
[image] => https://akademik-stroy.ru/wp-content/uploads/materials/drenazh-2.jpg
[area_modifier] => 162.7
[parent_name] => Дренаж вокруг дома
[parent_id] => 23
[material_sum] => 0
[work_sum] => 0
[total_sum] => 0
[total_days] => 0
[display_material_sum] => 0
[display_work_sum] => 0
[display_total_sum] => 0
)
1
0₽
Работа:0 ₽
Материалы:0 ₽
Дни:0
stdClass Object
(
[id] => 46
[attribute_id] => 23
[name] => Есть
[material_modifier] => 1
[work_modifier] => 1
[options] => Array
(
)
[days] => [5]
[material_price] => [2366]
[work_price] => [1911]
[image] => https://akademik-stroy.ru/wp-content/uploads/materials/drenazh-2.jpg
[area_modifier] => 162.7
[parent_name] => Дренаж вокруг дома
[parent_id] => 23
[material_sum] => 485035
[work_sum] => 326466
[total_sum] => 811501
[total_days] => 5
[display_material_sum] => 485 035
[display_work_sum] => 326 466
[display_total_sum] => 811 501
)
1
811 501₽
Работа:326 466 ₽
Материалы:485 035 ₽
Дни:5
stdClass Object
(
[id] => 47
[attribute_id] => 24
[name] => Нет
[material_modifier] => 1
[work_modifier] => 1
[options] => Array
(
)
[days] => [0]
[material_price] => [0]
[work_price] => [0]
[image] => https://akademik-stroy.ru/wp-content/uploads/materials/septik.jpg
[area_modifier] => 1
[parent_name] => Автономная канализация (септики)
[parent_id] => 24
[material_sum] => 0
[work_sum] => 0
[total_sum] => 0
[total_days] => 0
[display_material_sum] => 0
[display_work_sum] => 0
[display_total_sum] => 0
)
1
0₽
Работа:0 ₽
Материалы:0 ₽
Дни:0
stdClass Object
(
[id] => 48
[attribute_id] => 24
[name] => Есть
[material_modifier] => 1
[work_modifier] => 1
[options] => Array
(
[0] => Для дачи на 4 человека
[1] => Для дома на 5 человек
[2] => Для дома на 6 человек
[3] => Для дома на 7 человек
[4] => Для дома на 10 человек
)
[days] => [7,7,7,8,8]
[material_price] => [196340,220500,240940,264200,293340]
[work_price] => [50000,55000,60500,66550,73206]
[image] => https://akademik-stroy.ru/wp-content/uploads/materials/septik.jpg
[area_modifier] => 1
[parent_name] => Автономная канализация (септики)
[parent_id] => 24
[material_sum] => 247388
[work_sum] => 52500
[total_sum] => 299888
[total_days] => 7
[display_material_sum] => 247 388
[display_work_sum] => 52 500
[display_total_sum] => 299 888
)
1
299 888₽
Работа:52 500 ₽
Материалы:247 388 ₽
Дни:7
stdClass Object
(
[id] => 49
[attribute_id] => 25
[name] => Нет
[material_modifier] => 1
[work_modifier] => 1
[options] => Array
(
)
[days] => [0]
[material_price] => [0]
[work_price] => [0]
[image] => https://akademik-stroy.ru/wp-content/uploads/materials/gkl.jpg
[area_modifier] => 250.92
[parent_name] => Внутренние (не несущие) перегородки
[parent_id] => 25
[material_sum] => 0
[work_sum] => 0
[total_sum] => 0
[total_days] => 0
[display_material_sum] => 0
[display_work_sum] => 0
[display_total_sum] => 0
)
1
0₽
Работа:0 ₽
Материалы:0 ₽
Дни:0
stdClass Object
(
[id] => 147
[attribute_id] => 25
[name] => Каркасно-обшивные
[material_modifier] => 1
[work_modifier] => 1
[options] => Array
(
[0] => 75 мм (без шумоизоляции)
[1] => 75 мм (с шумоизоляцией)
)
[days] => [11,11]
[material_price] => [580,970]
[work_price] => [380,570]
[image] => https://akademik-stroy.ru/wp-content/uploads/materials/gkl.jpg
[area_modifier] => 250.92
[parent_name] => Внутренние (не несущие) перегородки
[parent_id] => 25
[material_sum] => 183372
[work_sum] => 100117
[total_sum] => 283489
[total_days] => 11
[display_material_sum] => 183 372
[display_work_sum] => 100 117
[display_total_sum] => 283 489
)
1
283 489₽
Работа:100 117 ₽
Материалы:183 372 ₽
Дни:11
stdClass Object
(
[id] => 148
[attribute_id] => 25
[name] => Пазогребневые
[material_modifier] => 1
[work_modifier] => 1
[options] => Array
(
[0] => 80 мм
[1] => 100 мм
)
[days] => [5,5]
[material_price] => [1022,1313]
[work_price] => [600,700]
[image] => https://akademik-stroy.ru/wp-content/uploads/materials/pazogrebnevye-bloki.jpg
[area_modifier] => 250.92
[parent_name] => Внутренние (не несущие) перегородки
[parent_id] => 25
[material_sum] => 323115
[work_sum] => 158080
[total_sum] => 481195
[total_days] => 5
[display_material_sum] => 323 115
[display_work_sum] => 158 080
[display_total_sum] => 481 195
)
1
481 195₽
Работа:158 080 ₽
Материалы:323 115 ₽
Дни:5
stdClass Object
(
[id] => 149
[attribute_id] => 25
[name] => Газобетонные
[material_modifier] => 1
[work_modifier] => 1
[options] => Array
(
[0] => 100 мм
[1] => 200 мм
)
[days] => [11,11]
[material_price] => [1160,1920]
[work_price] => [700,900]
[image] => https://akademik-stroy.ru/wp-content/uploads/materials/gazobeton-2.jpg
[area_modifier] => 250.92
[parent_name] => Внутренние (не несущие) перегородки
[parent_id] => 25
[material_sum] => 366745
[work_sum] => 184426
[total_sum] => 551171
[total_days] => 11
[display_material_sum] => 366 745
[display_work_sum] => 184 426
[display_total_sum] => 551 171
)
1
551 171₽
Работа:184 426 ₽
Материалы:366 745 ₽
Дни:11
stdClass Object
(
[id] => 150
[attribute_id] => 25
[name] => Кирпичные
[material_modifier] => 1
[work_modifier] => 1
[options] => Array
(
[0] => 120 мм
[1] => 250 мм
[2] => 360 мм
)
[days] => [7,7,7]
[material_price] => [1785,3570,5355]
[work_price] => [900,1600,1800]
[image] => https://akademik-stroy.ru/wp-content/uploads/materials/kirpich-1.jpg
[area_modifier] => 250.92
[parent_name] => Внутренние (не несущие) перегородки
[parent_id] => 25
[material_sum] => 564344
[work_sum] => 237119
[total_sum] => 801463
[total_days] => 7
[display_material_sum] => 564 344
[display_work_sum] => 237 119
[display_total_sum] => 801 463
)
1
801 463₽
Работа:237 119 ₽
Материалы:564 344 ₽
Дни:7
stdClass Object
(
[id] => 55
[attribute_id] => 28
[name] => Нет
[material_modifier] => 1
[work_modifier] => 1
[options] => Array
(
)
[days] => [0]
[material_price] => [0]
[work_price] => [0]
[image] => https://akademik-stroy.ru/wp-content/uploads/materials/ehlektrika.jpg
[area_modifier] => 203.62
[parent_name] => Электрика
[parent_id] => 28
[material_sum] => 0
[work_sum] => 0
[total_sum] => 0
[total_days] => 0
[display_material_sum] => 0
[display_work_sum] => 0
[display_total_sum] => 0
)
1
0₽
Работа:0 ₽
Материалы:0 ₽
Дни:0
stdClass Object
(
[id] => 56
[attribute_id] => 28
[name] => Есть
[material_modifier] => 1
[work_modifier] => 1
[options] => Array
(
)
[days] => [10]
[material_price] => [650]
[work_price] => [950]
[image] => https://akademik-stroy.ru/wp-content/uploads/materials/ehlektrika.jpg
[area_modifier] => 203.62
[parent_name] => Электрика
[parent_id] => 28
[material_sum] => 166765
[work_sum] => 203111
[total_sum] => 369876
[total_days] => 10
[display_material_sum] => 166 765
[display_work_sum] => 203 111
[display_total_sum] => 369 876
)
1
369 876₽
Работа:203 111 ₽
Материалы:166 765 ₽
Дни:10
stdClass Object
(
[id] => 57
[attribute_id] => 29
[name] => Нет
[material_modifier] => 1
[work_modifier] => 1
[options] => Array
(
)
[days] => [0]
[material_price] => [0]
[work_price] => [0]
[image] => https://akademik-stroy.ru/wp-content/uploads/materials/santekhnika-kanalizaciya-1.jpg
[area_modifier] => 203.62
[parent_name] => Сантехника, канализация в доме
[parent_id] => 29
[material_sum] => 0
[work_sum] => 0
[total_sum] => 0
[total_days] => 0
[display_material_sum] => 0
[display_work_sum] => 0
[display_total_sum] => 0
)
1
0₽
Работа:0 ₽
Материалы:0 ₽
Дни:0
stdClass Object
(
[id] => 58
[attribute_id] => 29
[name] => Есть
[material_modifier] => 1
[work_modifier] => 1
[options] => Array
(
)
[days] => [10]
[material_price] => [600]
[work_price] => [730]
[image] => https://akademik-stroy.ru/wp-content/uploads/materials/santekhnika-kanalizaciya-1.jpg
[area_modifier] => 203.62
[parent_name] => Сантехника, канализация в доме
[parent_id] => 29
[material_sum] => 153937
[work_sum] => 156075
[total_sum] => 310012
[total_days] => 10
[display_material_sum] => 153 937
[display_work_sum] => 156 075
[display_total_sum] => 310 012
)
1
310 012₽
Работа:156 075 ₽
Материалы:153 937 ₽
Дни:10
stdClass Object
(
[id] => 59
[attribute_id] => 30
[name] => Нет
[material_modifier] => 1
[work_modifier] => 1
[options] => Array
(
)
[days] => [0]
[material_price] => [0]
[work_price] => [0]
[image] => https://akademik-stroy.ru/wp-content/uploads/materials/otoplenie-1.jpg
[area_modifier] => 203.62
[parent_name] => Отопление
[parent_id] => 30
[material_sum] => 0
[work_sum] => 0
[total_sum] => 0
[total_days] => 0
[display_material_sum] => 0
[display_work_sum] => 0
[display_total_sum] => 0
)
1
0₽
Работа:0 ₽
Материалы:0 ₽
Дни:0
stdClass Object
(
[id] => 60
[attribute_id] => 30
[name] => Есть
[material_modifier] => 1
[work_modifier] => 1
[options] => Array
(
)
[days] => [5]
[material_price] => [610]
[work_price] => [560]
[image] => https://akademik-stroy.ru/wp-content/uploads/materials/otoplenie-1.jpg
[area_modifier] => 203.62
[parent_name] => Отопление
[parent_id] => 30
[material_sum] => 156502
[work_sum] => 119729
[total_sum] => 276231
[total_days] => 5
[display_material_sum] => 156 502
[display_work_sum] => 119 729
[display_total_sum] => 276 231
)
1
276 231₽
Работа:119 729 ₽
Материалы:156 502 ₽
Дни:5
stdClass Object
(
[id] => 61
[attribute_id] => 31
[name] => Нет
[material_modifier] => 1
[work_modifier] => 1
[options] => Array
(
)
[days] => [0]
[material_price] => [0]
[work_price] => [0]
[image] => https://akademik-stroy.ru/wp-content/uploads/materials/vodyanye.jpg
[area_modifier] => 30
[parent_name] => Теплые полы
[parent_id] => 31
[material_sum] => 0
[work_sum] => 0
[total_sum] => 0
[total_days] => 0
[display_material_sum] => 0
[display_work_sum] => 0
[display_total_sum] => 0
)
1
0₽
Работа:0 ₽
Материалы:0 ₽
Дни:0
stdClass Object
(
[id] => 151
[attribute_id] => 31
[name] => Водяные
[material_modifier] => 1
[work_modifier] => 1
[options] => Array
(
)
[days] => [9]
[material_price] => [10200]
[work_price] => [2500]
[image] => https://akademik-stroy.ru/wp-content/uploads/materials/vodyanye.jpg
[area_modifier] => 30
[parent_name] => Теплые полы
[parent_id] => 31
[material_sum] => 385560
[work_sum] => 78750
[total_sum] => 464310
[total_days] => 9
[display_material_sum] => 385 560
[display_work_sum] => 78 750
[display_total_sum] => 464 310
)
1
464 310₽
Работа:78 750 ₽
Материалы:385 560 ₽
Дни:9
stdClass Object
(
[id] => 152
[attribute_id] => 31
[name] => Электро
[material_modifier] => 1
[work_modifier] => 1
[options] => Array
(
)
[days] => [5]
[material_price] => [6300]
[work_price] => [1500]
[image] => https://akademik-stroy.ru/wp-content/uploads/materials/ehlektricheskij.jpg
[area_modifier] => 30
[parent_name] => Теплые полы
[parent_id] => 31
[material_sum] => 238140
[work_sum] => 47250
[total_sum] => 285390
[total_days] => 5
[display_material_sum] => 238 140
[display_work_sum] => 47 250
[display_total_sum] => 285 390
)
1
285 390₽
Работа:47 250 ₽
Материалы:238 140 ₽
Дни:5
stdClass Object
(
[id] => 63
[attribute_id] => 32
[name] => Нет
[material_modifier] => 1
[work_modifier] => 1
[options] => Array
(
)
[days] => [0]
[material_price] => [0]
[work_price] => [0]
[image] => https://akademik-stroy.ru/wp-content/uploads/materials/shtukaturka-shpatlevka-1.jpg
[area_modifier] => 203.62
[parent_name] => Черновая отделка стен
[parent_id] => 32
[material_sum] => 0
[work_sum] => 0
[total_sum] => 0
[total_days] => 0
[display_material_sum] => 0
[display_work_sum] => 0
[display_total_sum] => 0
)
1
0₽
Работа:0 ₽
Материалы:0 ₽
Дни:0
stdClass Object
(
[id] => 153
[attribute_id] => 32
[name] => Штукатурка и шпатлевка
[material_modifier] => 1
[work_modifier] => 1
[options] => Array
(
)
[days] => [20]
[material_price] => [1850]
[work_price] => [2600]
[image] => https://akademik-stroy.ru/wp-content/uploads/materials/shtukaturka-shpatlevka-1.jpg
[area_modifier] => 203.62
[parent_name] => Черновая отделка стен
[parent_id] => 32
[material_sum] => 474638
[work_sum] => 555883
[total_sum] => 1030521
[total_days] => 20
[display_material_sum] => 474 638
[display_work_sum] => 555 883
[display_total_sum] => 1 030 521
)
1
1 030 521₽
Работа:555 883 ₽
Материалы:474 638 ₽
Дни:20
stdClass Object
(
[id] => 154
[attribute_id] => 32
[name] => Гипсокортон на стены
[material_modifier] => 1
[work_modifier] => 1
[options] => Array
(
)
[days] => [15]
[material_price] => [950]
[work_price] => [2100]
[image] => https://akademik-stroy.ru/wp-content/uploads/materials/gkl-1.jpg
[area_modifier] => 203.62
[parent_name] => Черновая отделка стен
[parent_id] => 32
[material_sum] => 243733
[work_sum] => 448982
[total_sum] => 692715
[total_days] => 15
[display_material_sum] => 243 733
[display_work_sum] => 448 982
[display_total_sum] => 692 715
)
1
692 715₽
Работа:448 982 ₽
Материалы:243 733 ₽
Дни:15
stdClass Object
(
[id] => 155
[attribute_id] => 32
[name] => Вагонка
[material_modifier] => 1
[work_modifier] => 1
[options] => Array
(
)
[days] => [15]
[material_price] => [1250]
[work_price] => [950]
[image] => https://akademik-stroy.ru/wp-content/uploads/materials/vagonka.jpg
[area_modifier] => 203.62
[parent_name] => Черновая отделка стен
[parent_id] => 32
[material_sum] => 320702
[work_sum] => 203111
[total_sum] => 523813
[total_days] => 15
[display_material_sum] => 320 702
[display_work_sum] => 203 111
[display_total_sum] => 523 813
)
1
523 813₽
Работа:203 111 ₽
Материалы:320 702 ₽
Дни:15
stdClass Object
(
[id] => 65
[attribute_id] => 33
[name] => Нет
[material_modifier] => 1
[work_modifier] => 1
[options] => Array
(
)
[days] => [0]
[material_price] => [0]
[work_price] => [0]
[image] => https://akademik-stroy.ru/wp-content/uploads/materials/styazhka.jpg
[area_modifier] => 203.62
[parent_name] => Черновая отделка полов
[parent_id] => 33
[material_sum] => 0
[work_sum] => 0
[total_sum] => 0
[total_days] => 0
[display_material_sum] => 0
[display_work_sum] => 0
[display_total_sum] => 0
)
1
0₽
Работа:0 ₽
Материалы:0 ₽
Дни:0
stdClass Object
(
[id] => 156
[attribute_id] => 33
[name] => Стяжка + наливные полы
[material_modifier] => 1
[work_modifier] => 1
[options] => Array
(
)
[days] => [10]
[material_price] => [1000]
[work_price] => [900]
[image] => https://akademik-stroy.ru/wp-content/uploads/materials/styazhka.jpg
[area_modifier] => 203.62
[parent_name] => Черновая отделка полов
[parent_id] => 33
[material_sum] => 256561
[work_sum] => 192421
[total_sum] => 448982
[total_days] => 10
[display_material_sum] => 256 561
[display_work_sum] => 192 421
[display_total_sum] => 448 982
)
1
448 982₽
Работа:192 421 ₽
Материалы:256 561 ₽
Дни:10
stdClass Object
(
[id] => 157
[attribute_id] => 33
[name] => ОСБ на пол
[material_modifier] => 1
[work_modifier] => 1
[options] => Array
(
)
[days] => [7]
[material_price] => [580]
[work_price] => [350]
[image] => https://akademik-stroy.ru/wp-content/uploads/materials/osb-1.jpg
[area_modifier] => 203.62
[parent_name] => Черновая отделка полов
[parent_id] => 33
[material_sum] => 148805
[work_sum] => 74830
[total_sum] => 223635
[total_days] => 7
[display_material_sum] => 148 805
[display_work_sum] => 74 830
[display_total_sum] => 223 635
)
1
223 635₽
Работа:74 830 ₽
Материалы:148 805 ₽
Дни:7
stdClass Object
(
[id] => 67
[attribute_id] => 34
[name] => Нет
[material_modifier] => 1
[work_modifier] => 1
[options] => Array
(
)
[days] => [0]
[material_price] => [0]
[work_price] => [0]
[image] => https://akademik-stroy.ru/wp-content/uploads/materials/chistovaya-otdelka.jpg
[area_modifier] => 203.62
[parent_name] => Чистовая отделка стен и полов
[parent_id] => 34
[material_sum] => 0
[work_sum] => 0
[total_sum] => 0
[total_days] => 0
[display_material_sum] => 0
[display_work_sum] => 0
[display_total_sum] => 0
)
1
0₽
Работа:0 ₽
Материалы:0 ₽
Дни:0
stdClass Object
(
[id] => 68
[attribute_id] => 34
[name] => Есть
[material_modifier] => 1
[work_modifier] => 1
[options] => Array
(
)
[days] => [50]
[material_price] => [6000]
[work_price] => [3500]
[image] => https://akademik-stroy.ru/wp-content/uploads/materials/chistovaya-otdelka.jpg
[area_modifier] => 203.62
[parent_name] => Чистовая отделка стен и полов
[parent_id] => 34
[material_sum] => 1539367
[work_sum] => 748304
[total_sum] => 2287671
[total_days] => 50
[display_material_sum] => 1 539 367
[display_work_sum] => 748 304
[display_total_sum] => 2 287 671
)
1
2 287 671₽
Работа:748 304 ₽
Материалы:1 539 367 ₽
Дни:50
stdClass Object
(
[id] => 69
[attribute_id] => 35
[name] => Нет
[material_modifier] => 1
[work_modifier] => 1
[options] => Array
(
)
[days] => [0]
[material_price] => [0]
[work_price] => [0]
[image] => https://akademik-stroy.ru/wp-content/uploads/materials/mnogourovnevyj-gkl.jpg
[area_modifier] => 203.62
[parent_name] => Отделка потолка
[parent_id] => 35
[material_sum] => 0
[work_sum] => 0
[total_sum] => 0
[total_days] => 0
[display_material_sum] => 0
[display_work_sum] => 0
[display_total_sum] => 0
)
1
0₽
Работа:0 ₽
Материалы:0 ₽
Дни:0
stdClass Object
(
[id] => 70
[attribute_id] => 35
[name] => Есть
[material_modifier] => 1
[work_modifier] => 1
[options] => Array
(
[0] => Многоуровневый потолок из гипсокартона
[1] => Многоуровневый потолок из гипсокартона и натяжного потолка
[2] => Одноуровневый потолок из гипсокартона
[3] => Одноуровневый натяжной потолок
)
[days] => [10,10,1,1]
[material_price] => [900,700,700,600]
[work_price] => [1000,800,500,300]
[image] => https://akademik-stroy.ru/wp-content/uploads/materials/mnogourovnevyj-gkl.jpg
[area_modifier] => 203.62
[parent_name] => Отделка потолка
[parent_id] => 35
[material_sum] => 230905
[work_sum] => 213801
[total_sum] => 444706
[total_days] => 10
[display_material_sum] => 230 905
[display_work_sum] => 213 801
[display_total_sum] => 444 706
)
1
444 706₽
Работа:213 801 ₽
Материалы:230 905 ₽
Дни:10
Преимущества работы с нами
7 этапов оплаты
Независимый строительный надзор
Экологически чистые материалы
16 лет гарантии
Онлайн-кабинет с веб-камерой
Строители с опытом более 15 лет
Собственное производство




