Одноэтажный дом 204.18 м2 за руб.

ID-162421

Стоимость дома 8153559 руб.

Планировки

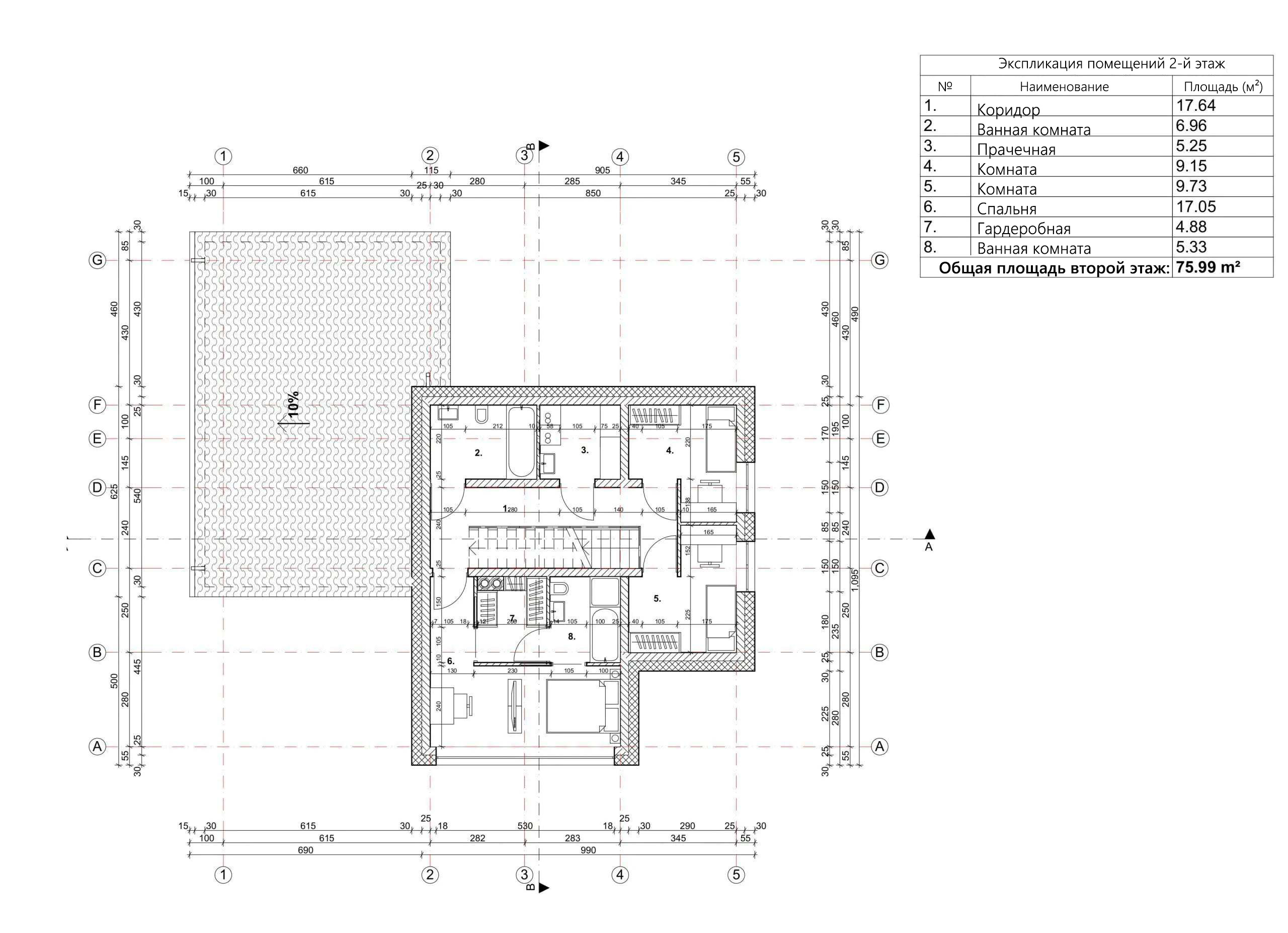
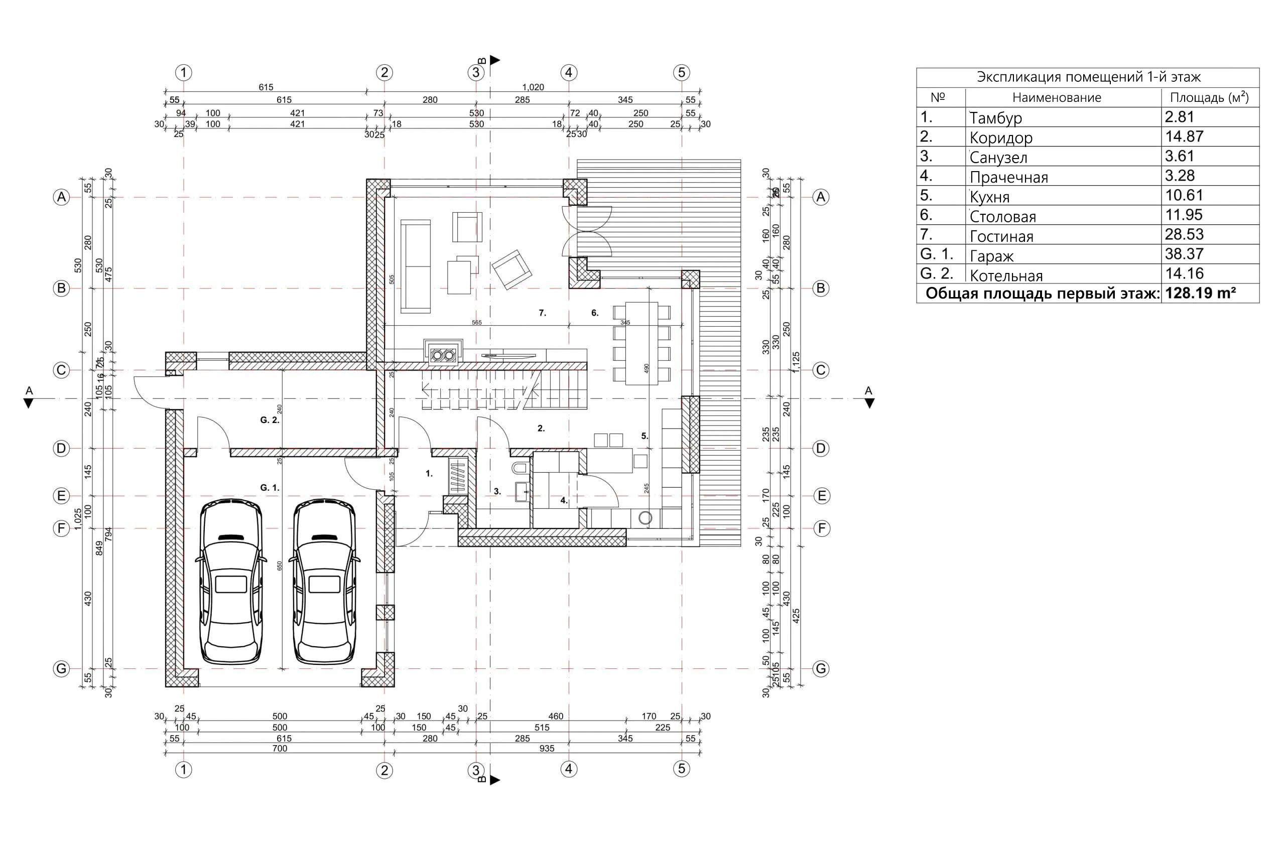
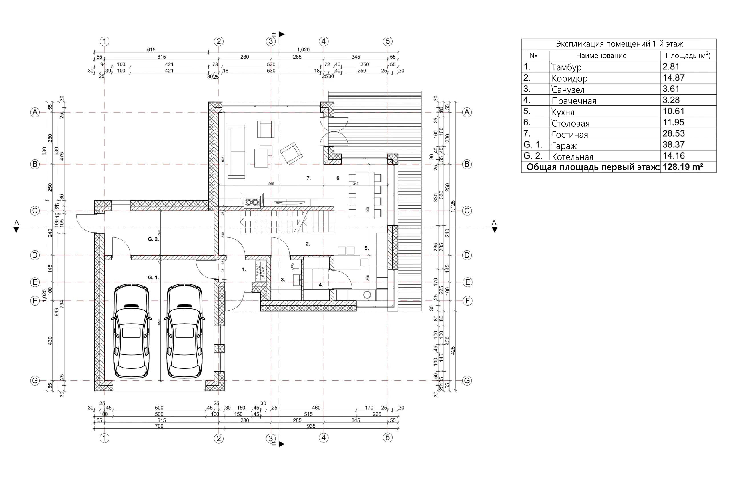
План первого этажа

floor image
  • 1. Тамбур 2,81 м²
  • 2. Коридор 14,87 м²
  • 3. Санузел 3,61 м²
  • 4. Прачечная 3,28 м²
  • 5. Кухня 10,61 м²
  • 6. Столовая 11,95 м²
  • 7. Гостиная 28,53 м²
  • 8. Гараж 38,37 м²
  • 9. Котельная 14,16 м²
  • Общая пощадь первый этаж 128,19 м²

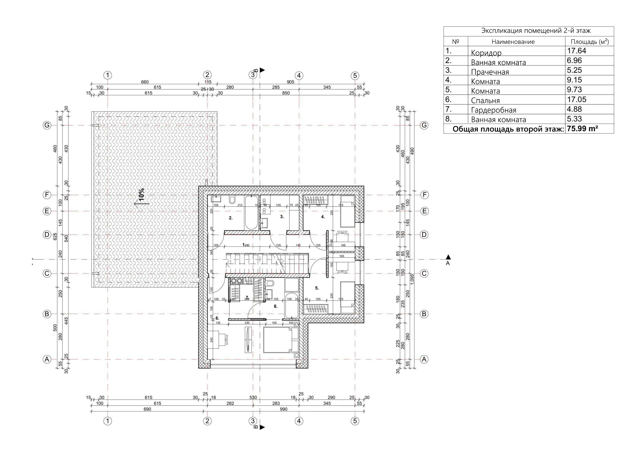
План второго этажа

floor image
  • 1. Коридор 17,64 м²
  • 2. Ванная комната 6,96 м²
  • 3. Прачечная 5,25 м²
  • 4. Комната 9,15 м²
  • 5. Комната 9,73 м²
  • 6. Спальня 17,05 м²
  • 7. Гардеробная 4,88 м²
  • 8. Ванная комната 5,33 м²
  • Общая площадь второй этаж 75,99 м²

Площади дома

№ п/п Наименование Ед. из. Строительная площадь Полезная площадь
1 1 этаж м2 157.97 128.19
2 2 этаж м2 93.64 75.99
3 Итого м2 251.61 204.18
154 м2 Полезная
площадь
1 этаж Этажей
26 м2 Террасы
и балконы
1Без
гаража
4 Количество
спален
2 Количество
санузлов

Калькулятор опций

0

В ипотеку от 26 191 ₽/мес.

Фундамент
825 528
Работа:357 281
Материалы:468 247
Дни:20
496 278
Работа:166 200
Материалы:330 078
Дни:2
836 309
Работа:335 718
Материалы:500 591
Дни:20
1 602 622
Работа:715 557
Материалы:887 065
Дни:30
2 688 562
Работа:988 576
Материалы:1 699 986
Дни:32
1 016 111
Работа:406 544
Материалы:609 567
Дни:20
6 375 986
Работа:2 906 680
Материалы:3 469 306
Дни:30
7 607 061
Работа:3 390 518
Материалы:4 216 543
Дни:40
265 389
Работа:66 347
Материалы:199 042
Дни:1
Перекрытие цоколя
475 047
Работа:204 018
Материалы:271 029
Дни:8
760 839
Работа:252 120
Материалы:508 719
Дни:13
1 357 634
Работа:555 328
Материалы:802 306
Дни:18
Стены 1 этаж (несущие)
1 332 422
Работа:834 816
Материалы:497 606
Дни:29
1 533 786
Работа:785 719
Материалы:748 067
Дни:23
2 361 304
Работа:1 449 027
Материалы:912 277
Дни:30
1 932 534
Работа:846 925
Материалы:1 085 609
Дни:45
3 612 782
Работа:797 164
Материалы:2 815 618
Дни:24
795 671
Работа:401 070
Материалы:394 601
Дни:15
434 576
Работа:233 875
Материалы:200 701
Дни:7
1 528 313
Работа:531 443
Материалы:996 870
Дни:7
1 996 227
Работа:637 764
Материалы:1 358 463
Дни:7
13 109 417
Работа:637 764
Материалы:12 471 653
Дни:7
7 096 020
Работа:797 164
Материалы:6 298 856
Дни:7
1 116 129
Работа:265 721
Материалы:850 408
Дни:7
1 465 614
Работа:752 711
Материалы:712 903
Дни:29
1 283 159
Работа:835 646
Материалы:447 513
Дни:29
1 465 614
Работа:752 711
Материалы:712 903
Дни:29
1 555 515
Работа:951 588
Материалы:603 927
Дни:23
1 988 266
Работа:669 611
Материалы:1 318 655
Дни:7
2 254 650
Работа:1 381 850
Материалы:872 800
Дни:25
815 575
Работа:420 974
Материалы:394 601
Дни:15
7 557 301
Работа:1 594 328
Материалы:5 962 973
Дни:15
904 315
Работа:425 287
Материалы:479 028
Дни:15
1 231 408
Работа:698 970
Материалы:532 438
Дни:19
1 299 746
Работа:835 646
Материалы:464 100
Дни:29
834 817
Работа:438 225
Материалы:396 592
Дни:15
1 533 786
Работа:785 719
Материалы:748 067
Дни:23
896 022
Работа:348 324
Материалы:547 698
Дни:15
1 147 810
Работа:836 972
Материалы:310 838
Дни:7
Перекрытие первого этажа
475 047
Работа:204 018
Материалы:271 029
Дни:8
760 839
Работа:252 120
Материалы:508 719
Дни:13
1 357 634
Работа:555 328
Материалы:802 306
Дни:18
Стены 2 этаж (несущие)
789 821
Работа:494 855
Материалы:294 966
Дни:29
909 183
Работа:465 751
Материалы:443 432
Дни:23
1 399 712
Работа:858 941
Материалы:540 771
Дни:30
1 145 549
Работа:502 032
Материалы:643 517
Дни:45
2 141 552
Работа:472 536
Материалы:1 669 016
Дни:24
471 651
Работа:237 743
Материалы:233 908
Дни:15
257 604
Работа:138 634
Материалы:118 970
Дни:7
905 939
Работа:315 024
Материалы:590 915
Дни:7
1 183 305
Работа:378 048
Материалы:805 257
Дни:7
7 770 879
Работа:378 048
Материалы:7 392 831
Дни:7
2 062 894
Работа:472 536
Материалы:1 590 358
Дни:7
661 609
Работа:157 512
Материалы:504 097
Дни:10
868 773
Работа:446 185
Материалы:422 588
Дни:29
760 619
Работа:495 346
Материалы:265 273
Дни:29
868 773
Работа:446 185
Материалы:422 588
Дни:29
922 063
Работа:564 073
Материалы:357 990
Дни:23
1 178 586
Работа:396 926
Материалы:781 660
Дни:7
1 336 491
Работа:819 121
Материалы:517 370
Дни:25
483 449
Работа:249 541
Материалы:233 908
Дни:15
4 479 747
Работа:945 071
Материалы:3 534 676
Дни:15
536 052
Работа:252 098
Материалы:283 954
Дни:15
729 943
Работа:414 329
Материалы:315 614
Дни:19
770 451
Работа:495 346
Материалы:275 105
Дни:29
494 855
Работа:259 767
Материалы:235 088
Дни:15
909 183
Работа:465 751
Материалы:443 432
Дни:10
531 135
Работа:206 476
Материалы:324 659
Дни:10
680 388
Работа:496 133
Материалы:184 255
Дни:7
Перекрытие второго этажа
281 594
Работа:120 936
Материалы:160 658
Дни:8
451 003
Работа:149 449
Материалы:301 554
Дни:13
804 766
Работа:329 182
Материалы:475 584
Дни:18
Крыша (Скатная)
1 963 551
Работа:949 763
Материалы:1 013 788
Дни:20
2 144 680
Работа:986 918
Материалы:1 157 762
Дни:20
3 320 024
Работа:1 568 453
Материалы:1 751 571
Дни:20
3 053 805
Работа:1 477 059
Материалы:1 576 746
Дни:20
3 683 276
Работа:1 568 453
Материалы:2 114 823
Дни:20
2 776 639
Работа:1 358 463
Материалы:1 418 176
Дни:20
6 170 308
Работа:2 778 297
Материалы:3 392 011
Дни:20
6 075 763
Работа:2 783 273
Материалы:3 292 490
Дни:20
1 194 253
Работа:622 007
Материалы:572 246
Дни:20
Окна
423 204
Работа:136 137
Материалы:287 067
Дни:3
0
Работа:0
Материалы:0
Дни:0
Двери входные
16 275
Работа:5 775
Материалы:10 500
Дни:1
0
Работа:0
Материалы:0
Дни:0
Утепление кровли (Мансарда)
0
Работа:0
Материалы:0
Дни:0
299 891
Работа:107 815
Материалы:192 076
Дни:5
174 825
Работа:38 813
Материалы:136 012
Дни:3
254 774
Работа:64 689
Материалы:190 085
Дни:3
143 642
Работа:64 689
Материалы:78 953
Дни:3
383 819
Работа:38 813
Материалы:345 006
Дни:2
503 577
Работа:64 689
Материалы:438 888
Дни:3
Мансардные окна
0
Работа:0
Материалы:0
Дни:0
68 649
Работа:18 795
Материалы:49 854
Дни:6
Подшивка кровли
0
Работа:0
Материалы:0
Дни:0
552 674
Работа:253 613
Материалы:299 061
Дни:7
Водосточная система
0
Работа:0
Материалы:0
Дни:0
552 840
Работа:247 310
Материалы:305 530
Дни:7
Дополнительное утепление наружных стен
0
Работа:0
Материалы:0
Дни:0
1 522 266
Работа:614 243
Материалы:908 023
Дни:7
537 627
Работа:323 633
Материалы:213 994
Дни:3
1 678 931
Работа:474 222
Материалы:1 204 709
Дни:5
1 748 149
Работа:474 222
Материалы:1 273 927
Дни:5
948 180
Работа:192 595
Материалы:755 585
Дни:3
2 410 210
Работа:211 352
Материалы:2 198 858
Дни:5
Наружная отделка фасада
0
Работа:0
Материалы:0
Дни:0
1 160 060
Работа:369 074
Материалы:790 986
Дни:20
1 249 885
Работа:406 061
Материалы:843 824
Дни:20
906 966
Работа:317 557
Материалы:589 409
Дни:35
3 015 470
Работа:855 977
Материалы:2 159 493
Дни:45
1 580 124
Работа:794 421
Материалы:785 703
Дни:40
667 346
Работа:333 673
Материалы:333 673
Дни:20
2 054 345
Работа:855 977
Материалы:1 198 368
Дни:45
2 259 885
Работа:616 356
Материалы:1 643 529
Дни:20
1 249 621
Работа:513 586
Материалы:736 035
Дни:20
1 540 759
Работа:684 782
Материалы:855 977
Дни:20
2 147 341
Работа:924 403
Материалы:1 222 938
Дни:20
2 651 416
Работа:790 722
Материалы:1 860 694
Дни:20
1 884 999
Работа:684 782
Материалы:1 200 217
Дни:20
Террасы, крыльца, навесы
0
Работа:0
Материалы:0
Дни:0
390 600
Работа:61 425
Материалы:329 175
Дни:5
Балконы
0
Работа:0
Материалы:0
Дни:0
174 825
Работа:61 425
Материалы:113 400
Дни:12
Отмостка
0
Работа:0
Материалы:0
Дни:0
713 235
Работа:290 270
Материалы:422 965
Дни:15
514 192
Работа:240 509
Материалы:273 683
Дни:10
Дренаж вокруг дома
0
Работа:0
Материалы:0
Дни:0
709 420
Работа:316 975
Материалы:392 445
Дни:5
Автономная канализация (септики)
0
Работа:0
Материалы:0
Дни:0
258 657
Работа:52 500
Материалы:206 157
Дни:7
Внутренние (не несущие) перегородки
0
Работа:0
Материалы:0
Дни:0
253 622
Работа:100 392
Материалы:153 230
Дни:11
428 517
Работа:158 514
Материалы:270 003
Дни:5
491 394
Работа:184 933
Материалы:306 461
Дни:11
709 351
Работа:237 771
Материалы:471 580
Дни:7
Электрика
0
Работа:0
Материалы:0
Дни:0
343 023
Работа:203 670
Материалы:139 353
Дни:10
Сантехника, канализация в доме
0
Работа:0
Материалы:0
Дни:0
285 137
Работа:156 504
Материалы:128 633
Дни:10
Отопление
0
Работа:0
Материалы:0
Дни:0
250 835
Работа:120 058
Материалы:130 777
Дни:5
Теплые полы
0
Работа:0
Материалы:0
Дни:0
400 050
Работа:78 750
Материалы:321 300
Дни:9
245 700
Работа:47 250
Материалы:198 450
Дни:5
Черновая отделка стен
0
Работа:0
Материалы:0
Дни:0
954 031
Работа:557 411
Материалы:396 620
Дни:20
653 887
Работа:450 217
Материалы:203 670
Дни:15
471 656
Работа:203 670
Материалы:267 986
Дни:15
Черновая отделка полов
0
Работа:0
Материалы:0
Дни:0
407 339
Работа:192 950
Материалы:214 389
Дни:10
199 382
Работа:75 036
Материалы:124 346
Дни:7
Чистовая отделка стен и полов
0
Работа:0
Материалы:0
Дни:0
2 036 696
Работа:750 362
Материалы:1 286 334
Дни:50
Отделка потолка
0
Работа:0
Материалы:0
Дни:0
407 339
Работа:214 389
Материалы:192 950
Дни:10

Преимущества работы с нами

icon

7 этапов оплаты

icon

Независимый строительный надзор

icon

Экологически чистые материалы

icon

16 лет гарантии

icon

Онлайн-кабинет с веб-камерой

icon

Строители с опытом более 15 лет

icon

Собственное производство