Одноэтажный дом 222.29 м2 за руб.
Планировки
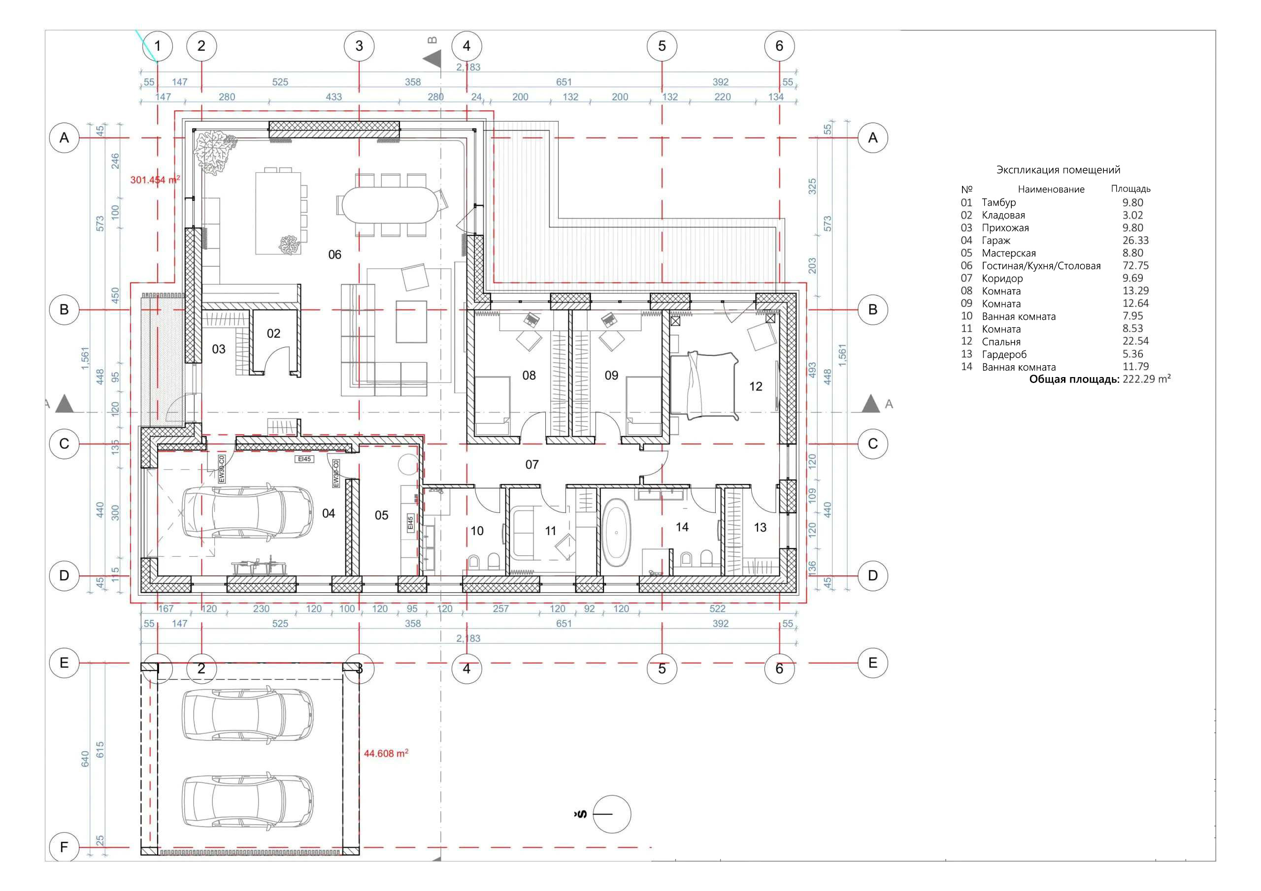
План первого этажа
- 1. Тамбур 9,80 м²
- 2. Кладовая 3,02 м²
- 3. Прихожая 9,80 м²
- 4. Гараж 26,33 м²
- 5. Мастерская 8,80 м²
- 6. Гостиная-Кухня-Столовая 72,75 м²
- 7. Коридор 9,69 м²
- 8. Комната 13,29 м²
- 9. Комната 12,64 м²
- 10. Ванная комната 7,95 м²
- 11. Комната 8,53 м²
- 12. Спальня 22,54 м²
- 13. Гардероб 5,36 м²
- 14. Ванная комната 11,79 м²
- Общая площадь 222,29 м²
Площади дома
| № п/п | Наименование | Ед. из. | Строительная площадь | Полезная площадь |
| 1 | 1 этаж | м2 | 273.93 | 222.29 |
| 2 | Итого | м2 | 273.93 | 222.29 |
154 м2
Полезная
площадь
площадь
1 этаж
Этажей
26 м2
Террасы
и балконы
и балконы
0Без
гаража
гаража
4
Количество
спален
спален
3
Количество
санузлов
санузлов
Калькулятор опций
0₽
В ипотеку от 31 645 ₽/мес.
0₽
0 дней
1 431 517₽
Работа:619 547 ₽
Материалы:811 970 ₽
Дни:20
860 579₽
Работа:288 202 ₽
Материалы:572 377 ₽
Дни:2
1 450 213₽
Работа:582 156 ₽
Материалы:868 057 ₽
Дни:20
2 779 048₽
Работа:1 240 821 ₽
Материалы:1 538 227 ₽
Дни:30
4 662 138₽
Работа:1 714 254 ₽
Материалы:2 947 884 ₽
Дни:32
1 762 000₽
Работа:704 973 ₽
Материалы:1 057 027 ₽
Дни:20
11 056 363₽
Работа:5 040 367 ₽
Материалы:6 015 996 ₽
Дни:30
13 191 126₽
Работа:5 879 373 ₽
Материалы:7 311 753 ₽
Дни:40
460 203₽
Работа:115 051 ₽
Материалы:345 152 ₽
Дни:1
823 763₽
Работа:353 781 ₽
Материалы:469 982 ₽
Дни:8
1 319 342₽
Работа:437 192 ₽
Материалы:882 150 ₽
Дни:13
2 354 223₽
Работа:962 974 ₽
Материалы:1 391 249 ₽
Дни:18
2 310 504₽
Работа:1 447 624 ₽
Материалы:862 880 ₽
Дни:29
2 659 683₽
Работа:1 362 487 ₽
Материалы:1 297 196 ₽
Дни:23
4 094 651₽
Работа:2 512 705 ₽
Материалы:1 581 946 ₽
Дни:30
3 351 136₽
Работа:1 468 621 ₽
Материалы:1 882 515 ₽
Дни:45
6 264 793₽
Работа:1 382 333 ₽
Материалы:4 882 460 ₽
Дни:24
1 379 744₽
Работа:695 481 ₽
Материалы:684 263 ₽
Дни:15
753 581₽
Работа:405 553 ₽
Материалы:348 028 ₽
Дни:7
2 650 190₽
Работа:921 555 ₽
Материалы:1 728 635 ₽
Дни:7
3 461 585₽
Работа:1 105 924 ₽
Материалы:2 355 661 ₽
Дни:7
22 732 561₽
Работа:1 105 924 ₽
Материалы:21 626 637 ₽
Дни:7
12 304 949₽
Работа:1 382 333 ₽
Материалы:10 922 616 ₽
Дни:7
1 935 439₽
Работа:460 778 ₽
Материалы:1 474 661 ₽
Дни:7
2 541 468₽
Работа:1 305 249 ₽
Материалы:1 236 219 ₽
Дни:29
2 225 078₽
Работа:1 449 062 ₽
Материалы:776 016 ₽
Дни:29
2 541 468₽
Работа:1 305 249 ₽
Материалы:1 236 219 ₽
Дни:29
2 697 361₽
Работа:1 650 113 ₽
Материалы:1 047 248 ₽
Дни:23
3 447 779₽
Работа:1 161 148 ₽
Материалы:2 286 631 ₽
Дни:7
3 909 707₽
Работа:2 396 216 ₽
Материалы:1 513 491 ₽
Дни:25
1 414 259₽
Работа:729 996 ₽
Материалы:684 263 ₽
Дни:15
13 104 839₽
Работа:2 764 666 ₽
Материалы:10 340 173 ₽
Дни:15
1 568 139₽
Работа:737 474 ₽
Материалы:830 665 ₽
Дни:15
2 135 339₽
Работа:1 212 058 ₽
Материалы:923 281 ₽
Дни:19
2 253 841₽
Работа:1 449 062 ₽
Материалы:804 779 ₽
Дни:29
1 447 624₽
Работа:759 909 ₽
Материалы:687 715 ₽
Дни:15
2 659 683₽
Работа:1 362 487 ₽
Материалы:1 297 196 ₽
Дни:23
1 553 759₽
Работа:604 016 ₽
Материалы:949 743 ₽
Дни:15
1 990 375₽
Работа:1 451 363 ₽
Материалы:539 012 ₽
Дни:7
823 763₽
Работа:353 781 ₽
Материалы:469 982 ₽
Дни:8
1 319 342₽
Работа:437 192 ₽
Материалы:882 150 ₽
Дни:13
2 354 223₽
Работа:962 974 ₽
Материалы:1 391 249 ₽
Дни:18
3 404 922₽
Работа:1 646 949 ₽
Материалы:1 757 973 ₽
Дни:20
3 719 011₽
Работа:1 711 378 ₽
Материалы:2 007 633 ₽
Дни:20
5 757 132₽
Работа:2 719 796 ₽
Материалы:3 037 336 ₽
Дни:20
5 295 492₽
Работа:2 561 314 ₽
Материалы:2 734 178 ₽
Дни:20
6 387 034₽
Работа:2 719 796 ₽
Материалы:3 667 238 ₽
Дни:20
4 814 868₽
Работа:2 355 661 ₽
Материалы:2 459 207 ₽
Дни:20
10 699 706₽
Работа:4 817 744 ₽
Материалы:5 881 962 ₽
Дни:20
10 535 759₽
Работа:4 826 373 ₽
Материалы:5 709 386 ₽
Дни:20
2 070 910₽
Работа:1 078 599 ₽
Материалы:992 311 ₽
Дни:20
460 741₽
Работа:148 212 ₽
Материалы:312 529 ₽
Дни:3
0₽
Работа:0 ₽
Материалы:0 ₽
Дни:0
16 275₽
Работа:5 775 ₽
Материалы:10 500 ₽
Дни:1
0₽
Работа:0 ₽
Материалы:0 ₽
Дни:0
0₽
Работа:0 ₽
Материалы:0 ₽
Дни:0
520 028₽
Работа:186 957 ₽
Материалы:333 071 ₽
Дни:5
303 159₽
Работа:67 305 ₽
Материалы:235 854 ₽
Дни:3
441 794₽
Работа:112 174 ₽
Материалы:329 620 ₽
Дни:3
249 084₽
Работа:112 174 ₽
Материалы:136 910 ₽
Дни:3
665 568₽
Работа:67 305 ₽
Материалы:598 263 ₽
Дни:2
873 234₽
Работа:112 174 ₽
Материалы:761 060 ₽
Дни:3
0₽
Работа:0 ₽
Материалы:0 ₽
Дни:0
68 649₽
Работа:18 795 ₽
Материалы:49 854 ₽
Дни:6
0₽
Работа:0 ₽
Материалы:0 ₽
Дни:0
958 372₽
Работа:439 781 ₽
Материалы:518 591 ₽
Дни:7
0₽
Работа:0 ₽
Материалы:0 ₽
Дни:0
958 659₽
Работа:428 851 ₽
Материалы:529 808 ₽
Дни:7
0₽
Работа:0 ₽
Материалы:0 ₽
Дни:0
1 657 304₽
Работа:668 732 ₽
Материалы:988 572 ₽
Дни:7
585 319₽
Работа:352 342 ₽
Материалы:232 977 ₽
Дни:3
1 827 867₽
Работа:516 290 ₽
Материалы:1 311 577 ₽
Дни:5
1 903 225₽
Работа:516 290 ₽
Материалы:1 386 935 ₽
Дни:5
1 032 292₽
Работа:209 680 ₽
Материалы:822 612 ₽
Дни:3
2 624 016₽
Работа:230 101 ₽
Материалы:2 393 915 ₽
Дни:5
0₽
Работа:0 ₽
Материалы:0 ₽
Дни:0
1 262 968₽
Работа:401 814 ₽
Материалы:861 154 ₽
Дни:20
1 360 761₽
Работа:442 082 ₽
Материалы:918 679 ₽
Дни:20
987 422₽
Работа:345 727 ₽
Материалы:641 695 ₽
Дни:35
3 282 969₽
Работа:931 910 ₽
Материалы:2 351 059 ₽
Дни:45
1 720 294₽
Работа:864 893 ₽
Материалы:855 401 ₽
Дни:40
726 544₽
Работа:363 272 ₽
Материалы:363 272 ₽
Дни:20
2 236 584₽
Работа:931 910 ₽
Материалы:1 304 674 ₽
Дни:45
2 460 357₽
Работа:671 033 ₽
Материалы:1 789 324 ₽
Дни:20
1 360 473₽
Работа:559 146 ₽
Материалы:801 327 ₽
Дни:20
1 677 438₽
Работа:745 528 ₽
Материалы:931 910 ₽
Дни:20
2 337 828₽
Работа:1 006 405 ₽
Материалы:1 331 423 ₽
Дни:20
2 886 619₽
Работа:860 866 ₽
Материалы:2 025 753 ₽
Дни:20
2 052 215₽
Работа:745 528 ₽
Материалы:1 306 687 ₽
Дни:20
0₽
Работа:0 ₽
Материалы:0 ₽
Дни:0
390 600₽
Работа:61 425 ₽
Материалы:329 175 ₽
Дни:5
0₽
Работа:0 ₽
Материалы:0 ₽
Дни:0
174 825₽
Работа:61 425 ₽
Материалы:113 400 ₽
Дни:12
0₽
Работа:0 ₽
Материалы:0 ₽
Дни:0
1 236 794₽
Работа:503 346 ₽
Материалы:733 448 ₽
Дни:15
891 642₽
Работа:417 058 ₽
Материалы:474 584 ₽
Дни:10
0₽
Работа:0 ₽
Материалы:0 ₽
Дни:0
1 230 178₽
Работа:549 654 ₽
Материалы:680 524 ₽
Дни:5
0₽
Работа:0 ₽
Материалы:0 ₽
Дни:0
258 657₽
Работа:52 500 ₽
Материалы:206 157 ₽
Дни:7
0₽
Работа:0 ₽
Материалы:0 ₽
Дни:0
276 121₽
Работа:109 298 ₽
Материалы:166 823 ₽
Дни:11
466 530₽
Работа:172 576 ₽
Материалы:293 954 ₽
Дни:5
534 986₽
Работа:201 339 ₽
Материалы:333 647 ₽
Дни:11
772 277₽
Работа:258 864 ₽
Материалы:513 413 ₽
Дни:7
0₽
Работа:0 ₽
Материалы:0 ₽
Дни:0
373 447₽
Работа:221 734 ₽
Материалы:151 713 ₽
Дни:10
0₽
Работа:0 ₽
Материалы:0 ₽
Дни:0
310 428₽
Работа:170 385 ₽
Материалы:140 043 ₽
Дни:10
0₽
Работа:0 ₽
Материалы:0 ₽
Дни:0
273 084₽
Работа:130 707 ₽
Материалы:142 377 ₽
Дни:5
0₽
Работа:0 ₽
Материалы:0 ₽
Дни:0
400 050₽
Работа:78 750 ₽
Материалы:321 300 ₽
Дни:9
245 700₽
Работа:47 250 ₽
Материалы:198 450 ₽
Дни:5
0₽
Работа:0 ₽
Материалы:0 ₽
Дни:0
1 038 650₽
Работа:606 852 ₽
Материалы:431 798 ₽
Дни:20
711 883₽
Работа:490 149 ₽
Материалы:221 734 ₽
Дни:15
513 490₽
Работа:221 734 ₽
Материалы:291 756 ₽
Дни:15
0₽
Работа:0 ₽
Материалы:0 ₽
Дни:0
443 469₽
Работа:210 064 ₽
Материалы:233 405 ₽
Дни:10
217 067₽
Работа:81 692 ₽
Материалы:135 375 ₽
Дни:7
0₽
Работа:0 ₽
Материалы:0 ₽
Дни:0
2 217 343₽
Работа:816 916 ₽
Материалы:1 400 427 ₽
Дни:50
0₽
Работа:0 ₽
Материалы:0 ₽
Дни:0
443 469₽
Работа:233 405 ₽
Материалы:210 064 ₽
Дни:10
Преимущества работы с нами
7 этапов оплаты
Независимый строительный надзор
Экологически чистые материалы
16 лет гарантии
Онлайн-кабинет с веб-камерой
Строители с опытом более 15 лет
Собственное производство








