Одноэтажный дом 262.31 м2 за руб.
Планировки
План первого этажа
- 1. Тамбур 5,66 м²
- 2. Котельная 8,57 м²
- 3. Санузел 4,39 м²
- 4. Гостиная-Кухня-Столовая 78,26 м²
- 5. Гараж 88,00 м²
- Общая площадь первый этаж 184,88 м²
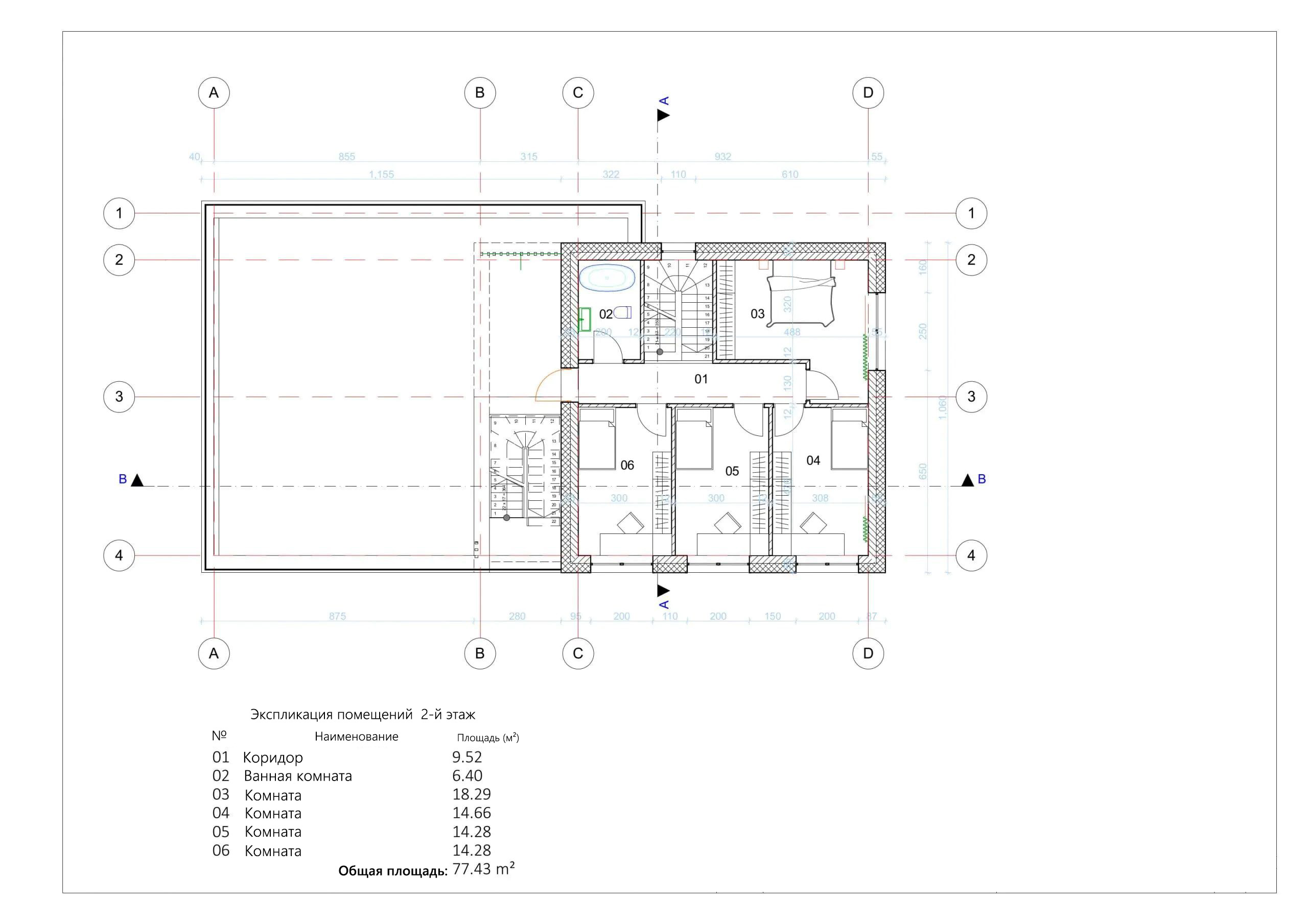
План второго этажа
- 1. Коридор 9,52 м²
- 2. Ванная комната 6,40 м²
- 3. Комната 18,29 м²
- 4. Комната 14,66 м²
- 5. Комната 14,28 м²
- 6. Комната 14,28 м²
- Общая площадь второй этаж 77,43 м²
Площади дома
| № п/п | Наименование | Ед. из. | Строительная площадь | Полезная площадь |
| 1 | 1 этаж | м2 | 227.83 | 184.88 |
| 2 | 2 этаж | м2 | 95.42 | 77.43 |
| 3 | Итого | м2 | 323.25 | 262.31 |
154 м2
Полезная
площадь
площадь
1 этаж
Этажей
26 м2
Террасы
и балконы
и балконы
1Без
гаража
гаража
4
Количество
спален
спален
2
Количество
санузлов
санузлов
Калькулятор опций
0₽
В ипотеку от 31 645 ₽/мес.
0₽
0 дней
1 133 910₽
Работа:490 746 ₽
Материалы:643 164 ₽
Дни:20
681 668₽
Работа:228 286 ₽
Материалы:453 382 ₽
Дни:2
1 148 719₽
Работа:461 128 ₽
Материалы:687 591 ₽
Дни:20
2 201 294₽
Работа:982 859 ₽
Материалы:1 218 435 ₽
Дни:30
3 692 897₽
Работа:1 357 867 ₽
Материалы:2 335 030 ₽
Дни:32
1 395 686₽
Работа:558 411 ₽
Материалы:837 275 ₽
Дни:20
8 757 785₽
Работа:3 992 493 ₽
Материалы:4 765 292 ₽
Дни:30
10 448 739₽
Работа:4 657 073 ₽
Материалы:5 791 666 ₽
Дни:40
364 528₽
Работа:91 132 ₽
Материалы:273 396 ₽
Дни:1
652 505₽
Работа:280 231 ₽
Материалы:372 274 ₽
Дни:8
1 045 057₽
Работа:346 302 ₽
Материалы:698 755 ₽
Дни:13
1 864 789₽
Работа:762 775 ₽
Материалы:1 102 014 ₽
Дни:18
1 830 158₽
Работа:1 146 668 ₽
Материалы:683 490 ₽
Дни:29
2 106 744₽
Работа:1 079 231 ₽
Материалы:1 027 513 ₽
Дни:23
3 243 388₽
Работа:1 990 323 ₽
Материалы:1 253 065 ₽
Дни:30
2 654 447₽
Работа:1 163 300 ₽
Материалы:1 491 147 ₽
Дни:45
4 962 365₽
Работа:1 094 951 ₽
Материалы:3 867 414 ₽
Дни:24
1 092 901₽
Работа:550 893 ₽
Материалы:542 008 ₽
Дни:15
596 914₽
Работа:321 240 ₽
Материалы:275 674 ₽
Дни:7
2 099 225₽
Работа:729 967 ₽
Материалы:1 369 258 ₽
Дни:7
2 741 934₽
Работа:876 006 ₽
Материалы:1 865 928 ₽
Дни:7
18 006 544₽
Работа:876 006 ₽
Материалы:17 130 538 ₽
Дни:7
9 746 795₽
Работа:1 094 951 ₽
Материалы:8 651 844 ₽
Дни:7
1 533 068₽
Работа:364 984 ₽
Материалы:1 168 084 ₽
Дни:7
2 013 106₽
Работа:1 033 893 ₽
Материалы:979 213 ₽
Дни:29
1 762 493₽
Работа:1 147 808 ₽
Материалы:614 685 ₽
Дни:29
2 013 106₽
Работа:1 033 893 ₽
Материалы:979 213 ₽
Дни:29
2 136 590₽
Работа:1 307 061 ₽
Материалы:829 529 ₽
Дни:23
2 730 999₽
Работа:919 750 ₽
Материалы:1 811 249 ₽
Дни:7
3 096 893₽
Работа:1 898 052 ₽
Материалы:1 198 841 ₽
Дни:25
1 120 241₽
Работа:578 233 ₽
Материалы:542 008 ₽
Дни:15
10 380 391₽
Работа:2 189 902 ₽
Материалы:8 190 489 ₽
Дни:15
1 242 129₽
Работа:584 156 ₽
Материалы:657 973 ₽
Дни:15
1 691 410₽
Работа:960 076 ₽
Материалы:731 334 ₽
Дни:19
1 785 276₽
Работа:1 147 808 ₽
Материалы:637 468 ₽
Дни:29
1 146 669₽
Работа:601 927 ₽
Материалы:544 742 ₽
Дни:15
2 106 744₽
Работа:1 079 231 ₽
Материалы:1 027 513 ₽
Дни:23
1 230 738₽
Работа:478 443 ₽
Материалы:752 295 ₽
Дни:15
1 576 583₽
Работа:1 149 630 ₽
Материалы:426 953 ₽
Дни:7
652 505₽
Работа:280 231 ₽
Материалы:372 274 ₽
Дни:8
1 045 057₽
Работа:346 302 ₽
Материалы:698 755 ₽
Дни:13
1 864 789₽
Работа:762 775 ₽
Материалы:1 102 014 ₽
Дни:18
766 509₽
Работа:480 249 ₽
Материалы:286 260 ₽
Дни:29
882 349₽
Работа:452 005 ₽
Материалы:430 344 ₽
Дни:23
1 358 399₽
Работа:833 589 ₽
Материалы:524 810 ₽
Дни:30
1 111 739₽
Работа:487 215 ₽
Материалы:624 524 ₽
Дни:45
2 078 344₽
Работа:458 589 ₽
Материалы:1 619 755 ₽
Дни:24
457 730₽
Работа:230 726 ₽
Материалы:227 004 ₽
Дни:15
250 000₽
Работа:134 542 ₽
Материалы:115 458 ₽
Дни:7
879 200₽
Работа:305 726 ₽
Материалы:573 474 ₽
Дни:7
1 148 380₽
Работа:366 890 ₽
Материалы:781 490 ₽
Дни:7
7 541 520₽
Работа:366 890 ₽
Материалы:7 174 630 ₽
Дни:7
2 002 008₽
Работа:458 589 ₽
Материалы:1 543 419 ₽
Дни:7
642 081₽
Работа:152 863 ₽
Материалы:489 218 ₽
Дни:10
843 131₽
Работа:433 016 ₽
Материалы:410 115 ₽
Дни:29
738 169₽
Работа:480 726 ₽
Материалы:257 443 ₽
Дни:29
843 131₽
Работа:433 016 ₽
Материалы:410 115 ₽
Дни:29
894 849₽
Работа:547 425 ₽
Материалы:347 424 ₽
Дни:23
1 143 800₽
Работа:385 211 ₽
Материалы:758 589 ₽
Дни:7
1 297 044₽
Работа:794 944 ₽
Материалы:502 100 ₽
Дни:25
469 180₽
Работа:242 176 ₽
Материалы:227 004 ₽
Дни:15
4 347 526₽
Работа:917 177 ₽
Материалы:3 430 349 ₽
Дни:15
520 230₽
Работа:244 657 ₽
Материалы:275 573 ₽
Дни:15
708 398₽
Работа:402 100 ₽
Материалы:306 298 ₽
Дни:19
747 711₽
Работа:480 726 ₽
Материалы:266 985 ₽
Дни:29
480 249₽
Работа:252 100 ₽
Материалы:228 149 ₽
Дни:15
882 349₽
Работа:452 005 ₽
Материалы:430 344 ₽
Дни:10
515 459₽
Работа:200 382 ₽
Материалы:315 077 ₽
Дни:10
660 306₽
Работа:481 489 ₽
Материалы:178 817 ₽
Дни:7
273 283₽
Работа:117 367 ₽
Материалы:155 916 ₽
Дни:8
437 691₽
Работа:145 038 ₽
Материалы:292 653 ₽
Дни:13
781 013₽
Работа:319 466 ₽
Материалы:461 547 ₽
Дни:18
2 786 588₽
Работа:948 456 ₽
Материалы:1 838 132 ₽
Дни:10
4 215 310₽
Работа:1 924 252 ₽
Материалы:2 291 058 ₽
Дни:10
3 884 957₽
Работа:1 699 384 ₽
Материалы:2 185 573 ₽
Дни:10
0₽
Работа:0 ₽
Материалы:0 ₽
Дни:0
517 800₽
Работа:166 567 ₽
Материалы:351 233 ₽
Дни:3
0₽
Работа:0 ₽
Материалы:0 ₽
Дни:0
15 500₽
Работа:5 500 ₽
Материалы:10 000 ₽
Дни:1
0₽
Работа:0 ₽
Материалы:0 ₽
Дни:0
0₽
Работа:0 ₽
Материалы:0 ₽
Дни:0
759 358₽
Работа:339 695 ₽
Материалы:419 663 ₽
Дни:7
0₽
Работа:0 ₽
Материалы:0 ₽
Дни:0
1 862 509₽
Работа:751 533 ₽
Материалы:1 110 976 ₽
Дни:7
657 793₽
Работа:395 969 ₽
Материалы:261 824 ₽
Дни:3
2 054 190₽
Работа:580 216 ₽
Материалы:1 473 974 ₽
Дни:5
2 138 879₽
Работа:580 216 ₽
Материалы:1 558 663 ₽
Дни:5
1 160 108₽
Работа:235 642 ₽
Материалы:924 466 ₽
Дни:3
2 948 919₽
Работа:258 592 ₽
Материалы:2 690 327 ₽
Дни:5
0₽
Работа:0 ₽
Материалы:0 ₽
Дни:0
1 419 347₽
Работа:451 566 ₽
Материалы:967 781 ₽
Дни:20
1 529 249₽
Работа:496 820 ₽
Материалы:1 032 429 ₽
Дни:20
1 109 682₽
Работа:388 534 ₽
Материалы:721 148 ₽
Дни:35
3 689 462₽
Работа:1 047 298 ₽
Материалы:2 642 164 ₽
Дни:45
1 933 299₽
Работа:971 983 ₽
Материалы:961 316 ₽
Дни:40
816 504₽
Работа:408 252 ₽
Материалы:408 252 ₽
Дни:20
2 513 515₽
Работа:1 047 298 ₽
Материалы:1 466 217 ₽
Дни:45
2 764 995₽
Работа:754 119 ₽
Материалы:2 010 876 ₽
Дни:20
1 528 926₽
Работа:628 379 ₽
Материалы:900 547 ₽
Дни:20
1 885 136₽
Работа:837 838 ₽
Материалы:1 047 298 ₽
Дни:20
2 627 295₽
Работа:1 131 017 ₽
Материалы:1 496 278 ₽
Дни:20
3 244 036₽
Работа:967 457 ₽
Материалы:2 276 579 ₽
Дни:20
2 306 317₽
Работа:837 838 ₽
Материалы:1 468 479 ₽
Дни:20
0₽
Работа:0 ₽
Материалы:0 ₽
Дни:0
372 000₽
Работа:58 500 ₽
Материалы:313 500 ₽
Дни:5
0₽
Работа:0 ₽
Материалы:0 ₽
Дни:0
166 500₽
Работа:58 500 ₽
Материалы:108 000 ₽
Дни:12
0₽
Работа:0 ₽
Материалы:0 ₽
Дни:0
979 670₽
Работа:398 703 ₽
Материалы:580 967 ₽
Дни:15
706 274₽
Работа:330 354 ₽
Материалы:375 920 ₽
Дни:10
0₽
Работа:0 ₽
Материалы:0 ₽
Дни:0
974 429₽
Работа:435 383 ₽
Материалы:539 046 ₽
Дни:5
0₽
Работа:0 ₽
Материалы:0 ₽
Дни:0
246 340₽
Работа:50 000 ₽
Материалы:196 340 ₽
Дни:7
0₽
Работа:0 ₽
Материалы:0 ₽
Дни:0
310 310₽
Работа:122 831 ₽
Материалы:187 479 ₽
Дни:11
524 295₽
Работа:193 944 ₽
Материалы:330 351 ₽
Дни:5
601 226₽
Работа:226 268 ₽
Материалы:374 958 ₽
Дни:11
867 899₽
Работа:290 916 ₽
Материалы:576 983 ₽
Дни:7
0₽
Работа:0 ₽
Материалы:0 ₽
Дни:0
419 697₽
Работа:249 195 ₽
Материалы:170 502 ₽
Дни:10
0₽
Работа:0 ₽
Материалы:0 ₽
Дни:0
348 872₽
Работа:191 486 ₽
Материалы:157 386 ₽
Дни:10
0₽
Работа:0 ₽
Материалы:0 ₽
Дни:0
306 903₽
Работа:146 894 ₽
Материалы:160 009 ₽
Дни:5
0₽
Работа:0 ₽
Материалы:0 ₽
Дни:0
381 000₽
Работа:75 000 ₽
Материалы:306 000 ₽
Дни:9
234 000₽
Работа:45 000 ₽
Материалы:189 000 ₽
Дни:5
0₽
Работа:0 ₽
Материалы:0 ₽
Дни:0
1 167 280₽
Работа:682 006 ₽
Материалы:485 274 ₽
Дни:20
800 046₽
Работа:550 851 ₽
Материалы:249 195 ₽
Дни:15
577 083₽
Работа:249 195 ₽
Материалы:327 888 ₽
Дни:15
0₽
Работа:0 ₽
Материалы:0 ₽
Дни:0
498 389₽
Работа:236 079 ₽
Материалы:262 310 ₽
Дни:10
243 949₽
Работа:91 809 ₽
Материалы:152 140 ₽
Дни:7
0₽
Работа:0 ₽
Материалы:0 ₽
Дни:0
2 491 945₽
Работа:918 085 ₽
Материалы:1 573 860 ₽
Дни:50
0₽
Работа:0 ₽
Материалы:0 ₽
Дни:0
498 389₽
Работа:262 310 ₽
Материалы:236 079 ₽
Дни:10
Преимущества работы с нами
7 этапов оплаты
Независимый строительный надзор
Экологически чистые материалы
16 лет гарантии
Онлайн-кабинет с веб-камерой
Строители с опытом более 15 лет
Собственное производство













