Одноэтажный дом 252.22 м2 за руб.

ID-146489

Стоимость дома 10261638 руб.

Планировки

План первого этажа

floor image
  • 1. Крыльцо 12,34 m²
  • 2. Прихожая 10,15 m²
  • 3. Холл 14,23 m²
  • 4. Кухня+столовая 40,33 m²
  • 5. Комната 11,96 m²
  • 6. Гараж 25,98 m²
  • 7. Котельная 9,41 m²
  • 8. Терраса 48,52 m²
  • Общая площадь 1 этаж 177,94 m²

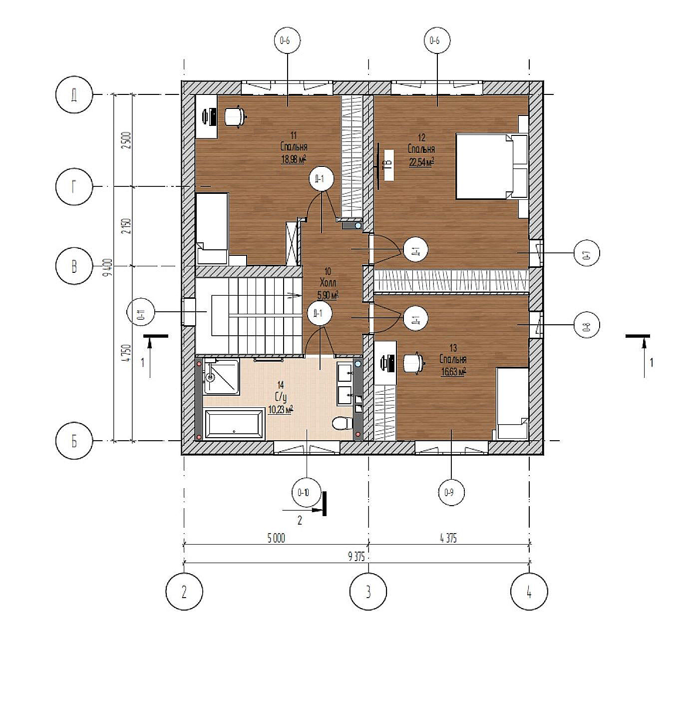
План второго этажа

floor image
  • 1. Холл 5,90 m²
  • 2. 1 Комната 18,98 m²
  • 3. 2 Комната 22,54 m²
  • 4. 3 Комната 16,63 m²
  • 5. Санузел 10,23 m²
  • Общая площадь 2 этаж 74,28 m²

Пояснительная записка

1. Общие данные

Проект cmpoumeльcmвa жилого дома был выполнен в coomвemcmвuu с заданием Заказчика.

Готовый проект жилого дома. Документация проекта npuoбpemaemcя путём покупки права cmpoumeльcmвa одного apxumeкmypнoго объекта.

Проект разработан на основанuu отдельного технического задания и рекомендацuu глав СНuП и СП;

  • СП 112.13330.2011 «Пожарная безопасность зданий и сооружений»;
  • СП 55.13330.2011 «Дома жилые одноквартирные»;
  • НПБ 106-95 «Индивидуальные жилые дома. Противопожарные требования»;
  • СП 54.13330.2011 "Здания жилые многоквартирные";
  • СП 131.13330.2012 «Строительная климатология»;
  • СП 50.13330.2012 «Тепловая защита зданий»;
  • СП 23-101-2004 «Проектирование тепловой защиты зданий»;

2. Архитектурно-планировочные решения

Архumекmурно-планuровочное решение разработано в coomвemcmвuu с СП 55.13330.2011 "Дома жилые однокварmuрные".

Чертежи марки АР рассматривать совместно с чертежами марки КР.

Степень огнестойкости здания -III.

За условную отметку 0,000 принята отметка чucmoго пола 1-го этажа.

Архumекmурно-планuровочные решения разработаны для следующих условий:

  • зимняя meмnepamypa наиболее холодной пяmuдневкu по клuмаmuческому району IIB, согласно СП 131.13330.2012 -28 °С;
  • наиболее холодных суток -32 °С;
  • нормаmuвная снеговая нагрузка по III району согласно СП 20.13330.2011 -180кгс/ кв. м.(1,80кПа);
  • нормаmuвный скоростной напор веmра по III району согласно СП 20.13330.2011 -23кгс/ кв.м. (О,23кПа);
  • зона влажносmu нормальная;

Проекmuруемое здание представляет собой двухэтажный жилой дом. Пригодно для всесезонного проживания.

Архumекmурно-планuровочных решений, связанных с обеспечением маломобильных групп населения, не предусмотрено.

Благоусmроuсmво прилегающей meppumopuu не разрабатывается.

3. Конструктивное решение

Производство сmроumельно-ремонmных работ вecmu в coomвemcmвuu с mребованuямu СП 48.13330.2011 "Организация строительства".

СП 49.13330.2012 "Безопасность mpyдa в cmpoumeльcmвe".

Прu защumе сmроumельных конструкций коррозuu руководствоваться СП 70.13330.2012. "Защumа сmроumельных конструкций и сооружений от коррозuu".

Прu производстве работ в зимнее время следует соблюдать СП 70.13330.2012.

  • Фундамент - железобетонный с монолитной плитой поверх ростверка.
  • Перекрытия цоколя - монолитная железобетонная плита, толщиной 200 мм.
  • Стены наружные - блок газобетонный автоклавного твердения D400, толщиной 375 мм. Отделку стен вести с учетом требований СП 71.13330.2017 "Изоляционные и отделочные покрытия" и настоящих рекомендаций производителя.
  • Стены внутренние несущие - блок газобетонный автоклавного твердения D400, толщиной 300 мм.
  • Перегородки внутренние - блок газобетонный автоклавного твердения D600, толщиной 100 мм.
  • Перекрытие 1-го этажа - сборное железобетонное, толщиной 220 мм.
  • Перекрытие 2-го этажа - сборное железобетонное, толщиной 220 мм.
  • Кровля - плоская наплавляемая.

4. Охрана окружающей среды

Прu органuзацuu cmpoumeльcmвa и эксплуаmацuu жилого дома предусмаmрuваеmся следующие меропрuяmuя по охране окружающей среды:

  • сброс хозяuсmвенно-быmовых omxoдoв и стоков осуществляется в гepмemuчecкuй cenmuк споследующем вывозом по договору с коммунальными органuзацuямu;
  • уmuлuзацuя сmроumельного мусора осуществляется на разрешенные свалки;

5. Обеспечение пожарной безопасности

  • Все деревянные элементы должны быть подвергнуты огнезащumной обработке в coomвemcmвuu с mребованuямu СНиП 21-01-97 u "Пожарная безопасность зданий и сооружений".
  • Элекmроусmановкu монmuроваmь и подключать согласно требованиям "Правил ycmpoйcmвa элекmроусmановок (ПУЭ)" u государственных стандартов на элекmро усmановкu зданий, а также оборудовать их ycmpoйcmвaмu защumного отключения (УЗО).
  • Электропроводку монmuруемую по поверхносmu сmроumельных конструкций, выполнumь в кабель-каналах,не распространяющих горение.

Площади дома

№ п/п Наименование Ед. из. Строительная площадь Полезная площадь
1 1 этаж м2 219.28 177.94
2 2 этаж м2 91.54 74.28
3 Итого м2 310.82 252.22
154 м2 Полезная
площадь
1 этаж Этажей
26 м2 Террасы
и балконы
1Без
гаража
4 Количество
спален
2 Количество
санузлов

Калькулятор опций

0

В ипотеку от 31 645 ₽/мес.

Фундамент
1 091 356
Работа:472 329
Материалы:619 027
Дни:20
656 086
Работа:219 719
Материалы:436 367
Дни:2
1 105 610
Работа:443 823
Материалы:661 787
Дни:20
2 118 683
Работа:945 974
Материалы:1 172 709
Дни:30
3 554 310
Работа:1 306 909
Материалы:2 247 401
Дни:32
1 343 309
Работа:537 455
Материалы:805 854
Дни:20
8 429 123
Работа:3 842 663
Материалы:4 586 460
Дни:30
10 056 619
Работа:4 482 302
Материалы:5 574 317
Дни:40
350 848
Работа:87 712
Материалы:263 136
Дни:1
Перекрытие цоколя
628 018
Работа:269 714
Материалы:358 304
Дни:8
1 005 838
Работа:333 306
Материалы:672 532
Дни:13
1 794 806
Работа:734 149
Материалы:1 060 657
Дни:18
Стены 1 этаж (несущие)
1 761 476
Работа:1 103 636
Материалы:657 840
Дни:29
2 027 682
Работа:1 038 729
Материалы:988 953
Дни:23
3 121 670
Работа:1 915 630
Материалы:1 206 040
Дни:30
2 554 832
Работа:1 119 644
Материалы:1 435 188
Дни:45
4 776 138
Работа:1 053 860
Материалы:3 722 278
Дни:24
1 051 886
Работа:530 219
Материалы:521 667
Дни:15
574 514
Работа:309 185
Материалы:265 329
Дни:7
2 020 446
Работа:702 573
Материалы:1 317 873
Дни:7
2 639 035
Работа:843 132
Материалы:1 795 903
Дни:7
17 330 795
Работа:843 132
Материалы:16 487 663
Дни:7
9 381 018
Работа:1 053 860
Материалы:8 327 158
Дни:7
1 475 536
Работа:351 287
Материалы:1 124 249
Дни:7
1 937 558
Работа:995 093
Материалы:942 465
Дни:29
1 696 350
Работа:1 104 733
Материалы:591 617
Дни:29
1 937 558
Работа:995 093
Материалы:942 465
Дни:29
2 056 407
Работа:1 258 009
Материалы:798 398
Дни:23
2 628 509
Работа:885 233
Материалы:1 743 276
Дни:7
2 980 673
Работа:1 826 822
Материалы:1 153 851
Дни:25
1 078 200
Работа:556 533
Материалы:521 667
Дни:15
9 990 835
Работа:2 107 719
Материалы:7 883 116
Дни:15
1 195 515
Работа:562 234
Материалы:633 281
Дни:15
1 627 935
Работа:924 046
Материалы:703 889
Дни:19
1 718 278
Работа:1 104 733
Материалы:613 545
Дни:29
1 103 636
Работа:579 338
Материалы:524 298
Дни:15
2 027 682
Работа:1 038 729
Материалы:988 953
Дни:23
1 184 551
Работа:460 488
Материалы:724 063
Дни:15
1 517 418
Работа:1 106 487
Материалы:410 931
Дни:7
Перекрытие первого этажа
628 018
Работа:269 714
Материалы:358 304
Дни:8
1 005 838
Работа:333 306
Материалы:672 532
Дни:13
1 794 806
Работа:734 149
Материалы:1 060 657
Дни:18
Стены 2 этаж (несущие)
735 341
Работа:460 721
Материалы:274 620
Дни:29
846 470
Работа:433 625
Материалы:412 845
Дни:23
1 303 163
Работа:799 693
Материалы:503 470
Дни:30
1 066 532
Работа:467 403
Материалы:599 129
Дни:45
1 993 833
Работа:439 941
Материалы:1 553 892
Дни:24
439 118
Работа:221 344
Материалы:217 774
Дни:15
239 834
Работа:129 071
Материалы:110 763
Дни:7
843 449
Работа:293 294
Материалы:550 155
Дни:7
1 101 684
Работа:351 971
Материалы:749 713
Дни:7
7 234 864
Работа:351 971
Материалы:6 882 893
Дни:7
1 920 601
Работа:439 941
Материалы:1 480 660
Дни:7
615 973
Работа:146 647
Материалы:469 326
Дни:10
808 848
Работа:415 409
Материалы:393 439
Дни:29
708 154
Работа:461 179
Материалы:246 975
Дни:29
808 848
Работа:415 409
Материалы:393 439
Дни:29
858 462
Работа:525 165
Материалы:333 297
Дни:23
1 097 290
Работа:369 547
Материалы:727 743
Дни:7
1 244 303
Работа:762 620
Материалы:481 683
Дни:25
450 103
Работа:232 329
Материалы:217 774
Дни:15
4 170 745
Работа:879 882
Материалы:3 290 863
Дни:15
499 077
Работа:234 709
Материалы:264 368
Дни:15
679 593
Работа:385 750
Материалы:293 843
Дни:19
717 308
Работа:461 179
Материалы:256 129
Дни:29
460 721
Работа:241 849
Материалы:218 872
Дни:15
846 470
Работа:433 625
Материалы:412 845
Дни:10
494 499
Работа:192 234
Материалы:302 265
Дни:10
633 457
Работа:461 911
Материалы:171 546
Дни:7
Перекрытие второго этажа
262 170
Работа:112 594
Материалы:149 576
Дни:8
419 894
Работа:139 141
Материалы:280 753
Дни:13
749 255
Работа:306 476
Материалы:442 779
Дни:18
Плоская крыша
2 682 014
Работа:912 863
Материалы:1 769 151
Дни:10
4 057 119
Работа:1 852 039
Материалы:2 205 080
Дни:10
3 739 163
Работа:1 635 610
Материалы:2 103 553
Дни:10
0
Работа:0
Материалы:0
Дни:0
Окна
497 883
Работа:160 160
Материалы:337 723
Дни:3
0
Работа:0
Материалы:0
Дни:0
Двери входные
15 500
Работа:5 500
Материалы:10 000
Дни:1
0
Работа:0
Материалы:0
Дни:0
Водосточная система
0
Работа:0
Материалы:0
Дни:0
730 860
Работа:326 946
Материалы:403 914
Дни:7
Дополнительное утепление наружных стен
0
Работа:0
Материалы:0
Дни:0
1 790 887
Работа:722 633
Материалы:1 068 254
Дни:7
632 498
Работа:380 742
Материалы:251 756
Дни:3
1 975 198
Работа:557 904
Материалы:1 417 294
Дни:5
2 056 630
Работа:557 904
Материалы:1 498 726
Дни:5
1 115 497
Работа:226 580
Материалы:888 917
Дни:3
2 835 520
Работа:248 648
Материалы:2 586 872
Дни:5
Наружная отделка фасада
0
Работа:0
Материалы:0
Дни:0
1 364 767
Работа:434 202
Материалы:930 565
Дни:20
1 470 442
Работа:477 715
Материалы:992 727
Дни:20
1 067 011
Работа:373 594
Материалы:693 417
Дни:35
3 547 585
Работа:1 007 024
Материалы:2 540 561
Дни:45
1 858 955
Работа:934 606
Материалы:924 349
Дни:40
785 106
Работа:392 553
Материалы:392 553
Дни:20
2 416 858
Работа:1 007 024
Материалы:1 409 834
Дни:45
2 658 669
Работа:725 120
Материалы:1 933 549
Дни:20
1 470 132
Работа:604 215
Материалы:865 917
Дни:20
1 812 644
Работа:805 620
Материалы:1 007 024
Дни:20
2 526 263
Работа:1 087 524
Материалы:1 438 739
Дни:20
3 119 289
Работа:930 254
Материалы:2 189 035
Дни:20
2 217 630
Работа:805 620
Материалы:1 412 010
Дни:20
Террасы, крыльца, навесы
0
Работа:0
Материалы:0
Дни:0
372 000
Работа:58 500
Материалы:313 500
Дни:5
Балконы
0
Работа:0
Материалы:0
Дни:0
166 500
Работа:58 500
Материалы:108 000
Дни:12
Отмостка
0
Работа:0
Материалы:0
Дни:0
942 904
Работа:383 740
Материалы:559 164
Дни:15
679 768
Работа:317 956
Материалы:361 812
Дни:10
Дренаж вокруг дома
0
Работа:0
Материалы:0
Дни:0
937 860
Работа:419 044
Материалы:518 816
Дни:5
Автономная канализация (септики)
0
Работа:0
Материалы:0
Дни:0
246 340
Работа:50 000
Материалы:196 340
Дни:7
Внутренние (не несущие) перегородки
0
Работа:0
Материалы:0
Дни:0
298 378
Работа:118 108
Материалы:180 270
Дни:11
504 134
Работа:186 486
Материалы:317 648
Дни:5
578 107
Работа:217 567
Материалы:360 540
Дни:11
834 525
Работа:279 729
Материалы:554 796
Дни:7
Электрика
0
Работа:0
Материалы:0
Дни:0
403 552
Работа:239 609
Материалы:163 943
Дни:10
Сантехника, канализация в доме
0
Работа:0
Материалы:0
Дни:0
335 453
Работа:184 121
Материалы:151 332
Дни:10
Отопление
0
Работа:0
Материалы:0
Дни:0
295 097
Работа:141 243
Материалы:153 854
Дни:5
Теплые полы
0
Работа:0
Материалы:0
Дни:0
381 000
Работа:75 000
Материалы:306 000
Дни:9
234 000
Работа:45 000
Материалы:189 000
Дни:5
Черновая отделка стен
0
Работа:0
Материалы:0
Дни:0
1 122 379
Работа:655 772
Материалы:466 607
Дни:20
769 271
Работа:529 662
Материалы:239 609
Дни:15
554 884
Работа:239 609
Материалы:315 275
Дни:15
Черновая отделка полов
0
Работа:0
Материалы:0
Дни:0
479 218
Работа:226 998
Материалы:252 220
Дни:10
234 565
Работа:88 277
Материалы:146 288
Дни:7
Чистовая отделка стен и полов
0
Работа:0
Материалы:0
Дни:0
2 396 090
Работа:882 770
Материалы:1 513 320
Дни:50
Отделка потолка
0
Работа:0
Материалы:0
Дни:0
479 218
Работа:252 220
Материалы:226 998
Дни:10

Преимущества работы с нами

icon

7 этапов оплаты

icon

Независимый строительный надзор

icon

Экологически чистые материалы

icon

16 лет гарантии

icon

Онлайн-кабинет с веб-камерой

icon

Строители с опытом более 15 лет

icon

Собственное производство

Обзор дома ВС-129: современный одноэтажный коттедж площадью 251 м²

В современном строительстве частных домов все большее внимание уделяется практичности, комфорту и функциональности жилых помещений. Дом ВС-129 идеально сочетает в себе эти три аспекта, предлагая просторное и удобное пространство для жизни на одном этаже. С общей полезной площадью в 251 квадратный метр, этот проект предназначен для семей, которые ценят комфорт и качественное выполнение каждого строительного этапа.

Одноэтажный формат дома давно полюбился и доказал свою эффективность: отсутствие лестниц облегчает передвижение по дому, упрощая как повседневную жизнь, так и уход за помещениями. Дом ВС-129 отличается оптимальным сочетанием жилых и функциональных зон, а его планировка ориентирована на максимально комфортное использование пространства каждым членом семьи.

Преимущества одноэтажной архитектуры в доме ВС-129

Одноэтажный дом традиционно ассоциируется с удобством и практичностью, особенно для семей с детьми, пожилыми людьми или лицами с ограниченными физическими возможностями. Дом ВС-129 полностью покрывает эти потребности, предлагая просторные комнаты, грамотное зонирование и стильный внешний вид.

Одним из ключевых преимуществ одноэтажного дома является отсутствие лестниц, что значительно снижает риски травматизма, упрощает уборку и облегчает переезд по дому. Помимо этого, одноэтажные коттеджи часто имеют более эффективную систему отопления и вентиляции, что способствует снижению затрат на коммунальные услуги. Также это экономит пространство на участке, позволяя вместить дополнительные хозяйственные постройки или оборудовать зону для отдыха на открытом воздухе.

Особенности планировки и функциональные зоны

Дом ВС-129 спроектирован с четырьмя отдельными спальнями, что обеспечивает личное пространство каждому члену семьи. Наличие двух санузлов решает проблемы бытового комфорта и экономит время по утрам и вечерам, когда дом полон жителей. Современные системы сантехники и продуманная логистика коммуникаций делают дом максимально удобным для проживания.

Пространство жилых комнат

Четыре спальни в доме представляют собой достаточно большие помещения, пригодные для организации спальной, кабинета или гостевой комнаты. Благодаря грамотной планировке, в дом можно внести индивидуальные дизайнерские решения, комбинируя функциональность и эстетику. Просчитанная до мелочей логистика комнат и общих зон позволяет семье чувствовать себя максимально уютно.

Экономическая составляющая: стоимость дома и что в нее входит

Цена дома ВС-129 составляет 10 209 608 рублей. Эта сумма охватывает современное строительство под ключ с использованием качественных материалов и выполнением всех необходимых работ. При этом стоит понимать, что стоимость полностью отражает высокий уровень комфорта и энергоэффективности жилого комплекса.

Когда речь заходит о постройке дома, важно оценивать не только первоначальные затраты на материалы и услуги строителей, но и сделать расчет дальнейших расходов на эксплуатацию. Высокая энергоэффективность и правильное использование инженерных систем позволяют существенно сократить коммунальные платежи и затраты на ремонт. Дом ВС-129 разработан так, чтобы стать надежным долгосрочным вложением и подарить семье уют на многие годы.

Факторы, влиящие на цену

Стоимость дома складывается из нескольких ключевых факторов:

  • Площадь постройки — 251 м² обеспечивает достаточно пространства для комфортной жизни;
  • Высококачественные строительные материалы, обеспечивающие тепло- и звукоизоляцию;
  • Современные системы коммуникаций и инженерное оборудование;
  • Работа опытных специалистов с использованием рекомендованных технологий;
  • Грамотное планировочное решение, минимизирующее потери пространства.

Технические характеристики и планировка дома ВС-129

Дом ВС-129 – это одноэтажный коттедж с четырьмя спальнями и двумя санузлами, общей полезной площадью 251 квадратный метр. Такой масштаб строительства позволяет обеспечить всем бытовым зонам необходимое пространство без ощущения тесноты и перегруженности. Особое внимание уделено соблюдению эргономики всех помещений.

Количество этажей и планировка

Планировка одноэтажного дома во многом влияет на комфорт проживания. В доме ВС-129 все комнаты расположены на одном уровне, что облегчает коммуникацию между членами семьи и создание общих зон для отдыха или работы. Наличие двух санузлов улучшает бытовые условия и снижает утренние очереди, что важно для больших семей.

Комнаты и зоны

Комната Количество Назначение
Спальни 4 Основные жилые комнаты для отдыха
Санузлы 2 Обеспечение гигиенических потребностей семьи
Гостиная/столовая 1 Общая зона для отдыха и приема гостей
Кухня 1 Приготовление и потребление пищи
Хозяйственные помещения 1-2 Кладовые, котельная и прочие технические зоны

Архитектура и стиль дома ВС-129

Архитектурное решение дома ВС-129 отражает современные тенденции в частном домостроении — сочетание лаконичности, функциональности и эстетической привлекательности. Несмотря на свою внушительную площадь, дом не выглядит громоздким и легко вписывается в ландшафт любого загородного участка.

Экстерьер дома выполнен с учетом минимализма, что придает ему стильный и современный вид. При разработке проекта предусмотрены большие окна, которые обеспечивают обилие естественного света, а также позволяют визуально расширить внутреннее пространство. Более того, компактность формы и одноэтажное исполнение способствует экономии при эксплуатации и обслуживании.

Варианты оформления и материалы фасада

Выбор внешних отделочных материалов в проекте ВС-129 учитывает как эстетические, так и практические требования. Варианты отделки включают:

  • Декоративная штукатурка с водоотталкивающей обработкой;
  • Фасадные панели из дерева или композитных материалов;
  • Кирпичная облицовка, придающая дому классическую солидность;
  • Комбинированные варианты, сочетающие несколько типов материалов для создания уникального визуального образа.

Инженерные коммуникации и энергоэффективность

Планируя строительство дома площадью 251 м², крайне важно уделить внимание качественной инженерной основе. Дом ВС-129 оснащен современными системами отопления, водоснабжения и вентиляции, обеспечивающими комфортные условия при любых климатических условиях.

Энергоэффективность — один из ключевых параметров в проекте. Использование современных теплоизоляционных материалов и энергоэкономичных систем позволяет существенно снизить зимние теплопотери и поддерживать оптимальный микроклимат. Это влияет не только на комфорт проживания, но и на общие расходы семьи при эксплуатации здания.

Системы отопления и вентиляции

Для обогрева дома применяются современные технологии, работающие на газовом или электрическом котле, что обеспечивает равномерное и быстрое нагревание воздуха во всех помещениях. Вентиляционные системы с рекуперацией позволяют сохранять тепло и обеспечивать приток свежего воздуха без излишних потерь энергии.

Водоснабжение и канализация

Дом оборудован современными системами управления водоснабжением и канализацией, соответствующими нормам и стандартам. Продуманная разводка труб и удобное расположение санузлов гарантируют удобство и надежность в повседневной эксплуатации.

Обзор стоимости строительства и экономия при выборе проекта ВС-129

Цена в 10 209 608 рублей делает этот проект достаточно доступным среди домов площадью свыше 200 м². В эту стоимость входят как материалы, так и полный комплекс строительно-монтажных работ, включая отделку и установку инженерных систем. Важно помнить, что при грамотном подходе такой дом — это не только комфортное жильё для семьи, но и выгодное капиталовложение на долгие годы.

Экономия достигается за счет:

  • Одноэтажной формы, снижающей затраты на возведение несущих конструкций и отделочные работы;
  • Оптимизированных инженерных решений, минимизирующих потери энергии;
  • Рационального использования пространства без лишних коридоров и технических помещений;
  • Возможности применения разнообразных бюджетных и премиальных материалов в зависимости от предпочтений заказчика.

Сравнительный анализ стоимости

Проект Площадь, м² Этажность Стоимость, руб. Стоимость за м², руб.
ВС-129 251 1 этаж 10 209 608 ~40 665
Типовой двухэтажный дом 200 м² 200 2 этажа 9 800 000 49 000
Одноэтажный дом 220 м² 220 1 этаж 9 500 000 43 182

Из таблицы видно, что дом ВС-129 предлагает хороший баланс цены и площади, а также преимущество одноэтажного строительства, которое имеет свои особенности и преимущества, как для строительства, так и для жизни.

Жизнь и комфорт в доме ВС-129: что ожидать

Жизнь в доме площадью 251 м² в одноэтажном исполнении с четырьмя спальнями и двумя санузлами — это высокий уровень комфорта, позволяющий полной семье найти личное пространство и одновременно наслаждаться общением. Современные планировочные решения отразят все повседневные потребности каждого жителя и позволят реализовать идеи по оформлению дома.

Особая роль уделена зонам отдыха и общим помещениям, где семья будет проводить свободное время, организовывать семейные вечера или принимать гостей. Просторные комнаты, качественная отделка и продуманный микроклимат превращают дом ВС-129 не просто в жильё, а в настоящий дом мечты.

Гибкость использования жилого пространства

  • Четыре спальные комнаты могут быть перестроены под кабинет, гостевую или игровую комнату;
  • Два санузла позволяют избежать утренних и вечерних очередей;
  • Просторная кухня-гостиная служит центром семейной жизни и местом для приятных застолий;
  • Дополнительные помещения можно адаптировать под нужды хозяйства: гардеробные, кладовые, мастерские.

Выводы и рекомендации по выбору проекта ВС-129

Дом ВС-129 — отличное решение для тех, кто ищет просторное, функциональное и комфортное жилье в одноэтажном исполнении. Площадь в 251 м² позволяет грамотно организовать пространство для большой семьи или семьи с гостями, а стоимость проекта делает его доступным по сравнению с конкурентными вариантами.

При выборе данного проекта важно учитывать особенности участка, а также собственные предпочтения в области дизайна и использования зон. Но благодаря универсальному планировочному решению, дом сможет адаптироваться под самые разные пожелания жильцов и стать идеальным местом для жизни.