Одноэтажный дом 15x17 - 235.9 м2 за руб.
Планировки
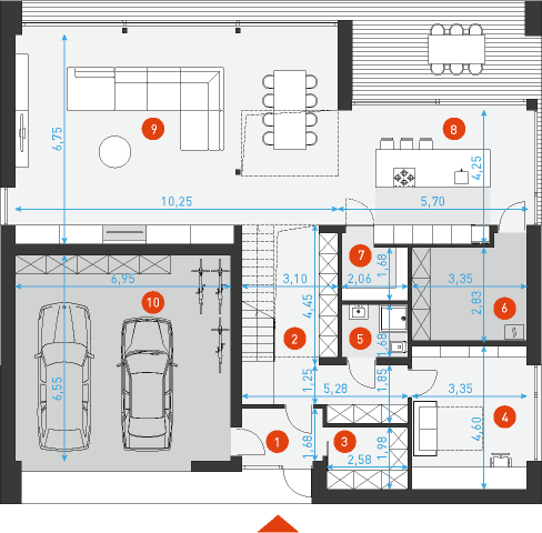
План первого этажа
- 1. Тамбур 4,2 м²
- 2. Коридор 17,2 м²
- 3. Гардероб 5,0 м²
- 4. Кабинет 16,3 м²
- 5. Ванная комната 3,4 м²
- 6. Котельная 11,1 м²
- 7. Кладовая 3,9 м²
- 8. Кухня-столовая 42,2 м²
- 9. Гостиная 47,4 м²
- Гараж 44,5 м²
План второго этажа
- 1. Коридор 14,5 м²
- 2. Комната 20,7 м²
- 3. Гардероб 10,4 м²
- 4. Ванная комната 8,6 м²
- 5. Прачечная 4,1 м²
- 6. Комната 16,8 м²
- 7. Комната 16,8 м²
- Ванная комната 4,4 м²
Площади дома
| № п/п | Наименование | Ед. из. | Строительная площадь | Полезная площадь |
| 1 | 1 этаж | м2 | 172.03 | 139.6 |
| 2 | 2 этаж | м2 | 118.67 | 96.3 |
| 3 | Итого | м2 | 290.7 | 235.9 |
154 м2
Полезная
площадь
площадь
15 x 17 м
Размеры
1 этаж
Этажей
26 м2
Террасы
и балконы
и балконы
1Без
гаража
гаража
4
Количество
спален
спален
3
Количество
санузлов
санузлов
Калькулятор опций
0₽
В ипотеку от 27 466 ₽/мес.
0₽
0 дней
stdClass Object
(
[id] => 1
[attribute_id] => 1
[name] => Ленточный монолитный ж/б
[material_modifier] => 1
[work_modifier] => 1
[options] => Array
(
[0] => размер 200 х 700 мм
[1] => размер 300 х 900 мм
[2] => размер 400 х 1 000 мм
[3] => размер 500 х 1 100 мм
[4] => размер 600 х 1 200 мм
)
[days] => [20,21,22,25,30]
[material_price] => [2823,3630,4475,5210,12047]
[work_price] => [2154,2826,3731,4577,5293]
[image] => https://akademik-stroy.ru/wp-content/uploads/materials/lentochnyj-monolitnyj-zh-b.jpg
[area_modifier] => 172.03
[parent_name] => Фундамент
[parent_id] => 1
[material_sum] => 611907
[work_sum] => 389080
[total_sum] => 1000987
[total_days] => 20
[display_material_sum] => 611 907
[display_work_sum] => 389 080
[display_total_sum] => 1 000 987
)
1
1 000 987₽
Работа:389 080 ₽
Материалы:611 907 ₽
Дни:20
stdClass Object
(
[id] => 2
[attribute_id] => 1
[name] => Забивные Ж/Б сваи
[material_modifier] => 1
[work_modifier] => 1
[options] => Array
(
[0] => 150х150х3000мм
[1] => 150х150х4000мм
[2] => 200х200х3000мм
[3] => 200х200х4000мм
[4] => 200х200х5000мм
[5] => 200х200х6000мм
)
[days] => [2,2,2,2,2,2]
[material_price] => [1990,2850,3255,4360,5120,6837]
[work_price] => [1002,1185,1336,1438,1574,1839]
[image] => https://akademik-stroy.ru/wp-content/uploads/materials/zabivnye-zh-b-svai.png
[area_modifier] => 172.03
[parent_name] => Фундамент
[parent_id] => 1
[material_sum] => 431348
[work_sum] => 180993
[total_sum] => 612341
[total_days] => 2
[display_material_sum] => 431 348
[display_work_sum] => 180 993
[display_total_sum] => 612 341
)
1
612 341₽
Работа:180 993 ₽
Материалы:431 348 ₽
Дни:2
stdClass Object
(
[id] => 71
[attribute_id] => 1
[name] => Свайно-ростверковый ж/б
[material_modifier] => 1
[work_modifier] => 1
[options] => Array
(
[0] => ростверк 200х300 мм
[1] => ростверк 300х600 мм
[2] => ростверк 400х900 мм
[3] => ростверк 500х1200 мм
)
[days] => [20,23,25,27]
[material_price] => [3018,3474,7109,9792]
[work_price] => [2024,3012,5635,7022]
[image] => https://akademik-stroy.ru/wp-content/uploads/materials/svajno-rostverkovyj-monolitnyj-zh-b-3.png
[area_modifier] => 172.03
[parent_name] => Фундамент
[parent_id] => 1
[material_sum] => 654175
[work_sum] => 365598
[total_sum] => 1019773
[total_days] => 20
[display_material_sum] => 654 175
[display_work_sum] => 365 598
[display_total_sum] => 1 019 773
)
1
1 019 773₽
Работа:365 598 ₽
Материалы:654 175 ₽
Дни:20
stdClass Object
(
[id] => 72
[attribute_id] => 1
[name] => Монолитная ж/б плита
[material_modifier] => 1
[work_modifier] => 1
[options] => Array
(
[0] => 200 мм
[1] => 300 мм
[2] => 400 мм
[3] => 500 мм
[4] => 600 мм
)
[days] => [30,33,35,37,40]
[material_price] => [5348,8555,12788,14388,15189]
[work_price] => [4314,4881,7037,8061,10230]
[image] => https://akademik-stroy.ru/wp-content/uploads/materials/monolitnaya-zhb-plita.png
[area_modifier] => 172.03
[parent_name] => Фундамент
[parent_id] => 1
[material_sum] => 1159221
[work_sum] => 779244
[total_sum] => 1938465
[total_days] => 30
[display_material_sum] => 1 159 221
[display_work_sum] => 779 244
[display_total_sum] => 1 938 465
)
1
1 938 465₽
Работа:779 244 ₽
Материалы:1 159 221 ₽
Дни:30
stdClass Object
(
[id] => 73
[attribute_id] => 1
[name] => Утепленная шведская плита
[material_modifier] => 1
[work_modifier] => 1
[options] => Array
(
[0] => 200 мм
[1] => 300 мм
[2] => 400 мм
[3] => 500 мм
[4] => 600 мм
)
[days] => [32,37,39,42,45]
[material_price] => [10249,12692,13760,14936,16230]
[work_price] => [5960,7337,8072,8878,9765]
[image] => https://akademik-stroy.ru/wp-content/uploads/materials/uteplennaya-shvedskaya-plita.jpg
[area_modifier] => 172.03
[parent_name] => Фундамент
[parent_id] => 1
[material_sum] => 2221551
[work_sum] => 1076564
[total_sum] => 3298115
[total_days] => 32
[display_material_sum] => 2 221 551
[display_work_sum] => 1 076 564
[display_total_sum] => 3 298 115
)
1
3 298 115₽
Работа:1 076 564 ₽
Материалы:2 221 551 ₽
Дни:32
stdClass Object
(
[id] => 75
[attribute_id] => 1
[name] => Ленточный из ФБС
[material_modifier] => 1
[work_modifier] => 1
[options] => Array
(
[0] => толщ. 300 мм
[1] => толщ. 400 мм
[2] => толщ. 500 мм
[3] => толщ. 600 мм
)
[days] => [20,20,20,20]
[material_price] => [3675,4902,6126,7350]
[work_price] => [2451,3264,4083,4902]
[image] => https://akademik-stroy.ru/wp-content/uploads/materials/lentochnyj-iz-fbs.png
[area_modifier] => 172.03
[parent_name] => Фундамент
[parent_id] => 1
[material_sum] => 796585
[work_sum] => 442728
[total_sum] => 1239313
[total_days] => 20
[display_material_sum] => 796 585
[display_work_sum] => 442 728
[display_total_sum] => 1 239 313
)
1
1 239 313₽
Работа:442 728 ₽
Материалы:796 585 ₽
Дни:20
stdClass Object
(
[id] => 76
[attribute_id] => 1
[name] => Цокольный этаж из ФБС
[material_modifier] => 1
[work_modifier] => 1
[options] => Array
(
[0] => толщ. 300 мм
[1] => толщ. 400 мм
[2] => толщ. 500 мм
[3] => толщ. 600 мм
)
[days] => [30,32,34,36]
[material_price] => [20916,23299,26680,29060]
[work_price] => [17524,18700,19873,21046]
[image] => https://akademik-stroy.ru/wp-content/uploads/materials/cokolnyj-ehtazh-iz-fbs.jpg
[area_modifier] => 172.03
[parent_name] => Фундамент
[parent_id] => 1
[material_sum] => 4533706
[work_sum] => 3165386
[total_sum] => 7699092
[total_days] => 30
[display_material_sum] => 4 533 706
[display_work_sum] => 3 165 386
[display_total_sum] => 7 699 092
)
1
7 699 092₽
Работа:3 165 386 ₽
Материалы:4 533 706 ₽
Дни:30
stdClass Object
(
[id] => 77
[attribute_id] => 1
[name] => Цокольный этаж монолитный ж/б
[material_modifier] => 1
[work_modifier] => 1
[options] => Array
(
[0] => толщ. 200 мм
[1] => толщ. 300 мм
[2] => толщ. 400 мм
[3] => толщ. 500 мм
[4] => толщ. 600 мм
)
[days] => [40,42,44,46,48]
[material_price] => [25421,29148,32275,35602,37326]
[work_price] => [20441,21907,23375,24841,26306]
[image] => https://akademik-stroy.ru/wp-content/uploads/materials/cokolnyj-etazh-zh-b.jpg
[area_modifier] => 172.03
[parent_name] => Фундамент
[parent_id] => 1
[material_sum] => 5510200
[work_sum] => 3692288
[total_sum] => 9202488
[total_days] => 40
[display_material_sum] => 5 510 200
[display_work_sum] => 3 692 288
[display_total_sum] => 9 202 488
)
1
9 202 488₽
Работа:3 692 288 ₽
Материалы:5 510 200 ₽
Дни:40
stdClass Object
(
[id] => 191
[attribute_id] => 1
[name] => Винтовые сваи
[material_modifier] => 1
[work_modifier] => 1
[options] => Array
(
[0] => 57х200мм
[1] => 76х250мм
[2] => 108х300мм
[3] => 133х350мм
)
[days] => [1,1,2,2]
[material_price] => [1200,1300,1450,1600]
[work_price] => [400,600,900,1100]
[image] => https://akademik-stroy.ru/wp-content/uploads/materials/vintovye-svai.png
[area_modifier] => 172.03
[parent_name] => Фундамент
[parent_id] => 1
[material_sum] => 260109
[work_sum] => 72253
[total_sum] => 332362
[total_days] => 1
[display_material_sum] => 260 109
[display_work_sum] => 72 253
[display_total_sum] => 332 362
)
1
332 362₽
Работа:72 253 ₽
Материалы:260 109 ₽
Дни:1
stdClass Object
(
[id] => 3
[attribute_id] => 2
[name] => Деревянные балки
[material_modifier] => 1
[work_modifier] => 1
[options] => Array
(
[0] => без утепления
[1] => утепление 200 мм
[2] => утепление 250 мм
[3] => утепление 300 мм
[4] => утепление 350 мм
[5] => утепление 400 мм
[6] => утепление 450 мм
[7] => утепление 500 мм
)
[days] => [8,9,9,9,11,12,13,14]
[material_price] => [1634,2042,2344,2947,3149,3652,3354,3557]
[work_price] => [1230,1339,1393,1426,1460,1513,1587,1620]
[image] => https://akademik-stroy.ru/wp-content/uploads/materials/derevyannye-balki.png
[area_modifier] => 172.03
[parent_name] => Перекрытие цоколя
[parent_id] => 2
[material_sum] => 354182
[work_sum] => 222177
[total_sum] => 576359
[total_days] => 8
[display_material_sum] => 354 182
[display_work_sum] => 222 177
[display_total_sum] => 576 359
)
1
576 359₽
Работа:222 177 ₽
Материалы:354 182 ₽
Дни:8
stdClass Object
(
[id] => 4
[attribute_id] => 2
[name] => Сборные ж/б плиты
[material_modifier] => 1
[work_modifier] => 1
[options] => Array
(
[0] => без утепления
[1] => утепление 150мм
[2] => утепление 200мм
[3] => утепление 250мм
[4] => утепление 300мм
[5] => утепление 350мм
[6] => утепление 400мм
[7] => утепление 450мм
[8] => утепление 500мм
)
[days] => [13,15,15,15,15,15,15,15,15]
[material_price] => [3067,5577,5928,6679,7730,8782,9833,10884,11935]
[work_price] => [1520,1956,2102,2247,2392,2537,2684,2829,2974]
[image] => https://akademik-stroy.ru/wp-content/uploads/materials/sbornye-zh-b-plity-2.jpg
[area_modifier] => 172.03
[parent_name] => Перекрытие цоколя
[parent_id] => 2
[material_sum] => 664796
[work_sum] => 274560
[total_sum] => 939356
[total_days] => 13
[display_material_sum] => 664 796
[display_work_sum] => 274 560
[display_total_sum] => 939 356
)
1
939 356₽
Работа:274 560 ₽
Материалы:664 796 ₽
Дни:13
stdClass Object
(
[id] => 78
[attribute_id] => 2
[name] => Монолитная ж/б плита
[material_modifier] => 1
[work_modifier] => 1
[options] => Array
(
[0] => без утепления
[1] => утепление 150 мм
[2] => утепление 200 мм
[3] => утепление 250 мм
[4] => утепление 300 мм
[5] => утепление 350 мм
[6] => утепление 400 мм
[7] => утепление 450 мм
[8] => утепление 500 мм
)
[days] => [18,20,20,20,20,20,20,20,20]
[material_price] => [4837,6572,7224,7375,79426,8177,8728,9180,10031]
[work_price] => [3348,3921,4112,4302,4493,4684,4875,5066,5256]
[image] => https://akademik-stroy.ru/wp-content/uploads/materials/monolitnaya-zh-b-plita-2.jpg
[area_modifier] => 172.03
[parent_name] => Перекрытие цоколя
[parent_id] => 2
[material_sum] => 1048457
[work_sum] => 604754
[total_sum] => 1653211
[total_days] => 18
[display_material_sum] => 1 048 457
[display_work_sum] => 604 754
[display_total_sum] => 1 653 211
)
1
1 653 211₽
Работа:604 754 ₽
Материалы:1 048 457 ₽
Дни:18
stdClass Object
(
[id] => 6
[attribute_id] => 3
[name] => Пеноблок
[material_modifier] => 1
[work_modifier] => 1
[options] => Array
(
[0] => 300 мм
[1] => 400 мм
[2] => 500 мм
[3] => 600 мм
)
[days] => [29,31,34,39]
[material_price] => [3000,4000,4500,4937]
[work_price] => [5033,5805,6400,8710]
[image] => https://akademik-stroy.ru/wp-content/uploads/materials/penoblok.jpg
[area_modifier] => 172.03
[parent_name] => Стены 1 этаж (несущие)
[parent_id] => 3
[material_sum] => 650273
[work_sum] => 909118
[total_sum] => 1559391
[total_days] => 29
[display_material_sum] => 650 273
[display_work_sum] => 909 118
[display_total_sum] => 1 559 391
)
1
1 559 391₽
Работа:909 118 ₽
Материалы:650 273 ₽
Дни:29
stdClass Object
(
[id] => 79
[attribute_id] => 3
[name] => Керамический блок
[material_modifier] => 1
[work_modifier] => 1
[options] => Array
(
[0] => 380 мм
[1] => 380 мм Thermo
[2] => 440 мм
[3] => 510 мм
)
[days] => [23,23,24,25]
[material_price] => [4510,5098,6093,8013]
[work_price] => [4737,4937,5903,6958]
[image] => https://akademik-stroy.ru/wp-content/uploads/materials/keramicheskij-blok.jpg
[area_modifier] => 172.03
[parent_name] => Стены 1 этаж (несущие)
[parent_id] => 3
[material_sum] => 977578
[work_sum] => 855651
[total_sum] => 1833229
[total_days] => 23
[display_material_sum] => 977 578
[display_work_sum] => 855 651
[display_total_sum] => 1 833 229
)
1
1 833 229₽
Работа:855 651 ₽
Материалы:977 578 ₽
Дни:23
stdClass Object
(
[id] => 80
[attribute_id] => 3
[name] => Кирпич
[material_modifier] => 1
[work_modifier] => 1
[options] => Array
(
[0] => Кирпич 250 мм
[1] => Кирпич 380 мм
[2] => Кирпич 510 мм
[3] => Кирпич 640 мм
[4] => Кирпич 770 мм
)
[days] => [30,30,31,33,36]
[material_price] => [5500,7142,9206,10171,12235]
[work_price] => [8736,10041,12018,15240,18462]
[image] => https://akademik-stroy.ru/wp-content/uploads/materials/kirpich.jpg
[area_modifier] => 172.03
[parent_name] => Стены 1 этаж (несущие)
[parent_id] => 3
[material_sum] => 1192168
[work_sum] => 1577997
[total_sum] => 2770165
[total_days] => 30
[display_material_sum] => 1 192 168
[display_work_sum] => 1 577 997
[display_total_sum] => 2 770 165
)
1
2 770 165₽
Работа:1 577 997 ₽
Материалы:1 192 168 ₽
Дни:30
stdClass Object
(
[id] => 81
[attribute_id] => 3
[name] => Монолитные
[material_modifier] => 1
[work_modifier] => 1
[options] => Array
(
[0] => 150 мм
[1] => 200 мм
[2] => 250 мм
[3] => 300 мм
[4] => 350 мм
[5] => 400 мм
)
[days] => [45,46,47,49,50,53]
[material_price] => [6545,7876,10175,12011,13908,15204]
[work_price] => [5106,6444,7698,8552,9807,11461]
[image] => https://akademik-stroy.ru/wp-content/uploads/materials/monolitnye.jpg
[area_modifier] => 172.03
[parent_name] => Стены 1 этаж (несущие)
[parent_id] => 3
[material_sum] => 1418680
[work_sum] => 922304
[total_sum] => 2340984
[total_days] => 45
[display_material_sum] => 1 418 680
[display_work_sum] => 922 304
[display_total_sum] => 2 340 984
)
1
2 340 984₽
Работа:922 304 ₽
Материалы:1 418 680 ₽
Дни:45
stdClass Object
(
[id] => 82
[attribute_id] => 3
[name] => Клееный брус
[material_modifier] => 1
[work_modifier] => 1
[options] => Array
(
[0] => 160 мм
[1] => 175 мм
[2] => 200 мм
[3] => 215 мм
[4] => 240 мм
[5] => 270 мм
[6] => 282 мм
)
[days] => [24,28,32,37,40,42,48]
[material_price] => [16975,18773,19950,20545,21599,22159,23275]
[work_price] => [4806,5287,5815,6397,7036,7740,8514]
[image] => https://akademik-stroy.ru/wp-content/uploads/materials/kleenyj-brus.jpg
[area_modifier] => 172.03
[parent_name] => Стены 1 этаж (несущие)
[parent_id] => 3
[material_sum] => 3679464
[work_sum] => 868115
[total_sum] => 4547579
[total_days] => 24
[display_material_sum] => 3 679 464
[display_work_sum] => 868 115
[display_total_sum] => 4 547 579
)
1
4 547 579₽
Работа:868 115 ₽
Материалы:3 679 464 ₽
Дни:24
stdClass Object
(
[id] => 83
[attribute_id] => 3
[name] => Каркасные
[material_modifier] => 1
[work_modifier] => 1
[options] => Array
(
[0] => 150 мм
[1] => 200 мм
[2] => 250 мм
[3] => 300 мм
)
[days] => [15,16,17,18]
[material_price] => [2379,2639,2898,3258]
[work_price] => [2418,2686,2985,3716]
[image] => https://akademik-stroy.ru/wp-content/uploads/materials/karkasnye.jpg
[area_modifier] => 172.03
[parent_name] => Стены 1 этаж (несущие)
[parent_id] => 3
[material_sum] => 515667
[work_sum] => 436767
[total_sum] => 952434
[total_days] => 15
[display_material_sum] => 515 667
[display_work_sum] => 436 767
[display_total_sum] => 952 434
)
1
952 434₽
Работа:436 767 ₽
Материалы:515 667 ₽
Дни:15
stdClass Object
(
[id] => 84
[attribute_id] => 3
[name] => СИП-панели
[material_modifier] => 1
[work_modifier] => 1
[options] => Array
(
[0] => 120 мм
[1] => 170 мм
[2] => 220 мм
)
[days] => [7,7,7]
[material_price] => [1210,1856,2292]
[work_price] => [1410,1551,1706]
[image] => https://akademik-stroy.ru/wp-content/uploads/materials/sip-paneli.jpg
[area_modifier] => 172.03
[parent_name] => Стены 1 этаж (несущие)
[parent_id] => 3
[material_sum] => 262277
[work_sum] => 254690
[total_sum] => 516967
[total_days] => 7
[display_material_sum] => 262 277
[display_work_sum] => 254 690
[display_total_sum] => 516 967
)
1
516 967₽
Работа:254 690 ₽
Материалы:262 277 ₽
Дни:7
stdClass Object
(
[id] => 85
[attribute_id] => 3
[name] => Сухой брус
[material_modifier] => 1
[work_modifier] => 1
[options] => Array
(
[0] => 150 мм
[1] => 180 мм
[2] => 200 мм
)
[days] => [7,8,9]
[material_price] => [6010,7190,8709]
[work_price] => [3204,3845,4229]
[image] => https://akademik-stroy.ru/wp-content/uploads/materials/suhoj-brus.jpg
[area_modifier] => 172.03
[parent_name] => Стены 1 этаж (несущие)
[parent_id] => 3
[material_sum] => 1302714
[work_sum] => 578743
[total_sum] => 1881457
[total_days] => 7
[display_material_sum] => 1 302 714
[display_work_sum] => 578 743
[display_total_sum] => 1 881 457
)
1
1 881 457₽
Работа:578 743 ₽
Материалы:1 302 714 ₽
Дни:7
stdClass Object
(
[id] => 86
[attribute_id] => 3
[name] => Профилированный брус
[material_modifier] => 1
[work_modifier] => 1
[options] => Array
(
[0] => 150 мм
[1] => 180 мм
[2] => 200 мм
)
[days] => [7,8,9]
[material_price] => [8190,9228,10051]
[work_price] => [3845,4614,5075]
[image] => https://akademik-stroy.ru/wp-content/uploads/materials/profilirovannyj-brus.jpg
[area_modifier] => 172.03
[parent_name] => Стены 1 этаж (несущие)
[parent_id] => 3
[material_sum] => 1775246
[work_sum] => 694528
[total_sum] => 2469774
[total_days] => 7
[display_material_sum] => 1 775 246
[display_work_sum] => 694 528
[display_total_sum] => 2 469 774
)
1
2 469 774₽
Работа:694 528 ₽
Материалы:1 775 246 ₽
Дни:7
stdClass Object
(
[id] => 87
[attribute_id] => 3
[name] => Оцилиндрованное бревно
[material_modifier] => 1
[work_modifier] => 1
[options] => Array
(
[0] => 180 мм
[1] => 220 мм
[2] => 260 мм
[3] => 320 мм
)
[days] => [7,8,9,10]
[material_price] => [75190,9532,10868,13116]
[work_price] => [3845,4691,5535,6863]
[image] => https://akademik-stroy.ru/wp-content/uploads/materials/ocilindrovannoe-brevno-1.jpg
[area_modifier] => 172.03
[parent_name] => Стены 1 этаж (несущие)
[parent_id] => 3
[material_sum] => 16298019
[work_sum] => 694528
[total_sum] => 16992547
[total_days] => 7
[display_material_sum] => 16 298 019
[display_work_sum] => 694 528
[display_total_sum] => 16 992 547
)
1
16 992 547₽
Работа:694 528 ₽
Материалы:16 298 019 ₽
Дни:7
stdClass Object
(
[id] => 88
[attribute_id] => 3
[name] => Срубы
[material_modifier] => 1
[work_modifier] => 1
[options] => Array
(
[0] => 260 мм
[1] => 320 мм
[2] => 360 мм
[3] => 400 мм
[4] => 500 мм
)
[days] => [7,8,9,10,11]
[material_price] => [37975,46709,52314,58069,73167]
[work_price] => [4806,5911,6621,7349,9260]
[image] => https://akademik-stroy.ru/wp-content/uploads/materials/sruby.jpg
[area_modifier] => 172.03
[parent_name] => Стены 1 этаж (несущие)
[parent_id] => 3
[material_sum] => 8231377
[work_sum] => 868115
[total_sum] => 9099492
[total_days] => 7
[display_material_sum] => 8 231 377
[display_work_sum] => 868 115
[display_total_sum] => 9 099 492
)
1
9 099 492₽
Работа:868 115 ₽
Материалы:8 231 377 ₽
Дни:7
stdClass Object
(
[id] => 174
[attribute_id] => 3
[name] => Брус
[material_modifier] => 1
[work_modifier] => 1
[options] => Array
(
[0] => 150 мм
[1] => 180 мм
[2] => 200 мм
)
[days] => [7,8,9]
[material_price] => [5127,6152,7367]
[work_price] => [1602,1922,2115]
[image] => https://akademik-stroy.ru/wp-content/uploads/materials/brus.jpg
[area_modifier] => 172.03
[parent_name] => Стены 1 этаж (несущие)
[parent_id] => 3
[material_sum] => 1111317
[work_sum] => 289372
[total_sum] => 1400689
[total_days] => 7
[display_material_sum] => 1 111 317
[display_work_sum] => 289 372
[display_total_sum] => 1 400 689
)
1
1 400 689₽
Работа:289 372 ₽
Материалы:1 111 317 ₽
Дни:7
stdClass Object
(
[id] => 175
[attribute_id] => 3
[name] => Газобетон
[material_modifier] => 1
[work_modifier] => 1
[options] => Array
(
[0] => 300 мм
[1] => 375 мм
[2] => 400 мм
[3] => 500 мм
[4] => 600 мм
)
[days] => [29,31,35,37,44]
[material_price] => [4298,5573,6356,7288,9119]
[work_price] => [4538,5251,5926,6733,7195]
[image] => https://akademik-stroy.ru/wp-content/uploads/materials/gazobeton.jpg
[area_modifier] => 172.03
[parent_name] => Стены 1 этаж (несущие)
[parent_id] => 3
[material_sum] => 931625
[work_sum] => 819706
[total_sum] => 1751331
[total_days] => 29
[display_material_sum] => 931 625
[display_work_sum] => 819 706
[display_total_sum] => 1 751 331
)
1
1 751 331₽
Работа:819 706 ₽
Материалы:931 625 ₽
Дни:29
stdClass Object
(
[id] => 176
[attribute_id] => 3
[name] => Блок
[material_modifier] => 1
[work_modifier] => 1
[options] => Array
(
[0] => 300 мм
[1] => 375 мм
[2] => 400 мм
[3] => 500 мм
[4] => 600 мм
)
[days] => [29,31,35,37,44]
[material_price] => [2698,3973,4356,6588,7119]
[work_price] => [5038,5851,6426,8733,9195]
[image] => https://akademik-stroy.ru/wp-content/uploads/materials/blok.jpg
[area_modifier] => 172.03
[parent_name] => Стены 1 этаж (несущие)
[parent_id] => 3
[material_sum] => 584813
[work_sum] => 910021
[total_sum] => 1494834
[total_days] => 29
[display_material_sum] => 584 813
[display_work_sum] => 910 021
[display_total_sum] => 1 494 834
)
1
1 494 834₽
Работа:910 021 ₽
Материалы:584 813 ₽
Дни:29
stdClass Object
(
[id] => 177
[attribute_id] => 3
[name] => Газосиликатный блок
[material_modifier] => 1
[work_modifier] => 1
[options] => Array
(
[0] => 300 мм
[1] => 375 мм
[2] => 400 мм
[3] => 500 мм
[4] => 600 мм
)
[days] => [29,31,35,37,44]
[material_price] => [4298,5573,6356,7288,9119]
[work_price] => [4538,5251,5926,6733,7195]
[image] => https://akademik-stroy.ru/wp-content/uploads/materials/gazosilikatnyj-blok.jpg
[area_modifier] => 172.03
[parent_name] => Стены 1 этаж (несущие)
[parent_id] => 3
[material_sum] => 931625
[work_sum] => 819706
[total_sum] => 1751331
[total_days] => 29
[display_material_sum] => 931 625
[display_work_sum] => 819 706
[display_total_sum] => 1 751 331
)
1
1 751 331₽
Работа:819 706 ₽
Материалы:931 625 ₽
Дни:29
stdClass Object
(
[id] => 178
[attribute_id] => 3
[name] => Керамзитобетонный блок
[material_modifier] => 1
[work_modifier] => 1
[options] => Array
(
[0] => 300 мм
[1] => 375 мм
[2] => 400 мм
[3] => 500 мм
[4] => 600 мм
)
[days] => [23,23,24,25,28]
[material_price] => [3641,4298,5693,7613,9612]
[work_price] => [5737,5737,6903,7958,8901]
[image] => https://akademik-stroy.ru/wp-content/uploads/materials/keramzitobetonnyj-blok.jpg
[area_modifier] => 172.03
[parent_name] => Стены 1 этаж (несущие)
[parent_id] => 3
[material_sum] => 789215
[work_sum] => 1036283
[total_sum] => 1825498
[total_days] => 23
[display_material_sum] => 789 215
[display_work_sum] => 1 036 283
[display_total_sum] => 1 825 498
)
1
1 825 498₽
Работа:1 036 283 ₽
Материалы:789 215 ₽
Дни:23
stdClass Object
(
[id] => 179
[attribute_id] => 3
[name] => Деревянные
[material_modifier] => 1
[work_modifier] => 1
[options] => Array
(
[0] => 180 мм
[1] => 220 мм
[2] => 260 мм
[3] => 320 мм
)
[days] => [7,8,9,10]
[material_price] => [7950,9458,11961,14472]
[work_price] => [4037,4925,5812,7207]
[image] => https://akademik-stroy.ru/wp-content/uploads/materials/derevyannye.jpg
[area_modifier] => 172.03
[parent_name] => Стены 1 этаж (несущие)
[parent_id] => 3
[material_sum] => 1723225
[work_sum] => 729209
[total_sum] => 2452434
[total_days] => 7
[display_material_sum] => 1 723 225
[display_work_sum] => 729 209
[display_total_sum] => 2 452 434
)
1
2 452 434₽
Работа:729 209 ₽
Материалы:1 723 225 ₽
Дни:7
stdClass Object
(
[id] => 181
[attribute_id] => 3
[name] => Камень
[material_modifier] => 1
[work_modifier] => 1
[options] => Array
(
[0] => 300 мм
[1] => 400 мм
[2] => 500 мм
[3] => 600 мм
)
[days] => [25,27,31,34]
[material_price] => [5262,6844,8330,9815]
[work_price] => [8331,9135,10427,11069]
[image] => https://akademik-stroy.ru/wp-content/uploads/materials/kamen.jpg
[area_modifier] => 172.03
[parent_name] => Стены 1 этаж (несущие)
[parent_id] => 3
[material_sum] => 1140580
[work_sum] => 1504841
[total_sum] => 2645421
[total_days] => 25
[display_material_sum] => 1 140 580
[display_work_sum] => 1 504 841
[display_total_sum] => 2 645 421
)
1
2 645 421₽
Работа:1 504 841 ₽
Материалы:1 140 580 ₽
Дни:25
stdClass Object
(
[id] => 182
[attribute_id] => 3
[name] => Каркасно-щитовые
[material_modifier] => 1
[work_modifier] => 1
[options] => Array
(
[0] => 150 мм
[1] => 200 мм
[2] => 250 мм
[3] => 300 мм
[4] => 350 мм
[5] => 400 мм
)
[days] => [15,16,17,18,19,20]
[material_price] => [2379,2639,2898,3458,3601,4175]
[work_price] => [2538,2820,3134,3483,4062,5642]
[image] => https://akademik-stroy.ru/wp-content/uploads/materials/karkasno-shchitovye.jpg
[area_modifier] => 172.03
[parent_name] => Стены 1 этаж (несущие)
[parent_id] => 3
[material_sum] => 515667
[work_sum] => 458443
[total_sum] => 974110
[total_days] => 15
[display_material_sum] => 515 667
[display_work_sum] => 458 443
[display_total_sum] => 974 110
)
1
974 110₽
Работа:458 443 ₽
Материалы:515 667 ₽
Дни:15
stdClass Object
(
[id] => 183
[attribute_id] => 3
[name] => Рубленные
[material_modifier] => 1
[work_modifier] => 1
[options] => Array
(
[0] => 150 мм
[1] => 200 мм
[2] => 250 мм
[3] => 300 мм
[4] => 350 мм
[5] => 400 мм
)
[days] => [15,16,17,18,17,18]
[material_price] => [35950,50267,60583,75900,80217,100533]
[work_price] => [9612,12816,16020,19224,22428,25632]
[image] => https://akademik-stroy.ru/wp-content/uploads/materials/rublennye.jpg
[area_modifier] => 172.03
[parent_name] => Стены 1 этаж (несущие)
[parent_id] => 3
[material_sum] => 7792443
[work_sum] => 1736230
[total_sum] => 9528673
[total_days] => 15
[display_material_sum] => 7 792 443
[display_work_sum] => 1 736 230
[display_total_sum] => 9 528 673
)
1
9 528 673₽
Работа:1 736 230 ₽
Материалы:7 792 443 ₽
Дни:15
stdClass Object
(
[id] => 185
[attribute_id] => 3
[name] => Теплоблок
[material_modifier] => 1
[work_modifier] => 1
[options] => Array
(
[0] => 300 мм (с облицовкой, не покрашенный)
[1] => 400 мм (с облицовкой, не покрашенный)
[2] => 300 мм (с облицовкой, покрашенный)
[3] => 400 мм (с облицовкой, покрашенный)
)
[days] => [15,16,15,16]
[material_price] => [2888,3729,3957,4258]
[work_price] => [2564,3229,2949,3713]
[image] => https://akademik-stroy.ru/wp-content/uploads/materials/teploblok.jpg
[area_modifier] => 172.03
[parent_name] => Стены 1 этаж (несущие)
[parent_id] => 3
[material_sum] => 625997
[work_sum] => 463139
[total_sum] => 1089136
[total_days] => 15
[display_material_sum] => 625 997
[display_work_sum] => 463 139
[display_total_sum] => 1 089 136
)
1
1 089 136₽
Работа:463 139 ₽
Материалы:625 997 ₽
Дни:15
stdClass Object
(
[id] => 186
[attribute_id] => 3
[name] => Арболитовые блоки
[material_modifier] => 1
[work_modifier] => 1
[options] => Array
(
[0] => 300 мм
[1] => 400 мм
[2] => 600 мм
)
[days] => [19,22,27]
[material_price] => [3210,4475,5852]
[work_price] => [4214,4788,5866]
[image] => https://akademik-stroy.ru/wp-content/uploads/materials/arbolitovye-bloki.png
[area_modifier] => 172.03
[parent_name] => Стены 1 этаж (несущие)
[parent_id] => 3
[material_sum] => 695793
[work_sum] => 761181
[total_sum] => 1456974
[total_days] => 19
[display_material_sum] => 695 793
[display_work_sum] => 761 181
[display_total_sum] => 1 456 974
)
1
1 456 974₽
Работа:761 181 ₽
Материалы:695 793 ₽
Дни:19
stdClass Object
(
[id] => 187
[attribute_id] => 3
[name] => Полистиролбетон
[material_modifier] => 1
[work_modifier] => 1
[options] => Array
(
[0] => 300 мм
[1] => 400 мм
[2] => 600 мм
)
[days] => [29,31,35]
[material_price] => [2798,4573,5256]
[work_price] => [5038,5851,6426]
[image] => https://akademik-stroy.ru/wp-content/uploads/materials/polistirolbeton.jpg
[area_modifier] => 172.03
[parent_name] => Стены 1 этаж (несущие)
[parent_id] => 3
[material_sum] => 606488
[work_sum] => 910021
[total_sum] => 1516509
[total_days] => 29
[display_material_sum] => 606 488
[display_work_sum] => 910 021
[display_total_sum] => 1 516 509
)
1
1 516 509₽
Работа:910 021 ₽
Материалы:606 488 ₽
Дни:29
stdClass Object
(
[id] => 188
[attribute_id] => 3
[name] => Шлакоблок
[material_modifier] => 1
[work_modifier] => 1
[options] => Array
(
[0] => 400 мм
[1] => 600 мм
)
[days] => [15,16]
[material_price] => [2391,3471]
[work_price] => [2642,3662]
[image] => https://akademik-stroy.ru/wp-content/uploads/materials/shlakoblok.jpg
[area_modifier] => 172.03
[parent_name] => Стены 1 этаж (несущие)
[parent_id] => 3
[material_sum] => 518268
[work_sum] => 477228
[total_sum] => 995496
[total_days] => 15
[display_material_sum] => 518 268
[display_work_sum] => 477 228
[display_total_sum] => 995 496
)
1
995 496₽
Работа:477 228 ₽
Материалы:518 268 ₽
Дни:15
stdClass Object
(
[id] => 189
[attribute_id] => 3
[name] => Теплая керамика
[material_modifier] => 1
[work_modifier] => 1
[options] => Array
(
[0] => 380 мм
[1] => 380 мм Thermo
[2] => 440 мм
[3] => 510 мм
)
[days] => [23,23,24,25]
[material_price] => [4510,5098,6093,8013]
[work_price] => [4737,4937,5903,6958]
[image] => https://akademik-stroy.ru/wp-content/uploads/materials/teplaya-keramika.jpg
[area_modifier] => 172.03
[parent_name] => Стены 1 этаж (несущие)
[parent_id] => 3
[material_sum] => 977578
[work_sum] => 855651
[total_sum] => 1833229
[total_days] => 23
[display_material_sum] => 977 578
[display_work_sum] => 855 651
[display_total_sum] => 1 833 229
)
1
1 833 229₽
Работа:855 651 ₽
Материалы:977 578 ₽
Дни:23
stdClass Object
(
[id] => 190
[attribute_id] => 3
[name] => Несъемная опалубка
[material_modifier] => 1
[work_modifier] => 1
[options] => Array
(
[0] => 200 мм
[1] => 250 мм
[2] => 300 мм
[3] => 350 мм
)
[days] => [15,17,19,21]
[material_price] => [3302,3902,4108,5008]
[work_price] => [2100,2100,2300,2534]
[image] => https://akademik-stroy.ru/wp-content/uploads/materials/nesemnaya-opalubka.jpg
[area_modifier] => 172.03
[parent_name] => Стены 1 этаж (несущие)
[parent_id] => 3
[material_sum] => 715734
[work_sum] => 379326
[total_sum] => 1095060
[total_days] => 15
[display_material_sum] => 715 734
[display_work_sum] => 379 326
[display_total_sum] => 1 095 060
)
1
1 095 060₽
Работа:379 326 ₽
Материалы:715 734 ₽
Дни:15
stdClass Object
(
[id] => 251
[attribute_id] => 3
[name] => Бревно
[material_modifier] => 1
[work_modifier] => 1
[options] => Array
(
[0] => 260 мм
[1] => 320 мм
[2] => 360 мм
[3] => 400 мм
[4] => 500 мм
)
[days] => [7,8,9,10,11]
[material_price] => [1874,24045,26930,30972,38825]
[work_price] => [5046,6207,6952,7716,9723]
[image] => https://akademik-stroy.ru/wp-content/uploads/materials/sruby.jpg
[area_modifier] => 172.03
[parent_name] => Стены 1 этаж (несущие)
[parent_id] => 3
[material_sum] => 406204
[work_sum] => 911467
[total_sum] => 1317671
[total_days] => 7
[display_material_sum] => 406 204
[display_work_sum] => 911 467
[display_total_sum] => 1 317 671
)
1
1 317 671₽
Работа:911 467 ₽
Материалы:406 204 ₽
Дни:7
stdClass Object
(
[id] => 7
[attribute_id] => 4
[name] => Деревянные балки
[material_modifier] => 1
[work_modifier] => 1
[options] => Array
(
[0] => без утепления
[1] => утепление 200 мм
[2] => утепление 250 мм
[3] => утепление 300 мм
[4] => утепление 350 мм
[5] => утепление 400 мм
[6] => утепление 450 мм
[7] => утепление 500 мм
)
[days] => [8,9,9,9,11,12,13,14]
[material_price] => [1634,2042,2344,2947,3149,3652,3354,3557]
[work_price] => [1230,1339,1393,1426,1460,1513,1587,1620]
[image] => https://akademik-stroy.ru/wp-content/uploads/materials/derevyannye-balki.png
[area_modifier] => 172.03
[parent_name] => Перекрытие первого этажа
[parent_id] => 4
[material_sum] => 354182
[work_sum] => 222177
[total_sum] => 576359
[total_days] => 8
[display_material_sum] => 354 182
[display_work_sum] => 222 177
[display_total_sum] => 576 359
)
1
576 359₽
Работа:222 177 ₽
Материалы:354 182 ₽
Дни:8
stdClass Object
(
[id] => 8
[attribute_id] => 4
[name] => Сборные ж/б плиты
[material_modifier] => 1
[work_modifier] => 1
[options] => Array
(
[0] => без утепления
[1] => утепление 150 мм
[2] => утепление 200 мм
[3] => утепление 250 мм
[4] => утепление 300 мм
[5] => утепление 350 мм
[6] => утепление 400 мм
[7] => утепление 450 мм
[8] => утепление 500 мм
)
[days] => [13,15,15,15,15,15,15,15,15]
[material_price] => [3067,5577,5928,6679,7730,8782,9833,10884,11935]
[work_price] => [1520,1956,2102,2247,2392,2537,2684,2829,2974]
[image] => https://akademik-stroy.ru/wp-content/uploads/materials/sbornye-zh-b-plity-2.jpg
[area_modifier] => 172.03
[parent_name] => Перекрытие первого этажа
[parent_id] => 4
[material_sum] => 664796
[work_sum] => 274560
[total_sum] => 939356
[total_days] => 13
[display_material_sum] => 664 796
[display_work_sum] => 274 560
[display_total_sum] => 939 356
)
1
939 356₽
Работа:274 560 ₽
Материалы:664 796 ₽
Дни:13
stdClass Object
(
[id] => 89
[attribute_id] => 4
[name] => Монолитная ж/б плита
[material_modifier] => 1
[work_modifier] => 1
[options] => Array
(
[0] => без утепления
[1] => утепление 150 мм
[2] => утепление 200 мм
[3] => утепление 250 мм
[4] => утепление 300 мм
[5] => утепление 350 мм
[6] => утепление 400 мм
[7] => утепление 450 мм
[8] => утепление 500 мм
)
[days] => [18,20,20,20,20,20,20,20,20]
[material_price] => [4837,6572,7224,7375,79426,8177,8728,9180,10031]
[work_price] => [3348,3921,4112,4302,4493,4684,4875,5066,5256]
[image] => https://akademik-stroy.ru/wp-content/uploads/materials/monolitnaya-zh-b-plita-2.jpg
[area_modifier] => 172.03
[parent_name] => Перекрытие первого этажа
[parent_id] => 4
[material_sum] => 1048457
[work_sum] => 604754
[total_sum] => 1653211
[total_days] => 18
[display_material_sum] => 1 048 457
[display_work_sum] => 604 754
[display_total_sum] => 1 653 211
)
1
1 653 211₽
Работа:604 754 ₽
Материалы:1 048 457 ₽
Дни:18
stdClass Object
(
[id] => 10
[attribute_id] => 5
[name] => Пеноблок
[material_modifier] => 1
[work_modifier] => 1
[options] => Array
(
[0] => 300 мм
[1] => 400 мм
[2] => 500 мм
[3] => 600 мм
)
[days] => [29,31,34,39]
[material_price] => [3000,4000,4500,4937]
[work_price] => [5033,5805,6400,8710]
[image] => https://akademik-stroy.ru/wp-content/uploads/materials/penoblok.jpg
[area_modifier] => 118.67
[parent_name] => Стены 2 этаж (несущие)
[parent_id] => 5
[material_sum] => 448573
[work_sum] => 627129
[total_sum] => 1075702
[total_days] => 29
[display_material_sum] => 448 573
[display_work_sum] => 627 129
[display_total_sum] => 1 075 702
)
1
1 075 702₽
Работа:627 129 ₽
Материалы:448 573 ₽
Дни:29
stdClass Object
(
[id] => 90
[attribute_id] => 5
[name] => Керамический блок
[material_modifier] => 1
[work_modifier] => 1
[options] => Array
(
[0] => 380 мм
[1] => 380 мм Thermo
[2] => 440 мм
[3] => 510 мм
)
[days] => [23,23,24,25]
[material_price] => [4510,5098,6093,8013]
[work_price] => [4737,4937,5903,6958]
[image] => https://akademik-stroy.ru/wp-content/uploads/materials/keramicheskij-blok.jpg
[area_modifier] => 118.67
[parent_name] => Стены 2 этаж (несущие)
[parent_id] => 5
[material_sum] => 674354
[work_sum] => 590247
[total_sum] => 1264601
[total_days] => 23
[display_material_sum] => 674 354
[display_work_sum] => 590 247
[display_total_sum] => 1 264 601
)
1
1 264 601₽
Работа:590 247 ₽
Материалы:674 354 ₽
Дни:23
stdClass Object
(
[id] => 91
[attribute_id] => 5
[name] => Кирпич
[material_modifier] => 1
[work_modifier] => 1
[options] => Array
(
[0] => Кирпич 250 мм
[1] => Кирпич 380 мм
[2] => Кирпич 510 мм
[3] => Кирпич 640 мм
[4] => Кирпич 770 мм
)
[days] => [30,30,31,33,36]
[material_price] => [5500,7142,9206,10171,12235]
[work_price] => [8736,10041,12018,15240,18462]
[image] => https://akademik-stroy.ru/wp-content/uploads/materials/kirpich.jpg
[area_modifier] => 118.67
[parent_name] => Стены 2 этаж (несущие)
[parent_id] => 5
[material_sum] => 822383
[work_sum] => 1088536
[total_sum] => 1910919
[total_days] => 30
[display_material_sum] => 822 383
[display_work_sum] => 1 088 536
[display_total_sum] => 1 910 919
)
1
1 910 919₽
Работа:1 088 536 ₽
Материалы:822 383 ₽
Дни:30
stdClass Object
(
[id] => 92
[attribute_id] => 5
[name] => Монолитные
[material_modifier] => 1
[work_modifier] => 1
[options] => Array
(
[0] => 150 мм
[1] => 200 мм
[2] => 250 мм
[3] => 300 мм
[4] => 350 мм
[5] => 400 мм
)
[days] => [45,46,47,49,50,53]
[material_price] => [6545,7876,10175,12011,13908,15204]
[work_price] => [5106,6444,7698,8552,9807,11461]
[image] => https://akademik-stroy.ru/wp-content/uploads/materials/monolitnye.jpg
[area_modifier] => 118.67
[parent_name] => Стены 2 этаж (несущие)
[parent_id] => 5
[material_sum] => 978636
[work_sum] => 636225
[total_sum] => 1614861
[total_days] => 45
[display_material_sum] => 978 636
[display_work_sum] => 636 225
[display_total_sum] => 1 614 861
)
1
1 614 861₽
Работа:636 225 ₽
Материалы:978 636 ₽
Дни:45
stdClass Object
(
[id] => 93
[attribute_id] => 5
[name] => Клееный брус
[material_modifier] => 1
[work_modifier] => 1
[options] => Array
(
[0] => 160 мм
[1] => 175 мм
[2] => 200 мм
[3] => 215 мм
[4] => 240 мм
[5] => 270 мм
[6] => 282 мм
)
[days] => [24,28,32,37,40,42,48]
[material_price] => [16975,18773,19950,20545,21599,22159,23275]
[work_price] => [4806,5287,5815,6397,7036,7740,8514]
[image] => https://akademik-stroy.ru/wp-content/uploads/materials/kleenyj-brus.jpg
[area_modifier] => 118.67
[parent_name] => Стены 2 этаж (несущие)
[parent_id] => 5
[material_sum] => 2538173
[work_sum] => 598844
[total_sum] => 3137017
[total_days] => 24
[display_material_sum] => 2 538 173
[display_work_sum] => 598 844
[display_total_sum] => 3 137 017
)
1
3 137 017₽
Работа:598 844 ₽
Материалы:2 538 173 ₽
Дни:24
stdClass Object
(
[id] => 94
[attribute_id] => 5
[name] => Каркасные
[material_modifier] => 1
[work_modifier] => 1
[options] => Array
(
[0] => 150 мм
[1] => 200 мм
[2] => 250 мм
[3] => 300 мм
)
[days] => [15,16,17,18]
[material_price] => [2379,2639,2898,3258]
[work_price] => [2418,2686,2985,3716]
[image] => https://akademik-stroy.ru/wp-content/uploads/materials/karkasnye.jpg
[area_modifier] => 118.67
[parent_name] => Стены 2 этаж (несущие)
[parent_id] => 5
[material_sum] => 355718
[work_sum] => 301291
[total_sum] => 657009
[total_days] => 15
[display_material_sum] => 355 718
[display_work_sum] => 301 291
[display_total_sum] => 657 009
)
1
657 009₽
Работа:301 291 ₽
Материалы:355 718 ₽
Дни:15
stdClass Object
(
[id] => 95
[attribute_id] => 5
[name] => СИП-панели
[material_modifier] => 1
[work_modifier] => 1
[options] => Array
(
[0] => 120 мм
[1] => 170 мм
[2] => 220 мм
)
[days] => [7,7,7]
[material_price] => [1210,1856,2292]
[work_price] => [1410,1551,1706]
[image] => https://akademik-stroy.ru/wp-content/uploads/materials/sip-paneli.jpg
[area_modifier] => 118.67
[parent_name] => Стены 2 этаж (несущие)
[parent_id] => 5
[material_sum] => 180924
[work_sum] => 175691
[total_sum] => 356615
[total_days] => 7
[display_material_sum] => 180 924
[display_work_sum] => 175 691
[display_total_sum] => 356 615
)
1
356 615₽
Работа:175 691 ₽
Материалы:180 924 ₽
Дни:7
stdClass Object
(
[id] => 96
[attribute_id] => 5
[name] => Сухой брус
[material_modifier] => 1
[work_modifier] => 1
[options] => Array
(
[0] => 150 мм
[1] => 180 мм
[2] => 200 мм
)
[days] => [7,8,9]
[material_price] => [6010,7190,8709]
[work_price] => [3204,3845,4229]
[image] => https://akademik-stroy.ru/wp-content/uploads/materials/suhoj-brus.jpg
[area_modifier] => 118.67
[parent_name] => Стены 2 этаж (несущие)
[parent_id] => 5
[material_sum] => 898640
[work_sum] => 399230
[total_sum] => 1297870
[total_days] => 7
[display_material_sum] => 898 640
[display_work_sum] => 399 230
[display_total_sum] => 1 297 870
)
1
1 297 870₽
Работа:399 230 ₽
Материалы:898 640 ₽
Дни:7
stdClass Object
(
[id] => 97
[attribute_id] => 5
[name] => Профилированный брус
[material_modifier] => 1
[work_modifier] => 1
[options] => Array
(
[0] => 150 мм
[1] => 180 мм
[2] => 200 мм
)
[days] => [7,8,9]
[material_price] => [8190,9228,10051]
[work_price] => [3845,4614,5075]
[image] => https://akademik-stroy.ru/wp-content/uploads/materials/profilirovannyj-brus.jpg
[area_modifier] => 118.67
[parent_name] => Стены 2 этаж (несущие)
[parent_id] => 5
[material_sum] => 1224603
[work_sum] => 479100
[total_sum] => 1703703
[total_days] => 7
[display_material_sum] => 1 224 603
[display_work_sum] => 479 100
[display_total_sum] => 1 703 703
)
1
1 703 703₽
Работа:479 100 ₽
Материалы:1 224 603 ₽
Дни:7
stdClass Object
(
[id] => 98
[attribute_id] => 5
[name] => Оцилиндрованное бревно
[material_modifier] => 1
[work_modifier] => 1
[options] => Array
(
[0] => 180 мм
[1] => 220 мм
[2] => 260 мм
[3] => 320 мм
)
[days] => [7,8,9,10]
[material_price] => [75190,9532,10868,13116]
[work_price] => [3845,4691,5535,6863]
[image] => https://akademik-stroy.ru/wp-content/uploads/materials/ocilindrovannoe-brevno-1.jpg
[area_modifier] => 118.67
[parent_name] => Стены 2 этаж (несущие)
[parent_id] => 5
[material_sum] => 11242725
[work_sum] => 479100
[total_sum] => 11721825
[total_days] => 7
[display_material_sum] => 11 242 725
[display_work_sum] => 479 100
[display_total_sum] => 11 721 825
)
1
11 721 825₽
Работа:479 100 ₽
Материалы:11 242 725 ₽
Дни:7
stdClass Object
(
[id] => 99
[attribute_id] => 5
[name] => Срубы
[material_modifier] => 1
[work_modifier] => 1
[options] => Array
(
[0] => 260 мм
[1] => 320 мм
[2] => 360 мм
[3] => 400 мм
[4] => 500 мм
)
[days] => [7,8,9,10,11]
[material_price] => [16175,23709,26314,29069,32167]
[work_price] => [4806,5911,6621,7349,9260]
[image] => https://akademik-stroy.ru/wp-content/uploads/materials/suhoj-brus.jpg
[area_modifier] => 118.67
[parent_name] => Стены 2 этаж (несущие)
[parent_id] => 5
[material_sum] => 2418554
[work_sum] => 598844
[total_sum] => 3017398
[total_days] => 7
[display_material_sum] => 2 418 554
[display_work_sum] => 598 844
[display_total_sum] => 3 017 398
)
1
3 017 398₽
Работа:598 844 ₽
Материалы:2 418 554 ₽
Дни:7
stdClass Object
(
[id] => 194
[attribute_id] => 5
[name] => Брус
[material_modifier] => 1
[work_modifier] => 1
[options] => Array
(
[0] => 150 мм
[1] => 180 мм
[2] => 200 мм
)
[days] => [10,13,15]
[material_price] => [5127,6152,7367]
[work_price] => [1602,1922,2115]
[image] => https://akademik-stroy.ru/wp-content/uploads/materials/brus.jpg
[area_modifier] => 118.67
[parent_name] => Стены 2 этаж (несущие)
[parent_id] => 5
[material_sum] => 766611
[work_sum] => 199615
[total_sum] => 966226
[total_days] => 10
[display_material_sum] => 766 611
[display_work_sum] => 199 615
[display_total_sum] => 966 226
)
1
966 226₽
Работа:199 615 ₽
Материалы:766 611 ₽
Дни:10
stdClass Object
(
[id] => 195
[attribute_id] => 5
[name] => Газобетон
[material_modifier] => 1
[work_modifier] => 1
[options] => Array
(
[0] => 300 мм
[1] => 375 мм
[2] => 400 мм
[3] => 500 мм
[4] => 600 мм
)
[days] => [29,31,35,37,44]
[material_price] => [4298,5573,6356,7288,9119]
[work_price] => [4538,5251,5926,6733,7195]
[image] => https://akademik-stroy.ru/wp-content/uploads/materials/gazobeton.jpg
[area_modifier] => 118.67
[parent_name] => Стены 2 этаж (несущие)
[parent_id] => 5
[material_sum] => 642655
[work_sum] => 565451
[total_sum] => 1208106
[total_days] => 29
[display_material_sum] => 642 655
[display_work_sum] => 565 451
[display_total_sum] => 1 208 106
)
1
1 208 106₽
Работа:565 451 ₽
Материалы:642 655 ₽
Дни:29
stdClass Object
(
[id] => 196
[attribute_id] => 5
[name] => Блок
[material_modifier] => 1
[work_modifier] => 1
[options] => Array
(
[0] => 300 мм
[1] => 375 мм
[2] => 400 мм
[3] => 500 мм
[4] => 600 мм
)
[days] => [29,31,35,37,44]
[material_price] => [2698,3973,4356,6588,7119]
[work_price] => [5038,5851,6426,8733,9195]
[image] => https://akademik-stroy.ru/wp-content/uploads/materials/blok.jpg
[area_modifier] => 118.67
[parent_name] => Стены 2 этаж (несущие)
[parent_id] => 5
[material_sum] => 403416
[work_sum] => 627752
[total_sum] => 1031168
[total_days] => 29
[display_material_sum] => 403 416
[display_work_sum] => 627 752
[display_total_sum] => 1 031 168
)
1
1 031 168₽
Работа:627 752 ₽
Материалы:403 416 ₽
Дни:29
stdClass Object
(
[id] => 197
[attribute_id] => 5
[name] => Газосиликатный блок
[material_modifier] => 1
[work_modifier] => 1
[options] => Array
(
[0] => 300 мм
[1] => 375 мм
[2] => 400 мм
[3] => 500 мм
[4] => 600 мм
)
[days] => [29,31,35,37,44]
[material_price] => [4298,5573,6356,7288,9119]
[work_price] => [4538,5251,5926,6733,7195]
[image] => https://akademik-stroy.ru/wp-content/uploads/materials/gazosilikatnyj-blok.jpg
[area_modifier] => 118.67
[parent_name] => Стены 2 этаж (несущие)
[parent_id] => 5
[material_sum] => 642655
[work_sum] => 565451
[total_sum] => 1208106
[total_days] => 29
[display_material_sum] => 642 655
[display_work_sum] => 565 451
[display_total_sum] => 1 208 106
)
1
1 208 106₽
Работа:565 451 ₽
Материалы:642 655 ₽
Дни:29
stdClass Object
(
[id] => 198
[attribute_id] => 5
[name] => Керамзитобетонный блок
[material_modifier] => 1
[work_modifier] => 1
[options] => Array
(
[0] => 300 мм
[1] => 375 мм
[2] => 400 мм
[3] => 500 мм
[4] => 600 мм
)
[days] => [23,23,24,25,28]
[material_price] => [3641,4298,5693,7613,9612]
[work_price] => [5737,5737,6903,7958,8901]
[image] => https://akademik-stroy.ru/wp-content/uploads/materials/keramzitobetonnyj-blok.jpg
[area_modifier] => 118.67
[parent_name] => Стены 2 этаж (несущие)
[parent_id] => 5
[material_sum] => 544418
[work_sum] => 714850
[total_sum] => 1259268
[total_days] => 23
[display_material_sum] => 544 418
[display_work_sum] => 714 850
[display_total_sum] => 1 259 268
)
1
1 259 268₽
Работа:714 850 ₽
Материалы:544 418 ₽
Дни:23
stdClass Object
(
[id] => 199
[attribute_id] => 5
[name] => Деревянные
[material_modifier] => 1
[work_modifier] => 1
[options] => Array
(
[0] => 180 мм
[1] => 220 мм
[2] => 260 мм
[3] => 320 мм
)
[days] => [7,8,9,10]
[material_price] => [7950,9458,11961,14472]
[work_price] => [4037,4925,5812,7207]
[image] => https://akademik-stroy.ru/wp-content/uploads/materials/derevyannye.jpg
[area_modifier] => 118.67
[parent_name] => Стены 2 этаж (несущие)
[parent_id] => 5
[material_sum] => 1188717
[work_sum] => 503024
[total_sum] => 1691741
[total_days] => 7
[display_material_sum] => 1 188 717
[display_work_sum] => 503 024
[display_total_sum] => 1 691 741
)
1
1 691 741₽
Работа:503 024 ₽
Материалы:1 188 717 ₽
Дни:7
stdClass Object
(
[id] => 200
[attribute_id] => 5
[name] => Камень
[material_modifier] => 1
[work_modifier] => 1
[options] => Array
(
[0] => 300 мм
[1] => 400 мм
[2] => 500 мм
[3] => 600 мм
)
[days] => [25,27,31,34]
[material_price] => [5262,6844,8330,9815]
[work_price] => [8331,9135,10427,11069]
[image] => https://akademik-stroy.ru/wp-content/uploads/materials/kamen.jpg
[area_modifier] => 118.67
[parent_name] => Стены 2 этаж (несущие)
[parent_id] => 5
[material_sum] => 786796
[work_sum] => 1038072
[total_sum] => 1824868
[total_days] => 25
[display_material_sum] => 786 796
[display_work_sum] => 1 038 072
[display_total_sum] => 1 824 868
)
1
1 824 868₽
Работа:1 038 072 ₽
Материалы:786 796 ₽
Дни:25
stdClass Object
(
[id] => 201
[attribute_id] => 5
[name] => Каркасно-щитовые
[material_modifier] => 1
[work_modifier] => 1
[options] => Array
(
[0] => 150 мм
[1] => 200 мм
[2] => 250 мм
[3] => 300 мм
[4] => 350 мм
[5] => 400 мм
)
[days] => [15,16,17,18,19,20]
[material_price] => [2379,2639,2898,3458,3601,4175]
[work_price] => [2538,2820,3134,3483,4062,5642]
[image] => https://akademik-stroy.ru/wp-content/uploads/materials/karkasno-shchitovye.jpg
[area_modifier] => 118.67
[parent_name] => Стены 2 этаж (несущие)
[parent_id] => 5
[material_sum] => 355718
[work_sum] => 316244
[total_sum] => 671962
[total_days] => 15
[display_material_sum] => 355 718
[display_work_sum] => 316 244
[display_total_sum] => 671 962
)
1
671 962₽
Работа:316 244 ₽
Материалы:355 718 ₽
Дни:15
stdClass Object
(
[id] => 202
[attribute_id] => 5
[name] => Рубленные
[material_modifier] => 1
[work_modifier] => 1
[options] => Array
(
[0] => 150 мм
[1] => 200 мм
[2] => 250 мм
[3] => 300 мм
[4] => 350 мм
[5] => 400 мм
)
[days] => [15,16,17,18,17,18]
[material_price] => [35950,50267,60583,75900,80217,100533]
[work_price] => [9612,12816,16020,19224,22428,25632]
[image] => https://akademik-stroy.ru/wp-content/uploads/materials/rublennye.jpg
[area_modifier] => 118.67
[parent_name] => Стены 2 этаж (несущие)
[parent_id] => 5
[material_sum] => 5375395
[work_sum] => 1197689
[total_sum] => 6573084
[total_days] => 15
[display_material_sum] => 5 375 395
[display_work_sum] => 1 197 689
[display_total_sum] => 6 573 084
)
1
6 573 084₽
Работа:1 197 689 ₽
Материалы:5 375 395 ₽
Дни:15
stdClass Object
(
[id] => 203
[attribute_id] => 5
[name] => Теплоблок
[material_modifier] => 1
[work_modifier] => 1
[options] => Array
(
[0] => 300 мм (с облицовкой, не покрашенный)
[1] => 400 мм (с облицовкой, не покрашенный)
[2] => 300 мм (с облицовкой, покрашенный)
[3] => 400 мм (с облицовкой, покрашенный)
)
[days] => [15,16,15,16]
[material_price] => [2888,3729,3957,4258]
[work_price] => [2564,3229,2949,3713]
[image] => https://akademik-stroy.ru/wp-content/uploads/materials/teploblok.jpg
[area_modifier] => 118.67
[parent_name] => Стены 2 этаж (несущие)
[parent_id] => 5
[material_sum] => 431826
[work_sum] => 319483
[total_sum] => 751309
[total_days] => 15
[display_material_sum] => 431 826
[display_work_sum] => 319 483
[display_total_sum] => 751 309
)
1
751 309₽
Работа:319 483 ₽
Материалы:431 826 ₽
Дни:15
stdClass Object
(
[id] => 204
[attribute_id] => 5
[name] => Арболитовые блоки
[material_modifier] => 1
[work_modifier] => 1
[options] => Array
(
[0] => 300 мм
[1] => 400 мм
[2] => 600 мм
)
[days] => [19,22,27]
[material_price] => [3210,4475,5852]
[work_price] => [4214,4788,5866]
[image] => https://akademik-stroy.ru/wp-content/uploads/materials/arbolitovye-bloki.png
[area_modifier] => 118.67
[parent_name] => Стены 2 этаж (несущие)
[parent_id] => 5
[material_sum] => 479973
[work_sum] => 525079
[total_sum] => 1005052
[total_days] => 19
[display_material_sum] => 479 973
[display_work_sum] => 525 079
[display_total_sum] => 1 005 052
)
1
1 005 052₽
Работа:525 079 ₽
Материалы:479 973 ₽
Дни:19
stdClass Object
(
[id] => 205
[attribute_id] => 5
[name] => Полистиролбетон
[material_modifier] => 1
[work_modifier] => 1
[options] => Array
(
[0] => 300 мм
[1] => 400 мм
[2] => 600 мм
)
[days] => [29,31,35]
[material_price] => [2798,4573,5256]
[work_price] => [5038,5851,6426]
[image] => https://akademik-stroy.ru/wp-content/uploads/materials/polistirolbeton.jpg
[area_modifier] => 118.67
[parent_name] => Стены 2 этаж (несущие)
[parent_id] => 5
[material_sum] => 418369
[work_sum] => 627752
[total_sum] => 1046121
[total_days] => 29
[display_material_sum] => 418 369
[display_work_sum] => 627 752
[display_total_sum] => 1 046 121
)
1
1 046 121₽
Работа:627 752 ₽
Материалы:418 369 ₽
Дни:29
stdClass Object
(
[id] => 206
[attribute_id] => 5
[name] => Шлакоблок
[material_modifier] => 1
[work_modifier] => 1
[options] => Array
(
[0] => 400 мм
[1] => 600 мм
)
[days] => [15,16]
[material_price] => [2391,3471]
[work_price] => [2642,3662]
[image] => https://akademik-stroy.ru/wp-content/uploads/materials/shlakoblok.jpg
[area_modifier] => 118.67
[parent_name] => Стены 2 этаж (несущие)
[parent_id] => 5
[material_sum] => 357512
[work_sum] => 329202
[total_sum] => 686714
[total_days] => 15
[display_material_sum] => 357 512
[display_work_sum] => 329 202
[display_total_sum] => 686 714
)
1
686 714₽
Работа:329 202 ₽
Материалы:357 512 ₽
Дни:15
stdClass Object
(
[id] => 245
[attribute_id] => 5
[name] => Теплая керамика
[material_modifier] => 1
[work_modifier] => 1
[options] => Array
(
[0] => 380 мм
[1] => 380 мм Thermo
[2] => 440 мм
[3] => 510 мм
)
[days] => [10,10,11,12]
[material_price] => [4510,5098,6093,8013]
[work_price] => [4737,4937,5903,6958]
[image] => https://akademik-stroy.ru/wp-content/uploads/materials/teplaya-keramika.jpg
[area_modifier] => 118.67
[parent_name] => Стены 2 этаж (несущие)
[parent_id] => 5
[material_sum] => 674354
[work_sum] => 590247
[total_sum] => 1264601
[total_days] => 10
[display_material_sum] => 674 354
[display_work_sum] => 590 247
[display_total_sum] => 1 264 601
)
1
1 264 601₽
Работа:590 247 ₽
Материалы:674 354 ₽
Дни:10
stdClass Object
(
[id] => 246
[attribute_id] => 5
[name] => Несъемная опалубка
[material_modifier] => 1
[work_modifier] => 1
[options] => Array
(
[0] => 380 мм
[1] => 380 мм Thermo
[2] => 440 мм
[3] => 510 мм
)
[days] => [10,10,11,12]
[material_price] => [3302,3902,4108,5008]
[work_price] => [2100,2100,2300,2534]
[image] => https://akademik-stroy.ru/wp-content/uploads/materials/nesemnaya-opalubka.jpg
[area_modifier] => 118.67
[parent_name] => Стены 2 этаж (несущие)
[parent_id] => 5
[material_sum] => 493729
[work_sum] => 261667
[total_sum] => 755396
[total_days] => 10
[display_material_sum] => 493 729
[display_work_sum] => 261 667
[display_total_sum] => 755 396
)
1
755 396₽
Работа:261 667 ₽
Материалы:493 729 ₽
Дни:10
stdClass Object
(
[id] => 254
[attribute_id] => 5
[name] => Бревно
[material_modifier] => 1
[work_modifier] => 1
[options] => Array
(
[0] => 260 мм
[1] => 320 мм
[2] => 360 мм
[3] => 400 мм
[4] => 500 мм
)
[days] => [7,8,9,10,11]
[material_price] => [1874,24045,26930,30972,38825]
[work_price] => [5046,6207,6952,7716,9723]
[image] => https://akademik-stroy.ru/wp-content/uploads/materials/sruby.jpg
[area_modifier] => 118.67
[parent_name] => Стены 2 этаж (несущие)
[parent_id] => 5
[material_sum] => 280208
[work_sum] => 628749
[total_sum] => 908957
[total_days] => 7
[display_material_sum] => 280 208
[display_work_sum] => 628 749
[display_total_sum] => 908 957
)
1
908 957₽
Работа:628 749 ₽
Материалы:280 208 ₽
Дни:7
stdClass Object
(
[id] => 11
[attribute_id] => 6
[name] => Деревянные балки
[material_modifier] => 1
[work_modifier] => 1
[options] => Array
(
[0] => без утепления
[1] => утепление 200 мм
[2] => утепление 250 мм
[3] => утепление 300 мм
[4] => утепление 350 мм
[5] => утепление 400 мм
[6] => утепление 450 мм
[7] => утепление 500 мм
)
[days] => [8,9,9,9,11,12,13,14]
[material_price] => [1634,2042,2344,2947,3149,3652,3354,3557]
[work_price] => [1230,1339,1393,1426,1460,1513,1587,1620]
[image] => https://akademik-stroy.ru/wp-content/uploads/materials/derevyannye-balki.png
[area_modifier] => 118.67
[parent_name] => Перекрытие второго этажа
[parent_id] => 6
[material_sum] => 244323
[work_sum] => 153262
[total_sum] => 397585
[total_days] => 8
[display_material_sum] => 244 323
[display_work_sum] => 153 262
[display_total_sum] => 397 585
)
1
397 585₽
Работа:153 262 ₽
Материалы:244 323 ₽
Дни:8
stdClass Object
(
[id] => 12
[attribute_id] => 6
[name] => Сборные ж/б плиты
[material_modifier] => 1
[work_modifier] => 1
[options] => Array
(
[0] => без утепления
[1] => утепление 150 мм
[2] => утепление 200 мм
[3] => утепление 250 мм
[4] => утепление 300 мм
[5] => утепление 350 мм
[6] => утепление 400 мм
[7] => утепление 450 мм
[8] => утепление 500 мм
)
[days] => [13,15,15,15,15,15,15,15,15]
[material_price] => [3067,5577,5928,6679,7730,8782,9833,10884,11935]
[work_price] => [1520,1956,2102,2247,2392,2537,2684,2829,2974]
[image] => https://akademik-stroy.ru/wp-content/uploads/materials/sbornye-zh-b-plity-2.jpg
[area_modifier] => 118.67
[parent_name] => Перекрытие второго этажа
[parent_id] => 6
[material_sum] => 458591
[work_sum] => 189397
[total_sum] => 647988
[total_days] => 13
[display_material_sum] => 458 591
[display_work_sum] => 189 397
[display_total_sum] => 647 988
)
1
647 988₽
Работа:189 397 ₽
Материалы:458 591 ₽
Дни:13
stdClass Object
(
[id] => 100
[attribute_id] => 6
[name] => Монолитная ж/б плита
[material_modifier] => 1
[work_modifier] => 1
[options] => Array
(
[0] => без утепления
[1] => утепление 150 мм
[2] => утепление 200 мм
[3] => утепление 250 мм
[4] => утепление 300 мм
[5] => утепление 350 мм
[6] => утепление 400 мм
[7] => утепление 450 мм
[8] => утепление 500 мм
)
[days] => [18,20,20,20,20,20,20,20,20]
[material_price] => [4837,6572,7224,7375,79426,8177,8728,9180,10031]
[work_price] => [3348,3921,4112,4302,4493,4684,4875,5066,5256]
[image] => https://akademik-stroy.ru/wp-content/uploads/materials/monolitnaya-zh-b-plita-2.jpg
[area_modifier] => 118.67
[parent_name] => Перекрытие второго этажа
[parent_id] => 6
[material_sum] => 723249
[work_sum] => 417173
[total_sum] => 1140422
[total_days] => 18
[display_material_sum] => 723 249
[display_work_sum] => 417 173
[display_total_sum] => 1 140 422
)
1
1 140 422₽
Работа:417 173 ₽
Материалы:723 249 ₽
Дни:18
stdClass Object
(
[id] => 160
[attribute_id] => 36
[name] => Не эксплуатируемая
[material_modifier] => 1
[work_modifier] => 1
[options] => Array
(
)
[days] => [10]
[material_price] => [8068]
[work_price] => [4163]
[image] => https://akademik-stroy.ru/wp-content/uploads/materials/ne-ehkspluatiruemaya-3.jpg
[area_modifier] => 172.03
[parent_name] => Плоская крыша
[parent_id] => 36
[material_sum] => 1748802
[work_sum] => 751969
[total_sum] => 2500771
[total_days] => 10
[display_material_sum] => 1 748 802
[display_work_sum] => 751 969
[display_total_sum] => 2 500 771
)
1
2 500 771₽
Работа:751 969 ₽
Материалы:1 748 802 ₽
Дни:10
stdClass Object
(
[id] => 161
[attribute_id] => 36
[name] => Зеленая кровля (Эксплуатируемая)
[material_modifier] => 1
[work_modifier] => 1
[options] => Array
(
)
[days] => [10]
[material_price] => [10056]
[work_price] => [8446]
[image] => https://akademik-stroy.ru/wp-content/uploads/materials/zelenaya-krovlya-2.jpg
[area_modifier] => 172.03
[parent_name] => Плоская крыша
[parent_id] => 36
[material_sum] => 2179716
[work_sum] => 1525614
[total_sum] => 3705330
[total_days] => 10
[display_material_sum] => 2 179 716
[display_work_sum] => 1 525 614
[display_total_sum] => 3 705 330
)
1
3 705 330₽
Работа:1 525 614 ₽
Материалы:2 179 716 ₽
Дни:10
stdClass Object
(
[id] => 162
[attribute_id] => 36
[name] => Эксплуатируемая
[material_modifier] => 1
[work_modifier] => 1
[options] => Array
(
)
[days] => [10]
[material_price] => [9593]
[work_price] => [7459]
[image] => https://akademik-stroy.ru/wp-content/uploads/materials/ehkspluatiruemaya-2.jpg
[area_modifier] => 172.03
[parent_name] => Плоская крыша
[parent_id] => 36
[material_sum] => 2079358
[work_sum] => 1347330
[total_sum] => 3426688
[total_days] => 10
[display_material_sum] => 2 079 358
[display_work_sum] => 1 347 330
[display_total_sum] => 3 426 688
)
1
3 426 688₽
Работа:1 347 330 ₽
Материалы:2 079 358 ₽
Дни:10
stdClass Object
(
[id] => 163
[attribute_id] => 36
[name] => Нет
[material_modifier] => 1
[work_modifier] => 1
[options] => Array
(
)
[days] => [0]
[material_price] => [0]
[work_price] => [0]
[image] => https://akademik-stroy.ru/wp-content/uploads/materials/ne-ehkspluatiruemaya-3.jpg
[area_modifier] => 172.03
[parent_name] => Плоская крыша
[parent_id] => 36
[material_sum] => 0
[work_sum] => 0
[total_sum] => 0
[total_days] => 0
[display_material_sum] => 0
[display_work_sum] => 0
[display_total_sum] => 0
)
1
0₽
Работа:0 ₽
Материалы:0 ₽
Дни:0
stdClass Object
(
[id] => 51
[attribute_id] => 26
[name] => Есть
[material_modifier] => 1
[work_modifier] => 1
[options] => Array
(
[0] => Профиль 58 мм, 3-камерный, стеклопакет 2-камерный до 32 мм
[1] => Профиль 60 мм, 4-камерный, стеклопакет 2-камерный до 32 мм
[2] => Профиль 70 мм, 5-камерный, стеклопакет 2-камерный до 40 мм
[3] => Профиль 72 мм, 5-камерный, стеклопакет 2-камерный до 40 мм
[4] => Алюминиевые окна Alutech профиль 72 мм, стеклопакет 2-камерный
)
[days] => [3,3,3,3,3]
[material_price] => [1339,2124,2867,3023,29596]
[work_price] => [635,647,659,668,2579]
[image] => https://akademik-stroy.ru/wp-content/uploads/materials/okna.jpg
[area_modifier] => 235.9
[parent_name] => Окна
[parent_id] => 26
[material_sum] => 397996
[work_sum] => 157286
[total_sum] => 555282
[total_days] => 3
[display_material_sum] => 397 996
[display_work_sum] => 157 286
[display_total_sum] => 555 282
)
1
555 282₽
Работа:157 286 ₽
Материалы:397 996 ₽
Дни:3
stdClass Object
(
[id] => 52
[attribute_id] => 26
[name] => Нет
[material_modifier] => 2
[work_modifier] => 1
[options] =>
[days] => null
[material_price] => null
[work_price] => null
[image] => https://akademik-stroy.ru/wp-content/uploads/materials/okna.jpg
[area_modifier] => 235.9
[parent_name] => Окна
[parent_id] => 26
[material_sum] => 0
[work_sum] => 0
[total_sum] => 0
[total_days] => 0
[display_material_sum] => 0
[display_work_sum] => 0
[display_total_sum] => 0
)
1
0₽
Работа:0 ₽
Материалы:0 ₽
Дни:0
stdClass Object
(
[id] => 53
[attribute_id] => 27
[name] => Есть
[material_modifier] => 1
[work_modifier] => 1
[options] => Array
(
)
[days] => [1]
[material_price] => [10000]
[work_price] => [5500]
[image] => https://akademik-stroy.ru/wp-content/uploads/materials/dveri.jpg
[area_modifier] => 1
[parent_name] => Двери входные
[parent_id] => 27
[material_sum] => 12600
[work_sum] => 5775
[total_sum] => 18375
[total_days] => 1
[display_material_sum] => 12 600
[display_work_sum] => 5 775
[display_total_sum] => 18 375
)
1
18 375₽
Работа:5 775 ₽
Материалы:12 600 ₽
Дни:1
stdClass Object
(
[id] => 54
[attribute_id] => 27
[name] => Нет
[material_modifier] => 1
[work_modifier] => 1
[options] => Array
(
)
[days] => [0]
[material_price] => [0]
[work_price] => [0]
[image] => https://akademik-stroy.ru/wp-content/uploads/materials/dveri.jpg
[area_modifier] => 1
[parent_name] => Двери входные
[parent_id] => 27
[material_sum] => 0
[work_sum] => 0
[total_sum] => 0
[total_days] => 0
[display_material_sum] => 0
[display_work_sum] => 0
[display_total_sum] => 0
)
1
0₽
Работа:0 ₽
Материалы:0 ₽
Дни:0
stdClass Object
(
[id] => 31
[attribute_id] => 16
[name] => Нет
[material_modifier] => 1
[work_modifier] => 1
[options] => Array
(
)
[days] => [0]
[material_price] => [0]
[work_price] => [0]
[image] => https://akademik-stroy.ru/wp-content/uploads/materials/docke-standard-pvh.jpg
[area_modifier] => 172.03
[parent_name] => Водосточная система
[parent_id] => 16
[material_sum] => 0
[work_sum] => 0
[total_sum] => 0
[total_days] => 0
[display_material_sum] => 0
[display_work_sum] => 0
[display_total_sum] => 0
)
1
0₽
Работа:0 ₽
Материалы:0 ₽
Дни:0
stdClass Object
(
[id] => 32
[attribute_id] => 16
[name] => Есть
[material_modifier] => 1
[work_modifier] => 1
[options] => Array
(
[0] => Döcke Standard (ПВХ)
[1] => Металлические Grand Line
)
[days] => [7,7]
[material_price] => [1842,2703]
[work_price] => [1491,1529]
[image] => https://akademik-stroy.ru/wp-content/uploads/materials/docke-standard-pvh.jpg
[area_modifier] => 172.03
[parent_name] => Водосточная система
[parent_id] => 16
[material_sum] => 399268
[work_sum] => 269322
[total_sum] => 668590
[total_days] => 7
[display_material_sum] => 399 268
[display_work_sum] => 269 322
[display_total_sum] => 668 590
)
1
668 590₽
Работа:269 322 ₽
Материалы:399 268 ₽
Дни:7
stdClass Object
(
[id] => 33
[attribute_id] => 17
[name] => Нет
[material_modifier] => 1
[work_modifier] => 1
[options] => Array
(
)
[days] => [0]
[material_price] => [0]
[work_price] => [0]
[image] => https://akademik-stroy.ru/wp-content/uploads/materials/mineralovata.jpg
[area_modifier] => 290.7
[parent_name] => Дополнительное утепление наружных стен
[parent_id] => 17
[material_sum] => 0
[work_sum] => 0
[total_sum] => 0
[total_days] => 0
[display_material_sum] => 0
[display_work_sum] => 0
[display_total_sum] => 0
)
1
0₽
Работа:0 ₽
Материалы:0 ₽
Дни:0
stdClass Object
(
[id] => 34
[attribute_id] => 17
[name] => Минераловатный
[material_modifier] => 1
[work_modifier] => 1
[options] => Array
(
[0] => 50 мм
[1] => 100 мм
[2] => 150 мм
[3] => 200 мм
[4] => 250 мм
[5] => 300 мм
)
[days] => [7,8,10,12,14,15]
[material_price] => [3437,3613,3803,3915,4601,4830]
[work_price] => [2325,2423,2523,2749,2859,3025]
[image] => https://akademik-stroy.ru/wp-content/uploads/materials/mineralovata.jpg
[area_modifier] => 290.7
[parent_name] => Дополнительное утепление наружных стен
[parent_id] => 17
[material_sum] => 1258911
[work_sum] => 709671
[total_sum] => 1968582
[total_days] => 7
[display_material_sum] => 1 258 911
[display_work_sum] => 709 671
[display_total_sum] => 1 968 582
)
1
1 968 582₽
Работа:709 671 ₽
Материалы:1 258 911 ₽
Дни:7
stdClass Object
(
[id] => 128
[attribute_id] => 17
[name] => Эковата (целлюлозная вата)
[material_modifier] => 1
[work_modifier] => 1
[options] => Array
(
[0] => 50 мм
[1] => 100 мм
[2] => 150 мм
[3] => 200 мм
[4] => 250 мм
[5] => 300 мм
)
[days] => [3,4,5,6,7,8]
[material_price] => [810,1319,1629,1838,2267,2676]
[work_price] => [1225,1323,1423,1549,1659,1725]
[image] => https://akademik-stroy.ru/wp-content/uploads/materials/ehkovata.jpg
[area_modifier] => 290.7
[parent_name] => Дополнительное утепление наружных стен
[parent_id] => 17
[material_sum] => 296688
[work_sum] => 373913
[total_sum] => 670601
[total_days] => 3
[display_material_sum] => 296 688
[display_work_sum] => 373 913
[display_total_sum] => 670 601
)
1
670 601₽
Работа:373 913 ₽
Материалы:296 688 ₽
Дни:3
stdClass Object
(
[id] => 129
[attribute_id] => 17
[name] => Экструдированный пенополистирол
[material_modifier] => 1
[work_modifier] => 1
[options] => Array
(
[0] => 50 мм
[1] => 100 мм
[2] => 150 мм
[3] => 200 мм
[4] => 250 мм
[5] => 300 мм
)
[days] => [5,6,7,8,9,10]
[material_price] => [4560,4300,5119,6292,7010,8583]
[work_price] => [1795,1954,2254,2330,2595,2735]
[image] => https://akademik-stroy.ru/wp-content/uploads/materials/epps.jpg
[area_modifier] => 290.7
[parent_name] => Дополнительное утепление наружных стен
[parent_id] => 17
[material_sum] => 1670246
[work_sum] => 547897
[total_sum] => 2218143
[total_days] => 5
[display_material_sum] => 1 670 246
[display_work_sum] => 547 897
[display_total_sum] => 2 218 143
)
1
2 218 143₽
Работа:547 897 ₽
Материалы:1 670 246 ₽
Дни:5
stdClass Object
(
[id] => 130
[attribute_id] => 17
[name] => ПСБ (ППС-пенополистирол)
[material_modifier] => 1
[work_modifier] => 1
[options] => Array
(
[0] => 50 мм
[1] => 100 мм
[2] => 150 мм
[3] => 200 мм
[4] => 250 мм
[5] => 300 мм
)
[days] => [5,6,7,8,9,10]
[material_price] => [4822,5200,5819,6292,7010,7583]
[work_price] => [1795,1954,2254,2330,2595,2735]
[image] => https://akademik-stroy.ru/wp-content/uploads/materials/psb.jpg
[area_modifier] => 290.7
[parent_name] => Дополнительное утепление наружных стен
[parent_id] => 17
[material_sum] => 1766212
[work_sum] => 547897
[total_sum] => 2314109
[total_days] => 5
[display_material_sum] => 1 766 212
[display_work_sum] => 547 897
[display_total_sum] => 2 314 109
)
1
2 314 109₽
Работа:547 897 ₽
Материалы:1 766 212 ₽
Дни:5
stdClass Object
(
[id] => 131
[attribute_id] => 17
[name] => ППУ (Пенополиуретан)
[material_modifier] => 1
[work_modifier] => 1
[options] => Array
(
[0] => 50 мм
[1] => 100 мм
[2] => 150 мм
[3] => 200 мм
[4] => 250 мм
[5] => 300 мм
)
[days] => [3,4,5,6,7,8]
[material_price] => [2860,3400,4219,4592,5010,5583]
[work_price] => [729,900,980,1120,1280,1530]
[image] => https://akademik-stroy.ru/wp-content/uploads/materials/ppu.jpg
[area_modifier] => 290.7
[parent_name] => Дополнительное утепление наружных стен
[parent_id] => 17
[material_sum] => 1047567
[work_sum] => 222516
[total_sum] => 1270083
[total_days] => 3
[display_material_sum] => 1 047 567
[display_work_sum] => 222 516
[display_total_sum] => 1 270 083
)
1
1 270 083₽
Работа:222 516 ₽
Материалы:1 047 567 ₽
Дни:3
stdClass Object
(
[id] => 132
[attribute_id] => 17
[name] => PIR-плиты (пенополиизоцианурат)
[material_modifier] => 1
[work_modifier] => 1
[options] => Array
(
[0] => 50 мм
[1] => 100 мм
[2] => 150 мм
[3] => 200 мм
[4] => 250 мм
[5] => 300 мм
)
[days] => [5,6,7,8,9,10]
[material_price] => [8323,15645,20968,25900,29258,30581]
[work_price] => [800,900,970,1150,1280,1330]
[image] => https://akademik-stroy.ru/wp-content/uploads/materials/pir.jpg
[area_modifier] => 290.7
[parent_name] => Дополнительное утепление наружных стен
[parent_id] => 17
[material_sum] => 3048565
[work_sum] => 244188
[total_sum] => 3292753
[total_days] => 5
[display_material_sum] => 3 048 565
[display_work_sum] => 244 188
[display_total_sum] => 3 292 753
)
1
3 292 753₽
Работа:244 188 ₽
Материалы:3 048 565 ₽
Дни:5
stdClass Object
(
[id] => 37
[attribute_id] => 19
[name] => Нет
[material_modifier] => 1
[work_modifier] => 1
[options] => Array
(
)
[days] => [0]
[material_price] => [0]
[work_price] => [0]
[image] => https://akademik-stroy.ru/wp-content/uploads/materials/imitaciya-brusa.jpg
[area_modifier] => 290.7
[parent_name] => Наружная отделка фасада
[parent_id] => 19
[material_sum] => 0
[work_sum] => 0
[total_sum] => 0
[total_days] => 0
[display_material_sum] => 0
[display_work_sum] => 0
[display_total_sum] => 0
)
1
0₽
Работа:0 ₽
Материалы:0 ₽
Дни:0
stdClass Object
(
[id] => 38
[attribute_id] => 19
[name] => Имитация бруса
[material_modifier] => 1
[work_modifier] => 1
[options] => Array
(
[0] => Сосна
[1] => Ель
[2] => Лиственница
)
[days] => [20,20,20]
[material_price] => [2994,2762,4954]
[work_price] => [1397,1231,1577]
[image] => https://akademik-stroy.ru/wp-content/uploads/materials/imitaciya-brusa.jpg
[area_modifier] => 290.7
[parent_name] => Наружная отделка фасада
[parent_id] => 19
[material_sum] => 1096648
[work_sum] => 426413
[total_sum] => 1523061
[total_days] => 20
[display_material_sum] => 1 096 648
[display_work_sum] => 426 413
[display_total_sum] => 1 523 061
)
1
1 523 061₽
Работа:426 413 ₽
Материалы:1 096 648 ₽
Дни:20
stdClass Object
(
[id] => 136
[attribute_id] => 19
[name] => Планкен
[material_modifier] => 1
[work_modifier] => 1
[options] => Array
(
[0] => Сосна
[1] => Ель
[2] => Лиственница
)
[days] => [20,20,20]
[material_price] => [3194,2862,5154]
[work_price] => [1537,1354,1735]
[image] => https://akademik-stroy.ru/wp-content/uploads/materials/planken.jpg
[area_modifier] => 290.7
[parent_name] => Наружная отделка фасада
[parent_id] => 19
[material_sum] => 1169905
[work_sum] => 469146
[total_sum] => 1639051
[total_days] => 20
[display_material_sum] => 1 169 905
[display_work_sum] => 469 146
[display_total_sum] => 1 639 051
)
1
1 639 051₽
Работа:469 146 ₽
Материалы:1 169 905 ₽
Дни:20
stdClass Object
(
[id] => 137
[attribute_id] => 19
[name] => Штукатурка
[material_modifier] => 1
[work_modifier] => 1
[options] => Array
(
[0] => Цементно-песчаная (минеральная)
[1] => Мокрый фасад
)
[days] => [35,35]
[material_price] => [2231,3938]
[work_price] => [1202,2422]
[image] => https://akademik-stroy.ru/wp-content/uploads/materials/shtukaturka.jpg
[area_modifier] => 290.7
[parent_name] => Наружная отделка фасада
[parent_id] => 19
[material_sum] => 817175
[work_sum] => 366892
[total_sum] => 1184067
[total_days] => 35
[display_material_sum] => 817 175
[display_work_sum] => 366 892
[display_total_sum] => 1 184 067
)
1
1 184 067₽
Работа:366 892 ₽
Материалы:817 175 ₽
Дни:35
stdClass Object
(
[id] => 138
[attribute_id] => 19
[name] => Облицовочный кирпич
[material_modifier] => 1
[work_modifier] => 1
[options] => Array
(
[0] => Керамический
[1] => Клинкерный
[2] => Ручной формовки
[3] => Гиперпрессованный
[4] => Силикатный кирпич
)
[days] => [45,45,45,45,45]
[material_price] => [8174,9148,1040,1257,5876]
[work_price] => [3240,3758,4536,4017,3369]
[image] => https://akademik-stroy.ru/wp-content/uploads/materials/oblicovochnyj-kirpich.jpg
[area_modifier] => 290.7
[parent_name] => Наружная отделка фасада
[parent_id] => 19
[material_sum] => 2993989
[work_sum] => 988961
[total_sum] => 3982950
[total_days] => 45
[display_material_sum] => 2 993 989
[display_work_sum] => 988 961
[display_total_sum] => 3 982 950
)
1
3 982 950₽
Работа:988 961 ₽
Материалы:2 993 989 ₽
Дни:45
stdClass Object
(
[id] => 139
[attribute_id] => 19
[name] => Фасадная плитка
[material_modifier] => 1
[work_modifier] => 1
[options] => Array
(
[0] => Клинкерная
[1] => Керамическая
[2] => Плитка ручной формовки
)
[days] => [40,40,40]
[material_price] => [2974,1487,3470]
[work_price] => [3007,2592,3629]
[image] => https://akademik-stroy.ru/wp-content/uploads/materials/fasadnaya-plitka.jpg
[area_modifier] => 290.7
[parent_name] => Наружная отделка фасада
[parent_id] => 19
[material_sum] => 1089323
[work_sum] => 917842
[total_sum] => 2007165
[total_days] => 40
[display_material_sum] => 1 089 323
[display_work_sum] => 917 842
[display_total_sum] => 2 007 165
)
1
2 007 165₽
Работа:917 842 ₽
Материалы:1 089 323 ₽
Дни:40
stdClass Object
(
[id] => 140
[attribute_id] => 19
[name] => Сайдинг
[material_modifier] => 1
[work_modifier] => 1
[options] => Array
(
[0] => Виниловый
[1] => Металлический
[2] => Фиброцементный
)
[days] => [20,20,20]
[material_price] => [1263,1944,4147]
[work_price] => [1263,1944,2074]
[image] => https://akademik-stroy.ru/wp-content/uploads/materials/sajding.jpg
[area_modifier] => 290.7
[parent_name] => Наружная отделка фасада
[parent_id] => 19
[material_sum] => 462614
[work_sum] => 385512
[total_sum] => 848126
[total_days] => 20
[display_material_sum] => 462 614
[display_work_sum] => 385 512
[display_total_sum] => 848 126
)
1
848 126₽
Работа:385 512 ₽
Материалы:462 614 ₽
Дни:20
stdClass Object
(
[id] => 141
[attribute_id] => 19
[name] => Камень
[material_modifier] => 1
[work_modifier] => 1
[options] => Array
(
[0] => Травертин
[1] => Дагестанский
[2] => Искусственный
[3] => Натуральный
[4] => Керамогранит
)
[days] => [45,45,45,45,45]
[material_price] => [4536,3888,2592,3240,2462]
[work_price] => [3240,3240,2462,3110,1944]
[image] => https://akademik-stroy.ru/wp-content/uploads/materials/kamen-1.jpg
[area_modifier] => 290.7
[parent_name] => Наружная отделка фасада
[parent_id] => 19
[material_sum] => 1661455
[work_sum] => 988961
[total_sum] => 2650416
[total_days] => 45
[display_material_sum] => 1 661 455
[display_work_sum] => 988 961
[display_total_sum] => 2 650 416
)
1
2 650 416₽
Работа:988 961 ₽
Материалы:1 661 455 ₽
Дни:45
stdClass Object
(
[id] => 142
[attribute_id] => 19
[name] => Термопанели
[material_modifier] => 1
[work_modifier] => 1
[options] => Array
(
)
[days] => [20]
[material_price] => [6221]
[work_price] => [2333]
[image] => https://akademik-stroy.ru/wp-content/uploads/materials/termo.png
[area_modifier] => 290.7
[parent_name] => Наружная отделка фасада
[parent_id] => 19
[material_sum] => 2278640
[work_sum] => 712113
[total_sum] => 2990753
[total_days] => 20
[display_material_sum] => 2 278 640
[display_work_sum] => 712 113
[display_total_sum] => 2 990 753
)
1
2 990 753₽
Работа:712 113 ₽
Материалы:2 278 640 ₽
Дни:20
stdClass Object
(
[id] => 143
[attribute_id] => 19
[name] => Плитка HAUBERK
[material_modifier] => 1
[work_modifier] => 1
[options] => Array
(
)
[days] => [20]
[material_price] => [2786]
[work_price] => [1944]
[image] => https://akademik-stroy.ru/wp-content/uploads/materials/hauberk.jpg
[area_modifier] => 290.7
[parent_name] => Наружная отделка фасада
[parent_id] => 19
[material_sum] => 1020462
[work_sum] => 593377
[total_sum] => 1613839
[total_days] => 20
[display_material_sum] => 1 020 462
[display_work_sum] => 593 377
[display_total_sum] => 1 613 839
)
1
1 613 839₽
Работа:593 377 ₽
Материалы:1 020 462 ₽
Дни:20
stdClass Object
(
[id] => 144
[attribute_id] => 19
[name] => Фальцевый фасад
[material_modifier] => 1
[work_modifier] => 1
[options] => Array
(
)
[days] => [20]
[material_price] => [3240]
[work_price] => [2592]
[image] => https://akademik-stroy.ru/wp-content/uploads/materials/falcevyj-fasad.jpg
[area_modifier] => 290.7
[parent_name] => Наружная отделка фасада
[parent_id] => 19
[material_sum] => 1186754
[work_sum] => 791169
[total_sum] => 1977923
[total_days] => 20
[display_material_sum] => 1 186 754
[display_work_sum] => 791 169
[display_total_sum] => 1 977 923
)
1
1 977 923₽
Работа:791 169 ₽
Материалы:1 186 754 ₽
Дни:20
stdClass Object
(
[id] => 145
[attribute_id] => 19
[name] => Комбинированный
[material_modifier] => 1
[work_modifier] => 1
[options] => Array
(
)
[days] => [20]
[material_price] => [4629]
[work_price] => [3499]
[image] => https://akademik-stroy.ru/wp-content/uploads/materials/Kombinirovannyj.jpg
[area_modifier] => 290.7
[parent_name] => Наружная отделка фасада
[parent_id] => 19
[material_sum] => 1695519
[work_sum] => 1068017
[total_sum] => 2763536
[total_days] => 20
[display_material_sum] => 1 695 519
[display_work_sum] => 1 068 017
[display_total_sum] => 2 763 536
)
1
2 763 536₽
Работа:1 068 017 ₽
Материалы:1 695 519 ₽
Дни:20
stdClass Object
(
[id] => 257
[attribute_id] => 19
[name] => Японские фиброцементные
[material_modifier] => 1
[work_modifier] => 1
[options] => Array
(
)
[days] => [20]
[material_price] => [7043]
[work_price] => [2993]
[image] => https://akademik-stroy.ru/wp-content/uploads/materials/paneli.jpg
[area_modifier] => 290.7
[parent_name] => Наружная отделка фасада
[parent_id] => 19
[material_sum] => 2579724
[work_sum] => 913568
[total_sum] => 3493292
[total_days] => 20
[display_material_sum] => 2 579 724
[display_work_sum] => 913 568
[display_total_sum] => 3 493 292
)
1
3 493 292₽
Работа:913 568 ₽
Материалы:2 579 724 ₽
Дни:20
stdClass Object
(
[id] => 258
[attribute_id] => 19
[name] => Панели Каньон
[material_modifier] => 1
[work_modifier] => 1
[options] => Array
(
)
[days] => [20]
[material_price] => [4543]
[work_price] => [2592]
[image] => https://akademik-stroy.ru/wp-content/uploads/materials/kanon.png
[area_modifier] => 290.7
[parent_name] => Наружная отделка фасада
[parent_id] => 19
[material_sum] => 1664019
[work_sum] => 791169
[total_sum] => 2455188
[total_days] => 20
[display_material_sum] => 1 664 019
[display_work_sum] => 791 169
[display_total_sum] => 2 455 188
)
1
2 455 188₽
Работа:791 169 ₽
Материалы:1 664 019 ₽
Дни:20
stdClass Object
(
[id] => 39
[attribute_id] => 20
[name] => Нет
[material_modifier] => 1
[work_modifier] => 1
[options] => Array
(
)
[days] => [0]
[material_price] => [0]
[work_price] => [0]
[image] => https://akademik-stroy.ru/wp-content/uploads/materials/terrasy.jpg
[area_modifier] => 30
[parent_name] => Террасы, крыльца, навесы
[parent_id] => 20
[material_sum] => 0
[work_sum] => 0
[total_sum] => 0
[total_days] => 0
[display_material_sum] => 0
[display_work_sum] => 0
[display_total_sum] => 0
)
1
0₽
Работа:0 ₽
Материалы:0 ₽
Дни:0
stdClass Object
(
[id] => 40
[attribute_id] => 20
[name] => Есть
[material_modifier] => 1
[work_modifier] => 1
[options] => Array
(
)
[days] => [5]
[material_price] => [10450]
[work_price] => [1950]
[image] => https://akademik-stroy.ru/wp-content/uploads/materials/terrasy.jpg
[area_modifier] => 30
[parent_name] => Террасы, крыльца, навесы
[parent_id] => 20
[material_sum] => 395010
[work_sum] => 61425
[total_sum] => 456435
[total_days] => 5
[display_material_sum] => 395 010
[display_work_sum] => 61 425
[display_total_sum] => 456 435
)
1
456 435₽
Работа:61 425 ₽
Материалы:395 010 ₽
Дни:5
stdClass Object
(
[id] => 41
[attribute_id] => 21
[name] => Нет
[material_modifier] => 1
[work_modifier] => 1
[options] => Array
(
)
[days] => [0]
[material_price] => [0]
[work_price] => [0]
[image] => https://akademik-stroy.ru/wp-content/uploads/materials/balkony.jpg
[area_modifier] => 30
[parent_name] => Балконы
[parent_id] => 21
[material_sum] => 0
[work_sum] => 0
[total_sum] => 0
[total_days] => 0
[display_material_sum] => 0
[display_work_sum] => 0
[display_total_sum] => 0
)
1
0₽
Работа:0 ₽
Материалы:0 ₽
Дни:0
stdClass Object
(
[id] => 42
[attribute_id] => 21
[name] => Есть
[material_modifier] => 1
[work_modifier] => 1
[options] => Array
(
)
[days] => [12]
[material_price] => [3600]
[work_price] => [1950]
[image] => https://akademik-stroy.ru/wp-content/uploads/materials/balkony.jpg
[area_modifier] => 30
[parent_name] => Балконы
[parent_id] => 21
[material_sum] => 136080
[work_sum] => 61425
[total_sum] => 197505
[total_days] => 12
[display_material_sum] => 136 080
[display_work_sum] => 61 425
[display_total_sum] => 197 505
)
1
197 505₽
Работа:61 425 ₽
Материалы:136 080 ₽
Дни:12
stdClass Object
(
[id] => 43
[attribute_id] => 22
[name] => Нет
[material_modifier] => 1
[work_modifier] => 1
[options] => Array
(
)
[days] => [0]
[material_price] => [0]
[work_price] => [0]
[image] => https://akademik-stroy.ru/wp-content/uploads/materials/uteplennaya.jpg
[area_modifier] => 172.03
[parent_name] => Отмостка
[parent_id] => 22
[material_sum] => 0
[work_sum] => 0
[total_sum] => 0
[total_days] => 0
[display_material_sum] => 0
[display_work_sum] => 0
[display_total_sum] => 0
)
1
0₽
Работа:0 ₽
Материалы:0 ₽
Дни:0
stdClass Object
(
[id] => 44
[attribute_id] => 22
[name] => Утепленная отмостка
[material_modifier] => 1
[work_modifier] => 1
[options] => Array
(
)
[days] => [15]
[material_price] => [2550]
[work_price] => [1750]
[image] => https://akademik-stroy.ru/wp-content/uploads/materials/uteplennaya.jpg
[area_modifier] => 172.03
[parent_name] => Отмостка
[parent_id] => 22
[material_sum] => 552732
[work_sum] => 316105
[total_sum] => 868837
[total_days] => 15
[display_material_sum] => 552 732
[display_work_sum] => 316 105
[display_total_sum] => 868 837
)
1
868 837₽
Работа:316 105 ₽
Материалы:552 732 ₽
Дни:15
stdClass Object
(
[id] => 146
[attribute_id] => 22
[name] => Не утепленная отмостка
[material_modifier] => 1
[work_modifier] => 1
[options] => Array
(
)
[days] => [10]
[material_price] => [1650]
[work_price] => [1450]
[image] => https://akademik-stroy.ru/wp-content/uploads/materials/ne-uteplennaya.jpg
[area_modifier] => 172.03
[parent_name] => Отмостка
[parent_id] => 22
[material_sum] => 357650
[work_sum] => 261916
[total_sum] => 619566
[total_days] => 10
[display_material_sum] => 357 650
[display_work_sum] => 261 916
[display_total_sum] => 619 566
)
1
619 566₽
Работа:261 916 ₽
Материалы:357 650 ₽
Дни:10
stdClass Object
(
[id] => 45
[attribute_id] => 23
[name] => Нет
[material_modifier] => 1
[work_modifier] => 1
[options] => Array
(
)
[days] => [0]
[material_price] => [0]
[work_price] => [0]
[image] => https://akademik-stroy.ru/wp-content/uploads/materials/drenazh-2.jpg
[area_modifier] => 172.03
[parent_name] => Дренаж вокруг дома
[parent_id] => 23
[material_sum] => 0
[work_sum] => 0
[total_sum] => 0
[total_days] => 0
[display_material_sum] => 0
[display_work_sum] => 0
[display_total_sum] => 0
)
1
0₽
Работа:0 ₽
Материалы:0 ₽
Дни:0
stdClass Object
(
[id] => 46
[attribute_id] => 23
[name] => Есть
[material_modifier] => 1
[work_modifier] => 1
[options] => Array
(
)
[days] => [5]
[material_price] => [2366]
[work_price] => [1911]
[image] => https://akademik-stroy.ru/wp-content/uploads/materials/drenazh-2.jpg
[area_modifier] => 172.03
[parent_name] => Дренаж вокруг дома
[parent_id] => 23
[material_sum] => 512849
[work_sum] => 345187
[total_sum] => 858036
[total_days] => 5
[display_material_sum] => 512 849
[display_work_sum] => 345 187
[display_total_sum] => 858 036
)
1
858 036₽
Работа:345 187 ₽
Материалы:512 849 ₽
Дни:5
stdClass Object
(
[id] => 47
[attribute_id] => 24
[name] => Нет
[material_modifier] => 1
[work_modifier] => 1
[options] => Array
(
)
[days] => [0]
[material_price] => [0]
[work_price] => [0]
[image] => https://akademik-stroy.ru/wp-content/uploads/materials/septik.jpg
[area_modifier] => 1
[parent_name] => Автономная канализация (септики)
[parent_id] => 24
[material_sum] => 0
[work_sum] => 0
[total_sum] => 0
[total_days] => 0
[display_material_sum] => 0
[display_work_sum] => 0
[display_total_sum] => 0
)
1
0₽
Работа:0 ₽
Материалы:0 ₽
Дни:0
stdClass Object
(
[id] => 48
[attribute_id] => 24
[name] => Есть
[material_modifier] => 1
[work_modifier] => 1
[options] => Array
(
[0] => Для дачи на 4 человека
[1] => Для дома на 5 человек
[2] => Для дома на 6 человек
[3] => Для дома на 7 человек
[4] => Для дома на 10 человек
)
[days] => [7,7,7,8,8]
[material_price] => [196340,220500,240940,264200,293340]
[work_price] => [50000,55000,60500,66550,73206]
[image] => https://akademik-stroy.ru/wp-content/uploads/materials/septik.jpg
[area_modifier] => 1
[parent_name] => Автономная канализация (септики)
[parent_id] => 24
[material_sum] => 247388
[work_sum] => 52500
[total_sum] => 299888
[total_days] => 7
[display_material_sum] => 247 388
[display_work_sum] => 52 500
[display_total_sum] => 299 888
)
1
299 888₽
Работа:52 500 ₽
Материалы:247 388 ₽
Дни:7
stdClass Object
(
[id] => 49
[attribute_id] => 25
[name] => Нет
[material_modifier] => 1
[work_modifier] => 1
[options] => Array
(
)
[days] => [0]
[material_price] => [0]
[work_price] => [0]
[image] => https://akademik-stroy.ru/wp-content/uploads/materials/gkl.jpg
[area_modifier] => 290.7
[parent_name] => Внутренние (не несущие) перегородки
[parent_id] => 25
[material_sum] => 0
[work_sum] => 0
[total_sum] => 0
[total_days] => 0
[display_material_sum] => 0
[display_work_sum] => 0
[display_total_sum] => 0
)
1
0₽
Работа:0 ₽
Материалы:0 ₽
Дни:0
stdClass Object
(
[id] => 147
[attribute_id] => 25
[name] => Каркасно-обшивные
[material_modifier] => 1
[work_modifier] => 1
[options] => Array
(
[0] => 75 мм (без шумоизоляции)
[1] => 75 мм (с шумоизоляцией)
)
[days] => [11,11]
[material_price] => [580,970]
[work_price] => [380,570]
[image] => https://akademik-stroy.ru/wp-content/uploads/materials/gkl.jpg
[area_modifier] => 290.7
[parent_name] => Внутренние (не несущие) перегородки
[parent_id] => 25
[material_sum] => 212444
[work_sum] => 115989
[total_sum] => 328433
[total_days] => 11
[display_material_sum] => 212 444
[display_work_sum] => 115 989
[display_total_sum] => 328 433
)
1
328 433₽
Работа:115 989 ₽
Материалы:212 444 ₽
Дни:11
stdClass Object
(
[id] => 148
[attribute_id] => 25
[name] => Пазогребневые
[material_modifier] => 1
[work_modifier] => 1
[options] => Array
(
[0] => 80 мм
[1] => 100 мм
)
[days] => [5,5]
[material_price] => [1022,1313]
[work_price] => [600,700]
[image] => https://akademik-stroy.ru/wp-content/uploads/materials/pazogrebnevye-bloki.jpg
[area_modifier] => 290.7
[parent_name] => Внутренние (не несущие) перегородки
[parent_id] => 25
[material_sum] => 374340
[work_sum] => 183141
[total_sum] => 557481
[total_days] => 5
[display_material_sum] => 374 340
[display_work_sum] => 183 141
[display_total_sum] => 557 481
)
1
557 481₽
Работа:183 141 ₽
Материалы:374 340 ₽
Дни:5
stdClass Object
(
[id] => 149
[attribute_id] => 25
[name] => Газобетонные
[material_modifier] => 1
[work_modifier] => 1
[options] => Array
(
[0] => 100 мм
[1] => 200 мм
)
[days] => [11,11]
[material_price] => [1160,1920]
[work_price] => [700,900]
[image] => https://akademik-stroy.ru/wp-content/uploads/materials/gazobeton-2.jpg
[area_modifier] => 290.7
[parent_name] => Внутренние (не несущие) перегородки
[parent_id] => 25
[material_sum] => 424887
[work_sum] => 213665
[total_sum] => 638552
[total_days] => 11
[display_material_sum] => 424 887
[display_work_sum] => 213 665
[display_total_sum] => 638 552
)
1
638 552₽
Работа:213 665 ₽
Материалы:424 887 ₽
Дни:11
stdClass Object
(
[id] => 150
[attribute_id] => 25
[name] => Кирпичные
[material_modifier] => 1
[work_modifier] => 1
[options] => Array
(
[0] => 120 мм
[1] => 250 мм
[2] => 360 мм
)
[days] => [7,7,7]
[material_price] => [1785,3570,5355]
[work_price] => [900,1600,1800]
[image] => https://akademik-stroy.ru/wp-content/uploads/materials/kirpich-1.jpg
[area_modifier] => 290.7
[parent_name] => Внутренние (не несущие) перегородки
[parent_id] => 25
[material_sum] => 653813
[work_sum] => 274712
[total_sum] => 928525
[total_days] => 7
[display_material_sum] => 653 813
[display_work_sum] => 274 712
[display_total_sum] => 928 525
)
1
928 525₽
Работа:274 712 ₽
Материалы:653 813 ₽
Дни:7
stdClass Object
(
[id] => 55
[attribute_id] => 28
[name] => Нет
[material_modifier] => 1
[work_modifier] => 1
[options] => Array
(
)
[days] => [0]
[material_price] => [0]
[work_price] => [0]
[image] => https://akademik-stroy.ru/wp-content/uploads/materials/ehlektrika.jpg
[area_modifier] => 235.9
[parent_name] => Электрика
[parent_id] => 28
[material_sum] => 0
[work_sum] => 0
[total_sum] => 0
[total_days] => 0
[display_material_sum] => 0
[display_work_sum] => 0
[display_total_sum] => 0
)
1
0₽
Работа:0 ₽
Материалы:0 ₽
Дни:0
stdClass Object
(
[id] => 56
[attribute_id] => 28
[name] => Есть
[material_modifier] => 1
[work_modifier] => 1
[options] => Array
(
)
[days] => [10]
[material_price] => [650]
[work_price] => [950]
[image] => https://akademik-stroy.ru/wp-content/uploads/materials/ehlektrika.jpg
[area_modifier] => 235.9
[parent_name] => Электрика
[parent_id] => 28
[material_sum] => 193202
[work_sum] => 235310
[total_sum] => 428512
[total_days] => 10
[display_material_sum] => 193 202
[display_work_sum] => 235 310
[display_total_sum] => 428 512
)
1
428 512₽
Работа:235 310 ₽
Материалы:193 202 ₽
Дни:10
stdClass Object
(
[id] => 57
[attribute_id] => 29
[name] => Нет
[material_modifier] => 1
[work_modifier] => 1
[options] => Array
(
)
[days] => [0]
[material_price] => [0]
[work_price] => [0]
[image] => https://akademik-stroy.ru/wp-content/uploads/materials/santekhnika-kanalizaciya-1.jpg
[area_modifier] => 235.9
[parent_name] => Сантехника, канализация в доме
[parent_id] => 29
[material_sum] => 0
[work_sum] => 0
[total_sum] => 0
[total_days] => 0
[display_material_sum] => 0
[display_work_sum] => 0
[display_total_sum] => 0
)
1
0₽
Работа:0 ₽
Материалы:0 ₽
Дни:0
stdClass Object
(
[id] => 58
[attribute_id] => 29
[name] => Есть
[material_modifier] => 1
[work_modifier] => 1
[options] => Array
(
)
[days] => [10]
[material_price] => [600]
[work_price] => [730]
[image] => https://akademik-stroy.ru/wp-content/uploads/materials/santekhnika-kanalizaciya-1.jpg
[area_modifier] => 235.9
[parent_name] => Сантехника, канализация в доме
[parent_id] => 29
[material_sum] => 178340
[work_sum] => 180817
[total_sum] => 359157
[total_days] => 10
[display_material_sum] => 178 340
[display_work_sum] => 180 817
[display_total_sum] => 359 157
)
1
359 157₽
Работа:180 817 ₽
Материалы:178 340 ₽
Дни:10
stdClass Object
(
[id] => 59
[attribute_id] => 30
[name] => Нет
[material_modifier] => 1
[work_modifier] => 1
[options] => Array
(
)
[days] => [0]
[material_price] => [0]
[work_price] => [0]
[image] => https://akademik-stroy.ru/wp-content/uploads/materials/otoplenie-1.jpg
[area_modifier] => 235.9
[parent_name] => Отопление
[parent_id] => 30
[material_sum] => 0
[work_sum] => 0
[total_sum] => 0
[total_days] => 0
[display_material_sum] => 0
[display_work_sum] => 0
[display_total_sum] => 0
)
1
0₽
Работа:0 ₽
Материалы:0 ₽
Дни:0
stdClass Object
(
[id] => 60
[attribute_id] => 30
[name] => Есть
[material_modifier] => 1
[work_modifier] => 1
[options] => Array
(
)
[days] => [5]
[material_price] => [610]
[work_price] => [560]
[image] => https://akademik-stroy.ru/wp-content/uploads/materials/otoplenie-1.jpg
[area_modifier] => 235.9
[parent_name] => Отопление
[parent_id] => 30
[material_sum] => 181313
[work_sum] => 138709
[total_sum] => 320022
[total_days] => 5
[display_material_sum] => 181 313
[display_work_sum] => 138 709
[display_total_sum] => 320 022
)
1
320 022₽
Работа:138 709 ₽
Материалы:181 313 ₽
Дни:5
stdClass Object
(
[id] => 61
[attribute_id] => 31
[name] => Нет
[material_modifier] => 1
[work_modifier] => 1
[options] => Array
(
)
[days] => [0]
[material_price] => [0]
[work_price] => [0]
[image] => https://akademik-stroy.ru/wp-content/uploads/materials/vodyanye.jpg
[area_modifier] => 30
[parent_name] => Теплые полы
[parent_id] => 31
[material_sum] => 0
[work_sum] => 0
[total_sum] => 0
[total_days] => 0
[display_material_sum] => 0
[display_work_sum] => 0
[display_total_sum] => 0
)
1
0₽
Работа:0 ₽
Материалы:0 ₽
Дни:0
stdClass Object
(
[id] => 151
[attribute_id] => 31
[name] => Водяные
[material_modifier] => 1
[work_modifier] => 1
[options] => Array
(
)
[days] => [9]
[material_price] => [10200]
[work_price] => [2500]
[image] => https://akademik-stroy.ru/wp-content/uploads/materials/vodyanye.jpg
[area_modifier] => 30
[parent_name] => Теплые полы
[parent_id] => 31
[material_sum] => 385560
[work_sum] => 78750
[total_sum] => 464310
[total_days] => 9
[display_material_sum] => 385 560
[display_work_sum] => 78 750
[display_total_sum] => 464 310
)
1
464 310₽
Работа:78 750 ₽
Материалы:385 560 ₽
Дни:9
stdClass Object
(
[id] => 152
[attribute_id] => 31
[name] => Электро
[material_modifier] => 1
[work_modifier] => 1
[options] => Array
(
)
[days] => [5]
[material_price] => [6300]
[work_price] => [1500]
[image] => https://akademik-stroy.ru/wp-content/uploads/materials/ehlektricheskij.jpg
[area_modifier] => 30
[parent_name] => Теплые полы
[parent_id] => 31
[material_sum] => 238140
[work_sum] => 47250
[total_sum] => 285390
[total_days] => 5
[display_material_sum] => 238 140
[display_work_sum] => 47 250
[display_total_sum] => 285 390
)
1
285 390₽
Работа:47 250 ₽
Материалы:238 140 ₽
Дни:5
stdClass Object
(
[id] => 63
[attribute_id] => 32
[name] => Нет
[material_modifier] => 1
[work_modifier] => 1
[options] => Array
(
)
[days] => [0]
[material_price] => [0]
[work_price] => [0]
[image] => https://akademik-stroy.ru/wp-content/uploads/materials/shtukaturka-shpatlevka-1.jpg
[area_modifier] => 235.9
[parent_name] => Черновая отделка стен
[parent_id] => 32
[material_sum] => 0
[work_sum] => 0
[total_sum] => 0
[total_days] => 0
[display_material_sum] => 0
[display_work_sum] => 0
[display_total_sum] => 0
)
1
0₽
Работа:0 ₽
Материалы:0 ₽
Дни:0
stdClass Object
(
[id] => 153
[attribute_id] => 32
[name] => Штукатурка и шпатлевка
[material_modifier] => 1
[work_modifier] => 1
[options] => Array
(
)
[days] => [20]
[material_price] => [1850]
[work_price] => [2600]
[image] => https://akademik-stroy.ru/wp-content/uploads/materials/shtukaturka-shpatlevka-1.jpg
[area_modifier] => 235.9
[parent_name] => Черновая отделка стен
[parent_id] => 32
[material_sum] => 549883
[work_sum] => 644007
[total_sum] => 1193890
[total_days] => 20
[display_material_sum] => 549 883
[display_work_sum] => 644 007
[display_total_sum] => 1 193 890
)
1
1 193 890₽
Работа:644 007 ₽
Материалы:549 883 ₽
Дни:20
stdClass Object
(
[id] => 154
[attribute_id] => 32
[name] => Гипсокортон на стены
[material_modifier] => 1
[work_modifier] => 1
[options] => Array
(
)
[days] => [15]
[material_price] => [950]
[work_price] => [2100]
[image] => https://akademik-stroy.ru/wp-content/uploads/materials/gkl-1.jpg
[area_modifier] => 235.9
[parent_name] => Черновая отделка стен
[parent_id] => 32
[material_sum] => 282372
[work_sum] => 520160
[total_sum] => 802532
[total_days] => 15
[display_material_sum] => 282 372
[display_work_sum] => 520 160
[display_total_sum] => 802 532
)
1
802 532₽
Работа:520 160 ₽
Материалы:282 372 ₽
Дни:15
stdClass Object
(
[id] => 155
[attribute_id] => 32
[name] => Вагонка
[material_modifier] => 1
[work_modifier] => 1
[options] => Array
(
)
[days] => [15]
[material_price] => [1250]
[work_price] => [950]
[image] => https://akademik-stroy.ru/wp-content/uploads/materials/vagonka.jpg
[area_modifier] => 235.9
[parent_name] => Черновая отделка стен
[parent_id] => 32
[material_sum] => 371543
[work_sum] => 235310
[total_sum] => 606853
[total_days] => 15
[display_material_sum] => 371 543
[display_work_sum] => 235 310
[display_total_sum] => 606 853
)
1
606 853₽
Работа:235 310 ₽
Материалы:371 543 ₽
Дни:15
stdClass Object
(
[id] => 65
[attribute_id] => 33
[name] => Нет
[material_modifier] => 1
[work_modifier] => 1
[options] => Array
(
)
[days] => [0]
[material_price] => [0]
[work_price] => [0]
[image] => https://akademik-stroy.ru/wp-content/uploads/materials/styazhka.jpg
[area_modifier] => 235.9
[parent_name] => Черновая отделка полов
[parent_id] => 33
[material_sum] => 0
[work_sum] => 0
[total_sum] => 0
[total_days] => 0
[display_material_sum] => 0
[display_work_sum] => 0
[display_total_sum] => 0
)
1
0₽
Работа:0 ₽
Материалы:0 ₽
Дни:0
stdClass Object
(
[id] => 156
[attribute_id] => 33
[name] => Стяжка + наливные полы
[material_modifier] => 1
[work_modifier] => 1
[options] => Array
(
)
[days] => [10]
[material_price] => [1000]
[work_price] => [900]
[image] => https://akademik-stroy.ru/wp-content/uploads/materials/styazhka.jpg
[area_modifier] => 235.9
[parent_name] => Черновая отделка полов
[parent_id] => 33
[material_sum] => 297234
[work_sum] => 222926
[total_sum] => 520160
[total_days] => 10
[display_material_sum] => 297 234
[display_work_sum] => 222 926
[display_total_sum] => 520 160
)
1
520 160₽
Работа:222 926 ₽
Материалы:297 234 ₽
Дни:10
stdClass Object
(
[id] => 157
[attribute_id] => 33
[name] => ОСБ на пол
[material_modifier] => 1
[work_modifier] => 1
[options] => Array
(
)
[days] => [7]
[material_price] => [580]
[work_price] => [350]
[image] => https://akademik-stroy.ru/wp-content/uploads/materials/osb-1.jpg
[area_modifier] => 235.9
[parent_name] => Черновая отделка полов
[parent_id] => 33
[material_sum] => 172396
[work_sum] => 86693
[total_sum] => 259089
[total_days] => 7
[display_material_sum] => 172 396
[display_work_sum] => 86 693
[display_total_sum] => 259 089
)
1
259 089₽
Работа:86 693 ₽
Материалы:172 396 ₽
Дни:7
stdClass Object
(
[id] => 67
[attribute_id] => 34
[name] => Нет
[material_modifier] => 1
[work_modifier] => 1
[options] => Array
(
)
[days] => [0]
[material_price] => [0]
[work_price] => [0]
[image] => https://akademik-stroy.ru/wp-content/uploads/materials/chistovaya-otdelka.jpg
[area_modifier] => 235.9
[parent_name] => Чистовая отделка стен и полов
[parent_id] => 34
[material_sum] => 0
[work_sum] => 0
[total_sum] => 0
[total_days] => 0
[display_material_sum] => 0
[display_work_sum] => 0
[display_total_sum] => 0
)
1
0₽
Работа:0 ₽
Материалы:0 ₽
Дни:0
stdClass Object
(
[id] => 68
[attribute_id] => 34
[name] => Есть
[material_modifier] => 1
[work_modifier] => 1
[options] => Array
(
)
[days] => [50]
[material_price] => [6000]
[work_price] => [3500]
[image] => https://akademik-stroy.ru/wp-content/uploads/materials/chistovaya-otdelka.jpg
[area_modifier] => 235.9
[parent_name] => Чистовая отделка стен и полов
[parent_id] => 34
[material_sum] => 1783404
[work_sum] => 866933
[total_sum] => 2650337
[total_days] => 50
[display_material_sum] => 1 783 404
[display_work_sum] => 866 933
[display_total_sum] => 2 650 337
)
1
2 650 337₽
Работа:866 933 ₽
Материалы:1 783 404 ₽
Дни:50
stdClass Object
(
[id] => 69
[attribute_id] => 35
[name] => Нет
[material_modifier] => 1
[work_modifier] => 1
[options] => Array
(
)
[days] => [0]
[material_price] => [0]
[work_price] => [0]
[image] => https://akademik-stroy.ru/wp-content/uploads/materials/mnogourovnevyj-gkl.jpg
[area_modifier] => 235.9
[parent_name] => Отделка потолка
[parent_id] => 35
[material_sum] => 0
[work_sum] => 0
[total_sum] => 0
[total_days] => 0
[display_material_sum] => 0
[display_work_sum] => 0
[display_total_sum] => 0
)
1
0₽
Работа:0 ₽
Материалы:0 ₽
Дни:0
stdClass Object
(
[id] => 70
[attribute_id] => 35
[name] => Есть
[material_modifier] => 1
[work_modifier] => 1
[options] => Array
(
[0] => Многоуровневый потолок из гипсокартона
[1] => Многоуровневый потолок из гипсокартона и натяжного потолка
[2] => Одноуровневый потолок из гипсокартона
[3] => Одноуровневый натяжной потолок
)
[days] => [10,10,1,1]
[material_price] => [900,700,700,600]
[work_price] => [1000,800,500,300]
[image] => https://akademik-stroy.ru/wp-content/uploads/materials/mnogourovnevyj-gkl.jpg
[area_modifier] => 235.9
[parent_name] => Отделка потолка
[parent_id] => 35
[material_sum] => 267511
[work_sum] => 247695
[total_sum] => 515206
[total_days] => 10
[display_material_sum] => 267 511
[display_work_sum] => 247 695
[display_total_sum] => 515 206
)
1
515 206₽
Работа:247 695 ₽
Материалы:267 511 ₽
Дни:10
Преимущества работы с нами
7 этапов оплаты
Независимый строительный надзор
Экологически чистые материалы
16 лет гарантии
Онлайн-кабинет с веб-камерой
Строители с опытом более 15 лет
Собственное производство













