Одноэтажный дом 220.98 м2 за руб.
Планировки
План цоколя
- 1. Тамбур 6,93 м²
- 2. Холл 4,24 м²
- 3. Гараж 48,87 м²
- 4. Кладовая 7,97 м²
- 5. Котельная 6,76 м²
- 6. Санузел 5,95 м²
- 7. Спорт зал 26,68 м²
- 8. Бильярд 19,50 м²
- Общая площадь цокольный этаж 126,90 м²
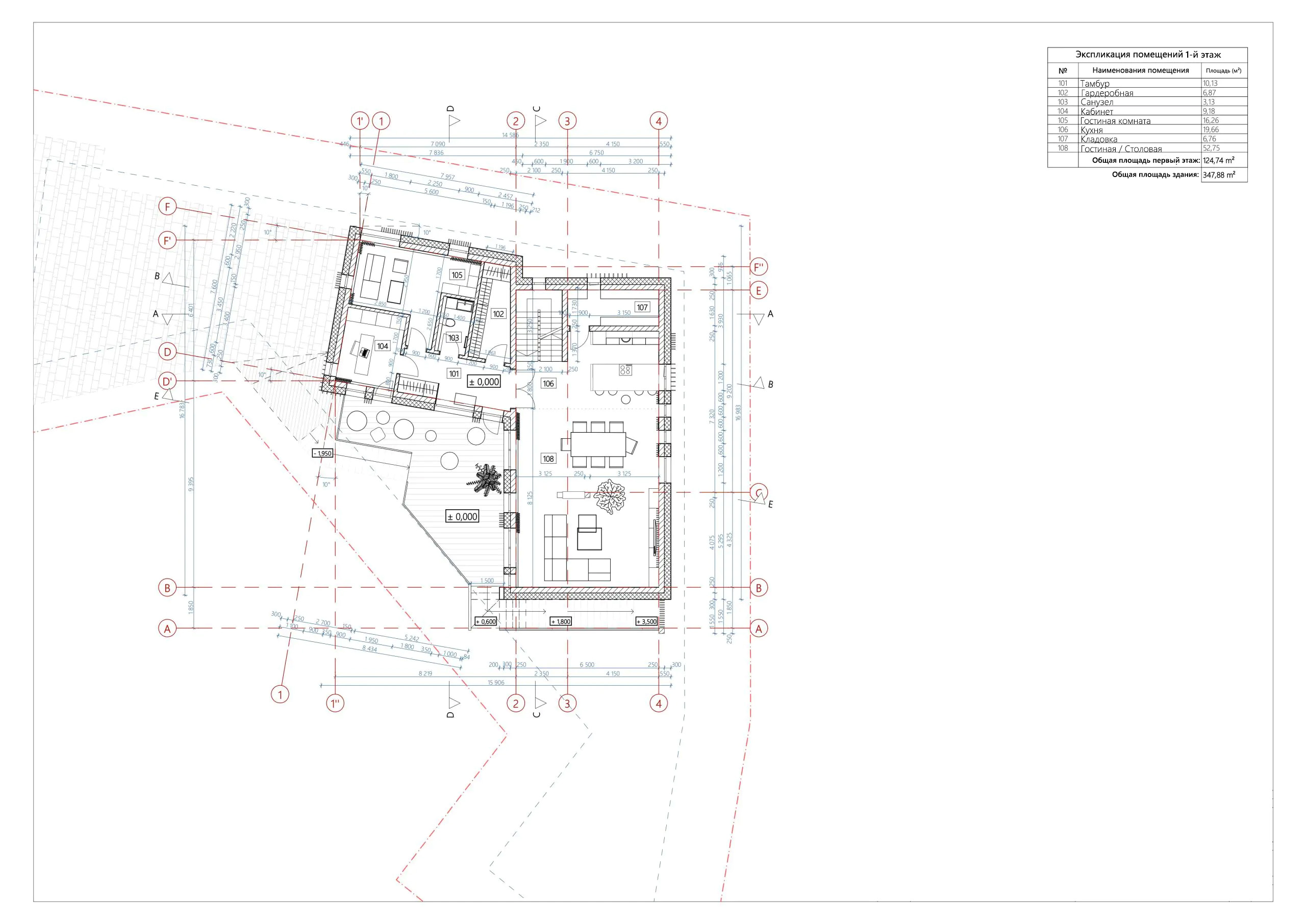
План первого этажа
- 1. Тамбур 10,13 м²
- 2. Гардероб 6,87 м²
- 3. Санузел 3,13 м²
- 4. Кабинет 9,18 м²
- 5. Гостевая комната 16,26 м²
- 6. Кухня 19,66 м²
- 7. Кладовая 6,76 м²
- 8. Гостиная-Столовая 52,75 м²
- Общая площадь первый этаж 124,74 м²
План второго этажа
- 1. Холл 8,90 м²
- 2. Спальня 20,12 м²
- 3. Гардероб 14,24 м²
- 4. Кладовая 2,61 м²
- 5. Ванная комната 9,95 м²
- 6. Санузел 4,55 м²
- 7. Комната 16,90 м²
- 8. Комната 18,97 м²
- Общая площадь второй этаж 96,24 м²
Площади дома
| № п/п | Наименование | Ед. из. | Строительная площадь | Полезная площадь |
| 1 | 1 этаж | м2 | 153.72 | 124.74 |
| 2 | 2 этаж | м2 | 118.6 | 96.24 |
| 3 | Итого | м2 | 272.32 | 220.98 |
154 м2
Полезная
площадь
площадь
1 этаж
Этажей
26 м2
Террасы
и балконы
и балконы
1Без
гаража
гаража
4
Количество
спален
спален
4
Количество
санузлов
санузлов
Калькулятор опций
0₽
В ипотеку от 25 346 ₽/мес.
0₽
0 дней
stdClass Object
(
[id] => 1
[attribute_id] => 1
[name] => Ленточный монолитный ж/б
[material_modifier] => 1
[work_modifier] => 1
[options] => Array
(
[0] => размер 200 х 700 мм
[1] => размер 300 х 900 мм
[2] => размер 400 х 1 000 мм
[3] => размер 500 х 1 100 мм
[4] => размер 600 х 1 200 мм
)
[days] => [20,21,22,25,30]
[material_price] => [2823,3630,4475,5210,12047]
[work_price] => [2154,2826,3731,4577,5293]
[image] => https://akademik-stroy.ru/wp-content/uploads/materials/lentochnyj-monolitnyj-zh-b.jpg
[area_modifier] => 153.72
[parent_name] => Фундамент
[parent_id] => 1
[material_sum] => 546779
[work_sum] => 347669
[total_sum] => 894448
[total_days] => 20
[display_material_sum] => 546 779
[display_work_sum] => 347 669
[display_total_sum] => 894 448
)
1
894 448₽
Работа:347 669 ₽
Материалы:546 779 ₽
Дни:20
stdClass Object
(
[id] => 2
[attribute_id] => 1
[name] => Забивные Ж/Б сваи
[material_modifier] => 1
[work_modifier] => 1
[options] => Array
(
[0] => 150х150х3000мм
[1] => 150х150х4000мм
[2] => 200х200х3000мм
[3] => 200х200х4000мм
[4] => 200х200х5000мм
[5] => 200х200х6000мм
)
[days] => [2,2,2,2,2,2]
[material_price] => [1990,2850,3255,4360,5120,6837]
[work_price] => [1002,1185,1336,1438,1574,1839]
[image] => https://akademik-stroy.ru/wp-content/uploads/materials/zabivnye-zh-b-svai.png
[area_modifier] => 153.72
[parent_name] => Фундамент
[parent_id] => 1
[material_sum] => 385438
[work_sum] => 161729
[total_sum] => 547167
[total_days] => 2
[display_material_sum] => 385 438
[display_work_sum] => 161 729
[display_total_sum] => 547 167
)
1
547 167₽
Работа:161 729 ₽
Материалы:385 438 ₽
Дни:2
stdClass Object
(
[id] => 71
[attribute_id] => 1
[name] => Свайно-ростверковый ж/б
[material_modifier] => 1
[work_modifier] => 1
[options] => Array
(
[0] => ростверк 200х300 мм
[1] => ростверк 300х600 мм
[2] => ростверк 400х900 мм
[3] => ростверк 500х1200 мм
)
[days] => [20,23,25,27]
[material_price] => [3018,3474,7109,9792]
[work_price] => [2024,3012,5635,7022]
[image] => https://akademik-stroy.ru/wp-content/uploads/materials/svajno-rostverkovyj-monolitnyj-zh-b-3.png
[area_modifier] => 153.72
[parent_name] => Фундамент
[parent_id] => 1
[material_sum] => 584548
[work_sum] => 326686
[total_sum] => 911234
[total_days] => 20
[display_material_sum] => 584 548
[display_work_sum] => 326 686
[display_total_sum] => 911 234
)
1
911 234₽
Работа:326 686 ₽
Материалы:584 548 ₽
Дни:20
stdClass Object
(
[id] => 72
[attribute_id] => 1
[name] => Монолитная ж/б плита
[material_modifier] => 1
[work_modifier] => 1
[options] => Array
(
[0] => 200 мм
[1] => 300 мм
[2] => 400 мм
[3] => 500 мм
[4] => 600 мм
)
[days] => [30,33,35,37,40]
[material_price] => [5348,8555,12788,14388,15189]
[work_price] => [4314,4881,7037,8061,10230]
[image] => https://akademik-stroy.ru/wp-content/uploads/materials/monolitnaya-zhb-plita.png
[area_modifier] => 153.72
[parent_name] => Фундамент
[parent_id] => 1
[material_sum] => 1035839
[work_sum] => 696305
[total_sum] => 1732144
[total_days] => 30
[display_material_sum] => 1 035 839
[display_work_sum] => 696 305
[display_total_sum] => 1 732 144
)
1
1 732 144₽
Работа:696 305 ₽
Материалы:1 035 839 ₽
Дни:30
stdClass Object
(
[id] => 73
[attribute_id] => 1
[name] => Утепленная шведская плита
[material_modifier] => 1
[work_modifier] => 1
[options] => Array
(
[0] => 200 мм
[1] => 300 мм
[2] => 400 мм
[3] => 500 мм
[4] => 600 мм
)
[days] => [32,37,39,42,45]
[material_price] => [10249,12692,13760,14936,16230]
[work_price] => [5960,7337,8072,8878,9765]
[image] => https://akademik-stroy.ru/wp-content/uploads/materials/uteplennaya-shvedskaya-plita.jpg
[area_modifier] => 153.72
[parent_name] => Фундамент
[parent_id] => 1
[material_sum] => 1985100
[work_sum] => 961980
[total_sum] => 2947080
[total_days] => 32
[display_material_sum] => 1 985 100
[display_work_sum] => 961 980
[display_total_sum] => 2 947 080
)
1
2 947 080₽
Работа:961 980 ₽
Материалы:1 985 100 ₽
Дни:32
stdClass Object
(
[id] => 75
[attribute_id] => 1
[name] => Ленточный из ФБС
[material_modifier] => 1
[work_modifier] => 1
[options] => Array
(
[0] => толщ. 300 мм
[1] => толщ. 400 мм
[2] => толщ. 500 мм
[3] => толщ. 600 мм
)
[days] => [20,20,20,20]
[material_price] => [3675,4902,6126,7350]
[work_price] => [2451,3264,4083,4902]
[image] => https://akademik-stroy.ru/wp-content/uploads/materials/lentochnyj-iz-fbs.png
[area_modifier] => 153.72
[parent_name] => Фундамент
[parent_id] => 1
[material_sum] => 711800
[work_sum] => 395606
[total_sum] => 1107406
[total_days] => 20
[display_material_sum] => 711 800
[display_work_sum] => 395 606
[display_total_sum] => 1 107 406
)
1
1 107 406₽
Работа:395 606 ₽
Материалы:711 800 ₽
Дни:20
stdClass Object
(
[id] => 76
[attribute_id] => 1
[name] => Цокольный этаж из ФБС
[material_modifier] => 1
[work_modifier] => 1
[options] => Array
(
[0] => толщ. 300 мм
[1] => толщ. 400 мм
[2] => толщ. 500 мм
[3] => толщ. 600 мм
)
[days] => [30,32,34,36]
[material_price] => [20916,23299,26680,29060]
[work_price] => [17524,18700,19873,21046]
[image] => https://akademik-stroy.ru/wp-content/uploads/materials/cokolnyj-ehtazh-iz-fbs.jpg
[area_modifier] => 153.72
[parent_name] => Фундамент
[parent_id] => 1
[material_sum] => 4051161
[work_sum] => 2828479
[total_sum] => 6879640
[total_days] => 30
[display_material_sum] => 4 051 161
[display_work_sum] => 2 828 479
[display_total_sum] => 6 879 640
)
1
6 879 640₽
Работа:2 828 479 ₽
Материалы:4 051 161 ₽
Дни:30
stdClass Object
(
[id] => 77
[attribute_id] => 1
[name] => Цокольный этаж монолитный ж/б
[material_modifier] => 1
[work_modifier] => 1
[options] => Array
(
[0] => толщ. 200 мм
[1] => толщ. 300 мм
[2] => толщ. 400 мм
[3] => толщ. 500 мм
[4] => толщ. 600 мм
)
[days] => [40,42,44,46,48]
[material_price] => [25421,29148,32275,35602,37326]
[work_price] => [20441,21907,23375,24841,26306]
[image] => https://akademik-stroy.ru/wp-content/uploads/materials/cokolnyj-etazh-zh-b.jpg
[area_modifier] => 153.72
[parent_name] => Фундамент
[parent_id] => 1
[material_sum] => 4923722
[work_sum] => 3299300
[total_sum] => 8223022
[total_days] => 40
[display_material_sum] => 4 923 722
[display_work_sum] => 3 299 300
[display_total_sum] => 8 223 022
)
1
8 223 022₽
Работа:3 299 300 ₽
Материалы:4 923 722 ₽
Дни:40
stdClass Object
(
[id] => 191
[attribute_id] => 1
[name] => Винтовые сваи
[material_modifier] => 1
[work_modifier] => 1
[options] => Array
(
[0] => 57х200мм
[1] => 76х250мм
[2] => 108х300мм
[3] => 133х350мм
)
[days] => [1,1,2,2]
[material_price] => [1200,1300,1450,1600]
[work_price] => [400,600,900,1100]
[image] => https://akademik-stroy.ru/wp-content/uploads/materials/vintovye-svai.png
[area_modifier] => 153.72
[parent_name] => Фундамент
[parent_id] => 1
[material_sum] => 232425
[work_sum] => 64562
[total_sum] => 296987
[total_days] => 1
[display_material_sum] => 232 425
[display_work_sum] => 64 562
[display_total_sum] => 296 987
)
1
296 987₽
Работа:64 562 ₽
Материалы:232 425 ₽
Дни:1
stdClass Object
(
[id] => 3
[attribute_id] => 2
[name] => Деревянные балки
[material_modifier] => 1
[work_modifier] => 1
[options] => Array
(
[0] => без утепления
[1] => утепление 200 мм
[2] => утепление 250 мм
[3] => утепление 300 мм
[4] => утепление 350 мм
[5] => утепление 400 мм
[6] => утепление 450 мм
[7] => утепление 500 мм
)
[days] => [8,9,9,9,11,12,13,14]
[material_price] => [1634,2042,2344,2947,3149,3652,3354,3557]
[work_price] => [1230,1339,1393,1426,1460,1513,1587,1620]
[image] => https://akademik-stroy.ru/wp-content/uploads/materials/derevyannye-balki.png
[area_modifier] => 153.72
[parent_name] => Перекрытие цоколя
[parent_id] => 2
[material_sum] => 316485
[work_sum] => 198529
[total_sum] => 515014
[total_days] => 8
[display_material_sum] => 316 485
[display_work_sum] => 198 529
[display_total_sum] => 515 014
)
1
515 014₽
Работа:198 529 ₽
Материалы:316 485 ₽
Дни:8
stdClass Object
(
[id] => 4
[attribute_id] => 2
[name] => Сборные ж/б плиты
[material_modifier] => 1
[work_modifier] => 1
[options] => Array
(
[0] => без утепления
[1] => утепление 150мм
[2] => утепление 200мм
[3] => утепление 250мм
[4] => утепление 300мм
[5] => утепление 350мм
[6] => утепление 400мм
[7] => утепление 450мм
[8] => утепление 500мм
)
[days] => [13,15,15,15,15,15,15,15,15]
[material_price] => [3067,5577,5928,6679,7730,8782,9833,10884,11935]
[work_price] => [1520,1956,2102,2247,2392,2537,2684,2829,2974]
[image] => https://akademik-stroy.ru/wp-content/uploads/materials/sbornye-zh-b-plity-2.jpg
[area_modifier] => 153.72
[parent_name] => Перекрытие цоколя
[parent_id] => 2
[material_sum] => 594039
[work_sum] => 245337
[total_sum] => 839376
[total_days] => 13
[display_material_sum] => 594 039
[display_work_sum] => 245 337
[display_total_sum] => 839 376
)
1
839 376₽
Работа:245 337 ₽
Материалы:594 039 ₽
Дни:13
stdClass Object
(
[id] => 78
[attribute_id] => 2
[name] => Монолитная ж/б плита
[material_modifier] => 1
[work_modifier] => 1
[options] => Array
(
[0] => без утепления
[1] => утепление 150 мм
[2] => утепление 200 мм
[3] => утепление 250 мм
[4] => утепление 300 мм
[5] => утепление 350 мм
[6] => утепление 400 мм
[7] => утепление 450 мм
[8] => утепление 500 мм
)
[days] => [18,20,20,20,20,20,20,20,20]
[material_price] => [4837,6572,7224,7375,79426,8177,8728,9180,10031]
[work_price] => [3348,3921,4112,4302,4493,4684,4875,5066,5256]
[image] => https://akademik-stroy.ru/wp-content/uploads/materials/monolitnaya-zh-b-plita-2.jpg
[area_modifier] => 153.72
[parent_name] => Перекрытие цоколя
[parent_id] => 2
[material_sum] => 936865
[work_sum] => 540387
[total_sum] => 1477252
[total_days] => 18
[display_material_sum] => 936 865
[display_work_sum] => 540 387
[display_total_sum] => 1 477 252
)
1
1 477 252₽
Работа:540 387 ₽
Материалы:936 865 ₽
Дни:18
stdClass Object
(
[id] => 6
[attribute_id] => 3
[name] => Пеноблок
[material_modifier] => 1
[work_modifier] => 1
[options] => Array
(
[0] => 300 мм
[1] => 400 мм
[2] => 500 мм
[3] => 600 мм
)
[days] => [29,31,34,39]
[material_price] => [3000,4000,4500,4937]
[work_price] => [5033,5805,6400,8710]
[image] => https://akademik-stroy.ru/wp-content/uploads/materials/penoblok.jpg
[area_modifier] => 153.72
[parent_name] => Стены 1 этаж (несущие)
[parent_id] => 3
[material_sum] => 581062
[work_sum] => 812356
[total_sum] => 1393418
[total_days] => 29
[display_material_sum] => 581 062
[display_work_sum] => 812 356
[display_total_sum] => 1 393 418
)
1
1 393 418₽
Работа:812 356 ₽
Материалы:581 062 ₽
Дни:29
stdClass Object
(
[id] => 79
[attribute_id] => 3
[name] => Керамический блок
[material_modifier] => 1
[work_modifier] => 1
[options] => Array
(
[0] => 380 мм
[1] => 380 мм Thermo
[2] => 440 мм
[3] => 510 мм
)
[days] => [23,23,24,25]
[material_price] => [4510,5098,6093,8013]
[work_price] => [4737,4937,5903,6958]
[image] => https://akademik-stroy.ru/wp-content/uploads/materials/keramicheskij-blok.jpg
[area_modifier] => 153.72
[parent_name] => Стены 1 этаж (несущие)
[parent_id] => 3
[material_sum] => 873529
[work_sum] => 764580
[total_sum] => 1638109
[total_days] => 23
[display_material_sum] => 873 529
[display_work_sum] => 764 580
[display_total_sum] => 1 638 109
)
1
1 638 109₽
Работа:764 580 ₽
Материалы:873 529 ₽
Дни:23
stdClass Object
(
[id] => 80
[attribute_id] => 3
[name] => Кирпич
[material_modifier] => 1
[work_modifier] => 1
[options] => Array
(
[0] => Кирпич 250 мм
[1] => Кирпич 380 мм
[2] => Кирпич 510 мм
[3] => Кирпич 640 мм
[4] => Кирпич 770 мм
)
[days] => [30,30,31,33,36]
[material_price] => [5500,7142,9206,10171,12235]
[work_price] => [8736,10041,12018,15240,18462]
[image] => https://akademik-stroy.ru/wp-content/uploads/materials/kirpich.jpg
[area_modifier] => 153.72
[parent_name] => Стены 1 этаж (несущие)
[parent_id] => 3
[material_sum] => 1065280
[work_sum] => 1410043
[total_sum] => 2475323
[total_days] => 30
[display_material_sum] => 1 065 280
[display_work_sum] => 1 410 043
[display_total_sum] => 2 475 323
)
1
2 475 323₽
Работа:1 410 043 ₽
Материалы:1 065 280 ₽
Дни:30
stdClass Object
(
[id] => 81
[attribute_id] => 3
[name] => Монолитные
[material_modifier] => 1
[work_modifier] => 1
[options] => Array
(
[0] => 150 мм
[1] => 200 мм
[2] => 250 мм
[3] => 300 мм
[4] => 350 мм
[5] => 400 мм
)
[days] => [45,46,47,49,50,53]
[material_price] => [6545,7876,10175,12011,13908,15204]
[work_price] => [5106,6444,7698,8552,9807,11461]
[image] => https://akademik-stroy.ru/wp-content/uploads/materials/monolitnye.jpg
[area_modifier] => 153.72
[parent_name] => Стены 1 этаж (несущие)
[parent_id] => 3
[material_sum] => 1267683
[work_sum] => 824139
[total_sum] => 2091822
[total_days] => 45
[display_material_sum] => 1 267 683
[display_work_sum] => 824 139
[display_total_sum] => 2 091 822
)
1
2 091 822₽
Работа:824 139 ₽
Материалы:1 267 683 ₽
Дни:45
stdClass Object
(
[id] => 82
[attribute_id] => 3
[name] => Клееный брус
[material_modifier] => 1
[work_modifier] => 1
[options] => Array
(
[0] => 160 мм
[1] => 175 мм
[2] => 200 мм
[3] => 215 мм
[4] => 240 мм
[5] => 270 мм
[6] => 282 мм
)
[days] => [24,28,32,37,40,42,48]
[material_price] => [16975,18773,19950,20545,21599,22159,23275]
[work_price] => [4806,5287,5815,6397,7036,7740,8514]
[image] => https://akademik-stroy.ru/wp-content/uploads/materials/kleenyj-brus.jpg
[area_modifier] => 153.72
[parent_name] => Стены 1 этаж (несущие)
[parent_id] => 3
[material_sum] => 3287840
[work_sum] => 775717
[total_sum] => 4063557
[total_days] => 24
[display_material_sum] => 3 287 840
[display_work_sum] => 775 717
[display_total_sum] => 4 063 557
)
1
4 063 557₽
Работа:775 717 ₽
Материалы:3 287 840 ₽
Дни:24
stdClass Object
(
[id] => 83
[attribute_id] => 3
[name] => Каркасные
[material_modifier] => 1
[work_modifier] => 1
[options] => Array
(
[0] => 150 мм
[1] => 200 мм
[2] => 250 мм
[3] => 300 мм
)
[days] => [15,16,17,18]
[material_price] => [2379,2639,2898,3258]
[work_price] => [2418,2686,2985,3716]
[image] => https://akademik-stroy.ru/wp-content/uploads/materials/karkasnye.jpg
[area_modifier] => 153.72
[parent_name] => Стены 1 этаж (несущие)
[parent_id] => 3
[material_sum] => 460782
[work_sum] => 390280
[total_sum] => 851062
[total_days] => 15
[display_material_sum] => 460 782
[display_work_sum] => 390 280
[display_total_sum] => 851 062
)
1
851 062₽
Работа:390 280 ₽
Материалы:460 782 ₽
Дни:15
stdClass Object
(
[id] => 84
[attribute_id] => 3
[name] => СИП-панели
[material_modifier] => 1
[work_modifier] => 1
[options] => Array
(
[0] => 120 мм
[1] => 170 мм
[2] => 220 мм
)
[days] => [7,7,7]
[material_price] => [1210,1856,2292]
[work_price] => [1410,1551,1706]
[image] => https://akademik-stroy.ru/wp-content/uploads/materials/sip-paneli.jpg
[area_modifier] => 153.72
[parent_name] => Стены 1 этаж (несущие)
[parent_id] => 3
[material_sum] => 234362
[work_sum] => 227582
[total_sum] => 461944
[total_days] => 7
[display_material_sum] => 234 362
[display_work_sum] => 227 582
[display_total_sum] => 461 944
)
1
461 944₽
Работа:227 582 ₽
Материалы:234 362 ₽
Дни:7
stdClass Object
(
[id] => 85
[attribute_id] => 3
[name] => Сухой брус
[material_modifier] => 1
[work_modifier] => 1
[options] => Array
(
[0] => 150 мм
[1] => 180 мм
[2] => 200 мм
)
[days] => [7,8,9]
[material_price] => [6010,7190,8709]
[work_price] => [3204,3845,4229]
[image] => https://akademik-stroy.ru/wp-content/uploads/materials/suhoj-brus.jpg
[area_modifier] => 153.72
[parent_name] => Стены 1 этаж (несущие)
[parent_id] => 3
[material_sum] => 1164060
[work_sum] => 517145
[total_sum] => 1681205
[total_days] => 7
[display_material_sum] => 1 164 060
[display_work_sum] => 517 145
[display_total_sum] => 1 681 205
)
1
1 681 205₽
Работа:517 145 ₽
Материалы:1 164 060 ₽
Дни:7
stdClass Object
(
[id] => 86
[attribute_id] => 3
[name] => Профилированный брус
[material_modifier] => 1
[work_modifier] => 1
[options] => Array
(
[0] => 150 мм
[1] => 180 мм
[2] => 200 мм
)
[days] => [7,8,9]
[material_price] => [8190,9228,10051]
[work_price] => [3845,4614,5075]
[image] => https://akademik-stroy.ru/wp-content/uploads/materials/profilirovannyj-brus.jpg
[area_modifier] => 153.72
[parent_name] => Стены 1 этаж (несущие)
[parent_id] => 3
[material_sum] => 1586298
[work_sum] => 620606
[total_sum] => 2206904
[total_days] => 7
[display_material_sum] => 1 586 298
[display_work_sum] => 620 606
[display_total_sum] => 2 206 904
)
1
2 206 904₽
Работа:620 606 ₽
Материалы:1 586 298 ₽
Дни:7
stdClass Object
(
[id] => 87
[attribute_id] => 3
[name] => Оцилиндрованное бревно
[material_modifier] => 1
[work_modifier] => 1
[options] => Array
(
[0] => 180 мм
[1] => 220 мм
[2] => 260 мм
[3] => 320 мм
)
[days] => [7,8,9,10]
[material_price] => [75190,9532,10868,13116]
[work_price] => [3845,4691,5535,6863]
[image] => https://akademik-stroy.ru/wp-content/uploads/materials/ocilindrovannoe-brevno-1.jpg
[area_modifier] => 153.72
[parent_name] => Стены 1 этаж (несущие)
[parent_id] => 3
[material_sum] => 14563341
[work_sum] => 620606
[total_sum] => 15183947
[total_days] => 7
[display_material_sum] => 14 563 341
[display_work_sum] => 620 606
[display_total_sum] => 15 183 947
)
1
15 183 947₽
Работа:620 606 ₽
Материалы:14 563 341 ₽
Дни:7
stdClass Object
(
[id] => 88
[attribute_id] => 3
[name] => Срубы
[material_modifier] => 1
[work_modifier] => 1
[options] => Array
(
[0] => 260 мм
[1] => 320 мм
[2] => 360 мм
[3] => 400 мм
[4] => 500 мм
)
[days] => [7,8,9,10,11]
[material_price] => [37975,46709,52314,58069,73167]
[work_price] => [4806,5911,6621,7349,9260]
[image] => https://akademik-stroy.ru/wp-content/uploads/materials/sruby.jpg
[area_modifier] => 153.72
[parent_name] => Стены 1 этаж (несущие)
[parent_id] => 3
[material_sum] => 7355271
[work_sum] => 775717
[total_sum] => 8130988
[total_days] => 7
[display_material_sum] => 7 355 271
[display_work_sum] => 775 717
[display_total_sum] => 8 130 988
)
1
8 130 988₽
Работа:775 717 ₽
Материалы:7 355 271 ₽
Дни:7
stdClass Object
(
[id] => 174
[attribute_id] => 3
[name] => Брус
[material_modifier] => 1
[work_modifier] => 1
[options] => Array
(
[0] => 150 мм
[1] => 180 мм
[2] => 200 мм
)
[days] => [7,8,9]
[material_price] => [5127,6152,7367]
[work_price] => [1602,1922,2115]
[image] => https://akademik-stroy.ru/wp-content/uploads/materials/brus.jpg
[area_modifier] => 153.72
[parent_name] => Стены 1 этаж (несущие)
[parent_id] => 3
[material_sum] => 993034
[work_sum] => 258572
[total_sum] => 1251606
[total_days] => 7
[display_material_sum] => 993 034
[display_work_sum] => 258 572
[display_total_sum] => 1 251 606
)
1
1 251 606₽
Работа:258 572 ₽
Материалы:993 034 ₽
Дни:7
stdClass Object
(
[id] => 175
[attribute_id] => 3
[name] => Газобетон
[material_modifier] => 1
[work_modifier] => 1
[options] => Array
(
[0] => 300 мм
[1] => 375 мм
[2] => 400 мм
[3] => 500 мм
[4] => 600 мм
)
[days] => [29,31,35,37,44]
[material_price] => [4298,5573,6356,7288,9119]
[work_price] => [4538,5251,5926,6733,7195]
[image] => https://akademik-stroy.ru/wp-content/uploads/materials/gazobeton.jpg
[area_modifier] => 153.72
[parent_name] => Стены 1 этаж (несущие)
[parent_id] => 3
[material_sum] => 832468
[work_sum] => 732460
[total_sum] => 1564928
[total_days] => 29
[display_material_sum] => 832 468
[display_work_sum] => 732 460
[display_total_sum] => 1 564 928
)
1
1 564 928₽
Работа:732 460 ₽
Материалы:832 468 ₽
Дни:29
stdClass Object
(
[id] => 176
[attribute_id] => 3
[name] => Блок
[material_modifier] => 1
[work_modifier] => 1
[options] => Array
(
[0] => 300 мм
[1] => 375 мм
[2] => 400 мм
[3] => 500 мм
[4] => 600 мм
)
[days] => [29,31,35,37,44]
[material_price] => [2698,3973,4356,6588,7119]
[work_price] => [5038,5851,6426,8733,9195]
[image] => https://akademik-stroy.ru/wp-content/uploads/materials/blok.jpg
[area_modifier] => 153.72
[parent_name] => Стены 1 этаж (несущие)
[parent_id] => 3
[material_sum] => 522568
[work_sum] => 813163
[total_sum] => 1335731
[total_days] => 29
[display_material_sum] => 522 568
[display_work_sum] => 813 163
[display_total_sum] => 1 335 731
)
1
1 335 731₽
Работа:813 163 ₽
Материалы:522 568 ₽
Дни:29
stdClass Object
(
[id] => 177
[attribute_id] => 3
[name] => Газосиликатный блок
[material_modifier] => 1
[work_modifier] => 1
[options] => Array
(
[0] => 300 мм
[1] => 375 мм
[2] => 400 мм
[3] => 500 мм
[4] => 600 мм
)
[days] => [29,31,35,37,44]
[material_price] => [4298,5573,6356,7288,9119]
[work_price] => [4538,5251,5926,6733,7195]
[image] => https://akademik-stroy.ru/wp-content/uploads/materials/gazosilikatnyj-blok.jpg
[area_modifier] => 153.72
[parent_name] => Стены 1 этаж (несущие)
[parent_id] => 3
[material_sum] => 832468
[work_sum] => 732460
[total_sum] => 1564928
[total_days] => 29
[display_material_sum] => 832 468
[display_work_sum] => 732 460
[display_total_sum] => 1 564 928
)
1
1 564 928₽
Работа:732 460 ₽
Материалы:832 468 ₽
Дни:29
stdClass Object
(
[id] => 178
[attribute_id] => 3
[name] => Керамзитобетонный блок
[material_modifier] => 1
[work_modifier] => 1
[options] => Array
(
[0] => 300 мм
[1] => 375 мм
[2] => 400 мм
[3] => 500 мм
[4] => 600 мм
)
[days] => [23,23,24,25,28]
[material_price] => [3641,4298,5693,7613,9612]
[work_price] => [5737,5737,6903,7958,8901]
[image] => https://akademik-stroy.ru/wp-content/uploads/materials/keramzitobetonnyj-blok.jpg
[area_modifier] => 153.72
[parent_name] => Стены 1 этаж (несущие)
[parent_id] => 3
[material_sum] => 705215
[work_sum] => 925986
[total_sum] => 1631201
[total_days] => 23
[display_material_sum] => 705 215
[display_work_sum] => 925 986
[display_total_sum] => 1 631 201
)
1
1 631 201₽
Работа:925 986 ₽
Материалы:705 215 ₽
Дни:23
stdClass Object
(
[id] => 179
[attribute_id] => 3
[name] => Деревянные
[material_modifier] => 1
[work_modifier] => 1
[options] => Array
(
[0] => 180 мм
[1] => 220 мм
[2] => 260 мм
[3] => 320 мм
)
[days] => [7,8,9,10]
[material_price] => [7950,9458,11961,14472]
[work_price] => [4037,4925,5812,7207]
[image] => https://akademik-stroy.ru/wp-content/uploads/materials/derevyannye.jpg
[area_modifier] => 153.72
[parent_name] => Стены 1 этаж (несущие)
[parent_id] => 3
[material_sum] => 1539813
[work_sum] => 651596
[total_sum] => 2191409
[total_days] => 7
[display_material_sum] => 1 539 813
[display_work_sum] => 651 596
[display_total_sum] => 2 191 409
)
1
2 191 409₽
Работа:651 596 ₽
Материалы:1 539 813 ₽
Дни:7
stdClass Object
(
[id] => 181
[attribute_id] => 3
[name] => Камень
[material_modifier] => 1
[work_modifier] => 1
[options] => Array
(
[0] => 300 мм
[1] => 400 мм
[2] => 500 мм
[3] => 600 мм
)
[days] => [25,27,31,34]
[material_price] => [5262,6844,8330,9815]
[work_price] => [8331,9135,10427,11069]
[image] => https://akademik-stroy.ru/wp-content/uploads/materials/kamen.jpg
[area_modifier] => 153.72
[parent_name] => Стены 1 этаж (несущие)
[parent_id] => 3
[material_sum] => 1019182
[work_sum] => 1344673
[total_sum] => 2363855
[total_days] => 25
[display_material_sum] => 1 019 182
[display_work_sum] => 1 344 673
[display_total_sum] => 2 363 855
)
1
2 363 855₽
Работа:1 344 673 ₽
Материалы:1 019 182 ₽
Дни:25
stdClass Object
(
[id] => 182
[attribute_id] => 3
[name] => Каркасно-щитовые
[material_modifier] => 1
[work_modifier] => 1
[options] => Array
(
[0] => 150 мм
[1] => 200 мм
[2] => 250 мм
[3] => 300 мм
[4] => 350 мм
[5] => 400 мм
)
[days] => [15,16,17,18,19,20]
[material_price] => [2379,2639,2898,3458,3601,4175]
[work_price] => [2538,2820,3134,3483,4062,5642]
[image] => https://akademik-stroy.ru/wp-content/uploads/materials/karkasno-shchitovye.jpg
[area_modifier] => 153.72
[parent_name] => Стены 1 этаж (несущие)
[parent_id] => 3
[material_sum] => 460782
[work_sum] => 409648
[total_sum] => 870430
[total_days] => 15
[display_material_sum] => 460 782
[display_work_sum] => 409 648
[display_total_sum] => 870 430
)
1
870 430₽
Работа:409 648 ₽
Материалы:460 782 ₽
Дни:15
stdClass Object
(
[id] => 183
[attribute_id] => 3
[name] => Рубленные
[material_modifier] => 1
[work_modifier] => 1
[options] => Array
(
[0] => 150 мм
[1] => 200 мм
[2] => 250 мм
[3] => 300 мм
[4] => 350 мм
[5] => 400 мм
)
[days] => [15,16,17,18,17,18]
[material_price] => [35950,50267,60583,75900,80217,100533]
[work_price] => [9612,12816,16020,19224,22428,25632]
[image] => https://akademik-stroy.ru/wp-content/uploads/materials/rublennye.jpg
[area_modifier] => 153.72
[parent_name] => Стены 1 этаж (несущие)
[parent_id] => 3
[material_sum] => 6963055
[work_sum] => 1551434
[total_sum] => 8514489
[total_days] => 15
[display_material_sum] => 6 963 055
[display_work_sum] => 1 551 434
[display_total_sum] => 8 514 489
)
1
8 514 489₽
Работа:1 551 434 ₽
Материалы:6 963 055 ₽
Дни:15
stdClass Object
(
[id] => 185
[attribute_id] => 3
[name] => Теплоблок
[material_modifier] => 1
[work_modifier] => 1
[options] => Array
(
[0] => 300 мм (с облицовкой, не покрашенный)
[1] => 400 мм (с облицовкой, не покрашенный)
[2] => 300 мм (с облицовкой, покрашенный)
[3] => 400 мм (с облицовкой, покрашенный)
)
[days] => [15,16,15,16]
[material_price] => [2888,3729,3957,4258]
[work_price] => [2564,3229,2949,3713]
[image] => https://akademik-stroy.ru/wp-content/uploads/materials/teploblok.jpg
[area_modifier] => 153.72
[parent_name] => Стены 1 этаж (несущие)
[parent_id] => 3
[material_sum] => 559369
[work_sum] => 413845
[total_sum] => 973214
[total_days] => 15
[display_material_sum] => 559 369
[display_work_sum] => 413 845
[display_total_sum] => 973 214
)
1
973 214₽
Работа:413 845 ₽
Материалы:559 369 ₽
Дни:15
stdClass Object
(
[id] => 186
[attribute_id] => 3
[name] => Арболитовые блоки
[material_modifier] => 1
[work_modifier] => 1
[options] => Array
(
[0] => 300 мм
[1] => 400 мм
[2] => 600 мм
)
[days] => [19,22,27]
[material_price] => [3210,4475,5852]
[work_price] => [4214,4788,5866]
[image] => https://akademik-stroy.ru/wp-content/uploads/materials/arbolitovye-bloki.png
[area_modifier] => 153.72
[parent_name] => Стены 1 этаж (несущие)
[parent_id] => 3
[material_sum] => 621736
[work_sum] => 680165
[total_sum] => 1301901
[total_days] => 19
[display_material_sum] => 621 736
[display_work_sum] => 680 165
[display_total_sum] => 1 301 901
)
1
1 301 901₽
Работа:680 165 ₽
Материалы:621 736 ₽
Дни:19
stdClass Object
(
[id] => 187
[attribute_id] => 3
[name] => Полистиролбетон
[material_modifier] => 1
[work_modifier] => 1
[options] => Array
(
[0] => 300 мм
[1] => 400 мм
[2] => 600 мм
)
[days] => [29,31,35]
[material_price] => [2798,4573,5256]
[work_price] => [5038,5851,6426]
[image] => https://akademik-stroy.ru/wp-content/uploads/materials/polistirolbeton.jpg
[area_modifier] => 153.72
[parent_name] => Стены 1 этаж (несущие)
[parent_id] => 3
[material_sum] => 541937
[work_sum] => 813163
[total_sum] => 1355100
[total_days] => 29
[display_material_sum] => 541 937
[display_work_sum] => 813 163
[display_total_sum] => 1 355 100
)
1
1 355 100₽
Работа:813 163 ₽
Материалы:541 937 ₽
Дни:29
stdClass Object
(
[id] => 188
[attribute_id] => 3
[name] => Шлакоблок
[material_modifier] => 1
[work_modifier] => 1
[options] => Array
(
[0] => 400 мм
[1] => 600 мм
)
[days] => [15,16]
[material_price] => [2391,3471]
[work_price] => [2642,3662]
[image] => https://akademik-stroy.ru/wp-content/uploads/materials/shlakoblok.jpg
[area_modifier] => 153.72
[parent_name] => Стены 1 этаж (несущие)
[parent_id] => 3
[material_sum] => 463106
[work_sum] => 426435
[total_sum] => 889541
[total_days] => 15
[display_material_sum] => 463 106
[display_work_sum] => 426 435
[display_total_sum] => 889 541
)
1
889 541₽
Работа:426 435 ₽
Материалы:463 106 ₽
Дни:15
stdClass Object
(
[id] => 189
[attribute_id] => 3
[name] => Теплая керамика
[material_modifier] => 1
[work_modifier] => 1
[options] => Array
(
[0] => 380 мм
[1] => 380 мм Thermo
[2] => 440 мм
[3] => 510 мм
)
[days] => [23,23,24,25]
[material_price] => [4510,5098,6093,8013]
[work_price] => [4737,4937,5903,6958]
[image] => https://akademik-stroy.ru/wp-content/uploads/materials/teplaya-keramika.jpg
[area_modifier] => 153.72
[parent_name] => Стены 1 этаж (несущие)
[parent_id] => 3
[material_sum] => 873529
[work_sum] => 764580
[total_sum] => 1638109
[total_days] => 23
[display_material_sum] => 873 529
[display_work_sum] => 764 580
[display_total_sum] => 1 638 109
)
1
1 638 109₽
Работа:764 580 ₽
Материалы:873 529 ₽
Дни:23
stdClass Object
(
[id] => 190
[attribute_id] => 3
[name] => Несъемная опалубка
[material_modifier] => 1
[work_modifier] => 1
[options] => Array
(
[0] => 200 мм
[1] => 250 мм
[2] => 300 мм
[3] => 350 мм
)
[days] => [15,17,19,21]
[material_price] => [3302,3902,4108,5008]
[work_price] => [2100,2100,2300,2534]
[image] => https://akademik-stroy.ru/wp-content/uploads/materials/nesemnaya-opalubka.jpg
[area_modifier] => 153.72
[parent_name] => Стены 1 этаж (несущие)
[parent_id] => 3
[material_sum] => 639555
[work_sum] => 338953
[total_sum] => 978508
[total_days] => 15
[display_material_sum] => 639 555
[display_work_sum] => 338 953
[display_total_sum] => 978 508
)
1
978 508₽
Работа:338 953 ₽
Материалы:639 555 ₽
Дни:15
stdClass Object
(
[id] => 251
[attribute_id] => 3
[name] => Бревно
[material_modifier] => 1
[work_modifier] => 1
[options] => Array
(
[0] => 260 мм
[1] => 320 мм
[2] => 360 мм
[3] => 400 мм
[4] => 500 мм
)
[days] => [7,8,9,10,11]
[material_price] => [1874,24045,26930,30972,38825]
[work_price] => [5046,6207,6952,7716,9723]
[image] => https://akademik-stroy.ru/wp-content/uploads/materials/sruby.jpg
[area_modifier] => 153.72
[parent_name] => Стены 1 этаж (несущие)
[parent_id] => 3
[material_sum] => 362970
[work_sum] => 814455
[total_sum] => 1177425
[total_days] => 7
[display_material_sum] => 362 970
[display_work_sum] => 814 455
[display_total_sum] => 1 177 425
)
1
1 177 425₽
Работа:814 455 ₽
Материалы:362 970 ₽
Дни:7
stdClass Object
(
[id] => 7
[attribute_id] => 4
[name] => Деревянные балки
[material_modifier] => 1
[work_modifier] => 1
[options] => Array
(
[0] => без утепления
[1] => утепление 200 мм
[2] => утепление 250 мм
[3] => утепление 300 мм
[4] => утепление 350 мм
[5] => утепление 400 мм
[6] => утепление 450 мм
[7] => утепление 500 мм
)
[days] => [8,9,9,9,11,12,13,14]
[material_price] => [1634,2042,2344,2947,3149,3652,3354,3557]
[work_price] => [1230,1339,1393,1426,1460,1513,1587,1620]
[image] => https://akademik-stroy.ru/wp-content/uploads/materials/derevyannye-balki.png
[area_modifier] => 153.72
[parent_name] => Перекрытие первого этажа
[parent_id] => 4
[material_sum] => 316485
[work_sum] => 198529
[total_sum] => 515014
[total_days] => 8
[display_material_sum] => 316 485
[display_work_sum] => 198 529
[display_total_sum] => 515 014
)
1
515 014₽
Работа:198 529 ₽
Материалы:316 485 ₽
Дни:8
stdClass Object
(
[id] => 8
[attribute_id] => 4
[name] => Сборные ж/б плиты
[material_modifier] => 1
[work_modifier] => 1
[options] => Array
(
[0] => без утепления
[1] => утепление 150 мм
[2] => утепление 200 мм
[3] => утепление 250 мм
[4] => утепление 300 мм
[5] => утепление 350 мм
[6] => утепление 400 мм
[7] => утепление 450 мм
[8] => утепление 500 мм
)
[days] => [13,15,15,15,15,15,15,15,15]
[material_price] => [3067,5577,5928,6679,7730,8782,9833,10884,11935]
[work_price] => [1520,1956,2102,2247,2392,2537,2684,2829,2974]
[image] => https://akademik-stroy.ru/wp-content/uploads/materials/sbornye-zh-b-plity-2.jpg
[area_modifier] => 153.72
[parent_name] => Перекрытие первого этажа
[parent_id] => 4
[material_sum] => 594039
[work_sum] => 245337
[total_sum] => 839376
[total_days] => 13
[display_material_sum] => 594 039
[display_work_sum] => 245 337
[display_total_sum] => 839 376
)
1
839 376₽
Работа:245 337 ₽
Материалы:594 039 ₽
Дни:13
stdClass Object
(
[id] => 89
[attribute_id] => 4
[name] => Монолитная ж/б плита
[material_modifier] => 1
[work_modifier] => 1
[options] => Array
(
[0] => без утепления
[1] => утепление 150 мм
[2] => утепление 200 мм
[3] => утепление 250 мм
[4] => утепление 300 мм
[5] => утепление 350 мм
[6] => утепление 400 мм
[7] => утепление 450 мм
[8] => утепление 500 мм
)
[days] => [18,20,20,20,20,20,20,20,20]
[material_price] => [4837,6572,7224,7375,79426,8177,8728,9180,10031]
[work_price] => [3348,3921,4112,4302,4493,4684,4875,5066,5256]
[image] => https://akademik-stroy.ru/wp-content/uploads/materials/monolitnaya-zh-b-plita-2.jpg
[area_modifier] => 153.72
[parent_name] => Перекрытие первого этажа
[parent_id] => 4
[material_sum] => 936865
[work_sum] => 540387
[total_sum] => 1477252
[total_days] => 18
[display_material_sum] => 936 865
[display_work_sum] => 540 387
[display_total_sum] => 1 477 252
)
1
1 477 252₽
Работа:540 387 ₽
Материалы:936 865 ₽
Дни:18
stdClass Object
(
[id] => 10
[attribute_id] => 5
[name] => Пеноблок
[material_modifier] => 1
[work_modifier] => 1
[options] => Array
(
[0] => 300 мм
[1] => 400 мм
[2] => 500 мм
[3] => 600 мм
)
[days] => [29,31,34,39]
[material_price] => [3000,4000,4500,4937]
[work_price] => [5033,5805,6400,8710]
[image] => https://akademik-stroy.ru/wp-content/uploads/materials/penoblok.jpg
[area_modifier] => 118.6
[parent_name] => Стены 2 этаж (несущие)
[parent_id] => 5
[material_sum] => 448308
[work_sum] => 626759
[total_sum] => 1075067
[total_days] => 29
[display_material_sum] => 448 308
[display_work_sum] => 626 759
[display_total_sum] => 1 075 067
)
1
1 075 067₽
Работа:626 759 ₽
Материалы:448 308 ₽
Дни:29
stdClass Object
(
[id] => 90
[attribute_id] => 5
[name] => Керамический блок
[material_modifier] => 1
[work_modifier] => 1
[options] => Array
(
[0] => 380 мм
[1] => 380 мм Thermo
[2] => 440 мм
[3] => 510 мм
)
[days] => [23,23,24,25]
[material_price] => [4510,5098,6093,8013]
[work_price] => [4737,4937,5903,6958]
[image] => https://akademik-stroy.ru/wp-content/uploads/materials/keramicheskij-blok.jpg
[area_modifier] => 118.6
[parent_name] => Стены 2 этаж (несущие)
[parent_id] => 5
[material_sum] => 673956
[work_sum] => 589899
[total_sum] => 1263855
[total_days] => 23
[display_material_sum] => 673 956
[display_work_sum] => 589 899
[display_total_sum] => 1 263 855
)
1
1 263 855₽
Работа:589 899 ₽
Материалы:673 956 ₽
Дни:23
stdClass Object
(
[id] => 91
[attribute_id] => 5
[name] => Кирпич
[material_modifier] => 1
[work_modifier] => 1
[options] => Array
(
[0] => Кирпич 250 мм
[1] => Кирпич 380 мм
[2] => Кирпич 510 мм
[3] => Кирпич 640 мм
[4] => Кирпич 770 мм
)
[days] => [30,30,31,33,36]
[material_price] => [5500,7142,9206,10171,12235]
[work_price] => [8736,10041,12018,15240,18462]
[image] => https://akademik-stroy.ru/wp-content/uploads/materials/kirpich.jpg
[area_modifier] => 118.6
[parent_name] => Стены 2 этаж (несущие)
[parent_id] => 5
[material_sum] => 821898
[work_sum] => 1087894
[total_sum] => 1909792
[total_days] => 30
[display_material_sum] => 821 898
[display_work_sum] => 1 087 894
[display_total_sum] => 1 909 792
)
1
1 909 792₽
Работа:1 087 894 ₽
Материалы:821 898 ₽
Дни:30
stdClass Object
(
[id] => 92
[attribute_id] => 5
[name] => Монолитные
[material_modifier] => 1
[work_modifier] => 1
[options] => Array
(
[0] => 150 мм
[1] => 200 мм
[2] => 250 мм
[3] => 300 мм
[4] => 350 мм
[5] => 400 мм
)
[days] => [45,46,47,49,50,53]
[material_price] => [6545,7876,10175,12011,13908,15204]
[work_price] => [5106,6444,7698,8552,9807,11461]
[image] => https://akademik-stroy.ru/wp-content/uploads/materials/monolitnye.jpg
[area_modifier] => 118.6
[parent_name] => Стены 2 этаж (несущие)
[parent_id] => 5
[material_sum] => 978059
[work_sum] => 635850
[total_sum] => 1613909
[total_days] => 45
[display_material_sum] => 978 059
[display_work_sum] => 635 850
[display_total_sum] => 1 613 909
)
1
1 613 909₽
Работа:635 850 ₽
Материалы:978 059 ₽
Дни:45
stdClass Object
(
[id] => 93
[attribute_id] => 5
[name] => Клееный брус
[material_modifier] => 1
[work_modifier] => 1
[options] => Array
(
[0] => 160 мм
[1] => 175 мм
[2] => 200 мм
[3] => 215 мм
[4] => 240 мм
[5] => 270 мм
[6] => 282 мм
)
[days] => [24,28,32,37,40,42,48]
[material_price] => [16975,18773,19950,20545,21599,22159,23275]
[work_price] => [4806,5287,5815,6397,7036,7740,8514]
[image] => https://akademik-stroy.ru/wp-content/uploads/materials/kleenyj-brus.jpg
[area_modifier] => 118.6
[parent_name] => Стены 2 этаж (несущие)
[parent_id] => 5
[material_sum] => 2536676
[work_sum] => 598491
[total_sum] => 3135167
[total_days] => 24
[display_material_sum] => 2 536 676
[display_work_sum] => 598 491
[display_total_sum] => 3 135 167
)
1
3 135 167₽
Работа:598 491 ₽
Материалы:2 536 676 ₽
Дни:24
stdClass Object
(
[id] => 94
[attribute_id] => 5
[name] => Каркасные
[material_modifier] => 1
[work_modifier] => 1
[options] => Array
(
[0] => 150 мм
[1] => 200 мм
[2] => 250 мм
[3] => 300 мм
)
[days] => [15,16,17,18]
[material_price] => [2379,2639,2898,3258]
[work_price] => [2418,2686,2985,3716]
[image] => https://akademik-stroy.ru/wp-content/uploads/materials/karkasnye.jpg
[area_modifier] => 118.6
[parent_name] => Стены 2 этаж (несущие)
[parent_id] => 5
[material_sum] => 355508
[work_sum] => 301114
[total_sum] => 656622
[total_days] => 15
[display_material_sum] => 355 508
[display_work_sum] => 301 114
[display_total_sum] => 656 622
)
1
656 622₽
Работа:301 114 ₽
Материалы:355 508 ₽
Дни:15
stdClass Object
(
[id] => 95
[attribute_id] => 5
[name] => СИП-панели
[material_modifier] => 1
[work_modifier] => 1
[options] => Array
(
[0] => 120 мм
[1] => 170 мм
[2] => 220 мм
)
[days] => [7,7,7]
[material_price] => [1210,1856,2292]
[work_price] => [1410,1551,1706]
[image] => https://akademik-stroy.ru/wp-content/uploads/materials/sip-paneli.jpg
[area_modifier] => 118.6
[parent_name] => Стены 2 этаж (несущие)
[parent_id] => 5
[material_sum] => 180818
[work_sum] => 175587
[total_sum] => 356405
[total_days] => 7
[display_material_sum] => 180 818
[display_work_sum] => 175 587
[display_total_sum] => 356 405
)
1
356 405₽
Работа:175 587 ₽
Материалы:180 818 ₽
Дни:7
stdClass Object
(
[id] => 96
[attribute_id] => 5
[name] => Сухой брус
[material_modifier] => 1
[work_modifier] => 1
[options] => Array
(
[0] => 150 мм
[1] => 180 мм
[2] => 200 мм
)
[days] => [7,8,9]
[material_price] => [6010,7190,8709]
[work_price] => [3204,3845,4229]
[image] => https://akademik-stroy.ru/wp-content/uploads/materials/suhoj-brus.jpg
[area_modifier] => 118.6
[parent_name] => Стены 2 этаж (несущие)
[parent_id] => 5
[material_sum] => 898110
[work_sum] => 398994
[total_sum] => 1297104
[total_days] => 7
[display_material_sum] => 898 110
[display_work_sum] => 398 994
[display_total_sum] => 1 297 104
)
1
1 297 104₽
Работа:398 994 ₽
Материалы:898 110 ₽
Дни:7
stdClass Object
(
[id] => 97
[attribute_id] => 5
[name] => Профилированный брус
[material_modifier] => 1
[work_modifier] => 1
[options] => Array
(
[0] => 150 мм
[1] => 180 мм
[2] => 200 мм
)
[days] => [7,8,9]
[material_price] => [8190,9228,10051]
[work_price] => [3845,4614,5075]
[image] => https://akademik-stroy.ru/wp-content/uploads/materials/profilirovannyj-brus.jpg
[area_modifier] => 118.6
[parent_name] => Стены 2 этаж (несущие)
[parent_id] => 5
[material_sum] => 1223881
[work_sum] => 478818
[total_sum] => 1702699
[total_days] => 7
[display_material_sum] => 1 223 881
[display_work_sum] => 478 818
[display_total_sum] => 1 702 699
)
1
1 702 699₽
Работа:478 818 ₽
Материалы:1 223 881 ₽
Дни:7
stdClass Object
(
[id] => 98
[attribute_id] => 5
[name] => Оцилиндрованное бревно
[material_modifier] => 1
[work_modifier] => 1
[options] => Array
(
[0] => 180 мм
[1] => 220 мм
[2] => 260 мм
[3] => 320 мм
)
[days] => [7,8,9,10]
[material_price] => [75190,9532,10868,13116]
[work_price] => [3845,4691,5535,6863]
[image] => https://akademik-stroy.ru/wp-content/uploads/materials/ocilindrovannoe-brevno-1.jpg
[area_modifier] => 118.6
[parent_name] => Стены 2 этаж (несущие)
[parent_id] => 5
[material_sum] => 11236093
[work_sum] => 478818
[total_sum] => 11714911
[total_days] => 7
[display_material_sum] => 11 236 093
[display_work_sum] => 478 818
[display_total_sum] => 11 714 911
)
1
11 714 911₽
Работа:478 818 ₽
Материалы:11 236 093 ₽
Дни:7
stdClass Object
(
[id] => 99
[attribute_id] => 5
[name] => Срубы
[material_modifier] => 1
[work_modifier] => 1
[options] => Array
(
[0] => 260 мм
[1] => 320 мм
[2] => 360 мм
[3] => 400 мм
[4] => 500 мм
)
[days] => [7,8,9,10,11]
[material_price] => [16175,23709,26314,29069,32167]
[work_price] => [4806,5911,6621,7349,9260]
[image] => https://akademik-stroy.ru/wp-content/uploads/materials/suhoj-brus.jpg
[area_modifier] => 118.6
[parent_name] => Стены 2 этаж (несущие)
[parent_id] => 5
[material_sum] => 2417127
[work_sum] => 598491
[total_sum] => 3015618
[total_days] => 7
[display_material_sum] => 2 417 127
[display_work_sum] => 598 491
[display_total_sum] => 3 015 618
)
1
3 015 618₽
Работа:598 491 ₽
Материалы:2 417 127 ₽
Дни:7
stdClass Object
(
[id] => 194
[attribute_id] => 5
[name] => Брус
[material_modifier] => 1
[work_modifier] => 1
[options] => Array
(
[0] => 150 мм
[1] => 180 мм
[2] => 200 мм
)
[days] => [10,13,15]
[material_price] => [5127,6152,7367]
[work_price] => [1602,1922,2115]
[image] => https://akademik-stroy.ru/wp-content/uploads/materials/brus.jpg
[area_modifier] => 118.6
[parent_name] => Стены 2 этаж (несущие)
[parent_id] => 5
[material_sum] => 766158
[work_sum] => 199497
[total_sum] => 965655
[total_days] => 10
[display_material_sum] => 766 158
[display_work_sum] => 199 497
[display_total_sum] => 965 655
)
1
965 655₽
Работа:199 497 ₽
Материалы:766 158 ₽
Дни:10
stdClass Object
(
[id] => 195
[attribute_id] => 5
[name] => Газобетон
[material_modifier] => 1
[work_modifier] => 1
[options] => Array
(
[0] => 300 мм
[1] => 375 мм
[2] => 400 мм
[3] => 500 мм
[4] => 600 мм
)
[days] => [29,31,35,37,44]
[material_price] => [4298,5573,6356,7288,9119]
[work_price] => [4538,5251,5926,6733,7195]
[image] => https://akademik-stroy.ru/wp-content/uploads/materials/gazobeton.jpg
[area_modifier] => 118.6
[parent_name] => Стены 2 этаж (несущие)
[parent_id] => 5
[material_sum] => 642276
[work_sum] => 565117
[total_sum] => 1207393
[total_days] => 29
[display_material_sum] => 642 276
[display_work_sum] => 565 117
[display_total_sum] => 1 207 393
)
1
1 207 393₽
Работа:565 117 ₽
Материалы:642 276 ₽
Дни:29
stdClass Object
(
[id] => 196
[attribute_id] => 5
[name] => Блок
[material_modifier] => 1
[work_modifier] => 1
[options] => Array
(
[0] => 300 мм
[1] => 375 мм
[2] => 400 мм
[3] => 500 мм
[4] => 600 мм
)
[days] => [29,31,35,37,44]
[material_price] => [2698,3973,4356,6588,7119]
[work_price] => [5038,5851,6426,8733,9195]
[image] => https://akademik-stroy.ru/wp-content/uploads/materials/blok.jpg
[area_modifier] => 118.6
[parent_name] => Стены 2 этаж (несущие)
[parent_id] => 5
[material_sum] => 403178
[work_sum] => 627382
[total_sum] => 1030560
[total_days] => 29
[display_material_sum] => 403 178
[display_work_sum] => 627 382
[display_total_sum] => 1 030 560
)
1
1 030 560₽
Работа:627 382 ₽
Материалы:403 178 ₽
Дни:29
stdClass Object
(
[id] => 197
[attribute_id] => 5
[name] => Газосиликатный блок
[material_modifier] => 1
[work_modifier] => 1
[options] => Array
(
[0] => 300 мм
[1] => 375 мм
[2] => 400 мм
[3] => 500 мм
[4] => 600 мм
)
[days] => [29,31,35,37,44]
[material_price] => [4298,5573,6356,7288,9119]
[work_price] => [4538,5251,5926,6733,7195]
[image] => https://akademik-stroy.ru/wp-content/uploads/materials/gazosilikatnyj-blok.jpg
[area_modifier] => 118.6
[parent_name] => Стены 2 этаж (несущие)
[parent_id] => 5
[material_sum] => 642276
[work_sum] => 565117
[total_sum] => 1207393
[total_days] => 29
[display_material_sum] => 642 276
[display_work_sum] => 565 117
[display_total_sum] => 1 207 393
)
1
1 207 393₽
Работа:565 117 ₽
Материалы:642 276 ₽
Дни:29
stdClass Object
(
[id] => 198
[attribute_id] => 5
[name] => Керамзитобетонный блок
[material_modifier] => 1
[work_modifier] => 1
[options] => Array
(
[0] => 300 мм
[1] => 375 мм
[2] => 400 мм
[3] => 500 мм
[4] => 600 мм
)
[days] => [23,23,24,25,28]
[material_price] => [3641,4298,5693,7613,9612]
[work_price] => [5737,5737,6903,7958,8901]
[image] => https://akademik-stroy.ru/wp-content/uploads/materials/keramzitobetonnyj-blok.jpg
[area_modifier] => 118.6
[parent_name] => Стены 2 этаж (несущие)
[parent_id] => 5
[material_sum] => 544096
[work_sum] => 714429
[total_sum] => 1258525
[total_days] => 23
[display_material_sum] => 544 096
[display_work_sum] => 714 429
[display_total_sum] => 1 258 525
)
1
1 258 525₽
Работа:714 429 ₽
Материалы:544 096 ₽
Дни:23
stdClass Object
(
[id] => 199
[attribute_id] => 5
[name] => Деревянные
[material_modifier] => 1
[work_modifier] => 1
[options] => Array
(
[0] => 180 мм
[1] => 220 мм
[2] => 260 мм
[3] => 320 мм
)
[days] => [7,8,9,10]
[material_price] => [7950,9458,11961,14472]
[work_price] => [4037,4925,5812,7207]
[image] => https://akademik-stroy.ru/wp-content/uploads/materials/derevyannye.jpg
[area_modifier] => 118.6
[parent_name] => Стены 2 этаж (несущие)
[parent_id] => 5
[material_sum] => 1188016
[work_sum] => 502728
[total_sum] => 1690744
[total_days] => 7
[display_material_sum] => 1 188 016
[display_work_sum] => 502 728
[display_total_sum] => 1 690 744
)
1
1 690 744₽
Работа:502 728 ₽
Материалы:1 188 016 ₽
Дни:7
stdClass Object
(
[id] => 200
[attribute_id] => 5
[name] => Камень
[material_modifier] => 1
[work_modifier] => 1
[options] => Array
(
[0] => 300 мм
[1] => 400 мм
[2] => 500 мм
[3] => 600 мм
)
[days] => [25,27,31,34]
[material_price] => [5262,6844,8330,9815]
[work_price] => [8331,9135,10427,11069]
[image] => https://akademik-stroy.ru/wp-content/uploads/materials/kamen.jpg
[area_modifier] => 118.6
[parent_name] => Стены 2 этаж (несущие)
[parent_id] => 5
[material_sum] => 786332
[work_sum] => 1037459
[total_sum] => 1823791
[total_days] => 25
[display_material_sum] => 786 332
[display_work_sum] => 1 037 459
[display_total_sum] => 1 823 791
)
1
1 823 791₽
Работа:1 037 459 ₽
Материалы:786 332 ₽
Дни:25
stdClass Object
(
[id] => 201
[attribute_id] => 5
[name] => Каркасно-щитовые
[material_modifier] => 1
[work_modifier] => 1
[options] => Array
(
[0] => 150 мм
[1] => 200 мм
[2] => 250 мм
[3] => 300 мм
[4] => 350 мм
[5] => 400 мм
)
[days] => [15,16,17,18,19,20]
[material_price] => [2379,2639,2898,3458,3601,4175]
[work_price] => [2538,2820,3134,3483,4062,5642]
[image] => https://akademik-stroy.ru/wp-content/uploads/materials/karkasno-shchitovye.jpg
[area_modifier] => 118.6
[parent_name] => Стены 2 этаж (несущие)
[parent_id] => 5
[material_sum] => 355508
[work_sum] => 316057
[total_sum] => 671565
[total_days] => 15
[display_material_sum] => 355 508
[display_work_sum] => 316 057
[display_total_sum] => 671 565
)
1
671 565₽
Работа:316 057 ₽
Материалы:355 508 ₽
Дни:15
stdClass Object
(
[id] => 202
[attribute_id] => 5
[name] => Рубленные
[material_modifier] => 1
[work_modifier] => 1
[options] => Array
(
[0] => 150 мм
[1] => 200 мм
[2] => 250 мм
[3] => 300 мм
[4] => 350 мм
[5] => 400 мм
)
[days] => [15,16,17,18,17,18]
[material_price] => [35950,50267,60583,75900,80217,100533]
[work_price] => [9612,12816,16020,19224,22428,25632]
[image] => https://akademik-stroy.ru/wp-content/uploads/materials/rublennye.jpg
[area_modifier] => 118.6
[parent_name] => Стены 2 этаж (несущие)
[parent_id] => 5
[material_sum] => 5372224
[work_sum] => 1196982
[total_sum] => 6569206
[total_days] => 15
[display_material_sum] => 5 372 224
[display_work_sum] => 1 196 982
[display_total_sum] => 6 569 206
)
1
6 569 206₽
Работа:1 196 982 ₽
Материалы:5 372 224 ₽
Дни:15
stdClass Object
(
[id] => 203
[attribute_id] => 5
[name] => Теплоблок
[material_modifier] => 1
[work_modifier] => 1
[options] => Array
(
[0] => 300 мм (с облицовкой, не покрашенный)
[1] => 400 мм (с облицовкой, не покрашенный)
[2] => 300 мм (с облицовкой, покрашенный)
[3] => 400 мм (с облицовкой, покрашенный)
)
[days] => [15,16,15,16]
[material_price] => [2888,3729,3957,4258]
[work_price] => [2564,3229,2949,3713]
[image] => https://akademik-stroy.ru/wp-content/uploads/materials/teploblok.jpg
[area_modifier] => 118.6
[parent_name] => Стены 2 этаж (несущие)
[parent_id] => 5
[material_sum] => 431571
[work_sum] => 319295
[total_sum] => 750866
[total_days] => 15
[display_material_sum] => 431 571
[display_work_sum] => 319 295
[display_total_sum] => 750 866
)
1
750 866₽
Работа:319 295 ₽
Материалы:431 571 ₽
Дни:15
stdClass Object
(
[id] => 204
[attribute_id] => 5
[name] => Арболитовые блоки
[material_modifier] => 1
[work_modifier] => 1
[options] => Array
(
[0] => 300 мм
[1] => 400 мм
[2] => 600 мм
)
[days] => [19,22,27]
[material_price] => [3210,4475,5852]
[work_price] => [4214,4788,5866]
[image] => https://akademik-stroy.ru/wp-content/uploads/materials/arbolitovye-bloki.png
[area_modifier] => 118.6
[parent_name] => Стены 2 этаж (несущие)
[parent_id] => 5
[material_sum] => 479690
[work_sum] => 524769
[total_sum] => 1004459
[total_days] => 19
[display_material_sum] => 479 690
[display_work_sum] => 524 769
[display_total_sum] => 1 004 459
)
1
1 004 459₽
Работа:524 769 ₽
Материалы:479 690 ₽
Дни:19
stdClass Object
(
[id] => 205
[attribute_id] => 5
[name] => Полистиролбетон
[material_modifier] => 1
[work_modifier] => 1
[options] => Array
(
[0] => 300 мм
[1] => 400 мм
[2] => 600 мм
)
[days] => [29,31,35]
[material_price] => [2798,4573,5256]
[work_price] => [5038,5851,6426]
[image] => https://akademik-stroy.ru/wp-content/uploads/materials/polistirolbeton.jpg
[area_modifier] => 118.6
[parent_name] => Стены 2 этаж (несущие)
[parent_id] => 5
[material_sum] => 418122
[work_sum] => 627382
[total_sum] => 1045504
[total_days] => 29
[display_material_sum] => 418 122
[display_work_sum] => 627 382
[display_total_sum] => 1 045 504
)
1
1 045 504₽
Работа:627 382 ₽
Материалы:418 122 ₽
Дни:29
stdClass Object
(
[id] => 206
[attribute_id] => 5
[name] => Шлакоблок
[material_modifier] => 1
[work_modifier] => 1
[options] => Array
(
[0] => 400 мм
[1] => 600 мм
)
[days] => [15,16]
[material_price] => [2391,3471]
[work_price] => [2642,3662]
[image] => https://akademik-stroy.ru/wp-content/uploads/materials/shlakoblok.jpg
[area_modifier] => 118.6
[parent_name] => Стены 2 этаж (несущие)
[parent_id] => 5
[material_sum] => 357301
[work_sum] => 329008
[total_sum] => 686309
[total_days] => 15
[display_material_sum] => 357 301
[display_work_sum] => 329 008
[display_total_sum] => 686 309
)
1
686 309₽
Работа:329 008 ₽
Материалы:357 301 ₽
Дни:15
stdClass Object
(
[id] => 245
[attribute_id] => 5
[name] => Теплая керамика
[material_modifier] => 1
[work_modifier] => 1
[options] => Array
(
[0] => 380 мм
[1] => 380 мм Thermo
[2] => 440 мм
[3] => 510 мм
)
[days] => [10,10,11,12]
[material_price] => [4510,5098,6093,8013]
[work_price] => [4737,4937,5903,6958]
[image] => https://akademik-stroy.ru/wp-content/uploads/materials/teplaya-keramika.jpg
[area_modifier] => 118.6
[parent_name] => Стены 2 этаж (несущие)
[parent_id] => 5
[material_sum] => 673956
[work_sum] => 589899
[total_sum] => 1263855
[total_days] => 10
[display_material_sum] => 673 956
[display_work_sum] => 589 899
[display_total_sum] => 1 263 855
)
1
1 263 855₽
Работа:589 899 ₽
Материалы:673 956 ₽
Дни:10
stdClass Object
(
[id] => 246
[attribute_id] => 5
[name] => Несъемная опалубка
[material_modifier] => 1
[work_modifier] => 1
[options] => Array
(
[0] => 380 мм
[1] => 380 мм Thermo
[2] => 440 мм
[3] => 510 мм
)
[days] => [10,10,11,12]
[material_price] => [3302,3902,4108,5008]
[work_price] => [2100,2100,2300,2534]
[image] => https://akademik-stroy.ru/wp-content/uploads/materials/nesemnaya-opalubka.jpg
[area_modifier] => 118.6
[parent_name] => Стены 2 этаж (несущие)
[parent_id] => 5
[material_sum] => 493438
[work_sum] => 261513
[total_sum] => 754951
[total_days] => 10
[display_material_sum] => 493 438
[display_work_sum] => 261 513
[display_total_sum] => 754 951
)
1
754 951₽
Работа:261 513 ₽
Материалы:493 438 ₽
Дни:10
stdClass Object
(
[id] => 254
[attribute_id] => 5
[name] => Бревно
[material_modifier] => 1
[work_modifier] => 1
[options] => Array
(
[0] => 260 мм
[1] => 320 мм
[2] => 360 мм
[3] => 400 мм
[4] => 500 мм
)
[days] => [7,8,9,10,11]
[material_price] => [1874,24045,26930,30972,38825]
[work_price] => [5046,6207,6952,7716,9723]
[image] => https://akademik-stroy.ru/wp-content/uploads/materials/sruby.jpg
[area_modifier] => 118.6
[parent_name] => Стены 2 этаж (несущие)
[parent_id] => 5
[material_sum] => 280043
[work_sum] => 628378
[total_sum] => 908421
[total_days] => 7
[display_material_sum] => 280 043
[display_work_sum] => 628 378
[display_total_sum] => 908 421
)
1
908 421₽
Работа:628 378 ₽
Материалы:280 043 ₽
Дни:7
stdClass Object
(
[id] => 11
[attribute_id] => 6
[name] => Деревянные балки
[material_modifier] => 1
[work_modifier] => 1
[options] => Array
(
[0] => без утепления
[1] => утепление 200 мм
[2] => утепление 250 мм
[3] => утепление 300 мм
[4] => утепление 350 мм
[5] => утепление 400 мм
[6] => утепление 450 мм
[7] => утепление 500 мм
)
[days] => [8,9,9,9,11,12,13,14]
[material_price] => [1634,2042,2344,2947,3149,3652,3354,3557]
[work_price] => [1230,1339,1393,1426,1460,1513,1587,1620]
[image] => https://akademik-stroy.ru/wp-content/uploads/materials/derevyannye-balki.png
[area_modifier] => 118.6
[parent_name] => Перекрытие второго этажа
[parent_id] => 6
[material_sum] => 244178
[work_sum] => 153172
[total_sum] => 397350
[total_days] => 8
[display_material_sum] => 244 178
[display_work_sum] => 153 172
[display_total_sum] => 397 350
)
1
397 350₽
Работа:153 172 ₽
Материалы:244 178 ₽
Дни:8
stdClass Object
(
[id] => 12
[attribute_id] => 6
[name] => Сборные ж/б плиты
[material_modifier] => 1
[work_modifier] => 1
[options] => Array
(
[0] => без утепления
[1] => утепление 150 мм
[2] => утепление 200 мм
[3] => утепление 250 мм
[4] => утепление 300 мм
[5] => утепление 350 мм
[6] => утепление 400 мм
[7] => утепление 450 мм
[8] => утепление 500 мм
)
[days] => [13,15,15,15,15,15,15,15,15]
[material_price] => [3067,5577,5928,6679,7730,8782,9833,10884,11935]
[work_price] => [1520,1956,2102,2247,2392,2537,2684,2829,2974]
[image] => https://akademik-stroy.ru/wp-content/uploads/materials/sbornye-zh-b-plity-2.jpg
[area_modifier] => 118.6
[parent_name] => Перекрытие второго этажа
[parent_id] => 6
[material_sum] => 458320
[work_sum] => 189286
[total_sum] => 647606
[total_days] => 13
[display_material_sum] => 458 320
[display_work_sum] => 189 286
[display_total_sum] => 647 606
)
1
647 606₽
Работа:189 286 ₽
Материалы:458 320 ₽
Дни:13
stdClass Object
(
[id] => 100
[attribute_id] => 6
[name] => Монолитная ж/б плита
[material_modifier] => 1
[work_modifier] => 1
[options] => Array
(
[0] => без утепления
[1] => утепление 150 мм
[2] => утепление 200 мм
[3] => утепление 250 мм
[4] => утепление 300 мм
[5] => утепление 350 мм
[6] => утепление 400 мм
[7] => утепление 450 мм
[8] => утепление 500 мм
)
[days] => [18,20,20,20,20,20,20,20,20]
[material_price] => [4837,6572,7224,7375,79426,8177,8728,9180,10031]
[work_price] => [3348,3921,4112,4302,4493,4684,4875,5066,5256]
[image] => https://akademik-stroy.ru/wp-content/uploads/materials/monolitnaya-zh-b-plita-2.jpg
[area_modifier] => 118.6
[parent_name] => Перекрытие второго этажа
[parent_id] => 6
[material_sum] => 722822
[work_sum] => 416926
[total_sum] => 1139748
[total_days] => 18
[display_material_sum] => 722 822
[display_work_sum] => 416 926
[display_total_sum] => 1 139 748
)
1
1 139 748₽
Работа:416 926 ₽
Материалы:722 822 ₽
Дни:18
stdClass Object
(
[id] => 160
[attribute_id] => 36
[name] => Не эксплуатируемая
[material_modifier] => 1
[work_modifier] => 1
[options] => Array
(
)
[days] => [10]
[material_price] => [8068]
[work_price] => [4163]
[image] => https://akademik-stroy.ru/wp-content/uploads/materials/ne-ehkspluatiruemaya-3.jpg
[area_modifier] => 153.72
[parent_name] => Плоская крыша
[parent_id] => 36
[material_sum] => 1562668
[work_sum] => 671933
[total_sum] => 2234601
[total_days] => 10
[display_material_sum] => 1 562 668
[display_work_sum] => 671 933
[display_total_sum] => 2 234 601
)
1
2 234 601₽
Работа:671 933 ₽
Материалы:1 562 668 ₽
Дни:10
stdClass Object
(
[id] => 161
[attribute_id] => 36
[name] => Зеленая кровля (Эксплуатируемая)
[material_modifier] => 1
[work_modifier] => 1
[options] => Array
(
)
[days] => [10]
[material_price] => [10056]
[work_price] => [8446]
[image] => https://akademik-stroy.ru/wp-content/uploads/materials/zelenaya-krovlya-2.jpg
[area_modifier] => 153.72
[parent_name] => Плоская крыша
[parent_id] => 36
[material_sum] => 1947718
[work_sum] => 1363235
[total_sum] => 3310953
[total_days] => 10
[display_material_sum] => 1 947 718
[display_work_sum] => 1 363 235
[display_total_sum] => 3 310 953
)
1
3 310 953₽
Работа:1 363 235 ₽
Материалы:1 947 718 ₽
Дни:10
stdClass Object
(
[id] => 162
[attribute_id] => 36
[name] => Эксплуатируемая
[material_modifier] => 1
[work_modifier] => 1
[options] => Array
(
)
[days] => [10]
[material_price] => [9593]
[work_price] => [7459]
[image] => https://akademik-stroy.ru/wp-content/uploads/materials/ehkspluatiruemaya-2.jpg
[area_modifier] => 153.72
[parent_name] => Плоская крыша
[parent_id] => 36
[material_sum] => 1858041
[work_sum] => 1203927
[total_sum] => 3061968
[total_days] => 10
[display_material_sum] => 1 858 041
[display_work_sum] => 1 203 927
[display_total_sum] => 3 061 968
)
1
3 061 968₽
Работа:1 203 927 ₽
Материалы:1 858 041 ₽
Дни:10
stdClass Object
(
[id] => 163
[attribute_id] => 36
[name] => Нет
[material_modifier] => 1
[work_modifier] => 1
[options] => Array
(
)
[days] => [0]
[material_price] => [0]
[work_price] => [0]
[image] => https://akademik-stroy.ru/wp-content/uploads/materials/ne-ehkspluatiruemaya-3.jpg
[area_modifier] => 153.72
[parent_name] => Плоская крыша
[parent_id] => 36
[material_sum] => 0
[work_sum] => 0
[total_sum] => 0
[total_days] => 0
[display_material_sum] => 0
[display_work_sum] => 0
[display_total_sum] => 0
)
1
0₽
Работа:0 ₽
Материалы:0 ₽
Дни:0
stdClass Object
(
[id] => 51
[attribute_id] => 26
[name] => Есть
[material_modifier] => 1
[work_modifier] => 1
[options] => Array
(
[0] => Профиль 58 мм, 3-камерный, стеклопакет 2-камерный до 32 мм
[1] => Профиль 60 мм, 4-камерный, стеклопакет 2-камерный до 32 мм
[2] => Профиль 70 мм, 5-камерный, стеклопакет 2-камерный до 40 мм
[3] => Профиль 72 мм, 5-камерный, стеклопакет 2-камерный до 40 мм
[4] => Алюминиевые окна Alutech профиль 72 мм, стеклопакет 2-камерный
)
[days] => [3,3,3,3,3]
[material_price] => [1339,2124,2867,3023,29596]
[work_price] => [635,647,659,668,2579]
[image] => https://akademik-stroy.ru/wp-content/uploads/materials/okna.jpg
[area_modifier] => 220.98
[parent_name] => Окна
[parent_id] => 26
[material_sum] => 372824
[work_sum] => 147338
[total_sum] => 520162
[total_days] => 3
[display_material_sum] => 372 824
[display_work_sum] => 147 338
[display_total_sum] => 520 162
)
1
520 162₽
Работа:147 338 ₽
Материалы:372 824 ₽
Дни:3
stdClass Object
(
[id] => 52
[attribute_id] => 26
[name] => Нет
[material_modifier] => 2
[work_modifier] => 1
[options] =>
[days] => null
[material_price] => null
[work_price] => null
[image] => https://akademik-stroy.ru/wp-content/uploads/materials/okna.jpg
[area_modifier] => 220.98
[parent_name] => Окна
[parent_id] => 26
[material_sum] => 0
[work_sum] => 0
[total_sum] => 0
[total_days] => 0
[display_material_sum] => 0
[display_work_sum] => 0
[display_total_sum] => 0
)
1
0₽
Работа:0 ₽
Материалы:0 ₽
Дни:0
stdClass Object
(
[id] => 53
[attribute_id] => 27
[name] => Есть
[material_modifier] => 1
[work_modifier] => 1
[options] => Array
(
)
[days] => [1]
[material_price] => [10000]
[work_price] => [5500]
[image] => https://akademik-stroy.ru/wp-content/uploads/materials/dveri.jpg
[area_modifier] => 1
[parent_name] => Двери входные
[parent_id] => 27
[material_sum] => 12600
[work_sum] => 5775
[total_sum] => 18375
[total_days] => 1
[display_material_sum] => 12 600
[display_work_sum] => 5 775
[display_total_sum] => 18 375
)
1
18 375₽
Работа:5 775 ₽
Материалы:12 600 ₽
Дни:1
stdClass Object
(
[id] => 54
[attribute_id] => 27
[name] => Нет
[material_modifier] => 1
[work_modifier] => 1
[options] => Array
(
)
[days] => [0]
[material_price] => [0]
[work_price] => [0]
[image] => https://akademik-stroy.ru/wp-content/uploads/materials/dveri.jpg
[area_modifier] => 1
[parent_name] => Двери входные
[parent_id] => 27
[material_sum] => 0
[work_sum] => 0
[total_sum] => 0
[total_days] => 0
[display_material_sum] => 0
[display_work_sum] => 0
[display_total_sum] => 0
)
1
0₽
Работа:0 ₽
Материалы:0 ₽
Дни:0
stdClass Object
(
[id] => 31
[attribute_id] => 16
[name] => Нет
[material_modifier] => 1
[work_modifier] => 1
[options] => Array
(
)
[days] => [0]
[material_price] => [0]
[work_price] => [0]
[image] => https://akademik-stroy.ru/wp-content/uploads/materials/docke-standard-pvh.jpg
[area_modifier] => 153.72
[parent_name] => Водосточная система
[parent_id] => 16
[material_sum] => 0
[work_sum] => 0
[total_sum] => 0
[total_days] => 0
[display_material_sum] => 0
[display_work_sum] => 0
[display_total_sum] => 0
)
1
0₽
Работа:0 ₽
Материалы:0 ₽
Дни:0
stdClass Object
(
[id] => 32
[attribute_id] => 16
[name] => Есть
[material_modifier] => 1
[work_modifier] => 1
[options] => Array
(
[0] => Döcke Standard (ПВХ)
[1] => Металлические Grand Line
)
[days] => [7,7]
[material_price] => [1842,2703]
[work_price] => [1491,1529]
[image] => https://akademik-stroy.ru/wp-content/uploads/materials/docke-standard-pvh.jpg
[area_modifier] => 153.72
[parent_name] => Водосточная система
[parent_id] => 16
[material_sum] => 356772
[work_sum] => 240656
[total_sum] => 597428
[total_days] => 7
[display_material_sum] => 356 772
[display_work_sum] => 240 656
[display_total_sum] => 597 428
)
1
597 428₽
Работа:240 656 ₽
Материалы:356 772 ₽
Дни:7
stdClass Object
(
[id] => 33
[attribute_id] => 17
[name] => Нет
[material_modifier] => 1
[work_modifier] => 1
[options] => Array
(
)
[days] => [0]
[material_price] => [0]
[work_price] => [0]
[image] => https://akademik-stroy.ru/wp-content/uploads/materials/mineralovata.jpg
[area_modifier] => 272.31
[parent_name] => Дополнительное утепление наружных стен
[parent_id] => 17
[material_sum] => 0
[work_sum] => 0
[total_sum] => 0
[total_days] => 0
[display_material_sum] => 0
[display_work_sum] => 0
[display_total_sum] => 0
)
1
0₽
Работа:0 ₽
Материалы:0 ₽
Дни:0
stdClass Object
(
[id] => 34
[attribute_id] => 17
[name] => Минераловатный
[material_modifier] => 1
[work_modifier] => 1
[options] => Array
(
[0] => 50 мм
[1] => 100 мм
[2] => 150 мм
[3] => 200 мм
[4] => 250 мм
[5] => 300 мм
)
[days] => [7,8,10,12,14,15]
[material_price] => [3437,3613,3803,3915,4601,4830]
[work_price] => [2325,2423,2523,2749,2859,3025]
[image] => https://akademik-stroy.ru/wp-content/uploads/materials/mineralovata.jpg
[area_modifier] => 272.31
[parent_name] => Дополнительное утепление наружных стен
[parent_id] => 17
[material_sum] => 1179271
[work_sum] => 664777
[total_sum] => 1844048
[total_days] => 7
[display_material_sum] => 1 179 271
[display_work_sum] => 664 777
[display_total_sum] => 1 844 048
)
1
1 844 048₽
Работа:664 777 ₽
Материалы:1 179 271 ₽
Дни:7
stdClass Object
(
[id] => 128
[attribute_id] => 17
[name] => Эковата (целлюлозная вата)
[material_modifier] => 1
[work_modifier] => 1
[options] => Array
(
[0] => 50 мм
[1] => 100 мм
[2] => 150 мм
[3] => 200 мм
[4] => 250 мм
[5] => 300 мм
)
[days] => [3,4,5,6,7,8]
[material_price] => [810,1319,1629,1838,2267,2676]
[work_price] => [1225,1323,1423,1549,1659,1725]
[image] => https://akademik-stroy.ru/wp-content/uploads/materials/ehkovata.jpg
[area_modifier] => 272.31
[parent_name] => Дополнительное утепление наружных стен
[parent_id] => 17
[material_sum] => 277920
[work_sum] => 350259
[total_sum] => 628179
[total_days] => 3
[display_material_sum] => 277 920
[display_work_sum] => 350 259
[display_total_sum] => 628 179
)
1
628 179₽
Работа:350 259 ₽
Материалы:277 920 ₽
Дни:3
stdClass Object
(
[id] => 129
[attribute_id] => 17
[name] => Экструдированный пенополистирол
[material_modifier] => 1
[work_modifier] => 1
[options] => Array
(
[0] => 50 мм
[1] => 100 мм
[2] => 150 мм
[3] => 200 мм
[4] => 250 мм
[5] => 300 мм
)
[days] => [5,6,7,8,9,10]
[material_price] => [4560,4300,5119,6292,7010,8583]
[work_price] => [1795,1954,2254,2330,2595,2735]
[image] => https://akademik-stroy.ru/wp-content/uploads/materials/epps.jpg
[area_modifier] => 272.31
[parent_name] => Дополнительное утепление наружных стен
[parent_id] => 17
[material_sum] => 1564584
[work_sum] => 513236
[total_sum] => 2077820
[total_days] => 5
[display_material_sum] => 1 564 584
[display_work_sum] => 513 236
[display_total_sum] => 2 077 820
)
1
2 077 820₽
Работа:513 236 ₽
Материалы:1 564 584 ₽
Дни:5
stdClass Object
(
[id] => 130
[attribute_id] => 17
[name] => ПСБ (ППС-пенополистирол)
[material_modifier] => 1
[work_modifier] => 1
[options] => Array
(
[0] => 50 мм
[1] => 100 мм
[2] => 150 мм
[3] => 200 мм
[4] => 250 мм
[5] => 300 мм
)
[days] => [5,6,7,8,9,10]
[material_price] => [4822,5200,5819,6292,7010,7583]
[work_price] => [1795,1954,2254,2330,2595,2735]
[image] => https://akademik-stroy.ru/wp-content/uploads/materials/psb.jpg
[area_modifier] => 272.31
[parent_name] => Дополнительное утепление наружных стен
[parent_id] => 17
[material_sum] => 1654479
[work_sum] => 513236
[total_sum] => 2167715
[total_days] => 5
[display_material_sum] => 1 654 479
[display_work_sum] => 513 236
[display_total_sum] => 2 167 715
)
1
2 167 715₽
Работа:513 236 ₽
Материалы:1 654 479 ₽
Дни:5
stdClass Object
(
[id] => 131
[attribute_id] => 17
[name] => ППУ (Пенополиуретан)
[material_modifier] => 1
[work_modifier] => 1
[options] => Array
(
[0] => 50 мм
[1] => 100 мм
[2] => 150 мм
[3] => 200 мм
[4] => 250 мм
[5] => 300 мм
)
[days] => [3,4,5,6,7,8]
[material_price] => [2860,3400,4219,4592,5010,5583]
[work_price] => [729,900,980,1120,1280,1530]
[image] => https://akademik-stroy.ru/wp-content/uploads/materials/ppu.jpg
[area_modifier] => 272.31
[parent_name] => Дополнительное утепление наружных стен
[parent_id] => 17
[material_sum] => 981296
[work_sum] => 208440
[total_sum] => 1189736
[total_days] => 3
[display_material_sum] => 981 296
[display_work_sum] => 208 440
[display_total_sum] => 1 189 736
)
1
1 189 736₽
Работа:208 440 ₽
Материалы:981 296 ₽
Дни:3
stdClass Object
(
[id] => 132
[attribute_id] => 17
[name] => PIR-плиты (пенополиизоцианурат)
[material_modifier] => 1
[work_modifier] => 1
[options] => Array
(
[0] => 50 мм
[1] => 100 мм
[2] => 150 мм
[3] => 200 мм
[4] => 250 мм
[5] => 300 мм
)
[days] => [5,6,7,8,9,10]
[material_price] => [8323,15645,20968,25900,29258,30581]
[work_price] => [800,900,970,1150,1280,1330]
[image] => https://akademik-stroy.ru/wp-content/uploads/materials/pir.jpg
[area_modifier] => 272.31
[parent_name] => Дополнительное утепление наружных стен
[parent_id] => 17
[material_sum] => 2855710
[work_sum] => 228740
[total_sum] => 3084450
[total_days] => 5
[display_material_sum] => 2 855 710
[display_work_sum] => 228 740
[display_total_sum] => 3 084 450
)
1
3 084 450₽
Работа:228 740 ₽
Материалы:2 855 710 ₽
Дни:5
stdClass Object
(
[id] => 37
[attribute_id] => 19
[name] => Нет
[material_modifier] => 1
[work_modifier] => 1
[options] => Array
(
)
[days] => [0]
[material_price] => [0]
[work_price] => [0]
[image] => https://akademik-stroy.ru/wp-content/uploads/materials/imitaciya-brusa.jpg
[area_modifier] => 272.31
[parent_name] => Наружная отделка фасада
[parent_id] => 19
[material_sum] => 0
[work_sum] => 0
[total_sum] => 0
[total_days] => 0
[display_material_sum] => 0
[display_work_sum] => 0
[display_total_sum] => 0
)
1
0₽
Работа:0 ₽
Материалы:0 ₽
Дни:0
stdClass Object
(
[id] => 38
[attribute_id] => 19
[name] => Имитация бруса
[material_modifier] => 1
[work_modifier] => 1
[options] => Array
(
[0] => Сосна
[1] => Ель
[2] => Лиственница
)
[days] => [20,20,20]
[material_price] => [2994,2762,4954]
[work_price] => [1397,1231,1577]
[image] => https://akademik-stroy.ru/wp-content/uploads/materials/imitaciya-brusa.jpg
[area_modifier] => 272.31
[parent_name] => Наружная отделка фасада
[parent_id] => 19
[material_sum] => 1027273
[work_sum] => 399438
[total_sum] => 1426711
[total_days] => 20
[display_material_sum] => 1 027 273
[display_work_sum] => 399 438
[display_total_sum] => 1 426 711
)
1
1 426 711₽
Работа:399 438 ₽
Материалы:1 027 273 ₽
Дни:20
stdClass Object
(
[id] => 136
[attribute_id] => 19
[name] => Планкен
[material_modifier] => 1
[work_modifier] => 1
[options] => Array
(
[0] => Сосна
[1] => Ель
[2] => Лиственница
)
[days] => [20,20,20]
[material_price] => [3194,2862,5154]
[work_price] => [1537,1354,1735]
[image] => https://akademik-stroy.ru/wp-content/uploads/materials/planken.jpg
[area_modifier] => 272.31
[parent_name] => Наружная отделка фасада
[parent_id] => 19
[material_sum] => 1095895
[work_sum] => 439467
[total_sum] => 1535362
[total_days] => 20
[display_material_sum] => 1 095 895
[display_work_sum] => 439 467
[display_total_sum] => 1 535 362
)
1
1 535 362₽
Работа:439 467 ₽
Материалы:1 095 895 ₽
Дни:20
stdClass Object
(
[id] => 137
[attribute_id] => 19
[name] => Штукатурка
[material_modifier] => 1
[work_modifier] => 1
[options] => Array
(
[0] => Цементно-песчаная (минеральная)
[1] => Мокрый фасад
)
[days] => [35,35]
[material_price] => [2231,3938]
[work_price] => [1202,2422]
[image] => https://akademik-stroy.ru/wp-content/uploads/materials/shtukaturka.jpg
[area_modifier] => 272.31
[parent_name] => Наружная отделка фасада
[parent_id] => 19
[material_sum] => 765480
[work_sum] => 343682
[total_sum] => 1109162
[total_days] => 35
[display_material_sum] => 765 480
[display_work_sum] => 343 682
[display_total_sum] => 1 109 162
)
1
1 109 162₽
Работа:343 682 ₽
Материалы:765 480 ₽
Дни:35
stdClass Object
(
[id] => 138
[attribute_id] => 19
[name] => Облицовочный кирпич
[material_modifier] => 1
[work_modifier] => 1
[options] => Array
(
[0] => Керамический
[1] => Клинкерный
[2] => Ручной формовки
[3] => Гиперпрессованный
[4] => Силикатный кирпич
)
[days] => [45,45,45,45,45]
[material_price] => [8174,9148,1040,1257,5876]
[work_price] => [3240,3758,4536,4017,3369]
[image] => https://akademik-stroy.ru/wp-content/uploads/materials/oblicovochnyj-kirpich.jpg
[area_modifier] => 272.31
[parent_name] => Наружная отделка фасада
[parent_id] => 19
[material_sum] => 2804586
[work_sum] => 926399
[total_sum] => 3730985
[total_days] => 45
[display_material_sum] => 2 804 586
[display_work_sum] => 926 399
[display_total_sum] => 3 730 985
)
1
3 730 985₽
Работа:926 399 ₽
Материалы:2 804 586 ₽
Дни:45
stdClass Object
(
[id] => 139
[attribute_id] => 19
[name] => Фасадная плитка
[material_modifier] => 1
[work_modifier] => 1
[options] => Array
(
[0] => Клинкерная
[1] => Керамическая
[2] => Плитка ручной формовки
)
[days] => [40,40,40]
[material_price] => [2974,1487,3470]
[work_price] => [3007,2592,3629]
[image] => https://akademik-stroy.ru/wp-content/uploads/materials/fasadnaya-plitka.jpg
[area_modifier] => 272.31
[parent_name] => Наружная отделка фасада
[parent_id] => 19
[material_sum] => 1020411
[work_sum] => 859778
[total_sum] => 1880189
[total_days] => 40
[display_material_sum] => 1 020 411
[display_work_sum] => 859 778
[display_total_sum] => 1 880 189
)
1
1 880 189₽
Работа:859 778 ₽
Материалы:1 020 411 ₽
Дни:40
stdClass Object
(
[id] => 140
[attribute_id] => 19
[name] => Сайдинг
[material_modifier] => 1
[work_modifier] => 1
[options] => Array
(
[0] => Виниловый
[1] => Металлический
[2] => Фиброцементный
)
[days] => [20,20,20]
[material_price] => [1263,1944,4147]
[work_price] => [1263,1944,2074]
[image] => https://akademik-stroy.ru/wp-content/uploads/materials/sajding.jpg
[area_modifier] => 272.31
[parent_name] => Наружная отделка фасада
[parent_id] => 19
[material_sum] => 433349
[work_sum] => 361124
[total_sum] => 794473
[total_days] => 20
[display_material_sum] => 433 349
[display_work_sum] => 361 124
[display_total_sum] => 794 473
)
1
794 473₽
Работа:361 124 ₽
Материалы:433 349 ₽
Дни:20
stdClass Object
(
[id] => 141
[attribute_id] => 19
[name] => Камень
[material_modifier] => 1
[work_modifier] => 1
[options] => Array
(
[0] => Травертин
[1] => Дагестанский
[2] => Искусственный
[3] => Натуральный
[4] => Керамогранит
)
[days] => [45,45,45,45,45]
[material_price] => [4536,3888,2592,3240,2462]
[work_price] => [3240,3240,2462,3110,1944]
[image] => https://akademik-stroy.ru/wp-content/uploads/materials/kamen-1.jpg
[area_modifier] => 272.31
[parent_name] => Наружная отделка фасада
[parent_id] => 19
[material_sum] => 1556350
[work_sum] => 926399
[total_sum] => 2482749
[total_days] => 45
[display_material_sum] => 1 556 350
[display_work_sum] => 926 399
[display_total_sum] => 2 482 749
)
1
2 482 749₽
Работа:926 399 ₽
Материалы:1 556 350 ₽
Дни:45
stdClass Object
(
[id] => 142
[attribute_id] => 19
[name] => Термопанели
[material_modifier] => 1
[work_modifier] => 1
[options] => Array
(
)
[days] => [20]
[material_price] => [6221]
[work_price] => [2333]
[image] => https://akademik-stroy.ru/wp-content/uploads/materials/termo.png
[area_modifier] => 272.31
[parent_name] => Наружная отделка фасада
[parent_id] => 19
[material_sum] => 2134491
[work_sum] => 667064
[total_sum] => 2801555
[total_days] => 20
[display_material_sum] => 2 134 491
[display_work_sum] => 667 064
[display_total_sum] => 2 801 555
)
1
2 801 555₽
Работа:667 064 ₽
Материалы:2 134 491 ₽
Дни:20
stdClass Object
(
[id] => 143
[attribute_id] => 19
[name] => Плитка HAUBERK
[material_modifier] => 1
[work_modifier] => 1
[options] => Array
(
)
[days] => [20]
[material_price] => [2786]
[work_price] => [1944]
[image] => https://akademik-stroy.ru/wp-content/uploads/materials/hauberk.jpg
[area_modifier] => 272.31
[parent_name] => Наружная отделка фасада
[parent_id] => 19
[material_sum] => 955906
[work_sum] => 555839
[total_sum] => 1511745
[total_days] => 20
[display_material_sum] => 955 906
[display_work_sum] => 555 839
[display_total_sum] => 1 511 745
)
1
1 511 745₽
Работа:555 839 ₽
Материалы:955 906 ₽
Дни:20
stdClass Object
(
[id] => 144
[attribute_id] => 19
[name] => Фальцевый фасад
[material_modifier] => 1
[work_modifier] => 1
[options] => Array
(
)
[days] => [20]
[material_price] => [3240]
[work_price] => [2592]
[image] => https://akademik-stroy.ru/wp-content/uploads/materials/falcevyj-fasad.jpg
[area_modifier] => 272.31
[parent_name] => Наружная отделка фасада
[parent_id] => 19
[material_sum] => 1111678
[work_sum] => 741119
[total_sum] => 1852797
[total_days] => 20
[display_material_sum] => 1 111 678
[display_work_sum] => 741 119
[display_total_sum] => 1 852 797
)
1
1 852 797₽
Работа:741 119 ₽
Материалы:1 111 678 ₽
Дни:20
stdClass Object
(
[id] => 145
[attribute_id] => 19
[name] => Комбинированный
[material_modifier] => 1
[work_modifier] => 1
[options] => Array
(
)
[days] => [20]
[material_price] => [4629]
[work_price] => [3499]
[image] => https://akademik-stroy.ru/wp-content/uploads/materials/Kombinirovannyj.jpg
[area_modifier] => 272.31
[parent_name] => Наружная отделка фасада
[parent_id] => 19
[material_sum] => 1588259
[work_sum] => 1000453
[total_sum] => 2588712
[total_days] => 20
[display_material_sum] => 1 588 259
[display_work_sum] => 1 000 453
[display_total_sum] => 2 588 712
)
1
2 588 712₽
Работа:1 000 453 ₽
Материалы:1 588 259 ₽
Дни:20
stdClass Object
(
[id] => 257
[attribute_id] => 19
[name] => Японские фиброцементные
[material_modifier] => 1
[work_modifier] => 1
[options] => Array
(
)
[days] => [20]
[material_price] => [7043]
[work_price] => [2993]
[image] => https://akademik-stroy.ru/wp-content/uploads/materials/paneli.jpg
[area_modifier] => 272.31
[parent_name] => Наружная отделка фасада
[parent_id] => 19
[material_sum] => 2416528
[work_sum] => 855775
[total_sum] => 3272303
[total_days] => 20
[display_material_sum] => 2 416 528
[display_work_sum] => 855 775
[display_total_sum] => 3 272 303
)
1
3 272 303₽
Работа:855 775 ₽
Материалы:2 416 528 ₽
Дни:20
stdClass Object
(
[id] => 258
[attribute_id] => 19
[name] => Панели Каньон
[material_modifier] => 1
[work_modifier] => 1
[options] => Array
(
)
[days] => [20]
[material_price] => [4543]
[work_price] => [2592]
[image] => https://akademik-stroy.ru/wp-content/uploads/materials/kanon.png
[area_modifier] => 272.31
[parent_name] => Наружная отделка фасада
[parent_id] => 19
[material_sum] => 1558751
[work_sum] => 741119
[total_sum] => 2299870
[total_days] => 20
[display_material_sum] => 1 558 751
[display_work_sum] => 741 119
[display_total_sum] => 2 299 870
)
1
2 299 870₽
Работа:741 119 ₽
Материалы:1 558 751 ₽
Дни:20
stdClass Object
(
[id] => 39
[attribute_id] => 20
[name] => Нет
[material_modifier] => 1
[work_modifier] => 1
[options] => Array
(
)
[days] => [0]
[material_price] => [0]
[work_price] => [0]
[image] => https://akademik-stroy.ru/wp-content/uploads/materials/terrasy.jpg
[area_modifier] => 30
[parent_name] => Террасы, крыльца, навесы
[parent_id] => 20
[material_sum] => 0
[work_sum] => 0
[total_sum] => 0
[total_days] => 0
[display_material_sum] => 0
[display_work_sum] => 0
[display_total_sum] => 0
)
1
0₽
Работа:0 ₽
Материалы:0 ₽
Дни:0
stdClass Object
(
[id] => 40
[attribute_id] => 20
[name] => Есть
[material_modifier] => 1
[work_modifier] => 1
[options] => Array
(
)
[days] => [5]
[material_price] => [10450]
[work_price] => [1950]
[image] => https://akademik-stroy.ru/wp-content/uploads/materials/terrasy.jpg
[area_modifier] => 30
[parent_name] => Террасы, крыльца, навесы
[parent_id] => 20
[material_sum] => 395010
[work_sum] => 61425
[total_sum] => 456435
[total_days] => 5
[display_material_sum] => 395 010
[display_work_sum] => 61 425
[display_total_sum] => 456 435
)
1
456 435₽
Работа:61 425 ₽
Материалы:395 010 ₽
Дни:5
stdClass Object
(
[id] => 41
[attribute_id] => 21
[name] => Нет
[material_modifier] => 1
[work_modifier] => 1
[options] => Array
(
)
[days] => [0]
[material_price] => [0]
[work_price] => [0]
[image] => https://akademik-stroy.ru/wp-content/uploads/materials/balkony.jpg
[area_modifier] => 30
[parent_name] => Балконы
[parent_id] => 21
[material_sum] => 0
[work_sum] => 0
[total_sum] => 0
[total_days] => 0
[display_material_sum] => 0
[display_work_sum] => 0
[display_total_sum] => 0
)
1
0₽
Работа:0 ₽
Материалы:0 ₽
Дни:0
stdClass Object
(
[id] => 42
[attribute_id] => 21
[name] => Есть
[material_modifier] => 1
[work_modifier] => 1
[options] => Array
(
)
[days] => [12]
[material_price] => [3600]
[work_price] => [1950]
[image] => https://akademik-stroy.ru/wp-content/uploads/materials/balkony.jpg
[area_modifier] => 30
[parent_name] => Балконы
[parent_id] => 21
[material_sum] => 136080
[work_sum] => 61425
[total_sum] => 197505
[total_days] => 12
[display_material_sum] => 136 080
[display_work_sum] => 61 425
[display_total_sum] => 197 505
)
1
197 505₽
Работа:61 425 ₽
Материалы:136 080 ₽
Дни:12
stdClass Object
(
[id] => 43
[attribute_id] => 22
[name] => Нет
[material_modifier] => 1
[work_modifier] => 1
[options] => Array
(
)
[days] => [0]
[material_price] => [0]
[work_price] => [0]
[image] => https://akademik-stroy.ru/wp-content/uploads/materials/uteplennaya.jpg
[area_modifier] => 153.72
[parent_name] => Отмостка
[parent_id] => 22
[material_sum] => 0
[work_sum] => 0
[total_sum] => 0
[total_days] => 0
[display_material_sum] => 0
[display_work_sum] => 0
[display_total_sum] => 0
)
1
0₽
Работа:0 ₽
Материалы:0 ₽
Дни:0
stdClass Object
(
[id] => 44
[attribute_id] => 22
[name] => Утепленная отмостка
[material_modifier] => 1
[work_modifier] => 1
[options] => Array
(
)
[days] => [15]
[material_price] => [2550]
[work_price] => [1750]
[image] => https://akademik-stroy.ru/wp-content/uploads/materials/uteplennaya.jpg
[area_modifier] => 153.72
[parent_name] => Отмостка
[parent_id] => 22
[material_sum] => 493902
[work_sum] => 282461
[total_sum] => 776363
[total_days] => 15
[display_material_sum] => 493 902
[display_work_sum] => 282 461
[display_total_sum] => 776 363
)
1
776 363₽
Работа:282 461 ₽
Материалы:493 902 ₽
Дни:15
stdClass Object
(
[id] => 146
[attribute_id] => 22
[name] => Не утепленная отмостка
[material_modifier] => 1
[work_modifier] => 1
[options] => Array
(
)
[days] => [10]
[material_price] => [1650]
[work_price] => [1450]
[image] => https://akademik-stroy.ru/wp-content/uploads/materials/ne-uteplennaya.jpg
[area_modifier] => 153.72
[parent_name] => Отмостка
[parent_id] => 22
[material_sum] => 319584
[work_sum] => 234039
[total_sum] => 553623
[total_days] => 10
[display_material_sum] => 319 584
[display_work_sum] => 234 039
[display_total_sum] => 553 623
)
1
553 623₽
Работа:234 039 ₽
Материалы:319 584 ₽
Дни:10
stdClass Object
(
[id] => 45
[attribute_id] => 23
[name] => Нет
[material_modifier] => 1
[work_modifier] => 1
[options] => Array
(
)
[days] => [0]
[material_price] => [0]
[work_price] => [0]
[image] => https://akademik-stroy.ru/wp-content/uploads/materials/drenazh-2.jpg
[area_modifier] => 153.72
[parent_name] => Дренаж вокруг дома
[parent_id] => 23
[material_sum] => 0
[work_sum] => 0
[total_sum] => 0
[total_days] => 0
[display_material_sum] => 0
[display_work_sum] => 0
[display_total_sum] => 0
)
1
0₽
Работа:0 ₽
Материалы:0 ₽
Дни:0
stdClass Object
(
[id] => 46
[attribute_id] => 23
[name] => Есть
[material_modifier] => 1
[work_modifier] => 1
[options] => Array
(
)
[days] => [5]
[material_price] => [2366]
[work_price] => [1911]
[image] => https://akademik-stroy.ru/wp-content/uploads/materials/drenazh-2.jpg
[area_modifier] => 153.72
[parent_name] => Дренаж вокруг дома
[parent_id] => 23
[material_sum] => 458264
[work_sum] => 308447
[total_sum] => 766711
[total_days] => 5
[display_material_sum] => 458 264
[display_work_sum] => 308 447
[display_total_sum] => 766 711
)
1
766 711₽
Работа:308 447 ₽
Материалы:458 264 ₽
Дни:5
stdClass Object
(
[id] => 47
[attribute_id] => 24
[name] => Нет
[material_modifier] => 1
[work_modifier] => 1
[options] => Array
(
)
[days] => [0]
[material_price] => [0]
[work_price] => [0]
[image] => https://akademik-stroy.ru/wp-content/uploads/materials/septik.jpg
[area_modifier] => 1
[parent_name] => Автономная канализация (септики)
[parent_id] => 24
[material_sum] => 0
[work_sum] => 0
[total_sum] => 0
[total_days] => 0
[display_material_sum] => 0
[display_work_sum] => 0
[display_total_sum] => 0
)
1
0₽
Работа:0 ₽
Материалы:0 ₽
Дни:0
stdClass Object
(
[id] => 48
[attribute_id] => 24
[name] => Есть
[material_modifier] => 1
[work_modifier] => 1
[options] => Array
(
[0] => Для дачи на 4 человека
[1] => Для дома на 5 человек
[2] => Для дома на 6 человек
[3] => Для дома на 7 человек
[4] => Для дома на 10 человек
)
[days] => [7,7,7,8,8]
[material_price] => [196340,220500,240940,264200,293340]
[work_price] => [50000,55000,60500,66550,73206]
[image] => https://akademik-stroy.ru/wp-content/uploads/materials/septik.jpg
[area_modifier] => 1
[parent_name] => Автономная канализация (септики)
[parent_id] => 24
[material_sum] => 247388
[work_sum] => 52500
[total_sum] => 299888
[total_days] => 7
[display_material_sum] => 247 388
[display_work_sum] => 52 500
[display_total_sum] => 299 888
)
1
299 888₽
Работа:52 500 ₽
Материалы:247 388 ₽
Дни:7
stdClass Object
(
[id] => 49
[attribute_id] => 25
[name] => Нет
[material_modifier] => 1
[work_modifier] => 1
[options] => Array
(
)
[days] => [0]
[material_price] => [0]
[work_price] => [0]
[image] => https://akademik-stroy.ru/wp-content/uploads/materials/gkl.jpg
[area_modifier] => 272.31
[parent_name] => Внутренние (не несущие) перегородки
[parent_id] => 25
[material_sum] => 0
[work_sum] => 0
[total_sum] => 0
[total_days] => 0
[display_material_sum] => 0
[display_work_sum] => 0
[display_total_sum] => 0
)
1
0₽
Работа:0 ₽
Материалы:0 ₽
Дни:0
stdClass Object
(
[id] => 147
[attribute_id] => 25
[name] => Каркасно-обшивные
[material_modifier] => 1
[work_modifier] => 1
[options] => Array
(
[0] => 75 мм (без шумоизоляции)
[1] => 75 мм (с шумоизоляцией)
)
[days] => [11,11]
[material_price] => [580,970]
[work_price] => [380,570]
[image] => https://akademik-stroy.ru/wp-content/uploads/materials/gkl.jpg
[area_modifier] => 272.31
[parent_name] => Внутренние (не несущие) перегородки
[parent_id] => 25
[material_sum] => 199004
[work_sum] => 108652
[total_sum] => 307656
[total_days] => 11
[display_material_sum] => 199 004
[display_work_sum] => 108 652
[display_total_sum] => 307 656
)
1
307 656₽
Работа:108 652 ₽
Материалы:199 004 ₽
Дни:11
stdClass Object
(
[id] => 148
[attribute_id] => 25
[name] => Пазогребневые
[material_modifier] => 1
[work_modifier] => 1
[options] => Array
(
[0] => 80 мм
[1] => 100 мм
)
[days] => [5,5]
[material_price] => [1022,1313]
[work_price] => [600,700]
[image] => https://akademik-stroy.ru/wp-content/uploads/materials/pazogrebnevye-bloki.jpg
[area_modifier] => 272.31
[parent_name] => Внутренние (не несущие) перегородки
[parent_id] => 25
[material_sum] => 350659
[work_sum] => 171555
[total_sum] => 522214
[total_days] => 5
[display_material_sum] => 350 659
[display_work_sum] => 171 555
[display_total_sum] => 522 214
)
1
522 214₽
Работа:171 555 ₽
Материалы:350 659 ₽
Дни:5
stdClass Object
(
[id] => 149
[attribute_id] => 25
[name] => Газобетонные
[material_modifier] => 1
[work_modifier] => 1
[options] => Array
(
[0] => 100 мм
[1] => 200 мм
)
[days] => [11,11]
[material_price] => [1160,1920]
[work_price] => [700,900]
[image] => https://akademik-stroy.ru/wp-content/uploads/materials/gazobeton-2.jpg
[area_modifier] => 272.31
[parent_name] => Внутренние (не несущие) перегородки
[parent_id] => 25
[material_sum] => 398008
[work_sum] => 200148
[total_sum] => 598156
[total_days] => 11
[display_material_sum] => 398 008
[display_work_sum] => 200 148
[display_total_sum] => 598 156
)
1
598 156₽
Работа:200 148 ₽
Материалы:398 008 ₽
Дни:11
stdClass Object
(
[id] => 150
[attribute_id] => 25
[name] => Кирпичные
[material_modifier] => 1
[work_modifier] => 1
[options] => Array
(
[0] => 120 мм
[1] => 250 мм
[2] => 360 мм
)
[days] => [7,7,7]
[material_price] => [1785,3570,5355]
[work_price] => [900,1600,1800]
[image] => https://akademik-stroy.ru/wp-content/uploads/materials/kirpich-1.jpg
[area_modifier] => 272.31
[parent_name] => Внутренние (не несущие) перегородки
[parent_id] => 25
[material_sum] => 612452
[work_sum] => 257333
[total_sum] => 869785
[total_days] => 7
[display_material_sum] => 612 452
[display_work_sum] => 257 333
[display_total_sum] => 869 785
)
1
869 785₽
Работа:257 333 ₽
Материалы:612 452 ₽
Дни:7
stdClass Object
(
[id] => 55
[attribute_id] => 28
[name] => Нет
[material_modifier] => 1
[work_modifier] => 1
[options] => Array
(
)
[days] => [0]
[material_price] => [0]
[work_price] => [0]
[image] => https://akademik-stroy.ru/wp-content/uploads/materials/ehlektrika.jpg
[area_modifier] => 220.98
[parent_name] => Электрика
[parent_id] => 28
[material_sum] => 0
[work_sum] => 0
[total_sum] => 0
[total_days] => 0
[display_material_sum] => 0
[display_work_sum] => 0
[display_total_sum] => 0
)
1
0₽
Работа:0 ₽
Материалы:0 ₽
Дни:0
stdClass Object
(
[id] => 56
[attribute_id] => 28
[name] => Есть
[material_modifier] => 1
[work_modifier] => 1
[options] => Array
(
)
[days] => [10]
[material_price] => [650]
[work_price] => [950]
[image] => https://akademik-stroy.ru/wp-content/uploads/materials/ehlektrika.jpg
[area_modifier] => 220.98
[parent_name] => Электрика
[parent_id] => 28
[material_sum] => 180983
[work_sum] => 220428
[total_sum] => 401411
[total_days] => 10
[display_material_sum] => 180 983
[display_work_sum] => 220 428
[display_total_sum] => 401 411
)
1
401 411₽
Работа:220 428 ₽
Материалы:180 983 ₽
Дни:10
stdClass Object
(
[id] => 57
[attribute_id] => 29
[name] => Нет
[material_modifier] => 1
[work_modifier] => 1
[options] => Array
(
)
[days] => [0]
[material_price] => [0]
[work_price] => [0]
[image] => https://akademik-stroy.ru/wp-content/uploads/materials/santekhnika-kanalizaciya-1.jpg
[area_modifier] => 220.98
[parent_name] => Сантехника, канализация в доме
[parent_id] => 29
[material_sum] => 0
[work_sum] => 0
[total_sum] => 0
[total_days] => 0
[display_material_sum] => 0
[display_work_sum] => 0
[display_total_sum] => 0
)
1
0₽
Работа:0 ₽
Материалы:0 ₽
Дни:0
stdClass Object
(
[id] => 58
[attribute_id] => 29
[name] => Есть
[material_modifier] => 1
[work_modifier] => 1
[options] => Array
(
)
[days] => [10]
[material_price] => [600]
[work_price] => [730]
[image] => https://akademik-stroy.ru/wp-content/uploads/materials/santekhnika-kanalizaciya-1.jpg
[area_modifier] => 220.98
[parent_name] => Сантехника, канализация в доме
[parent_id] => 29
[material_sum] => 167061
[work_sum] => 169381
[total_sum] => 336442
[total_days] => 10
[display_material_sum] => 167 061
[display_work_sum] => 169 381
[display_total_sum] => 336 442
)
1
336 442₽
Работа:169 381 ₽
Материалы:167 061 ₽
Дни:10
stdClass Object
(
[id] => 59
[attribute_id] => 30
[name] => Нет
[material_modifier] => 1
[work_modifier] => 1
[options] => Array
(
)
[days] => [0]
[material_price] => [0]
[work_price] => [0]
[image] => https://akademik-stroy.ru/wp-content/uploads/materials/otoplenie-1.jpg
[area_modifier] => 220.98
[parent_name] => Отопление
[parent_id] => 30
[material_sum] => 0
[work_sum] => 0
[total_sum] => 0
[total_days] => 0
[display_material_sum] => 0
[display_work_sum] => 0
[display_total_sum] => 0
)
1
0₽
Работа:0 ₽
Материалы:0 ₽
Дни:0
stdClass Object
(
[id] => 60
[attribute_id] => 30
[name] => Есть
[material_modifier] => 1
[work_modifier] => 1
[options] => Array
(
)
[days] => [5]
[material_price] => [610]
[work_price] => [560]
[image] => https://akademik-stroy.ru/wp-content/uploads/materials/otoplenie-1.jpg
[area_modifier] => 220.98
[parent_name] => Отопление
[parent_id] => 30
[material_sum] => 169845
[work_sum] => 129936
[total_sum] => 299781
[total_days] => 5
[display_material_sum] => 169 845
[display_work_sum] => 129 936
[display_total_sum] => 299 781
)
1
299 781₽
Работа:129 936 ₽
Материалы:169 845 ₽
Дни:5
stdClass Object
(
[id] => 61
[attribute_id] => 31
[name] => Нет
[material_modifier] => 1
[work_modifier] => 1
[options] => Array
(
)
[days] => [0]
[material_price] => [0]
[work_price] => [0]
[image] => https://akademik-stroy.ru/wp-content/uploads/materials/vodyanye.jpg
[area_modifier] => 30
[parent_name] => Теплые полы
[parent_id] => 31
[material_sum] => 0
[work_sum] => 0
[total_sum] => 0
[total_days] => 0
[display_material_sum] => 0
[display_work_sum] => 0
[display_total_sum] => 0
)
1
0₽
Работа:0 ₽
Материалы:0 ₽
Дни:0
stdClass Object
(
[id] => 151
[attribute_id] => 31
[name] => Водяные
[material_modifier] => 1
[work_modifier] => 1
[options] => Array
(
)
[days] => [9]
[material_price] => [10200]
[work_price] => [2500]
[image] => https://akademik-stroy.ru/wp-content/uploads/materials/vodyanye.jpg
[area_modifier] => 30
[parent_name] => Теплые полы
[parent_id] => 31
[material_sum] => 385560
[work_sum] => 78750
[total_sum] => 464310
[total_days] => 9
[display_material_sum] => 385 560
[display_work_sum] => 78 750
[display_total_sum] => 464 310
)
1
464 310₽
Работа:78 750 ₽
Материалы:385 560 ₽
Дни:9
stdClass Object
(
[id] => 152
[attribute_id] => 31
[name] => Электро
[material_modifier] => 1
[work_modifier] => 1
[options] => Array
(
)
[days] => [5]
[material_price] => [6300]
[work_price] => [1500]
[image] => https://akademik-stroy.ru/wp-content/uploads/materials/ehlektricheskij.jpg
[area_modifier] => 30
[parent_name] => Теплые полы
[parent_id] => 31
[material_sum] => 238140
[work_sum] => 47250
[total_sum] => 285390
[total_days] => 5
[display_material_sum] => 238 140
[display_work_sum] => 47 250
[display_total_sum] => 285 390
)
1
285 390₽
Работа:47 250 ₽
Материалы:238 140 ₽
Дни:5
stdClass Object
(
[id] => 63
[attribute_id] => 32
[name] => Нет
[material_modifier] => 1
[work_modifier] => 1
[options] => Array
(
)
[days] => [0]
[material_price] => [0]
[work_price] => [0]
[image] => https://akademik-stroy.ru/wp-content/uploads/materials/shtukaturka-shpatlevka-1.jpg
[area_modifier] => 220.98
[parent_name] => Черновая отделка стен
[parent_id] => 32
[material_sum] => 0
[work_sum] => 0
[total_sum] => 0
[total_days] => 0
[display_material_sum] => 0
[display_work_sum] => 0
[display_total_sum] => 0
)
1
0₽
Работа:0 ₽
Материалы:0 ₽
Дни:0
stdClass Object
(
[id] => 153
[attribute_id] => 32
[name] => Штукатурка и шпатлевка
[material_modifier] => 1
[work_modifier] => 1
[options] => Array
(
)
[days] => [20]
[material_price] => [1850]
[work_price] => [2600]
[image] => https://akademik-stroy.ru/wp-content/uploads/materials/shtukaturka-shpatlevka-1.jpg
[area_modifier] => 220.98
[parent_name] => Черновая отделка стен
[parent_id] => 32
[material_sum] => 515104
[work_sum] => 603275
[total_sum] => 1118379
[total_days] => 20
[display_material_sum] => 515 104
[display_work_sum] => 603 275
[display_total_sum] => 1 118 379
)
1
1 118 379₽
Работа:603 275 ₽
Материалы:515 104 ₽
Дни:20
stdClass Object
(
[id] => 154
[attribute_id] => 32
[name] => Гипсокортон на стены
[material_modifier] => 1
[work_modifier] => 1
[options] => Array
(
)
[days] => [15]
[material_price] => [950]
[work_price] => [2100]
[image] => https://akademik-stroy.ru/wp-content/uploads/materials/gkl-1.jpg
[area_modifier] => 220.98
[parent_name] => Черновая отделка стен
[parent_id] => 32
[material_sum] => 264513
[work_sum] => 487261
[total_sum] => 751774
[total_days] => 15
[display_material_sum] => 264 513
[display_work_sum] => 487 261
[display_total_sum] => 751 774
)
1
751 774₽
Работа:487 261 ₽
Материалы:264 513 ₽
Дни:15
stdClass Object
(
[id] => 155
[attribute_id] => 32
[name] => Вагонка
[material_modifier] => 1
[work_modifier] => 1
[options] => Array
(
)
[days] => [15]
[material_price] => [1250]
[work_price] => [950]
[image] => https://akademik-stroy.ru/wp-content/uploads/materials/vagonka.jpg
[area_modifier] => 220.98
[parent_name] => Черновая отделка стен
[parent_id] => 32
[material_sum] => 348044
[work_sum] => 220428
[total_sum] => 568472
[total_days] => 15
[display_material_sum] => 348 044
[display_work_sum] => 220 428
[display_total_sum] => 568 472
)
1
568 472₽
Работа:220 428 ₽
Материалы:348 044 ₽
Дни:15
stdClass Object
(
[id] => 65
[attribute_id] => 33
[name] => Нет
[material_modifier] => 1
[work_modifier] => 1
[options] => Array
(
)
[days] => [0]
[material_price] => [0]
[work_price] => [0]
[image] => https://akademik-stroy.ru/wp-content/uploads/materials/styazhka.jpg
[area_modifier] => 220.98
[parent_name] => Черновая отделка полов
[parent_id] => 33
[material_sum] => 0
[work_sum] => 0
[total_sum] => 0
[total_days] => 0
[display_material_sum] => 0
[display_work_sum] => 0
[display_total_sum] => 0
)
1
0₽
Работа:0 ₽
Материалы:0 ₽
Дни:0
stdClass Object
(
[id] => 156
[attribute_id] => 33
[name] => Стяжка + наливные полы
[material_modifier] => 1
[work_modifier] => 1
[options] => Array
(
)
[days] => [10]
[material_price] => [1000]
[work_price] => [900]
[image] => https://akademik-stroy.ru/wp-content/uploads/materials/styazhka.jpg
[area_modifier] => 220.98
[parent_name] => Черновая отделка полов
[parent_id] => 33
[material_sum] => 278435
[work_sum] => 208826
[total_sum] => 487261
[total_days] => 10
[display_material_sum] => 278 435
[display_work_sum] => 208 826
[display_total_sum] => 487 261
)
1
487 261₽
Работа:208 826 ₽
Материалы:278 435 ₽
Дни:10
stdClass Object
(
[id] => 157
[attribute_id] => 33
[name] => ОСБ на пол
[material_modifier] => 1
[work_modifier] => 1
[options] => Array
(
)
[days] => [7]
[material_price] => [580]
[work_price] => [350]
[image] => https://akademik-stroy.ru/wp-content/uploads/materials/osb-1.jpg
[area_modifier] => 220.98
[parent_name] => Черновая отделка полов
[parent_id] => 33
[material_sum] => 161492
[work_sum] => 81210
[total_sum] => 242702
[total_days] => 7
[display_material_sum] => 161 492
[display_work_sum] => 81 210
[display_total_sum] => 242 702
)
1
242 702₽
Работа:81 210 ₽
Материалы:161 492 ₽
Дни:7
stdClass Object
(
[id] => 67
[attribute_id] => 34
[name] => Нет
[material_modifier] => 1
[work_modifier] => 1
[options] => Array
(
)
[days] => [0]
[material_price] => [0]
[work_price] => [0]
[image] => https://akademik-stroy.ru/wp-content/uploads/materials/chistovaya-otdelka.jpg
[area_modifier] => 220.98
[parent_name] => Чистовая отделка стен и полов
[parent_id] => 34
[material_sum] => 0
[work_sum] => 0
[total_sum] => 0
[total_days] => 0
[display_material_sum] => 0
[display_work_sum] => 0
[display_total_sum] => 0
)
1
0₽
Работа:0 ₽
Материалы:0 ₽
Дни:0
stdClass Object
(
[id] => 68
[attribute_id] => 34
[name] => Есть
[material_modifier] => 1
[work_modifier] => 1
[options] => Array
(
)
[days] => [50]
[material_price] => [6000]
[work_price] => [3500]
[image] => https://akademik-stroy.ru/wp-content/uploads/materials/chistovaya-otdelka.jpg
[area_modifier] => 220.98
[parent_name] => Чистовая отделка стен и полов
[parent_id] => 34
[material_sum] => 1670609
[work_sum] => 812102
[total_sum] => 2482711
[total_days] => 50
[display_material_sum] => 1 670 609
[display_work_sum] => 812 102
[display_total_sum] => 2 482 711
)
1
2 482 711₽
Работа:812 102 ₽
Материалы:1 670 609 ₽
Дни:50
stdClass Object
(
[id] => 69
[attribute_id] => 35
[name] => Нет
[material_modifier] => 1
[work_modifier] => 1
[options] => Array
(
)
[days] => [0]
[material_price] => [0]
[work_price] => [0]
[image] => https://akademik-stroy.ru/wp-content/uploads/materials/mnogourovnevyj-gkl.jpg
[area_modifier] => 220.98
[parent_name] => Отделка потолка
[parent_id] => 35
[material_sum] => 0
[work_sum] => 0
[total_sum] => 0
[total_days] => 0
[display_material_sum] => 0
[display_work_sum] => 0
[display_total_sum] => 0
)
1
0₽
Работа:0 ₽
Материалы:0 ₽
Дни:0
stdClass Object
(
[id] => 70
[attribute_id] => 35
[name] => Есть
[material_modifier] => 1
[work_modifier] => 1
[options] => Array
(
[0] => Многоуровневый потолок из гипсокартона
[1] => Многоуровневый потолок из гипсокартона и натяжного потолка
[2] => Одноуровневый потолок из гипсокартона
[3] => Одноуровневый натяжной потолок
)
[days] => [10,10,1,1]
[material_price] => [900,700,700,600]
[work_price] => [1000,800,500,300]
[image] => https://akademik-stroy.ru/wp-content/uploads/materials/mnogourovnevyj-gkl.jpg
[area_modifier] => 220.98
[parent_name] => Отделка потолка
[parent_id] => 35
[material_sum] => 250591
[work_sum] => 232029
[total_sum] => 482620
[total_days] => 10
[display_material_sum] => 250 591
[display_work_sum] => 232 029
[display_total_sum] => 482 620
)
1
482 620₽
Работа:232 029 ₽
Материалы:250 591 ₽
Дни:10
Преимущества работы с нами
7 этапов оплаты
Независимый строительный надзор
Экологически чистые материалы
16 лет гарантии
Онлайн-кабинет с веб-камерой
Строители с опытом более 15 лет
Собственное производство











