Одноэтажный дом 255.61 м2 за руб.
Планировки
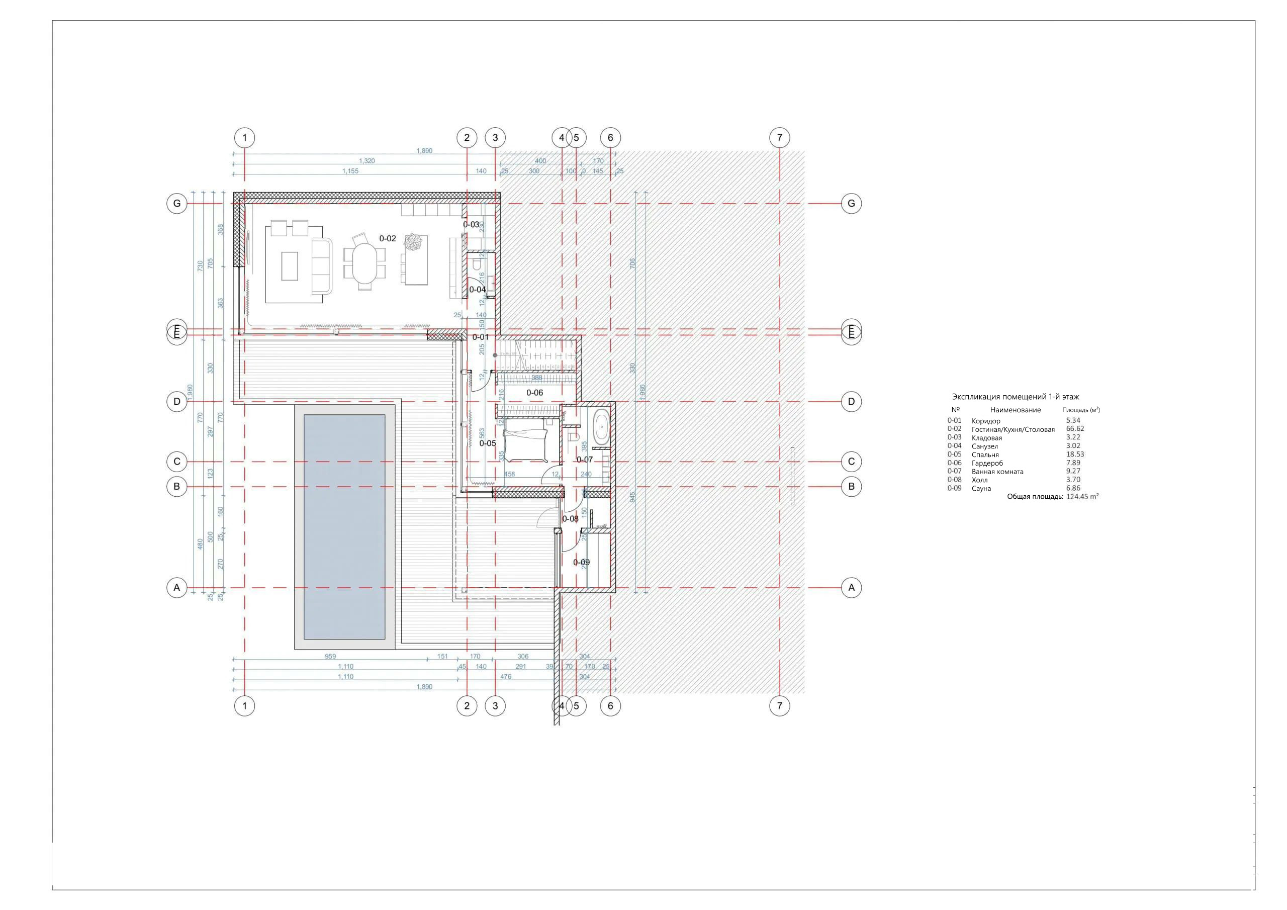
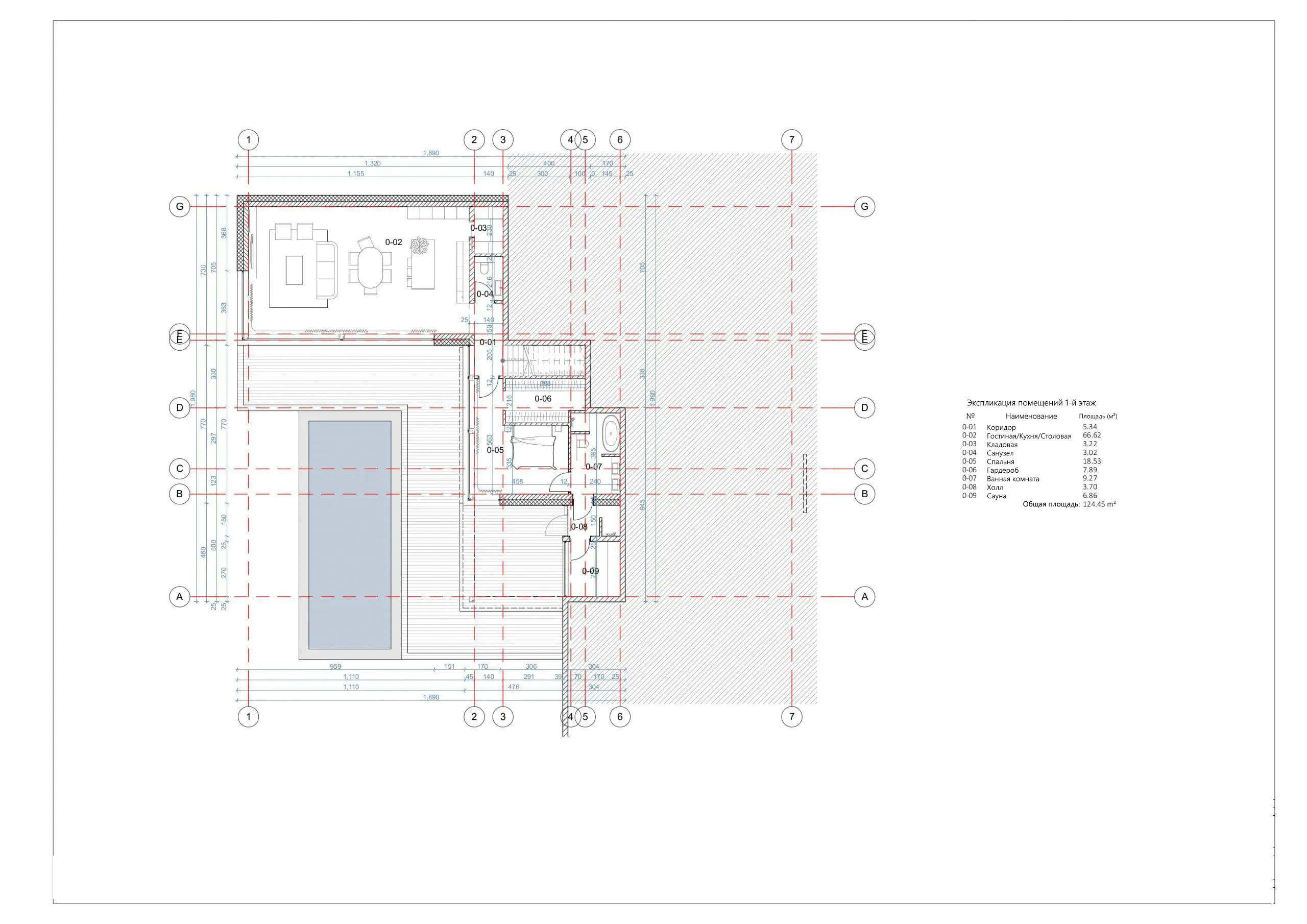
План первого этажа
- 1. Коридор 5,34 м²
- 2. Гостиная-Кухня-Столовая 66,62 м²
- 3. Кладовая 3,22 м²
- 4. Санузел 3,02 м²
- 5. Спальня 18,53 м²
- 6. Гардероб 7,89 м²
- 7. Ванная комната 9,27 м²
- 8. Холл 3,70 м²
- 9. Сауна 6,86 м²
- Общая площадь цокольный этаж 124,45 м²
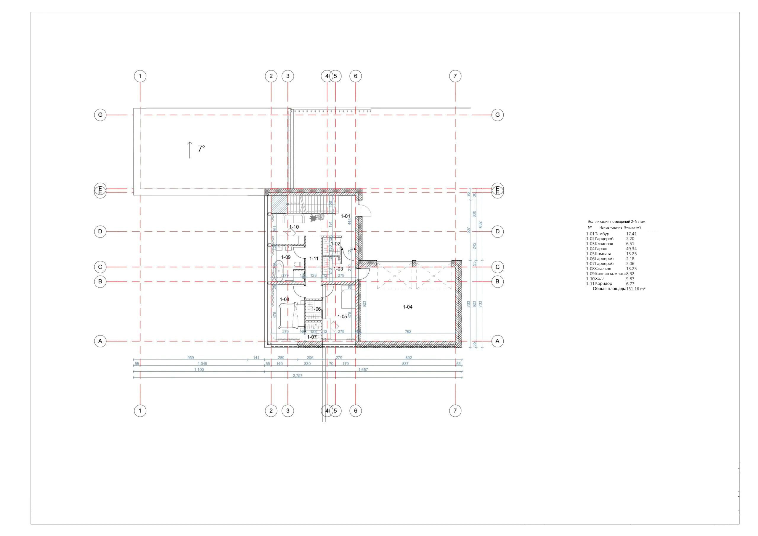
План второго этажа
- 1. Тамбур 17,41 м²
- 2. Гардероб 2,20 м²
- 3. Кладовая 6,51 м²
- 4. Гараж 49,34 м²
- 5. Комната 13,25 м²
- 6. Гардероб 2,18 м²
- 7. Гардероб 2,06 м²
- 8. Спальня 13,25 м²
- 9. Ванная комната 8,32 м²
- 10. Холл 9,87 м²
- 11. Коридор 6,77 м²
- Общая площадь первый этаж 131,16 м²
Площади дома
| № п/п | Наименование | Ед. из. | Строительная площадь | Полезная площадь |
| 1 | 1 этаж | м2 | 153.36 | 124.45 |
| 2 | 2 этаж | м2 | 161.63 | 131.16 |
| 3 | Итого | м2 | 314.99 | 255.61 |
154 м2
Полезная
площадь
площадь
1 этаж
Этажей
26 м2
Террасы
и балконы
и балконы
1Без
гаража
гаража
4
Количество
спален
спален
3
Количество
санузлов
санузлов
Калькулятор опций
0₽
В ипотеку от 27 925 ₽/мес.
0₽
0 дней
763 272₽
Работа:330 337 ₽
Материалы:432 935 ₽
Дни:20
458 853₽
Работа:153 667 ₽
Материалы:305 186 ₽
Дни:2
773 241₽
Работа:310 401 ₽
Материалы:462 840 ₽
Дни:20
1 481 764₽
Работа:661 595 ₽
Материалы:820 169 ₽
Дни:30
2 485 813₽
Работа:914 026 ₽
Материалы:1 571 787 ₽
Дни:32
939 483₽
Работа:375 885 ₽
Материалы:563 598 ₽
Дни:20
5 895 159₽
Работа:2 687 481 ₽
Материалы:3 207 678 ₽
Дни:30
7 033 397₽
Работа:3 134 832 ₽
Материалы:3 898 565 ₽
Дни:40
245 376₽
Работа:61 344 ₽
Материалы:184 032 ₽
Дни:1
439 223₽
Работа:188 633 ₽
Материалы:250 590 ₽
Дни:8
703 462₽
Работа:233 107 ₽
Материалы:470 355 ₽
Дни:13
1 255 251₽
Работа:513 449 ₽
Материалы:741 802 ₽
Дни:18
1 231 941₽
Работа:771 861 ₽
Материалы:460 080 ₽
Дни:29
1 418 120₽
Работа:726 466 ₽
Материалы:691 654 ₽
Дни:23
2 183 233₽
Работа:1 339 753 ₽
Материалы:843 480 ₽
Дни:30
1 786 797₽
Работа:783 056 ₽
Материалы:1 003 741 ₽
Дни:45
3 340 334₽
Работа:737 048 ₽
Материалы:2 603 286 ₽
Дни:24
735 667₽
Работа:370 824 ₽
Материалы:364 843 ₽
Дни:15
401 804₽
Работа:216 238 ₽
Материалы:185 566 ₽
Дни:7
1 413 059₽
Работа:491 365 ₽
Материалы:921 694 ₽
Дни:7
1 845 687₽
Работа:589 669 ₽
Материалы:1 256 018 ₽
Дни:7
12 120 807₽
Работа:589 669 ₽
Материалы:11 531 138 ₽
Дни:7
6 560 894₽
Работа:737 048 ₽
Материалы:5 823 846 ₽
Дни:7
1 031 960₽
Работа:245 683 ₽
Материалы:786 277 ₽
Дни:7
1 355 089₽
Работа:695 948 ₽
Материалы:659 141 ₽
Дни:29
1 186 393₽
Работа:772 628 ₽
Материалы:413 765 ₽
Дни:29
1 355 089₽
Работа:695 948 ₽
Материалы:659 141 ₽
Дни:29
1 438 210₽
Работа:879 826 ₽
Материалы:558 384 ₽
Дни:23
1 838 326₽
Работа:619 114 ₽
Материалы:1 219 212 ₽
Дни:7
2 084 622₽
Работа:1 277 642 ₽
Материалы:806 980 ₽
Дни:25
754 071₽
Работа:389 228 ₽
Материалы:364 843 ₽
Дни:15
6 987 388₽
Работа:1 474 096 ₽
Материалы:5 513 292 ₽
Дни:15
836 119₽
Работа:393 215 ₽
Материалы:442 904 ₽
Дни:15
1 138 545₽
Работа:646 259 ₽
Материалы:492 286 ₽
Дни:19
1 201 729₽
Работа:772 628 ₽
Материалы:429 101 ₽
Дни:29
771 861₽
Работа:405 177 ₽
Материалы:366 684 ₽
Дни:15
1 418 120₽
Работа:726 466 ₽
Материалы:691 654 ₽
Дни:23
828 451₽
Работа:322 056 ₽
Материалы:506 395 ₽
Дни:15
1 061 252₽
Работа:773 855 ₽
Материалы:287 397 ₽
Дни:7
439 223₽
Работа:188 633 ₽
Материалы:250 590 ₽
Дни:8
703 462₽
Работа:233 107 ₽
Материалы:470 355 ₽
Дни:13
1 255 251₽
Работа:513 449 ₽
Материалы:741 802 ₽
Дни:18
1 298 374₽
Работа:813 484 ₽
Материалы:484 890 ₽
Дни:29
1 494 592₽
Работа:765 641 ₽
Материалы:728 951 ₽
Дни:23
2 300 965₽
Работа:1 412 000 ₽
Материалы:888 965 ₽
Дни:30
1 883 151₽
Работа:825 283 ₽
Материалы:1 057 868 ₽
Дни:45
3 520 463₽
Работа:776 794 ₽
Материалы:2 743 669 ₽
Дни:24
775 339₽
Работа:390 821 ₽
Материалы:384 518 ₽
Дни:15
423 470₽
Работа:227 898 ₽
Материалы:195 572 ₽
Дни:7
1 489 259₽
Работа:517 863 ₽
Материалы:971 396 ₽
Дни:7
1 945 217₽
Работа:621 467 ₽
Материалы:1 323 750 ₽
Дни:7
12 774 427₽
Работа:621 467 ₽
Материалы:12 152 960 ₽
Дни:7
3 391 159₽
Работа:776 794 ₽
Материалы:2 614 365 ₽
Дни:7
1 087 608₽
Работа:258 931 ₽
Материалы:828 677 ₽
Дни:10
1 428 163₽
Работа:733 477 ₽
Материалы:694 686 ₽
Дни:29
1 250 370₽
Работа:814 292 ₽
Материалы:436 078 ₽
Дни:29
1 428 163₽
Работа:733 477 ₽
Материалы:694 686 ₽
Дни:29
1 515 766₽
Работа:927 271 ₽
Материалы:588 495 ₽
Дни:23
1 937 459₽
Работа:652 500 ₽
Материалы:1 284 959 ₽
Дни:7
2 197 037₽
Работа:1 346 540 ₽
Материалы:850 497 ₽
Дни:25
794 735₽
Работа:410 217 ₽
Материалы:384 518 ₽
Дни:15
7 364 187₽
Работа:1 553 588 ₽
Материалы:5 810 599 ₽
Дни:15
881 206₽
Работа:414 419 ₽
Материалы:466 787 ₽
Дни:15
1 199 941₽
Работа:681 109 ₽
Материалы:518 832 ₽
Дни:19
1 266 533₽
Работа:814 292 ₽
Материалы:452 241 ₽
Дни:29
813 483₽
Работа:427 026 ₽
Материалы:386 457 ₽
Дни:15
1 494 592₽
Работа:765 641 ₽
Материалы:728 951 ₽
Дни:10
873 125₽
Работа:339 423 ₽
Материалы:533 702 ₽
Дни:10
1 118 480₽
Работа:815 585 ₽
Материалы:302 895 ₽
Дни:7
462 908₽
Работа:198 805 ₽
Материалы:264 103 ₽
Дни:8
741 397₽
Работа:245 678 ₽
Материалы:495 719 ₽
Дни:13
1 322 941₽
Работа:541 137 ₽
Материалы:781 804 ₽
Дни:18
1 875 746₽
Работа:638 438 ₽
Материалы:1 237 308 ₽
Дни:10
2 837 467₽
Работа:1 295 279 ₽
Материалы:1 542 188 ₽
Дни:10
2 615 094₽
Работа:1 143 912 ₽
Материалы:1 471 182 ₽
Дни:10
0₽
Работа:0 ₽
Материалы:0 ₽
Дни:0
504 574₽
Работа:162 312 ₽
Материалы:342 262 ₽
Дни:3
0₽
Работа:0 ₽
Материалы:0 ₽
Дни:0
15 500₽
Работа:5 500 ₽
Материалы:10 000 ₽
Дни:1
0₽
Работа:0 ₽
Материалы:0 ₽
Дни:0
0₽
Работа:0 ₽
Материалы:0 ₽
Дни:0
511 149₽
Работа:228 660 ₽
Материалы:282 489 ₽
Дни:7
0₽
Работа:0 ₽
Материалы:0 ₽
Дни:0
1 814 973₽
Работа:732 352 ₽
Материалы:1 082 621 ₽
Дни:7
641 005₽
Работа:385 863 ₽
Материалы:255 142 ₽
Дни:3
2 001 761₽
Работа:565 407 ₽
Материалы:1 436 354 ₽
Дни:5
2 084 289₽
Работа:565 407 ₽
Материалы:1 518 882 ₽
Дни:5
1 130 499₽
Работа:229 628 ₽
Материалы:900 871 ₽
Дни:3
2 873 654₽
Работа:251 992 ₽
Материалы:2 621 662 ₽
Дни:5
0₽
Работа:0 ₽
Материалы:0 ₽
Дни:0
1 383 121₽
Работа:440 041 ₽
Материалы:943 080 ₽
Дни:20
1 490 218₽
Работа:484 140 ₽
Материалы:1 006 078 ₽
Дни:20
1 081 361₽
Работа:378 618 ₽
Материалы:702 743 ₽
Дни:35
3 595 296₽
Работа:1 020 568 ₽
Материалы:2 574 728 ₽
Дни:45
1 883 955₽
Работа:947 175 ₽
Материалы:936 780 ₽
Дни:40
795 664₽
Работа:397 832 ₽
Материалы:397 832 ₽
Дни:20
2 449 363₽
Работа:1 020 568 ₽
Материалы:1 428 795 ₽
Дни:45
2 694 425₽
Работа:734 872 ₽
Материалы:1 959 553 ₽
Дни:20
1 489 903₽
Работа:612 341 ₽
Материалы:877 562 ₽
Дни:20
1 837 022₽
Работа:816 454 ₽
Материалы:1 020 568 ₽
Дни:20
2 560 239₽
Работа:1 102 150 ₽
Материалы:1 458 089 ₽
Дни:20
3 161 240₽
Работа:942 765 ₽
Материалы:2 218 475 ₽
Дни:20
2 247 454₽
Работа:816 454 ₽
Материалы:1 431 000 ₽
Дни:20
0₽
Работа:0 ₽
Материалы:0 ₽
Дни:0
372 000₽
Работа:58 500 ₽
Материалы:313 500 ₽
Дни:5
0₽
Работа:0 ₽
Материалы:0 ₽
Дни:0
166 500₽
Работа:58 500 ₽
Материалы:108 000 ₽
Дни:12
0₽
Работа:0 ₽
Материалы:0 ₽
Дни:0
659 448₽
Работа:268 380 ₽
Материалы:391 068 ₽
Дни:15
475 416₽
Работа:222 372 ₽
Материалы:253 044 ₽
Дни:10
0₽
Работа:0 ₽
Материалы:0 ₽
Дни:0
655 921₽
Работа:293 071 ₽
Материалы:362 850 ₽
Дни:5
0₽
Работа:0 ₽
Материалы:0 ₽
Дни:0
246 340₽
Работа:50 000 ₽
Материалы:196 340 ₽
Дни:7
0₽
Работа:0 ₽
Материалы:0 ₽
Дни:0
302 390₽
Работа:119 696 ₽
Материалы:182 694 ₽
Дни:11
510 914₽
Работа:188 994 ₽
Материалы:321 920 ₽
Дни:5
585 881₽
Работа:220 493 ₽
Материалы:365 388 ₽
Дни:11
845 748₽
Работа:283 491 ₽
Материалы:562 257 ₽
Дни:7
0₽
Работа:0 ₽
Материалы:0 ₽
Дни:0
408 977₽
Работа:242 830 ₽
Материалы:166 147 ₽
Дни:10
0₽
Работа:0 ₽
Материалы:0 ₽
Дни:0
339 961₽
Работа:186 595 ₽
Материалы:153 366 ₽
Дни:10
0₽
Работа:0 ₽
Материалы:0 ₽
Дни:0
299 064₽
Работа:143 142 ₽
Материалы:155 922 ₽
Дни:5
0₽
Работа:0 ₽
Материалы:0 ₽
Дни:0
381 000₽
Работа:75 000 ₽
Материалы:306 000 ₽
Дни:9
234 000₽
Работа:45 000 ₽
Материалы:189 000 ₽
Дни:5
0₽
Работа:0 ₽
Материалы:0 ₽
Дни:0
1 137 465₽
Работа:664 586 ₽
Материалы:472 879 ₽
Дни:20
779 611₽
Работа:536 781 ₽
Материалы:242 830 ₽
Дни:15
562 343₽
Работа:242 830 ₽
Материалы:319 513 ₽
Дни:15
0₽
Работа:0 ₽
Материалы:0 ₽
Дни:0
485 659₽
Работа:230 049 ₽
Материалы:255 610 ₽
Дни:10
237 718₽
Работа:89 464 ₽
Материалы:148 254 ₽
Дни:7
0₽
Работа:0 ₽
Материалы:0 ₽
Дни:0
2 428 295₽
Работа:894 635 ₽
Материалы:1 533 660 ₽
Дни:50
0₽
Работа:0 ₽
Материалы:0 ₽
Дни:0
485 659₽
Работа:255 610 ₽
Материалы:230 049 ₽
Дни:10
Преимущества работы с нами
7 этапов оплаты
Независимый строительный надзор
Экологически чистые материалы
16 лет гарантии
Онлайн-кабинет с веб-камерой
Строители с опытом более 15 лет
Собственное производство











