Одноэтажный дом 172.85 м2 за руб.
Планировки
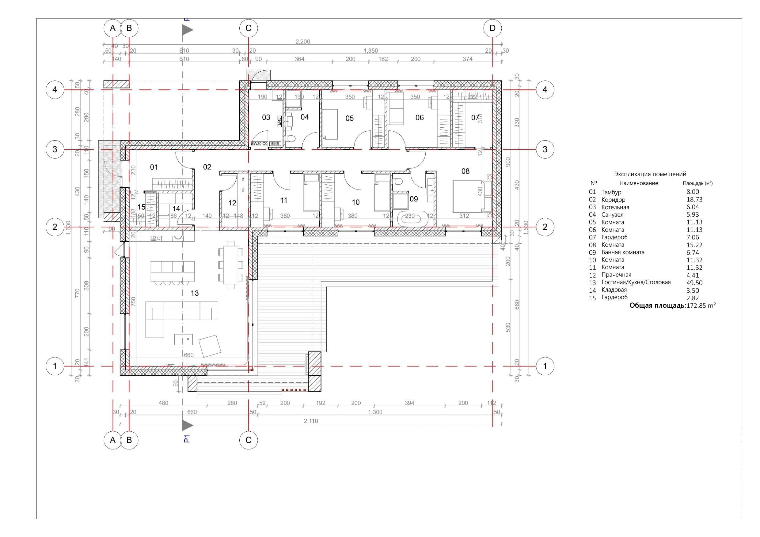
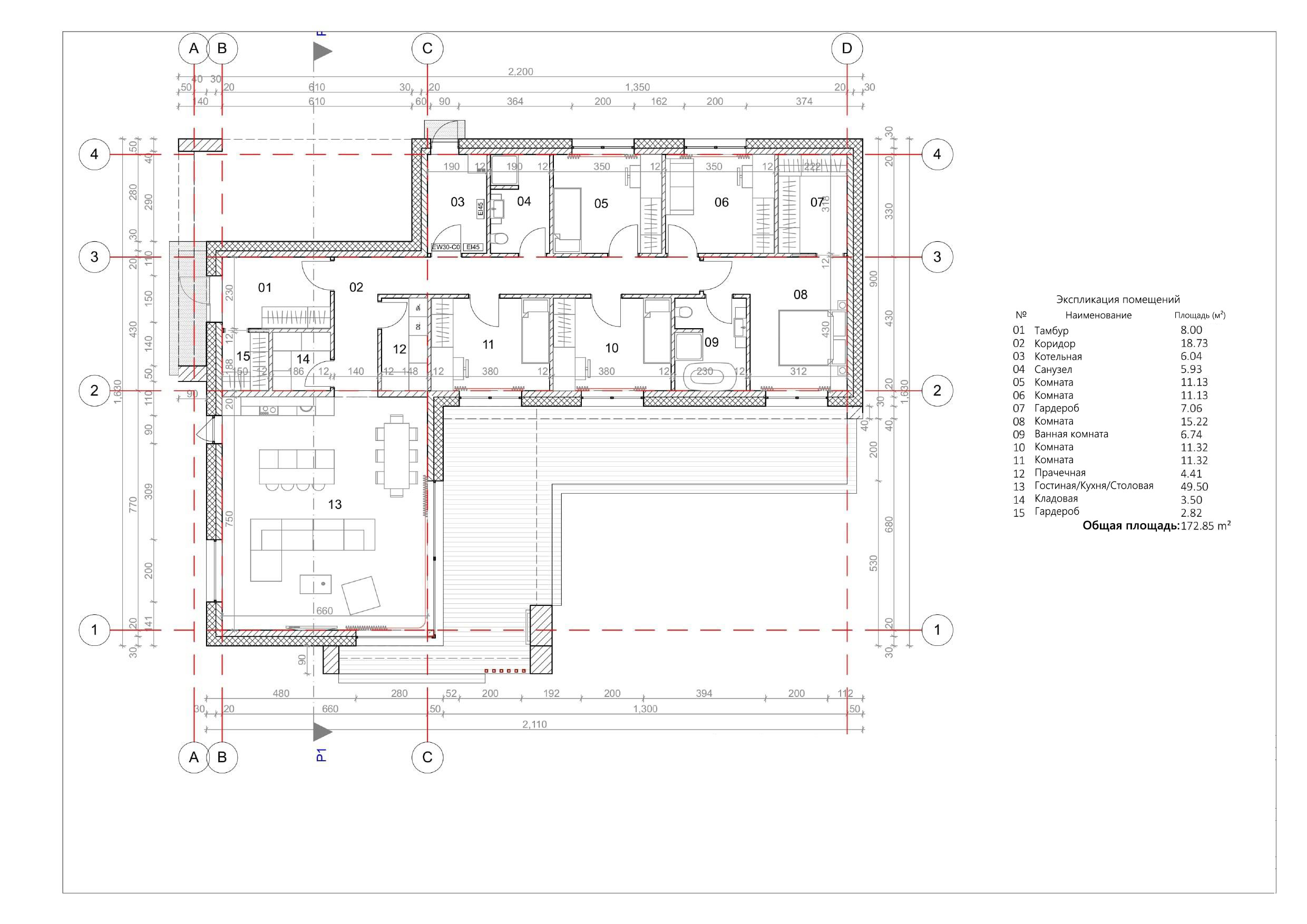
План первого этажа
- 1. Тамбур 8,00 м²
- 2. Коридор 18,73 м²
- 3. Санузел 5,93 м²
- 4. Комната 11,13 м²
- 5. Комната 11,13 м²
- 6. Гардероб 7,06 м²
- 7. Комната 15,22 м²
- 8. Ванная комната 6,74 м²
- 9. Комната 11,32 м²
- 10. Комната 11,32 м²
- 11. Прачечная 4,41 м²
- 12. Гостиная-Кухня-Столовая 49,50 м²
- 13. Кладовая 3,50 м²
- 14. Гардероб 2,82 м²
- Общая площадь 172,85 м²
Площади дома
| № п/п | Наименование | Ед. из. | Строительная площадь | Полезная площадь |
| 1 | 1 этаж | м2 | 213 | 172.85 |
| 2 | Итого | м2 | 213 | 172.85 |
154 м2
Полезная
площадь
площадь
1 этаж
Этажей
26 м2
Террасы
и балконы
и балконы
0Без
гаража
гаража
5+
Количество
спален
спален
2
Количество
санузлов
санузлов
Калькулятор опций
0₽
В ипотеку от 26 791 ₽/мес.
0₽
0 дней
stdClass Object
(
[id] => 1
[attribute_id] => 1
[name] => Ленточный монолитный ж/б
[material_modifier] => 1
[work_modifier] => 1
[options] => Array
(
[0] => размер 200 х 700 мм
[1] => размер 300 х 900 мм
[2] => размер 400 х 1 000 мм
[3] => размер 500 х 1 100 мм
[4] => размер 600 х 1 200 мм
)
[days] => [20,21,22,25,30]
[material_price] => [2823,3630,4475,5210,12047]
[work_price] => [2154,2826,3731,4577,5293]
[image] => https://akademik-stroy.ru/wp-content/uploads/materials/lentochnyj-monolitnyj-zh-b.jpg
[area_modifier] => 213
[parent_name] => Фундамент
[parent_id] => 1
[material_sum] => 757637
[work_sum] => 481742
[total_sum] => 1239379
[total_days] => 20
[display_material_sum] => 757 637
[display_work_sum] => 481 742
[display_total_sum] => 1 239 379
)
1
1 239 379₽
Работа:481 742 ₽
Материалы:757 637 ₽
Дни:20
stdClass Object
(
[id] => 2
[attribute_id] => 1
[name] => Забивные Ж/Б сваи
[material_modifier] => 1
[work_modifier] => 1
[options] => Array
(
[0] => 150х150х3000мм
[1] => 150х150х4000мм
[2] => 200х200х3000мм
[3] => 200х200х4000мм
[4] => 200х200х5000мм
[5] => 200х200х6000мм
)
[days] => [2,2,2,2,2,2]
[material_price] => [1990,2850,3255,4360,5120,6837]
[work_price] => [1002,1185,1336,1438,1574,1839]
[image] => https://akademik-stroy.ru/wp-content/uploads/materials/zabivnye-zh-b-svai.png
[area_modifier] => 213
[parent_name] => Фундамент
[parent_id] => 1
[material_sum] => 534076
[work_sum] => 224097
[total_sum] => 758173
[total_days] => 2
[display_material_sum] => 534 076
[display_work_sum] => 224 097
[display_total_sum] => 758 173
)
1
758 173₽
Работа:224 097 ₽
Материалы:534 076 ₽
Дни:2
stdClass Object
(
[id] => 71
[attribute_id] => 1
[name] => Свайно-ростверковый ж/б
[material_modifier] => 1
[work_modifier] => 1
[options] => Array
(
[0] => ростверк 200х300 мм
[1] => ростверк 300х600 мм
[2] => ростверк 400х900 мм
[3] => ростверк 500х1200 мм
)
[days] => [20,23,25,27]
[material_price] => [3018,3474,7109,9792]
[work_price] => [2024,3012,5635,7022]
[image] => https://akademik-stroy.ru/wp-content/uploads/materials/svajno-rostverkovyj-monolitnyj-zh-b-3.png
[area_modifier] => 213
[parent_name] => Фундамент
[parent_id] => 1
[material_sum] => 809971
[work_sum] => 452668
[total_sum] => 1262639
[total_days] => 20
[display_material_sum] => 809 971
[display_work_sum] => 452 668
[display_total_sum] => 1 262 639
)
1
1 262 639₽
Работа:452 668 ₽
Материалы:809 971 ₽
Дни:20
stdClass Object
(
[id] => 72
[attribute_id] => 1
[name] => Монолитная ж/б плита
[material_modifier] => 1
[work_modifier] => 1
[options] => Array
(
[0] => 200 мм
[1] => 300 мм
[2] => 400 мм
[3] => 500 мм
[4] => 600 мм
)
[days] => [30,33,35,37,40]
[material_price] => [5348,8555,12788,14388,15189]
[work_price] => [4314,4881,7037,8061,10230]
[image] => https://akademik-stroy.ru/wp-content/uploads/materials/monolitnaya-zhb-plita.png
[area_modifier] => 213
[parent_name] => Фундамент
[parent_id] => 1
[material_sum] => 1435296
[work_sum] => 964826
[total_sum] => 2400122
[total_days] => 30
[display_material_sum] => 1 435 296
[display_work_sum] => 964 826
[display_total_sum] => 2 400 122
)
1
2 400 122₽
Работа:964 826 ₽
Материалы:1 435 296 ₽
Дни:30
stdClass Object
(
[id] => 73
[attribute_id] => 1
[name] => Утепленная шведская плита
[material_modifier] => 1
[work_modifier] => 1
[options] => Array
(
[0] => 200 мм
[1] => 300 мм
[2] => 400 мм
[3] => 500 мм
[4] => 600 мм
)
[days] => [32,37,39,42,45]
[material_price] => [10249,12692,13760,14936,16230]
[work_price] => [5960,7337,8072,8878,9765]
[image] => https://akademik-stroy.ru/wp-content/uploads/materials/uteplennaya-shvedskaya-plita.jpg
[area_modifier] => 213
[parent_name] => Фундамент
[parent_id] => 1
[material_sum] => 2750627
[work_sum] => 1332954
[total_sum] => 4083581
[total_days] => 32
[display_material_sum] => 2 750 627
[display_work_sum] => 1 332 954
[display_total_sum] => 4 083 581
)
1
4 083 581₽
Работа:1 332 954 ₽
Материалы:2 750 627 ₽
Дни:32
stdClass Object
(
[id] => 75
[attribute_id] => 1
[name] => Ленточный из ФБС
[material_modifier] => 1
[work_modifier] => 1
[options] => Array
(
[0] => толщ. 300 мм
[1] => толщ. 400 мм
[2] => толщ. 500 мм
[3] => толщ. 600 мм
)
[days] => [20,20,20,20]
[material_price] => [3675,4902,6126,7350]
[work_price] => [2451,3264,4083,4902]
[image] => https://akademik-stroy.ru/wp-content/uploads/materials/lentochnyj-iz-fbs.png
[area_modifier] => 213
[parent_name] => Фундамент
[parent_id] => 1
[material_sum] => 986297
[work_sum] => 548166
[total_sum] => 1534463
[total_days] => 20
[display_material_sum] => 986 297
[display_work_sum] => 548 166
[display_total_sum] => 1 534 463
)
1
1 534 463₽
Работа:548 166 ₽
Материалы:986 297 ₽
Дни:20
stdClass Object
(
[id] => 76
[attribute_id] => 1
[name] => Цокольный этаж из ФБС
[material_modifier] => 1
[work_modifier] => 1
[options] => Array
(
[0] => толщ. 300 мм
[1] => толщ. 400 мм
[2] => толщ. 500 мм
[3] => толщ. 600 мм
)
[days] => [30,32,34,36]
[material_price] => [20916,23299,26680,29060]
[work_price] => [17524,18700,19873,21046]
[image] => https://akademik-stroy.ru/wp-content/uploads/materials/cokolnyj-ehtazh-iz-fbs.jpg
[area_modifier] => 213
[parent_name] => Фундамент
[parent_id] => 1
[material_sum] => 5613436
[work_sum] => 3919243
[total_sum] => 9532679
[total_days] => 30
[display_material_sum] => 5 613 436
[display_work_sum] => 3 919 243
[display_total_sum] => 9 532 679
)
1
9 532 679₽
Работа:3 919 243 ₽
Материалы:5 613 436 ₽
Дни:30
stdClass Object
(
[id] => 77
[attribute_id] => 1
[name] => Цокольный этаж монолитный ж/б
[material_modifier] => 1
[work_modifier] => 1
[options] => Array
(
[0] => толщ. 200 мм
[1] => толщ. 300 мм
[2] => толщ. 400 мм
[3] => толщ. 500 мм
[4] => толщ. 600 мм
)
[days] => [40,42,44,46,48]
[material_price] => [25421,29148,32275,35602,37326]
[work_price] => [20441,21907,23375,24841,26306]
[image] => https://akademik-stroy.ru/wp-content/uploads/materials/cokolnyj-etazh-zh-b.jpg
[area_modifier] => 213
[parent_name] => Фундамент
[parent_id] => 1
[material_sum] => 6822488
[work_sum] => 4571630
[total_sum] => 11394118
[total_days] => 40
[display_material_sum] => 6 822 488
[display_work_sum] => 4 571 630
[display_total_sum] => 11 394 118
)
1
11 394 118₽
Работа:4 571 630 ₽
Материалы:6 822 488 ₽
Дни:40
stdClass Object
(
[id] => 191
[attribute_id] => 1
[name] => Винтовые сваи
[material_modifier] => 1
[work_modifier] => 1
[options] => Array
(
[0] => 57х200мм
[1] => 76х250мм
[2] => 108х300мм
[3] => 133х350мм
)
[days] => [1,1,2,2]
[material_price] => [1200,1300,1450,1600]
[work_price] => [400,600,900,1100]
[image] => https://akademik-stroy.ru/wp-content/uploads/materials/vintovye-svai.png
[area_modifier] => 213
[parent_name] => Фундамент
[parent_id] => 1
[material_sum] => 322056
[work_sum] => 89460
[total_sum] => 411516
[total_days] => 1
[display_material_sum] => 322 056
[display_work_sum] => 89 460
[display_total_sum] => 411 516
)
1
411 516₽
Работа:89 460 ₽
Материалы:322 056 ₽
Дни:1
stdClass Object
(
[id] => 3
[attribute_id] => 2
[name] => Деревянные балки
[material_modifier] => 1
[work_modifier] => 1
[options] => Array
(
[0] => без утепления
[1] => утепление 200 мм
[2] => утепление 250 мм
[3] => утепление 300 мм
[4] => утепление 350 мм
[5] => утепление 400 мм
[6] => утепление 450 мм
[7] => утепление 500 мм
)
[days] => [8,9,9,9,11,12,13,14]
[material_price] => [1634,2042,2344,2947,3149,3652,3354,3557]
[work_price] => [1230,1339,1393,1426,1460,1513,1587,1620]
[image] => https://akademik-stroy.ru/wp-content/uploads/materials/derevyannye-balki.png
[area_modifier] => 213
[parent_name] => Перекрытие цоколя
[parent_id] => 2
[material_sum] => 438533
[work_sum] => 275090
[total_sum] => 713623
[total_days] => 8
[display_material_sum] => 438 533
[display_work_sum] => 275 090
[display_total_sum] => 713 623
)
1
713 623₽
Работа:275 090 ₽
Материалы:438 533 ₽
Дни:8
stdClass Object
(
[id] => 4
[attribute_id] => 2
[name] => Сборные ж/б плиты
[material_modifier] => 1
[work_modifier] => 1
[options] => Array
(
[0] => без утепления
[1] => утепление 150мм
[2] => утепление 200мм
[3] => утепление 250мм
[4] => утепление 300мм
[5] => утепление 350мм
[6] => утепление 400мм
[7] => утепление 450мм
[8] => утепление 500мм
)
[days] => [13,15,15,15,15,15,15,15,15]
[material_price] => [3067,5577,5928,6679,7730,8782,9833,10884,11935]
[work_price] => [1520,1956,2102,2247,2392,2537,2684,2829,2974]
[image] => https://akademik-stroy.ru/wp-content/uploads/materials/sbornye-zh-b-plity-2.jpg
[area_modifier] => 213
[parent_name] => Перекрытие цоколя
[parent_id] => 2
[material_sum] => 823121
[work_sum] => 339948
[total_sum] => 1163069
[total_days] => 13
[display_material_sum] => 823 121
[display_work_sum] => 339 948
[display_total_sum] => 1 163 069
)
1
1 163 069₽
Работа:339 948 ₽
Материалы:823 121 ₽
Дни:13
stdClass Object
(
[id] => 78
[attribute_id] => 2
[name] => Монолитная ж/б плита
[material_modifier] => 1
[work_modifier] => 1
[options] => Array
(
[0] => без утепления
[1] => утепление 150 мм
[2] => утепление 200 мм
[3] => утепление 250 мм
[4] => утепление 300 мм
[5] => утепление 350 мм
[6] => утепление 400 мм
[7] => утепление 450 мм
[8] => утепление 500 мм
)
[days] => [18,20,20,20,20,20,20,20,20]
[material_price] => [4837,6572,7224,7375,79426,8177,8728,9180,10031]
[work_price] => [3348,3921,4112,4302,4493,4684,4875,5066,5256]
[image] => https://akademik-stroy.ru/wp-content/uploads/materials/monolitnaya-zh-b-plita-2.jpg
[area_modifier] => 213
[parent_name] => Перекрытие цоколя
[parent_id] => 2
[material_sum] => 1298154
[work_sum] => 748780
[total_sum] => 2046934
[total_days] => 18
[display_material_sum] => 1 298 154
[display_work_sum] => 748 780
[display_total_sum] => 2 046 934
)
1
2 046 934₽
Работа:748 780 ₽
Материалы:1 298 154 ₽
Дни:18
stdClass Object
(
[id] => 6
[attribute_id] => 3
[name] => Пеноблок
[material_modifier] => 1
[work_modifier] => 1
[options] => Array
(
[0] => 300 мм
[1] => 400 мм
[2] => 500 мм
[3] => 600 мм
)
[days] => [29,31,34,39]
[material_price] => [3000,4000,4500,4937]
[work_price] => [5033,5805,6400,8710]
[image] => https://akademik-stroy.ru/wp-content/uploads/materials/penoblok.jpg
[area_modifier] => 213
[parent_name] => Стены 1 этаж (несущие)
[parent_id] => 3
[material_sum] => 805140
[work_sum] => 1125630
[total_sum] => 1930770
[total_days] => 29
[display_material_sum] => 805 140
[display_work_sum] => 1 125 630
[display_total_sum] => 1 930 770
)
1
1 930 770₽
Работа:1 125 630 ₽
Материалы:805 140 ₽
Дни:29
stdClass Object
(
[id] => 79
[attribute_id] => 3
[name] => Керамический блок
[material_modifier] => 1
[work_modifier] => 1
[options] => Array
(
[0] => 380 мм
[1] => 380 мм Thermo
[2] => 440 мм
[3] => 510 мм
)
[days] => [23,23,24,25]
[material_price] => [4510,5098,6093,8013]
[work_price] => [4737,4937,5903,6958]
[image] => https://akademik-stroy.ru/wp-content/uploads/materials/keramicheskij-blok.jpg
[area_modifier] => 213
[parent_name] => Стены 1 этаж (несущие)
[parent_id] => 3
[material_sum] => 1210394
[work_sum] => 1059430
[total_sum] => 2269824
[total_days] => 23
[display_material_sum] => 1 210 394
[display_work_sum] => 1 059 430
[display_total_sum] => 2 269 824
)
1
2 269 824₽
Работа:1 059 430 ₽
Материалы:1 210 394 ₽
Дни:23
stdClass Object
(
[id] => 80
[attribute_id] => 3
[name] => Кирпич
[material_modifier] => 1
[work_modifier] => 1
[options] => Array
(
[0] => Кирпич 250 мм
[1] => Кирпич 380 мм
[2] => Кирпич 510 мм
[3] => Кирпич 640 мм
[4] => Кирпич 770 мм
)
[days] => [30,30,31,33,36]
[material_price] => [5500,7142,9206,10171,12235]
[work_price] => [8736,10041,12018,15240,18462]
[image] => https://akademik-stroy.ru/wp-content/uploads/materials/kirpich.jpg
[area_modifier] => 213
[parent_name] => Стены 1 этаж (несущие)
[parent_id] => 3
[material_sum] => 1476090
[work_sum] => 1953806
[total_sum] => 3429896
[total_days] => 30
[display_material_sum] => 1 476 090
[display_work_sum] => 1 953 806
[display_total_sum] => 3 429 896
)
1
3 429 896₽
Работа:1 953 806 ₽
Материалы:1 476 090 ₽
Дни:30
stdClass Object
(
[id] => 81
[attribute_id] => 3
[name] => Монолитные
[material_modifier] => 1
[work_modifier] => 1
[options] => Array
(
[0] => 150 мм
[1] => 200 мм
[2] => 250 мм
[3] => 300 мм
[4] => 350 мм
[5] => 400 мм
)
[days] => [45,46,47,49,50,53]
[material_price] => [6545,7876,10175,12011,13908,15204]
[work_price] => [5106,6444,7698,8552,9807,11461]
[image] => https://akademik-stroy.ru/wp-content/uploads/materials/monolitnye.jpg
[area_modifier] => 213
[parent_name] => Стены 1 этаж (несущие)
[parent_id] => 3
[material_sum] => 1756547
[work_sum] => 1141957
[total_sum] => 2898504
[total_days] => 45
[display_material_sum] => 1 756 547
[display_work_sum] => 1 141 957
[display_total_sum] => 2 898 504
)
1
2 898 504₽
Работа:1 141 957 ₽
Материалы:1 756 547 ₽
Дни:45
stdClass Object
(
[id] => 82
[attribute_id] => 3
[name] => Клееный брус
[material_modifier] => 1
[work_modifier] => 1
[options] => Array
(
[0] => 160 мм
[1] => 175 мм
[2] => 200 мм
[3] => 215 мм
[4] => 240 мм
[5] => 270 мм
[6] => 282 мм
)
[days] => [24,28,32,37,40,42,48]
[material_price] => [16975,18773,19950,20545,21599,22159,23275]
[work_price] => [4806,5287,5815,6397,7036,7740,8514]
[image] => https://akademik-stroy.ru/wp-content/uploads/materials/kleenyj-brus.jpg
[area_modifier] => 213
[parent_name] => Стены 1 этаж (несущие)
[parent_id] => 3
[material_sum] => 4555751
[work_sum] => 1074862
[total_sum] => 5630613
[total_days] => 24
[display_material_sum] => 4 555 751
[display_work_sum] => 1 074 862
[display_total_sum] => 5 630 613
)
1
5 630 613₽
Работа:1 074 862 ₽
Материалы:4 555 751 ₽
Дни:24
stdClass Object
(
[id] => 83
[attribute_id] => 3
[name] => Каркасные
[material_modifier] => 1
[work_modifier] => 1
[options] => Array
(
[0] => 150 мм
[1] => 200 мм
[2] => 250 мм
[3] => 300 мм
)
[days] => [15,16,17,18]
[material_price] => [2379,2639,2898,3258]
[work_price] => [2418,2686,2985,3716]
[image] => https://akademik-stroy.ru/wp-content/uploads/materials/karkasnye.jpg
[area_modifier] => 213
[parent_name] => Стены 1 этаж (несущие)
[parent_id] => 3
[material_sum] => 638476
[work_sum] => 540786
[total_sum] => 1179262
[total_days] => 15
[display_material_sum] => 638 476
[display_work_sum] => 540 786
[display_total_sum] => 1 179 262
)
1
1 179 262₽
Работа:540 786 ₽
Материалы:638 476 ₽
Дни:15
stdClass Object
(
[id] => 84
[attribute_id] => 3
[name] => СИП-панели
[material_modifier] => 1
[work_modifier] => 1
[options] => Array
(
[0] => 120 мм
[1] => 170 мм
[2] => 220 мм
)
[days] => [7,7,7]
[material_price] => [1210,1856,2292]
[work_price] => [1410,1551,1706]
[image] => https://akademik-stroy.ru/wp-content/uploads/materials/sip-paneli.jpg
[area_modifier] => 213
[parent_name] => Стены 1 этаж (несущие)
[parent_id] => 3
[material_sum] => 324740
[work_sum] => 315347
[total_sum] => 640087
[total_days] => 7
[display_material_sum] => 324 740
[display_work_sum] => 315 347
[display_total_sum] => 640 087
)
1
640 087₽
Работа:315 347 ₽
Материалы:324 740 ₽
Дни:7
stdClass Object
(
[id] => 85
[attribute_id] => 3
[name] => Сухой брус
[material_modifier] => 1
[work_modifier] => 1
[options] => Array
(
[0] => 150 мм
[1] => 180 мм
[2] => 200 мм
)
[days] => [7,8,9]
[material_price] => [6010,7190,8709]
[work_price] => [3204,3845,4229]
[image] => https://akademik-stroy.ru/wp-content/uploads/materials/suhoj-brus.jpg
[area_modifier] => 213
[parent_name] => Стены 1 этаж (несущие)
[parent_id] => 3
[material_sum] => 1612964
[work_sum] => 716575
[total_sum] => 2329539
[total_days] => 7
[display_material_sum] => 1 612 964
[display_work_sum] => 716 575
[display_total_sum] => 2 329 539
)
1
2 329 539₽
Работа:716 575 ₽
Материалы:1 612 964 ₽
Дни:7
stdClass Object
(
[id] => 86
[attribute_id] => 3
[name] => Профилированный брус
[material_modifier] => 1
[work_modifier] => 1
[options] => Array
(
[0] => 150 мм
[1] => 180 мм
[2] => 200 мм
)
[days] => [7,8,9]
[material_price] => [8190,9228,10051]
[work_price] => [3845,4614,5075]
[image] => https://akademik-stroy.ru/wp-content/uploads/materials/profilirovannyj-brus.jpg
[area_modifier] => 213
[parent_name] => Стены 1 этаж (несущие)
[parent_id] => 3
[material_sum] => 2198032
[work_sum] => 859934
[total_sum] => 3057966
[total_days] => 7
[display_material_sum] => 2 198 032
[display_work_sum] => 859 934
[display_total_sum] => 3 057 966
)
1
3 057 966₽
Работа:859 934 ₽
Материалы:2 198 032 ₽
Дни:7
stdClass Object
(
[id] => 87
[attribute_id] => 3
[name] => Оцилиндрованное бревно
[material_modifier] => 1
[work_modifier] => 1
[options] => Array
(
[0] => 180 мм
[1] => 220 мм
[2] => 260 мм
[3] => 320 мм
)
[days] => [7,8,9,10]
[material_price] => [75190,9532,10868,13116]
[work_price] => [3845,4691,5535,6863]
[image] => https://akademik-stroy.ru/wp-content/uploads/materials/ocilindrovannoe-brevno-1.jpg
[area_modifier] => 213
[parent_name] => Стены 1 этаж (несущие)
[parent_id] => 3
[material_sum] => 20179492
[work_sum] => 859934
[total_sum] => 21039426
[total_days] => 7
[display_material_sum] => 20 179 492
[display_work_sum] => 859 934
[display_total_sum] => 21 039 426
)
1
21 039 426₽
Работа:859 934 ₽
Материалы:20 179 492 ₽
Дни:7
stdClass Object
(
[id] => 88
[attribute_id] => 3
[name] => Срубы
[material_modifier] => 1
[work_modifier] => 1
[options] => Array
(
[0] => 260 мм
[1] => 320 мм
[2] => 360 мм
[3] => 400 мм
[4] => 500 мм
)
[days] => [7,8,9,10,11]
[material_price] => [37975,46709,52314,58069,73167]
[work_price] => [4806,5911,6621,7349,9260]
[image] => https://akademik-stroy.ru/wp-content/uploads/materials/sruby.jpg
[area_modifier] => 213
[parent_name] => Стены 1 этаж (несущие)
[parent_id] => 3
[material_sum] => 10191731
[work_sum] => 1074862
[total_sum] => 11266593
[total_days] => 7
[display_material_sum] => 10 191 731
[display_work_sum] => 1 074 862
[display_total_sum] => 11 266 593
)
1
11 266 593₽
Работа:1 074 862 ₽
Материалы:10 191 731 ₽
Дни:7
stdClass Object
(
[id] => 174
[attribute_id] => 3
[name] => Брус
[material_modifier] => 1
[work_modifier] => 1
[options] => Array
(
[0] => 150 мм
[1] => 180 мм
[2] => 200 мм
)
[days] => [7,8,9]
[material_price] => [5127,6152,7367]
[work_price] => [1602,1922,2115]
[image] => https://akademik-stroy.ru/wp-content/uploads/materials/brus.jpg
[area_modifier] => 213
[parent_name] => Стены 1 этаж (несущие)
[parent_id] => 3
[material_sum] => 1375984
[work_sum] => 358287
[total_sum] => 1734271
[total_days] => 7
[display_material_sum] => 1 375 984
[display_work_sum] => 358 287
[display_total_sum] => 1 734 271
)
1
1 734 271₽
Работа:358 287 ₽
Материалы:1 375 984 ₽
Дни:7
stdClass Object
(
[id] => 175
[attribute_id] => 3
[name] => Газобетон
[material_modifier] => 1
[work_modifier] => 1
[options] => Array
(
[0] => 300 мм
[1] => 375 мм
[2] => 400 мм
[3] => 500 мм
[4] => 600 мм
)
[days] => [29,31,35,37,44]
[material_price] => [4298,5573,6356,7288,9119]
[work_price] => [4538,5251,5926,6733,7195]
[image] => https://akademik-stroy.ru/wp-content/uploads/materials/gazobeton.jpg
[area_modifier] => 213
[parent_name] => Стены 1 этаж (несущие)
[parent_id] => 3
[material_sum] => 1153497
[work_sum] => 1014924
[total_sum] => 2168421
[total_days] => 29
[display_material_sum] => 1 153 497
[display_work_sum] => 1 014 924
[display_total_sum] => 2 168 421
)
1
2 168 421₽
Работа:1 014 924 ₽
Материалы:1 153 497 ₽
Дни:29
stdClass Object
(
[id] => 176
[attribute_id] => 3
[name] => Блок
[material_modifier] => 1
[work_modifier] => 1
[options] => Array
(
[0] => 300 мм
[1] => 375 мм
[2] => 400 мм
[3] => 500 мм
[4] => 600 мм
)
[days] => [29,31,35,37,44]
[material_price] => [2698,3973,4356,6588,7119]
[work_price] => [5038,5851,6426,8733,9195]
[image] => https://akademik-stroy.ru/wp-content/uploads/materials/blok.jpg
[area_modifier] => 213
[parent_name] => Стены 1 этаж (несущие)
[parent_id] => 3
[material_sum] => 724089
[work_sum] => 1126749
[total_sum] => 1850838
[total_days] => 29
[display_material_sum] => 724 089
[display_work_sum] => 1 126 749
[display_total_sum] => 1 850 838
)
1
1 850 838₽
Работа:1 126 749 ₽
Материалы:724 089 ₽
Дни:29
stdClass Object
(
[id] => 177
[attribute_id] => 3
[name] => Газосиликатный блок
[material_modifier] => 1
[work_modifier] => 1
[options] => Array
(
[0] => 300 мм
[1] => 375 мм
[2] => 400 мм
[3] => 500 мм
[4] => 600 мм
)
[days] => [29,31,35,37,44]
[material_price] => [4298,5573,6356,7288,9119]
[work_price] => [4538,5251,5926,6733,7195]
[image] => https://akademik-stroy.ru/wp-content/uploads/materials/gazosilikatnyj-blok.jpg
[area_modifier] => 213
[parent_name] => Стены 1 этаж (несущие)
[parent_id] => 3
[material_sum] => 1153497
[work_sum] => 1014924
[total_sum] => 2168421
[total_days] => 29
[display_material_sum] => 1 153 497
[display_work_sum] => 1 014 924
[display_total_sum] => 2 168 421
)
1
2 168 421₽
Работа:1 014 924 ₽
Материалы:1 153 497 ₽
Дни:29
stdClass Object
(
[id] => 178
[attribute_id] => 3
[name] => Керамзитобетонный блок
[material_modifier] => 1
[work_modifier] => 1
[options] => Array
(
[0] => 300 мм
[1] => 375 мм
[2] => 400 мм
[3] => 500 мм
[4] => 600 мм
)
[days] => [23,23,24,25,28]
[material_price] => [3641,4298,5693,7613,9612]
[work_price] => [5737,5737,6903,7958,8901]
[image] => https://akademik-stroy.ru/wp-content/uploads/materials/keramzitobetonnyj-blok.jpg
[area_modifier] => 213
[parent_name] => Стены 1 этаж (несущие)
[parent_id] => 3
[material_sum] => 977172
[work_sum] => 1283080
[total_sum] => 2260252
[total_days] => 23
[display_material_sum] => 977 172
[display_work_sum] => 1 283 080
[display_total_sum] => 2 260 252
)
1
2 260 252₽
Работа:1 283 080 ₽
Материалы:977 172 ₽
Дни:23
stdClass Object
(
[id] => 179
[attribute_id] => 3
[name] => Деревянные
[material_modifier] => 1
[work_modifier] => 1
[options] => Array
(
[0] => 180 мм
[1] => 220 мм
[2] => 260 мм
[3] => 320 мм
)
[days] => [7,8,9,10]
[material_price] => [7950,9458,11961,14472]
[work_price] => [4037,4925,5812,7207]
[image] => https://akademik-stroy.ru/wp-content/uploads/materials/derevyannye.jpg
[area_modifier] => 213
[parent_name] => Стены 1 этаж (несущие)
[parent_id] => 3
[material_sum] => 2133621
[work_sum] => 902875
[total_sum] => 3036496
[total_days] => 7
[display_material_sum] => 2 133 621
[display_work_sum] => 902 875
[display_total_sum] => 3 036 496
)
1
3 036 496₽
Работа:902 875 ₽
Материалы:2 133 621 ₽
Дни:7
stdClass Object
(
[id] => 181
[attribute_id] => 3
[name] => Камень
[material_modifier] => 1
[work_modifier] => 1
[options] => Array
(
[0] => 300 мм
[1] => 400 мм
[2] => 500 мм
[3] => 600 мм
)
[days] => [25,27,31,34]
[material_price] => [5262,6844,8330,9815]
[work_price] => [8331,9135,10427,11069]
[image] => https://akademik-stroy.ru/wp-content/uploads/materials/kamen.jpg
[area_modifier] => 213
[parent_name] => Стены 1 этаж (несущие)
[parent_id] => 3
[material_sum] => 1412216
[work_sum] => 1863228
[total_sum] => 3275444
[total_days] => 25
[display_material_sum] => 1 412 216
[display_work_sum] => 1 863 228
[display_total_sum] => 3 275 444
)
1
3 275 444₽
Работа:1 863 228 ₽
Материалы:1 412 216 ₽
Дни:25
stdClass Object
(
[id] => 182
[attribute_id] => 3
[name] => Каркасно-щитовые
[material_modifier] => 1
[work_modifier] => 1
[options] => Array
(
[0] => 150 мм
[1] => 200 мм
[2] => 250 мм
[3] => 300 мм
[4] => 350 мм
[5] => 400 мм
)
[days] => [15,16,17,18,19,20]
[material_price] => [2379,2639,2898,3458,3601,4175]
[work_price] => [2538,2820,3134,3483,4062,5642]
[image] => https://akademik-stroy.ru/wp-content/uploads/materials/karkasno-shchitovye.jpg
[area_modifier] => 213
[parent_name] => Стены 1 этаж (несущие)
[parent_id] => 3
[material_sum] => 638476
[work_sum] => 567624
[total_sum] => 1206100
[total_days] => 15
[display_material_sum] => 638 476
[display_work_sum] => 567 624
[display_total_sum] => 1 206 100
)
1
1 206 100₽
Работа:567 624 ₽
Материалы:638 476 ₽
Дни:15
stdClass Object
(
[id] => 183
[attribute_id] => 3
[name] => Рубленные
[material_modifier] => 1
[work_modifier] => 1
[options] => Array
(
[0] => 150 мм
[1] => 200 мм
[2] => 250 мм
[3] => 300 мм
[4] => 350 мм
[5] => 400 мм
)
[days] => [15,16,17,18,17,18]
[material_price] => [35950,50267,60583,75900,80217,100533]
[work_price] => [9612,12816,16020,19224,22428,25632]
[image] => https://akademik-stroy.ru/wp-content/uploads/materials/rublennye.jpg
[area_modifier] => 213
[parent_name] => Стены 1 этаж (несущие)
[parent_id] => 3
[material_sum] => 9648261
[work_sum] => 2149724
[total_sum] => 11797985
[total_days] => 15
[display_material_sum] => 9 648 261
[display_work_sum] => 2 149 724
[display_total_sum] => 11 797 985
)
1
11 797 985₽
Работа:2 149 724 ₽
Материалы:9 648 261 ₽
Дни:15
stdClass Object
(
[id] => 185
[attribute_id] => 3
[name] => Теплоблок
[material_modifier] => 1
[work_modifier] => 1
[options] => Array
(
[0] => 300 мм (с облицовкой, не покрашенный)
[1] => 400 мм (с облицовкой, не покрашенный)
[2] => 300 мм (с облицовкой, покрашенный)
[3] => 400 мм (с облицовкой, покрашенный)
)
[days] => [15,16,15,16]
[material_price] => [2888,3729,3957,4258]
[work_price] => [2564,3229,2949,3713]
[image] => https://akademik-stroy.ru/wp-content/uploads/materials/teploblok.jpg
[area_modifier] => 213
[parent_name] => Стены 1 этаж (несущие)
[parent_id] => 3
[material_sum] => 775081
[work_sum] => 573439
[total_sum] => 1348520
[total_days] => 15
[display_material_sum] => 775 081
[display_work_sum] => 573 439
[display_total_sum] => 1 348 520
)
1
1 348 520₽
Работа:573 439 ₽
Материалы:775 081 ₽
Дни:15
stdClass Object
(
[id] => 186
[attribute_id] => 3
[name] => Арболитовые блоки
[material_modifier] => 1
[work_modifier] => 1
[options] => Array
(
[0] => 300 мм
[1] => 400 мм
[2] => 600 мм
)
[days] => [19,22,27]
[material_price] => [3210,4475,5852]
[work_price] => [4214,4788,5866]
[image] => https://akademik-stroy.ru/wp-content/uploads/materials/arbolitovye-bloki.png
[area_modifier] => 213
[parent_name] => Стены 1 этаж (несущие)
[parent_id] => 3
[material_sum] => 861500
[work_sum] => 942461
[total_sum] => 1803961
[total_days] => 19
[display_material_sum] => 861 500
[display_work_sum] => 942 461
[display_total_sum] => 1 803 961
)
1
1 803 961₽
Работа:942 461 ₽
Материалы:861 500 ₽
Дни:19
stdClass Object
(
[id] => 187
[attribute_id] => 3
[name] => Полистиролбетон
[material_modifier] => 1
[work_modifier] => 1
[options] => Array
(
[0] => 300 мм
[1] => 400 мм
[2] => 600 мм
)
[days] => [29,31,35]
[material_price] => [2798,4573,5256]
[work_price] => [5038,5851,6426]
[image] => https://akademik-stroy.ru/wp-content/uploads/materials/polistirolbeton.jpg
[area_modifier] => 213
[parent_name] => Стены 1 этаж (несущие)
[parent_id] => 3
[material_sum] => 750927
[work_sum] => 1126749
[total_sum] => 1877676
[total_days] => 29
[display_material_sum] => 750 927
[display_work_sum] => 1 126 749
[display_total_sum] => 1 877 676
)
1
1 877 676₽
Работа:1 126 749 ₽
Материалы:750 927 ₽
Дни:29
stdClass Object
(
[id] => 188
[attribute_id] => 3
[name] => Шлакоблок
[material_modifier] => 1
[work_modifier] => 1
[options] => Array
(
[0] => 400 мм
[1] => 600 мм
)
[days] => [15,16]
[material_price] => [2391,3471]
[work_price] => [2642,3662]
[image] => https://akademik-stroy.ru/wp-content/uploads/materials/shlakoblok.jpg
[area_modifier] => 213
[parent_name] => Стены 1 этаж (несущие)
[parent_id] => 3
[material_sum] => 641697
[work_sum] => 590883
[total_sum] => 1232580
[total_days] => 15
[display_material_sum] => 641 697
[display_work_sum] => 590 883
[display_total_sum] => 1 232 580
)
1
1 232 580₽
Работа:590 883 ₽
Материалы:641 697 ₽
Дни:15
stdClass Object
(
[id] => 189
[attribute_id] => 3
[name] => Теплая керамика
[material_modifier] => 1
[work_modifier] => 1
[options] => Array
(
[0] => 380 мм
[1] => 380 мм Thermo
[2] => 440 мм
[3] => 510 мм
)
[days] => [23,23,24,25]
[material_price] => [4510,5098,6093,8013]
[work_price] => [4737,4937,5903,6958]
[image] => https://akademik-stroy.ru/wp-content/uploads/materials/teplaya-keramika.jpg
[area_modifier] => 213
[parent_name] => Стены 1 этаж (несущие)
[parent_id] => 3
[material_sum] => 1210394
[work_sum] => 1059430
[total_sum] => 2269824
[total_days] => 23
[display_material_sum] => 1 210 394
[display_work_sum] => 1 059 430
[display_total_sum] => 2 269 824
)
1
2 269 824₽
Работа:1 059 430 ₽
Материалы:1 210 394 ₽
Дни:23
stdClass Object
(
[id] => 190
[attribute_id] => 3
[name] => Несъемная опалубка
[material_modifier] => 1
[work_modifier] => 1
[options] => Array
(
[0] => 200 мм
[1] => 250 мм
[2] => 300 мм
[3] => 350 мм
)
[days] => [15,17,19,21]
[material_price] => [3302,3902,4108,5008]
[work_price] => [2100,2100,2300,2534]
[image] => https://akademik-stroy.ru/wp-content/uploads/materials/nesemnaya-opalubka.jpg
[area_modifier] => 213
[parent_name] => Стены 1 этаж (несущие)
[parent_id] => 3
[material_sum] => 886191
[work_sum] => 469665
[total_sum] => 1355856
[total_days] => 15
[display_material_sum] => 886 191
[display_work_sum] => 469 665
[display_total_sum] => 1 355 856
)
1
1 355 856₽
Работа:469 665 ₽
Материалы:886 191 ₽
Дни:15
stdClass Object
(
[id] => 251
[attribute_id] => 3
[name] => Бревно
[material_modifier] => 1
[work_modifier] => 1
[options] => Array
(
[0] => 260 мм
[1] => 320 мм
[2] => 360 мм
[3] => 400 мм
[4] => 500 мм
)
[days] => [7,8,9,10,11]
[material_price] => [1874,24045,26930,30972,38825]
[work_price] => [5046,6207,6952,7716,9723]
[image] => https://akademik-stroy.ru/wp-content/uploads/materials/sruby.jpg
[area_modifier] => 213
[parent_name] => Стены 1 этаж (несущие)
[parent_id] => 3
[material_sum] => 502944
[work_sum] => 1128538
[total_sum] => 1631482
[total_days] => 7
[display_material_sum] => 502 944
[display_work_sum] => 1 128 538
[display_total_sum] => 1 631 482
)
1
1 631 482₽
Работа:1 128 538 ₽
Материалы:502 944 ₽
Дни:7
stdClass Object
(
[id] => 7
[attribute_id] => 4
[name] => Деревянные балки
[material_modifier] => 1
[work_modifier] => 1
[options] => Array
(
[0] => без утепления
[1] => утепление 200 мм
[2] => утепление 250 мм
[3] => утепление 300 мм
[4] => утепление 350 мм
[5] => утепление 400 мм
[6] => утепление 450 мм
[7] => утепление 500 мм
)
[days] => [8,9,9,9,11,12,13,14]
[material_price] => [1634,2042,2344,2947,3149,3652,3354,3557]
[work_price] => [1230,1339,1393,1426,1460,1513,1587,1620]
[image] => https://akademik-stroy.ru/wp-content/uploads/materials/derevyannye-balki.png
[area_modifier] => 213
[parent_name] => Перекрытие первого этажа
[parent_id] => 4
[material_sum] => 438533
[work_sum] => 275090
[total_sum] => 713623
[total_days] => 8
[display_material_sum] => 438 533
[display_work_sum] => 275 090
[display_total_sum] => 713 623
)
1
713 623₽
Работа:275 090 ₽
Материалы:438 533 ₽
Дни:8
stdClass Object
(
[id] => 8
[attribute_id] => 4
[name] => Сборные ж/б плиты
[material_modifier] => 1
[work_modifier] => 1
[options] => Array
(
[0] => без утепления
[1] => утепление 150 мм
[2] => утепление 200 мм
[3] => утепление 250 мм
[4] => утепление 300 мм
[5] => утепление 350 мм
[6] => утепление 400 мм
[7] => утепление 450 мм
[8] => утепление 500 мм
)
[days] => [13,15,15,15,15,15,15,15,15]
[material_price] => [3067,5577,5928,6679,7730,8782,9833,10884,11935]
[work_price] => [1520,1956,2102,2247,2392,2537,2684,2829,2974]
[image] => https://akademik-stroy.ru/wp-content/uploads/materials/sbornye-zh-b-plity-2.jpg
[area_modifier] => 213
[parent_name] => Перекрытие первого этажа
[parent_id] => 4
[material_sum] => 823121
[work_sum] => 339948
[total_sum] => 1163069
[total_days] => 13
[display_material_sum] => 823 121
[display_work_sum] => 339 948
[display_total_sum] => 1 163 069
)
1
1 163 069₽
Работа:339 948 ₽
Материалы:823 121 ₽
Дни:13
stdClass Object
(
[id] => 89
[attribute_id] => 4
[name] => Монолитная ж/б плита
[material_modifier] => 1
[work_modifier] => 1
[options] => Array
(
[0] => без утепления
[1] => утепление 150 мм
[2] => утепление 200 мм
[3] => утепление 250 мм
[4] => утепление 300 мм
[5] => утепление 350 мм
[6] => утепление 400 мм
[7] => утепление 450 мм
[8] => утепление 500 мм
)
[days] => [18,20,20,20,20,20,20,20,20]
[material_price] => [4837,6572,7224,7375,79426,8177,8728,9180,10031]
[work_price] => [3348,3921,4112,4302,4493,4684,4875,5066,5256]
[image] => https://akademik-stroy.ru/wp-content/uploads/materials/monolitnaya-zh-b-plita-2.jpg
[area_modifier] => 213
[parent_name] => Перекрытие первого этажа
[parent_id] => 4
[material_sum] => 1298154
[work_sum] => 748780
[total_sum] => 2046934
[total_days] => 18
[display_material_sum] => 1 298 154
[display_work_sum] => 748 780
[display_total_sum] => 2 046 934
)
1
2 046 934₽
Работа:748 780 ₽
Материалы:1 298 154 ₽
Дни:18
stdClass Object
(
[id] => 160
[attribute_id] => 36
[name] => Не эксплуатируемая
[material_modifier] => 1
[work_modifier] => 1
[options] => Array
(
)
[days] => [10]
[material_price] => [8068]
[work_price] => [4163]
[image] => https://akademik-stroy.ru/wp-content/uploads/materials/ne-ehkspluatiruemaya-3.jpg
[area_modifier] => 213
[parent_name] => Плоская крыша
[parent_id] => 36
[material_sum] => 2165290
[work_sum] => 931055
[total_sum] => 3096345
[total_days] => 10
[display_material_sum] => 2 165 290
[display_work_sum] => 931 055
[display_total_sum] => 3 096 345
)
1
3 096 345₽
Работа:931 055 ₽
Материалы:2 165 290 ₽
Дни:10
stdClass Object
(
[id] => 161
[attribute_id] => 36
[name] => Зеленая кровля (Эксплуатируемая)
[material_modifier] => 1
[work_modifier] => 1
[options] => Array
(
)
[days] => [10]
[material_price] => [10056]
[work_price] => [8446]
[image] => https://akademik-stroy.ru/wp-content/uploads/materials/zelenaya-krovlya-2.jpg
[area_modifier] => 213
[parent_name] => Плоская крыша
[parent_id] => 36
[material_sum] => 2698829
[work_sum] => 1888948
[total_sum] => 4587777
[total_days] => 10
[display_material_sum] => 2 698 829
[display_work_sum] => 1 888 948
[display_total_sum] => 4 587 777
)
1
4 587 777₽
Работа:1 888 948 ₽
Материалы:2 698 829 ₽
Дни:10
stdClass Object
(
[id] => 162
[attribute_id] => 36
[name] => Эксплуатируемая
[material_modifier] => 1
[work_modifier] => 1
[options] => Array
(
)
[days] => [10]
[material_price] => [9593]
[work_price] => [7459]
[image] => https://akademik-stroy.ru/wp-content/uploads/materials/ehkspluatiruemaya-2.jpg
[area_modifier] => 213
[parent_name] => Плоская крыша
[parent_id] => 36
[material_sum] => 2574569
[work_sum] => 1668205
[total_sum] => 4242774
[total_days] => 10
[display_material_sum] => 2 574 569
[display_work_sum] => 1 668 205
[display_total_sum] => 4 242 774
)
1
4 242 774₽
Работа:1 668 205 ₽
Материалы:2 574 569 ₽
Дни:10
stdClass Object
(
[id] => 163
[attribute_id] => 36
[name] => Нет
[material_modifier] => 1
[work_modifier] => 1
[options] => Array
(
)
[days] => [0]
[material_price] => [0]
[work_price] => [0]
[image] => https://akademik-stroy.ru/wp-content/uploads/materials/ne-ehkspluatiruemaya-3.jpg
[area_modifier] => 213
[parent_name] => Плоская крыша
[parent_id] => 36
[material_sum] => 0
[work_sum] => 0
[total_sum] => 0
[total_days] => 0
[display_material_sum] => 0
[display_work_sum] => 0
[display_total_sum] => 0
)
1
0₽
Работа:0 ₽
Материалы:0 ₽
Дни:0
stdClass Object
(
[id] => 51
[attribute_id] => 26
[name] => Есть
[material_modifier] => 1
[work_modifier] => 1
[options] => Array
(
[0] => Профиль 58 мм, 3-камерный, стеклопакет 2-камерный до 32 мм
[1] => Профиль 60 мм, 4-камерный, стеклопакет 2-камерный до 32 мм
[2] => Профиль 70 мм, 5-камерный, стеклопакет 2-камерный до 40 мм
[3] => Профиль 72 мм, 5-камерный, стеклопакет 2-камерный до 40 мм
[4] => Алюминиевые окна Alutech профиль 72 мм, стеклопакет 2-камерный
)
[days] => [3,3,3,3,3]
[material_price] => [1339,2124,2867,3023,29596]
[work_price] => [635,647,659,668,2579]
[image] => https://akademik-stroy.ru/wp-content/uploads/materials/okna.jpg
[area_modifier] => 172.85
[parent_name] => Окна
[parent_id] => 26
[material_sum] => 291622
[work_sum] => 115248
[total_sum] => 406870
[total_days] => 3
[display_material_sum] => 291 622
[display_work_sum] => 115 248
[display_total_sum] => 406 870
)
1
406 870₽
Работа:115 248 ₽
Материалы:291 622 ₽
Дни:3
stdClass Object
(
[id] => 52
[attribute_id] => 26
[name] => Нет
[material_modifier] => 2
[work_modifier] => 1
[options] =>
[days] => null
[material_price] => null
[work_price] => null
[image] => https://akademik-stroy.ru/wp-content/uploads/materials/okna.jpg
[area_modifier] => 172.85
[parent_name] => Окна
[parent_id] => 26
[material_sum] => 0
[work_sum] => 0
[total_sum] => 0
[total_days] => 0
[display_material_sum] => 0
[display_work_sum] => 0
[display_total_sum] => 0
)
1
0₽
Работа:0 ₽
Материалы:0 ₽
Дни:0
stdClass Object
(
[id] => 53
[attribute_id] => 27
[name] => Есть
[material_modifier] => 1
[work_modifier] => 1
[options] => Array
(
)
[days] => [1]
[material_price] => [10000]
[work_price] => [5500]
[image] => https://akademik-stroy.ru/wp-content/uploads/materials/dveri.jpg
[area_modifier] => 1
[parent_name] => Двери входные
[parent_id] => 27
[material_sum] => 12600
[work_sum] => 5775
[total_sum] => 18375
[total_days] => 1
[display_material_sum] => 12 600
[display_work_sum] => 5 775
[display_total_sum] => 18 375
)
1
18 375₽
Работа:5 775 ₽
Материалы:12 600 ₽
Дни:1
stdClass Object
(
[id] => 54
[attribute_id] => 27
[name] => Нет
[material_modifier] => 1
[work_modifier] => 1
[options] => Array
(
)
[days] => [0]
[material_price] => [0]
[work_price] => [0]
[image] => https://akademik-stroy.ru/wp-content/uploads/materials/dveri.jpg
[area_modifier] => 1
[parent_name] => Двери входные
[parent_id] => 27
[material_sum] => 0
[work_sum] => 0
[total_sum] => 0
[total_days] => 0
[display_material_sum] => 0
[display_work_sum] => 0
[display_total_sum] => 0
)
1
0₽
Работа:0 ₽
Материалы:0 ₽
Дни:0
stdClass Object
(
[id] => 31
[attribute_id] => 16
[name] => Нет
[material_modifier] => 1
[work_modifier] => 1
[options] => Array
(
)
[days] => [0]
[material_price] => [0]
[work_price] => [0]
[image] => https://akademik-stroy.ru/wp-content/uploads/materials/docke-standard-pvh.jpg
[area_modifier] => 213
[parent_name] => Водосточная система
[parent_id] => 16
[material_sum] => 0
[work_sum] => 0
[total_sum] => 0
[total_days] => 0
[display_material_sum] => 0
[display_work_sum] => 0
[display_total_sum] => 0
)
1
0₽
Работа:0 ₽
Материалы:0 ₽
Дни:0
stdClass Object
(
[id] => 32
[attribute_id] => 16
[name] => Есть
[material_modifier] => 1
[work_modifier] => 1
[options] => Array
(
[0] => Döcke Standard (ПВХ)
[1] => Металлические Grand Line
)
[days] => [7,7]
[material_price] => [1842,2703]
[work_price] => [1491,1529]
[image] => https://akademik-stroy.ru/wp-content/uploads/materials/docke-standard-pvh.jpg
[area_modifier] => 213
[parent_name] => Водосточная система
[parent_id] => 16
[material_sum] => 494356
[work_sum] => 333462
[total_sum] => 827818
[total_days] => 7
[display_material_sum] => 494 356
[display_work_sum] => 333 462
[display_total_sum] => 827 818
)
1
827 818₽
Работа:333 462 ₽
Материалы:494 356 ₽
Дни:7
stdClass Object
(
[id] => 33
[attribute_id] => 17
[name] => Нет
[material_modifier] => 1
[work_modifier] => 1
[options] => Array
(
)
[days] => [0]
[material_price] => [0]
[work_price] => [0]
[image] => https://akademik-stroy.ru/wp-content/uploads/materials/mineralovata.jpg
[area_modifier] => 213
[parent_name] => Дополнительное утепление наружных стен
[parent_id] => 17
[material_sum] => 0
[work_sum] => 0
[total_sum] => 0
[total_days] => 0
[display_material_sum] => 0
[display_work_sum] => 0
[display_total_sum] => 0
)
1
0₽
Работа:0 ₽
Материалы:0 ₽
Дни:0
stdClass Object
(
[id] => 34
[attribute_id] => 17
[name] => Минераловатный
[material_modifier] => 1
[work_modifier] => 1
[options] => Array
(
[0] => 50 мм
[1] => 100 мм
[2] => 150 мм
[3] => 200 мм
[4] => 250 мм
[5] => 300 мм
)
[days] => [7,8,10,12,14,15]
[material_price] => [3437,3613,3803,3915,4601,4830]
[work_price] => [2325,2423,2523,2749,2859,3025]
[image] => https://akademik-stroy.ru/wp-content/uploads/materials/mineralovata.jpg
[area_modifier] => 213
[parent_name] => Дополнительное утепление наружных стен
[parent_id] => 17
[material_sum] => 922422
[work_sum] => 519986
[total_sum] => 1442408
[total_days] => 7
[display_material_sum] => 922 422
[display_work_sum] => 519 986
[display_total_sum] => 1 442 408
)
1
1 442 408₽
Работа:519 986 ₽
Материалы:922 422 ₽
Дни:7
stdClass Object
(
[id] => 128
[attribute_id] => 17
[name] => Эковата (целлюлозная вата)
[material_modifier] => 1
[work_modifier] => 1
[options] => Array
(
[0] => 50 мм
[1] => 100 мм
[2] => 150 мм
[3] => 200 мм
[4] => 250 мм
[5] => 300 мм
)
[days] => [3,4,5,6,7,8]
[material_price] => [810,1319,1629,1838,2267,2676]
[work_price] => [1225,1323,1423,1549,1659,1725]
[image] => https://akademik-stroy.ru/wp-content/uploads/materials/ehkovata.jpg
[area_modifier] => 213
[parent_name] => Дополнительное утепление наружных стен
[parent_id] => 17
[material_sum] => 217388
[work_sum] => 273971
[total_sum] => 491359
[total_days] => 3
[display_material_sum] => 217 388
[display_work_sum] => 273 971
[display_total_sum] => 491 359
)
1
491 359₽
Работа:273 971 ₽
Материалы:217 388 ₽
Дни:3
stdClass Object
(
[id] => 129
[attribute_id] => 17
[name] => Экструдированный пенополистирол
[material_modifier] => 1
[work_modifier] => 1
[options] => Array
(
[0] => 50 мм
[1] => 100 мм
[2] => 150 мм
[3] => 200 мм
[4] => 250 мм
[5] => 300 мм
)
[days] => [5,6,7,8,9,10]
[material_price] => [4560,4300,5119,6292,7010,8583]
[work_price] => [1795,1954,2254,2330,2595,2735]
[image] => https://akademik-stroy.ru/wp-content/uploads/materials/epps.jpg
[area_modifier] => 213
[parent_name] => Дополнительное утепление наружных стен
[parent_id] => 17
[material_sum] => 1223813
[work_sum] => 401452
[total_sum] => 1625265
[total_days] => 5
[display_material_sum] => 1 223 813
[display_work_sum] => 401 452
[display_total_sum] => 1 625 265
)
1
1 625 265₽
Работа:401 452 ₽
Материалы:1 223 813 ₽
Дни:5
stdClass Object
(
[id] => 130
[attribute_id] => 17
[name] => ПСБ (ППС-пенополистирол)
[material_modifier] => 1
[work_modifier] => 1
[options] => Array
(
[0] => 50 мм
[1] => 100 мм
[2] => 150 мм
[3] => 200 мм
[4] => 250 мм
[5] => 300 мм
)
[days] => [5,6,7,8,9,10]
[material_price] => [4822,5200,5819,6292,7010,7583]
[work_price] => [1795,1954,2254,2330,2595,2735]
[image] => https://akademik-stroy.ru/wp-content/uploads/materials/psb.jpg
[area_modifier] => 213
[parent_name] => Дополнительное утепление наружных стен
[parent_id] => 17
[material_sum] => 1294128
[work_sum] => 401452
[total_sum] => 1695580
[total_days] => 5
[display_material_sum] => 1 294 128
[display_work_sum] => 401 452
[display_total_sum] => 1 695 580
)
1
1 695 580₽
Работа:401 452 ₽
Материалы:1 294 128 ₽
Дни:5
stdClass Object
(
[id] => 131
[attribute_id] => 17
[name] => ППУ (Пенополиуретан)
[material_modifier] => 1
[work_modifier] => 1
[options] => Array
(
[0] => 50 мм
[1] => 100 мм
[2] => 150 мм
[3] => 200 мм
[4] => 250 мм
[5] => 300 мм
)
[days] => [3,4,5,6,7,8]
[material_price] => [2860,3400,4219,4592,5010,5583]
[work_price] => [729,900,980,1120,1280,1530]
[image] => https://akademik-stroy.ru/wp-content/uploads/materials/ppu.jpg
[area_modifier] => 213
[parent_name] => Дополнительное утепление наружных стен
[parent_id] => 17
[material_sum] => 767567
[work_sum] => 163041
[total_sum] => 930608
[total_days] => 3
[display_material_sum] => 767 567
[display_work_sum] => 163 041
[display_total_sum] => 930 608
)
1
930 608₽
Работа:163 041 ₽
Материалы:767 567 ₽
Дни:3
stdClass Object
(
[id] => 132
[attribute_id] => 17
[name] => PIR-плиты (пенополиизоцианурат)
[material_modifier] => 1
[work_modifier] => 1
[options] => Array
(
[0] => 50 мм
[1] => 100 мм
[2] => 150 мм
[3] => 200 мм
[4] => 250 мм
[5] => 300 мм
)
[days] => [5,6,7,8,9,10]
[material_price] => [8323,15645,20968,25900,29258,30581]
[work_price] => [800,900,970,1150,1280,1330]
[image] => https://akademik-stroy.ru/wp-content/uploads/materials/pir.jpg
[area_modifier] => 213
[parent_name] => Дополнительное утепление наружных стен
[parent_id] => 17
[material_sum] => 2233727
[work_sum] => 178920
[total_sum] => 2412647
[total_days] => 5
[display_material_sum] => 2 233 727
[display_work_sum] => 178 920
[display_total_sum] => 2 412 647
)
1
2 412 647₽
Работа:178 920 ₽
Материалы:2 233 727 ₽
Дни:5
stdClass Object
(
[id] => 37
[attribute_id] => 19
[name] => Нет
[material_modifier] => 1
[work_modifier] => 1
[options] => Array
(
)
[days] => [0]
[material_price] => [0]
[work_price] => [0]
[image] => https://akademik-stroy.ru/wp-content/uploads/materials/imitaciya-brusa.jpg
[area_modifier] => 213
[parent_name] => Наружная отделка фасада
[parent_id] => 19
[material_sum] => 0
[work_sum] => 0
[total_sum] => 0
[total_days] => 0
[display_material_sum] => 0
[display_work_sum] => 0
[display_total_sum] => 0
)
1
0₽
Работа:0 ₽
Материалы:0 ₽
Дни:0
stdClass Object
(
[id] => 38
[attribute_id] => 19
[name] => Имитация бруса
[material_modifier] => 1
[work_modifier] => 1
[options] => Array
(
[0] => Сосна
[1] => Ель
[2] => Лиственница
)
[days] => [20,20,20]
[material_price] => [2994,2762,4954]
[work_price] => [1397,1231,1577]
[image] => https://akademik-stroy.ru/wp-content/uploads/materials/imitaciya-brusa.jpg
[area_modifier] => 213
[parent_name] => Наружная отделка фасада
[parent_id] => 19
[material_sum] => 803530
[work_sum] => 312439
[total_sum] => 1115969
[total_days] => 20
[display_material_sum] => 803 530
[display_work_sum] => 312 439
[display_total_sum] => 1 115 969
)
1
1 115 969₽
Работа:312 439 ₽
Материалы:803 530 ₽
Дни:20
stdClass Object
(
[id] => 136
[attribute_id] => 19
[name] => Планкен
[material_modifier] => 1
[work_modifier] => 1
[options] => Array
(
[0] => Сосна
[1] => Ель
[2] => Лиственница
)
[days] => [20,20,20]
[material_price] => [3194,2862,5154]
[work_price] => [1537,1354,1735]
[image] => https://akademik-stroy.ru/wp-content/uploads/materials/planken.jpg
[area_modifier] => 213
[parent_name] => Наружная отделка фасада
[parent_id] => 19
[material_sum] => 857206
[work_sum] => 343750
[total_sum] => 1200956
[total_days] => 20
[display_material_sum] => 857 206
[display_work_sum] => 343 750
[display_total_sum] => 1 200 956
)
1
1 200 956₽
Работа:343 750 ₽
Материалы:857 206 ₽
Дни:20
stdClass Object
(
[id] => 137
[attribute_id] => 19
[name] => Штукатурка
[material_modifier] => 1
[work_modifier] => 1
[options] => Array
(
[0] => Цементно-песчаная (минеральная)
[1] => Мокрый фасад
)
[days] => [35,35]
[material_price] => [2231,3938]
[work_price] => [1202,2422]
[image] => https://akademik-stroy.ru/wp-content/uploads/materials/shtukaturka.jpg
[area_modifier] => 213
[parent_name] => Наружная отделка фасада
[parent_id] => 19
[material_sum] => 598756
[work_sum] => 268827
[total_sum] => 867583
[total_days] => 35
[display_material_sum] => 598 756
[display_work_sum] => 268 827
[display_total_sum] => 867 583
)
1
867 583₽
Работа:268 827 ₽
Материалы:598 756 ₽
Дни:35
stdClass Object
(
[id] => 138
[attribute_id] => 19
[name] => Облицовочный кирпич
[material_modifier] => 1
[work_modifier] => 1
[options] => Array
(
[0] => Керамический
[1] => Клинкерный
[2] => Ручной формовки
[3] => Гиперпрессованный
[4] => Силикатный кирпич
)
[days] => [45,45,45,45,45]
[material_price] => [8174,9148,1040,1257,5876]
[work_price] => [3240,3758,4536,4017,3369]
[image] => https://akademik-stroy.ru/wp-content/uploads/materials/oblicovochnyj-kirpich.jpg
[area_modifier] => 213
[parent_name] => Наружная отделка фасада
[parent_id] => 19
[material_sum] => 2193738
[work_sum] => 724626
[total_sum] => 2918364
[total_days] => 45
[display_material_sum] => 2 193 738
[display_work_sum] => 724 626
[display_total_sum] => 2 918 364
)
1
2 918 364₽
Работа:724 626 ₽
Материалы:2 193 738 ₽
Дни:45
stdClass Object
(
[id] => 139
[attribute_id] => 19
[name] => Фасадная плитка
[material_modifier] => 1
[work_modifier] => 1
[options] => Array
(
[0] => Клинкерная
[1] => Керамическая
[2] => Плитка ручной формовки
)
[days] => [40,40,40]
[material_price] => [2974,1487,3470]
[work_price] => [3007,2592,3629]
[image] => https://akademik-stroy.ru/wp-content/uploads/materials/fasadnaya-plitka.jpg
[area_modifier] => 213
[parent_name] => Наружная отделка фасада
[parent_id] => 19
[material_sum] => 798162
[work_sum] => 672516
[total_sum] => 1470678
[total_days] => 40
[display_material_sum] => 798 162
[display_work_sum] => 672 516
[display_total_sum] => 1 470 678
)
1
1 470 678₽
Работа:672 516 ₽
Материалы:798 162 ₽
Дни:40
stdClass Object
(
[id] => 140
[attribute_id] => 19
[name] => Сайдинг
[material_modifier] => 1
[work_modifier] => 1
[options] => Array
(
[0] => Виниловый
[1] => Металлический
[2] => Фиброцементный
)
[days] => [20,20,20]
[material_price] => [1263,1944,4147]
[work_price] => [1263,1944,2074]
[image] => https://akademik-stroy.ru/wp-content/uploads/materials/sajding.jpg
[area_modifier] => 213
[parent_name] => Наружная отделка фасада
[parent_id] => 19
[material_sum] => 338964
[work_sum] => 282470
[total_sum] => 621434
[total_days] => 20
[display_material_sum] => 338 964
[display_work_sum] => 282 470
[display_total_sum] => 621 434
)
1
621 434₽
Работа:282 470 ₽
Материалы:338 964 ₽
Дни:20
stdClass Object
(
[id] => 141
[attribute_id] => 19
[name] => Камень
[material_modifier] => 1
[work_modifier] => 1
[options] => Array
(
[0] => Травертин
[1] => Дагестанский
[2] => Искусственный
[3] => Натуральный
[4] => Керамогранит
)
[days] => [45,45,45,45,45]
[material_price] => [4536,3888,2592,3240,2462]
[work_price] => [3240,3240,2462,3110,1944]
[image] => https://akademik-stroy.ru/wp-content/uploads/materials/kamen-1.jpg
[area_modifier] => 213
[parent_name] => Наружная отделка фасада
[parent_id] => 19
[material_sum] => 1217372
[work_sum] => 724626
[total_sum] => 1941998
[total_days] => 45
[display_material_sum] => 1 217 372
[display_work_sum] => 724 626
[display_total_sum] => 1 941 998
)
1
1 941 998₽
Работа:724 626 ₽
Материалы:1 217 372 ₽
Дни:45
stdClass Object
(
[id] => 142
[attribute_id] => 19
[name] => Термопанели
[material_modifier] => 1
[work_modifier] => 1
[options] => Array
(
)
[days] => [20]
[material_price] => [6221]
[work_price] => [2333]
[image] => https://akademik-stroy.ru/wp-content/uploads/materials/termo.png
[area_modifier] => 213
[parent_name] => Наружная отделка фасада
[parent_id] => 19
[material_sum] => 1669592
[work_sum] => 521775
[total_sum] => 2191367
[total_days] => 20
[display_material_sum] => 1 669 592
[display_work_sum] => 521 775
[display_total_sum] => 2 191 367
)
1
2 191 367₽
Работа:521 775 ₽
Материалы:1 669 592 ₽
Дни:20
stdClass Object
(
[id] => 143
[attribute_id] => 19
[name] => Плитка HAUBERK
[material_modifier] => 1
[work_modifier] => 1
[options] => Array
(
)
[days] => [20]
[material_price] => [2786]
[work_price] => [1944]
[image] => https://akademik-stroy.ru/wp-content/uploads/materials/hauberk.jpg
[area_modifier] => 213
[parent_name] => Наружная отделка фасада
[parent_id] => 19
[material_sum] => 747707
[work_sum] => 434776
[total_sum] => 1182483
[total_days] => 20
[display_material_sum] => 747 707
[display_work_sum] => 434 776
[display_total_sum] => 1 182 483
)
1
1 182 483₽
Работа:434 776 ₽
Материалы:747 707 ₽
Дни:20
stdClass Object
(
[id] => 144
[attribute_id] => 19
[name] => Фальцевый фасад
[material_modifier] => 1
[work_modifier] => 1
[options] => Array
(
)
[days] => [20]
[material_price] => [3240]
[work_price] => [2592]
[image] => https://akademik-stroy.ru/wp-content/uploads/materials/falcevyj-fasad.jpg
[area_modifier] => 213
[parent_name] => Наружная отделка фасада
[parent_id] => 19
[material_sum] => 869551
[work_sum] => 579701
[total_sum] => 1449252
[total_days] => 20
[display_material_sum] => 869 551
[display_work_sum] => 579 701
[display_total_sum] => 1 449 252
)
1
1 449 252₽
Работа:579 701 ₽
Материалы:869 551 ₽
Дни:20
stdClass Object
(
[id] => 145
[attribute_id] => 19
[name] => Комбинированный
[material_modifier] => 1
[work_modifier] => 1
[options] => Array
(
)
[days] => [20]
[material_price] => [4629]
[work_price] => [3499]
[image] => https://akademik-stroy.ru/wp-content/uploads/materials/Kombinirovannyj.jpg
[area_modifier] => 213
[parent_name] => Наружная отделка фасада
[parent_id] => 19
[material_sum] => 1242331
[work_sum] => 782551
[total_sum] => 2024882
[total_days] => 20
[display_material_sum] => 1 242 331
[display_work_sum] => 782 551
[display_total_sum] => 2 024 882
)
1
2 024 882₽
Работа:782 551 ₽
Материалы:1 242 331 ₽
Дни:20
stdClass Object
(
[id] => 257
[attribute_id] => 19
[name] => Японские фиброцементные
[material_modifier] => 1
[work_modifier] => 1
[options] => Array
(
)
[days] => [20]
[material_price] => [7043]
[work_price] => [2993]
[image] => https://akademik-stroy.ru/wp-content/uploads/materials/paneli.jpg
[area_modifier] => 213
[parent_name] => Наружная отделка фасада
[parent_id] => 19
[material_sum] => 1890200
[work_sum] => 669384
[total_sum] => 2559584
[total_days] => 20
[display_material_sum] => 1 890 200
[display_work_sum] => 669 384
[display_total_sum] => 2 559 584
)
1
2 559 584₽
Работа:669 384 ₽
Материалы:1 890 200 ₽
Дни:20
stdClass Object
(
[id] => 258
[attribute_id] => 19
[name] => Панели Каньон
[material_modifier] => 1
[work_modifier] => 1
[options] => Array
(
)
[days] => [20]
[material_price] => [4543]
[work_price] => [2592]
[image] => https://akademik-stroy.ru/wp-content/uploads/materials/kanon.png
[area_modifier] => 213
[parent_name] => Наружная отделка фасада
[parent_id] => 19
[material_sum] => 1219250
[work_sum] => 579701
[total_sum] => 1798951
[total_days] => 20
[display_material_sum] => 1 219 250
[display_work_sum] => 579 701
[display_total_sum] => 1 798 951
)
1
1 798 951₽
Работа:579 701 ₽
Материалы:1 219 250 ₽
Дни:20
stdClass Object
(
[id] => 39
[attribute_id] => 20
[name] => Нет
[material_modifier] => 1
[work_modifier] => 1
[options] => Array
(
)
[days] => [0]
[material_price] => [0]
[work_price] => [0]
[image] => https://akademik-stroy.ru/wp-content/uploads/materials/terrasy.jpg
[area_modifier] => 30
[parent_name] => Террасы, крыльца, навесы
[parent_id] => 20
[material_sum] => 0
[work_sum] => 0
[total_sum] => 0
[total_days] => 0
[display_material_sum] => 0
[display_work_sum] => 0
[display_total_sum] => 0
)
1
0₽
Работа:0 ₽
Материалы:0 ₽
Дни:0
stdClass Object
(
[id] => 40
[attribute_id] => 20
[name] => Есть
[material_modifier] => 1
[work_modifier] => 1
[options] => Array
(
)
[days] => [5]
[material_price] => [10450]
[work_price] => [1950]
[image] => https://akademik-stroy.ru/wp-content/uploads/materials/terrasy.jpg
[area_modifier] => 30
[parent_name] => Террасы, крыльца, навесы
[parent_id] => 20
[material_sum] => 395010
[work_sum] => 61425
[total_sum] => 456435
[total_days] => 5
[display_material_sum] => 395 010
[display_work_sum] => 61 425
[display_total_sum] => 456 435
)
1
456 435₽
Работа:61 425 ₽
Материалы:395 010 ₽
Дни:5
stdClass Object
(
[id] => 41
[attribute_id] => 21
[name] => Нет
[material_modifier] => 1
[work_modifier] => 1
[options] => Array
(
)
[days] => [0]
[material_price] => [0]
[work_price] => [0]
[image] => https://akademik-stroy.ru/wp-content/uploads/materials/balkony.jpg
[area_modifier] => 30
[parent_name] => Балконы
[parent_id] => 21
[material_sum] => 0
[work_sum] => 0
[total_sum] => 0
[total_days] => 0
[display_material_sum] => 0
[display_work_sum] => 0
[display_total_sum] => 0
)
1
0₽
Работа:0 ₽
Материалы:0 ₽
Дни:0
stdClass Object
(
[id] => 42
[attribute_id] => 21
[name] => Есть
[material_modifier] => 1
[work_modifier] => 1
[options] => Array
(
)
[days] => [12]
[material_price] => [3600]
[work_price] => [1950]
[image] => https://akademik-stroy.ru/wp-content/uploads/materials/balkony.jpg
[area_modifier] => 30
[parent_name] => Балконы
[parent_id] => 21
[material_sum] => 136080
[work_sum] => 61425
[total_sum] => 197505
[total_days] => 12
[display_material_sum] => 136 080
[display_work_sum] => 61 425
[display_total_sum] => 197 505
)
1
197 505₽
Работа:61 425 ₽
Материалы:136 080 ₽
Дни:12
stdClass Object
(
[id] => 43
[attribute_id] => 22
[name] => Нет
[material_modifier] => 1
[work_modifier] => 1
[options] => Array
(
)
[days] => [0]
[material_price] => [0]
[work_price] => [0]
[image] => https://akademik-stroy.ru/wp-content/uploads/materials/uteplennaya.jpg
[area_modifier] => 213
[parent_name] => Отмостка
[parent_id] => 22
[material_sum] => 0
[work_sum] => 0
[total_sum] => 0
[total_days] => 0
[display_material_sum] => 0
[display_work_sum] => 0
[display_total_sum] => 0
)
1
0₽
Работа:0 ₽
Материалы:0 ₽
Дни:0
stdClass Object
(
[id] => 44
[attribute_id] => 22
[name] => Утепленная отмостка
[material_modifier] => 1
[work_modifier] => 1
[options] => Array
(
)
[days] => [15]
[material_price] => [2550]
[work_price] => [1750]
[image] => https://akademik-stroy.ru/wp-content/uploads/materials/uteplennaya.jpg
[area_modifier] => 213
[parent_name] => Отмостка
[parent_id] => 22
[material_sum] => 684369
[work_sum] => 391388
[total_sum] => 1075757
[total_days] => 15
[display_material_sum] => 684 369
[display_work_sum] => 391 388
[display_total_sum] => 1 075 757
)
1
1 075 757₽
Работа:391 388 ₽
Материалы:684 369 ₽
Дни:15
stdClass Object
(
[id] => 146
[attribute_id] => 22
[name] => Не утепленная отмостка
[material_modifier] => 1
[work_modifier] => 1
[options] => Array
(
)
[days] => [10]
[material_price] => [1650]
[work_price] => [1450]
[image] => https://akademik-stroy.ru/wp-content/uploads/materials/ne-uteplennaya.jpg
[area_modifier] => 213
[parent_name] => Отмостка
[parent_id] => 22
[material_sum] => 442827
[work_sum] => 324293
[total_sum] => 767120
[total_days] => 10
[display_material_sum] => 442 827
[display_work_sum] => 324 293
[display_total_sum] => 767 120
)
1
767 120₽
Работа:324 293 ₽
Материалы:442 827 ₽
Дни:10
stdClass Object
(
[id] => 45
[attribute_id] => 23
[name] => Нет
[material_modifier] => 1
[work_modifier] => 1
[options] => Array
(
)
[days] => [0]
[material_price] => [0]
[work_price] => [0]
[image] => https://akademik-stroy.ru/wp-content/uploads/materials/drenazh-2.jpg
[area_modifier] => 213
[parent_name] => Дренаж вокруг дома
[parent_id] => 23
[material_sum] => 0
[work_sum] => 0
[total_sum] => 0
[total_days] => 0
[display_material_sum] => 0
[display_work_sum] => 0
[display_total_sum] => 0
)
1
0₽
Работа:0 ₽
Материалы:0 ₽
Дни:0
stdClass Object
(
[id] => 46
[attribute_id] => 23
[name] => Есть
[material_modifier] => 1
[work_modifier] => 1
[options] => Array
(
)
[days] => [5]
[material_price] => [2366]
[work_price] => [1911]
[image] => https://akademik-stroy.ru/wp-content/uploads/materials/drenazh-2.jpg
[area_modifier] => 213
[parent_name] => Дренаж вокруг дома
[parent_id] => 23
[material_sum] => 634987
[work_sum] => 427395
[total_sum] => 1062382
[total_days] => 5
[display_material_sum] => 634 987
[display_work_sum] => 427 395
[display_total_sum] => 1 062 382
)
1
1 062 382₽
Работа:427 395 ₽
Материалы:634 987 ₽
Дни:5
stdClass Object
(
[id] => 47
[attribute_id] => 24
[name] => Нет
[material_modifier] => 1
[work_modifier] => 1
[options] => Array
(
)
[days] => [0]
[material_price] => [0]
[work_price] => [0]
[image] => https://akademik-stroy.ru/wp-content/uploads/materials/septik.jpg
[area_modifier] => 1
[parent_name] => Автономная канализация (септики)
[parent_id] => 24
[material_sum] => 0
[work_sum] => 0
[total_sum] => 0
[total_days] => 0
[display_material_sum] => 0
[display_work_sum] => 0
[display_total_sum] => 0
)
1
0₽
Работа:0 ₽
Материалы:0 ₽
Дни:0
stdClass Object
(
[id] => 48
[attribute_id] => 24
[name] => Есть
[material_modifier] => 1
[work_modifier] => 1
[options] => Array
(
[0] => Для дачи на 4 человека
[1] => Для дома на 5 человек
[2] => Для дома на 6 человек
[3] => Для дома на 7 человек
[4] => Для дома на 10 человек
)
[days] => [7,7,7,8,8]
[material_price] => [196340,220500,240940,264200,293340]
[work_price] => [50000,55000,60500,66550,73206]
[image] => https://akademik-stroy.ru/wp-content/uploads/materials/septik.jpg
[area_modifier] => 1
[parent_name] => Автономная канализация (септики)
[parent_id] => 24
[material_sum] => 247388
[work_sum] => 52500
[total_sum] => 299888
[total_days] => 7
[display_material_sum] => 247 388
[display_work_sum] => 52 500
[display_total_sum] => 299 888
)
1
299 888₽
Работа:52 500 ₽
Материалы:247 388 ₽
Дни:7
stdClass Object
(
[id] => 49
[attribute_id] => 25
[name] => Нет
[material_modifier] => 1
[work_modifier] => 1
[options] => Array
(
)
[days] => [0]
[material_price] => [0]
[work_price] => [0]
[image] => https://akademik-stroy.ru/wp-content/uploads/materials/gkl.jpg
[area_modifier] => 213
[parent_name] => Внутренние (не несущие) перегородки
[parent_id] => 25
[material_sum] => 0
[work_sum] => 0
[total_sum] => 0
[total_days] => 0
[display_material_sum] => 0
[display_work_sum] => 0
[display_total_sum] => 0
)
1
0₽
Работа:0 ₽
Материалы:0 ₽
Дни:0
stdClass Object
(
[id] => 147
[attribute_id] => 25
[name] => Каркасно-обшивные
[material_modifier] => 1
[work_modifier] => 1
[options] => Array
(
[0] => 75 мм (без шумоизоляции)
[1] => 75 мм (с шумоизоляцией)
)
[days] => [11,11]
[material_price] => [580,970]
[work_price] => [380,570]
[image] => https://akademik-stroy.ru/wp-content/uploads/materials/gkl.jpg
[area_modifier] => 213
[parent_name] => Внутренние (не несущие) перегородки
[parent_id] => 25
[material_sum] => 155660
[work_sum] => 84987
[total_sum] => 240647
[total_days] => 11
[display_material_sum] => 155 660
[display_work_sum] => 84 987
[display_total_sum] => 240 647
)
1
240 647₽
Работа:84 987 ₽
Материалы:155 660 ₽
Дни:11
stdClass Object
(
[id] => 148
[attribute_id] => 25
[name] => Пазогребневые
[material_modifier] => 1
[work_modifier] => 1
[options] => Array
(
[0] => 80 мм
[1] => 100 мм
)
[days] => [5,5]
[material_price] => [1022,1313]
[work_price] => [600,700]
[image] => https://akademik-stroy.ru/wp-content/uploads/materials/pazogrebnevye-bloki.jpg
[area_modifier] => 213
[parent_name] => Внутренние (не несущие) перегородки
[parent_id] => 25
[material_sum] => 274284
[work_sum] => 134190
[total_sum] => 408474
[total_days] => 5
[display_material_sum] => 274 284
[display_work_sum] => 134 190
[display_total_sum] => 408 474
)
1
408 474₽
Работа:134 190 ₽
Материалы:274 284 ₽
Дни:5
stdClass Object
(
[id] => 149
[attribute_id] => 25
[name] => Газобетонные
[material_modifier] => 1
[work_modifier] => 1
[options] => Array
(
[0] => 100 мм
[1] => 200 мм
)
[days] => [11,11]
[material_price] => [1160,1920]
[work_price] => [700,900]
[image] => https://akademik-stroy.ru/wp-content/uploads/materials/gazobeton-2.jpg
[area_modifier] => 213
[parent_name] => Внутренние (не несущие) перегородки
[parent_id] => 25
[material_sum] => 311321
[work_sum] => 156555
[total_sum] => 467876
[total_days] => 11
[display_material_sum] => 311 321
[display_work_sum] => 156 555
[display_total_sum] => 467 876
)
1
467 876₽
Работа:156 555 ₽
Материалы:311 321 ₽
Дни:11
stdClass Object
(
[id] => 150
[attribute_id] => 25
[name] => Кирпичные
[material_modifier] => 1
[work_modifier] => 1
[options] => Array
(
[0] => 120 мм
[1] => 250 мм
[2] => 360 мм
)
[days] => [7,7,7]
[material_price] => [1785,3570,5355]
[work_price] => [900,1600,1800]
[image] => https://akademik-stroy.ru/wp-content/uploads/materials/kirpich-1.jpg
[area_modifier] => 213
[parent_name] => Внутренние (не несущие) перегородки
[parent_id] => 25
[material_sum] => 479058
[work_sum] => 201285
[total_sum] => 680343
[total_days] => 7
[display_material_sum] => 479 058
[display_work_sum] => 201 285
[display_total_sum] => 680 343
)
1
680 343₽
Работа:201 285 ₽
Материалы:479 058 ₽
Дни:7
stdClass Object
(
[id] => 55
[attribute_id] => 28
[name] => Нет
[material_modifier] => 1
[work_modifier] => 1
[options] => Array
(
)
[days] => [0]
[material_price] => [0]
[work_price] => [0]
[image] => https://akademik-stroy.ru/wp-content/uploads/materials/ehlektrika.jpg
[area_modifier] => 172.85
[parent_name] => Электрика
[parent_id] => 28
[material_sum] => 0
[work_sum] => 0
[total_sum] => 0
[total_days] => 0
[display_material_sum] => 0
[display_work_sum] => 0
[display_total_sum] => 0
)
1
0₽
Работа:0 ₽
Материалы:0 ₽
Дни:0
stdClass Object
(
[id] => 56
[attribute_id] => 28
[name] => Есть
[material_modifier] => 1
[work_modifier] => 1
[options] => Array
(
)
[days] => [10]
[material_price] => [650]
[work_price] => [950]
[image] => https://akademik-stroy.ru/wp-content/uploads/materials/ehlektrika.jpg
[area_modifier] => 172.85
[parent_name] => Электрика
[parent_id] => 28
[material_sum] => 141564
[work_sum] => 172418
[total_sum] => 313982
[total_days] => 10
[display_material_sum] => 141 564
[display_work_sum] => 172 418
[display_total_sum] => 313 982
)
1
313 982₽
Работа:172 418 ₽
Материалы:141 564 ₽
Дни:10
stdClass Object
(
[id] => 57
[attribute_id] => 29
[name] => Нет
[material_modifier] => 1
[work_modifier] => 1
[options] => Array
(
)
[days] => [0]
[material_price] => [0]
[work_price] => [0]
[image] => https://akademik-stroy.ru/wp-content/uploads/materials/santekhnika-kanalizaciya-1.jpg
[area_modifier] => 172.85
[parent_name] => Сантехника, канализация в доме
[parent_id] => 29
[material_sum] => 0
[work_sum] => 0
[total_sum] => 0
[total_days] => 0
[display_material_sum] => 0
[display_work_sum] => 0
[display_total_sum] => 0
)
1
0₽
Работа:0 ₽
Материалы:0 ₽
Дни:0
stdClass Object
(
[id] => 58
[attribute_id] => 29
[name] => Есть
[material_modifier] => 1
[work_modifier] => 1
[options] => Array
(
)
[days] => [10]
[material_price] => [600]
[work_price] => [730]
[image] => https://akademik-stroy.ru/wp-content/uploads/materials/santekhnika-kanalizaciya-1.jpg
[area_modifier] => 172.85
[parent_name] => Сантехника, канализация в доме
[parent_id] => 29
[material_sum] => 130675
[work_sum] => 132490
[total_sum] => 263165
[total_days] => 10
[display_material_sum] => 130 675
[display_work_sum] => 132 490
[display_total_sum] => 263 165
)
1
263 165₽
Работа:132 490 ₽
Материалы:130 675 ₽
Дни:10
stdClass Object
(
[id] => 59
[attribute_id] => 30
[name] => Нет
[material_modifier] => 1
[work_modifier] => 1
[options] => Array
(
)
[days] => [0]
[material_price] => [0]
[work_price] => [0]
[image] => https://akademik-stroy.ru/wp-content/uploads/materials/otoplenie-1.jpg
[area_modifier] => 172.85
[parent_name] => Отопление
[parent_id] => 30
[material_sum] => 0
[work_sum] => 0
[total_sum] => 0
[total_days] => 0
[display_material_sum] => 0
[display_work_sum] => 0
[display_total_sum] => 0
)
1
0₽
Работа:0 ₽
Материалы:0 ₽
Дни:0
stdClass Object
(
[id] => 60
[attribute_id] => 30
[name] => Есть
[material_modifier] => 1
[work_modifier] => 1
[options] => Array
(
)
[days] => [5]
[material_price] => [610]
[work_price] => [560]
[image] => https://akademik-stroy.ru/wp-content/uploads/materials/otoplenie-1.jpg
[area_modifier] => 172.85
[parent_name] => Отопление
[parent_id] => 30
[material_sum] => 132853
[work_sum] => 101636
[total_sum] => 234489
[total_days] => 5
[display_material_sum] => 132 853
[display_work_sum] => 101 636
[display_total_sum] => 234 489
)
1
234 489₽
Работа:101 636 ₽
Материалы:132 853 ₽
Дни:5
stdClass Object
(
[id] => 61
[attribute_id] => 31
[name] => Нет
[material_modifier] => 1
[work_modifier] => 1
[options] => Array
(
)
[days] => [0]
[material_price] => [0]
[work_price] => [0]
[image] => https://akademik-stroy.ru/wp-content/uploads/materials/vodyanye.jpg
[area_modifier] => 30
[parent_name] => Теплые полы
[parent_id] => 31
[material_sum] => 0
[work_sum] => 0
[total_sum] => 0
[total_days] => 0
[display_material_sum] => 0
[display_work_sum] => 0
[display_total_sum] => 0
)
1
0₽
Работа:0 ₽
Материалы:0 ₽
Дни:0
stdClass Object
(
[id] => 151
[attribute_id] => 31
[name] => Водяные
[material_modifier] => 1
[work_modifier] => 1
[options] => Array
(
)
[days] => [9]
[material_price] => [10200]
[work_price] => [2500]
[image] => https://akademik-stroy.ru/wp-content/uploads/materials/vodyanye.jpg
[area_modifier] => 30
[parent_name] => Теплые полы
[parent_id] => 31
[material_sum] => 385560
[work_sum] => 78750
[total_sum] => 464310
[total_days] => 9
[display_material_sum] => 385 560
[display_work_sum] => 78 750
[display_total_sum] => 464 310
)
1
464 310₽
Работа:78 750 ₽
Материалы:385 560 ₽
Дни:9
stdClass Object
(
[id] => 152
[attribute_id] => 31
[name] => Электро
[material_modifier] => 1
[work_modifier] => 1
[options] => Array
(
)
[days] => [5]
[material_price] => [6300]
[work_price] => [1500]
[image] => https://akademik-stroy.ru/wp-content/uploads/materials/ehlektricheskij.jpg
[area_modifier] => 30
[parent_name] => Теплые полы
[parent_id] => 31
[material_sum] => 238140
[work_sum] => 47250
[total_sum] => 285390
[total_days] => 5
[display_material_sum] => 238 140
[display_work_sum] => 47 250
[display_total_sum] => 285 390
)
1
285 390₽
Работа:47 250 ₽
Материалы:238 140 ₽
Дни:5
stdClass Object
(
[id] => 63
[attribute_id] => 32
[name] => Нет
[material_modifier] => 1
[work_modifier] => 1
[options] => Array
(
)
[days] => [0]
[material_price] => [0]
[work_price] => [0]
[image] => https://akademik-stroy.ru/wp-content/uploads/materials/shtukaturka-shpatlevka-1.jpg
[area_modifier] => 172.85
[parent_name] => Черновая отделка стен
[parent_id] => 32
[material_sum] => 0
[work_sum] => 0
[total_sum] => 0
[total_days] => 0
[display_material_sum] => 0
[display_work_sum] => 0
[display_total_sum] => 0
)
1
0₽
Работа:0 ₽
Материалы:0 ₽
Дни:0
stdClass Object
(
[id] => 153
[attribute_id] => 32
[name] => Штукатурка и шпатлевка
[material_modifier] => 1
[work_modifier] => 1
[options] => Array
(
)
[days] => [20]
[material_price] => [1850]
[work_price] => [2600]
[image] => https://akademik-stroy.ru/wp-content/uploads/materials/shtukaturka-shpatlevka-1.jpg
[area_modifier] => 172.85
[parent_name] => Черновая отделка стен
[parent_id] => 32
[material_sum] => 402913
[work_sum] => 471881
[total_sum] => 874794
[total_days] => 20
[display_material_sum] => 402 913
[display_work_sum] => 471 881
[display_total_sum] => 874 794
)
1
874 794₽
Работа:471 881 ₽
Материалы:402 913 ₽
Дни:20
stdClass Object
(
[id] => 154
[attribute_id] => 32
[name] => Гипсокортон на стены
[material_modifier] => 1
[work_modifier] => 1
[options] => Array
(
)
[days] => [15]
[material_price] => [950]
[work_price] => [2100]
[image] => https://akademik-stroy.ru/wp-content/uploads/materials/gkl-1.jpg
[area_modifier] => 172.85
[parent_name] => Черновая отделка стен
[parent_id] => 32
[material_sum] => 206901
[work_sum] => 381134
[total_sum] => 588035
[total_days] => 15
[display_material_sum] => 206 901
[display_work_sum] => 381 134
[display_total_sum] => 588 035
)
1
588 035₽
Работа:381 134 ₽
Материалы:206 901 ₽
Дни:15
stdClass Object
(
[id] => 155
[attribute_id] => 32
[name] => Вагонка
[material_modifier] => 1
[work_modifier] => 1
[options] => Array
(
)
[days] => [15]
[material_price] => [1250]
[work_price] => [950]
[image] => https://akademik-stroy.ru/wp-content/uploads/materials/vagonka.jpg
[area_modifier] => 172.85
[parent_name] => Черновая отделка стен
[parent_id] => 32
[material_sum] => 272239
[work_sum] => 172418
[total_sum] => 444657
[total_days] => 15
[display_material_sum] => 272 239
[display_work_sum] => 172 418
[display_total_sum] => 444 657
)
1
444 657₽
Работа:172 418 ₽
Материалы:272 239 ₽
Дни:15
stdClass Object
(
[id] => 65
[attribute_id] => 33
[name] => Нет
[material_modifier] => 1
[work_modifier] => 1
[options] => Array
(
)
[days] => [0]
[material_price] => [0]
[work_price] => [0]
[image] => https://akademik-stroy.ru/wp-content/uploads/materials/styazhka.jpg
[area_modifier] => 172.85
[parent_name] => Черновая отделка полов
[parent_id] => 33
[material_sum] => 0
[work_sum] => 0
[total_sum] => 0
[total_days] => 0
[display_material_sum] => 0
[display_work_sum] => 0
[display_total_sum] => 0
)
1
0₽
Работа:0 ₽
Материалы:0 ₽
Дни:0
stdClass Object
(
[id] => 156
[attribute_id] => 33
[name] => Стяжка + наливные полы
[material_modifier] => 1
[work_modifier] => 1
[options] => Array
(
)
[days] => [10]
[material_price] => [1000]
[work_price] => [900]
[image] => https://akademik-stroy.ru/wp-content/uploads/materials/styazhka.jpg
[area_modifier] => 172.85
[parent_name] => Черновая отделка полов
[parent_id] => 33
[material_sum] => 217791
[work_sum] => 163343
[total_sum] => 381134
[total_days] => 10
[display_material_sum] => 217 791
[display_work_sum] => 163 343
[display_total_sum] => 381 134
)
1
381 134₽
Работа:163 343 ₽
Материалы:217 791 ₽
Дни:10
stdClass Object
(
[id] => 157
[attribute_id] => 33
[name] => ОСБ на пол
[material_modifier] => 1
[work_modifier] => 1
[options] => Array
(
)
[days] => [7]
[material_price] => [580]
[work_price] => [350]
[image] => https://akademik-stroy.ru/wp-content/uploads/materials/osb-1.jpg
[area_modifier] => 172.85
[parent_name] => Черновая отделка полов
[parent_id] => 33
[material_sum] => 126319
[work_sum] => 63522
[total_sum] => 189841
[total_days] => 7
[display_material_sum] => 126 319
[display_work_sum] => 63 522
[display_total_sum] => 189 841
)
1
189 841₽
Работа:63 522 ₽
Материалы:126 319 ₽
Дни:7
stdClass Object
(
[id] => 67
[attribute_id] => 34
[name] => Нет
[material_modifier] => 1
[work_modifier] => 1
[options] => Array
(
)
[days] => [0]
[material_price] => [0]
[work_price] => [0]
[image] => https://akademik-stroy.ru/wp-content/uploads/materials/chistovaya-otdelka.jpg
[area_modifier] => 172.85
[parent_name] => Чистовая отделка стен и полов
[parent_id] => 34
[material_sum] => 0
[work_sum] => 0
[total_sum] => 0
[total_days] => 0
[display_material_sum] => 0
[display_work_sum] => 0
[display_total_sum] => 0
)
1
0₽
Работа:0 ₽
Материалы:0 ₽
Дни:0
stdClass Object
(
[id] => 68
[attribute_id] => 34
[name] => Есть
[material_modifier] => 1
[work_modifier] => 1
[options] => Array
(
)
[days] => [50]
[material_price] => [6000]
[work_price] => [3500]
[image] => https://akademik-stroy.ru/wp-content/uploads/materials/chistovaya-otdelka.jpg
[area_modifier] => 172.85
[parent_name] => Чистовая отделка стен и полов
[parent_id] => 34
[material_sum] => 1306746
[work_sum] => 635224
[total_sum] => 1941970
[total_days] => 50
[display_material_sum] => 1 306 746
[display_work_sum] => 635 224
[display_total_sum] => 1 941 970
)
1
1 941 970₽
Работа:635 224 ₽
Материалы:1 306 746 ₽
Дни:50
stdClass Object
(
[id] => 69
[attribute_id] => 35
[name] => Нет
[material_modifier] => 1
[work_modifier] => 1
[options] => Array
(
)
[days] => [0]
[material_price] => [0]
[work_price] => [0]
[image] => https://akademik-stroy.ru/wp-content/uploads/materials/mnogourovnevyj-gkl.jpg
[area_modifier] => 172.85
[parent_name] => Отделка потолка
[parent_id] => 35
[material_sum] => 0
[work_sum] => 0
[total_sum] => 0
[total_days] => 0
[display_material_sum] => 0
[display_work_sum] => 0
[display_total_sum] => 0
)
1
0₽
Работа:0 ₽
Материалы:0 ₽
Дни:0
stdClass Object
(
[id] => 70
[attribute_id] => 35
[name] => Есть
[material_modifier] => 1
[work_modifier] => 1
[options] => Array
(
[0] => Многоуровневый потолок из гипсокартона
[1] => Многоуровневый потолок из гипсокартона и натяжного потолка
[2] => Одноуровневый потолок из гипсокартона
[3] => Одноуровневый натяжной потолок
)
[days] => [10,10,1,1]
[material_price] => [900,700,700,600]
[work_price] => [1000,800,500,300]
[image] => https://akademik-stroy.ru/wp-content/uploads/materials/mnogourovnevyj-gkl.jpg
[area_modifier] => 172.85
[parent_name] => Отделка потолка
[parent_id] => 35
[material_sum] => 196012
[work_sum] => 181493
[total_sum] => 377505
[total_days] => 10
[display_material_sum] => 196 012
[display_work_sum] => 181 493
[display_total_sum] => 377 505
)
1
377 505₽
Работа:181 493 ₽
Материалы:196 012 ₽
Дни:10
Преимущества работы с нами
7 этапов оплаты
Независимый строительный надзор
Экологически чистые материалы
16 лет гарантии
Онлайн-кабинет с веб-камерой
Строители с опытом более 15 лет
Собственное производство







