Одноэтажный дом 161.02 м2 за руб.
Планировки
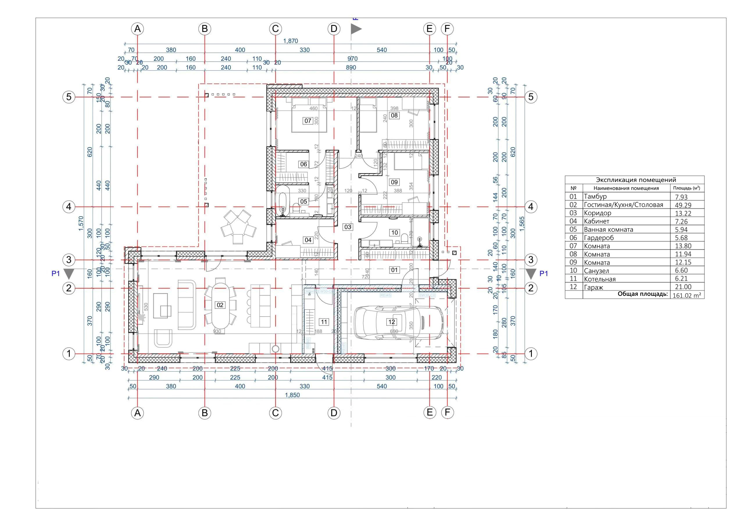
План первого этажа
- 1. Тамбур 7,93 м²
- 2. Гостиная-Кухня-Столовая 49,29 м²
- 3. Коридор 13,22 м²
- 4. Кабинет 7,26 м²
- 5. Ванная комната 5,94 м²
- 6. Гардероб 5,68 м²
- 7. Комната 13,80 м²
- 8. Комната 11,94 м²
- 9. Комната 12,15 м²
- 10. Санузел 6,60 м²
- 11. Котельная 6,21 м²
- 12. Гараж 21,00 м²
- Общая площадь 161,02 м²
Площади дома
| № п/п | Наименование | Ед. из. | Строительная площадь | Полезная площадь |
| 1 | 1 этаж | м2 | 198.42 | 161.02 |
| 2 | Итого | м2 | 198.42 | 161.02 |
154 м2
Полезная
площадь
площадь
1 этаж
Этажей
26 м2
Террасы
и балконы
и балконы
0Без
гаража
гаража
4
Количество
спален
спален
2
Количество
санузлов
санузлов
Калькулятор опций
0₽
В ипотеку от 26 200 ₽/мес.
0₽
0 дней
stdClass Object
(
[id] => 1
[attribute_id] => 1
[name] => Ленточный монолитный ж/б
[material_modifier] => 1
[work_modifier] => 1
[options] => Array
(
[0] => размер 200 х 700 мм
[1] => размер 300 х 900 мм
[2] => размер 400 х 1 000 мм
[3] => размер 500 х 1 100 мм
[4] => размер 600 х 1 200 мм
)
[days] => [20,21,22,25,30]
[material_price] => [2823,3630,4475,5210,12047]
[work_price] => [2154,2826,3731,4577,5293]
[image] => https://akademik-stroy.ru/wp-content/uploads/materials/lentochnyj-monolitnyj-zh-b.jpg
[area_modifier] => 198.42
[parent_name] => Фундамент
[parent_id] => 1
[material_sum] => 739384
[work_sum] => 470136
[total_sum] => 1209520
[total_days] => 20
[display_material_sum] => 739 384
[display_work_sum] => 470 136
[display_total_sum] => 1 209 520
)
1
1 209 520₽
Работа:470 136 ₽
Материалы:739 384 ₽
Дни:20
stdClass Object
(
[id] => 2
[attribute_id] => 1
[name] => Забивные Ж/Б сваи
[material_modifier] => 1
[work_modifier] => 1
[options] => Array
(
[0] => 150х150х3000мм
[1] => 150х150х4000мм
[2] => 200х200х3000мм
[3] => 200х200х4000мм
[4] => 200х200х5000мм
[5] => 200х200х6000мм
)
[days] => [2,2,2,2,2,2]
[material_price] => [1990,2850,3255,4360,5120,6837]
[work_price] => [1002,1185,1336,1438,1574,1839]
[image] => https://akademik-stroy.ru/wp-content/uploads/materials/zabivnye-zh-b-svai.png
[area_modifier] => 198.42
[parent_name] => Фундамент
[parent_id] => 1
[material_sum] => 521210
[work_sum] => 218699
[total_sum] => 739909
[total_days] => 2
[display_material_sum] => 521 210
[display_work_sum] => 218 699
[display_total_sum] => 739 909
)
1
739 909₽
Работа:218 699 ₽
Материалы:521 210 ₽
Дни:2
stdClass Object
(
[id] => 71
[attribute_id] => 1
[name] => Свайно-ростверковый ж/б
[material_modifier] => 1
[work_modifier] => 1
[options] => Array
(
[0] => ростверк 200х300 мм
[1] => ростверк 300х600 мм
[2] => ростверк 400х900 мм
[3] => ростверк 500х1200 мм
)
[days] => [20,23,25,27]
[material_price] => [3018,3474,7109,9792]
[work_price] => [2024,3012,5635,7022]
[image] => https://akademik-stroy.ru/wp-content/uploads/materials/svajno-rostverkovyj-monolitnyj-zh-b-3.png
[area_modifier] => 198.42
[parent_name] => Фундамент
[parent_id] => 1
[material_sum] => 790458
[work_sum] => 441762
[total_sum] => 1232220
[total_days] => 20
[display_material_sum] => 790 458
[display_work_sum] => 441 762
[display_total_sum] => 1 232 220
)
1
1 232 220₽
Работа:441 762 ₽
Материалы:790 458 ₽
Дни:20
stdClass Object
(
[id] => 72
[attribute_id] => 1
[name] => Монолитная ж/б плита
[material_modifier] => 1
[work_modifier] => 1
[options] => Array
(
[0] => 200 мм
[1] => 300 мм
[2] => 400 мм
[3] => 500 мм
[4] => 600 мм
)
[days] => [30,33,35,37,40]
[material_price] => [5348,8555,12788,14388,15189]
[work_price] => [4314,4881,7037,8061,10230]
[image] => https://akademik-stroy.ru/wp-content/uploads/materials/monolitnaya-zhb-plita.png
[area_modifier] => 198.42
[parent_name] => Фундамент
[parent_id] => 1
[material_sum] => 1400718
[work_sum] => 941582
[total_sum] => 2342300
[total_days] => 30
[display_material_sum] => 1 400 718
[display_work_sum] => 941 582
[display_total_sum] => 2 342 300
)
1
2 342 300₽
Работа:941 582 ₽
Материалы:1 400 718 ₽
Дни:30
stdClass Object
(
[id] => 73
[attribute_id] => 1
[name] => Утепленная шведская плита
[material_modifier] => 1
[work_modifier] => 1
[options] => Array
(
[0] => 200 мм
[1] => 300 мм
[2] => 400 мм
[3] => 500 мм
[4] => 600 мм
)
[days] => [32,37,39,42,45]
[material_price] => [10249,12692,13760,14936,16230]
[work_price] => [5960,7337,8072,8878,9765]
[image] => https://akademik-stroy.ru/wp-content/uploads/materials/uteplennaya-shvedskaya-plita.jpg
[area_modifier] => 198.42
[parent_name] => Фундамент
[parent_id] => 1
[material_sum] => 2684361
[work_sum] => 1300842
[total_sum] => 3985203
[total_days] => 32
[display_material_sum] => 2 684 361
[display_work_sum] => 1 300 842
[display_total_sum] => 3 985 203
)
1
3 985 203₽
Работа:1 300 842 ₽
Материалы:2 684 361 ₽
Дни:32
stdClass Object
(
[id] => 75
[attribute_id] => 1
[name] => Ленточный из ФБС
[material_modifier] => 1
[work_modifier] => 1
[options] => Array
(
[0] => толщ. 300 мм
[1] => толщ. 400 мм
[2] => толщ. 500 мм
[3] => толщ. 600 мм
)
[days] => [20,20,20,20]
[material_price] => [3675,4902,6126,7350]
[work_price] => [2451,3264,4083,4902]
[image] => https://akademik-stroy.ru/wp-content/uploads/materials/lentochnyj-iz-fbs.png
[area_modifier] => 198.42
[parent_name] => Фундамент
[parent_id] => 1
[material_sum] => 962535
[work_sum] => 534960
[total_sum] => 1497495
[total_days] => 20
[display_material_sum] => 962 535
[display_work_sum] => 534 960
[display_total_sum] => 1 497 495
)
1
1 497 495₽
Работа:534 960 ₽
Материалы:962 535 ₽
Дни:20
stdClass Object
(
[id] => 76
[attribute_id] => 1
[name] => Цокольный этаж из ФБС
[material_modifier] => 1
[work_modifier] => 1
[options] => Array
(
[0] => толщ. 300 мм
[1] => толщ. 400 мм
[2] => толщ. 500 мм
[3] => толщ. 600 мм
)
[days] => [30,32,34,36]
[material_price] => [20916,23299,26680,29060]
[work_price] => [17524,18700,19873,21046]
[image] => https://akademik-stroy.ru/wp-content/uploads/materials/cokolnyj-ehtazh-iz-fbs.jpg
[area_modifier] => 198.42
[parent_name] => Фундамент
[parent_id] => 1
[material_sum] => 5478202
[work_sum] => 3824823
[total_sum] => 9303025
[total_days] => 30
[display_material_sum] => 5 478 202
[display_work_sum] => 3 824 823
[display_total_sum] => 9 303 025
)
1
9 303 025₽
Работа:3 824 823 ₽
Материалы:5 478 202 ₽
Дни:30
stdClass Object
(
[id] => 77
[attribute_id] => 1
[name] => Цокольный этаж монолитный ж/б
[material_modifier] => 1
[work_modifier] => 1
[options] => Array
(
[0] => толщ. 200 мм
[1] => толщ. 300 мм
[2] => толщ. 400 мм
[3] => толщ. 500 мм
[4] => толщ. 600 мм
)
[days] => [40,42,44,46,48]
[material_price] => [25421,29148,32275,35602,37326]
[work_price] => [20441,21907,23375,24841,26306]
[image] => https://akademik-stroy.ru/wp-content/uploads/materials/cokolnyj-etazh-zh-b.jpg
[area_modifier] => 198.42
[parent_name] => Фундамент
[parent_id] => 1
[material_sum] => 6658126
[work_sum] => 4461494
[total_sum] => 11119620
[total_days] => 40
[display_material_sum] => 6 658 126
[display_work_sum] => 4 461 494
[display_total_sum] => 11 119 620
)
1
11 119 620₽
Работа:4 461 494 ₽
Материалы:6 658 126 ₽
Дни:40
stdClass Object
(
[id] => 191
[attribute_id] => 1
[name] => Винтовые сваи
[material_modifier] => 1
[work_modifier] => 1
[options] => Array
(
[0] => 57х200мм
[1] => 76х250мм
[2] => 108х300мм
[3] => 133х350мм
)
[days] => [1,1,2,2]
[material_price] => [1200,1300,1450,1600]
[work_price] => [400,600,900,1100]
[image] => https://akademik-stroy.ru/wp-content/uploads/materials/vintovye-svai.png
[area_modifier] => 198.42
[parent_name] => Фундамент
[parent_id] => 1
[material_sum] => 314297
[work_sum] => 87305
[total_sum] => 401602
[total_days] => 1
[display_material_sum] => 314 297
[display_work_sum] => 87 305
[display_total_sum] => 401 602
)
1
401 602₽
Работа:87 305 ₽
Материалы:314 297 ₽
Дни:1
stdClass Object
(
[id] => 3
[attribute_id] => 2
[name] => Деревянные балки
[material_modifier] => 1
[work_modifier] => 1
[options] => Array
(
[0] => без утепления
[1] => утепление 200 мм
[2] => утепление 250 мм
[3] => утепление 300 мм
[4] => утепление 350 мм
[5] => утепление 400 мм
[6] => утепление 450 мм
[7] => утепление 500 мм
)
[days] => [8,9,9,9,11,12,13,14]
[material_price] => [1634,2042,2344,2947,3149,3652,3354,3557]
[work_price] => [1230,1339,1393,1426,1460,1513,1587,1620]
[image] => https://akademik-stroy.ru/wp-content/uploads/materials/derevyannye-balki.png
[area_modifier] => 198.42
[parent_name] => Перекрытие цоколя
[parent_id] => 2
[material_sum] => 427968
[work_sum] => 268462
[total_sum] => 696430
[total_days] => 8
[display_material_sum] => 427 968
[display_work_sum] => 268 462
[display_total_sum] => 696 430
)
1
696 430₽
Работа:268 462 ₽
Материалы:427 968 ₽
Дни:8
stdClass Object
(
[id] => 4
[attribute_id] => 2
[name] => Сборные ж/б плиты
[material_modifier] => 1
[work_modifier] => 1
[options] => Array
(
[0] => без утепления
[1] => утепление 150мм
[2] => утепление 200мм
[3] => утепление 250мм
[4] => утепление 300мм
[5] => утепление 350мм
[6] => утепление 400мм
[7] => утепление 450мм
[8] => утепление 500мм
)
[days] => [13,15,15,15,15,15,15,15,15]
[material_price] => [3067,5577,5928,6679,7730,8782,9833,10884,11935]
[work_price] => [1520,1956,2102,2247,2392,2537,2684,2829,2974]
[image] => https://akademik-stroy.ru/wp-content/uploads/materials/sbornye-zh-b-plity-2.jpg
[area_modifier] => 198.42
[parent_name] => Перекрытие цоколя
[parent_id] => 2
[material_sum] => 803291
[work_sum] => 331758
[total_sum] => 1135049
[total_days] => 13
[display_material_sum] => 803 291
[display_work_sum] => 331 758
[display_total_sum] => 1 135 049
)
1
1 135 049₽
Работа:331 758 ₽
Материалы:803 291 ₽
Дни:13
stdClass Object
(
[id] => 78
[attribute_id] => 2
[name] => Монолитная ж/б плита
[material_modifier] => 1
[work_modifier] => 1
[options] => Array
(
[0] => без утепления
[1] => утепление 150 мм
[2] => утепление 200 мм
[3] => утепление 250 мм
[4] => утепление 300 мм
[5] => утепление 350 мм
[6] => утепление 400 мм
[7] => утепление 450 мм
[8] => утепление 500 мм
)
[days] => [18,20,20,20,20,20,20,20,20]
[material_price] => [4837,6572,7224,7375,79426,8177,8728,9180,10031]
[work_price] => [3348,3921,4112,4302,4493,4684,4875,5066,5256]
[image] => https://akademik-stroy.ru/wp-content/uploads/materials/monolitnaya-zh-b-plita-2.jpg
[area_modifier] => 198.42
[parent_name] => Перекрытие цоколя
[parent_id] => 2
[material_sum] => 1266880
[work_sum] => 730741
[total_sum] => 1997621
[total_days] => 18
[display_material_sum] => 1 266 880
[display_work_sum] => 730 741
[display_total_sum] => 1 997 621
)
1
1 997 621₽
Работа:730 741 ₽
Материалы:1 266 880 ₽
Дни:18
stdClass Object
(
[id] => 6
[attribute_id] => 3
[name] => Пеноблок
[material_modifier] => 1
[work_modifier] => 1
[options] => Array
(
[0] => 300 мм
[1] => 400 мм
[2] => 500 мм
[3] => 600 мм
)
[days] => [29,31,34,39]
[material_price] => [3000,4000,4500,4937]
[work_price] => [5033,5805,6400,8710]
[image] => https://akademik-stroy.ru/wp-content/uploads/materials/penoblok.jpg
[area_modifier] => 198.42
[parent_name] => Стены 1 этаж (несущие)
[parent_id] => 3
[material_sum] => 785743
[work_sum] => 1098513
[total_sum] => 1884256
[total_days] => 29
[display_material_sum] => 785 743
[display_work_sum] => 1 098 513
[display_total_sum] => 1 884 256
)
1
1 884 256₽
Работа:1 098 513 ₽
Материалы:785 743 ₽
Дни:29
stdClass Object
(
[id] => 79
[attribute_id] => 3
[name] => Керамический блок
[material_modifier] => 1
[work_modifier] => 1
[options] => Array
(
[0] => 380 мм
[1] => 380 мм Thermo
[2] => 440 мм
[3] => 510 мм
)
[days] => [23,23,24,25]
[material_price] => [4510,5098,6093,8013]
[work_price] => [4737,4937,5903,6958]
[image] => https://akademik-stroy.ru/wp-content/uploads/materials/keramicheskij-blok.jpg
[area_modifier] => 198.42
[parent_name] => Стены 1 этаж (несущие)
[parent_id] => 3
[material_sum] => 1181234
[work_sum] => 1033907
[total_sum] => 2215141
[total_days] => 23
[display_material_sum] => 1 181 234
[display_work_sum] => 1 033 907
[display_total_sum] => 2 215 141
)
1
2 215 141₽
Работа:1 033 907 ₽
Материалы:1 181 234 ₽
Дни:23
stdClass Object
(
[id] => 80
[attribute_id] => 3
[name] => Кирпич
[material_modifier] => 1
[work_modifier] => 1
[options] => Array
(
[0] => Кирпич 250 мм
[1] => Кирпич 380 мм
[2] => Кирпич 510 мм
[3] => Кирпич 640 мм
[4] => Кирпич 770 мм
)
[days] => [30,30,31,33,36]
[material_price] => [5500,7142,9206,10171,12235]
[work_price] => [8736,10041,12018,15240,18462]
[image] => https://akademik-stroy.ru/wp-content/uploads/materials/kirpich.jpg
[area_modifier] => 198.42
[parent_name] => Стены 1 этаж (несущие)
[parent_id] => 3
[material_sum] => 1440529
[work_sum] => 1906737
[total_sum] => 3347266
[total_days] => 30
[display_material_sum] => 1 440 529
[display_work_sum] => 1 906 737
[display_total_sum] => 3 347 266
)
1
3 347 266₽
Работа:1 906 737 ₽
Материалы:1 440 529 ₽
Дни:30
stdClass Object
(
[id] => 81
[attribute_id] => 3
[name] => Монолитные
[material_modifier] => 1
[work_modifier] => 1
[options] => Array
(
[0] => 150 мм
[1] => 200 мм
[2] => 250 мм
[3] => 300 мм
[4] => 350 мм
[5] => 400 мм
)
[days] => [45,46,47,49,50,53]
[material_price] => [6545,7876,10175,12011,13908,15204]
[work_price] => [5106,6444,7698,8552,9807,11461]
[image] => https://akademik-stroy.ru/wp-content/uploads/materials/monolitnye.jpg
[area_modifier] => 198.42
[parent_name] => Стены 1 этаж (несущие)
[parent_id] => 3
[material_sum] => 1714230
[work_sum] => 1114446
[total_sum] => 2828676
[total_days] => 45
[display_material_sum] => 1 714 230
[display_work_sum] => 1 114 446
[display_total_sum] => 2 828 676
)
1
2 828 676₽
Работа:1 114 446 ₽
Материалы:1 714 230 ₽
Дни:45
stdClass Object
(
[id] => 82
[attribute_id] => 3
[name] => Клееный брус
[material_modifier] => 1
[work_modifier] => 1
[options] => Array
(
[0] => 160 мм
[1] => 175 мм
[2] => 200 мм
[3] => 215 мм
[4] => 240 мм
[5] => 270 мм
[6] => 282 мм
)
[days] => [24,28,32,37,40,42,48]
[material_price] => [16975,18773,19950,20545,21599,22159,23275]
[work_price] => [4806,5287,5815,6397,7036,7740,8514]
[image] => https://akademik-stroy.ru/wp-content/uploads/materials/kleenyj-brus.jpg
[area_modifier] => 198.42
[parent_name] => Стены 1 этаж (несущие)
[parent_id] => 3
[material_sum] => 4445997
[work_sum] => 1048967
[total_sum] => 5494964
[total_days] => 24
[display_material_sum] => 4 445 997
[display_work_sum] => 1 048 967
[display_total_sum] => 5 494 964
)
1
5 494 964₽
Работа:1 048 967 ₽
Материалы:4 445 997 ₽
Дни:24
stdClass Object
(
[id] => 83
[attribute_id] => 3
[name] => Каркасные
[material_modifier] => 1
[work_modifier] => 1
[options] => Array
(
[0] => 150 мм
[1] => 200 мм
[2] => 250 мм
[3] => 300 мм
)
[days] => [15,16,17,18]
[material_price] => [2379,2639,2898,3258]
[work_price] => [2418,2686,2985,3716]
[image] => https://akademik-stroy.ru/wp-content/uploads/materials/karkasnye.jpg
[area_modifier] => 198.42
[parent_name] => Стены 1 этаж (несущие)
[parent_id] => 3
[material_sum] => 623094
[work_sum] => 527758
[total_sum] => 1150852
[total_days] => 15
[display_material_sum] => 623 094
[display_work_sum] => 527 758
[display_total_sum] => 1 150 852
)
1
1 150 852₽
Работа:527 758 ₽
Материалы:623 094 ₽
Дни:15
stdClass Object
(
[id] => 84
[attribute_id] => 3
[name] => СИП-панели
[material_modifier] => 1
[work_modifier] => 1
[options] => Array
(
[0] => 120 мм
[1] => 170 мм
[2] => 220 мм
)
[days] => [7,7,7]
[material_price] => [1210,1856,2292]
[work_price] => [1410,1551,1706]
[image] => https://akademik-stroy.ru/wp-content/uploads/materials/sip-paneli.jpg
[area_modifier] => 198.42
[parent_name] => Стены 1 этаж (несущие)
[parent_id] => 3
[material_sum] => 316916
[work_sum] => 307749
[total_sum] => 624665
[total_days] => 7
[display_material_sum] => 316 916
[display_work_sum] => 307 749
[display_total_sum] => 624 665
)
1
624 665₽
Работа:307 749 ₽
Материалы:316 916 ₽
Дни:7
stdClass Object
(
[id] => 85
[attribute_id] => 3
[name] => Сухой брус
[material_modifier] => 1
[work_modifier] => 1
[options] => Array
(
[0] => 150 мм
[1] => 180 мм
[2] => 200 мм
)
[days] => [7,8,9]
[material_price] => [6010,7190,8709]
[work_price] => [3204,3845,4229]
[image] => https://akademik-stroy.ru/wp-content/uploads/materials/suhoj-brus.jpg
[area_modifier] => 198.42
[parent_name] => Стены 1 этаж (несущие)
[parent_id] => 3
[material_sum] => 1574106
[work_sum] => 699311
[total_sum] => 2273417
[total_days] => 7
[display_material_sum] => 1 574 106
[display_work_sum] => 699 311
[display_total_sum] => 2 273 417
)
1
2 273 417₽
Работа:699 311 ₽
Материалы:1 574 106 ₽
Дни:7
stdClass Object
(
[id] => 86
[attribute_id] => 3
[name] => Профилированный брус
[material_modifier] => 1
[work_modifier] => 1
[options] => Array
(
[0] => 150 мм
[1] => 180 мм
[2] => 200 мм
)
[days] => [7,8,9]
[material_price] => [8190,9228,10051]
[work_price] => [3845,4614,5075]
[image] => https://akademik-stroy.ru/wp-content/uploads/materials/profilirovannyj-brus.jpg
[area_modifier] => 198.42
[parent_name] => Стены 1 этаж (несущие)
[parent_id] => 3
[material_sum] => 2145079
[work_sum] => 839217
[total_sum] => 2984296
[total_days] => 7
[display_material_sum] => 2 145 079
[display_work_sum] => 839 217
[display_total_sum] => 2 984 296
)
1
2 984 296₽
Работа:839 217 ₽
Материалы:2 145 079 ₽
Дни:7
stdClass Object
(
[id] => 87
[attribute_id] => 3
[name] => Оцилиндрованное бревно
[material_modifier] => 1
[work_modifier] => 1
[options] => Array
(
[0] => 180 мм
[1] => 220 мм
[2] => 260 мм
[3] => 320 мм
)
[days] => [7,8,9,10]
[material_price] => [75190,9532,10868,13116]
[work_price] => [3845,4691,5535,6863]
[image] => https://akademik-stroy.ru/wp-content/uploads/materials/ocilindrovannoe-brevno-1.jpg
[area_modifier] => 198.42
[parent_name] => Стены 1 этаж (несущие)
[parent_id] => 3
[material_sum] => 19693344
[work_sum] => 839217
[total_sum] => 20532561
[total_days] => 7
[display_material_sum] => 19 693 344
[display_work_sum] => 839 217
[display_total_sum] => 20 532 561
)
1
20 532 561₽
Работа:839 217 ₽
Материалы:19 693 344 ₽
Дни:7
stdClass Object
(
[id] => 88
[attribute_id] => 3
[name] => Срубы
[material_modifier] => 1
[work_modifier] => 1
[options] => Array
(
[0] => 260 мм
[1] => 320 мм
[2] => 360 мм
[3] => 400 мм
[4] => 500 мм
)
[days] => [7,8,9,10,11]
[material_price] => [37975,46709,52314,58069,73167]
[work_price] => [4806,5911,6621,7349,9260]
[image] => https://akademik-stroy.ru/wp-content/uploads/materials/sruby.jpg
[area_modifier] => 198.42
[parent_name] => Стены 1 этаж (несущие)
[parent_id] => 3
[material_sum] => 9946199
[work_sum] => 1048967
[total_sum] => 10995166
[total_days] => 7
[display_material_sum] => 9 946 199
[display_work_sum] => 1 048 967
[display_total_sum] => 10 995 166
)
1
10 995 166₽
Работа:1 048 967 ₽
Материалы:9 946 199 ₽
Дни:7
stdClass Object
(
[id] => 174
[attribute_id] => 3
[name] => Брус
[material_modifier] => 1
[work_modifier] => 1
[options] => Array
(
[0] => 150 мм
[1] => 180 мм
[2] => 200 мм
)
[days] => [7,8,9]
[material_price] => [5127,6152,7367]
[work_price] => [1602,1922,2115]
[image] => https://akademik-stroy.ru/wp-content/uploads/materials/brus.jpg
[area_modifier] => 198.42
[parent_name] => Стены 1 этаж (несущие)
[parent_id] => 3
[material_sum] => 1342835
[work_sum] => 349656
[total_sum] => 1692491
[total_days] => 7
[display_material_sum] => 1 342 835
[display_work_sum] => 349 656
[display_total_sum] => 1 692 491
)
1
1 692 491₽
Работа:349 656 ₽
Материалы:1 342 835 ₽
Дни:7
stdClass Object
(
[id] => 175
[attribute_id] => 3
[name] => Газобетон
[material_modifier] => 1
[work_modifier] => 1
[options] => Array
(
[0] => 300 мм
[1] => 375 мм
[2] => 400 мм
[3] => 500 мм
[4] => 600 мм
)
[days] => [29,31,35,37,44]
[material_price] => [4298,5573,6356,7288,9119]
[work_price] => [4538,5251,5926,6733,7195]
[image] => https://akademik-stroy.ru/wp-content/uploads/materials/gazobeton.jpg
[area_modifier] => 198.42
[parent_name] => Стены 1 этаж (несущие)
[parent_id] => 3
[material_sum] => 1125708
[work_sum] => 990473
[total_sum] => 2116181
[total_days] => 29
[display_material_sum] => 1 125 708
[display_work_sum] => 990 473
[display_total_sum] => 2 116 181
)
1
2 116 181₽
Работа:990 473 ₽
Материалы:1 125 708 ₽
Дни:29
stdClass Object
(
[id] => 176
[attribute_id] => 3
[name] => Блок
[material_modifier] => 1
[work_modifier] => 1
[options] => Array
(
[0] => 300 мм
[1] => 375 мм
[2] => 400 мм
[3] => 500 мм
[4] => 600 мм
)
[days] => [29,31,35,37,44]
[material_price] => [2698,3973,4356,6588,7119]
[work_price] => [5038,5851,6426,8733,9195]
[image] => https://akademik-stroy.ru/wp-content/uploads/materials/blok.jpg
[area_modifier] => 198.42
[parent_name] => Стены 1 этаж (несущие)
[parent_id] => 3
[material_sum] => 706645
[work_sum] => 1099604
[total_sum] => 1806249
[total_days] => 29
[display_material_sum] => 706 645
[display_work_sum] => 1 099 604
[display_total_sum] => 1 806 249
)
1
1 806 249₽
Работа:1 099 604 ₽
Материалы:706 645 ₽
Дни:29
stdClass Object
(
[id] => 177
[attribute_id] => 3
[name] => Газосиликатный блок
[material_modifier] => 1
[work_modifier] => 1
[options] => Array
(
[0] => 300 мм
[1] => 375 мм
[2] => 400 мм
[3] => 500 мм
[4] => 600 мм
)
[days] => [29,31,35,37,44]
[material_price] => [4298,5573,6356,7288,9119]
[work_price] => [4538,5251,5926,6733,7195]
[image] => https://akademik-stroy.ru/wp-content/uploads/materials/gazosilikatnyj-blok.jpg
[area_modifier] => 198.42
[parent_name] => Стены 1 этаж (несущие)
[parent_id] => 3
[material_sum] => 1125708
[work_sum] => 990473
[total_sum] => 2116181
[total_days] => 29
[display_material_sum] => 1 125 708
[display_work_sum] => 990 473
[display_total_sum] => 2 116 181
)
1
2 116 181₽
Работа:990 473 ₽
Материалы:1 125 708 ₽
Дни:29
stdClass Object
(
[id] => 178
[attribute_id] => 3
[name] => Керамзитобетонный блок
[material_modifier] => 1
[work_modifier] => 1
[options] => Array
(
[0] => 300 мм
[1] => 375 мм
[2] => 400 мм
[3] => 500 мм
[4] => 600 мм
)
[days] => [23,23,24,25,28]
[material_price] => [3641,4298,5693,7613,9612]
[work_price] => [5737,5737,6903,7958,8901]
[image] => https://akademik-stroy.ru/wp-content/uploads/materials/keramzitobetonnyj-blok.jpg
[area_modifier] => 198.42
[parent_name] => Стены 1 этаж (несущие)
[parent_id] => 3
[material_sum] => 953630
[work_sum] => 1252169
[total_sum] => 2205799
[total_days] => 23
[display_material_sum] => 953 630
[display_work_sum] => 1 252 169
[display_total_sum] => 2 205 799
)
1
2 205 799₽
Работа:1 252 169 ₽
Материалы:953 630 ₽
Дни:23
stdClass Object
(
[id] => 179
[attribute_id] => 3
[name] => Деревянные
[material_modifier] => 1
[work_modifier] => 1
[options] => Array
(
[0] => 180 мм
[1] => 220 мм
[2] => 260 мм
[3] => 320 мм
)
[days] => [7,8,9,10]
[material_price] => [7950,9458,11961,14472]
[work_price] => [4037,4925,5812,7207]
[image] => https://akademik-stroy.ru/wp-content/uploads/materials/derevyannye.jpg
[area_modifier] => 198.42
[parent_name] => Стены 1 этаж (несущие)
[parent_id] => 3
[material_sum] => 2082219
[work_sum] => 881124
[total_sum] => 2963343
[total_days] => 7
[display_material_sum] => 2 082 219
[display_work_sum] => 881 124
[display_total_sum] => 2 963 343
)
1
2 963 343₽
Работа:881 124 ₽
Материалы:2 082 219 ₽
Дни:7
stdClass Object
(
[id] => 181
[attribute_id] => 3
[name] => Камень
[material_modifier] => 1
[work_modifier] => 1
[options] => Array
(
[0] => 300 мм
[1] => 400 мм
[2] => 500 мм
[3] => 600 мм
)
[days] => [25,27,31,34]
[material_price] => [5262,6844,8330,9815]
[work_price] => [8331,9135,10427,11069]
[image] => https://akademik-stroy.ru/wp-content/uploads/materials/kamen.jpg
[area_modifier] => 198.42
[parent_name] => Стены 1 этаж (несущие)
[parent_id] => 3
[material_sum] => 1378194
[work_sum] => 1818341
[total_sum] => 3196535
[total_days] => 25
[display_material_sum] => 1 378 194
[display_work_sum] => 1 818 341
[display_total_sum] => 3 196 535
)
1
3 196 535₽
Работа:1 818 341 ₽
Материалы:1 378 194 ₽
Дни:25
stdClass Object
(
[id] => 182
[attribute_id] => 3
[name] => Каркасно-щитовые
[material_modifier] => 1
[work_modifier] => 1
[options] => Array
(
[0] => 150 мм
[1] => 200 мм
[2] => 250 мм
[3] => 300 мм
[4] => 350 мм
[5] => 400 мм
)
[days] => [15,16,17,18,19,20]
[material_price] => [2379,2639,2898,3458,3601,4175]
[work_price] => [2538,2820,3134,3483,4062,5642]
[image] => https://akademik-stroy.ru/wp-content/uploads/materials/karkasno-shchitovye.jpg
[area_modifier] => 198.42
[parent_name] => Стены 1 этаж (несущие)
[parent_id] => 3
[material_sum] => 623094
[work_sum] => 553949
[total_sum] => 1177043
[total_days] => 15
[display_material_sum] => 623 094
[display_work_sum] => 553 949
[display_total_sum] => 1 177 043
)
1
1 177 043₽
Работа:553 949 ₽
Материалы:623 094 ₽
Дни:15
stdClass Object
(
[id] => 183
[attribute_id] => 3
[name] => Рубленные
[material_modifier] => 1
[work_modifier] => 1
[options] => Array
(
[0] => 150 мм
[1] => 200 мм
[2] => 250 мм
[3] => 300 мм
[4] => 350 мм
[5] => 400 мм
)
[days] => [15,16,17,18,17,18]
[material_price] => [35950,50267,60583,75900,80217,100533]
[work_price] => [9612,12816,16020,19224,22428,25632]
[image] => https://akademik-stroy.ru/wp-content/uploads/materials/rublennye.jpg
[area_modifier] => 198.42
[parent_name] => Стены 1 этаж (несущие)
[parent_id] => 3
[material_sum] => 9415823
[work_sum] => 2097934
[total_sum] => 11513757
[total_days] => 15
[display_material_sum] => 9 415 823
[display_work_sum] => 2 097 934
[display_total_sum] => 11 513 757
)
1
11 513 757₽
Работа:2 097 934 ₽
Материалы:9 415 823 ₽
Дни:15
stdClass Object
(
[id] => 185
[attribute_id] => 3
[name] => Теплоблок
[material_modifier] => 1
[work_modifier] => 1
[options] => Array
(
[0] => 300 мм (с облицовкой, не покрашенный)
[1] => 400 мм (с облицовкой, не покрашенный)
[2] => 300 мм (с облицовкой, покрашенный)
[3] => 400 мм (с облицовкой, покрашенный)
)
[days] => [15,16,15,16]
[material_price] => [2888,3729,3957,4258]
[work_price] => [2564,3229,2949,3713]
[image] => https://akademik-stroy.ru/wp-content/uploads/materials/teploblok.jpg
[area_modifier] => 198.42
[parent_name] => Стены 1 этаж (несущие)
[parent_id] => 3
[material_sum] => 756409
[work_sum] => 559624
[total_sum] => 1316033
[total_days] => 15
[display_material_sum] => 756 409
[display_work_sum] => 559 624
[display_total_sum] => 1 316 033
)
1
1 316 033₽
Работа:559 624 ₽
Материалы:756 409 ₽
Дни:15
stdClass Object
(
[id] => 186
[attribute_id] => 3
[name] => Арболитовые блоки
[material_modifier] => 1
[work_modifier] => 1
[options] => Array
(
[0] => 300 мм
[1] => 400 мм
[2] => 600 мм
)
[days] => [19,22,27]
[material_price] => [3210,4475,5852]
[work_price] => [4214,4788,5866]
[image] => https://akademik-stroy.ru/wp-content/uploads/materials/arbolitovye-bloki.png
[area_modifier] => 198.42
[parent_name] => Стены 1 этаж (несущие)
[parent_id] => 3
[material_sum] => 840745
[work_sum] => 919756
[total_sum] => 1760501
[total_days] => 19
[display_material_sum] => 840 745
[display_work_sum] => 919 756
[display_total_sum] => 1 760 501
)
1
1 760 501₽
Работа:919 756 ₽
Материалы:840 745 ₽
Дни:19
stdClass Object
(
[id] => 187
[attribute_id] => 3
[name] => Полистиролбетон
[material_modifier] => 1
[work_modifier] => 1
[options] => Array
(
[0] => 300 мм
[1] => 400 мм
[2] => 600 мм
)
[days] => [29,31,35]
[material_price] => [2798,4573,5256]
[work_price] => [5038,5851,6426]
[image] => https://akademik-stroy.ru/wp-content/uploads/materials/polistirolbeton.jpg
[area_modifier] => 198.42
[parent_name] => Стены 1 этаж (несущие)
[parent_id] => 3
[material_sum] => 732836
[work_sum] => 1099604
[total_sum] => 1832440
[total_days] => 29
[display_material_sum] => 732 836
[display_work_sum] => 1 099 604
[display_total_sum] => 1 832 440
)
1
1 832 440₽
Работа:1 099 604 ₽
Материалы:732 836 ₽
Дни:29
stdClass Object
(
[id] => 188
[attribute_id] => 3
[name] => Шлакоблок
[material_modifier] => 1
[work_modifier] => 1
[options] => Array
(
[0] => 400 мм
[1] => 600 мм
)
[days] => [15,16]
[material_price] => [2391,3471]
[work_price] => [2642,3662]
[image] => https://akademik-stroy.ru/wp-content/uploads/materials/shlakoblok.jpg
[area_modifier] => 198.42
[parent_name] => Стены 1 этаж (несущие)
[parent_id] => 3
[material_sum] => 626237
[work_sum] => 576648
[total_sum] => 1202885
[total_days] => 15
[display_material_sum] => 626 237
[display_work_sum] => 576 648
[display_total_sum] => 1 202 885
)
1
1 202 885₽
Работа:576 648 ₽
Материалы:626 237 ₽
Дни:15
stdClass Object
(
[id] => 189
[attribute_id] => 3
[name] => Теплая керамика
[material_modifier] => 1
[work_modifier] => 1
[options] => Array
(
[0] => 380 мм
[1] => 380 мм Thermo
[2] => 440 мм
[3] => 510 мм
)
[days] => [23,23,24,25]
[material_price] => [4510,5098,6093,8013]
[work_price] => [4737,4937,5903,6958]
[image] => https://akademik-stroy.ru/wp-content/uploads/materials/teplaya-keramika.jpg
[area_modifier] => 198.42
[parent_name] => Стены 1 этаж (несущие)
[parent_id] => 3
[material_sum] => 1181234
[work_sum] => 1033907
[total_sum] => 2215141
[total_days] => 23
[display_material_sum] => 1 181 234
[display_work_sum] => 1 033 907
[display_total_sum] => 2 215 141
)
1
2 215 141₽
Работа:1 033 907 ₽
Материалы:1 181 234 ₽
Дни:23
stdClass Object
(
[id] => 190
[attribute_id] => 3
[name] => Несъемная опалубка
[material_modifier] => 1
[work_modifier] => 1
[options] => Array
(
[0] => 200 мм
[1] => 250 мм
[2] => 300 мм
[3] => 350 мм
)
[days] => [15,17,19,21]
[material_price] => [3302,3902,4108,5008]
[work_price] => [2100,2100,2300,2534]
[image] => https://akademik-stroy.ru/wp-content/uploads/materials/nesemnaya-opalubka.jpg
[area_modifier] => 198.42
[parent_name] => Стены 1 этаж (несущие)
[parent_id] => 3
[material_sum] => 864841
[work_sum] => 458350
[total_sum] => 1323191
[total_days] => 15
[display_material_sum] => 864 841
[display_work_sum] => 458 350
[display_total_sum] => 1 323 191
)
1
1 323 191₽
Работа:458 350 ₽
Материалы:864 841 ₽
Дни:15
stdClass Object
(
[id] => 251
[attribute_id] => 3
[name] => Бревно
[material_modifier] => 1
[work_modifier] => 1
[options] => Array
(
[0] => 260 мм
[1] => 320 мм
[2] => 360 мм
[3] => 400 мм
[4] => 500 мм
)
[days] => [7,8,9,10,11]
[material_price] => [1874,24045,26930,30972,38825]
[work_price] => [5046,6207,6952,7716,9723]
[image] => https://akademik-stroy.ru/wp-content/uploads/materials/sruby.jpg
[area_modifier] => 198.42
[parent_name] => Стены 1 этаж (несущие)
[parent_id] => 3
[material_sum] => 490828
[work_sum] => 1101350
[total_sum] => 1592178
[total_days] => 7
[display_material_sum] => 490 828
[display_work_sum] => 1 101 350
[display_total_sum] => 1 592 178
)
1
1 592 178₽
Работа:1 101 350 ₽
Материалы:490 828 ₽
Дни:7
stdClass Object
(
[id] => 7
[attribute_id] => 4
[name] => Деревянные балки
[material_modifier] => 1
[work_modifier] => 1
[options] => Array
(
[0] => без утепления
[1] => утепление 200 мм
[2] => утепление 250 мм
[3] => утепление 300 мм
[4] => утепление 350 мм
[5] => утепление 400 мм
[6] => утепление 450 мм
[7] => утепление 500 мм
)
[days] => [8,9,9,9,11,12,13,14]
[material_price] => [1634,2042,2344,2947,3149,3652,3354,3557]
[work_price] => [1230,1339,1393,1426,1460,1513,1587,1620]
[image] => https://akademik-stroy.ru/wp-content/uploads/materials/derevyannye-balki.png
[area_modifier] => 198.42
[parent_name] => Перекрытие первого этажа
[parent_id] => 4
[material_sum] => 427968
[work_sum] => 268462
[total_sum] => 696430
[total_days] => 8
[display_material_sum] => 427 968
[display_work_sum] => 268 462
[display_total_sum] => 696 430
)
1
696 430₽
Работа:268 462 ₽
Материалы:427 968 ₽
Дни:8
stdClass Object
(
[id] => 8
[attribute_id] => 4
[name] => Сборные ж/б плиты
[material_modifier] => 1
[work_modifier] => 1
[options] => Array
(
[0] => без утепления
[1] => утепление 150 мм
[2] => утепление 200 мм
[3] => утепление 250 мм
[4] => утепление 300 мм
[5] => утепление 350 мм
[6] => утепление 400 мм
[7] => утепление 450 мм
[8] => утепление 500 мм
)
[days] => [13,15,15,15,15,15,15,15,15]
[material_price] => [3067,5577,5928,6679,7730,8782,9833,10884,11935]
[work_price] => [1520,1956,2102,2247,2392,2537,2684,2829,2974]
[image] => https://akademik-stroy.ru/wp-content/uploads/materials/sbornye-zh-b-plity-2.jpg
[area_modifier] => 198.42
[parent_name] => Перекрытие первого этажа
[parent_id] => 4
[material_sum] => 803291
[work_sum] => 331758
[total_sum] => 1135049
[total_days] => 13
[display_material_sum] => 803 291
[display_work_sum] => 331 758
[display_total_sum] => 1 135 049
)
1
1 135 049₽
Работа:331 758 ₽
Материалы:803 291 ₽
Дни:13
stdClass Object
(
[id] => 89
[attribute_id] => 4
[name] => Монолитная ж/б плита
[material_modifier] => 1
[work_modifier] => 1
[options] => Array
(
[0] => без утепления
[1] => утепление 150 мм
[2] => утепление 200 мм
[3] => утепление 250 мм
[4] => утепление 300 мм
[5] => утепление 350 мм
[6] => утепление 400 мм
[7] => утепление 450 мм
[8] => утепление 500 мм
)
[days] => [18,20,20,20,20,20,20,20,20]
[material_price] => [4837,6572,7224,7375,79426,8177,8728,9180,10031]
[work_price] => [3348,3921,4112,4302,4493,4684,4875,5066,5256]
[image] => https://akademik-stroy.ru/wp-content/uploads/materials/monolitnaya-zh-b-plita-2.jpg
[area_modifier] => 198.42
[parent_name] => Перекрытие первого этажа
[parent_id] => 4
[material_sum] => 1266880
[work_sum] => 730741
[total_sum] => 1997621
[total_days] => 18
[display_material_sum] => 1 266 880
[display_work_sum] => 730 741
[display_total_sum] => 1 997 621
)
1
1 997 621₽
Работа:730 741 ₽
Материалы:1 266 880 ₽
Дни:18
stdClass Object
(
[id] => 160
[attribute_id] => 36
[name] => Не эксплуатируемая
[material_modifier] => 1
[work_modifier] => 1
[options] => Array
(
)
[days] => [10]
[material_price] => [8068]
[work_price] => [4163]
[image] => https://akademik-stroy.ru/wp-content/uploads/materials/ne-ehkspluatiruemaya-3.jpg
[area_modifier] => 198.42
[parent_name] => Плоская крыша
[parent_id] => 36
[material_sum] => 2113125
[work_sum] => 908625
[total_sum] => 3021750
[total_days] => 10
[display_material_sum] => 2 113 125
[display_work_sum] => 908 625
[display_total_sum] => 3 021 750
)
1
3 021 750₽
Работа:908 625 ₽
Материалы:2 113 125 ₽
Дни:10
stdClass Object
(
[id] => 161
[attribute_id] => 36
[name] => Зеленая кровля (Эксплуатируемая)
[material_modifier] => 1
[work_modifier] => 1
[options] => Array
(
)
[days] => [10]
[material_price] => [10056]
[work_price] => [8446]
[image] => https://akademik-stroy.ru/wp-content/uploads/materials/zelenaya-krovlya-2.jpg
[area_modifier] => 198.42
[parent_name] => Плоская крыша
[parent_id] => 36
[material_sum] => 2633811
[work_sum] => 1843441
[total_sum] => 4477252
[total_days] => 10
[display_material_sum] => 2 633 811
[display_work_sum] => 1 843 441
[display_total_sum] => 4 477 252
)
1
4 477 252₽
Работа:1 843 441 ₽
Материалы:2 633 811 ₽
Дни:10
stdClass Object
(
[id] => 162
[attribute_id] => 36
[name] => Эксплуатируемая
[material_modifier] => 1
[work_modifier] => 1
[options] => Array
(
)
[days] => [10]
[material_price] => [9593]
[work_price] => [7459]
[image] => https://akademik-stroy.ru/wp-content/uploads/materials/ehkspluatiruemaya-2.jpg
[area_modifier] => 198.42
[parent_name] => Плоская крыша
[parent_id] => 36
[material_sum] => 2512545
[work_sum] => 1628016
[total_sum] => 4140561
[total_days] => 10
[display_material_sum] => 2 512 545
[display_work_sum] => 1 628 016
[display_total_sum] => 4 140 561
)
1
4 140 561₽
Работа:1 628 016 ₽
Материалы:2 512 545 ₽
Дни:10
stdClass Object
(
[id] => 163
[attribute_id] => 36
[name] => Нет
[material_modifier] => 1
[work_modifier] => 1
[options] => Array
(
)
[days] => [0]
[material_price] => [0]
[work_price] => [0]
[image] => https://akademik-stroy.ru/wp-content/uploads/materials/ne-ehkspluatiruemaya-3.jpg
[area_modifier] => 198.42
[parent_name] => Плоская крыша
[parent_id] => 36
[material_sum] => 0
[work_sum] => 0
[total_sum] => 0
[total_days] => 0
[display_material_sum] => 0
[display_work_sum] => 0
[display_total_sum] => 0
)
1
0₽
Работа:0 ₽
Материалы:0 ₽
Дни:0
stdClass Object
(
[id] => 51
[attribute_id] => 26
[name] => Есть
[material_modifier] => 1
[work_modifier] => 1
[options] => Array
(
[0] => Профиль 58 мм, 3-камерный, стеклопакет 2-камерный до 32 мм
[1] => Профиль 60 мм, 4-камерный, стеклопакет 2-камерный до 32 мм
[2] => Профиль 70 мм, 5-камерный, стеклопакет 2-камерный до 40 мм
[3] => Профиль 72 мм, 5-камерный, стеклопакет 2-камерный до 40 мм
[4] => Алюминиевые окна Alutech профиль 72 мм, стеклопакет 2-камерный
)
[days] => [3,3,3,3,3]
[material_price] => [1339,2124,2867,3023,29596]
[work_price] => [635,647,659,668,2579]
[image] => https://akademik-stroy.ru/wp-content/uploads/materials/okna.jpg
[area_modifier] => 161.02
[parent_name] => Окна
[parent_id] => 26
[material_sum] => 284600
[work_sum] => 112472
[total_sum] => 397072
[total_days] => 3
[display_material_sum] => 284 600
[display_work_sum] => 112 472
[display_total_sum] => 397 072
)
1
397 072₽
Работа:112 472 ₽
Материалы:284 600 ₽
Дни:3
stdClass Object
(
[id] => 52
[attribute_id] => 26
[name] => Нет
[material_modifier] => 2
[work_modifier] => 1
[options] =>
[days] => null
[material_price] => null
[work_price] => null
[image] => https://akademik-stroy.ru/wp-content/uploads/materials/okna.jpg
[area_modifier] => 161.02
[parent_name] => Окна
[parent_id] => 26
[material_sum] => 0
[work_sum] => 0
[total_sum] => 0
[total_days] => 0
[display_material_sum] => 0
[display_work_sum] => 0
[display_total_sum] => 0
)
1
0₽
Работа:0 ₽
Материалы:0 ₽
Дни:0
stdClass Object
(
[id] => 53
[attribute_id] => 27
[name] => Есть
[material_modifier] => 1
[work_modifier] => 1
[options] => Array
(
)
[days] => [1]
[material_price] => [10000]
[work_price] => [5500]
[image] => https://akademik-stroy.ru/wp-content/uploads/materials/dveri.jpg
[area_modifier] => 1
[parent_name] => Двери входные
[parent_id] => 27
[material_sum] => 13200
[work_sum] => 6050
[total_sum] => 19250
[total_days] => 1
[display_material_sum] => 13 200
[display_work_sum] => 6 050
[display_total_sum] => 19 250
)
1
19 250₽
Работа:6 050 ₽
Материалы:13 200 ₽
Дни:1
stdClass Object
(
[id] => 54
[attribute_id] => 27
[name] => Нет
[material_modifier] => 1
[work_modifier] => 1
[options] => Array
(
)
[days] => [0]
[material_price] => [0]
[work_price] => [0]
[image] => https://akademik-stroy.ru/wp-content/uploads/materials/dveri.jpg
[area_modifier] => 1
[parent_name] => Двери входные
[parent_id] => 27
[material_sum] => 0
[work_sum] => 0
[total_sum] => 0
[total_days] => 0
[display_material_sum] => 0
[display_work_sum] => 0
[display_total_sum] => 0
)
1
0₽
Работа:0 ₽
Материалы:0 ₽
Дни:0
stdClass Object
(
[id] => 31
[attribute_id] => 16
[name] => Нет
[material_modifier] => 1
[work_modifier] => 1
[options] => Array
(
)
[days] => [0]
[material_price] => [0]
[work_price] => [0]
[image] => https://akademik-stroy.ru/wp-content/uploads/materials/docke-standard-pvh.jpg
[area_modifier] => 198.42
[parent_name] => Водосточная система
[parent_id] => 16
[material_sum] => 0
[work_sum] => 0
[total_sum] => 0
[total_days] => 0
[display_material_sum] => 0
[display_work_sum] => 0
[display_total_sum] => 0
)
1
0₽
Работа:0 ₽
Материалы:0 ₽
Дни:0
stdClass Object
(
[id] => 32
[attribute_id] => 16
[name] => Есть
[material_modifier] => 1
[work_modifier] => 1
[options] => Array
(
[0] => Döcke Standard (ПВХ)
[1] => Металлические Grand Line
)
[days] => [7,7]
[material_price] => [1842,2703]
[work_price] => [1491,1529]
[image] => https://akademik-stroy.ru/wp-content/uploads/materials/docke-standard-pvh.jpg
[area_modifier] => 198.42
[parent_name] => Водосточная система
[parent_id] => 16
[material_sum] => 482446
[work_sum] => 325429
[total_sum] => 807875
[total_days] => 7
[display_material_sum] => 482 446
[display_work_sum] => 325 429
[display_total_sum] => 807 875
)
1
807 875₽
Работа:325 429 ₽
Материалы:482 446 ₽
Дни:7
stdClass Object
(
[id] => 33
[attribute_id] => 17
[name] => Нет
[material_modifier] => 1
[work_modifier] => 1
[options] => Array
(
)
[days] => [0]
[material_price] => [0]
[work_price] => [0]
[image] => https://akademik-stroy.ru/wp-content/uploads/materials/mineralovata.jpg
[area_modifier] => 198.42
[parent_name] => Дополнительное утепление наружных стен
[parent_id] => 17
[material_sum] => 0
[work_sum] => 0
[total_sum] => 0
[total_days] => 0
[display_material_sum] => 0
[display_work_sum] => 0
[display_total_sum] => 0
)
1
0₽
Работа:0 ₽
Материалы:0 ₽
Дни:0
stdClass Object
(
[id] => 34
[attribute_id] => 17
[name] => Минераловатный
[material_modifier] => 1
[work_modifier] => 1
[options] => Array
(
[0] => 50 мм
[1] => 100 мм
[2] => 150 мм
[3] => 200 мм
[4] => 250 мм
[5] => 300 мм
)
[days] => [7,8,10,12,14,15]
[material_price] => [3437,3613,3803,3915,4601,4830]
[work_price] => [2325,2423,2523,2749,2859,3025]
[image] => https://akademik-stroy.ru/wp-content/uploads/materials/mineralovata.jpg
[area_modifier] => 198.42
[parent_name] => Дополнительное утепление наружных стен
[parent_id] => 17
[material_sum] => 900200
[work_sum] => 507459
[total_sum] => 1407659
[total_days] => 7
[display_material_sum] => 900 200
[display_work_sum] => 507 459
[display_total_sum] => 1 407 659
)
1
1 407 659₽
Работа:507 459 ₽
Материалы:900 200 ₽
Дни:7
stdClass Object
(
[id] => 128
[attribute_id] => 17
[name] => Эковата (целлюлозная вата)
[material_modifier] => 1
[work_modifier] => 1
[options] => Array
(
[0] => 50 мм
[1] => 100 мм
[2] => 150 мм
[3] => 200 мм
[4] => 250 мм
[5] => 300 мм
)
[days] => [3,4,5,6,7,8]
[material_price] => [810,1319,1629,1838,2267,2676]
[work_price] => [1225,1323,1423,1549,1659,1725]
[image] => https://akademik-stroy.ru/wp-content/uploads/materials/ehkovata.jpg
[area_modifier] => 198.42
[parent_name] => Дополнительное утепление наружных стен
[parent_id] => 17
[material_sum] => 212151
[work_sum] => 267371
[total_sum] => 479522
[total_days] => 3
[display_material_sum] => 212 151
[display_work_sum] => 267 371
[display_total_sum] => 479 522
)
1
479 522₽
Работа:267 371 ₽
Материалы:212 151 ₽
Дни:3
stdClass Object
(
[id] => 129
[attribute_id] => 17
[name] => Экструдированный пенополистирол
[material_modifier] => 1
[work_modifier] => 1
[options] => Array
(
[0] => 50 мм
[1] => 100 мм
[2] => 150 мм
[3] => 200 мм
[4] => 250 мм
[5] => 300 мм
)
[days] => [5,6,7,8,9,10]
[material_price] => [4560,4300,5119,6292,7010,8583]
[work_price] => [1795,1954,2254,2330,2595,2735]
[image] => https://akademik-stroy.ru/wp-content/uploads/materials/epps.jpg
[area_modifier] => 198.42
[parent_name] => Дополнительное утепление наружных стен
[parent_id] => 17
[material_sum] => 1194330
[work_sum] => 391780
[total_sum] => 1586110
[total_days] => 5
[display_material_sum] => 1 194 330
[display_work_sum] => 391 780
[display_total_sum] => 1 586 110
)
1
1 586 110₽
Работа:391 780 ₽
Материалы:1 194 330 ₽
Дни:5
stdClass Object
(
[id] => 130
[attribute_id] => 17
[name] => ПСБ (ППС-пенополистирол)
[material_modifier] => 1
[work_modifier] => 1
[options] => Array
(
[0] => 50 мм
[1] => 100 мм
[2] => 150 мм
[3] => 200 мм
[4] => 250 мм
[5] => 300 мм
)
[days] => [5,6,7,8,9,10]
[material_price] => [4822,5200,5819,6292,7010,7583]
[work_price] => [1795,1954,2254,2330,2595,2735]
[image] => https://akademik-stroy.ru/wp-content/uploads/materials/psb.jpg
[area_modifier] => 198.42
[parent_name] => Дополнительное утепление наружных стен
[parent_id] => 17
[material_sum] => 1262951
[work_sum] => 391780
[total_sum] => 1654731
[total_days] => 5
[display_material_sum] => 1 262 951
[display_work_sum] => 391 780
[display_total_sum] => 1 654 731
)
1
1 654 731₽
Работа:391 780 ₽
Материалы:1 262 951 ₽
Дни:5
stdClass Object
(
[id] => 131
[attribute_id] => 17
[name] => ППУ (Пенополиуретан)
[material_modifier] => 1
[work_modifier] => 1
[options] => Array
(
[0] => 50 мм
[1] => 100 мм
[2] => 150 мм
[3] => 200 мм
[4] => 250 мм
[5] => 300 мм
)
[days] => [3,4,5,6,7,8]
[material_price] => [2860,3400,4219,4592,5010,5583]
[work_price] => [729,900,980,1120,1280,1530]
[image] => https://akademik-stroy.ru/wp-content/uploads/materials/ppu.jpg
[area_modifier] => 198.42
[parent_name] => Дополнительное утепление наружных стен
[parent_id] => 17
[material_sum] => 749075
[work_sum] => 159113
[total_sum] => 908188
[total_days] => 3
[display_material_sum] => 749 075
[display_work_sum] => 159 113
[display_total_sum] => 908 188
)
1
908 188₽
Работа:159 113 ₽
Материалы:749 075 ₽
Дни:3
stdClass Object
(
[id] => 132
[attribute_id] => 17
[name] => PIR-плиты (пенополиизоцианурат)
[material_modifier] => 1
[work_modifier] => 1
[options] => Array
(
[0] => 50 мм
[1] => 100 мм
[2] => 150 мм
[3] => 200 мм
[4] => 250 мм
[5] => 300 мм
)
[days] => [5,6,7,8,9,10]
[material_price] => [8323,15645,20968,25900,29258,30581]
[work_price] => [800,900,970,1150,1280,1330]
[image] => https://akademik-stroy.ru/wp-content/uploads/materials/pir.jpg
[area_modifier] => 198.42
[parent_name] => Дополнительное утепление наружных стен
[parent_id] => 17
[material_sum] => 2179914
[work_sum] => 174610
[total_sum] => 2354524
[total_days] => 5
[display_material_sum] => 2 179 914
[display_work_sum] => 174 610
[display_total_sum] => 2 354 524
)
1
2 354 524₽
Работа:174 610 ₽
Материалы:2 179 914 ₽
Дни:5
stdClass Object
(
[id] => 37
[attribute_id] => 19
[name] => Нет
[material_modifier] => 1
[work_modifier] => 1
[options] => Array
(
)
[days] => [0]
[material_price] => [0]
[work_price] => [0]
[image] => https://akademik-stroy.ru/wp-content/uploads/materials/imitaciya-brusa.jpg
[area_modifier] => 198.42
[parent_name] => Наружная отделка фасада
[parent_id] => 19
[material_sum] => 0
[work_sum] => 0
[total_sum] => 0
[total_days] => 0
[display_material_sum] => 0
[display_work_sum] => 0
[display_total_sum] => 0
)
1
0₽
Работа:0 ₽
Материалы:0 ₽
Дни:0
stdClass Object
(
[id] => 38
[attribute_id] => 19
[name] => Имитация бруса
[material_modifier] => 1
[work_modifier] => 1
[options] => Array
(
[0] => Сосна
[1] => Ель
[2] => Лиственница
)
[days] => [20,20,20]
[material_price] => [2994,2762,4954]
[work_price] => [1397,1231,1577]
[image] => https://akademik-stroy.ru/wp-content/uploads/materials/imitaciya-brusa.jpg
[area_modifier] => 198.42
[parent_name] => Наружная отделка фасада
[parent_id] => 19
[material_sum] => 784172
[work_sum] => 304912
[total_sum] => 1089084
[total_days] => 20
[display_material_sum] => 784 172
[display_work_sum] => 304 912
[display_total_sum] => 1 089 084
)
1
1 089 084₽
Работа:304 912 ₽
Материалы:784 172 ₽
Дни:20
stdClass Object
(
[id] => 136
[attribute_id] => 19
[name] => Планкен
[material_modifier] => 1
[work_modifier] => 1
[options] => Array
(
[0] => Сосна
[1] => Ель
[2] => Лиственница
)
[days] => [20,20,20]
[material_price] => [3194,2862,5154]
[work_price] => [1537,1354,1735]
[image] => https://akademik-stroy.ru/wp-content/uploads/materials/planken.jpg
[area_modifier] => 198.42
[parent_name] => Наружная отделка фасада
[parent_id] => 19
[material_sum] => 836555
[work_sum] => 335469
[total_sum] => 1172024
[total_days] => 20
[display_material_sum] => 836 555
[display_work_sum] => 335 469
[display_total_sum] => 1 172 024
)
1
1 172 024₽
Работа:335 469 ₽
Материалы:836 555 ₽
Дни:20
stdClass Object
(
[id] => 137
[attribute_id] => 19
[name] => Штукатурка
[material_modifier] => 1
[work_modifier] => 1
[options] => Array
(
[0] => Цементно-песчаная (минеральная)
[1] => Мокрый фасад
)
[days] => [35,35]
[material_price] => [2231,3938]
[work_price] => [1202,2422]
[image] => https://akademik-stroy.ru/wp-content/uploads/materials/shtukaturka.jpg
[area_modifier] => 198.42
[parent_name] => Наружная отделка фасада
[parent_id] => 19
[material_sum] => 584331
[work_sum] => 262351
[total_sum] => 846682
[total_days] => 35
[display_material_sum] => 584 331
[display_work_sum] => 262 351
[display_total_sum] => 846 682
)
1
846 682₽
Работа:262 351 ₽
Материалы:584 331 ₽
Дни:35
stdClass Object
(
[id] => 138
[attribute_id] => 19
[name] => Облицовочный кирпич
[material_modifier] => 1
[work_modifier] => 1
[options] => Array
(
[0] => Керамический
[1] => Клинкерный
[2] => Ручной формовки
[3] => Гиперпрессованный
[4] => Силикатный кирпич
)
[days] => [45,45,45,45,45]
[material_price] => [8174,9148,1040,1257,5876]
[work_price] => [3240,3758,4536,4017,3369]
[image] => https://akademik-stroy.ru/wp-content/uploads/materials/oblicovochnyj-kirpich.jpg
[area_modifier] => 198.42
[parent_name] => Наружная отделка фасада
[parent_id] => 19
[material_sum] => 2140888
[work_sum] => 707169
[total_sum] => 2848057
[total_days] => 45
[display_material_sum] => 2 140 888
[display_work_sum] => 707 169
[display_total_sum] => 2 848 057
)
1
2 848 057₽
Работа:707 169 ₽
Материалы:2 140 888 ₽
Дни:45
stdClass Object
(
[id] => 139
[attribute_id] => 19
[name] => Фасадная плитка
[material_modifier] => 1
[work_modifier] => 1
[options] => Array
(
[0] => Клинкерная
[1] => Керамическая
[2] => Плитка ручной формовки
)
[days] => [40,40,40]
[material_price] => [2974,1487,3470]
[work_price] => [3007,2592,3629]
[image] => https://akademik-stroy.ru/wp-content/uploads/materials/fasadnaya-plitka.jpg
[area_modifier] => 198.42
[parent_name] => Наружная отделка фасада
[parent_id] => 19
[material_sum] => 778933
[work_sum] => 656314
[total_sum] => 1435247
[total_days] => 40
[display_material_sum] => 778 933
[display_work_sum] => 656 314
[display_total_sum] => 1 435 247
)
1
1 435 247₽
Работа:656 314 ₽
Материалы:778 933 ₽
Дни:40
stdClass Object
(
[id] => 140
[attribute_id] => 19
[name] => Сайдинг
[material_modifier] => 1
[work_modifier] => 1
[options] => Array
(
[0] => Виниловый
[1] => Металлический
[2] => Фиброцементный
)
[days] => [20,20,20]
[material_price] => [1263,1944,4147]
[work_price] => [1263,1944,2074]
[image] => https://akademik-stroy.ru/wp-content/uploads/materials/sajding.jpg
[area_modifier] => 198.42
[parent_name] => Наружная отделка фасада
[parent_id] => 19
[material_sum] => 330798
[work_sum] => 275665
[total_sum] => 606463
[total_days] => 20
[display_material_sum] => 330 798
[display_work_sum] => 275 665
[display_total_sum] => 606 463
)
1
606 463₽
Работа:275 665 ₽
Материалы:330 798 ₽
Дни:20
stdClass Object
(
[id] => 141
[attribute_id] => 19
[name] => Камень
[material_modifier] => 1
[work_modifier] => 1
[options] => Array
(
[0] => Травертин
[1] => Дагестанский
[2] => Искусственный
[3] => Натуральный
[4] => Керамогранит
)
[days] => [45,45,45,45,45]
[material_price] => [4536,3888,2592,3240,2462]
[work_price] => [3240,3240,2462,3110,1944]
[image] => https://akademik-stroy.ru/wp-content/uploads/materials/kamen-1.jpg
[area_modifier] => 198.42
[parent_name] => Наружная отделка фасада
[parent_id] => 19
[material_sum] => 1188044
[work_sum] => 707169
[total_sum] => 1895213
[total_days] => 45
[display_material_sum] => 1 188 044
[display_work_sum] => 707 169
[display_total_sum] => 1 895 213
)
1
1 895 213₽
Работа:707 169 ₽
Материалы:1 188 044 ₽
Дни:45
stdClass Object
(
[id] => 142
[attribute_id] => 19
[name] => Термопанели
[material_modifier] => 1
[work_modifier] => 1
[options] => Array
(
)
[days] => [20]
[material_price] => [6221]
[work_price] => [2333]
[image] => https://akademik-stroy.ru/wp-content/uploads/materials/termo.png
[area_modifier] => 198.42
[parent_name] => Наружная отделка фасада
[parent_id] => 19
[material_sum] => 1629369
[work_sum] => 509205
[total_sum] => 2138574
[total_days] => 20
[display_material_sum] => 1 629 369
[display_work_sum] => 509 205
[display_total_sum] => 2 138 574
)
1
2 138 574₽
Работа:509 205 ₽
Материалы:1 629 369 ₽
Дни:20
stdClass Object
(
[id] => 143
[attribute_id] => 19
[name] => Плитка HAUBERK
[material_modifier] => 1
[work_modifier] => 1
[options] => Array
(
)
[days] => [20]
[material_price] => [2786]
[work_price] => [1944]
[image] => https://akademik-stroy.ru/wp-content/uploads/materials/hauberk.jpg
[area_modifier] => 198.42
[parent_name] => Наружная отделка фасада
[parent_id] => 19
[material_sum] => 729694
[work_sum] => 424301
[total_sum] => 1153995
[total_days] => 20
[display_material_sum] => 729 694
[display_work_sum] => 424 301
[display_total_sum] => 1 153 995
)
1
1 153 995₽
Работа:424 301 ₽
Материалы:729 694 ₽
Дни:20
stdClass Object
(
[id] => 144
[attribute_id] => 19
[name] => Фальцевый фасад
[material_modifier] => 1
[work_modifier] => 1
[options] => Array
(
)
[days] => [20]
[material_price] => [3240]
[work_price] => [2592]
[image] => https://akademik-stroy.ru/wp-content/uploads/materials/falcevyj-fasad.jpg
[area_modifier] => 198.42
[parent_name] => Наружная отделка фасада
[parent_id] => 19
[material_sum] => 848603
[work_sum] => 565735
[total_sum] => 1414338
[total_days] => 20
[display_material_sum] => 848 603
[display_work_sum] => 565 735
[display_total_sum] => 1 414 338
)
1
1 414 338₽
Работа:565 735 ₽
Материалы:848 603 ₽
Дни:20
stdClass Object
(
[id] => 145
[attribute_id] => 19
[name] => Комбинированный
[material_modifier] => 1
[work_modifier] => 1
[options] => Array
(
)
[days] => [20]
[material_price] => [4629]
[work_price] => [3499]
[image] => https://akademik-stroy.ru/wp-content/uploads/materials/Kombinirovannyj.jpg
[area_modifier] => 198.42
[parent_name] => Наружная отделка фасада
[parent_id] => 19
[material_sum] => 1212402
[work_sum] => 763699
[total_sum] => 1976101
[total_days] => 20
[display_material_sum] => 1 212 402
[display_work_sum] => 763 699
[display_total_sum] => 1 976 101
)
1
1 976 101₽
Работа:763 699 ₽
Материалы:1 212 402 ₽
Дни:20
stdClass Object
(
[id] => 257
[attribute_id] => 19
[name] => Японские фиброцементные
[material_modifier] => 1
[work_modifier] => 1
[options] => Array
(
)
[days] => [20]
[material_price] => [7043]
[work_price] => [2993]
[image] => https://akademik-stroy.ru/wp-content/uploads/materials/paneli.jpg
[area_modifier] => 198.42
[parent_name] => Наружная отделка фасада
[parent_id] => 19
[material_sum] => 1844663
[work_sum] => 653258
[total_sum] => 2497921
[total_days] => 20
[display_material_sum] => 1 844 663
[display_work_sum] => 653 258
[display_total_sum] => 2 497 921
)
1
2 497 921₽
Работа:653 258 ₽
Материалы:1 844 663 ₽
Дни:20
stdClass Object
(
[id] => 258
[attribute_id] => 19
[name] => Панели Каньон
[material_modifier] => 1
[work_modifier] => 1
[options] => Array
(
)
[days] => [20]
[material_price] => [4543]
[work_price] => [2592]
[image] => https://akademik-stroy.ru/wp-content/uploads/materials/kanon.png
[area_modifier] => 198.42
[parent_name] => Наружная отделка фасада
[parent_id] => 19
[material_sum] => 1189877
[work_sum] => 565735
[total_sum] => 1755612
[total_days] => 20
[display_material_sum] => 1 189 877
[display_work_sum] => 565 735
[display_total_sum] => 1 755 612
)
1
1 755 612₽
Работа:565 735 ₽
Материалы:1 189 877 ₽
Дни:20
stdClass Object
(
[id] => 39
[attribute_id] => 20
[name] => Нет
[material_modifier] => 1
[work_modifier] => 1
[options] => Array
(
)
[days] => [0]
[material_price] => [0]
[work_price] => [0]
[image] => https://akademik-stroy.ru/wp-content/uploads/materials/terrasy.jpg
[area_modifier] => 30
[parent_name] => Террасы, крыльца, навесы
[parent_id] => 20
[material_sum] => 0
[work_sum] => 0
[total_sum] => 0
[total_days] => 0
[display_material_sum] => 0
[display_work_sum] => 0
[display_total_sum] => 0
)
1
0₽
Работа:0 ₽
Материалы:0 ₽
Дни:0
stdClass Object
(
[id] => 40
[attribute_id] => 20
[name] => Есть
[material_modifier] => 1
[work_modifier] => 1
[options] => Array
(
)
[days] => [5]
[material_price] => [10450]
[work_price] => [1950]
[image] => https://akademik-stroy.ru/wp-content/uploads/materials/terrasy.jpg
[area_modifier] => 30
[parent_name] => Террасы, крыльца, навесы
[parent_id] => 20
[material_sum] => 413820
[work_sum] => 64350
[total_sum] => 478170
[total_days] => 5
[display_material_sum] => 413 820
[display_work_sum] => 64 350
[display_total_sum] => 478 170
)
1
478 170₽
Работа:64 350 ₽
Материалы:413 820 ₽
Дни:5
stdClass Object
(
[id] => 41
[attribute_id] => 21
[name] => Нет
[material_modifier] => 1
[work_modifier] => 1
[options] => Array
(
)
[days] => [0]
[material_price] => [0]
[work_price] => [0]
[image] => https://akademik-stroy.ru/wp-content/uploads/materials/balkony.jpg
[area_modifier] => 30
[parent_name] => Балконы
[parent_id] => 21
[material_sum] => 0
[work_sum] => 0
[total_sum] => 0
[total_days] => 0
[display_material_sum] => 0
[display_work_sum] => 0
[display_total_sum] => 0
)
1
0₽
Работа:0 ₽
Материалы:0 ₽
Дни:0
stdClass Object
(
[id] => 42
[attribute_id] => 21
[name] => Есть
[material_modifier] => 1
[work_modifier] => 1
[options] => Array
(
)
[days] => [12]
[material_price] => [3600]
[work_price] => [1950]
[image] => https://akademik-stroy.ru/wp-content/uploads/materials/balkony.jpg
[area_modifier] => 30
[parent_name] => Балконы
[parent_id] => 21
[material_sum] => 142560
[work_sum] => 64350
[total_sum] => 206910
[total_days] => 12
[display_material_sum] => 142 560
[display_work_sum] => 64 350
[display_total_sum] => 206 910
)
1
206 910₽
Работа:64 350 ₽
Материалы:142 560 ₽
Дни:12
stdClass Object
(
[id] => 43
[attribute_id] => 22
[name] => Нет
[material_modifier] => 1
[work_modifier] => 1
[options] => Array
(
)
[days] => [0]
[material_price] => [0]
[work_price] => [0]
[image] => https://akademik-stroy.ru/wp-content/uploads/materials/uteplennaya.jpg
[area_modifier] => 198.42
[parent_name] => Отмостка
[parent_id] => 22
[material_sum] => 0
[work_sum] => 0
[total_sum] => 0
[total_days] => 0
[display_material_sum] => 0
[display_work_sum] => 0
[display_total_sum] => 0
)
1
0₽
Работа:0 ₽
Материалы:0 ₽
Дни:0
stdClass Object
(
[id] => 44
[attribute_id] => 22
[name] => Утепленная отмостка
[material_modifier] => 1
[work_modifier] => 1
[options] => Array
(
)
[days] => [15]
[material_price] => [2550]
[work_price] => [1750]
[image] => https://akademik-stroy.ru/wp-content/uploads/materials/uteplennaya.jpg
[area_modifier] => 198.42
[parent_name] => Отмостка
[parent_id] => 22
[material_sum] => 667882
[work_sum] => 381959
[total_sum] => 1049841
[total_days] => 15
[display_material_sum] => 667 882
[display_work_sum] => 381 959
[display_total_sum] => 1 049 841
)
1
1 049 841₽
Работа:381 959 ₽
Материалы:667 882 ₽
Дни:15
stdClass Object
(
[id] => 146
[attribute_id] => 22
[name] => Не утепленная отмостка
[material_modifier] => 1
[work_modifier] => 1
[options] => Array
(
)
[days] => [10]
[material_price] => [1650]
[work_price] => [1450]
[image] => https://akademik-stroy.ru/wp-content/uploads/materials/ne-uteplennaya.jpg
[area_modifier] => 198.42
[parent_name] => Отмостка
[parent_id] => 22
[material_sum] => 432159
[work_sum] => 316480
[total_sum] => 748639
[total_days] => 10
[display_material_sum] => 432 159
[display_work_sum] => 316 480
[display_total_sum] => 748 639
)
1
748 639₽
Работа:316 480 ₽
Материалы:432 159 ₽
Дни:10
stdClass Object
(
[id] => 45
[attribute_id] => 23
[name] => Нет
[material_modifier] => 1
[work_modifier] => 1
[options] => Array
(
)
[days] => [0]
[material_price] => [0]
[work_price] => [0]
[image] => https://akademik-stroy.ru/wp-content/uploads/materials/drenazh-2.jpg
[area_modifier] => 198.42
[parent_name] => Дренаж вокруг дома
[parent_id] => 23
[material_sum] => 0
[work_sum] => 0
[total_sum] => 0
[total_days] => 0
[display_material_sum] => 0
[display_work_sum] => 0
[display_total_sum] => 0
)
1
0₽
Работа:0 ₽
Материалы:0 ₽
Дни:0
stdClass Object
(
[id] => 46
[attribute_id] => 23
[name] => Есть
[material_modifier] => 1
[work_modifier] => 1
[options] => Array
(
)
[days] => [5]
[material_price] => [2366]
[work_price] => [1911]
[image] => https://akademik-stroy.ru/wp-content/uploads/materials/drenazh-2.jpg
[area_modifier] => 198.42
[parent_name] => Дренаж вокруг дома
[parent_id] => 23
[material_sum] => 619689
[work_sum] => 417099
[total_sum] => 1036788
[total_days] => 5
[display_material_sum] => 619 689
[display_work_sum] => 417 099
[display_total_sum] => 1 036 788
)
1
1 036 788₽
Работа:417 099 ₽
Материалы:619 689 ₽
Дни:5
stdClass Object
(
[id] => 47
[attribute_id] => 24
[name] => Нет
[material_modifier] => 1
[work_modifier] => 1
[options] => Array
(
)
[days] => [0]
[material_price] => [0]
[work_price] => [0]
[image] => https://akademik-stroy.ru/wp-content/uploads/materials/septik.jpg
[area_modifier] => 1
[parent_name] => Автономная канализация (септики)
[parent_id] => 24
[material_sum] => 0
[work_sum] => 0
[total_sum] => 0
[total_days] => 0
[display_material_sum] => 0
[display_work_sum] => 0
[display_total_sum] => 0
)
1
0₽
Работа:0 ₽
Материалы:0 ₽
Дни:0
stdClass Object
(
[id] => 48
[attribute_id] => 24
[name] => Есть
[material_modifier] => 1
[work_modifier] => 1
[options] => Array
(
[0] => Для дачи на 4 человека
[1] => Для дома на 5 человек
[2] => Для дома на 6 человек
[3] => Для дома на 7 человек
[4] => Для дома на 10 человек
)
[days] => [7,7,7,8,8]
[material_price] => [196340,220500,240940,264200,293340]
[work_price] => [50000,55000,60500,66550,73206]
[image] => https://akademik-stroy.ru/wp-content/uploads/materials/septik.jpg
[area_modifier] => 1
[parent_name] => Автономная канализация (септики)
[parent_id] => 24
[material_sum] => 259169
[work_sum] => 55000
[total_sum] => 314169
[total_days] => 7
[display_material_sum] => 259 169
[display_work_sum] => 55 000
[display_total_sum] => 314 169
)
1
314 169₽
Работа:55 000 ₽
Материалы:259 169 ₽
Дни:7
stdClass Object
(
[id] => 49
[attribute_id] => 25
[name] => Нет
[material_modifier] => 1
[work_modifier] => 1
[options] => Array
(
)
[days] => [0]
[material_price] => [0]
[work_price] => [0]
[image] => https://akademik-stroy.ru/wp-content/uploads/materials/gkl.jpg
[area_modifier] => 198.42
[parent_name] => Внутренние (не несущие) перегородки
[parent_id] => 25
[material_sum] => 0
[work_sum] => 0
[total_sum] => 0
[total_days] => 0
[display_material_sum] => 0
[display_work_sum] => 0
[display_total_sum] => 0
)
1
0₽
Работа:0 ₽
Материалы:0 ₽
Дни:0
stdClass Object
(
[id] => 147
[attribute_id] => 25
[name] => Каркасно-обшивные
[material_modifier] => 1
[work_modifier] => 1
[options] => Array
(
[0] => 75 мм (без шумоизоляции)
[1] => 75 мм (с шумоизоляцией)
)
[days] => [11,11]
[material_price] => [580,970]
[work_price] => [380,570]
[image] => https://akademik-stroy.ru/wp-content/uploads/materials/gkl.jpg
[area_modifier] => 198.42
[parent_name] => Внутренние (не несущие) перегородки
[parent_id] => 25
[material_sum] => 151910
[work_sum] => 82940
[total_sum] => 234850
[total_days] => 11
[display_material_sum] => 151 910
[display_work_sum] => 82 940
[display_total_sum] => 234 850
)
1
234 850₽
Работа:82 940 ₽
Материалы:151 910 ₽
Дни:11
stdClass Object
(
[id] => 148
[attribute_id] => 25
[name] => Пазогребневые
[material_modifier] => 1
[work_modifier] => 1
[options] => Array
(
[0] => 80 мм
[1] => 100 мм
)
[days] => [5,5]
[material_price] => [1022,1313]
[work_price] => [600,700]
[image] => https://akademik-stroy.ru/wp-content/uploads/materials/pazogrebnevye-bloki.jpg
[area_modifier] => 198.42
[parent_name] => Внутренние (не несущие) перегородки
[parent_id] => 25
[material_sum] => 267677
[work_sum] => 130957
[total_sum] => 398634
[total_days] => 5
[display_material_sum] => 267 677
[display_work_sum] => 130 957
[display_total_sum] => 398 634
)
1
398 634₽
Работа:130 957 ₽
Материалы:267 677 ₽
Дни:5
stdClass Object
(
[id] => 149
[attribute_id] => 25
[name] => Газобетонные
[material_modifier] => 1
[work_modifier] => 1
[options] => Array
(
[0] => 100 мм
[1] => 200 мм
)
[days] => [11,11]
[material_price] => [1160,1920]
[work_price] => [700,900]
[image] => https://akademik-stroy.ru/wp-content/uploads/materials/gazobeton-2.jpg
[area_modifier] => 198.42
[parent_name] => Внутренние (не несущие) перегородки
[parent_id] => 25
[material_sum] => 303821
[work_sum] => 152783
[total_sum] => 456604
[total_days] => 11
[display_material_sum] => 303 821
[display_work_sum] => 152 783
[display_total_sum] => 456 604
)
1
456 604₽
Работа:152 783 ₽
Материалы:303 821 ₽
Дни:11
stdClass Object
(
[id] => 150
[attribute_id] => 25
[name] => Кирпичные
[material_modifier] => 1
[work_modifier] => 1
[options] => Array
(
[0] => 120 мм
[1] => 250 мм
[2] => 360 мм
)
[days] => [7,7,7]
[material_price] => [1785,3570,5355]
[work_price] => [900,1600,1800]
[image] => https://akademik-stroy.ru/wp-content/uploads/materials/kirpich-1.jpg
[area_modifier] => 198.42
[parent_name] => Внутренние (не несущие) перегородки
[parent_id] => 25
[material_sum] => 467517
[work_sum] => 196436
[total_sum] => 663953
[total_days] => 7
[display_material_sum] => 467 517
[display_work_sum] => 196 436
[display_total_sum] => 663 953
)
1
663 953₽
Работа:196 436 ₽
Материалы:467 517 ₽
Дни:7
stdClass Object
(
[id] => 55
[attribute_id] => 28
[name] => Нет
[material_modifier] => 1
[work_modifier] => 1
[options] => Array
(
)
[days] => [0]
[material_price] => [0]
[work_price] => [0]
[image] => https://akademik-stroy.ru/wp-content/uploads/materials/ehlektrika.jpg
[area_modifier] => 161.02
[parent_name] => Электрика
[parent_id] => 28
[material_sum] => 0
[work_sum] => 0
[total_sum] => 0
[total_days] => 0
[display_material_sum] => 0
[display_work_sum] => 0
[display_total_sum] => 0
)
1
0₽
Работа:0 ₽
Материалы:0 ₽
Дни:0
stdClass Object
(
[id] => 56
[attribute_id] => 28
[name] => Есть
[material_modifier] => 1
[work_modifier] => 1
[options] => Array
(
)
[days] => [10]
[material_price] => [650]
[work_price] => [950]
[image] => https://akademik-stroy.ru/wp-content/uploads/materials/ehlektrika.jpg
[area_modifier] => 161.02
[parent_name] => Электрика
[parent_id] => 28
[material_sum] => 138155
[work_sum] => 168266
[total_sum] => 306421
[total_days] => 10
[display_material_sum] => 138 155
[display_work_sum] => 168 266
[display_total_sum] => 306 421
)
1
306 421₽
Работа:168 266 ₽
Материалы:138 155 ₽
Дни:10
stdClass Object
(
[id] => 57
[attribute_id] => 29
[name] => Нет
[material_modifier] => 1
[work_modifier] => 1
[options] => Array
(
)
[days] => [0]
[material_price] => [0]
[work_price] => [0]
[image] => https://akademik-stroy.ru/wp-content/uploads/materials/santekhnika-kanalizaciya-1.jpg
[area_modifier] => 161.02
[parent_name] => Сантехника, канализация в доме
[parent_id] => 29
[material_sum] => 0
[work_sum] => 0
[total_sum] => 0
[total_days] => 0
[display_material_sum] => 0
[display_work_sum] => 0
[display_total_sum] => 0
)
1
0₽
Работа:0 ₽
Материалы:0 ₽
Дни:0
stdClass Object
(
[id] => 58
[attribute_id] => 29
[name] => Есть
[material_modifier] => 1
[work_modifier] => 1
[options] => Array
(
)
[days] => [10]
[material_price] => [600]
[work_price] => [730]
[image] => https://akademik-stroy.ru/wp-content/uploads/materials/santekhnika-kanalizaciya-1.jpg
[area_modifier] => 161.02
[parent_name] => Сантехника, канализация в доме
[parent_id] => 29
[material_sum] => 127528
[work_sum] => 129299
[total_sum] => 256827
[total_days] => 10
[display_material_sum] => 127 528
[display_work_sum] => 129 299
[display_total_sum] => 256 827
)
1
256 827₽
Работа:129 299 ₽
Материалы:127 528 ₽
Дни:10
stdClass Object
(
[id] => 59
[attribute_id] => 30
[name] => Нет
[material_modifier] => 1
[work_modifier] => 1
[options] => Array
(
)
[days] => [0]
[material_price] => [0]
[work_price] => [0]
[image] => https://akademik-stroy.ru/wp-content/uploads/materials/otoplenie-1.jpg
[area_modifier] => 161.02
[parent_name] => Отопление
[parent_id] => 30
[material_sum] => 0
[work_sum] => 0
[total_sum] => 0
[total_days] => 0
[display_material_sum] => 0
[display_work_sum] => 0
[display_total_sum] => 0
)
1
0₽
Работа:0 ₽
Материалы:0 ₽
Дни:0
stdClass Object
(
[id] => 60
[attribute_id] => 30
[name] => Есть
[material_modifier] => 1
[work_modifier] => 1
[options] => Array
(
)
[days] => [5]
[material_price] => [610]
[work_price] => [560]
[image] => https://akademik-stroy.ru/wp-content/uploads/materials/otoplenie-1.jpg
[area_modifier] => 161.02
[parent_name] => Отопление
[parent_id] => 30
[material_sum] => 129653
[work_sum] => 99188
[total_sum] => 228841
[total_days] => 5
[display_material_sum] => 129 653
[display_work_sum] => 99 188
[display_total_sum] => 228 841
)
1
228 841₽
Работа:99 188 ₽
Материалы:129 653 ₽
Дни:5
stdClass Object
(
[id] => 61
[attribute_id] => 31
[name] => Нет
[material_modifier] => 1
[work_modifier] => 1
[options] => Array
(
)
[days] => [0]
[material_price] => [0]
[work_price] => [0]
[image] => https://akademik-stroy.ru/wp-content/uploads/materials/vodyanye.jpg
[area_modifier] => 30
[parent_name] => Теплые полы
[parent_id] => 31
[material_sum] => 0
[work_sum] => 0
[total_sum] => 0
[total_days] => 0
[display_material_sum] => 0
[display_work_sum] => 0
[display_total_sum] => 0
)
1
0₽
Работа:0 ₽
Материалы:0 ₽
Дни:0
stdClass Object
(
[id] => 151
[attribute_id] => 31
[name] => Водяные
[material_modifier] => 1
[work_modifier] => 1
[options] => Array
(
)
[days] => [9]
[material_price] => [10200]
[work_price] => [2500]
[image] => https://akademik-stroy.ru/wp-content/uploads/materials/vodyanye.jpg
[area_modifier] => 30
[parent_name] => Теплые полы
[parent_id] => 31
[material_sum] => 403920
[work_sum] => 82500
[total_sum] => 486420
[total_days] => 9
[display_material_sum] => 403 920
[display_work_sum] => 82 500
[display_total_sum] => 486 420
)
1
486 420₽
Работа:82 500 ₽
Материалы:403 920 ₽
Дни:9
stdClass Object
(
[id] => 152
[attribute_id] => 31
[name] => Электро
[material_modifier] => 1
[work_modifier] => 1
[options] => Array
(
)
[days] => [5]
[material_price] => [6300]
[work_price] => [1500]
[image] => https://akademik-stroy.ru/wp-content/uploads/materials/ehlektricheskij.jpg
[area_modifier] => 30
[parent_name] => Теплые полы
[parent_id] => 31
[material_sum] => 249480
[work_sum] => 49500
[total_sum] => 298980
[total_days] => 5
[display_material_sum] => 249 480
[display_work_sum] => 49 500
[display_total_sum] => 298 980
)
1
298 980₽
Работа:49 500 ₽
Материалы:249 480 ₽
Дни:5
stdClass Object
(
[id] => 63
[attribute_id] => 32
[name] => Нет
[material_modifier] => 1
[work_modifier] => 1
[options] => Array
(
)
[days] => [0]
[material_price] => [0]
[work_price] => [0]
[image] => https://akademik-stroy.ru/wp-content/uploads/materials/shtukaturka-shpatlevka-1.jpg
[area_modifier] => 161.02
[parent_name] => Черновая отделка стен
[parent_id] => 32
[material_sum] => 0
[work_sum] => 0
[total_sum] => 0
[total_days] => 0
[display_material_sum] => 0
[display_work_sum] => 0
[display_total_sum] => 0
)
1
0₽
Работа:0 ₽
Материалы:0 ₽
Дни:0
stdClass Object
(
[id] => 153
[attribute_id] => 32
[name] => Штукатурка и шпатлевка
[material_modifier] => 1
[work_modifier] => 1
[options] => Array
(
)
[days] => [20]
[material_price] => [1850]
[work_price] => [2600]
[image] => https://akademik-stroy.ru/wp-content/uploads/materials/shtukaturka-shpatlevka-1.jpg
[area_modifier] => 161.02
[parent_name] => Черновая отделка стен
[parent_id] => 32
[material_sum] => 393211
[work_sum] => 460517
[total_sum] => 853728
[total_days] => 20
[display_material_sum] => 393 211
[display_work_sum] => 460 517
[display_total_sum] => 853 728
)
1
853 728₽
Работа:460 517 ₽
Материалы:393 211 ₽
Дни:20
stdClass Object
(
[id] => 154
[attribute_id] => 32
[name] => Гипсокортон на стены
[material_modifier] => 1
[work_modifier] => 1
[options] => Array
(
)
[days] => [15]
[material_price] => [950]
[work_price] => [2100]
[image] => https://akademik-stroy.ru/wp-content/uploads/materials/gkl-1.jpg
[area_modifier] => 161.02
[parent_name] => Черновая отделка стен
[parent_id] => 32
[material_sum] => 201919
[work_sum] => 371956
[total_sum] => 573875
[total_days] => 15
[display_material_sum] => 201 919
[display_work_sum] => 371 956
[display_total_sum] => 573 875
)
1
573 875₽
Работа:371 956 ₽
Материалы:201 919 ₽
Дни:15
stdClass Object
(
[id] => 155
[attribute_id] => 32
[name] => Вагонка
[material_modifier] => 1
[work_modifier] => 1
[options] => Array
(
)
[days] => [15]
[material_price] => [1250]
[work_price] => [950]
[image] => https://akademik-stroy.ru/wp-content/uploads/materials/vagonka.jpg
[area_modifier] => 161.02
[parent_name] => Черновая отделка стен
[parent_id] => 32
[material_sum] => 265683
[work_sum] => 168266
[total_sum] => 433949
[total_days] => 15
[display_material_sum] => 265 683
[display_work_sum] => 168 266
[display_total_sum] => 433 949
)
1
433 949₽
Работа:168 266 ₽
Материалы:265 683 ₽
Дни:15
stdClass Object
(
[id] => 65
[attribute_id] => 33
[name] => Нет
[material_modifier] => 1
[work_modifier] => 1
[options] => Array
(
)
[days] => [0]
[material_price] => [0]
[work_price] => [0]
[image] => https://akademik-stroy.ru/wp-content/uploads/materials/styazhka.jpg
[area_modifier] => 161.02
[parent_name] => Черновая отделка полов
[parent_id] => 33
[material_sum] => 0
[work_sum] => 0
[total_sum] => 0
[total_days] => 0
[display_material_sum] => 0
[display_work_sum] => 0
[display_total_sum] => 0
)
1
0₽
Работа:0 ₽
Материалы:0 ₽
Дни:0
stdClass Object
(
[id] => 156
[attribute_id] => 33
[name] => Стяжка + наливные полы
[material_modifier] => 1
[work_modifier] => 1
[options] => Array
(
)
[days] => [10]
[material_price] => [1000]
[work_price] => [900]
[image] => https://akademik-stroy.ru/wp-content/uploads/materials/styazhka.jpg
[area_modifier] => 161.02
[parent_name] => Черновая отделка полов
[parent_id] => 33
[material_sum] => 212546
[work_sum] => 159410
[total_sum] => 371956
[total_days] => 10
[display_material_sum] => 212 546
[display_work_sum] => 159 410
[display_total_sum] => 371 956
)
1
371 956₽
Работа:159 410 ₽
Материалы:212 546 ₽
Дни:10
stdClass Object
(
[id] => 157
[attribute_id] => 33
[name] => ОСБ на пол
[material_modifier] => 1
[work_modifier] => 1
[options] => Array
(
)
[days] => [7]
[material_price] => [580]
[work_price] => [350]
[image] => https://akademik-stroy.ru/wp-content/uploads/materials/osb-1.jpg
[area_modifier] => 161.02
[parent_name] => Черновая отделка полов
[parent_id] => 33
[material_sum] => 123277
[work_sum] => 61993
[total_sum] => 185270
[total_days] => 7
[display_material_sum] => 123 277
[display_work_sum] => 61 993
[display_total_sum] => 185 270
)
1
185 270₽
Работа:61 993 ₽
Материалы:123 277 ₽
Дни:7
stdClass Object
(
[id] => 67
[attribute_id] => 34
[name] => Нет
[material_modifier] => 1
[work_modifier] => 1
[options] => Array
(
)
[days] => [0]
[material_price] => [0]
[work_price] => [0]
[image] => https://akademik-stroy.ru/wp-content/uploads/materials/chistovaya-otdelka.jpg
[area_modifier] => 161.02
[parent_name] => Чистовая отделка стен и полов
[parent_id] => 34
[material_sum] => 0
[work_sum] => 0
[total_sum] => 0
[total_days] => 0
[display_material_sum] => 0
[display_work_sum] => 0
[display_total_sum] => 0
)
1
0₽
Работа:0 ₽
Материалы:0 ₽
Дни:0
stdClass Object
(
[id] => 68
[attribute_id] => 34
[name] => Есть
[material_modifier] => 1
[work_modifier] => 1
[options] => Array
(
)
[days] => [50]
[material_price] => [6000]
[work_price] => [3500]
[image] => https://akademik-stroy.ru/wp-content/uploads/materials/chistovaya-otdelka.jpg
[area_modifier] => 161.02
[parent_name] => Чистовая отделка стен и полов
[parent_id] => 34
[material_sum] => 1275278
[work_sum] => 619927
[total_sum] => 1895205
[total_days] => 50
[display_material_sum] => 1 275 278
[display_work_sum] => 619 927
[display_total_sum] => 1 895 205
)
1
1 895 205₽
Работа:619 927 ₽
Материалы:1 275 278 ₽
Дни:50
stdClass Object
(
[id] => 69
[attribute_id] => 35
[name] => Нет
[material_modifier] => 1
[work_modifier] => 1
[options] => Array
(
)
[days] => [0]
[material_price] => [0]
[work_price] => [0]
[image] => https://akademik-stroy.ru/wp-content/uploads/materials/mnogourovnevyj-gkl.jpg
[area_modifier] => 161.02
[parent_name] => Отделка потолка
[parent_id] => 35
[material_sum] => 0
[work_sum] => 0
[total_sum] => 0
[total_days] => 0
[display_material_sum] => 0
[display_work_sum] => 0
[display_total_sum] => 0
)
1
0₽
Работа:0 ₽
Материалы:0 ₽
Дни:0
stdClass Object
(
[id] => 70
[attribute_id] => 35
[name] => Есть
[material_modifier] => 1
[work_modifier] => 1
[options] => Array
(
[0] => Многоуровневый потолок из гипсокартона
[1] => Многоуровневый потолок из гипсокартона и натяжного потолка
[2] => Одноуровневый потолок из гипсокартона
[3] => Одноуровневый натяжной потолок
)
[days] => [10,10,1,1]
[material_price] => [900,700,700,600]
[work_price] => [1000,800,500,300]
[image] => https://akademik-stroy.ru/wp-content/uploads/materials/mnogourovnevyj-gkl.jpg
[area_modifier] => 161.02
[parent_name] => Отделка потолка
[parent_id] => 35
[material_sum] => 191292
[work_sum] => 177122
[total_sum] => 368414
[total_days] => 10
[display_material_sum] => 191 292
[display_work_sum] => 177 122
[display_total_sum] => 368 414
)
1
368 414₽
Работа:177 122 ₽
Материалы:191 292 ₽
Дни:10
Преимущества работы с нами
7 этапов оплаты
Независимый строительный надзор
Экологически чистые материалы
16 лет гарантии
Онлайн-кабинет с веб-камерой
Строители с опытом более 15 лет
Собственное производство






