Одноэтажный дом 142.15 м2 за руб.
Планировки
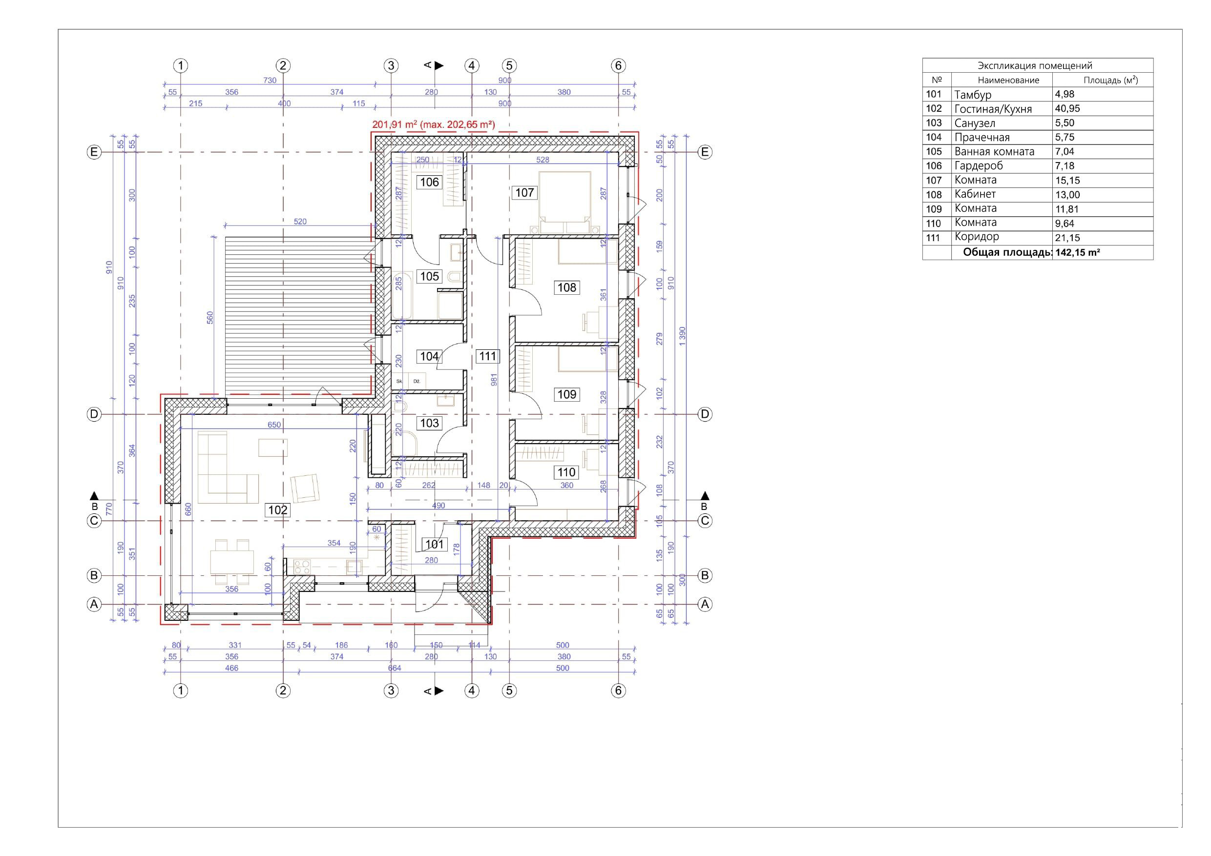
План первого этажа
- 1. Тамбур 4,98 м²
- 2. Гостиная-Кухня-Столовая 40,95 м²
- 3. Санузел 5,50 м²
- 4. Прачечная 5,75 м²
- 5. Ванная комната 7,04 м²
- 6. Гардероб 7,18 м²
- 7. Комната 15,15 м²
- 8. Кабинет 13,00 м²
- 9. Комната 11,81 м²
- 10. Комната 9,64 м²
- 11. Коридор 21,15 м²
- Общая площадь 142,15 м²
Площади дома
| № п/п | Наименование | Ед. из. | Строительная площадь | Полезная площадь |
| 1 | 1 этаж | м2 | 175.17 | 142.15 |
| 2 | Итого | м2 | 175.17 | 142.15 |
154 м2
Полезная
площадь
площадь
1 этаж
Этажей
26 м2
Террасы
и балконы
и балконы
0Без
гаража
гаража
4
Количество
спален
спален
2
Количество
санузлов
санузлов
Калькулятор опций
0₽
В ипотеку от 24 962 ₽/мес.
0₽
0 дней
959 003₽
Работа:415 048 ₽
Материалы:543 955 ₽
Дни:20
576 519₽
Работа:193 072 ₽
Материалы:383 447 ₽
Дни:2
971 527₽
Работа:389 998 ₽
Материалы:581 529 ₽
Дни:20
1 861 742₽
Работа:831 252 ₽
Материалы:1 030 490 ₽
Дни:30
3 123 264₽
Работа:1 148 415 ₽
Материалы:1 974 849 ₽
Дни:32
1 180 401₽
Работа:472 276 ₽
Материалы:708 125 ₽
Дни:20
7 406 888₽
Работа:3 376 647 ₽
Материалы:4 030 241 ₽
Дни:30
8 837 011₽
Работа:3 938 715 ₽
Материалы:4 898 296 ₽
Дни:40
308 299₽
Работа:77 075 ₽
Материалы:231 224 ₽
Дни:1
551 856₽
Работа:237 005 ₽
Материалы:314 851 ₽
Дни:8
883 855₽
Работа:292 884 ₽
Материалы:590 971 ₽
Дни:13
1 577 143₽
Работа:645 116 ₽
Материалы:932 027 ₽
Дни:18
1 547 855₽
Работа:969 794 ₽
Материалы:578 061 ₽
Дни:29
1 781 776₽
Работа:912 758 ₽
Материалы:869 018 ₽
Дни:23
2 743 093₽
Работа:1 683 314 ₽
Материалы:1 059 779 ₽
Дни:30
2 244 996₽
Работа:983 860 ₽
Материалы:1 261 136 ₽
Дни:45
4 196 916₽
Работа:926 054 ₽
Материалы:3 270 862 ₽
Дни:24
924 319₽
Работа:465 917 ₽
Материалы:458 402 ₽
Дни:15
504 840₽
Работа:271 689 ₽
Материалы:233 151 ₽
Дни:7
1 775 418₽
Работа:617 369 ₽
Материалы:1 158 049 ₽
Дни:7
2 318 989₽
Работа:740 882 ₽
Материалы:1 578 107 ₽
Дни:7
15 229 018₽
Работа:740 882 ₽
Материалы:14 488 136 ₽
Дни:7
8 243 343₽
Работа:926 054 ₽
Материалы:7 317 289 ₽
Дни:7
1 296 591₽
Работа:308 685 ₽
Материалы:987 906 ₽
Дни:7
1 702 583₽
Работа:874 414 ₽
Материалы:828 169 ₽
Дни:29
1 490 627₽
Работа:970 757 ₽
Материалы:519 870 ₽
Дни:29
1 702 583₽
Работа:874 414 ₽
Материалы:828 169 ₽
Дни:29
1 807 018₽
Работа:1 105 445 ₽
Материалы:701 573 ₽
Дни:23
2 309 739₽
Работа:777 877 ₽
Материалы:1 531 862 ₽
Дни:7
2 619 194₽
Работа:1 605 275 ₽
Материалы:1 013 919 ₽
Дни:25
947 442₽
Работа:489 040 ₽
Материалы:458 402 ₽
Дни:15
8 779 205₽
Работа:1 852 107 ₽
Материалы:6 927 098 ₽
Дни:15
1 050 529₽
Работа:494 049 ₽
Материалы:556 480 ₽
Дни:15
1 430 508₽
Работа:811 983 ₽
Материалы:618 525 ₽
Дни:19
1 509 895₽
Работа:970 757 ₽
Материалы:539 138 ₽
Дни:29
969 794₽
Работа:509 079 ₽
Материалы:460 715 ₽
Дни:15
1 781 776₽
Работа:912 758 ₽
Материалы:869 018 ₽
Дни:23
1 040 895₽
Работа:404 643 ₽
Материалы:636 252 ₽
Дни:15
1 333 394₽
Работа:972 299 ₽
Материалы:361 095 ₽
Дни:7
551 856₽
Работа:237 005 ₽
Материалы:314 851 ₽
Дни:8
883 855₽
Работа:292 884 ₽
Материалы:590 971 ₽
Дни:13
1 577 143₽
Работа:645 116 ₽
Материалы:932 027 ₽
Дни:18
2 356 755₽
Работа:802 156 ₽
Материалы:1 554 599 ₽
Дни:10
3 565 094₽
Работа:1 627 434 ₽
Материалы:1 937 660 ₽
Дни:10
3 285 698₽
Работа:1 437 252 ₽
Материалы:1 848 446 ₽
Дни:10
0₽
Работа:0 ₽
Материалы:0 ₽
Дни:0
308 665₽
Работа:99 292 ₽
Материалы:209 373 ₽
Дни:3
0₽
Работа:0 ₽
Материалы:0 ₽
Дни:0
17 050₽
Работа:6 050 ₽
Материалы:11 000 ₽
Дни:1
0₽
Работа:0 ₽
Материалы:0 ₽
Дни:0
0₽
Работа:0 ₽
Материалы:0 ₽
Дни:0
642 225₽
Работа:287 296 ₽
Материалы:354 929 ₽
Дни:7
0₽
Работа:0 ₽
Материалы:0 ₽
Дни:0
1 110 262₽
Работа:447 997 ₽
Материалы:662 265 ₽
Дни:7
392 118₽
Работа:236 042 ₽
Материалы:156 076 ₽
Дни:3
1 224 526₽
Работа:345 873 ₽
Материалы:878 653 ₽
Дни:5
1 275 010₽
Работа:345 873 ₽
Материалы:929 137 ₽
Дни:5
691 554₽
Работа:140 469 ₽
Материалы:551 085 ₽
Дни:3
1 757 884₽
Работа:154 150 ₽
Материалы:1 603 734 ₽
Дни:5
0₽
Работа:0 ₽
Материалы:0 ₽
Дни:0
846 089₽
Работа:269 184 ₽
Материалы:576 905 ₽
Дни:20
911 602₽
Работа:296 160 ₽
Материалы:615 442 ₽
Дни:20
661 495₽
Работа:231 610 ₽
Материалы:429 885 ₽
Дни:35
2 199 330₽
Работа:624 306 ₽
Материалы:1 575 024 ₽
Дни:45
1 152 461₽
Работа:579 410 ₽
Материалы:573 051 ₽
Дни:40
486 728₽
Работа:243 364 ₽
Материалы:243 364 ₽
Дни:20
1 498 334₽
Работа:624 306 ₽
Материалы:874 028 ₽
Дни:45
1 648 245₽
Работа:449 539 ₽
Материалы:1 198 706 ₽
Дни:20
911 410₽
Работа:374 584 ₽
Материалы:536 826 ₽
Дни:20
1 123 751₽
Работа:499 445 ₽
Материалы:624 306 ₽
Дни:20
1 566 160₽
Работа:674 212 ₽
Материалы:891 948 ₽
Дни:20
1 933 807₽
Работа:576 712 ₽
Материалы:1 357 095 ₽
Дни:20
1 374 822₽
Работа:499 445 ₽
Материалы:875 377 ₽
Дни:20
0₽
Работа:0 ₽
Материалы:0 ₽
Дни:0
409 200₽
Работа:64 350 ₽
Материалы:344 850 ₽
Дни:5
0₽
Работа:0 ₽
Материалы:0 ₽
Дни:0
183 150₽
Работа:64 350 ₽
Материалы:118 800 ₽
Дни:12
0₽
Работа:0 ₽
Материалы:0 ₽
Дни:0
828 554₽
Работа:337 202 ₽
Материалы:491 352 ₽
Дни:15
597 330₽
Работа:279 396 ₽
Материалы:317 934 ₽
Дни:10
0₽
Работа:0 ₽
Материалы:0 ₽
Дни:0
824 122₽
Работа:368 225 ₽
Материалы:455 897 ₽
Дни:5
0₽
Работа:0 ₽
Материалы:0 ₽
Дни:0
270 974₽
Работа:55 000 ₽
Материалы:215 974 ₽
Дни:7
0₽
Работа:0 ₽
Материалы:0 ₽
Дни:0
184 979₽
Работа:73 221 ₽
Материалы:111 758 ₽
Дни:11
312 538₽
Работа:115 612 ₽
Материалы:196 926 ₽
Дни:5
358 398₽
Работа:134 881 ₽
Материалы:223 517 ₽
Дни:11
517 364₽
Работа:173 418 ₽
Материалы:343 946 ₽
Дни:7
0₽
Работа:0 ₽
Материалы:0 ₽
Дни:0
250 184₽
Работа:148 547 ₽
Материалы:101 637 ₽
Дни:10
0₽
Работа:0 ₽
Материалы:0 ₽
Дни:0
207 965₽
Работа:114 146 ₽
Материалы:93 819 ₽
Дни:10
0₽
Работа:0 ₽
Материалы:0 ₽
Дни:0
182 947₽
Работа:87 564 ₽
Материалы:95 383 ₽
Дни:5
0₽
Работа:0 ₽
Материалы:0 ₽
Дни:0
419 100₽
Работа:82 500 ₽
Материалы:336 600 ₽
Дни:9
257 400₽
Работа:49 500 ₽
Материалы:207 900 ₽
Дни:5
0₽
Работа:0 ₽
Материалы:0 ₽
Дни:0
695 824₽
Работа:406 549 ₽
Материалы:289 275 ₽
Дни:20
476 914₽
Работа:328 367 ₽
Материалы:148 547 ₽
Дни:15
344 003₽
Работа:148 547 ₽
Материалы:195 456 ₽
Дни:15
0₽
Работа:0 ₽
Материалы:0 ₽
Дни:0
297 094₽
Работа:140 729 ₽
Материалы:156 365 ₽
Дни:10
145 420₽
Работа:54 728 ₽
Материалы:90 692 ₽
Дни:7
0₽
Работа:0 ₽
Материалы:0 ₽
Дни:0
1 485 468₽
Работа:547 278 ₽
Материалы:938 190 ₽
Дни:50
0₽
Работа:0 ₽
Материалы:0 ₽
Дни:0
297 094₽
Работа:156 365 ₽
Материалы:140 729 ₽
Дни:10
Преимущества работы с нами
7 этапов оплаты
Независимый строительный надзор
Экологически чистые материалы
16 лет гарантии
Онлайн-кабинет с веб-камерой
Строители с опытом более 15 лет
Собственное производство









