Одноэтажный дом 178.6 м2 за руб.
Планировки
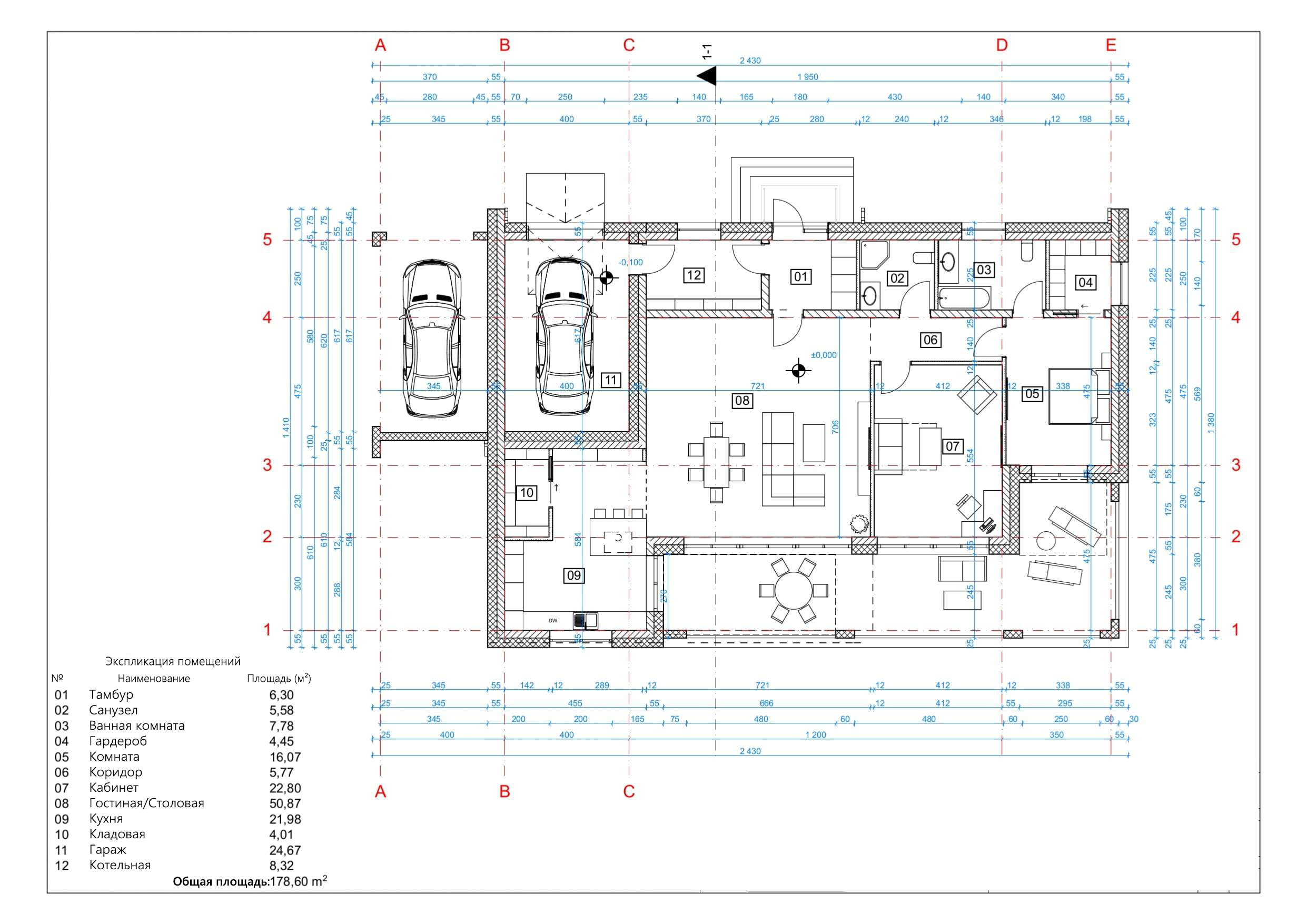
План первого этажа
- 1. Тамбур 6,30 м²
- 2. Санузел 5,58 м²
- 3. Ванная комната 7,78 м²
- 4. Гардероб 4,45 м²
- 5. Комната 16,07 м²
- 6. Коридор 5,77 м²
- 7. Кабинет 22,80 м²
- 8. Гостиная-Столовая 50,87 м²
- 9. Кухня 21,98 м²
- 10. Кладовая 4,01 м²
- 11. Гараж 24,67 м²
- 12. Котельная 8,32 м²
- Общая площадь первый этаж 178,60 м²
Площади дома
| № п/п | Наименование | Ед. из. | Строительная площадь | Полезная площадь |
| 1 | 1 этаж | м2 | 220.09 | 178.6 |
| 2 | Итого | м2 | 220.09 | 178.6 |
154 м2
Полезная
площадь
площадь
1 этаж
Этажей
26 м2
Террасы
и балконы
и балконы
1Без
гаража
гаража
3
Количество
спален
спален
2
Количество
санузлов
санузлов
Калькулятор опций
0₽
В ипотеку от 27 611 ₽/мес.
0₽
0 дней
stdClass Object
(
[id] => 1
[attribute_id] => 1
[name] => Ленточный монолитный ж/б
[material_modifier] => 1
[work_modifier] => 1
[options] => Array
(
[0] => размер 200 х 700 мм
[1] => размер 300 х 900 мм
[2] => размер 400 х 1 000 мм
[3] => размер 500 х 1 100 мм
[4] => размер 600 х 1 200 мм
)
[days] => [20,21,22,25,30]
[material_price] => [2823,3630,4475,5210,12047]
[work_price] => [2154,2826,3731,4577,5293]
[image] => https://akademik-stroy.ru/wp-content/uploads/materials/lentochnyj-monolitnyj-zh-b.jpg
[area_modifier] => 220.09
[parent_name] => Фундамент
[parent_id] => 1
[material_sum] => 782856
[work_sum] => 497778
[total_sum] => 1280634
[total_days] => 20
[display_material_sum] => 782 856
[display_work_sum] => 497 778
[display_total_sum] => 1 280 634
)
1
1 280 634₽
Работа:497 778 ₽
Материалы:782 856 ₽
Дни:20
stdClass Object
(
[id] => 2
[attribute_id] => 1
[name] => Забивные Ж/Б сваи
[material_modifier] => 1
[work_modifier] => 1
[options] => Array
(
[0] => 150х150х3000мм
[1] => 150х150х4000мм
[2] => 200х200х3000мм
[3] => 200х200х4000мм
[4] => 200х200х5000мм
[5] => 200х200х6000мм
)
[days] => [2,2,2,2,2,2]
[material_price] => [1990,2850,3255,4360,5120,6837]
[work_price] => [1002,1185,1336,1438,1574,1839]
[image] => https://akademik-stroy.ru/wp-content/uploads/materials/zabivnye-zh-b-svai.png
[area_modifier] => 220.09
[parent_name] => Фундамент
[parent_id] => 1
[material_sum] => 551854
[work_sum] => 231557
[total_sum] => 783411
[total_days] => 2
[display_material_sum] => 551 854
[display_work_sum] => 231 557
[display_total_sum] => 783 411
)
1
783 411₽
Работа:231 557 ₽
Материалы:551 854 ₽
Дни:2
stdClass Object
(
[id] => 71
[attribute_id] => 1
[name] => Свайно-ростверковый ж/б
[material_modifier] => 1
[work_modifier] => 1
[options] => Array
(
[0] => ростверк 200х300 мм
[1] => ростверк 300х600 мм
[2] => ростверк 400х900 мм
[3] => ростверк 500х1200 мм
)
[days] => [20,23,25,27]
[material_price] => [3018,3474,7109,9792]
[work_price] => [2024,3012,5635,7022]
[image] => https://akademik-stroy.ru/wp-content/uploads/materials/svajno-rostverkovyj-monolitnyj-zh-b-3.png
[area_modifier] => 220.09
[parent_name] => Фундамент
[parent_id] => 1
[material_sum] => 836932
[work_sum] => 467735
[total_sum] => 1304667
[total_days] => 20
[display_material_sum] => 836 932
[display_work_sum] => 467 735
[display_total_sum] => 1 304 667
)
1
1 304 667₽
Работа:467 735 ₽
Материалы:836 932 ₽
Дни:20
stdClass Object
(
[id] => 72
[attribute_id] => 1
[name] => Монолитная ж/б плита
[material_modifier] => 1
[work_modifier] => 1
[options] => Array
(
[0] => 200 мм
[1] => 300 мм
[2] => 400 мм
[3] => 500 мм
[4] => 600 мм
)
[days] => [30,33,35,37,40]
[material_price] => [5348,8555,12788,14388,15189]
[work_price] => [4314,4881,7037,8061,10230]
[image] => https://akademik-stroy.ru/wp-content/uploads/materials/monolitnaya-zhb-plita.png
[area_modifier] => 220.09
[parent_name] => Фундамент
[parent_id] => 1
[material_sum] => 1483072
[work_sum] => 996942
[total_sum] => 2480014
[total_days] => 30
[display_material_sum] => 1 483 072
[display_work_sum] => 996 942
[display_total_sum] => 2 480 014
)
1
2 480 014₽
Работа:996 942 ₽
Материалы:1 483 072 ₽
Дни:30
stdClass Object
(
[id] => 73
[attribute_id] => 1
[name] => Утепленная шведская плита
[material_modifier] => 1
[work_modifier] => 1
[options] => Array
(
[0] => 200 мм
[1] => 300 мм
[2] => 400 мм
[3] => 500 мм
[4] => 600 мм
)
[days] => [32,37,39,42,45]
[material_price] => [10249,12692,13760,14936,16230]
[work_price] => [5960,7337,8072,8878,9765]
[image] => https://akademik-stroy.ru/wp-content/uploads/materials/uteplennaya-shvedskaya-plita.jpg
[area_modifier] => 220.09
[parent_name] => Фундамент
[parent_id] => 1
[material_sum] => 2842185
[work_sum] => 1377323
[total_sum] => 4219508
[total_days] => 32
[display_material_sum] => 2 842 185
[display_work_sum] => 1 377 323
[display_total_sum] => 4 219 508
)
1
4 219 508₽
Работа:1 377 323 ₽
Материалы:2 842 185 ₽
Дни:32
stdClass Object
(
[id] => 75
[attribute_id] => 1
[name] => Ленточный из ФБС
[material_modifier] => 1
[work_modifier] => 1
[options] => Array
(
[0] => толщ. 300 мм
[1] => толщ. 400 мм
[2] => толщ. 500 мм
[3] => толщ. 600 мм
)
[days] => [20,20,20,20]
[material_price] => [3675,4902,6126,7350]
[work_price] => [2451,3264,4083,4902]
[image] => https://akademik-stroy.ru/wp-content/uploads/materials/lentochnyj-iz-fbs.png
[area_modifier] => 220.09
[parent_name] => Фундамент
[parent_id] => 1
[material_sum] => 1019127
[work_sum] => 566413
[total_sum] => 1585540
[total_days] => 20
[display_material_sum] => 1 019 127
[display_work_sum] => 566 413
[display_total_sum] => 1 585 540
)
1
1 585 540₽
Работа:566 413 ₽
Материалы:1 019 127 ₽
Дни:20
stdClass Object
(
[id] => 76
[attribute_id] => 1
[name] => Цокольный этаж из ФБС
[material_modifier] => 1
[work_modifier] => 1
[options] => Array
(
[0] => толщ. 300 мм
[1] => толщ. 400 мм
[2] => толщ. 500 мм
[3] => толщ. 600 мм
)
[days] => [30,32,34,36]
[material_price] => [20916,23299,26680,29060]
[work_price] => [17524,18700,19873,21046]
[image] => https://akademik-stroy.ru/wp-content/uploads/materials/cokolnyj-ehtazh-iz-fbs.jpg
[area_modifier] => 220.09
[parent_name] => Фундамент
[parent_id] => 1
[material_sum] => 5800287
[work_sum] => 4049700
[total_sum] => 9849987
[total_days] => 30
[display_material_sum] => 5 800 287
[display_work_sum] => 4 049 700
[display_total_sum] => 9 849 987
)
1
9 849 987₽
Работа:4 049 700 ₽
Материалы:5 800 287 ₽
Дни:30
stdClass Object
(
[id] => 77
[attribute_id] => 1
[name] => Цокольный этаж монолитный ж/б
[material_modifier] => 1
[work_modifier] => 1
[options] => Array
(
[0] => толщ. 200 мм
[1] => толщ. 300 мм
[2] => толщ. 400 мм
[3] => толщ. 500 мм
[4] => толщ. 600 мм
)
[days] => [40,42,44,46,48]
[material_price] => [25421,29148,32275,35602,37326]
[work_price] => [20441,21907,23375,24841,26306]
[image] => https://akademik-stroy.ru/wp-content/uploads/materials/cokolnyj-etazh-zh-b.jpg
[area_modifier] => 220.09
[parent_name] => Фундамент
[parent_id] => 1
[material_sum] => 7049584
[work_sum] => 4723803
[total_sum] => 11773387
[total_days] => 40
[display_material_sum] => 7 049 584
[display_work_sum] => 4 723 803
[display_total_sum] => 11 773 387
)
1
11 773 387₽
Работа:4 723 803 ₽
Материалы:7 049 584 ₽
Дни:40
stdClass Object
(
[id] => 191
[attribute_id] => 1
[name] => Винтовые сваи
[material_modifier] => 1
[work_modifier] => 1
[options] => Array
(
[0] => 57х200мм
[1] => 76х250мм
[2] => 108х300мм
[3] => 133х350мм
)
[days] => [1,1,2,2]
[material_price] => [1200,1300,1450,1600]
[work_price] => [400,600,900,1100]
[image] => https://akademik-stroy.ru/wp-content/uploads/materials/vintovye-svai.png
[area_modifier] => 220.09
[parent_name] => Фундамент
[parent_id] => 1
[material_sum] => 332776
[work_sum] => 92438
[total_sum] => 425214
[total_days] => 1
[display_material_sum] => 332 776
[display_work_sum] => 92 438
[display_total_sum] => 425 214
)
1
425 214₽
Работа:92 438 ₽
Материалы:332 776 ₽
Дни:1
stdClass Object
(
[id] => 3
[attribute_id] => 2
[name] => Деревянные балки
[material_modifier] => 1
[work_modifier] => 1
[options] => Array
(
[0] => без утепления
[1] => утепление 200 мм
[2] => утепление 250 мм
[3] => утепление 300 мм
[4] => утепление 350 мм
[5] => утепление 400 мм
[6] => утепление 450 мм
[7] => утепление 500 мм
)
[days] => [8,9,9,9,11,12,13,14]
[material_price] => [1634,2042,2344,2947,3149,3652,3354,3557]
[work_price] => [1230,1339,1393,1426,1460,1513,1587,1620]
[image] => https://akademik-stroy.ru/wp-content/uploads/materials/derevyannye-balki.png
[area_modifier] => 220.09
[parent_name] => Перекрытие цоколя
[parent_id] => 2
[material_sum] => 453130
[work_sum] => 284246
[total_sum] => 737376
[total_days] => 8
[display_material_sum] => 453 130
[display_work_sum] => 284 246
[display_total_sum] => 737 376
)
1
737 376₽
Работа:284 246 ₽
Материалы:453 130 ₽
Дни:8
stdClass Object
(
[id] => 4
[attribute_id] => 2
[name] => Сборные ж/б плиты
[material_modifier] => 1
[work_modifier] => 1
[options] => Array
(
[0] => без утепления
[1] => утепление 150мм
[2] => утепление 200мм
[3] => утепление 250мм
[4] => утепление 300мм
[5] => утепление 350мм
[6] => утепление 400мм
[7] => утепление 450мм
[8] => утепление 500мм
)
[days] => [13,15,15,15,15,15,15,15,15]
[material_price] => [3067,5577,5928,6679,7730,8782,9833,10884,11935]
[work_price] => [1520,1956,2102,2247,2392,2537,2684,2829,2974]
[image] => https://akademik-stroy.ru/wp-content/uploads/materials/sbornye-zh-b-plity-2.jpg
[area_modifier] => 220.09
[parent_name] => Перекрытие цоколя
[parent_id] => 2
[material_sum] => 850520
[work_sum] => 351264
[total_sum] => 1201784
[total_days] => 13
[display_material_sum] => 850 520
[display_work_sum] => 351 264
[display_total_sum] => 1 201 784
)
1
1 201 784₽
Работа:351 264 ₽
Материалы:850 520 ₽
Дни:13
stdClass Object
(
[id] => 78
[attribute_id] => 2
[name] => Монолитная ж/б плита
[material_modifier] => 1
[work_modifier] => 1
[options] => Array
(
[0] => без утепления
[1] => утепление 150 мм
[2] => утепление 200 мм
[3] => утепление 250 мм
[4] => утепление 300 мм
[5] => утепление 350 мм
[6] => утепление 400 мм
[7] => утепление 450 мм
[8] => утепление 500 мм
)
[days] => [18,20,20,20,20,20,20,20,20]
[material_price] => [4837,6572,7224,7375,79426,8177,8728,9180,10031]
[work_price] => [3348,3921,4112,4302,4493,4684,4875,5066,5256]
[image] => https://akademik-stroy.ru/wp-content/uploads/materials/monolitnaya-zh-b-plita-2.jpg
[area_modifier] => 220.09
[parent_name] => Перекрытие цоколя
[parent_id] => 2
[material_sum] => 1341365
[work_sum] => 773704
[total_sum] => 2115069
[total_days] => 18
[display_material_sum] => 1 341 365
[display_work_sum] => 773 704
[display_total_sum] => 2 115 069
)
1
2 115 069₽
Работа:773 704 ₽
Материалы:1 341 365 ₽
Дни:18
stdClass Object
(
[id] => 6
[attribute_id] => 3
[name] => Пеноблок
[material_modifier] => 1
[work_modifier] => 1
[options] => Array
(
[0] => 300 мм
[1] => 400 мм
[2] => 500 мм
[3] => 600 мм
)
[days] => [29,31,34,39]
[material_price] => [3000,4000,4500,4937]
[work_price] => [5033,5805,6400,8710]
[image] => https://akademik-stroy.ru/wp-content/uploads/materials/penoblok.jpg
[area_modifier] => 220.09
[parent_name] => Стены 1 этаж (несущие)
[parent_id] => 3
[material_sum] => 831940
[work_sum] => 1163099
[total_sum] => 1995039
[total_days] => 29
[display_material_sum] => 831 940
[display_work_sum] => 1 163 099
[display_total_sum] => 1 995 039
)
1
1 995 039₽
Работа:1 163 099 ₽
Материалы:831 940 ₽
Дни:29
stdClass Object
(
[id] => 79
[attribute_id] => 3
[name] => Керамический блок
[material_modifier] => 1
[work_modifier] => 1
[options] => Array
(
[0] => 380 мм
[1] => 380 мм Thermo
[2] => 440 мм
[3] => 510 мм
)
[days] => [23,23,24,25]
[material_price] => [4510,5098,6093,8013]
[work_price] => [4737,4937,5903,6958]
[image] => https://akademik-stroy.ru/wp-content/uploads/materials/keramicheskij-blok.jpg
[area_modifier] => 220.09
[parent_name] => Стены 1 этаж (несущие)
[parent_id] => 3
[material_sum] => 1250683
[work_sum] => 1094695
[total_sum] => 2345378
[total_days] => 23
[display_material_sum] => 1 250 683
[display_work_sum] => 1 094 695
[display_total_sum] => 2 345 378
)
1
2 345 378₽
Работа:1 094 695 ₽
Материалы:1 250 683 ₽
Дни:23
stdClass Object
(
[id] => 80
[attribute_id] => 3
[name] => Кирпич
[material_modifier] => 1
[work_modifier] => 1
[options] => Array
(
[0] => Кирпич 250 мм
[1] => Кирпич 380 мм
[2] => Кирпич 510 мм
[3] => Кирпич 640 мм
[4] => Кирпич 770 мм
)
[days] => [30,30,31,33,36]
[material_price] => [5500,7142,9206,10171,12235]
[work_price] => [8736,10041,12018,15240,18462]
[image] => https://akademik-stroy.ru/wp-content/uploads/materials/kirpich.jpg
[area_modifier] => 220.09
[parent_name] => Стены 1 этаж (несущие)
[parent_id] => 3
[material_sum] => 1525224
[work_sum] => 2018842
[total_sum] => 3544066
[total_days] => 30
[display_material_sum] => 1 525 224
[display_work_sum] => 2 018 842
[display_total_sum] => 3 544 066
)
1
3 544 066₽
Работа:2 018 842 ₽
Материалы:1 525 224 ₽
Дни:30
stdClass Object
(
[id] => 81
[attribute_id] => 3
[name] => Монолитные
[material_modifier] => 1
[work_modifier] => 1
[options] => Array
(
[0] => 150 мм
[1] => 200 мм
[2] => 250 мм
[3] => 300 мм
[4] => 350 мм
[5] => 400 мм
)
[days] => [45,46,47,49,50,53]
[material_price] => [6545,7876,10175,12011,13908,15204]
[work_price] => [5106,6444,7698,8552,9807,11461]
[image] => https://akademik-stroy.ru/wp-content/uploads/materials/monolitnye.jpg
[area_modifier] => 220.09
[parent_name] => Стены 1 этаж (несущие)
[parent_id] => 3
[material_sum] => 1815016
[work_sum] => 1179969
[total_sum] => 2994985
[total_days] => 45
[display_material_sum] => 1 815 016
[display_work_sum] => 1 179 969
[display_total_sum] => 2 994 985
)
1
2 994 985₽
Работа:1 179 969 ₽
Материалы:1 815 016 ₽
Дни:45
stdClass Object
(
[id] => 82
[attribute_id] => 3
[name] => Клееный брус
[material_modifier] => 1
[work_modifier] => 1
[options] => Array
(
[0] => 160 мм
[1] => 175 мм
[2] => 200 мм
[3] => 215 мм
[4] => 240 мм
[5] => 270 мм
[6] => 282 мм
)
[days] => [24,28,32,37,40,42,48]
[material_price] => [16975,18773,19950,20545,21599,22159,23275]
[work_price] => [4806,5287,5815,6397,7036,7740,8514]
[image] => https://akademik-stroy.ru/wp-content/uploads/materials/kleenyj-brus.jpg
[area_modifier] => 220.09
[parent_name] => Стены 1 этаж (несущие)
[parent_id] => 3
[material_sum] => 4707395
[work_sum] => 1110640
[total_sum] => 5818035
[total_days] => 24
[display_material_sum] => 4 707 395
[display_work_sum] => 1 110 640
[display_total_sum] => 5 818 035
)
1
5 818 035₽
Работа:1 110 640 ₽
Материалы:4 707 395 ₽
Дни:24
stdClass Object
(
[id] => 83
[attribute_id] => 3
[name] => Каркасные
[material_modifier] => 1
[work_modifier] => 1
[options] => Array
(
[0] => 150 мм
[1] => 200 мм
[2] => 250 мм
[3] => 300 мм
)
[days] => [15,16,17,18]
[material_price] => [2379,2639,2898,3258]
[work_price] => [2418,2686,2985,3716]
[image] => https://akademik-stroy.ru/wp-content/uploads/materials/karkasnye.jpg
[area_modifier] => 220.09
[parent_name] => Стены 1 этаж (несущие)
[parent_id] => 3
[material_sum] => 659729
[work_sum] => 558787
[total_sum] => 1218516
[total_days] => 15
[display_material_sum] => 659 729
[display_work_sum] => 558 787
[display_total_sum] => 1 218 516
)
1
1 218 516₽
Работа:558 787 ₽
Материалы:659 729 ₽
Дни:15
stdClass Object
(
[id] => 84
[attribute_id] => 3
[name] => СИП-панели
[material_modifier] => 1
[work_modifier] => 1
[options] => Array
(
[0] => 120 мм
[1] => 170 мм
[2] => 220 мм
)
[days] => [7,7,7]
[material_price] => [1210,1856,2292]
[work_price] => [1410,1551,1706]
[image] => https://akademik-stroy.ru/wp-content/uploads/materials/sip-paneli.jpg
[area_modifier] => 220.09
[parent_name] => Стены 1 этаж (несущие)
[parent_id] => 3
[material_sum] => 335549
[work_sum] => 325843
[total_sum] => 661392
[total_days] => 7
[display_material_sum] => 335 549
[display_work_sum] => 325 843
[display_total_sum] => 661 392
)
1
661 392₽
Работа:325 843 ₽
Материалы:335 549 ₽
Дни:7
stdClass Object
(
[id] => 85
[attribute_id] => 3
[name] => Сухой брус
[material_modifier] => 1
[work_modifier] => 1
[options] => Array
(
[0] => 150 мм
[1] => 180 мм
[2] => 200 мм
)
[days] => [7,8,9]
[material_price] => [6010,7190,8709]
[work_price] => [3204,3845,4229]
[image] => https://akademik-stroy.ru/wp-content/uploads/materials/suhoj-brus.jpg
[area_modifier] => 220.09
[parent_name] => Стены 1 этаж (несущие)
[parent_id] => 3
[material_sum] => 1666654
[work_sum] => 740427
[total_sum] => 2407081
[total_days] => 7
[display_material_sum] => 1 666 654
[display_work_sum] => 740 427
[display_total_sum] => 2 407 081
)
1
2 407 081₽
Работа:740 427 ₽
Материалы:1 666 654 ₽
Дни:7
stdClass Object
(
[id] => 86
[attribute_id] => 3
[name] => Профилированный брус
[material_modifier] => 1
[work_modifier] => 1
[options] => Array
(
[0] => 150 мм
[1] => 180 мм
[2] => 200 мм
)
[days] => [7,8,9]
[material_price] => [8190,9228,10051]
[work_price] => [3845,4614,5075]
[image] => https://akademik-stroy.ru/wp-content/uploads/materials/profilirovannyj-brus.jpg
[area_modifier] => 220.09
[parent_name] => Стены 1 этаж (несущие)
[parent_id] => 3
[material_sum] => 2271197
[work_sum] => 888558
[total_sum] => 3159755
[total_days] => 7
[display_material_sum] => 2 271 197
[display_work_sum] => 888 558
[display_total_sum] => 3 159 755
)
1
3 159 755₽
Работа:888 558 ₽
Материалы:2 271 197 ₽
Дни:7
stdClass Object
(
[id] => 87
[attribute_id] => 3
[name] => Оцилиндрованное бревно
[material_modifier] => 1
[work_modifier] => 1
[options] => Array
(
[0] => 180 мм
[1] => 220 мм
[2] => 260 мм
[3] => 320 мм
)
[days] => [7,8,9,10]
[material_price] => [75190,9532,10868,13116]
[work_price] => [3845,4691,5535,6863]
[image] => https://akademik-stroy.ru/wp-content/uploads/materials/ocilindrovannoe-brevno-1.jpg
[area_modifier] => 220.09
[parent_name] => Стены 1 этаж (несущие)
[parent_id] => 3
[material_sum] => 20851195
[work_sum] => 888558
[total_sum] => 21739753
[total_days] => 7
[display_material_sum] => 20 851 195
[display_work_sum] => 888 558
[display_total_sum] => 21 739 753
)
1
21 739 753₽
Работа:888 558 ₽
Материалы:20 851 195 ₽
Дни:7
stdClass Object
(
[id] => 88
[attribute_id] => 3
[name] => Срубы
[material_modifier] => 1
[work_modifier] => 1
[options] => Array
(
[0] => 260 мм
[1] => 320 мм
[2] => 360 мм
[3] => 400 мм
[4] => 500 мм
)
[days] => [7,8,9,10,11]
[material_price] => [37975,46709,52314,58069,73167]
[work_price] => [4806,5911,6621,7349,9260]
[image] => https://akademik-stroy.ru/wp-content/uploads/materials/sruby.jpg
[area_modifier] => 220.09
[parent_name] => Стены 1 этаж (несущие)
[parent_id] => 3
[material_sum] => 10530976
[work_sum] => 1110640
[total_sum] => 11641616
[total_days] => 7
[display_material_sum] => 10 530 976
[display_work_sum] => 1 110 640
[display_total_sum] => 11 641 616
)
1
11 641 616₽
Работа:1 110 640 ₽
Материалы:10 530 976 ₽
Дни:7
stdClass Object
(
[id] => 174
[attribute_id] => 3
[name] => Брус
[material_modifier] => 1
[work_modifier] => 1
[options] => Array
(
[0] => 150 мм
[1] => 180 мм
[2] => 200 мм
)
[days] => [7,8,9]
[material_price] => [5127,6152,7367]
[work_price] => [1602,1922,2115]
[image] => https://akademik-stroy.ru/wp-content/uploads/materials/brus.jpg
[area_modifier] => 220.09
[parent_name] => Стены 1 этаж (несущие)
[parent_id] => 3
[material_sum] => 1421786
[work_sum] => 370213
[total_sum] => 1791999
[total_days] => 7
[display_material_sum] => 1 421 786
[display_work_sum] => 370 213
[display_total_sum] => 1 791 999
)
1
1 791 999₽
Работа:370 213 ₽
Материалы:1 421 786 ₽
Дни:7
stdClass Object
(
[id] => 175
[attribute_id] => 3
[name] => Газобетон
[material_modifier] => 1
[work_modifier] => 1
[options] => Array
(
[0] => 300 мм
[1] => 375 мм
[2] => 400 мм
[3] => 500 мм
[4] => 600 мм
)
[days] => [29,31,35,37,44]
[material_price] => [4298,5573,6356,7288,9119]
[work_price] => [4538,5251,5926,6733,7195]
[image] => https://akademik-stroy.ru/wp-content/uploads/materials/gazobeton.jpg
[area_modifier] => 220.09
[parent_name] => Стены 1 этаж (несущие)
[parent_id] => 3
[material_sum] => 1191893
[work_sum] => 1048707
[total_sum] => 2240600
[total_days] => 29
[display_material_sum] => 1 191 893
[display_work_sum] => 1 048 707
[display_total_sum] => 2 240 600
)
1
2 240 600₽
Работа:1 048 707 ₽
Материалы:1 191 893 ₽
Дни:29
stdClass Object
(
[id] => 176
[attribute_id] => 3
[name] => Блок
[material_modifier] => 1
[work_modifier] => 1
[options] => Array
(
[0] => 300 мм
[1] => 375 мм
[2] => 400 мм
[3] => 500 мм
[4] => 600 мм
)
[days] => [29,31,35,37,44]
[material_price] => [2698,3973,4356,6588,7119]
[work_price] => [5038,5851,6426,8733,9195]
[image] => https://akademik-stroy.ru/wp-content/uploads/materials/blok.jpg
[area_modifier] => 220.09
[parent_name] => Стены 1 этаж (несущие)
[parent_id] => 3
[material_sum] => 748192
[work_sum] => 1164254
[total_sum] => 1912446
[total_days] => 29
[display_material_sum] => 748 192
[display_work_sum] => 1 164 254
[display_total_sum] => 1 912 446
)
1
1 912 446₽
Работа:1 164 254 ₽
Материалы:748 192 ₽
Дни:29
stdClass Object
(
[id] => 177
[attribute_id] => 3
[name] => Газосиликатный блок
[material_modifier] => 1
[work_modifier] => 1
[options] => Array
(
[0] => 300 мм
[1] => 375 мм
[2] => 400 мм
[3] => 500 мм
[4] => 600 мм
)
[days] => [29,31,35,37,44]
[material_price] => [4298,5573,6356,7288,9119]
[work_price] => [4538,5251,5926,6733,7195]
[image] => https://akademik-stroy.ru/wp-content/uploads/materials/gazosilikatnyj-blok.jpg
[area_modifier] => 220.09
[parent_name] => Стены 1 этаж (несущие)
[parent_id] => 3
[material_sum] => 1191893
[work_sum] => 1048707
[total_sum] => 2240600
[total_days] => 29
[display_material_sum] => 1 191 893
[display_work_sum] => 1 048 707
[display_total_sum] => 2 240 600
)
1
2 240 600₽
Работа:1 048 707 ₽
Материалы:1 191 893 ₽
Дни:29
stdClass Object
(
[id] => 178
[attribute_id] => 3
[name] => Керамзитобетонный блок
[material_modifier] => 1
[work_modifier] => 1
[options] => Array
(
[0] => 300 мм
[1] => 375 мм
[2] => 400 мм
[3] => 500 мм
[4] => 600 мм
)
[days] => [23,23,24,25,28]
[material_price] => [3641,4298,5693,7613,9612]
[work_price] => [5737,5737,6903,7958,8901]
[image] => https://akademik-stroy.ru/wp-content/uploads/materials/keramzitobetonnyj-blok.jpg
[area_modifier] => 220.09
[parent_name] => Стены 1 этаж (несущие)
[parent_id] => 3
[material_sum] => 1009698
[work_sum] => 1325789
[total_sum] => 2335487
[total_days] => 23
[display_material_sum] => 1 009 698
[display_work_sum] => 1 325 789
[display_total_sum] => 2 335 487
)
1
2 335 487₽
Работа:1 325 789 ₽
Материалы:1 009 698 ₽
Дни:23
stdClass Object
(
[id] => 179
[attribute_id] => 3
[name] => Деревянные
[material_modifier] => 1
[work_modifier] => 1
[options] => Array
(
[0] => 180 мм
[1] => 220 мм
[2] => 260 мм
[3] => 320 мм
)
[days] => [7,8,9,10]
[material_price] => [7950,9458,11961,14472]
[work_price] => [4037,4925,5812,7207]
[image] => https://akademik-stroy.ru/wp-content/uploads/materials/derevyannye.jpg
[area_modifier] => 220.09
[parent_name] => Стены 1 этаж (несущие)
[parent_id] => 3
[material_sum] => 2204642
[work_sum] => 932928
[total_sum] => 3137570
[total_days] => 7
[display_material_sum] => 2 204 642
[display_work_sum] => 932 928
[display_total_sum] => 3 137 570
)
1
3 137 570₽
Работа:932 928 ₽
Материалы:2 204 642 ₽
Дни:7
stdClass Object
(
[id] => 181
[attribute_id] => 3
[name] => Камень
[material_modifier] => 1
[work_modifier] => 1
[options] => Array
(
[0] => 300 мм
[1] => 400 мм
[2] => 500 мм
[3] => 600 мм
)
[days] => [25,27,31,34]
[material_price] => [5262,6844,8330,9815]
[work_price] => [8331,9135,10427,11069]
[image] => https://akademik-stroy.ru/wp-content/uploads/materials/kamen.jpg
[area_modifier] => 220.09
[parent_name] => Стены 1 этаж (несущие)
[parent_id] => 3
[material_sum] => 1459223
[work_sum] => 1925248
[total_sum] => 3384471
[total_days] => 25
[display_material_sum] => 1 459 223
[display_work_sum] => 1 925 248
[display_total_sum] => 3 384 471
)
1
3 384 471₽
Работа:1 925 248 ₽
Материалы:1 459 223 ₽
Дни:25
stdClass Object
(
[id] => 182
[attribute_id] => 3
[name] => Каркасно-щитовые
[material_modifier] => 1
[work_modifier] => 1
[options] => Array
(
[0] => 150 мм
[1] => 200 мм
[2] => 250 мм
[3] => 300 мм
[4] => 350 мм
[5] => 400 мм
)
[days] => [15,16,17,18,19,20]
[material_price] => [2379,2639,2898,3458,3601,4175]
[work_price] => [2538,2820,3134,3483,4062,5642]
[image] => https://akademik-stroy.ru/wp-content/uploads/materials/karkasno-shchitovye.jpg
[area_modifier] => 220.09
[parent_name] => Стены 1 этаж (несущие)
[parent_id] => 3
[material_sum] => 659729
[work_sum] => 586518
[total_sum] => 1246247
[total_days] => 15
[display_material_sum] => 659 729
[display_work_sum] => 586 518
[display_total_sum] => 1 246 247
)
1
1 246 247₽
Работа:586 518 ₽
Материалы:659 729 ₽
Дни:15
stdClass Object
(
[id] => 183
[attribute_id] => 3
[name] => Рубленные
[material_modifier] => 1
[work_modifier] => 1
[options] => Array
(
[0] => 150 мм
[1] => 200 мм
[2] => 250 мм
[3] => 300 мм
[4] => 350 мм
[5] => 400 мм
)
[days] => [15,16,17,18,17,18]
[material_price] => [35950,50267,60583,75900,80217,100533]
[work_price] => [9612,12816,16020,19224,22428,25632]
[image] => https://akademik-stroy.ru/wp-content/uploads/materials/rublennye.jpg
[area_modifier] => 220.09
[parent_name] => Стены 1 этаж (несущие)
[parent_id] => 3
[material_sum] => 9969417
[work_sum] => 2221280
[total_sum] => 12190697
[total_days] => 15
[display_material_sum] => 9 969 417
[display_work_sum] => 2 221 280
[display_total_sum] => 12 190 697
)
1
12 190 697₽
Работа:2 221 280 ₽
Материалы:9 969 417 ₽
Дни:15
stdClass Object
(
[id] => 185
[attribute_id] => 3
[name] => Теплоблок
[material_modifier] => 1
[work_modifier] => 1
[options] => Array
(
[0] => 300 мм (с облицовкой, не покрашенный)
[1] => 400 мм (с облицовкой, не покрашенный)
[2] => 300 мм (с облицовкой, покрашенный)
[3] => 400 мм (с облицовкой, покрашенный)
)
[days] => [15,16,15,16]
[material_price] => [2888,3729,3957,4258]
[work_price] => [2564,3229,2949,3713]
[image] => https://akademik-stroy.ru/wp-content/uploads/materials/teploblok.jpg
[area_modifier] => 220.09
[parent_name] => Стены 1 этаж (несущие)
[parent_id] => 3
[material_sum] => 800881
[work_sum] => 592526
[total_sum] => 1393407
[total_days] => 15
[display_material_sum] => 800 881
[display_work_sum] => 592 526
[display_total_sum] => 1 393 407
)
1
1 393 407₽
Работа:592 526 ₽
Материалы:800 881 ₽
Дни:15
stdClass Object
(
[id] => 186
[attribute_id] => 3
[name] => Арболитовые блоки
[material_modifier] => 1
[work_modifier] => 1
[options] => Array
(
[0] => 300 мм
[1] => 400 мм
[2] => 600 мм
)
[days] => [19,22,27]
[material_price] => [3210,4475,5852]
[work_price] => [4214,4788,5866]
[image] => https://akademik-stroy.ru/wp-content/uploads/materials/arbolitovye-bloki.png
[area_modifier] => 220.09
[parent_name] => Стены 1 этаж (несущие)
[parent_id] => 3
[material_sum] => 890176
[work_sum] => 973832
[total_sum] => 1864008
[total_days] => 19
[display_material_sum] => 890 176
[display_work_sum] => 973 832
[display_total_sum] => 1 864 008
)
1
1 864 008₽
Работа:973 832 ₽
Материалы:890 176 ₽
Дни:19
stdClass Object
(
[id] => 187
[attribute_id] => 3
[name] => Полистиролбетон
[material_modifier] => 1
[work_modifier] => 1
[options] => Array
(
[0] => 300 мм
[1] => 400 мм
[2] => 600 мм
)
[days] => [29,31,35]
[material_price] => [2798,4573,5256]
[work_price] => [5038,5851,6426]
[image] => https://akademik-stroy.ru/wp-content/uploads/materials/polistirolbeton.jpg
[area_modifier] => 220.09
[parent_name] => Стены 1 этаж (несущие)
[parent_id] => 3
[material_sum] => 775923
[work_sum] => 1164254
[total_sum] => 1940177
[total_days] => 29
[display_material_sum] => 775 923
[display_work_sum] => 1 164 254
[display_total_sum] => 1 940 177
)
1
1 940 177₽
Работа:1 164 254 ₽
Материалы:775 923 ₽
Дни:29
stdClass Object
(
[id] => 188
[attribute_id] => 3
[name] => Шлакоблок
[material_modifier] => 1
[work_modifier] => 1
[options] => Array
(
[0] => 400 мм
[1] => 600 мм
)
[days] => [15,16]
[material_price] => [2391,3471]
[work_price] => [2642,3662]
[image] => https://akademik-stroy.ru/wp-content/uploads/materials/shlakoblok.jpg
[area_modifier] => 220.09
[parent_name] => Стены 1 этаж (несущие)
[parent_id] => 3
[material_sum] => 663056
[work_sum] => 610552
[total_sum] => 1273608
[total_days] => 15
[display_material_sum] => 663 056
[display_work_sum] => 610 552
[display_total_sum] => 1 273 608
)
1
1 273 608₽
Работа:610 552 ₽
Материалы:663 056 ₽
Дни:15
stdClass Object
(
[id] => 189
[attribute_id] => 3
[name] => Теплая керамика
[material_modifier] => 1
[work_modifier] => 1
[options] => Array
(
[0] => 380 мм
[1] => 380 мм Thermo
[2] => 440 мм
[3] => 510 мм
)
[days] => [23,23,24,25]
[material_price] => [4510,5098,6093,8013]
[work_price] => [4737,4937,5903,6958]
[image] => https://akademik-stroy.ru/wp-content/uploads/materials/teplaya-keramika.jpg
[area_modifier] => 220.09
[parent_name] => Стены 1 этаж (несущие)
[parent_id] => 3
[material_sum] => 1250683
[work_sum] => 1094695
[total_sum] => 2345378
[total_days] => 23
[display_material_sum] => 1 250 683
[display_work_sum] => 1 094 695
[display_total_sum] => 2 345 378
)
1
2 345 378₽
Работа:1 094 695 ₽
Материалы:1 250 683 ₽
Дни:23
stdClass Object
(
[id] => 190
[attribute_id] => 3
[name] => Несъемная опалубка
[material_modifier] => 1
[work_modifier] => 1
[options] => Array
(
[0] => 200 мм
[1] => 250 мм
[2] => 300 мм
[3] => 350 мм
)
[days] => [15,17,19,21]
[material_price] => [3302,3902,4108,5008]
[work_price] => [2100,2100,2300,2534]
[image] => https://akademik-stroy.ru/wp-content/uploads/materials/nesemnaya-opalubka.jpg
[area_modifier] => 220.09
[parent_name] => Стены 1 этаж (несущие)
[parent_id] => 3
[material_sum] => 915689
[work_sum] => 485298
[total_sum] => 1400987
[total_days] => 15
[display_material_sum] => 915 689
[display_work_sum] => 485 298
[display_total_sum] => 1 400 987
)
1
1 400 987₽
Работа:485 298 ₽
Материалы:915 689 ₽
Дни:15
stdClass Object
(
[id] => 251
[attribute_id] => 3
[name] => Бревно
[material_modifier] => 1
[work_modifier] => 1
[options] => Array
(
[0] => 260 мм
[1] => 320 мм
[2] => 360 мм
[3] => 400 мм
[4] => 500 мм
)
[days] => [7,8,9,10,11]
[material_price] => [1874,24045,26930,30972,38825]
[work_price] => [5046,6207,6952,7716,9723]
[image] => https://akademik-stroy.ru/wp-content/uploads/materials/sruby.jpg
[area_modifier] => 220.09
[parent_name] => Стены 1 этаж (несущие)
[parent_id] => 3
[material_sum] => 519685
[work_sum] => 1166103
[total_sum] => 1685788
[total_days] => 7
[display_material_sum] => 519 685
[display_work_sum] => 1 166 103
[display_total_sum] => 1 685 788
)
1
1 685 788₽
Работа:1 166 103 ₽
Материалы:519 685 ₽
Дни:7
stdClass Object
(
[id] => 7
[attribute_id] => 4
[name] => Деревянные балки
[material_modifier] => 1
[work_modifier] => 1
[options] => Array
(
[0] => без утепления
[1] => утепление 200 мм
[2] => утепление 250 мм
[3] => утепление 300 мм
[4] => утепление 350 мм
[5] => утепление 400 мм
[6] => утепление 450 мм
[7] => утепление 500 мм
)
[days] => [8,9,9,9,11,12,13,14]
[material_price] => [1634,2042,2344,2947,3149,3652,3354,3557]
[work_price] => [1230,1339,1393,1426,1460,1513,1587,1620]
[image] => https://akademik-stroy.ru/wp-content/uploads/materials/derevyannye-balki.png
[area_modifier] => 220.09
[parent_name] => Перекрытие первого этажа
[parent_id] => 4
[material_sum] => 453130
[work_sum] => 284246
[total_sum] => 737376
[total_days] => 8
[display_material_sum] => 453 130
[display_work_sum] => 284 246
[display_total_sum] => 737 376
)
1
737 376₽
Работа:284 246 ₽
Материалы:453 130 ₽
Дни:8
stdClass Object
(
[id] => 8
[attribute_id] => 4
[name] => Сборные ж/б плиты
[material_modifier] => 1
[work_modifier] => 1
[options] => Array
(
[0] => без утепления
[1] => утепление 150 мм
[2] => утепление 200 мм
[3] => утепление 250 мм
[4] => утепление 300 мм
[5] => утепление 350 мм
[6] => утепление 400 мм
[7] => утепление 450 мм
[8] => утепление 500 мм
)
[days] => [13,15,15,15,15,15,15,15,15]
[material_price] => [3067,5577,5928,6679,7730,8782,9833,10884,11935]
[work_price] => [1520,1956,2102,2247,2392,2537,2684,2829,2974]
[image] => https://akademik-stroy.ru/wp-content/uploads/materials/sbornye-zh-b-plity-2.jpg
[area_modifier] => 220.09
[parent_name] => Перекрытие первого этажа
[parent_id] => 4
[material_sum] => 850520
[work_sum] => 351264
[total_sum] => 1201784
[total_days] => 13
[display_material_sum] => 850 520
[display_work_sum] => 351 264
[display_total_sum] => 1 201 784
)
1
1 201 784₽
Работа:351 264 ₽
Материалы:850 520 ₽
Дни:13
stdClass Object
(
[id] => 89
[attribute_id] => 4
[name] => Монолитная ж/б плита
[material_modifier] => 1
[work_modifier] => 1
[options] => Array
(
[0] => без утепления
[1] => утепление 150 мм
[2] => утепление 200 мм
[3] => утепление 250 мм
[4] => утепление 300 мм
[5] => утепление 350 мм
[6] => утепление 400 мм
[7] => утепление 450 мм
[8] => утепление 500 мм
)
[days] => [18,20,20,20,20,20,20,20,20]
[material_price] => [4837,6572,7224,7375,79426,8177,8728,9180,10031]
[work_price] => [3348,3921,4112,4302,4493,4684,4875,5066,5256]
[image] => https://akademik-stroy.ru/wp-content/uploads/materials/monolitnaya-zh-b-plita-2.jpg
[area_modifier] => 220.09
[parent_name] => Перекрытие первого этажа
[parent_id] => 4
[material_sum] => 1341365
[work_sum] => 773704
[total_sum] => 2115069
[total_days] => 18
[display_material_sum] => 1 341 365
[display_work_sum] => 773 704
[display_total_sum] => 2 115 069
)
1
2 115 069₽
Работа:773 704 ₽
Материалы:1 341 365 ₽
Дни:18
stdClass Object
(
[id] => 160
[attribute_id] => 36
[name] => Не эксплуатируемая
[material_modifier] => 1
[work_modifier] => 1
[options] => Array
(
)
[days] => [10]
[material_price] => [8068]
[work_price] => [4163]
[image] => https://akademik-stroy.ru/wp-content/uploads/materials/ne-ehkspluatiruemaya-3.jpg
[area_modifier] => 220.09
[parent_name] => Плоская крыша
[parent_id] => 36
[material_sum] => 2237365
[work_sum] => 962046
[total_sum] => 3199411
[total_days] => 10
[display_material_sum] => 2 237 365
[display_work_sum] => 962 046
[display_total_sum] => 3 199 411
)
1
3 199 411₽
Работа:962 046 ₽
Материалы:2 237 365 ₽
Дни:10
stdClass Object
(
[id] => 161
[attribute_id] => 36
[name] => Зеленая кровля (Эксплуатируемая)
[material_modifier] => 1
[work_modifier] => 1
[options] => Array
(
)
[days] => [10]
[material_price] => [10056]
[work_price] => [8446]
[image] => https://akademik-stroy.ru/wp-content/uploads/materials/zelenaya-krovlya-2.jpg
[area_modifier] => 220.09
[parent_name] => Плоская крыша
[parent_id] => 36
[material_sum] => 2788664
[work_sum] => 1951824
[total_sum] => 4740488
[total_days] => 10
[display_material_sum] => 2 788 664
[display_work_sum] => 1 951 824
[display_total_sum] => 4 740 488
)
1
4 740 488₽
Работа:1 951 824 ₽
Материалы:2 788 664 ₽
Дни:10
stdClass Object
(
[id] => 162
[attribute_id] => 36
[name] => Эксплуатируемая
[material_modifier] => 1
[work_modifier] => 1
[options] => Array
(
)
[days] => [10]
[material_price] => [9593]
[work_price] => [7459]
[image] => https://akademik-stroy.ru/wp-content/uploads/materials/ehkspluatiruemaya-2.jpg
[area_modifier] => 220.09
[parent_name] => Плоская крыша
[parent_id] => 36
[material_sum] => 2660267
[work_sum] => 1723734
[total_sum] => 4384001
[total_days] => 10
[display_material_sum] => 2 660 267
[display_work_sum] => 1 723 734
[display_total_sum] => 4 384 001
)
1
4 384 001₽
Работа:1 723 734 ₽
Материалы:2 660 267 ₽
Дни:10
stdClass Object
(
[id] => 163
[attribute_id] => 36
[name] => Нет
[material_modifier] => 1
[work_modifier] => 1
[options] => Array
(
)
[days] => [0]
[material_price] => [0]
[work_price] => [0]
[image] => https://akademik-stroy.ru/wp-content/uploads/materials/ne-ehkspluatiruemaya-3.jpg
[area_modifier] => 220.09
[parent_name] => Плоская крыша
[parent_id] => 36
[material_sum] => 0
[work_sum] => 0
[total_sum] => 0
[total_days] => 0
[display_material_sum] => 0
[display_work_sum] => 0
[display_total_sum] => 0
)
1
0₽
Работа:0 ₽
Материалы:0 ₽
Дни:0
stdClass Object
(
[id] => 51
[attribute_id] => 26
[name] => Есть
[material_modifier] => 1
[work_modifier] => 1
[options] => Array
(
[0] => Профиль 58 мм, 3-камерный, стеклопакет 2-камерный до 32 мм
[1] => Профиль 60 мм, 4-камерный, стеклопакет 2-камерный до 32 мм
[2] => Профиль 70 мм, 5-камерный, стеклопакет 2-камерный до 40 мм
[3] => Профиль 72 мм, 5-камерный, стеклопакет 2-камерный до 40 мм
[4] => Алюминиевые окна Alutech профиль 72 мм, стеклопакет 2-камерный
)
[days] => [3,3,3,3,3]
[material_price] => [1339,2124,2867,3023,29596]
[work_price] => [635,647,659,668,2579]
[image] => https://akademik-stroy.ru/wp-content/uploads/materials/okna.jpg
[area_modifier] => 178.6
[parent_name] => Окна
[parent_id] => 26
[material_sum] => 301323
[work_sum] => 119082
[total_sum] => 420405
[total_days] => 3
[display_material_sum] => 301 323
[display_work_sum] => 119 082
[display_total_sum] => 420 405
)
1
420 405₽
Работа:119 082 ₽
Материалы:301 323 ₽
Дни:3
stdClass Object
(
[id] => 52
[attribute_id] => 26
[name] => Нет
[material_modifier] => 2
[work_modifier] => 1
[options] =>
[days] => null
[material_price] => null
[work_price] => null
[image] => https://akademik-stroy.ru/wp-content/uploads/materials/okna.jpg
[area_modifier] => 178.6
[parent_name] => Окна
[parent_id] => 26
[material_sum] => 0
[work_sum] => 0
[total_sum] => 0
[total_days] => 0
[display_material_sum] => 0
[display_work_sum] => 0
[display_total_sum] => 0
)
1
0₽
Работа:0 ₽
Материалы:0 ₽
Дни:0
stdClass Object
(
[id] => 53
[attribute_id] => 27
[name] => Есть
[material_modifier] => 1
[work_modifier] => 1
[options] => Array
(
)
[days] => [1]
[material_price] => [10000]
[work_price] => [5500]
[image] => https://akademik-stroy.ru/wp-content/uploads/materials/dveri.jpg
[area_modifier] => 1
[parent_name] => Двери входные
[parent_id] => 27
[material_sum] => 12600
[work_sum] => 5775
[total_sum] => 18375
[total_days] => 1
[display_material_sum] => 12 600
[display_work_sum] => 5 775
[display_total_sum] => 18 375
)
1
18 375₽
Работа:5 775 ₽
Материалы:12 600 ₽
Дни:1
stdClass Object
(
[id] => 54
[attribute_id] => 27
[name] => Нет
[material_modifier] => 1
[work_modifier] => 1
[options] => Array
(
)
[days] => [0]
[material_price] => [0]
[work_price] => [0]
[image] => https://akademik-stroy.ru/wp-content/uploads/materials/dveri.jpg
[area_modifier] => 1
[parent_name] => Двери входные
[parent_id] => 27
[material_sum] => 0
[work_sum] => 0
[total_sum] => 0
[total_days] => 0
[display_material_sum] => 0
[display_work_sum] => 0
[display_total_sum] => 0
)
1
0₽
Работа:0 ₽
Материалы:0 ₽
Дни:0
stdClass Object
(
[id] => 31
[attribute_id] => 16
[name] => Нет
[material_modifier] => 1
[work_modifier] => 1
[options] => Array
(
)
[days] => [0]
[material_price] => [0]
[work_price] => [0]
[image] => https://akademik-stroy.ru/wp-content/uploads/materials/docke-standard-pvh.jpg
[area_modifier] => 220.09
[parent_name] => Водосточная система
[parent_id] => 16
[material_sum] => 0
[work_sum] => 0
[total_sum] => 0
[total_days] => 0
[display_material_sum] => 0
[display_work_sum] => 0
[display_total_sum] => 0
)
1
0₽
Работа:0 ₽
Материалы:0 ₽
Дни:0
stdClass Object
(
[id] => 32
[attribute_id] => 16
[name] => Есть
[material_modifier] => 1
[work_modifier] => 1
[options] => Array
(
[0] => Döcke Standard (ПВХ)
[1] => Металлические Grand Line
)
[days] => [7,7]
[material_price] => [1842,2703]
[work_price] => [1491,1529]
[image] => https://akademik-stroy.ru/wp-content/uploads/materials/docke-standard-pvh.jpg
[area_modifier] => 220.09
[parent_name] => Водосточная система
[parent_id] => 16
[material_sum] => 510811
[work_sum] => 344562
[total_sum] => 855373
[total_days] => 7
[display_material_sum] => 510 811
[display_work_sum] => 344 562
[display_total_sum] => 855 373
)
1
855 373₽
Работа:344 562 ₽
Материалы:510 811 ₽
Дни:7
stdClass Object
(
[id] => 33
[attribute_id] => 17
[name] => Нет
[material_modifier] => 1
[work_modifier] => 1
[options] => Array
(
)
[days] => [0]
[material_price] => [0]
[work_price] => [0]
[image] => https://akademik-stroy.ru/wp-content/uploads/materials/mineralovata.jpg
[area_modifier] => 220.09
[parent_name] => Дополнительное утепление наружных стен
[parent_id] => 17
[material_sum] => 0
[work_sum] => 0
[total_sum] => 0
[total_days] => 0
[display_material_sum] => 0
[display_work_sum] => 0
[display_total_sum] => 0
)
1
0₽
Работа:0 ₽
Материалы:0 ₽
Дни:0
stdClass Object
(
[id] => 34
[attribute_id] => 17
[name] => Минераловатный
[material_modifier] => 1
[work_modifier] => 1
[options] => Array
(
[0] => 50 мм
[1] => 100 мм
[2] => 150 мм
[3] => 200 мм
[4] => 250 мм
[5] => 300 мм
)
[days] => [7,8,10,12,14,15]
[material_price] => [3437,3613,3803,3915,4601,4830]
[work_price] => [2325,2423,2523,2749,2859,3025]
[image] => https://akademik-stroy.ru/wp-content/uploads/materials/mineralovata.jpg
[area_modifier] => 220.09
[parent_name] => Дополнительное утепление наружных стен
[parent_id] => 17
[material_sum] => 953126
[work_sum] => 537295
[total_sum] => 1490421
[total_days] => 7
[display_material_sum] => 953 126
[display_work_sum] => 537 295
[display_total_sum] => 1 490 421
)
1
1 490 421₽
Работа:537 295 ₽
Материалы:953 126 ₽
Дни:7
stdClass Object
(
[id] => 128
[attribute_id] => 17
[name] => Эковата (целлюлозная вата)
[material_modifier] => 1
[work_modifier] => 1
[options] => Array
(
[0] => 50 мм
[1] => 100 мм
[2] => 150 мм
[3] => 200 мм
[4] => 250 мм
[5] => 300 мм
)
[days] => [3,4,5,6,7,8]
[material_price] => [810,1319,1629,1838,2267,2676]
[work_price] => [1225,1323,1423,1549,1659,1725]
[image] => https://akademik-stroy.ru/wp-content/uploads/materials/ehkovata.jpg
[area_modifier] => 220.09
[parent_name] => Дополнительное утепление наружных стен
[parent_id] => 17
[material_sum] => 224624
[work_sum] => 283091
[total_sum] => 507715
[total_days] => 3
[display_material_sum] => 224 624
[display_work_sum] => 283 091
[display_total_sum] => 507 715
)
1
507 715₽
Работа:283 091 ₽
Материалы:224 624 ₽
Дни:3
stdClass Object
(
[id] => 129
[attribute_id] => 17
[name] => Экструдированный пенополистирол
[material_modifier] => 1
[work_modifier] => 1
[options] => Array
(
[0] => 50 мм
[1] => 100 мм
[2] => 150 мм
[3] => 200 мм
[4] => 250 мм
[5] => 300 мм
)
[days] => [5,6,7,8,9,10]
[material_price] => [4560,4300,5119,6292,7010,8583]
[work_price] => [1795,1954,2254,2330,2595,2735]
[image] => https://akademik-stroy.ru/wp-content/uploads/materials/epps.jpg
[area_modifier] => 220.09
[parent_name] => Дополнительное утепление наружных стен
[parent_id] => 17
[material_sum] => 1264549
[work_sum] => 414815
[total_sum] => 1679364
[total_days] => 5
[display_material_sum] => 1 264 549
[display_work_sum] => 414 815
[display_total_sum] => 1 679 364
)
1
1 679 364₽
Работа:414 815 ₽
Материалы:1 264 549 ₽
Дни:5
stdClass Object
(
[id] => 130
[attribute_id] => 17
[name] => ПСБ (ППС-пенополистирол)
[material_modifier] => 1
[work_modifier] => 1
[options] => Array
(
[0] => 50 мм
[1] => 100 мм
[2] => 150 мм
[3] => 200 мм
[4] => 250 мм
[5] => 300 мм
)
[days] => [5,6,7,8,9,10]
[material_price] => [4822,5200,5819,6292,7010,7583]
[work_price] => [1795,1954,2254,2330,2595,2735]
[image] => https://akademik-stroy.ru/wp-content/uploads/materials/psb.jpg
[area_modifier] => 220.09
[parent_name] => Дополнительное утепление наружных стен
[parent_id] => 17
[material_sum] => 1337205
[work_sum] => 414815
[total_sum] => 1752020
[total_days] => 5
[display_material_sum] => 1 337 205
[display_work_sum] => 414 815
[display_total_sum] => 1 752 020
)
1
1 752 020₽
Работа:414 815 ₽
Материалы:1 337 205 ₽
Дни:5
stdClass Object
(
[id] => 131
[attribute_id] => 17
[name] => ППУ (Пенополиуретан)
[material_modifier] => 1
[work_modifier] => 1
[options] => Array
(
[0] => 50 мм
[1] => 100 мм
[2] => 150 мм
[3] => 200 мм
[4] => 250 мм
[5] => 300 мм
)
[days] => [3,4,5,6,7,8]
[material_price] => [2860,3400,4219,4592,5010,5583]
[work_price] => [729,900,980,1120,1280,1530]
[image] => https://akademik-stroy.ru/wp-content/uploads/materials/ppu.jpg
[area_modifier] => 220.09
[parent_name] => Дополнительное утепление наружных стен
[parent_id] => 17
[material_sum] => 793116
[work_sum] => 168468
[total_sum] => 961584
[total_days] => 3
[display_material_sum] => 793 116
[display_work_sum] => 168 468
[display_total_sum] => 961 584
)
1
961 584₽
Работа:168 468 ₽
Материалы:793 116 ₽
Дни:3
stdClass Object
(
[id] => 132
[attribute_id] => 17
[name] => PIR-плиты (пенополиизоцианурат)
[material_modifier] => 1
[work_modifier] => 1
[options] => Array
(
[0] => 50 мм
[1] => 100 мм
[2] => 150 мм
[3] => 200 мм
[4] => 250 мм
[5] => 300 мм
)
[days] => [5,6,7,8,9,10]
[material_price] => [8323,15645,20968,25900,29258,30581]
[work_price] => [800,900,970,1150,1280,1330]
[image] => https://akademik-stroy.ru/wp-content/uploads/materials/pir.jpg
[area_modifier] => 220.09
[parent_name] => Дополнительное утепление наружных стен
[parent_id] => 17
[material_sum] => 2308079
[work_sum] => 184876
[total_sum] => 2492955
[total_days] => 5
[display_material_sum] => 2 308 079
[display_work_sum] => 184 876
[display_total_sum] => 2 492 955
)
1
2 492 955₽
Работа:184 876 ₽
Материалы:2 308 079 ₽
Дни:5
stdClass Object
(
[id] => 37
[attribute_id] => 19
[name] => Нет
[material_modifier] => 1
[work_modifier] => 1
[options] => Array
(
)
[days] => [0]
[material_price] => [0]
[work_price] => [0]
[image] => https://akademik-stroy.ru/wp-content/uploads/materials/imitaciya-brusa.jpg
[area_modifier] => 220.09
[parent_name] => Наружная отделка фасада
[parent_id] => 19
[material_sum] => 0
[work_sum] => 0
[total_sum] => 0
[total_days] => 0
[display_material_sum] => 0
[display_work_sum] => 0
[display_total_sum] => 0
)
1
0₽
Работа:0 ₽
Материалы:0 ₽
Дни:0
stdClass Object
(
[id] => 38
[attribute_id] => 19
[name] => Имитация бруса
[material_modifier] => 1
[work_modifier] => 1
[options] => Array
(
[0] => Сосна
[1] => Ель
[2] => Лиственница
)
[days] => [20,20,20]
[material_price] => [2994,2762,4954]
[work_price] => [1397,1231,1577]
[image] => https://akademik-stroy.ru/wp-content/uploads/materials/imitaciya-brusa.jpg
[area_modifier] => 220.09
[parent_name] => Наружная отделка фасада
[parent_id] => 19
[material_sum] => 830276
[work_sum] => 322839
[total_sum] => 1153115
[total_days] => 20
[display_material_sum] => 830 276
[display_work_sum] => 322 839
[display_total_sum] => 1 153 115
)
1
1 153 115₽
Работа:322 839 ₽
Материалы:830 276 ₽
Дни:20
stdClass Object
(
[id] => 136
[attribute_id] => 19
[name] => Планкен
[material_modifier] => 1
[work_modifier] => 1
[options] => Array
(
[0] => Сосна
[1] => Ель
[2] => Лиственница
)
[days] => [20,20,20]
[material_price] => [3194,2862,5154]
[work_price] => [1537,1354,1735]
[image] => https://akademik-stroy.ru/wp-content/uploads/materials/planken.jpg
[area_modifier] => 220.09
[parent_name] => Наружная отделка фасада
[parent_id] => 19
[material_sum] => 885739
[work_sum] => 355192
[total_sum] => 1240931
[total_days] => 20
[display_material_sum] => 885 739
[display_work_sum] => 355 192
[display_total_sum] => 1 240 931
)
1
1 240 931₽
Работа:355 192 ₽
Материалы:885 739 ₽
Дни:20
stdClass Object
(
[id] => 137
[attribute_id] => 19
[name] => Штукатурка
[material_modifier] => 1
[work_modifier] => 1
[options] => Array
(
[0] => Цементно-песчаная (минеральная)
[1] => Мокрый фасад
)
[days] => [35,35]
[material_price] => [2231,3938]
[work_price] => [1202,2422]
[image] => https://akademik-stroy.ru/wp-content/uploads/materials/shtukaturka.jpg
[area_modifier] => 220.09
[parent_name] => Наружная отделка фасада
[parent_id] => 19
[material_sum] => 618686
[work_sum] => 277776
[total_sum] => 896462
[total_days] => 35
[display_material_sum] => 618 686
[display_work_sum] => 277 776
[display_total_sum] => 896 462
)
1
896 462₽
Работа:277 776 ₽
Материалы:618 686 ₽
Дни:35
stdClass Object
(
[id] => 138
[attribute_id] => 19
[name] => Облицовочный кирпич
[material_modifier] => 1
[work_modifier] => 1
[options] => Array
(
[0] => Керамический
[1] => Клинкерный
[2] => Ручной формовки
[3] => Гиперпрессованный
[4] => Силикатный кирпич
)
[days] => [45,45,45,45,45]
[material_price] => [8174,9148,1040,1257,5876]
[work_price] => [3240,3758,4536,4017,3369]
[image] => https://akademik-stroy.ru/wp-content/uploads/materials/oblicovochnyj-kirpich.jpg
[area_modifier] => 220.09
[parent_name] => Наружная отделка фасада
[parent_id] => 19
[material_sum] => 2266760
[work_sum] => 748746
[total_sum] => 3015506
[total_days] => 45
[display_material_sum] => 2 266 760
[display_work_sum] => 748 746
[display_total_sum] => 3 015 506
)
1
3 015 506₽
Работа:748 746 ₽
Материалы:2 266 760 ₽
Дни:45
stdClass Object
(
[id] => 139
[attribute_id] => 19
[name] => Фасадная плитка
[material_modifier] => 1
[work_modifier] => 1
[options] => Array
(
[0] => Клинкерная
[1] => Керамическая
[2] => Плитка ручной формовки
)
[days] => [40,40,40]
[material_price] => [2974,1487,3470]
[work_price] => [3007,2592,3629]
[image] => https://akademik-stroy.ru/wp-content/uploads/materials/fasadnaya-plitka.jpg
[area_modifier] => 220.09
[parent_name] => Наружная отделка фасада
[parent_id] => 19
[material_sum] => 824730
[work_sum] => 694901
[total_sum] => 1519631
[total_days] => 40
[display_material_sum] => 824 730
[display_work_sum] => 694 901
[display_total_sum] => 1 519 631
)
1
1 519 631₽
Работа:694 901 ₽
Материалы:824 730 ₽
Дни:40
stdClass Object
(
[id] => 140
[attribute_id] => 19
[name] => Сайдинг
[material_modifier] => 1
[work_modifier] => 1
[options] => Array
(
[0] => Виниловый
[1] => Металлический
[2] => Фиброцементный
)
[days] => [20,20,20]
[material_price] => [1263,1944,4147]
[work_price] => [1263,1944,2074]
[image] => https://akademik-stroy.ru/wp-content/uploads/materials/sajding.jpg
[area_modifier] => 220.09
[parent_name] => Наружная отделка фасада
[parent_id] => 19
[material_sum] => 350247
[work_sum] => 291872
[total_sum] => 642119
[total_days] => 20
[display_material_sum] => 350 247
[display_work_sum] => 291 872
[display_total_sum] => 642 119
)
1
642 119₽
Работа:291 872 ₽
Материалы:350 247 ₽
Дни:20
stdClass Object
(
[id] => 141
[attribute_id] => 19
[name] => Камень
[material_modifier] => 1
[work_modifier] => 1
[options] => Array
(
[0] => Травертин
[1] => Дагестанский
[2] => Искусственный
[3] => Натуральный
[4] => Керамогранит
)
[days] => [45,45,45,45,45]
[material_price] => [4536,3888,2592,3240,2462]
[work_price] => [3240,3240,2462,3110,1944]
[image] => https://akademik-stroy.ru/wp-content/uploads/materials/kamen-1.jpg
[area_modifier] => 220.09
[parent_name] => Наружная отделка фасада
[parent_id] => 19
[material_sum] => 1257894
[work_sum] => 748746
[total_sum] => 2006640
[total_days] => 45
[display_material_sum] => 1 257 894
[display_work_sum] => 748 746
[display_total_sum] => 2 006 640
)
1
2 006 640₽
Работа:748 746 ₽
Материалы:1 257 894 ₽
Дни:45
stdClass Object
(
[id] => 142
[attribute_id] => 19
[name] => Термопанели
[material_modifier] => 1
[work_modifier] => 1
[options] => Array
(
)
[days] => [20]
[material_price] => [6221]
[work_price] => [2333]
[image] => https://akademik-stroy.ru/wp-content/uploads/materials/termo.png
[area_modifier] => 220.09
[parent_name] => Наружная отделка фасада
[parent_id] => 19
[material_sum] => 1725167
[work_sum] => 539143
[total_sum] => 2264310
[total_days] => 20
[display_material_sum] => 1 725 167
[display_work_sum] => 539 143
[display_total_sum] => 2 264 310
)
1
2 264 310₽
Работа:539 143 ₽
Материалы:1 725 167 ₽
Дни:20
stdClass Object
(
[id] => 143
[attribute_id] => 19
[name] => Плитка HAUBERK
[material_modifier] => 1
[work_modifier] => 1
[options] => Array
(
)
[days] => [20]
[material_price] => [2786]
[work_price] => [1944]
[image] => https://akademik-stroy.ru/wp-content/uploads/materials/hauberk.jpg
[area_modifier] => 220.09
[parent_name] => Наружная отделка фасада
[parent_id] => 19
[material_sum] => 772595
[work_sum] => 449248
[total_sum] => 1221843
[total_days] => 20
[display_material_sum] => 772 595
[display_work_sum] => 449 248
[display_total_sum] => 1 221 843
)
1
1 221 843₽
Работа:449 248 ₽
Материалы:772 595 ₽
Дни:20
stdClass Object
(
[id] => 144
[attribute_id] => 19
[name] => Фальцевый фасад
[material_modifier] => 1
[work_modifier] => 1
[options] => Array
(
)
[days] => [20]
[material_price] => [3240]
[work_price] => [2592]
[image] => https://akademik-stroy.ru/wp-content/uploads/materials/falcevyj-fasad.jpg
[area_modifier] => 220.09
[parent_name] => Наружная отделка фасада
[parent_id] => 19
[material_sum] => 898495
[work_sum] => 598997
[total_sum] => 1497492
[total_days] => 20
[display_material_sum] => 898 495
[display_work_sum] => 598 997
[display_total_sum] => 1 497 492
)
1
1 497 492₽
Работа:598 997 ₽
Материалы:898 495 ₽
Дни:20
stdClass Object
(
[id] => 145
[attribute_id] => 19
[name] => Комбинированный
[material_modifier] => 1
[work_modifier] => 1
[options] => Array
(
)
[days] => [20]
[material_price] => [4629]
[work_price] => [3499]
[image] => https://akademik-stroy.ru/wp-content/uploads/materials/Kombinirovannyj.jpg
[area_modifier] => 220.09
[parent_name] => Наружная отделка фасада
[parent_id] => 19
[material_sum] => 1283684
[work_sum] => 808600
[total_sum] => 2092284
[total_days] => 20
[display_material_sum] => 1 283 684
[display_work_sum] => 808 600
[display_total_sum] => 2 092 284
)
1
2 092 284₽
Работа:808 600 ₽
Материалы:1 283 684 ₽
Дни:20
stdClass Object
(
[id] => 257
[attribute_id] => 19
[name] => Японские фиброцементные
[material_modifier] => 1
[work_modifier] => 1
[options] => Array
(
)
[days] => [20]
[material_price] => [7043]
[work_price] => [2993]
[image] => https://akademik-stroy.ru/wp-content/uploads/materials/paneli.jpg
[area_modifier] => 220.09
[parent_name] => Наружная отделка фасада
[parent_id] => 19
[material_sum] => 1953118
[work_sum] => 691666
[total_sum] => 2644784
[total_days] => 20
[display_material_sum] => 1 953 118
[display_work_sum] => 691 666
[display_total_sum] => 2 644 784
)
1
2 644 784₽
Работа:691 666 ₽
Материалы:1 953 118 ₽
Дни:20
stdClass Object
(
[id] => 258
[attribute_id] => 19
[name] => Панели Каньон
[material_modifier] => 1
[work_modifier] => 1
[options] => Array
(
)
[days] => [20]
[material_price] => [4543]
[work_price] => [2592]
[image] => https://akademik-stroy.ru/wp-content/uploads/materials/kanon.png
[area_modifier] => 220.09
[parent_name] => Наружная отделка фасада
[parent_id] => 19
[material_sum] => 1259835
[work_sum] => 598997
[total_sum] => 1858832
[total_days] => 20
[display_material_sum] => 1 259 835
[display_work_sum] => 598 997
[display_total_sum] => 1 858 832
)
1
1 858 832₽
Работа:598 997 ₽
Материалы:1 259 835 ₽
Дни:20
stdClass Object
(
[id] => 39
[attribute_id] => 20
[name] => Нет
[material_modifier] => 1
[work_modifier] => 1
[options] => Array
(
)
[days] => [0]
[material_price] => [0]
[work_price] => [0]
[image] => https://akademik-stroy.ru/wp-content/uploads/materials/terrasy.jpg
[area_modifier] => 30
[parent_name] => Террасы, крыльца, навесы
[parent_id] => 20
[material_sum] => 0
[work_sum] => 0
[total_sum] => 0
[total_days] => 0
[display_material_sum] => 0
[display_work_sum] => 0
[display_total_sum] => 0
)
1
0₽
Работа:0 ₽
Материалы:0 ₽
Дни:0
stdClass Object
(
[id] => 40
[attribute_id] => 20
[name] => Есть
[material_modifier] => 1
[work_modifier] => 1
[options] => Array
(
)
[days] => [5]
[material_price] => [10450]
[work_price] => [1950]
[image] => https://akademik-stroy.ru/wp-content/uploads/materials/terrasy.jpg
[area_modifier] => 30
[parent_name] => Террасы, крыльца, навесы
[parent_id] => 20
[material_sum] => 395010
[work_sum] => 61425
[total_sum] => 456435
[total_days] => 5
[display_material_sum] => 395 010
[display_work_sum] => 61 425
[display_total_sum] => 456 435
)
1
456 435₽
Работа:61 425 ₽
Материалы:395 010 ₽
Дни:5
stdClass Object
(
[id] => 41
[attribute_id] => 21
[name] => Нет
[material_modifier] => 1
[work_modifier] => 1
[options] => Array
(
)
[days] => [0]
[material_price] => [0]
[work_price] => [0]
[image] => https://akademik-stroy.ru/wp-content/uploads/materials/balkony.jpg
[area_modifier] => 30
[parent_name] => Балконы
[parent_id] => 21
[material_sum] => 0
[work_sum] => 0
[total_sum] => 0
[total_days] => 0
[display_material_sum] => 0
[display_work_sum] => 0
[display_total_sum] => 0
)
1
0₽
Работа:0 ₽
Материалы:0 ₽
Дни:0
stdClass Object
(
[id] => 42
[attribute_id] => 21
[name] => Есть
[material_modifier] => 1
[work_modifier] => 1
[options] => Array
(
)
[days] => [12]
[material_price] => [3600]
[work_price] => [1950]
[image] => https://akademik-stroy.ru/wp-content/uploads/materials/balkony.jpg
[area_modifier] => 30
[parent_name] => Балконы
[parent_id] => 21
[material_sum] => 136080
[work_sum] => 61425
[total_sum] => 197505
[total_days] => 12
[display_material_sum] => 136 080
[display_work_sum] => 61 425
[display_total_sum] => 197 505
)
1
197 505₽
Работа:61 425 ₽
Материалы:136 080 ₽
Дни:12
stdClass Object
(
[id] => 43
[attribute_id] => 22
[name] => Нет
[material_modifier] => 1
[work_modifier] => 1
[options] => Array
(
)
[days] => [0]
[material_price] => [0]
[work_price] => [0]
[image] => https://akademik-stroy.ru/wp-content/uploads/materials/uteplennaya.jpg
[area_modifier] => 220.09
[parent_name] => Отмостка
[parent_id] => 22
[material_sum] => 0
[work_sum] => 0
[total_sum] => 0
[total_days] => 0
[display_material_sum] => 0
[display_work_sum] => 0
[display_total_sum] => 0
)
1
0₽
Работа:0 ₽
Материалы:0 ₽
Дни:0
stdClass Object
(
[id] => 44
[attribute_id] => 22
[name] => Утепленная отмостка
[material_modifier] => 1
[work_modifier] => 1
[options] => Array
(
)
[days] => [15]
[material_price] => [2550]
[work_price] => [1750]
[image] => https://akademik-stroy.ru/wp-content/uploads/materials/uteplennaya.jpg
[area_modifier] => 220.09
[parent_name] => Отмостка
[parent_id] => 22
[material_sum] => 707149
[work_sum] => 404415
[total_sum] => 1111564
[total_days] => 15
[display_material_sum] => 707 149
[display_work_sum] => 404 415
[display_total_sum] => 1 111 564
)
1
1 111 564₽
Работа:404 415 ₽
Материалы:707 149 ₽
Дни:15
stdClass Object
(
[id] => 146
[attribute_id] => 22
[name] => Не утепленная отмостка
[material_modifier] => 1
[work_modifier] => 1
[options] => Array
(
)
[days] => [10]
[material_price] => [1650]
[work_price] => [1450]
[image] => https://akademik-stroy.ru/wp-content/uploads/materials/ne-uteplennaya.jpg
[area_modifier] => 220.09
[parent_name] => Отмостка
[parent_id] => 22
[material_sum] => 457567
[work_sum] => 335087
[total_sum] => 792654
[total_days] => 10
[display_material_sum] => 457 567
[display_work_sum] => 335 087
[display_total_sum] => 792 654
)
1
792 654₽
Работа:335 087 ₽
Материалы:457 567 ₽
Дни:10
stdClass Object
(
[id] => 45
[attribute_id] => 23
[name] => Нет
[material_modifier] => 1
[work_modifier] => 1
[options] => Array
(
)
[days] => [0]
[material_price] => [0]
[work_price] => [0]
[image] => https://akademik-stroy.ru/wp-content/uploads/materials/drenazh-2.jpg
[area_modifier] => 220.09
[parent_name] => Дренаж вокруг дома
[parent_id] => 23
[material_sum] => 0
[work_sum] => 0
[total_sum] => 0
[total_days] => 0
[display_material_sum] => 0
[display_work_sum] => 0
[display_total_sum] => 0
)
1
0₽
Работа:0 ₽
Материалы:0 ₽
Дни:0
stdClass Object
(
[id] => 46
[attribute_id] => 23
[name] => Есть
[material_modifier] => 1
[work_modifier] => 1
[options] => Array
(
)
[days] => [5]
[material_price] => [2366]
[work_price] => [1911]
[image] => https://akademik-stroy.ru/wp-content/uploads/materials/drenazh-2.jpg
[area_modifier] => 220.09
[parent_name] => Дренаж вокруг дома
[parent_id] => 23
[material_sum] => 656124
[work_sum] => 441622
[total_sum] => 1097746
[total_days] => 5
[display_material_sum] => 656 124
[display_work_sum] => 441 622
[display_total_sum] => 1 097 746
)
1
1 097 746₽
Работа:441 622 ₽
Материалы:656 124 ₽
Дни:5
stdClass Object
(
[id] => 47
[attribute_id] => 24
[name] => Нет
[material_modifier] => 1
[work_modifier] => 1
[options] => Array
(
)
[days] => [0]
[material_price] => [0]
[work_price] => [0]
[image] => https://akademik-stroy.ru/wp-content/uploads/materials/septik.jpg
[area_modifier] => 1
[parent_name] => Автономная канализация (септики)
[parent_id] => 24
[material_sum] => 0
[work_sum] => 0
[total_sum] => 0
[total_days] => 0
[display_material_sum] => 0
[display_work_sum] => 0
[display_total_sum] => 0
)
1
0₽
Работа:0 ₽
Материалы:0 ₽
Дни:0
stdClass Object
(
[id] => 48
[attribute_id] => 24
[name] => Есть
[material_modifier] => 1
[work_modifier] => 1
[options] => Array
(
[0] => Для дачи на 4 человека
[1] => Для дома на 5 человек
[2] => Для дома на 6 человек
[3] => Для дома на 7 человек
[4] => Для дома на 10 человек
)
[days] => [7,7,7,8,8]
[material_price] => [196340,220500,240940,264200,293340]
[work_price] => [50000,55000,60500,66550,73206]
[image] => https://akademik-stroy.ru/wp-content/uploads/materials/septik.jpg
[area_modifier] => 1
[parent_name] => Автономная канализация (септики)
[parent_id] => 24
[material_sum] => 247388
[work_sum] => 52500
[total_sum] => 299888
[total_days] => 7
[display_material_sum] => 247 388
[display_work_sum] => 52 500
[display_total_sum] => 299 888
)
1
299 888₽
Работа:52 500 ₽
Материалы:247 388 ₽
Дни:7
stdClass Object
(
[id] => 49
[attribute_id] => 25
[name] => Нет
[material_modifier] => 1
[work_modifier] => 1
[options] => Array
(
)
[days] => [0]
[material_price] => [0]
[work_price] => [0]
[image] => https://akademik-stroy.ru/wp-content/uploads/materials/gkl.jpg
[area_modifier] => 220.09
[parent_name] => Внутренние (не несущие) перегородки
[parent_id] => 25
[material_sum] => 0
[work_sum] => 0
[total_sum] => 0
[total_days] => 0
[display_material_sum] => 0
[display_work_sum] => 0
[display_total_sum] => 0
)
1
0₽
Работа:0 ₽
Материалы:0 ₽
Дни:0
stdClass Object
(
[id] => 147
[attribute_id] => 25
[name] => Каркасно-обшивные
[material_modifier] => 1
[work_modifier] => 1
[options] => Array
(
[0] => 75 мм (без шумоизоляции)
[1] => 75 мм (с шумоизоляцией)
)
[days] => [11,11]
[material_price] => [580,970]
[work_price] => [380,570]
[image] => https://akademik-stroy.ru/wp-content/uploads/materials/gkl.jpg
[area_modifier] => 220.09
[parent_name] => Внутренние (не несущие) перегородки
[parent_id] => 25
[material_sum] => 160842
[work_sum] => 87816
[total_sum] => 248658
[total_days] => 11
[display_material_sum] => 160 842
[display_work_sum] => 87 816
[display_total_sum] => 248 658
)
1
248 658₽
Работа:87 816 ₽
Материалы:160 842 ₽
Дни:11
stdClass Object
(
[id] => 148
[attribute_id] => 25
[name] => Пазогребневые
[material_modifier] => 1
[work_modifier] => 1
[options] => Array
(
[0] => 80 мм
[1] => 100 мм
)
[days] => [5,5]
[material_price] => [1022,1313]
[work_price] => [600,700]
[image] => https://akademik-stroy.ru/wp-content/uploads/materials/pazogrebnevye-bloki.jpg
[area_modifier] => 220.09
[parent_name] => Внутренние (не несущие) перегородки
[parent_id] => 25
[material_sum] => 283414
[work_sum] => 138657
[total_sum] => 422071
[total_days] => 5
[display_material_sum] => 283 414
[display_work_sum] => 138 657
[display_total_sum] => 422 071
)
1
422 071₽
Работа:138 657 ₽
Материалы:283 414 ₽
Дни:5
stdClass Object
(
[id] => 149
[attribute_id] => 25
[name] => Газобетонные
[material_modifier] => 1
[work_modifier] => 1
[options] => Array
(
[0] => 100 мм
[1] => 200 мм
)
[days] => [11,11]
[material_price] => [1160,1920]
[work_price] => [700,900]
[image] => https://akademik-stroy.ru/wp-content/uploads/materials/gazobeton-2.jpg
[area_modifier] => 220.09
[parent_name] => Внутренние (не несущие) перегородки
[parent_id] => 25
[material_sum] => 321684
[work_sum] => 161766
[total_sum] => 483450
[total_days] => 11
[display_material_sum] => 321 684
[display_work_sum] => 161 766
[display_total_sum] => 483 450
)
1
483 450₽
Работа:161 766 ₽
Материалы:321 684 ₽
Дни:11
stdClass Object
(
[id] => 150
[attribute_id] => 25
[name] => Кирпичные
[material_modifier] => 1
[work_modifier] => 1
[options] => Array
(
[0] => 120 мм
[1] => 250 мм
[2] => 360 мм
)
[days] => [7,7,7]
[material_price] => [1785,3570,5355]
[work_price] => [900,1600,1800]
[image] => https://akademik-stroy.ru/wp-content/uploads/materials/kirpich-1.jpg
[area_modifier] => 220.09
[parent_name] => Внутренние (не несущие) перегородки
[parent_id] => 25
[material_sum] => 495004
[work_sum] => 207985
[total_sum] => 702989
[total_days] => 7
[display_material_sum] => 495 004
[display_work_sum] => 207 985
[display_total_sum] => 702 989
)
1
702 989₽
Работа:207 985 ₽
Материалы:495 004 ₽
Дни:7
stdClass Object
(
[id] => 55
[attribute_id] => 28
[name] => Нет
[material_modifier] => 1
[work_modifier] => 1
[options] => Array
(
)
[days] => [0]
[material_price] => [0]
[work_price] => [0]
[image] => https://akademik-stroy.ru/wp-content/uploads/materials/ehlektrika.jpg
[area_modifier] => 178.6
[parent_name] => Электрика
[parent_id] => 28
[material_sum] => 0
[work_sum] => 0
[total_sum] => 0
[total_days] => 0
[display_material_sum] => 0
[display_work_sum] => 0
[display_total_sum] => 0
)
1
0₽
Работа:0 ₽
Материалы:0 ₽
Дни:0
stdClass Object
(
[id] => 56
[attribute_id] => 28
[name] => Есть
[material_modifier] => 1
[work_modifier] => 1
[options] => Array
(
)
[days] => [10]
[material_price] => [650]
[work_price] => [950]
[image] => https://akademik-stroy.ru/wp-content/uploads/materials/ehlektrika.jpg
[area_modifier] => 178.6
[parent_name] => Электрика
[parent_id] => 28
[material_sum] => 146273
[work_sum] => 178154
[total_sum] => 324427
[total_days] => 10
[display_material_sum] => 146 273
[display_work_sum] => 178 154
[display_total_sum] => 324 427
)
1
324 427₽
Работа:178 154 ₽
Материалы:146 273 ₽
Дни:10
stdClass Object
(
[id] => 57
[attribute_id] => 29
[name] => Нет
[material_modifier] => 1
[work_modifier] => 1
[options] => Array
(
)
[days] => [0]
[material_price] => [0]
[work_price] => [0]
[image] => https://akademik-stroy.ru/wp-content/uploads/materials/santekhnika-kanalizaciya-1.jpg
[area_modifier] => 178.6
[parent_name] => Сантехника, канализация в доме
[parent_id] => 29
[material_sum] => 0
[work_sum] => 0
[total_sum] => 0
[total_days] => 0
[display_material_sum] => 0
[display_work_sum] => 0
[display_total_sum] => 0
)
1
0₽
Работа:0 ₽
Материалы:0 ₽
Дни:0
stdClass Object
(
[id] => 58
[attribute_id] => 29
[name] => Есть
[material_modifier] => 1
[work_modifier] => 1
[options] => Array
(
)
[days] => [10]
[material_price] => [600]
[work_price] => [730]
[image] => https://akademik-stroy.ru/wp-content/uploads/materials/santekhnika-kanalizaciya-1.jpg
[area_modifier] => 178.6
[parent_name] => Сантехника, канализация в доме
[parent_id] => 29
[material_sum] => 135022
[work_sum] => 136897
[total_sum] => 271919
[total_days] => 10
[display_material_sum] => 135 022
[display_work_sum] => 136 897
[display_total_sum] => 271 919
)
1
271 919₽
Работа:136 897 ₽
Материалы:135 022 ₽
Дни:10
stdClass Object
(
[id] => 59
[attribute_id] => 30
[name] => Нет
[material_modifier] => 1
[work_modifier] => 1
[options] => Array
(
)
[days] => [0]
[material_price] => [0]
[work_price] => [0]
[image] => https://akademik-stroy.ru/wp-content/uploads/materials/otoplenie-1.jpg
[area_modifier] => 178.6
[parent_name] => Отопление
[parent_id] => 30
[material_sum] => 0
[work_sum] => 0
[total_sum] => 0
[total_days] => 0
[display_material_sum] => 0
[display_work_sum] => 0
[display_total_sum] => 0
)
1
0₽
Работа:0 ₽
Материалы:0 ₽
Дни:0
stdClass Object
(
[id] => 60
[attribute_id] => 30
[name] => Есть
[material_modifier] => 1
[work_modifier] => 1
[options] => Array
(
)
[days] => [5]
[material_price] => [610]
[work_price] => [560]
[image] => https://akademik-stroy.ru/wp-content/uploads/materials/otoplenie-1.jpg
[area_modifier] => 178.6
[parent_name] => Отопление
[parent_id] => 30
[material_sum] => 137272
[work_sum] => 105017
[total_sum] => 242289
[total_days] => 5
[display_material_sum] => 137 272
[display_work_sum] => 105 017
[display_total_sum] => 242 289
)
1
242 289₽
Работа:105 017 ₽
Материалы:137 272 ₽
Дни:5
stdClass Object
(
[id] => 61
[attribute_id] => 31
[name] => Нет
[material_modifier] => 1
[work_modifier] => 1
[options] => Array
(
)
[days] => [0]
[material_price] => [0]
[work_price] => [0]
[image] => https://akademik-stroy.ru/wp-content/uploads/materials/vodyanye.jpg
[area_modifier] => 30
[parent_name] => Теплые полы
[parent_id] => 31
[material_sum] => 0
[work_sum] => 0
[total_sum] => 0
[total_days] => 0
[display_material_sum] => 0
[display_work_sum] => 0
[display_total_sum] => 0
)
1
0₽
Работа:0 ₽
Материалы:0 ₽
Дни:0
stdClass Object
(
[id] => 151
[attribute_id] => 31
[name] => Водяные
[material_modifier] => 1
[work_modifier] => 1
[options] => Array
(
)
[days] => [9]
[material_price] => [10200]
[work_price] => [2500]
[image] => https://akademik-stroy.ru/wp-content/uploads/materials/vodyanye.jpg
[area_modifier] => 30
[parent_name] => Теплые полы
[parent_id] => 31
[material_sum] => 385560
[work_sum] => 78750
[total_sum] => 464310
[total_days] => 9
[display_material_sum] => 385 560
[display_work_sum] => 78 750
[display_total_sum] => 464 310
)
1
464 310₽
Работа:78 750 ₽
Материалы:385 560 ₽
Дни:9
stdClass Object
(
[id] => 152
[attribute_id] => 31
[name] => Электро
[material_modifier] => 1
[work_modifier] => 1
[options] => Array
(
)
[days] => [5]
[material_price] => [6300]
[work_price] => [1500]
[image] => https://akademik-stroy.ru/wp-content/uploads/materials/ehlektricheskij.jpg
[area_modifier] => 30
[parent_name] => Теплые полы
[parent_id] => 31
[material_sum] => 238140
[work_sum] => 47250
[total_sum] => 285390
[total_days] => 5
[display_material_sum] => 238 140
[display_work_sum] => 47 250
[display_total_sum] => 285 390
)
1
285 390₽
Работа:47 250 ₽
Материалы:238 140 ₽
Дни:5
stdClass Object
(
[id] => 63
[attribute_id] => 32
[name] => Нет
[material_modifier] => 1
[work_modifier] => 1
[options] => Array
(
)
[days] => [0]
[material_price] => [0]
[work_price] => [0]
[image] => https://akademik-stroy.ru/wp-content/uploads/materials/shtukaturka-shpatlevka-1.jpg
[area_modifier] => 178.6
[parent_name] => Черновая отделка стен
[parent_id] => 32
[material_sum] => 0
[work_sum] => 0
[total_sum] => 0
[total_days] => 0
[display_material_sum] => 0
[display_work_sum] => 0
[display_total_sum] => 0
)
1
0₽
Работа:0 ₽
Материалы:0 ₽
Дни:0
stdClass Object
(
[id] => 153
[attribute_id] => 32
[name] => Штукатурка и шпатлевка
[material_modifier] => 1
[work_modifier] => 1
[options] => Array
(
)
[days] => [20]
[material_price] => [1850]
[work_price] => [2600]
[image] => https://akademik-stroy.ru/wp-content/uploads/materials/shtukaturka-shpatlevka-1.jpg
[area_modifier] => 178.6
[parent_name] => Черновая отделка стен
[parent_id] => 32
[material_sum] => 416317
[work_sum] => 487578
[total_sum] => 903895
[total_days] => 20
[display_material_sum] => 416 317
[display_work_sum] => 487 578
[display_total_sum] => 903 895
)
1
903 895₽
Работа:487 578 ₽
Материалы:416 317 ₽
Дни:20
stdClass Object
(
[id] => 154
[attribute_id] => 32
[name] => Гипсокортон на стены
[material_modifier] => 1
[work_modifier] => 1
[options] => Array
(
)
[days] => [15]
[material_price] => [950]
[work_price] => [2100]
[image] => https://akademik-stroy.ru/wp-content/uploads/materials/gkl-1.jpg
[area_modifier] => 178.6
[parent_name] => Черновая отделка стен
[parent_id] => 32
[material_sum] => 213784
[work_sum] => 393813
[total_sum] => 607597
[total_days] => 15
[display_material_sum] => 213 784
[display_work_sum] => 393 813
[display_total_sum] => 607 597
)
1
607 597₽
Работа:393 813 ₽
Материалы:213 784 ₽
Дни:15
stdClass Object
(
[id] => 155
[attribute_id] => 32
[name] => Вагонка
[material_modifier] => 1
[work_modifier] => 1
[options] => Array
(
)
[days] => [15]
[material_price] => [1250]
[work_price] => [950]
[image] => https://akademik-stroy.ru/wp-content/uploads/materials/vagonka.jpg
[area_modifier] => 178.6
[parent_name] => Черновая отделка стен
[parent_id] => 32
[material_sum] => 281295
[work_sum] => 178154
[total_sum] => 459449
[total_days] => 15
[display_material_sum] => 281 295
[display_work_sum] => 178 154
[display_total_sum] => 459 449
)
1
459 449₽
Работа:178 154 ₽
Материалы:281 295 ₽
Дни:15
stdClass Object
(
[id] => 65
[attribute_id] => 33
[name] => Нет
[material_modifier] => 1
[work_modifier] => 1
[options] => Array
(
)
[days] => [0]
[material_price] => [0]
[work_price] => [0]
[image] => https://akademik-stroy.ru/wp-content/uploads/materials/styazhka.jpg
[area_modifier] => 178.6
[parent_name] => Черновая отделка полов
[parent_id] => 33
[material_sum] => 0
[work_sum] => 0
[total_sum] => 0
[total_days] => 0
[display_material_sum] => 0
[display_work_sum] => 0
[display_total_sum] => 0
)
1
0₽
Работа:0 ₽
Материалы:0 ₽
Дни:0
stdClass Object
(
[id] => 156
[attribute_id] => 33
[name] => Стяжка + наливные полы
[material_modifier] => 1
[work_modifier] => 1
[options] => Array
(
)
[days] => [10]
[material_price] => [1000]
[work_price] => [900]
[image] => https://akademik-stroy.ru/wp-content/uploads/materials/styazhka.jpg
[area_modifier] => 178.6
[parent_name] => Черновая отделка полов
[parent_id] => 33
[material_sum] => 225036
[work_sum] => 168777
[total_sum] => 393813
[total_days] => 10
[display_material_sum] => 225 036
[display_work_sum] => 168 777
[display_total_sum] => 393 813
)
1
393 813₽
Работа:168 777 ₽
Материалы:225 036 ₽
Дни:10
stdClass Object
(
[id] => 157
[attribute_id] => 33
[name] => ОСБ на пол
[material_modifier] => 1
[work_modifier] => 1
[options] => Array
(
)
[days] => [7]
[material_price] => [580]
[work_price] => [350]
[image] => https://akademik-stroy.ru/wp-content/uploads/materials/osb-1.jpg
[area_modifier] => 178.6
[parent_name] => Черновая отделка полов
[parent_id] => 33
[material_sum] => 130521
[work_sum] => 65636
[total_sum] => 196157
[total_days] => 7
[display_material_sum] => 130 521
[display_work_sum] => 65 636
[display_total_sum] => 196 157
)
1
196 157₽
Работа:65 636 ₽
Материалы:130 521 ₽
Дни:7
stdClass Object
(
[id] => 67
[attribute_id] => 34
[name] => Нет
[material_modifier] => 1
[work_modifier] => 1
[options] => Array
(
)
[days] => [0]
[material_price] => [0]
[work_price] => [0]
[image] => https://akademik-stroy.ru/wp-content/uploads/materials/chistovaya-otdelka.jpg
[area_modifier] => 178.6
[parent_name] => Чистовая отделка стен и полов
[parent_id] => 34
[material_sum] => 0
[work_sum] => 0
[total_sum] => 0
[total_days] => 0
[display_material_sum] => 0
[display_work_sum] => 0
[display_total_sum] => 0
)
1
0₽
Работа:0 ₽
Материалы:0 ₽
Дни:0
stdClass Object
(
[id] => 68
[attribute_id] => 34
[name] => Есть
[material_modifier] => 1
[work_modifier] => 1
[options] => Array
(
)
[days] => [50]
[material_price] => [6000]
[work_price] => [3500]
[image] => https://akademik-stroy.ru/wp-content/uploads/materials/chistovaya-otdelka.jpg
[area_modifier] => 178.6
[parent_name] => Чистовая отделка стен и полов
[parent_id] => 34
[material_sum] => 1350216
[work_sum] => 656355
[total_sum] => 2006571
[total_days] => 50
[display_material_sum] => 1 350 216
[display_work_sum] => 656 355
[display_total_sum] => 2 006 571
)
1
2 006 571₽
Работа:656 355 ₽
Материалы:1 350 216 ₽
Дни:50
stdClass Object
(
[id] => 69
[attribute_id] => 35
[name] => Нет
[material_modifier] => 1
[work_modifier] => 1
[options] => Array
(
)
[days] => [0]
[material_price] => [0]
[work_price] => [0]
[image] => https://akademik-stroy.ru/wp-content/uploads/materials/mnogourovnevyj-gkl.jpg
[area_modifier] => 178.6
[parent_name] => Отделка потолка
[parent_id] => 35
[material_sum] => 0
[work_sum] => 0
[total_sum] => 0
[total_days] => 0
[display_material_sum] => 0
[display_work_sum] => 0
[display_total_sum] => 0
)
1
0₽
Работа:0 ₽
Материалы:0 ₽
Дни:0
stdClass Object
(
[id] => 70
[attribute_id] => 35
[name] => Есть
[material_modifier] => 1
[work_modifier] => 1
[options] => Array
(
[0] => Многоуровневый потолок из гипсокартона
[1] => Многоуровневый потолок из гипсокартона и натяжного потолка
[2] => Одноуровневый потолок из гипсокартона
[3] => Одноуровневый натяжной потолок
)
[days] => [10,10,1,1]
[material_price] => [900,700,700,600]
[work_price] => [1000,800,500,300]
[image] => https://akademik-stroy.ru/wp-content/uploads/materials/mnogourovnevyj-gkl.jpg
[area_modifier] => 178.6
[parent_name] => Отделка потолка
[parent_id] => 35
[material_sum] => 202532
[work_sum] => 187530
[total_sum] => 390062
[total_days] => 10
[display_material_sum] => 202 532
[display_work_sum] => 187 530
[display_total_sum] => 390 062
)
1
390 062₽
Работа:187 530 ₽
Материалы:202 532 ₽
Дни:10
Преимущества работы с нами
7 этапов оплаты
Независимый строительный надзор
Экологически чистые материалы
16 лет гарантии
Онлайн-кабинет с веб-камерой
Строители с опытом более 15 лет
Собственное производство








