Одноэтажный дом 131.6 м2 за руб.
Планировки
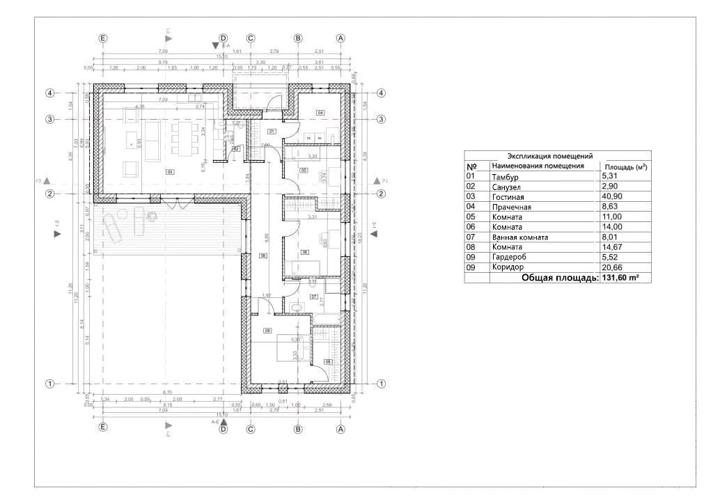
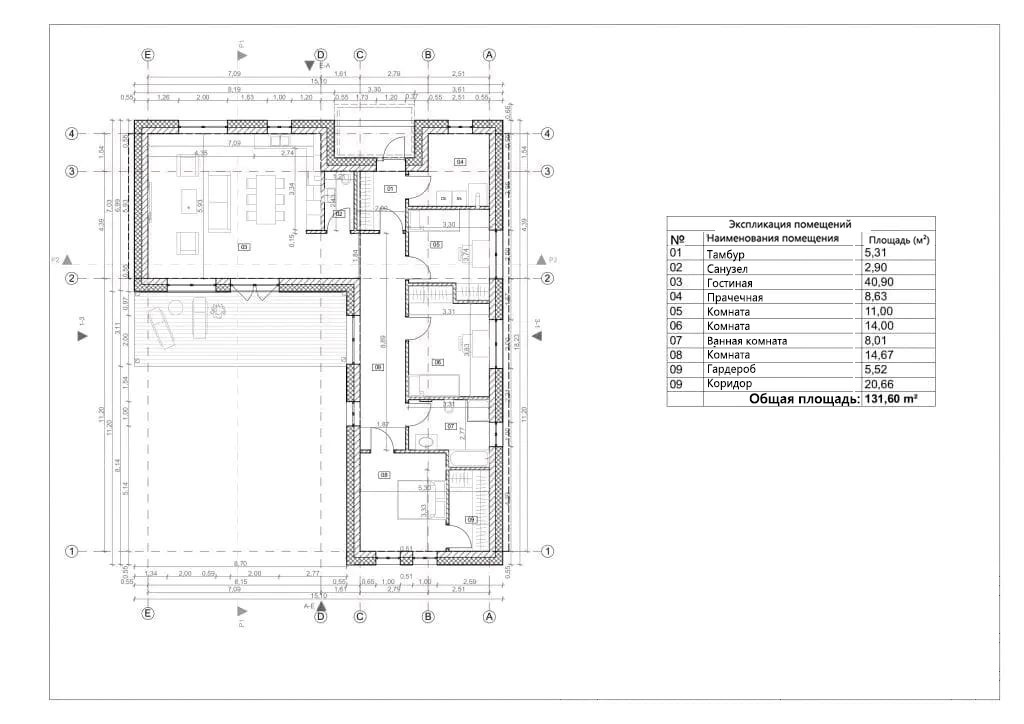
План первого этажа
- 1. Тамбур 5,31 м²
- 2. Санузел 2,90 м²
- 3. Гостиная 40,90 м²
- 4. Прачечная 8,63 м²
- 5. Комната 11,00 м²
- 6. Комната 14,00 м²
- 7. Ванная комната 8,01 м²
- 8. Комната 14,67 м²
- 9. Гардероб 5,52 м²
- 10. Коридор 20,66 м²
- Общая площадь первый этаж 131,60 м²
Площади дома
| № п/п | Наименование | Ед. из. | Строительная площадь | Полезная площадь |
| 1 | 1 этаж | м2 | 162.17 | 131.6 |
| 2 | Итого | м2 | 162.17 | 131.6 |
154 м2
Полезная
площадь
площадь
1 этаж
Этажей
26 м2
Террасы
и балконы
и балконы
0Без
гаража
гаража
3
Количество
спален
спален
2
Количество
санузлов
санузлов
Калькулятор опций
0₽
В ипотеку от 23 270 ₽/мес.
0₽
0 дней
887 833₽
Работа:384 246 ₽
Материалы:503 587 ₽
Дни:20
533 734₽
Работа:178 744 ₽
Материалы:354 990 ₽
Дни:2
899 427₽
Работа:361 055 ₽
Материалы:538 372 ₽
Дни:20
1 723 576₽
Работа:769 562 ₽
Материалы:954 014 ₽
Дни:30
2 891 475₽
Работа:1 063 187 ₽
Материалы:1 828 288 ₽
Дни:32
1 092 799₽
Работа:437 227 ₽
Материалы:655 572 ₽
Дни:20
6 857 196₽
Работа:3 126 054 ₽
Материалы:3 731 142 ₽
Дни:30
8 181 185₽
Работа:3 646 409 ₽
Материалы:4 534 776 ₽
Дни:40
285 419₽
Работа:71 355 ₽
Материалы:214 064 ₽
Дни:1
510 900₽
Работа:219 416 ₽
Материалы:291 484 ₽
Дни:8
818 261₽
Работа:271 148 ₽
Материалы:547 113 ₽
Дни:13
1 460 098₽
Работа:597 240 ₽
Материалы:862 858 ₽
Дни:18
1 432 983₽
Работа:897 822 ₽
Материалы:535 161 ₽
Дни:29
1 649 544₽
Работа:845 019 ₽
Материалы:804 525 ₽
Дни:23
2 539 518₽
Работа:1 558 389 ₽
Материалы:981 129 ₽
Дни:30
2 078 387₽
Работа:910 844 ₽
Материалы:1 167 543 ₽
Дни:45
3 885 447₽
Работа:857 328 ₽
Материалы:3 028 119 ₽
Дни:24
855 723₽
Работа:431 340 ₽
Материалы:424 383 ₽
Дни:15
467 374₽
Работа:251 526 ₽
Материалы:215 848 ₽
Дни:7
1 643 658₽
Работа:571 552 ₽
Материалы:1 072 106 ₽
Дни:7
2 146 888₽
Работа:685 898 ₽
Материалы:1 460 990 ₽
Дни:7
14 098 817₽
Работа:685 898 ₽
Материалы:13 412 919 ₽
Дни:7
7 631 574₽
Работа:857 328 ₽
Материалы:6 774 246 ₽
Дни:7
1 200 366₽
Работа:285 776 ₽
Материалы:914 590 ₽
Дни:7
1 576 227₽
Работа:809 520 ₽
Материалы:766 707 ₽
Дни:29
1 380 002₽
Работа:898 714 ₽
Материалы:481 288 ₽
Дни:29
1 576 227₽
Работа:809 520 ₽
Материалы:766 707 ₽
Дни:29
1 672 913₽
Работа:1 023 406 ₽
Материалы:649 507 ₽
Дни:23
2 138 325₽
Работа:720 148 ₽
Материалы:1 418 177 ₽
Дни:7
2 424 814₽
Работа:1 486 142 ₽
Материалы:938 672 ₽
Дни:25
877 129₽
Работа:452 746 ₽
Материалы:424 383 ₽
Дни:15
8 127 669₽
Работа:1 714 656 ₽
Материалы:6 413 013 ₽
Дни:15
972 566₽
Работа:457 384 ₽
Материалы:515 182 ₽
Дни:15
1 324 345₽
Работа:751 723 ₽
Материалы:572 622 ₽
Дни:19
1 397 841₽
Работа:898 714 ₽
Материалы:499 127 ₽
Дни:29
897 821₽
Работа:471 298 ₽
Материалы:426 523 ₽
Дни:15
1 649 544₽
Работа:845 019 ₽
Материалы:804 525 ₽
Дни:23
963 647₽
Работа:374 613 ₽
Материалы:589 034 ₽
Дни:15
1 234 438₽
Работа:900 141 ₽
Материалы:334 297 ₽
Дни:7
510 900₽
Работа:219 416 ₽
Материалы:291 484 ₽
Дни:8
818 261₽
Работа:271 148 ₽
Материалы:547 113 ₽
Дни:13
1 460 098₽
Работа:597 240 ₽
Материалы:862 858 ₽
Дни:18
2 181 851₽
Работа:742 625 ₽
Материалы:1 439 226 ₽
Дни:10
3 300 517₽
Работа:1 506 657 ₽
Материалы:1 793 860 ₽
Дни:10
3 041 855₽
Работа:1 330 589 ₽
Материалы:1 711 266 ₽
Дни:10
0₽
Работа:0 ₽
Материалы:0 ₽
Дни:0
285 757₽
Работа:91 923 ₽
Материалы:193 834 ₽
Дни:3
0₽
Работа:0 ₽
Материалы:0 ₽
Дни:0
17 050₽
Работа:6 050 ₽
Материалы:11 000 ₽
Дни:1
0₽
Работа:0 ₽
Материалы:0 ₽
Дни:0
0₽
Работа:0 ₽
Материалы:0 ₽
Дни:0
594 564₽
Работа:265 975 ₽
Материалы:328 589 ₽
Дни:7
0₽
Работа:0 ₽
Материалы:0 ₽
Дни:0
1 027 866₽
Работа:414 750 ₽
Материалы:613 116 ₽
Дни:7
363 017₽
Работа:218 524 ₽
Материалы:144 493 ₽
Дни:3
1 133 650₽
Работа:320 205 ₽
Материалы:813 445 ₽
Дни:5
1 180 387₽
Работа:320 205 ₽
Материалы:860 182 ₽
Дни:5
640 231₽
Работа:130 044 ₽
Материалы:510 187 ₽
Дни:3
1 627 425₽
Работа:142 710 ₽
Материалы:1 484 715 ₽
Дни:5
0₽
Работа:0 ₽
Материалы:0 ₽
Дни:0
783 298₽
Работа:249 207 ₽
Материалы:534 091 ₽
Дни:20
843 949₽
Работа:274 181 ₽
Материалы:569 768 ₽
Дни:20
612 402₽
Работа:214 421 ₽
Материалы:397 981 ₽
Дни:35
2 036 109₽
Работа:577 974 ₽
Материалы:1 458 135 ₽
Дни:45
1 066 933₽
Работа:536 410 ₽
Материалы:530 523 ₽
Дни:40
450 606₽
Работа:225 303 ₽
Материалы:225 303 ₽
Дни:20
1 387 137₽
Работа:577 974 ₽
Материалы:809 163 ₽
Дни:45
1 525 923₽
Работа:416 177 ₽
Материалы:1 109 746 ₽
Дни:20
843 770₽
Работа:346 784 ₽
Материалы:496 986 ₽
Дни:20
1 040 353₽
Работа:462 379 ₽
Материалы:577 974 ₽
Дни:20
1 449 929₽
Работа:624 176 ₽
Материалы:825 753 ₽
Дни:20
1 790 292₽
Работа:533 912 ₽
Материалы:1 256 380 ₽
Дни:20
1 272 791₽
Работа:462 379 ₽
Материалы:810 412 ₽
Дни:20
0₽
Работа:0 ₽
Материалы:0 ₽
Дни:0
409 200₽
Работа:64 350 ₽
Материалы:344 850 ₽
Дни:5
0₽
Работа:0 ₽
Материалы:0 ₽
Дни:0
183 150₽
Работа:64 350 ₽
Материалы:118 800 ₽
Дни:12
0₽
Работа:0 ₽
Материалы:0 ₽
Дни:0
767 064₽
Работа:312 177 ₽
Материалы:454 887 ₽
Дни:15
553 000₽
Работа:258 661 ₽
Материалы:294 339 ₽
Дни:10
0₽
Работа:0 ₽
Материалы:0 ₽
Дни:0
762 962₽
Работа:340 898 ₽
Материалы:422 064 ₽
Дни:5
0₽
Работа:0 ₽
Материалы:0 ₽
Дни:0
270 974₽
Работа:55 000 ₽
Материалы:215 974 ₽
Дни:7
0₽
Работа:0 ₽
Материалы:0 ₽
Дни:0
171 251₽
Работа:67 787 ₽
Материалы:103 464 ₽
Дни:11
289 344₽
Работа:107 032 ₽
Материалы:182 312 ₽
Дни:5
331 800₽
Работа:124 871 ₽
Материалы:206 929 ₽
Дни:11
478 969₽
Работа:160 548 ₽
Материалы:318 421 ₽
Дни:7
0₽
Работа:0 ₽
Материалы:0 ₽
Дни:0
231 616₽
Работа:137 522 ₽
Материалы:94 094 ₽
Дни:10
0₽
Работа:0 ₽
Материалы:0 ₽
Дни:0
192 531₽
Работа:105 675 ₽
Материалы:86 856 ₽
Дни:10
0₽
Работа:0 ₽
Материалы:0 ₽
Дни:0
169 370₽
Работа:81 066 ₽
Материалы:88 304 ₽
Дни:5
0₽
Работа:0 ₽
Материалы:0 ₽
Дни:0
419 100₽
Работа:82 500 ₽
Материалы:336 600 ₽
Дни:9
257 400₽
Работа:49 500 ₽
Материалы:207 900 ₽
Дни:5
0₽
Работа:0 ₽
Материалы:0 ₽
Дни:0
644 182₽
Работа:376 376 ₽
Материалы:267 806 ₽
Дни:20
441 518₽
Работа:303 996 ₽
Материалы:137 522 ₽
Дни:15
318 472₽
Работа:137 522 ₽
Материалы:180 950 ₽
Дни:15
0₽
Работа:0 ₽
Материалы:0 ₽
Дни:0
275 044₽
Работа:130 284 ₽
Материалы:144 760 ₽
Дни:10
134 627₽
Работа:50 666 ₽
Материалы:83 961 ₽
Дни:7
0₽
Работа:0 ₽
Материалы:0 ₽
Дни:0
1 375 220₽
Работа:506 660 ₽
Материалы:868 560 ₽
Дни:50
0₽
Работа:0 ₽
Материалы:0 ₽
Дни:0
275 044₽
Работа:144 760 ₽
Материалы:130 284 ₽
Дни:10
Преимущества работы с нами
7 этапов оплаты
Независимый строительный надзор
Экологически чистые материалы
16 лет гарантии
Онлайн-кабинет с веб-камерой
Строители с опытом более 15 лет
Собственное производство






