Одноэтажный дом 124.91 м2 за руб.
Планировки
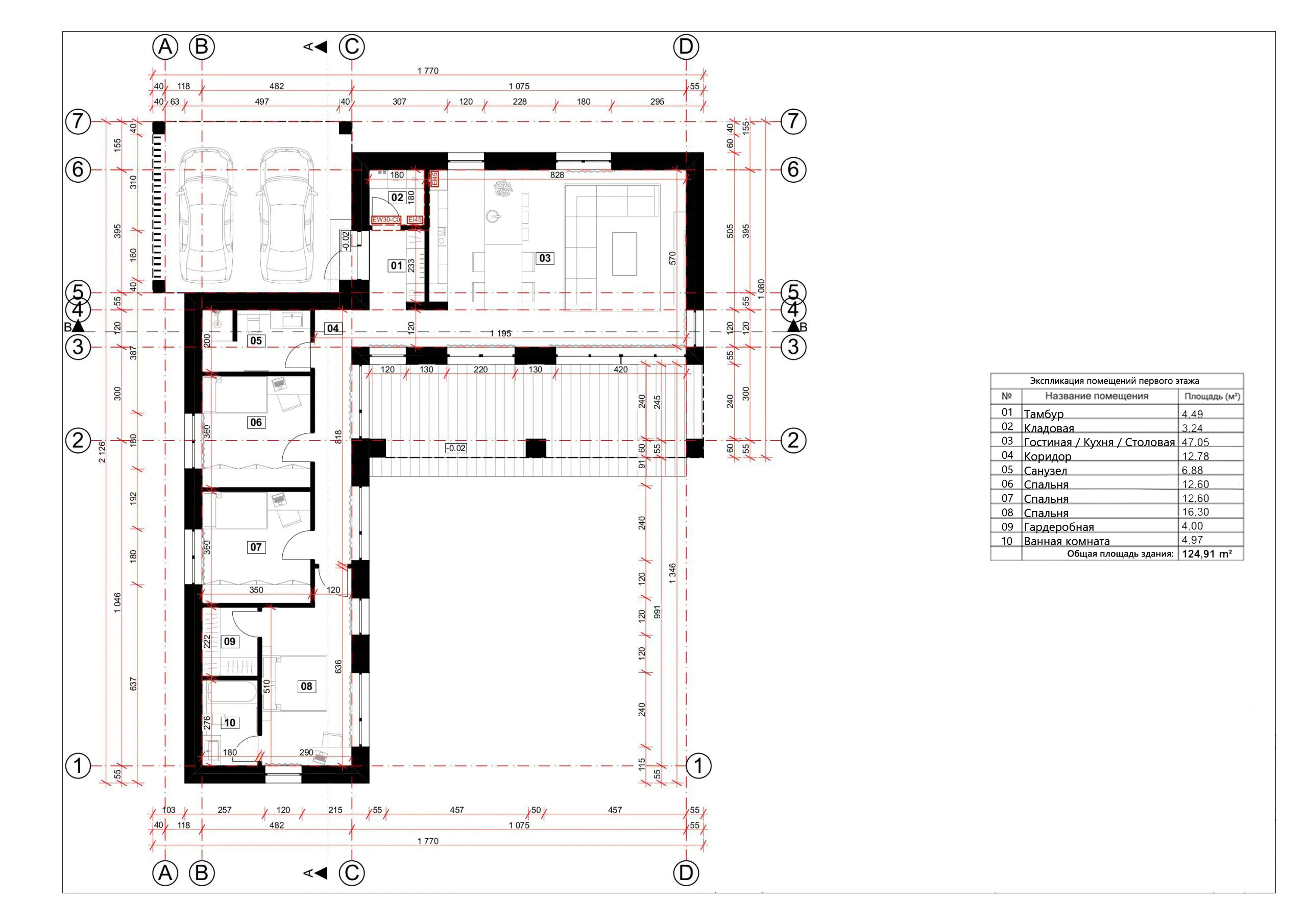
План первого этажа
- 1. Тамбур 4,49 м²
- 2. Кладовая 3,24 м²
- 3. Гостиная-Кухня-Столовая 47,05 м²
- 4. Коридор 12,78 м²
- 5. Санузел 6,88 м²
- 6. Комната 12,60 м²
- 7. Комната 12,60 м²
- 8. Спальня 16,30 м²
- 9. Гардероб 4,00 м²
- 10. Ванная комната 4,97 м²
- Общая площадь 124,91 м²
Площади дома
| № п/п | Наименование | Ед. из. | Строительная площадь | Полезная площадь |
| 1 | 1 этаж | м2 | 153.93 | 124.91 |
| 2 | Итого | м2 | 153.93 | 124.91 |
154 м2
Полезная
площадь
площадь
1 этаж
Этажей
26 м2
Террасы
и балконы
и балконы
1Без
гаража
гаража
3
Количество
спален
спален
2
Количество
санузлов
санузлов
Калькулятор опций
0₽
В ипотеку от 20 811 ₽/мес.
0₽
0 дней
stdClass Object
(
[id] => 1
[attribute_id] => 1
[name] => Ленточный монолитный ж/б
[material_modifier] => 1
[work_modifier] => 1
[options] => Array
(
[0] => размер 200 х 700 мм
[1] => размер 300 х 900 мм
[2] => размер 400 х 1 000 мм
[3] => размер 500 х 1 100 мм
[4] => размер 600 х 1 200 мм
)
[days] => [20,21,22,25,30]
[material_price] => [2823,3630,4475,5210,12047]
[work_price] => [2154,2826,3731,4577,5293]
[image] => https://akademik-stroy.ru/wp-content/uploads/materials/lentochnyj-monolitnyj-zh-b.jpg
[area_modifier] => 153.93
[parent_name] => Фундамент
[parent_id] => 1
[material_sum] => 573599
[work_sum] => 364722
[total_sum] => 938321
[total_days] => 20
[display_material_sum] => 573 599
[display_work_sum] => 364 722
[display_total_sum] => 938 321
)
1
938 321₽
Работа:364 722 ₽
Материалы:573 599 ₽
Дни:20
stdClass Object
(
[id] => 2
[attribute_id] => 1
[name] => Забивные Ж/Б сваи
[material_modifier] => 1
[work_modifier] => 1
[options] => Array
(
[0] => 150х150х3000мм
[1] => 150х150х4000мм
[2] => 200х200х3000мм
[3] => 200х200х4000мм
[4] => 200х200х5000мм
[5] => 200х200х6000мм
)
[days] => [2,2,2,2,2,2]
[material_price] => [1990,2850,3255,4360,5120,6837]
[work_price] => [1002,1185,1336,1438,1574,1839]
[image] => https://akademik-stroy.ru/wp-content/uploads/materials/zabivnye-zh-b-svai.png
[area_modifier] => 153.93
[parent_name] => Фундамент
[parent_id] => 1
[material_sum] => 404343
[work_sum] => 169662
[total_sum] => 574005
[total_days] => 2
[display_material_sum] => 404 343
[display_work_sum] => 169 662
[display_total_sum] => 574 005
)
1
574 005₽
Работа:169 662 ₽
Материалы:404 343 ₽
Дни:2
stdClass Object
(
[id] => 71
[attribute_id] => 1
[name] => Свайно-ростверковый ж/б
[material_modifier] => 1
[work_modifier] => 1
[options] => Array
(
[0] => ростверк 200х300 мм
[1] => ростверк 300х600 мм
[2] => ростверк 400х900 мм
[3] => ростверк 500х1200 мм
)
[days] => [20,23,25,27]
[material_price] => [3018,3474,7109,9792]
[work_price] => [2024,3012,5635,7022]
[image] => https://akademik-stroy.ru/wp-content/uploads/materials/svajno-rostverkovyj-monolitnyj-zh-b-3.png
[area_modifier] => 153.93
[parent_name] => Фундамент
[parent_id] => 1
[material_sum] => 613220
[work_sum] => 342710
[total_sum] => 955930
[total_days] => 20
[display_material_sum] => 613 220
[display_work_sum] => 342 710
[display_total_sum] => 955 930
)
1
955 930₽
Работа:342 710 ₽
Материалы:613 220 ₽
Дни:20
stdClass Object
(
[id] => 72
[attribute_id] => 1
[name] => Монолитная ж/б плита
[material_modifier] => 1
[work_modifier] => 1
[options] => Array
(
[0] => 200 мм
[1] => 300 мм
[2] => 400 мм
[3] => 500 мм
[4] => 600 мм
)
[days] => [30,33,35,37,40]
[material_price] => [5348,8555,12788,14388,15189]
[work_price] => [4314,4881,7037,8061,10230]
[image] => https://akademik-stroy.ru/wp-content/uploads/materials/monolitnaya-zhb-plita.png
[area_modifier] => 153.93
[parent_name] => Фундамент
[parent_id] => 1
[material_sum] => 1086647
[work_sum] => 730459
[total_sum] => 1817106
[total_days] => 30
[display_material_sum] => 1 086 647
[display_work_sum] => 730 459
[display_total_sum] => 1 817 106
)
1
1 817 106₽
Работа:730 459 ₽
Материалы:1 086 647 ₽
Дни:30
stdClass Object
(
[id] => 73
[attribute_id] => 1
[name] => Утепленная шведская плита
[material_modifier] => 1
[work_modifier] => 1
[options] => Array
(
[0] => 200 мм
[1] => 300 мм
[2] => 400 мм
[3] => 500 мм
[4] => 600 мм
)
[days] => [32,37,39,42,45]
[material_price] => [10249,12692,13760,14936,16230]
[work_price] => [5960,7337,8072,8878,9765]
[image] => https://akademik-stroy.ru/wp-content/uploads/materials/uteplennaya-shvedskaya-plita.jpg
[area_modifier] => 153.93
[parent_name] => Фундамент
[parent_id] => 1
[material_sum] => 2082470
[work_sum] => 1009165
[total_sum] => 3091635
[total_days] => 32
[display_material_sum] => 2 082 470
[display_work_sum] => 1 009 165
[display_total_sum] => 3 091 635
)
1
3 091 635₽
Работа:1 009 165 ₽
Материалы:2 082 470 ₽
Дни:32
stdClass Object
(
[id] => 75
[attribute_id] => 1
[name] => Ленточный из ФБС
[material_modifier] => 1
[work_modifier] => 1
[options] => Array
(
[0] => толщ. 300 мм
[1] => толщ. 400 мм
[2] => толщ. 500 мм
[3] => толщ. 600 мм
)
[days] => [20,20,20,20]
[material_price] => [3675,4902,6126,7350]
[work_price] => [2451,3264,4083,4902]
[image] => https://akademik-stroy.ru/wp-content/uploads/materials/lentochnyj-iz-fbs.png
[area_modifier] => 153.93
[parent_name] => Фундамент
[parent_id] => 1
[material_sum] => 746714
[work_sum] => 415011
[total_sum] => 1161725
[total_days] => 20
[display_material_sum] => 746 714
[display_work_sum] => 415 011
[display_total_sum] => 1 161 725
)
1
1 161 725₽
Работа:415 011 ₽
Материалы:746 714 ₽
Дни:20
stdClass Object
(
[id] => 76
[attribute_id] => 1
[name] => Цокольный этаж из ФБС
[material_modifier] => 1
[work_modifier] => 1
[options] => Array
(
[0] => толщ. 300 мм
[1] => толщ. 400 мм
[2] => толщ. 500 мм
[3] => толщ. 600 мм
)
[days] => [30,32,34,36]
[material_price] => [20916,23299,26680,29060]
[work_price] => [17524,18700,19873,21046]
[image] => https://akademik-stroy.ru/wp-content/uploads/materials/cokolnyj-ehtazh-iz-fbs.jpg
[area_modifier] => 153.93
[parent_name] => Фундамент
[parent_id] => 1
[material_sum] => 4249872
[work_sum] => 2967216
[total_sum] => 7217088
[total_days] => 30
[display_material_sum] => 4 249 872
[display_work_sum] => 2 967 216
[display_total_sum] => 7 217 088
)
1
7 217 088₽
Работа:2 967 216 ₽
Материалы:4 249 872 ₽
Дни:30
stdClass Object
(
[id] => 77
[attribute_id] => 1
[name] => Цокольный этаж монолитный ж/б
[material_modifier] => 1
[work_modifier] => 1
[options] => Array
(
[0] => толщ. 200 мм
[1] => толщ. 300 мм
[2] => толщ. 400 мм
[3] => толщ. 500 мм
[4] => толщ. 600 мм
)
[days] => [40,42,44,46,48]
[material_price] => [25421,29148,32275,35602,37326]
[work_price] => [20441,21907,23375,24841,26306]
[image] => https://akademik-stroy.ru/wp-content/uploads/materials/cokolnyj-etazh-zh-b.jpg
[area_modifier] => 153.93
[parent_name] => Фундамент
[parent_id] => 1
[material_sum] => 5165232
[work_sum] => 3461131
[total_sum] => 8626363
[total_days] => 40
[display_material_sum] => 5 165 232
[display_work_sum] => 3 461 131
[display_total_sum] => 8 626 363
)
1
8 626 363₽
Работа:3 461 131 ₽
Материалы:5 165 232 ₽
Дни:40
stdClass Object
(
[id] => 191
[attribute_id] => 1
[name] => Винтовые сваи
[material_modifier] => 1
[work_modifier] => 1
[options] => Array
(
[0] => 57х200мм
[1] => 76х250мм
[2] => 108х300мм
[3] => 133х350мм
)
[days] => [1,1,2,2]
[material_price] => [1200,1300,1450,1600]
[work_price] => [400,600,900,1100]
[image] => https://akademik-stroy.ru/wp-content/uploads/materials/vintovye-svai.png
[area_modifier] => 153.93
[parent_name] => Фундамент
[parent_id] => 1
[material_sum] => 243825
[work_sum] => 67729
[total_sum] => 311554
[total_days] => 1
[display_material_sum] => 243 825
[display_work_sum] => 67 729
[display_total_sum] => 311 554
)
1
311 554₽
Работа:67 729 ₽
Материалы:243 825 ₽
Дни:1
stdClass Object
(
[id] => 3
[attribute_id] => 2
[name] => Деревянные балки
[material_modifier] => 1
[work_modifier] => 1
[options] => Array
(
[0] => без утепления
[1] => утепление 200 мм
[2] => утепление 250 мм
[3] => утепление 300 мм
[4] => утепление 350 мм
[5] => утепление 400 мм
[6] => утепление 450 мм
[7] => утепление 500 мм
)
[days] => [8,9,9,9,11,12,13,14]
[material_price] => [1634,2042,2344,2947,3149,3652,3354,3557]
[work_price] => [1230,1339,1393,1426,1460,1513,1587,1620]
[image] => https://akademik-stroy.ru/wp-content/uploads/materials/derevyannye-balki.png
[area_modifier] => 153.93
[parent_name] => Перекрытие цоколя
[parent_id] => 2
[material_sum] => 332009
[work_sum] => 208267
[total_sum] => 540276
[total_days] => 8
[display_material_sum] => 332 009
[display_work_sum] => 208 267
[display_total_sum] => 540 276
)
1
540 276₽
Работа:208 267 ₽
Материалы:332 009 ₽
Дни:8
stdClass Object
(
[id] => 4
[attribute_id] => 2
[name] => Сборные ж/б плиты
[material_modifier] => 1
[work_modifier] => 1
[options] => Array
(
[0] => без утепления
[1] => утепление 150мм
[2] => утепление 200мм
[3] => утепление 250мм
[4] => утепление 300мм
[5] => утепление 350мм
[6] => утепление 400мм
[7] => утепление 450мм
[8] => утепление 500мм
)
[days] => [13,15,15,15,15,15,15,15,15]
[material_price] => [3067,5577,5928,6679,7730,8782,9833,10884,11935]
[work_price] => [1520,1956,2102,2247,2392,2537,2684,2829,2974]
[image] => https://akademik-stroy.ru/wp-content/uploads/materials/sbornye-zh-b-plity-2.jpg
[area_modifier] => 153.93
[parent_name] => Перекрытие цоколя
[parent_id] => 2
[material_sum] => 623176
[work_sum] => 257371
[total_sum] => 880547
[total_days] => 13
[display_material_sum] => 623 176
[display_work_sum] => 257 371
[display_total_sum] => 880 547
)
1
880 547₽
Работа:257 371 ₽
Материалы:623 176 ₽
Дни:13
stdClass Object
(
[id] => 78
[attribute_id] => 2
[name] => Монолитная ж/б плита
[material_modifier] => 1
[work_modifier] => 1
[options] => Array
(
[0] => без утепления
[1] => утепление 150 мм
[2] => утепление 200 мм
[3] => утепление 250 мм
[4] => утепление 300 мм
[5] => утепление 350 мм
[6] => утепление 400 мм
[7] => утепление 450 мм
[8] => утепление 500 мм
)
[days] => [18,20,20,20,20,20,20,20,20]
[material_price] => [4837,6572,7224,7375,79426,8177,8728,9180,10031]
[work_price] => [3348,3921,4112,4302,4493,4684,4875,5066,5256]
[image] => https://akademik-stroy.ru/wp-content/uploads/materials/monolitnaya-zh-b-plita-2.jpg
[area_modifier] => 153.93
[parent_name] => Перекрытие цоколя
[parent_id] => 2
[material_sum] => 982818
[work_sum] => 566893
[total_sum] => 1549711
[total_days] => 18
[display_material_sum] => 982 818
[display_work_sum] => 566 893
[display_total_sum] => 1 549 711
)
1
1 549 711₽
Работа:566 893 ₽
Материалы:982 818 ₽
Дни:18
stdClass Object
(
[id] => 6
[attribute_id] => 3
[name] => Пеноблок
[material_modifier] => 1
[work_modifier] => 1
[options] => Array
(
[0] => 300 мм
[1] => 400 мм
[2] => 500 мм
[3] => 600 мм
)
[days] => [29,31,34,39]
[material_price] => [3000,4000,4500,4937]
[work_price] => [5033,5805,6400,8710]
[image] => https://akademik-stroy.ru/wp-content/uploads/materials/penoblok.jpg
[area_modifier] => 153.93
[parent_name] => Стены 1 этаж (несущие)
[parent_id] => 3
[material_sum] => 609563
[work_sum] => 852203
[total_sum] => 1461766
[total_days] => 29
[display_material_sum] => 609 563
[display_work_sum] => 852 203
[display_total_sum] => 1 461 766
)
1
1 461 766₽
Работа:852 203 ₽
Материалы:609 563 ₽
Дни:29
stdClass Object
(
[id] => 79
[attribute_id] => 3
[name] => Керамический блок
[material_modifier] => 1
[work_modifier] => 1
[options] => Array
(
[0] => 380 мм
[1] => 380 мм Thermo
[2] => 440 мм
[3] => 510 мм
)
[days] => [23,23,24,25]
[material_price] => [4510,5098,6093,8013]
[work_price] => [4737,4937,5903,6958]
[image] => https://akademik-stroy.ru/wp-content/uploads/materials/keramicheskij-blok.jpg
[area_modifier] => 153.93
[parent_name] => Стены 1 этаж (несущие)
[parent_id] => 3
[material_sum] => 916376
[work_sum] => 802083
[total_sum] => 1718459
[total_days] => 23
[display_material_sum] => 916 376
[display_work_sum] => 802 083
[display_total_sum] => 1 718 459
)
1
1 718 459₽
Работа:802 083 ₽
Материалы:916 376 ₽
Дни:23
stdClass Object
(
[id] => 80
[attribute_id] => 3
[name] => Кирпич
[material_modifier] => 1
[work_modifier] => 1
[options] => Array
(
[0] => Кирпич 250 мм
[1] => Кирпич 380 мм
[2] => Кирпич 510 мм
[3] => Кирпич 640 мм
[4] => Кирпич 770 мм
)
[days] => [30,30,31,33,36]
[material_price] => [5500,7142,9206,10171,12235]
[work_price] => [8736,10041,12018,15240,18462]
[image] => https://akademik-stroy.ru/wp-content/uploads/materials/kirpich.jpg
[area_modifier] => 153.93
[parent_name] => Стены 1 этаж (несущие)
[parent_id] => 3
[material_sum] => 1117532
[work_sum] => 1479206
[total_sum] => 2596738
[total_days] => 30
[display_material_sum] => 1 117 532
[display_work_sum] => 1 479 206
[display_total_sum] => 2 596 738
)
1
2 596 738₽
Работа:1 479 206 ₽
Материалы:1 117 532 ₽
Дни:30
stdClass Object
(
[id] => 81
[attribute_id] => 3
[name] => Монолитные
[material_modifier] => 1
[work_modifier] => 1
[options] => Array
(
[0] => 150 мм
[1] => 200 мм
[2] => 250 мм
[3] => 300 мм
[4] => 350 мм
[5] => 400 мм
)
[days] => [45,46,47,49,50,53]
[material_price] => [6545,7876,10175,12011,13908,15204]
[work_price] => [5106,6444,7698,8552,9807,11461]
[image] => https://akademik-stroy.ru/wp-content/uploads/materials/monolitnye.jpg
[area_modifier] => 153.93
[parent_name] => Стены 1 этаж (несущие)
[parent_id] => 3
[material_sum] => 1329863
[work_sum] => 864563
[total_sum] => 2194426
[total_days] => 45
[display_material_sum] => 1 329 863
[display_work_sum] => 864 563
[display_total_sum] => 2 194 426
)
1
2 194 426₽
Работа:864 563 ₽
Материалы:1 329 863 ₽
Дни:45
stdClass Object
(
[id] => 82
[attribute_id] => 3
[name] => Клееный брус
[material_modifier] => 1
[work_modifier] => 1
[options] => Array
(
[0] => 160 мм
[1] => 175 мм
[2] => 200 мм
[3] => 215 мм
[4] => 240 мм
[5] => 270 мм
[6] => 282 мм
)
[days] => [24,28,32,37,40,42,48]
[material_price] => [16975,18773,19950,20545,21599,22159,23275]
[work_price] => [4806,5287,5815,6397,7036,7740,8514]
[image] => https://akademik-stroy.ru/wp-content/uploads/materials/kleenyj-brus.jpg
[area_modifier] => 153.93
[parent_name] => Стены 1 этаж (несущие)
[parent_id] => 3
[material_sum] => 3449110
[work_sum] => 813766
[total_sum] => 4262876
[total_days] => 24
[display_material_sum] => 3 449 110
[display_work_sum] => 813 766
[display_total_sum] => 4 262 876
)
1
4 262 876₽
Работа:813 766 ₽
Материалы:3 449 110 ₽
Дни:24
stdClass Object
(
[id] => 83
[attribute_id] => 3
[name] => Каркасные
[material_modifier] => 1
[work_modifier] => 1
[options] => Array
(
[0] => 150 мм
[1] => 200 мм
[2] => 250 мм
[3] => 300 мм
)
[days] => [15,16,17,18]
[material_price] => [2379,2639,2898,3258]
[work_price] => [2418,2686,2985,3716]
[image] => https://akademik-stroy.ru/wp-content/uploads/materials/karkasnye.jpg
[area_modifier] => 153.93
[parent_name] => Стены 1 этаж (несущие)
[parent_id] => 3
[material_sum] => 483383
[work_sum] => 409423
[total_sum] => 892806
[total_days] => 15
[display_material_sum] => 483 383
[display_work_sum] => 409 423
[display_total_sum] => 892 806
)
1
892 806₽
Работа:409 423 ₽
Материалы:483 383 ₽
Дни:15
stdClass Object
(
[id] => 84
[attribute_id] => 3
[name] => СИП-панели
[material_modifier] => 1
[work_modifier] => 1
[options] => Array
(
[0] => 120 мм
[1] => 170 мм
[2] => 220 мм
)
[days] => [7,7,7]
[material_price] => [1210,1856,2292]
[work_price] => [1410,1551,1706]
[image] => https://akademik-stroy.ru/wp-content/uploads/materials/sip-paneli.jpg
[area_modifier] => 153.93
[parent_name] => Стены 1 этаж (несущие)
[parent_id] => 3
[material_sum] => 245857
[work_sum] => 238745
[total_sum] => 484602
[total_days] => 7
[display_material_sum] => 245 857
[display_work_sum] => 238 745
[display_total_sum] => 484 602
)
1
484 602₽
Работа:238 745 ₽
Материалы:245 857 ₽
Дни:7
stdClass Object
(
[id] => 85
[attribute_id] => 3
[name] => Сухой брус
[material_modifier] => 1
[work_modifier] => 1
[options] => Array
(
[0] => 150 мм
[1] => 180 мм
[2] => 200 мм
)
[days] => [7,8,9]
[material_price] => [6010,7190,8709]
[work_price] => [3204,3845,4229]
[image] => https://akademik-stroy.ru/wp-content/uploads/materials/suhoj-brus.jpg
[area_modifier] => 153.93
[parent_name] => Стены 1 этаж (несущие)
[parent_id] => 3
[material_sum] => 1221157
[work_sum] => 542511
[total_sum] => 1763668
[total_days] => 7
[display_material_sum] => 1 221 157
[display_work_sum] => 542 511
[display_total_sum] => 1 763 668
)
1
1 763 668₽
Работа:542 511 ₽
Материалы:1 221 157 ₽
Дни:7
stdClass Object
(
[id] => 86
[attribute_id] => 3
[name] => Профилированный брус
[material_modifier] => 1
[work_modifier] => 1
[options] => Array
(
[0] => 150 мм
[1] => 180 мм
[2] => 200 мм
)
[days] => [7,8,9]
[material_price] => [8190,9228,10051]
[work_price] => [3845,4614,5075]
[image] => https://akademik-stroy.ru/wp-content/uploads/materials/profilirovannyj-brus.jpg
[area_modifier] => 153.93
[parent_name] => Стены 1 этаж (несущие)
[parent_id] => 3
[material_sum] => 1664106
[work_sum] => 651047
[total_sum] => 2315153
[total_days] => 7
[display_material_sum] => 1 664 106
[display_work_sum] => 651 047
[display_total_sum] => 2 315 153
)
1
2 315 153₽
Работа:651 047 ₽
Материалы:1 664 106 ₽
Дни:7
stdClass Object
(
[id] => 87
[attribute_id] => 3
[name] => Оцилиндрованное бревно
[material_modifier] => 1
[work_modifier] => 1
[options] => Array
(
[0] => 180 мм
[1] => 220 мм
[2] => 260 мм
[3] => 320 мм
)
[days] => [7,8,9,10]
[material_price] => [75190,9532,10868,13116]
[work_price] => [3845,4691,5535,6863]
[image] => https://akademik-stroy.ru/wp-content/uploads/materials/ocilindrovannoe-brevno-1.jpg
[area_modifier] => 153.93
[parent_name] => Стены 1 этаж (несущие)
[parent_id] => 3
[material_sum] => 15277676
[work_sum] => 651047
[total_sum] => 15928723
[total_days] => 7
[display_material_sum] => 15 277 676
[display_work_sum] => 651 047
[display_total_sum] => 15 928 723
)
1
15 928 723₽
Работа:651 047 ₽
Материалы:15 277 676 ₽
Дни:7
stdClass Object
(
[id] => 88
[attribute_id] => 3
[name] => Срубы
[material_modifier] => 1
[work_modifier] => 1
[options] => Array
(
[0] => 260 мм
[1] => 320 мм
[2] => 360 мм
[3] => 400 мм
[4] => 500 мм
)
[days] => [7,8,9,10,11]
[material_price] => [37975,46709,52314,58069,73167]
[work_price] => [4806,5911,6621,7349,9260]
[image] => https://akademik-stroy.ru/wp-content/uploads/materials/sruby.jpg
[area_modifier] => 153.93
[parent_name] => Стены 1 этаж (несущие)
[parent_id] => 3
[material_sum] => 7716049
[work_sum] => 813766
[total_sum] => 8529815
[total_days] => 7
[display_material_sum] => 7 716 049
[display_work_sum] => 813 766
[display_total_sum] => 8 529 815
)
1
8 529 815₽
Работа:813 766 ₽
Материалы:7 716 049 ₽
Дни:7
stdClass Object
(
[id] => 174
[attribute_id] => 3
[name] => Брус
[material_modifier] => 1
[work_modifier] => 1
[options] => Array
(
[0] => 150 мм
[1] => 180 мм
[2] => 200 мм
)
[days] => [7,8,9]
[material_price] => [5127,6152,7367]
[work_price] => [1602,1922,2115]
[image] => https://akademik-stroy.ru/wp-content/uploads/materials/brus.jpg
[area_modifier] => 153.93
[parent_name] => Стены 1 этаж (несущие)
[parent_id] => 3
[material_sum] => 1041743
[work_sum] => 271255
[total_sum] => 1312998
[total_days] => 7
[display_material_sum] => 1 041 743
[display_work_sum] => 271 255
[display_total_sum] => 1 312 998
)
1
1 312 998₽
Работа:271 255 ₽
Материалы:1 041 743 ₽
Дни:7
stdClass Object
(
[id] => 175
[attribute_id] => 3
[name] => Газобетон
[material_modifier] => 1
[work_modifier] => 1
[options] => Array
(
[0] => 300 мм
[1] => 375 мм
[2] => 400 мм
[3] => 500 мм
[4] => 600 мм
)
[days] => [29,31,35,37,44]
[material_price] => [4298,5573,6356,7288,9119]
[work_price] => [4538,5251,5926,6733,7195]
[image] => https://akademik-stroy.ru/wp-content/uploads/materials/gazobeton.jpg
[area_modifier] => 153.93
[parent_name] => Стены 1 этаж (несущие)
[parent_id] => 3
[material_sum] => 873300
[work_sum] => 768388
[total_sum] => 1641688
[total_days] => 29
[display_material_sum] => 873 300
[display_work_sum] => 768 388
[display_total_sum] => 1 641 688
)
1
1 641 688₽
Работа:768 388 ₽
Материалы:873 300 ₽
Дни:29
stdClass Object
(
[id] => 176
[attribute_id] => 3
[name] => Блок
[material_modifier] => 1
[work_modifier] => 1
[options] => Array
(
[0] => 300 мм
[1] => 375 мм
[2] => 400 мм
[3] => 500 мм
[4] => 600 мм
)
[days] => [29,31,35,37,44]
[material_price] => [2698,3973,4356,6588,7119]
[work_price] => [5038,5851,6426,8733,9195]
[image] => https://akademik-stroy.ru/wp-content/uploads/materials/blok.jpg
[area_modifier] => 153.93
[parent_name] => Стены 1 этаж (несущие)
[parent_id] => 3
[material_sum] => 548200
[work_sum] => 853049
[total_sum] => 1401249
[total_days] => 29
[display_material_sum] => 548 200
[display_work_sum] => 853 049
[display_total_sum] => 1 401 249
)
1
1 401 249₽
Работа:853 049 ₽
Материалы:548 200 ₽
Дни:29
stdClass Object
(
[id] => 177
[attribute_id] => 3
[name] => Газосиликатный блок
[material_modifier] => 1
[work_modifier] => 1
[options] => Array
(
[0] => 300 мм
[1] => 375 мм
[2] => 400 мм
[3] => 500 мм
[4] => 600 мм
)
[days] => [29,31,35,37,44]
[material_price] => [4298,5573,6356,7288,9119]
[work_price] => [4538,5251,5926,6733,7195]
[image] => https://akademik-stroy.ru/wp-content/uploads/materials/gazosilikatnyj-blok.jpg
[area_modifier] => 153.93
[parent_name] => Стены 1 этаж (несущие)
[parent_id] => 3
[material_sum] => 873300
[work_sum] => 768388
[total_sum] => 1641688
[total_days] => 29
[display_material_sum] => 873 300
[display_work_sum] => 768 388
[display_total_sum] => 1 641 688
)
1
1 641 688₽
Работа:768 388 ₽
Материалы:873 300 ₽
Дни:29
stdClass Object
(
[id] => 178
[attribute_id] => 3
[name] => Керамзитобетонный блок
[material_modifier] => 1
[work_modifier] => 1
[options] => Array
(
[0] => 300 мм
[1] => 375 мм
[2] => 400 мм
[3] => 500 мм
[4] => 600 мм
)
[days] => [23,23,24,25,28]
[material_price] => [3641,4298,5693,7613,9612]
[work_price] => [5737,5737,6903,7958,8901]
[image] => https://akademik-stroy.ru/wp-content/uploads/materials/keramzitobetonnyj-blok.jpg
[area_modifier] => 153.93
[parent_name] => Стены 1 этаж (несущие)
[parent_id] => 3
[material_sum] => 739806
[work_sum] => 971406
[total_sum] => 1711212
[total_days] => 23
[display_material_sum] => 739 806
[display_work_sum] => 971 406
[display_total_sum] => 1 711 212
)
1
1 711 212₽
Работа:971 406 ₽
Материалы:739 806 ₽
Дни:23
stdClass Object
(
[id] => 179
[attribute_id] => 3
[name] => Деревянные
[material_modifier] => 1
[work_modifier] => 1
[options] => Array
(
[0] => 180 мм
[1] => 220 мм
[2] => 260 мм
[3] => 320 мм
)
[days] => [7,8,9,10]
[material_price] => [7950,9458,11961,14472]
[work_price] => [4037,4925,5812,7207]
[image] => https://akademik-stroy.ru/wp-content/uploads/materials/derevyannye.jpg
[area_modifier] => 153.93
[parent_name] => Стены 1 этаж (несущие)
[parent_id] => 3
[material_sum] => 1615341
[work_sum] => 683557
[total_sum] => 2298898
[total_days] => 7
[display_material_sum] => 1 615 341
[display_work_sum] => 683 557
[display_total_sum] => 2 298 898
)
1
2 298 898₽
Работа:683 557 ₽
Материалы:1 615 341 ₽
Дни:7
stdClass Object
(
[id] => 181
[attribute_id] => 3
[name] => Камень
[material_modifier] => 1
[work_modifier] => 1
[options] => Array
(
[0] => 300 мм
[1] => 400 мм
[2] => 500 мм
[3] => 600 мм
)
[days] => [25,27,31,34]
[material_price] => [5262,6844,8330,9815]
[work_price] => [8331,9135,10427,11069]
[image] => https://akademik-stroy.ru/wp-content/uploads/materials/kamen.jpg
[area_modifier] => 153.93
[parent_name] => Стены 1 этаж (несущие)
[parent_id] => 3
[material_sum] => 1069173
[work_sum] => 1410630
[total_sum] => 2479803
[total_days] => 25
[display_material_sum] => 1 069 173
[display_work_sum] => 1 410 630
[display_total_sum] => 2 479 803
)
1
2 479 803₽
Работа:1 410 630 ₽
Материалы:1 069 173 ₽
Дни:25
stdClass Object
(
[id] => 182
[attribute_id] => 3
[name] => Каркасно-щитовые
[material_modifier] => 1
[work_modifier] => 1
[options] => Array
(
[0] => 150 мм
[1] => 200 мм
[2] => 250 мм
[3] => 300 мм
[4] => 350 мм
[5] => 400 мм
)
[days] => [15,16,17,18,19,20]
[material_price] => [2379,2639,2898,3458,3601,4175]
[work_price] => [2538,2820,3134,3483,4062,5642]
[image] => https://akademik-stroy.ru/wp-content/uploads/materials/karkasno-shchitovye.jpg
[area_modifier] => 153.93
[parent_name] => Стены 1 этаж (несущие)
[parent_id] => 3
[material_sum] => 483383
[work_sum] => 429742
[total_sum] => 913125
[total_days] => 15
[display_material_sum] => 483 383
[display_work_sum] => 429 742
[display_total_sum] => 913 125
)
1
913 125₽
Работа:429 742 ₽
Материалы:483 383 ₽
Дни:15
stdClass Object
(
[id] => 183
[attribute_id] => 3
[name] => Рубленные
[material_modifier] => 1
[work_modifier] => 1
[options] => Array
(
[0] => 150 мм
[1] => 200 мм
[2] => 250 мм
[3] => 300 мм
[4] => 350 мм
[5] => 400 мм
)
[days] => [15,16,17,18,17,18]
[material_price] => [35950,50267,60583,75900,80217,100533]
[work_price] => [9612,12816,16020,19224,22428,25632]
[image] => https://akademik-stroy.ru/wp-content/uploads/materials/rublennye.jpg
[area_modifier] => 153.93
[parent_name] => Стены 1 этаж (несущие)
[parent_id] => 3
[material_sum] => 7304594
[work_sum] => 1627533
[total_sum] => 8932127
[total_days] => 15
[display_material_sum] => 7 304 594
[display_work_sum] => 1 627 533
[display_total_sum] => 8 932 127
)
1
8 932 127₽
Работа:1 627 533 ₽
Материалы:7 304 594 ₽
Дни:15
stdClass Object
(
[id] => 185
[attribute_id] => 3
[name] => Теплоблок
[material_modifier] => 1
[work_modifier] => 1
[options] => Array
(
[0] => 300 мм (с облицовкой, не покрашенный)
[1] => 400 мм (с облицовкой, не покрашенный)
[2] => 300 мм (с облицовкой, покрашенный)
[3] => 400 мм (с облицовкой, покрашенный)
)
[days] => [15,16,15,16]
[material_price] => [2888,3729,3957,4258]
[work_price] => [2564,3229,2949,3713]
[image] => https://akademik-stroy.ru/wp-content/uploads/materials/teploblok.jpg
[area_modifier] => 153.93
[parent_name] => Стены 1 этаж (несущие)
[parent_id] => 3
[material_sum] => 586806
[work_sum] => 434144
[total_sum] => 1020950
[total_days] => 15
[display_material_sum] => 586 806
[display_work_sum] => 434 144
[display_total_sum] => 1 020 950
)
1
1 020 950₽
Работа:434 144 ₽
Материалы:586 806 ₽
Дни:15
stdClass Object
(
[id] => 186
[attribute_id] => 3
[name] => Арболитовые блоки
[material_modifier] => 1
[work_modifier] => 1
[options] => Array
(
[0] => 300 мм
[1] => 400 мм
[2] => 600 мм
)
[days] => [19,22,27]
[material_price] => [3210,4475,5852]
[work_price] => [4214,4788,5866]
[image] => https://akademik-stroy.ru/wp-content/uploads/materials/arbolitovye-bloki.png
[area_modifier] => 153.93
[parent_name] => Стены 1 этаж (несущие)
[parent_id] => 3
[material_sum] => 652232
[work_sum] => 713527
[total_sum] => 1365759
[total_days] => 19
[display_material_sum] => 652 232
[display_work_sum] => 713 527
[display_total_sum] => 1 365 759
)
1
1 365 759₽
Работа:713 527 ₽
Материалы:652 232 ₽
Дни:19
stdClass Object
(
[id] => 187
[attribute_id] => 3
[name] => Полистиролбетон
[material_modifier] => 1
[work_modifier] => 1
[options] => Array
(
[0] => 300 мм
[1] => 400 мм
[2] => 600 мм
)
[days] => [29,31,35]
[material_price] => [2798,4573,5256]
[work_price] => [5038,5851,6426]
[image] => https://akademik-stroy.ru/wp-content/uploads/materials/polistirolbeton.jpg
[area_modifier] => 153.93
[parent_name] => Стены 1 этаж (несущие)
[parent_id] => 3
[material_sum] => 568519
[work_sum] => 853049
[total_sum] => 1421568
[total_days] => 29
[display_material_sum] => 568 519
[display_work_sum] => 853 049
[display_total_sum] => 1 421 568
)
1
1 421 568₽
Работа:853 049 ₽
Материалы:568 519 ₽
Дни:29
stdClass Object
(
[id] => 188
[attribute_id] => 3
[name] => Шлакоблок
[material_modifier] => 1
[work_modifier] => 1
[options] => Array
(
[0] => 400 мм
[1] => 600 мм
)
[days] => [15,16]
[material_price] => [2391,3471]
[work_price] => [2642,3662]
[image] => https://akademik-stroy.ru/wp-content/uploads/materials/shlakoblok.jpg
[area_modifier] => 153.93
[parent_name] => Стены 1 этаж (несущие)
[parent_id] => 3
[material_sum] => 485822
[work_sum] => 447351
[total_sum] => 933173
[total_days] => 15
[display_material_sum] => 485 822
[display_work_sum] => 447 351
[display_total_sum] => 933 173
)
1
933 173₽
Работа:447 351 ₽
Материалы:485 822 ₽
Дни:15
stdClass Object
(
[id] => 189
[attribute_id] => 3
[name] => Теплая керамика
[material_modifier] => 1
[work_modifier] => 1
[options] => Array
(
[0] => 380 мм
[1] => 380 мм Thermo
[2] => 440 мм
[3] => 510 мм
)
[days] => [23,23,24,25]
[material_price] => [4510,5098,6093,8013]
[work_price] => [4737,4937,5903,6958]
[image] => https://akademik-stroy.ru/wp-content/uploads/materials/teplaya-keramika.jpg
[area_modifier] => 153.93
[parent_name] => Стены 1 этаж (несущие)
[parent_id] => 3
[material_sum] => 916376
[work_sum] => 802083
[total_sum] => 1718459
[total_days] => 23
[display_material_sum] => 916 376
[display_work_sum] => 802 083
[display_total_sum] => 1 718 459
)
1
1 718 459₽
Работа:802 083 ₽
Материалы:916 376 ₽
Дни:23
stdClass Object
(
[id] => 190
[attribute_id] => 3
[name] => Несъемная опалубка
[material_modifier] => 1
[work_modifier] => 1
[options] => Array
(
[0] => 200 мм
[1] => 250 мм
[2] => 300 мм
[3] => 350 мм
)
[days] => [15,17,19,21]
[material_price] => [3302,3902,4108,5008]
[work_price] => [2100,2100,2300,2534]
[image] => https://akademik-stroy.ru/wp-content/uploads/materials/nesemnaya-opalubka.jpg
[area_modifier] => 153.93
[parent_name] => Стены 1 этаж (несущие)
[parent_id] => 3
[material_sum] => 670925
[work_sum] => 355578
[total_sum] => 1026503
[total_days] => 15
[display_material_sum] => 670 925
[display_work_sum] => 355 578
[display_total_sum] => 1 026 503
)
1
1 026 503₽
Работа:355 578 ₽
Материалы:670 925 ₽
Дни:15
stdClass Object
(
[id] => 251
[attribute_id] => 3
[name] => Бревно
[material_modifier] => 1
[work_modifier] => 1
[options] => Array
(
[0] => 260 мм
[1] => 320 мм
[2] => 360 мм
[3] => 400 мм
[4] => 500 мм
)
[days] => [7,8,9,10,11]
[material_price] => [1874,24045,26930,30972,38825]
[work_price] => [5046,6207,6952,7716,9723]
[image] => https://akademik-stroy.ru/wp-content/uploads/materials/sruby.jpg
[area_modifier] => 153.93
[parent_name] => Стены 1 этаж (несущие)
[parent_id] => 3
[material_sum] => 380774
[work_sum] => 854404
[total_sum] => 1235178
[total_days] => 7
[display_material_sum] => 380 774
[display_work_sum] => 854 404
[display_total_sum] => 1 235 178
)
1
1 235 178₽
Работа:854 404 ₽
Материалы:380 774 ₽
Дни:7
stdClass Object
(
[id] => 7
[attribute_id] => 4
[name] => Деревянные балки
[material_modifier] => 1
[work_modifier] => 1
[options] => Array
(
[0] => без утепления
[1] => утепление 200 мм
[2] => утепление 250 мм
[3] => утепление 300 мм
[4] => утепление 350 мм
[5] => утепление 400 мм
[6] => утепление 450 мм
[7] => утепление 500 мм
)
[days] => [8,9,9,9,11,12,13,14]
[material_price] => [1634,2042,2344,2947,3149,3652,3354,3557]
[work_price] => [1230,1339,1393,1426,1460,1513,1587,1620]
[image] => https://akademik-stroy.ru/wp-content/uploads/materials/derevyannye-balki.png
[area_modifier] => 153.93
[parent_name] => Перекрытие первого этажа
[parent_id] => 4
[material_sum] => 332009
[work_sum] => 208267
[total_sum] => 540276
[total_days] => 8
[display_material_sum] => 332 009
[display_work_sum] => 208 267
[display_total_sum] => 540 276
)
1
540 276₽
Работа:208 267 ₽
Материалы:332 009 ₽
Дни:8
stdClass Object
(
[id] => 8
[attribute_id] => 4
[name] => Сборные ж/б плиты
[material_modifier] => 1
[work_modifier] => 1
[options] => Array
(
[0] => без утепления
[1] => утепление 150 мм
[2] => утепление 200 мм
[3] => утепление 250 мм
[4] => утепление 300 мм
[5] => утепление 350 мм
[6] => утепление 400 мм
[7] => утепление 450 мм
[8] => утепление 500 мм
)
[days] => [13,15,15,15,15,15,15,15,15]
[material_price] => [3067,5577,5928,6679,7730,8782,9833,10884,11935]
[work_price] => [1520,1956,2102,2247,2392,2537,2684,2829,2974]
[image] => https://akademik-stroy.ru/wp-content/uploads/materials/sbornye-zh-b-plity-2.jpg
[area_modifier] => 153.93
[parent_name] => Перекрытие первого этажа
[parent_id] => 4
[material_sum] => 623176
[work_sum] => 257371
[total_sum] => 880547
[total_days] => 13
[display_material_sum] => 623 176
[display_work_sum] => 257 371
[display_total_sum] => 880 547
)
1
880 547₽
Работа:257 371 ₽
Материалы:623 176 ₽
Дни:13
stdClass Object
(
[id] => 89
[attribute_id] => 4
[name] => Монолитная ж/б плита
[material_modifier] => 1
[work_modifier] => 1
[options] => Array
(
[0] => без утепления
[1] => утепление 150 мм
[2] => утепление 200 мм
[3] => утепление 250 мм
[4] => утепление 300 мм
[5] => утепление 350 мм
[6] => утепление 400 мм
[7] => утепление 450 мм
[8] => утепление 500 мм
)
[days] => [18,20,20,20,20,20,20,20,20]
[material_price] => [4837,6572,7224,7375,79426,8177,8728,9180,10031]
[work_price] => [3348,3921,4112,4302,4493,4684,4875,5066,5256]
[image] => https://akademik-stroy.ru/wp-content/uploads/materials/monolitnaya-zh-b-plita-2.jpg
[area_modifier] => 153.93
[parent_name] => Перекрытие первого этажа
[parent_id] => 4
[material_sum] => 982818
[work_sum] => 566893
[total_sum] => 1549711
[total_days] => 18
[display_material_sum] => 982 818
[display_work_sum] => 566 893
[display_total_sum] => 1 549 711
)
1
1 549 711₽
Работа:566 893 ₽
Материалы:982 818 ₽
Дни:18
stdClass Object
(
[id] => 160
[attribute_id] => 36
[name] => Не эксплуатируемая
[material_modifier] => 1
[work_modifier] => 1
[options] => Array
(
)
[days] => [10]
[material_price] => [8068]
[work_price] => [4163]
[image] => https://akademik-stroy.ru/wp-content/uploads/materials/ne-ehkspluatiruemaya-3.jpg
[area_modifier] => 153.93
[parent_name] => Плоская крыша
[parent_id] => 36
[material_sum] => 1639318
[work_sum] => 704892
[total_sum] => 2344210
[total_days] => 10
[display_material_sum] => 1 639 318
[display_work_sum] => 704 892
[display_total_sum] => 2 344 210
)
1
2 344 210₽
Работа:704 892 ₽
Материалы:1 639 318 ₽
Дни:10
stdClass Object
(
[id] => 161
[attribute_id] => 36
[name] => Зеленая кровля (Эксплуатируемая)
[material_modifier] => 1
[work_modifier] => 1
[options] => Array
(
)
[days] => [10]
[material_price] => [10056]
[work_price] => [8446]
[image] => https://akademik-stroy.ru/wp-content/uploads/materials/zelenaya-krovlya-2.jpg
[area_modifier] => 153.93
[parent_name] => Плоская крыша
[parent_id] => 36
[material_sum] => 2043255
[work_sum] => 1430102
[total_sum] => 3473357
[total_days] => 10
[display_material_sum] => 2 043 255
[display_work_sum] => 1 430 102
[display_total_sum] => 3 473 357
)
1
3 473 357₽
Работа:1 430 102 ₽
Материалы:2 043 255 ₽
Дни:10
stdClass Object
(
[id] => 162
[attribute_id] => 36
[name] => Эксплуатируемая
[material_modifier] => 1
[work_modifier] => 1
[options] => Array
(
)
[days] => [10]
[material_price] => [9593]
[work_price] => [7459]
[image] => https://akademik-stroy.ru/wp-content/uploads/materials/ehkspluatiruemaya-2.jpg
[area_modifier] => 153.93
[parent_name] => Плоская крыша
[parent_id] => 36
[material_sum] => 1949179
[work_sum] => 1262980
[total_sum] => 3212159
[total_days] => 10
[display_material_sum] => 1 949 179
[display_work_sum] => 1 262 980
[display_total_sum] => 3 212 159
)
1
3 212 159₽
Работа:1 262 980 ₽
Материалы:1 949 179 ₽
Дни:10
stdClass Object
(
[id] => 163
[attribute_id] => 36
[name] => Нет
[material_modifier] => 1
[work_modifier] => 1
[options] => Array
(
)
[days] => [0]
[material_price] => [0]
[work_price] => [0]
[image] => https://akademik-stroy.ru/wp-content/uploads/materials/ne-ehkspluatiruemaya-3.jpg
[area_modifier] => 153.93
[parent_name] => Плоская крыша
[parent_id] => 36
[material_sum] => 0
[work_sum] => 0
[total_sum] => 0
[total_days] => 0
[display_material_sum] => 0
[display_work_sum] => 0
[display_total_sum] => 0
)
1
0₽
Работа:0 ₽
Материалы:0 ₽
Дни:0
stdClass Object
(
[id] => 51
[attribute_id] => 26
[name] => Есть
[material_modifier] => 1
[work_modifier] => 1
[options] => Array
(
[0] => Профиль 58 мм, 3-камерный, стеклопакет 2-камерный до 32 мм
[1] => Профиль 60 мм, 4-камерный, стеклопакет 2-камерный до 32 мм
[2] => Профиль 70 мм, 5-камерный, стеклопакет 2-камерный до 40 мм
[3] => Профиль 72 мм, 5-камерный, стеклопакет 2-камерный до 40 мм
[4] => Алюминиевые окна Alutech профиль 72 мм, стеклопакет 2-камерный
)
[days] => [3,3,3,3,3]
[material_price] => [1339,2124,2867,3023,29596]
[work_price] => [635,647,659,668,2579]
[image] => https://akademik-stroy.ru/wp-content/uploads/materials/okna.jpg
[area_modifier] => 124.91
[parent_name] => Окна
[parent_id] => 26
[material_sum] => 220776
[work_sum] => 87250
[total_sum] => 308026
[total_days] => 3
[display_material_sum] => 220 776
[display_work_sum] => 87 250
[display_total_sum] => 308 026
)
1
308 026₽
Работа:87 250 ₽
Материалы:220 776 ₽
Дни:3
stdClass Object
(
[id] => 52
[attribute_id] => 26
[name] => Нет
[material_modifier] => 2
[work_modifier] => 1
[options] =>
[days] => null
[material_price] => null
[work_price] => null
[image] => https://akademik-stroy.ru/wp-content/uploads/materials/okna.jpg
[area_modifier] => 124.91
[parent_name] => Окна
[parent_id] => 26
[material_sum] => 0
[work_sum] => 0
[total_sum] => 0
[total_days] => 0
[display_material_sum] => 0
[display_work_sum] => 0
[display_total_sum] => 0
)
1
0₽
Работа:0 ₽
Материалы:0 ₽
Дни:0
stdClass Object
(
[id] => 53
[attribute_id] => 27
[name] => Есть
[material_modifier] => 1
[work_modifier] => 1
[options] => Array
(
)
[days] => [1]
[material_price] => [10000]
[work_price] => [5500]
[image] => https://akademik-stroy.ru/wp-content/uploads/materials/dveri.jpg
[area_modifier] => 1
[parent_name] => Двери входные
[parent_id] => 27
[material_sum] => 13200
[work_sum] => 6050
[total_sum] => 19250
[total_days] => 1
[display_material_sum] => 13 200
[display_work_sum] => 6 050
[display_total_sum] => 19 250
)
1
19 250₽
Работа:6 050 ₽
Материалы:13 200 ₽
Дни:1
stdClass Object
(
[id] => 54
[attribute_id] => 27
[name] => Нет
[material_modifier] => 1
[work_modifier] => 1
[options] => Array
(
)
[days] => [0]
[material_price] => [0]
[work_price] => [0]
[image] => https://akademik-stroy.ru/wp-content/uploads/materials/dveri.jpg
[area_modifier] => 1
[parent_name] => Двери входные
[parent_id] => 27
[material_sum] => 0
[work_sum] => 0
[total_sum] => 0
[total_days] => 0
[display_material_sum] => 0
[display_work_sum] => 0
[display_total_sum] => 0
)
1
0₽
Работа:0 ₽
Материалы:0 ₽
Дни:0
stdClass Object
(
[id] => 31
[attribute_id] => 16
[name] => Нет
[material_modifier] => 1
[work_modifier] => 1
[options] => Array
(
)
[days] => [0]
[material_price] => [0]
[work_price] => [0]
[image] => https://akademik-stroy.ru/wp-content/uploads/materials/docke-standard-pvh.jpg
[area_modifier] => 153.93
[parent_name] => Водосточная система
[parent_id] => 16
[material_sum] => 0
[work_sum] => 0
[total_sum] => 0
[total_days] => 0
[display_material_sum] => 0
[display_work_sum] => 0
[display_total_sum] => 0
)
1
0₽
Работа:0 ₽
Материалы:0 ₽
Дни:0
stdClass Object
(
[id] => 32
[attribute_id] => 16
[name] => Есть
[material_modifier] => 1
[work_modifier] => 1
[options] => Array
(
[0] => Döcke Standard (ПВХ)
[1] => Металлические Grand Line
)
[days] => [7,7]
[material_price] => [1842,2703]
[work_price] => [1491,1529]
[image] => https://akademik-stroy.ru/wp-content/uploads/materials/docke-standard-pvh.jpg
[area_modifier] => 153.93
[parent_name] => Водосточная система
[parent_id] => 16
[material_sum] => 374272
[work_sum] => 252461
[total_sum] => 626733
[total_days] => 7
[display_material_sum] => 374 272
[display_work_sum] => 252 461
[display_total_sum] => 626 733
)
1
626 733₽
Работа:252 461 ₽
Материалы:374 272 ₽
Дни:7
stdClass Object
(
[id] => 33
[attribute_id] => 17
[name] => Нет
[material_modifier] => 1
[work_modifier] => 1
[options] => Array
(
)
[days] => [0]
[material_price] => [0]
[work_price] => [0]
[image] => https://akademik-stroy.ru/wp-content/uploads/materials/mineralovata.jpg
[area_modifier] => 153.93
[parent_name] => Дополнительное утепление наружных стен
[parent_id] => 17
[material_sum] => 0
[work_sum] => 0
[total_sum] => 0
[total_days] => 0
[display_material_sum] => 0
[display_work_sum] => 0
[display_total_sum] => 0
)
1
0₽
Работа:0 ₽
Материалы:0 ₽
Дни:0
stdClass Object
(
[id] => 34
[attribute_id] => 17
[name] => Минераловатный
[material_modifier] => 1
[work_modifier] => 1
[options] => Array
(
[0] => 50 мм
[1] => 100 мм
[2] => 150 мм
[3] => 200 мм
[4] => 250 мм
[5] => 300 мм
)
[days] => [7,8,10,12,14,15]
[material_price] => [3437,3613,3803,3915,4601,4830]
[work_price] => [2325,2423,2523,2749,2859,3025]
[image] => https://akademik-stroy.ru/wp-content/uploads/materials/mineralovata.jpg
[area_modifier] => 153.93
[parent_name] => Дополнительное утепление наружных стен
[parent_id] => 17
[material_sum] => 698356
[work_sum] => 393676
[total_sum] => 1092032
[total_days] => 7
[display_material_sum] => 698 356
[display_work_sum] => 393 676
[display_total_sum] => 1 092 032
)
1
1 092 032₽
Работа:393 676 ₽
Материалы:698 356 ₽
Дни:7
stdClass Object
(
[id] => 128
[attribute_id] => 17
[name] => Эковата (целлюлозная вата)
[material_modifier] => 1
[work_modifier] => 1
[options] => Array
(
[0] => 50 мм
[1] => 100 мм
[2] => 150 мм
[3] => 200 мм
[4] => 250 мм
[5] => 300 мм
)
[days] => [3,4,5,6,7,8]
[material_price] => [810,1319,1629,1838,2267,2676]
[work_price] => [1225,1323,1423,1549,1659,1725]
[image] => https://akademik-stroy.ru/wp-content/uploads/materials/ehkovata.jpg
[area_modifier] => 153.93
[parent_name] => Дополнительное утепление наружных стен
[parent_id] => 17
[material_sum] => 164582
[work_sum] => 207421
[total_sum] => 372003
[total_days] => 3
[display_material_sum] => 164 582
[display_work_sum] => 207 421
[display_total_sum] => 372 003
)
1
372 003₽
Работа:207 421 ₽
Материалы:164 582 ₽
Дни:3
stdClass Object
(
[id] => 129
[attribute_id] => 17
[name] => Экструдированный пенополистирол
[material_modifier] => 1
[work_modifier] => 1
[options] => Array
(
[0] => 50 мм
[1] => 100 мм
[2] => 150 мм
[3] => 200 мм
[4] => 250 мм
[5] => 300 мм
)
[days] => [5,6,7,8,9,10]
[material_price] => [4560,4300,5119,6292,7010,8583]
[work_price] => [1795,1954,2254,2330,2595,2735]
[image] => https://akademik-stroy.ru/wp-content/uploads/materials/epps.jpg
[area_modifier] => 153.93
[parent_name] => Дополнительное утепление наружных стен
[parent_id] => 17
[material_sum] => 926535
[work_sum] => 303935
[total_sum] => 1230470
[total_days] => 5
[display_material_sum] => 926 535
[display_work_sum] => 303 935
[display_total_sum] => 1 230 470
)
1
1 230 470₽
Работа:303 935 ₽
Материалы:926 535 ₽
Дни:5
stdClass Object
(
[id] => 130
[attribute_id] => 17
[name] => ПСБ (ППС-пенополистирол)
[material_modifier] => 1
[work_modifier] => 1
[options] => Array
(
[0] => 50 мм
[1] => 100 мм
[2] => 150 мм
[3] => 200 мм
[4] => 250 мм
[5] => 300 мм
)
[days] => [5,6,7,8,9,10]
[material_price] => [4822,5200,5819,6292,7010,7583]
[work_price] => [1795,1954,2254,2330,2595,2735]
[image] => https://akademik-stroy.ru/wp-content/uploads/materials/psb.jpg
[area_modifier] => 153.93
[parent_name] => Дополнительное утепление наружных стен
[parent_id] => 17
[material_sum] => 979771
[work_sum] => 303935
[total_sum] => 1283706
[total_days] => 5
[display_material_sum] => 979 771
[display_work_sum] => 303 935
[display_total_sum] => 1 283 706
)
1
1 283 706₽
Работа:303 935 ₽
Материалы:979 771 ₽
Дни:5
stdClass Object
(
[id] => 131
[attribute_id] => 17
[name] => ППУ (Пенополиуретан)
[material_modifier] => 1
[work_modifier] => 1
[options] => Array
(
[0] => 50 мм
[1] => 100 мм
[2] => 150 мм
[3] => 200 мм
[4] => 250 мм
[5] => 300 мм
)
[days] => [3,4,5,6,7,8]
[material_price] => [2860,3400,4219,4592,5010,5583]
[work_price] => [729,900,980,1120,1280,1530]
[image] => https://akademik-stroy.ru/wp-content/uploads/materials/ppu.jpg
[area_modifier] => 153.93
[parent_name] => Дополнительное утепление наружных стен
[parent_id] => 17
[material_sum] => 581117
[work_sum] => 123436
[total_sum] => 704553
[total_days] => 3
[display_material_sum] => 581 117
[display_work_sum] => 123 436
[display_total_sum] => 704 553
)
1
704 553₽
Работа:123 436 ₽
Материалы:581 117 ₽
Дни:3
stdClass Object
(
[id] => 132
[attribute_id] => 17
[name] => PIR-плиты (пенополиизоцианурат)
[material_modifier] => 1
[work_modifier] => 1
[options] => Array
(
[0] => 50 мм
[1] => 100 мм
[2] => 150 мм
[3] => 200 мм
[4] => 250 мм
[5] => 300 мм
)
[days] => [5,6,7,8,9,10]
[material_price] => [8323,15645,20968,25900,29258,30581]
[work_price] => [800,900,970,1150,1280,1330]
[image] => https://akademik-stroy.ru/wp-content/uploads/materials/pir.jpg
[area_modifier] => 153.93
[parent_name] => Дополнительное утепление наружных стен
[parent_id] => 17
[material_sum] => 1691130
[work_sum] => 135458
[total_sum] => 1826588
[total_days] => 5
[display_material_sum] => 1 691 130
[display_work_sum] => 135 458
[display_total_sum] => 1 826 588
)
1
1 826 588₽
Работа:135 458 ₽
Материалы:1 691 130 ₽
Дни:5
stdClass Object
(
[id] => 37
[attribute_id] => 19
[name] => Нет
[material_modifier] => 1
[work_modifier] => 1
[options] => Array
(
)
[days] => [0]
[material_price] => [0]
[work_price] => [0]
[image] => https://akademik-stroy.ru/wp-content/uploads/materials/imitaciya-brusa.jpg
[area_modifier] => 153.93
[parent_name] => Наружная отделка фасада
[parent_id] => 19
[material_sum] => 0
[work_sum] => 0
[total_sum] => 0
[total_days] => 0
[display_material_sum] => 0
[display_work_sum] => 0
[display_total_sum] => 0
)
1
0₽
Работа:0 ₽
Материалы:0 ₽
Дни:0
stdClass Object
(
[id] => 38
[attribute_id] => 19
[name] => Имитация бруса
[material_modifier] => 1
[work_modifier] => 1
[options] => Array
(
[0] => Сосна
[1] => Ель
[2] => Лиственница
)
[days] => [20,20,20]
[material_price] => [2994,2762,4954]
[work_price] => [1397,1231,1577]
[image] => https://akademik-stroy.ru/wp-content/uploads/materials/imitaciya-brusa.jpg
[area_modifier] => 153.93
[parent_name] => Наружная отделка фасада
[parent_id] => 19
[material_sum] => 608344
[work_sum] => 236544
[total_sum] => 844888
[total_days] => 20
[display_material_sum] => 608 344
[display_work_sum] => 236 544
[display_total_sum] => 844 888
)
1
844 888₽
Работа:236 544 ₽
Материалы:608 344 ₽
Дни:20
stdClass Object
(
[id] => 136
[attribute_id] => 19
[name] => Планкен
[material_modifier] => 1
[work_modifier] => 1
[options] => Array
(
[0] => Сосна
[1] => Ель
[2] => Лиственница
)
[days] => [20,20,20]
[material_price] => [3194,2862,5154]
[work_price] => [1537,1354,1735]
[image] => https://akademik-stroy.ru/wp-content/uploads/materials/planken.jpg
[area_modifier] => 153.93
[parent_name] => Наружная отделка фасада
[parent_id] => 19
[material_sum] => 648981
[work_sum] => 260249
[total_sum] => 909230
[total_days] => 20
[display_material_sum] => 648 981
[display_work_sum] => 260 249
[display_total_sum] => 909 230
)
1
909 230₽
Работа:260 249 ₽
Материалы:648 981 ₽
Дни:20
stdClass Object
(
[id] => 137
[attribute_id] => 19
[name] => Штукатурка
[material_modifier] => 1
[work_modifier] => 1
[options] => Array
(
[0] => Цементно-песчаная (минеральная)
[1] => Мокрый фасад
)
[days] => [35,35]
[material_price] => [2231,3938]
[work_price] => [1202,2422]
[image] => https://akademik-stroy.ru/wp-content/uploads/materials/shtukaturka.jpg
[area_modifier] => 153.93
[parent_name] => Наружная отделка фасада
[parent_id] => 19
[material_sum] => 453312
[work_sum] => 203526
[total_sum] => 656838
[total_days] => 35
[display_material_sum] => 453 312
[display_work_sum] => 203 526
[display_total_sum] => 656 838
)
1
656 838₽
Работа:203 526 ₽
Материалы:453 312 ₽
Дни:35
stdClass Object
(
[id] => 138
[attribute_id] => 19
[name] => Облицовочный кирпич
[material_modifier] => 1
[work_modifier] => 1
[options] => Array
(
[0] => Керамический
[1] => Клинкерный
[2] => Ручной формовки
[3] => Гиперпрессованный
[4] => Силикатный кирпич
)
[days] => [45,45,45,45,45]
[material_price] => [8174,9148,1040,1257,5876]
[work_price] => [3240,3758,4536,4017,3369]
[image] => https://akademik-stroy.ru/wp-content/uploads/materials/oblicovochnyj-kirpich.jpg
[area_modifier] => 153.93
[parent_name] => Наружная отделка фасада
[parent_id] => 19
[material_sum] => 1660855
[work_sum] => 548607
[total_sum] => 2209462
[total_days] => 45
[display_material_sum] => 1 660 855
[display_work_sum] => 548 607
[display_total_sum] => 2 209 462
)
1
2 209 462₽
Работа:548 607 ₽
Материалы:1 660 855 ₽
Дни:45
stdClass Object
(
[id] => 139
[attribute_id] => 19
[name] => Фасадная плитка
[material_modifier] => 1
[work_modifier] => 1
[options] => Array
(
[0] => Клинкерная
[1] => Керамическая
[2] => Плитка ручной формовки
)
[days] => [40,40,40]
[material_price] => [2974,1487,3470]
[work_price] => [3007,2592,3629]
[image] => https://akademik-stroy.ru/wp-content/uploads/materials/fasadnaya-plitka.jpg
[area_modifier] => 153.93
[parent_name] => Наружная отделка фасада
[parent_id] => 19
[material_sum] => 604280
[work_sum] => 509154
[total_sum] => 1113434
[total_days] => 40
[display_material_sum] => 604 280
[display_work_sum] => 509 154
[display_total_sum] => 1 113 434
)
1
1 113 434₽
Работа:509 154 ₽
Материалы:604 280 ₽
Дни:40
stdClass Object
(
[id] => 140
[attribute_id] => 19
[name] => Сайдинг
[material_modifier] => 1
[work_modifier] => 1
[options] => Array
(
[0] => Виниловый
[1] => Металлический
[2] => Фиброцементный
)
[days] => [20,20,20]
[material_price] => [1263,1944,4147]
[work_price] => [1263,1944,2074]
[image] => https://akademik-stroy.ru/wp-content/uploads/materials/sajding.jpg
[area_modifier] => 153.93
[parent_name] => Наружная отделка фасада
[parent_id] => 19
[material_sum] => 256626
[work_sum] => 213855
[total_sum] => 470481
[total_days] => 20
[display_material_sum] => 256 626
[display_work_sum] => 213 855
[display_total_sum] => 470 481
)
1
470 481₽
Работа:213 855 ₽
Материалы:256 626 ₽
Дни:20
stdClass Object
(
[id] => 141
[attribute_id] => 19
[name] => Камень
[material_modifier] => 1
[work_modifier] => 1
[options] => Array
(
[0] => Травертин
[1] => Дагестанский
[2] => Искусственный
[3] => Натуральный
[4] => Керамогранит
)
[days] => [45,45,45,45,45]
[material_price] => [4536,3888,2592,3240,2462]
[work_price] => [3240,3240,2462,3110,1944]
[image] => https://akademik-stroy.ru/wp-content/uploads/materials/kamen-1.jpg
[area_modifier] => 153.93
[parent_name] => Наружная отделка фасада
[parent_id] => 19
[material_sum] => 921659
[work_sum] => 548607
[total_sum] => 1470266
[total_days] => 45
[display_material_sum] => 921 659
[display_work_sum] => 548 607
[display_total_sum] => 1 470 266
)
1
1 470 266₽
Работа:548 607 ₽
Материалы:921 659 ₽
Дни:45
stdClass Object
(
[id] => 142
[attribute_id] => 19
[name] => Термопанели
[material_modifier] => 1
[work_modifier] => 1
[options] => Array
(
)
[days] => [20]
[material_price] => [6221]
[work_price] => [2333]
[image] => https://akademik-stroy.ru/wp-content/uploads/materials/termo.png
[area_modifier] => 153.93
[parent_name] => Наружная отделка фасада
[parent_id] => 19
[material_sum] => 1264030
[work_sum] => 395031
[total_sum] => 1659061
[total_days] => 20
[display_material_sum] => 1 264 030
[display_work_sum] => 395 031
[display_total_sum] => 1 659 061
)
1
1 659 061₽
Работа:395 031 ₽
Материалы:1 264 030 ₽
Дни:20
stdClass Object
(
[id] => 143
[attribute_id] => 19
[name] => Плитка HAUBERK
[material_modifier] => 1
[work_modifier] => 1
[options] => Array
(
)
[days] => [20]
[material_price] => [2786]
[work_price] => [1944]
[image] => https://akademik-stroy.ru/wp-content/uploads/materials/hauberk.jpg
[area_modifier] => 153.93
[parent_name] => Наружная отделка фасада
[parent_id] => 19
[material_sum] => 566081
[work_sum] => 329164
[total_sum] => 895245
[total_days] => 20
[display_material_sum] => 566 081
[display_work_sum] => 329 164
[display_total_sum] => 895 245
)
1
895 245₽
Работа:329 164 ₽
Материалы:566 081 ₽
Дни:20
stdClass Object
(
[id] => 144
[attribute_id] => 19
[name] => Фальцевый фасад
[material_modifier] => 1
[work_modifier] => 1
[options] => Array
(
)
[days] => [20]
[material_price] => [3240]
[work_price] => [2592]
[image] => https://akademik-stroy.ru/wp-content/uploads/materials/falcevyj-fasad.jpg
[area_modifier] => 153.93
[parent_name] => Наружная отделка фасада
[parent_id] => 19
[material_sum] => 658328
[work_sum] => 438885
[total_sum] => 1097213
[total_days] => 20
[display_material_sum] => 658 328
[display_work_sum] => 438 885
[display_total_sum] => 1 097 213
)
1
1 097 213₽
Работа:438 885 ₽
Материалы:658 328 ₽
Дни:20
stdClass Object
(
[id] => 145
[attribute_id] => 19
[name] => Комбинированный
[material_modifier] => 1
[work_modifier] => 1
[options] => Array
(
)
[days] => [20]
[material_price] => [4629]
[work_price] => [3499]
[image] => https://akademik-stroy.ru/wp-content/uploads/materials/Kombinirovannyj.jpg
[area_modifier] => 153.93
[parent_name] => Наружная отделка фасада
[parent_id] => 19
[material_sum] => 940555
[work_sum] => 592461
[total_sum] => 1533016
[total_days] => 20
[display_material_sum] => 940 555
[display_work_sum] => 592 461
[display_total_sum] => 1 533 016
)
1
1 533 016₽
Работа:592 461 ₽
Материалы:940 555 ₽
Дни:20
stdClass Object
(
[id] => 257
[attribute_id] => 19
[name] => Японские фиброцементные
[material_modifier] => 1
[work_modifier] => 1
[options] => Array
(
)
[days] => [20]
[material_price] => [7043]
[work_price] => [2993]
[image] => https://akademik-stroy.ru/wp-content/uploads/materials/paneli.jpg
[area_modifier] => 153.93
[parent_name] => Наружная отделка фасада
[parent_id] => 19
[material_sum] => 1431050
[work_sum] => 506784
[total_sum] => 1937834
[total_days] => 20
[display_material_sum] => 1 431 050
[display_work_sum] => 506 784
[display_total_sum] => 1 937 834
)
1
1 937 834₽
Работа:506 784 ₽
Материалы:1 431 050 ₽
Дни:20
stdClass Object
(
[id] => 258
[attribute_id] => 19
[name] => Панели Каньон
[material_modifier] => 1
[work_modifier] => 1
[options] => Array
(
)
[days] => [20]
[material_price] => [4543]
[work_price] => [2592]
[image] => https://akademik-stroy.ru/wp-content/uploads/materials/kanon.png
[area_modifier] => 153.93
[parent_name] => Наружная отделка фасада
[parent_id] => 19
[material_sum] => 923081
[work_sum] => 438885
[total_sum] => 1361966
[total_days] => 20
[display_material_sum] => 923 081
[display_work_sum] => 438 885
[display_total_sum] => 1 361 966
)
1
1 361 966₽
Работа:438 885 ₽
Материалы:923 081 ₽
Дни:20
stdClass Object
(
[id] => 39
[attribute_id] => 20
[name] => Нет
[material_modifier] => 1
[work_modifier] => 1
[options] => Array
(
)
[days] => [0]
[material_price] => [0]
[work_price] => [0]
[image] => https://akademik-stroy.ru/wp-content/uploads/materials/terrasy.jpg
[area_modifier] => 30
[parent_name] => Террасы, крыльца, навесы
[parent_id] => 20
[material_sum] => 0
[work_sum] => 0
[total_sum] => 0
[total_days] => 0
[display_material_sum] => 0
[display_work_sum] => 0
[display_total_sum] => 0
)
1
0₽
Работа:0 ₽
Материалы:0 ₽
Дни:0
stdClass Object
(
[id] => 40
[attribute_id] => 20
[name] => Есть
[material_modifier] => 1
[work_modifier] => 1
[options] => Array
(
)
[days] => [5]
[material_price] => [10450]
[work_price] => [1950]
[image] => https://akademik-stroy.ru/wp-content/uploads/materials/terrasy.jpg
[area_modifier] => 30
[parent_name] => Террасы, крыльца, навесы
[parent_id] => 20
[material_sum] => 413820
[work_sum] => 64350
[total_sum] => 478170
[total_days] => 5
[display_material_sum] => 413 820
[display_work_sum] => 64 350
[display_total_sum] => 478 170
)
1
478 170₽
Работа:64 350 ₽
Материалы:413 820 ₽
Дни:5
stdClass Object
(
[id] => 41
[attribute_id] => 21
[name] => Нет
[material_modifier] => 1
[work_modifier] => 1
[options] => Array
(
)
[days] => [0]
[material_price] => [0]
[work_price] => [0]
[image] => https://akademik-stroy.ru/wp-content/uploads/materials/balkony.jpg
[area_modifier] => 30
[parent_name] => Балконы
[parent_id] => 21
[material_sum] => 0
[work_sum] => 0
[total_sum] => 0
[total_days] => 0
[display_material_sum] => 0
[display_work_sum] => 0
[display_total_sum] => 0
)
1
0₽
Работа:0 ₽
Материалы:0 ₽
Дни:0
stdClass Object
(
[id] => 42
[attribute_id] => 21
[name] => Есть
[material_modifier] => 1
[work_modifier] => 1
[options] => Array
(
)
[days] => [12]
[material_price] => [3600]
[work_price] => [1950]
[image] => https://akademik-stroy.ru/wp-content/uploads/materials/balkony.jpg
[area_modifier] => 30
[parent_name] => Балконы
[parent_id] => 21
[material_sum] => 142560
[work_sum] => 64350
[total_sum] => 206910
[total_days] => 12
[display_material_sum] => 142 560
[display_work_sum] => 64 350
[display_total_sum] => 206 910
)
1
206 910₽
Работа:64 350 ₽
Материалы:142 560 ₽
Дни:12
stdClass Object
(
[id] => 43
[attribute_id] => 22
[name] => Нет
[material_modifier] => 1
[work_modifier] => 1
[options] => Array
(
)
[days] => [0]
[material_price] => [0]
[work_price] => [0]
[image] => https://akademik-stroy.ru/wp-content/uploads/materials/uteplennaya.jpg
[area_modifier] => 153.93
[parent_name] => Отмостка
[parent_id] => 22
[material_sum] => 0
[work_sum] => 0
[total_sum] => 0
[total_days] => 0
[display_material_sum] => 0
[display_work_sum] => 0
[display_total_sum] => 0
)
1
0₽
Работа:0 ₽
Материалы:0 ₽
Дни:0
stdClass Object
(
[id] => 44
[attribute_id] => 22
[name] => Утепленная отмостка
[material_modifier] => 1
[work_modifier] => 1
[options] => Array
(
)
[days] => [15]
[material_price] => [2550]
[work_price] => [1750]
[image] => https://akademik-stroy.ru/wp-content/uploads/materials/uteplennaya.jpg
[area_modifier] => 153.93
[parent_name] => Отмостка
[parent_id] => 22
[material_sum] => 518128
[work_sum] => 296315
[total_sum] => 814443
[total_days] => 15
[display_material_sum] => 518 128
[display_work_sum] => 296 315
[display_total_sum] => 814 443
)
1
814 443₽
Работа:296 315 ₽
Материалы:518 128 ₽
Дни:15
stdClass Object
(
[id] => 146
[attribute_id] => 22
[name] => Не утепленная отмостка
[material_modifier] => 1
[work_modifier] => 1
[options] => Array
(
)
[days] => [10]
[material_price] => [1650]
[work_price] => [1450]
[image] => https://akademik-stroy.ru/wp-content/uploads/materials/ne-uteplennaya.jpg
[area_modifier] => 153.93
[parent_name] => Отмостка
[parent_id] => 22
[material_sum] => 335260
[work_sum] => 245518
[total_sum] => 580778
[total_days] => 10
[display_material_sum] => 335 260
[display_work_sum] => 245 518
[display_total_sum] => 580 778
)
1
580 778₽
Работа:245 518 ₽
Материалы:335 260 ₽
Дни:10
stdClass Object
(
[id] => 45
[attribute_id] => 23
[name] => Нет
[material_modifier] => 1
[work_modifier] => 1
[options] => Array
(
)
[days] => [0]
[material_price] => [0]
[work_price] => [0]
[image] => https://akademik-stroy.ru/wp-content/uploads/materials/drenazh-2.jpg
[area_modifier] => 153.93
[parent_name] => Дренаж вокруг дома
[parent_id] => 23
[material_sum] => 0
[work_sum] => 0
[total_sum] => 0
[total_days] => 0
[display_material_sum] => 0
[display_work_sum] => 0
[display_total_sum] => 0
)
1
0₽
Работа:0 ₽
Материалы:0 ₽
Дни:0
stdClass Object
(
[id] => 46
[attribute_id] => 23
[name] => Есть
[material_modifier] => 1
[work_modifier] => 1
[options] => Array
(
)
[days] => [5]
[material_price] => [2366]
[work_price] => [1911]
[image] => https://akademik-stroy.ru/wp-content/uploads/materials/drenazh-2.jpg
[area_modifier] => 153.93
[parent_name] => Дренаж вокруг дома
[parent_id] => 23
[material_sum] => 480742
[work_sum] => 323576
[total_sum] => 804318
[total_days] => 5
[display_material_sum] => 480 742
[display_work_sum] => 323 576
[display_total_sum] => 804 318
)
1
804 318₽
Работа:323 576 ₽
Материалы:480 742 ₽
Дни:5
stdClass Object
(
[id] => 47
[attribute_id] => 24
[name] => Нет
[material_modifier] => 1
[work_modifier] => 1
[options] => Array
(
)
[days] => [0]
[material_price] => [0]
[work_price] => [0]
[image] => https://akademik-stroy.ru/wp-content/uploads/materials/septik.jpg
[area_modifier] => 1
[parent_name] => Автономная канализация (септики)
[parent_id] => 24
[material_sum] => 0
[work_sum] => 0
[total_sum] => 0
[total_days] => 0
[display_material_sum] => 0
[display_work_sum] => 0
[display_total_sum] => 0
)
1
0₽
Работа:0 ₽
Материалы:0 ₽
Дни:0
stdClass Object
(
[id] => 48
[attribute_id] => 24
[name] => Есть
[material_modifier] => 1
[work_modifier] => 1
[options] => Array
(
[0] => Для дачи на 4 человека
[1] => Для дома на 5 человек
[2] => Для дома на 6 человек
[3] => Для дома на 7 человек
[4] => Для дома на 10 человек
)
[days] => [7,7,7,8,8]
[material_price] => [196340,220500,240940,264200,293340]
[work_price] => [50000,55000,60500,66550,73206]
[image] => https://akademik-stroy.ru/wp-content/uploads/materials/septik.jpg
[area_modifier] => 1
[parent_name] => Автономная канализация (септики)
[parent_id] => 24
[material_sum] => 259169
[work_sum] => 55000
[total_sum] => 314169
[total_days] => 7
[display_material_sum] => 259 169
[display_work_sum] => 55 000
[display_total_sum] => 314 169
)
1
314 169₽
Работа:55 000 ₽
Материалы:259 169 ₽
Дни:7
stdClass Object
(
[id] => 49
[attribute_id] => 25
[name] => Нет
[material_modifier] => 1
[work_modifier] => 1
[options] => Array
(
)
[days] => [0]
[material_price] => [0]
[work_price] => [0]
[image] => https://akademik-stroy.ru/wp-content/uploads/materials/gkl.jpg
[area_modifier] => 153.93
[parent_name] => Внутренние (не несущие) перегородки
[parent_id] => 25
[material_sum] => 0
[work_sum] => 0
[total_sum] => 0
[total_days] => 0
[display_material_sum] => 0
[display_work_sum] => 0
[display_total_sum] => 0
)
1
0₽
Работа:0 ₽
Материалы:0 ₽
Дни:0
stdClass Object
(
[id] => 147
[attribute_id] => 25
[name] => Каркасно-обшивные
[material_modifier] => 1
[work_modifier] => 1
[options] => Array
(
[0] => 75 мм (без шумоизоляции)
[1] => 75 мм (с шумоизоляцией)
)
[days] => [11,11]
[material_price] => [580,970]
[work_price] => [380,570]
[image] => https://akademik-stroy.ru/wp-content/uploads/materials/gkl.jpg
[area_modifier] => 153.93
[parent_name] => Внутренние (не несущие) перегородки
[parent_id] => 25
[material_sum] => 117849
[work_sum] => 64343
[total_sum] => 182192
[total_days] => 11
[display_material_sum] => 117 849
[display_work_sum] => 64 343
[display_total_sum] => 182 192
)
1
182 192₽
Работа:64 343 ₽
Материалы:117 849 ₽
Дни:11
stdClass Object
(
[id] => 148
[attribute_id] => 25
[name] => Пазогребневые
[material_modifier] => 1
[work_modifier] => 1
[options] => Array
(
[0] => 80 мм
[1] => 100 мм
)
[days] => [5,5]
[material_price] => [1022,1313]
[work_price] => [600,700]
[image] => https://akademik-stroy.ru/wp-content/uploads/materials/pazogrebnevye-bloki.jpg
[area_modifier] => 153.93
[parent_name] => Внутренние (не несущие) перегородки
[parent_id] => 25
[material_sum] => 207658
[work_sum] => 101594
[total_sum] => 309252
[total_days] => 5
[display_material_sum] => 207 658
[display_work_sum] => 101 594
[display_total_sum] => 309 252
)
1
309 252₽
Работа:101 594 ₽
Материалы:207 658 ₽
Дни:5
stdClass Object
(
[id] => 149
[attribute_id] => 25
[name] => Газобетонные
[material_modifier] => 1
[work_modifier] => 1
[options] => Array
(
[0] => 100 мм
[1] => 200 мм
)
[days] => [11,11]
[material_price] => [1160,1920]
[work_price] => [700,900]
[image] => https://akademik-stroy.ru/wp-content/uploads/materials/gazobeton-2.jpg
[area_modifier] => 153.93
[parent_name] => Внутренние (не несущие) перегородки
[parent_id] => 25
[material_sum] => 235698
[work_sum] => 118526
[total_sum] => 354224
[total_days] => 11
[display_material_sum] => 235 698
[display_work_sum] => 118 526
[display_total_sum] => 354 224
)
1
354 224₽
Работа:118 526 ₽
Материалы:235 698 ₽
Дни:11
stdClass Object
(
[id] => 150
[attribute_id] => 25
[name] => Кирпичные
[material_modifier] => 1
[work_modifier] => 1
[options] => Array
(
[0] => 120 мм
[1] => 250 мм
[2] => 360 мм
)
[days] => [7,7,7]
[material_price] => [1785,3570,5355]
[work_price] => [900,1600,1800]
[image] => https://akademik-stroy.ru/wp-content/uploads/materials/kirpich-1.jpg
[area_modifier] => 153.93
[parent_name] => Внутренние (не несущие) перегородки
[parent_id] => 25
[material_sum] => 362690
[work_sum] => 152391
[total_sum] => 515081
[total_days] => 7
[display_material_sum] => 362 690
[display_work_sum] => 152 391
[display_total_sum] => 515 081
)
1
515 081₽
Работа:152 391 ₽
Материалы:362 690 ₽
Дни:7
stdClass Object
(
[id] => 55
[attribute_id] => 28
[name] => Нет
[material_modifier] => 1
[work_modifier] => 1
[options] => Array
(
)
[days] => [0]
[material_price] => [0]
[work_price] => [0]
[image] => https://akademik-stroy.ru/wp-content/uploads/materials/ehlektrika.jpg
[area_modifier] => 124.91
[parent_name] => Электрика
[parent_id] => 28
[material_sum] => 0
[work_sum] => 0
[total_sum] => 0
[total_days] => 0
[display_material_sum] => 0
[display_work_sum] => 0
[display_total_sum] => 0
)
1
0₽
Работа:0 ₽
Материалы:0 ₽
Дни:0
stdClass Object
(
[id] => 56
[attribute_id] => 28
[name] => Есть
[material_modifier] => 1
[work_modifier] => 1
[options] => Array
(
)
[days] => [10]
[material_price] => [650]
[work_price] => [950]
[image] => https://akademik-stroy.ru/wp-content/uploads/materials/ehlektrika.jpg
[area_modifier] => 124.91
[parent_name] => Электрика
[parent_id] => 28
[material_sum] => 107173
[work_sum] => 130531
[total_sum] => 237704
[total_days] => 10
[display_material_sum] => 107 173
[display_work_sum] => 130 531
[display_total_sum] => 237 704
)
1
237 704₽
Работа:130 531 ₽
Материалы:107 173 ₽
Дни:10
stdClass Object
(
[id] => 57
[attribute_id] => 29
[name] => Нет
[material_modifier] => 1
[work_modifier] => 1
[options] => Array
(
)
[days] => [0]
[material_price] => [0]
[work_price] => [0]
[image] => https://akademik-stroy.ru/wp-content/uploads/materials/santekhnika-kanalizaciya-1.jpg
[area_modifier] => 124.91
[parent_name] => Сантехника, канализация в доме
[parent_id] => 29
[material_sum] => 0
[work_sum] => 0
[total_sum] => 0
[total_days] => 0
[display_material_sum] => 0
[display_work_sum] => 0
[display_total_sum] => 0
)
1
0₽
Работа:0 ₽
Материалы:0 ₽
Дни:0
stdClass Object
(
[id] => 58
[attribute_id] => 29
[name] => Есть
[material_modifier] => 1
[work_modifier] => 1
[options] => Array
(
)
[days] => [10]
[material_price] => [600]
[work_price] => [730]
[image] => https://akademik-stroy.ru/wp-content/uploads/materials/santekhnika-kanalizaciya-1.jpg
[area_modifier] => 124.91
[parent_name] => Сантехника, канализация в доме
[parent_id] => 29
[material_sum] => 98929
[work_sum] => 100303
[total_sum] => 199232
[total_days] => 10
[display_material_sum] => 98 929
[display_work_sum] => 100 303
[display_total_sum] => 199 232
)
1
199 232₽
Работа:100 303 ₽
Материалы:98 929 ₽
Дни:10
stdClass Object
(
[id] => 59
[attribute_id] => 30
[name] => Нет
[material_modifier] => 1
[work_modifier] => 1
[options] => Array
(
)
[days] => [0]
[material_price] => [0]
[work_price] => [0]
[image] => https://akademik-stroy.ru/wp-content/uploads/materials/otoplenie-1.jpg
[area_modifier] => 124.91
[parent_name] => Отопление
[parent_id] => 30
[material_sum] => 0
[work_sum] => 0
[total_sum] => 0
[total_days] => 0
[display_material_sum] => 0
[display_work_sum] => 0
[display_total_sum] => 0
)
1
0₽
Работа:0 ₽
Материалы:0 ₽
Дни:0
stdClass Object
(
[id] => 60
[attribute_id] => 30
[name] => Есть
[material_modifier] => 1
[work_modifier] => 1
[options] => Array
(
)
[days] => [5]
[material_price] => [610]
[work_price] => [560]
[image] => https://akademik-stroy.ru/wp-content/uploads/materials/otoplenie-1.jpg
[area_modifier] => 124.91
[parent_name] => Отопление
[parent_id] => 30
[material_sum] => 100578
[work_sum] => 76945
[total_sum] => 177523
[total_days] => 5
[display_material_sum] => 100 578
[display_work_sum] => 76 945
[display_total_sum] => 177 523
)
1
177 523₽
Работа:76 945 ₽
Материалы:100 578 ₽
Дни:5
stdClass Object
(
[id] => 61
[attribute_id] => 31
[name] => Нет
[material_modifier] => 1
[work_modifier] => 1
[options] => Array
(
)
[days] => [0]
[material_price] => [0]
[work_price] => [0]
[image] => https://akademik-stroy.ru/wp-content/uploads/materials/vodyanye.jpg
[area_modifier] => 30
[parent_name] => Теплые полы
[parent_id] => 31
[material_sum] => 0
[work_sum] => 0
[total_sum] => 0
[total_days] => 0
[display_material_sum] => 0
[display_work_sum] => 0
[display_total_sum] => 0
)
1
0₽
Работа:0 ₽
Материалы:0 ₽
Дни:0
stdClass Object
(
[id] => 151
[attribute_id] => 31
[name] => Водяные
[material_modifier] => 1
[work_modifier] => 1
[options] => Array
(
)
[days] => [9]
[material_price] => [10200]
[work_price] => [2500]
[image] => https://akademik-stroy.ru/wp-content/uploads/materials/vodyanye.jpg
[area_modifier] => 30
[parent_name] => Теплые полы
[parent_id] => 31
[material_sum] => 403920
[work_sum] => 82500
[total_sum] => 486420
[total_days] => 9
[display_material_sum] => 403 920
[display_work_sum] => 82 500
[display_total_sum] => 486 420
)
1
486 420₽
Работа:82 500 ₽
Материалы:403 920 ₽
Дни:9
stdClass Object
(
[id] => 152
[attribute_id] => 31
[name] => Электро
[material_modifier] => 1
[work_modifier] => 1
[options] => Array
(
)
[days] => [5]
[material_price] => [6300]
[work_price] => [1500]
[image] => https://akademik-stroy.ru/wp-content/uploads/materials/ehlektricheskij.jpg
[area_modifier] => 30
[parent_name] => Теплые полы
[parent_id] => 31
[material_sum] => 249480
[work_sum] => 49500
[total_sum] => 298980
[total_days] => 5
[display_material_sum] => 249 480
[display_work_sum] => 49 500
[display_total_sum] => 298 980
)
1
298 980₽
Работа:49 500 ₽
Материалы:249 480 ₽
Дни:5
stdClass Object
(
[id] => 63
[attribute_id] => 32
[name] => Нет
[material_modifier] => 1
[work_modifier] => 1
[options] => Array
(
)
[days] => [0]
[material_price] => [0]
[work_price] => [0]
[image] => https://akademik-stroy.ru/wp-content/uploads/materials/shtukaturka-shpatlevka-1.jpg
[area_modifier] => 124.91
[parent_name] => Черновая отделка стен
[parent_id] => 32
[material_sum] => 0
[work_sum] => 0
[total_sum] => 0
[total_days] => 0
[display_material_sum] => 0
[display_work_sum] => 0
[display_total_sum] => 0
)
1
0₽
Работа:0 ₽
Материалы:0 ₽
Дни:0
stdClass Object
(
[id] => 153
[attribute_id] => 32
[name] => Штукатурка и шпатлевка
[material_modifier] => 1
[work_modifier] => 1
[options] => Array
(
)
[days] => [20]
[material_price] => [1850]
[work_price] => [2600]
[image] => https://akademik-stroy.ru/wp-content/uploads/materials/shtukaturka-shpatlevka-1.jpg
[area_modifier] => 124.91
[parent_name] => Черновая отделка стен
[parent_id] => 32
[material_sum] => 305030
[work_sum] => 357243
[total_sum] => 662273
[total_days] => 20
[display_material_sum] => 305 030
[display_work_sum] => 357 243
[display_total_sum] => 662 273
)
1
662 273₽
Работа:357 243 ₽
Материалы:305 030 ₽
Дни:20
stdClass Object
(
[id] => 154
[attribute_id] => 32
[name] => Гипсокортон на стены
[material_modifier] => 1
[work_modifier] => 1
[options] => Array
(
)
[days] => [15]
[material_price] => [950]
[work_price] => [2100]
[image] => https://akademik-stroy.ru/wp-content/uploads/materials/gkl-1.jpg
[area_modifier] => 124.91
[parent_name] => Черновая отделка стен
[parent_id] => 32
[material_sum] => 156637
[work_sum] => 288542
[total_sum] => 445179
[total_days] => 15
[display_material_sum] => 156 637
[display_work_sum] => 288 542
[display_total_sum] => 445 179
)
1
445 179₽
Работа:288 542 ₽
Материалы:156 637 ₽
Дни:15
stdClass Object
(
[id] => 155
[attribute_id] => 32
[name] => Вагонка
[material_modifier] => 1
[work_modifier] => 1
[options] => Array
(
)
[days] => [15]
[material_price] => [1250]
[work_price] => [950]
[image] => https://akademik-stroy.ru/wp-content/uploads/materials/vagonka.jpg
[area_modifier] => 124.91
[parent_name] => Черновая отделка стен
[parent_id] => 32
[material_sum] => 206102
[work_sum] => 130531
[total_sum] => 336633
[total_days] => 15
[display_material_sum] => 206 102
[display_work_sum] => 130 531
[display_total_sum] => 336 633
)
1
336 633₽
Работа:130 531 ₽
Материалы:206 102 ₽
Дни:15
stdClass Object
(
[id] => 65
[attribute_id] => 33
[name] => Нет
[material_modifier] => 1
[work_modifier] => 1
[options] => Array
(
)
[days] => [0]
[material_price] => [0]
[work_price] => [0]
[image] => https://akademik-stroy.ru/wp-content/uploads/materials/styazhka.jpg
[area_modifier] => 124.91
[parent_name] => Черновая отделка полов
[parent_id] => 33
[material_sum] => 0
[work_sum] => 0
[total_sum] => 0
[total_days] => 0
[display_material_sum] => 0
[display_work_sum] => 0
[display_total_sum] => 0
)
1
0₽
Работа:0 ₽
Материалы:0 ₽
Дни:0
stdClass Object
(
[id] => 156
[attribute_id] => 33
[name] => Стяжка + наливные полы
[material_modifier] => 1
[work_modifier] => 1
[options] => Array
(
)
[days] => [10]
[material_price] => [1000]
[work_price] => [900]
[image] => https://akademik-stroy.ru/wp-content/uploads/materials/styazhka.jpg
[area_modifier] => 124.91
[parent_name] => Черновая отделка полов
[parent_id] => 33
[material_sum] => 164881
[work_sum] => 123661
[total_sum] => 288542
[total_days] => 10
[display_material_sum] => 164 881
[display_work_sum] => 123 661
[display_total_sum] => 288 542
)
1
288 542₽
Работа:123 661 ₽
Материалы:164 881 ₽
Дни:10
stdClass Object
(
[id] => 157
[attribute_id] => 33
[name] => ОСБ на пол
[material_modifier] => 1
[work_modifier] => 1
[options] => Array
(
)
[days] => [7]
[material_price] => [580]
[work_price] => [350]
[image] => https://akademik-stroy.ru/wp-content/uploads/materials/osb-1.jpg
[area_modifier] => 124.91
[parent_name] => Черновая отделка полов
[parent_id] => 33
[material_sum] => 95631
[work_sum] => 48090
[total_sum] => 143721
[total_days] => 7
[display_material_sum] => 95 631
[display_work_sum] => 48 090
[display_total_sum] => 143 721
)
1
143 721₽
Работа:48 090 ₽
Материалы:95 631 ₽
Дни:7
stdClass Object
(
[id] => 67
[attribute_id] => 34
[name] => Нет
[material_modifier] => 1
[work_modifier] => 1
[options] => Array
(
)
[days] => [0]
[material_price] => [0]
[work_price] => [0]
[image] => https://akademik-stroy.ru/wp-content/uploads/materials/chistovaya-otdelka.jpg
[area_modifier] => 124.91
[parent_name] => Чистовая отделка стен и полов
[parent_id] => 34
[material_sum] => 0
[work_sum] => 0
[total_sum] => 0
[total_days] => 0
[display_material_sum] => 0
[display_work_sum] => 0
[display_total_sum] => 0
)
1
0₽
Работа:0 ₽
Материалы:0 ₽
Дни:0
stdClass Object
(
[id] => 68
[attribute_id] => 34
[name] => Есть
[material_modifier] => 1
[work_modifier] => 1
[options] => Array
(
)
[days] => [50]
[material_price] => [6000]
[work_price] => [3500]
[image] => https://akademik-stroy.ru/wp-content/uploads/materials/chistovaya-otdelka.jpg
[area_modifier] => 124.91
[parent_name] => Чистовая отделка стен и полов
[parent_id] => 34
[material_sum] => 989287
[work_sum] => 480904
[total_sum] => 1470191
[total_days] => 50
[display_material_sum] => 989 287
[display_work_sum] => 480 904
[display_total_sum] => 1 470 191
)
1
1 470 191₽
Работа:480 904 ₽
Материалы:989 287 ₽
Дни:50
stdClass Object
(
[id] => 69
[attribute_id] => 35
[name] => Нет
[material_modifier] => 1
[work_modifier] => 1
[options] => Array
(
)
[days] => [0]
[material_price] => [0]
[work_price] => [0]
[image] => https://akademik-stroy.ru/wp-content/uploads/materials/mnogourovnevyj-gkl.jpg
[area_modifier] => 124.91
[parent_name] => Отделка потолка
[parent_id] => 35
[material_sum] => 0
[work_sum] => 0
[total_sum] => 0
[total_days] => 0
[display_material_sum] => 0
[display_work_sum] => 0
[display_total_sum] => 0
)
1
0₽
Работа:0 ₽
Материалы:0 ₽
Дни:0
stdClass Object
(
[id] => 70
[attribute_id] => 35
[name] => Есть
[material_modifier] => 1
[work_modifier] => 1
[options] => Array
(
[0] => Многоуровневый потолок из гипсокартона
[1] => Многоуровневый потолок из гипсокартона и натяжного потолка
[2] => Одноуровневый потолок из гипсокартона
[3] => Одноуровневый натяжной потолок
)
[days] => [10,10,1,1]
[material_price] => [900,700,700,600]
[work_price] => [1000,800,500,300]
[image] => https://akademik-stroy.ru/wp-content/uploads/materials/mnogourovnevyj-gkl.jpg
[area_modifier] => 124.91
[parent_name] => Отделка потолка
[parent_id] => 35
[material_sum] => 148393
[work_sum] => 137401
[total_sum] => 285794
[total_days] => 10
[display_material_sum] => 148 393
[display_work_sum] => 137 401
[display_total_sum] => 285 794
)
1
285 794₽
Работа:137 401 ₽
Материалы:148 393 ₽
Дни:10
Преимущества работы с нами
7 этапов оплаты
Независимый строительный надзор
Экологически чистые материалы
16 лет гарантии
Онлайн-кабинет с веб-камерой
Строители с опытом более 15 лет
Собственное производство










