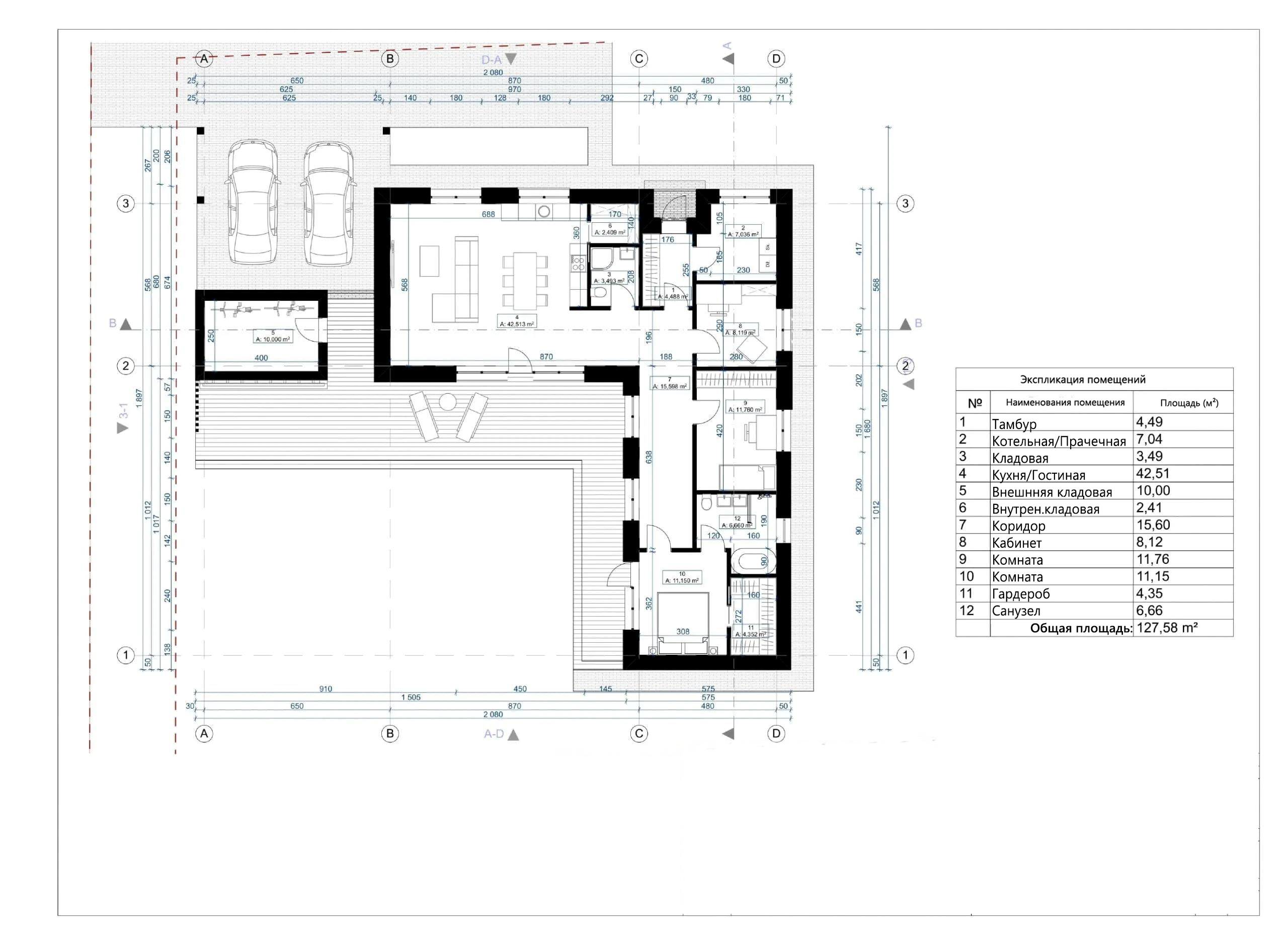
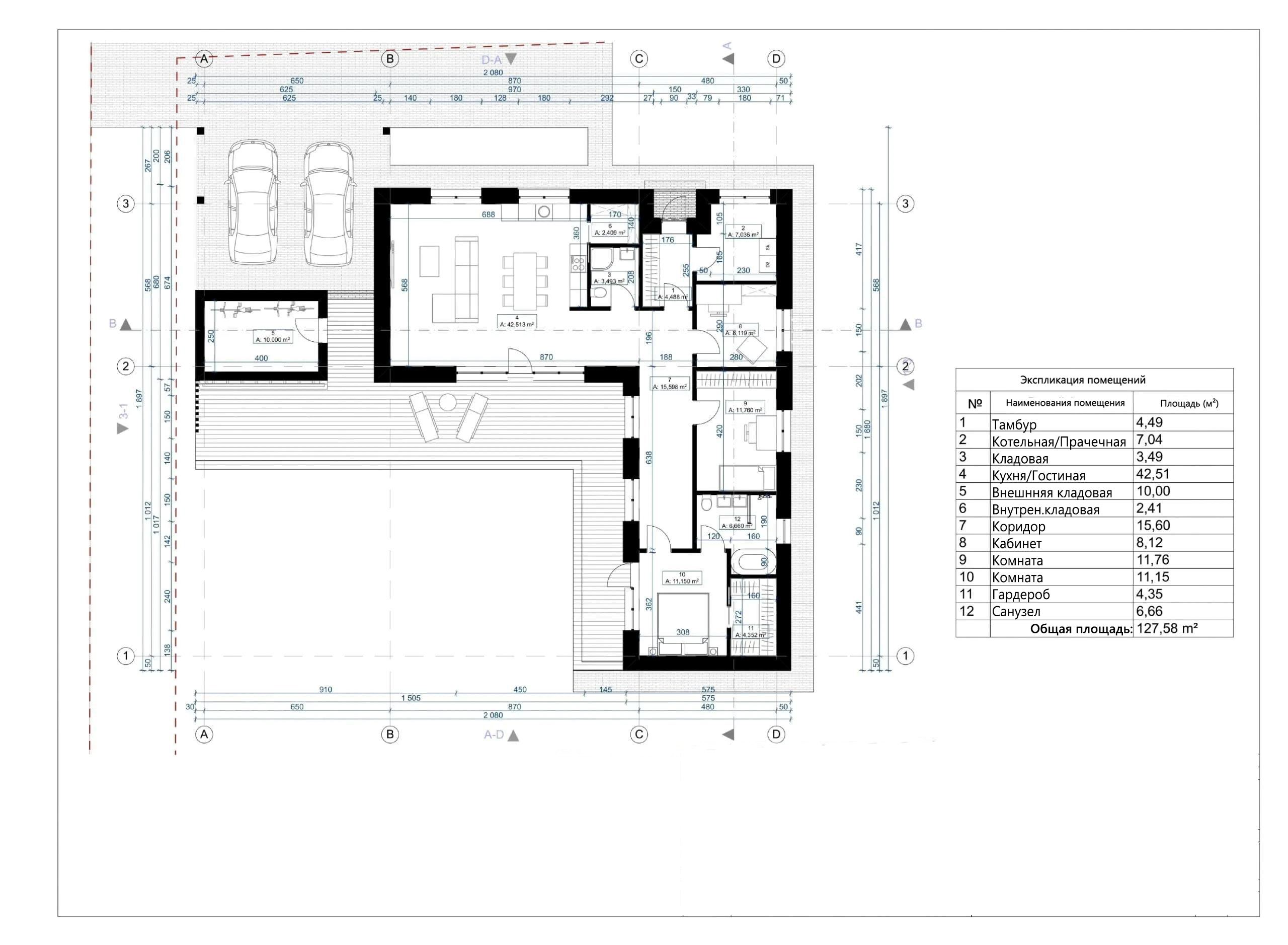
Одноэтажный дом 127.58 м2 за руб.
Планировки
План первого этажа
- 1. Тамбур 4,49 м²
- 2. Котельная-Прачечная 7,04 м²
- 3. Кладовая 3,49 м²
- 4. Кухня-Гостиная-Столовая 42,51 м²
- 5. Внешняя кладовая 10,00 м²
- 6. Внутренняя кладовая 2,41 м²
- 7. Коридор 15,60 м²
- 8. Кабинет 8,12 м²
- 9. Комната 11,76 м²
- 10. Комната 11,15 м²
- 11. Гардероб 4,35 м²
- 12. Санузел 6,66 м²
- Общая площадь первый этаж 127,58 м²
Площади дома
| № п/п | Наименование | Ед. из. | Строительная площадь | Полезная площадь |
| 1 | 1 этаж | м2 | 157.22 | 127.58 |
| 2 | Итого | м2 | 157.22 | 127.58 |
154 м2
Полезная
площадь
площадь
1 этаж
Этажей
26 м2
Террасы
и балконы
и балконы
0Без
гаража
гаража
3
Количество
спален
спален
2
Количество
санузлов
санузлов
Калькулятор опций
0₽
В ипотеку от 20 809 ₽/мес.
0₽
0 дней
stdClass Object
(
[id] => 1
[attribute_id] => 1
[name] => Ленточный монолитный ж/б
[material_modifier] => 1
[work_modifier] => 1
[options] => Array
(
[0] => размер 200 х 700 мм
[1] => размер 300 х 900 мм
[2] => размер 400 х 1 000 мм
[3] => размер 500 х 1 100 мм
[4] => размер 600 х 1 200 мм
)
[days] => [20,21,22,25,30]
[material_price] => [2823,3630,4475,5210,12047]
[work_price] => [2154,2826,3731,4577,5293]
[image] => https://akademik-stroy.ru/wp-content/uploads/materials/lentochnyj-monolitnyj-zh-b.jpg
[area_modifier] => 157.22
[parent_name] => Фундамент
[parent_id] => 1
[material_sum] => 585858
[work_sum] => 372517
[total_sum] => 958375
[total_days] => 20
[display_material_sum] => 585 858
[display_work_sum] => 372 517
[display_total_sum] => 958 375
)
1
958 375₽
Работа:372 517 ₽
Материалы:585 858 ₽
Дни:20
stdClass Object
(
[id] => 2
[attribute_id] => 1
[name] => Забивные Ж/Б сваи
[material_modifier] => 1
[work_modifier] => 1
[options] => Array
(
[0] => 150х150х3000мм
[1] => 150х150х4000мм
[2] => 200х200х3000мм
[3] => 200х200х4000мм
[4] => 200х200х5000мм
[5] => 200х200х6000мм
)
[days] => [2,2,2,2,2,2]
[material_price] => [1990,2850,3255,4360,5120,6837]
[work_price] => [1002,1185,1336,1438,1574,1839]
[image] => https://akademik-stroy.ru/wp-content/uploads/materials/zabivnye-zh-b-svai.png
[area_modifier] => 157.22
[parent_name] => Фундамент
[parent_id] => 1
[material_sum] => 412985
[work_sum] => 173288
[total_sum] => 586273
[total_days] => 2
[display_material_sum] => 412 985
[display_work_sum] => 173 288
[display_total_sum] => 586 273
)
1
586 273₽
Работа:173 288 ₽
Материалы:412 985 ₽
Дни:2
stdClass Object
(
[id] => 71
[attribute_id] => 1
[name] => Свайно-ростверковый ж/б
[material_modifier] => 1
[work_modifier] => 1
[options] => Array
(
[0] => ростверк 200х300 мм
[1] => ростверк 300х600 мм
[2] => ростверк 400х900 мм
[3] => ростверк 500х1200 мм
)
[days] => [20,23,25,27]
[material_price] => [3018,3474,7109,9792]
[work_price] => [2024,3012,5635,7022]
[image] => https://akademik-stroy.ru/wp-content/uploads/materials/svajno-rostverkovyj-monolitnyj-zh-b-3.png
[area_modifier] => 157.22
[parent_name] => Фундамент
[parent_id] => 1
[material_sum] => 626327
[work_sum] => 350035
[total_sum] => 976362
[total_days] => 20
[display_material_sum] => 626 327
[display_work_sum] => 350 035
[display_total_sum] => 976 362
)
1
976 362₽
Работа:350 035 ₽
Материалы:626 327 ₽
Дни:20
stdClass Object
(
[id] => 72
[attribute_id] => 1
[name] => Монолитная ж/б плита
[material_modifier] => 1
[work_modifier] => 1
[options] => Array
(
[0] => 200 мм
[1] => 300 мм
[2] => 400 мм
[3] => 500 мм
[4] => 600 мм
)
[days] => [30,33,35,37,40]
[material_price] => [5348,8555,12788,14388,15189]
[work_price] => [4314,4881,7037,8061,10230]
[image] => https://akademik-stroy.ru/wp-content/uploads/materials/monolitnaya-zhb-plita.png
[area_modifier] => 157.22
[parent_name] => Фундамент
[parent_id] => 1
[material_sum] => 1109873
[work_sum] => 746072
[total_sum] => 1855945
[total_days] => 30
[display_material_sum] => 1 109 873
[display_work_sum] => 746 072
[display_total_sum] => 1 855 945
)
1
1 855 945₽
Работа:746 072 ₽
Материалы:1 109 873 ₽
Дни:30
stdClass Object
(
[id] => 73
[attribute_id] => 1
[name] => Утепленная шведская плита
[material_modifier] => 1
[work_modifier] => 1
[options] => Array
(
[0] => 200 мм
[1] => 300 мм
[2] => 400 мм
[3] => 500 мм
[4] => 600 мм
)
[days] => [32,37,39,42,45]
[material_price] => [10249,12692,13760,14936,16230]
[work_price] => [5960,7337,8072,8878,9765]
[image] => https://akademik-stroy.ru/wp-content/uploads/materials/uteplennaya-shvedskaya-plita.jpg
[area_modifier] => 157.22
[parent_name] => Фундамент
[parent_id] => 1
[material_sum] => 2126979
[work_sum] => 1030734
[total_sum] => 3157713
[total_days] => 32
[display_material_sum] => 2 126 979
[display_work_sum] => 1 030 734
[display_total_sum] => 3 157 713
)
1
3 157 713₽
Работа:1 030 734 ₽
Материалы:2 126 979 ₽
Дни:32
stdClass Object
(
[id] => 75
[attribute_id] => 1
[name] => Ленточный из ФБС
[material_modifier] => 1
[work_modifier] => 1
[options] => Array
(
[0] => толщ. 300 мм
[1] => толщ. 400 мм
[2] => толщ. 500 мм
[3] => толщ. 600 мм
)
[days] => [20,20,20,20]
[material_price] => [3675,4902,6126,7350]
[work_price] => [2451,3264,4083,4902]
[image] => https://akademik-stroy.ru/wp-content/uploads/materials/lentochnyj-iz-fbs.png
[area_modifier] => 157.22
[parent_name] => Фундамент
[parent_id] => 1
[material_sum] => 762674
[work_sum] => 423881
[total_sum] => 1186555
[total_days] => 20
[display_material_sum] => 762 674
[display_work_sum] => 423 881
[display_total_sum] => 1 186 555
)
1
1 186 555₽
Работа:423 881 ₽
Материалы:762 674 ₽
Дни:20
stdClass Object
(
[id] => 76
[attribute_id] => 1
[name] => Цокольный этаж из ФБС
[material_modifier] => 1
[work_modifier] => 1
[options] => Array
(
[0] => толщ. 300 мм
[1] => толщ. 400 мм
[2] => толщ. 500 мм
[3] => толщ. 600 мм
)
[days] => [30,32,34,36]
[material_price] => [20916,23299,26680,29060]
[work_price] => [17524,18700,19873,21046]
[image] => https://akademik-stroy.ru/wp-content/uploads/materials/cokolnyj-ehtazh-iz-fbs.jpg
[area_modifier] => 157.22
[parent_name] => Фундамент
[parent_id] => 1
[material_sum] => 4340706
[work_sum] => 3030636
[total_sum] => 7371342
[total_days] => 30
[display_material_sum] => 4 340 706
[display_work_sum] => 3 030 636
[display_total_sum] => 7 371 342
)
1
7 371 342₽
Работа:3 030 636 ₽
Материалы:4 340 706 ₽
Дни:30
stdClass Object
(
[id] => 77
[attribute_id] => 1
[name] => Цокольный этаж монолитный ж/б
[material_modifier] => 1
[work_modifier] => 1
[options] => Array
(
[0] => толщ. 200 мм
[1] => толщ. 300 мм
[2] => толщ. 400 мм
[3] => толщ. 500 мм
[4] => толщ. 600 мм
)
[days] => [40,42,44,46,48]
[material_price] => [25421,29148,32275,35602,37326]
[work_price] => [20441,21907,23375,24841,26306]
[image] => https://akademik-stroy.ru/wp-content/uploads/materials/cokolnyj-etazh-zh-b.jpg
[area_modifier] => 157.22
[parent_name] => Фундамент
[parent_id] => 1
[material_sum] => 5275630
[work_sum] => 3535107
[total_sum] => 8810737
[total_days] => 40
[display_material_sum] => 5 275 630
[display_work_sum] => 3 535 107
[display_total_sum] => 8 810 737
)
1
8 810 737₽
Работа:3 535 107 ₽
Материалы:5 275 630 ₽
Дни:40
stdClass Object
(
[id] => 191
[attribute_id] => 1
[name] => Винтовые сваи
[material_modifier] => 1
[work_modifier] => 1
[options] => Array
(
[0] => 57х200мм
[1] => 76х250мм
[2] => 108х300мм
[3] => 133х350мм
)
[days] => [1,1,2,2]
[material_price] => [1200,1300,1450,1600]
[work_price] => [400,600,900,1100]
[image] => https://akademik-stroy.ru/wp-content/uploads/materials/vintovye-svai.png
[area_modifier] => 157.22
[parent_name] => Фундамент
[parent_id] => 1
[material_sum] => 249036
[work_sum] => 69177
[total_sum] => 318213
[total_days] => 1
[display_material_sum] => 249 036
[display_work_sum] => 69 177
[display_total_sum] => 318 213
)
1
318 213₽
Работа:69 177 ₽
Материалы:249 036 ₽
Дни:1
stdClass Object
(
[id] => 3
[attribute_id] => 2
[name] => Деревянные балки
[material_modifier] => 1
[work_modifier] => 1
[options] => Array
(
[0] => без утепления
[1] => утепление 200 мм
[2] => утепление 250 мм
[3] => утепление 300 мм
[4] => утепление 350 мм
[5] => утепление 400 мм
[6] => утепление 450 мм
[7] => утепление 500 мм
)
[days] => [8,9,9,9,11,12,13,14]
[material_price] => [1634,2042,2344,2947,3149,3652,3354,3557]
[work_price] => [1230,1339,1393,1426,1460,1513,1587,1620]
[image] => https://akademik-stroy.ru/wp-content/uploads/materials/derevyannye-balki.png
[area_modifier] => 157.22
[parent_name] => Перекрытие цоколя
[parent_id] => 2
[material_sum] => 339105
[work_sum] => 212719
[total_sum] => 551824
[total_days] => 8
[display_material_sum] => 339 105
[display_work_sum] => 212 719
[display_total_sum] => 551 824
)
1
551 824₽
Работа:212 719 ₽
Материалы:339 105 ₽
Дни:8
stdClass Object
(
[id] => 4
[attribute_id] => 2
[name] => Сборные ж/б плиты
[material_modifier] => 1
[work_modifier] => 1
[options] => Array
(
[0] => без утепления
[1] => утепление 150мм
[2] => утепление 200мм
[3] => утепление 250мм
[4] => утепление 300мм
[5] => утепление 350мм
[6] => утепление 400мм
[7] => утепление 450мм
[8] => утепление 500мм
)
[days] => [13,15,15,15,15,15,15,15,15]
[material_price] => [3067,5577,5928,6679,7730,8782,9833,10884,11935]
[work_price] => [1520,1956,2102,2247,2392,2537,2684,2829,2974]
[image] => https://akademik-stroy.ru/wp-content/uploads/materials/sbornye-zh-b-plity-2.jpg
[area_modifier] => 157.22
[parent_name] => Перекрытие цоколя
[parent_id] => 2
[material_sum] => 636496
[work_sum] => 262872
[total_sum] => 899368
[total_days] => 13
[display_material_sum] => 636 496
[display_work_sum] => 262 872
[display_total_sum] => 899 368
)
1
899 368₽
Работа:262 872 ₽
Материалы:636 496 ₽
Дни:13
stdClass Object
(
[id] => 78
[attribute_id] => 2
[name] => Монолитная ж/б плита
[material_modifier] => 1
[work_modifier] => 1
[options] => Array
(
[0] => без утепления
[1] => утепление 150 мм
[2] => утепление 200 мм
[3] => утепление 250 мм
[4] => утепление 300 мм
[5] => утепление 350 мм
[6] => утепление 400 мм
[7] => утепление 450 мм
[8] => утепление 500 мм
)
[days] => [18,20,20,20,20,20,20,20,20]
[material_price] => [4837,6572,7224,7375,79426,8177,8728,9180,10031]
[work_price] => [3348,3921,4112,4302,4493,4684,4875,5066,5256]
[image] => https://akademik-stroy.ru/wp-content/uploads/materials/monolitnaya-zh-b-plita-2.jpg
[area_modifier] => 157.22
[parent_name] => Перекрытие цоколя
[parent_id] => 2
[material_sum] => 1003825
[work_sum] => 579010
[total_sum] => 1582835
[total_days] => 18
[display_material_sum] => 1 003 825
[display_work_sum] => 579 010
[display_total_sum] => 1 582 835
)
1
1 582 835₽
Работа:579 010 ₽
Материалы:1 003 825 ₽
Дни:18
stdClass Object
(
[id] => 6
[attribute_id] => 3
[name] => Пеноблок
[material_modifier] => 1
[work_modifier] => 1
[options] => Array
(
[0] => 300 мм
[1] => 400 мм
[2] => 500 мм
[3] => 600 мм
)
[days] => [29,31,34,39]
[material_price] => [3000,4000,4500,4937]
[work_price] => [5033,5805,6400,8710]
[image] => https://akademik-stroy.ru/wp-content/uploads/materials/penoblok.jpg
[area_modifier] => 157.22
[parent_name] => Стены 1 этаж (несущие)
[parent_id] => 3
[material_sum] => 622591
[work_sum] => 870417
[total_sum] => 1493008
[total_days] => 29
[display_material_sum] => 622 591
[display_work_sum] => 870 417
[display_total_sum] => 1 493 008
)
1
1 493 008₽
Работа:870 417 ₽
Материалы:622 591 ₽
Дни:29
stdClass Object
(
[id] => 79
[attribute_id] => 3
[name] => Керамический блок
[material_modifier] => 1
[work_modifier] => 1
[options] => Array
(
[0] => 380 мм
[1] => 380 мм Thermo
[2] => 440 мм
[3] => 510 мм
)
[days] => [23,23,24,25]
[material_price] => [4510,5098,6093,8013]
[work_price] => [4737,4937,5903,6958]
[image] => https://akademik-stroy.ru/wp-content/uploads/materials/keramicheskij-blok.jpg
[area_modifier] => 157.22
[parent_name] => Стены 1 этаж (несущие)
[parent_id] => 3
[material_sum] => 935962
[work_sum] => 819226
[total_sum] => 1755188
[total_days] => 23
[display_material_sum] => 935 962
[display_work_sum] => 819 226
[display_total_sum] => 1 755 188
)
1
1 755 188₽
Работа:819 226 ₽
Материалы:935 962 ₽
Дни:23
stdClass Object
(
[id] => 80
[attribute_id] => 3
[name] => Кирпич
[material_modifier] => 1
[work_modifier] => 1
[options] => Array
(
[0] => Кирпич 250 мм
[1] => Кирпич 380 мм
[2] => Кирпич 510 мм
[3] => Кирпич 640 мм
[4] => Кирпич 770 мм
)
[days] => [30,30,31,33,36]
[material_price] => [5500,7142,9206,10171,12235]
[work_price] => [8736,10041,12018,15240,18462]
[image] => https://akademik-stroy.ru/wp-content/uploads/materials/kirpich.jpg
[area_modifier] => 157.22
[parent_name] => Стены 1 этаж (несущие)
[parent_id] => 3
[material_sum] => 1141417
[work_sum] => 1510821
[total_sum] => 2652238
[total_days] => 30
[display_material_sum] => 1 141 417
[display_work_sum] => 1 510 821
[display_total_sum] => 2 652 238
)
1
2 652 238₽
Работа:1 510 821 ₽
Материалы:1 141 417 ₽
Дни:30
stdClass Object
(
[id] => 81
[attribute_id] => 3
[name] => Монолитные
[material_modifier] => 1
[work_modifier] => 1
[options] => Array
(
[0] => 150 мм
[1] => 200 мм
[2] => 250 мм
[3] => 300 мм
[4] => 350 мм
[5] => 400 мм
)
[days] => [45,46,47,49,50,53]
[material_price] => [6545,7876,10175,12011,13908,15204]
[work_price] => [5106,6444,7698,8552,9807,11461]
[image] => https://akademik-stroy.ru/wp-content/uploads/materials/monolitnye.jpg
[area_modifier] => 157.22
[parent_name] => Стены 1 этаж (несущие)
[parent_id] => 3
[material_sum] => 1358286
[work_sum] => 883042
[total_sum] => 2241328
[total_days] => 45
[display_material_sum] => 1 358 286
[display_work_sum] => 883 042
[display_total_sum] => 2 241 328
)
1
2 241 328₽
Работа:883 042 ₽
Материалы:1 358 286 ₽
Дни:45
stdClass Object
(
[id] => 82
[attribute_id] => 3
[name] => Клееный брус
[material_modifier] => 1
[work_modifier] => 1
[options] => Array
(
[0] => 160 мм
[1] => 175 мм
[2] => 200 мм
[3] => 215 мм
[4] => 240 мм
[5] => 270 мм
[6] => 282 мм
)
[days] => [24,28,32,37,40,42,48]
[material_price] => [16975,18773,19950,20545,21599,22159,23275]
[work_price] => [4806,5287,5815,6397,7036,7740,8514]
[image] => https://akademik-stroy.ru/wp-content/uploads/materials/kleenyj-brus.jpg
[area_modifier] => 157.22
[parent_name] => Стены 1 этаж (несущие)
[parent_id] => 3
[material_sum] => 3522829
[work_sum] => 831159
[total_sum] => 4353988
[total_days] => 24
[display_material_sum] => 3 522 829
[display_work_sum] => 831 159
[display_total_sum] => 4 353 988
)
1
4 353 988₽
Работа:831 159 ₽
Материалы:3 522 829 ₽
Дни:24
stdClass Object
(
[id] => 83
[attribute_id] => 3
[name] => Каркасные
[material_modifier] => 1
[work_modifier] => 1
[options] => Array
(
[0] => 150 мм
[1] => 200 мм
[2] => 250 мм
[3] => 300 мм
)
[days] => [15,16,17,18]
[material_price] => [2379,2639,2898,3258]
[work_price] => [2418,2686,2985,3716]
[image] => https://akademik-stroy.ru/wp-content/uploads/materials/karkasnye.jpg
[area_modifier] => 157.22
[parent_name] => Стены 1 этаж (несущие)
[parent_id] => 3
[material_sum] => 493715
[work_sum] => 418174
[total_sum] => 911889
[total_days] => 15
[display_material_sum] => 493 715
[display_work_sum] => 418 174
[display_total_sum] => 911 889
)
1
911 889₽
Работа:418 174 ₽
Материалы:493 715 ₽
Дни:15
stdClass Object
(
[id] => 84
[attribute_id] => 3
[name] => СИП-панели
[material_modifier] => 1
[work_modifier] => 1
[options] => Array
(
[0] => 120 мм
[1] => 170 мм
[2] => 220 мм
)
[days] => [7,7,7]
[material_price] => [1210,1856,2292]
[work_price] => [1410,1551,1706]
[image] => https://akademik-stroy.ru/wp-content/uploads/materials/sip-paneli.jpg
[area_modifier] => 157.22
[parent_name] => Стены 1 этаж (несущие)
[parent_id] => 3
[material_sum] => 251112
[work_sum] => 243848
[total_sum] => 494960
[total_days] => 7
[display_material_sum] => 251 112
[display_work_sum] => 243 848
[display_total_sum] => 494 960
)
1
494 960₽
Работа:243 848 ₽
Материалы:251 112 ₽
Дни:7
stdClass Object
(
[id] => 85
[attribute_id] => 3
[name] => Сухой брус
[material_modifier] => 1
[work_modifier] => 1
[options] => Array
(
[0] => 150 мм
[1] => 180 мм
[2] => 200 мм
)
[days] => [7,8,9]
[material_price] => [6010,7190,8709]
[work_price] => [3204,3845,4229]
[image] => https://akademik-stroy.ru/wp-content/uploads/materials/suhoj-brus.jpg
[area_modifier] => 157.22
[parent_name] => Стены 1 этаж (несущие)
[parent_id] => 3
[material_sum] => 1247258
[work_sum] => 554106
[total_sum] => 1801364
[total_days] => 7
[display_material_sum] => 1 247 258
[display_work_sum] => 554 106
[display_total_sum] => 1 801 364
)
1
1 801 364₽
Работа:554 106 ₽
Материалы:1 247 258 ₽
Дни:7
stdClass Object
(
[id] => 86
[attribute_id] => 3
[name] => Профилированный брус
[material_modifier] => 1
[work_modifier] => 1
[options] => Array
(
[0] => 150 мм
[1] => 180 мм
[2] => 200 мм
)
[days] => [7,8,9]
[material_price] => [8190,9228,10051]
[work_price] => [3845,4614,5075]
[image] => https://akademik-stroy.ru/wp-content/uploads/materials/profilirovannyj-brus.jpg
[area_modifier] => 157.22
[parent_name] => Стены 1 этаж (несущие)
[parent_id] => 3
[material_sum] => 1699674
[work_sum] => 664962
[total_sum] => 2364636
[total_days] => 7
[display_material_sum] => 1 699 674
[display_work_sum] => 664 962
[display_total_sum] => 2 364 636
)
1
2 364 636₽
Работа:664 962 ₽
Материалы:1 699 674 ₽
Дни:7
stdClass Object
(
[id] => 87
[attribute_id] => 3
[name] => Оцилиндрованное бревно
[material_modifier] => 1
[work_modifier] => 1
[options] => Array
(
[0] => 180 мм
[1] => 220 мм
[2] => 260 мм
[3] => 320 мм
)
[days] => [7,8,9,10]
[material_price] => [75190,9532,10868,13116]
[work_price] => [3845,4691,5535,6863]
[image] => https://akademik-stroy.ru/wp-content/uploads/materials/ocilindrovannoe-brevno-1.jpg
[area_modifier] => 157.22
[parent_name] => Стены 1 этаж (несущие)
[parent_id] => 3
[material_sum] => 15604211
[work_sum] => 664962
[total_sum] => 16269173
[total_days] => 7
[display_material_sum] => 15 604 211
[display_work_sum] => 664 962
[display_total_sum] => 16 269 173
)
1
16 269 173₽
Работа:664 962 ₽
Материалы:15 604 211 ₽
Дни:7
stdClass Object
(
[id] => 88
[attribute_id] => 3
[name] => Срубы
[material_modifier] => 1
[work_modifier] => 1
[options] => Array
(
[0] => 260 мм
[1] => 320 мм
[2] => 360 мм
[3] => 400 мм
[4] => 500 мм
)
[days] => [7,8,9,10,11]
[material_price] => [37975,46709,52314,58069,73167]
[work_price] => [4806,5911,6621,7349,9260]
[image] => https://akademik-stroy.ru/wp-content/uploads/materials/sruby.jpg
[area_modifier] => 157.22
[parent_name] => Стены 1 этаж (несущие)
[parent_id] => 3
[material_sum] => 7880967
[work_sum] => 831159
[total_sum] => 8712126
[total_days] => 7
[display_material_sum] => 7 880 967
[display_work_sum] => 831 159
[display_total_sum] => 8 712 126
)
1
8 712 126₽
Работа:831 159 ₽
Материалы:7 880 967 ₽
Дни:7
stdClass Object
(
[id] => 174
[attribute_id] => 3
[name] => Брус
[material_modifier] => 1
[work_modifier] => 1
[options] => Array
(
[0] => 150 мм
[1] => 180 мм
[2] => 200 мм
)
[days] => [7,8,9]
[material_price] => [5127,6152,7367]
[work_price] => [1602,1922,2115]
[image] => https://akademik-stroy.ru/wp-content/uploads/materials/brus.jpg
[area_modifier] => 157.22
[parent_name] => Стены 1 этаж (несущие)
[parent_id] => 3
[material_sum] => 1064008
[work_sum] => 277053
[total_sum] => 1341061
[total_days] => 7
[display_material_sum] => 1 064 008
[display_work_sum] => 277 053
[display_total_sum] => 1 341 061
)
1
1 341 061₽
Работа:277 053 ₽
Материалы:1 064 008 ₽
Дни:7
stdClass Object
(
[id] => 175
[attribute_id] => 3
[name] => Газобетон
[material_modifier] => 1
[work_modifier] => 1
[options] => Array
(
[0] => 300 мм
[1] => 375 мм
[2] => 400 мм
[3] => 500 мм
[4] => 600 мм
)
[days] => [29,31,35,37,44]
[material_price] => [4298,5573,6356,7288,9119]
[work_price] => [4538,5251,5926,6733,7195]
[image] => https://akademik-stroy.ru/wp-content/uploads/materials/gazobeton.jpg
[area_modifier] => 157.22
[parent_name] => Стены 1 этаж (несущие)
[parent_id] => 3
[material_sum] => 891966
[work_sum] => 784811
[total_sum] => 1676777
[total_days] => 29
[display_material_sum] => 891 966
[display_work_sum] => 784 811
[display_total_sum] => 1 676 777
)
1
1 676 777₽
Работа:784 811 ₽
Материалы:891 966 ₽
Дни:29
stdClass Object
(
[id] => 176
[attribute_id] => 3
[name] => Блок
[material_modifier] => 1
[work_modifier] => 1
[options] => Array
(
[0] => 300 мм
[1] => 375 мм
[2] => 400 мм
[3] => 500 мм
[4] => 600 мм
)
[days] => [29,31,35,37,44]
[material_price] => [2698,3973,4356,6588,7119]
[work_price] => [5038,5851,6426,8733,9195]
[image] => https://akademik-stroy.ru/wp-content/uploads/materials/blok.jpg
[area_modifier] => 157.22
[parent_name] => Стены 1 этаж (несущие)
[parent_id] => 3
[material_sum] => 559917
[work_sum] => 871282
[total_sum] => 1431199
[total_days] => 29
[display_material_sum] => 559 917
[display_work_sum] => 871 282
[display_total_sum] => 1 431 199
)
1
1 431 199₽
Работа:871 282 ₽
Материалы:559 917 ₽
Дни:29
stdClass Object
(
[id] => 177
[attribute_id] => 3
[name] => Газосиликатный блок
[material_modifier] => 1
[work_modifier] => 1
[options] => Array
(
[0] => 300 мм
[1] => 375 мм
[2] => 400 мм
[3] => 500 мм
[4] => 600 мм
)
[days] => [29,31,35,37,44]
[material_price] => [4298,5573,6356,7288,9119]
[work_price] => [4538,5251,5926,6733,7195]
[image] => https://akademik-stroy.ru/wp-content/uploads/materials/gazosilikatnyj-blok.jpg
[area_modifier] => 157.22
[parent_name] => Стены 1 этаж (несущие)
[parent_id] => 3
[material_sum] => 891966
[work_sum] => 784811
[total_sum] => 1676777
[total_days] => 29
[display_material_sum] => 891 966
[display_work_sum] => 784 811
[display_total_sum] => 1 676 777
)
1
1 676 777₽
Работа:784 811 ₽
Материалы:891 966 ₽
Дни:29
stdClass Object
(
[id] => 178
[attribute_id] => 3
[name] => Керамзитобетонный блок
[material_modifier] => 1
[work_modifier] => 1
[options] => Array
(
[0] => 300 мм
[1] => 375 мм
[2] => 400 мм
[3] => 500 мм
[4] => 600 мм
)
[days] => [23,23,24,25,28]
[material_price] => [3641,4298,5693,7613,9612]
[work_price] => [5737,5737,6903,7958,8901]
[image] => https://akademik-stroy.ru/wp-content/uploads/materials/keramzitobetonnyj-blok.jpg
[area_modifier] => 157.22
[parent_name] => Стены 1 этаж (несущие)
[parent_id] => 3
[material_sum] => 755618
[work_sum] => 992168
[total_sum] => 1747786
[total_days] => 23
[display_material_sum] => 755 618
[display_work_sum] => 992 168
[display_total_sum] => 1 747 786
)
1
1 747 786₽
Работа:992 168 ₽
Материалы:755 618 ₽
Дни:23
stdClass Object
(
[id] => 179
[attribute_id] => 3
[name] => Деревянные
[material_modifier] => 1
[work_modifier] => 1
[options] => Array
(
[0] => 180 мм
[1] => 220 мм
[2] => 260 мм
[3] => 320 мм
)
[days] => [7,8,9,10]
[material_price] => [7950,9458,11961,14472]
[work_price] => [4037,4925,5812,7207]
[image] => https://akademik-stroy.ru/wp-content/uploads/materials/derevyannye.jpg
[area_modifier] => 157.22
[parent_name] => Стены 1 этаж (несущие)
[parent_id] => 3
[material_sum] => 1649867
[work_sum] => 698167
[total_sum] => 2348034
[total_days] => 7
[display_material_sum] => 1 649 867
[display_work_sum] => 698 167
[display_total_sum] => 2 348 034
)
1
2 348 034₽
Работа:698 167 ₽
Материалы:1 649 867 ₽
Дни:7
stdClass Object
(
[id] => 181
[attribute_id] => 3
[name] => Камень
[material_modifier] => 1
[work_modifier] => 1
[options] => Array
(
[0] => 300 мм
[1] => 400 мм
[2] => 500 мм
[3] => 600 мм
)
[days] => [25,27,31,34]
[material_price] => [5262,6844,8330,9815]
[work_price] => [8331,9135,10427,11069]
[image] => https://akademik-stroy.ru/wp-content/uploads/materials/kamen.jpg
[area_modifier] => 157.22
[parent_name] => Стены 1 этаж (несущие)
[parent_id] => 3
[material_sum] => 1092025
[work_sum] => 1440780
[total_sum] => 2532805
[total_days] => 25
[display_material_sum] => 1 092 025
[display_work_sum] => 1 440 780
[display_total_sum] => 2 532 805
)
1
2 532 805₽
Работа:1 440 780 ₽
Материалы:1 092 025 ₽
Дни:25
stdClass Object
(
[id] => 182
[attribute_id] => 3
[name] => Каркасно-щитовые
[material_modifier] => 1
[work_modifier] => 1
[options] => Array
(
[0] => 150 мм
[1] => 200 мм
[2] => 250 мм
[3] => 300 мм
[4] => 350 мм
[5] => 400 мм
)
[days] => [15,16,17,18,19,20]
[material_price] => [2379,2639,2898,3458,3601,4175]
[work_price] => [2538,2820,3134,3483,4062,5642]
[image] => https://akademik-stroy.ru/wp-content/uploads/materials/karkasno-shchitovye.jpg
[area_modifier] => 157.22
[parent_name] => Стены 1 этаж (несущие)
[parent_id] => 3
[material_sum] => 493715
[work_sum] => 438927
[total_sum] => 932642
[total_days] => 15
[display_material_sum] => 493 715
[display_work_sum] => 438 927
[display_total_sum] => 932 642
)
1
932 642₽
Работа:438 927 ₽
Материалы:493 715 ₽
Дни:15
stdClass Object
(
[id] => 183
[attribute_id] => 3
[name] => Рубленные
[material_modifier] => 1
[work_modifier] => 1
[options] => Array
(
[0] => 150 мм
[1] => 200 мм
[2] => 250 мм
[3] => 300 мм
[4] => 350 мм
[5] => 400 мм
)
[days] => [15,16,17,18,17,18]
[material_price] => [35950,50267,60583,75900,80217,100533]
[work_price] => [9612,12816,16020,19224,22428,25632]
[image] => https://akademik-stroy.ru/wp-content/uploads/materials/rublennye.jpg
[area_modifier] => 157.22
[parent_name] => Стены 1 этаж (несущие)
[parent_id] => 3
[material_sum] => 7460718
[work_sum] => 1662319
[total_sum] => 9123037
[total_days] => 15
[display_material_sum] => 7 460 718
[display_work_sum] => 1 662 319
[display_total_sum] => 9 123 037
)
1
9 123 037₽
Работа:1 662 319 ₽
Материалы:7 460 718 ₽
Дни:15
stdClass Object
(
[id] => 185
[attribute_id] => 3
[name] => Теплоблок
[material_modifier] => 1
[work_modifier] => 1
[options] => Array
(
[0] => 300 мм (с облицовкой, не покрашенный)
[1] => 400 мм (с облицовкой, не покрашенный)
[2] => 300 мм (с облицовкой, покрашенный)
[3] => 400 мм (с облицовкой, покрашенный)
)
[days] => [15,16,15,16]
[material_price] => [2888,3729,3957,4258]
[work_price] => [2564,3229,2949,3713]
[image] => https://akademik-stroy.ru/wp-content/uploads/materials/teploblok.jpg
[area_modifier] => 157.22
[parent_name] => Стены 1 этаж (несущие)
[parent_id] => 3
[material_sum] => 599348
[work_sum] => 443423
[total_sum] => 1042771
[total_days] => 15
[display_material_sum] => 599 348
[display_work_sum] => 443 423
[display_total_sum] => 1 042 771
)
1
1 042 771₽
Работа:443 423 ₽
Материалы:599 348 ₽
Дни:15
stdClass Object
(
[id] => 186
[attribute_id] => 3
[name] => Арболитовые блоки
[material_modifier] => 1
[work_modifier] => 1
[options] => Array
(
[0] => 300 мм
[1] => 400 мм
[2] => 600 мм
)
[days] => [19,22,27]
[material_price] => [3210,4475,5852]
[work_price] => [4214,4788,5866]
[image] => https://akademik-stroy.ru/wp-content/uploads/materials/arbolitovye-bloki.png
[area_modifier] => 157.22
[parent_name] => Стены 1 этаж (несущие)
[parent_id] => 3
[material_sum] => 666173
[work_sum] => 728778
[total_sum] => 1394951
[total_days] => 19
[display_material_sum] => 666 173
[display_work_sum] => 728 778
[display_total_sum] => 1 394 951
)
1
1 394 951₽
Работа:728 778 ₽
Материалы:666 173 ₽
Дни:19
stdClass Object
(
[id] => 187
[attribute_id] => 3
[name] => Полистиролбетон
[material_modifier] => 1
[work_modifier] => 1
[options] => Array
(
[0] => 300 мм
[1] => 400 мм
[2] => 600 мм
)
[days] => [29,31,35]
[material_price] => [2798,4573,5256]
[work_price] => [5038,5851,6426]
[image] => https://akademik-stroy.ru/wp-content/uploads/materials/polistirolbeton.jpg
[area_modifier] => 157.22
[parent_name] => Стены 1 этаж (несущие)
[parent_id] => 3
[material_sum] => 580670
[work_sum] => 871282
[total_sum] => 1451952
[total_days] => 29
[display_material_sum] => 580 670
[display_work_sum] => 871 282
[display_total_sum] => 1 451 952
)
1
1 451 952₽
Работа:871 282 ₽
Материалы:580 670 ₽
Дни:29
stdClass Object
(
[id] => 188
[attribute_id] => 3
[name] => Шлакоблок
[material_modifier] => 1
[work_modifier] => 1
[options] => Array
(
[0] => 400 мм
[1] => 600 мм
)
[days] => [15,16]
[material_price] => [2391,3471]
[work_price] => [2642,3662]
[image] => https://akademik-stroy.ru/wp-content/uploads/materials/shlakoblok.jpg
[area_modifier] => 157.22
[parent_name] => Стены 1 этаж (несущие)
[parent_id] => 3
[material_sum] => 496205
[work_sum] => 456913
[total_sum] => 953118
[total_days] => 15
[display_material_sum] => 496 205
[display_work_sum] => 456 913
[display_total_sum] => 953 118
)
1
953 118₽
Работа:456 913 ₽
Материалы:496 205 ₽
Дни:15
stdClass Object
(
[id] => 189
[attribute_id] => 3
[name] => Теплая керамика
[material_modifier] => 1
[work_modifier] => 1
[options] => Array
(
[0] => 380 мм
[1] => 380 мм Thermo
[2] => 440 мм
[3] => 510 мм
)
[days] => [23,23,24,25]
[material_price] => [4510,5098,6093,8013]
[work_price] => [4737,4937,5903,6958]
[image] => https://akademik-stroy.ru/wp-content/uploads/materials/teplaya-keramika.jpg
[area_modifier] => 157.22
[parent_name] => Стены 1 этаж (несущие)
[parent_id] => 3
[material_sum] => 935962
[work_sum] => 819226
[total_sum] => 1755188
[total_days] => 23
[display_material_sum] => 935 962
[display_work_sum] => 819 226
[display_total_sum] => 1 755 188
)
1
1 755 188₽
Работа:819 226 ₽
Материалы:935 962 ₽
Дни:23
stdClass Object
(
[id] => 190
[attribute_id] => 3
[name] => Несъемная опалубка
[material_modifier] => 1
[work_modifier] => 1
[options] => Array
(
[0] => 200 мм
[1] => 250 мм
[2] => 300 мм
[3] => 350 мм
)
[days] => [15,17,19,21]
[material_price] => [3302,3902,4108,5008]
[work_price] => [2100,2100,2300,2534]
[image] => https://akademik-stroy.ru/wp-content/uploads/materials/nesemnaya-opalubka.jpg
[area_modifier] => 157.22
[parent_name] => Стены 1 этаж (несущие)
[parent_id] => 3
[material_sum] => 685265
[work_sum] => 363178
[total_sum] => 1048443
[total_days] => 15
[display_material_sum] => 685 265
[display_work_sum] => 363 178
[display_total_sum] => 1 048 443
)
1
1 048 443₽
Работа:363 178 ₽
Материалы:685 265 ₽
Дни:15
stdClass Object
(
[id] => 251
[attribute_id] => 3
[name] => Бревно
[material_modifier] => 1
[work_modifier] => 1
[options] => Array
(
[0] => 260 мм
[1] => 320 мм
[2] => 360 мм
[3] => 400 мм
[4] => 500 мм
)
[days] => [7,8,9,10,11]
[material_price] => [1874,24045,26930,30972,38825]
[work_price] => [5046,6207,6952,7716,9723]
[image] => https://akademik-stroy.ru/wp-content/uploads/materials/sruby.jpg
[area_modifier] => 157.22
[parent_name] => Стены 1 этаж (несущие)
[parent_id] => 3
[material_sum] => 388912
[work_sum] => 872665
[total_sum] => 1261577
[total_days] => 7
[display_material_sum] => 388 912
[display_work_sum] => 872 665
[display_total_sum] => 1 261 577
)
1
1 261 577₽
Работа:872 665 ₽
Материалы:388 912 ₽
Дни:7
stdClass Object
(
[id] => 7
[attribute_id] => 4
[name] => Деревянные балки
[material_modifier] => 1
[work_modifier] => 1
[options] => Array
(
[0] => без утепления
[1] => утепление 200 мм
[2] => утепление 250 мм
[3] => утепление 300 мм
[4] => утепление 350 мм
[5] => утепление 400 мм
[6] => утепление 450 мм
[7] => утепление 500 мм
)
[days] => [8,9,9,9,11,12,13,14]
[material_price] => [1634,2042,2344,2947,3149,3652,3354,3557]
[work_price] => [1230,1339,1393,1426,1460,1513,1587,1620]
[image] => https://akademik-stroy.ru/wp-content/uploads/materials/derevyannye-balki.png
[area_modifier] => 157.22
[parent_name] => Перекрытие первого этажа
[parent_id] => 4
[material_sum] => 339105
[work_sum] => 212719
[total_sum] => 551824
[total_days] => 8
[display_material_sum] => 339 105
[display_work_sum] => 212 719
[display_total_sum] => 551 824
)
1
551 824₽
Работа:212 719 ₽
Материалы:339 105 ₽
Дни:8
stdClass Object
(
[id] => 8
[attribute_id] => 4
[name] => Сборные ж/б плиты
[material_modifier] => 1
[work_modifier] => 1
[options] => Array
(
[0] => без утепления
[1] => утепление 150 мм
[2] => утепление 200 мм
[3] => утепление 250 мм
[4] => утепление 300 мм
[5] => утепление 350 мм
[6] => утепление 400 мм
[7] => утепление 450 мм
[8] => утепление 500 мм
)
[days] => [13,15,15,15,15,15,15,15,15]
[material_price] => [3067,5577,5928,6679,7730,8782,9833,10884,11935]
[work_price] => [1520,1956,2102,2247,2392,2537,2684,2829,2974]
[image] => https://akademik-stroy.ru/wp-content/uploads/materials/sbornye-zh-b-plity-2.jpg
[area_modifier] => 157.22
[parent_name] => Перекрытие первого этажа
[parent_id] => 4
[material_sum] => 636496
[work_sum] => 262872
[total_sum] => 899368
[total_days] => 13
[display_material_sum] => 636 496
[display_work_sum] => 262 872
[display_total_sum] => 899 368
)
1
899 368₽
Работа:262 872 ₽
Материалы:636 496 ₽
Дни:13
stdClass Object
(
[id] => 89
[attribute_id] => 4
[name] => Монолитная ж/б плита
[material_modifier] => 1
[work_modifier] => 1
[options] => Array
(
[0] => без утепления
[1] => утепление 150 мм
[2] => утепление 200 мм
[3] => утепление 250 мм
[4] => утепление 300 мм
[5] => утепление 350 мм
[6] => утепление 400 мм
[7] => утепление 450 мм
[8] => утепление 500 мм
)
[days] => [18,20,20,20,20,20,20,20,20]
[material_price] => [4837,6572,7224,7375,79426,8177,8728,9180,10031]
[work_price] => [3348,3921,4112,4302,4493,4684,4875,5066,5256]
[image] => https://akademik-stroy.ru/wp-content/uploads/materials/monolitnaya-zh-b-plita-2.jpg
[area_modifier] => 157.22
[parent_name] => Перекрытие первого этажа
[parent_id] => 4
[material_sum] => 1003825
[work_sum] => 579010
[total_sum] => 1582835
[total_days] => 18
[display_material_sum] => 1 003 825
[display_work_sum] => 579 010
[display_total_sum] => 1 582 835
)
1
1 582 835₽
Работа:579 010 ₽
Материалы:1 003 825 ₽
Дни:18
stdClass Object
(
[id] => 164
[attribute_id] => 37
[name] => Металлочерепица
[material_modifier] => 1
[work_modifier] => 1
[options] => Array
(
)
[days] => [20]
[material_price] => [6112]
[work_price] => [5726]
[image] => https://akademik-stroy.ru/wp-content/uploads/materials/metallocherepica.jpg
[area_modifier] => 157.22
[parent_name] => Крыша (Скатная)
[parent_id] => 37
[material_sum] => 1268426
[work_sum] => 990266
[total_sum] => 2258692
[total_days] => 20
[display_material_sum] => 1 268 426
[display_work_sum] => 990 266
[display_total_sum] => 2 258 692
)
1
2 258 692₽
Работа:990 266 ₽
Материалы:1 268 426 ₽
Дни:20
stdClass Object
(
[id] => 165
[attribute_id] => 37
[name] => Гибкая черепица
[material_modifier] => 1
[work_modifier] => 1
[options] => Array
(
)
[days] => [20]
[material_price] => [6980]
[work_price] => [5950]
[image] => https://akademik-stroy.ru/wp-content/uploads/materials/gibkaya-cherepica.jpg
[area_modifier] => 157.22
[parent_name] => Крыша (Скатная)
[parent_id] => 37
[material_sum] => 1448562
[work_sum] => 1029005
[total_sum] => 2477567
[total_days] => 20
[display_material_sum] => 1 448 562
[display_work_sum] => 1 029 005
[display_total_sum] => 2 477 567
)
1
2 477 567₽
Работа:1 029 005 ₽
Материалы:1 448 562 ₽
Дни:20
stdClass Object
(
[id] => 166
[attribute_id] => 37
[name] => Цементно-песчаная черепица
[material_modifier] => 1
[work_modifier] => 1
[options] => Array
(
)
[days] => [20]
[material_price] => [10560]
[work_price] => [9456]
[image] => https://akademik-stroy.ru/wp-content/uploads/materials/cementno-peschanaya-cherepica.jpg
[area_modifier] => 157.22
[parent_name] => Крыша (Скатная)
[parent_id] => 37
[material_sum] => 2191521
[work_sum] => 1635340
[total_sum] => 3826861
[total_days] => 20
[display_material_sum] => 2 191 521
[display_work_sum] => 1 635 340
[display_total_sum] => 3 826 861
)
1
3 826 861₽
Работа:1 635 340 ₽
Материалы:2 191 521 ₽
Дни:20
stdClass Object
(
[id] => 167
[attribute_id] => 37
[name] => Композитная черепица
[material_modifier] => 1
[work_modifier] => 1
[options] => Array
(
)
[days] => [20]
[material_price] => [9506]
[work_price] => [8905]
[image] => https://akademik-stroy.ru/wp-content/uploads/materials/kompozitnaya-cherepica.jpg
[area_modifier] => 157.22
[parent_name] => Крыша (Скатная)
[parent_id] => 37
[material_sum] => 1972784
[work_sum] => 1540049
[total_sum] => 3512833
[total_days] => 20
[display_material_sum] => 1 972 784
[display_work_sum] => 1 540 049
[display_total_sum] => 3 512 833
)
1
3 512 833₽
Работа:1 540 049 ₽
Материалы:1 972 784 ₽
Дни:20
stdClass Object
(
[id] => 168
[attribute_id] => 37
[name] => Керамическая черепица
[material_modifier] => 1
[work_modifier] => 1
[options] => Array
(
)
[days] => [20]
[material_price] => [12750]
[work_price] => [9456]
[image] => https://akademik-stroy.ru/wp-content/uploads/materials/keramicheskaya-cherepica.jpg
[area_modifier] => 157.22
[parent_name] => Крыша (Скатная)
[parent_id] => 37
[material_sum] => 2646013
[work_sum] => 1635340
[total_sum] => 4281353
[total_days] => 20
[display_material_sum] => 2 646 013
[display_work_sum] => 1 635 340
[display_total_sum] => 4 281 353
)
1
4 281 353₽
Работа:1 635 340 ₽
Материалы:2 646 013 ₽
Дни:20
stdClass Object
(
[id] => 169
[attribute_id] => 37
[name] => Металлическая фальцевая
[material_modifier] => 1
[work_modifier] => 1
[options] => Array
(
)
[days] => [20]
[material_price] => [8550]
[work_price] => [8190]
[image] => https://akademik-stroy.ru/wp-content/uploads/materials/metallicheskaya-falcevaya.jpg
[area_modifier] => 157.22
[parent_name] => Крыша (Скатная)
[parent_id] => 37
[material_sum] => 1774385
[work_sum] => 1416395
[total_sum] => 3190780
[total_days] => 20
[display_material_sum] => 1 774 385
[display_work_sum] => 1 416 395
[display_total_sum] => 3 190 780
)
1
3 190 780₽
Работа:1 416 395 ₽
Материалы:1 774 385 ₽
Дни:20
stdClass Object
(
[id] => 170
[attribute_id] => 37
[name] => Медная фальцевая
[material_modifier] => 1
[work_modifier] => 1
[options] => Array
(
)
[days] => [20]
[material_price] => [20450]
[work_price] => [16750]
[image] => https://akademik-stroy.ru/wp-content/uploads/materials/mednaya-falcevaya.jpg
[area_modifier] => 157.22
[parent_name] => Крыша (Скатная)
[parent_id] => 37
[material_sum] => 4243997
[work_sum] => 2896779
[total_sum] => 7140776
[total_days] => 20
[display_material_sum] => 4 243 997
[display_work_sum] => 2 896 779
[display_total_sum] => 7 140 776
)
1
7 140 776₽
Работа:2 896 779 ₽
Материалы:4 243 997 ₽
Дни:20
stdClass Object
(
[id] => 171
[attribute_id] => 37
[name] => Зеленая кровля
[material_modifier] => 1
[work_modifier] => 1
[options] => Array
(
)
[days] => [20]
[material_price] => [19850]
[work_price] => [16780]
[image] => https://akademik-stroy.ru/wp-content/uploads/materials/zelenaya-krovlya.jpg
[area_modifier] => 157.22
[parent_name] => Крыша (Скатная)
[parent_id] => 37
[material_sum] => 4119478
[work_sum] => 2901967
[total_sum] => 7021445
[total_days] => 20
[display_material_sum] => 4 119 478
[display_work_sum] => 2 901 967
[display_total_sum] => 7 021 445
)
1
7 021 445₽
Работа:2 901 967 ₽
Материалы:4 119 478 ₽
Дни:20
stdClass Object
(
[id] => 172
[attribute_id] => 37
[name] => Профлист
[material_modifier] => 1
[work_modifier] => 1
[options] => Array
(
)
[days] => [20]
[material_price] => [3450]
[work_price] => [3750]
[image] => https://akademik-stroy.ru/wp-content/uploads/materials/proflist.jpg
[area_modifier] => 157.22
[parent_name] => Крыша (Скатная)
[parent_id] => 37
[material_sum] => 715980
[work_sum] => 648533
[total_sum] => 1364513
[total_days] => 20
[display_material_sum] => 715 980
[display_work_sum] => 648 533
[display_total_sum] => 1 364 513
)
1
1 364 513₽
Работа:648 533 ₽
Материалы:715 980 ₽
Дни:20
stdClass Object
(
[id] => 51
[attribute_id] => 26
[name] => Есть
[material_modifier] => 1
[work_modifier] => 1
[options] => Array
(
[0] => Профиль 58 мм, 3-камерный, стеклопакет 2-камерный до 32 мм
[1] => Профиль 60 мм, 4-камерный, стеклопакет 2-камерный до 32 мм
[2] => Профиль 70 мм, 5-камерный, стеклопакет 2-камерный до 40 мм
[3] => Профиль 72 мм, 5-камерный, стеклопакет 2-камерный до 40 мм
[4] => Алюминиевые окна Alutech профиль 72 мм, стеклопакет 2-камерный
)
[days] => [3,3,3,3,3]
[material_price] => [1339,2124,2867,3023,29596]
[work_price] => [635,647,659,668,2579]
[image] => https://akademik-stroy.ru/wp-content/uploads/materials/okna.jpg
[area_modifier] => 127.58
[parent_name] => Окна
[parent_id] => 26
[material_sum] => 225495
[work_sum] => 89115
[total_sum] => 314610
[total_days] => 3
[display_material_sum] => 225 495
[display_work_sum] => 89 115
[display_total_sum] => 314 610
)
1
314 610₽
Работа:89 115 ₽
Материалы:225 495 ₽
Дни:3
stdClass Object
(
[id] => 52
[attribute_id] => 26
[name] => Нет
[material_modifier] => 2
[work_modifier] => 1
[options] =>
[days] => null
[material_price] => null
[work_price] => null
[image] => https://akademik-stroy.ru/wp-content/uploads/materials/okna.jpg
[area_modifier] => 127.58
[parent_name] => Окна
[parent_id] => 26
[material_sum] => 0
[work_sum] => 0
[total_sum] => 0
[total_days] => 0
[display_material_sum] => 0
[display_work_sum] => 0
[display_total_sum] => 0
)
1
0₽
Работа:0 ₽
Материалы:0 ₽
Дни:0
stdClass Object
(
[id] => 53
[attribute_id] => 27
[name] => Есть
[material_modifier] => 1
[work_modifier] => 1
[options] => Array
(
)
[days] => [1]
[material_price] => [10000]
[work_price] => [5500]
[image] => https://akademik-stroy.ru/wp-content/uploads/materials/dveri.jpg
[area_modifier] => 1
[parent_name] => Двери входные
[parent_id] => 27
[material_sum] => 13200
[work_sum] => 6050
[total_sum] => 19250
[total_days] => 1
[display_material_sum] => 13 200
[display_work_sum] => 6 050
[display_total_sum] => 19 250
)
1
19 250₽
Работа:6 050 ₽
Материалы:13 200 ₽
Дни:1
stdClass Object
(
[id] => 54
[attribute_id] => 27
[name] => Нет
[material_modifier] => 1
[work_modifier] => 1
[options] => Array
(
)
[days] => [0]
[material_price] => [0]
[work_price] => [0]
[image] => https://akademik-stroy.ru/wp-content/uploads/materials/dveri.jpg
[area_modifier] => 1
[parent_name] => Двери входные
[parent_id] => 27
[material_sum] => 0
[work_sum] => 0
[total_sum] => 0
[total_days] => 0
[display_material_sum] => 0
[display_work_sum] => 0
[display_total_sum] => 0
)
1
0₽
Работа:0 ₽
Материалы:0 ₽
Дни:0
stdClass Object
(
[id] => 25
[attribute_id] => 13
[name] => Нет
[material_modifier] => 1
[work_modifier] => 1
[options] => Array
(
)
[days] => [0]
[material_price] => [0]
[work_price] => [0]
[image] => https://akademik-stroy.ru/wp-content/uploads/materials/mineralovata-krov.jpg
[area_modifier] => 157.22
[parent_name] => Утепление кровли (Мансарда)
[parent_id] => 13
[material_sum] => 0
[work_sum] => 0
[total_sum] => 0
[total_days] => 0
[display_material_sum] => 0
[display_work_sum] => 0
[display_total_sum] => 0
)
1
0₽
Работа:0 ₽
Материалы:0 ₽
Дни:0
stdClass Object
(
[id] => 26
[attribute_id] => 13
[name] => Минераловатный
[material_modifier] => 1
[work_modifier] => 1
[options] => Array
(
[0] => 50 мм
[1] => 100 мм
[2] => 150 мм
[3] => 200 мм
[4] => 250 мм
[5] => 300 мм
[6] => 350 мм
[7] => 400 мм
[8] => 450 мм
[9] => 500 мм
)
[days] => [5,5,6,6,6,7,7,7,8,8]
[material_price] => [1158,1414,1772,2230,3602,4060,4974,5890,6408,7718]
[work_price] => [650,846,846,1098,1318,1450,1596,1754,1930,2122]
[image] => https://akademik-stroy.ru/wp-content/uploads/materials/mineralovata-krov.jpg
[area_modifier] => 157.22
[parent_name] => Утепление кровли (Мансарда)
[parent_id] => 13
[material_sum] => 240320
[work_sum] => 112412
[total_sum] => 352732
[total_days] => 5
[display_material_sum] => 240 320
[display_work_sum] => 112 412
[display_total_sum] => 352 732
)
1
352 732₽
Работа:112 412 ₽
Материалы:240 320 ₽
Дни:5
stdClass Object
(
[id] => 123
[attribute_id] => 13
[name] => Эковата (целлюлозная вата)
[material_modifier] => 1
[work_modifier] => 1
[options] => Array
(
[0] => 50 мм
[1] => 100 мм
[2] => 150 мм
[3] => 200 мм
[4] => 250 мм
[5] => 300 мм
[6] => 350 мм
[7] => 400 мм
[8] => 450 мм
[9] => 500 мм
)
[days] => [3,3,4,4,4,5,5,5,5,5]
[material_price] => [820,1638,2458,3276,5734,6552,8190,9828,11466,13104]
[work_price] => [234,304,304,396,474,522,574,632,694,764]
[image] => https://akademik-stroy.ru/wp-content/uploads/materials/ehkovata-krov.jpg
[area_modifier] => 157.22
[parent_name] => Утепление кровли (Мансарда)
[parent_id] => 13
[material_sum] => 170175
[work_sum] => 40468
[total_sum] => 210643
[total_days] => 3
[display_material_sum] => 170 175
[display_work_sum] => 40 468
[display_total_sum] => 210 643
)
1
210 643₽
Работа:40 468 ₽
Материалы:170 175 ₽
Дни:3
stdClass Object
(
[id] => 124
[attribute_id] => 13
[name] => Экструдированный пенополистирол
[material_modifier] => 1
[work_modifier] => 1
[options] => Array
(
[0] => 50 мм
[1] => 100 мм
[2] => 150 мм
[3] => 200 мм
[4] => 250 мм
[5] => 300 мм
[6] => 350 мм
[7] => 400 мм
[8] => 450 мм
[9] => 500 мм
)
[days] => [3,3,4,4,4,5,5,5,5,6]
[material_price] => [1146,2292,3438,4584,8020,9166,11458,13750,16040,18332]
[work_price] => [390,508,508,660,790,870,958,1052,1158,1274]
[image] => https://akademik-stroy.ru/wp-content/uploads/materials/epps-krov.jpg
[area_modifier] => 157.22
[parent_name] => Утепление кровли (Мансарда)
[parent_id] => 13
[material_sum] => 237830
[work_sum] => 67447
[total_sum] => 305277
[total_days] => 3
[display_material_sum] => 237 830
[display_work_sum] => 67 447
[display_total_sum] => 305 277
)
1
305 277₽
Работа:67 447 ₽
Материалы:237 830 ₽
Дни:3
stdClass Object
(
[id] => 125
[attribute_id] => 13
[name] => ПСБ (ППС-пенополистирол)
[material_modifier] => 1
[work_modifier] => 1
[options] => Array
(
[0] => 50 мм
[1] => 100 мм
[2] => 150 мм
[3] => 200 мм
[4] => 250 мм
[5] => 300 мм
[6] => 350 мм
[7] => 400 мм
[8] => 450 мм
[9] => 500 мм
)
[days] => [3,3,4,4,4,5,5,5,5,6]
[material_price] => [476,954,1430,1906,3336,3814,4766,5720,6674,7626]
[work_price] => [390,508,508,660,790,870,958,1052,1158,1274]
[image] => https://akademik-stroy.ru/wp-content/uploads/materials/psb-krov.jpg
[area_modifier] => 157.22
[parent_name] => Утепление кровли (Мансарда)
[parent_id] => 13
[material_sum] => 98784
[work_sum] => 67447
[total_sum] => 166231
[total_days] => 3
[display_material_sum] => 98 784
[display_work_sum] => 67 447
[display_total_sum] => 166 231
)
1
166 231₽
Работа:67 447 ₽
Материалы:98 784 ₽
Дни:3
stdClass Object
(
[id] => 126
[attribute_id] => 13
[name] => ППУ (Пенополиуретан)
[material_modifier] => 1
[work_modifier] => 1
[options] => Array
(
[0] => 50 мм
[1] => 100 мм
[2] => 150 мм
[3] => 200 мм
[4] => 250 мм
[5] => 300 мм
[6] => 350 мм
[7] => 400 мм
[8] => 450 мм
[9] => 500 мм
)
[days] => [2,2,3,3,3,3,4,4,4,4]
[material_price] => [2080,4160,6240,8320,14560,16640,20800,24960,29120,33280]
[work_price] => [234,304,304,396,474,522,574,632,694,764]
[image] => https://akademik-stroy.ru/wp-content/uploads/materials/ppu-krov.jpg
[area_modifier] => 157.22
[parent_name] => Утепление кровли (Мансарда)
[parent_id] => 13
[material_sum] => 431663
[work_sum] => 40468
[total_sum] => 472131
[total_days] => 2
[display_material_sum] => 431 663
[display_work_sum] => 40 468
[display_total_sum] => 472 131
)
1
472 131₽
Работа:40 468 ₽
Материалы:431 663 ₽
Дни:2
stdClass Object
(
[id] => 127
[attribute_id] => 13
[name] => PIR-плиты (пенополиизоцианурат)
[material_modifier] => 1
[work_modifier] => 1
[options] => Array
(
[0] => 50 мм
[1] => 100 мм
[2] => 150 мм
[3] => 200 мм
[4] => 250 мм
[5] => 300 мм
[6] => 350 мм
[7] => 400 мм
[8] => 450 мм
[9] => 500 мм
)
[days] => [3,3,4,4,4,5,5,5,5,6]
[material_price] => [2646,5290,7936,10580,18516,21162,26452,31742,37032,42324]
[work_price] => [390,508,508,660,790,870,958,1052,1158,1274]
[image] => https://akademik-stroy.ru/wp-content/uploads/materials/pir-krov.jpg
[area_modifier] => 157.22
[parent_name] => Утепление кровли (Мансарда)
[parent_id] => 13
[material_sum] => 549125
[work_sum] => 67447
[total_sum] => 616572
[total_days] => 3
[display_material_sum] => 549 125
[display_work_sum] => 67 447
[display_total_sum] => 616 572
)
1
616 572₽
Работа:67 447 ₽
Материалы:549 125 ₽
Дни:3
stdClass Object
(
[id] => 27
[attribute_id] => 14
[name] => Нет
[material_modifier] => 1
[work_modifier] => 1
[options] => Array
(
)
[days] => [0]
[material_price] => [0]
[work_price] => [0]
[image] => https://akademik-stroy.ru/wp-content/uploads/materials/mansardnye-okna-2.jpg
[area_modifier] => 1
[parent_name] => Мансардные окна
[parent_id] => 14
[material_sum] => 0
[work_sum] => 0
[total_sum] => 0
[total_days] => 0
[display_material_sum] => 0
[display_work_sum] => 0
[display_total_sum] => 0
)
1
0₽
Работа:0 ₽
Материалы:0 ₽
Дни:0
stdClass Object
(
[id] => 28
[attribute_id] => 14
[name] => Есть
[material_modifier] => 1
[work_modifier] => 1
[options] => Array
(
[0] => 55x78
[1] => 55x98
)
[days] => [6,7]
[material_price] => [47480,68700]
[work_price] => [17900,19500]
[image] => https://akademik-stroy.ru/wp-content/uploads/materials/mansardnye-okna-2.jpg
[area_modifier] => 1
[parent_name] => Мансардные окна
[parent_id] => 14
[material_sum] => 62674
[work_sum] => 19690
[total_sum] => 82364
[total_days] => 6
[display_material_sum] => 62 674
[display_work_sum] => 19 690
[display_total_sum] => 82 364
)
1
82 364₽
Работа:19 690 ₽
Материалы:62 674 ₽
Дни:6
stdClass Object
(
[id] => 29
[attribute_id] => 15
[name] => Нет
[material_modifier] => 1
[work_modifier] => 1
[options] => Array
(
)
[days] => [0]
[material_price] => [0]
[work_price] => [0]
[image] => https://akademik-stroy.ru/wp-content/uploads/materials/sofit.jpg
[area_modifier] => 157.22
[parent_name] => Подшивка кровли
[parent_id] => 15
[material_sum] => 0
[work_sum] => 0
[total_sum] => 0
[total_days] => 0
[display_material_sum] => 0
[display_work_sum] => 0
[display_total_sum] => 0
)
1
0₽
Работа:0 ₽
Материалы:0 ₽
Дни:0
stdClass Object
(
[id] => 30
[attribute_id] => 15
[name] => Есть
[material_modifier] => 1
[work_modifier] => 1
[options] => Array
(
[0] => Софиты (ПВХ)
[1] => Cedral
[2] => ДПК
[3] => Планкен
)
[days] => [7,10,9,8]
[material_price] => [1803,3213,3025,3150]
[work_price] => [1529,2188,2075,1923]
[image] => https://akademik-stroy.ru/wp-content/uploads/materials/sofit.jpg
[area_modifier] => 157.22
[parent_name] => Подшивка кровли
[parent_id] => 15
[material_sum] => 374177
[work_sum] => 264428
[total_sum] => 638605
[total_days] => 7
[display_material_sum] => 374 177
[display_work_sum] => 264 428
[display_total_sum] => 638 605
)
1
638 605₽
Работа:264 428 ₽
Материалы:374 177 ₽
Дни:7
stdClass Object
(
[id] => 31
[attribute_id] => 16
[name] => Нет
[material_modifier] => 1
[work_modifier] => 1
[options] => Array
(
)
[days] => [0]
[material_price] => [0]
[work_price] => [0]
[image] => https://akademik-stroy.ru/wp-content/uploads/materials/docke-standard-pvh.jpg
[area_modifier] => 157.22
[parent_name] => Водосточная система
[parent_id] => 16
[material_sum] => 0
[work_sum] => 0
[total_sum] => 0
[total_days] => 0
[display_material_sum] => 0
[display_work_sum] => 0
[display_total_sum] => 0
)
1
0₽
Работа:0 ₽
Материалы:0 ₽
Дни:0
stdClass Object
(
[id] => 32
[attribute_id] => 16
[name] => Есть
[material_modifier] => 1
[work_modifier] => 1
[options] => Array
(
[0] => Döcke Standard (ПВХ)
[1] => Металлические Grand Line
)
[days] => [7,7]
[material_price] => [1842,2703]
[work_price] => [1491,1529]
[image] => https://akademik-stroy.ru/wp-content/uploads/materials/docke-standard-pvh.jpg
[area_modifier] => 157.22
[parent_name] => Водосточная система
[parent_id] => 16
[material_sum] => 382271
[work_sum] => 257857
[total_sum] => 640128
[total_days] => 7
[display_material_sum] => 382 271
[display_work_sum] => 257 857
[display_total_sum] => 640 128
)
1
640 128₽
Работа:257 857 ₽
Материалы:382 271 ₽
Дни:7
stdClass Object
(
[id] => 33
[attribute_id] => 17
[name] => Нет
[material_modifier] => 1
[work_modifier] => 1
[options] => Array
(
)
[days] => [0]
[material_price] => [0]
[work_price] => [0]
[image] => https://akademik-stroy.ru/wp-content/uploads/materials/mineralovata.jpg
[area_modifier] => 157.22
[parent_name] => Дополнительное утепление наружных стен
[parent_id] => 17
[material_sum] => 0
[work_sum] => 0
[total_sum] => 0
[total_days] => 0
[display_material_sum] => 0
[display_work_sum] => 0
[display_total_sum] => 0
)
1
0₽
Работа:0 ₽
Материалы:0 ₽
Дни:0
stdClass Object
(
[id] => 34
[attribute_id] => 17
[name] => Минераловатный
[material_modifier] => 1
[work_modifier] => 1
[options] => Array
(
[0] => 50 мм
[1] => 100 мм
[2] => 150 мм
[3] => 200 мм
[4] => 250 мм
[5] => 300 мм
)
[days] => [7,8,10,12,14,15]
[material_price] => [3437,3613,3803,3915,4601,4830]
[work_price] => [2325,2423,2523,2749,2859,3025]
[image] => https://akademik-stroy.ru/wp-content/uploads/materials/mineralovata.jpg
[area_modifier] => 157.22
[parent_name] => Дополнительное утепление наружных стен
[parent_id] => 17
[material_sum] => 713282
[work_sum] => 402090
[total_sum] => 1115372
[total_days] => 7
[display_material_sum] => 713 282
[display_work_sum] => 402 090
[display_total_sum] => 1 115 372
)
1
1 115 372₽
Работа:402 090 ₽
Материалы:713 282 ₽
Дни:7
stdClass Object
(
[id] => 128
[attribute_id] => 17
[name] => Эковата (целлюлозная вата)
[material_modifier] => 1
[work_modifier] => 1
[options] => Array
(
[0] => 50 мм
[1] => 100 мм
[2] => 150 мм
[3] => 200 мм
[4] => 250 мм
[5] => 300 мм
)
[days] => [3,4,5,6,7,8]
[material_price] => [810,1319,1629,1838,2267,2676]
[work_price] => [1225,1323,1423,1549,1659,1725]
[image] => https://akademik-stroy.ru/wp-content/uploads/materials/ehkovata.jpg
[area_modifier] => 157.22
[parent_name] => Дополнительное утепление наружных стен
[parent_id] => 17
[material_sum] => 168100
[work_sum] => 211854
[total_sum] => 379954
[total_days] => 3
[display_material_sum] => 168 100
[display_work_sum] => 211 854
[display_total_sum] => 379 954
)
1
379 954₽
Работа:211 854 ₽
Материалы:168 100 ₽
Дни:3
stdClass Object
(
[id] => 129
[attribute_id] => 17
[name] => Экструдированный пенополистирол
[material_modifier] => 1
[work_modifier] => 1
[options] => Array
(
[0] => 50 мм
[1] => 100 мм
[2] => 150 мм
[3] => 200 мм
[4] => 250 мм
[5] => 300 мм
)
[days] => [5,6,7,8,9,10]
[material_price] => [4560,4300,5119,6292,7010,8583]
[work_price] => [1795,1954,2254,2330,2595,2735]
[image] => https://akademik-stroy.ru/wp-content/uploads/materials/epps.jpg
[area_modifier] => 157.22
[parent_name] => Дополнительное утепление наружных стен
[parent_id] => 17
[material_sum] => 946339
[work_sum] => 310431
[total_sum] => 1256770
[total_days] => 5
[display_material_sum] => 946 339
[display_work_sum] => 310 431
[display_total_sum] => 1 256 770
)
1
1 256 770₽
Работа:310 431 ₽
Материалы:946 339 ₽
Дни:5
stdClass Object
(
[id] => 130
[attribute_id] => 17
[name] => ПСБ (ППС-пенополистирол)
[material_modifier] => 1
[work_modifier] => 1
[options] => Array
(
[0] => 50 мм
[1] => 100 мм
[2] => 150 мм
[3] => 200 мм
[4] => 250 мм
[5] => 300 мм
)
[days] => [5,6,7,8,9,10]
[material_price] => [4822,5200,5819,6292,7010,7583]
[work_price] => [1795,1954,2254,2330,2595,2735]
[image] => https://akademik-stroy.ru/wp-content/uploads/materials/psb.jpg
[area_modifier] => 157.22
[parent_name] => Дополнительное утепление наружных стен
[parent_id] => 17
[material_sum] => 1000712
[work_sum] => 310431
[total_sum] => 1311143
[total_days] => 5
[display_material_sum] => 1 000 712
[display_work_sum] => 310 431
[display_total_sum] => 1 311 143
)
1
1 311 143₽
Работа:310 431 ₽
Материалы:1 000 712 ₽
Дни:5
stdClass Object
(
[id] => 131
[attribute_id] => 17
[name] => ППУ (Пенополиуретан)
[material_modifier] => 1
[work_modifier] => 1
[options] => Array
(
[0] => 50 мм
[1] => 100 мм
[2] => 150 мм
[3] => 200 мм
[4] => 250 мм
[5] => 300 мм
)
[days] => [3,4,5,6,7,8]
[material_price] => [2860,3400,4219,4592,5010,5583]
[work_price] => [729,900,980,1120,1280,1530]
[image] => https://akademik-stroy.ru/wp-content/uploads/materials/ppu.jpg
[area_modifier] => 157.22
[parent_name] => Дополнительное утепление наружных стен
[parent_id] => 17
[material_sum] => 593537
[work_sum] => 126075
[total_sum] => 719612
[total_days] => 3
[display_material_sum] => 593 537
[display_work_sum] => 126 075
[display_total_sum] => 719 612
)
1
719 612₽
Работа:126 075 ₽
Материалы:593 537 ₽
Дни:3
stdClass Object
(
[id] => 132
[attribute_id] => 17
[name] => PIR-плиты (пенополиизоцианурат)
[material_modifier] => 1
[work_modifier] => 1
[options] => Array
(
[0] => 50 мм
[1] => 100 мм
[2] => 150 мм
[3] => 200 мм
[4] => 250 мм
[5] => 300 мм
)
[days] => [5,6,7,8,9,10]
[material_price] => [8323,15645,20968,25900,29258,30581]
[work_price] => [800,900,970,1150,1280,1330]
[image] => https://akademik-stroy.ru/wp-content/uploads/materials/pir.jpg
[area_modifier] => 157.22
[parent_name] => Дополнительное утепление наружных стен
[parent_id] => 17
[material_sum] => 1727276
[work_sum] => 138354
[total_sum] => 1865630
[total_days] => 5
[display_material_sum] => 1 727 276
[display_work_sum] => 138 354
[display_total_sum] => 1 865 630
)
1
1 865 630₽
Работа:138 354 ₽
Материалы:1 727 276 ₽
Дни:5
stdClass Object
(
[id] => 37
[attribute_id] => 19
[name] => Нет
[material_modifier] => 1
[work_modifier] => 1
[options] => Array
(
)
[days] => [0]
[material_price] => [0]
[work_price] => [0]
[image] => https://akademik-stroy.ru/wp-content/uploads/materials/imitaciya-brusa.jpg
[area_modifier] => 157.22
[parent_name] => Наружная отделка фасада
[parent_id] => 19
[material_sum] => 0
[work_sum] => 0
[total_sum] => 0
[total_days] => 0
[display_material_sum] => 0
[display_work_sum] => 0
[display_total_sum] => 0
)
1
0₽
Работа:0 ₽
Материалы:0 ₽
Дни:0
stdClass Object
(
[id] => 38
[attribute_id] => 19
[name] => Имитация бруса
[material_modifier] => 1
[work_modifier] => 1
[options] => Array
(
[0] => Сосна
[1] => Ель
[2] => Лиственница
)
[days] => [20,20,20]
[material_price] => [2994,2762,4954]
[work_price] => [1397,1231,1577]
[image] => https://akademik-stroy.ru/wp-content/uploads/materials/imitaciya-brusa.jpg
[area_modifier] => 157.22
[parent_name] => Наружная отделка фасада
[parent_id] => 19
[material_sum] => 621346
[work_sum] => 241600
[total_sum] => 862946
[total_days] => 20
[display_material_sum] => 621 346
[display_work_sum] => 241 600
[display_total_sum] => 862 946
)
1
862 946₽
Работа:241 600 ₽
Материалы:621 346 ₽
Дни:20
stdClass Object
(
[id] => 136
[attribute_id] => 19
[name] => Планкен
[material_modifier] => 1
[work_modifier] => 1
[options] => Array
(
[0] => Сосна
[1] => Ель
[2] => Лиственница
)
[days] => [20,20,20]
[material_price] => [3194,2862,5154]
[work_price] => [1537,1354,1735]
[image] => https://akademik-stroy.ru/wp-content/uploads/materials/planken.jpg
[area_modifier] => 157.22
[parent_name] => Наружная отделка фасада
[parent_id] => 19
[material_sum] => 662852
[work_sum] => 265812
[total_sum] => 928664
[total_days] => 20
[display_material_sum] => 662 852
[display_work_sum] => 265 812
[display_total_sum] => 928 664
)
1
928 664₽
Работа:265 812 ₽
Материалы:662 852 ₽
Дни:20
stdClass Object
(
[id] => 137
[attribute_id] => 19
[name] => Штукатурка
[material_modifier] => 1
[work_modifier] => 1
[options] => Array
(
[0] => Цементно-песчаная (минеральная)
[1] => Мокрый фасад
)
[days] => [35,35]
[material_price] => [2231,3938]
[work_price] => [1202,2422]
[image] => https://akademik-stroy.ru/wp-content/uploads/materials/shtukaturka.jpg
[area_modifier] => 157.22
[parent_name] => Наружная отделка фасада
[parent_id] => 19
[material_sum] => 463000
[work_sum] => 207876
[total_sum] => 670876
[total_days] => 35
[display_material_sum] => 463 000
[display_work_sum] => 207 876
[display_total_sum] => 670 876
)
1
670 876₽
Работа:207 876 ₽
Материалы:463 000 ₽
Дни:35
stdClass Object
(
[id] => 138
[attribute_id] => 19
[name] => Облицовочный кирпич
[material_modifier] => 1
[work_modifier] => 1
[options] => Array
(
[0] => Керамический
[1] => Клинкерный
[2] => Ручной формовки
[3] => Гиперпрессованный
[4] => Силикатный кирпич
)
[days] => [45,45,45,45,45]
[material_price] => [8174,9148,1040,1257,5876]
[work_price] => [3240,3758,4536,4017,3369]
[image] => https://akademik-stroy.ru/wp-content/uploads/materials/oblicovochnyj-kirpich.jpg
[area_modifier] => 157.22
[parent_name] => Наружная отделка фасада
[parent_id] => 19
[material_sum] => 1696353
[work_sum] => 560332
[total_sum] => 2256685
[total_days] => 45
[display_material_sum] => 1 696 353
[display_work_sum] => 560 332
[display_total_sum] => 2 256 685
)
1
2 256 685₽
Работа:560 332 ₽
Материалы:1 696 353 ₽
Дни:45
stdClass Object
(
[id] => 139
[attribute_id] => 19
[name] => Фасадная плитка
[material_modifier] => 1
[work_modifier] => 1
[options] => Array
(
[0] => Клинкерная
[1] => Керамическая
[2] => Плитка ручной формовки
)
[days] => [40,40,40]
[material_price] => [2974,1487,3470]
[work_price] => [3007,2592,3629]
[image] => https://akademik-stroy.ru/wp-content/uploads/materials/fasadnaya-plitka.jpg
[area_modifier] => 157.22
[parent_name] => Наружная отделка фасада
[parent_id] => 19
[material_sum] => 617195
[work_sum] => 520037
[total_sum] => 1137232
[total_days] => 40
[display_material_sum] => 617 195
[display_work_sum] => 520 037
[display_total_sum] => 1 137 232
)
1
1 137 232₽
Работа:520 037 ₽
Материалы:617 195 ₽
Дни:40
stdClass Object
(
[id] => 140
[attribute_id] => 19
[name] => Сайдинг
[material_modifier] => 1
[work_modifier] => 1
[options] => Array
(
[0] => Виниловый
[1] => Металлический
[2] => Фиброцементный
)
[days] => [20,20,20]
[material_price] => [1263,1944,4147]
[work_price] => [1263,1944,2074]
[image] => https://akademik-stroy.ru/wp-content/uploads/materials/sajding.jpg
[area_modifier] => 157.22
[parent_name] => Наружная отделка фасада
[parent_id] => 19
[material_sum] => 262111
[work_sum] => 218426
[total_sum] => 480537
[total_days] => 20
[display_material_sum] => 262 111
[display_work_sum] => 218 426
[display_total_sum] => 480 537
)
1
480 537₽
Работа:218 426 ₽
Материалы:262 111 ₽
Дни:20
stdClass Object
(
[id] => 141
[attribute_id] => 19
[name] => Камень
[material_modifier] => 1
[work_modifier] => 1
[options] => Array
(
[0] => Травертин
[1] => Дагестанский
[2] => Искусственный
[3] => Натуральный
[4] => Керамогранит
)
[days] => [45,45,45,45,45]
[material_price] => [4536,3888,2592,3240,2462]
[work_price] => [3240,3240,2462,3110,1944]
[image] => https://akademik-stroy.ru/wp-content/uploads/materials/kamen-1.jpg
[area_modifier] => 157.22
[parent_name] => Наружная отделка фасада
[parent_id] => 19
[material_sum] => 941358
[work_sum] => 560332
[total_sum] => 1501690
[total_days] => 45
[display_material_sum] => 941 358
[display_work_sum] => 560 332
[display_total_sum] => 1 501 690
)
1
1 501 690₽
Работа:560 332 ₽
Материалы:941 358 ₽
Дни:45
stdClass Object
(
[id] => 142
[attribute_id] => 19
[name] => Термопанели
[material_modifier] => 1
[work_modifier] => 1
[options] => Array
(
)
[days] => [20]
[material_price] => [6221]
[work_price] => [2333]
[image] => https://akademik-stroy.ru/wp-content/uploads/materials/termo.png
[area_modifier] => 157.22
[parent_name] => Наружная отделка фасада
[parent_id] => 19
[material_sum] => 1291047
[work_sum] => 403474
[total_sum] => 1694521
[total_days] => 20
[display_material_sum] => 1 291 047
[display_work_sum] => 403 474
[display_total_sum] => 1 694 521
)
1
1 694 521₽
Работа:403 474 ₽
Материалы:1 291 047 ₽
Дни:20
stdClass Object
(
[id] => 143
[attribute_id] => 19
[name] => Плитка HAUBERK
[material_modifier] => 1
[work_modifier] => 1
[options] => Array
(
)
[days] => [20]
[material_price] => [2786]
[work_price] => [1944]
[image] => https://akademik-stroy.ru/wp-content/uploads/materials/hauberk.jpg
[area_modifier] => 157.22
[parent_name] => Наружная отделка фасада
[parent_id] => 19
[material_sum] => 578180
[work_sum] => 336199
[total_sum] => 914379
[total_days] => 20
[display_material_sum] => 578 180
[display_work_sum] => 336 199
[display_total_sum] => 914 379
)
1
914 379₽
Работа:336 199 ₽
Материалы:578 180 ₽
Дни:20
stdClass Object
(
[id] => 144
[attribute_id] => 19
[name] => Фальцевый фасад
[material_modifier] => 1
[work_modifier] => 1
[options] => Array
(
)
[days] => [20]
[material_price] => [3240]
[work_price] => [2592]
[image] => https://akademik-stroy.ru/wp-content/uploads/materials/falcevyj-fasad.jpg
[area_modifier] => 157.22
[parent_name] => Наружная отделка фасада
[parent_id] => 19
[material_sum] => 672398
[work_sum] => 448266
[total_sum] => 1120664
[total_days] => 20
[display_material_sum] => 672 398
[display_work_sum] => 448 266
[display_total_sum] => 1 120 664
)
1
1 120 664₽
Работа:448 266 ₽
Материалы:672 398 ₽
Дни:20
stdClass Object
(
[id] => 145
[attribute_id] => 19
[name] => Комбинированный
[material_modifier] => 1
[work_modifier] => 1
[options] => Array
(
)
[days] => [20]
[material_price] => [4629]
[work_price] => [3499]
[image] => https://akademik-stroy.ru/wp-content/uploads/materials/Kombinirovannyj.jpg
[area_modifier] => 157.22
[parent_name] => Наружная отделка фасада
[parent_id] => 19
[material_sum] => 960658
[work_sum] => 605124
[total_sum] => 1565782
[total_days] => 20
[display_material_sum] => 960 658
[display_work_sum] => 605 124
[display_total_sum] => 1 565 782
)
1
1 565 782₽
Работа:605 124 ₽
Материалы:960 658 ₽
Дни:20
stdClass Object
(
[id] => 257
[attribute_id] => 19
[name] => Японские фиброцементные
[material_modifier] => 1
[work_modifier] => 1
[options] => Array
(
)
[days] => [20]
[material_price] => [7043]
[work_price] => [2993]
[image] => https://akademik-stroy.ru/wp-content/uploads/materials/paneli.jpg
[area_modifier] => 157.22
[parent_name] => Наружная отделка фасада
[parent_id] => 19
[material_sum] => 1461637
[work_sum] => 517615
[total_sum] => 1979252
[total_days] => 20
[display_material_sum] => 1 461 637
[display_work_sum] => 517 615
[display_total_sum] => 1 979 252
)
1
1 979 252₽
Работа:517 615 ₽
Материалы:1 461 637 ₽
Дни:20
stdClass Object
(
[id] => 258
[attribute_id] => 19
[name] => Панели Каньон
[material_modifier] => 1
[work_modifier] => 1
[options] => Array
(
)
[days] => [20]
[material_price] => [4543]
[work_price] => [2592]
[image] => https://akademik-stroy.ru/wp-content/uploads/materials/kanon.png
[area_modifier] => 157.22
[parent_name] => Наружная отделка фасада
[parent_id] => 19
[material_sum] => 942811
[work_sum] => 448266
[total_sum] => 1391077
[total_days] => 20
[display_material_sum] => 942 811
[display_work_sum] => 448 266
[display_total_sum] => 1 391 077
)
1
1 391 077₽
Работа:448 266 ₽
Материалы:942 811 ₽
Дни:20
stdClass Object
(
[id] => 39
[attribute_id] => 20
[name] => Нет
[material_modifier] => 1
[work_modifier] => 1
[options] => Array
(
)
[days] => [0]
[material_price] => [0]
[work_price] => [0]
[image] => https://akademik-stroy.ru/wp-content/uploads/materials/terrasy.jpg
[area_modifier] => 30
[parent_name] => Террасы, крыльца, навесы
[parent_id] => 20
[material_sum] => 0
[work_sum] => 0
[total_sum] => 0
[total_days] => 0
[display_material_sum] => 0
[display_work_sum] => 0
[display_total_sum] => 0
)
1
0₽
Работа:0 ₽
Материалы:0 ₽
Дни:0
stdClass Object
(
[id] => 40
[attribute_id] => 20
[name] => Есть
[material_modifier] => 1
[work_modifier] => 1
[options] => Array
(
)
[days] => [5]
[material_price] => [10450]
[work_price] => [1950]
[image] => https://akademik-stroy.ru/wp-content/uploads/materials/terrasy.jpg
[area_modifier] => 30
[parent_name] => Террасы, крыльца, навесы
[parent_id] => 20
[material_sum] => 413820
[work_sum] => 64350
[total_sum] => 478170
[total_days] => 5
[display_material_sum] => 413 820
[display_work_sum] => 64 350
[display_total_sum] => 478 170
)
1
478 170₽
Работа:64 350 ₽
Материалы:413 820 ₽
Дни:5
stdClass Object
(
[id] => 41
[attribute_id] => 21
[name] => Нет
[material_modifier] => 1
[work_modifier] => 1
[options] => Array
(
)
[days] => [0]
[material_price] => [0]
[work_price] => [0]
[image] => https://akademik-stroy.ru/wp-content/uploads/materials/balkony.jpg
[area_modifier] => 30
[parent_name] => Балконы
[parent_id] => 21
[material_sum] => 0
[work_sum] => 0
[total_sum] => 0
[total_days] => 0
[display_material_sum] => 0
[display_work_sum] => 0
[display_total_sum] => 0
)
1
0₽
Работа:0 ₽
Материалы:0 ₽
Дни:0
stdClass Object
(
[id] => 42
[attribute_id] => 21
[name] => Есть
[material_modifier] => 1
[work_modifier] => 1
[options] => Array
(
)
[days] => [12]
[material_price] => [3600]
[work_price] => [1950]
[image] => https://akademik-stroy.ru/wp-content/uploads/materials/balkony.jpg
[area_modifier] => 30
[parent_name] => Балконы
[parent_id] => 21
[material_sum] => 142560
[work_sum] => 64350
[total_sum] => 206910
[total_days] => 12
[display_material_sum] => 142 560
[display_work_sum] => 64 350
[display_total_sum] => 206 910
)
1
206 910₽
Работа:64 350 ₽
Материалы:142 560 ₽
Дни:12
stdClass Object
(
[id] => 43
[attribute_id] => 22
[name] => Нет
[material_modifier] => 1
[work_modifier] => 1
[options] => Array
(
)
[days] => [0]
[material_price] => [0]
[work_price] => [0]
[image] => https://akademik-stroy.ru/wp-content/uploads/materials/uteplennaya.jpg
[area_modifier] => 157.22
[parent_name] => Отмостка
[parent_id] => 22
[material_sum] => 0
[work_sum] => 0
[total_sum] => 0
[total_days] => 0
[display_material_sum] => 0
[display_work_sum] => 0
[display_total_sum] => 0
)
1
0₽
Работа:0 ₽
Материалы:0 ₽
Дни:0
stdClass Object
(
[id] => 44
[attribute_id] => 22
[name] => Утепленная отмостка
[material_modifier] => 1
[work_modifier] => 1
[options] => Array
(
)
[days] => [15]
[material_price] => [2550]
[work_price] => [1750]
[image] => https://akademik-stroy.ru/wp-content/uploads/materials/uteplennaya.jpg
[area_modifier] => 157.22
[parent_name] => Отмостка
[parent_id] => 22
[material_sum] => 529203
[work_sum] => 302649
[total_sum] => 831852
[total_days] => 15
[display_material_sum] => 529 203
[display_work_sum] => 302 649
[display_total_sum] => 831 852
)
1
831 852₽
Работа:302 649 ₽
Материалы:529 203 ₽
Дни:15
stdClass Object
(
[id] => 146
[attribute_id] => 22
[name] => Не утепленная отмостка
[material_modifier] => 1
[work_modifier] => 1
[options] => Array
(
)
[days] => [10]
[material_price] => [1650]
[work_price] => [1450]
[image] => https://akademik-stroy.ru/wp-content/uploads/materials/ne-uteplennaya.jpg
[area_modifier] => 157.22
[parent_name] => Отмостка
[parent_id] => 22
[material_sum] => 342425
[work_sum] => 250766
[total_sum] => 593191
[total_days] => 10
[display_material_sum] => 342 425
[display_work_sum] => 250 766
[display_total_sum] => 593 191
)
1
593 191₽
Работа:250 766 ₽
Материалы:342 425 ₽
Дни:10
stdClass Object
(
[id] => 45
[attribute_id] => 23
[name] => Нет
[material_modifier] => 1
[work_modifier] => 1
[options] => Array
(
)
[days] => [0]
[material_price] => [0]
[work_price] => [0]
[image] => https://akademik-stroy.ru/wp-content/uploads/materials/drenazh-2.jpg
[area_modifier] => 157.22
[parent_name] => Дренаж вокруг дома
[parent_id] => 23
[material_sum] => 0
[work_sum] => 0
[total_sum] => 0
[total_days] => 0
[display_material_sum] => 0
[display_work_sum] => 0
[display_total_sum] => 0
)
1
0₽
Работа:0 ₽
Материалы:0 ₽
Дни:0
stdClass Object
(
[id] => 46
[attribute_id] => 23
[name] => Есть
[material_modifier] => 1
[work_modifier] => 1
[options] => Array
(
)
[days] => [5]
[material_price] => [2366]
[work_price] => [1911]
[image] => https://akademik-stroy.ru/wp-content/uploads/materials/drenazh-2.jpg
[area_modifier] => 157.22
[parent_name] => Дренаж вокруг дома
[parent_id] => 23
[material_sum] => 491017
[work_sum] => 330492
[total_sum] => 821509
[total_days] => 5
[display_material_sum] => 491 017
[display_work_sum] => 330 492
[display_total_sum] => 821 509
)
1
821 509₽
Работа:330 492 ₽
Материалы:491 017 ₽
Дни:5
stdClass Object
(
[id] => 47
[attribute_id] => 24
[name] => Нет
[material_modifier] => 1
[work_modifier] => 1
[options] => Array
(
)
[days] => [0]
[material_price] => [0]
[work_price] => [0]
[image] => https://akademik-stroy.ru/wp-content/uploads/materials/septik.jpg
[area_modifier] => 1
[parent_name] => Автономная канализация (септики)
[parent_id] => 24
[material_sum] => 0
[work_sum] => 0
[total_sum] => 0
[total_days] => 0
[display_material_sum] => 0
[display_work_sum] => 0
[display_total_sum] => 0
)
1
0₽
Работа:0 ₽
Материалы:0 ₽
Дни:0
stdClass Object
(
[id] => 48
[attribute_id] => 24
[name] => Есть
[material_modifier] => 1
[work_modifier] => 1
[options] => Array
(
[0] => Для дачи на 4 человека
[1] => Для дома на 5 человек
[2] => Для дома на 6 человек
[3] => Для дома на 7 человек
[4] => Для дома на 10 человек
)
[days] => [7,7,7,8,8]
[material_price] => [196340,220500,240940,264200,293340]
[work_price] => [50000,55000,60500,66550,73206]
[image] => https://akademik-stroy.ru/wp-content/uploads/materials/septik.jpg
[area_modifier] => 1
[parent_name] => Автономная канализация (септики)
[parent_id] => 24
[material_sum] => 259169
[work_sum] => 55000
[total_sum] => 314169
[total_days] => 7
[display_material_sum] => 259 169
[display_work_sum] => 55 000
[display_total_sum] => 314 169
)
1
314 169₽
Работа:55 000 ₽
Материалы:259 169 ₽
Дни:7
stdClass Object
(
[id] => 49
[attribute_id] => 25
[name] => Нет
[material_modifier] => 1
[work_modifier] => 1
[options] => Array
(
)
[days] => [0]
[material_price] => [0]
[work_price] => [0]
[image] => https://akademik-stroy.ru/wp-content/uploads/materials/gkl.jpg
[area_modifier] => 157.22
[parent_name] => Внутренние (не несущие) перегородки
[parent_id] => 25
[material_sum] => 0
[work_sum] => 0
[total_sum] => 0
[total_days] => 0
[display_material_sum] => 0
[display_work_sum] => 0
[display_total_sum] => 0
)
1
0₽
Работа:0 ₽
Материалы:0 ₽
Дни:0
stdClass Object
(
[id] => 147
[attribute_id] => 25
[name] => Каркасно-обшивные
[material_modifier] => 1
[work_modifier] => 1
[options] => Array
(
[0] => 75 мм (без шумоизоляции)
[1] => 75 мм (с шумоизоляцией)
)
[days] => [11,11]
[material_price] => [580,970]
[work_price] => [380,570]
[image] => https://akademik-stroy.ru/wp-content/uploads/materials/gkl.jpg
[area_modifier] => 157.22
[parent_name] => Внутренние (не несущие) перегородки
[parent_id] => 25
[material_sum] => 120368
[work_sum] => 65718
[total_sum] => 186086
[total_days] => 11
[display_material_sum] => 120 368
[display_work_sum] => 65 718
[display_total_sum] => 186 086
)
1
186 086₽
Работа:65 718 ₽
Материалы:120 368 ₽
Дни:11
stdClass Object
(
[id] => 148
[attribute_id] => 25
[name] => Пазогребневые
[material_modifier] => 1
[work_modifier] => 1
[options] => Array
(
[0] => 80 мм
[1] => 100 мм
)
[days] => [5,5]
[material_price] => [1022,1313]
[work_price] => [600,700]
[image] => https://akademik-stroy.ru/wp-content/uploads/materials/pazogrebnevye-bloki.jpg
[area_modifier] => 157.22
[parent_name] => Внутренние (не несущие) перегородки
[parent_id] => 25
[material_sum] => 212096
[work_sum] => 103765
[total_sum] => 315861
[total_days] => 5
[display_material_sum] => 212 096
[display_work_sum] => 103 765
[display_total_sum] => 315 861
)
1
315 861₽
Работа:103 765 ₽
Материалы:212 096 ₽
Дни:5
stdClass Object
(
[id] => 149
[attribute_id] => 25
[name] => Газобетонные
[material_modifier] => 1
[work_modifier] => 1
[options] => Array
(
[0] => 100 мм
[1] => 200 мм
)
[days] => [11,11]
[material_price] => [1160,1920]
[work_price] => [700,900]
[image] => https://akademik-stroy.ru/wp-content/uploads/materials/gazobeton-2.jpg
[area_modifier] => 157.22
[parent_name] => Внутренние (не несущие) перегородки
[parent_id] => 25
[material_sum] => 240735
[work_sum] => 121059
[total_sum] => 361794
[total_days] => 11
[display_material_sum] => 240 735
[display_work_sum] => 121 059
[display_total_sum] => 361 794
)
1
361 794₽
Работа:121 059 ₽
Материалы:240 735 ₽
Дни:11
stdClass Object
(
[id] => 150
[attribute_id] => 25
[name] => Кирпичные
[material_modifier] => 1
[work_modifier] => 1
[options] => Array
(
[0] => 120 мм
[1] => 250 мм
[2] => 360 мм
)
[days] => [7,7,7]
[material_price] => [1785,3570,5355]
[work_price] => [900,1600,1800]
[image] => https://akademik-stroy.ru/wp-content/uploads/materials/kirpich-1.jpg
[area_modifier] => 157.22
[parent_name] => Внутренние (не несущие) перегородки
[parent_id] => 25
[material_sum] => 370442
[work_sum] => 155648
[total_sum] => 526090
[total_days] => 7
[display_material_sum] => 370 442
[display_work_sum] => 155 648
[display_total_sum] => 526 090
)
1
526 090₽
Работа:155 648 ₽
Материалы:370 442 ₽
Дни:7
stdClass Object
(
[id] => 55
[attribute_id] => 28
[name] => Нет
[material_modifier] => 1
[work_modifier] => 1
[options] => Array
(
)
[days] => [0]
[material_price] => [0]
[work_price] => [0]
[image] => https://akademik-stroy.ru/wp-content/uploads/materials/ehlektrika.jpg
[area_modifier] => 127.58
[parent_name] => Электрика
[parent_id] => 28
[material_sum] => 0
[work_sum] => 0
[total_sum] => 0
[total_days] => 0
[display_material_sum] => 0
[display_work_sum] => 0
[display_total_sum] => 0
)
1
0₽
Работа:0 ₽
Материалы:0 ₽
Дни:0
stdClass Object
(
[id] => 56
[attribute_id] => 28
[name] => Есть
[material_modifier] => 1
[work_modifier] => 1
[options] => Array
(
)
[days] => [10]
[material_price] => [650]
[work_price] => [950]
[image] => https://akademik-stroy.ru/wp-content/uploads/materials/ehlektrika.jpg
[area_modifier] => 127.58
[parent_name] => Электрика
[parent_id] => 28
[material_sum] => 109464
[work_sum] => 133321
[total_sum] => 242785
[total_days] => 10
[display_material_sum] => 109 464
[display_work_sum] => 133 321
[display_total_sum] => 242 785
)
1
242 785₽
Работа:133 321 ₽
Материалы:109 464 ₽
Дни:10
stdClass Object
(
[id] => 57
[attribute_id] => 29
[name] => Нет
[material_modifier] => 1
[work_modifier] => 1
[options] => Array
(
)
[days] => [0]
[material_price] => [0]
[work_price] => [0]
[image] => https://akademik-stroy.ru/wp-content/uploads/materials/santekhnika-kanalizaciya-1.jpg
[area_modifier] => 127.58
[parent_name] => Сантехника, канализация в доме
[parent_id] => 29
[material_sum] => 0
[work_sum] => 0
[total_sum] => 0
[total_days] => 0
[display_material_sum] => 0
[display_work_sum] => 0
[display_total_sum] => 0
)
1
0₽
Работа:0 ₽
Материалы:0 ₽
Дни:0
stdClass Object
(
[id] => 58
[attribute_id] => 29
[name] => Есть
[material_modifier] => 1
[work_modifier] => 1
[options] => Array
(
)
[days] => [10]
[material_price] => [600]
[work_price] => [730]
[image] => https://akademik-stroy.ru/wp-content/uploads/materials/santekhnika-kanalizaciya-1.jpg
[area_modifier] => 127.58
[parent_name] => Сантехника, канализация в доме
[parent_id] => 29
[material_sum] => 101043
[work_sum] => 102447
[total_sum] => 203490
[total_days] => 10
[display_material_sum] => 101 043
[display_work_sum] => 102 447
[display_total_sum] => 203 490
)
1
203 490₽
Работа:102 447 ₽
Материалы:101 043 ₽
Дни:10
stdClass Object
(
[id] => 59
[attribute_id] => 30
[name] => Нет
[material_modifier] => 1
[work_modifier] => 1
[options] => Array
(
)
[days] => [0]
[material_price] => [0]
[work_price] => [0]
[image] => https://akademik-stroy.ru/wp-content/uploads/materials/otoplenie-1.jpg
[area_modifier] => 127.58
[parent_name] => Отопление
[parent_id] => 30
[material_sum] => 0
[work_sum] => 0
[total_sum] => 0
[total_days] => 0
[display_material_sum] => 0
[display_work_sum] => 0
[display_total_sum] => 0
)
1
0₽
Работа:0 ₽
Материалы:0 ₽
Дни:0
stdClass Object
(
[id] => 60
[attribute_id] => 30
[name] => Есть
[material_modifier] => 1
[work_modifier] => 1
[options] => Array
(
)
[days] => [5]
[material_price] => [610]
[work_price] => [560]
[image] => https://akademik-stroy.ru/wp-content/uploads/materials/otoplenie-1.jpg
[area_modifier] => 127.58
[parent_name] => Отопление
[parent_id] => 30
[material_sum] => 102727
[work_sum] => 78589
[total_sum] => 181316
[total_days] => 5
[display_material_sum] => 102 727
[display_work_sum] => 78 589
[display_total_sum] => 181 316
)
1
181 316₽
Работа:78 589 ₽
Материалы:102 727 ₽
Дни:5
stdClass Object
(
[id] => 61
[attribute_id] => 31
[name] => Нет
[material_modifier] => 1
[work_modifier] => 1
[options] => Array
(
)
[days] => [0]
[material_price] => [0]
[work_price] => [0]
[image] => https://akademik-stroy.ru/wp-content/uploads/materials/vodyanye.jpg
[area_modifier] => 30
[parent_name] => Теплые полы
[parent_id] => 31
[material_sum] => 0
[work_sum] => 0
[total_sum] => 0
[total_days] => 0
[display_material_sum] => 0
[display_work_sum] => 0
[display_total_sum] => 0
)
1
0₽
Работа:0 ₽
Материалы:0 ₽
Дни:0
stdClass Object
(
[id] => 151
[attribute_id] => 31
[name] => Водяные
[material_modifier] => 1
[work_modifier] => 1
[options] => Array
(
)
[days] => [9]
[material_price] => [10200]
[work_price] => [2500]
[image] => https://akademik-stroy.ru/wp-content/uploads/materials/vodyanye.jpg
[area_modifier] => 30
[parent_name] => Теплые полы
[parent_id] => 31
[material_sum] => 403920
[work_sum] => 82500
[total_sum] => 486420
[total_days] => 9
[display_material_sum] => 403 920
[display_work_sum] => 82 500
[display_total_sum] => 486 420
)
1
486 420₽
Работа:82 500 ₽
Материалы:403 920 ₽
Дни:9
stdClass Object
(
[id] => 152
[attribute_id] => 31
[name] => Электро
[material_modifier] => 1
[work_modifier] => 1
[options] => Array
(
)
[days] => [5]
[material_price] => [6300]
[work_price] => [1500]
[image] => https://akademik-stroy.ru/wp-content/uploads/materials/ehlektricheskij.jpg
[area_modifier] => 30
[parent_name] => Теплые полы
[parent_id] => 31
[material_sum] => 249480
[work_sum] => 49500
[total_sum] => 298980
[total_days] => 5
[display_material_sum] => 249 480
[display_work_sum] => 49 500
[display_total_sum] => 298 980
)
1
298 980₽
Работа:49 500 ₽
Материалы:249 480 ₽
Дни:5
stdClass Object
(
[id] => 63
[attribute_id] => 32
[name] => Нет
[material_modifier] => 1
[work_modifier] => 1
[options] => Array
(
)
[days] => [0]
[material_price] => [0]
[work_price] => [0]
[image] => https://akademik-stroy.ru/wp-content/uploads/materials/shtukaturka-shpatlevka-1.jpg
[area_modifier] => 127.58
[parent_name] => Черновая отделка стен
[parent_id] => 32
[material_sum] => 0
[work_sum] => 0
[total_sum] => 0
[total_days] => 0
[display_material_sum] => 0
[display_work_sum] => 0
[display_total_sum] => 0
)
1
0₽
Работа:0 ₽
Материалы:0 ₽
Дни:0
stdClass Object
(
[id] => 153
[attribute_id] => 32
[name] => Штукатурка и шпатлевка
[material_modifier] => 1
[work_modifier] => 1
[options] => Array
(
)
[days] => [20]
[material_price] => [1850]
[work_price] => [2600]
[image] => https://akademik-stroy.ru/wp-content/uploads/materials/shtukaturka-shpatlevka-1.jpg
[area_modifier] => 127.58
[parent_name] => Черновая отделка стен
[parent_id] => 32
[material_sum] => 311550
[work_sum] => 364879
[total_sum] => 676429
[total_days] => 20
[display_material_sum] => 311 550
[display_work_sum] => 364 879
[display_total_sum] => 676 429
)
1
676 429₽
Работа:364 879 ₽
Материалы:311 550 ₽
Дни:20
stdClass Object
(
[id] => 154
[attribute_id] => 32
[name] => Гипсокортон на стены
[material_modifier] => 1
[work_modifier] => 1
[options] => Array
(
)
[days] => [15]
[material_price] => [950]
[work_price] => [2100]
[image] => https://akademik-stroy.ru/wp-content/uploads/materials/gkl-1.jpg
[area_modifier] => 127.58
[parent_name] => Черновая отделка стен
[parent_id] => 32
[material_sum] => 159985
[work_sum] => 294710
[total_sum] => 454695
[total_days] => 15
[display_material_sum] => 159 985
[display_work_sum] => 294 710
[display_total_sum] => 454 695
)
1
454 695₽
Работа:294 710 ₽
Материалы:159 985 ₽
Дни:15
stdClass Object
(
[id] => 155
[attribute_id] => 32
[name] => Вагонка
[material_modifier] => 1
[work_modifier] => 1
[options] => Array
(
)
[days] => [15]
[material_price] => [1250]
[work_price] => [950]
[image] => https://akademik-stroy.ru/wp-content/uploads/materials/vagonka.jpg
[area_modifier] => 127.58
[parent_name] => Черновая отделка стен
[parent_id] => 32
[material_sum] => 210507
[work_sum] => 133321
[total_sum] => 343828
[total_days] => 15
[display_material_sum] => 210 507
[display_work_sum] => 133 321
[display_total_sum] => 343 828
)
1
343 828₽
Работа:133 321 ₽
Материалы:210 507 ₽
Дни:15
stdClass Object
(
[id] => 65
[attribute_id] => 33
[name] => Нет
[material_modifier] => 1
[work_modifier] => 1
[options] => Array
(
)
[days] => [0]
[material_price] => [0]
[work_price] => [0]
[image] => https://akademik-stroy.ru/wp-content/uploads/materials/styazhka.jpg
[area_modifier] => 127.58
[parent_name] => Черновая отделка полов
[parent_id] => 33
[material_sum] => 0
[work_sum] => 0
[total_sum] => 0
[total_days] => 0
[display_material_sum] => 0
[display_work_sum] => 0
[display_total_sum] => 0
)
1
0₽
Работа:0 ₽
Материалы:0 ₽
Дни:0
stdClass Object
(
[id] => 156
[attribute_id] => 33
[name] => Стяжка + наливные полы
[material_modifier] => 1
[work_modifier] => 1
[options] => Array
(
)
[days] => [10]
[material_price] => [1000]
[work_price] => [900]
[image] => https://akademik-stroy.ru/wp-content/uploads/materials/styazhka.jpg
[area_modifier] => 127.58
[parent_name] => Черновая отделка полов
[parent_id] => 33
[material_sum] => 168406
[work_sum] => 126304
[total_sum] => 294710
[total_days] => 10
[display_material_sum] => 168 406
[display_work_sum] => 126 304
[display_total_sum] => 294 710
)
1
294 710₽
Работа:126 304 ₽
Материалы:168 406 ₽
Дни:10
stdClass Object
(
[id] => 157
[attribute_id] => 33
[name] => ОСБ на пол
[material_modifier] => 1
[work_modifier] => 1
[options] => Array
(
)
[days] => [7]
[material_price] => [580]
[work_price] => [350]
[image] => https://akademik-stroy.ru/wp-content/uploads/materials/osb-1.jpg
[area_modifier] => 127.58
[parent_name] => Черновая отделка полов
[parent_id] => 33
[material_sum] => 97675
[work_sum] => 49118
[total_sum] => 146793
[total_days] => 7
[display_material_sum] => 97 675
[display_work_sum] => 49 118
[display_total_sum] => 146 793
)
1
146 793₽
Работа:49 118 ₽
Материалы:97 675 ₽
Дни:7
stdClass Object
(
[id] => 67
[attribute_id] => 34
[name] => Нет
[material_modifier] => 1
[work_modifier] => 1
[options] => Array
(
)
[days] => [0]
[material_price] => [0]
[work_price] => [0]
[image] => https://akademik-stroy.ru/wp-content/uploads/materials/chistovaya-otdelka.jpg
[area_modifier] => 127.58
[parent_name] => Чистовая отделка стен и полов
[parent_id] => 34
[material_sum] => 0
[work_sum] => 0
[total_sum] => 0
[total_days] => 0
[display_material_sum] => 0
[display_work_sum] => 0
[display_total_sum] => 0
)
1
0₽
Работа:0 ₽
Материалы:0 ₽
Дни:0
stdClass Object
(
[id] => 68
[attribute_id] => 34
[name] => Есть
[material_modifier] => 1
[work_modifier] => 1
[options] => Array
(
)
[days] => [50]
[material_price] => [6000]
[work_price] => [3500]
[image] => https://akademik-stroy.ru/wp-content/uploads/materials/chistovaya-otdelka.jpg
[area_modifier] => 127.58
[parent_name] => Чистовая отделка стен и полов
[parent_id] => 34
[material_sum] => 1010434
[work_sum] => 491183
[total_sum] => 1501617
[total_days] => 50
[display_material_sum] => 1 010 434
[display_work_sum] => 491 183
[display_total_sum] => 1 501 617
)
1
1 501 617₽
Работа:491 183 ₽
Материалы:1 010 434 ₽
Дни:50
stdClass Object
(
[id] => 69
[attribute_id] => 35
[name] => Нет
[material_modifier] => 1
[work_modifier] => 1
[options] => Array
(
)
[days] => [0]
[material_price] => [0]
[work_price] => [0]
[image] => https://akademik-stroy.ru/wp-content/uploads/materials/mnogourovnevyj-gkl.jpg
[area_modifier] => 127.58
[parent_name] => Отделка потолка
[parent_id] => 35
[material_sum] => 0
[work_sum] => 0
[total_sum] => 0
[total_days] => 0
[display_material_sum] => 0
[display_work_sum] => 0
[display_total_sum] => 0
)
1
0₽
Работа:0 ₽
Материалы:0 ₽
Дни:0
stdClass Object
(
[id] => 70
[attribute_id] => 35
[name] => Есть
[material_modifier] => 1
[work_modifier] => 1
[options] => Array
(
[0] => Многоуровневый потолок из гипсокартона
[1] => Многоуровневый потолок из гипсокартона и натяжного потолка
[2] => Одноуровневый потолок из гипсокартона
[3] => Одноуровневый натяжной потолок
)
[days] => [10,10,1,1]
[material_price] => [900,700,700,600]
[work_price] => [1000,800,500,300]
[image] => https://akademik-stroy.ru/wp-content/uploads/materials/mnogourovnevyj-gkl.jpg
[area_modifier] => 127.58
[parent_name] => Отделка потолка
[parent_id] => 35
[material_sum] => 151565
[work_sum] => 140338
[total_sum] => 291903
[total_days] => 10
[display_material_sum] => 151 565
[display_work_sum] => 140 338
[display_total_sum] => 291 903
)
1
291 903₽
Работа:140 338 ₽
Материалы:151 565 ₽
Дни:10
Преимущества работы с нами
7 этапов оплаты
Независимый строительный надзор
Экологически чистые материалы
16 лет гарантии
Онлайн-кабинет с веб-камерой
Строители с опытом более 15 лет
Собственное производство







