Одноэтажный дом 161.73 м2 за руб.

ID-162835

Стоимость дома 8800327 руб.

Планировки

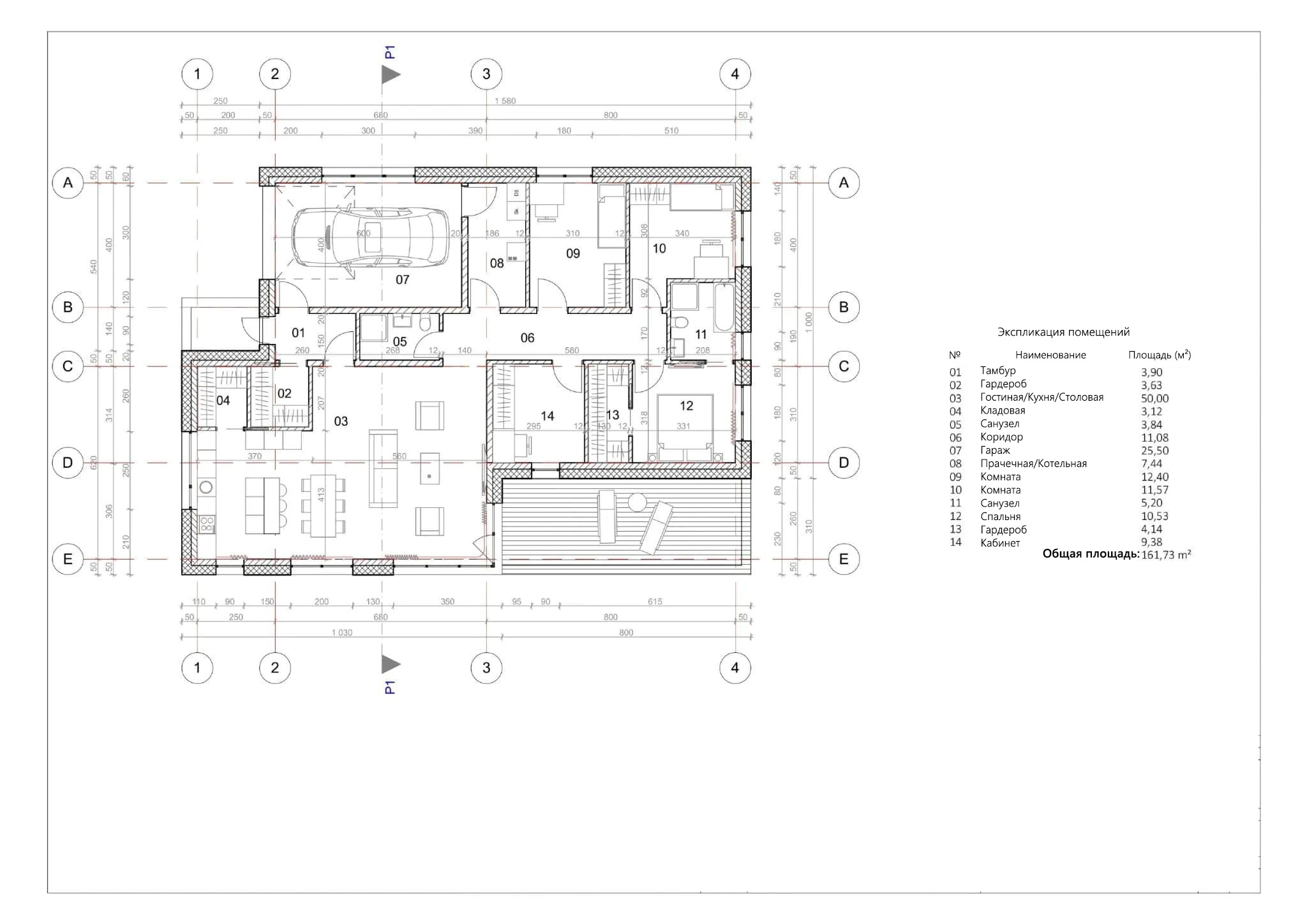
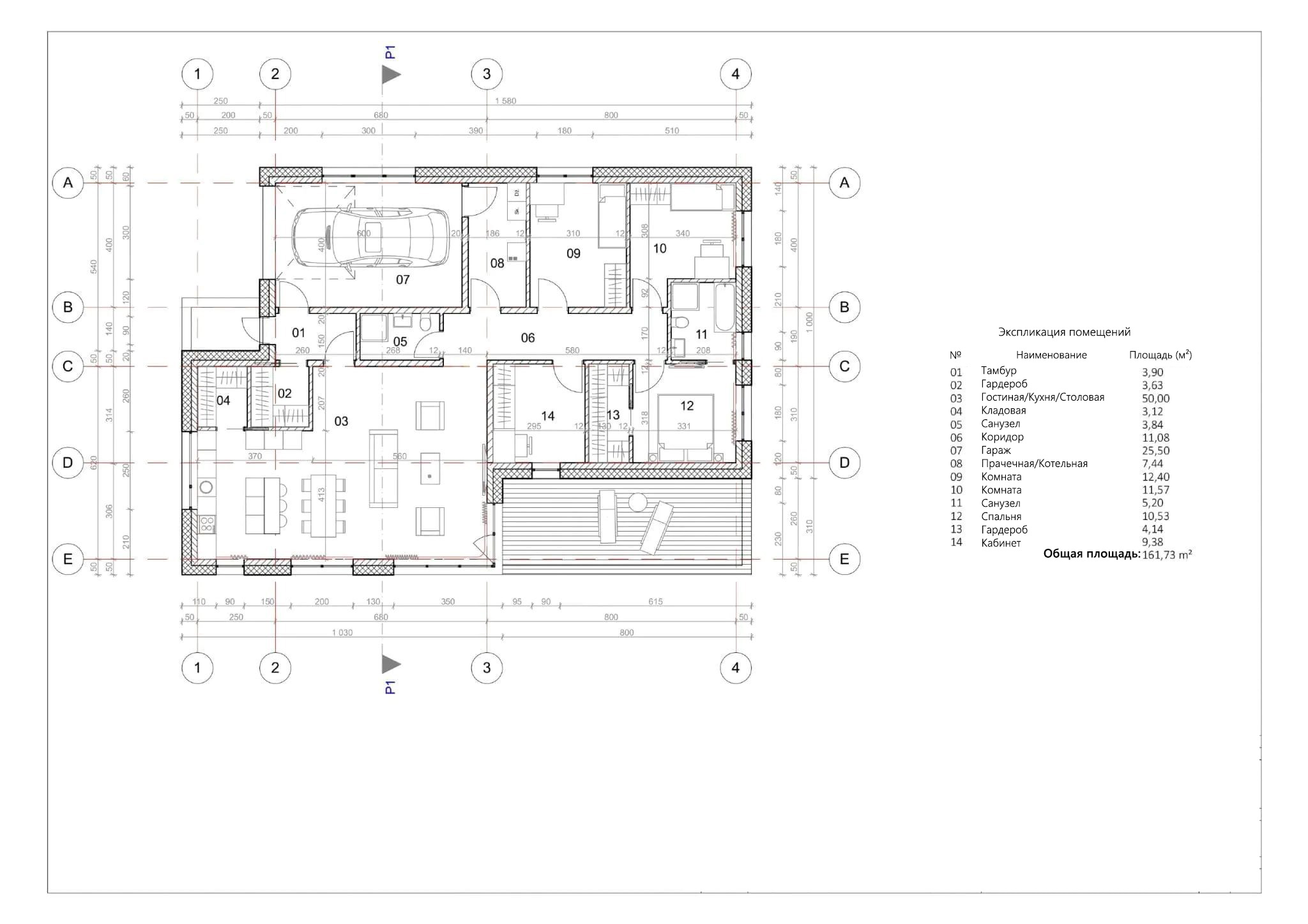
План первого этажа

floor image
  • 1. Тамбур 3,90 м²
  • 2. Гардероб 3,63 м²
  • 3. Гостиная-Столовая-Кухня 50,00 м²
  • 4. Кладовая 3,12 м²
  • 5. Санузел 3,84 м²
  • 6. Гараж 25,50 м²
  • 7. Котельная 7,44 м²
  • 8. Комната 12,40 м²
  • 9. Комната 11,57 м²
  • 10. Санузел 5,20 м²
  • 11. Спальня 10,53 м²
  • 12. Гардероб 4,14 м²
  • 13. Кабинет 9,38 м²
  • Общая площадь первый этаж 161,73 м²

Площади дома

№ п/п Наименование Ед. из. Строительная площадь Полезная площадь
1 1 этаж м2 199.3 161.73
2 Итого м2 199.3 161.73
154 м2 Полезная
площадь
1 этаж Этажей
26 м2 Террасы
и балконы
1Без
гаража
4 Количество
спален
2 Количество
санузлов

Калькулятор опций

0

В ипотеку от 28 101 ₽/мес.

Фундамент
1 091 107
Работа:472 221
Материалы:618 886
Дни:20
655 936
Работа:219 668
Материалы:436 268
Дни:2
1 105 358
Работа:443 722
Материалы:661 636
Дни:20
2 118 200
Работа:945 758
Материалы:1 172 442
Дни:30
3 553 499
Работа:1 306 611
Материалы:2 246 888
Дни:32
1 343 003
Работа:537 333
Материалы:805 670
Дни:20
8 427 202
Работа:3 841 787
Материалы:4 585 415
Дни:30
10 054 326
Работа:4 481 280
Материалы:5 573 046
Дни:40
350 768
Работа:87 692
Материалы:263 076
Дни:1
Перекрытие цоколя
627 875
Работа:269 653
Материалы:358 222
Дни:8
1 005 608
Работа:333 230
Материалы:672 378
Дни:13
1 794 398
Работа:733 982
Материалы:1 060 416
Дни:18
Стены 1 этаж (несущие)
1 761 075
Работа:1 103 385
Материалы:657 690
Дни:29
2 027 220
Работа:1 038 493
Материалы:988 727
Дни:23
3 120 958
Работа:1 915 193
Материалы:1 205 765
Дни:30
2 554 248
Работа:1 119 388
Материалы:1 434 860
Дни:45
4 775 048
Работа:1 053 619
Материалы:3 721 429
Дни:24
1 051 646
Работа:530 098
Материалы:521 548
Дни:15
574 382
Работа:309 114
Материалы:265 268
Дни:7
2 019 985
Работа:702 413
Материалы:1 317 572
Дни:7
2 638 433
Работа:842 939
Материалы:1 795 494
Дни:7
17 326 843
Работа:842 939
Материалы:16 483 904
Дни:7
9 378 878
Работа:1 053 619
Материалы:8 325 259
Дни:7
1 475 198
Работа:351 206
Материалы:1 123 992
Дни:7
1 937 117
Работа:994 866
Материалы:942 251
Дни:29
1 695 964
Работа:1 104 481
Материалы:591 483
Дни:29
1 937 117
Работа:994 866
Материалы:942 251
Дни:29
2 055 939
Работа:1 257 723
Материалы:798 216
Дни:23
2 627 911
Работа:885 032
Материалы:1 742 879
Дни:7
2 979 993
Работа:1 826 405
Материалы:1 153 588
Дни:25
1 077 954
Работа:556 406
Материалы:521 548
Дни:15
9 988 558
Работа:2 107 239
Материалы:7 881 319
Дни:15
1 195 242
Работа:562 106
Материалы:633 136
Дни:15
1 627 563
Работа:923 835
Материалы:703 728
Дни:19
1 717 887
Работа:1 104 481
Материалы:613 406
Дни:29
1 103 385
Работа:579 206
Материалы:524 179
Дни:15
2 027 220
Работа:1 038 493
Материалы:988 727
Дни:23
1 184 280
Работа:460 383
Материалы:723 897
Дни:15
1 517 072
Работа:1 106 235
Материалы:410 837
Дни:7
Перекрытие первого этажа
627 875
Работа:269 653
Материалы:358 222
Дни:8
1 005 608
Работа:333 230
Материалы:672 378
Дни:13
1 794 398
Работа:733 982
Материалы:1 060 416
Дни:18
Плоская крыша
2 681 402
Работа:912 654
Материалы:1 768 748
Дни:10
4 056 194
Работа:1 851 617
Материалы:2 204 577
Дни:10
3 738 310
Работа:1 635 237
Материалы:2 103 073
Дни:10
0
Работа:0
Материалы:0
Дни:0
Окна
351 180
Работа:112 968
Материалы:238 212
Дни:3
0
Работа:0
Материалы:0
Дни:0
Двери входные
17 050
Работа:6 050
Материалы:11 000
Дни:1
0
Работа:0
Материалы:0
Дни:0
Водосточная система
0
Работа:0
Материалы:0
Дни:0
730 694
Работа:326 872
Материалы:403 822
Дни:7
Дополнительное утепление наружных стен
0
Работа:0
Материалы:0
Дни:0
1 263 204
Работа:509 710
Материалы:753 494
Дни:7
446 133
Работа:268 557
Материалы:177 576
Дни:3
1 393 207
Работа:393 518
Материалы:999 689
Дни:5
1 450 645
Работа:393 518
Материалы:1 057 127
Дни:5
786 817
Работа:159 819
Материалы:626 998
Дни:3
2 000 035
Работа:175 384
Материалы:1 824 651
Дни:5
Наружная отделка фасада
0
Работа:0
Материалы:0
Дни:0
962 639
Работа:306 264
Материалы:656 375
Дни:20
1 037 178
Работа:336 957
Материалы:700 221
Дни:20
752 616
Работа:263 514
Материалы:489 102
Дни:35
2 502 291
Работа:710 305
Материалы:1 791 986
Дни:45
1 311 215
Работа:659 225
Материалы:651 990
Дни:40
553 774
Работа:276 887
Материалы:276 887
Дни:20
1 704 732
Работа:710 305
Материалы:994 427
Дни:45
1 875 294
Работа:511 464
Материалы:1 363 830
Дни:20
1 036 958
Работа:426 183
Материалы:610 775
Дни:20
1 278 549
Работа:568 244
Материалы:710 305
Дни:20
1 781 902
Работа:767 086
Материалы:1 014 816
Дни:20
2 200 192
Работа:656 155
Материалы:1 544 037
Дни:20
1 564 206
Работа:568 244
Материалы:995 962
Дни:20
Террасы, крыльца, навесы
0
Работа:0
Материалы:0
Дни:0
409 200
Работа:64 350
Материалы:344 850
Дни:5
Балконы
0
Работа:0
Материалы:0
Дни:0
183 150
Работа:64 350
Материалы:118 800
Дни:12
Отмостка
0
Работа:0
Материалы:0
Дни:0
942 690
Работа:383 653
Материалы:559 037
Дни:15
679 614
Работа:317 884
Материалы:361 730
Дни:10
Дренаж вокруг дома
0
Работа:0
Материалы:0
Дни:0
937 647
Работа:418 949
Материалы:518 698
Дни:5
Автономная канализация (септики)
0
Работа:0
Материалы:0
Дни:0
270 974
Работа:55 000
Материалы:215 974
Дни:7
Внутренние (не несущие) перегородки
0
Работа:0
Материалы:0
Дни:0
210 460
Работа:83 307
Материалы:127 153
Дни:11
355 591
Работа:131 538
Материалы:224 053
Дни:5
407 768
Работа:153 461
Материалы:254 307
Дни:11
588 633
Работа:197 307
Материалы:391 326
Дни:7
Электрика
0
Работа:0
Материалы:0
Дни:0
284 645
Работа:169 008
Материалы:115 637
Дни:10
Сантехника, канализация в доме
0
Работа:0
Материалы:0
Дни:0
236 611
Работа:129 869
Материалы:106 742
Дни:10
Отопление
0
Работа:0
Материалы:0
Дни:0
208 147
Работа:99 626
Материалы:108 521
Дни:5
Теплые полы
0
Работа:0
Материалы:0
Дни:0
419 100
Работа:82 500
Материалы:336 600
Дни:9
257 400
Работа:49 500
Материалы:207 900
Дни:5
Черновая отделка стен
0
Работа:0
Материалы:0
Дни:0
791 669
Работа:462 548
Материалы:329 121
Дни:20
542 604
Работа:373 596
Материалы:169 008
Дни:15
391 387
Работа:169 008
Материалы:222 379
Дни:15
Черновая отделка полов
0
Работа:0
Материалы:0
Дни:0
338 016
Работа:160 113
Материалы:177 903
Дни:10
165 450
Работа:62 266
Материалы:103 184
Дни:7
Чистовая отделка стен и полов
0
Работа:0
Материалы:0
Дни:0
1 690 079
Работа:622 661
Материалы:1 067 418
Дни:50
Отделка потолка
0
Работа:0
Материалы:0
Дни:0
338 016
Работа:177 903
Материалы:160 113
Дни:10

Преимущества работы с нами

icon

7 этапов оплаты

icon

Независимый строительный надзор

icon

Экологически чистые материалы

icon

16 лет гарантии

icon

Онлайн-кабинет с веб-камерой

icon

Строители с опытом более 15 лет

icon

Собственное производство