Одноэтажный дом 20x25 - 166.92 м2 за руб.
Планировки
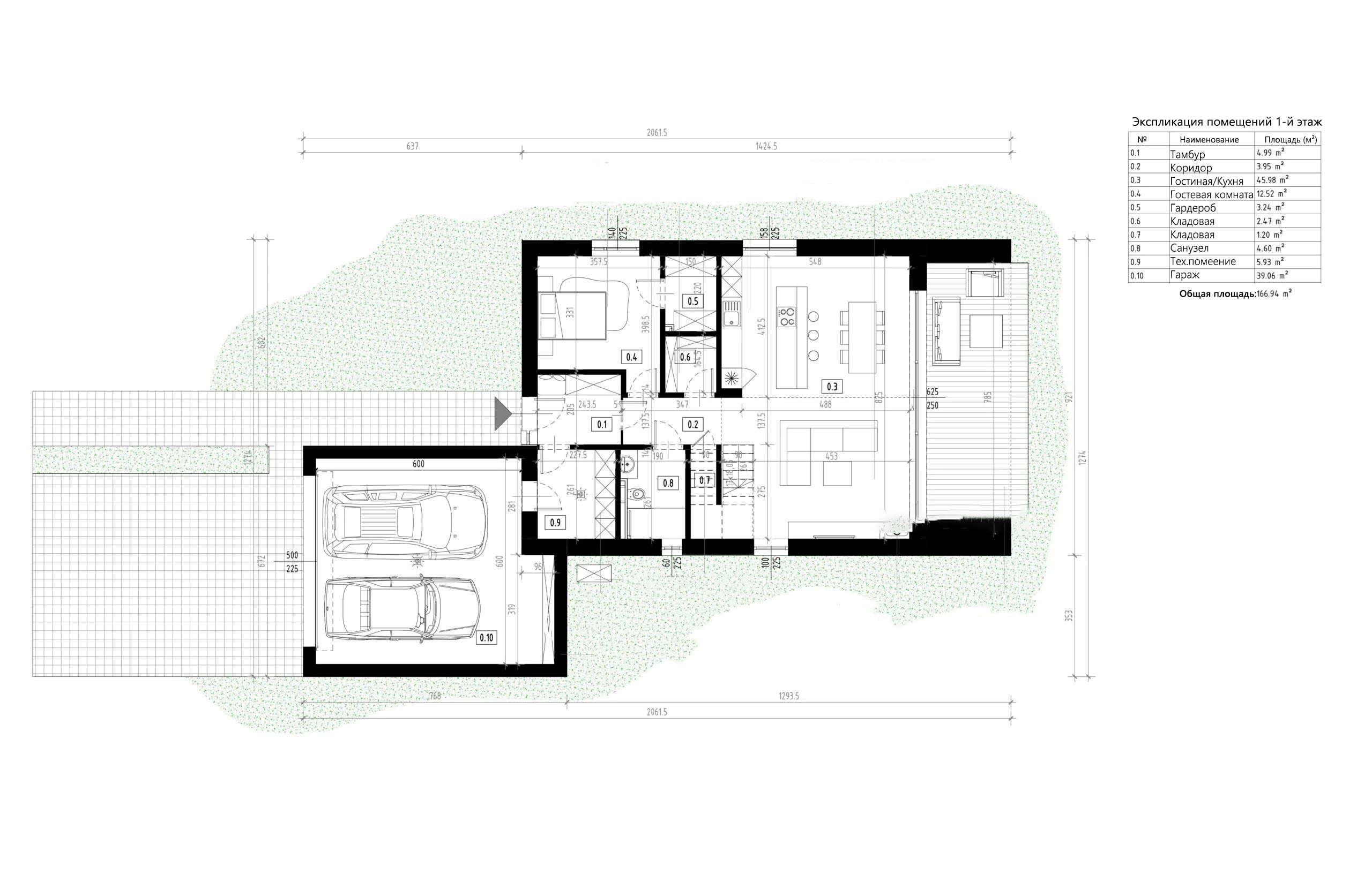
План первого этажа
- 1. Тамбур 4,99 м²
- 2. Коридор 3,95 м²
- 3. Гостиная-Кухня 45,98 м²
- 4. Гостевая комната 12,52 м²
- 5. Гардероб 3,24 м²
- 6. Кладовая 2,47 м²
- 7. Лестн.кладовая 1,20 м²
- 8. Санузел 4,60 м²
- 9. Котельная 5,93 м²
- 10. Гараж 39,06 м²
- Общая площадь первый этаж 123,94 м²
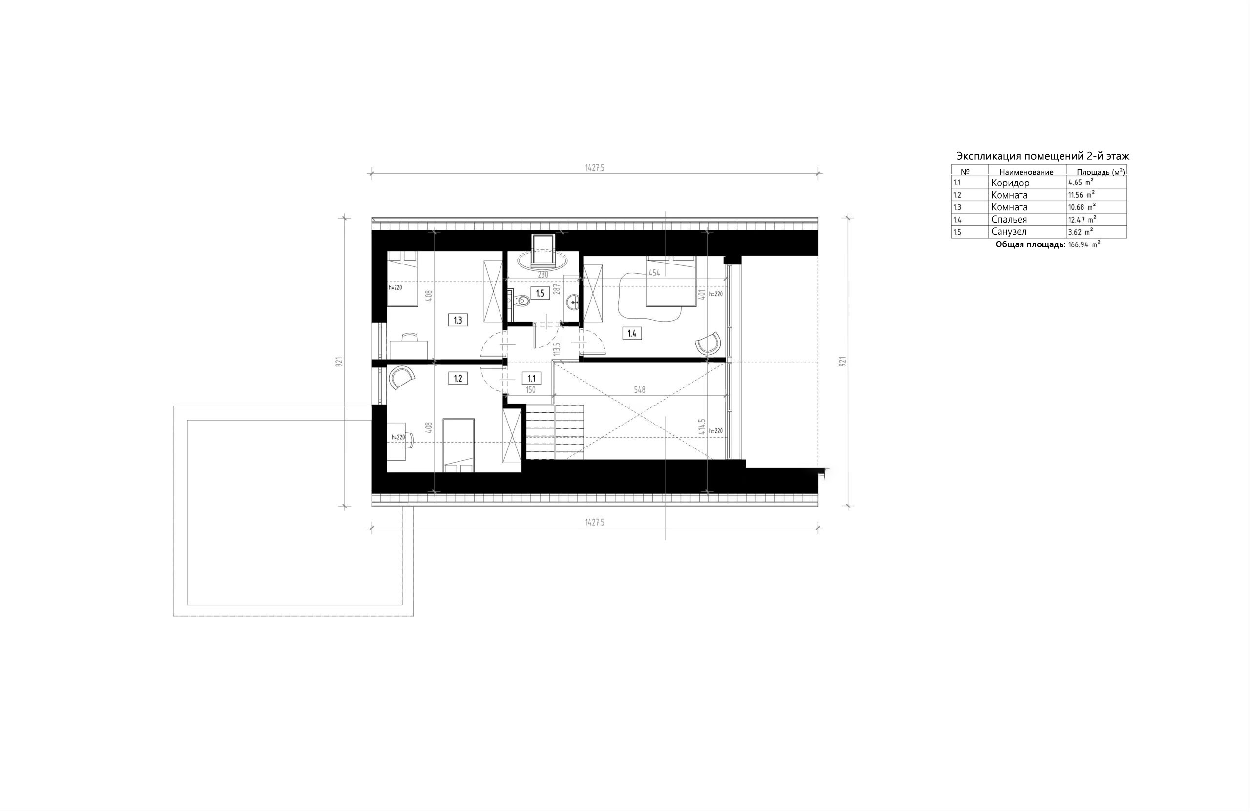
План мансарды
- 1. Коридор 4,65 м²
- 2. Комната 11,56 м²
- 3. Комната 10,68 м²
- 4. Спальня 12,46 м²
- 5. Санузел 3,62 м²
- Общая площадь второй этаж 42,98 м²
Площади дома
| № п/п | Наименование | Ед. из. | Строительная площадь | Полезная площадь |
| 1 | 1 этаж | м2 | 152.73 | 123.94 |
| 2 | 2 этаж | м2 | 52.96 | 42.98 |
| 3 | Итого | м2 | 205.69 | 166.92 |
154 м2
Полезная
площадь
площадь
20 x 25 м
Размеры
1 этаж
Этажей
26 м2
Террасы
и балконы
и балконы
1Без
гаража
гаража
4
Количество
спален
спален
2
Количество
санузлов
санузлов
Калькулятор опций
0₽
В ипотеку от 22 970 ₽/мес.
0₽
0 дней
798 144₽
Работа:345 429 ₽
Материалы:452 715 ₽
Дни:20
479 816₽
Работа:160 687 ₽
Материалы:319 129 ₽
Дни:2
808 568₽
Работа:324 582 ₽
Материалы:483 986 ₽
Дни:20
1 549 461₽
Работа:691 821 ₽
Материалы:857 640 ₽
Дни:30
2 599 380₽
Работа:955 784 ₽
Материалы:1 643 596 ₽
Дни:32
982 405₽
Работа:393 058 ₽
Материалы:589 347 ₽
Дни:20
6 164 489₽
Работа:2 810 263 ₽
Материалы:3 354 226 ₽
Дни:30
7 354 729₽
Работа:3 278 052 ₽
Материалы:4 076 677 ₽
Дни:40
256 587₽
Работа:64 147 ₽
Материалы:192 440 ₽
Дни:1
459 290₽
Работа:197 251 ₽
Материалы:262 039 ₽
Дни:8
735 601₽
Работа:243 757 ₽
Материалы:491 844 ₽
Дни:13
1 312 600₽
Работа:536 907 ₽
Материалы:775 693 ₽
Дни:18
1 288 225₽
Работа:807 125 ₽
Материалы:481 100 ₽
Дни:29
1 482 909₽
Работа:759 656 ₽
Материалы:723 253 ₽
Дни:23
2 282 978₽
Работа:1 400 962 ₽
Материалы:882 016 ₽
Дни:30
1 868 430₽
Работа:818 831 ₽
Материалы:1 049 599 ₽
Дни:45
3 492 942₽
Работа:770 721 ₽
Материалы:2 722 221 ₽
Дни:24
769 278₽
Работа:387 766 ₽
Материалы:381 512 ₽
Дни:15
420 160₽
Работа:226 117 ₽
Материалы:194 043 ₽
Дни:7
1 477 617₽
Работа:513 814 ₽
Материалы:963 803 ₽
Дни:7
1 930 011₽
Работа:616 609 ₽
Материалы:1 313 402 ₽
Дни:7
12 674 566₽
Работа:616 609 ₽
Материалы:12 057 957 ₽
Дни:7
6 860 639₽
Работа:770 721 ₽
Материалы:6 089 918 ₽
Дни:7
1 079 106₽
Работа:256 907 ₽
Материалы:822 199 ₽
Дни:7
1 416 998₽
Работа:727 743 ₽
Материалы:689 255 ₽
Дни:29
1 240 595₽
Работа:807 926 ₽
Материалы:432 669 ₽
Дни:29
1 416 998₽
Работа:727 743 ₽
Материалы:689 255 ₽
Дни:29
1 503 917₽
Работа:920 023 ₽
Материалы:583 894 ₽
Дни:23
1 922 314₽
Работа:647 400 ₽
Материалы:1 274 914 ₽
Дни:7
2 179 862₽
Работа:1 336 013 ₽
Материалы:843 849 ₽
Дни:25
788 522₽
Работа:407 010 ₽
Материалы:381 512 ₽
Дни:15
7 306 619₽
Работа:1 541 443 ₽
Материалы:5 765 176 ₽
Дни:15
874 318₽
Работа:411 180 ₽
Материалы:463 138 ₽
Дни:15
1 190 560₽
Работа:675 784 ₽
Материалы:514 776 ₽
Дни:19
1 256 631₽
Работа:807 926 ₽
Материалы:448 705 ₽
Дни:29
807 124₽
Работа:423 688 ₽
Материалы:383 436 ₽
Дни:15
1 482 909₽
Работа:759 656 ₽
Материалы:723 253 ₽
Дни:23
866 300₽
Работа:336 770 ₽
Материалы:529 530 ₽
Дни:15
1 109 736₽
Работа:809 209 ₽
Материалы:300 527 ₽
Дни:7
459 290₽
Работа:197 251 ₽
Материалы:262 039 ₽
Дни:8
735 601₽
Работа:243 757 ₽
Материалы:491 844 ₽
Дни:13
1 312 600₽
Работа:536 907 ₽
Материалы:775 693 ₽
Дни:18
446 699₽
Работа:279 875 ₽
Материалы:166 824 ₽
Дни:29
514 207₽
Работа:263 415 ₽
Материалы:250 792 ₽
Дни:23
791 635₽
Работа:485 791 ₽
Материалы:305 844 ₽
Дни:30
647 888₽
Работа:283 934 ₽
Материалы:363 954 ₽
Дни:45
1 211 198₽
Работа:267 252 ₽
Материалы:943 946 ₽
Дни:24
266 751₽
Работа:134 460 ₽
Материалы:132 291 ₽
Дни:15
145 693₽
Работа:78 407 ₽
Материалы:67 286 ₽
Дни:7
512 372₽
Работа:178 168 ₽
Материалы:334 204 ₽
Дни:7
669 243₽
Работа:213 813 ₽
Материалы:455 430 ₽
Дни:7
4 394 979₽
Работа:213 813 ₽
Материалы:4 181 166 ₽
Дни:7
1 166 711₽
Работа:267 252 ₽
Материалы:899 459 ₽
Дни:7
374 186₽
Работа:89 084 ₽
Материалы:285 102 ₽
Дни:10
491 352₽
Работа:252 349 ₽
Материалы:239 003 ₽
Дни:29
430 183₽
Работа:280 153 ₽
Материалы:150 030 ₽
Дни:29
491 352₽
Работа:252 349 ₽
Материалы:239 003 ₽
Дни:29
521 492₽
Работа:319 023 ₽
Материалы:202 469 ₽
Дни:23
666 573₽
Работа:224 489 ₽
Материалы:442 084 ₽
Дни:7
755 879₽
Работа:463 270 ₽
Материалы:292 609 ₽
Дни:25
273 424₽
Работа:141 133 ₽
Материалы:132 291 ₽
Дни:15
2 533 612₽
Работа:534 504 ₽
Материалы:1 999 108 ₽
Дни:15
303 175₽
Работа:142 579 ₽
Материалы:160 596 ₽
Дни:15
412 834₽
Работа:234 332 ₽
Материалы:178 502 ₽
Дни:19
435 744₽
Работа:280 153 ₽
Материалы:155 591 ₽
Дни:29
279 875₽
Работа:146 916 ₽
Материалы:132 959 ₽
Дни:15
514 207₽
Работа:263 415 ₽
Материалы:250 792 ₽
Дни:10
300 395₽
Работа:116 777 ₽
Материалы:183 618 ₽
Дни:10
384 807₽
Работа:280 598 ₽
Материалы:104 209 ₽
Дни:7
1 898 419₽
Работа:918 259 ₽
Материалы:980 160 ₽
Дни:20
2 073 539₽
Работа:954 181 ₽
Материалы:1 119 358 ₽
Дни:20
3 209 896₽
Работа:1 516 426 ₽
Материалы:1 693 470 ₽
Дни:20
2 952 508₽
Работа:1 428 064 ₽
Материалы:1 524 444 ₽
Дни:20
3 561 099₽
Работа:1 516 426 ₽
Материалы:2 044 673 ₽
Дни:20
2 684 536₽
Работа:1 313 402 ₽
Материалы:1 371 134 ₽
Дни:20
5 965 634₽
Работа:2 686 139 ₽
Материалы:3 279 495 ₽
Дни:20
5 874 225₽
Работа:2 690 950 ₽
Материалы:3 183 275 ₽
Дни:20
1 154 638₽
Работа:601 374 ₽
Материалы:553 264 ₽
Дни:20
345 975₽
Работа:111 294 ₽
Материалы:234 681 ₽
Дни:3
0₽
Работа:0 ₽
Материалы:0 ₽
Дни:0
16 275₽
Работа:5 775 ₽
Материалы:10 500 ₽
Дни:1
0₽
Работа:0 ₽
Материалы:0 ₽
Дни:0
0₽
Работа:0 ₽
Материалы:0 ₽
Дни:0
289 942₽
Работа:104 238 ₽
Материалы:185 704 ₽
Дни:5
169 027₽
Работа:37 526 ₽
Материалы:131 501 ₽
Дни:3
246 323₽
Работа:62 543 ₽
Материалы:183 780 ₽
Дни:3
138 877₽
Работа:62 543 ₽
Материалы:76 334 ₽
Дни:3
371 088₽
Работа:37 526 ₽
Материалы:333 562 ₽
Дни:2
486 873₽
Работа:62 543 ₽
Материалы:424 330 ₽
Дни:3
0₽
Работа:0 ₽
Материалы:0 ₽
Дни:0
68 649₽
Работа:18 795 ₽
Материалы:49 854 ₽
Дни:6
0₽
Работа:0 ₽
Материалы:0 ₽
Дни:0
534 341₽
Работа:245 200 ₽
Материалы:289 141 ₽
Дни:7
0₽
Работа:0 ₽
Материалы:0 ₽
Дни:0
534 501₽
Работа:239 106 ₽
Материалы:295 395 ₽
Дни:7
0₽
Работа:0 ₽
Материалы:0 ₽
Дни:0
1 244 505₽
Работа:502 165 ₽
Материалы:742 340 ₽
Дни:7
439 530₽
Работа:264 582 ₽
Материалы:174 948 ₽
Дни:3
1 372 585₽
Работа:387 693 ₽
Материалы:984 892 ₽
Дни:5
1 429 173₽
Работа:387 693 ₽
Материалы:1 041 480 ₽
Дни:5
775 170₽
Работа:157 453 ₽
Материалы:617 717 ₽
Дни:3
1 970 431₽
Работа:172 788 ₽
Материалы:1 797 643 ₽
Дни:5
0₽
Работа:0 ₽
Материалы:0 ₽
Дни:0
948 390₽
Работа:301 731 ₽
Материалы:646 659 ₽
Дни:20
1 021 825₽
Работа:331 969 ₽
Материалы:689 856 ₽
Дни:20
741 477₽
Работа:259 614 ₽
Материалы:481 863 ₽
Дни:35
2 465 252₽
Работа:699 791 ₽
Материалы:1 765 461 ₽
Дни:45
1 291 806₽
Работа:649 467 ₽
Материалы:642 339 ₽
Дни:40
545 578₽
Работа:272 789 ₽
Материалы:272 789 ₽
Дни:20
1 679 499₽
Работа:699 791 ₽
Материалы:979 708 ₽
Дни:45
1 847 536₽
Работа:503 893 ₽
Материалы:1 343 643 ₽
Дни:20
1 021 609₽
Работа:419 875 ₽
Материалы:601 734 ₽
Дни:20
1 259 624₽
Работа:559 833 ₽
Материалы:699 791 ₽
Дни:20
1 755 527₽
Работа:755 732 ₽
Материалы:999 795 ₽
Дни:20
2 167 625₽
Работа:646 443 ₽
Материалы:1 521 182 ₽
Дни:20
1 541 053₽
Работа:559 833 ₽
Материалы:981 220 ₽
Дни:20
0₽
Работа:0 ₽
Материалы:0 ₽
Дни:0
390 600₽
Работа:61 425 ₽
Материалы:329 175 ₽
Дни:5
0₽
Работа:0 ₽
Материалы:0 ₽
Дни:0
174 825₽
Работа:61 425 ₽
Материалы:113 400 ₽
Дни:12
0₽
Работа:0 ₽
Материалы:0 ₽
Дни:0
689 576₽
Работа:280 641 ₽
Материалы:408 935 ₽
Дни:15
497 136₽
Работа:232 531 ₽
Материалы:264 605 ₽
Дни:10
0₽
Работа:0 ₽
Материалы:0 ₽
Дни:0
685 887₽
Работа:306 460 ₽
Материалы:379 427 ₽
Дни:5
0₽
Работа:0 ₽
Материалы:0 ₽
Дни:0
258 657₽
Работа:52 500 ₽
Материалы:206 157 ₽
Дни:7
0₽
Работа:0 ₽
Материалы:0 ₽
Дни:0
207 345₽
Работа:82 074 ₽
Материалы:125 271 ₽
Дни:11
350 328₽
Работа:129 591 ₽
Материалы:220 737 ₽
Дни:5
401 733₽
Работа:151 190 ₽
Материалы:250 543 ₽
Дни:11
579 920₽
Работа:194 387 ₽
Материалы:385 533 ₽
Дни:7
0₽
Работа:0 ₽
Материалы:0 ₽
Дни:0
280 426₽
Работа:166 503 ₽
Материалы:113 923 ₽
Дни:10
0₽
Работа:0 ₽
Материалы:0 ₽
Дни:0
233 104₽
Работа:127 944 ₽
Материалы:105 160 ₽
Дни:10
0₽
Работа:0 ₽
Материалы:0 ₽
Дни:0
205 061₽
Работа:98 149 ₽
Материалы:106 912 ₽
Дни:5
0₽
Работа:0 ₽
Материалы:0 ₽
Дни:0
400 050₽
Работа:78 750 ₽
Материалы:321 300 ₽
Дни:9
245 700₽
Работа:47 250 ₽
Материалы:198 450 ₽
Дни:5
0₽
Работа:0 ₽
Материалы:0 ₽
Дни:0
779 934₽
Работа:455 692 ₽
Материалы:324 242 ₽
Дни:20
534 562₽
Работа:368 059 ₽
Материалы:166 503 ₽
Дни:15
385 586₽
Работа:166 503 ₽
Материалы:219 083 ₽
Дни:15
0₽
Работа:0 ₽
Материалы:0 ₽
Дни:0
333 005₽
Работа:157 739 ₽
Материалы:175 266 ₽
Дни:10
162 997₽
Работа:61 343 ₽
Материалы:101 654 ₽
Дни:7
0₽
Работа:0 ₽
Материалы:0 ₽
Дни:0
1 665 027₽
Работа:613 431 ₽
Материалы:1 051 596 ₽
Дни:50
0₽
Работа:0 ₽
Материалы:0 ₽
Дни:0
333 005₽
Работа:175 266 ₽
Материалы:157 739 ₽
Дни:10
Преимущества работы с нами
7 этапов оплаты
Независимый строительный надзор
Экологически чистые материалы
16 лет гарантии
Онлайн-кабинет с веб-камерой
Строители с опытом более 15 лет
Собственное производство
















