Одноэтажный дом 18x17 - 218.44 м2 за руб.
Планировки
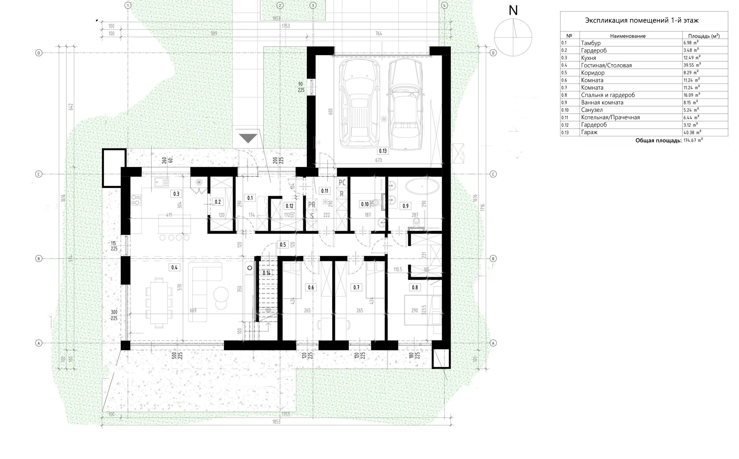
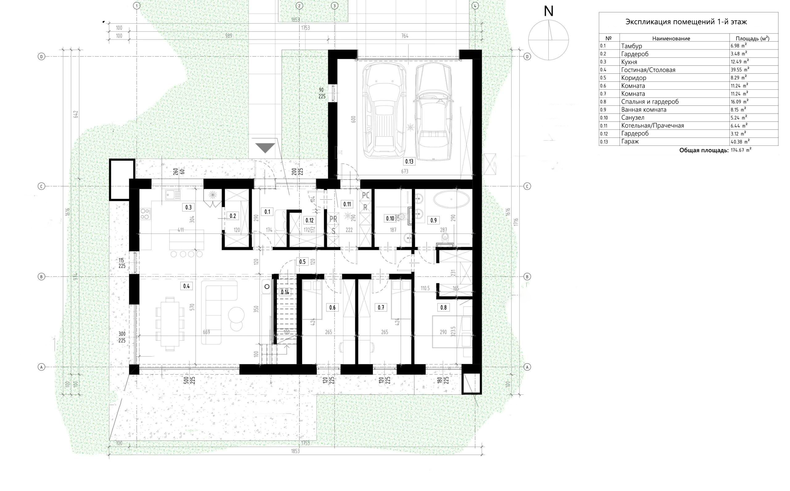
План первого этажа
- 1. Тамбур 6,98 м²
- 2. Гардероб 3,48 м²
- 3. Кухня 12,49 м²
- 4. Гостиная-Столовая 39,55 м²
- 5. Коридор 8,29 м²
- 6. Комната 11,24 м²
- 7. Комната 11,24 м²
- 8. Спальня+Гардероб 16,09 м²
- 9. Ванная комната 8,15 м²
- 10. Санузел 5,24 м²
- 11. Котельная-Прачечная 6,44 м²
- 12. Гардероб 3,12 м²
- 13. Гараж 40,38 м²
- Общая площадь первый этаж 172,69 м²
План мансарды
- 1. Мансарда 45,75 м²
- Общая площадь мансарда 45,75 м²
Площади дома
| № п/п | Наименование | Ед. из. | Строительная площадь | Полезная площадь |
| 1 | 1 этаж | м2 | 212.81 | 172.69 |
| 2 | 2 этаж | м2 | 56.38 | 45.75 |
| 3 | Итого | м2 | 269.19 | 218.44 |
154 м2
Полезная
площадь
площадь
18 x 17 м
Размеры
1 этаж
Этажей
26 м2
Террасы
и балконы
и балконы
1Без
гаража
гаража
4
Количество
спален
спален
2
Количество
санузлов
санузлов
Калькулятор опций
0₽
В ипотеку от 30 477 ₽/мес.
0₽
0 дней
1 112 113₽
Работа:481 312 ₽
Материалы:630 801 ₽
Дни:20
668 563₽
Работа:223 897 ₽
Материалы:444 666 ₽
Дни:2
1 126 638₽
Работа:452 264 ₽
Материалы:674 374 ₽
Дни:20
2 158 978₽
Работа:963 965 ₽
Материалы:1 195 013 ₽
Дни:30
3 621 909₽
Работа:1 331 765 ₽
Материалы:2 290 144 ₽
Дни:32
1 368 858₽
Работа:547 677 ₽
Материалы:821 181 ₽
Дни:20
8 589 438₽
Работа:3 915 747 ₽
Материалы:4 673 691 ₽
Дни:30
10 247 887₽
Работа:4 567 552 ₽
Материалы:5 680 335 ₽
Дни:40
357 521₽
Работа:89 380 ₽
Материалы:268 141 ₽
Дни:1
639 962₽
Работа:274 844 ₽
Материалы:365 118 ₽
Дни:8
1 024 968₽
Работа:339 645 ₽
Материалы:685 323 ₽
Дни:13
1 828 942₽
Работа:748 112 ₽
Материалы:1 080 830 ₽
Дни:18
1 794 978₽
Работа:1 124 626 ₽
Материалы:670 352 ₽
Дни:29
2 066 247₽
Работа:1 058 485 ₽
Материалы:1 007 762 ₽
Дни:23
3 181 042₽
Работа:1 952 064 ₽
Материалы:1 228 978 ₽
Дни:30
2 603 422₽
Работа:1 140 938 ₽
Материалы:1 462 484 ₽
Дни:45
4 866 975₽
Работа:1 073 903 ₽
Материалы:3 793 072 ₽
Дни:24
1 071 892₽
Работа:540 303 ₽
Материалы:531 589 ₽
Дни:15
585 440₽
Работа:315 065 ₽
Материалы:270 375 ₽
Дни:7
2 058 873₽
Работа:715 935 ₽
Материалы:1 342 938 ₽
Дни:7
2 689 227₽
Работа:859 167 ₽
Материалы:1 830 060 ₽
Дни:7
17 660 410₽
Работа:859 167 ₽
Материалы:16 801 243 ₽
Дни:7
9 559 436₽
Работа:1 073 903 ₽
Материалы:8 485 533 ₽
Дни:7
1 503 599₽
Работа:357 968 ₽
Материалы:1 145 631 ₽
Дни:7
1 974 408₽
Работа:1 014 018 ₽
Материалы:960 390 ₽
Дни:29
1 728 613₽
Работа:1 125 744 ₽
Материалы:602 869 ₽
Дни:29
1 974 408₽
Работа:1 014 018 ₽
Материалы:960 390 ₽
Дни:29
2 095 519₽
Работа:1 281 936 ₽
Материалы:813 583 ₽
Дни:23
2 678 501₽
Работа:902 070 ₽
Материалы:1 776 431 ₽
Дни:7
3 037 363₽
Работа:1 861 566 ₽
Материалы:1 175 797 ₽
Дни:25
1 098 706₽
Работа:567 117 ₽
Материалы:531 589 ₽
Дни:15
10 180 851₽
Работа:2 147 806 ₽
Материалы:8 033 045 ₽
Дни:15
1 218 252₽
Работа:572 927 ₽
Материалы:645 325 ₽
Дни:15
1 658 896₽
Работа:941 620 ₽
Материалы:717 276 ₽
Дни:19
1 750 958₽
Работа:1 125 744 ₽
Материалы:625 214 ₽
Дни:29
1 124 626₽
Работа:590 356 ₽
Материалы:534 270 ₽
Дни:15
2 066 247₽
Работа:1 058 485 ₽
Материалы:1 007 762 ₽
Дни:23
1 207 080₽
Работа:469 246 ₽
Материалы:737 834 ₽
Дни:15
1 546 277₽
Работа:1 127 531 ₽
Материалы:418 746 ₽
Дни:7
639 962₽
Работа:274 844 ₽
Материалы:365 118 ₽
Дни:8
1 024 968₽
Работа:339 645 ₽
Материалы:685 323 ₽
Дни:13
1 828 942₽
Работа:748 112 ₽
Материалы:1 080 830 ₽
Дни:18
475 546₽
Работа:297 949 ₽
Материалы:177 597 ₽
Дни:29
547 413₽
Работа:280 426 ₽
Материалы:266 987 ₽
Дни:23
842 757₽
Работа:517 162 ₽
Материалы:325 595 ₽
Дни:30
689 727₽
Работа:302 270 ₽
Материалы:387 457 ₽
Дни:45
1 289 413₽
Работа:284 510 ₽
Материалы:1 004 903 ₽
Дни:24
283 977₽
Работа:143 143 ₽
Материалы:140 834 ₽
Дни:15
155 102₽
Работа:83 471 ₽
Материалы:71 631 ₽
Дни:7
545 460₽
Работа:189 674 ₽
Материалы:355 786 ₽
Дни:7
712 460₽
Работа:227 620 ₽
Материалы:484 840 ₽
Дни:7
4 678 793₽
Работа:227 620 ₽
Материалы:4 451 173 ₽
Дни:7
1 242 054₽
Работа:284 510 ₽
Материалы:957 544 ₽
Дни:7
398 350₽
Работа:94 837 ₽
Материалы:303 513 ₽
Дни:10
523 082₽
Работа:268 645 ₽
Материалы:254 437 ₽
Дни:29
457 964₽
Работа:298 245 ₽
Материалы:159 719 ₽
Дни:29
523 082₽
Работа:268 645 ₽
Материалы:254 437 ₽
Дни:29
555 169₽
Работа:339 625 ₽
Материалы:215 544 ₽
Дни:23
709 618₽
Работа:238 986 ₽
Материалы:470 632 ₽
Дни:7
804 692₽
Работа:493 187 ₽
Материалы:311 505 ₽
Дни:25
291 081₽
Работа:150 247 ₽
Материалы:140 834 ₽
Дни:15
2 697 225₽
Работа:569 021 ₽
Материалы:2 128 204 ₽
Дни:15
322 753₽
Работа:151 786 ₽
Материалы:170 967 ₽
Дни:15
439 494₽
Работа:249 465 ₽
Материалы:190 029 ₽
Дни:19
463 884₽
Работа:298 245 ₽
Материалы:165 639 ₽
Дни:29
297 949₽
Работа:156 404 ₽
Материалы:141 545 ₽
Дни:15
547 413₽
Работа:280 426 ₽
Материалы:266 987 ₽
Дни:10
319 793₽
Работа:124 318 ₽
Материалы:195 475 ₽
Дни:10
409 657₽
Работа:298 718 ₽
Материалы:110 939 ₽
Дни:7
2 645 207₽
Работа:1 279 478 ₽
Материалы:1 365 729 ₽
Дни:20
2 889 214₽
Работа:1 329 530 ₽
Материалы:1 559 684 ₽
Дни:20
4 472 585₽
Работа:2 112 948 ₽
Материалы:2 359 637 ₽
Дни:20
4 113 947₽
Работа:1 989 827 ₽
Материалы:2 124 120 ₽
Дни:20
4 961 942₽
Работа:2 112 948 ₽
Материалы:2 848 994 ₽
Дни:20
3 740 562₽
Работа:1 830 060 ₽
Материалы:1 910 502 ₽
Дни:20
8 312 359₽
Работа:3 742 796 ₽
Материалы:4 569 563 ₽
Дни:20
8 184 991₽
Работа:3 749 499 ₽
Материалы:4 435 492 ₽
Дни:20
1 608 843₽
Работа:837 939 ₽
Материалы:770 904 ₽
Дни:20
452 761₽
Работа:145 645 ₽
Материалы:307 116 ₽
Дни:3
0₽
Работа:0 ₽
Материалы:0 ₽
Дни:0
16 275₽
Работа:5 775 ₽
Материалы:10 500 ₽
Дни:1
0₽
Работа:0 ₽
Материалы:0 ₽
Дни:0
0₽
Работа:0 ₽
Материалы:0 ₽
Дни:0
403 999₽
Работа:145 243 ₽
Материалы:258 756 ₽
Дни:5
235 516₽
Работа:52 287 ₽
Материалы:183 229 ₽
Дни:3
343 220₽
Работа:87 146 ₽
Материалы:256 074 ₽
Дни:3
193 508₽
Работа:87 146 ₽
Материалы:106 362 ₽
Дни:3
517 064₽
Работа:52 287 ₽
Материалы:464 777 ₽
Дни:2
678 396₽
Работа:87 146 ₽
Материалы:591 250 ₽
Дни:3
0₽
Работа:0 ₽
Материалы:0 ₽
Дни:0
68 649₽
Работа:18 795 ₽
Материалы:49 854 ₽
Дни:6
0₽
Работа:0 ₽
Материалы:0 ₽
Дни:0
744 537₽
Работа:341 656 ₽
Материалы:402 881 ₽
Дни:7
0₽
Работа:0 ₽
Материалы:0 ₽
Дни:0
744 761₽
Работа:333 165 ₽
Материалы:411 596 ₽
Дни:7
0₽
Работа:0 ₽
Материалы:0 ₽
Дни:0
1 628 566₽
Работа:657 136 ₽
Материалы:971 430 ₽
Дни:7
575 171₽
Работа:346 233 ₽
Материалы:228 938 ₽
Дни:3
1 796 171₽
Работа:507 337 ₽
Материалы:1 288 834 ₽
Дни:5
1 870 222₽
Работа:507 337 ₽
Материалы:1 362 885 ₽
Дни:5
1 014 392₽
Работа:206 044 ₽
Материалы:808 348 ₽
Дни:3
2 578 515₽
Работа:226 111 ₽
Материалы:2 352 404 ₽
Дни:5
0₽
Работа:0 ₽
Материалы:0 ₽
Дни:0
1 241 068₽
Работа:394 847 ₽
Материалы:846 221 ₽
Дни:20
1 337 165₽
Работа:434 416 ₽
Материалы:902 749 ₽
Дни:20
970 300₽
Работа:339 732 ₽
Материалы:630 568 ₽
Дни:35
3 226 041₽
Работа:915 750 ₽
Материалы:2 310 291 ₽
Дни:45
1 690 463₽
Работа:849 895 ₽
Материалы:840 568 ₽
Дни:40
713 946₽
Работа:356 973 ₽
Материалы:356 973 ₽
Дни:20
2 197 801₽
Работа:915 750 ₽
Материалы:1 282 051 ₽
Дни:45
2 417 694₽
Работа:659 397 ₽
Материалы:1 758 297 ₽
Дни:20
1 336 882₽
Работа:549 450 ₽
Материалы:787 432 ₽
Дни:20
1 648 350₽
Работа:732 600 ₽
Материалы:915 750 ₽
Дни:20
2 297 290₽
Работа:988 954 ₽
Материалы:1 308 336 ₽
Дни:20
2 836 565₽
Работа:845 939 ₽
Материалы:1 990 626 ₽
Дни:20
2 016 629₽
Работа:732 600 ₽
Материалы:1 284 029 ₽
Дни:20
0₽
Работа:0 ₽
Материалы:0 ₽
Дни:0
390 600₽
Работа:61 425 ₽
Материалы:329 175 ₽
Дни:5
0₽
Работа:0 ₽
Материалы:0 ₽
Дни:0
174 825₽
Работа:61 425 ₽
Материалы:113 400 ₽
Дни:12
0₽
Работа:0 ₽
Материалы:0 ₽
Дни:0
960 837₽
Работа:391 038 ₽
Материалы:569 799 ₽
Дни:15
692 696₽
Работа:324 003 ₽
Материалы:368 693 ₽
Дни:10
0₽
Работа:0 ₽
Материалы:0 ₽
Дни:0
955 698₽
Работа:427 014 ₽
Материалы:528 684 ₽
Дни:5
0₽
Работа:0 ₽
Материалы:0 ₽
Дни:0
258 657₽
Работа:52 500 ₽
Материалы:206 157 ₽
Дни:7
0₽
Работа:0 ₽
Материалы:0 ₽
Дни:0
271 334₽
Работа:107 403 ₽
Материалы:163 931 ₽
Дни:11
458 440₽
Работа:169 583 ₽
Материалы:288 857 ₽
Дни:5
525 708₽
Работа:197 847 ₽
Материалы:327 861 ₽
Дни:11
758 886₽
Работа:254 375 ₽
Материалы:504 511 ₽
Дни:7
0₽
Работа:0 ₽
Материалы:0 ₽
Дни:0
366 979₽
Работа:217 894 ₽
Материалы:149 085 ₽
Дни:10
0₽
Работа:0 ₽
Материалы:0 ₽
Дни:0
305 051₽
Работа:167 434 ₽
Материалы:137 617 ₽
Дни:10
0₽
Работа:0 ₽
Материалы:0 ₽
Дни:0
268 354₽
Работа:128 443 ₽
Материалы:139 911 ₽
Дни:5
0₽
Работа:0 ₽
Материалы:0 ₽
Дни:0
400 050₽
Работа:78 750 ₽
Материалы:321 300 ₽
Дни:9
245 700₽
Работа:47 250 ₽
Материалы:198 450 ₽
Дни:5
0₽
Работа:0 ₽
Материалы:0 ₽
Дни:0
1 020 661₽
Работа:596 341 ₽
Материалы:424 320 ₽
Дни:20
699 554₽
Работа:481 660 ₽
Материалы:217 894 ₽
Дни:15
504 597₽
Работа:217 894 ₽
Материалы:286 703 ₽
Дни:15
0₽
Работа:0 ₽
Материалы:0 ₽
Дни:0
435 788₽
Работа:206 426 ₽
Материалы:229 362 ₽
Дни:10
213 307₽
Работа:80 277 ₽
Материалы:133 030 ₽
Дни:7
0₽
Работа:0 ₽
Материалы:0 ₽
Дни:0
2 178 939₽
Работа:802 767 ₽
Материалы:1 376 172 ₽
Дни:50
0₽
Работа:0 ₽
Материалы:0 ₽
Дни:0
435 788₽
Работа:229 362 ₽
Материалы:206 426 ₽
Дни:10
Преимущества работы с нами
7 этапов оплаты
Независимый строительный надзор
Экологически чистые материалы
16 лет гарантии
Онлайн-кабинет с веб-камерой
Строители с опытом более 15 лет
Собственное производство
















