Одноэтажный дом 16x17 - 205.59 м2 за руб.
Планировки
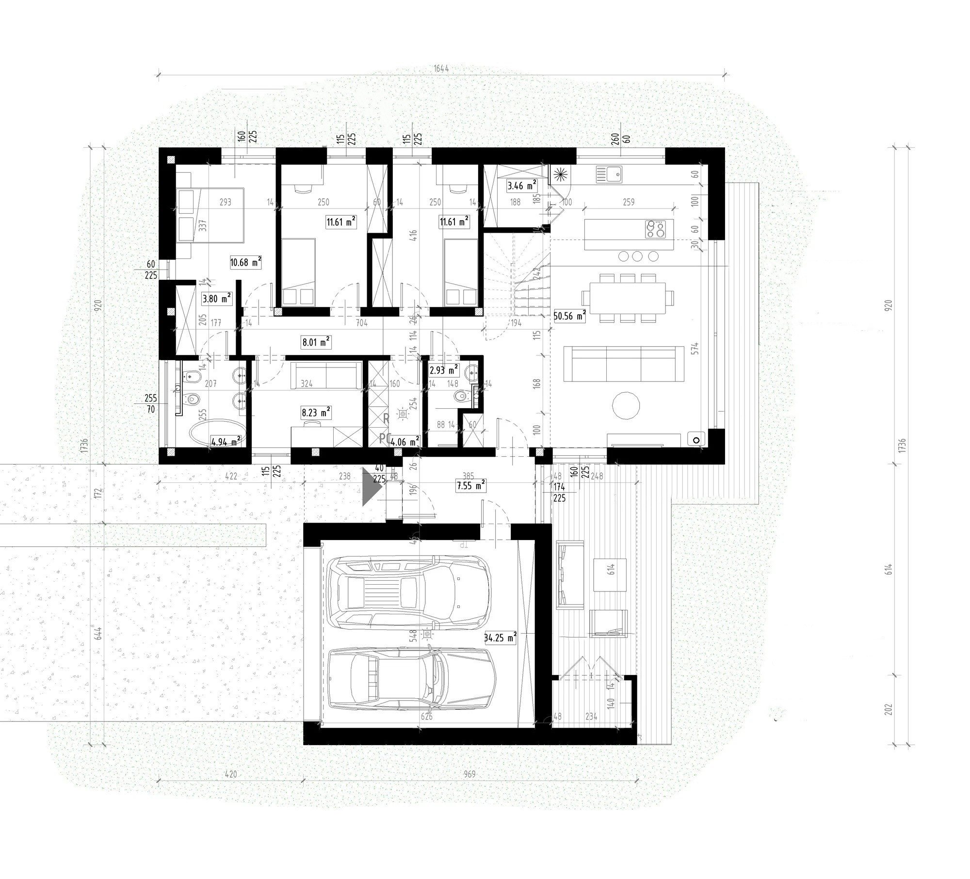
План первого этажа
- 1. Тамбур 7,55 м²
- 2. Кухня-Гостиная-Столовая 50,56 м²
- 3. Кладовая 3,46 м²
- 4. Комната 11,61 м²
- 5. Комната 11,61 м²
- 6. Коридор 2,93 м²
- 7. Котельная 4,06 м²
- 8. Кабинет 8,23 м²
- 9. Спальня 10,68 м²
- 10. Гардероб 3,80 м²
- 11. Ванная комната 4,94 м²
- 12. Гараж 34,25 м²
- Общая площадь первый этаж 161,69 м²
План мансарды
- 1. Мансарда 43,10 м²
- Общая площадь мансарда 43,90 м²
Площади дома
| № п/п | Наименование | Ед. из. | Строительная площадь | Полезная площадь |
| 1 | 1 этаж | м2 | 199.25 | 161.69 |
| 2 | 2 этаж | м2 | 54.1 | 43.9 |
| 3 | Итого | м2 | 253.35 | 205.59 |
154 м2
Полезная
площадь
площадь
16 x 17 м
Размеры
1 этаж
Этажей
26 м2
Террасы
и балконы
и балконы
1Без
гаража
гаража
4
Количество
спален
спален
2
Количество
санузлов
санузлов
Калькулятор опций
0₽
В ипотеку от 26 648 ₽/мес.
0₽
0 дней
stdClass Object
(
[id] => 1
[attribute_id] => 1
[name] => Ленточный монолитный ж/б
[material_modifier] => 1
[work_modifier] => 1
[options] => Array
(
[0] => размер 200 х 700 мм
[1] => размер 300 х 900 мм
[2] => размер 400 х 1 000 мм
[3] => размер 500 х 1 100 мм
[4] => размер 600 х 1 200 мм
)
[days] => [20,21,22,25,30]
[material_price] => [2823,3630,4475,5210,12047]
[work_price] => [2154,2826,3731,4577,5293]
[image] => https://akademik-stroy.ru/wp-content/uploads/materials/lentochnyj-monolitnyj-zh-b.jpg
[area_modifier] => 199.25
[parent_name] => Фундамент
[parent_id] => 1
[material_sum] => 708728
[work_sum] => 450644
[total_sum] => 1159372
[total_days] => 20
[display_material_sum] => 708 728
[display_work_sum] => 450 644
[display_total_sum] => 1 159 372
)
1
1 159 372₽
Работа:450 644 ₽
Материалы:708 728 ₽
Дни:20
stdClass Object
(
[id] => 2
[attribute_id] => 1
[name] => Забивные Ж/Б сваи
[material_modifier] => 1
[work_modifier] => 1
[options] => Array
(
[0] => 150х150х3000мм
[1] => 150х150х4000мм
[2] => 200х200х3000мм
[3] => 200х200х4000мм
[4] => 200х200х5000мм
[5] => 200х200х6000мм
)
[days] => [2,2,2,2,2,2]
[material_price] => [1990,2850,3255,4360,5120,6837]
[work_price] => [1002,1185,1336,1438,1574,1839]
[image] => https://akademik-stroy.ru/wp-content/uploads/materials/zabivnye-zh-b-svai.png
[area_modifier] => 199.25
[parent_name] => Фундамент
[parent_id] => 1
[material_sum] => 499599
[work_sum] => 209631
[total_sum] => 709230
[total_days] => 2
[display_material_sum] => 499 599
[display_work_sum] => 209 631
[display_total_sum] => 709 230
)
1
709 230₽
Работа:209 631 ₽
Материалы:499 599 ₽
Дни:2
stdClass Object
(
[id] => 71
[attribute_id] => 1
[name] => Свайно-ростверковый ж/б
[material_modifier] => 1
[work_modifier] => 1
[options] => Array
(
[0] => ростверк 200х300 мм
[1] => ростверк 300х600 мм
[2] => ростверк 400х900 мм
[3] => ростверк 500х1200 мм
)
[days] => [20,23,25,27]
[material_price] => [3018,3474,7109,9792]
[work_price] => [2024,3012,5635,7022]
[image] => https://akademik-stroy.ru/wp-content/uploads/materials/svajno-rostverkovyj-monolitnyj-zh-b-3.png
[area_modifier] => 199.25
[parent_name] => Фундамент
[parent_id] => 1
[material_sum] => 757684
[work_sum] => 423446
[total_sum] => 1181130
[total_days] => 20
[display_material_sum] => 757 684
[display_work_sum] => 423 446
[display_total_sum] => 1 181 130
)
1
1 181 130₽
Работа:423 446 ₽
Материалы:757 684 ₽
Дни:20
stdClass Object
(
[id] => 72
[attribute_id] => 1
[name] => Монолитная ж/б плита
[material_modifier] => 1
[work_modifier] => 1
[options] => Array
(
[0] => 200 мм
[1] => 300 мм
[2] => 400 мм
[3] => 500 мм
[4] => 600 мм
)
[days] => [30,33,35,37,40]
[material_price] => [5348,8555,12788,14388,15189]
[work_price] => [4314,4881,7037,8061,10230]
[image] => https://akademik-stroy.ru/wp-content/uploads/materials/monolitnaya-zhb-plita.png
[area_modifier] => 199.25
[parent_name] => Фундамент
[parent_id] => 1
[material_sum] => 1342642
[work_sum] => 902543
[total_sum] => 2245185
[total_days] => 30
[display_material_sum] => 1 342 642
[display_work_sum] => 902 543
[display_total_sum] => 2 245 185
)
1
2 245 185₽
Работа:902 543 ₽
Материалы:1 342 642 ₽
Дни:30
stdClass Object
(
[id] => 73
[attribute_id] => 1
[name] => Утепленная шведская плита
[material_modifier] => 1
[work_modifier] => 1
[options] => Array
(
[0] => 200 мм
[1] => 300 мм
[2] => 400 мм
[3] => 500 мм
[4] => 600 мм
)
[days] => [32,37,39,42,45]
[material_price] => [10249,12692,13760,14936,16230]
[work_price] => [5960,7337,8072,8878,9765]
[image] => https://akademik-stroy.ru/wp-content/uploads/materials/uteplennaya-shvedskaya-plita.jpg
[area_modifier] => 199.25
[parent_name] => Фундамент
[parent_id] => 1
[material_sum] => 2573063
[work_sum] => 1246907
[total_sum] => 3819970
[total_days] => 32
[display_material_sum] => 2 573 063
[display_work_sum] => 1 246 907
[display_total_sum] => 3 819 970
)
1
3 819 970₽
Работа:1 246 907 ₽
Материалы:2 573 063 ₽
Дни:32
stdClass Object
(
[id] => 75
[attribute_id] => 1
[name] => Ленточный из ФБС
[material_modifier] => 1
[work_modifier] => 1
[options] => Array
(
[0] => толщ. 300 мм
[1] => толщ. 400 мм
[2] => толщ. 500 мм
[3] => толщ. 600 мм
)
[days] => [20,20,20,20]
[material_price] => [3675,4902,6126,7350]
[work_price] => [2451,3264,4083,4902]
[image] => https://akademik-stroy.ru/wp-content/uploads/materials/lentochnyj-iz-fbs.png
[area_modifier] => 199.25
[parent_name] => Фундамент
[parent_id] => 1
[material_sum] => 922627
[work_sum] => 512780
[total_sum] => 1435407
[total_days] => 20
[display_material_sum] => 922 627
[display_work_sum] => 512 780
[display_total_sum] => 1 435 407
)
1
1 435 407₽
Работа:512 780 ₽
Материалы:922 627 ₽
Дни:20
stdClass Object
(
[id] => 76
[attribute_id] => 1
[name] => Цокольный этаж из ФБС
[material_modifier] => 1
[work_modifier] => 1
[options] => Array
(
[0] => толщ. 300 мм
[1] => толщ. 400 мм
[2] => толщ. 500 мм
[3] => толщ. 600 мм
)
[days] => [30,32,34,36]
[material_price] => [20916,23299,26680,29060]
[work_price] => [17524,18700,19873,21046]
[image] => https://akademik-stroy.ru/wp-content/uploads/materials/cokolnyj-ehtazh-iz-fbs.jpg
[area_modifier] => 199.25
[parent_name] => Фундамент
[parent_id] => 1
[material_sum] => 5251066
[work_sum] => 3666240
[total_sum] => 8917306
[total_days] => 30
[display_material_sum] => 5 251 066
[display_work_sum] => 3 666 240
[display_total_sum] => 8 917 306
)
1
8 917 306₽
Работа:3 666 240 ₽
Материалы:5 251 066 ₽
Дни:30
stdClass Object
(
[id] => 77
[attribute_id] => 1
[name] => Цокольный этаж монолитный ж/б
[material_modifier] => 1
[work_modifier] => 1
[options] => Array
(
[0] => толщ. 200 мм
[1] => толщ. 300 мм
[2] => толщ. 400 мм
[3] => толщ. 500 мм
[4] => толщ. 600 мм
)
[days] => [40,42,44,46,48]
[material_price] => [25421,29148,32275,35602,37326]
[work_price] => [20441,21907,23375,24841,26306]
[image] => https://akademik-stroy.ru/wp-content/uploads/materials/cokolnyj-etazh-zh-b.jpg
[area_modifier] => 199.25
[parent_name] => Фундамент
[parent_id] => 1
[material_sum] => 6382069
[work_sum] => 4276513
[total_sum] => 10658582
[total_days] => 40
[display_material_sum] => 6 382 069
[display_work_sum] => 4 276 513
[display_total_sum] => 10 658 582
)
1
10 658 582₽
Работа:4 276 513 ₽
Материалы:6 382 069 ₽
Дни:40
stdClass Object
(
[id] => 191
[attribute_id] => 1
[name] => Винтовые сваи
[material_modifier] => 1
[work_modifier] => 1
[options] => Array
(
[0] => 57х200мм
[1] => 76х250мм
[2] => 108х300мм
[3] => 133х350мм
)
[days] => [1,1,2,2]
[material_price] => [1200,1300,1450,1600]
[work_price] => [400,600,900,1100]
[image] => https://akademik-stroy.ru/wp-content/uploads/materials/vintovye-svai.png
[area_modifier] => 199.25
[parent_name] => Фундамент
[parent_id] => 1
[material_sum] => 301266
[work_sum] => 83685
[total_sum] => 384951
[total_days] => 1
[display_material_sum] => 301 266
[display_work_sum] => 83 685
[display_total_sum] => 384 951
)
1
384 951₽
Работа:83 685 ₽
Материалы:301 266 ₽
Дни:1
stdClass Object
(
[id] => 3
[attribute_id] => 2
[name] => Деревянные балки
[material_modifier] => 1
[work_modifier] => 1
[options] => Array
(
[0] => без утепления
[1] => утепление 200 мм
[2] => утепление 250 мм
[3] => утепление 300 мм
[4] => утепление 350 мм
[5] => утепление 400 мм
[6] => утепление 450 мм
[7] => утепление 500 мм
)
[days] => [8,9,9,9,11,12,13,14]
[material_price] => [1634,2042,2344,2947,3149,3652,3354,3557]
[work_price] => [1230,1339,1393,1426,1460,1513,1587,1620]
[image] => https://akademik-stroy.ru/wp-content/uploads/materials/derevyannye-balki.png
[area_modifier] => 199.25
[parent_name] => Перекрытие цоколя
[parent_id] => 2
[material_sum] => 410224
[work_sum] => 257331
[total_sum] => 667555
[total_days] => 8
[display_material_sum] => 410 224
[display_work_sum] => 257 331
[display_total_sum] => 667 555
)
1
667 555₽
Работа:257 331 ₽
Материалы:410 224 ₽
Дни:8
stdClass Object
(
[id] => 4
[attribute_id] => 2
[name] => Сборные ж/б плиты
[material_modifier] => 1
[work_modifier] => 1
[options] => Array
(
[0] => без утепления
[1] => утепление 150мм
[2] => утепление 200мм
[3] => утепление 250мм
[4] => утепление 300мм
[5] => утепление 350мм
[6] => утепление 400мм
[7] => утепление 450мм
[8] => утепление 500мм
)
[days] => [13,15,15,15,15,15,15,15,15]
[material_price] => [3067,5577,5928,6679,7730,8782,9833,10884,11935]
[work_price] => [1520,1956,2102,2247,2392,2537,2684,2829,2974]
[image] => https://akademik-stroy.ru/wp-content/uploads/materials/sbornye-zh-b-plity-2.jpg
[area_modifier] => 199.25
[parent_name] => Перекрытие цоколя
[parent_id] => 2
[material_sum] => 769986
[work_sum] => 318003
[total_sum] => 1087989
[total_days] => 13
[display_material_sum] => 769 986
[display_work_sum] => 318 003
[display_total_sum] => 1 087 989
)
1
1 087 989₽
Работа:318 003 ₽
Материалы:769 986 ₽
Дни:13
stdClass Object
(
[id] => 78
[attribute_id] => 2
[name] => Монолитная ж/б плита
[material_modifier] => 1
[work_modifier] => 1
[options] => Array
(
[0] => без утепления
[1] => утепление 150 мм
[2] => утепление 200 мм
[3] => утепление 250 мм
[4] => утепление 300 мм
[5] => утепление 350 мм
[6] => утепление 400 мм
[7] => утепление 450 мм
[8] => утепление 500 мм
)
[days] => [18,20,20,20,20,20,20,20,20]
[material_price] => [4837,6572,7224,7375,79426,8177,8728,9180,10031]
[work_price] => [3348,3921,4112,4302,4493,4684,4875,5066,5256]
[image] => https://akademik-stroy.ru/wp-content/uploads/materials/monolitnaya-zh-b-plita-2.jpg
[area_modifier] => 199.25
[parent_name] => Перекрытие цоколя
[parent_id] => 2
[material_sum] => 1214353
[work_sum] => 700443
[total_sum] => 1914796
[total_days] => 18
[display_material_sum] => 1 214 353
[display_work_sum] => 700 443
[display_total_sum] => 1 914 796
)
1
1 914 796₽
Работа:700 443 ₽
Материалы:1 214 353 ₽
Дни:18
stdClass Object
(
[id] => 6
[attribute_id] => 3
[name] => Пеноблок
[material_modifier] => 1
[work_modifier] => 1
[options] => Array
(
[0] => 300 мм
[1] => 400 мм
[2] => 500 мм
[3] => 600 мм
)
[days] => [29,31,34,39]
[material_price] => [3000,4000,4500,4937]
[work_price] => [5033,5805,6400,8710]
[image] => https://akademik-stroy.ru/wp-content/uploads/materials/penoblok.jpg
[area_modifier] => 199.25
[parent_name] => Стены 1 этаж (несущие)
[parent_id] => 3
[material_sum] => 753165
[work_sum] => 1052967
[total_sum] => 1806132
[total_days] => 29
[display_material_sum] => 753 165
[display_work_sum] => 1 052 967
[display_total_sum] => 1 806 132
)
1
1 806 132₽
Работа:1 052 967 ₽
Материалы:753 165 ₽
Дни:29
stdClass Object
(
[id] => 79
[attribute_id] => 3
[name] => Керамический блок
[material_modifier] => 1
[work_modifier] => 1
[options] => Array
(
[0] => 380 мм
[1] => 380 мм Thermo
[2] => 440 мм
[3] => 510 мм
)
[days] => [23,23,24,25]
[material_price] => [4510,5098,6093,8013]
[work_price] => [4737,4937,5903,6958]
[image] => https://akademik-stroy.ru/wp-content/uploads/materials/keramicheskij-blok.jpg
[area_modifier] => 199.25
[parent_name] => Стены 1 этаж (несущие)
[parent_id] => 3
[material_sum] => 1132258
[work_sum] => 991040
[total_sum] => 2123298
[total_days] => 23
[display_material_sum] => 1 132 258
[display_work_sum] => 991 040
[display_total_sum] => 2 123 298
)
1
2 123 298₽
Работа:991 040 ₽
Материалы:1 132 258 ₽
Дни:23
stdClass Object
(
[id] => 80
[attribute_id] => 3
[name] => Кирпич
[material_modifier] => 1
[work_modifier] => 1
[options] => Array
(
[0] => Кирпич 250 мм
[1] => Кирпич 380 мм
[2] => Кирпич 510 мм
[3] => Кирпич 640 мм
[4] => Кирпич 770 мм
)
[days] => [30,30,31,33,36]
[material_price] => [5500,7142,9206,10171,12235]
[work_price] => [8736,10041,12018,15240,18462]
[image] => https://akademik-stroy.ru/wp-content/uploads/materials/kirpich.jpg
[area_modifier] => 199.25
[parent_name] => Стены 1 этаж (несущие)
[parent_id] => 3
[material_sum] => 1380803
[work_sum] => 1827680
[total_sum] => 3208483
[total_days] => 30
[display_material_sum] => 1 380 803
[display_work_sum] => 1 827 680
[display_total_sum] => 3 208 483
)
1
3 208 483₽
Работа:1 827 680 ₽
Материалы:1 380 803 ₽
Дни:30
stdClass Object
(
[id] => 81
[attribute_id] => 3
[name] => Монолитные
[material_modifier] => 1
[work_modifier] => 1
[options] => Array
(
[0] => 150 мм
[1] => 200 мм
[2] => 250 мм
[3] => 300 мм
[4] => 350 мм
[5] => 400 мм
)
[days] => [45,46,47,49,50,53]
[material_price] => [6545,7876,10175,12011,13908,15204]
[work_price] => [5106,6444,7698,8552,9807,11461]
[image] => https://akademik-stroy.ru/wp-content/uploads/materials/monolitnye.jpg
[area_modifier] => 199.25
[parent_name] => Стены 1 этаж (несущие)
[parent_id] => 3
[material_sum] => 1643155
[work_sum] => 1068239
[total_sum] => 2711394
[total_days] => 45
[display_material_sum] => 1 643 155
[display_work_sum] => 1 068 239
[display_total_sum] => 2 711 394
)
1
2 711 394₽
Работа:1 068 239 ₽
Материалы:1 643 155 ₽
Дни:45
stdClass Object
(
[id] => 82
[attribute_id] => 3
[name] => Клееный брус
[material_modifier] => 1
[work_modifier] => 1
[options] => Array
(
[0] => 160 мм
[1] => 175 мм
[2] => 200 мм
[3] => 215 мм
[4] => 240 мм
[5] => 270 мм
[6] => 282 мм
)
[days] => [24,28,32,37,40,42,48]
[material_price] => [16975,18773,19950,20545,21599,22159,23275]
[work_price] => [4806,5287,5815,6397,7036,7740,8514]
[image] => https://akademik-stroy.ru/wp-content/uploads/materials/kleenyj-brus.jpg
[area_modifier] => 199.25
[parent_name] => Стены 1 этаж (несущие)
[parent_id] => 3
[material_sum] => 4261659
[work_sum] => 1005475
[total_sum] => 5267134
[total_days] => 24
[display_material_sum] => 4 261 659
[display_work_sum] => 1 005 475
[display_total_sum] => 5 267 134
)
1
5 267 134₽
Работа:1 005 475 ₽
Материалы:4 261 659 ₽
Дни:24
stdClass Object
(
[id] => 83
[attribute_id] => 3
[name] => Каркасные
[material_modifier] => 1
[work_modifier] => 1
[options] => Array
(
[0] => 150 мм
[1] => 200 мм
[2] => 250 мм
[3] => 300 мм
)
[days] => [15,16,17,18]
[material_price] => [2379,2639,2898,3258]
[work_price] => [2418,2686,2985,3716]
[image] => https://akademik-stroy.ru/wp-content/uploads/materials/karkasnye.jpg
[area_modifier] => 199.25
[parent_name] => Стены 1 этаж (несущие)
[parent_id] => 3
[material_sum] => 597260
[work_sum] => 505876
[total_sum] => 1103136
[total_days] => 15
[display_material_sum] => 597 260
[display_work_sum] => 505 876
[display_total_sum] => 1 103 136
)
1
1 103 136₽
Работа:505 876 ₽
Материалы:597 260 ₽
Дни:15
stdClass Object
(
[id] => 84
[attribute_id] => 3
[name] => СИП-панели
[material_modifier] => 1
[work_modifier] => 1
[options] => Array
(
[0] => 120 мм
[1] => 170 мм
[2] => 220 мм
)
[days] => [7,7,7]
[material_price] => [1210,1856,2292]
[work_price] => [1410,1551,1706]
[image] => https://akademik-stroy.ru/wp-content/uploads/materials/sip-paneli.jpg
[area_modifier] => 199.25
[parent_name] => Стены 1 этаж (несущие)
[parent_id] => 3
[material_sum] => 303777
[work_sum] => 294990
[total_sum] => 598767
[total_days] => 7
[display_material_sum] => 303 777
[display_work_sum] => 294 990
[display_total_sum] => 598 767
)
1
598 767₽
Работа:294 990 ₽
Материалы:303 777 ₽
Дни:7
stdClass Object
(
[id] => 85
[attribute_id] => 3
[name] => Сухой брус
[material_modifier] => 1
[work_modifier] => 1
[options] => Array
(
[0] => 150 мм
[1] => 180 мм
[2] => 200 мм
)
[days] => [7,8,9]
[material_price] => [6010,7190,8709]
[work_price] => [3204,3845,4229]
[image] => https://akademik-stroy.ru/wp-content/uploads/materials/suhoj-brus.jpg
[area_modifier] => 199.25
[parent_name] => Стены 1 этаж (несущие)
[parent_id] => 3
[material_sum] => 1508841
[work_sum] => 670317
[total_sum] => 2179158
[total_days] => 7
[display_material_sum] => 1 508 841
[display_work_sum] => 670 317
[display_total_sum] => 2 179 158
)
1
2 179 158₽
Работа:670 317 ₽
Материалы:1 508 841 ₽
Дни:7
stdClass Object
(
[id] => 86
[attribute_id] => 3
[name] => Профилированный брус
[material_modifier] => 1
[work_modifier] => 1
[options] => Array
(
[0] => 150 мм
[1] => 180 мм
[2] => 200 мм
)
[days] => [7,8,9]
[material_price] => [8190,9228,10051]
[work_price] => [3845,4614,5075]
[image] => https://akademik-stroy.ru/wp-content/uploads/materials/profilirovannyj-brus.jpg
[area_modifier] => 199.25
[parent_name] => Стены 1 этаж (несущие)
[parent_id] => 3
[material_sum] => 2056140
[work_sum] => 804422
[total_sum] => 2860562
[total_days] => 7
[display_material_sum] => 2 056 140
[display_work_sum] => 804 422
[display_total_sum] => 2 860 562
)
1
2 860 562₽
Работа:804 422 ₽
Материалы:2 056 140 ₽
Дни:7
stdClass Object
(
[id] => 87
[attribute_id] => 3
[name] => Оцилиндрованное бревно
[material_modifier] => 1
[work_modifier] => 1
[options] => Array
(
[0] => 180 мм
[1] => 220 мм
[2] => 260 мм
[3] => 320 мм
)
[days] => [7,8,9,10]
[material_price] => [75190,9532,10868,13116]
[work_price] => [3845,4691,5535,6863]
[image] => https://akademik-stroy.ru/wp-content/uploads/materials/ocilindrovannoe-brevno-1.jpg
[area_modifier] => 199.25
[parent_name] => Стены 1 этаж (несущие)
[parent_id] => 3
[material_sum] => 18876825
[work_sum] => 804422
[total_sum] => 19681247
[total_days] => 7
[display_material_sum] => 18 876 825
[display_work_sum] => 804 422
[display_total_sum] => 19 681 247
)
1
19 681 247₽
Работа:804 422 ₽
Материалы:18 876 825 ₽
Дни:7
stdClass Object
(
[id] => 88
[attribute_id] => 3
[name] => Срубы
[material_modifier] => 1
[work_modifier] => 1
[options] => Array
(
[0] => 260 мм
[1] => 320 мм
[2] => 360 мм
[3] => 400 мм
[4] => 500 мм
)
[days] => [7,8,9,10,11]
[material_price] => [37975,46709,52314,58069,73167]
[work_price] => [4806,5911,6621,7349,9260]
[image] => https://akademik-stroy.ru/wp-content/uploads/materials/sruby.jpg
[area_modifier] => 199.25
[parent_name] => Стены 1 этаж (несущие)
[parent_id] => 3
[material_sum] => 9533814
[work_sum] => 1005475
[total_sum] => 10539289
[total_days] => 7
[display_material_sum] => 9 533 814
[display_work_sum] => 1 005 475
[display_total_sum] => 10 539 289
)
1
10 539 289₽
Работа:1 005 475 ₽
Материалы:9 533 814 ₽
Дни:7
stdClass Object
(
[id] => 174
[attribute_id] => 3
[name] => Брус
[material_modifier] => 1
[work_modifier] => 1
[options] => Array
(
[0] => 150 мм
[1] => 180 мм
[2] => 200 мм
)
[days] => [7,8,9]
[material_price] => [5127,6152,7367]
[work_price] => [1602,1922,2115]
[image] => https://akademik-stroy.ru/wp-content/uploads/materials/brus.jpg
[area_modifier] => 199.25
[parent_name] => Стены 1 этаж (несущие)
[parent_id] => 3
[material_sum] => 1287159
[work_sum] => 335158
[total_sum] => 1622317
[total_days] => 7
[display_material_sum] => 1 287 159
[display_work_sum] => 335 158
[display_total_sum] => 1 622 317
)
1
1 622 317₽
Работа:335 158 ₽
Материалы:1 287 159 ₽
Дни:7
stdClass Object
(
[id] => 175
[attribute_id] => 3
[name] => Газобетон
[material_modifier] => 1
[work_modifier] => 1
[options] => Array
(
[0] => 300 мм
[1] => 375 мм
[2] => 400 мм
[3] => 500 мм
[4] => 600 мм
)
[days] => [29,31,35,37,44]
[material_price] => [4298,5573,6356,7288,9119]
[work_price] => [4538,5251,5926,6733,7195]
[image] => https://akademik-stroy.ru/wp-content/uploads/materials/gazobeton.jpg
[area_modifier] => 199.25
[parent_name] => Стены 1 этаж (несущие)
[parent_id] => 3
[material_sum] => 1079034
[work_sum] => 949406
[total_sum] => 2028440
[total_days] => 29
[display_material_sum] => 1 079 034
[display_work_sum] => 949 406
[display_total_sum] => 2 028 440
)
1
2 028 440₽
Работа:949 406 ₽
Материалы:1 079 034 ₽
Дни:29
stdClass Object
(
[id] => 176
[attribute_id] => 3
[name] => Блок
[material_modifier] => 1
[work_modifier] => 1
[options] => Array
(
[0] => 300 мм
[1] => 375 мм
[2] => 400 мм
[3] => 500 мм
[4] => 600 мм
)
[days] => [29,31,35,37,44]
[material_price] => [2698,3973,4356,6588,7119]
[work_price] => [5038,5851,6426,8733,9195]
[image] => https://akademik-stroy.ru/wp-content/uploads/materials/blok.jpg
[area_modifier] => 199.25
[parent_name] => Стены 1 этаж (несущие)
[parent_id] => 3
[material_sum] => 677346
[work_sum] => 1054013
[total_sum] => 1731359
[total_days] => 29
[display_material_sum] => 677 346
[display_work_sum] => 1 054 013
[display_total_sum] => 1 731 359
)
1
1 731 359₽
Работа:1 054 013 ₽
Материалы:677 346 ₽
Дни:29
stdClass Object
(
[id] => 177
[attribute_id] => 3
[name] => Газосиликатный блок
[material_modifier] => 1
[work_modifier] => 1
[options] => Array
(
[0] => 300 мм
[1] => 375 мм
[2] => 400 мм
[3] => 500 мм
[4] => 600 мм
)
[days] => [29,31,35,37,44]
[material_price] => [4298,5573,6356,7288,9119]
[work_price] => [4538,5251,5926,6733,7195]
[image] => https://akademik-stroy.ru/wp-content/uploads/materials/gazosilikatnyj-blok.jpg
[area_modifier] => 199.25
[parent_name] => Стены 1 этаж (несущие)
[parent_id] => 3
[material_sum] => 1079034
[work_sum] => 949406
[total_sum] => 2028440
[total_days] => 29
[display_material_sum] => 1 079 034
[display_work_sum] => 949 406
[display_total_sum] => 2 028 440
)
1
2 028 440₽
Работа:949 406 ₽
Материалы:1 079 034 ₽
Дни:29
stdClass Object
(
[id] => 178
[attribute_id] => 3
[name] => Керамзитобетонный блок
[material_modifier] => 1
[work_modifier] => 1
[options] => Array
(
[0] => 300 мм
[1] => 375 мм
[2] => 400 мм
[3] => 500 мм
[4] => 600 мм
)
[days] => [23,23,24,25,28]
[material_price] => [3641,4298,5693,7613,9612]
[work_price] => [5737,5737,6903,7958,8901]
[image] => https://akademik-stroy.ru/wp-content/uploads/materials/keramzitobetonnyj-blok.jpg
[area_modifier] => 199.25
[parent_name] => Стены 1 этаж (несущие)
[parent_id] => 3
[material_sum] => 914091
[work_sum] => 1200252
[total_sum] => 2114343
[total_days] => 23
[display_material_sum] => 914 091
[display_work_sum] => 1 200 252
[display_total_sum] => 2 114 343
)
1
2 114 343₽
Работа:1 200 252 ₽
Материалы:914 091 ₽
Дни:23
stdClass Object
(
[id] => 179
[attribute_id] => 3
[name] => Деревянные
[material_modifier] => 1
[work_modifier] => 1
[options] => Array
(
[0] => 180 мм
[1] => 220 мм
[2] => 260 мм
[3] => 320 мм
)
[days] => [7,8,9,10]
[material_price] => [7950,9458,11961,14472]
[work_price] => [4037,4925,5812,7207]
[image] => https://akademik-stroy.ru/wp-content/uploads/materials/derevyannye.jpg
[area_modifier] => 199.25
[parent_name] => Стены 1 этаж (несущие)
[parent_id] => 3
[material_sum] => 1995887
[work_sum] => 844591
[total_sum] => 2840478
[total_days] => 7
[display_material_sum] => 1 995 887
[display_work_sum] => 844 591
[display_total_sum] => 2 840 478
)
1
2 840 478₽
Работа:844 591 ₽
Материалы:1 995 887 ₽
Дни:7
stdClass Object
(
[id] => 181
[attribute_id] => 3
[name] => Камень
[material_modifier] => 1
[work_modifier] => 1
[options] => Array
(
[0] => 300 мм
[1] => 400 мм
[2] => 500 мм
[3] => 600 мм
)
[days] => [25,27,31,34]
[material_price] => [5262,6844,8330,9815]
[work_price] => [8331,9135,10427,11069]
[image] => https://akademik-stroy.ru/wp-content/uploads/materials/kamen.jpg
[area_modifier] => 199.25
[parent_name] => Стены 1 этаж (несущие)
[parent_id] => 3
[material_sum] => 1321051
[work_sum] => 1742949
[total_sum] => 3064000
[total_days] => 25
[display_material_sum] => 1 321 051
[display_work_sum] => 1 742 949
[display_total_sum] => 3 064 000
)
1
3 064 000₽
Работа:1 742 949 ₽
Материалы:1 321 051 ₽
Дни:25
stdClass Object
(
[id] => 182
[attribute_id] => 3
[name] => Каркасно-щитовые
[material_modifier] => 1
[work_modifier] => 1
[options] => Array
(
[0] => 150 мм
[1] => 200 мм
[2] => 250 мм
[3] => 300 мм
[4] => 350 мм
[5] => 400 мм
)
[days] => [15,16,17,18,19,20]
[material_price] => [2379,2639,2898,3458,3601,4175]
[work_price] => [2538,2820,3134,3483,4062,5642]
[image] => https://akademik-stroy.ru/wp-content/uploads/materials/karkasno-shchitovye.jpg
[area_modifier] => 199.25
[parent_name] => Стены 1 этаж (несущие)
[parent_id] => 3
[material_sum] => 597260
[work_sum] => 530981
[total_sum] => 1128241
[total_days] => 15
[display_material_sum] => 597 260
[display_work_sum] => 530 981
[display_total_sum] => 1 128 241
)
1
1 128 241₽
Работа:530 981 ₽
Материалы:597 260 ₽
Дни:15
stdClass Object
(
[id] => 183
[attribute_id] => 3
[name] => Рубленные
[material_modifier] => 1
[work_modifier] => 1
[options] => Array
(
[0] => 150 мм
[1] => 200 мм
[2] => 250 мм
[3] => 300 мм
[4] => 350 мм
[5] => 400 мм
)
[days] => [15,16,17,18,17,18]
[material_price] => [35950,50267,60583,75900,80217,100533]
[work_price] => [9612,12816,16020,19224,22428,25632]
[image] => https://akademik-stroy.ru/wp-content/uploads/materials/rublennye.jpg
[area_modifier] => 199.25
[parent_name] => Стены 1 этаж (несущие)
[parent_id] => 3
[material_sum] => 9025427
[work_sum] => 2010951
[total_sum] => 11036378
[total_days] => 15
[display_material_sum] => 9 025 427
[display_work_sum] => 2 010 951
[display_total_sum] => 11 036 378
)
1
11 036 378₽
Работа:2 010 951 ₽
Материалы:9 025 427 ₽
Дни:15
stdClass Object
(
[id] => 185
[attribute_id] => 3
[name] => Теплоблок
[material_modifier] => 1
[work_modifier] => 1
[options] => Array
(
[0] => 300 мм (с облицовкой, не покрашенный)
[1] => 400 мм (с облицовкой, не покрашенный)
[2] => 300 мм (с облицовкой, покрашенный)
[3] => 400 мм (с облицовкой, покрашенный)
)
[days] => [15,16,15,16]
[material_price] => [2888,3729,3957,4258]
[work_price] => [2564,3229,2949,3713]
[image] => https://akademik-stroy.ru/wp-content/uploads/materials/teploblok.jpg
[area_modifier] => 199.25
[parent_name] => Стены 1 этаж (несущие)
[parent_id] => 3
[material_sum] => 725047
[work_sum] => 536421
[total_sum] => 1261468
[total_days] => 15
[display_material_sum] => 725 047
[display_work_sum] => 536 421
[display_total_sum] => 1 261 468
)
1
1 261 468₽
Работа:536 421 ₽
Материалы:725 047 ₽
Дни:15
stdClass Object
(
[id] => 186
[attribute_id] => 3
[name] => Арболитовые блоки
[material_modifier] => 1
[work_modifier] => 1
[options] => Array
(
[0] => 300 мм
[1] => 400 мм
[2] => 600 мм
)
[days] => [19,22,27]
[material_price] => [3210,4475,5852]
[work_price] => [4214,4788,5866]
[image] => https://akademik-stroy.ru/wp-content/uploads/materials/arbolitovye-bloki.png
[area_modifier] => 199.25
[parent_name] => Стены 1 этаж (несущие)
[parent_id] => 3
[material_sum] => 805887
[work_sum] => 881621
[total_sum] => 1687508
[total_days] => 19
[display_material_sum] => 805 887
[display_work_sum] => 881 621
[display_total_sum] => 1 687 508
)
1
1 687 508₽
Работа:881 621 ₽
Материалы:805 887 ₽
Дни:19
stdClass Object
(
[id] => 187
[attribute_id] => 3
[name] => Полистиролбетон
[material_modifier] => 1
[work_modifier] => 1
[options] => Array
(
[0] => 300 мм
[1] => 400 мм
[2] => 600 мм
)
[days] => [29,31,35]
[material_price] => [2798,4573,5256]
[work_price] => [5038,5851,6426]
[image] => https://akademik-stroy.ru/wp-content/uploads/materials/polistirolbeton.jpg
[area_modifier] => 199.25
[parent_name] => Стены 1 этаж (несущие)
[parent_id] => 3
[material_sum] => 702452
[work_sum] => 1054013
[total_sum] => 1756465
[total_days] => 29
[display_material_sum] => 702 452
[display_work_sum] => 1 054 013
[display_total_sum] => 1 756 465
)
1
1 756 465₽
Работа:1 054 013 ₽
Материалы:702 452 ₽
Дни:29
stdClass Object
(
[id] => 188
[attribute_id] => 3
[name] => Шлакоблок
[material_modifier] => 1
[work_modifier] => 1
[options] => Array
(
[0] => 400 мм
[1] => 600 мм
)
[days] => [15,16]
[material_price] => [2391,3471]
[work_price] => [2642,3662]
[image] => https://akademik-stroy.ru/wp-content/uploads/materials/shlakoblok.jpg
[area_modifier] => 199.25
[parent_name] => Стены 1 этаж (несущие)
[parent_id] => 3
[material_sum] => 600273
[work_sum] => 552739
[total_sum] => 1153012
[total_days] => 15
[display_material_sum] => 600 273
[display_work_sum] => 552 739
[display_total_sum] => 1 153 012
)
1
1 153 012₽
Работа:552 739 ₽
Материалы:600 273 ₽
Дни:15
stdClass Object
(
[id] => 189
[attribute_id] => 3
[name] => Теплая керамика
[material_modifier] => 1
[work_modifier] => 1
[options] => Array
(
[0] => 380 мм
[1] => 380 мм Thermo
[2] => 440 мм
[3] => 510 мм
)
[days] => [23,23,24,25]
[material_price] => [4510,5098,6093,8013]
[work_price] => [4737,4937,5903,6958]
[image] => https://akademik-stroy.ru/wp-content/uploads/materials/teplaya-keramika.jpg
[area_modifier] => 199.25
[parent_name] => Стены 1 этаж (несущие)
[parent_id] => 3
[material_sum] => 1132258
[work_sum] => 991040
[total_sum] => 2123298
[total_days] => 23
[display_material_sum] => 1 132 258
[display_work_sum] => 991 040
[display_total_sum] => 2 123 298
)
1
2 123 298₽
Работа:991 040 ₽
Материалы:1 132 258 ₽
Дни:23
stdClass Object
(
[id] => 190
[attribute_id] => 3
[name] => Несъемная опалубка
[material_modifier] => 1
[work_modifier] => 1
[options] => Array
(
[0] => 200 мм
[1] => 250 мм
[2] => 300 мм
[3] => 350 мм
)
[days] => [15,17,19,21]
[material_price] => [3302,3902,4108,5008]
[work_price] => [2100,2100,2300,2534]
[image] => https://akademik-stroy.ru/wp-content/uploads/materials/nesemnaya-opalubka.jpg
[area_modifier] => 199.25
[parent_name] => Стены 1 этаж (несущие)
[parent_id] => 3
[material_sum] => 828984
[work_sum] => 439346
[total_sum] => 1268330
[total_days] => 15
[display_material_sum] => 828 984
[display_work_sum] => 439 346
[display_total_sum] => 1 268 330
)
1
1 268 330₽
Работа:439 346 ₽
Материалы:828 984 ₽
Дни:15
stdClass Object
(
[id] => 251
[attribute_id] => 3
[name] => Бревно
[material_modifier] => 1
[work_modifier] => 1
[options] => Array
(
[0] => 260 мм
[1] => 320 мм
[2] => 360 мм
[3] => 400 мм
[4] => 500 мм
)
[days] => [7,8,9,10,11]
[material_price] => [1874,24045,26930,30972,38825]
[work_price] => [5046,6207,6952,7716,9723]
[image] => https://akademik-stroy.ru/wp-content/uploads/materials/sruby.jpg
[area_modifier] => 199.25
[parent_name] => Стены 1 этаж (несущие)
[parent_id] => 3
[material_sum] => 470477
[work_sum] => 1055686
[total_sum] => 1526163
[total_days] => 7
[display_material_sum] => 470 477
[display_work_sum] => 1 055 686
[display_total_sum] => 1 526 163
)
1
1 526 163₽
Работа:1 055 686 ₽
Материалы:470 477 ₽
Дни:7
stdClass Object
(
[id] => 7
[attribute_id] => 4
[name] => Деревянные балки
[material_modifier] => 1
[work_modifier] => 1
[options] => Array
(
[0] => без утепления
[1] => утепление 200 мм
[2] => утепление 250 мм
[3] => утепление 300 мм
[4] => утепление 350 мм
[5] => утепление 400 мм
[6] => утепление 450 мм
[7] => утепление 500 мм
)
[days] => [8,9,9,9,11,12,13,14]
[material_price] => [1634,2042,2344,2947,3149,3652,3354,3557]
[work_price] => [1230,1339,1393,1426,1460,1513,1587,1620]
[image] => https://akademik-stroy.ru/wp-content/uploads/materials/derevyannye-balki.png
[area_modifier] => 199.25
[parent_name] => Перекрытие первого этажа
[parent_id] => 4
[material_sum] => 410224
[work_sum] => 257331
[total_sum] => 667555
[total_days] => 8
[display_material_sum] => 410 224
[display_work_sum] => 257 331
[display_total_sum] => 667 555
)
1
667 555₽
Работа:257 331 ₽
Материалы:410 224 ₽
Дни:8
stdClass Object
(
[id] => 8
[attribute_id] => 4
[name] => Сборные ж/б плиты
[material_modifier] => 1
[work_modifier] => 1
[options] => Array
(
[0] => без утепления
[1] => утепление 150 мм
[2] => утепление 200 мм
[3] => утепление 250 мм
[4] => утепление 300 мм
[5] => утепление 350 мм
[6] => утепление 400 мм
[7] => утепление 450 мм
[8] => утепление 500 мм
)
[days] => [13,15,15,15,15,15,15,15,15]
[material_price] => [3067,5577,5928,6679,7730,8782,9833,10884,11935]
[work_price] => [1520,1956,2102,2247,2392,2537,2684,2829,2974]
[image] => https://akademik-stroy.ru/wp-content/uploads/materials/sbornye-zh-b-plity-2.jpg
[area_modifier] => 199.25
[parent_name] => Перекрытие первого этажа
[parent_id] => 4
[material_sum] => 769986
[work_sum] => 318003
[total_sum] => 1087989
[total_days] => 13
[display_material_sum] => 769 986
[display_work_sum] => 318 003
[display_total_sum] => 1 087 989
)
1
1 087 989₽
Работа:318 003 ₽
Материалы:769 986 ₽
Дни:13
stdClass Object
(
[id] => 89
[attribute_id] => 4
[name] => Монолитная ж/б плита
[material_modifier] => 1
[work_modifier] => 1
[options] => Array
(
[0] => без утепления
[1] => утепление 150 мм
[2] => утепление 200 мм
[3] => утепление 250 мм
[4] => утепление 300 мм
[5] => утепление 350 мм
[6] => утепление 400 мм
[7] => утепление 450 мм
[8] => утепление 500 мм
)
[days] => [18,20,20,20,20,20,20,20,20]
[material_price] => [4837,6572,7224,7375,79426,8177,8728,9180,10031]
[work_price] => [3348,3921,4112,4302,4493,4684,4875,5066,5256]
[image] => https://akademik-stroy.ru/wp-content/uploads/materials/monolitnaya-zh-b-plita-2.jpg
[area_modifier] => 199.25
[parent_name] => Перекрытие первого этажа
[parent_id] => 4
[material_sum] => 1214353
[work_sum] => 700443
[total_sum] => 1914796
[total_days] => 18
[display_material_sum] => 1 214 353
[display_work_sum] => 700 443
[display_total_sum] => 1 914 796
)
1
1 914 796₽
Работа:700 443 ₽
Материалы:1 214 353 ₽
Дни:18
stdClass Object
(
[id] => 10
[attribute_id] => 5
[name] => Пеноблок
[material_modifier] => 1
[work_modifier] => 1
[options] => Array
(
[0] => 300 мм
[1] => 400 мм
[2] => 500 мм
[3] => 600 мм
)
[days] => [29,31,34,39]
[material_price] => [3000,4000,4500,4937]
[work_price] => [5033,5805,6400,8710]
[image] => https://akademik-stroy.ru/wp-content/uploads/materials/penoblok.jpg
[area_modifier] => 54.1
[parent_name] => Стены 2 этаж (несущие)
[parent_id] => 5
[material_sum] => 204498
[work_sum] => 285900
[total_sum] => 490398
[total_days] => 29
[display_material_sum] => 204 498
[display_work_sum] => 285 900
[display_total_sum] => 490 398
)
1
490 398₽
Работа:285 900 ₽
Материалы:204 498 ₽
Дни:29
stdClass Object
(
[id] => 90
[attribute_id] => 5
[name] => Керамический блок
[material_modifier] => 1
[work_modifier] => 1
[options] => Array
(
[0] => 380 мм
[1] => 380 мм Thermo
[2] => 440 мм
[3] => 510 мм
)
[days] => [23,23,24,25]
[material_price] => [4510,5098,6093,8013]
[work_price] => [4737,4937,5903,6958]
[image] => https://akademik-stroy.ru/wp-content/uploads/materials/keramicheskij-blok.jpg
[area_modifier] => 54.1
[parent_name] => Стены 2 этаж (несущие)
[parent_id] => 5
[material_sum] => 307429
[work_sum] => 269085
[total_sum] => 576514
[total_days] => 23
[display_material_sum] => 307 429
[display_work_sum] => 269 085
[display_total_sum] => 576 514
)
1
576 514₽
Работа:269 085 ₽
Материалы:307 429 ₽
Дни:23
stdClass Object
(
[id] => 91
[attribute_id] => 5
[name] => Кирпич
[material_modifier] => 1
[work_modifier] => 1
[options] => Array
(
[0] => Кирпич 250 мм
[1] => Кирпич 380 мм
[2] => Кирпич 510 мм
[3] => Кирпич 640 мм
[4] => Кирпич 770 мм
)
[days] => [30,30,31,33,36]
[material_price] => [5500,7142,9206,10171,12235]
[work_price] => [8736,10041,12018,15240,18462]
[image] => https://akademik-stroy.ru/wp-content/uploads/materials/kirpich.jpg
[area_modifier] => 54.1
[parent_name] => Стены 2 этаж (несущие)
[parent_id] => 5
[material_sum] => 374913
[work_sum] => 496248
[total_sum] => 871161
[total_days] => 30
[display_material_sum] => 374 913
[display_work_sum] => 496 248
[display_total_sum] => 871 161
)
1
871 161₽
Работа:496 248 ₽
Материалы:374 913 ₽
Дни:30
stdClass Object
(
[id] => 92
[attribute_id] => 5
[name] => Монолитные
[material_modifier] => 1
[work_modifier] => 1
[options] => Array
(
[0] => 150 мм
[1] => 200 мм
[2] => 250 мм
[3] => 300 мм
[4] => 350 мм
[5] => 400 мм
)
[days] => [45,46,47,49,50,53]
[material_price] => [6545,7876,10175,12011,13908,15204]
[work_price] => [5106,6444,7698,8552,9807,11461]
[image] => https://akademik-stroy.ru/wp-content/uploads/materials/monolitnye.jpg
[area_modifier] => 54.1
[parent_name] => Стены 2 этаж (несущие)
[parent_id] => 5
[material_sum] => 446146
[work_sum] => 290046
[total_sum] => 736192
[total_days] => 45
[display_material_sum] => 446 146
[display_work_sum] => 290 046
[display_total_sum] => 736 192
)
1
736 192₽
Работа:290 046 ₽
Материалы:446 146 ₽
Дни:45
stdClass Object
(
[id] => 93
[attribute_id] => 5
[name] => Клееный брус
[material_modifier] => 1
[work_modifier] => 1
[options] => Array
(
[0] => 160 мм
[1] => 175 мм
[2] => 200 мм
[3] => 215 мм
[4] => 240 мм
[5] => 270 мм
[6] => 282 мм
)
[days] => [24,28,32,37,40,42,48]
[material_price] => [16975,18773,19950,20545,21599,22159,23275]
[work_price] => [4806,5287,5815,6397,7036,7740,8514]
[image] => https://akademik-stroy.ru/wp-content/uploads/materials/kleenyj-brus.jpg
[area_modifier] => 54.1
[parent_name] => Стены 2 этаж (несущие)
[parent_id] => 5
[material_sum] => 1157118
[work_sum] => 273005
[total_sum] => 1430123
[total_days] => 24
[display_material_sum] => 1 157 118
[display_work_sum] => 273 005
[display_total_sum] => 1 430 123
)
1
1 430 123₽
Работа:273 005 ₽
Материалы:1 157 118 ₽
Дни:24
stdClass Object
(
[id] => 94
[attribute_id] => 5
[name] => Каркасные
[material_modifier] => 1
[work_modifier] => 1
[options] => Array
(
[0] => 150 мм
[1] => 200 мм
[2] => 250 мм
[3] => 300 мм
)
[days] => [15,16,17,18]
[material_price] => [2379,2639,2898,3258]
[work_price] => [2418,2686,2985,3716]
[image] => https://akademik-stroy.ru/wp-content/uploads/materials/karkasnye.jpg
[area_modifier] => 54.1
[parent_name] => Стены 2 этаж (несущие)
[parent_id] => 5
[material_sum] => 162167
[work_sum] => 137354
[total_sum] => 299521
[total_days] => 15
[display_material_sum] => 162 167
[display_work_sum] => 137 354
[display_total_sum] => 299 521
)
1
299 521₽
Работа:137 354 ₽
Материалы:162 167 ₽
Дни:15
stdClass Object
(
[id] => 95
[attribute_id] => 5
[name] => СИП-панели
[material_modifier] => 1
[work_modifier] => 1
[options] => Array
(
[0] => 120 мм
[1] => 170 мм
[2] => 220 мм
)
[days] => [7,7,7]
[material_price] => [1210,1856,2292]
[work_price] => [1410,1551,1706]
[image] => https://akademik-stroy.ru/wp-content/uploads/materials/sip-paneli.jpg
[area_modifier] => 54.1
[parent_name] => Стены 2 этаж (несущие)
[parent_id] => 5
[material_sum] => 82481
[work_sum] => 80095
[total_sum] => 162576
[total_days] => 7
[display_material_sum] => 82 481
[display_work_sum] => 80 095
[display_total_sum] => 162 576
)
1
162 576₽
Работа:80 095 ₽
Материалы:82 481 ₽
Дни:7
stdClass Object
(
[id] => 96
[attribute_id] => 5
[name] => Сухой брус
[material_modifier] => 1
[work_modifier] => 1
[options] => Array
(
[0] => 150 мм
[1] => 180 мм
[2] => 200 мм
)
[days] => [7,8,9]
[material_price] => [6010,7190,8709]
[work_price] => [3204,3845,4229]
[image] => https://akademik-stroy.ru/wp-content/uploads/materials/suhoj-brus.jpg
[area_modifier] => 54.1
[parent_name] => Стены 2 этаж (несущие)
[parent_id] => 5
[material_sum] => 409678
[work_sum] => 182003
[total_sum] => 591681
[total_days] => 7
[display_material_sum] => 409 678
[display_work_sum] => 182 003
[display_total_sum] => 591 681
)
1
591 681₽
Работа:182 003 ₽
Материалы:409 678 ₽
Дни:7
stdClass Object
(
[id] => 97
[attribute_id] => 5
[name] => Профилированный брус
[material_modifier] => 1
[work_modifier] => 1
[options] => Array
(
[0] => 150 мм
[1] => 180 мм
[2] => 200 мм
)
[days] => [7,8,9]
[material_price] => [8190,9228,10051]
[work_price] => [3845,4614,5075]
[image] => https://akademik-stroy.ru/wp-content/uploads/materials/profilirovannyj-brus.jpg
[area_modifier] => 54.1
[parent_name] => Стены 2 этаж (несущие)
[parent_id] => 5
[material_sum] => 558280
[work_sum] => 218415
[total_sum] => 776695
[total_days] => 7
[display_material_sum] => 558 280
[display_work_sum] => 218 415
[display_total_sum] => 776 695
)
1
776 695₽
Работа:218 415 ₽
Материалы:558 280 ₽
Дни:7
stdClass Object
(
[id] => 98
[attribute_id] => 5
[name] => Оцилиндрованное бревно
[material_modifier] => 1
[work_modifier] => 1
[options] => Array
(
[0] => 180 мм
[1] => 220 мм
[2] => 260 мм
[3] => 320 мм
)
[days] => [7,8,9,10]
[material_price] => [75190,9532,10868,13116]
[work_price] => [3845,4691,5535,6863]
[image] => https://akademik-stroy.ru/wp-content/uploads/materials/ocilindrovannoe-brevno-1.jpg
[area_modifier] => 54.1
[parent_name] => Стены 2 этаж (несущие)
[parent_id] => 5
[material_sum] => 5125402
[work_sum] => 218415
[total_sum] => 5343817
[total_days] => 7
[display_material_sum] => 5 125 402
[display_work_sum] => 218 415
[display_total_sum] => 5 343 817
)
1
5 343 817₽
Работа:218 415 ₽
Материалы:5 125 402 ₽
Дни:7
stdClass Object
(
[id] => 99
[attribute_id] => 5
[name] => Срубы
[material_modifier] => 1
[work_modifier] => 1
[options] => Array
(
[0] => 260 мм
[1] => 320 мм
[2] => 360 мм
[3] => 400 мм
[4] => 500 мм
)
[days] => [7,8,9,10,11]
[material_price] => [16175,23709,26314,29069,32167]
[work_price] => [4806,5911,6621,7349,9260]
[image] => https://akademik-stroy.ru/wp-content/uploads/materials/suhoj-brus.jpg
[area_modifier] => 54.1
[parent_name] => Стены 2 этаж (несущие)
[parent_id] => 5
[material_sum] => 1102585
[work_sum] => 273005
[total_sum] => 1375590
[total_days] => 7
[display_material_sum] => 1 102 585
[display_work_sum] => 273 005
[display_total_sum] => 1 375 590
)
1
1 375 590₽
Работа:273 005 ₽
Материалы:1 102 585 ₽
Дни:7
stdClass Object
(
[id] => 194
[attribute_id] => 5
[name] => Брус
[material_modifier] => 1
[work_modifier] => 1
[options] => Array
(
[0] => 150 мм
[1] => 180 мм
[2] => 200 мм
)
[days] => [10,13,15]
[material_price] => [5127,6152,7367]
[work_price] => [1602,1922,2115]
[image] => https://akademik-stroy.ru/wp-content/uploads/materials/brus.jpg
[area_modifier] => 54.1
[parent_name] => Стены 2 этаж (несущие)
[parent_id] => 5
[material_sum] => 349487
[work_sum] => 91002
[total_sum] => 440489
[total_days] => 10
[display_material_sum] => 349 487
[display_work_sum] => 91 002
[display_total_sum] => 440 489
)
1
440 489₽
Работа:91 002 ₽
Материалы:349 487 ₽
Дни:10
stdClass Object
(
[id] => 195
[attribute_id] => 5
[name] => Газобетон
[material_modifier] => 1
[work_modifier] => 1
[options] => Array
(
[0] => 300 мм
[1] => 375 мм
[2] => 400 мм
[3] => 500 мм
[4] => 600 мм
)
[days] => [29,31,35,37,44]
[material_price] => [4298,5573,6356,7288,9119]
[work_price] => [4538,5251,5926,6733,7195]
[image] => https://akademik-stroy.ru/wp-content/uploads/materials/gazobeton.jpg
[area_modifier] => 54.1
[parent_name] => Стены 2 этаж (несущие)
[parent_id] => 5
[material_sum] => 292977
[work_sum] => 257781
[total_sum] => 550758
[total_days] => 29
[display_material_sum] => 292 977
[display_work_sum] => 257 781
[display_total_sum] => 550 758
)
1
550 758₽
Работа:257 781 ₽
Материалы:292 977 ₽
Дни:29
stdClass Object
(
[id] => 196
[attribute_id] => 5
[name] => Блок
[material_modifier] => 1
[work_modifier] => 1
[options] => Array
(
[0] => 300 мм
[1] => 375 мм
[2] => 400 мм
[3] => 500 мм
[4] => 600 мм
)
[days] => [29,31,35,37,44]
[material_price] => [2698,3973,4356,6588,7119]
[work_price] => [5038,5851,6426,8733,9195]
[image] => https://akademik-stroy.ru/wp-content/uploads/materials/blok.jpg
[area_modifier] => 54.1
[parent_name] => Стены 2 этаж (несущие)
[parent_id] => 5
[material_sum] => 183912
[work_sum] => 286184
[total_sum] => 470096
[total_days] => 29
[display_material_sum] => 183 912
[display_work_sum] => 286 184
[display_total_sum] => 470 096
)
1
470 096₽
Работа:286 184 ₽
Материалы:183 912 ₽
Дни:29
stdClass Object
(
[id] => 197
[attribute_id] => 5
[name] => Газосиликатный блок
[material_modifier] => 1
[work_modifier] => 1
[options] => Array
(
[0] => 300 мм
[1] => 375 мм
[2] => 400 мм
[3] => 500 мм
[4] => 600 мм
)
[days] => [29,31,35,37,44]
[material_price] => [4298,5573,6356,7288,9119]
[work_price] => [4538,5251,5926,6733,7195]
[image] => https://akademik-stroy.ru/wp-content/uploads/materials/gazosilikatnyj-blok.jpg
[area_modifier] => 54.1
[parent_name] => Стены 2 этаж (несущие)
[parent_id] => 5
[material_sum] => 292977
[work_sum] => 257781
[total_sum] => 550758
[total_days] => 29
[display_material_sum] => 292 977
[display_work_sum] => 257 781
[display_total_sum] => 550 758
)
1
550 758₽
Работа:257 781 ₽
Материалы:292 977 ₽
Дни:29
stdClass Object
(
[id] => 198
[attribute_id] => 5
[name] => Керамзитобетонный блок
[material_modifier] => 1
[work_modifier] => 1
[options] => Array
(
[0] => 300 мм
[1] => 375 мм
[2] => 400 мм
[3] => 500 мм
[4] => 600 мм
)
[days] => [23,23,24,25,28]
[material_price] => [3641,4298,5693,7613,9612]
[work_price] => [5737,5737,6903,7958,8901]
[image] => https://akademik-stroy.ru/wp-content/uploads/materials/keramzitobetonnyj-blok.jpg
[area_modifier] => 54.1
[parent_name] => Стены 2 этаж (несущие)
[parent_id] => 5
[material_sum] => 248192
[work_sum] => 325890
[total_sum] => 574082
[total_days] => 23
[display_material_sum] => 248 192
[display_work_sum] => 325 890
[display_total_sum] => 574 082
)
1
574 082₽
Работа:325 890 ₽
Материалы:248 192 ₽
Дни:23
stdClass Object
(
[id] => 199
[attribute_id] => 5
[name] => Деревянные
[material_modifier] => 1
[work_modifier] => 1
[options] => Array
(
[0] => 180 мм
[1] => 220 мм
[2] => 260 мм
[3] => 320 мм
)
[days] => [7,8,9,10]
[material_price] => [7950,9458,11961,14472]
[work_price] => [4037,4925,5812,7207]
[image] => https://akademik-stroy.ru/wp-content/uploads/materials/derevyannye.jpg
[area_modifier] => 54.1
[parent_name] => Стены 2 этаж (несущие)
[parent_id] => 5
[material_sum] => 541920
[work_sum] => 229322
[total_sum] => 771242
[total_days] => 7
[display_material_sum] => 541 920
[display_work_sum] => 229 322
[display_total_sum] => 771 242
)
1
771 242₽
Работа:229 322 ₽
Материалы:541 920 ₽
Дни:7
stdClass Object
(
[id] => 200
[attribute_id] => 5
[name] => Камень
[material_modifier] => 1
[work_modifier] => 1
[options] => Array
(
[0] => 300 мм
[1] => 400 мм
[2] => 500 мм
[3] => 600 мм
)
[days] => [25,27,31,34]
[material_price] => [5262,6844,8330,9815]
[work_price] => [8331,9135,10427,11069]
[image] => https://akademik-stroy.ru/wp-content/uploads/materials/kamen.jpg
[area_modifier] => 54.1
[parent_name] => Стены 2 этаж (несущие)
[parent_id] => 5
[material_sum] => 358689
[work_sum] => 473242
[total_sum] => 831931
[total_days] => 25
[display_material_sum] => 358 689
[display_work_sum] => 473 242
[display_total_sum] => 831 931
)
1
831 931₽
Работа:473 242 ₽
Материалы:358 689 ₽
Дни:25
stdClass Object
(
[id] => 201
[attribute_id] => 5
[name] => Каркасно-щитовые
[material_modifier] => 1
[work_modifier] => 1
[options] => Array
(
[0] => 150 мм
[1] => 200 мм
[2] => 250 мм
[3] => 300 мм
[4] => 350 мм
[5] => 400 мм
)
[days] => [15,16,17,18,19,20]
[material_price] => [2379,2639,2898,3458,3601,4175]
[work_price] => [2538,2820,3134,3483,4062,5642]
[image] => https://akademik-stroy.ru/wp-content/uploads/materials/karkasno-shchitovye.jpg
[area_modifier] => 54.1
[parent_name] => Стены 2 этаж (несущие)
[parent_id] => 5
[material_sum] => 162167
[work_sum] => 144171
[total_sum] => 306338
[total_days] => 15
[display_material_sum] => 162 167
[display_work_sum] => 144 171
[display_total_sum] => 306 338
)
1
306 338₽
Работа:144 171 ₽
Материалы:162 167 ₽
Дни:15
stdClass Object
(
[id] => 202
[attribute_id] => 5
[name] => Рубленные
[material_modifier] => 1
[work_modifier] => 1
[options] => Array
(
[0] => 150 мм
[1] => 200 мм
[2] => 250 мм
[3] => 300 мм
[4] => 350 мм
[5] => 400 мм
)
[days] => [15,16,17,18,17,18]
[material_price] => [35950,50267,60583,75900,80217,100533]
[work_price] => [9612,12816,16020,19224,22428,25632]
[image] => https://akademik-stroy.ru/wp-content/uploads/materials/rublennye.jpg
[area_modifier] => 54.1
[parent_name] => Стены 2 этаж (несущие)
[parent_id] => 5
[material_sum] => 2450568
[work_sum] => 546010
[total_sum] => 2996578
[total_days] => 15
[display_material_sum] => 2 450 568
[display_work_sum] => 546 010
[display_total_sum] => 2 996 578
)
1
2 996 578₽
Работа:546 010 ₽
Материалы:2 450 568 ₽
Дни:15
stdClass Object
(
[id] => 203
[attribute_id] => 5
[name] => Теплоблок
[material_modifier] => 1
[work_modifier] => 1
[options] => Array
(
[0] => 300 мм (с облицовкой, не покрашенный)
[1] => 400 мм (с облицовкой, не покрашенный)
[2] => 300 мм (с облицовкой, покрашенный)
[3] => 400 мм (с облицовкой, покрашенный)
)
[days] => [15,16,15,16]
[material_price] => [2888,3729,3957,4258]
[work_price] => [2564,3229,2949,3713]
[image] => https://akademik-stroy.ru/wp-content/uploads/materials/teploblok.jpg
[area_modifier] => 54.1
[parent_name] => Стены 2 этаж (несущие)
[parent_id] => 5
[material_sum] => 196863
[work_sum] => 145648
[total_sum] => 342511
[total_days] => 15
[display_material_sum] => 196 863
[display_work_sum] => 145 648
[display_total_sum] => 342 511
)
1
342 511₽
Работа:145 648 ₽
Материалы:196 863 ₽
Дни:15
stdClass Object
(
[id] => 204
[attribute_id] => 5
[name] => Арболитовые блоки
[material_modifier] => 1
[work_modifier] => 1
[options] => Array
(
[0] => 300 мм
[1] => 400 мм
[2] => 600 мм
)
[days] => [19,22,27]
[material_price] => [3210,4475,5852]
[work_price] => [4214,4788,5866]
[image] => https://akademik-stroy.ru/wp-content/uploads/materials/arbolitovye-bloki.png
[area_modifier] => 54.1
[parent_name] => Стены 2 этаж (несущие)
[parent_id] => 5
[material_sum] => 218813
[work_sum] => 239376
[total_sum] => 458189
[total_days] => 19
[display_material_sum] => 218 813
[display_work_sum] => 239 376
[display_total_sum] => 458 189
)
1
458 189₽
Работа:239 376 ₽
Материалы:218 813 ₽
Дни:19
stdClass Object
(
[id] => 205
[attribute_id] => 5
[name] => Полистиролбетон
[material_modifier] => 1
[work_modifier] => 1
[options] => Array
(
[0] => 300 мм
[1] => 400 мм
[2] => 600 мм
)
[days] => [29,31,35]
[material_price] => [2798,4573,5256]
[work_price] => [5038,5851,6426]
[image] => https://akademik-stroy.ru/wp-content/uploads/materials/polistirolbeton.jpg
[area_modifier] => 54.1
[parent_name] => Стены 2 этаж (несущие)
[parent_id] => 5
[material_sum] => 190728
[work_sum] => 286184
[total_sum] => 476912
[total_days] => 29
[display_material_sum] => 190 728
[display_work_sum] => 286 184
[display_total_sum] => 476 912
)
1
476 912₽
Работа:286 184 ₽
Материалы:190 728 ₽
Дни:29
stdClass Object
(
[id] => 206
[attribute_id] => 5
[name] => Шлакоблок
[material_modifier] => 1
[work_modifier] => 1
[options] => Array
(
[0] => 400 мм
[1] => 600 мм
)
[days] => [15,16]
[material_price] => [2391,3471]
[work_price] => [2642,3662]
[image] => https://akademik-stroy.ru/wp-content/uploads/materials/shlakoblok.jpg
[area_modifier] => 54.1
[parent_name] => Стены 2 этаж (несущие)
[parent_id] => 5
[material_sum] => 162985
[work_sum] => 150079
[total_sum] => 313064
[total_days] => 15
[display_material_sum] => 162 985
[display_work_sum] => 150 079
[display_total_sum] => 313 064
)
1
313 064₽
Работа:150 079 ₽
Материалы:162 985 ₽
Дни:15
stdClass Object
(
[id] => 245
[attribute_id] => 5
[name] => Теплая керамика
[material_modifier] => 1
[work_modifier] => 1
[options] => Array
(
[0] => 380 мм
[1] => 380 мм Thermo
[2] => 440 мм
[3] => 510 мм
)
[days] => [10,10,11,12]
[material_price] => [4510,5098,6093,8013]
[work_price] => [4737,4937,5903,6958]
[image] => https://akademik-stroy.ru/wp-content/uploads/materials/teplaya-keramika.jpg
[area_modifier] => 54.1
[parent_name] => Стены 2 этаж (несущие)
[parent_id] => 5
[material_sum] => 307429
[work_sum] => 269085
[total_sum] => 576514
[total_days] => 10
[display_material_sum] => 307 429
[display_work_sum] => 269 085
[display_total_sum] => 576 514
)
1
576 514₽
Работа:269 085 ₽
Материалы:307 429 ₽
Дни:10
stdClass Object
(
[id] => 246
[attribute_id] => 5
[name] => Несъемная опалубка
[material_modifier] => 1
[work_modifier] => 1
[options] => Array
(
[0] => 380 мм
[1] => 380 мм Thermo
[2] => 440 мм
[3] => 510 мм
)
[days] => [10,10,11,12]
[material_price] => [3302,3902,4108,5008]
[work_price] => [2100,2100,2300,2534]
[image] => https://akademik-stroy.ru/wp-content/uploads/materials/nesemnaya-opalubka.jpg
[area_modifier] => 54.1
[parent_name] => Стены 2 этаж (несущие)
[parent_id] => 5
[material_sum] => 225084
[work_sum] => 119291
[total_sum] => 344375
[total_days] => 10
[display_material_sum] => 225 084
[display_work_sum] => 119 291
[display_total_sum] => 344 375
)
1
344 375₽
Работа:119 291 ₽
Материалы:225 084 ₽
Дни:10
stdClass Object
(
[id] => 254
[attribute_id] => 5
[name] => Бревно
[material_modifier] => 1
[work_modifier] => 1
[options] => Array
(
[0] => 260 мм
[1] => 320 мм
[2] => 360 мм
[3] => 400 мм
[4] => 500 мм
)
[days] => [7,8,9,10,11]
[material_price] => [1874,24045,26930,30972,38825]
[work_price] => [5046,6207,6952,7716,9723]
[image] => https://akademik-stroy.ru/wp-content/uploads/materials/sruby.jpg
[area_modifier] => 54.1
[parent_name] => Стены 2 этаж (несущие)
[parent_id] => 5
[material_sum] => 127743
[work_sum] => 286638
[total_sum] => 414381
[total_days] => 7
[display_material_sum] => 127 743
[display_work_sum] => 286 638
[display_total_sum] => 414 381
)
1
414 381₽
Работа:286 638 ₽
Материалы:127 743 ₽
Дни:7
stdClass Object
(
[id] => 164
[attribute_id] => 37
[name] => Металлочерепица
[material_modifier] => 1
[work_modifier] => 1
[options] => Array
(
)
[days] => [20]
[material_price] => [6112]
[work_price] => [5726]
[image] => https://akademik-stroy.ru/wp-content/uploads/materials/metallocherepica.jpg
[area_modifier] => 199.25
[parent_name] => Крыша (Скатная)
[parent_id] => 37
[material_sum] => 1534448
[work_sum] => 1197951
[total_sum] => 2732399
[total_days] => 20
[display_material_sum] => 1 534 448
[display_work_sum] => 1 197 951
[display_total_sum] => 2 732 399
)
1
2 732 399₽
Работа:1 197 951 ₽
Материалы:1 534 448 ₽
Дни:20
stdClass Object
(
[id] => 165
[attribute_id] => 37
[name] => Гибкая черепица
[material_modifier] => 1
[work_modifier] => 1
[options] => Array
(
)
[days] => [20]
[material_price] => [6980]
[work_price] => [5950]
[image] => https://akademik-stroy.ru/wp-content/uploads/materials/gibkaya-cherepica.jpg
[area_modifier] => 199.25
[parent_name] => Крыша (Скатная)
[parent_id] => 37
[material_sum] => 1752364
[work_sum] => 1244814
[total_sum] => 2997178
[total_days] => 20
[display_material_sum] => 1 752 364
[display_work_sum] => 1 244 814
[display_total_sum] => 2 997 178
)
1
2 997 178₽
Работа:1 244 814 ₽
Материалы:1 752 364 ₽
Дни:20
stdClass Object
(
[id] => 166
[attribute_id] => 37
[name] => Цементно-песчаная черепица
[material_modifier] => 1
[work_modifier] => 1
[options] => Array
(
)
[days] => [20]
[material_price] => [10560]
[work_price] => [9456]
[image] => https://akademik-stroy.ru/wp-content/uploads/materials/cementno-peschanaya-cherepica.jpg
[area_modifier] => 199.25
[parent_name] => Крыша (Скатная)
[parent_id] => 37
[material_sum] => 2651141
[work_sum] => 1978313
[total_sum] => 4629454
[total_days] => 20
[display_material_sum] => 2 651 141
[display_work_sum] => 1 978 313
[display_total_sum] => 4 629 454
)
1
4 629 454₽
Работа:1 978 313 ₽
Материалы:2 651 141 ₽
Дни:20
stdClass Object
(
[id] => 167
[attribute_id] => 37
[name] => Композитная черепица
[material_modifier] => 1
[work_modifier] => 1
[options] => Array
(
)
[days] => [20]
[material_price] => [9506]
[work_price] => [8905]
[image] => https://akademik-stroy.ru/wp-content/uploads/materials/kompozitnaya-cherepica.jpg
[area_modifier] => 199.25
[parent_name] => Крыша (Скатная)
[parent_id] => 37
[material_sum] => 2386529
[work_sum] => 1863037
[total_sum] => 4249566
[total_days] => 20
[display_material_sum] => 2 386 529
[display_work_sum] => 1 863 037
[display_total_sum] => 4 249 566
)
1
4 249 566₽
Работа:1 863 037 ₽
Материалы:2 386 529 ₽
Дни:20
stdClass Object
(
[id] => 168
[attribute_id] => 37
[name] => Керамическая черепица
[material_modifier] => 1
[work_modifier] => 1
[options] => Array
(
)
[days] => [20]
[material_price] => [12750]
[work_price] => [9456]
[image] => https://akademik-stroy.ru/wp-content/uploads/materials/keramicheskaya-cherepica.jpg
[area_modifier] => 199.25
[parent_name] => Крыша (Скатная)
[parent_id] => 37
[material_sum] => 3200951
[work_sum] => 1978313
[total_sum] => 5179264
[total_days] => 20
[display_material_sum] => 3 200 951
[display_work_sum] => 1 978 313
[display_total_sum] => 5 179 264
)
1
5 179 264₽
Работа:1 978 313 ₽
Материалы:3 200 951 ₽
Дни:20
stdClass Object
(
[id] => 169
[attribute_id] => 37
[name] => Металлическая фальцевая
[material_modifier] => 1
[work_modifier] => 1
[options] => Array
(
)
[days] => [20]
[material_price] => [8550]
[work_price] => [8190]
[image] => https://akademik-stroy.ru/wp-content/uploads/materials/metallicheskaya-falcevaya.jpg
[area_modifier] => 199.25
[parent_name] => Крыша (Скатная)
[parent_id] => 37
[material_sum] => 2146520
[work_sum] => 1713450
[total_sum] => 3859970
[total_days] => 20
[display_material_sum] => 2 146 520
[display_work_sum] => 1 713 450
[display_total_sum] => 3 859 970
)
1
3 859 970₽
Работа:1 713 450 ₽
Материалы:2 146 520 ₽
Дни:20
stdClass Object
(
[id] => 170
[attribute_id] => 37
[name] => Медная фальцевая
[material_modifier] => 1
[work_modifier] => 1
[options] => Array
(
)
[days] => [20]
[material_price] => [20450]
[work_price] => [16750]
[image] => https://akademik-stroy.ru/wp-content/uploads/materials/mednaya-falcevaya.jpg
[area_modifier] => 199.25
[parent_name] => Крыша (Скатная)
[parent_id] => 37
[material_sum] => 5134075
[work_sum] => 3504309
[total_sum] => 8638384
[total_days] => 20
[display_material_sum] => 5 134 075
[display_work_sum] => 3 504 309
[display_total_sum] => 8 638 384
)
1
8 638 384₽
Работа:3 504 309 ₽
Материалы:5 134 075 ₽
Дни:20
stdClass Object
(
[id] => 171
[attribute_id] => 37
[name] => Зеленая кровля
[material_modifier] => 1
[work_modifier] => 1
[options] => Array
(
)
[days] => [20]
[material_price] => [19850]
[work_price] => [16780]
[image] => https://akademik-stroy.ru/wp-content/uploads/materials/zelenaya-krovlya.jpg
[area_modifier] => 199.25
[parent_name] => Крыша (Скатная)
[parent_id] => 37
[material_sum] => 4983442
[work_sum] => 3510586
[total_sum] => 8494028
[total_days] => 20
[display_material_sum] => 4 983 442
[display_work_sum] => 3 510 586
[display_total_sum] => 8 494 028
)
1
8 494 028₽
Работа:3 510 586 ₽
Материалы:4 983 442 ₽
Дни:20
stdClass Object
(
[id] => 172
[attribute_id] => 37
[name] => Профлист
[material_modifier] => 1
[work_modifier] => 1
[options] => Array
(
)
[days] => [20]
[material_price] => [3450]
[work_price] => [3750]
[image] => https://akademik-stroy.ru/wp-content/uploads/materials/proflist.jpg
[area_modifier] => 199.25
[parent_name] => Крыша (Скатная)
[parent_id] => 37
[material_sum] => 866140
[work_sum] => 784547
[total_sum] => 1650687
[total_days] => 20
[display_material_sum] => 866 140
[display_work_sum] => 784 547
[display_total_sum] => 1 650 687
)
1
1 650 687₽
Работа:784 547 ₽
Материалы:866 140 ₽
Дни:20
stdClass Object
(
[id] => 51
[attribute_id] => 26
[name] => Есть
[material_modifier] => 1
[work_modifier] => 1
[options] => Array
(
[0] => Профиль 58 мм, 3-камерный, стеклопакет 2-камерный до 32 мм
[1] => Профиль 60 мм, 4-камерный, стеклопакет 2-камерный до 32 мм
[2] => Профиль 70 мм, 5-камерный, стеклопакет 2-камерный до 40 мм
[3] => Профиль 72 мм, 5-камерный, стеклопакет 2-камерный до 40 мм
[4] => Алюминиевые окна Alutech профиль 72 мм, стеклопакет 2-камерный
)
[days] => [3,3,3,3,3]
[material_price] => [1339,2124,2867,3023,29596]
[work_price] => [635,647,659,668,2579]
[image] => https://akademik-stroy.ru/wp-content/uploads/materials/okna.jpg
[area_modifier] => 205.59
[parent_name] => Окна
[parent_id] => 26
[material_sum] => 346859
[work_sum] => 137077
[total_sum] => 483936
[total_days] => 3
[display_material_sum] => 346 859
[display_work_sum] => 137 077
[display_total_sum] => 483 936
)
1
483 936₽
Работа:137 077 ₽
Материалы:346 859 ₽
Дни:3
stdClass Object
(
[id] => 52
[attribute_id] => 26
[name] => Нет
[material_modifier] => 2
[work_modifier] => 1
[options] =>
[days] => null
[material_price] => null
[work_price] => null
[image] => https://akademik-stroy.ru/wp-content/uploads/materials/okna.jpg
[area_modifier] => 205.59
[parent_name] => Окна
[parent_id] => 26
[material_sum] => 0
[work_sum] => 0
[total_sum] => 0
[total_days] => 0
[display_material_sum] => 0
[display_work_sum] => 0
[display_total_sum] => 0
)
1
0₽
Работа:0 ₽
Материалы:0 ₽
Дни:0
stdClass Object
(
[id] => 53
[attribute_id] => 27
[name] => Есть
[material_modifier] => 1
[work_modifier] => 1
[options] => Array
(
)
[days] => [1]
[material_price] => [10000]
[work_price] => [5500]
[image] => https://akademik-stroy.ru/wp-content/uploads/materials/dveri.jpg
[area_modifier] => 1
[parent_name] => Двери входные
[parent_id] => 27
[material_sum] => 12600
[work_sum] => 5775
[total_sum] => 18375
[total_days] => 1
[display_material_sum] => 12 600
[display_work_sum] => 5 775
[display_total_sum] => 18 375
)
1
18 375₽
Работа:5 775 ₽
Материалы:12 600 ₽
Дни:1
stdClass Object
(
[id] => 54
[attribute_id] => 27
[name] => Нет
[material_modifier] => 1
[work_modifier] => 1
[options] => Array
(
)
[days] => [0]
[material_price] => [0]
[work_price] => [0]
[image] => https://akademik-stroy.ru/wp-content/uploads/materials/dveri.jpg
[area_modifier] => 1
[parent_name] => Двери входные
[parent_id] => 27
[material_sum] => 0
[work_sum] => 0
[total_sum] => 0
[total_days] => 0
[display_material_sum] => 0
[display_work_sum] => 0
[display_total_sum] => 0
)
1
0₽
Работа:0 ₽
Материалы:0 ₽
Дни:0
stdClass Object
(
[id] => 25
[attribute_id] => 13
[name] => Нет
[material_modifier] => 1
[work_modifier] => 1
[options] => Array
(
)
[days] => [0]
[material_price] => [0]
[work_price] => [0]
[image] => https://akademik-stroy.ru/wp-content/uploads/materials/mineralovata-krov.jpg
[area_modifier] => 199.25
[parent_name] => Утепление кровли (Мансарда)
[parent_id] => 13
[material_sum] => 0
[work_sum] => 0
[total_sum] => 0
[total_days] => 0
[display_material_sum] => 0
[display_work_sum] => 0
[display_total_sum] => 0
)
1
0₽
Работа:0 ₽
Материалы:0 ₽
Дни:0
stdClass Object
(
[id] => 26
[attribute_id] => 13
[name] => Минераловатный
[material_modifier] => 1
[work_modifier] => 1
[options] => Array
(
[0] => 50 мм
[1] => 100 мм
[2] => 150 мм
[3] => 200 мм
[4] => 250 мм
[5] => 300 мм
[6] => 350 мм
[7] => 400 мм
[8] => 450 мм
[9] => 500 мм
)
[days] => [5,5,6,6,6,7,7,7,8,8]
[material_price] => [1158,1414,1772,2230,3602,4060,4974,5890,6408,7718]
[work_price] => [650,846,846,1098,1318,1450,1596,1754,1930,2122]
[image] => https://akademik-stroy.ru/wp-content/uploads/materials/mineralovata-krov.jpg
[area_modifier] => 199.25
[parent_name] => Утепление кровли (Мансарда)
[parent_id] => 13
[material_sum] => 290722
[work_sum] => 135988
[total_sum] => 426710
[total_days] => 5
[display_material_sum] => 290 722
[display_work_sum] => 135 988
[display_total_sum] => 426 710
)
1
426 710₽
Работа:135 988 ₽
Материалы:290 722 ₽
Дни:5
stdClass Object
(
[id] => 123
[attribute_id] => 13
[name] => Эковата (целлюлозная вата)
[material_modifier] => 1
[work_modifier] => 1
[options] => Array
(
[0] => 50 мм
[1] => 100 мм
[2] => 150 мм
[3] => 200 мм
[4] => 250 мм
[5] => 300 мм
[6] => 350 мм
[7] => 400 мм
[8] => 450 мм
[9] => 500 мм
)
[days] => [3,3,4,4,4,5,5,5,5,5]
[material_price] => [820,1638,2458,3276,5734,6552,8190,9828,11466,13104]
[work_price] => [234,304,304,396,474,522,574,632,694,764]
[image] => https://akademik-stroy.ru/wp-content/uploads/materials/ehkovata-krov.jpg
[area_modifier] => 199.25
[parent_name] => Утепление кровли (Мансарда)
[parent_id] => 13
[material_sum] => 205865
[work_sum] => 48956
[total_sum] => 254821
[total_days] => 3
[display_material_sum] => 205 865
[display_work_sum] => 48 956
[display_total_sum] => 254 821
)
1
254 821₽
Работа:48 956 ₽
Материалы:205 865 ₽
Дни:3
stdClass Object
(
[id] => 124
[attribute_id] => 13
[name] => Экструдированный пенополистирол
[material_modifier] => 1
[work_modifier] => 1
[options] => Array
(
[0] => 50 мм
[1] => 100 мм
[2] => 150 мм
[3] => 200 мм
[4] => 250 мм
[5] => 300 мм
[6] => 350 мм
[7] => 400 мм
[8] => 450 мм
[9] => 500 мм
)
[days] => [3,3,4,4,4,5,5,5,5,6]
[material_price] => [1146,2292,3438,4584,8020,9166,11458,13750,16040,18332]
[work_price] => [390,508,508,660,790,870,958,1052,1158,1274]
[image] => https://akademik-stroy.ru/wp-content/uploads/materials/epps-krov.jpg
[area_modifier] => 199.25
[parent_name] => Утепление кровли (Мансарда)
[parent_id] => 13
[material_sum] => 287709
[work_sum] => 81593
[total_sum] => 369302
[total_days] => 3
[display_material_sum] => 287 709
[display_work_sum] => 81 593
[display_total_sum] => 369 302
)
1
369 302₽
Работа:81 593 ₽
Материалы:287 709 ₽
Дни:3
stdClass Object
(
[id] => 125
[attribute_id] => 13
[name] => ПСБ (ППС-пенополистирол)
[material_modifier] => 1
[work_modifier] => 1
[options] => Array
(
[0] => 50 мм
[1] => 100 мм
[2] => 150 мм
[3] => 200 мм
[4] => 250 мм
[5] => 300 мм
[6] => 350 мм
[7] => 400 мм
[8] => 450 мм
[9] => 500 мм
)
[days] => [3,3,4,4,4,5,5,5,5,6]
[material_price] => [476,954,1430,1906,3336,3814,4766,5720,6674,7626]
[work_price] => [390,508,508,660,790,870,958,1052,1158,1274]
[image] => https://akademik-stroy.ru/wp-content/uploads/materials/psb-krov.jpg
[area_modifier] => 199.25
[parent_name] => Утепление кровли (Мансарда)
[parent_id] => 13
[material_sum] => 119502
[work_sum] => 81593
[total_sum] => 201095
[total_days] => 3
[display_material_sum] => 119 502
[display_work_sum] => 81 593
[display_total_sum] => 201 095
)
1
201 095₽
Работа:81 593 ₽
Материалы:119 502 ₽
Дни:3
stdClass Object
(
[id] => 126
[attribute_id] => 13
[name] => ППУ (Пенополиуретан)
[material_modifier] => 1
[work_modifier] => 1
[options] => Array
(
[0] => 50 мм
[1] => 100 мм
[2] => 150 мм
[3] => 200 мм
[4] => 250 мм
[5] => 300 мм
[6] => 350 мм
[7] => 400 мм
[8] => 450 мм
[9] => 500 мм
)
[days] => [2,2,3,3,3,3,4,4,4,4]
[material_price] => [2080,4160,6240,8320,14560,16640,20800,24960,29120,33280]
[work_price] => [234,304,304,396,474,522,574,632,694,764]
[image] => https://akademik-stroy.ru/wp-content/uploads/materials/ppu-krov.jpg
[area_modifier] => 199.25
[parent_name] => Утепление кровли (Мансарда)
[parent_id] => 13
[material_sum] => 522194
[work_sum] => 48956
[total_sum] => 571150
[total_days] => 2
[display_material_sum] => 522 194
[display_work_sum] => 48 956
[display_total_sum] => 571 150
)
1
571 150₽
Работа:48 956 ₽
Материалы:522 194 ₽
Дни:2
stdClass Object
(
[id] => 127
[attribute_id] => 13
[name] => PIR-плиты (пенополиизоцианурат)
[material_modifier] => 1
[work_modifier] => 1
[options] => Array
(
[0] => 50 мм
[1] => 100 мм
[2] => 150 мм
[3] => 200 мм
[4] => 250 мм
[5] => 300 мм
[6] => 350 мм
[7] => 400 мм
[8] => 450 мм
[9] => 500 мм
)
[days] => [3,3,4,4,4,5,5,5,5,6]
[material_price] => [2646,5290,7936,10580,18516,21162,26452,31742,37032,42324]
[work_price] => [390,508,508,660,790,870,958,1052,1158,1274]
[image] => https://akademik-stroy.ru/wp-content/uploads/materials/pir-krov.jpg
[area_modifier] => 199.25
[parent_name] => Утепление кровли (Мансарда)
[parent_id] => 13
[material_sum] => 664292
[work_sum] => 81593
[total_sum] => 745885
[total_days] => 3
[display_material_sum] => 664 292
[display_work_sum] => 81 593
[display_total_sum] => 745 885
)
1
745 885₽
Работа:81 593 ₽
Материалы:664 292 ₽
Дни:3
stdClass Object
(
[id] => 27
[attribute_id] => 14
[name] => Нет
[material_modifier] => 1
[work_modifier] => 1
[options] => Array
(
)
[days] => [0]
[material_price] => [0]
[work_price] => [0]
[image] => https://akademik-stroy.ru/wp-content/uploads/materials/mansardnye-okna-2.jpg
[area_modifier] => 1
[parent_name] => Мансардные окна
[parent_id] => 14
[material_sum] => 0
[work_sum] => 0
[total_sum] => 0
[total_days] => 0
[display_material_sum] => 0
[display_work_sum] => 0
[display_total_sum] => 0
)
1
0₽
Работа:0 ₽
Материалы:0 ₽
Дни:0
stdClass Object
(
[id] => 28
[attribute_id] => 14
[name] => Есть
[material_modifier] => 1
[work_modifier] => 1
[options] => Array
(
[0] => 55x78
[1] => 55x98
)
[days] => [6,7]
[material_price] => [47480,68700]
[work_price] => [17900,19500]
[image] => https://akademik-stroy.ru/wp-content/uploads/materials/mansardnye-okna-2.jpg
[area_modifier] => 1
[parent_name] => Мансардные окна
[parent_id] => 14
[material_sum] => 59825
[work_sum] => 18795
[total_sum] => 78620
[total_days] => 6
[display_material_sum] => 59 825
[display_work_sum] => 18 795
[display_total_sum] => 78 620
)
1
78 620₽
Работа:18 795 ₽
Материалы:59 825 ₽
Дни:6
stdClass Object
(
[id] => 29
[attribute_id] => 15
[name] => Нет
[material_modifier] => 1
[work_modifier] => 1
[options] => Array
(
)
[days] => [0]
[material_price] => [0]
[work_price] => [0]
[image] => https://akademik-stroy.ru/wp-content/uploads/materials/sofit.jpg
[area_modifier] => 199.25
[parent_name] => Подшивка кровли
[parent_id] => 15
[material_sum] => 0
[work_sum] => 0
[total_sum] => 0
[total_days] => 0
[display_material_sum] => 0
[display_work_sum] => 0
[display_total_sum] => 0
)
1
0₽
Работа:0 ₽
Материалы:0 ₽
Дни:0
stdClass Object
(
[id] => 30
[attribute_id] => 15
[name] => Есть
[material_modifier] => 1
[work_modifier] => 1
[options] => Array
(
[0] => Софиты (ПВХ)
[1] => Cedral
[2] => ДПК
[3] => Планкен
)
[days] => [7,10,9,8]
[material_price] => [1803,3213,3025,3150]
[work_price] => [1529,2188,2075,1923]
[image] => https://akademik-stroy.ru/wp-content/uploads/materials/sofit.jpg
[area_modifier] => 199.25
[parent_name] => Подшивка кровли
[parent_id] => 15
[material_sum] => 452652
[work_sum] => 319886
[total_sum] => 772538
[total_days] => 7
[display_material_sum] => 452 652
[display_work_sum] => 319 886
[display_total_sum] => 772 538
)
1
772 538₽
Работа:319 886 ₽
Материалы:452 652 ₽
Дни:7
stdClass Object
(
[id] => 31
[attribute_id] => 16
[name] => Нет
[material_modifier] => 1
[work_modifier] => 1
[options] => Array
(
)
[days] => [0]
[material_price] => [0]
[work_price] => [0]
[image] => https://akademik-stroy.ru/wp-content/uploads/materials/docke-standard-pvh.jpg
[area_modifier] => 199.25
[parent_name] => Водосточная система
[parent_id] => 16
[material_sum] => 0
[work_sum] => 0
[total_sum] => 0
[total_days] => 0
[display_material_sum] => 0
[display_work_sum] => 0
[display_total_sum] => 0
)
1
0₽
Работа:0 ₽
Материалы:0 ₽
Дни:0
stdClass Object
(
[id] => 32
[attribute_id] => 16
[name] => Есть
[material_modifier] => 1
[work_modifier] => 1
[options] => Array
(
[0] => Döcke Standard (ПВХ)
[1] => Металлические Grand Line
)
[days] => [7,7]
[material_price] => [1842,2703]
[work_price] => [1491,1529]
[image] => https://akademik-stroy.ru/wp-content/uploads/materials/docke-standard-pvh.jpg
[area_modifier] => 199.25
[parent_name] => Водосточная система
[parent_id] => 16
[material_sum] => 462443
[work_sum] => 311936
[total_sum] => 774379
[total_days] => 7
[display_material_sum] => 462 443
[display_work_sum] => 311 936
[display_total_sum] => 774 379
)
1
774 379₽
Работа:311 936 ₽
Материалы:462 443 ₽
Дни:7
stdClass Object
(
[id] => 33
[attribute_id] => 17
[name] => Нет
[material_modifier] => 1
[work_modifier] => 1
[options] => Array
(
)
[days] => [0]
[material_price] => [0]
[work_price] => [0]
[image] => https://akademik-stroy.ru/wp-content/uploads/materials/mineralovata.jpg
[area_modifier] => 253.35
[parent_name] => Дополнительное утепление наружных стен
[parent_id] => 17
[material_sum] => 0
[work_sum] => 0
[total_sum] => 0
[total_days] => 0
[display_material_sum] => 0
[display_work_sum] => 0
[display_total_sum] => 0
)
1
0₽
Работа:0 ₽
Материалы:0 ₽
Дни:0
stdClass Object
(
[id] => 34
[attribute_id] => 17
[name] => Минераловатный
[material_modifier] => 1
[work_modifier] => 1
[options] => Array
(
[0] => 50 мм
[1] => 100 мм
[2] => 150 мм
[3] => 200 мм
[4] => 250 мм
[5] => 300 мм
)
[days] => [7,8,10,12,14,15]
[material_price] => [3437,3613,3803,3915,4601,4830]
[work_price] => [2325,2423,2523,2749,2859,3025]
[image] => https://akademik-stroy.ru/wp-content/uploads/materials/mineralovata.jpg
[area_modifier] => 253.35
[parent_name] => Дополнительное утепление наружных стен
[parent_id] => 17
[material_sum] => 1097163
[work_sum] => 618491
[total_sum] => 1715654
[total_days] => 7
[display_material_sum] => 1 097 163
[display_work_sum] => 618 491
[display_total_sum] => 1 715 654
)
1
1 715 654₽
Работа:618 491 ₽
Материалы:1 097 163 ₽
Дни:7
stdClass Object
(
[id] => 128
[attribute_id] => 17
[name] => Эковата (целлюлозная вата)
[material_modifier] => 1
[work_modifier] => 1
[options] => Array
(
[0] => 50 мм
[1] => 100 мм
[2] => 150 мм
[3] => 200 мм
[4] => 250 мм
[5] => 300 мм
)
[days] => [3,4,5,6,7,8]
[material_price] => [810,1319,1629,1838,2267,2676]
[work_price] => [1225,1323,1423,1549,1659,1725]
[image] => https://akademik-stroy.ru/wp-content/uploads/materials/ehkovata.jpg
[area_modifier] => 253.35
[parent_name] => Дополнительное утепление наружных стен
[parent_id] => 17
[material_sum] => 258569
[work_sum] => 325871
[total_sum] => 584440
[total_days] => 3
[display_material_sum] => 258 569
[display_work_sum] => 325 871
[display_total_sum] => 584 440
)
1
584 440₽
Работа:325 871 ₽
Материалы:258 569 ₽
Дни:3
stdClass Object
(
[id] => 129
[attribute_id] => 17
[name] => Экструдированный пенополистирол
[material_modifier] => 1
[work_modifier] => 1
[options] => Array
(
[0] => 50 мм
[1] => 100 мм
[2] => 150 мм
[3] => 200 мм
[4] => 250 мм
[5] => 300 мм
)
[days] => [5,6,7,8,9,10]
[material_price] => [4560,4300,5119,6292,7010,8583]
[work_price] => [1795,1954,2254,2330,2595,2735]
[image] => https://akademik-stroy.ru/wp-content/uploads/materials/epps.jpg
[area_modifier] => 253.35
[parent_name] => Дополнительное утепление наружных стен
[parent_id] => 17
[material_sum] => 1455648
[work_sum] => 477501
[total_sum] => 1933149
[total_days] => 5
[display_material_sum] => 1 455 648
[display_work_sum] => 477 501
[display_total_sum] => 1 933 149
)
1
1 933 149₽
Работа:477 501 ₽
Материалы:1 455 648 ₽
Дни:5
stdClass Object
(
[id] => 130
[attribute_id] => 17
[name] => ПСБ (ППС-пенополистирол)
[material_modifier] => 1
[work_modifier] => 1
[options] => Array
(
[0] => 50 мм
[1] => 100 мм
[2] => 150 мм
[3] => 200 мм
[4] => 250 мм
[5] => 300 мм
)
[days] => [5,6,7,8,9,10]
[material_price] => [4822,5200,5819,6292,7010,7583]
[work_price] => [1795,1954,2254,2330,2595,2735]
[image] => https://akademik-stroy.ru/wp-content/uploads/materials/psb.jpg
[area_modifier] => 253.35
[parent_name] => Дополнительное утепление наружных стен
[parent_id] => 17
[material_sum] => 1539284
[work_sum] => 477501
[total_sum] => 2016785
[total_days] => 5
[display_material_sum] => 1 539 284
[display_work_sum] => 477 501
[display_total_sum] => 2 016 785
)
1
2 016 785₽
Работа:477 501 ₽
Материалы:1 539 284 ₽
Дни:5
stdClass Object
(
[id] => 131
[attribute_id] => 17
[name] => ППУ (Пенополиуретан)
[material_modifier] => 1
[work_modifier] => 1
[options] => Array
(
[0] => 50 мм
[1] => 100 мм
[2] => 150 мм
[3] => 200 мм
[4] => 250 мм
[5] => 300 мм
)
[days] => [3,4,5,6,7,8]
[material_price] => [2860,3400,4219,4592,5010,5583]
[work_price] => [729,900,980,1120,1280,1530]
[image] => https://akademik-stroy.ru/wp-content/uploads/materials/ppu.jpg
[area_modifier] => 253.35
[parent_name] => Дополнительное утепление наружных стен
[parent_id] => 17
[material_sum] => 912972
[work_sum] => 193927
[total_sum] => 1106899
[total_days] => 3
[display_material_sum] => 912 972
[display_work_sum] => 193 927
[display_total_sum] => 1 106 899
)
1
1 106 899₽
Работа:193 927 ₽
Материалы:912 972 ₽
Дни:3
stdClass Object
(
[id] => 132
[attribute_id] => 17
[name] => PIR-плиты (пенополиизоцианурат)
[material_modifier] => 1
[work_modifier] => 1
[options] => Array
(
[0] => 50 мм
[1] => 100 мм
[2] => 150 мм
[3] => 200 мм
[4] => 250 мм
[5] => 300 мм
)
[days] => [5,6,7,8,9,10]
[material_price] => [8323,15645,20968,25900,29258,30581]
[work_price] => [800,900,970,1150,1280,1330]
[image] => https://akademik-stroy.ru/wp-content/uploads/materials/pir.jpg
[area_modifier] => 253.35
[parent_name] => Дополнительное утепление наружных стен
[parent_id] => 17
[material_sum] => 2656876
[work_sum] => 212814
[total_sum] => 2869690
[total_days] => 5
[display_material_sum] => 2 656 876
[display_work_sum] => 212 814
[display_total_sum] => 2 869 690
)
1
2 869 690₽
Работа:212 814 ₽
Материалы:2 656 876 ₽
Дни:5
stdClass Object
(
[id] => 37
[attribute_id] => 19
[name] => Нет
[material_modifier] => 1
[work_modifier] => 1
[options] => Array
(
)
[days] => [0]
[material_price] => [0]
[work_price] => [0]
[image] => https://akademik-stroy.ru/wp-content/uploads/materials/imitaciya-brusa.jpg
[area_modifier] => 253.35
[parent_name] => Наружная отделка фасада
[parent_id] => 19
[material_sum] => 0
[work_sum] => 0
[total_sum] => 0
[total_days] => 0
[display_material_sum] => 0
[display_work_sum] => 0
[display_total_sum] => 0
)
1
0₽
Работа:0 ₽
Материалы:0 ₽
Дни:0
stdClass Object
(
[id] => 38
[attribute_id] => 19
[name] => Имитация бруса
[material_modifier] => 1
[work_modifier] => 1
[options] => Array
(
[0] => Сосна
[1] => Ель
[2] => Лиственница
)
[days] => [20,20,20]
[material_price] => [2994,2762,4954]
[work_price] => [1397,1231,1577]
[image] => https://akademik-stroy.ru/wp-content/uploads/materials/imitaciya-brusa.jpg
[area_modifier] => 253.35
[parent_name] => Наружная отделка фасада
[parent_id] => 19
[material_sum] => 955748
[work_sum] => 371626
[total_sum] => 1327374
[total_days] => 20
[display_material_sum] => 955 748
[display_work_sum] => 371 626
[display_total_sum] => 1 327 374
)
1
1 327 374₽
Работа:371 626 ₽
Материалы:955 748 ₽
Дни:20
stdClass Object
(
[id] => 136
[attribute_id] => 19
[name] => Планкен
[material_modifier] => 1
[work_modifier] => 1
[options] => Array
(
[0] => Сосна
[1] => Ель
[2] => Лиственница
)
[days] => [20,20,20]
[material_price] => [3194,2862,5154]
[work_price] => [1537,1354,1735]
[image] => https://akademik-stroy.ru/wp-content/uploads/materials/planken.jpg
[area_modifier] => 253.35
[parent_name] => Наружная отделка фасада
[parent_id] => 19
[material_sum] => 1019592
[work_sum] => 408869
[total_sum] => 1428461
[total_days] => 20
[display_material_sum] => 1 019 592
[display_work_sum] => 408 869
[display_total_sum] => 1 428 461
)
1
1 428 461₽
Работа:408 869 ₽
Материалы:1 019 592 ₽
Дни:20
stdClass Object
(
[id] => 137
[attribute_id] => 19
[name] => Штукатурка
[material_modifier] => 1
[work_modifier] => 1
[options] => Array
(
[0] => Цементно-песчаная (минеральная)
[1] => Мокрый фасад
)
[days] => [35,35]
[material_price] => [2231,3938]
[work_price] => [1202,2422]
[image] => https://akademik-stroy.ru/wp-content/uploads/materials/shtukaturka.jpg
[area_modifier] => 253.35
[parent_name] => Наружная отделка фасада
[parent_id] => 19
[material_sum] => 712182
[work_sum] => 319753
[total_sum] => 1031935
[total_days] => 35
[display_material_sum] => 712 182
[display_work_sum] => 319 753
[display_total_sum] => 1 031 935
)
1
1 031 935₽
Работа:319 753 ₽
Материалы:712 182 ₽
Дни:35
stdClass Object
(
[id] => 138
[attribute_id] => 19
[name] => Облицовочный кирпич
[material_modifier] => 1
[work_modifier] => 1
[options] => Array
(
[0] => Керамический
[1] => Клинкерный
[2] => Ручной формовки
[3] => Гиперпрессованный
[4] => Силикатный кирпич
)
[days] => [45,45,45,45,45]
[material_price] => [8174,9148,1040,1257,5876]
[work_price] => [3240,3758,4536,4017,3369]
[image] => https://akademik-stroy.ru/wp-content/uploads/materials/oblicovochnyj-kirpich.jpg
[area_modifier] => 253.35
[parent_name] => Наружная отделка фасада
[parent_id] => 19
[material_sum] => 2609312
[work_sum] => 861897
[total_sum] => 3471209
[total_days] => 45
[display_material_sum] => 2 609 312
[display_work_sum] => 861 897
[display_total_sum] => 3 471 209
)
1
3 471 209₽
Работа:861 897 ₽
Материалы:2 609 312 ₽
Дни:45
stdClass Object
(
[id] => 139
[attribute_id] => 19
[name] => Фасадная плитка
[material_modifier] => 1
[work_modifier] => 1
[options] => Array
(
[0] => Клинкерная
[1] => Керамическая
[2] => Плитка ручной формовки
)
[days] => [40,40,40]
[material_price] => [2974,1487,3470]
[work_price] => [3007,2592,3629]
[image] => https://akademik-stroy.ru/wp-content/uploads/materials/fasadnaya-plitka.jpg
[area_modifier] => 253.35
[parent_name] => Наружная отделка фасада
[parent_id] => 19
[material_sum] => 949363
[work_sum] => 799915
[total_sum] => 1749278
[total_days] => 40
[display_material_sum] => 949 363
[display_work_sum] => 799 915
[display_total_sum] => 1 749 278
)
1
1 749 278₽
Работа:799 915 ₽
Материалы:949 363 ₽
Дни:40
stdClass Object
(
[id] => 140
[attribute_id] => 19
[name] => Сайдинг
[material_modifier] => 1
[work_modifier] => 1
[options] => Array
(
[0] => Виниловый
[1] => Металлический
[2] => Фиброцементный
)
[days] => [20,20,20]
[material_price] => [1263,1944,4147]
[work_price] => [1263,1944,2074]
[image] => https://akademik-stroy.ru/wp-content/uploads/materials/sajding.jpg
[area_modifier] => 253.35
[parent_name] => Наружная отделка фасада
[parent_id] => 19
[material_sum] => 403176
[work_sum] => 335980
[total_sum] => 739156
[total_days] => 20
[display_material_sum] => 403 176
[display_work_sum] => 335 980
[display_total_sum] => 739 156
)
1
739 156₽
Работа:335 980 ₽
Материалы:403 176 ₽
Дни:20
stdClass Object
(
[id] => 141
[attribute_id] => 19
[name] => Камень
[material_modifier] => 1
[work_modifier] => 1
[options] => Array
(
[0] => Травертин
[1] => Дагестанский
[2] => Искусственный
[3] => Натуральный
[4] => Керамогранит
)
[days] => [45,45,45,45,45]
[material_price] => [4536,3888,2592,3240,2462]
[work_price] => [3240,3240,2462,3110,1944]
[image] => https://akademik-stroy.ru/wp-content/uploads/materials/kamen-1.jpg
[area_modifier] => 253.35
[parent_name] => Наружная отделка фасада
[parent_id] => 19
[material_sum] => 1447986
[work_sum] => 861897
[total_sum] => 2309883
[total_days] => 45
[display_material_sum] => 1 447 986
[display_work_sum] => 861 897
[display_total_sum] => 2 309 883
)
1
2 309 883₽
Работа:861 897 ₽
Материалы:1 447 986 ₽
Дни:45
stdClass Object
(
[id] => 142
[attribute_id] => 19
[name] => Термопанели
[material_modifier] => 1
[work_modifier] => 1
[options] => Array
(
)
[days] => [20]
[material_price] => [6221]
[work_price] => [2333]
[image] => https://akademik-stroy.ru/wp-content/uploads/materials/termo.png
[area_modifier] => 253.35
[parent_name] => Наружная отделка фасада
[parent_id] => 19
[material_sum] => 1985874
[work_sum] => 620619
[total_sum] => 2606493
[total_days] => 20
[display_material_sum] => 1 985 874
[display_work_sum] => 620 619
[display_total_sum] => 2 606 493
)
1
2 606 493₽
Работа:620 619 ₽
Материалы:1 985 874 ₽
Дни:20
stdClass Object
(
[id] => 143
[attribute_id] => 19
[name] => Плитка HAUBERK
[material_modifier] => 1
[work_modifier] => 1
[options] => Array
(
)
[days] => [20]
[material_price] => [2786]
[work_price] => [1944]
[image] => https://akademik-stroy.ru/wp-content/uploads/materials/hauberk.jpg
[area_modifier] => 253.35
[parent_name] => Наружная отделка фасада
[parent_id] => 19
[material_sum] => 889350
[work_sum] => 517138
[total_sum] => 1406488
[total_days] => 20
[display_material_sum] => 889 350
[display_work_sum] => 517 138
[display_total_sum] => 1 406 488
)
1
1 406 488₽
Работа:517 138 ₽
Материалы:889 350 ₽
Дни:20
stdClass Object
(
[id] => 144
[attribute_id] => 19
[name] => Фальцевый фасад
[material_modifier] => 1
[work_modifier] => 1
[options] => Array
(
)
[days] => [20]
[material_price] => [3240]
[work_price] => [2592]
[image] => https://akademik-stroy.ru/wp-content/uploads/materials/falcevyj-fasad.jpg
[area_modifier] => 253.35
[parent_name] => Наружная отделка фасада
[parent_id] => 19
[material_sum] => 1034276
[work_sum] => 689517
[total_sum] => 1723793
[total_days] => 20
[display_material_sum] => 1 034 276
[display_work_sum] => 689 517
[display_total_sum] => 1 723 793
)
1
1 723 793₽
Работа:689 517 ₽
Материалы:1 034 276 ₽
Дни:20
stdClass Object
(
[id] => 145
[attribute_id] => 19
[name] => Комбинированный
[material_modifier] => 1
[work_modifier] => 1
[options] => Array
(
)
[days] => [20]
[material_price] => [4629]
[work_price] => [3499]
[image] => https://akademik-stroy.ru/wp-content/uploads/materials/Kombinirovannyj.jpg
[area_modifier] => 253.35
[parent_name] => Наружная отделка фасада
[parent_id] => 19
[material_sum] => 1477674
[work_sum] => 930795
[total_sum] => 2408469
[total_days] => 20
[display_material_sum] => 1 477 674
[display_work_sum] => 930 795
[display_total_sum] => 2 408 469
)
1
2 408 469₽
Работа:930 795 ₽
Материалы:1 477 674 ₽
Дни:20
stdClass Object
(
[id] => 257
[attribute_id] => 19
[name] => Японские фиброцементные
[material_modifier] => 1
[work_modifier] => 1
[options] => Array
(
)
[days] => [20]
[material_price] => [7043]
[work_price] => [2993]
[image] => https://akademik-stroy.ru/wp-content/uploads/materials/paneli.jpg
[area_modifier] => 253.35
[parent_name] => Наружная отделка фасада
[parent_id] => 19
[material_sum] => 2248274
[work_sum] => 796190
[total_sum] => 3044464
[total_days] => 20
[display_material_sum] => 2 248 274
[display_work_sum] => 796 190
[display_total_sum] => 3 044 464
)
1
3 044 464₽
Работа:796 190 ₽
Материалы:2 248 274 ₽
Дни:20
stdClass Object
(
[id] => 258
[attribute_id] => 19
[name] => Панели Каньон
[material_modifier] => 1
[work_modifier] => 1
[options] => Array
(
)
[days] => [20]
[material_price] => [4543]
[work_price] => [2592]
[image] => https://akademik-stroy.ru/wp-content/uploads/materials/kanon.png
[area_modifier] => 253.35
[parent_name] => Наружная отделка фасада
[parent_id] => 19
[material_sum] => 1450221
[work_sum] => 689517
[total_sum] => 2139738
[total_days] => 20
[display_material_sum] => 1 450 221
[display_work_sum] => 689 517
[display_total_sum] => 2 139 738
)
1
2 139 738₽
Работа:689 517 ₽
Материалы:1 450 221 ₽
Дни:20
stdClass Object
(
[id] => 39
[attribute_id] => 20
[name] => Нет
[material_modifier] => 1
[work_modifier] => 1
[options] => Array
(
)
[days] => [0]
[material_price] => [0]
[work_price] => [0]
[image] => https://akademik-stroy.ru/wp-content/uploads/materials/terrasy.jpg
[area_modifier] => 30
[parent_name] => Террасы, крыльца, навесы
[parent_id] => 20
[material_sum] => 0
[work_sum] => 0
[total_sum] => 0
[total_days] => 0
[display_material_sum] => 0
[display_work_sum] => 0
[display_total_sum] => 0
)
1
0₽
Работа:0 ₽
Материалы:0 ₽
Дни:0
stdClass Object
(
[id] => 40
[attribute_id] => 20
[name] => Есть
[material_modifier] => 1
[work_modifier] => 1
[options] => Array
(
)
[days] => [5]
[material_price] => [10450]
[work_price] => [1950]
[image] => https://akademik-stroy.ru/wp-content/uploads/materials/terrasy.jpg
[area_modifier] => 30
[parent_name] => Террасы, крыльца, навесы
[parent_id] => 20
[material_sum] => 395010
[work_sum] => 61425
[total_sum] => 456435
[total_days] => 5
[display_material_sum] => 395 010
[display_work_sum] => 61 425
[display_total_sum] => 456 435
)
1
456 435₽
Работа:61 425 ₽
Материалы:395 010 ₽
Дни:5
stdClass Object
(
[id] => 41
[attribute_id] => 21
[name] => Нет
[material_modifier] => 1
[work_modifier] => 1
[options] => Array
(
)
[days] => [0]
[material_price] => [0]
[work_price] => [0]
[image] => https://akademik-stroy.ru/wp-content/uploads/materials/balkony.jpg
[area_modifier] => 30
[parent_name] => Балконы
[parent_id] => 21
[material_sum] => 0
[work_sum] => 0
[total_sum] => 0
[total_days] => 0
[display_material_sum] => 0
[display_work_sum] => 0
[display_total_sum] => 0
)
1
0₽
Работа:0 ₽
Материалы:0 ₽
Дни:0
stdClass Object
(
[id] => 42
[attribute_id] => 21
[name] => Есть
[material_modifier] => 1
[work_modifier] => 1
[options] => Array
(
)
[days] => [12]
[material_price] => [3600]
[work_price] => [1950]
[image] => https://akademik-stroy.ru/wp-content/uploads/materials/balkony.jpg
[area_modifier] => 30
[parent_name] => Балконы
[parent_id] => 21
[material_sum] => 136080
[work_sum] => 61425
[total_sum] => 197505
[total_days] => 12
[display_material_sum] => 136 080
[display_work_sum] => 61 425
[display_total_sum] => 197 505
)
1
197 505₽
Работа:61 425 ₽
Материалы:136 080 ₽
Дни:12
stdClass Object
(
[id] => 43
[attribute_id] => 22
[name] => Нет
[material_modifier] => 1
[work_modifier] => 1
[options] => Array
(
)
[days] => [0]
[material_price] => [0]
[work_price] => [0]
[image] => https://akademik-stroy.ru/wp-content/uploads/materials/uteplennaya.jpg
[area_modifier] => 199.25
[parent_name] => Отмостка
[parent_id] => 22
[material_sum] => 0
[work_sum] => 0
[total_sum] => 0
[total_days] => 0
[display_material_sum] => 0
[display_work_sum] => 0
[display_total_sum] => 0
)
1
0₽
Работа:0 ₽
Материалы:0 ₽
Дни:0
stdClass Object
(
[id] => 44
[attribute_id] => 22
[name] => Утепленная отмостка
[material_modifier] => 1
[work_modifier] => 1
[options] => Array
(
)
[days] => [15]
[material_price] => [2550]
[work_price] => [1750]
[image] => https://akademik-stroy.ru/wp-content/uploads/materials/uteplennaya.jpg
[area_modifier] => 199.25
[parent_name] => Отмостка
[parent_id] => 22
[material_sum] => 640190
[work_sum] => 366122
[total_sum] => 1006312
[total_days] => 15
[display_material_sum] => 640 190
[display_work_sum] => 366 122
[display_total_sum] => 1 006 312
)
1
1 006 312₽
Работа:366 122 ₽
Материалы:640 190 ₽
Дни:15
stdClass Object
(
[id] => 146
[attribute_id] => 22
[name] => Не утепленная отмостка
[material_modifier] => 1
[work_modifier] => 1
[options] => Array
(
)
[days] => [10]
[material_price] => [1650]
[work_price] => [1450]
[image] => https://akademik-stroy.ru/wp-content/uploads/materials/ne-uteplennaya.jpg
[area_modifier] => 199.25
[parent_name] => Отмостка
[parent_id] => 22
[material_sum] => 414241
[work_sum] => 303358
[total_sum] => 717599
[total_days] => 10
[display_material_sum] => 414 241
[display_work_sum] => 303 358
[display_total_sum] => 717 599
)
1
717 599₽
Работа:303 358 ₽
Материалы:414 241 ₽
Дни:10
stdClass Object
(
[id] => 45
[attribute_id] => 23
[name] => Нет
[material_modifier] => 1
[work_modifier] => 1
[options] => Array
(
)
[days] => [0]
[material_price] => [0]
[work_price] => [0]
[image] => https://akademik-stroy.ru/wp-content/uploads/materials/drenazh-2.jpg
[area_modifier] => 199.25
[parent_name] => Дренаж вокруг дома
[parent_id] => 23
[material_sum] => 0
[work_sum] => 0
[total_sum] => 0
[total_days] => 0
[display_material_sum] => 0
[display_work_sum] => 0
[display_total_sum] => 0
)
1
0₽
Работа:0 ₽
Материалы:0 ₽
Дни:0
stdClass Object
(
[id] => 46
[attribute_id] => 23
[name] => Есть
[material_modifier] => 1
[work_modifier] => 1
[options] => Array
(
)
[days] => [5]
[material_price] => [2366]
[work_price] => [1911]
[image] => https://akademik-stroy.ru/wp-content/uploads/materials/drenazh-2.jpg
[area_modifier] => 199.25
[parent_name] => Дренаж вокруг дома
[parent_id] => 23
[material_sum] => 593996
[work_sum] => 399805
[total_sum] => 993801
[total_days] => 5
[display_material_sum] => 593 996
[display_work_sum] => 399 805
[display_total_sum] => 993 801
)
1
993 801₽
Работа:399 805 ₽
Материалы:593 996 ₽
Дни:5
stdClass Object
(
[id] => 47
[attribute_id] => 24
[name] => Нет
[material_modifier] => 1
[work_modifier] => 1
[options] => Array
(
)
[days] => [0]
[material_price] => [0]
[work_price] => [0]
[image] => https://akademik-stroy.ru/wp-content/uploads/materials/septik.jpg
[area_modifier] => 1
[parent_name] => Автономная канализация (септики)
[parent_id] => 24
[material_sum] => 0
[work_sum] => 0
[total_sum] => 0
[total_days] => 0
[display_material_sum] => 0
[display_work_sum] => 0
[display_total_sum] => 0
)
1
0₽
Работа:0 ₽
Материалы:0 ₽
Дни:0
stdClass Object
(
[id] => 48
[attribute_id] => 24
[name] => Есть
[material_modifier] => 1
[work_modifier] => 1
[options] => Array
(
[0] => Для дачи на 4 человека
[1] => Для дома на 5 человек
[2] => Для дома на 6 человек
[3] => Для дома на 7 человек
[4] => Для дома на 10 человек
)
[days] => [7,7,7,8,8]
[material_price] => [196340,220500,240940,264200,293340]
[work_price] => [50000,55000,60500,66550,73206]
[image] => https://akademik-stroy.ru/wp-content/uploads/materials/septik.jpg
[area_modifier] => 1
[parent_name] => Автономная канализация (септики)
[parent_id] => 24
[material_sum] => 247388
[work_sum] => 52500
[total_sum] => 299888
[total_days] => 7
[display_material_sum] => 247 388
[display_work_sum] => 52 500
[display_total_sum] => 299 888
)
1
299 888₽
Работа:52 500 ₽
Материалы:247 388 ₽
Дни:7
stdClass Object
(
[id] => 49
[attribute_id] => 25
[name] => Нет
[material_modifier] => 1
[work_modifier] => 1
[options] => Array
(
)
[days] => [0]
[material_price] => [0]
[work_price] => [0]
[image] => https://akademik-stroy.ru/wp-content/uploads/materials/gkl.jpg
[area_modifier] => 253.35
[parent_name] => Внутренние (не несущие) перегородки
[parent_id] => 25
[material_sum] => 0
[work_sum] => 0
[total_sum] => 0
[total_days] => 0
[display_material_sum] => 0
[display_work_sum] => 0
[display_total_sum] => 0
)
1
0₽
Работа:0 ₽
Материалы:0 ₽
Дни:0
stdClass Object
(
[id] => 147
[attribute_id] => 25
[name] => Каркасно-обшивные
[material_modifier] => 1
[work_modifier] => 1
[options] => Array
(
[0] => 75 мм (без шумоизоляции)
[1] => 75 мм (с шумоизоляцией)
)
[days] => [11,11]
[material_price] => [580,970]
[work_price] => [380,570]
[image] => https://akademik-stroy.ru/wp-content/uploads/materials/gkl.jpg
[area_modifier] => 253.35
[parent_name] => Внутренние (не несущие) перегородки
[parent_id] => 25
[material_sum] => 185148
[work_sum] => 101087
[total_sum] => 286235
[total_days] => 11
[display_material_sum] => 185 148
[display_work_sum] => 101 087
[display_total_sum] => 286 235
)
1
286 235₽
Работа:101 087 ₽
Материалы:185 148 ₽
Дни:11
stdClass Object
(
[id] => 148
[attribute_id] => 25
[name] => Пазогребневые
[material_modifier] => 1
[work_modifier] => 1
[options] => Array
(
[0] => 80 мм
[1] => 100 мм
)
[days] => [5,5]
[material_price] => [1022,1313]
[work_price] => [600,700]
[image] => https://akademik-stroy.ru/wp-content/uploads/materials/pazogrebnevye-bloki.jpg
[area_modifier] => 253.35
[parent_name] => Внутренние (не несущие) перегородки
[parent_id] => 25
[material_sum] => 326244
[work_sum] => 159611
[total_sum] => 485855
[total_days] => 5
[display_material_sum] => 326 244
[display_work_sum] => 159 611
[display_total_sum] => 485 855
)
1
485 855₽
Работа:159 611 ₽
Материалы:326 244 ₽
Дни:5
stdClass Object
(
[id] => 149
[attribute_id] => 25
[name] => Газобетонные
[material_modifier] => 1
[work_modifier] => 1
[options] => Array
(
[0] => 100 мм
[1] => 200 мм
)
[days] => [11,11]
[material_price] => [1160,1920]
[work_price] => [700,900]
[image] => https://akademik-stroy.ru/wp-content/uploads/materials/gazobeton-2.jpg
[area_modifier] => 253.35
[parent_name] => Внутренние (не несущие) перегородки
[parent_id] => 25
[material_sum] => 370296
[work_sum] => 186212
[total_sum] => 556508
[total_days] => 11
[display_material_sum] => 370 296
[display_work_sum] => 186 212
[display_total_sum] => 556 508
)
1
556 508₽
Работа:186 212 ₽
Материалы:370 296 ₽
Дни:11
stdClass Object
(
[id] => 150
[attribute_id] => 25
[name] => Кирпичные
[material_modifier] => 1
[work_modifier] => 1
[options] => Array
(
[0] => 120 мм
[1] => 250 мм
[2] => 360 мм
)
[days] => [7,7,7]
[material_price] => [1785,3570,5355]
[work_price] => [900,1600,1800]
[image] => https://akademik-stroy.ru/wp-content/uploads/materials/kirpich-1.jpg
[area_modifier] => 253.35
[parent_name] => Внутренние (не несущие) перегородки
[parent_id] => 25
[material_sum] => 569809
[work_sum] => 239416
[total_sum] => 809225
[total_days] => 7
[display_material_sum] => 569 809
[display_work_sum] => 239 416
[display_total_sum] => 809 225
)
1
809 225₽
Работа:239 416 ₽
Материалы:569 809 ₽
Дни:7
stdClass Object
(
[id] => 55
[attribute_id] => 28
[name] => Нет
[material_modifier] => 1
[work_modifier] => 1
[options] => Array
(
)
[days] => [0]
[material_price] => [0]
[work_price] => [0]
[image] => https://akademik-stroy.ru/wp-content/uploads/materials/ehlektrika.jpg
[area_modifier] => 205.59
[parent_name] => Электрика
[parent_id] => 28
[material_sum] => 0
[work_sum] => 0
[total_sum] => 0
[total_days] => 0
[display_material_sum] => 0
[display_work_sum] => 0
[display_total_sum] => 0
)
1
0₽
Работа:0 ₽
Материалы:0 ₽
Дни:0
stdClass Object
(
[id] => 56
[attribute_id] => 28
[name] => Есть
[material_modifier] => 1
[work_modifier] => 1
[options] => Array
(
)
[days] => [10]
[material_price] => [650]
[work_price] => [950]
[image] => https://akademik-stroy.ru/wp-content/uploads/materials/ehlektrika.jpg
[area_modifier] => 205.59
[parent_name] => Электрика
[parent_id] => 28
[material_sum] => 168378
[work_sum] => 205076
[total_sum] => 373454
[total_days] => 10
[display_material_sum] => 168 378
[display_work_sum] => 205 076
[display_total_sum] => 373 454
)
1
373 454₽
Работа:205 076 ₽
Материалы:168 378 ₽
Дни:10
stdClass Object
(
[id] => 57
[attribute_id] => 29
[name] => Нет
[material_modifier] => 1
[work_modifier] => 1
[options] => Array
(
)
[days] => [0]
[material_price] => [0]
[work_price] => [0]
[image] => https://akademik-stroy.ru/wp-content/uploads/materials/santekhnika-kanalizaciya-1.jpg
[area_modifier] => 205.59
[parent_name] => Сантехника, канализация в доме
[parent_id] => 29
[material_sum] => 0
[work_sum] => 0
[total_sum] => 0
[total_days] => 0
[display_material_sum] => 0
[display_work_sum] => 0
[display_total_sum] => 0
)
1
0₽
Работа:0 ₽
Материалы:0 ₽
Дни:0
stdClass Object
(
[id] => 58
[attribute_id] => 29
[name] => Есть
[material_modifier] => 1
[work_modifier] => 1
[options] => Array
(
)
[days] => [10]
[material_price] => [600]
[work_price] => [730]
[image] => https://akademik-stroy.ru/wp-content/uploads/materials/santekhnika-kanalizaciya-1.jpg
[area_modifier] => 205.59
[parent_name] => Сантехника, канализация в доме
[parent_id] => 29
[material_sum] => 155426
[work_sum] => 157585
[total_sum] => 313011
[total_days] => 10
[display_material_sum] => 155 426
[display_work_sum] => 157 585
[display_total_sum] => 313 011
)
1
313 011₽
Работа:157 585 ₽
Материалы:155 426 ₽
Дни:10
stdClass Object
(
[id] => 59
[attribute_id] => 30
[name] => Нет
[material_modifier] => 1
[work_modifier] => 1
[options] => Array
(
)
[days] => [0]
[material_price] => [0]
[work_price] => [0]
[image] => https://akademik-stroy.ru/wp-content/uploads/materials/otoplenie-1.jpg
[area_modifier] => 205.59
[parent_name] => Отопление
[parent_id] => 30
[material_sum] => 0
[work_sum] => 0
[total_sum] => 0
[total_days] => 0
[display_material_sum] => 0
[display_work_sum] => 0
[display_total_sum] => 0
)
1
0₽
Работа:0 ₽
Материалы:0 ₽
Дни:0
stdClass Object
(
[id] => 60
[attribute_id] => 30
[name] => Есть
[material_modifier] => 1
[work_modifier] => 1
[options] => Array
(
)
[days] => [5]
[material_price] => [610]
[work_price] => [560]
[image] => https://akademik-stroy.ru/wp-content/uploads/materials/otoplenie-1.jpg
[area_modifier] => 205.59
[parent_name] => Отопление
[parent_id] => 30
[material_sum] => 158016
[work_sum] => 120887
[total_sum] => 278903
[total_days] => 5
[display_material_sum] => 158 016
[display_work_sum] => 120 887
[display_total_sum] => 278 903
)
1
278 903₽
Работа:120 887 ₽
Материалы:158 016 ₽
Дни:5
stdClass Object
(
[id] => 61
[attribute_id] => 31
[name] => Нет
[material_modifier] => 1
[work_modifier] => 1
[options] => Array
(
)
[days] => [0]
[material_price] => [0]
[work_price] => [0]
[image] => https://akademik-stroy.ru/wp-content/uploads/materials/vodyanye.jpg
[area_modifier] => 30
[parent_name] => Теплые полы
[parent_id] => 31
[material_sum] => 0
[work_sum] => 0
[total_sum] => 0
[total_days] => 0
[display_material_sum] => 0
[display_work_sum] => 0
[display_total_sum] => 0
)
1
0₽
Работа:0 ₽
Материалы:0 ₽
Дни:0
stdClass Object
(
[id] => 151
[attribute_id] => 31
[name] => Водяные
[material_modifier] => 1
[work_modifier] => 1
[options] => Array
(
)
[days] => [9]
[material_price] => [10200]
[work_price] => [2500]
[image] => https://akademik-stroy.ru/wp-content/uploads/materials/vodyanye.jpg
[area_modifier] => 30
[parent_name] => Теплые полы
[parent_id] => 31
[material_sum] => 385560
[work_sum] => 78750
[total_sum] => 464310
[total_days] => 9
[display_material_sum] => 385 560
[display_work_sum] => 78 750
[display_total_sum] => 464 310
)
1
464 310₽
Работа:78 750 ₽
Материалы:385 560 ₽
Дни:9
stdClass Object
(
[id] => 152
[attribute_id] => 31
[name] => Электро
[material_modifier] => 1
[work_modifier] => 1
[options] => Array
(
)
[days] => [5]
[material_price] => [6300]
[work_price] => [1500]
[image] => https://akademik-stroy.ru/wp-content/uploads/materials/ehlektricheskij.jpg
[area_modifier] => 30
[parent_name] => Теплые полы
[parent_id] => 31
[material_sum] => 238140
[work_sum] => 47250
[total_sum] => 285390
[total_days] => 5
[display_material_sum] => 238 140
[display_work_sum] => 47 250
[display_total_sum] => 285 390
)
1
285 390₽
Работа:47 250 ₽
Материалы:238 140 ₽
Дни:5
stdClass Object
(
[id] => 63
[attribute_id] => 32
[name] => Нет
[material_modifier] => 1
[work_modifier] => 1
[options] => Array
(
)
[days] => [0]
[material_price] => [0]
[work_price] => [0]
[image] => https://akademik-stroy.ru/wp-content/uploads/materials/shtukaturka-shpatlevka-1.jpg
[area_modifier] => 205.59
[parent_name] => Черновая отделка стен
[parent_id] => 32
[material_sum] => 0
[work_sum] => 0
[total_sum] => 0
[total_days] => 0
[display_material_sum] => 0
[display_work_sum] => 0
[display_total_sum] => 0
)
1
0₽
Работа:0 ₽
Материалы:0 ₽
Дни:0
stdClass Object
(
[id] => 153
[attribute_id] => 32
[name] => Штукатурка и шпатлевка
[material_modifier] => 1
[work_modifier] => 1
[options] => Array
(
)
[days] => [20]
[material_price] => [1850]
[work_price] => [2600]
[image] => https://akademik-stroy.ru/wp-content/uploads/materials/shtukaturka-shpatlevka-1.jpg
[area_modifier] => 205.59
[parent_name] => Черновая отделка стен
[parent_id] => 32
[material_sum] => 479230
[work_sum] => 561261
[total_sum] => 1040491
[total_days] => 20
[display_material_sum] => 479 230
[display_work_sum] => 561 261
[display_total_sum] => 1 040 491
)
1
1 040 491₽
Работа:561 261 ₽
Материалы:479 230 ₽
Дни:20
stdClass Object
(
[id] => 154
[attribute_id] => 32
[name] => Гипсокортон на стены
[material_modifier] => 1
[work_modifier] => 1
[options] => Array
(
)
[days] => [15]
[material_price] => [950]
[work_price] => [2100]
[image] => https://akademik-stroy.ru/wp-content/uploads/materials/gkl-1.jpg
[area_modifier] => 205.59
[parent_name] => Черновая отделка стен
[parent_id] => 32
[material_sum] => 246091
[work_sum] => 453326
[total_sum] => 699417
[total_days] => 15
[display_material_sum] => 246 091
[display_work_sum] => 453 326
[display_total_sum] => 699 417
)
1
699 417₽
Работа:453 326 ₽
Материалы:246 091 ₽
Дни:15
stdClass Object
(
[id] => 155
[attribute_id] => 32
[name] => Вагонка
[material_modifier] => 1
[work_modifier] => 1
[options] => Array
(
)
[days] => [15]
[material_price] => [1250]
[work_price] => [950]
[image] => https://akademik-stroy.ru/wp-content/uploads/materials/vagonka.jpg
[area_modifier] => 205.59
[parent_name] => Черновая отделка стен
[parent_id] => 32
[material_sum] => 323804
[work_sum] => 205076
[total_sum] => 528880
[total_days] => 15
[display_material_sum] => 323 804
[display_work_sum] => 205 076
[display_total_sum] => 528 880
)
1
528 880₽
Работа:205 076 ₽
Материалы:323 804 ₽
Дни:15
stdClass Object
(
[id] => 65
[attribute_id] => 33
[name] => Нет
[material_modifier] => 1
[work_modifier] => 1
[options] => Array
(
)
[days] => [0]
[material_price] => [0]
[work_price] => [0]
[image] => https://akademik-stroy.ru/wp-content/uploads/materials/styazhka.jpg
[area_modifier] => 205.59
[parent_name] => Черновая отделка полов
[parent_id] => 33
[material_sum] => 0
[work_sum] => 0
[total_sum] => 0
[total_days] => 0
[display_material_sum] => 0
[display_work_sum] => 0
[display_total_sum] => 0
)
1
0₽
Работа:0 ₽
Материалы:0 ₽
Дни:0
stdClass Object
(
[id] => 156
[attribute_id] => 33
[name] => Стяжка + наливные полы
[material_modifier] => 1
[work_modifier] => 1
[options] => Array
(
)
[days] => [10]
[material_price] => [1000]
[work_price] => [900]
[image] => https://akademik-stroy.ru/wp-content/uploads/materials/styazhka.jpg
[area_modifier] => 205.59
[parent_name] => Черновая отделка полов
[parent_id] => 33
[material_sum] => 259043
[work_sum] => 194283
[total_sum] => 453326
[total_days] => 10
[display_material_sum] => 259 043
[display_work_sum] => 194 283
[display_total_sum] => 453 326
)
1
453 326₽
Работа:194 283 ₽
Материалы:259 043 ₽
Дни:10
stdClass Object
(
[id] => 157
[attribute_id] => 33
[name] => ОСБ на пол
[material_modifier] => 1
[work_modifier] => 1
[options] => Array
(
)
[days] => [7]
[material_price] => [580]
[work_price] => [350]
[image] => https://akademik-stroy.ru/wp-content/uploads/materials/osb-1.jpg
[area_modifier] => 205.59
[parent_name] => Черновая отделка полов
[parent_id] => 33
[material_sum] => 150245
[work_sum] => 75554
[total_sum] => 225799
[total_days] => 7
[display_material_sum] => 150 245
[display_work_sum] => 75 554
[display_total_sum] => 225 799
)
1
225 799₽
Работа:75 554 ₽
Материалы:150 245 ₽
Дни:7
stdClass Object
(
[id] => 67
[attribute_id] => 34
[name] => Нет
[material_modifier] => 1
[work_modifier] => 1
[options] => Array
(
)
[days] => [0]
[material_price] => [0]
[work_price] => [0]
[image] => https://akademik-stroy.ru/wp-content/uploads/materials/chistovaya-otdelka.jpg
[area_modifier] => 205.59
[parent_name] => Чистовая отделка стен и полов
[parent_id] => 34
[material_sum] => 0
[work_sum] => 0
[total_sum] => 0
[total_days] => 0
[display_material_sum] => 0
[display_work_sum] => 0
[display_total_sum] => 0
)
1
0₽
Работа:0 ₽
Материалы:0 ₽
Дни:0
stdClass Object
(
[id] => 68
[attribute_id] => 34
[name] => Есть
[material_modifier] => 1
[work_modifier] => 1
[options] => Array
(
)
[days] => [50]
[material_price] => [6000]
[work_price] => [3500]
[image] => https://akademik-stroy.ru/wp-content/uploads/materials/chistovaya-otdelka.jpg
[area_modifier] => 205.59
[parent_name] => Чистовая отделка стен и полов
[parent_id] => 34
[material_sum] => 1554260
[work_sum] => 755543
[total_sum] => 2309803
[total_days] => 50
[display_material_sum] => 1 554 260
[display_work_sum] => 755 543
[display_total_sum] => 2 309 803
)
1
2 309 803₽
Работа:755 543 ₽
Материалы:1 554 260 ₽
Дни:50
stdClass Object
(
[id] => 69
[attribute_id] => 35
[name] => Нет
[material_modifier] => 1
[work_modifier] => 1
[options] => Array
(
)
[days] => [0]
[material_price] => [0]
[work_price] => [0]
[image] => https://akademik-stroy.ru/wp-content/uploads/materials/mnogourovnevyj-gkl.jpg
[area_modifier] => 205.59
[parent_name] => Отделка потолка
[parent_id] => 35
[material_sum] => 0
[work_sum] => 0
[total_sum] => 0
[total_days] => 0
[display_material_sum] => 0
[display_work_sum] => 0
[display_total_sum] => 0
)
1
0₽
Работа:0 ₽
Материалы:0 ₽
Дни:0
stdClass Object
(
[id] => 70
[attribute_id] => 35
[name] => Есть
[material_modifier] => 1
[work_modifier] => 1
[options] => Array
(
[0] => Многоуровневый потолок из гипсокартона
[1] => Многоуровневый потолок из гипсокартона и натяжного потолка
[2] => Одноуровневый потолок из гипсокартона
[3] => Одноуровневый натяжной потолок
)
[days] => [10,10,1,1]
[material_price] => [900,700,700,600]
[work_price] => [1000,800,500,300]
[image] => https://akademik-stroy.ru/wp-content/uploads/materials/mnogourovnevyj-gkl.jpg
[area_modifier] => 205.59
[parent_name] => Отделка потолка
[parent_id] => 35
[material_sum] => 233139
[work_sum] => 215870
[total_sum] => 449009
[total_days] => 10
[display_material_sum] => 233 139
[display_work_sum] => 215 870
[display_total_sum] => 449 009
)
1
449 009₽
Работа:215 870 ₽
Материалы:233 139 ₽
Дни:10
Преимущества работы с нами
7 этапов оплаты
Независимый строительный надзор
Экологически чистые материалы
16 лет гарантии
Онлайн-кабинет с веб-камерой
Строители с опытом более 15 лет
Собственное производство










