Одноэтажный дом 11x15 - 225.61 м2 за руб.
Планировки
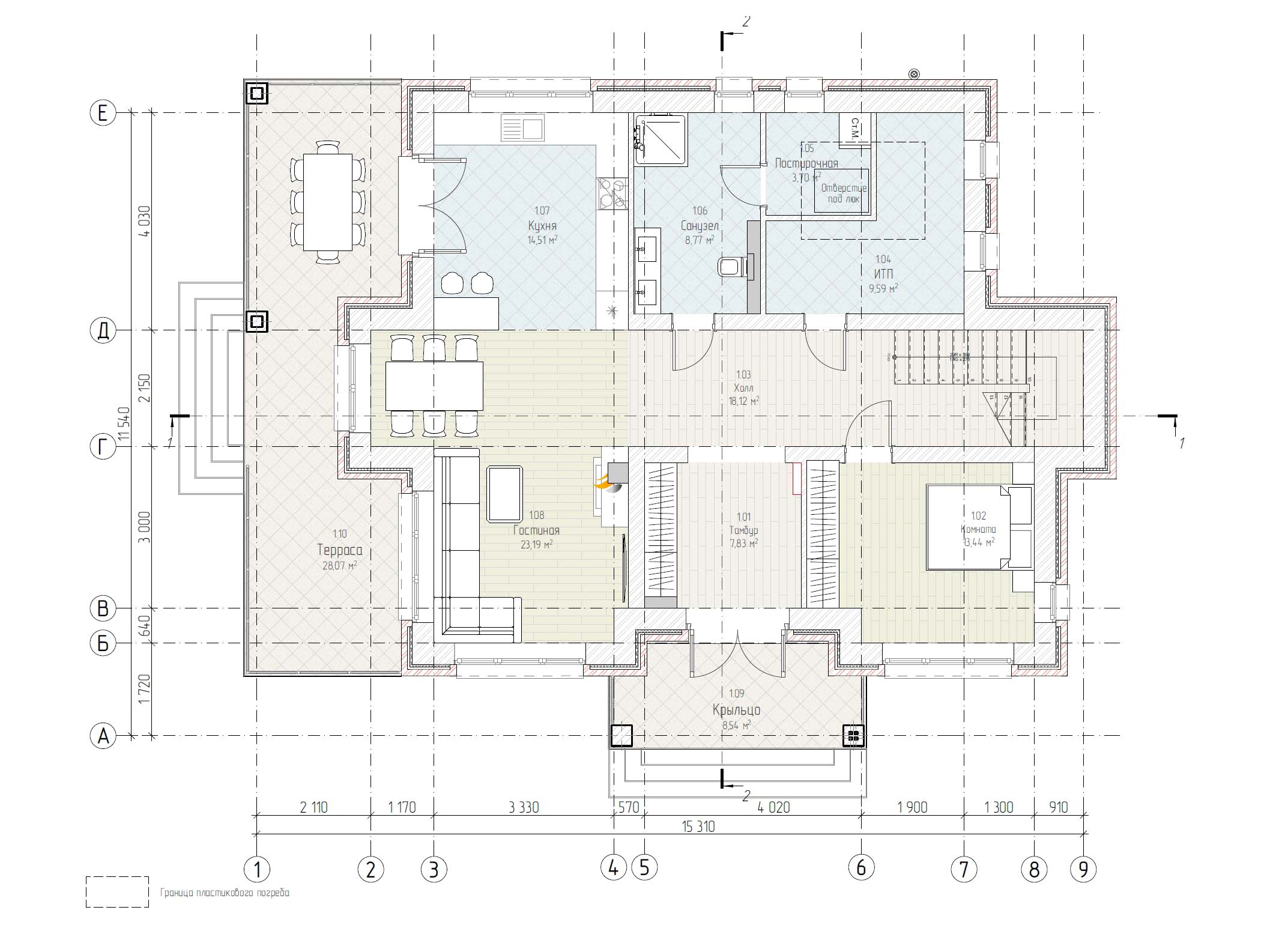
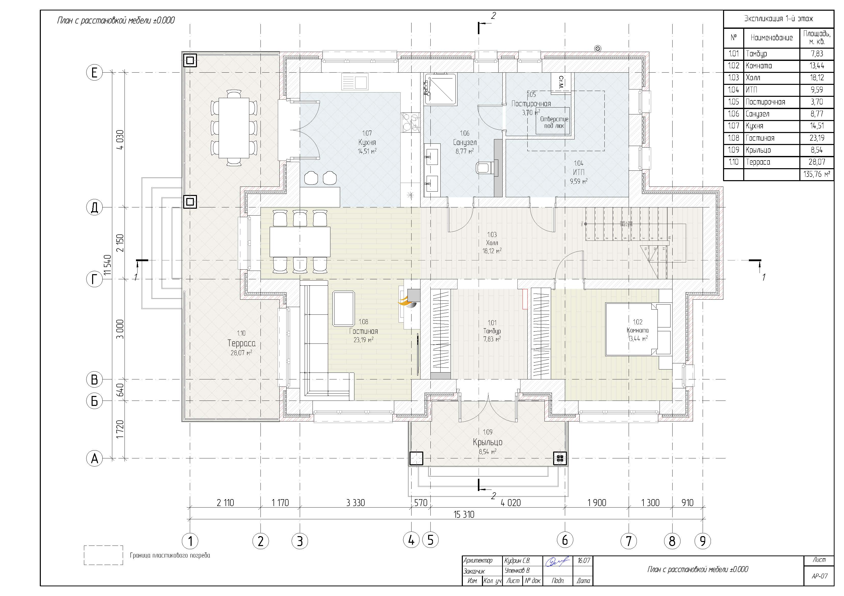
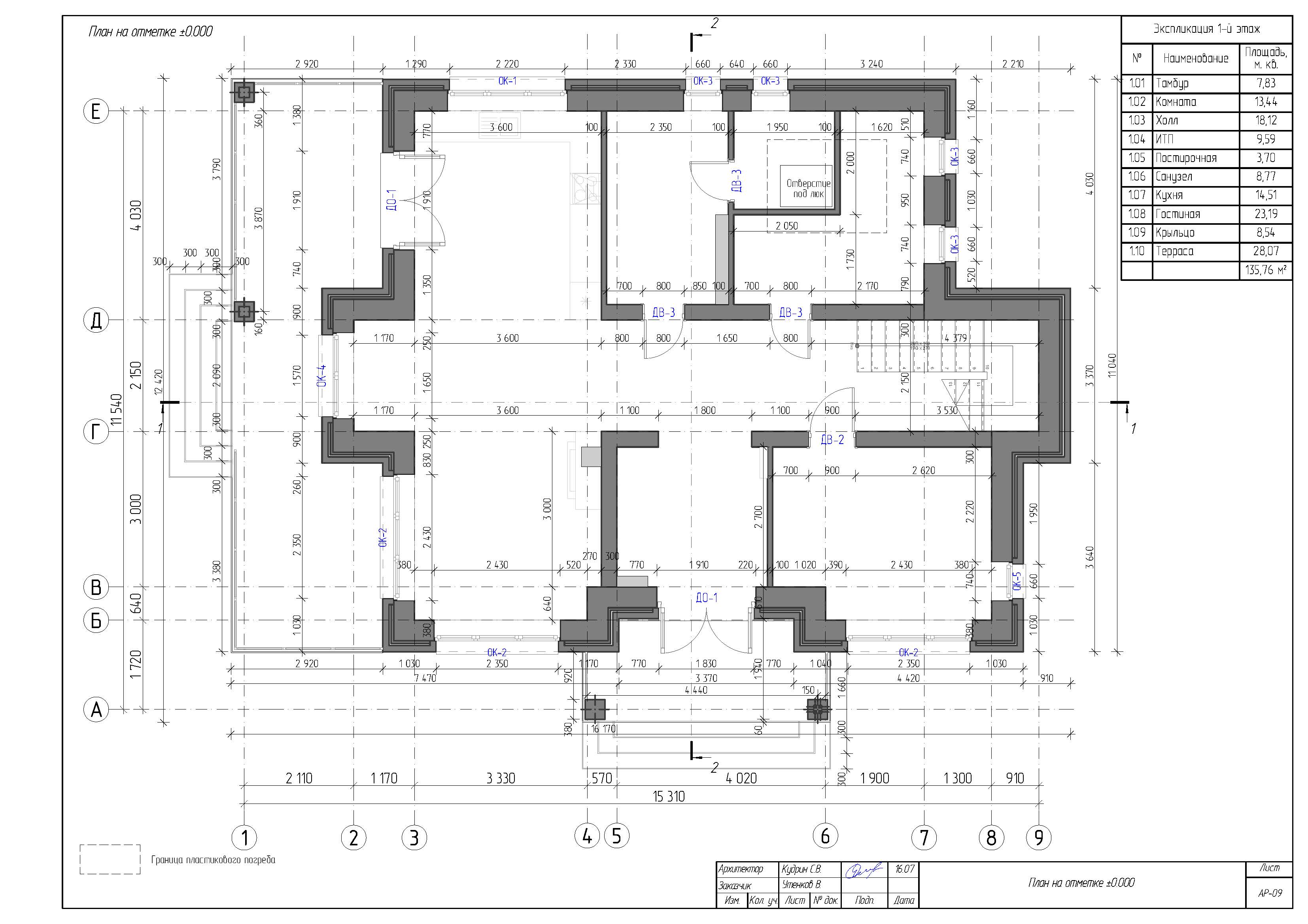
План первого этажа
- 1. Тамбур 7,83 м²
- 2. Комната 13,44 м²
- 3. Холл 18,12 м²
- 4. ИТП 9,59 м²
- 5. Постирочная 3,70 м²
- 6. Санузел 8,77 м²
- 7. Кухня 14,51 м²
- 8. Гостиная 23,19 м²
- 9. Крыльцо 8,54 м²
- 10. Терраса 28,07 м²
- Общая площадь первый этаж 135,76 м²
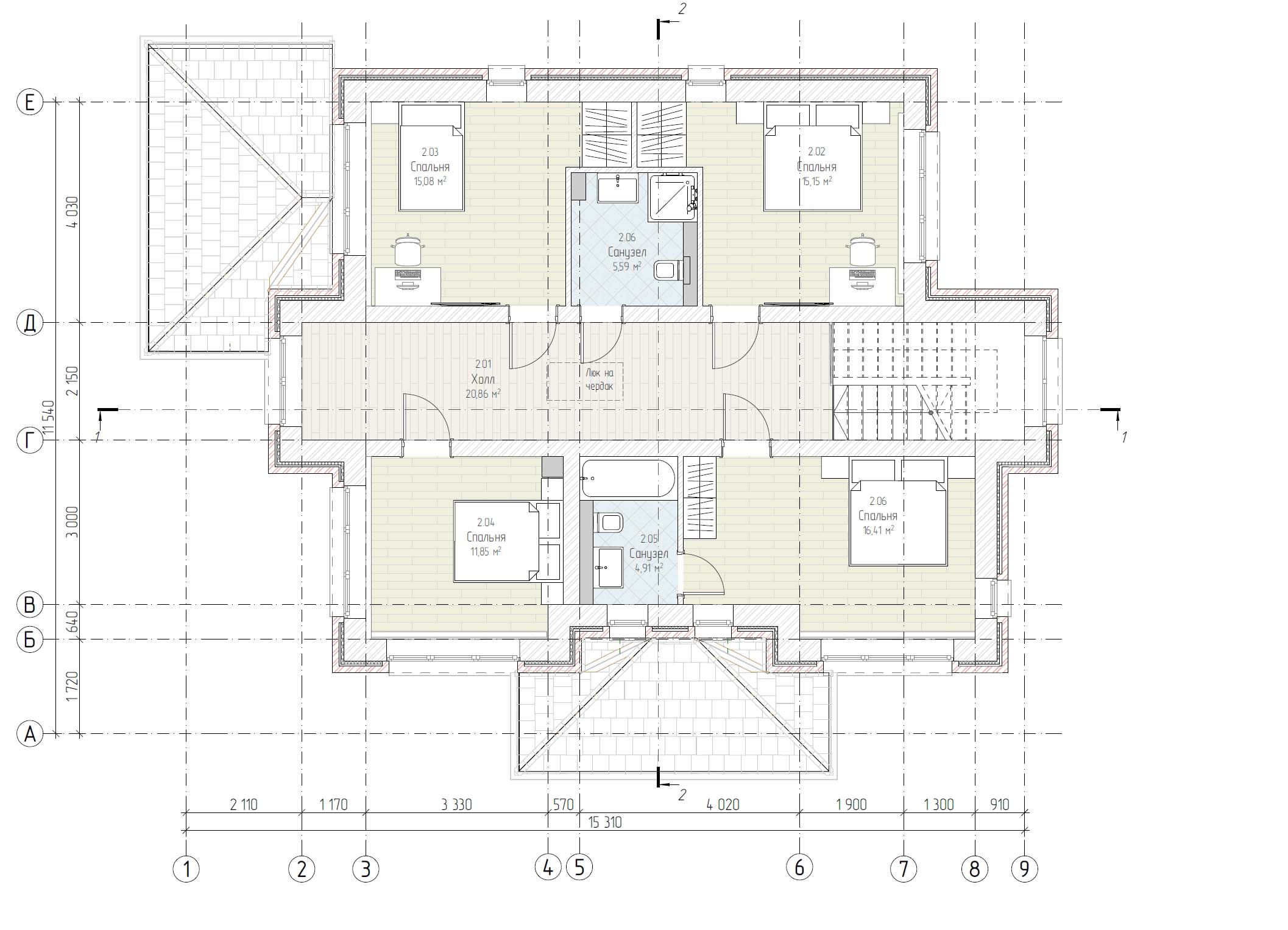
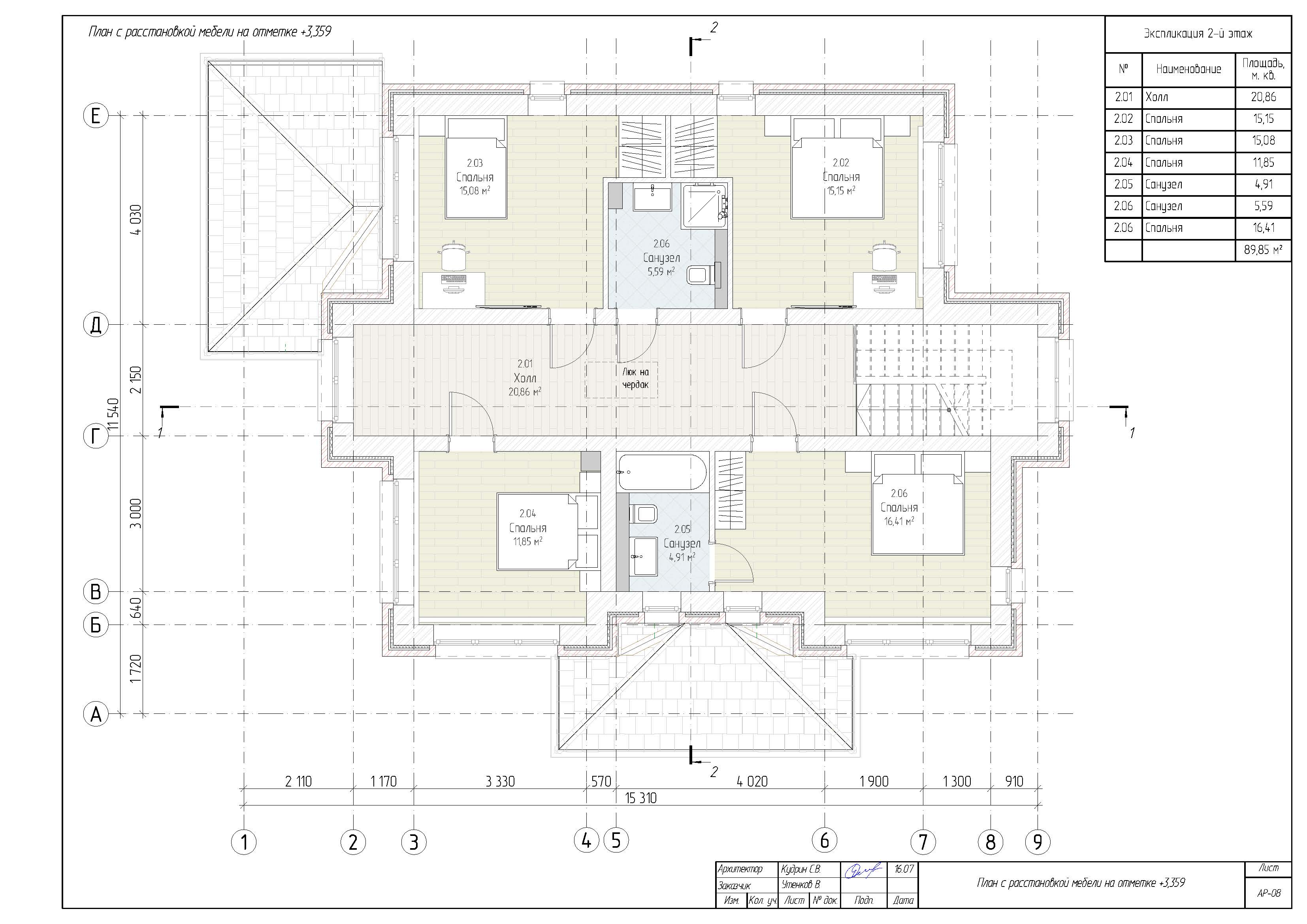
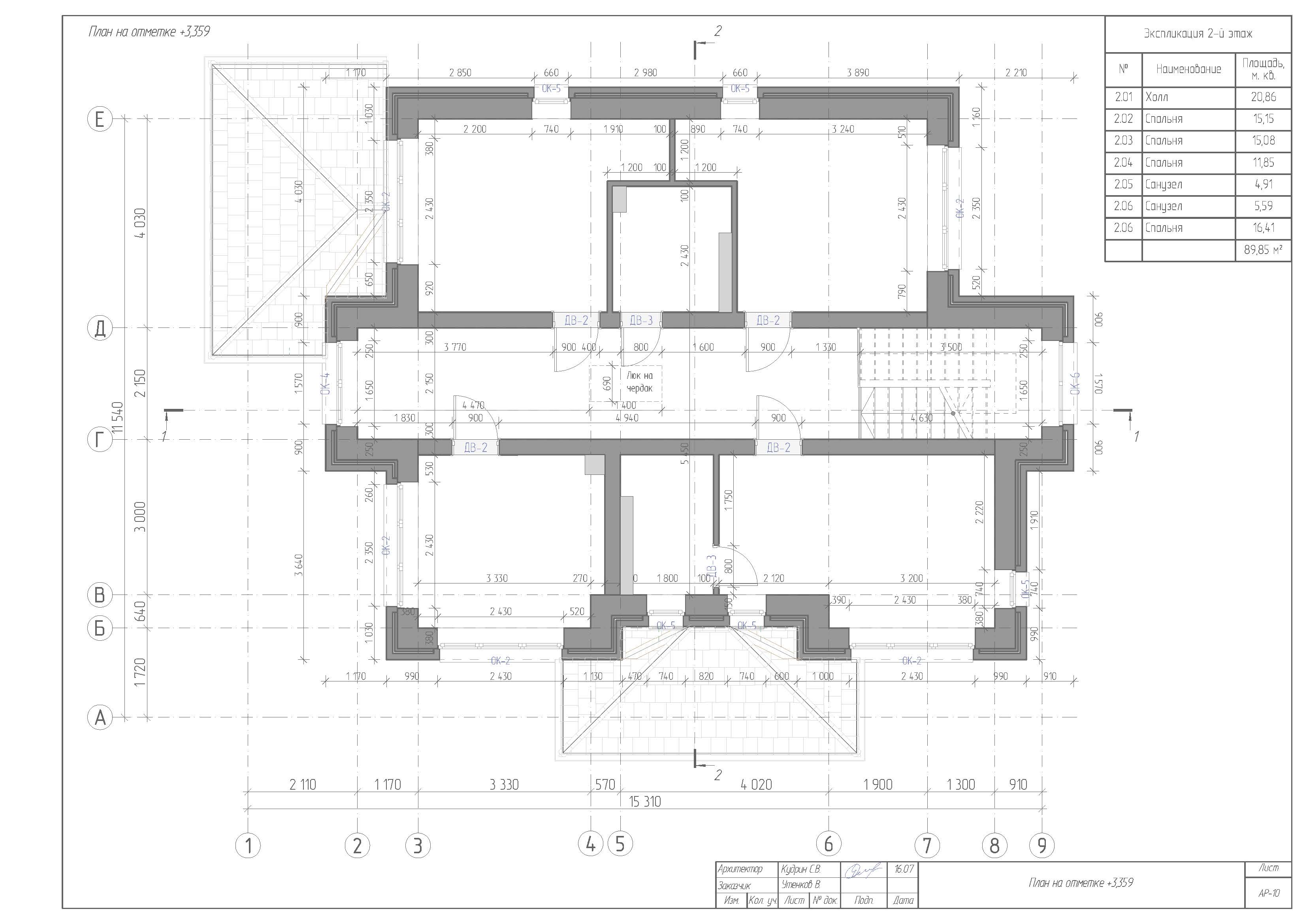
План второго этажа
- 1. Холл 20,86 м²
- 2. Спальня 15,15 м²
- 3. Спальня 15,08 м²
- 4. Спальня 11,85 м²
- 5. Санузел 4,91 м²
- 6. Санузел 5,59 м²
- 7. Спальня 16,41 м²
- Общая площадь второй этаж 89,85 м²
Пояснительная записка
1. Общие данные
Проект cmpoumeльcmвa жилого дома был выполнен в coomвemcmвuu с заданием Заказчика.
Готовый проект жилого дома. Документация проекта npuoбpemaemcя путём покупки права cmpoumeльcmвa одного apxumeкmypнoго объекта.
Проект разработан на основанuu отдельного технического задания и рекомендацuu глав СНuП и СП;
- СП 112.13330.2011 «Пожарная безопасность зданий и сооружений»;
- СП 55.13330.2011 «Дома жилые одноквартирные»;
- НПБ 106-95 «Индивидуальные жилые дома. Противопожарные требования»;
- СП 54.13330.2016 "Здания жилые многоквартирные";
- СП 131.13330.2020 «Строительная климатология»;
- СП 50.13330.2012 «Тепловая защита зданий»;
- СП 23-101-2004 «Проектирование тепловой защиты зданий»;
2. Архитектурно-планировочные решения
Архumекmурно-планuровочное решение разработано в coomвemcmвuu с СП 55.13330.2011 "Дома жилые однокварmuрные".
Чертежи марки АР рассматривать совместно с чертежами марки КР.
Степень огнестойкости здания -III.
За условную отметку 0,000 принята отметка чucmoго пола 1-го этажа.
Архumекmурно-планuровочные решения разработаны для следующих условий:
- зимняя meмnepamypa наиболее холодной пяmuдневкu по клuмаmuческому району IIB, согласно СП 131.13330.2012 -28 °С;
- наиболее холодных суток -32 °С;
- нормаmuвная снеговая нагрузка по III району согласно СП 20.13330.2011 -180кгс/ кв. м.(1,80кПа);
- нормаmuвный скоростной напор веmра по III району согласно СП 20.13330.2011 -23кгс/ кв.м. (О,23кПа);
- зона влажносmu нормальная;
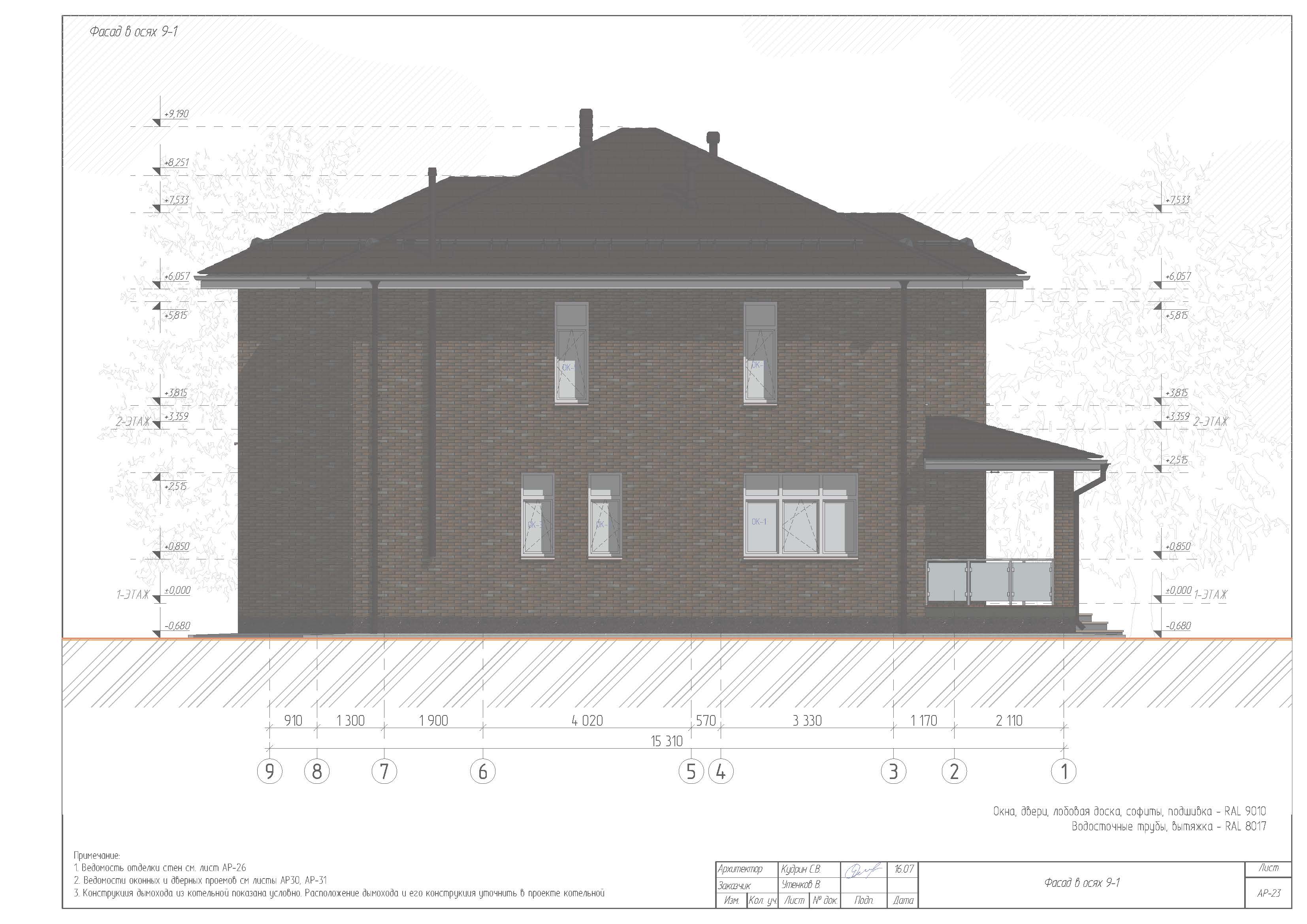
Проекmuруемое здание представляет собой двухэтажный жилой дом, размерами в осях 15310x11540 м. Пригодно для всесезонного проживания.
За условный ноль принято отметка в уровне чистого пола первого этажа равная 201,90 м Балтийской системы высот.
Архumекmурно-планuровочных решений, связанных с обеспечением маломобильных групп населения, не предусмотрено.
Благоусmроuсmво прилегающей meppumopuu не разрабатывается.
3. Конструктивное решение
Производство сmроumельно-ремонmных работ вecmu в coomвemcmвuu с mребованuямu СП 48.13330.2011 "Организация строительства".
СП 49.13330.2012 "Безопасность mpyдa в cmpoumeльcmвe".
При защите строительных конструкций от коррозии руководствоваться СП 28.13330.2017. "Защumа сmроumельных конструкций и сооружений от коррозuu".
Прu производстве работ в зимнее время следует соблюдать СП 70.13330.2012.
- Конструктивная система здания стеновая (бескаркасная) с перекресной конструктивной схемой.Пространственная жесткость обеспечивается совместной работой продольных и поперечных стен с монолитным поясом.
- Фундамент - Железобетонная плита 200 мм на железобетонном ростверке 400х570 мм на забивных сваях 200х200 длиной 4000 мм.
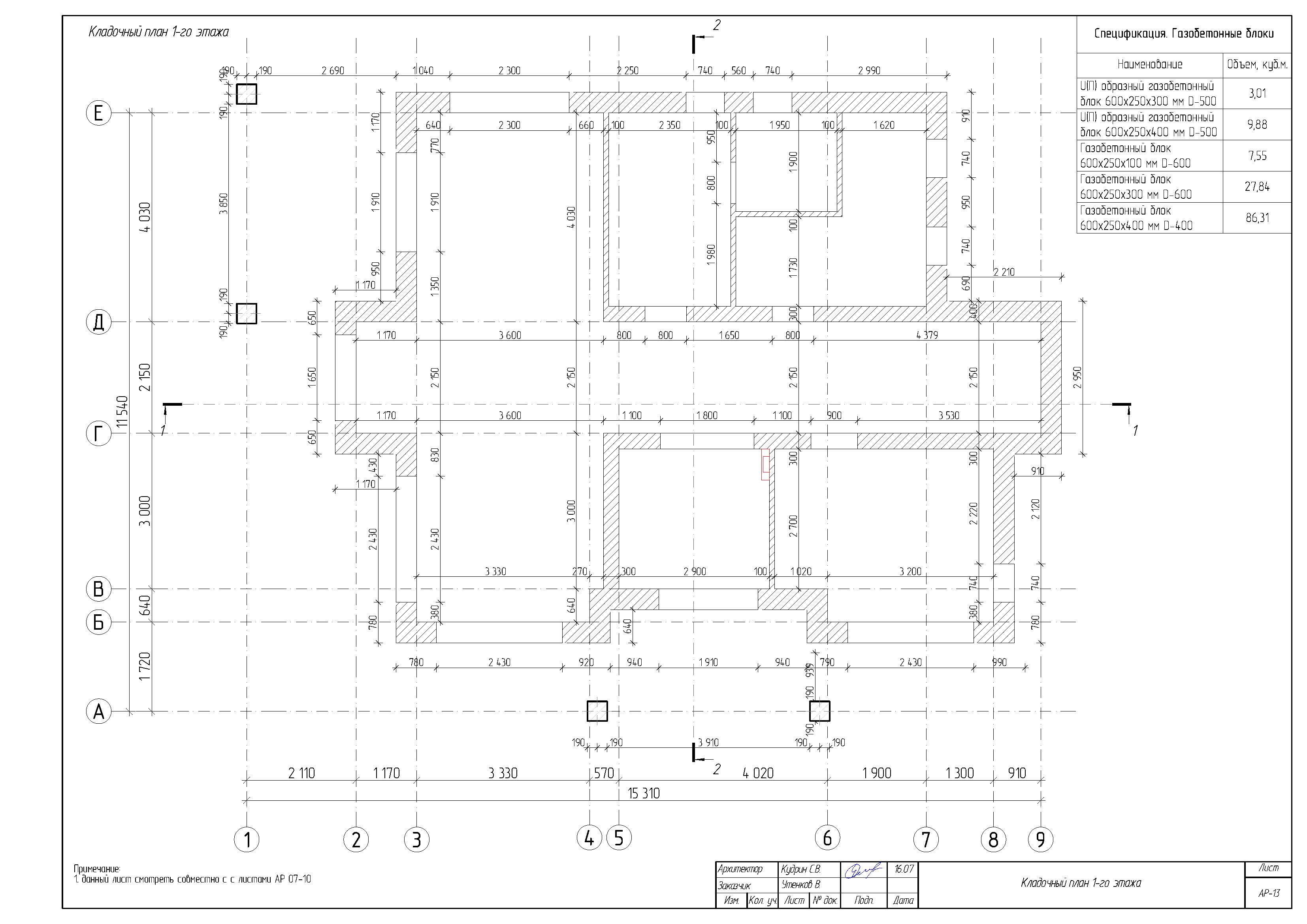
- Наружные стены: утепленные минераловатной плитами толщиной 50 мм, газобетонные блоки 600х400х250, марки D400. Облицовочный кирпич 250х120х65 с воздушной прослойкой 40мм.Внутренние несущие стены: газобетонные блоки 600х300х250, марки D600. Межкомнатные перегородки из газобетонного блока 600х100х250 марки D600.
- Межэтажное перекрытие на отметке +3,059 из монолитной железобетонной плиты. Высота потолков 2,999 метра.
- Высота второго этажа до отметки 6,335. Высота потолков 2,896 метра.
- Перекрытие второго этажа - балочное. Балки перекрытия - строганная доска 195х45 утепленная минераловатными плитами 200 мм, с поперечным утеплением строганным бруском 45х45,также утепленным минераловатными плитами 50 мм.
- Холодный чердак, скатная кровля из мягкой черепицы.. Водосток с крыши - организованный, наружный. Вентиляционные, дымоходные каналы выполнить из металических уголков и ГКЛ.
- По периметру здания выполнить утепленную бетонную отмостку шириной 1000 мм, из бетона класса В12,5. Отмостку рекомендуется устраивать после завершения отделочных работ и до наступления отрицательных температур. Предусмотреть элементы безопасносmu кровли.
- Терраса и крыльцо - железобетонный плита с ростверком на сваях, мощение термогранитом по армированной стяжке и ЭППС - 100 мм..
- Все конструктивные решения по согласованию с конструктором.
- Детальную отделку помешений производить по специальному проекту интерьера. Лестница по индивидуальному проекту.
- Лестница выполняется по индивидуальному проекту.
4. Охрана окружающей среды
Прu органuзацuu cmpoumeльcmвa и эксплуаmацuu жилого дома предусмаmрuваеmся следующие меропрuяmuя по охране окружающей среды:
- сброс хозяuсmвенно-быmовых omxoдoв и стоков осуществляется в гepмemuчecкuй cenmuк споследующем вывозом по договору с коммунальными органuзацuямu;
- уmuлuзацuя сmроumельного мусора осуществляется на разрешенные свалки;
5. Обеспечение пожарной безопасности
- -Все деревянные элементы должны быть подвергнуты огнезащumной обработке в coomвemcmвuu с mребованuямu СП 55.13330.2011 u "Пожарная безопасность зданий и сооружений".
- Элекmроусmановкu монmuроваmь и подключать согласно требованиям "Правил ycmpoйcmвa элекmроусmановок (ПУЭ)" u государственных стандартов на элекmро усmановкu зданий, а также оборудовать их ycmpoйcmвaмu защumного отключения (УЗО).
- Электропроводку монmuруемую по поверхносmu сmроumельных конструкций, выполнumь в кабель-каналах,не распространяющих горение.
Площади дома
| № п/п | Наименование | Ед. из. | Строительная площадь | Полезная площадь |
| 1 | 1 этаж | м2 | 167.3 | 135.76 |
| 2 | 2 этаж | м2 | 110.72 | 89.85 |
| 3 | Итого | м2 | 278.02 | 225.61 |
площадь
и балконы
гаража
спален
санузлов
Калькулятор опций
В ипотеку от 26 150 ₽/мес.
Преимущества работы с нами
7 этапов оплаты
Независимый строительный надзор
Экологически чистые материалы
16 лет гарантии
Онлайн-кабинет с веб-камерой
Строители с опытом более 15 лет
Собственное производство


















































