Одноэтажный дом 11x7 - 119.37 м2 за руб.
Планировки
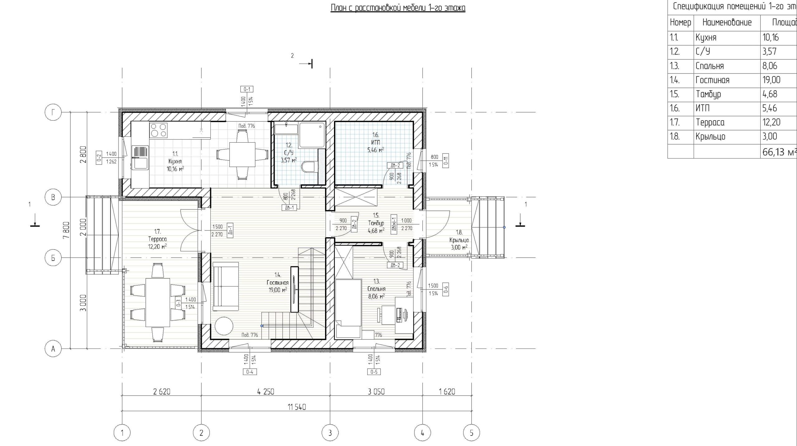
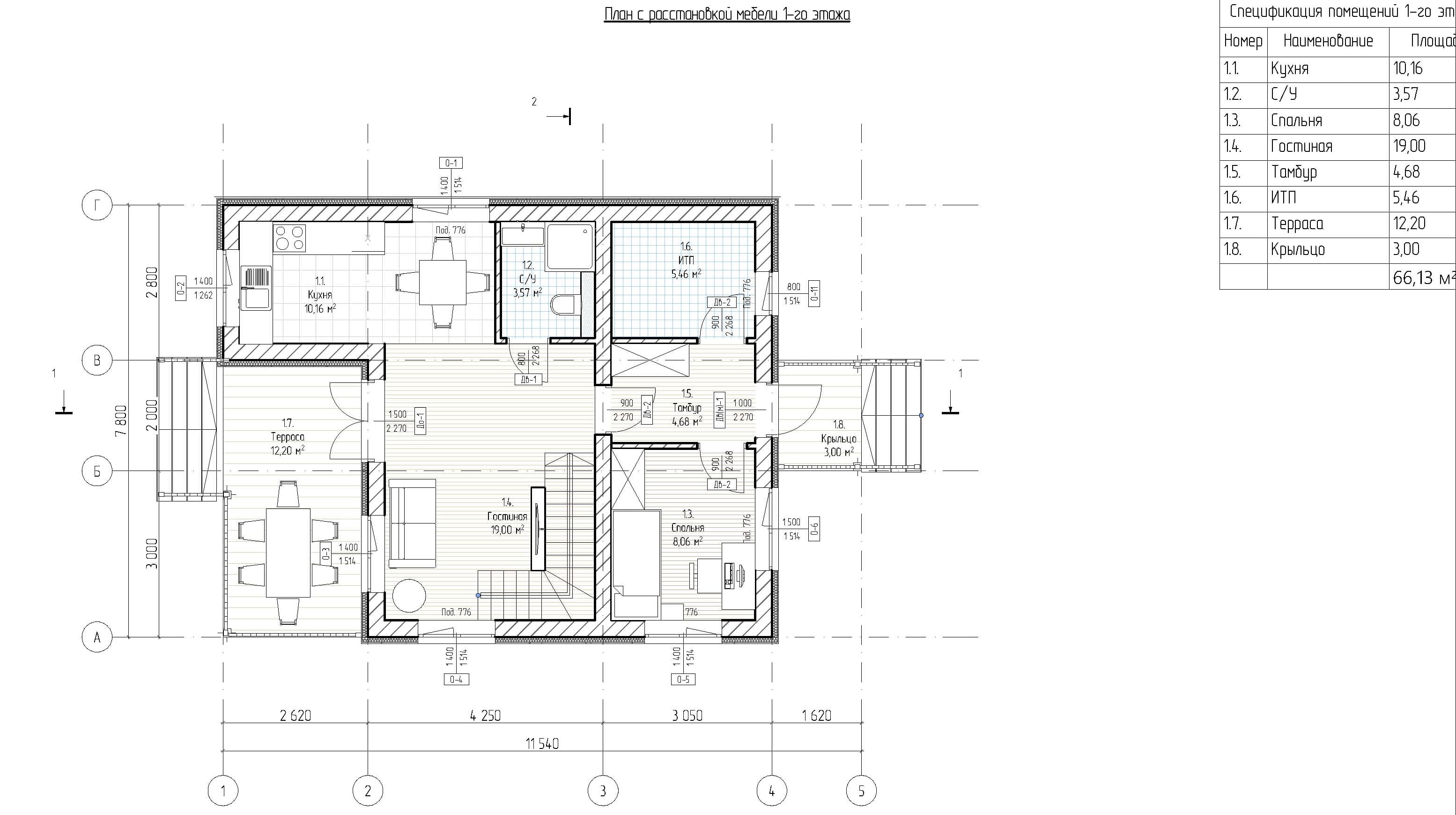
План первого этажа
- 1. Кухня 10,16 м²
- 2. С/У 3,57 м²
- 3. Спальня 8,06 м²
- 4. Гостиная 19,00 м²
- 5. Тамбур 4,68 м²
- 6. ИТП 5,46 м²
- 7. Терраса 12,20 м²
- 8. Крыльцо 3,00 м²
- Общая площадь 1 этажа 66,13 м²
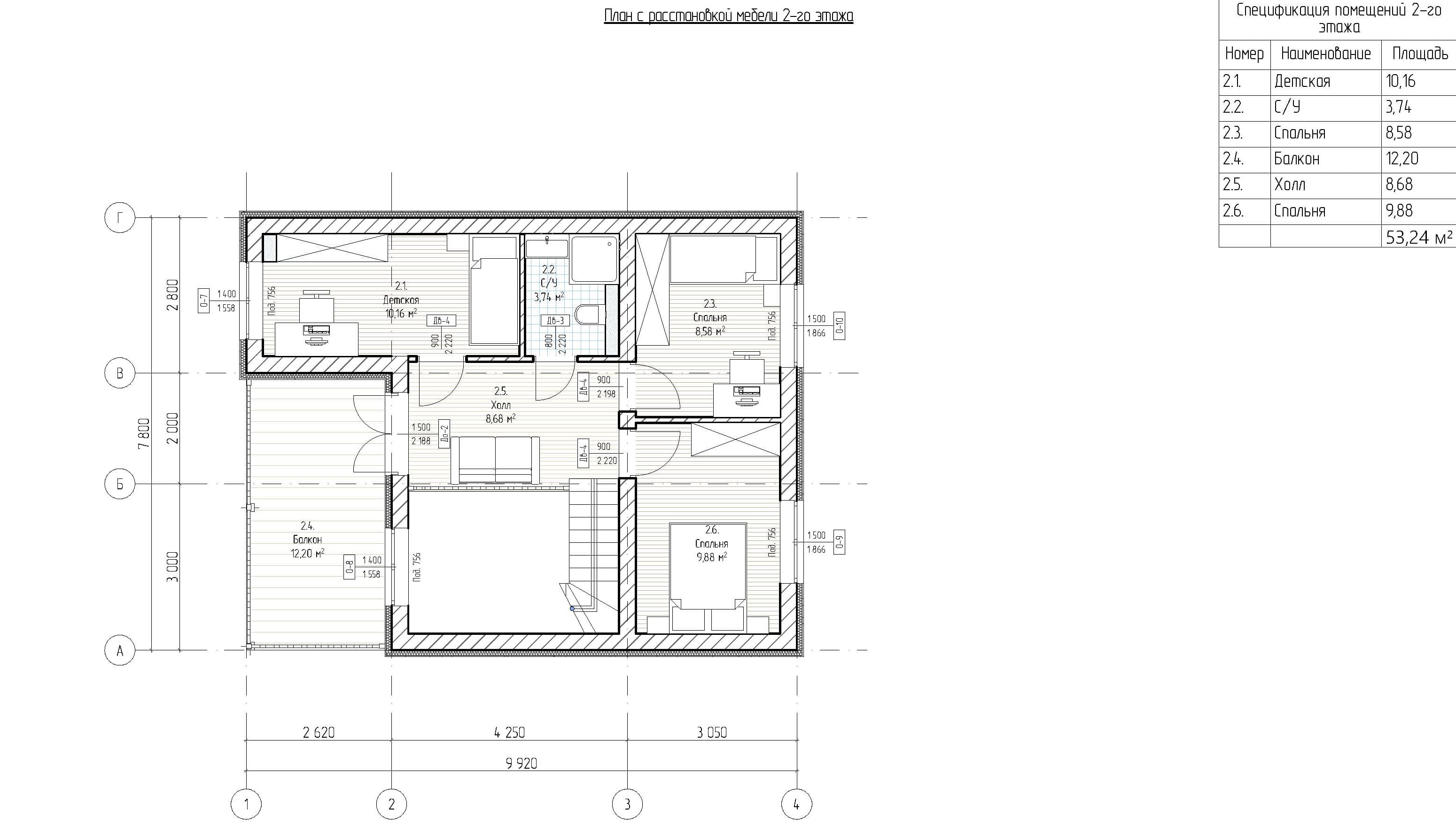
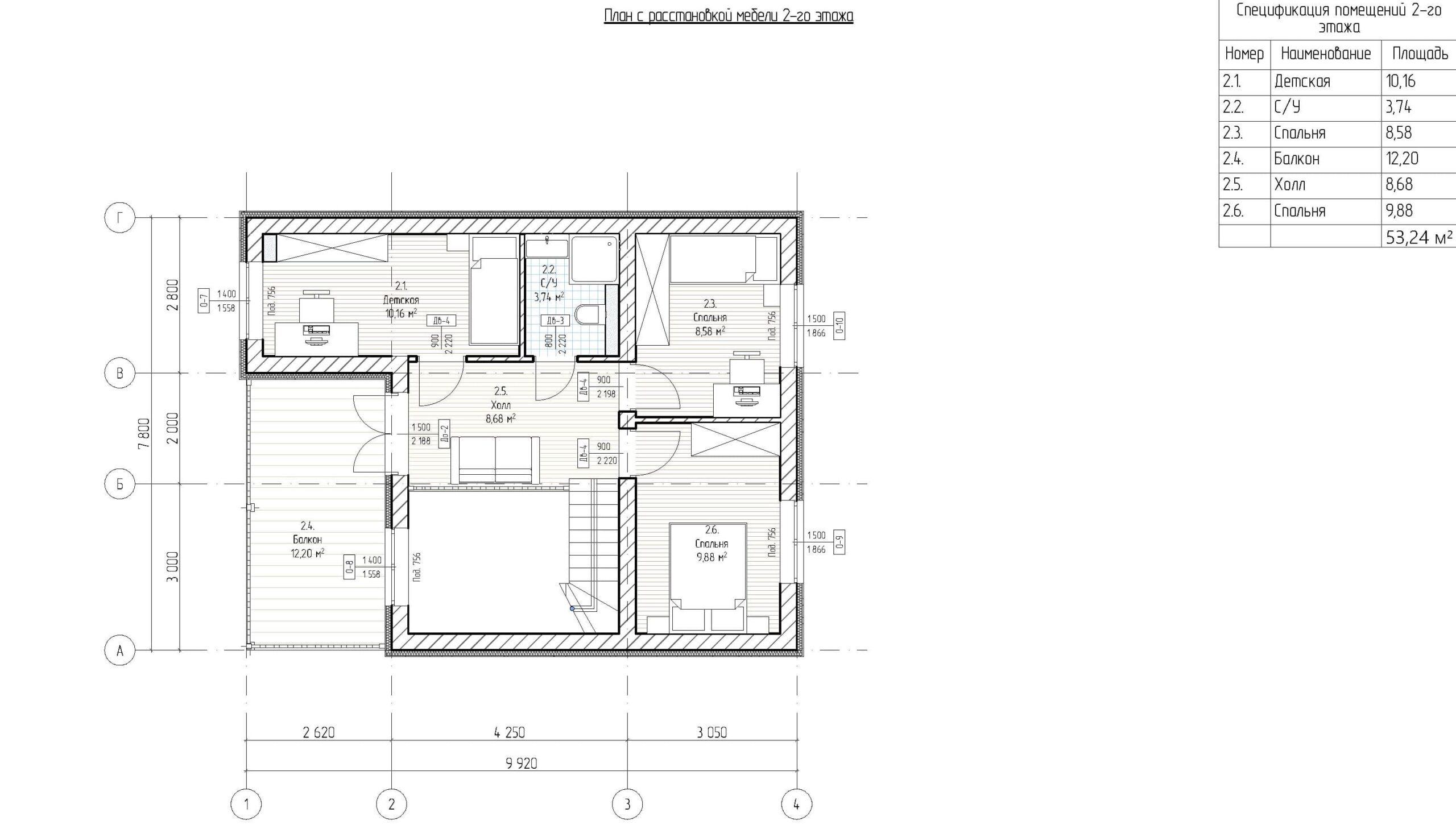
План второго этажа
- 1. Детская 10,16 м²
- 2. С/У 3,74 м²
- 3. Спальня 8,58 м²
- 4. Балкон 12,20 м²
- 5. Холл 8,68 м²
- 6. Спальня 9,88 м²
- Общая площадь 2 этажа 53,24 м²
Площади дома
| № п/п | Наименование | Ед. из. | Строительная площадь | Полезная площадь |
| 1 | 1 этаж | м2 | 81.49 | 66.13 |
| 2 | 2 этаж | м2 | 65.61 | 53.24 |
| 3 | Итого | м2 | 147.1 | 119.37 |
154 м2
Полезная
площадь
площадь
11 x 7 м
Размеры
1 этаж
Этажей
26 м2
Террасы
и балконы
и балконы
0Без
гаража
гаража
4
Количество
спален
спален
2
Количество
санузлов
санузлов
Калькулятор опций
0₽
В ипотеку от 15 548 ₽/мес.
0₽
0 дней
stdClass Object
(
[id] => 1
[attribute_id] => 1
[name] => Ленточный монолитный ж/б
[material_modifier] => 1
[work_modifier] => 1
[options] => Array
(
[0] => размер 200 х 700 мм
[1] => размер 300 х 900 мм
[2] => размер 400 х 1 000 мм
[3] => размер 500 х 1 100 мм
[4] => размер 600 х 1 200 мм
)
[days] => [20,21,22,25,30]
[material_price] => [2823,3630,4475,5210,12047]
[work_price] => [2154,2826,3731,4577,5293]
[image] => https://akademik-stroy.ru/wp-content/uploads/materials/lentochnyj-monolitnyj-zh-b.jpg
[area_modifier] => 81.49
[parent_name] => Фундамент
[parent_id] => 1
[material_sum] => 317464
[work_sum] => 201859
[total_sum] => 519323
[total_days] => 20
[display_material_sum] => 317 464
[display_work_sum] => 201 859
[display_total_sum] => 519 323
)
1
519 323₽
Работа:201 859 ₽
Материалы:317 464 ₽
Дни:20
stdClass Object
(
[id] => 2
[attribute_id] => 1
[name] => Забивные Ж/Б сваи
[material_modifier] => 1
[work_modifier] => 1
[options] => Array
(
[0] => 150х150х3000мм
[1] => 150х150х4000мм
[2] => 200х200х3000мм
[3] => 200х200х4000мм
[4] => 200х200х5000мм
[5] => 200х200х6000мм
)
[days] => [2,2,2,2,2,2]
[material_price] => [1990,2850,3255,4360,5120,6837]
[work_price] => [1002,1185,1336,1438,1574,1839]
[image] => https://akademik-stroy.ru/wp-content/uploads/materials/zabivnye-zh-b-svai.png
[area_modifier] => 81.49
[parent_name] => Фундамент
[parent_id] => 1
[material_sum] => 223788
[work_sum] => 93901
[total_sum] => 317689
[total_days] => 2
[display_material_sum] => 223 788
[display_work_sum] => 93 901
[display_total_sum] => 317 689
)
1
317 689₽
Работа:93 901 ₽
Материалы:223 788 ₽
Дни:2
stdClass Object
(
[id] => 71
[attribute_id] => 1
[name] => Свайно-ростверковый ж/б
[material_modifier] => 1
[work_modifier] => 1
[options] => Array
(
[0] => ростверк 200х300 мм
[1] => ростверк 300х600 мм
[2] => ростверк 400х900 мм
[3] => ростверк 500х1200 мм
)
[days] => [20,23,25,27]
[material_price] => [3018,3474,7109,9792]
[work_price] => [2024,3012,5635,7022]
[image] => https://akademik-stroy.ru/wp-content/uploads/materials/svajno-rostverkovyj-monolitnyj-zh-b-3.png
[area_modifier] => 81.49
[parent_name] => Фундамент
[parent_id] => 1
[material_sum] => 339393
[work_sum] => 189676
[total_sum] => 529069
[total_days] => 20
[display_material_sum] => 339 393
[display_work_sum] => 189 676
[display_total_sum] => 529 069
)
1
529 069₽
Работа:189 676 ₽
Материалы:339 393 ₽
Дни:20
stdClass Object
(
[id] => 72
[attribute_id] => 1
[name] => Монолитная ж/б плита
[material_modifier] => 1
[work_modifier] => 1
[options] => Array
(
[0] => 200 мм
[1] => 300 мм
[2] => 400 мм
[3] => 500 мм
[4] => 600 мм
)
[days] => [30,33,35,37,40]
[material_price] => [5348,8555,12788,14388,15189]
[work_price] => [4314,4881,7037,8061,10230]
[image] => https://akademik-stroy.ru/wp-content/uploads/materials/monolitnaya-zhb-plita.png
[area_modifier] => 81.49
[parent_name] => Фундамент
[parent_id] => 1
[material_sum] => 601416
[work_sum] => 404280
[total_sum] => 1005696
[total_days] => 30
[display_material_sum] => 601 416
[display_work_sum] => 404 280
[display_total_sum] => 1 005 696
)
1
1 005 696₽
Работа:404 280 ₽
Материалы:601 416 ₽
Дни:30
stdClass Object
(
[id] => 73
[attribute_id] => 1
[name] => Утепленная шведская плита
[material_modifier] => 1
[work_modifier] => 1
[options] => Array
(
[0] => 200 мм
[1] => 300 мм
[2] => 400 мм
[3] => 500 мм
[4] => 600 мм
)
[days] => [32,37,39,42,45]
[material_price] => [10249,12692,13760,14936,16230]
[work_price] => [5960,7337,8072,8878,9765]
[image] => https://akademik-stroy.ru/wp-content/uploads/materials/uteplennaya-shvedskaya-plita.jpg
[area_modifier] => 81.49
[parent_name] => Фундамент
[parent_id] => 1
[material_sum] => 1152564
[work_sum] => 558532
[total_sum] => 1711096
[total_days] => 32
[display_material_sum] => 1 152 564
[display_work_sum] => 558 532
[display_total_sum] => 1 711 096
)
1
1 711 096₽
Работа:558 532 ₽
Материалы:1 152 564 ₽
Дни:32
stdClass Object
(
[id] => 75
[attribute_id] => 1
[name] => Ленточный из ФБС
[material_modifier] => 1
[work_modifier] => 1
[options] => Array
(
[0] => толщ. 300 мм
[1] => толщ. 400 мм
[2] => толщ. 500 мм
[3] => толщ. 600 мм
)
[days] => [20,20,20,20]
[material_price] => [3675,4902,6126,7350]
[work_price] => [2451,3264,4083,4902]
[image] => https://akademik-stroy.ru/wp-content/uploads/materials/lentochnyj-iz-fbs.png
[area_modifier] => 81.49
[parent_name] => Фундамент
[parent_id] => 1
[material_sum] => 413277
[work_sum] => 229692
[total_sum] => 642969
[total_days] => 20
[display_material_sum] => 413 277
[display_work_sum] => 229 692
[display_total_sum] => 642 969
)
1
642 969₽
Работа:229 692 ₽
Материалы:413 277 ₽
Дни:20
stdClass Object
(
[id] => 76
[attribute_id] => 1
[name] => Цокольный этаж из ФБС
[material_modifier] => 1
[work_modifier] => 1
[options] => Array
(
[0] => толщ. 300 мм
[1] => толщ. 400 мм
[2] => толщ. 500 мм
[3] => толщ. 600 мм
)
[days] => [30,32,34,36]
[material_price] => [20916,23299,26680,29060]
[work_price] => [17524,18700,19873,21046]
[image] => https://akademik-stroy.ru/wp-content/uploads/materials/cokolnyj-ehtazh-iz-fbs.jpg
[area_modifier] => 81.49
[parent_name] => Фундамент
[parent_id] => 1
[material_sum] => 2352134
[work_sum] => 1642235
[total_sum] => 3994369
[total_days] => 30
[display_material_sum] => 2 352 134
[display_work_sum] => 1 642 235
[display_total_sum] => 3 994 369
)
1
3 994 369₽
Работа:1 642 235 ₽
Материалы:2 352 134 ₽
Дни:30
stdClass Object
(
[id] => 77
[attribute_id] => 1
[name] => Цокольный этаж монолитный ж/б
[material_modifier] => 1
[work_modifier] => 1
[options] => Array
(
[0] => толщ. 200 мм
[1] => толщ. 300 мм
[2] => толщ. 400 мм
[3] => толщ. 500 мм
[4] => толщ. 600 мм
)
[days] => [40,42,44,46,48]
[material_price] => [25421,29148,32275,35602,37326]
[work_price] => [20441,21907,23375,24841,26306]
[image] => https://akademik-stroy.ru/wp-content/uploads/materials/cokolnyj-etazh-zh-b.jpg
[area_modifier] => 81.49
[parent_name] => Фундамент
[parent_id] => 1
[material_sum] => 2858749
[work_sum] => 1915598
[total_sum] => 4774347
[total_days] => 40
[display_material_sum] => 2 858 749
[display_work_sum] => 1 915 598
[display_total_sum] => 4 774 347
)
1
4 774 347₽
Работа:1 915 598 ₽
Материалы:2 858 749 ₽
Дни:40
stdClass Object
(
[id] => 191
[attribute_id] => 1
[name] => Винтовые сваи
[material_modifier] => 1
[work_modifier] => 1
[options] => Array
(
[0] => 57х200мм
[1] => 76х250мм
[2] => 108х300мм
[3] => 133х350мм
)
[days] => [1,1,2,2]
[material_price] => [1200,1300,1450,1600]
[work_price] => [400,600,900,1100]
[image] => https://akademik-stroy.ru/wp-content/uploads/materials/vintovye-svai.png
[area_modifier] => 81.49
[parent_name] => Фундамент
[parent_id] => 1
[material_sum] => 134947
[work_sum] => 37485
[total_sum] => 172432
[total_days] => 1
[display_material_sum] => 134 947
[display_work_sum] => 37 485
[display_total_sum] => 172 432
)
1
172 432₽
Работа:37 485 ₽
Материалы:134 947 ₽
Дни:1
stdClass Object
(
[id] => 3
[attribute_id] => 2
[name] => Деревянные балки
[material_modifier] => 1
[work_modifier] => 1
[options] => Array
(
[0] => без утепления
[1] => утепление 200 мм
[2] => утепление 250 мм
[3] => утепление 300 мм
[4] => утепление 350 мм
[5] => утепление 400 мм
[6] => утепление 450 мм
[7] => утепление 500 мм
)
[days] => [8,9,9,9,11,12,13,14]
[material_price] => [1634,2042,2344,2947,3149,3652,3354,3557]
[work_price] => [1230,1339,1393,1426,1460,1513,1587,1620]
[image] => https://akademik-stroy.ru/wp-content/uploads/materials/derevyannye-balki.png
[area_modifier] => 81.49
[parent_name] => Перекрытие цоколя
[parent_id] => 2
[material_sum] => 183753
[work_sum] => 115268
[total_sum] => 299021
[total_days] => 8
[display_material_sum] => 183 753
[display_work_sum] => 115 268
[display_total_sum] => 299 021
)
1
299 021₽
Работа:115 268 ₽
Материалы:183 753 ₽
Дни:8
stdClass Object
(
[id] => 4
[attribute_id] => 2
[name] => Сборные ж/б плиты
[material_modifier] => 1
[work_modifier] => 1
[options] => Array
(
[0] => без утепления
[1] => утепление 150мм
[2] => утепление 200мм
[3] => утепление 250мм
[4] => утепление 300мм
[5] => утепление 350мм
[6] => утепление 400мм
[7] => утепление 450мм
[8] => утепление 500мм
)
[days] => [13,15,15,15,15,15,15,15,15]
[material_price] => [3067,5577,5928,6679,7730,8782,9833,10884,11935]
[work_price] => [1520,1956,2102,2247,2392,2537,2684,2829,2974]
[image] => https://akademik-stroy.ru/wp-content/uploads/materials/sbornye-zh-b-plity-2.jpg
[area_modifier] => 81.49
[parent_name] => Перекрытие цоколя
[parent_id] => 2
[material_sum] => 344903
[work_sum] => 142445
[total_sum] => 487348
[total_days] => 13
[display_material_sum] => 344 903
[display_work_sum] => 142 445
[display_total_sum] => 487 348
)
1
487 348₽
Работа:142 445 ₽
Материалы:344 903 ₽
Дни:13
stdClass Object
(
[id] => 78
[attribute_id] => 2
[name] => Монолитная ж/б плита
[material_modifier] => 1
[work_modifier] => 1
[options] => Array
(
[0] => без утепления
[1] => утепление 150 мм
[2] => утепление 200 мм
[3] => утепление 250 мм
[4] => утепление 300 мм
[5] => утепление 350 мм
[6] => утепление 400 мм
[7] => утепление 450 мм
[8] => утепление 500 мм
)
[days] => [18,20,20,20,20,20,20,20,20]
[material_price] => [4837,6572,7224,7375,79426,8177,8728,9180,10031]
[work_price] => [3348,3921,4112,4302,4493,4684,4875,5066,5256]
[image] => https://akademik-stroy.ru/wp-content/uploads/materials/monolitnaya-zh-b-plita-2.jpg
[area_modifier] => 81.49
[parent_name] => Перекрытие цоколя
[parent_id] => 2
[material_sum] => 543951
[work_sum] => 313753
[total_sum] => 857704
[total_days] => 18
[display_material_sum] => 543 951
[display_work_sum] => 313 753
[display_total_sum] => 857 704
)
1
857 704₽
Работа:313 753 ₽
Материалы:543 951 ₽
Дни:18
stdClass Object
(
[id] => 6
[attribute_id] => 3
[name] => Пеноблок
[material_modifier] => 1
[work_modifier] => 1
[options] => Array
(
[0] => 300 мм
[1] => 400 мм
[2] => 500 мм
[3] => 600 мм
)
[days] => [29,31,34,39]
[material_price] => [3000,4000,4500,4937]
[work_price] => [5033,5805,6400,8710]
[image] => https://akademik-stroy.ru/wp-content/uploads/materials/penoblok.jpg
[area_modifier] => 81.49
[parent_name] => Стены 1 этаж (несущие)
[parent_id] => 3
[material_sum] => 337369
[work_sum] => 471660
[total_sum] => 809029
[total_days] => 29
[display_material_sum] => 337 369
[display_work_sum] => 471 660
[display_total_sum] => 809 029
)
1
809 029₽
Работа:471 660 ₽
Материалы:337 369 ₽
Дни:29
stdClass Object
(
[id] => 79
[attribute_id] => 3
[name] => Керамический блок
[material_modifier] => 1
[work_modifier] => 1
[options] => Array
(
[0] => 380 мм
[1] => 380 мм Thermo
[2] => 440 мм
[3] => 510 мм
)
[days] => [23,23,24,25]
[material_price] => [4510,5098,6093,8013]
[work_price] => [4737,4937,5903,6958]
[image] => https://akademik-stroy.ru/wp-content/uploads/materials/keramicheskij-blok.jpg
[area_modifier] => 81.49
[parent_name] => Стены 1 этаж (несущие)
[parent_id] => 3
[material_sum] => 507177
[work_sum] => 443921
[total_sum] => 951098
[total_days] => 23
[display_material_sum] => 507 177
[display_work_sum] => 443 921
[display_total_sum] => 951 098
)
1
951 098₽
Работа:443 921 ₽
Материалы:507 177 ₽
Дни:23
stdClass Object
(
[id] => 80
[attribute_id] => 3
[name] => Кирпич
[material_modifier] => 1
[work_modifier] => 1
[options] => Array
(
[0] => Кирпич 250 мм
[1] => Кирпич 380 мм
[2] => Кирпич 510 мм
[3] => Кирпич 640 мм
[4] => Кирпич 770 мм
)
[days] => [30,30,31,33,36]
[material_price] => [5500,7142,9206,10171,12235]
[work_price] => [8736,10041,12018,15240,18462]
[image] => https://akademik-stroy.ru/wp-content/uploads/materials/kirpich.jpg
[area_modifier] => 81.49
[parent_name] => Стены 1 этаж (несущие)
[parent_id] => 3
[material_sum] => 618509
[work_sum] => 818681
[total_sum] => 1437190
[total_days] => 30
[display_material_sum] => 618 509
[display_work_sum] => 818 681
[display_total_sum] => 1 437 190
)
1
1 437 190₽
Работа:818 681 ₽
Материалы:618 509 ₽
Дни:30
stdClass Object
(
[id] => 81
[attribute_id] => 3
[name] => Монолитные
[material_modifier] => 1
[work_modifier] => 1
[options] => Array
(
[0] => 150 мм
[1] => 200 мм
[2] => 250 мм
[3] => 300 мм
[4] => 350 мм
[5] => 400 мм
)
[days] => [45,46,47,49,50,53]
[material_price] => [6545,7876,10175,12011,13908,15204]
[work_price] => [5106,6444,7698,8552,9807,11461]
[image] => https://akademik-stroy.ru/wp-content/uploads/materials/monolitnye.jpg
[area_modifier] => 81.49
[parent_name] => Стены 1 этаж (несущие)
[parent_id] => 3
[material_sum] => 736026
[work_sum] => 478501
[total_sum] => 1214527
[total_days] => 45
[display_material_sum] => 736 026
[display_work_sum] => 478 501
[display_total_sum] => 1 214 527
)
1
1 214 527₽
Работа:478 501 ₽
Материалы:736 026 ₽
Дни:45
stdClass Object
(
[id] => 82
[attribute_id] => 3
[name] => Клееный брус
[material_modifier] => 1
[work_modifier] => 1
[options] => Array
(
[0] => 160 мм
[1] => 175 мм
[2] => 200 мм
[3] => 215 мм
[4] => 240 мм
[5] => 270 мм
[6] => 282 мм
)
[days] => [24,28,32,37,40,42,48]
[material_price] => [16975,18773,19950,20545,21599,22159,23275]
[work_price] => [4806,5287,5815,6397,7036,7740,8514]
[image] => https://akademik-stroy.ru/wp-content/uploads/materials/kleenyj-brus.jpg
[area_modifier] => 81.49
[parent_name] => Стены 1 этаж (несущие)
[parent_id] => 3
[material_sum] => 1908944
[work_sum] => 450387
[total_sum] => 2359331
[total_days] => 24
[display_material_sum] => 1 908 944
[display_work_sum] => 450 387
[display_total_sum] => 2 359 331
)
1
2 359 331₽
Работа:450 387 ₽
Материалы:1 908 944 ₽
Дни:24
stdClass Object
(
[id] => 83
[attribute_id] => 3
[name] => Каркасные
[material_modifier] => 1
[work_modifier] => 1
[options] => Array
(
[0] => 150 мм
[1] => 200 мм
[2] => 250 мм
[3] => 300 мм
)
[days] => [15,16,17,18]
[material_price] => [2379,2639,2898,3258]
[work_price] => [2418,2686,2985,3716]
[image] => https://akademik-stroy.ru/wp-content/uploads/materials/karkasnye.jpg
[area_modifier] => 81.49
[parent_name] => Стены 1 этаж (несущие)
[parent_id] => 3
[material_sum] => 267533
[work_sum] => 226599
[total_sum] => 494132
[total_days] => 15
[display_material_sum] => 267 533
[display_work_sum] => 226 599
[display_total_sum] => 494 132
)
1
494 132₽
Работа:226 599 ₽
Материалы:267 533 ₽
Дни:15
stdClass Object
(
[id] => 84
[attribute_id] => 3
[name] => СИП-панели
[material_modifier] => 1
[work_modifier] => 1
[options] => Array
(
[0] => 120 мм
[1] => 170 мм
[2] => 220 мм
)
[days] => [7,7,7]
[material_price] => [1210,1856,2292]
[work_price] => [1410,1551,1706]
[image] => https://akademik-stroy.ru/wp-content/uploads/materials/sip-paneli.jpg
[area_modifier] => 81.49
[parent_name] => Стены 1 этаж (несущие)
[parent_id] => 3
[material_sum] => 136072
[work_sum] => 132136
[total_sum] => 268208
[total_days] => 7
[display_material_sum] => 136 072
[display_work_sum] => 132 136
[display_total_sum] => 268 208
)
1
268 208₽
Работа:132 136 ₽
Материалы:136 072 ₽
Дни:7
stdClass Object
(
[id] => 85
[attribute_id] => 3
[name] => Сухой брус
[material_modifier] => 1
[work_modifier] => 1
[options] => Array
(
[0] => 150 мм
[1] => 180 мм
[2] => 200 мм
)
[days] => [7,8,9]
[material_price] => [6010,7190,8709]
[work_price] => [3204,3845,4229]
[image] => https://akademik-stroy.ru/wp-content/uploads/materials/suhoj-brus.jpg
[area_modifier] => 81.49
[parent_name] => Стены 1 этаж (несущие)
[parent_id] => 3
[material_sum] => 675862
[work_sum] => 300258
[total_sum] => 976120
[total_days] => 7
[display_material_sum] => 675 862
[display_work_sum] => 300 258
[display_total_sum] => 976 120
)
1
976 120₽
Работа:300 258 ₽
Материалы:675 862 ₽
Дни:7
stdClass Object
(
[id] => 86
[attribute_id] => 3
[name] => Профилированный брус
[material_modifier] => 1
[work_modifier] => 1
[options] => Array
(
[0] => 150 мм
[1] => 180 мм
[2] => 200 мм
)
[days] => [7,8,9]
[material_price] => [8190,9228,10051]
[work_price] => [3845,4614,5075]
[image] => https://akademik-stroy.ru/wp-content/uploads/materials/profilirovannyj-brus.jpg
[area_modifier] => 81.49
[parent_name] => Стены 1 этаж (несущие)
[parent_id] => 3
[material_sum] => 921016
[work_sum] => 360328
[total_sum] => 1281344
[total_days] => 7
[display_material_sum] => 921 016
[display_work_sum] => 360 328
[display_total_sum] => 1 281 344
)
1
1 281 344₽
Работа:360 328 ₽
Материалы:921 016 ₽
Дни:7
stdClass Object
(
[id] => 87
[attribute_id] => 3
[name] => Оцилиндрованное бревно
[material_modifier] => 1
[work_modifier] => 1
[options] => Array
(
[0] => 180 мм
[1] => 220 мм
[2] => 260 мм
[3] => 320 мм
)
[days] => [7,8,9,10]
[material_price] => [75190,9532,10868,13116]
[work_price] => [3845,4691,5535,6863]
[image] => https://akademik-stroy.ru/wp-content/uploads/materials/ocilindrovannoe-brevno-1.jpg
[area_modifier] => 81.49
[parent_name] => Стены 1 этаж (несущие)
[parent_id] => 3
[material_sum] => 8455582
[work_sum] => 360328
[total_sum] => 8815910
[total_days] => 7
[display_material_sum] => 8 455 582
[display_work_sum] => 360 328
[display_total_sum] => 8 815 910
)
1
8 815 910₽
Работа:360 328 ₽
Материалы:8 455 582 ₽
Дни:7
stdClass Object
(
[id] => 88
[attribute_id] => 3
[name] => Срубы
[material_modifier] => 1
[work_modifier] => 1
[options] => Array
(
[0] => 260 мм
[1] => 320 мм
[2] => 360 мм
[3] => 400 мм
[4] => 500 мм
)
[days] => [7,8,9,10,11]
[material_price] => [37975,46709,52314,58069,73167]
[work_price] => [4806,5911,6621,7349,9260]
[image] => https://akademik-stroy.ru/wp-content/uploads/materials/sruby.jpg
[area_modifier] => 81.49
[parent_name] => Стены 1 этаж (несущие)
[parent_id] => 3
[material_sum] => 4270524
[work_sum] => 450387
[total_sum] => 4720911
[total_days] => 7
[display_material_sum] => 4 270 524
[display_work_sum] => 450 387
[display_total_sum] => 4 720 911
)
1
4 720 911₽
Работа:450 387 ₽
Материалы:4 270 524 ₽
Дни:7
stdClass Object
(
[id] => 174
[attribute_id] => 3
[name] => Брус
[material_modifier] => 1
[work_modifier] => 1
[options] => Array
(
[0] => 150 мм
[1] => 180 мм
[2] => 200 мм
)
[days] => [7,8,9]
[material_price] => [5127,6152,7367]
[work_price] => [1602,1922,2115]
[image] => https://akademik-stroy.ru/wp-content/uploads/materials/brus.jpg
[area_modifier] => 81.49
[parent_name] => Стены 1 этаж (несущие)
[parent_id] => 3
[material_sum] => 576563
[work_sum] => 150129
[total_sum] => 726692
[total_days] => 7
[display_material_sum] => 576 563
[display_work_sum] => 150 129
[display_total_sum] => 726 692
)
1
726 692₽
Работа:150 129 ₽
Материалы:576 563 ₽
Дни:7
stdClass Object
(
[id] => 175
[attribute_id] => 3
[name] => Газобетон
[material_modifier] => 1
[work_modifier] => 1
[options] => Array
(
[0] => 300 мм
[1] => 375 мм
[2] => 400 мм
[3] => 500 мм
[4] => 600 мм
)
[days] => [29,31,35,37,44]
[material_price] => [4298,5573,6356,7288,9119]
[work_price] => [4538,5251,5926,6733,7195]
[image] => https://akademik-stroy.ru/wp-content/uploads/materials/gazobeton.jpg
[area_modifier] => 81.49
[parent_name] => Стены 1 этаж (несущие)
[parent_id] => 3
[material_sum] => 483337
[work_sum] => 425272
[total_sum] => 908609
[total_days] => 29
[display_material_sum] => 483 337
[display_work_sum] => 425 272
[display_total_sum] => 908 609
)
1
908 609₽
Работа:425 272 ₽
Материалы:483 337 ₽
Дни:29
stdClass Object
(
[id] => 176
[attribute_id] => 3
[name] => Блок
[material_modifier] => 1
[work_modifier] => 1
[options] => Array
(
[0] => 300 мм
[1] => 375 мм
[2] => 400 мм
[3] => 500 мм
[4] => 600 мм
)
[days] => [29,31,35,37,44]
[material_price] => [2698,3973,4356,6588,7119]
[work_price] => [5038,5851,6426,8733,9195]
[image] => https://akademik-stroy.ru/wp-content/uploads/materials/blok.jpg
[area_modifier] => 81.49
[parent_name] => Стены 1 этаж (несущие)
[parent_id] => 3
[material_sum] => 303407
[work_sum] => 472129
[total_sum] => 775536
[total_days] => 29
[display_material_sum] => 303 407
[display_work_sum] => 472 129
[display_total_sum] => 775 536
)
1
775 536₽
Работа:472 129 ₽
Материалы:303 407 ₽
Дни:29
stdClass Object
(
[id] => 177
[attribute_id] => 3
[name] => Газосиликатный блок
[material_modifier] => 1
[work_modifier] => 1
[options] => Array
(
[0] => 300 мм
[1] => 375 мм
[2] => 400 мм
[3] => 500 мм
[4] => 600 мм
)
[days] => [29,31,35,37,44]
[material_price] => [4298,5573,6356,7288,9119]
[work_price] => [4538,5251,5926,6733,7195]
[image] => https://akademik-stroy.ru/wp-content/uploads/materials/gazosilikatnyj-blok.jpg
[area_modifier] => 81.49
[parent_name] => Стены 1 этаж (несущие)
[parent_id] => 3
[material_sum] => 483337
[work_sum] => 425272
[total_sum] => 908609
[total_days] => 29
[display_material_sum] => 483 337
[display_work_sum] => 425 272
[display_total_sum] => 908 609
)
1
908 609₽
Работа:425 272 ₽
Материалы:483 337 ₽
Дни:29
stdClass Object
(
[id] => 178
[attribute_id] => 3
[name] => Керамзитобетонный блок
[material_modifier] => 1
[work_modifier] => 1
[options] => Array
(
[0] => 300 мм
[1] => 375 мм
[2] => 400 мм
[3] => 500 мм
[4] => 600 мм
)
[days] => [23,23,24,25,28]
[material_price] => [3641,4298,5693,7613,9612]
[work_price] => [5737,5737,6903,7958,8901]
[image] => https://akademik-stroy.ru/wp-content/uploads/materials/keramzitobetonnyj-blok.jpg
[area_modifier] => 81.49
[parent_name] => Стены 1 этаж (несущие)
[parent_id] => 3
[material_sum] => 409453
[work_sum] => 537634
[total_sum] => 947087
[total_days] => 23
[display_material_sum] => 409 453
[display_work_sum] => 537 634
[display_total_sum] => 947 087
)
1
947 087₽
Работа:537 634 ₽
Материалы:409 453 ₽
Дни:23
stdClass Object
(
[id] => 179
[attribute_id] => 3
[name] => Деревянные
[material_modifier] => 1
[work_modifier] => 1
[options] => Array
(
[0] => 180 мм
[1] => 220 мм
[2] => 260 мм
[3] => 320 мм
)
[days] => [7,8,9,10]
[material_price] => [7950,9458,11961,14472]
[work_price] => [4037,4925,5812,7207]
[image] => https://akademik-stroy.ru/wp-content/uploads/materials/derevyannye.jpg
[area_modifier] => 81.49
[parent_name] => Стены 1 этаж (несущие)
[parent_id] => 3
[material_sum] => 894027
[work_sum] => 378321
[total_sum] => 1272348
[total_days] => 7
[display_material_sum] => 894 027
[display_work_sum] => 378 321
[display_total_sum] => 1 272 348
)
1
1 272 348₽
Работа:378 321 ₽
Материалы:894 027 ₽
Дни:7
stdClass Object
(
[id] => 181
[attribute_id] => 3
[name] => Камень
[material_modifier] => 1
[work_modifier] => 1
[options] => Array
(
[0] => 300 мм
[1] => 400 мм
[2] => 500 мм
[3] => 600 мм
)
[days] => [25,27,31,34]
[material_price] => [5262,6844,8330,9815]
[work_price] => [8331,9135,10427,11069]
[image] => https://akademik-stroy.ru/wp-content/uploads/materials/kamen.jpg
[area_modifier] => 81.49
[parent_name] => Стены 1 этаж (несущие)
[parent_id] => 3
[material_sum] => 591745
[work_sum] => 780727
[total_sum] => 1372472
[total_days] => 25
[display_material_sum] => 591 745
[display_work_sum] => 780 727
[display_total_sum] => 1 372 472
)
1
1 372 472₽
Работа:780 727 ₽
Материалы:591 745 ₽
Дни:25
stdClass Object
(
[id] => 182
[attribute_id] => 3
[name] => Каркасно-щитовые
[material_modifier] => 1
[work_modifier] => 1
[options] => Array
(
[0] => 150 мм
[1] => 200 мм
[2] => 250 мм
[3] => 300 мм
[4] => 350 мм
[5] => 400 мм
)
[days] => [15,16,17,18,19,20]
[material_price] => [2379,2639,2898,3458,3601,4175]
[work_price] => [2538,2820,3134,3483,4062,5642]
[image] => https://akademik-stroy.ru/wp-content/uploads/materials/karkasno-shchitovye.jpg
[area_modifier] => 81.49
[parent_name] => Стены 1 этаж (несущие)
[parent_id] => 3
[material_sum] => 267533
[work_sum] => 237845
[total_sum] => 505378
[total_days] => 15
[display_material_sum] => 267 533
[display_work_sum] => 237 845
[display_total_sum] => 505 378
)
1
505 378₽
Работа:237 845 ₽
Материалы:267 533 ₽
Дни:15
stdClass Object
(
[id] => 183
[attribute_id] => 3
[name] => Рубленные
[material_modifier] => 1
[work_modifier] => 1
[options] => Array
(
[0] => 150 мм
[1] => 200 мм
[2] => 250 мм
[3] => 300 мм
[4] => 350 мм
[5] => 400 мм
)
[days] => [15,16,17,18,17,18]
[material_price] => [35950,50267,60583,75900,80217,100533]
[work_price] => [9612,12816,16020,19224,22428,25632]
[image] => https://akademik-stroy.ru/wp-content/uploads/materials/rublennye.jpg
[area_modifier] => 81.49
[parent_name] => Стены 1 этаж (несущие)
[parent_id] => 3
[material_sum] => 4042800
[work_sum] => 900774
[total_sum] => 4943574
[total_days] => 15
[display_material_sum] => 4 042 800
[display_work_sum] => 900 774
[display_total_sum] => 4 943 574
)
1
4 943 574₽
Работа:900 774 ₽
Материалы:4 042 800 ₽
Дни:15
stdClass Object
(
[id] => 185
[attribute_id] => 3
[name] => Теплоблок
[material_modifier] => 1
[work_modifier] => 1
[options] => Array
(
[0] => 300 мм (с облицовкой, не покрашенный)
[1] => 400 мм (с облицовкой, не покрашенный)
[2] => 300 мм (с облицовкой, покрашенный)
[3] => 400 мм (с облицовкой, покрашенный)
)
[days] => [15,16,15,16]
[material_price] => [2888,3729,3957,4258]
[work_price] => [2564,3229,2949,3713]
[image] => https://akademik-stroy.ru/wp-content/uploads/materials/teploblok.jpg
[area_modifier] => 81.49
[parent_name] => Стены 1 этаж (несущие)
[parent_id] => 3
[material_sum] => 324774
[work_sum] => 240281
[total_sum] => 565055
[total_days] => 15
[display_material_sum] => 324 774
[display_work_sum] => 240 281
[display_total_sum] => 565 055
)
1
565 055₽
Работа:240 281 ₽
Материалы:324 774 ₽
Дни:15
stdClass Object
(
[id] => 186
[attribute_id] => 3
[name] => Арболитовые блоки
[material_modifier] => 1
[work_modifier] => 1
[options] => Array
(
[0] => 300 мм
[1] => 400 мм
[2] => 600 мм
)
[days] => [19,22,27]
[material_price] => [3210,4475,5852]
[work_price] => [4214,4788,5866]
[image] => https://akademik-stroy.ru/wp-content/uploads/materials/arbolitovye-bloki.png
[area_modifier] => 81.49
[parent_name] => Стены 1 этаж (несущие)
[parent_id] => 3
[material_sum] => 360984
[work_sum] => 394909
[total_sum] => 755893
[total_days] => 19
[display_material_sum] => 360 984
[display_work_sum] => 394 909
[display_total_sum] => 755 893
)
1
755 893₽
Работа:394 909 ₽
Материалы:360 984 ₽
Дни:19
stdClass Object
(
[id] => 187
[attribute_id] => 3
[name] => Полистиролбетон
[material_modifier] => 1
[work_modifier] => 1
[options] => Array
(
[0] => 300 мм
[1] => 400 мм
[2] => 600 мм
)
[days] => [29,31,35]
[material_price] => [2798,4573,5256]
[work_price] => [5038,5851,6426]
[image] => https://akademik-stroy.ru/wp-content/uploads/materials/polistirolbeton.jpg
[area_modifier] => 81.49
[parent_name] => Стены 1 этаж (несущие)
[parent_id] => 3
[material_sum] => 314652
[work_sum] => 472129
[total_sum] => 786781
[total_days] => 29
[display_material_sum] => 314 652
[display_work_sum] => 472 129
[display_total_sum] => 786 781
)
1
786 781₽
Работа:472 129 ₽
Материалы:314 652 ₽
Дни:29
stdClass Object
(
[id] => 188
[attribute_id] => 3
[name] => Шлакоблок
[material_modifier] => 1
[work_modifier] => 1
[options] => Array
(
[0] => 400 мм
[1] => 600 мм
)
[days] => [15,16]
[material_price] => [2391,3471]
[work_price] => [2642,3662]
[image] => https://akademik-stroy.ru/wp-content/uploads/materials/shlakoblok.jpg
[area_modifier] => 81.49
[parent_name] => Стены 1 этаж (несущие)
[parent_id] => 3
[material_sum] => 268883
[work_sum] => 247591
[total_sum] => 516474
[total_days] => 15
[display_material_sum] => 268 883
[display_work_sum] => 247 591
[display_total_sum] => 516 474
)
1
516 474₽
Работа:247 591 ₽
Материалы:268 883 ₽
Дни:15
stdClass Object
(
[id] => 189
[attribute_id] => 3
[name] => Теплая керамика
[material_modifier] => 1
[work_modifier] => 1
[options] => Array
(
[0] => 380 мм
[1] => 380 мм Thermo
[2] => 440 мм
[3] => 510 мм
)
[days] => [23,23,24,25]
[material_price] => [4510,5098,6093,8013]
[work_price] => [4737,4937,5903,6958]
[image] => https://akademik-stroy.ru/wp-content/uploads/materials/teplaya-keramika.jpg
[area_modifier] => 81.49
[parent_name] => Стены 1 этаж (несущие)
[parent_id] => 3
[material_sum] => 507177
[work_sum] => 443921
[total_sum] => 951098
[total_days] => 23
[display_material_sum] => 507 177
[display_work_sum] => 443 921
[display_total_sum] => 951 098
)
1
951 098₽
Работа:443 921 ₽
Материалы:507 177 ₽
Дни:23
stdClass Object
(
[id] => 190
[attribute_id] => 3
[name] => Несъемная опалубка
[material_modifier] => 1
[work_modifier] => 1
[options] => Array
(
[0] => 200 мм
[1] => 250 мм
[2] => 300 мм
[3] => 350 мм
)
[days] => [15,17,19,21]
[material_price] => [3302,3902,4108,5008]
[work_price] => [2100,2100,2300,2534]
[image] => https://akademik-stroy.ru/wp-content/uploads/materials/nesemnaya-opalubka.jpg
[area_modifier] => 81.49
[parent_name] => Стены 1 этаж (несущие)
[parent_id] => 3
[material_sum] => 371330
[work_sum] => 196798
[total_sum] => 568128
[total_days] => 15
[display_material_sum] => 371 330
[display_work_sum] => 196 798
[display_total_sum] => 568 128
)
1
568 128₽
Работа:196 798 ₽
Материалы:371 330 ₽
Дни:15
stdClass Object
(
[id] => 251
[attribute_id] => 3
[name] => Бревно
[material_modifier] => 1
[work_modifier] => 1
[options] => Array
(
[0] => 260 мм
[1] => 320 мм
[2] => 360 мм
[3] => 400 мм
[4] => 500 мм
)
[days] => [7,8,9,10,11]
[material_price] => [1874,24045,26930,30972,38825]
[work_price] => [5046,6207,6952,7716,9723]
[image] => https://akademik-stroy.ru/wp-content/uploads/materials/sruby.jpg
[area_modifier] => 81.49
[parent_name] => Стены 1 этаж (несущие)
[parent_id] => 3
[material_sum] => 210743
[work_sum] => 472878
[total_sum] => 683621
[total_days] => 7
[display_material_sum] => 210 743
[display_work_sum] => 472 878
[display_total_sum] => 683 621
)
1
683 621₽
Работа:472 878 ₽
Материалы:210 743 ₽
Дни:7
stdClass Object
(
[id] => 7
[attribute_id] => 4
[name] => Деревянные балки
[material_modifier] => 1
[work_modifier] => 1
[options] => Array
(
[0] => без утепления
[1] => утепление 200 мм
[2] => утепление 250 мм
[3] => утепление 300 мм
[4] => утепление 350 мм
[5] => утепление 400 мм
[6] => утепление 450 мм
[7] => утепление 500 мм
)
[days] => [8,9,9,9,11,12,13,14]
[material_price] => [1634,2042,2344,2947,3149,3652,3354,3557]
[work_price] => [1230,1339,1393,1426,1460,1513,1587,1620]
[image] => https://akademik-stroy.ru/wp-content/uploads/materials/derevyannye-balki.png
[area_modifier] => 81.49
[parent_name] => Перекрытие первого этажа
[parent_id] => 4
[material_sum] => 183753
[work_sum] => 115268
[total_sum] => 299021
[total_days] => 8
[display_material_sum] => 183 753
[display_work_sum] => 115 268
[display_total_sum] => 299 021
)
1
299 021₽
Работа:115 268 ₽
Материалы:183 753 ₽
Дни:8
stdClass Object
(
[id] => 8
[attribute_id] => 4
[name] => Сборные ж/б плиты
[material_modifier] => 1
[work_modifier] => 1
[options] => Array
(
[0] => без утепления
[1] => утепление 150 мм
[2] => утепление 200 мм
[3] => утепление 250 мм
[4] => утепление 300 мм
[5] => утепление 350 мм
[6] => утепление 400 мм
[7] => утепление 450 мм
[8] => утепление 500 мм
)
[days] => [13,15,15,15,15,15,15,15,15]
[material_price] => [3067,5577,5928,6679,7730,8782,9833,10884,11935]
[work_price] => [1520,1956,2102,2247,2392,2537,2684,2829,2974]
[image] => https://akademik-stroy.ru/wp-content/uploads/materials/sbornye-zh-b-plity-2.jpg
[area_modifier] => 81.49
[parent_name] => Перекрытие первого этажа
[parent_id] => 4
[material_sum] => 344903
[work_sum] => 142445
[total_sum] => 487348
[total_days] => 13
[display_material_sum] => 344 903
[display_work_sum] => 142 445
[display_total_sum] => 487 348
)
1
487 348₽
Работа:142 445 ₽
Материалы:344 903 ₽
Дни:13
stdClass Object
(
[id] => 89
[attribute_id] => 4
[name] => Монолитная ж/б плита
[material_modifier] => 1
[work_modifier] => 1
[options] => Array
(
[0] => без утепления
[1] => утепление 150 мм
[2] => утепление 200 мм
[3] => утепление 250 мм
[4] => утепление 300 мм
[5] => утепление 350 мм
[6] => утепление 400 мм
[7] => утепление 450 мм
[8] => утепление 500 мм
)
[days] => [18,20,20,20,20,20,20,20,20]
[material_price] => [4837,6572,7224,7375,79426,8177,8728,9180,10031]
[work_price] => [3348,3921,4112,4302,4493,4684,4875,5066,5256]
[image] => https://akademik-stroy.ru/wp-content/uploads/materials/monolitnaya-zh-b-plita-2.jpg
[area_modifier] => 81.49
[parent_name] => Перекрытие первого этажа
[parent_id] => 4
[material_sum] => 543951
[work_sum] => 313753
[total_sum] => 857704
[total_days] => 18
[display_material_sum] => 543 951
[display_work_sum] => 313 753
[display_total_sum] => 857 704
)
1
857 704₽
Работа:313 753 ₽
Материалы:543 951 ₽
Дни:18
stdClass Object
(
[id] => 10
[attribute_id] => 5
[name] => Пеноблок
[material_modifier] => 1
[work_modifier] => 1
[options] => Array
(
[0] => 300 мм
[1] => 400 мм
[2] => 500 мм
[3] => 600 мм
)
[days] => [29,31,34,39]
[material_price] => [3000,4000,4500,4937]
[work_price] => [5033,5805,6400,8710]
[image] => https://akademik-stroy.ru/wp-content/uploads/materials/penoblok.jpg
[area_modifier] => 65.61
[parent_name] => Стены 2 этаж (несущие)
[parent_id] => 5
[material_sum] => 271625
[work_sum] => 379747
[total_sum] => 651372
[total_days] => 29
[display_material_sum] => 271 625
[display_work_sum] => 379 747
[display_total_sum] => 651 372
)
1
651 372₽
Работа:379 747 ₽
Материалы:271 625 ₽
Дни:29
stdClass Object
(
[id] => 90
[attribute_id] => 5
[name] => Керамический блок
[material_modifier] => 1
[work_modifier] => 1
[options] => Array
(
[0] => 380 мм
[1] => 380 мм Thermo
[2] => 440 мм
[3] => 510 мм
)
[days] => [23,23,24,25]
[material_price] => [4510,5098,6093,8013]
[work_price] => [4737,4937,5903,6958]
[image] => https://akademik-stroy.ru/wp-content/uploads/materials/keramicheskij-blok.jpg
[area_modifier] => 65.61
[parent_name] => Стены 2 этаж (несущие)
[parent_id] => 5
[material_sum] => 408344
[work_sum] => 357414
[total_sum] => 765758
[total_days] => 23
[display_material_sum] => 408 344
[display_work_sum] => 357 414
[display_total_sum] => 765 758
)
1
765 758₽
Работа:357 414 ₽
Материалы:408 344 ₽
Дни:23
stdClass Object
(
[id] => 91
[attribute_id] => 5
[name] => Кирпич
[material_modifier] => 1
[work_modifier] => 1
[options] => Array
(
[0] => Кирпич 250 мм
[1] => Кирпич 380 мм
[2] => Кирпич 510 мм
[3] => Кирпич 640 мм
[4] => Кирпич 770 мм
)
[days] => [30,30,31,33,36]
[material_price] => [5500,7142,9206,10171,12235]
[work_price] => [8736,10041,12018,15240,18462]
[image] => https://akademik-stroy.ru/wp-content/uploads/materials/kirpich.jpg
[area_modifier] => 65.61
[parent_name] => Стены 2 этаж (несущие)
[parent_id] => 5
[material_sum] => 497980
[work_sum] => 659144
[total_sum] => 1157124
[total_days] => 30
[display_material_sum] => 497 980
[display_work_sum] => 659 144
[display_total_sum] => 1 157 124
)
1
1 157 124₽
Работа:659 144 ₽
Материалы:497 980 ₽
Дни:30
stdClass Object
(
[id] => 92
[attribute_id] => 5
[name] => Монолитные
[material_modifier] => 1
[work_modifier] => 1
[options] => Array
(
[0] => 150 мм
[1] => 200 мм
[2] => 250 мм
[3] => 300 мм
[4] => 350 мм
[5] => 400 мм
)
[days] => [45,46,47,49,50,53]
[material_price] => [6545,7876,10175,12011,13908,15204]
[work_price] => [5106,6444,7698,8552,9807,11461]
[image] => https://akademik-stroy.ru/wp-content/uploads/materials/monolitnye.jpg
[area_modifier] => 65.61
[parent_name] => Стены 2 этаж (несущие)
[parent_id] => 5
[material_sum] => 592596
[work_sum] => 385255
[total_sum] => 977851
[total_days] => 45
[display_material_sum] => 592 596
[display_work_sum] => 385 255
[display_total_sum] => 977 851
)
1
977 851₽
Работа:385 255 ₽
Материалы:592 596 ₽
Дни:45
stdClass Object
(
[id] => 93
[attribute_id] => 5
[name] => Клееный брус
[material_modifier] => 1
[work_modifier] => 1
[options] => Array
(
[0] => 160 мм
[1] => 175 мм
[2] => 200 мм
[3] => 215 мм
[4] => 240 мм
[5] => 270 мм
[6] => 282 мм
)
[days] => [24,28,32,37,40,42,48]
[material_price] => [16975,18773,19950,20545,21599,22159,23275]
[work_price] => [4806,5287,5815,6397,7036,7740,8514]
[image] => https://akademik-stroy.ru/wp-content/uploads/materials/kleenyj-brus.jpg
[area_modifier] => 65.61
[parent_name] => Стены 2 этаж (несущие)
[parent_id] => 5
[material_sum] => 1536947
[work_sum] => 362620
[total_sum] => 1899567
[total_days] => 24
[display_material_sum] => 1 536 947
[display_work_sum] => 362 620
[display_total_sum] => 1 899 567
)
1
1 899 567₽
Работа:362 620 ₽
Материалы:1 536 947 ₽
Дни:24
stdClass Object
(
[id] => 94
[attribute_id] => 5
[name] => Каркасные
[material_modifier] => 1
[work_modifier] => 1
[options] => Array
(
[0] => 150 мм
[1] => 200 мм
[2] => 250 мм
[3] => 300 мм
)
[days] => [15,16,17,18]
[material_price] => [2379,2639,2898,3258]
[work_price] => [2418,2686,2985,3716]
[image] => https://akademik-stroy.ru/wp-content/uploads/materials/karkasnye.jpg
[area_modifier] => 65.61
[parent_name] => Стены 2 этаж (несущие)
[parent_id] => 5
[material_sum] => 215399
[work_sum] => 182442
[total_sum] => 397841
[total_days] => 15
[display_material_sum] => 215 399
[display_work_sum] => 182 442
[display_total_sum] => 397 841
)
1
397 841₽
Работа:182 442 ₽
Материалы:215 399 ₽
Дни:15
stdClass Object
(
[id] => 95
[attribute_id] => 5
[name] => СИП-панели
[material_modifier] => 1
[work_modifier] => 1
[options] => Array
(
[0] => 120 мм
[1] => 170 мм
[2] => 220 мм
)
[days] => [7,7,7]
[material_price] => [1210,1856,2292]
[work_price] => [1410,1551,1706]
[image] => https://akademik-stroy.ru/wp-content/uploads/materials/sip-paneli.jpg
[area_modifier] => 65.61
[parent_name] => Стены 2 этаж (несущие)
[parent_id] => 5
[material_sum] => 109556
[work_sum] => 106387
[total_sum] => 215943
[total_days] => 7
[display_material_sum] => 109 556
[display_work_sum] => 106 387
[display_total_sum] => 215 943
)
1
215 943₽
Работа:106 387 ₽
Материалы:109 556 ₽
Дни:7
stdClass Object
(
[id] => 96
[attribute_id] => 5
[name] => Сухой брус
[material_modifier] => 1
[work_modifier] => 1
[options] => Array
(
[0] => 150 мм
[1] => 180 мм
[2] => 200 мм
)
[days] => [7,8,9]
[material_price] => [6010,7190,8709]
[work_price] => [3204,3845,4229]
[image] => https://akademik-stroy.ru/wp-content/uploads/materials/suhoj-brus.jpg
[area_modifier] => 65.61
[parent_name] => Стены 2 этаж (несущие)
[parent_id] => 5
[material_sum] => 544156
[work_sum] => 241747
[total_sum] => 785903
[total_days] => 7
[display_material_sum] => 544 156
[display_work_sum] => 241 747
[display_total_sum] => 785 903
)
1
785 903₽
Работа:241 747 ₽
Материалы:544 156 ₽
Дни:7
stdClass Object
(
[id] => 97
[attribute_id] => 5
[name] => Профилированный брус
[material_modifier] => 1
[work_modifier] => 1
[options] => Array
(
[0] => 150 мм
[1] => 180 мм
[2] => 200 мм
)
[days] => [7,8,9]
[material_price] => [8190,9228,10051]
[work_price] => [3845,4614,5075]
[image] => https://akademik-stroy.ru/wp-content/uploads/materials/profilirovannyj-brus.jpg
[area_modifier] => 65.61
[parent_name] => Стены 2 этаж (несущие)
[parent_id] => 5
[material_sum] => 741537
[work_sum] => 290111
[total_sum] => 1031648
[total_days] => 7
[display_material_sum] => 741 537
[display_work_sum] => 290 111
[display_total_sum] => 1 031 648
)
1
1 031 648₽
Работа:290 111 ₽
Материалы:741 537 ₽
Дни:7
stdClass Object
(
[id] => 98
[attribute_id] => 5
[name] => Оцилиндрованное бревно
[material_modifier] => 1
[work_modifier] => 1
[options] => Array
(
[0] => 180 мм
[1] => 220 мм
[2] => 260 мм
[3] => 320 мм
)
[days] => [7,8,9,10]
[material_price] => [75190,9532,10868,13116]
[work_price] => [3845,4691,5535,6863]
[image] => https://akademik-stroy.ru/wp-content/uploads/materials/ocilindrovannoe-brevno-1.jpg
[area_modifier] => 65.61
[parent_name] => Стены 2 этаж (несущие)
[parent_id] => 5
[material_sum] => 6807838
[work_sum] => 290111
[total_sum] => 7097949
[total_days] => 7
[display_material_sum] => 6 807 838
[display_work_sum] => 290 111
[display_total_sum] => 7 097 949
)
1
7 097 949₽
Работа:290 111 ₽
Материалы:6 807 838 ₽
Дни:7
stdClass Object
(
[id] => 99
[attribute_id] => 5
[name] => Срубы
[material_modifier] => 1
[work_modifier] => 1
[options] => Array
(
[0] => 260 мм
[1] => 320 мм
[2] => 360 мм
[3] => 400 мм
[4] => 500 мм
)
[days] => [7,8,9,10,11]
[material_price] => [16175,23709,26314,29069,32167]
[work_price] => [4806,5911,6621,7349,9260]
[image] => https://akademik-stroy.ru/wp-content/uploads/materials/suhoj-brus.jpg
[area_modifier] => 65.61
[parent_name] => Стены 2 этаж (несущие)
[parent_id] => 5
[material_sum] => 1464514
[work_sum] => 362620
[total_sum] => 1827134
[total_days] => 7
[display_material_sum] => 1 464 514
[display_work_sum] => 362 620
[display_total_sum] => 1 827 134
)
1
1 827 134₽
Работа:362 620 ₽
Материалы:1 464 514 ₽
Дни:7
stdClass Object
(
[id] => 194
[attribute_id] => 5
[name] => Брус
[material_modifier] => 1
[work_modifier] => 1
[options] => Array
(
[0] => 150 мм
[1] => 180 мм
[2] => 200 мм
)
[days] => [10,13,15]
[material_price] => [5127,6152,7367]
[work_price] => [1602,1922,2115]
[image] => https://akademik-stroy.ru/wp-content/uploads/materials/brus.jpg
[area_modifier] => 65.61
[parent_name] => Стены 2 этаж (несущие)
[parent_id] => 5
[material_sum] => 464208
[work_sum] => 120873
[total_sum] => 585081
[total_days] => 10
[display_material_sum] => 464 208
[display_work_sum] => 120 873
[display_total_sum] => 585 081
)
1
585 081₽
Работа:120 873 ₽
Материалы:464 208 ₽
Дни:10
stdClass Object
(
[id] => 195
[attribute_id] => 5
[name] => Газобетон
[material_modifier] => 1
[work_modifier] => 1
[options] => Array
(
[0] => 300 мм
[1] => 375 мм
[2] => 400 мм
[3] => 500 мм
[4] => 600 мм
)
[days] => [29,31,35,37,44]
[material_price] => [4298,5573,6356,7288,9119]
[work_price] => [4538,5251,5926,6733,7195]
[image] => https://akademik-stroy.ru/wp-content/uploads/materials/gazobeton.jpg
[area_modifier] => 65.61
[parent_name] => Стены 2 этаж (несущие)
[parent_id] => 5
[material_sum] => 389149
[work_sum] => 342399
[total_sum] => 731548
[total_days] => 29
[display_material_sum] => 389 149
[display_work_sum] => 342 399
[display_total_sum] => 731 548
)
1
731 548₽
Работа:342 399 ₽
Материалы:389 149 ₽
Дни:29
stdClass Object
(
[id] => 196
[attribute_id] => 5
[name] => Блок
[material_modifier] => 1
[work_modifier] => 1
[options] => Array
(
[0] => 300 мм
[1] => 375 мм
[2] => 400 мм
[3] => 500 мм
[4] => 600 мм
)
[days] => [29,31,35,37,44]
[material_price] => [2698,3973,4356,6588,7119]
[work_price] => [5038,5851,6426,8733,9195]
[image] => https://akademik-stroy.ru/wp-content/uploads/materials/blok.jpg
[area_modifier] => 65.61
[parent_name] => Стены 2 этаж (несущие)
[parent_id] => 5
[material_sum] => 244282
[work_sum] => 380125
[total_sum] => 624407
[total_days] => 29
[display_material_sum] => 244 282
[display_work_sum] => 380 125
[display_total_sum] => 624 407
)
1
624 407₽
Работа:380 125 ₽
Материалы:244 282 ₽
Дни:29
stdClass Object
(
[id] => 197
[attribute_id] => 5
[name] => Газосиликатный блок
[material_modifier] => 1
[work_modifier] => 1
[options] => Array
(
[0] => 300 мм
[1] => 375 мм
[2] => 400 мм
[3] => 500 мм
[4] => 600 мм
)
[days] => [29,31,35,37,44]
[material_price] => [4298,5573,6356,7288,9119]
[work_price] => [4538,5251,5926,6733,7195]
[image] => https://akademik-stroy.ru/wp-content/uploads/materials/gazosilikatnyj-blok.jpg
[area_modifier] => 65.61
[parent_name] => Стены 2 этаж (несущие)
[parent_id] => 5
[material_sum] => 389149
[work_sum] => 342399
[total_sum] => 731548
[total_days] => 29
[display_material_sum] => 389 149
[display_work_sum] => 342 399
[display_total_sum] => 731 548
)
1
731 548₽
Работа:342 399 ₽
Материалы:389 149 ₽
Дни:29
stdClass Object
(
[id] => 198
[attribute_id] => 5
[name] => Керамзитобетонный блок
[material_modifier] => 1
[work_modifier] => 1
[options] => Array
(
[0] => 300 мм
[1] => 375 мм
[2] => 400 мм
[3] => 500 мм
[4] => 600 мм
)
[days] => [23,23,24,25,28]
[material_price] => [3641,4298,5693,7613,9612]
[work_price] => [5737,5737,6903,7958,8901]
[image] => https://akademik-stroy.ru/wp-content/uploads/materials/keramzitobetonnyj-blok.jpg
[area_modifier] => 65.61
[parent_name] => Стены 2 этаж (несущие)
[parent_id] => 5
[material_sum] => 329663
[work_sum] => 432865
[total_sum] => 762528
[total_days] => 23
[display_material_sum] => 329 663
[display_work_sum] => 432 865
[display_total_sum] => 762 528
)
1
762 528₽
Работа:432 865 ₽
Материалы:329 663 ₽
Дни:23
stdClass Object
(
[id] => 199
[attribute_id] => 5
[name] => Деревянные
[material_modifier] => 1
[work_modifier] => 1
[options] => Array
(
[0] => 180 мм
[1] => 220 мм
[2] => 260 мм
[3] => 320 мм
)
[days] => [7,8,9,10]
[material_price] => [7950,9458,11961,14472]
[work_price] => [4037,4925,5812,7207]
[image] => https://akademik-stroy.ru/wp-content/uploads/materials/derevyannye.jpg
[area_modifier] => 65.61
[parent_name] => Стены 2 этаж (несущие)
[parent_id] => 5
[material_sum] => 719807
[work_sum] => 304598
[total_sum] => 1024405
[total_days] => 7
[display_material_sum] => 719 807
[display_work_sum] => 304 598
[display_total_sum] => 1 024 405
)
1
1 024 405₽
Работа:304 598 ₽
Материалы:719 807 ₽
Дни:7
stdClass Object
(
[id] => 200
[attribute_id] => 5
[name] => Камень
[material_modifier] => 1
[work_modifier] => 1
[options] => Array
(
[0] => 300 мм
[1] => 400 мм
[2] => 500 мм
[3] => 600 мм
)
[days] => [25,27,31,34]
[material_price] => [5262,6844,8330,9815]
[work_price] => [8331,9135,10427,11069]
[image] => https://akademik-stroy.ru/wp-content/uploads/materials/kamen.jpg
[area_modifier] => 65.61
[parent_name] => Стены 2 этаж (несущие)
[parent_id] => 5
[material_sum] => 476431
[work_sum] => 628586
[total_sum] => 1105017
[total_days] => 25
[display_material_sum] => 476 431
[display_work_sum] => 628 586
[display_total_sum] => 1 105 017
)
1
1 105 017₽
Работа:628 586 ₽
Материалы:476 431 ₽
Дни:25
stdClass Object
(
[id] => 201
[attribute_id] => 5
[name] => Каркасно-щитовые
[material_modifier] => 1
[work_modifier] => 1
[options] => Array
(
[0] => 150 мм
[1] => 200 мм
[2] => 250 мм
[3] => 300 мм
[4] => 350 мм
[5] => 400 мм
)
[days] => [15,16,17,18,19,20]
[material_price] => [2379,2639,2898,3458,3601,4175]
[work_price] => [2538,2820,3134,3483,4062,5642]
[image] => https://akademik-stroy.ru/wp-content/uploads/materials/karkasno-shchitovye.jpg
[area_modifier] => 65.61
[parent_name] => Стены 2 этаж (несущие)
[parent_id] => 5
[material_sum] => 215399
[work_sum] => 191496
[total_sum] => 406895
[total_days] => 15
[display_material_sum] => 215 399
[display_work_sum] => 191 496
[display_total_sum] => 406 895
)
1
406 895₽
Работа:191 496 ₽
Материалы:215 399 ₽
Дни:15
stdClass Object
(
[id] => 202
[attribute_id] => 5
[name] => Рубленные
[material_modifier] => 1
[work_modifier] => 1
[options] => Array
(
[0] => 150 мм
[1] => 200 мм
[2] => 250 мм
[3] => 300 мм
[4] => 350 мм
[5] => 400 мм
)
[days] => [15,16,17,18,17,18]
[material_price] => [35950,50267,60583,75900,80217,100533]
[work_price] => [9612,12816,16020,19224,22428,25632]
[image] => https://akademik-stroy.ru/wp-content/uploads/materials/rublennye.jpg
[area_modifier] => 65.61
[parent_name] => Стены 2 этаж (несущие)
[parent_id] => 5
[material_sum] => 3254978
[work_sum] => 725240
[total_sum] => 3980218
[total_days] => 15
[display_material_sum] => 3 254 978
[display_work_sum] => 725 240
[display_total_sum] => 3 980 218
)
1
3 980 218₽
Работа:725 240 ₽
Материалы:3 254 978 ₽
Дни:15
stdClass Object
(
[id] => 203
[attribute_id] => 5
[name] => Теплоблок
[material_modifier] => 1
[work_modifier] => 1
[options] => Array
(
[0] => 300 мм (с облицовкой, не покрашенный)
[1] => 400 мм (с облицовкой, не покрашенный)
[2] => 300 мм (с облицовкой, покрашенный)
[3] => 400 мм (с облицовкой, покрашенный)
)
[days] => [15,16,15,16]
[material_price] => [2888,3729,3957,4258]
[work_price] => [2564,3229,2949,3713]
[image] => https://akademik-stroy.ru/wp-content/uploads/materials/teploblok.jpg
[area_modifier] => 65.61
[parent_name] => Стены 2 этаж (несущие)
[parent_id] => 5
[material_sum] => 261485
[work_sum] => 193458
[total_sum] => 454943
[total_days] => 15
[display_material_sum] => 261 485
[display_work_sum] => 193 458
[display_total_sum] => 454 943
)
1
454 943₽
Работа:193 458 ₽
Материалы:261 485 ₽
Дни:15
stdClass Object
(
[id] => 204
[attribute_id] => 5
[name] => Арболитовые блоки
[material_modifier] => 1
[work_modifier] => 1
[options] => Array
(
[0] => 300 мм
[1] => 400 мм
[2] => 600 мм
)
[days] => [19,22,27]
[material_price] => [3210,4475,5852]
[work_price] => [4214,4788,5866]
[image] => https://akademik-stroy.ru/wp-content/uploads/materials/arbolitovye-bloki.png
[area_modifier] => 65.61
[parent_name] => Стены 2 этаж (несущие)
[parent_id] => 5
[material_sum] => 290639
[work_sum] => 317953
[total_sum] => 608592
[total_days] => 19
[display_material_sum] => 290 639
[display_work_sum] => 317 953
[display_total_sum] => 608 592
)
1
608 592₽
Работа:317 953 ₽
Материалы:290 639 ₽
Дни:19
stdClass Object
(
[id] => 205
[attribute_id] => 5
[name] => Полистиролбетон
[material_modifier] => 1
[work_modifier] => 1
[options] => Array
(
[0] => 300 мм
[1] => 400 мм
[2] => 600 мм
)
[days] => [29,31,35]
[material_price] => [2798,4573,5256]
[work_price] => [5038,5851,6426]
[image] => https://akademik-stroy.ru/wp-content/uploads/materials/polistirolbeton.jpg
[area_modifier] => 65.61
[parent_name] => Стены 2 этаж (несущие)
[parent_id] => 5
[material_sum] => 253336
[work_sum] => 380125
[total_sum] => 633461
[total_days] => 29
[display_material_sum] => 253 336
[display_work_sum] => 380 125
[display_total_sum] => 633 461
)
1
633 461₽
Работа:380 125 ₽
Материалы:253 336 ₽
Дни:29
stdClass Object
(
[id] => 206
[attribute_id] => 5
[name] => Шлакоблок
[material_modifier] => 1
[work_modifier] => 1
[options] => Array
(
[0] => 400 мм
[1] => 600 мм
)
[days] => [15,16]
[material_price] => [2391,3471]
[work_price] => [2642,3662]
[image] => https://akademik-stroy.ru/wp-content/uploads/materials/shlakoblok.jpg
[area_modifier] => 65.61
[parent_name] => Стены 2 этаж (несущие)
[parent_id] => 5
[material_sum] => 216485
[work_sum] => 199343
[total_sum] => 415828
[total_days] => 15
[display_material_sum] => 216 485
[display_work_sum] => 199 343
[display_total_sum] => 415 828
)
1
415 828₽
Работа:199 343 ₽
Материалы:216 485 ₽
Дни:15
stdClass Object
(
[id] => 245
[attribute_id] => 5
[name] => Теплая керамика
[material_modifier] => 1
[work_modifier] => 1
[options] => Array
(
[0] => 380 мм
[1] => 380 мм Thermo
[2] => 440 мм
[3] => 510 мм
)
[days] => [10,10,11,12]
[material_price] => [4510,5098,6093,8013]
[work_price] => [4737,4937,5903,6958]
[image] => https://akademik-stroy.ru/wp-content/uploads/materials/teplaya-keramika.jpg
[area_modifier] => 65.61
[parent_name] => Стены 2 этаж (несущие)
[parent_id] => 5
[material_sum] => 408344
[work_sum] => 357414
[total_sum] => 765758
[total_days] => 10
[display_material_sum] => 408 344
[display_work_sum] => 357 414
[display_total_sum] => 765 758
)
1
765 758₽
Работа:357 414 ₽
Материалы:408 344 ₽
Дни:10
stdClass Object
(
[id] => 246
[attribute_id] => 5
[name] => Несъемная опалубка
[material_modifier] => 1
[work_modifier] => 1
[options] => Array
(
[0] => 380 мм
[1] => 380 мм Thermo
[2] => 440 мм
[3] => 510 мм
)
[days] => [10,10,11,12]
[material_price] => [3302,3902,4108,5008]
[work_price] => [2100,2100,2300,2534]
[image] => https://akademik-stroy.ru/wp-content/uploads/materials/nesemnaya-opalubka.jpg
[area_modifier] => 65.61
[parent_name] => Стены 2 этаж (несущие)
[parent_id] => 5
[material_sum] => 298969
[work_sum] => 158448
[total_sum] => 457417
[total_days] => 10
[display_material_sum] => 298 969
[display_work_sum] => 158 448
[display_total_sum] => 457 417
)
1
457 417₽
Работа:158 448 ₽
Материалы:298 969 ₽
Дни:10
stdClass Object
(
[id] => 254
[attribute_id] => 5
[name] => Бревно
[material_modifier] => 1
[work_modifier] => 1
[options] => Array
(
[0] => 260 мм
[1] => 320 мм
[2] => 360 мм
[3] => 400 мм
[4] => 500 мм
)
[days] => [7,8,9,10,11]
[material_price] => [1874,24045,26930,30972,38825]
[work_price] => [5046,6207,6952,7716,9723]
[image] => https://akademik-stroy.ru/wp-content/uploads/materials/sruby.jpg
[area_modifier] => 65.61
[parent_name] => Стены 2 этаж (несущие)
[parent_id] => 5
[material_sum] => 169675
[work_sum] => 380728
[total_sum] => 550403
[total_days] => 7
[display_material_sum] => 169 675
[display_work_sum] => 380 728
[display_total_sum] => 550 403
)
1
550 403₽
Работа:380 728 ₽
Материалы:169 675 ₽
Дни:7
stdClass Object
(
[id] => 11
[attribute_id] => 6
[name] => Деревянные балки
[material_modifier] => 1
[work_modifier] => 1
[options] => Array
(
[0] => без утепления
[1] => утепление 200 мм
[2] => утепление 250 мм
[3] => утепление 300 мм
[4] => утепление 350 мм
[5] => утепление 400 мм
[6] => утепление 450 мм
[7] => утепление 500 мм
)
[days] => [8,9,9,9,11,12,13,14]
[material_price] => [1634,2042,2344,2947,3149,3652,3354,3557]
[work_price] => [1230,1339,1393,1426,1460,1513,1587,1620]
[image] => https://akademik-stroy.ru/wp-content/uploads/materials/derevyannye-balki.png
[area_modifier] => 65.61
[parent_name] => Перекрытие второго этажа
[parent_id] => 6
[material_sum] => 147945
[work_sum] => 92805
[total_sum] => 240750
[total_days] => 8
[display_material_sum] => 147 945
[display_work_sum] => 92 805
[display_total_sum] => 240 750
)
1
240 750₽
Работа:92 805 ₽
Материалы:147 945 ₽
Дни:8
stdClass Object
(
[id] => 12
[attribute_id] => 6
[name] => Сборные ж/б плиты
[material_modifier] => 1
[work_modifier] => 1
[options] => Array
(
[0] => без утепления
[1] => утепление 150 мм
[2] => утепление 200 мм
[3] => утепление 250 мм
[4] => утепление 300 мм
[5] => утепление 350 мм
[6] => утепление 400 мм
[7] => утепление 450 мм
[8] => утепление 500 мм
)
[days] => [13,15,15,15,15,15,15,15,15]
[material_price] => [3067,5577,5928,6679,7730,8782,9833,10884,11935]
[work_price] => [1520,1956,2102,2247,2392,2537,2684,2829,2974]
[image] => https://akademik-stroy.ru/wp-content/uploads/materials/sbornye-zh-b-plity-2.jpg
[area_modifier] => 65.61
[parent_name] => Перекрытие второго этажа
[parent_id] => 6
[material_sum] => 277692
[work_sum] => 114686
[total_sum] => 392378
[total_days] => 13
[display_material_sum] => 277 692
[display_work_sum] => 114 686
[display_total_sum] => 392 378
)
1
392 378₽
Работа:114 686 ₽
Материалы:277 692 ₽
Дни:13
stdClass Object
(
[id] => 100
[attribute_id] => 6
[name] => Монолитная ж/б плита
[material_modifier] => 1
[work_modifier] => 1
[options] => Array
(
[0] => без утепления
[1] => утепление 150 мм
[2] => утепление 200 мм
[3] => утепление 250 мм
[4] => утепление 300 мм
[5] => утепление 350 мм
[6] => утепление 400 мм
[7] => утепление 450 мм
[8] => утепление 500 мм
)
[days] => [18,20,20,20,20,20,20,20,20]
[material_price] => [4837,6572,7224,7375,79426,8177,8728,9180,10031]
[work_price] => [3348,3921,4112,4302,4493,4684,4875,5066,5256]
[image] => https://akademik-stroy.ru/wp-content/uploads/materials/monolitnaya-zh-b-plita-2.jpg
[area_modifier] => 65.61
[parent_name] => Перекрытие второго этажа
[parent_id] => 6
[material_sum] => 437951
[work_sum] => 252612
[total_sum] => 690563
[total_days] => 18
[display_material_sum] => 437 951
[display_work_sum] => 252 612
[display_total_sum] => 690 563
)
1
690 563₽
Работа:252 612 ₽
Материалы:437 951 ₽
Дни:18
stdClass Object
(
[id] => 164
[attribute_id] => 37
[name] => Металлочерепица
[material_modifier] => 1
[work_modifier] => 1
[options] => Array
(
)
[days] => [20]
[material_price] => [6112]
[work_price] => [5726]
[image] => https://akademik-stroy.ru/wp-content/uploads/materials/metallocherepica.jpg
[area_modifier] => 81.49
[parent_name] => Крыша (Скатная)
[parent_id] => 37
[material_sum] => 687332
[work_sum] => 536604
[total_sum] => 1223936
[total_days] => 20
[display_material_sum] => 687 332
[display_work_sum] => 536 604
[display_total_sum] => 1 223 936
)
1
1 223 936₽
Работа:536 604 ₽
Материалы:687 332 ₽
Дни:20
stdClass Object
(
[id] => 165
[attribute_id] => 37
[name] => Гибкая черепица
[material_modifier] => 1
[work_modifier] => 1
[options] => Array
(
)
[days] => [20]
[material_price] => [6980]
[work_price] => [5950]
[image] => https://akademik-stroy.ru/wp-content/uploads/materials/gibkaya-cherepica.jpg
[area_modifier] => 81.49
[parent_name] => Крыша (Скатная)
[parent_id] => 37
[material_sum] => 784944
[work_sum] => 557595
[total_sum] => 1342539
[total_days] => 20
[display_material_sum] => 784 944
[display_work_sum] => 557 595
[display_total_sum] => 1 342 539
)
1
1 342 539₽
Работа:557 595 ₽
Материалы:784 944 ₽
Дни:20
stdClass Object
(
[id] => 166
[attribute_id] => 37
[name] => Цементно-песчаная черепица
[material_modifier] => 1
[work_modifier] => 1
[options] => Array
(
)
[days] => [20]
[material_price] => [10560]
[work_price] => [9456]
[image] => https://akademik-stroy.ru/wp-content/uploads/materials/cementno-peschanaya-cherepica.jpg
[area_modifier] => 81.49
[parent_name] => Крыша (Скатная)
[parent_id] => 37
[material_sum] => 1187537
[work_sum] => 886155
[total_sum] => 2073692
[total_days] => 20
[display_material_sum] => 1 187 537
[display_work_sum] => 886 155
[display_total_sum] => 2 073 692
)
1
2 073 692₽
Работа:886 155 ₽
Материалы:1 187 537 ₽
Дни:20
stdClass Object
(
[id] => 167
[attribute_id] => 37
[name] => Композитная черепица
[material_modifier] => 1
[work_modifier] => 1
[options] => Array
(
)
[days] => [20]
[material_price] => [9506]
[work_price] => [8905]
[image] => https://akademik-stroy.ru/wp-content/uploads/materials/kompozitnaya-cherepica.jpg
[area_modifier] => 81.49
[parent_name] => Крыша (Скатная)
[parent_id] => 37
[material_sum] => 1069009
[work_sum] => 834519
[total_sum] => 1903528
[total_days] => 20
[display_material_sum] => 1 069 009
[display_work_sum] => 834 519
[display_total_sum] => 1 903 528
)
1
1 903 528₽
Работа:834 519 ₽
Материалы:1 069 009 ₽
Дни:20
stdClass Object
(
[id] => 168
[attribute_id] => 37
[name] => Керамическая черепица
[material_modifier] => 1
[work_modifier] => 1
[options] => Array
(
)
[days] => [20]
[material_price] => [12750]
[work_price] => [9456]
[image] => https://akademik-stroy.ru/wp-content/uploads/materials/keramicheskaya-cherepica.jpg
[area_modifier] => 81.49
[parent_name] => Крыша (Скатная)
[parent_id] => 37
[material_sum] => 1433817
[work_sum] => 886155
[total_sum] => 2319972
[total_days] => 20
[display_material_sum] => 1 433 817
[display_work_sum] => 886 155
[display_total_sum] => 2 319 972
)
1
2 319 972₽
Работа:886 155 ₽
Материалы:1 433 817 ₽
Дни:20
stdClass Object
(
[id] => 169
[attribute_id] => 37
[name] => Металлическая фальцевая
[material_modifier] => 1
[work_modifier] => 1
[options] => Array
(
)
[days] => [20]
[material_price] => [8550]
[work_price] => [8190]
[image] => https://akademik-stroy.ru/wp-content/uploads/materials/metallicheskaya-falcevaya.jpg
[area_modifier] => 81.49
[parent_name] => Крыша (Скатная)
[parent_id] => 37
[material_sum] => 961501
[work_sum] => 767514
[total_sum] => 1729015
[total_days] => 20
[display_material_sum] => 961 501
[display_work_sum] => 767 514
[display_total_sum] => 1 729 015
)
1
1 729 015₽
Работа:767 514 ₽
Материалы:961 501 ₽
Дни:20
stdClass Object
(
[id] => 170
[attribute_id] => 37
[name] => Медная фальцевая
[material_modifier] => 1
[work_modifier] => 1
[options] => Array
(
)
[days] => [20]
[material_price] => [20450]
[work_price] => [16750]
[image] => https://akademik-stroy.ru/wp-content/uploads/materials/mednaya-falcevaya.jpg
[area_modifier] => 81.49
[parent_name] => Крыша (Скатная)
[parent_id] => 37
[material_sum] => 2299729
[work_sum] => 1569701
[total_sum] => 3869430
[total_days] => 20
[display_material_sum] => 2 299 729
[display_work_sum] => 1 569 701
[display_total_sum] => 3 869 430
)
1
3 869 430₽
Работа:1 569 701 ₽
Материалы:2 299 729 ₽
Дни:20
stdClass Object
(
[id] => 171
[attribute_id] => 37
[name] => Зеленая кровля
[material_modifier] => 1
[work_modifier] => 1
[options] => Array
(
)
[days] => [20]
[material_price] => [19850]
[work_price] => [16780]
[image] => https://akademik-stroy.ru/wp-content/uploads/materials/zelenaya-krovlya.jpg
[area_modifier] => 81.49
[parent_name] => Крыша (Скатная)
[parent_id] => 37
[material_sum] => 2232256
[work_sum] => 1572513
[total_sum] => 3804769
[total_days] => 20
[display_material_sum] => 2 232 256
[display_work_sum] => 1 572 513
[display_total_sum] => 3 804 769
)
1
3 804 769₽
Работа:1 572 513 ₽
Материалы:2 232 256 ₽
Дни:20
stdClass Object
(
[id] => 172
[attribute_id] => 37
[name] => Профлист
[material_modifier] => 1
[work_modifier] => 1
[options] => Array
(
)
[days] => [20]
[material_price] => [3450]
[work_price] => [3750]
[image] => https://akademik-stroy.ru/wp-content/uploads/materials/proflist.jpg
[area_modifier] => 81.49
[parent_name] => Крыша (Скатная)
[parent_id] => 37
[material_sum] => 387974
[work_sum] => 351426
[total_sum] => 739400
[total_days] => 20
[display_material_sum] => 387 974
[display_work_sum] => 351 426
[display_total_sum] => 739 400
)
1
739 400₽
Работа:351 426 ₽
Материалы:387 974 ₽
Дни:20
stdClass Object
(
[id] => 51
[attribute_id] => 26
[name] => Есть
[material_modifier] => 1
[work_modifier] => 1
[options] => Array
(
[0] => Профиль 58 мм, 3-камерный, стеклопакет 2-камерный до 32 мм
[1] => Профиль 60 мм, 4-камерный, стеклопакет 2-камерный до 32 мм
[2] => Профиль 70 мм, 5-камерный, стеклопакет 2-камерный до 40 мм
[3] => Профиль 72 мм, 5-камерный, стеклопакет 2-камерный до 40 мм
[4] => Алюминиевые окна Alutech профиль 72 мм, стеклопакет 2-камерный
)
[days] => [3,3,3,3,3]
[material_price] => [1339,2124,2867,3023,29596]
[work_price] => [635,647,659,668,2579]
[image] => https://akademik-stroy.ru/wp-content/uploads/materials/okna.jpg
[area_modifier] => 119.37
[parent_name] => Окна
[parent_id] => 26
[material_sum] => 220574
[work_sum] => 87170
[total_sum] => 307744
[total_days] => 3
[display_material_sum] => 220 574
[display_work_sum] => 87 170
[display_total_sum] => 307 744
)
1
307 744₽
Работа:87 170 ₽
Материалы:220 574 ₽
Дни:3
stdClass Object
(
[id] => 52
[attribute_id] => 26
[name] => Нет
[material_modifier] => 2
[work_modifier] => 1
[options] =>
[days] => null
[material_price] => null
[work_price] => null
[image] => https://akademik-stroy.ru/wp-content/uploads/materials/okna.jpg
[area_modifier] => 119.37
[parent_name] => Окна
[parent_id] => 26
[material_sum] => 0
[work_sum] => 0
[total_sum] => 0
[total_days] => 0
[display_material_sum] => 0
[display_work_sum] => 0
[display_total_sum] => 0
)
1
0₽
Работа:0 ₽
Материалы:0 ₽
Дни:0
stdClass Object
(
[id] => 53
[attribute_id] => 27
[name] => Есть
[material_modifier] => 1
[work_modifier] => 1
[options] => Array
(
)
[days] => [1]
[material_price] => [10000]
[work_price] => [5500]
[image] => https://akademik-stroy.ru/wp-content/uploads/materials/dveri.jpg
[area_modifier] => 1
[parent_name] => Двери входные
[parent_id] => 27
[material_sum] => 13800
[work_sum] => 6325
[total_sum] => 20125
[total_days] => 1
[display_material_sum] => 13 800
[display_work_sum] => 6 325
[display_total_sum] => 20 125
)
1
20 125₽
Работа:6 325 ₽
Материалы:13 800 ₽
Дни:1
stdClass Object
(
[id] => 54
[attribute_id] => 27
[name] => Нет
[material_modifier] => 1
[work_modifier] => 1
[options] => Array
(
)
[days] => [0]
[material_price] => [0]
[work_price] => [0]
[image] => https://akademik-stroy.ru/wp-content/uploads/materials/dveri.jpg
[area_modifier] => 1
[parent_name] => Двери входные
[parent_id] => 27
[material_sum] => 0
[work_sum] => 0
[total_sum] => 0
[total_days] => 0
[display_material_sum] => 0
[display_work_sum] => 0
[display_total_sum] => 0
)
1
0₽
Работа:0 ₽
Материалы:0 ₽
Дни:0
stdClass Object
(
[id] => 25
[attribute_id] => 13
[name] => Нет
[material_modifier] => 1
[work_modifier] => 1
[options] => Array
(
)
[days] => [0]
[material_price] => [0]
[work_price] => [0]
[image] => https://akademik-stroy.ru/wp-content/uploads/materials/mineralovata-krov.jpg
[area_modifier] => 81.49
[parent_name] => Утепление кровли (Мансарда)
[parent_id] => 13
[material_sum] => 0
[work_sum] => 0
[total_sum] => 0
[total_days] => 0
[display_material_sum] => 0
[display_work_sum] => 0
[display_total_sum] => 0
)
1
0₽
Работа:0 ₽
Материалы:0 ₽
Дни:0
stdClass Object
(
[id] => 26
[attribute_id] => 13
[name] => Минераловатный
[material_modifier] => 1
[work_modifier] => 1
[options] => Array
(
[0] => 50 мм
[1] => 100 мм
[2] => 150 мм
[3] => 200 мм
[4] => 250 мм
[5] => 300 мм
[6] => 350 мм
[7] => 400 мм
[8] => 450 мм
[9] => 500 мм
)
[days] => [5,5,6,6,6,7,7,7,8,8]
[material_price] => [1158,1414,1772,2230,3602,4060,4974,5890,6408,7718]
[work_price] => [650,846,846,1098,1318,1450,1596,1754,1930,2122]
[image] => https://akademik-stroy.ru/wp-content/uploads/materials/mineralovata-krov.jpg
[area_modifier] => 81.49
[parent_name] => Утепление кровли (Мансарда)
[parent_id] => 13
[material_sum] => 130224
[work_sum] => 60914
[total_sum] => 191138
[total_days] => 5
[display_material_sum] => 130 224
[display_work_sum] => 60 914
[display_total_sum] => 191 138
)
1
191 138₽
Работа:60 914 ₽
Материалы:130 224 ₽
Дни:5
stdClass Object
(
[id] => 123
[attribute_id] => 13
[name] => Эковата (целлюлозная вата)
[material_modifier] => 1
[work_modifier] => 1
[options] => Array
(
[0] => 50 мм
[1] => 100 мм
[2] => 150 мм
[3] => 200 мм
[4] => 250 мм
[5] => 300 мм
[6] => 350 мм
[7] => 400 мм
[8] => 450 мм
[9] => 500 мм
)
[days] => [3,3,4,4,4,5,5,5,5,5]
[material_price] => [820,1638,2458,3276,5734,6552,8190,9828,11466,13104]
[work_price] => [234,304,304,396,474,522,574,632,694,764]
[image] => https://akademik-stroy.ru/wp-content/uploads/materials/ehkovata-krov.jpg
[area_modifier] => 81.49
[parent_name] => Утепление кровли (Мансарда)
[parent_id] => 13
[material_sum] => 92214
[work_sum] => 21929
[total_sum] => 114143
[total_days] => 3
[display_material_sum] => 92 214
[display_work_sum] => 21 929
[display_total_sum] => 114 143
)
1
114 143₽
Работа:21 929 ₽
Материалы:92 214 ₽
Дни:3
stdClass Object
(
[id] => 124
[attribute_id] => 13
[name] => Экструдированный пенополистирол
[material_modifier] => 1
[work_modifier] => 1
[options] => Array
(
[0] => 50 мм
[1] => 100 мм
[2] => 150 мм
[3] => 200 мм
[4] => 250 мм
[5] => 300 мм
[6] => 350 мм
[7] => 400 мм
[8] => 450 мм
[9] => 500 мм
)
[days] => [3,3,4,4,4,5,5,5,5,6]
[material_price] => [1146,2292,3438,4584,8020,9166,11458,13750,16040,18332]
[work_price] => [390,508,508,660,790,870,958,1052,1158,1274]
[image] => https://akademik-stroy.ru/wp-content/uploads/materials/epps-krov.jpg
[area_modifier] => 81.49
[parent_name] => Утепление кровли (Мансарда)
[parent_id] => 13
[material_sum] => 128875
[work_sum] => 36548
[total_sum] => 165423
[total_days] => 3
[display_material_sum] => 128 875
[display_work_sum] => 36 548
[display_total_sum] => 165 423
)
1
165 423₽
Работа:36 548 ₽
Материалы:128 875 ₽
Дни:3
stdClass Object
(
[id] => 125
[attribute_id] => 13
[name] => ПСБ (ППС-пенополистирол)
[material_modifier] => 1
[work_modifier] => 1
[options] => Array
(
[0] => 50 мм
[1] => 100 мм
[2] => 150 мм
[3] => 200 мм
[4] => 250 мм
[5] => 300 мм
[6] => 350 мм
[7] => 400 мм
[8] => 450 мм
[9] => 500 мм
)
[days] => [3,3,4,4,4,5,5,5,5,6]
[material_price] => [476,954,1430,1906,3336,3814,4766,5720,6674,7626]
[work_price] => [390,508,508,660,790,870,958,1052,1158,1274]
[image] => https://akademik-stroy.ru/wp-content/uploads/materials/psb-krov.jpg
[area_modifier] => 81.49
[parent_name] => Утепление кровли (Мансарда)
[parent_id] => 13
[material_sum] => 53529
[work_sum] => 36548
[total_sum] => 90077
[total_days] => 3
[display_material_sum] => 53 529
[display_work_sum] => 36 548
[display_total_sum] => 90 077
)
1
90 077₽
Работа:36 548 ₽
Материалы:53 529 ₽
Дни:3
stdClass Object
(
[id] => 126
[attribute_id] => 13
[name] => ППУ (Пенополиуретан)
[material_modifier] => 1
[work_modifier] => 1
[options] => Array
(
[0] => 50 мм
[1] => 100 мм
[2] => 150 мм
[3] => 200 мм
[4] => 250 мм
[5] => 300 мм
[6] => 350 мм
[7] => 400 мм
[8] => 450 мм
[9] => 500 мм
)
[days] => [2,2,3,3,3,3,4,4,4,4]
[material_price] => [2080,4160,6240,8320,14560,16640,20800,24960,29120,33280]
[work_price] => [234,304,304,396,474,522,574,632,694,764]
[image] => https://akademik-stroy.ru/wp-content/uploads/materials/ppu-krov.jpg
[area_modifier] => 81.49
[parent_name] => Утепление кровли (Мансарда)
[parent_id] => 13
[material_sum] => 233909
[work_sum] => 21929
[total_sum] => 255838
[total_days] => 2
[display_material_sum] => 233 909
[display_work_sum] => 21 929
[display_total_sum] => 255 838
)
1
255 838₽
Работа:21 929 ₽
Материалы:233 909 ₽
Дни:2
stdClass Object
(
[id] => 127
[attribute_id] => 13
[name] => PIR-плиты (пенополиизоцианурат)
[material_modifier] => 1
[work_modifier] => 1
[options] => Array
(
[0] => 50 мм
[1] => 100 мм
[2] => 150 мм
[3] => 200 мм
[4] => 250 мм
[5] => 300 мм
[6] => 350 мм
[7] => 400 мм
[8] => 450 мм
[9] => 500 мм
)
[days] => [3,3,4,4,4,5,5,5,5,6]
[material_price] => [2646,5290,7936,10580,18516,21162,26452,31742,37032,42324]
[work_price] => [390,508,508,660,790,870,958,1052,1158,1274]
[image] => https://akademik-stroy.ru/wp-content/uploads/materials/pir-krov.jpg
[area_modifier] => 81.49
[parent_name] => Утепление кровли (Мансарда)
[parent_id] => 13
[material_sum] => 297559
[work_sum] => 36548
[total_sum] => 334107
[total_days] => 3
[display_material_sum] => 297 559
[display_work_sum] => 36 548
[display_total_sum] => 334 107
)
1
334 107₽
Работа:36 548 ₽
Материалы:297 559 ₽
Дни:3
stdClass Object
(
[id] => 27
[attribute_id] => 14
[name] => Нет
[material_modifier] => 1
[work_modifier] => 1
[options] => Array
(
)
[days] => [0]
[material_price] => [0]
[work_price] => [0]
[image] => https://akademik-stroy.ru/wp-content/uploads/materials/mansardnye-okna-2.jpg
[area_modifier] => 1
[parent_name] => Мансардные окна
[parent_id] => 14
[material_sum] => 0
[work_sum] => 0
[total_sum] => 0
[total_days] => 0
[display_material_sum] => 0
[display_work_sum] => 0
[display_total_sum] => 0
)
1
0₽
Работа:0 ₽
Материалы:0 ₽
Дни:0
stdClass Object
(
[id] => 28
[attribute_id] => 14
[name] => Есть
[material_modifier] => 1
[work_modifier] => 1
[options] => Array
(
[0] => 55x78
[1] => 55x98
)
[days] => [6,7]
[material_price] => [47480,68700]
[work_price] => [17900,19500]
[image] => https://akademik-stroy.ru/wp-content/uploads/materials/mansardnye-okna-2.jpg
[area_modifier] => 1
[parent_name] => Мансардные окна
[parent_id] => 14
[material_sum] => 65522
[work_sum] => 20585
[total_sum] => 86107
[total_days] => 6
[display_material_sum] => 65 522
[display_work_sum] => 20 585
[display_total_sum] => 86 107
)
1
86 107₽
Работа:20 585 ₽
Материалы:65 522 ₽
Дни:6
stdClass Object
(
[id] => 29
[attribute_id] => 15
[name] => Нет
[material_modifier] => 1
[work_modifier] => 1
[options] => Array
(
)
[days] => [0]
[material_price] => [0]
[work_price] => [0]
[image] => https://akademik-stroy.ru/wp-content/uploads/materials/sofit.jpg
[area_modifier] => 81.49
[parent_name] => Подшивка кровли
[parent_id] => 15
[material_sum] => 0
[work_sum] => 0
[total_sum] => 0
[total_days] => 0
[display_material_sum] => 0
[display_work_sum] => 0
[display_total_sum] => 0
)
1
0₽
Работа:0 ₽
Материалы:0 ₽
Дни:0
stdClass Object
(
[id] => 30
[attribute_id] => 15
[name] => Есть
[material_modifier] => 1
[work_modifier] => 1
[options] => Array
(
[0] => Софиты (ПВХ)
[1] => Cedral
[2] => ДПК
[3] => Планкен
)
[days] => [7,10,9,8]
[material_price] => [1803,3213,3025,3150]
[work_price] => [1529,2188,2075,1923]
[image] => https://akademik-stroy.ru/wp-content/uploads/materials/sofit.jpg
[area_modifier] => 81.49
[parent_name] => Подшивка кровли
[parent_id] => 15
[material_sum] => 202759
[work_sum] => 143288
[total_sum] => 346047
[total_days] => 7
[display_material_sum] => 202 759
[display_work_sum] => 143 288
[display_total_sum] => 346 047
)
1
346 047₽
Работа:143 288 ₽
Материалы:202 759 ₽
Дни:7
stdClass Object
(
[id] => 31
[attribute_id] => 16
[name] => Нет
[material_modifier] => 1
[work_modifier] => 1
[options] => Array
(
)
[days] => [0]
[material_price] => [0]
[work_price] => [0]
[image] => https://akademik-stroy.ru/wp-content/uploads/materials/docke-standard-pvh.jpg
[area_modifier] => 81.49
[parent_name] => Водосточная система
[parent_id] => 16
[material_sum] => 0
[work_sum] => 0
[total_sum] => 0
[total_days] => 0
[display_material_sum] => 0
[display_work_sum] => 0
[display_total_sum] => 0
)
1
0₽
Работа:0 ₽
Материалы:0 ₽
Дни:0
stdClass Object
(
[id] => 32
[attribute_id] => 16
[name] => Есть
[material_modifier] => 1
[work_modifier] => 1
[options] => Array
(
[0] => Döcke Standard (ПВХ)
[1] => Металлические Grand Line
)
[days] => [7,7]
[material_price] => [1842,2703]
[work_price] => [1491,1529]
[image] => https://akademik-stroy.ru/wp-content/uploads/materials/docke-standard-pvh.jpg
[area_modifier] => 81.49
[parent_name] => Водосточная система
[parent_id] => 16
[material_sum] => 207144
[work_sum] => 139727
[total_sum] => 346871
[total_days] => 7
[display_material_sum] => 207 144
[display_work_sum] => 139 727
[display_total_sum] => 346 871
)
1
346 871₽
Работа:139 727 ₽
Материалы:207 144 ₽
Дни:7
stdClass Object
(
[id] => 33
[attribute_id] => 17
[name] => Нет
[material_modifier] => 1
[work_modifier] => 1
[options] => Array
(
)
[days] => [0]
[material_price] => [0]
[work_price] => [0]
[image] => https://akademik-stroy.ru/wp-content/uploads/materials/mineralovata.jpg
[area_modifier] => 147.1
[parent_name] => Дополнительное утепление наружных стен
[parent_id] => 17
[material_sum] => 0
[work_sum] => 0
[total_sum] => 0
[total_days] => 0
[display_material_sum] => 0
[display_work_sum] => 0
[display_total_sum] => 0
)
1
0₽
Работа:0 ₽
Материалы:0 ₽
Дни:0
stdClass Object
(
[id] => 34
[attribute_id] => 17
[name] => Минераловатный
[material_modifier] => 1
[work_modifier] => 1
[options] => Array
(
[0] => 50 мм
[1] => 100 мм
[2] => 150 мм
[3] => 200 мм
[4] => 250 мм
[5] => 300 мм
)
[days] => [7,8,10,12,14,15]
[material_price] => [3437,3613,3803,3915,4601,4830]
[work_price] => [2325,2423,2523,2749,2859,3025]
[image] => https://akademik-stroy.ru/wp-content/uploads/materials/mineralovata.jpg
[area_modifier] => 147.1
[parent_name] => Дополнительное утепление наружных стен
[parent_id] => 17
[material_sum] => 697704
[work_sum] => 393309
[total_sum] => 1091013
[total_days] => 7
[display_material_sum] => 697 704
[display_work_sum] => 393 309
[display_total_sum] => 1 091 013
)
1
1 091 013₽
Работа:393 309 ₽
Материалы:697 704 ₽
Дни:7
stdClass Object
(
[id] => 128
[attribute_id] => 17
[name] => Эковата (целлюлозная вата)
[material_modifier] => 1
[work_modifier] => 1
[options] => Array
(
[0] => 50 мм
[1] => 100 мм
[2] => 150 мм
[3] => 200 мм
[4] => 250 мм
[5] => 300 мм
)
[days] => [3,4,5,6,7,8]
[material_price] => [810,1319,1629,1838,2267,2676]
[work_price] => [1225,1323,1423,1549,1659,1725]
[image] => https://akademik-stroy.ru/wp-content/uploads/materials/ehkovata.jpg
[area_modifier] => 147.1
[parent_name] => Дополнительное утепление наружных стен
[parent_id] => 17
[material_sum] => 164428
[work_sum] => 207227
[total_sum] => 371655
[total_days] => 3
[display_material_sum] => 164 428
[display_work_sum] => 207 227
[display_total_sum] => 371 655
)
1
371 655₽
Работа:207 227 ₽
Материалы:164 428 ₽
Дни:3
stdClass Object
(
[id] => 129
[attribute_id] => 17
[name] => Экструдированный пенополистирол
[material_modifier] => 1
[work_modifier] => 1
[options] => Array
(
[0] => 50 мм
[1] => 100 мм
[2] => 150 мм
[3] => 200 мм
[4] => 250 мм
[5] => 300 мм
)
[days] => [5,6,7,8,9,10]
[material_price] => [4560,4300,5119,6292,7010,8583]
[work_price] => [1795,1954,2254,2330,2595,2735]
[image] => https://akademik-stroy.ru/wp-content/uploads/materials/epps.jpg
[area_modifier] => 147.1
[parent_name] => Дополнительное утепление наружных стен
[parent_id] => 17
[material_sum] => 925671
[work_sum] => 303651
[total_sum] => 1229322
[total_days] => 5
[display_material_sum] => 925 671
[display_work_sum] => 303 651
[display_total_sum] => 1 229 322
)
1
1 229 322₽
Работа:303 651 ₽
Материалы:925 671 ₽
Дни:5
stdClass Object
(
[id] => 130
[attribute_id] => 17
[name] => ПСБ (ППС-пенополистирол)
[material_modifier] => 1
[work_modifier] => 1
[options] => Array
(
[0] => 50 мм
[1] => 100 мм
[2] => 150 мм
[3] => 200 мм
[4] => 250 мм
[5] => 300 мм
)
[days] => [5,6,7,8,9,10]
[material_price] => [4822,5200,5819,6292,7010,7583]
[work_price] => [1795,1954,2254,2330,2595,2735]
[image] => https://akademik-stroy.ru/wp-content/uploads/materials/psb.jpg
[area_modifier] => 147.1
[parent_name] => Дополнительное утепление наружных стен
[parent_id] => 17
[material_sum] => 978856
[work_sum] => 303651
[total_sum] => 1282507
[total_days] => 5
[display_material_sum] => 978 856
[display_work_sum] => 303 651
[display_total_sum] => 1 282 507
)
1
1 282 507₽
Работа:303 651 ₽
Материалы:978 856 ₽
Дни:5
stdClass Object
(
[id] => 131
[attribute_id] => 17
[name] => ППУ (Пенополиуретан)
[material_modifier] => 1
[work_modifier] => 1
[options] => Array
(
[0] => 50 мм
[1] => 100 мм
[2] => 150 мм
[3] => 200 мм
[4] => 250 мм
[5] => 300 мм
)
[days] => [3,4,5,6,7,8]
[material_price] => [2860,3400,4219,4592,5010,5583]
[work_price] => [729,900,980,1120,1280,1530]
[image] => https://akademik-stroy.ru/wp-content/uploads/materials/ppu.jpg
[area_modifier] => 147.1
[parent_name] => Дополнительное утепление наружных стен
[parent_id] => 17
[material_sum] => 580574
[work_sum] => 123321
[total_sum] => 703895
[total_days] => 3
[display_material_sum] => 580 574
[display_work_sum] => 123 321
[display_total_sum] => 703 895
)
1
703 895₽
Работа:123 321 ₽
Материалы:580 574 ₽
Дни:3
stdClass Object
(
[id] => 132
[attribute_id] => 17
[name] => PIR-плиты (пенополиизоцианурат)
[material_modifier] => 1
[work_modifier] => 1
[options] => Array
(
[0] => 50 мм
[1] => 100 мм
[2] => 150 мм
[3] => 200 мм
[4] => 250 мм
[5] => 300 мм
)
[days] => [5,6,7,8,9,10]
[material_price] => [8323,15645,20968,25900,29258,30581]
[work_price] => [800,900,970,1150,1280,1330]
[image] => https://akademik-stroy.ru/wp-content/uploads/materials/pir.jpg
[area_modifier] => 147.1
[parent_name] => Дополнительное утепление наружных стен
[parent_id] => 17
[material_sum] => 1689552
[work_sum] => 135332
[total_sum] => 1824884
[total_days] => 5
[display_material_sum] => 1 689 552
[display_work_sum] => 135 332
[display_total_sum] => 1 824 884
)
1
1 824 884₽
Работа:135 332 ₽
Материалы:1 689 552 ₽
Дни:5
stdClass Object
(
[id] => 37
[attribute_id] => 19
[name] => Нет
[material_modifier] => 1
[work_modifier] => 1
[options] => Array
(
)
[days] => [0]
[material_price] => [0]
[work_price] => [0]
[image] => https://akademik-stroy.ru/wp-content/uploads/materials/imitaciya-brusa.jpg
[area_modifier] => 147.1
[parent_name] => Наружная отделка фасада
[parent_id] => 19
[material_sum] => 0
[work_sum] => 0
[total_sum] => 0
[total_days] => 0
[display_material_sum] => 0
[display_work_sum] => 0
[display_total_sum] => 0
)
1
0₽
Работа:0 ₽
Материалы:0 ₽
Дни:0
stdClass Object
(
[id] => 38
[attribute_id] => 19
[name] => Имитация бруса
[material_modifier] => 1
[work_modifier] => 1
[options] => Array
(
[0] => Сосна
[1] => Ель
[2] => Лиственница
)
[days] => [20,20,20]
[material_price] => [2994,2762,4954]
[work_price] => [1397,1231,1577]
[image] => https://akademik-stroy.ru/wp-content/uploads/materials/imitaciya-brusa.jpg
[area_modifier] => 147.1
[parent_name] => Наружная отделка фасада
[parent_id] => 19
[material_sum] => 607776
[work_sum] => 236324
[total_sum] => 844100
[total_days] => 20
[display_material_sum] => 607 776
[display_work_sum] => 236 324
[display_total_sum] => 844 100
)
1
844 100₽
Работа:236 324 ₽
Материалы:607 776 ₽
Дни:20
stdClass Object
(
[id] => 136
[attribute_id] => 19
[name] => Планкен
[material_modifier] => 1
[work_modifier] => 1
[options] => Array
(
[0] => Сосна
[1] => Ель
[2] => Лиственница
)
[days] => [20,20,20]
[material_price] => [3194,2862,5154]
[work_price] => [1537,1354,1735]
[image] => https://akademik-stroy.ru/wp-content/uploads/materials/planken.jpg
[area_modifier] => 147.1
[parent_name] => Наружная отделка фасада
[parent_id] => 19
[material_sum] => 648376
[work_sum] => 260007
[total_sum] => 908383
[total_days] => 20
[display_material_sum] => 648 376
[display_work_sum] => 260 007
[display_total_sum] => 908 383
)
1
908 383₽
Работа:260 007 ₽
Материалы:648 376 ₽
Дни:20
stdClass Object
(
[id] => 137
[attribute_id] => 19
[name] => Штукатурка
[material_modifier] => 1
[work_modifier] => 1
[options] => Array
(
[0] => Цементно-песчаная (минеральная)
[1] => Мокрый фасад
)
[days] => [35,35]
[material_price] => [2231,3938]
[work_price] => [1202,2422]
[image] => https://akademik-stroy.ru/wp-content/uploads/materials/shtukaturka.jpg
[area_modifier] => 147.1
[parent_name] => Наружная отделка фасада
[parent_id] => 19
[material_sum] => 452889
[work_sum] => 203336
[total_sum] => 656225
[total_days] => 35
[display_material_sum] => 452 889
[display_work_sum] => 203 336
[display_total_sum] => 656 225
)
1
656 225₽
Работа:203 336 ₽
Материалы:452 889 ₽
Дни:35
stdClass Object
(
[id] => 138
[attribute_id] => 19
[name] => Облицовочный кирпич
[material_modifier] => 1
[work_modifier] => 1
[options] => Array
(
[0] => Керамический
[1] => Клинкерный
[2] => Ручной формовки
[3] => Гиперпрессованный
[4] => Силикатный кирпич
)
[days] => [45,45,45,45,45]
[material_price] => [8174,9148,1040,1257,5876]
[work_price] => [3240,3758,4536,4017,3369]
[image] => https://akademik-stroy.ru/wp-content/uploads/materials/oblicovochnyj-kirpich.jpg
[area_modifier] => 147.1
[parent_name] => Наружная отделка фасада
[parent_id] => 19
[material_sum] => 1659306
[work_sum] => 548095
[total_sum] => 2207401
[total_days] => 45
[display_material_sum] => 1 659 306
[display_work_sum] => 548 095
[display_total_sum] => 2 207 401
)
1
2 207 401₽
Работа:548 095 ₽
Материалы:1 659 306 ₽
Дни:45
stdClass Object
(
[id] => 139
[attribute_id] => 19
[name] => Фасадная плитка
[material_modifier] => 1
[work_modifier] => 1
[options] => Array
(
[0] => Клинкерная
[1] => Керамическая
[2] => Плитка ручной формовки
)
[days] => [40,40,40]
[material_price] => [2974,1487,3470]
[work_price] => [3007,2592,3629]
[image] => https://akademik-stroy.ru/wp-content/uploads/materials/fasadnaya-plitka.jpg
[area_modifier] => 147.1
[parent_name] => Наружная отделка фасада
[parent_id] => 19
[material_sum] => 603716
[work_sum] => 508679
[total_sum] => 1112395
[total_days] => 40
[display_material_sum] => 603 716
[display_work_sum] => 508 679
[display_total_sum] => 1 112 395
)
1
1 112 395₽
Работа:508 679 ₽
Материалы:603 716 ₽
Дни:40
stdClass Object
(
[id] => 140
[attribute_id] => 19
[name] => Сайдинг
[material_modifier] => 1
[work_modifier] => 1
[options] => Array
(
[0] => Виниловый
[1] => Металлический
[2] => Фиброцементный
)
[days] => [20,20,20]
[material_price] => [1263,1944,4147]
[work_price] => [1263,1944,2074]
[image] => https://akademik-stroy.ru/wp-content/uploads/materials/sajding.jpg
[area_modifier] => 147.1
[parent_name] => Наружная отделка фасада
[parent_id] => 19
[material_sum] => 256386
[work_sum] => 213655
[total_sum] => 470041
[total_days] => 20
[display_material_sum] => 256 386
[display_work_sum] => 213 655
[display_total_sum] => 470 041
)
1
470 041₽
Работа:213 655 ₽
Материалы:256 386 ₽
Дни:20
stdClass Object
(
[id] => 141
[attribute_id] => 19
[name] => Камень
[material_modifier] => 1
[work_modifier] => 1
[options] => Array
(
[0] => Травертин
[1] => Дагестанский
[2] => Искусственный
[3] => Натуральный
[4] => Керамогранит
)
[days] => [45,45,45,45,45]
[material_price] => [4536,3888,2592,3240,2462]
[work_price] => [3240,3240,2462,3110,1944]
[image] => https://akademik-stroy.ru/wp-content/uploads/materials/kamen-1.jpg
[area_modifier] => 147.1
[parent_name] => Наружная отделка фасада
[parent_id] => 19
[material_sum] => 920799
[work_sum] => 548095
[total_sum] => 1468894
[total_days] => 45
[display_material_sum] => 920 799
[display_work_sum] => 548 095
[display_total_sum] => 1 468 894
)
1
1 468 894₽
Работа:548 095 ₽
Материалы:920 799 ₽
Дни:45
stdClass Object
(
[id] => 142
[attribute_id] => 19
[name] => Термопанели
[material_modifier] => 1
[work_modifier] => 1
[options] => Array
(
)
[days] => [20]
[material_price] => [6221]
[work_price] => [2333]
[image] => https://akademik-stroy.ru/wp-content/uploads/materials/termo.png
[area_modifier] => 147.1
[parent_name] => Наружная отделка фасада
[parent_id] => 19
[material_sum] => 1262851
[work_sum] => 394662
[total_sum] => 1657513
[total_days] => 20
[display_material_sum] => 1 262 851
[display_work_sum] => 394 662
[display_total_sum] => 1 657 513
)
1
1 657 513₽
Работа:394 662 ₽
Материалы:1 262 851 ₽
Дни:20
stdClass Object
(
[id] => 143
[attribute_id] => 19
[name] => Плитка HAUBERK
[material_modifier] => 1
[work_modifier] => 1
[options] => Array
(
)
[days] => [20]
[material_price] => [2786]
[work_price] => [1944]
[image] => https://akademik-stroy.ru/wp-content/uploads/materials/hauberk.jpg
[area_modifier] => 147.1
[parent_name] => Наружная отделка фасада
[parent_id] => 19
[material_sum] => 565552
[work_sum] => 328857
[total_sum] => 894409
[total_days] => 20
[display_material_sum] => 565 552
[display_work_sum] => 328 857
[display_total_sum] => 894 409
)
1
894 409₽
Работа:328 857 ₽
Материалы:565 552 ₽
Дни:20
stdClass Object
(
[id] => 144
[attribute_id] => 19
[name] => Фальцевый фасад
[material_modifier] => 1
[work_modifier] => 1
[options] => Array
(
)
[days] => [20]
[material_price] => [3240]
[work_price] => [2592]
[image] => https://akademik-stroy.ru/wp-content/uploads/materials/falcevyj-fasad.jpg
[area_modifier] => 147.1
[parent_name] => Наружная отделка фасада
[parent_id] => 19
[material_sum] => 657714
[work_sum] => 438476
[total_sum] => 1096190
[total_days] => 20
[display_material_sum] => 657 714
[display_work_sum] => 438 476
[display_total_sum] => 1 096 190
)
1
1 096 190₽
Работа:438 476 ₽
Материалы:657 714 ₽
Дни:20
stdClass Object
(
[id] => 145
[attribute_id] => 19
[name] => Комбинированный
[material_modifier] => 1
[work_modifier] => 1
[options] => Array
(
)
[days] => [20]
[material_price] => [4629]
[work_price] => [3499]
[image] => https://akademik-stroy.ru/wp-content/uploads/materials/Kombinirovannyj.jpg
[area_modifier] => 147.1
[parent_name] => Наружная отделка фасада
[parent_id] => 19
[material_sum] => 939678
[work_sum] => 591908
[total_sum] => 1531586
[total_days] => 20
[display_material_sum] => 939 678
[display_work_sum] => 591 908
[display_total_sum] => 1 531 586
)
1
1 531 586₽
Работа:591 908 ₽
Материалы:939 678 ₽
Дни:20
stdClass Object
(
[id] => 257
[attribute_id] => 19
[name] => Японские фиброцементные
[material_modifier] => 1
[work_modifier] => 1
[options] => Array
(
)
[days] => [20]
[material_price] => [7043]
[work_price] => [2993]
[image] => https://akademik-stroy.ru/wp-content/uploads/materials/paneli.jpg
[area_modifier] => 147.1
[parent_name] => Наружная отделка фасада
[parent_id] => 19
[material_sum] => 1429715
[work_sum] => 506311
[total_sum] => 1936026
[total_days] => 20
[display_material_sum] => 1 429 715
[display_work_sum] => 506 311
[display_total_sum] => 1 936 026
)
1
1 936 026₽
Работа:506 311 ₽
Материалы:1 429 715 ₽
Дни:20
stdClass Object
(
[id] => 258
[attribute_id] => 19
[name] => Панели Каньон
[material_modifier] => 1
[work_modifier] => 1
[options] => Array
(
)
[days] => [20]
[material_price] => [4543]
[work_price] => [2592]
[image] => https://akademik-stroy.ru/wp-content/uploads/materials/kanon.png
[area_modifier] => 147.1
[parent_name] => Наружная отделка фасада
[parent_id] => 19
[material_sum] => 922220
[work_sum] => 438476
[total_sum] => 1360696
[total_days] => 20
[display_material_sum] => 922 220
[display_work_sum] => 438 476
[display_total_sum] => 1 360 696
)
1
1 360 696₽
Работа:438 476 ₽
Материалы:922 220 ₽
Дни:20
stdClass Object
(
[id] => 39
[attribute_id] => 20
[name] => Нет
[material_modifier] => 1
[work_modifier] => 1
[options] => Array
(
)
[days] => [0]
[material_price] => [0]
[work_price] => [0]
[image] => https://akademik-stroy.ru/wp-content/uploads/materials/terrasy.jpg
[area_modifier] => 30
[parent_name] => Террасы, крыльца, навесы
[parent_id] => 20
[material_sum] => 0
[work_sum] => 0
[total_sum] => 0
[total_days] => 0
[display_material_sum] => 0
[display_work_sum] => 0
[display_total_sum] => 0
)
1
0₽
Работа:0 ₽
Материалы:0 ₽
Дни:0
stdClass Object
(
[id] => 40
[attribute_id] => 20
[name] => Есть
[material_modifier] => 1
[work_modifier] => 1
[options] => Array
(
)
[days] => [5]
[material_price] => [10450]
[work_price] => [1950]
[image] => https://akademik-stroy.ru/wp-content/uploads/materials/terrasy.jpg
[area_modifier] => 30
[parent_name] => Террасы, крыльца, навесы
[parent_id] => 20
[material_sum] => 432630
[work_sum] => 67275
[total_sum] => 499905
[total_days] => 5
[display_material_sum] => 432 630
[display_work_sum] => 67 275
[display_total_sum] => 499 905
)
1
499 905₽
Работа:67 275 ₽
Материалы:432 630 ₽
Дни:5
stdClass Object
(
[id] => 41
[attribute_id] => 21
[name] => Нет
[material_modifier] => 1
[work_modifier] => 1
[options] => Array
(
)
[days] => [0]
[material_price] => [0]
[work_price] => [0]
[image] => https://akademik-stroy.ru/wp-content/uploads/materials/balkony.jpg
[area_modifier] => 30
[parent_name] => Балконы
[parent_id] => 21
[material_sum] => 0
[work_sum] => 0
[total_sum] => 0
[total_days] => 0
[display_material_sum] => 0
[display_work_sum] => 0
[display_total_sum] => 0
)
1
0₽
Работа:0 ₽
Материалы:0 ₽
Дни:0
stdClass Object
(
[id] => 42
[attribute_id] => 21
[name] => Есть
[material_modifier] => 1
[work_modifier] => 1
[options] => Array
(
)
[days] => [12]
[material_price] => [3600]
[work_price] => [1950]
[image] => https://akademik-stroy.ru/wp-content/uploads/materials/balkony.jpg
[area_modifier] => 30
[parent_name] => Балконы
[parent_id] => 21
[material_sum] => 149040
[work_sum] => 67275
[total_sum] => 216315
[total_days] => 12
[display_material_sum] => 149 040
[display_work_sum] => 67 275
[display_total_sum] => 216 315
)
1
216 315₽
Работа:67 275 ₽
Материалы:149 040 ₽
Дни:12
stdClass Object
(
[id] => 43
[attribute_id] => 22
[name] => Нет
[material_modifier] => 1
[work_modifier] => 1
[options] => Array
(
)
[days] => [0]
[material_price] => [0]
[work_price] => [0]
[image] => https://akademik-stroy.ru/wp-content/uploads/materials/uteplennaya.jpg
[area_modifier] => 81.49
[parent_name] => Отмостка
[parent_id] => 22
[material_sum] => 0
[work_sum] => 0
[total_sum] => 0
[total_days] => 0
[display_material_sum] => 0
[display_work_sum] => 0
[display_total_sum] => 0
)
1
0₽
Работа:0 ₽
Материалы:0 ₽
Дни:0
stdClass Object
(
[id] => 44
[attribute_id] => 22
[name] => Утепленная отмостка
[material_modifier] => 1
[work_modifier] => 1
[options] => Array
(
)
[days] => [15]
[material_price] => [2550]
[work_price] => [1750]
[image] => https://akademik-stroy.ru/wp-content/uploads/materials/uteplennaya.jpg
[area_modifier] => 81.49
[parent_name] => Отмостка
[parent_id] => 22
[material_sum] => 286763
[work_sum] => 163999
[total_sum] => 450762
[total_days] => 15
[display_material_sum] => 286 763
[display_work_sum] => 163 999
[display_total_sum] => 450 762
)
1
450 762₽
Работа:163 999 ₽
Материалы:286 763 ₽
Дни:15
stdClass Object
(
[id] => 146
[attribute_id] => 22
[name] => Не утепленная отмостка
[material_modifier] => 1
[work_modifier] => 1
[options] => Array
(
)
[days] => [10]
[material_price] => [1650]
[work_price] => [1450]
[image] => https://akademik-stroy.ru/wp-content/uploads/materials/ne-uteplennaya.jpg
[area_modifier] => 81.49
[parent_name] => Отмостка
[parent_id] => 22
[material_sum] => 185553
[work_sum] => 135885
[total_sum] => 321438
[total_days] => 10
[display_material_sum] => 185 553
[display_work_sum] => 135 885
[display_total_sum] => 321 438
)
1
321 438₽
Работа:135 885 ₽
Материалы:185 553 ₽
Дни:10
stdClass Object
(
[id] => 45
[attribute_id] => 23
[name] => Нет
[material_modifier] => 1
[work_modifier] => 1
[options] => Array
(
)
[days] => [0]
[material_price] => [0]
[work_price] => [0]
[image] => https://akademik-stroy.ru/wp-content/uploads/materials/drenazh-2.jpg
[area_modifier] => 81.49
[parent_name] => Дренаж вокруг дома
[parent_id] => 23
[material_sum] => 0
[work_sum] => 0
[total_sum] => 0
[total_days] => 0
[display_material_sum] => 0
[display_work_sum] => 0
[display_total_sum] => 0
)
1
0₽
Работа:0 ₽
Материалы:0 ₽
Дни:0
stdClass Object
(
[id] => 46
[attribute_id] => 23
[name] => Есть
[material_modifier] => 1
[work_modifier] => 1
[options] => Array
(
)
[days] => [5]
[material_price] => [2366]
[work_price] => [1911]
[image] => https://akademik-stroy.ru/wp-content/uploads/materials/drenazh-2.jpg
[area_modifier] => 81.49
[parent_name] => Дренаж вокруг дома
[parent_id] => 23
[material_sum] => 266071
[work_sum] => 179086
[total_sum] => 445157
[total_days] => 5
[display_material_sum] => 266 071
[display_work_sum] => 179 086
[display_total_sum] => 445 157
)
1
445 157₽
Работа:179 086 ₽
Материалы:266 071 ₽
Дни:5
stdClass Object
(
[id] => 47
[attribute_id] => 24
[name] => Нет
[material_modifier] => 1
[work_modifier] => 1
[options] => Array
(
)
[days] => [0]
[material_price] => [0]
[work_price] => [0]
[image] => https://akademik-stroy.ru/wp-content/uploads/materials/septik.jpg
[area_modifier] => 1
[parent_name] => Автономная канализация (септики)
[parent_id] => 24
[material_sum] => 0
[work_sum] => 0
[total_sum] => 0
[total_days] => 0
[display_material_sum] => 0
[display_work_sum] => 0
[display_total_sum] => 0
)
1
0₽
Работа:0 ₽
Материалы:0 ₽
Дни:0
stdClass Object
(
[id] => 48
[attribute_id] => 24
[name] => Есть
[material_modifier] => 1
[work_modifier] => 1
[options] => Array
(
[0] => Для дачи на 4 человека
[1] => Для дома на 5 человек
[2] => Для дома на 6 человек
[3] => Для дома на 7 человек
[4] => Для дома на 10 человек
)
[days] => [7,7,7,8,8]
[material_price] => [196340,220500,240940,264200,293340]
[work_price] => [50000,55000,60500,66550,73206]
[image] => https://akademik-stroy.ru/wp-content/uploads/materials/septik.jpg
[area_modifier] => 1
[parent_name] => Автономная канализация (септики)
[parent_id] => 24
[material_sum] => 270949
[work_sum] => 57500
[total_sum] => 328449
[total_days] => 7
[display_material_sum] => 270 949
[display_work_sum] => 57 500
[display_total_sum] => 328 449
)
1
328 449₽
Работа:57 500 ₽
Материалы:270 949 ₽
Дни:7
stdClass Object
(
[id] => 49
[attribute_id] => 25
[name] => Нет
[material_modifier] => 1
[work_modifier] => 1
[options] => Array
(
)
[days] => [0]
[material_price] => [0]
[work_price] => [0]
[image] => https://akademik-stroy.ru/wp-content/uploads/materials/gkl.jpg
[area_modifier] => 147.1
[parent_name] => Внутренние (не несущие) перегородки
[parent_id] => 25
[material_sum] => 0
[work_sum] => 0
[total_sum] => 0
[total_days] => 0
[display_material_sum] => 0
[display_work_sum] => 0
[display_total_sum] => 0
)
1
0₽
Работа:0 ₽
Материалы:0 ₽
Дни:0
stdClass Object
(
[id] => 147
[attribute_id] => 25
[name] => Каркасно-обшивные
[material_modifier] => 1
[work_modifier] => 1
[options] => Array
(
[0] => 75 мм (без шумоизоляции)
[1] => 75 мм (с шумоизоляцией)
)
[days] => [11,11]
[material_price] => [580,970]
[work_price] => [380,570]
[image] => https://akademik-stroy.ru/wp-content/uploads/materials/gkl.jpg
[area_modifier] => 147.1
[parent_name] => Внутренние (не несущие) перегородки
[parent_id] => 25
[material_sum] => 117739
[work_sum] => 64283
[total_sum] => 182022
[total_days] => 11
[display_material_sum] => 117 739
[display_work_sum] => 64 283
[display_total_sum] => 182 022
)
1
182 022₽
Работа:64 283 ₽
Материалы:117 739 ₽
Дни:11
stdClass Object
(
[id] => 148
[attribute_id] => 25
[name] => Пазогребневые
[material_modifier] => 1
[work_modifier] => 1
[options] => Array
(
[0] => 80 мм
[1] => 100 мм
)
[days] => [5,5]
[material_price] => [1022,1313]
[work_price] => [600,700]
[image] => https://akademik-stroy.ru/wp-content/uploads/materials/pazogrebnevye-bloki.jpg
[area_modifier] => 147.1
[parent_name] => Внутренние (не несущие) перегородки
[parent_id] => 25
[material_sum] => 207464
[work_sum] => 101499
[total_sum] => 308963
[total_days] => 5
[display_material_sum] => 207 464
[display_work_sum] => 101 499
[display_total_sum] => 308 963
)
1
308 963₽
Работа:101 499 ₽
Материалы:207 464 ₽
Дни:5
stdClass Object
(
[id] => 149
[attribute_id] => 25
[name] => Газобетонные
[material_modifier] => 1
[work_modifier] => 1
[options] => Array
(
[0] => 100 мм
[1] => 200 мм
)
[days] => [11,11]
[material_price] => [1160,1920]
[work_price] => [700,900]
[image] => https://akademik-stroy.ru/wp-content/uploads/materials/gazobeton-2.jpg
[area_modifier] => 147.1
[parent_name] => Внутренние (не несущие) перегородки
[parent_id] => 25
[material_sum] => 235478
[work_sum] => 118416
[total_sum] => 353894
[total_days] => 11
[display_material_sum] => 235 478
[display_work_sum] => 118 416
[display_total_sum] => 353 894
)
1
353 894₽
Работа:118 416 ₽
Материалы:235 478 ₽
Дни:11
stdClass Object
(
[id] => 150
[attribute_id] => 25
[name] => Кирпичные
[material_modifier] => 1
[work_modifier] => 1
[options] => Array
(
[0] => 120 мм
[1] => 250 мм
[2] => 360 мм
)
[days] => [7,7,7]
[material_price] => [1785,3570,5355]
[work_price] => [900,1600,1800]
[image] => https://akademik-stroy.ru/wp-content/uploads/materials/kirpich-1.jpg
[area_modifier] => 147.1
[parent_name] => Внутренние (не несущие) перегородки
[parent_id] => 25
[material_sum] => 362351
[work_sum] => 152249
[total_sum] => 514600
[total_days] => 7
[display_material_sum] => 362 351
[display_work_sum] => 152 249
[display_total_sum] => 514 600
)
1
514 600₽
Работа:152 249 ₽
Материалы:362 351 ₽
Дни:7
stdClass Object
(
[id] => 55
[attribute_id] => 28
[name] => Нет
[material_modifier] => 1
[work_modifier] => 1
[options] => Array
(
)
[days] => [0]
[material_price] => [0]
[work_price] => [0]
[image] => https://akademik-stroy.ru/wp-content/uploads/materials/ehlektrika.jpg
[area_modifier] => 119.37
[parent_name] => Электрика
[parent_id] => 28
[material_sum] => 0
[work_sum] => 0
[total_sum] => 0
[total_days] => 0
[display_material_sum] => 0
[display_work_sum] => 0
[display_total_sum] => 0
)
1
0₽
Работа:0 ₽
Материалы:0 ₽
Дни:0
stdClass Object
(
[id] => 56
[attribute_id] => 28
[name] => Есть
[material_modifier] => 1
[work_modifier] => 1
[options] => Array
(
)
[days] => [10]
[material_price] => [650]
[work_price] => [950]
[image] => https://akademik-stroy.ru/wp-content/uploads/materials/ehlektrika.jpg
[area_modifier] => 119.37
[parent_name] => Электрика
[parent_id] => 28
[material_sum] => 107075
[work_sum] => 130412
[total_sum] => 237487
[total_days] => 10
[display_material_sum] => 107 075
[display_work_sum] => 130 412
[display_total_sum] => 237 487
)
1
237 487₽
Работа:130 412 ₽
Материалы:107 075 ₽
Дни:10
stdClass Object
(
[id] => 57
[attribute_id] => 29
[name] => Нет
[material_modifier] => 1
[work_modifier] => 1
[options] => Array
(
)
[days] => [0]
[material_price] => [0]
[work_price] => [0]
[image] => https://akademik-stroy.ru/wp-content/uploads/materials/santekhnika-kanalizaciya-1.jpg
[area_modifier] => 119.37
[parent_name] => Сантехника, канализация в доме
[parent_id] => 29
[material_sum] => 0
[work_sum] => 0
[total_sum] => 0
[total_days] => 0
[display_material_sum] => 0
[display_work_sum] => 0
[display_total_sum] => 0
)
1
0₽
Работа:0 ₽
Материалы:0 ₽
Дни:0
stdClass Object
(
[id] => 58
[attribute_id] => 29
[name] => Есть
[material_modifier] => 1
[work_modifier] => 1
[options] => Array
(
)
[days] => [10]
[material_price] => [600]
[work_price] => [730]
[image] => https://akademik-stroy.ru/wp-content/uploads/materials/santekhnika-kanalizaciya-1.jpg
[area_modifier] => 119.37
[parent_name] => Сантехника, канализация в доме
[parent_id] => 29
[material_sum] => 98838
[work_sum] => 100211
[total_sum] => 199049
[total_days] => 10
[display_material_sum] => 98 838
[display_work_sum] => 100 211
[display_total_sum] => 199 049
)
1
199 049₽
Работа:100 211 ₽
Материалы:98 838 ₽
Дни:10
stdClass Object
(
[id] => 59
[attribute_id] => 30
[name] => Нет
[material_modifier] => 1
[work_modifier] => 1
[options] => Array
(
)
[days] => [0]
[material_price] => [0]
[work_price] => [0]
[image] => https://akademik-stroy.ru/wp-content/uploads/materials/otoplenie-1.jpg
[area_modifier] => 119.37
[parent_name] => Отопление
[parent_id] => 30
[material_sum] => 0
[work_sum] => 0
[total_sum] => 0
[total_days] => 0
[display_material_sum] => 0
[display_work_sum] => 0
[display_total_sum] => 0
)
1
0₽
Работа:0 ₽
Материалы:0 ₽
Дни:0
stdClass Object
(
[id] => 60
[attribute_id] => 30
[name] => Есть
[material_modifier] => 1
[work_modifier] => 1
[options] => Array
(
)
[days] => [5]
[material_price] => [610]
[work_price] => [560]
[image] => https://akademik-stroy.ru/wp-content/uploads/materials/otoplenie-1.jpg
[area_modifier] => 119.37
[parent_name] => Отопление
[parent_id] => 30
[material_sum] => 100486
[work_sum] => 76874
[total_sum] => 177360
[total_days] => 5
[display_material_sum] => 100 486
[display_work_sum] => 76 874
[display_total_sum] => 177 360
)
1
177 360₽
Работа:76 874 ₽
Материалы:100 486 ₽
Дни:5
stdClass Object
(
[id] => 61
[attribute_id] => 31
[name] => Нет
[material_modifier] => 1
[work_modifier] => 1
[options] => Array
(
)
[days] => [0]
[material_price] => [0]
[work_price] => [0]
[image] => https://akademik-stroy.ru/wp-content/uploads/materials/vodyanye.jpg
[area_modifier] => 30
[parent_name] => Теплые полы
[parent_id] => 31
[material_sum] => 0
[work_sum] => 0
[total_sum] => 0
[total_days] => 0
[display_material_sum] => 0
[display_work_sum] => 0
[display_total_sum] => 0
)
1
0₽
Работа:0 ₽
Материалы:0 ₽
Дни:0
stdClass Object
(
[id] => 151
[attribute_id] => 31
[name] => Водяные
[material_modifier] => 1
[work_modifier] => 1
[options] => Array
(
)
[days] => [9]
[material_price] => [10200]
[work_price] => [2500]
[image] => https://akademik-stroy.ru/wp-content/uploads/materials/vodyanye.jpg
[area_modifier] => 30
[parent_name] => Теплые полы
[parent_id] => 31
[material_sum] => 422280
[work_sum] => 86250
[total_sum] => 508530
[total_days] => 9
[display_material_sum] => 422 280
[display_work_sum] => 86 250
[display_total_sum] => 508 530
)
1
508 530₽
Работа:86 250 ₽
Материалы:422 280 ₽
Дни:9
stdClass Object
(
[id] => 152
[attribute_id] => 31
[name] => Электро
[material_modifier] => 1
[work_modifier] => 1
[options] => Array
(
)
[days] => [5]
[material_price] => [6300]
[work_price] => [1500]
[image] => https://akademik-stroy.ru/wp-content/uploads/materials/ehlektricheskij.jpg
[area_modifier] => 30
[parent_name] => Теплые полы
[parent_id] => 31
[material_sum] => 260820
[work_sum] => 51750
[total_sum] => 312570
[total_days] => 5
[display_material_sum] => 260 820
[display_work_sum] => 51 750
[display_total_sum] => 312 570
)
1
312 570₽
Работа:51 750 ₽
Материалы:260 820 ₽
Дни:5
stdClass Object
(
[id] => 63
[attribute_id] => 32
[name] => Нет
[material_modifier] => 1
[work_modifier] => 1
[options] => Array
(
)
[days] => [0]
[material_price] => [0]
[work_price] => [0]
[image] => https://akademik-stroy.ru/wp-content/uploads/materials/shtukaturka-shpatlevka-1.jpg
[area_modifier] => 119.37
[parent_name] => Черновая отделка стен
[parent_id] => 32
[material_sum] => 0
[work_sum] => 0
[total_sum] => 0
[total_days] => 0
[display_material_sum] => 0
[display_work_sum] => 0
[display_total_sum] => 0
)
1
0₽
Работа:0 ₽
Материалы:0 ₽
Дни:0
stdClass Object
(
[id] => 153
[attribute_id] => 32
[name] => Штукатурка и шпатлевка
[material_modifier] => 1
[work_modifier] => 1
[options] => Array
(
)
[days] => [20]
[material_price] => [1850]
[work_price] => [2600]
[image] => https://akademik-stroy.ru/wp-content/uploads/materials/shtukaturka-shpatlevka-1.jpg
[area_modifier] => 119.37
[parent_name] => Черновая отделка стен
[parent_id] => 32
[material_sum] => 304752
[work_sum] => 356916
[total_sum] => 661668
[total_days] => 20
[display_material_sum] => 304 752
[display_work_sum] => 356 916
[display_total_sum] => 661 668
)
1
661 668₽
Работа:356 916 ₽
Материалы:304 752 ₽
Дни:20
stdClass Object
(
[id] => 154
[attribute_id] => 32
[name] => Гипсокортон на стены
[material_modifier] => 1
[work_modifier] => 1
[options] => Array
(
)
[days] => [15]
[material_price] => [950]
[work_price] => [2100]
[image] => https://akademik-stroy.ru/wp-content/uploads/materials/gkl-1.jpg
[area_modifier] => 119.37
[parent_name] => Черновая отделка стен
[parent_id] => 32
[material_sum] => 156494
[work_sum] => 288279
[total_sum] => 444773
[total_days] => 15
[display_material_sum] => 156 494
[display_work_sum] => 288 279
[display_total_sum] => 444 773
)
1
444 773₽
Работа:288 279 ₽
Материалы:156 494 ₽
Дни:15
stdClass Object
(
[id] => 155
[attribute_id] => 32
[name] => Вагонка
[material_modifier] => 1
[work_modifier] => 1
[options] => Array
(
)
[days] => [15]
[material_price] => [1250]
[work_price] => [950]
[image] => https://akademik-stroy.ru/wp-content/uploads/materials/vagonka.jpg
[area_modifier] => 119.37
[parent_name] => Черновая отделка стен
[parent_id] => 32
[material_sum] => 205913
[work_sum] => 130412
[total_sum] => 336325
[total_days] => 15
[display_material_sum] => 205 913
[display_work_sum] => 130 412
[display_total_sum] => 336 325
)
1
336 325₽
Работа:130 412 ₽
Материалы:205 913 ₽
Дни:15
stdClass Object
(
[id] => 65
[attribute_id] => 33
[name] => Нет
[material_modifier] => 1
[work_modifier] => 1
[options] => Array
(
)
[days] => [0]
[material_price] => [0]
[work_price] => [0]
[image] => https://akademik-stroy.ru/wp-content/uploads/materials/styazhka.jpg
[area_modifier] => 119.37
[parent_name] => Черновая отделка полов
[parent_id] => 33
[material_sum] => 0
[work_sum] => 0
[total_sum] => 0
[total_days] => 0
[display_material_sum] => 0
[display_work_sum] => 0
[display_total_sum] => 0
)
1
0₽
Работа:0 ₽
Материалы:0 ₽
Дни:0
stdClass Object
(
[id] => 156
[attribute_id] => 33
[name] => Стяжка + наливные полы
[material_modifier] => 1
[work_modifier] => 1
[options] => Array
(
)
[days] => [10]
[material_price] => [1000]
[work_price] => [900]
[image] => https://akademik-stroy.ru/wp-content/uploads/materials/styazhka.jpg
[area_modifier] => 119.37
[parent_name] => Черновая отделка полов
[parent_id] => 33
[material_sum] => 164731
[work_sum] => 123548
[total_sum] => 288279
[total_days] => 10
[display_material_sum] => 164 731
[display_work_sum] => 123 548
[display_total_sum] => 288 279
)
1
288 279₽
Работа:123 548 ₽
Материалы:164 731 ₽
Дни:10
stdClass Object
(
[id] => 157
[attribute_id] => 33
[name] => ОСБ на пол
[material_modifier] => 1
[work_modifier] => 1
[options] => Array
(
)
[days] => [7]
[material_price] => [580]
[work_price] => [350]
[image] => https://akademik-stroy.ru/wp-content/uploads/materials/osb-1.jpg
[area_modifier] => 119.37
[parent_name] => Черновая отделка полов
[parent_id] => 33
[material_sum] => 95544
[work_sum] => 48046
[total_sum] => 143590
[total_days] => 7
[display_material_sum] => 95 544
[display_work_sum] => 48 046
[display_total_sum] => 143 590
)
1
143 590₽
Работа:48 046 ₽
Материалы:95 544 ₽
Дни:7
stdClass Object
(
[id] => 67
[attribute_id] => 34
[name] => Нет
[material_modifier] => 1
[work_modifier] => 1
[options] => Array
(
)
[days] => [0]
[material_price] => [0]
[work_price] => [0]
[image] => https://akademik-stroy.ru/wp-content/uploads/materials/chistovaya-otdelka.jpg
[area_modifier] => 119.37
[parent_name] => Чистовая отделка стен и полов
[parent_id] => 34
[material_sum] => 0
[work_sum] => 0
[total_sum] => 0
[total_days] => 0
[display_material_sum] => 0
[display_work_sum] => 0
[display_total_sum] => 0
)
1
0₽
Работа:0 ₽
Материалы:0 ₽
Дни:0
stdClass Object
(
[id] => 68
[attribute_id] => 34
[name] => Есть
[material_modifier] => 1
[work_modifier] => 1
[options] => Array
(
)
[days] => [50]
[material_price] => [6000]
[work_price] => [3500]
[image] => https://akademik-stroy.ru/wp-content/uploads/materials/chistovaya-otdelka.jpg
[area_modifier] => 119.37
[parent_name] => Чистовая отделка стен и полов
[parent_id] => 34
[material_sum] => 988384
[work_sum] => 480464
[total_sum] => 1468848
[total_days] => 50
[display_material_sum] => 988 384
[display_work_sum] => 480 464
[display_total_sum] => 1 468 848
)
1
1 468 848₽
Работа:480 464 ₽
Материалы:988 384 ₽
Дни:50
stdClass Object
(
[id] => 69
[attribute_id] => 35
[name] => Нет
[material_modifier] => 1
[work_modifier] => 1
[options] => Array
(
)
[days] => [0]
[material_price] => [0]
[work_price] => [0]
[image] => https://akademik-stroy.ru/wp-content/uploads/materials/mnogourovnevyj-gkl.jpg
[area_modifier] => 119.37
[parent_name] => Отделка потолка
[parent_id] => 35
[material_sum] => 0
[work_sum] => 0
[total_sum] => 0
[total_days] => 0
[display_material_sum] => 0
[display_work_sum] => 0
[display_total_sum] => 0
)
1
0₽
Работа:0 ₽
Материалы:0 ₽
Дни:0
stdClass Object
(
[id] => 70
[attribute_id] => 35
[name] => Есть
[material_modifier] => 1
[work_modifier] => 1
[options] => Array
(
[0] => Многоуровневый потолок из гипсокартона
[1] => Многоуровневый потолок из гипсокартона и натяжного потолка
[2] => Одноуровневый потолок из гипсокартона
[3] => Одноуровневый натяжной потолок
)
[days] => [10,10,1,1]
[material_price] => [900,700,700,600]
[work_price] => [1000,800,500,300]
[image] => https://akademik-stroy.ru/wp-content/uploads/materials/mnogourovnevyj-gkl.jpg
[area_modifier] => 119.37
[parent_name] => Отделка потолка
[parent_id] => 35
[material_sum] => 148258
[work_sum] => 137276
[total_sum] => 285534
[total_days] => 10
[display_material_sum] => 148 258
[display_work_sum] => 137 276
[display_total_sum] => 285 534
)
1
285 534₽
Работа:137 276 ₽
Материалы:148 258 ₽
Дни:10
Преимущества работы с нами
7 этапов оплаты
Независимый строительный надзор
Экологически чистые материалы
16 лет гарантии
Онлайн-кабинет с веб-камерой
Строители с опытом более 15 лет
Собственное производство










