Одноэтажный дом 12x10 - 127.18 м2 за руб.
Планировки
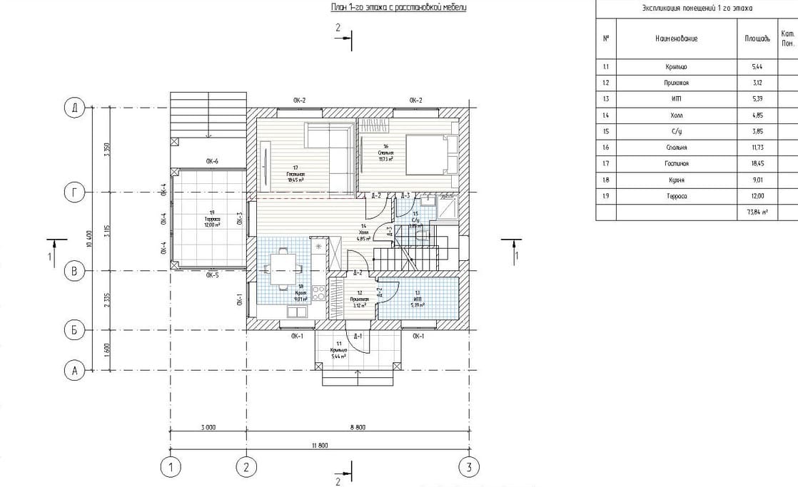
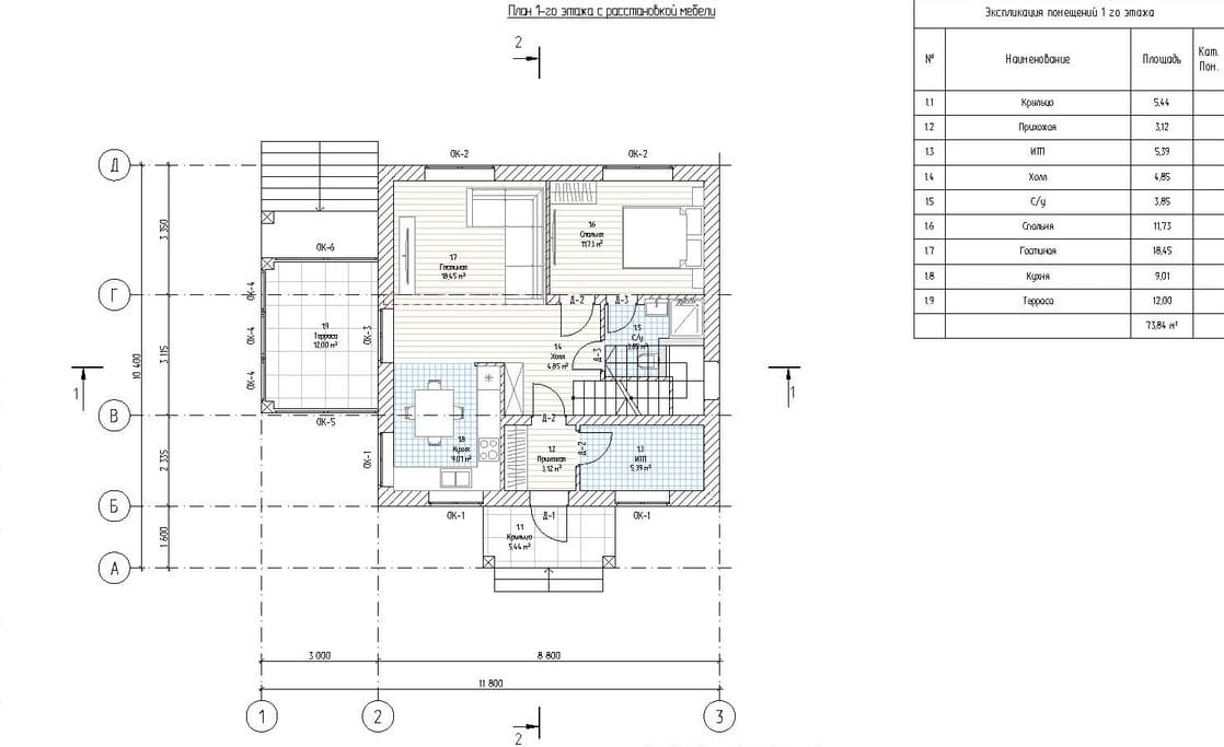
План первого этажа
- 1. Крыльцо 5,44 м²
- 2. Прихожая 3,12 м²
- 3. ИТП 5,39 м²
- 4. Холл 4,85 м²
- 5. С/У 3,85 м²
- 6. Спальня 11,73 м²
- 7. Гостиная 18,45 м²
- 8. Кухня 9,01 м²
- 9. Терраса 12,00 м²
- Общая площадь 1 этажа 73,84 м²
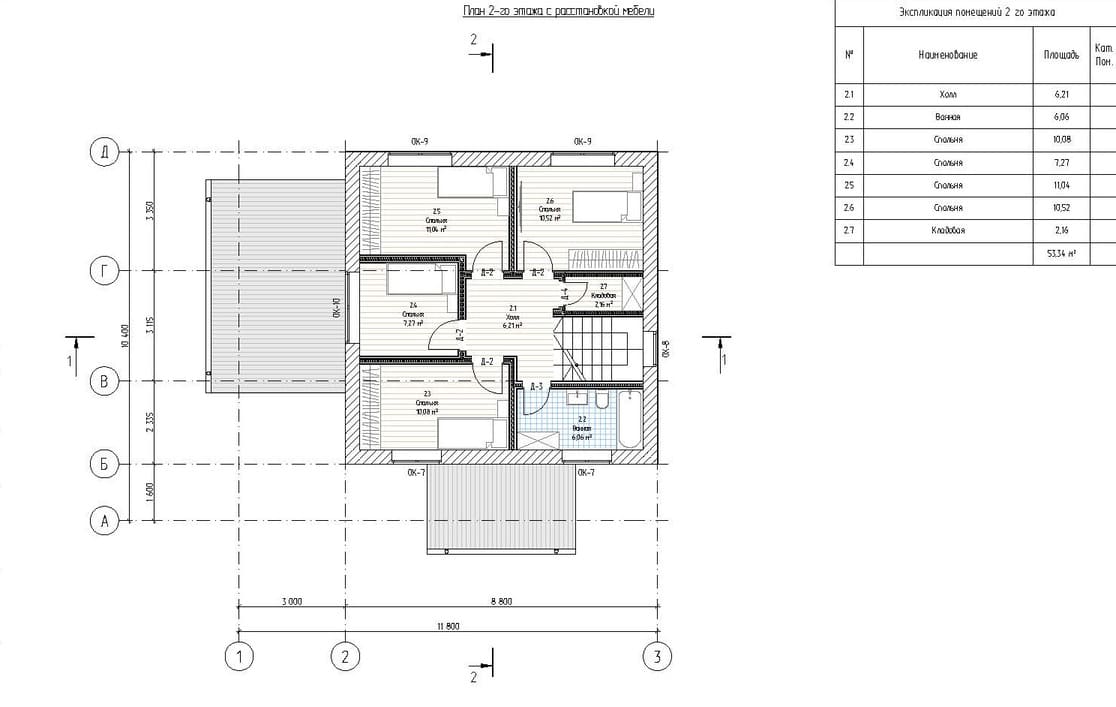
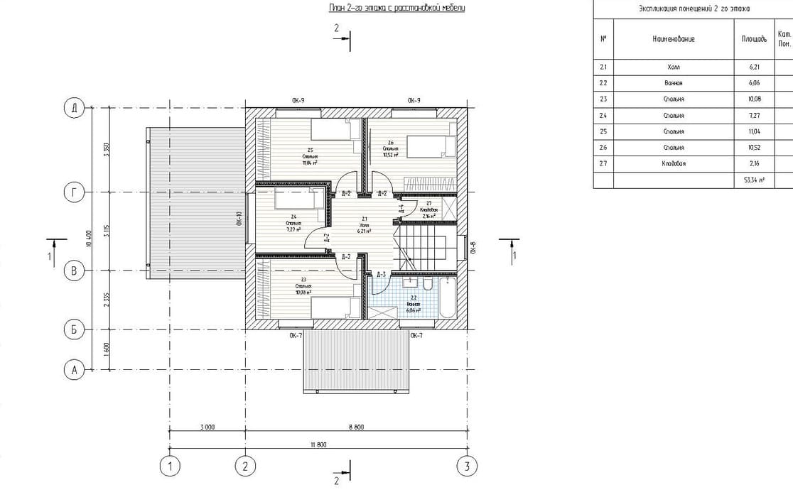
План второго этажа
- 1. Холл 6,21 м²
- 2. С/У 6,06 м²
- 3. Спальня 10,08 м²
- 4. Спальня 7,27 м²
- 5. Спальня 11,04 м²
- 6. Спальня 10,52 м²
- 7. Кладовая 2,16 м²
- Общая площадь 2 этажа 53,34 м²
Площади дома
| № п/п | Наименование | Ед. из. | Строительная площадь | Полезная площадь |
| 1 | 1 этаж | м2 | 90.99 | 73.84 |
| 2 | 2 этаж | м2 | 65.73 | 53.34 |
| 3 | Итого | м2 | 156.72 | 127.18 |
154 м2
Полезная
площадь
площадь
12 x 10 м
Размеры
1 этаж
Этажей
26 м2
Террасы
и балконы
и балконы
0Без
гаража
гаража
5+
Количество
спален
спален
2
Количество
санузлов
санузлов
Калькулятор опций
0₽
В ипотеку от 16 096 ₽/мес.
0₽
0 дней
stdClass Object
(
[id] => 1
[attribute_id] => 1
[name] => Ленточный монолитный ж/б
[material_modifier] => 1
[work_modifier] => 1
[options] => Array
(
[0] => размер 200 х 700 мм
[1] => размер 300 х 900 мм
[2] => размер 400 х 1 000 мм
[3] => размер 500 х 1 100 мм
[4] => размер 600 х 1 200 мм
)
[days] => [20,21,22,25,30]
[material_price] => [2823,3630,4475,5210,12047]
[work_price] => [2154,2826,3731,4577,5293]
[image] => https://akademik-stroy.ru/wp-content/uploads/materials/lentochnyj-monolitnyj-zh-b.jpg
[area_modifier] => 90.99
[parent_name] => Фундамент
[parent_id] => 1
[material_sum] => 339061
[work_sum] => 215592
[total_sum] => 554653
[total_days] => 20
[display_material_sum] => 339 061
[display_work_sum] => 215 592
[display_total_sum] => 554 653
)
1
554 653₽
Работа:215 592 ₽
Материалы:339 061 ₽
Дни:20
stdClass Object
(
[id] => 2
[attribute_id] => 1
[name] => Забивные Ж/Б сваи
[material_modifier] => 1
[work_modifier] => 1
[options] => Array
(
[0] => 150х150х3000мм
[1] => 150х150х4000мм
[2] => 200х200х3000мм
[3] => 200х200х4000мм
[4] => 200х200х5000мм
[5] => 200х200х6000мм
)
[days] => [2,2,2,2,2,2]
[material_price] => [1990,2850,3255,4360,5120,6837]
[work_price] => [1002,1185,1336,1438,1574,1839]
[image] => https://akademik-stroy.ru/wp-content/uploads/materials/zabivnye-zh-b-svai.png
[area_modifier] => 90.99
[parent_name] => Фундамент
[parent_id] => 1
[material_sum] => 239013
[work_sum] => 100289
[total_sum] => 339302
[total_days] => 2
[display_material_sum] => 239 013
[display_work_sum] => 100 289
[display_total_sum] => 339 302
)
1
339 302₽
Работа:100 289 ₽
Материалы:239 013 ₽
Дни:2
stdClass Object
(
[id] => 71
[attribute_id] => 1
[name] => Свайно-ростверковый ж/б
[material_modifier] => 1
[work_modifier] => 1
[options] => Array
(
[0] => ростверк 200х300 мм
[1] => ростверк 300х600 мм
[2] => ростверк 400х900 мм
[3] => ростверк 500х1200 мм
)
[days] => [20,23,25,27]
[material_price] => [3018,3474,7109,9792]
[work_price] => [2024,3012,5635,7022]
[image] => https://akademik-stroy.ru/wp-content/uploads/materials/svajno-rostverkovyj-monolitnyj-zh-b-3.png
[area_modifier] => 90.99
[parent_name] => Фундамент
[parent_id] => 1
[material_sum] => 362482
[work_sum] => 202580
[total_sum] => 565062
[total_days] => 20
[display_material_sum] => 362 482
[display_work_sum] => 202 580
[display_total_sum] => 565 062
)
1
565 062₽
Работа:202 580 ₽
Материалы:362 482 ₽
Дни:20
stdClass Object
(
[id] => 72
[attribute_id] => 1
[name] => Монолитная ж/б плита
[material_modifier] => 1
[work_modifier] => 1
[options] => Array
(
[0] => 200 мм
[1] => 300 мм
[2] => 400 мм
[3] => 500 мм
[4] => 600 мм
)
[days] => [30,33,35,37,40]
[material_price] => [5348,8555,12788,14388,15189]
[work_price] => [4314,4881,7037,8061,10230]
[image] => https://akademik-stroy.ru/wp-content/uploads/materials/monolitnaya-zhb-plita.png
[area_modifier] => 90.99
[parent_name] => Фундамент
[parent_id] => 1
[material_sum] => 642331
[work_sum] => 431784
[total_sum] => 1074115
[total_days] => 30
[display_material_sum] => 642 331
[display_work_sum] => 431 784
[display_total_sum] => 1 074 115
)
1
1 074 115₽
Работа:431 784 ₽
Материалы:642 331 ₽
Дни:30
stdClass Object
(
[id] => 73
[attribute_id] => 1
[name] => Утепленная шведская плита
[material_modifier] => 1
[work_modifier] => 1
[options] => Array
(
[0] => 200 мм
[1] => 300 мм
[2] => 400 мм
[3] => 500 мм
[4] => 600 мм
)
[days] => [32,37,39,42,45]
[material_price] => [10249,12692,13760,14936,16230]
[work_price] => [5960,7337,8072,8878,9765]
[image] => https://akademik-stroy.ru/wp-content/uploads/materials/uteplennaya-shvedskaya-plita.jpg
[area_modifier] => 90.99
[parent_name] => Фундамент
[parent_id] => 1
[material_sum] => 1230975
[work_sum] => 596530
[total_sum] => 1827505
[total_days] => 32
[display_material_sum] => 1 230 975
[display_work_sum] => 596 530
[display_total_sum] => 1 827 505
)
1
1 827 505₽
Работа:596 530 ₽
Материалы:1 230 975 ₽
Дни:32
stdClass Object
(
[id] => 75
[attribute_id] => 1
[name] => Ленточный из ФБС
[material_modifier] => 1
[work_modifier] => 1
[options] => Array
(
[0] => толщ. 300 мм
[1] => толщ. 400 мм
[2] => толщ. 500 мм
[3] => толщ. 600 мм
)
[days] => [20,20,20,20]
[material_price] => [3675,4902,6126,7350]
[work_price] => [2451,3264,4083,4902]
[image] => https://akademik-stroy.ru/wp-content/uploads/materials/lentochnyj-iz-fbs.png
[area_modifier] => 90.99
[parent_name] => Фундамент
[parent_id] => 1
[material_sum] => 441392
[work_sum] => 245318
[total_sum] => 686710
[total_days] => 20
[display_material_sum] => 441 392
[display_work_sum] => 245 318
[display_total_sum] => 686 710
)
1
686 710₽
Работа:245 318 ₽
Материалы:441 392 ₽
Дни:20
stdClass Object
(
[id] => 76
[attribute_id] => 1
[name] => Цокольный этаж из ФБС
[material_modifier] => 1
[work_modifier] => 1
[options] => Array
(
[0] => толщ. 300 мм
[1] => толщ. 400 мм
[2] => толщ. 500 мм
[3] => толщ. 600 мм
)
[days] => [30,32,34,36]
[material_price] => [20916,23299,26680,29060]
[work_price] => [17524,18700,19873,21046]
[image] => https://akademik-stroy.ru/wp-content/uploads/materials/cokolnyj-ehtazh-iz-fbs.jpg
[area_modifier] => 90.99
[parent_name] => Фундамент
[parent_id] => 1
[material_sum] => 2512154
[work_sum] => 1753960
[total_sum] => 4266114
[total_days] => 30
[display_material_sum] => 2 512 154
[display_work_sum] => 1 753 960
[display_total_sum] => 4 266 114
)
1
4 266 114₽
Работа:1 753 960 ₽
Материалы:2 512 154 ₽
Дни:30
stdClass Object
(
[id] => 77
[attribute_id] => 1
[name] => Цокольный этаж монолитный ж/б
[material_modifier] => 1
[work_modifier] => 1
[options] => Array
(
[0] => толщ. 200 мм
[1] => толщ. 300 мм
[2] => толщ. 400 мм
[3] => толщ. 500 мм
[4] => толщ. 600 мм
)
[days] => [40,42,44,46,48]
[material_price] => [25421,29148,32275,35602,37326]
[work_price] => [20441,21907,23375,24841,26306]
[image] => https://akademik-stroy.ru/wp-content/uploads/materials/cokolnyj-etazh-zh-b.jpg
[area_modifier] => 90.99
[parent_name] => Фундамент
[parent_id] => 1
[material_sum] => 3053235
[work_sum] => 2045919
[total_sum] => 5099154
[total_days] => 40
[display_material_sum] => 3 053 235
[display_work_sum] => 2 045 919
[display_total_sum] => 5 099 154
)
1
5 099 154₽
Работа:2 045 919 ₽
Материалы:3 053 235 ₽
Дни:40
stdClass Object
(
[id] => 191
[attribute_id] => 1
[name] => Винтовые сваи
[material_modifier] => 1
[work_modifier] => 1
[options] => Array
(
[0] => 57х200мм
[1] => 76х250мм
[2] => 108х300мм
[3] => 133х350мм
)
[days] => [1,1,2,2]
[material_price] => [1200,1300,1450,1600]
[work_price] => [400,600,900,1100]
[image] => https://akademik-stroy.ru/wp-content/uploads/materials/vintovye-svai.png
[area_modifier] => 90.99
[parent_name] => Фундамент
[parent_id] => 1
[material_sum] => 144128
[work_sum] => 40036
[total_sum] => 184164
[total_days] => 1
[display_material_sum] => 144 128
[display_work_sum] => 40 036
[display_total_sum] => 184 164
)
1
184 164₽
Работа:40 036 ₽
Материалы:144 128 ₽
Дни:1
stdClass Object
(
[id] => 3
[attribute_id] => 2
[name] => Деревянные балки
[material_modifier] => 1
[work_modifier] => 1
[options] => Array
(
[0] => без утепления
[1] => утепление 200 мм
[2] => утепление 250 мм
[3] => утепление 300 мм
[4] => утепление 350 мм
[5] => утепление 400 мм
[6] => утепление 450 мм
[7] => утепление 500 мм
)
[days] => [8,9,9,9,11,12,13,14]
[material_price] => [1634,2042,2344,2947,3149,3652,3354,3557]
[work_price] => [1230,1339,1393,1426,1460,1513,1587,1620]
[image] => https://akademik-stroy.ru/wp-content/uploads/materials/derevyannye-balki.png
[area_modifier] => 90.99
[parent_name] => Перекрытие цоколя
[parent_id] => 2
[material_sum] => 196255
[work_sum] => 123109
[total_sum] => 319364
[total_days] => 8
[display_material_sum] => 196 255
[display_work_sum] => 123 109
[display_total_sum] => 319 364
)
1
319 364₽
Работа:123 109 ₽
Материалы:196 255 ₽
Дни:8
stdClass Object
(
[id] => 4
[attribute_id] => 2
[name] => Сборные ж/б плиты
[material_modifier] => 1
[work_modifier] => 1
[options] => Array
(
[0] => без утепления
[1] => утепление 150мм
[2] => утепление 200мм
[3] => утепление 250мм
[4] => утепление 300мм
[5] => утепление 350мм
[6] => утепление 400мм
[7] => утепление 450мм
[8] => утепление 500мм
)
[days] => [13,15,15,15,15,15,15,15,15]
[material_price] => [3067,5577,5928,6679,7730,8782,9833,10884,11935]
[work_price] => [1520,1956,2102,2247,2392,2537,2684,2829,2974]
[image] => https://akademik-stroy.ru/wp-content/uploads/materials/sbornye-zh-b-plity-2.jpg
[area_modifier] => 90.99
[parent_name] => Перекрытие цоколя
[parent_id] => 2
[material_sum] => 368368
[work_sum] => 152135
[total_sum] => 520503
[total_days] => 13
[display_material_sum] => 368 368
[display_work_sum] => 152 135
[display_total_sum] => 520 503
)
1
520 503₽
Работа:152 135 ₽
Материалы:368 368 ₽
Дни:13
stdClass Object
(
[id] => 78
[attribute_id] => 2
[name] => Монолитная ж/б плита
[material_modifier] => 1
[work_modifier] => 1
[options] => Array
(
[0] => без утепления
[1] => утепление 150 мм
[2] => утепление 200 мм
[3] => утепление 250 мм
[4] => утепление 300 мм
[5] => утепление 350 мм
[6] => утепление 400 мм
[7] => утепление 450 мм
[8] => утепление 500 мм
)
[days] => [18,20,20,20,20,20,20,20,20]
[material_price] => [4837,6572,7224,7375,79426,8177,8728,9180,10031]
[work_price] => [3348,3921,4112,4302,4493,4684,4875,5066,5256]
[image] => https://akademik-stroy.ru/wp-content/uploads/materials/monolitnaya-zh-b-plita-2.jpg
[area_modifier] => 90.99
[parent_name] => Перекрытие цоколя
[parent_id] => 2
[material_sum] => 580957
[work_sum] => 335098
[total_sum] => 916055
[total_days] => 18
[display_material_sum] => 580 957
[display_work_sum] => 335 098
[display_total_sum] => 916 055
)
1
916 055₽
Работа:335 098 ₽
Материалы:580 957 ₽
Дни:18
stdClass Object
(
[id] => 6
[attribute_id] => 3
[name] => Пеноблок
[material_modifier] => 1
[work_modifier] => 1
[options] => Array
(
[0] => 300 мм
[1] => 400 мм
[2] => 500 мм
[3] => 600 мм
)
[days] => [29,31,34,39]
[material_price] => [3000,4000,4500,4937]
[work_price] => [5033,5805,6400,8710]
[image] => https://akademik-stroy.ru/wp-content/uploads/materials/penoblok.jpg
[area_modifier] => 90.99
[parent_name] => Стены 1 этаж (несущие)
[parent_id] => 3
[material_sum] => 360320
[work_sum] => 503748
[total_sum] => 864068
[total_days] => 29
[display_material_sum] => 360 320
[display_work_sum] => 503 748
[display_total_sum] => 864 068
)
1
864 068₽
Работа:503 748 ₽
Материалы:360 320 ₽
Дни:29
stdClass Object
(
[id] => 79
[attribute_id] => 3
[name] => Керамический блок
[material_modifier] => 1
[work_modifier] => 1
[options] => Array
(
[0] => 380 мм
[1] => 380 мм Thermo
[2] => 440 мм
[3] => 510 мм
)
[days] => [23,23,24,25]
[material_price] => [4510,5098,6093,8013]
[work_price] => [4737,4937,5903,6958]
[image] => https://akademik-stroy.ru/wp-content/uploads/materials/keramicheskij-blok.jpg
[area_modifier] => 90.99
[parent_name] => Стены 1 этаж (несущие)
[parent_id] => 3
[material_sum] => 541682
[work_sum] => 474122
[total_sum] => 1015804
[total_days] => 23
[display_material_sum] => 541 682
[display_work_sum] => 474 122
[display_total_sum] => 1 015 804
)
1
1 015 804₽
Работа:474 122 ₽
Материалы:541 682 ₽
Дни:23
stdClass Object
(
[id] => 80
[attribute_id] => 3
[name] => Кирпич
[material_modifier] => 1
[work_modifier] => 1
[options] => Array
(
[0] => Кирпич 250 мм
[1] => Кирпич 380 мм
[2] => Кирпич 510 мм
[3] => Кирпич 640 мм
[4] => Кирпич 770 мм
)
[days] => [30,30,31,33,36]
[material_price] => [5500,7142,9206,10171,12235]
[work_price] => [8736,10041,12018,15240,18462]
[image] => https://akademik-stroy.ru/wp-content/uploads/materials/kirpich.jpg
[area_modifier] => 90.99
[parent_name] => Стены 1 этаж (несущие)
[parent_id] => 3
[material_sum] => 660587
[work_sum] => 874378
[total_sum] => 1534965
[total_days] => 30
[display_material_sum] => 660 587
[display_work_sum] => 874 378
[display_total_sum] => 1 534 965
)
1
1 534 965₽
Работа:874 378 ₽
Материалы:660 587 ₽
Дни:30
stdClass Object
(
[id] => 81
[attribute_id] => 3
[name] => Монолитные
[material_modifier] => 1
[work_modifier] => 1
[options] => Array
(
[0] => 150 мм
[1] => 200 мм
[2] => 250 мм
[3] => 300 мм
[4] => 350 мм
[5] => 400 мм
)
[days] => [45,46,47,49,50,53]
[material_price] => [6545,7876,10175,12011,13908,15204]
[work_price] => [5106,6444,7698,8552,9807,11461]
[image] => https://akademik-stroy.ru/wp-content/uploads/materials/monolitnye.jpg
[area_modifier] => 90.99
[parent_name] => Стены 1 этаж (несущие)
[parent_id] => 3
[material_sum] => 786099
[work_sum] => 511054
[total_sum] => 1297153
[total_days] => 45
[display_material_sum] => 786 099
[display_work_sum] => 511 054
[display_total_sum] => 1 297 153
)
1
1 297 153₽
Работа:511 054 ₽
Материалы:786 099 ₽
Дни:45
stdClass Object
(
[id] => 82
[attribute_id] => 3
[name] => Клееный брус
[material_modifier] => 1
[work_modifier] => 1
[options] => Array
(
[0] => 160 мм
[1] => 175 мм
[2] => 200 мм
[3] => 215 мм
[4] => 240 мм
[5] => 270 мм
[6] => 282 мм
)
[days] => [24,28,32,37,40,42,48]
[material_price] => [16975,18773,19950,20545,21599,22159,23275]
[work_price] => [4806,5287,5815,6397,7036,7740,8514]
[image] => https://akademik-stroy.ru/wp-content/uploads/materials/kleenyj-brus.jpg
[area_modifier] => 90.99
[parent_name] => Стены 1 этаж (несущие)
[parent_id] => 3
[material_sum] => 2038813
[work_sum] => 481028
[total_sum] => 2519841
[total_days] => 24
[display_material_sum] => 2 038 813
[display_work_sum] => 481 028
[display_total_sum] => 2 519 841
)
1
2 519 841₽
Работа:481 028 ₽
Материалы:2 038 813 ₽
Дни:24
stdClass Object
(
[id] => 83
[attribute_id] => 3
[name] => Каркасные
[material_modifier] => 1
[work_modifier] => 1
[options] => Array
(
[0] => 150 мм
[1] => 200 мм
[2] => 250 мм
[3] => 300 мм
)
[days] => [15,16,17,18]
[material_price] => [2379,2639,2898,3258]
[work_price] => [2418,2686,2985,3716]
[image] => https://akademik-stroy.ru/wp-content/uploads/materials/karkasnye.jpg
[area_modifier] => 90.99
[parent_name] => Стены 1 этаж (несущие)
[parent_id] => 3
[material_sum] => 285734
[work_sum] => 242015
[total_sum] => 527749
[total_days] => 15
[display_material_sum] => 285 734
[display_work_sum] => 242 015
[display_total_sum] => 527 749
)
1
527 749₽
Работа:242 015 ₽
Материалы:285 734 ₽
Дни:15
stdClass Object
(
[id] => 84
[attribute_id] => 3
[name] => СИП-панели
[material_modifier] => 1
[work_modifier] => 1
[options] => Array
(
[0] => 120 мм
[1] => 170 мм
[2] => 220 мм
)
[days] => [7,7,7]
[material_price] => [1210,1856,2292]
[work_price] => [1410,1551,1706]
[image] => https://akademik-stroy.ru/wp-content/uploads/materials/sip-paneli.jpg
[area_modifier] => 90.99
[parent_name] => Стены 1 этаж (несущие)
[parent_id] => 3
[material_sum] => 145329
[work_sum] => 141125
[total_sum] => 286454
[total_days] => 7
[display_material_sum] => 145 329
[display_work_sum] => 141 125
[display_total_sum] => 286 454
)
1
286 454₽
Работа:141 125 ₽
Материалы:145 329 ₽
Дни:7
stdClass Object
(
[id] => 85
[attribute_id] => 3
[name] => Сухой брус
[material_modifier] => 1
[work_modifier] => 1
[options] => Array
(
[0] => 150 мм
[1] => 180 мм
[2] => 200 мм
)
[days] => [7,8,9]
[material_price] => [6010,7190,8709]
[work_price] => [3204,3845,4229]
[image] => https://akademik-stroy.ru/wp-content/uploads/materials/suhoj-brus.jpg
[area_modifier] => 90.99
[parent_name] => Стены 1 этаж (несущие)
[parent_id] => 3
[material_sum] => 721842
[work_sum] => 320685
[total_sum] => 1042527
[total_days] => 7
[display_material_sum] => 721 842
[display_work_sum] => 320 685
[display_total_sum] => 1 042 527
)
1
1 042 527₽
Работа:320 685 ₽
Материалы:721 842 ₽
Дни:7
stdClass Object
(
[id] => 86
[attribute_id] => 3
[name] => Профилированный брус
[material_modifier] => 1
[work_modifier] => 1
[options] => Array
(
[0] => 150 мм
[1] => 180 мм
[2] => 200 мм
)
[days] => [7,8,9]
[material_price] => [8190,9228,10051]
[work_price] => [3845,4614,5075]
[image] => https://akademik-stroy.ru/wp-content/uploads/materials/profilirovannyj-brus.jpg
[area_modifier] => 90.99
[parent_name] => Стены 1 этаж (несущие)
[parent_id] => 3
[material_sum] => 983675
[work_sum] => 384842
[total_sum] => 1368517
[total_days] => 7
[display_material_sum] => 983 675
[display_work_sum] => 384 842
[display_total_sum] => 1 368 517
)
1
1 368 517₽
Работа:384 842 ₽
Материалы:983 675 ₽
Дни:7
stdClass Object
(
[id] => 87
[attribute_id] => 3
[name] => Оцилиндрованное бревно
[material_modifier] => 1
[work_modifier] => 1
[options] => Array
(
[0] => 180 мм
[1] => 220 мм
[2] => 260 мм
[3] => 320 мм
)
[days] => [7,8,9,10]
[material_price] => [75190,9532,10868,13116]
[work_price] => [3845,4691,5535,6863]
[image] => https://akademik-stroy.ru/wp-content/uploads/materials/ocilindrovannoe-brevno-1.jpg
[area_modifier] => 90.99
[parent_name] => Стены 1 этаж (несущие)
[parent_id] => 3
[material_sum] => 9030830
[work_sum] => 384842
[total_sum] => 9415672
[total_days] => 7
[display_material_sum] => 9 030 830
[display_work_sum] => 384 842
[display_total_sum] => 9 415 672
)
1
9 415 672₽
Работа:384 842 ₽
Материалы:9 030 830 ₽
Дни:7
stdClass Object
(
[id] => 88
[attribute_id] => 3
[name] => Срубы
[material_modifier] => 1
[work_modifier] => 1
[options] => Array
(
[0] => 260 мм
[1] => 320 мм
[2] => 360 мм
[3] => 400 мм
[4] => 500 мм
)
[days] => [7,8,9,10,11]
[material_price] => [37975,46709,52314,58069,73167]
[work_price] => [4806,5911,6621,7349,9260]
[image] => https://akademik-stroy.ru/wp-content/uploads/materials/sruby.jpg
[area_modifier] => 90.99
[parent_name] => Стены 1 этаж (несущие)
[parent_id] => 3
[material_sum] => 4561056
[work_sum] => 481028
[total_sum] => 5042084
[total_days] => 7
[display_material_sum] => 4 561 056
[display_work_sum] => 481 028
[display_total_sum] => 5 042 084
)
1
5 042 084₽
Работа:481 028 ₽
Материалы:4 561 056 ₽
Дни:7
stdClass Object
(
[id] => 174
[attribute_id] => 3
[name] => Брус
[material_modifier] => 1
[work_modifier] => 1
[options] => Array
(
[0] => 150 мм
[1] => 180 мм
[2] => 200 мм
)
[days] => [7,8,9]
[material_price] => [5127,6152,7367]
[work_price] => [1602,1922,2115]
[image] => https://akademik-stroy.ru/wp-content/uploads/materials/brus.jpg
[area_modifier] => 90.99
[parent_name] => Стены 1 этаж (несущие)
[parent_id] => 3
[material_sum] => 615788
[work_sum] => 160343
[total_sum] => 776131
[total_days] => 7
[display_material_sum] => 615 788
[display_work_sum] => 160 343
[display_total_sum] => 776 131
)
1
776 131₽
Работа:160 343 ₽
Материалы:615 788 ₽
Дни:7
stdClass Object
(
[id] => 175
[attribute_id] => 3
[name] => Газобетон
[material_modifier] => 1
[work_modifier] => 1
[options] => Array
(
[0] => 300 мм
[1] => 375 мм
[2] => 400 мм
[3] => 500 мм
[4] => 600 мм
)
[days] => [29,31,35,37,44]
[material_price] => [4298,5573,6356,7288,9119]
[work_price] => [4538,5251,5926,6733,7195]
[image] => https://akademik-stroy.ru/wp-content/uploads/materials/gazobeton.jpg
[area_modifier] => 90.99
[parent_name] => Стены 1 этаж (несущие)
[parent_id] => 3
[material_sum] => 516219
[work_sum] => 454204
[total_sum] => 970423
[total_days] => 29
[display_material_sum] => 516 219
[display_work_sum] => 454 204
[display_total_sum] => 970 423
)
1
970 423₽
Работа:454 204 ₽
Материалы:516 219 ₽
Дни:29
stdClass Object
(
[id] => 176
[attribute_id] => 3
[name] => Блок
[material_modifier] => 1
[work_modifier] => 1
[options] => Array
(
[0] => 300 мм
[1] => 375 мм
[2] => 400 мм
[3] => 500 мм
[4] => 600 мм
)
[days] => [29,31,35,37,44]
[material_price] => [2698,3973,4356,6588,7119]
[work_price] => [5038,5851,6426,8733,9195]
[image] => https://akademik-stroy.ru/wp-content/uploads/materials/blok.jpg
[area_modifier] => 90.99
[parent_name] => Стены 1 этаж (несущие)
[parent_id] => 3
[material_sum] => 324048
[work_sum] => 504248
[total_sum] => 828296
[total_days] => 29
[display_material_sum] => 324 048
[display_work_sum] => 504 248
[display_total_sum] => 828 296
)
1
828 296₽
Работа:504 248 ₽
Материалы:324 048 ₽
Дни:29
stdClass Object
(
[id] => 177
[attribute_id] => 3
[name] => Газосиликатный блок
[material_modifier] => 1
[work_modifier] => 1
[options] => Array
(
[0] => 300 мм
[1] => 375 мм
[2] => 400 мм
[3] => 500 мм
[4] => 600 мм
)
[days] => [29,31,35,37,44]
[material_price] => [4298,5573,6356,7288,9119]
[work_price] => [4538,5251,5926,6733,7195]
[image] => https://akademik-stroy.ru/wp-content/uploads/materials/gazosilikatnyj-blok.jpg
[area_modifier] => 90.99
[parent_name] => Стены 1 этаж (несущие)
[parent_id] => 3
[material_sum] => 516219
[work_sum] => 454204
[total_sum] => 970423
[total_days] => 29
[display_material_sum] => 516 219
[display_work_sum] => 454 204
[display_total_sum] => 970 423
)
1
970 423₽
Работа:454 204 ₽
Материалы:516 219 ₽
Дни:29
stdClass Object
(
[id] => 178
[attribute_id] => 3
[name] => Керамзитобетонный блок
[material_modifier] => 1
[work_modifier] => 1
[options] => Array
(
[0] => 300 мм
[1] => 375 мм
[2] => 400 мм
[3] => 500 мм
[4] => 600 мм
)
[days] => [23,23,24,25,28]
[material_price] => [3641,4298,5693,7613,9612]
[work_price] => [5737,5737,6903,7958,8901]
[image] => https://akademik-stroy.ru/wp-content/uploads/materials/keramzitobetonnyj-blok.jpg
[area_modifier] => 90.99
[parent_name] => Стены 1 этаж (несущие)
[parent_id] => 3
[material_sum] => 437309
[work_sum] => 574211
[total_sum] => 1011520
[total_days] => 23
[display_material_sum] => 437 309
[display_work_sum] => 574 211
[display_total_sum] => 1 011 520
)
1
1 011 520₽
Работа:574 211 ₽
Материалы:437 309 ₽
Дни:23
stdClass Object
(
[id] => 179
[attribute_id] => 3
[name] => Деревянные
[material_modifier] => 1
[work_modifier] => 1
[options] => Array
(
[0] => 180 мм
[1] => 220 мм
[2] => 260 мм
[3] => 320 мм
)
[days] => [7,8,9,10]
[material_price] => [7950,9458,11961,14472]
[work_price] => [4037,4925,5812,7207]
[image] => https://akademik-stroy.ru/wp-content/uploads/materials/derevyannye.jpg
[area_modifier] => 90.99
[parent_name] => Стены 1 этаж (несущие)
[parent_id] => 3
[material_sum] => 954849
[work_sum] => 404059
[total_sum] => 1358908
[total_days] => 7
[display_material_sum] => 954 849
[display_work_sum] => 404 059
[display_total_sum] => 1 358 908
)
1
1 358 908₽
Работа:404 059 ₽
Материалы:954 849 ₽
Дни:7
stdClass Object
(
[id] => 181
[attribute_id] => 3
[name] => Камень
[material_modifier] => 1
[work_modifier] => 1
[options] => Array
(
[0] => 300 мм
[1] => 400 мм
[2] => 500 мм
[3] => 600 мм
)
[days] => [25,27,31,34]
[material_price] => [5262,6844,8330,9815]
[work_price] => [8331,9135,10427,11069]
[image] => https://akademik-stroy.ru/wp-content/uploads/materials/kamen.jpg
[area_modifier] => 90.99
[parent_name] => Стены 1 этаж (несущие)
[parent_id] => 3
[material_sum] => 632002
[work_sum] => 833841
[total_sum] => 1465843
[total_days] => 25
[display_material_sum] => 632 002
[display_work_sum] => 833 841
[display_total_sum] => 1 465 843
)
1
1 465 843₽
Работа:833 841 ₽
Материалы:632 002 ₽
Дни:25
stdClass Object
(
[id] => 182
[attribute_id] => 3
[name] => Каркасно-щитовые
[material_modifier] => 1
[work_modifier] => 1
[options] => Array
(
[0] => 150 мм
[1] => 200 мм
[2] => 250 мм
[3] => 300 мм
[4] => 350 мм
[5] => 400 мм
)
[days] => [15,16,17,18,19,20]
[material_price] => [2379,2639,2898,3458,3601,4175]
[work_price] => [2538,2820,3134,3483,4062,5642]
[image] => https://akademik-stroy.ru/wp-content/uploads/materials/karkasno-shchitovye.jpg
[area_modifier] => 90.99
[parent_name] => Стены 1 этаж (несущие)
[parent_id] => 3
[material_sum] => 285734
[work_sum] => 254026
[total_sum] => 539760
[total_days] => 15
[display_material_sum] => 285 734
[display_work_sum] => 254 026
[display_total_sum] => 539 760
)
1
539 760₽
Работа:254 026 ₽
Материалы:285 734 ₽
Дни:15
stdClass Object
(
[id] => 183
[attribute_id] => 3
[name] => Рубленные
[material_modifier] => 1
[work_modifier] => 1
[options] => Array
(
[0] => 150 мм
[1] => 200 мм
[2] => 250 мм
[3] => 300 мм
[4] => 350 мм
[5] => 400 мм
)
[days] => [15,16,17,18,17,18]
[material_price] => [35950,50267,60583,75900,80217,100533]
[work_price] => [9612,12816,16020,19224,22428,25632]
[image] => https://akademik-stroy.ru/wp-content/uploads/materials/rublennye.jpg
[area_modifier] => 90.99
[parent_name] => Стены 1 этаж (несущие)
[parent_id] => 3
[material_sum] => 4317839
[work_sum] => 962055
[total_sum] => 5279894
[total_days] => 15
[display_material_sum] => 4 317 839
[display_work_sum] => 962 055
[display_total_sum] => 5 279 894
)
1
5 279 894₽
Работа:962 055 ₽
Материалы:4 317 839 ₽
Дни:15
stdClass Object
(
[id] => 185
[attribute_id] => 3
[name] => Теплоблок
[material_modifier] => 1
[work_modifier] => 1
[options] => Array
(
[0] => 300 мм (с облицовкой, не покрашенный)
[1] => 400 мм (с облицовкой, не покрашенный)
[2] => 300 мм (с облицовкой, покрашенный)
[3] => 400 мм (с облицовкой, покрашенный)
)
[days] => [15,16,15,16]
[material_price] => [2888,3729,3957,4258]
[work_price] => [2564,3229,2949,3713]
[image] => https://akademik-stroy.ru/wp-content/uploads/materials/teploblok.jpg
[area_modifier] => 90.99
[parent_name] => Стены 1 этаж (несущие)
[parent_id] => 3
[material_sum] => 346868
[work_sum] => 256628
[total_sum] => 603496
[total_days] => 15
[display_material_sum] => 346 868
[display_work_sum] => 256 628
[display_total_sum] => 603 496
)
1
603 496₽
Работа:256 628 ₽
Материалы:346 868 ₽
Дни:15
stdClass Object
(
[id] => 186
[attribute_id] => 3
[name] => Арболитовые блоки
[material_modifier] => 1
[work_modifier] => 1
[options] => Array
(
[0] => 300 мм
[1] => 400 мм
[2] => 600 мм
)
[days] => [19,22,27]
[material_price] => [3210,4475,5852]
[work_price] => [4214,4788,5866]
[image] => https://akademik-stroy.ru/wp-content/uploads/materials/arbolitovye-bloki.png
[area_modifier] => 90.99
[parent_name] => Стены 1 этаж (несущие)
[parent_id] => 3
[material_sum] => 385543
[work_sum] => 421775
[total_sum] => 807318
[total_days] => 19
[display_material_sum] => 385 543
[display_work_sum] => 421 775
[display_total_sum] => 807 318
)
1
807 318₽
Работа:421 775 ₽
Материалы:385 543 ₽
Дни:19
stdClass Object
(
[id] => 187
[attribute_id] => 3
[name] => Полистиролбетон
[material_modifier] => 1
[work_modifier] => 1
[options] => Array
(
[0] => 300 мм
[1] => 400 мм
[2] => 600 мм
)
[days] => [29,31,35]
[material_price] => [2798,4573,5256]
[work_price] => [5038,5851,6426]
[image] => https://akademik-stroy.ru/wp-content/uploads/materials/polistirolbeton.jpg
[area_modifier] => 90.99
[parent_name] => Стены 1 этаж (несущие)
[parent_id] => 3
[material_sum] => 336059
[work_sum] => 504248
[total_sum] => 840307
[total_days] => 29
[display_material_sum] => 336 059
[display_work_sum] => 504 248
[display_total_sum] => 840 307
)
1
840 307₽
Работа:504 248 ₽
Материалы:336 059 ₽
Дни:29
stdClass Object
(
[id] => 188
[attribute_id] => 3
[name] => Шлакоблок
[material_modifier] => 1
[work_modifier] => 1
[options] => Array
(
[0] => 400 мм
[1] => 600 мм
)
[days] => [15,16]
[material_price] => [2391,3471]
[work_price] => [2642,3662]
[image] => https://akademik-stroy.ru/wp-content/uploads/materials/shlakoblok.jpg
[area_modifier] => 90.99
[parent_name] => Стены 1 этаж (несущие)
[parent_id] => 3
[material_sum] => 287175
[work_sum] => 264435
[total_sum] => 551610
[total_days] => 15
[display_material_sum] => 287 175
[display_work_sum] => 264 435
[display_total_sum] => 551 610
)
1
551 610₽
Работа:264 435 ₽
Материалы:287 175 ₽
Дни:15
stdClass Object
(
[id] => 189
[attribute_id] => 3
[name] => Теплая керамика
[material_modifier] => 1
[work_modifier] => 1
[options] => Array
(
[0] => 380 мм
[1] => 380 мм Thermo
[2] => 440 мм
[3] => 510 мм
)
[days] => [23,23,24,25]
[material_price] => [4510,5098,6093,8013]
[work_price] => [4737,4937,5903,6958]
[image] => https://akademik-stroy.ru/wp-content/uploads/materials/teplaya-keramika.jpg
[area_modifier] => 90.99
[parent_name] => Стены 1 этаж (несущие)
[parent_id] => 3
[material_sum] => 541682
[work_sum] => 474122
[total_sum] => 1015804
[total_days] => 23
[display_material_sum] => 541 682
[display_work_sum] => 474 122
[display_total_sum] => 1 015 804
)
1
1 015 804₽
Работа:474 122 ₽
Материалы:541 682 ₽
Дни:23
stdClass Object
(
[id] => 190
[attribute_id] => 3
[name] => Несъемная опалубка
[material_modifier] => 1
[work_modifier] => 1
[options] => Array
(
[0] => 200 мм
[1] => 250 мм
[2] => 300 мм
[3] => 350 мм
)
[days] => [15,17,19,21]
[material_price] => [3302,3902,4108,5008]
[work_price] => [2100,2100,2300,2534]
[image] => https://akademik-stroy.ru/wp-content/uploads/materials/nesemnaya-opalubka.jpg
[area_modifier] => 90.99
[parent_name] => Стены 1 этаж (несущие)
[parent_id] => 3
[material_sum] => 396593
[work_sum] => 210187
[total_sum] => 606780
[total_days] => 15
[display_material_sum] => 396 593
[display_work_sum] => 210 187
[display_total_sum] => 606 780
)
1
606 780₽
Работа:210 187 ₽
Материалы:396 593 ₽
Дни:15
stdClass Object
(
[id] => 251
[attribute_id] => 3
[name] => Бревно
[material_modifier] => 1
[work_modifier] => 1
[options] => Array
(
[0] => 260 мм
[1] => 320 мм
[2] => 360 мм
[3] => 400 мм
[4] => 500 мм
)
[days] => [7,8,9,10,11]
[material_price] => [1874,24045,26930,30972,38825]
[work_price] => [5046,6207,6952,7716,9723]
[image] => https://akademik-stroy.ru/wp-content/uploads/materials/sruby.jpg
[area_modifier] => 90.99
[parent_name] => Стены 1 этаж (несущие)
[parent_id] => 3
[material_sum] => 225080
[work_sum] => 505049
[total_sum] => 730129
[total_days] => 7
[display_material_sum] => 225 080
[display_work_sum] => 505 049
[display_total_sum] => 730 129
)
1
730 129₽
Работа:505 049 ₽
Материалы:225 080 ₽
Дни:7
stdClass Object
(
[id] => 7
[attribute_id] => 4
[name] => Деревянные балки
[material_modifier] => 1
[work_modifier] => 1
[options] => Array
(
[0] => без утепления
[1] => утепление 200 мм
[2] => утепление 250 мм
[3] => утепление 300 мм
[4] => утепление 350 мм
[5] => утепление 400 мм
[6] => утепление 450 мм
[7] => утепление 500 мм
)
[days] => [8,9,9,9,11,12,13,14]
[material_price] => [1634,2042,2344,2947,3149,3652,3354,3557]
[work_price] => [1230,1339,1393,1426,1460,1513,1587,1620]
[image] => https://akademik-stroy.ru/wp-content/uploads/materials/derevyannye-balki.png
[area_modifier] => 90.99
[parent_name] => Перекрытие первого этажа
[parent_id] => 4
[material_sum] => 196255
[work_sum] => 123109
[total_sum] => 319364
[total_days] => 8
[display_material_sum] => 196 255
[display_work_sum] => 123 109
[display_total_sum] => 319 364
)
1
319 364₽
Работа:123 109 ₽
Материалы:196 255 ₽
Дни:8
stdClass Object
(
[id] => 8
[attribute_id] => 4
[name] => Сборные ж/б плиты
[material_modifier] => 1
[work_modifier] => 1
[options] => Array
(
[0] => без утепления
[1] => утепление 150 мм
[2] => утепление 200 мм
[3] => утепление 250 мм
[4] => утепление 300 мм
[5] => утепление 350 мм
[6] => утепление 400 мм
[7] => утепление 450 мм
[8] => утепление 500 мм
)
[days] => [13,15,15,15,15,15,15,15,15]
[material_price] => [3067,5577,5928,6679,7730,8782,9833,10884,11935]
[work_price] => [1520,1956,2102,2247,2392,2537,2684,2829,2974]
[image] => https://akademik-stroy.ru/wp-content/uploads/materials/sbornye-zh-b-plity-2.jpg
[area_modifier] => 90.99
[parent_name] => Перекрытие первого этажа
[parent_id] => 4
[material_sum] => 368368
[work_sum] => 152135
[total_sum] => 520503
[total_days] => 13
[display_material_sum] => 368 368
[display_work_sum] => 152 135
[display_total_sum] => 520 503
)
1
520 503₽
Работа:152 135 ₽
Материалы:368 368 ₽
Дни:13
stdClass Object
(
[id] => 89
[attribute_id] => 4
[name] => Монолитная ж/б плита
[material_modifier] => 1
[work_modifier] => 1
[options] => Array
(
[0] => без утепления
[1] => утепление 150 мм
[2] => утепление 200 мм
[3] => утепление 250 мм
[4] => утепление 300 мм
[5] => утепление 350 мм
[6] => утепление 400 мм
[7] => утепление 450 мм
[8] => утепление 500 мм
)
[days] => [18,20,20,20,20,20,20,20,20]
[material_price] => [4837,6572,7224,7375,79426,8177,8728,9180,10031]
[work_price] => [3348,3921,4112,4302,4493,4684,4875,5066,5256]
[image] => https://akademik-stroy.ru/wp-content/uploads/materials/monolitnaya-zh-b-plita-2.jpg
[area_modifier] => 90.99
[parent_name] => Перекрытие первого этажа
[parent_id] => 4
[material_sum] => 580957
[work_sum] => 335098
[total_sum] => 916055
[total_days] => 18
[display_material_sum] => 580 957
[display_work_sum] => 335 098
[display_total_sum] => 916 055
)
1
916 055₽
Работа:335 098 ₽
Материалы:580 957 ₽
Дни:18
stdClass Object
(
[id] => 10
[attribute_id] => 5
[name] => Пеноблок
[material_modifier] => 1
[work_modifier] => 1
[options] => Array
(
[0] => 300 мм
[1] => 400 мм
[2] => 500 мм
[3] => 600 мм
)
[days] => [29,31,34,39]
[material_price] => [3000,4000,4500,4937]
[work_price] => [5033,5805,6400,8710]
[image] => https://akademik-stroy.ru/wp-content/uploads/materials/penoblok.jpg
[area_modifier] => 65.73
[parent_name] => Стены 2 этаж (несущие)
[parent_id] => 5
[material_sum] => 260291
[work_sum] => 363901
[total_sum] => 624192
[total_days] => 29
[display_material_sum] => 260 291
[display_work_sum] => 363 901
[display_total_sum] => 624 192
)
1
624 192₽
Работа:363 901 ₽
Материалы:260 291 ₽
Дни:29
stdClass Object
(
[id] => 90
[attribute_id] => 5
[name] => Керамический блок
[material_modifier] => 1
[work_modifier] => 1
[options] => Array
(
[0] => 380 мм
[1] => 380 мм Thermo
[2] => 440 мм
[3] => 510 мм
)
[days] => [23,23,24,25]
[material_price] => [4510,5098,6093,8013]
[work_price] => [4737,4937,5903,6958]
[image] => https://akademik-stroy.ru/wp-content/uploads/materials/keramicheskij-blok.jpg
[area_modifier] => 65.73
[parent_name] => Стены 2 этаж (несущие)
[parent_id] => 5
[material_sum] => 391304
[work_sum] => 342499
[total_sum] => 733803
[total_days] => 23
[display_material_sum] => 391 304
[display_work_sum] => 342 499
[display_total_sum] => 733 803
)
1
733 803₽
Работа:342 499 ₽
Материалы:391 304 ₽
Дни:23
stdClass Object
(
[id] => 91
[attribute_id] => 5
[name] => Кирпич
[material_modifier] => 1
[work_modifier] => 1
[options] => Array
(
[0] => Кирпич 250 мм
[1] => Кирпич 380 мм
[2] => Кирпич 510 мм
[3] => Кирпич 640 мм
[4] => Кирпич 770 мм
)
[days] => [30,30,31,33,36]
[material_price] => [5500,7142,9206,10171,12235]
[work_price] => [8736,10041,12018,15240,18462]
[image] => https://akademik-stroy.ru/wp-content/uploads/materials/kirpich.jpg
[area_modifier] => 65.73
[parent_name] => Стены 2 этаж (несущие)
[parent_id] => 5
[material_sum] => 477200
[work_sum] => 631639
[total_sum] => 1108839
[total_days] => 30
[display_material_sum] => 477 200
[display_work_sum] => 631 639
[display_total_sum] => 1 108 839
)
1
1 108 839₽
Работа:631 639 ₽
Материалы:477 200 ₽
Дни:30
stdClass Object
(
[id] => 92
[attribute_id] => 5
[name] => Монолитные
[material_modifier] => 1
[work_modifier] => 1
[options] => Array
(
[0] => 150 мм
[1] => 200 мм
[2] => 250 мм
[3] => 300 мм
[4] => 350 мм
[5] => 400 мм
)
[days] => [45,46,47,49,50,53]
[material_price] => [6545,7876,10175,12011,13908,15204]
[work_price] => [5106,6444,7698,8552,9807,11461]
[image] => https://akademik-stroy.ru/wp-content/uploads/materials/monolitnye.jpg
[area_modifier] => 65.73
[parent_name] => Стены 2 этаж (несущие)
[parent_id] => 5
[material_sum] => 567868
[work_sum] => 369179
[total_sum] => 937047
[total_days] => 45
[display_material_sum] => 567 868
[display_work_sum] => 369 179
[display_total_sum] => 937 047
)
1
937 047₽
Работа:369 179 ₽
Материалы:567 868 ₽
Дни:45
stdClass Object
(
[id] => 93
[attribute_id] => 5
[name] => Клееный брус
[material_modifier] => 1
[work_modifier] => 1
[options] => Array
(
[0] => 160 мм
[1] => 175 мм
[2] => 200 мм
[3] => 215 мм
[4] => 240 мм
[5] => 270 мм
[6] => 282 мм
)
[days] => [24,28,32,37,40,42,48]
[material_price] => [16975,18773,19950,20545,21599,22159,23275]
[work_price] => [4806,5287,5815,6397,7036,7740,8514]
[image] => https://akademik-stroy.ru/wp-content/uploads/materials/kleenyj-brus.jpg
[area_modifier] => 65.73
[parent_name] => Стены 2 этаж (несущие)
[parent_id] => 5
[material_sum] => 1472812
[work_sum] => 347488
[total_sum] => 1820300
[total_days] => 24
[display_material_sum] => 1 472 812
[display_work_sum] => 347 488
[display_total_sum] => 1 820 300
)
1
1 820 300₽
Работа:347 488 ₽
Материалы:1 472 812 ₽
Дни:24
stdClass Object
(
[id] => 94
[attribute_id] => 5
[name] => Каркасные
[material_modifier] => 1
[work_modifier] => 1
[options] => Array
(
[0] => 150 мм
[1] => 200 мм
[2] => 250 мм
[3] => 300 мм
)
[days] => [15,16,17,18]
[material_price] => [2379,2639,2898,3258]
[work_price] => [2418,2686,2985,3716]
[image] => https://akademik-stroy.ru/wp-content/uploads/materials/karkasnye.jpg
[area_modifier] => 65.73
[parent_name] => Стены 2 этаж (несущие)
[parent_id] => 5
[material_sum] => 206411
[work_sum] => 174829
[total_sum] => 381240
[total_days] => 15
[display_material_sum] => 206 411
[display_work_sum] => 174 829
[display_total_sum] => 381 240
)
1
381 240₽
Работа:174 829 ₽
Материалы:206 411 ₽
Дни:15
stdClass Object
(
[id] => 95
[attribute_id] => 5
[name] => СИП-панели
[material_modifier] => 1
[work_modifier] => 1
[options] => Array
(
[0] => 120 мм
[1] => 170 мм
[2] => 220 мм
)
[days] => [7,7,7]
[material_price] => [1210,1856,2292]
[work_price] => [1410,1551,1706]
[image] => https://akademik-stroy.ru/wp-content/uploads/materials/sip-paneli.jpg
[area_modifier] => 65.73
[parent_name] => Стены 2 этаж (несущие)
[parent_id] => 5
[material_sum] => 104984
[work_sum] => 101947
[total_sum] => 206931
[total_days] => 7
[display_material_sum] => 104 984
[display_work_sum] => 101 947
[display_total_sum] => 206 931
)
1
206 931₽
Работа:101 947 ₽
Материалы:104 984 ₽
Дни:7
stdClass Object
(
[id] => 96
[attribute_id] => 5
[name] => Сухой брус
[material_modifier] => 1
[work_modifier] => 1
[options] => Array
(
[0] => 150 мм
[1] => 180 мм
[2] => 200 мм
)
[days] => [7,8,9]
[material_price] => [6010,7190,8709]
[work_price] => [3204,3845,4229]
[image] => https://akademik-stroy.ru/wp-content/uploads/materials/suhoj-brus.jpg
[area_modifier] => 65.73
[parent_name] => Стены 2 этаж (несущие)
[parent_id] => 5
[material_sum] => 521449
[work_sum] => 231659
[total_sum] => 753108
[total_days] => 7
[display_material_sum] => 521 449
[display_work_sum] => 231 659
[display_total_sum] => 753 108
)
1
753 108₽
Работа:231 659 ₽
Материалы:521 449 ₽
Дни:7
stdClass Object
(
[id] => 97
[attribute_id] => 5
[name] => Профилированный брус
[material_modifier] => 1
[work_modifier] => 1
[options] => Array
(
[0] => 150 мм
[1] => 180 мм
[2] => 200 мм
)
[days] => [7,8,9]
[material_price] => [8190,9228,10051]
[work_price] => [3845,4614,5075]
[image] => https://akademik-stroy.ru/wp-content/uploads/materials/profilirovannyj-brus.jpg
[area_modifier] => 65.73
[parent_name] => Стены 2 этаж (несущие)
[parent_id] => 5
[material_sum] => 710594
[work_sum] => 278005
[total_sum] => 988599
[total_days] => 7
[display_material_sum] => 710 594
[display_work_sum] => 278 005
[display_total_sum] => 988 599
)
1
988 599₽
Работа:278 005 ₽
Материалы:710 594 ₽
Дни:7
stdClass Object
(
[id] => 98
[attribute_id] => 5
[name] => Оцилиндрованное бревно
[material_modifier] => 1
[work_modifier] => 1
[options] => Array
(
[0] => 180 мм
[1] => 220 мм
[2] => 260 мм
[3] => 320 мм
)
[days] => [7,8,9,10]
[material_price] => [75190,9532,10868,13116]
[work_price] => [3845,4691,5535,6863]
[image] => https://akademik-stroy.ru/wp-content/uploads/materials/ocilindrovannoe-brevno-1.jpg
[area_modifier] => 65.73
[parent_name] => Стены 2 этаж (несущие)
[parent_id] => 5
[material_sum] => 6523755
[work_sum] => 278005
[total_sum] => 6801760
[total_days] => 7
[display_material_sum] => 6 523 755
[display_work_sum] => 278 005
[display_total_sum] => 6 801 760
)
1
6 801 760₽
Работа:278 005 ₽
Материалы:6 523 755 ₽
Дни:7
stdClass Object
(
[id] => 99
[attribute_id] => 5
[name] => Срубы
[material_modifier] => 1
[work_modifier] => 1
[options] => Array
(
[0] => 260 мм
[1] => 320 мм
[2] => 360 мм
[3] => 400 мм
[4] => 500 мм
)
[days] => [7,8,9,10,11]
[material_price] => [16175,23709,26314,29069,32167]
[work_price] => [4806,5911,6621,7349,9260]
[image] => https://akademik-stroy.ru/wp-content/uploads/materials/suhoj-brus.jpg
[area_modifier] => 65.73
[parent_name] => Стены 2 этаж (несущие)
[parent_id] => 5
[material_sum] => 1403401
[work_sum] => 347488
[total_sum] => 1750889
[total_days] => 7
[display_material_sum] => 1 403 401
[display_work_sum] => 347 488
[display_total_sum] => 1 750 889
)
1
1 750 889₽
Работа:347 488 ₽
Материалы:1 403 401 ₽
Дни:7
stdClass Object
(
[id] => 194
[attribute_id] => 5
[name] => Брус
[material_modifier] => 1
[work_modifier] => 1
[options] => Array
(
[0] => 150 мм
[1] => 180 мм
[2] => 200 мм
)
[days] => [10,13,15]
[material_price] => [5127,6152,7367]
[work_price] => [1602,1922,2115]
[image] => https://akademik-stroy.ru/wp-content/uploads/materials/brus.jpg
[area_modifier] => 65.73
[parent_name] => Стены 2 этаж (несущие)
[parent_id] => 5
[material_sum] => 444837
[work_sum] => 115829
[total_sum] => 560666
[total_days] => 10
[display_material_sum] => 444 837
[display_work_sum] => 115 829
[display_total_sum] => 560 666
)
1
560 666₽
Работа:115 829 ₽
Материалы:444 837 ₽
Дни:10
stdClass Object
(
[id] => 195
[attribute_id] => 5
[name] => Газобетон
[material_modifier] => 1
[work_modifier] => 1
[options] => Array
(
[0] => 300 мм
[1] => 375 мм
[2] => 400 мм
[3] => 500 мм
[4] => 600 мм
)
[days] => [29,31,35,37,44]
[material_price] => [4298,5573,6356,7288,9119]
[work_price] => [4538,5251,5926,6733,7195]
[image] => https://akademik-stroy.ru/wp-content/uploads/materials/gazobeton.jpg
[area_modifier] => 65.73
[parent_name] => Стены 2 этаж (несущие)
[parent_id] => 5
[material_sum] => 372910
[work_sum] => 328111
[total_sum] => 701021
[total_days] => 29
[display_material_sum] => 372 910
[display_work_sum] => 328 111
[display_total_sum] => 701 021
)
1
701 021₽
Работа:328 111 ₽
Материалы:372 910 ₽
Дни:29
stdClass Object
(
[id] => 196
[attribute_id] => 5
[name] => Блок
[material_modifier] => 1
[work_modifier] => 1
[options] => Array
(
[0] => 300 мм
[1] => 375 мм
[2] => 400 мм
[3] => 500 мм
[4] => 600 мм
)
[days] => [29,31,35,37,44]
[material_price] => [2698,3973,4356,6588,7119]
[work_price] => [5038,5851,6426,8733,9195]
[image] => https://akademik-stroy.ru/wp-content/uploads/materials/blok.jpg
[area_modifier] => 65.73
[parent_name] => Стены 2 этаж (несущие)
[parent_id] => 5
[material_sum] => 234088
[work_sum] => 364263
[total_sum] => 598351
[total_days] => 29
[display_material_sum] => 234 088
[display_work_sum] => 364 263
[display_total_sum] => 598 351
)
1
598 351₽
Работа:364 263 ₽
Материалы:234 088 ₽
Дни:29
stdClass Object
(
[id] => 197
[attribute_id] => 5
[name] => Газосиликатный блок
[material_modifier] => 1
[work_modifier] => 1
[options] => Array
(
[0] => 300 мм
[1] => 375 мм
[2] => 400 мм
[3] => 500 мм
[4] => 600 мм
)
[days] => [29,31,35,37,44]
[material_price] => [4298,5573,6356,7288,9119]
[work_price] => [4538,5251,5926,6733,7195]
[image] => https://akademik-stroy.ru/wp-content/uploads/materials/gazosilikatnyj-blok.jpg
[area_modifier] => 65.73
[parent_name] => Стены 2 этаж (несущие)
[parent_id] => 5
[material_sum] => 372910
[work_sum] => 328111
[total_sum] => 701021
[total_days] => 29
[display_material_sum] => 372 910
[display_work_sum] => 328 111
[display_total_sum] => 701 021
)
1
701 021₽
Работа:328 111 ₽
Материалы:372 910 ₽
Дни:29
stdClass Object
(
[id] => 198
[attribute_id] => 5
[name] => Керамзитобетонный блок
[material_modifier] => 1
[work_modifier] => 1
[options] => Array
(
[0] => 300 мм
[1] => 375 мм
[2] => 400 мм
[3] => 500 мм
[4] => 600 мм
)
[days] => [23,23,24,25,28]
[material_price] => [3641,4298,5693,7613,9612]
[work_price] => [5737,5737,6903,7958,8901]
[image] => https://akademik-stroy.ru/wp-content/uploads/materials/keramzitobetonnyj-blok.jpg
[area_modifier] => 65.73
[parent_name] => Стены 2 этаж (несущие)
[parent_id] => 5
[material_sum] => 315906
[work_sum] => 414802
[total_sum] => 730708
[total_days] => 23
[display_material_sum] => 315 906
[display_work_sum] => 414 802
[display_total_sum] => 730 708
)
1
730 708₽
Работа:414 802 ₽
Материалы:315 906 ₽
Дни:23
stdClass Object
(
[id] => 199
[attribute_id] => 5
[name] => Деревянные
[material_modifier] => 1
[work_modifier] => 1
[options] => Array
(
[0] => 180 мм
[1] => 220 мм
[2] => 260 мм
[3] => 320 мм
)
[days] => [7,8,9,10]
[material_price] => [7950,9458,11961,14472]
[work_price] => [4037,4925,5812,7207]
[image] => https://akademik-stroy.ru/wp-content/uploads/materials/derevyannye.jpg
[area_modifier] => 65.73
[parent_name] => Стены 2 этаж (несущие)
[parent_id] => 5
[material_sum] => 689771
[work_sum] => 291887
[total_sum] => 981658
[total_days] => 7
[display_material_sum] => 689 771
[display_work_sum] => 291 887
[display_total_sum] => 981 658
)
1
981 658₽
Работа:291 887 ₽
Материалы:689 771 ₽
Дни:7
stdClass Object
(
[id] => 200
[attribute_id] => 5
[name] => Камень
[material_modifier] => 1
[work_modifier] => 1
[options] => Array
(
[0] => 300 мм
[1] => 400 мм
[2] => 500 мм
[3] => 600 мм
)
[days] => [25,27,31,34]
[material_price] => [5262,6844,8330,9815]
[work_price] => [8331,9135,10427,11069]
[image] => https://akademik-stroy.ru/wp-content/uploads/materials/kamen.jpg
[area_modifier] => 65.73
[parent_name] => Стены 2 этаж (несущие)
[parent_id] => 5
[material_sum] => 456550
[work_sum] => 602356
[total_sum] => 1058906
[total_days] => 25
[display_material_sum] => 456 550
[display_work_sum] => 602 356
[display_total_sum] => 1 058 906
)
1
1 058 906₽
Работа:602 356 ₽
Материалы:456 550 ₽
Дни:25
stdClass Object
(
[id] => 201
[attribute_id] => 5
[name] => Каркасно-щитовые
[material_modifier] => 1
[work_modifier] => 1
[options] => Array
(
[0] => 150 мм
[1] => 200 мм
[2] => 250 мм
[3] => 300 мм
[4] => 350 мм
[5] => 400 мм
)
[days] => [15,16,17,18,19,20]
[material_price] => [2379,2639,2898,3458,3601,4175]
[work_price] => [2538,2820,3134,3483,4062,5642]
[image] => https://akademik-stroy.ru/wp-content/uploads/materials/karkasno-shchitovye.jpg
[area_modifier] => 65.73
[parent_name] => Стены 2 этаж (несущие)
[parent_id] => 5
[material_sum] => 206411
[work_sum] => 183505
[total_sum] => 389916
[total_days] => 15
[display_material_sum] => 206 411
[display_work_sum] => 183 505
[display_total_sum] => 389 916
)
1
389 916₽
Работа:183 505 ₽
Материалы:206 411 ₽
Дни:15
stdClass Object
(
[id] => 202
[attribute_id] => 5
[name] => Рубленные
[material_modifier] => 1
[work_modifier] => 1
[options] => Array
(
[0] => 150 мм
[1] => 200 мм
[2] => 250 мм
[3] => 300 мм
[4] => 350 мм
[5] => 400 мм
)
[days] => [15,16,17,18,17,18]
[material_price] => [35950,50267,60583,75900,80217,100533]
[work_price] => [9612,12816,16020,19224,22428,25632]
[image] => https://akademik-stroy.ru/wp-content/uploads/materials/rublennye.jpg
[area_modifier] => 65.73
[parent_name] => Стены 2 этаж (несущие)
[parent_id] => 5
[material_sum] => 3119151
[work_sum] => 694976
[total_sum] => 3814127
[total_days] => 15
[display_material_sum] => 3 119 151
[display_work_sum] => 694 976
[display_total_sum] => 3 814 127
)
1
3 814 127₽
Работа:694 976 ₽
Материалы:3 119 151 ₽
Дни:15
stdClass Object
(
[id] => 203
[attribute_id] => 5
[name] => Теплоблок
[material_modifier] => 1
[work_modifier] => 1
[options] => Array
(
[0] => 300 мм (с облицовкой, не покрашенный)
[1] => 400 мм (с облицовкой, не покрашенный)
[2] => 300 мм (с облицовкой, покрашенный)
[3] => 400 мм (с облицовкой, покрашенный)
)
[days] => [15,16,15,16]
[material_price] => [2888,3729,3957,4258]
[work_price] => [2564,3229,2949,3713]
[image] => https://akademik-stroy.ru/wp-content/uploads/materials/teploblok.jpg
[area_modifier] => 65.73
[parent_name] => Стены 2 этаж (несущие)
[parent_id] => 5
[material_sum] => 250573
[work_sum] => 185385
[total_sum] => 435958
[total_days] => 15
[display_material_sum] => 250 573
[display_work_sum] => 185 385
[display_total_sum] => 435 958
)
1
435 958₽
Работа:185 385 ₽
Материалы:250 573 ₽
Дни:15
stdClass Object
(
[id] => 204
[attribute_id] => 5
[name] => Арболитовые блоки
[material_modifier] => 1
[work_modifier] => 1
[options] => Array
(
[0] => 300 мм
[1] => 400 мм
[2] => 600 мм
)
[days] => [19,22,27]
[material_price] => [3210,4475,5852]
[work_price] => [4214,4788,5866]
[image] => https://akademik-stroy.ru/wp-content/uploads/materials/arbolitovye-bloki.png
[area_modifier] => 65.73
[parent_name] => Стены 2 этаж (несущие)
[parent_id] => 5
[material_sum] => 278511
[work_sum] => 304685
[total_sum] => 583196
[total_days] => 19
[display_material_sum] => 278 511
[display_work_sum] => 304 685
[display_total_sum] => 583 196
)
1
583 196₽
Работа:304 685 ₽
Материалы:278 511 ₽
Дни:19
stdClass Object
(
[id] => 205
[attribute_id] => 5
[name] => Полистиролбетон
[material_modifier] => 1
[work_modifier] => 1
[options] => Array
(
[0] => 300 мм
[1] => 400 мм
[2] => 600 мм
)
[days] => [29,31,35]
[material_price] => [2798,4573,5256]
[work_price] => [5038,5851,6426]
[image] => https://akademik-stroy.ru/wp-content/uploads/materials/polistirolbeton.jpg
[area_modifier] => 65.73
[parent_name] => Стены 2 этаж (несущие)
[parent_id] => 5
[material_sum] => 242765
[work_sum] => 364263
[total_sum] => 607028
[total_days] => 29
[display_material_sum] => 242 765
[display_work_sum] => 364 263
[display_total_sum] => 607 028
)
1
607 028₽
Работа:364 263 ₽
Материалы:242 765 ₽
Дни:29
stdClass Object
(
[id] => 206
[attribute_id] => 5
[name] => Шлакоблок
[material_modifier] => 1
[work_modifier] => 1
[options] => Array
(
[0] => 400 мм
[1] => 600 мм
)
[days] => [15,16]
[material_price] => [2391,3471]
[work_price] => [2642,3662]
[image] => https://akademik-stroy.ru/wp-content/uploads/materials/shlakoblok.jpg
[area_modifier] => 65.73
[parent_name] => Стены 2 этаж (несущие)
[parent_id] => 5
[material_sum] => 207452
[work_sum] => 191025
[total_sum] => 398477
[total_days] => 15
[display_material_sum] => 207 452
[display_work_sum] => 191 025
[display_total_sum] => 398 477
)
1
398 477₽
Работа:191 025 ₽
Материалы:207 452 ₽
Дни:15
stdClass Object
(
[id] => 245
[attribute_id] => 5
[name] => Теплая керамика
[material_modifier] => 1
[work_modifier] => 1
[options] => Array
(
[0] => 380 мм
[1] => 380 мм Thermo
[2] => 440 мм
[3] => 510 мм
)
[days] => [10,10,11,12]
[material_price] => [4510,5098,6093,8013]
[work_price] => [4737,4937,5903,6958]
[image] => https://akademik-stroy.ru/wp-content/uploads/materials/teplaya-keramika.jpg
[area_modifier] => 65.73
[parent_name] => Стены 2 этаж (несущие)
[parent_id] => 5
[material_sum] => 391304
[work_sum] => 342499
[total_sum] => 733803
[total_days] => 10
[display_material_sum] => 391 304
[display_work_sum] => 342 499
[display_total_sum] => 733 803
)
1
733 803₽
Работа:342 499 ₽
Материалы:391 304 ₽
Дни:10
stdClass Object
(
[id] => 246
[attribute_id] => 5
[name] => Несъемная опалубка
[material_modifier] => 1
[work_modifier] => 1
[options] => Array
(
[0] => 380 мм
[1] => 380 мм Thermo
[2] => 440 мм
[3] => 510 мм
)
[days] => [10,10,11,12]
[material_price] => [3302,3902,4108,5008]
[work_price] => [2100,2100,2300,2534]
[image] => https://akademik-stroy.ru/wp-content/uploads/materials/nesemnaya-opalubka.jpg
[area_modifier] => 65.73
[parent_name] => Стены 2 этаж (несущие)
[parent_id] => 5
[material_sum] => 286493
[work_sum] => 151836
[total_sum] => 438329
[total_days] => 10
[display_material_sum] => 286 493
[display_work_sum] => 151 836
[display_total_sum] => 438 329
)
1
438 329₽
Работа:151 836 ₽
Материалы:286 493 ₽
Дни:10
stdClass Object
(
[id] => 254
[attribute_id] => 5
[name] => Бревно
[material_modifier] => 1
[work_modifier] => 1
[options] => Array
(
[0] => 260 мм
[1] => 320 мм
[2] => 360 мм
[3] => 400 мм
[4] => 500 мм
)
[days] => [7,8,9,10,11]
[material_price] => [1874,24045,26930,30972,38825]
[work_price] => [5046,6207,6952,7716,9723]
[image] => https://akademik-stroy.ru/wp-content/uploads/materials/sruby.jpg
[area_modifier] => 65.73
[parent_name] => Стены 2 этаж (несущие)
[parent_id] => 5
[material_sum] => 162595
[work_sum] => 364841
[total_sum] => 527436
[total_days] => 7
[display_material_sum] => 162 595
[display_work_sum] => 364 841
[display_total_sum] => 527 436
)
1
527 436₽
Работа:364 841 ₽
Материалы:162 595 ₽
Дни:7
stdClass Object
(
[id] => 11
[attribute_id] => 6
[name] => Деревянные балки
[material_modifier] => 1
[work_modifier] => 1
[options] => Array
(
[0] => без утепления
[1] => утепление 200 мм
[2] => утепление 250 мм
[3] => утепление 300 мм
[4] => утепление 350 мм
[5] => утепление 400 мм
[6] => утепление 450 мм
[7] => утепление 500 мм
)
[days] => [8,9,9,9,11,12,13,14]
[material_price] => [1634,2042,2344,2947,3149,3652,3354,3557]
[work_price] => [1230,1339,1393,1426,1460,1513,1587,1620]
[image] => https://akademik-stroy.ru/wp-content/uploads/materials/derevyannye-balki.png
[area_modifier] => 65.73
[parent_name] => Перекрытие второго этажа
[parent_id] => 6
[material_sum] => 141772
[work_sum] => 88933
[total_sum] => 230705
[total_days] => 8
[display_material_sum] => 141 772
[display_work_sum] => 88 933
[display_total_sum] => 230 705
)
1
230 705₽
Работа:88 933 ₽
Материалы:141 772 ₽
Дни:8
stdClass Object
(
[id] => 12
[attribute_id] => 6
[name] => Сборные ж/б плиты
[material_modifier] => 1
[work_modifier] => 1
[options] => Array
(
[0] => без утепления
[1] => утепление 150 мм
[2] => утепление 200 мм
[3] => утепление 250 мм
[4] => утепление 300 мм
[5] => утепление 350 мм
[6] => утепление 400 мм
[7] => утепление 450 мм
[8] => утепление 500 мм
)
[days] => [13,15,15,15,15,15,15,15,15]
[material_price] => [3067,5577,5928,6679,7730,8782,9833,10884,11935]
[work_price] => [1520,1956,2102,2247,2392,2537,2684,2829,2974]
[image] => https://akademik-stroy.ru/wp-content/uploads/materials/sbornye-zh-b-plity-2.jpg
[area_modifier] => 65.73
[parent_name] => Перекрытие второго этажа
[parent_id] => 6
[material_sum] => 266104
[work_sum] => 109901
[total_sum] => 376005
[total_days] => 13
[display_material_sum] => 266 104
[display_work_sum] => 109 901
[display_total_sum] => 376 005
)
1
376 005₽
Работа:109 901 ₽
Материалы:266 104 ₽
Дни:13
stdClass Object
(
[id] => 100
[attribute_id] => 6
[name] => Монолитная ж/б плита
[material_modifier] => 1
[work_modifier] => 1
[options] => Array
(
[0] => без утепления
[1] => утепление 150 мм
[2] => утепление 200 мм
[3] => утепление 250 мм
[4] => утепление 300 мм
[5] => утепление 350 мм
[6] => утепление 400 мм
[7] => утепление 450 мм
[8] => утепление 500 мм
)
[days] => [18,20,20,20,20,20,20,20,20]
[material_price] => [4837,6572,7224,7375,79426,8177,8728,9180,10031]
[work_price] => [3348,3921,4112,4302,4493,4684,4875,5066,5256]
[image] => https://akademik-stroy.ru/wp-content/uploads/materials/monolitnaya-zh-b-plita-2.jpg
[area_modifier] => 65.73
[parent_name] => Перекрытие второго этажа
[parent_id] => 6
[material_sum] => 419676
[work_sum] => 242070
[total_sum] => 661746
[total_days] => 18
[display_material_sum] => 419 676
[display_work_sum] => 242 070
[display_total_sum] => 661 746
)
1
661 746₽
Работа:242 070 ₽
Материалы:419 676 ₽
Дни:18
stdClass Object
(
[id] => 164
[attribute_id] => 37
[name] => Металлочерепица
[material_modifier] => 1
[work_modifier] => 1
[options] => Array
(
)
[days] => [20]
[material_price] => [6112]
[work_price] => [5726]
[image] => https://akademik-stroy.ru/wp-content/uploads/materials/metallocherepica.jpg
[area_modifier] => 90.99
[parent_name] => Крыша (Скатная)
[parent_id] => 37
[material_sum] => 734093
[work_sum] => 573110
[total_sum] => 1307203
[total_days] => 20
[display_material_sum] => 734 093
[display_work_sum] => 573 110
[display_total_sum] => 1 307 203
)
1
1 307 203₽
Работа:573 110 ₽
Материалы:734 093 ₽
Дни:20
stdClass Object
(
[id] => 165
[attribute_id] => 37
[name] => Гибкая черепица
[material_modifier] => 1
[work_modifier] => 1
[options] => Array
(
)
[days] => [20]
[material_price] => [6980]
[work_price] => [5950]
[image] => https://akademik-stroy.ru/wp-content/uploads/materials/gibkaya-cherepica.jpg
[area_modifier] => 90.99
[parent_name] => Крыша (Скатная)
[parent_id] => 37
[material_sum] => 838345
[work_sum] => 595530
[total_sum] => 1433875
[total_days] => 20
[display_material_sum] => 838 345
[display_work_sum] => 595 530
[display_total_sum] => 1 433 875
)
1
1 433 875₽
Работа:595 530 ₽
Материалы:838 345 ₽
Дни:20
stdClass Object
(
[id] => 166
[attribute_id] => 37
[name] => Цементно-песчаная черепица
[material_modifier] => 1
[work_modifier] => 1
[options] => Array
(
)
[days] => [20]
[material_price] => [10560]
[work_price] => [9456]
[image] => https://akademik-stroy.ru/wp-content/uploads/materials/cementno-peschanaya-cherepica.jpg
[area_modifier] => 90.99
[parent_name] => Крыша (Скатная)
[parent_id] => 37
[material_sum] => 1268328
[work_sum] => 946442
[total_sum] => 2214770
[total_days] => 20
[display_material_sum] => 1 268 328
[display_work_sum] => 946 442
[display_total_sum] => 2 214 770
)
1
2 214 770₽
Работа:946 442 ₽
Материалы:1 268 328 ₽
Дни:20
stdClass Object
(
[id] => 167
[attribute_id] => 37
[name] => Композитная черепица
[material_modifier] => 1
[work_modifier] => 1
[options] => Array
(
)
[days] => [20]
[material_price] => [9506]
[work_price] => [8905]
[image] => https://akademik-stroy.ru/wp-content/uploads/materials/kompozitnaya-cherepica.jpg
[area_modifier] => 90.99
[parent_name] => Крыша (Скатная)
[parent_id] => 37
[material_sum] => 1141735
[work_sum] => 891293
[total_sum] => 2033028
[total_days] => 20
[display_material_sum] => 1 141 735
[display_work_sum] => 891 293
[display_total_sum] => 2 033 028
)
1
2 033 028₽
Работа:891 293 ₽
Материалы:1 141 735 ₽
Дни:20
stdClass Object
(
[id] => 168
[attribute_id] => 37
[name] => Керамическая черепица
[material_modifier] => 1
[work_modifier] => 1
[options] => Array
(
)
[days] => [20]
[material_price] => [12750]
[work_price] => [9456]
[image] => https://akademik-stroy.ru/wp-content/uploads/materials/keramicheskaya-cherepica.jpg
[area_modifier] => 90.99
[parent_name] => Крыша (Скатная)
[parent_id] => 37
[material_sum] => 1531362
[work_sum] => 946442
[total_sum] => 2477804
[total_days] => 20
[display_material_sum] => 1 531 362
[display_work_sum] => 946 442
[display_total_sum] => 2 477 804
)
1
2 477 804₽
Работа:946 442 ₽
Материалы:1 531 362 ₽
Дни:20
stdClass Object
(
[id] => 169
[attribute_id] => 37
[name] => Металлическая фальцевая
[material_modifier] => 1
[work_modifier] => 1
[options] => Array
(
)
[days] => [20]
[material_price] => [8550]
[work_price] => [8190]
[image] => https://akademik-stroy.ru/wp-content/uploads/materials/metallicheskaya-falcevaya.jpg
[area_modifier] => 90.99
[parent_name] => Крыша (Скатная)
[parent_id] => 37
[material_sum] => 1026913
[work_sum] => 819729
[total_sum] => 1846642
[total_days] => 20
[display_material_sum] => 1 026 913
[display_work_sum] => 819 729
[display_total_sum] => 1 846 642
)
1
1 846 642₽
Работа:819 729 ₽
Материалы:1 026 913 ₽
Дни:20
stdClass Object
(
[id] => 170
[attribute_id] => 37
[name] => Медная фальцевая
[material_modifier] => 1
[work_modifier] => 1
[options] => Array
(
)
[days] => [20]
[material_price] => [20450]
[work_price] => [16750]
[image] => https://akademik-stroy.ru/wp-content/uploads/materials/mednaya-falcevaya.jpg
[area_modifier] => 90.99
[parent_name] => Крыша (Скатная)
[parent_id] => 37
[material_sum] => 2456184
[work_sum] => 1676491
[total_sum] => 4132675
[total_days] => 20
[display_material_sum] => 2 456 184
[display_work_sum] => 1 676 491
[display_total_sum] => 4 132 675
)
1
4 132 675₽
Работа:1 676 491 ₽
Материалы:2 456 184 ₽
Дни:20
stdClass Object
(
[id] => 171
[attribute_id] => 37
[name] => Зеленая кровля
[material_modifier] => 1
[work_modifier] => 1
[options] => Array
(
)
[days] => [20]
[material_price] => [19850]
[work_price] => [16780]
[image] => https://akademik-stroy.ru/wp-content/uploads/materials/zelenaya-krovlya.jpg
[area_modifier] => 90.99
[parent_name] => Крыша (Скатная)
[parent_id] => 37
[material_sum] => 2384120
[work_sum] => 1679493
[total_sum] => 4063613
[total_days] => 20
[display_material_sum] => 2 384 120
[display_work_sum] => 1 679 493
[display_total_sum] => 4 063 613
)
1
4 063 613₽
Работа:1 679 493 ₽
Материалы:2 384 120 ₽
Дни:20
stdClass Object
(
[id] => 172
[attribute_id] => 37
[name] => Профлист
[material_modifier] => 1
[work_modifier] => 1
[options] => Array
(
)
[days] => [20]
[material_price] => [3450]
[work_price] => [3750]
[image] => https://akademik-stroy.ru/wp-content/uploads/materials/proflist.jpg
[area_modifier] => 90.99
[parent_name] => Крыша (Скатная)
[parent_id] => 37
[material_sum] => 414368
[work_sum] => 375334
[total_sum] => 789702
[total_days] => 20
[display_material_sum] => 414 368
[display_work_sum] => 375 334
[display_total_sum] => 789 702
)
1
789 702₽
Работа:375 334 ₽
Материалы:414 368 ₽
Дни:20
stdClass Object
(
[id] => 51
[attribute_id] => 26
[name] => Есть
[material_modifier] => 1
[work_modifier] => 1
[options] => Array
(
[0] => Профиль 58 мм, 3-камерный, стеклопакет 2-камерный до 32 мм
[1] => Профиль 60 мм, 4-камерный, стеклопакет 2-камерный до 32 мм
[2] => Профиль 70 мм, 5-камерный, стеклопакет 2-камерный до 40 мм
[3] => Профиль 72 мм, 5-камерный, стеклопакет 2-камерный до 40 мм
[4] => Алюминиевые окна Alutech профиль 72 мм, стеклопакет 2-камерный
)
[days] => [3,3,3,3,3]
[material_price] => [1339,2124,2867,3023,29596]
[work_price] => [635,647,659,668,2579]
[image] => https://akademik-stroy.ru/wp-content/uploads/materials/okna.jpg
[area_modifier] => 127.18
[parent_name] => Окна
[parent_id] => 26
[material_sum] => 224788
[work_sum] => 88835
[total_sum] => 313623
[total_days] => 3
[display_material_sum] => 224 788
[display_work_sum] => 88 835
[display_total_sum] => 313 623
)
1
313 623₽
Работа:88 835 ₽
Материалы:224 788 ₽
Дни:3
stdClass Object
(
[id] => 52
[attribute_id] => 26
[name] => Нет
[material_modifier] => 2
[work_modifier] => 1
[options] =>
[days] => null
[material_price] => null
[work_price] => null
[image] => https://akademik-stroy.ru/wp-content/uploads/materials/okna.jpg
[area_modifier] => 127.18
[parent_name] => Окна
[parent_id] => 26
[material_sum] => 0
[work_sum] => 0
[total_sum] => 0
[total_days] => 0
[display_material_sum] => 0
[display_work_sum] => 0
[display_total_sum] => 0
)
1
0₽
Работа:0 ₽
Материалы:0 ₽
Дни:0
stdClass Object
(
[id] => 53
[attribute_id] => 27
[name] => Есть
[material_modifier] => 1
[work_modifier] => 1
[options] => Array
(
)
[days] => [1]
[material_price] => [10000]
[work_price] => [5500]
[image] => https://akademik-stroy.ru/wp-content/uploads/materials/dveri.jpg
[area_modifier] => 1
[parent_name] => Двери входные
[parent_id] => 27
[material_sum] => 13200
[work_sum] => 6050
[total_sum] => 19250
[total_days] => 1
[display_material_sum] => 13 200
[display_work_sum] => 6 050
[display_total_sum] => 19 250
)
1
19 250₽
Работа:6 050 ₽
Материалы:13 200 ₽
Дни:1
stdClass Object
(
[id] => 54
[attribute_id] => 27
[name] => Нет
[material_modifier] => 1
[work_modifier] => 1
[options] => Array
(
)
[days] => [0]
[material_price] => [0]
[work_price] => [0]
[image] => https://akademik-stroy.ru/wp-content/uploads/materials/dveri.jpg
[area_modifier] => 1
[parent_name] => Двери входные
[parent_id] => 27
[material_sum] => 0
[work_sum] => 0
[total_sum] => 0
[total_days] => 0
[display_material_sum] => 0
[display_work_sum] => 0
[display_total_sum] => 0
)
1
0₽
Работа:0 ₽
Материалы:0 ₽
Дни:0
stdClass Object
(
[id] => 25
[attribute_id] => 13
[name] => Нет
[material_modifier] => 1
[work_modifier] => 1
[options] => Array
(
)
[days] => [0]
[material_price] => [0]
[work_price] => [0]
[image] => https://akademik-stroy.ru/wp-content/uploads/materials/mineralovata-krov.jpg
[area_modifier] => 90.99
[parent_name] => Утепление кровли (Мансарда)
[parent_id] => 13
[material_sum] => 0
[work_sum] => 0
[total_sum] => 0
[total_days] => 0
[display_material_sum] => 0
[display_work_sum] => 0
[display_total_sum] => 0
)
1
0₽
Работа:0 ₽
Материалы:0 ₽
Дни:0
stdClass Object
(
[id] => 26
[attribute_id] => 13
[name] => Минераловатный
[material_modifier] => 1
[work_modifier] => 1
[options] => Array
(
[0] => 50 мм
[1] => 100 мм
[2] => 150 мм
[3] => 200 мм
[4] => 250 мм
[5] => 300 мм
[6] => 350 мм
[7] => 400 мм
[8] => 450 мм
[9] => 500 мм
)
[days] => [5,5,6,6,6,7,7,7,8,8]
[material_price] => [1158,1414,1772,2230,3602,4060,4974,5890,6408,7718]
[work_price] => [650,846,846,1098,1318,1450,1596,1754,1930,2122]
[image] => https://akademik-stroy.ru/wp-content/uploads/materials/mineralovata-krov.jpg
[area_modifier] => 90.99
[parent_name] => Утепление кровли (Мансарда)
[parent_id] => 13
[material_sum] => 139084
[work_sum] => 65058
[total_sum] => 204142
[total_days] => 5
[display_material_sum] => 139 084
[display_work_sum] => 65 058
[display_total_sum] => 204 142
)
1
204 142₽
Работа:65 058 ₽
Материалы:139 084 ₽
Дни:5
stdClass Object
(
[id] => 123
[attribute_id] => 13
[name] => Эковата (целлюлозная вата)
[material_modifier] => 1
[work_modifier] => 1
[options] => Array
(
[0] => 50 мм
[1] => 100 мм
[2] => 150 мм
[3] => 200 мм
[4] => 250 мм
[5] => 300 мм
[6] => 350 мм
[7] => 400 мм
[8] => 450 мм
[9] => 500 мм
)
[days] => [3,3,4,4,4,5,5,5,5,5]
[material_price] => [820,1638,2458,3276,5734,6552,8190,9828,11466,13104]
[work_price] => [234,304,304,396,474,522,574,632,694,764]
[image] => https://akademik-stroy.ru/wp-content/uploads/materials/ehkovata-krov.jpg
[area_modifier] => 90.99
[parent_name] => Утепление кровли (Мансарда)
[parent_id] => 13
[material_sum] => 98488
[work_sum] => 23421
[total_sum] => 121909
[total_days] => 3
[display_material_sum] => 98 488
[display_work_sum] => 23 421
[display_total_sum] => 121 909
)
1
121 909₽
Работа:23 421 ₽
Материалы:98 488 ₽
Дни:3
stdClass Object
(
[id] => 124
[attribute_id] => 13
[name] => Экструдированный пенополистирол
[material_modifier] => 1
[work_modifier] => 1
[options] => Array
(
[0] => 50 мм
[1] => 100 мм
[2] => 150 мм
[3] => 200 мм
[4] => 250 мм
[5] => 300 мм
[6] => 350 мм
[7] => 400 мм
[8] => 450 мм
[9] => 500 мм
)
[days] => [3,3,4,4,4,5,5,5,5,6]
[material_price] => [1146,2292,3438,4584,8020,9166,11458,13750,16040,18332]
[work_price] => [390,508,508,660,790,870,958,1052,1158,1274]
[image] => https://akademik-stroy.ru/wp-content/uploads/materials/epps-krov.jpg
[area_modifier] => 90.99
[parent_name] => Утепление кровли (Мансарда)
[parent_id] => 13
[material_sum] => 137642
[work_sum] => 39035
[total_sum] => 176677
[total_days] => 3
[display_material_sum] => 137 642
[display_work_sum] => 39 035
[display_total_sum] => 176 677
)
1
176 677₽
Работа:39 035 ₽
Материалы:137 642 ₽
Дни:3
stdClass Object
(
[id] => 125
[attribute_id] => 13
[name] => ПСБ (ППС-пенополистирол)
[material_modifier] => 1
[work_modifier] => 1
[options] => Array
(
[0] => 50 мм
[1] => 100 мм
[2] => 150 мм
[3] => 200 мм
[4] => 250 мм
[5] => 300 мм
[6] => 350 мм
[7] => 400 мм
[8] => 450 мм
[9] => 500 мм
)
[days] => [3,3,4,4,4,5,5,5,5,6]
[material_price] => [476,954,1430,1906,3336,3814,4766,5720,6674,7626]
[work_price] => [390,508,508,660,790,870,958,1052,1158,1274]
[image] => https://akademik-stroy.ru/wp-content/uploads/materials/psb-krov.jpg
[area_modifier] => 90.99
[parent_name] => Утепление кровли (Мансарда)
[parent_id] => 13
[material_sum] => 57171
[work_sum] => 39035
[total_sum] => 96206
[total_days] => 3
[display_material_sum] => 57 171
[display_work_sum] => 39 035
[display_total_sum] => 96 206
)
1
96 206₽
Работа:39 035 ₽
Материалы:57 171 ₽
Дни:3
stdClass Object
(
[id] => 126
[attribute_id] => 13
[name] => ППУ (Пенополиуретан)
[material_modifier] => 1
[work_modifier] => 1
[options] => Array
(
[0] => 50 мм
[1] => 100 мм
[2] => 150 мм
[3] => 200 мм
[4] => 250 мм
[5] => 300 мм
[6] => 350 мм
[7] => 400 мм
[8] => 450 мм
[9] => 500 мм
)
[days] => [2,2,3,3,3,3,4,4,4,4]
[material_price] => [2080,4160,6240,8320,14560,16640,20800,24960,29120,33280]
[work_price] => [234,304,304,396,474,522,574,632,694,764]
[image] => https://akademik-stroy.ru/wp-content/uploads/materials/ppu-krov.jpg
[area_modifier] => 90.99
[parent_name] => Утепление кровли (Мансарда)
[parent_id] => 13
[material_sum] => 249822
[work_sum] => 23421
[total_sum] => 273243
[total_days] => 2
[display_material_sum] => 249 822
[display_work_sum] => 23 421
[display_total_sum] => 273 243
)
1
273 243₽
Работа:23 421 ₽
Материалы:249 822 ₽
Дни:2
stdClass Object
(
[id] => 127
[attribute_id] => 13
[name] => PIR-плиты (пенополиизоцианурат)
[material_modifier] => 1
[work_modifier] => 1
[options] => Array
(
[0] => 50 мм
[1] => 100 мм
[2] => 150 мм
[3] => 200 мм
[4] => 250 мм
[5] => 300 мм
[6] => 350 мм
[7] => 400 мм
[8] => 450 мм
[9] => 500 мм
)
[days] => [3,3,4,4,4,5,5,5,5,6]
[material_price] => [2646,5290,7936,10580,18516,21162,26452,31742,37032,42324]
[work_price] => [390,508,508,660,790,870,958,1052,1158,1274]
[image] => https://akademik-stroy.ru/wp-content/uploads/materials/pir-krov.jpg
[area_modifier] => 90.99
[parent_name] => Утепление кровли (Мансарда)
[parent_id] => 13
[material_sum] => 317803
[work_sum] => 39035
[total_sum] => 356838
[total_days] => 3
[display_material_sum] => 317 803
[display_work_sum] => 39 035
[display_total_sum] => 356 838
)
1
356 838₽
Работа:39 035 ₽
Материалы:317 803 ₽
Дни:3
stdClass Object
(
[id] => 27
[attribute_id] => 14
[name] => Нет
[material_modifier] => 1
[work_modifier] => 1
[options] => Array
(
)
[days] => [0]
[material_price] => [0]
[work_price] => [0]
[image] => https://akademik-stroy.ru/wp-content/uploads/materials/mansardnye-okna-2.jpg
[area_modifier] => 1
[parent_name] => Мансардные окна
[parent_id] => 14
[material_sum] => 0
[work_sum] => 0
[total_sum] => 0
[total_days] => 0
[display_material_sum] => 0
[display_work_sum] => 0
[display_total_sum] => 0
)
1
0₽
Работа:0 ₽
Материалы:0 ₽
Дни:0
stdClass Object
(
[id] => 28
[attribute_id] => 14
[name] => Есть
[material_modifier] => 1
[work_modifier] => 1
[options] => Array
(
[0] => 55x78
[1] => 55x98
)
[days] => [6,7]
[material_price] => [47480,68700]
[work_price] => [17900,19500]
[image] => https://akademik-stroy.ru/wp-content/uploads/materials/mansardnye-okna-2.jpg
[area_modifier] => 1
[parent_name] => Мансардные окна
[parent_id] => 14
[material_sum] => 62674
[work_sum] => 19690
[total_sum] => 82364
[total_days] => 6
[display_material_sum] => 62 674
[display_work_sum] => 19 690
[display_total_sum] => 82 364
)
1
82 364₽
Работа:19 690 ₽
Материалы:62 674 ₽
Дни:6
stdClass Object
(
[id] => 29
[attribute_id] => 15
[name] => Нет
[material_modifier] => 1
[work_modifier] => 1
[options] => Array
(
)
[days] => [0]
[material_price] => [0]
[work_price] => [0]
[image] => https://akademik-stroy.ru/wp-content/uploads/materials/sofit.jpg
[area_modifier] => 90.99
[parent_name] => Подшивка кровли
[parent_id] => 15
[material_sum] => 0
[work_sum] => 0
[total_sum] => 0
[total_days] => 0
[display_material_sum] => 0
[display_work_sum] => 0
[display_total_sum] => 0
)
1
0₽
Работа:0 ₽
Материалы:0 ₽
Дни:0
stdClass Object
(
[id] => 30
[attribute_id] => 15
[name] => Есть
[material_modifier] => 1
[work_modifier] => 1
[options] => Array
(
[0] => Софиты (ПВХ)
[1] => Cedral
[2] => ДПК
[3] => Планкен
)
[days] => [7,10,9,8]
[material_price] => [1803,3213,3025,3150]
[work_price] => [1529,2188,2075,1923]
[image] => https://akademik-stroy.ru/wp-content/uploads/materials/sofit.jpg
[area_modifier] => 90.99
[parent_name] => Подшивка кровли
[parent_id] => 15
[material_sum] => 216553
[work_sum] => 153036
[total_sum] => 369589
[total_days] => 7
[display_material_sum] => 216 553
[display_work_sum] => 153 036
[display_total_sum] => 369 589
)
1
369 589₽
Работа:153 036 ₽
Материалы:216 553 ₽
Дни:7
stdClass Object
(
[id] => 31
[attribute_id] => 16
[name] => Нет
[material_modifier] => 1
[work_modifier] => 1
[options] => Array
(
)
[days] => [0]
[material_price] => [0]
[work_price] => [0]
[image] => https://akademik-stroy.ru/wp-content/uploads/materials/docke-standard-pvh.jpg
[area_modifier] => 90.99
[parent_name] => Водосточная система
[parent_id] => 16
[material_sum] => 0
[work_sum] => 0
[total_sum] => 0
[total_days] => 0
[display_material_sum] => 0
[display_work_sum] => 0
[display_total_sum] => 0
)
1
0₽
Работа:0 ₽
Материалы:0 ₽
Дни:0
stdClass Object
(
[id] => 32
[attribute_id] => 16
[name] => Есть
[material_modifier] => 1
[work_modifier] => 1
[options] => Array
(
[0] => Döcke Standard (ПВХ)
[1] => Металлические Grand Line
)
[days] => [7,7]
[material_price] => [1842,2703]
[work_price] => [1491,1529]
[image] => https://akademik-stroy.ru/wp-content/uploads/materials/docke-standard-pvh.jpg
[area_modifier] => 90.99
[parent_name] => Водосточная система
[parent_id] => 16
[material_sum] => 221237
[work_sum] => 149233
[total_sum] => 370470
[total_days] => 7
[display_material_sum] => 221 237
[display_work_sum] => 149 233
[display_total_sum] => 370 470
)
1
370 470₽
Работа:149 233 ₽
Материалы:221 237 ₽
Дни:7
stdClass Object
(
[id] => 33
[attribute_id] => 17
[name] => Нет
[material_modifier] => 1
[work_modifier] => 1
[options] => Array
(
)
[days] => [0]
[material_price] => [0]
[work_price] => [0]
[image] => https://akademik-stroy.ru/wp-content/uploads/materials/mineralovata.jpg
[area_modifier] => 156.72
[parent_name] => Дополнительное утепление наружных стен
[parent_id] => 17
[material_sum] => 0
[work_sum] => 0
[total_sum] => 0
[total_days] => 0
[display_material_sum] => 0
[display_work_sum] => 0
[display_total_sum] => 0
)
1
0₽
Работа:0 ₽
Материалы:0 ₽
Дни:0
stdClass Object
(
[id] => 34
[attribute_id] => 17
[name] => Минераловатный
[material_modifier] => 1
[work_modifier] => 1
[options] => Array
(
[0] => 50 мм
[1] => 100 мм
[2] => 150 мм
[3] => 200 мм
[4] => 250 мм
[5] => 300 мм
)
[days] => [7,8,10,12,14,15]
[material_price] => [3437,3613,3803,3915,4601,4830]
[work_price] => [2325,2423,2523,2749,2859,3025]
[image] => https://akademik-stroy.ru/wp-content/uploads/materials/mineralovata.jpg
[area_modifier] => 156.72
[parent_name] => Дополнительное утепление наружных стен
[parent_id] => 17
[material_sum] => 711014
[work_sum] => 400811
[total_sum] => 1111825
[total_days] => 7
[display_material_sum] => 711 014
[display_work_sum] => 400 811
[display_total_sum] => 1 111 825
)
1
1 111 825₽
Работа:400 811 ₽
Материалы:711 014 ₽
Дни:7
stdClass Object
(
[id] => 128
[attribute_id] => 17
[name] => Эковата (целлюлозная вата)
[material_modifier] => 1
[work_modifier] => 1
[options] => Array
(
[0] => 50 мм
[1] => 100 мм
[2] => 150 мм
[3] => 200 мм
[4] => 250 мм
[5] => 300 мм
)
[days] => [3,4,5,6,7,8]
[material_price] => [810,1319,1629,1838,2267,2676]
[work_price] => [1225,1323,1423,1549,1659,1725]
[image] => https://akademik-stroy.ru/wp-content/uploads/materials/ehkovata.jpg
[area_modifier] => 156.72
[parent_name] => Дополнительное утепление наружных стен
[parent_id] => 17
[material_sum] => 167565
[work_sum] => 211180
[total_sum] => 378745
[total_days] => 3
[display_material_sum] => 167 565
[display_work_sum] => 211 180
[display_total_sum] => 378 745
)
1
378 745₽
Работа:211 180 ₽
Материалы:167 565 ₽
Дни:3
stdClass Object
(
[id] => 129
[attribute_id] => 17
[name] => Экструдированный пенополистирол
[material_modifier] => 1
[work_modifier] => 1
[options] => Array
(
[0] => 50 мм
[1] => 100 мм
[2] => 150 мм
[3] => 200 мм
[4] => 250 мм
[5] => 300 мм
)
[days] => [5,6,7,8,9,10]
[material_price] => [4560,4300,5119,6292,7010,8583]
[work_price] => [1795,1954,2254,2330,2595,2735]
[image] => https://akademik-stroy.ru/wp-content/uploads/materials/epps.jpg
[area_modifier] => 156.72
[parent_name] => Дополнительное утепление наружных стен
[parent_id] => 17
[material_sum] => 943329
[work_sum] => 309444
[total_sum] => 1252773
[total_days] => 5
[display_material_sum] => 943 329
[display_work_sum] => 309 444
[display_total_sum] => 1 252 773
)
1
1 252 773₽
Работа:309 444 ₽
Материалы:943 329 ₽
Дни:5
stdClass Object
(
[id] => 130
[attribute_id] => 17
[name] => ПСБ (ППС-пенополистирол)
[material_modifier] => 1
[work_modifier] => 1
[options] => Array
(
[0] => 50 мм
[1] => 100 мм
[2] => 150 мм
[3] => 200 мм
[4] => 250 мм
[5] => 300 мм
)
[days] => [5,6,7,8,9,10]
[material_price] => [4822,5200,5819,6292,7010,7583]
[work_price] => [1795,1954,2254,2330,2595,2735]
[image] => https://akademik-stroy.ru/wp-content/uploads/materials/psb.jpg
[area_modifier] => 156.72
[parent_name] => Дополнительное утепление наружных стен
[parent_id] => 17
[material_sum] => 997529
[work_sum] => 309444
[total_sum] => 1306973
[total_days] => 5
[display_material_sum] => 997 529
[display_work_sum] => 309 444
[display_total_sum] => 1 306 973
)
1
1 306 973₽
Работа:309 444 ₽
Материалы:997 529 ₽
Дни:5
stdClass Object
(
[id] => 131
[attribute_id] => 17
[name] => ППУ (Пенополиуретан)
[material_modifier] => 1
[work_modifier] => 1
[options] => Array
(
[0] => 50 мм
[1] => 100 мм
[2] => 150 мм
[3] => 200 мм
[4] => 250 мм
[5] => 300 мм
)
[days] => [3,4,5,6,7,8]
[material_price] => [2860,3400,4219,4592,5010,5583]
[work_price] => [729,900,980,1120,1280,1530]
[image] => https://akademik-stroy.ru/wp-content/uploads/materials/ppu.jpg
[area_modifier] => 156.72
[parent_name] => Дополнительное утепление наружных стен
[parent_id] => 17
[material_sum] => 591649
[work_sum] => 125674
[total_sum] => 717323
[total_days] => 3
[display_material_sum] => 591 649
[display_work_sum] => 125 674
[display_total_sum] => 717 323
)
1
717 323₽
Работа:125 674 ₽
Материалы:591 649 ₽
Дни:3
stdClass Object
(
[id] => 132
[attribute_id] => 17
[name] => PIR-плиты (пенополиизоцианурат)
[material_modifier] => 1
[work_modifier] => 1
[options] => Array
(
[0] => 50 мм
[1] => 100 мм
[2] => 150 мм
[3] => 200 мм
[4] => 250 мм
[5] => 300 мм
)
[days] => [5,6,7,8,9,10]
[material_price] => [8323,15645,20968,25900,29258,30581]
[work_price] => [800,900,970,1150,1280,1330]
[image] => https://akademik-stroy.ru/wp-content/uploads/materials/pir.jpg
[area_modifier] => 156.72
[parent_name] => Дополнительное утепление наружных стен
[parent_id] => 17
[material_sum] => 1721782
[work_sum] => 137914
[total_sum] => 1859696
[total_days] => 5
[display_material_sum] => 1 721 782
[display_work_sum] => 137 914
[display_total_sum] => 1 859 696
)
1
1 859 696₽
Работа:137 914 ₽
Материалы:1 721 782 ₽
Дни:5
stdClass Object
(
[id] => 37
[attribute_id] => 19
[name] => Нет
[material_modifier] => 1
[work_modifier] => 1
[options] => Array
(
)
[days] => [0]
[material_price] => [0]
[work_price] => [0]
[image] => https://akademik-stroy.ru/wp-content/uploads/materials/imitaciya-brusa.jpg
[area_modifier] => 156.72
[parent_name] => Наружная отделка фасада
[parent_id] => 19
[material_sum] => 0
[work_sum] => 0
[total_sum] => 0
[total_days] => 0
[display_material_sum] => 0
[display_work_sum] => 0
[display_total_sum] => 0
)
1
0₽
Работа:0 ₽
Материалы:0 ₽
Дни:0
stdClass Object
(
[id] => 38
[attribute_id] => 19
[name] => Имитация бруса
[material_modifier] => 1
[work_modifier] => 1
[options] => Array
(
[0] => Сосна
[1] => Ель
[2] => Лиственница
)
[days] => [20,20,20]
[material_price] => [2994,2762,4954]
[work_price] => [1397,1231,1577]
[image] => https://akademik-stroy.ru/wp-content/uploads/materials/imitaciya-brusa.jpg
[area_modifier] => 156.72
[parent_name] => Наружная отделка фасада
[parent_id] => 19
[material_sum] => 619370
[work_sum] => 240832
[total_sum] => 860202
[total_days] => 20
[display_material_sum] => 619 370
[display_work_sum] => 240 832
[display_total_sum] => 860 202
)
1
860 202₽
Работа:240 832 ₽
Материалы:619 370 ₽
Дни:20
stdClass Object
(
[id] => 136
[attribute_id] => 19
[name] => Планкен
[material_modifier] => 1
[work_modifier] => 1
[options] => Array
(
[0] => Сосна
[1] => Ель
[2] => Лиственница
)
[days] => [20,20,20]
[material_price] => [3194,2862,5154]
[work_price] => [1537,1354,1735]
[image] => https://akademik-stroy.ru/wp-content/uploads/materials/planken.jpg
[area_modifier] => 156.72
[parent_name] => Наружная отделка фасада
[parent_id] => 19
[material_sum] => 660744
[work_sum] => 264967
[total_sum] => 925711
[total_days] => 20
[display_material_sum] => 660 744
[display_work_sum] => 264 967
[display_total_sum] => 925 711
)
1
925 711₽
Работа:264 967 ₽
Материалы:660 744 ₽
Дни:20
stdClass Object
(
[id] => 137
[attribute_id] => 19
[name] => Штукатурка
[material_modifier] => 1
[work_modifier] => 1
[options] => Array
(
[0] => Цементно-песчаная (минеральная)
[1] => Мокрый фасад
)
[days] => [35,35]
[material_price] => [2231,3938]
[work_price] => [1202,2422]
[image] => https://akademik-stroy.ru/wp-content/uploads/materials/shtukaturka.jpg
[area_modifier] => 156.72
[parent_name] => Наружная отделка фасада
[parent_id] => 19
[material_sum] => 461528
[work_sum] => 207215
[total_sum] => 668743
[total_days] => 35
[display_material_sum] => 461 528
[display_work_sum] => 207 215
[display_total_sum] => 668 743
)
1
668 743₽
Работа:207 215 ₽
Материалы:461 528 ₽
Дни:35
stdClass Object
(
[id] => 138
[attribute_id] => 19
[name] => Облицовочный кирпич
[material_modifier] => 1
[work_modifier] => 1
[options] => Array
(
[0] => Керамический
[1] => Клинкерный
[2] => Ручной формовки
[3] => Гиперпрессованный
[4] => Силикатный кирпич
)
[days] => [45,45,45,45,45]
[material_price] => [8174,9148,1040,1257,5876]
[work_price] => [3240,3758,4536,4017,3369]
[image] => https://akademik-stroy.ru/wp-content/uploads/materials/oblicovochnyj-kirpich.jpg
[area_modifier] => 156.72
[parent_name] => Наружная отделка фасада
[parent_id] => 19
[material_sum] => 1690959
[work_sum] => 558550
[total_sum] => 2249509
[total_days] => 45
[display_material_sum] => 1 690 959
[display_work_sum] => 558 550
[display_total_sum] => 2 249 509
)
1
2 249 509₽
Работа:558 550 ₽
Материалы:1 690 959 ₽
Дни:45
stdClass Object
(
[id] => 139
[attribute_id] => 19
[name] => Фасадная плитка
[material_modifier] => 1
[work_modifier] => 1
[options] => Array
(
[0] => Клинкерная
[1] => Керамическая
[2] => Плитка ручной формовки
)
[days] => [40,40,40]
[material_price] => [2974,1487,3470]
[work_price] => [3007,2592,3629]
[image] => https://akademik-stroy.ru/wp-content/uploads/materials/fasadnaya-plitka.jpg
[area_modifier] => 156.72
[parent_name] => Наружная отделка фасада
[parent_id] => 19
[material_sum] => 615233
[work_sum] => 518383
[total_sum] => 1133616
[total_days] => 40
[display_material_sum] => 615 233
[display_work_sum] => 518 383
[display_total_sum] => 1 133 616
)
1
1 133 616₽
Работа:518 383 ₽
Материалы:615 233 ₽
Дни:40
stdClass Object
(
[id] => 140
[attribute_id] => 19
[name] => Сайдинг
[material_modifier] => 1
[work_modifier] => 1
[options] => Array
(
[0] => Виниловый
[1] => Металлический
[2] => Фиброцементный
)
[days] => [20,20,20]
[material_price] => [1263,1944,4147]
[work_price] => [1263,1944,2074]
[image] => https://akademik-stroy.ru/wp-content/uploads/materials/sajding.jpg
[area_modifier] => 156.72
[parent_name] => Наружная отделка фасада
[parent_id] => 19
[material_sum] => 261277
[work_sum] => 217731
[total_sum] => 479008
[total_days] => 20
[display_material_sum] => 261 277
[display_work_sum] => 217 731
[display_total_sum] => 479 008
)
1
479 008₽
Работа:217 731 ₽
Материалы:261 277 ₽
Дни:20
stdClass Object
(
[id] => 141
[attribute_id] => 19
[name] => Камень
[material_modifier] => 1
[work_modifier] => 1
[options] => Array
(
[0] => Травертин
[1] => Дагестанский
[2] => Искусственный
[3] => Натуральный
[4] => Керамогранит
)
[days] => [45,45,45,45,45]
[material_price] => [4536,3888,2592,3240,2462]
[work_price] => [3240,3240,2462,3110,1944]
[image] => https://akademik-stroy.ru/wp-content/uploads/materials/kamen-1.jpg
[area_modifier] => 156.72
[parent_name] => Наружная отделка фасада
[parent_id] => 19
[material_sum] => 938364
[work_sum] => 558550
[total_sum] => 1496914
[total_days] => 45
[display_material_sum] => 938 364
[display_work_sum] => 558 550
[display_total_sum] => 1 496 914
)
1
1 496 914₽
Работа:558 550 ₽
Материалы:938 364 ₽
Дни:45
stdClass Object
(
[id] => 142
[attribute_id] => 19
[name] => Термопанели
[material_modifier] => 1
[work_modifier] => 1
[options] => Array
(
)
[days] => [20]
[material_price] => [6221]
[work_price] => [2333]
[image] => https://akademik-stroy.ru/wp-content/uploads/materials/termo.png
[area_modifier] => 156.72
[parent_name] => Наружная отделка фасада
[parent_id] => 19
[material_sum] => 1286941
[work_sum] => 402191
[total_sum] => 1689132
[total_days] => 20
[display_material_sum] => 1 286 941
[display_work_sum] => 402 191
[display_total_sum] => 1 689 132
)
1
1 689 132₽
Работа:402 191 ₽
Материалы:1 286 941 ₽
Дни:20
stdClass Object
(
[id] => 143
[attribute_id] => 19
[name] => Плитка HAUBERK
[material_modifier] => 1
[work_modifier] => 1
[options] => Array
(
)
[days] => [20]
[material_price] => [2786]
[work_price] => [1944]
[image] => https://akademik-stroy.ru/wp-content/uploads/materials/hauberk.jpg
[area_modifier] => 156.72
[parent_name] => Наружная отделка фасада
[parent_id] => 19
[material_sum] => 576341
[work_sum] => 335130
[total_sum] => 911471
[total_days] => 20
[display_material_sum] => 576 341
[display_work_sum] => 335 130
[display_total_sum] => 911 471
)
1
911 471₽
Работа:335 130 ₽
Материалы:576 341 ₽
Дни:20
stdClass Object
(
[id] => 144
[attribute_id] => 19
[name] => Фальцевый фасад
[material_modifier] => 1
[work_modifier] => 1
[options] => Array
(
)
[days] => [20]
[material_price] => [3240]
[work_price] => [2592]
[image] => https://akademik-stroy.ru/wp-content/uploads/materials/falcevyj-fasad.jpg
[area_modifier] => 156.72
[parent_name] => Наружная отделка фасада
[parent_id] => 19
[material_sum] => 670260
[work_sum] => 446840
[total_sum] => 1117100
[total_days] => 20
[display_material_sum] => 670 260
[display_work_sum] => 446 840
[display_total_sum] => 1 117 100
)
1
1 117 100₽
Работа:446 840 ₽
Материалы:670 260 ₽
Дни:20
stdClass Object
(
[id] => 145
[attribute_id] => 19
[name] => Комбинированный
[material_modifier] => 1
[work_modifier] => 1
[options] => Array
(
)
[days] => [20]
[material_price] => [4629]
[work_price] => [3499]
[image] => https://akademik-stroy.ru/wp-content/uploads/materials/Kombinirovannyj.jpg
[area_modifier] => 156.72
[parent_name] => Наружная отделка фасада
[parent_id] => 19
[material_sum] => 957603
[work_sum] => 603200
[total_sum] => 1560803
[total_days] => 20
[display_material_sum] => 957 603
[display_work_sum] => 603 200
[display_total_sum] => 1 560 803
)
1
1 560 803₽
Работа:603 200 ₽
Материалы:957 603 ₽
Дни:20
stdClass Object
(
[id] => 257
[attribute_id] => 19
[name] => Японские фиброцементные
[material_modifier] => 1
[work_modifier] => 1
[options] => Array
(
)
[days] => [20]
[material_price] => [7043]
[work_price] => [2993]
[image] => https://akademik-stroy.ru/wp-content/uploads/materials/paneli.jpg
[area_modifier] => 156.72
[parent_name] => Наружная отделка фасада
[parent_id] => 19
[material_sum] => 1456988
[work_sum] => 515969
[total_sum] => 1972957
[total_days] => 20
[display_material_sum] => 1 456 988
[display_work_sum] => 515 969
[display_total_sum] => 1 972 957
)
1
1 972 957₽
Работа:515 969 ₽
Материалы:1 456 988 ₽
Дни:20
stdClass Object
(
[id] => 258
[attribute_id] => 19
[name] => Панели Каньон
[material_modifier] => 1
[work_modifier] => 1
[options] => Array
(
)
[days] => [20]
[material_price] => [4543]
[work_price] => [2592]
[image] => https://akademik-stroy.ru/wp-content/uploads/materials/kanon.png
[area_modifier] => 156.72
[parent_name] => Наружная отделка фасада
[parent_id] => 19
[material_sum] => 939812
[work_sum] => 446840
[total_sum] => 1386652
[total_days] => 20
[display_material_sum] => 939 812
[display_work_sum] => 446 840
[display_total_sum] => 1 386 652
)
1
1 386 652₽
Работа:446 840 ₽
Материалы:939 812 ₽
Дни:20
stdClass Object
(
[id] => 39
[attribute_id] => 20
[name] => Нет
[material_modifier] => 1
[work_modifier] => 1
[options] => Array
(
)
[days] => [0]
[material_price] => [0]
[work_price] => [0]
[image] => https://akademik-stroy.ru/wp-content/uploads/materials/terrasy.jpg
[area_modifier] => 30
[parent_name] => Террасы, крыльца, навесы
[parent_id] => 20
[material_sum] => 0
[work_sum] => 0
[total_sum] => 0
[total_days] => 0
[display_material_sum] => 0
[display_work_sum] => 0
[display_total_sum] => 0
)
1
0₽
Работа:0 ₽
Материалы:0 ₽
Дни:0
stdClass Object
(
[id] => 40
[attribute_id] => 20
[name] => Есть
[material_modifier] => 1
[work_modifier] => 1
[options] => Array
(
)
[days] => [5]
[material_price] => [10450]
[work_price] => [1950]
[image] => https://akademik-stroy.ru/wp-content/uploads/materials/terrasy.jpg
[area_modifier] => 30
[parent_name] => Террасы, крыльца, навесы
[parent_id] => 20
[material_sum] => 413820
[work_sum] => 64350
[total_sum] => 478170
[total_days] => 5
[display_material_sum] => 413 820
[display_work_sum] => 64 350
[display_total_sum] => 478 170
)
1
478 170₽
Работа:64 350 ₽
Материалы:413 820 ₽
Дни:5
stdClass Object
(
[id] => 41
[attribute_id] => 21
[name] => Нет
[material_modifier] => 1
[work_modifier] => 1
[options] => Array
(
)
[days] => [0]
[material_price] => [0]
[work_price] => [0]
[image] => https://akademik-stroy.ru/wp-content/uploads/materials/balkony.jpg
[area_modifier] => 30
[parent_name] => Балконы
[parent_id] => 21
[material_sum] => 0
[work_sum] => 0
[total_sum] => 0
[total_days] => 0
[display_material_sum] => 0
[display_work_sum] => 0
[display_total_sum] => 0
)
1
0₽
Работа:0 ₽
Материалы:0 ₽
Дни:0
stdClass Object
(
[id] => 42
[attribute_id] => 21
[name] => Есть
[material_modifier] => 1
[work_modifier] => 1
[options] => Array
(
)
[days] => [12]
[material_price] => [3600]
[work_price] => [1950]
[image] => https://akademik-stroy.ru/wp-content/uploads/materials/balkony.jpg
[area_modifier] => 30
[parent_name] => Балконы
[parent_id] => 21
[material_sum] => 142560
[work_sum] => 64350
[total_sum] => 206910
[total_days] => 12
[display_material_sum] => 142 560
[display_work_sum] => 64 350
[display_total_sum] => 206 910
)
1
206 910₽
Работа:64 350 ₽
Материалы:142 560 ₽
Дни:12
stdClass Object
(
[id] => 43
[attribute_id] => 22
[name] => Нет
[material_modifier] => 1
[work_modifier] => 1
[options] => Array
(
)
[days] => [0]
[material_price] => [0]
[work_price] => [0]
[image] => https://akademik-stroy.ru/wp-content/uploads/materials/uteplennaya.jpg
[area_modifier] => 90.99
[parent_name] => Отмостка
[parent_id] => 22
[material_sum] => 0
[work_sum] => 0
[total_sum] => 0
[total_days] => 0
[display_material_sum] => 0
[display_work_sum] => 0
[display_total_sum] => 0
)
1
0₽
Работа:0 ₽
Материалы:0 ₽
Дни:0
stdClass Object
(
[id] => 44
[attribute_id] => 22
[name] => Утепленная отмостка
[material_modifier] => 1
[work_modifier] => 1
[options] => Array
(
)
[days] => [15]
[material_price] => [2550]
[work_price] => [1750]
[image] => https://akademik-stroy.ru/wp-content/uploads/materials/uteplennaya.jpg
[area_modifier] => 90.99
[parent_name] => Отмостка
[parent_id] => 22
[material_sum] => 306272
[work_sum] => 175156
[total_sum] => 481428
[total_days] => 15
[display_material_sum] => 306 272
[display_work_sum] => 175 156
[display_total_sum] => 481 428
)
1
481 428₽
Работа:175 156 ₽
Материалы:306 272 ₽
Дни:15
stdClass Object
(
[id] => 146
[attribute_id] => 22
[name] => Не утепленная отмостка
[material_modifier] => 1
[work_modifier] => 1
[options] => Array
(
)
[days] => [10]
[material_price] => [1650]
[work_price] => [1450]
[image] => https://akademik-stroy.ru/wp-content/uploads/materials/ne-uteplennaya.jpg
[area_modifier] => 90.99
[parent_name] => Отмостка
[parent_id] => 22
[material_sum] => 198176
[work_sum] => 145129
[total_sum] => 343305
[total_days] => 10
[display_material_sum] => 198 176
[display_work_sum] => 145 129
[display_total_sum] => 343 305
)
1
343 305₽
Работа:145 129 ₽
Материалы:198 176 ₽
Дни:10
stdClass Object
(
[id] => 45
[attribute_id] => 23
[name] => Нет
[material_modifier] => 1
[work_modifier] => 1
[options] => Array
(
)
[days] => [0]
[material_price] => [0]
[work_price] => [0]
[image] => https://akademik-stroy.ru/wp-content/uploads/materials/drenazh-2.jpg
[area_modifier] => 90.99
[parent_name] => Дренаж вокруг дома
[parent_id] => 23
[material_sum] => 0
[work_sum] => 0
[total_sum] => 0
[total_days] => 0
[display_material_sum] => 0
[display_work_sum] => 0
[display_total_sum] => 0
)
1
0₽
Работа:0 ₽
Материалы:0 ₽
Дни:0
stdClass Object
(
[id] => 46
[attribute_id] => 23
[name] => Есть
[material_modifier] => 1
[work_modifier] => 1
[options] => Array
(
)
[days] => [5]
[material_price] => [2366]
[work_price] => [1911]
[image] => https://akademik-stroy.ru/wp-content/uploads/materials/drenazh-2.jpg
[area_modifier] => 90.99
[parent_name] => Дренаж вокруг дома
[parent_id] => 23
[material_sum] => 284173
[work_sum] => 191270
[total_sum] => 475443
[total_days] => 5
[display_material_sum] => 284 173
[display_work_sum] => 191 270
[display_total_sum] => 475 443
)
1
475 443₽
Работа:191 270 ₽
Материалы:284 173 ₽
Дни:5
stdClass Object
(
[id] => 47
[attribute_id] => 24
[name] => Нет
[material_modifier] => 1
[work_modifier] => 1
[options] => Array
(
)
[days] => [0]
[material_price] => [0]
[work_price] => [0]
[image] => https://akademik-stroy.ru/wp-content/uploads/materials/septik.jpg
[area_modifier] => 1
[parent_name] => Автономная канализация (септики)
[parent_id] => 24
[material_sum] => 0
[work_sum] => 0
[total_sum] => 0
[total_days] => 0
[display_material_sum] => 0
[display_work_sum] => 0
[display_total_sum] => 0
)
1
0₽
Работа:0 ₽
Материалы:0 ₽
Дни:0
stdClass Object
(
[id] => 48
[attribute_id] => 24
[name] => Есть
[material_modifier] => 1
[work_modifier] => 1
[options] => Array
(
[0] => Для дачи на 4 человека
[1] => Для дома на 5 человек
[2] => Для дома на 6 человек
[3] => Для дома на 7 человек
[4] => Для дома на 10 человек
)
[days] => [7,7,7,8,8]
[material_price] => [196340,220500,240940,264200,293340]
[work_price] => [50000,55000,60500,66550,73206]
[image] => https://akademik-stroy.ru/wp-content/uploads/materials/septik.jpg
[area_modifier] => 1
[parent_name] => Автономная канализация (септики)
[parent_id] => 24
[material_sum] => 259169
[work_sum] => 55000
[total_sum] => 314169
[total_days] => 7
[display_material_sum] => 259 169
[display_work_sum] => 55 000
[display_total_sum] => 314 169
)
1
314 169₽
Работа:55 000 ₽
Материалы:259 169 ₽
Дни:7
stdClass Object
(
[id] => 49
[attribute_id] => 25
[name] => Нет
[material_modifier] => 1
[work_modifier] => 1
[options] => Array
(
)
[days] => [0]
[material_price] => [0]
[work_price] => [0]
[image] => https://akademik-stroy.ru/wp-content/uploads/materials/gkl.jpg
[area_modifier] => 156.72
[parent_name] => Внутренние (не несущие) перегородки
[parent_id] => 25
[material_sum] => 0
[work_sum] => 0
[total_sum] => 0
[total_days] => 0
[display_material_sum] => 0
[display_work_sum] => 0
[display_total_sum] => 0
)
1
0₽
Работа:0 ₽
Материалы:0 ₽
Дни:0
stdClass Object
(
[id] => 147
[attribute_id] => 25
[name] => Каркасно-обшивные
[material_modifier] => 1
[work_modifier] => 1
[options] => Array
(
[0] => 75 мм (без шумоизоляции)
[1] => 75 мм (с шумоизоляцией)
)
[days] => [11,11]
[material_price] => [580,970]
[work_price] => [380,570]
[image] => https://akademik-stroy.ru/wp-content/uploads/materials/gkl.jpg
[area_modifier] => 156.72
[parent_name] => Внутренние (не несущие) перегородки
[parent_id] => 25
[material_sum] => 119985
[work_sum] => 65509
[total_sum] => 185494
[total_days] => 11
[display_material_sum] => 119 985
[display_work_sum] => 65 509
[display_total_sum] => 185 494
)
1
185 494₽
Работа:65 509 ₽
Материалы:119 985 ₽
Дни:11
stdClass Object
(
[id] => 148
[attribute_id] => 25
[name] => Пазогребневые
[material_modifier] => 1
[work_modifier] => 1
[options] => Array
(
[0] => 80 мм
[1] => 100 мм
)
[days] => [5,5]
[material_price] => [1022,1313]
[work_price] => [600,700]
[image] => https://akademik-stroy.ru/wp-content/uploads/materials/pazogrebnevye-bloki.jpg
[area_modifier] => 156.72
[parent_name] => Внутренние (не несущие) перегородки
[parent_id] => 25
[material_sum] => 211422
[work_sum] => 103435
[total_sum] => 314857
[total_days] => 5
[display_material_sum] => 211 422
[display_work_sum] => 103 435
[display_total_sum] => 314 857
)
1
314 857₽
Работа:103 435 ₽
Материалы:211 422 ₽
Дни:5
stdClass Object
(
[id] => 149
[attribute_id] => 25
[name] => Газобетонные
[material_modifier] => 1
[work_modifier] => 1
[options] => Array
(
[0] => 100 мм
[1] => 200 мм
)
[days] => [11,11]
[material_price] => [1160,1920]
[work_price] => [700,900]
[image] => https://akademik-stroy.ru/wp-content/uploads/materials/gazobeton-2.jpg
[area_modifier] => 156.72
[parent_name] => Внутренние (не несущие) перегородки
[parent_id] => 25
[material_sum] => 239970
[work_sum] => 120674
[total_sum] => 360644
[total_days] => 11
[display_material_sum] => 239 970
[display_work_sum] => 120 674
[display_total_sum] => 360 644
)
1
360 644₽
Работа:120 674 ₽
Материалы:239 970 ₽
Дни:11
stdClass Object
(
[id] => 150
[attribute_id] => 25
[name] => Кирпичные
[material_modifier] => 1
[work_modifier] => 1
[options] => Array
(
[0] => 120 мм
[1] => 250 мм
[2] => 360 мм
)
[days] => [7,7,7]
[material_price] => [1785,3570,5355]
[work_price] => [900,1600,1800]
[image] => https://akademik-stroy.ru/wp-content/uploads/materials/kirpich-1.jpg
[area_modifier] => 156.72
[parent_name] => Внутренние (не несущие) перегородки
[parent_id] => 25
[material_sum] => 369264
[work_sum] => 155153
[total_sum] => 524417
[total_days] => 7
[display_material_sum] => 369 264
[display_work_sum] => 155 153
[display_total_sum] => 524 417
)
1
524 417₽
Работа:155 153 ₽
Материалы:369 264 ₽
Дни:7
stdClass Object
(
[id] => 55
[attribute_id] => 28
[name] => Нет
[material_modifier] => 1
[work_modifier] => 1
[options] => Array
(
)
[days] => [0]
[material_price] => [0]
[work_price] => [0]
[image] => https://akademik-stroy.ru/wp-content/uploads/materials/ehlektrika.jpg
[area_modifier] => 127.18
[parent_name] => Электрика
[parent_id] => 28
[material_sum] => 0
[work_sum] => 0
[total_sum] => 0
[total_days] => 0
[display_material_sum] => 0
[display_work_sum] => 0
[display_total_sum] => 0
)
1
0₽
Работа:0 ₽
Материалы:0 ₽
Дни:0
stdClass Object
(
[id] => 56
[attribute_id] => 28
[name] => Есть
[material_modifier] => 1
[work_modifier] => 1
[options] => Array
(
)
[days] => [10]
[material_price] => [650]
[work_price] => [950]
[image] => https://akademik-stroy.ru/wp-content/uploads/materials/ehlektrika.jpg
[area_modifier] => 127.18
[parent_name] => Электрика
[parent_id] => 28
[material_sum] => 109120
[work_sum] => 132903
[total_sum] => 242023
[total_days] => 10
[display_material_sum] => 109 120
[display_work_sum] => 132 903
[display_total_sum] => 242 023
)
1
242 023₽
Работа:132 903 ₽
Материалы:109 120 ₽
Дни:10
stdClass Object
(
[id] => 57
[attribute_id] => 29
[name] => Нет
[material_modifier] => 1
[work_modifier] => 1
[options] => Array
(
)
[days] => [0]
[material_price] => [0]
[work_price] => [0]
[image] => https://akademik-stroy.ru/wp-content/uploads/materials/santekhnika-kanalizaciya-1.jpg
[area_modifier] => 127.18
[parent_name] => Сантехника, канализация в доме
[parent_id] => 29
[material_sum] => 0
[work_sum] => 0
[total_sum] => 0
[total_days] => 0
[display_material_sum] => 0
[display_work_sum] => 0
[display_total_sum] => 0
)
1
0₽
Работа:0 ₽
Материалы:0 ₽
Дни:0
stdClass Object
(
[id] => 58
[attribute_id] => 29
[name] => Есть
[material_modifier] => 1
[work_modifier] => 1
[options] => Array
(
)
[days] => [10]
[material_price] => [600]
[work_price] => [730]
[image] => https://akademik-stroy.ru/wp-content/uploads/materials/santekhnika-kanalizaciya-1.jpg
[area_modifier] => 127.18
[parent_name] => Сантехника, канализация в доме
[parent_id] => 29
[material_sum] => 100727
[work_sum] => 102126
[total_sum] => 202853
[total_days] => 10
[display_material_sum] => 100 727
[display_work_sum] => 102 126
[display_total_sum] => 202 853
)
1
202 853₽
Работа:102 126 ₽
Материалы:100 727 ₽
Дни:10
stdClass Object
(
[id] => 59
[attribute_id] => 30
[name] => Нет
[material_modifier] => 1
[work_modifier] => 1
[options] => Array
(
)
[days] => [0]
[material_price] => [0]
[work_price] => [0]
[image] => https://akademik-stroy.ru/wp-content/uploads/materials/otoplenie-1.jpg
[area_modifier] => 127.18
[parent_name] => Отопление
[parent_id] => 30
[material_sum] => 0
[work_sum] => 0
[total_sum] => 0
[total_days] => 0
[display_material_sum] => 0
[display_work_sum] => 0
[display_total_sum] => 0
)
1
0₽
Работа:0 ₽
Материалы:0 ₽
Дни:0
stdClass Object
(
[id] => 60
[attribute_id] => 30
[name] => Есть
[material_modifier] => 1
[work_modifier] => 1
[options] => Array
(
)
[days] => [5]
[material_price] => [610]
[work_price] => [560]
[image] => https://akademik-stroy.ru/wp-content/uploads/materials/otoplenie-1.jpg
[area_modifier] => 127.18
[parent_name] => Отопление
[parent_id] => 30
[material_sum] => 102405
[work_sum] => 78343
[total_sum] => 180748
[total_days] => 5
[display_material_sum] => 102 405
[display_work_sum] => 78 343
[display_total_sum] => 180 748
)
1
180 748₽
Работа:78 343 ₽
Материалы:102 405 ₽
Дни:5
stdClass Object
(
[id] => 61
[attribute_id] => 31
[name] => Нет
[material_modifier] => 1
[work_modifier] => 1
[options] => Array
(
)
[days] => [0]
[material_price] => [0]
[work_price] => [0]
[image] => https://akademik-stroy.ru/wp-content/uploads/materials/vodyanye.jpg
[area_modifier] => 30
[parent_name] => Теплые полы
[parent_id] => 31
[material_sum] => 0
[work_sum] => 0
[total_sum] => 0
[total_days] => 0
[display_material_sum] => 0
[display_work_sum] => 0
[display_total_sum] => 0
)
1
0₽
Работа:0 ₽
Материалы:0 ₽
Дни:0
stdClass Object
(
[id] => 151
[attribute_id] => 31
[name] => Водяные
[material_modifier] => 1
[work_modifier] => 1
[options] => Array
(
)
[days] => [9]
[material_price] => [10200]
[work_price] => [2500]
[image] => https://akademik-stroy.ru/wp-content/uploads/materials/vodyanye.jpg
[area_modifier] => 30
[parent_name] => Теплые полы
[parent_id] => 31
[material_sum] => 403920
[work_sum] => 82500
[total_sum] => 486420
[total_days] => 9
[display_material_sum] => 403 920
[display_work_sum] => 82 500
[display_total_sum] => 486 420
)
1
486 420₽
Работа:82 500 ₽
Материалы:403 920 ₽
Дни:9
stdClass Object
(
[id] => 152
[attribute_id] => 31
[name] => Электро
[material_modifier] => 1
[work_modifier] => 1
[options] => Array
(
)
[days] => [5]
[material_price] => [6300]
[work_price] => [1500]
[image] => https://akademik-stroy.ru/wp-content/uploads/materials/ehlektricheskij.jpg
[area_modifier] => 30
[parent_name] => Теплые полы
[parent_id] => 31
[material_sum] => 249480
[work_sum] => 49500
[total_sum] => 298980
[total_days] => 5
[display_material_sum] => 249 480
[display_work_sum] => 49 500
[display_total_sum] => 298 980
)
1
298 980₽
Работа:49 500 ₽
Материалы:249 480 ₽
Дни:5
stdClass Object
(
[id] => 63
[attribute_id] => 32
[name] => Нет
[material_modifier] => 1
[work_modifier] => 1
[options] => Array
(
)
[days] => [0]
[material_price] => [0]
[work_price] => [0]
[image] => https://akademik-stroy.ru/wp-content/uploads/materials/shtukaturka-shpatlevka-1.jpg
[area_modifier] => 127.18
[parent_name] => Черновая отделка стен
[parent_id] => 32
[material_sum] => 0
[work_sum] => 0
[total_sum] => 0
[total_days] => 0
[display_material_sum] => 0
[display_work_sum] => 0
[display_total_sum] => 0
)
1
0₽
Работа:0 ₽
Материалы:0 ₽
Дни:0
stdClass Object
(
[id] => 153
[attribute_id] => 32
[name] => Штукатурка и шпатлевка
[material_modifier] => 1
[work_modifier] => 1
[options] => Array
(
)
[days] => [20]
[material_price] => [1850]
[work_price] => [2600]
[image] => https://akademik-stroy.ru/wp-content/uploads/materials/shtukaturka-shpatlevka-1.jpg
[area_modifier] => 127.18
[parent_name] => Черновая отделка стен
[parent_id] => 32
[material_sum] => 310574
[work_sum] => 363735
[total_sum] => 674309
[total_days] => 20
[display_material_sum] => 310 574
[display_work_sum] => 363 735
[display_total_sum] => 674 309
)
1
674 309₽
Работа:363 735 ₽
Материалы:310 574 ₽
Дни:20
stdClass Object
(
[id] => 154
[attribute_id] => 32
[name] => Гипсокортон на стены
[material_modifier] => 1
[work_modifier] => 1
[options] => Array
(
)
[days] => [15]
[material_price] => [950]
[work_price] => [2100]
[image] => https://akademik-stroy.ru/wp-content/uploads/materials/gkl-1.jpg
[area_modifier] => 127.18
[parent_name] => Черновая отделка стен
[parent_id] => 32
[material_sum] => 159484
[work_sum] => 293786
[total_sum] => 453270
[total_days] => 15
[display_material_sum] => 159 484
[display_work_sum] => 293 786
[display_total_sum] => 453 270
)
1
453 270₽
Работа:293 786 ₽
Материалы:159 484 ₽
Дни:15
stdClass Object
(
[id] => 155
[attribute_id] => 32
[name] => Вагонка
[material_modifier] => 1
[work_modifier] => 1
[options] => Array
(
)
[days] => [15]
[material_price] => [1250]
[work_price] => [950]
[image] => https://akademik-stroy.ru/wp-content/uploads/materials/vagonka.jpg
[area_modifier] => 127.18
[parent_name] => Черновая отделка стен
[parent_id] => 32
[material_sum] => 209847
[work_sum] => 132903
[total_sum] => 342750
[total_days] => 15
[display_material_sum] => 209 847
[display_work_sum] => 132 903
[display_total_sum] => 342 750
)
1
342 750₽
Работа:132 903 ₽
Материалы:209 847 ₽
Дни:15
stdClass Object
(
[id] => 65
[attribute_id] => 33
[name] => Нет
[material_modifier] => 1
[work_modifier] => 1
[options] => Array
(
)
[days] => [0]
[material_price] => [0]
[work_price] => [0]
[image] => https://akademik-stroy.ru/wp-content/uploads/materials/styazhka.jpg
[area_modifier] => 127.18
[parent_name] => Черновая отделка полов
[parent_id] => 33
[material_sum] => 0
[work_sum] => 0
[total_sum] => 0
[total_days] => 0
[display_material_sum] => 0
[display_work_sum] => 0
[display_total_sum] => 0
)
1
0₽
Работа:0 ₽
Материалы:0 ₽
Дни:0
stdClass Object
(
[id] => 156
[attribute_id] => 33
[name] => Стяжка + наливные полы
[material_modifier] => 1
[work_modifier] => 1
[options] => Array
(
)
[days] => [10]
[material_price] => [1000]
[work_price] => [900]
[image] => https://akademik-stroy.ru/wp-content/uploads/materials/styazhka.jpg
[area_modifier] => 127.18
[parent_name] => Черновая отделка полов
[parent_id] => 33
[material_sum] => 167878
[work_sum] => 125908
[total_sum] => 293786
[total_days] => 10
[display_material_sum] => 167 878
[display_work_sum] => 125 908
[display_total_sum] => 293 786
)
1
293 786₽
Работа:125 908 ₽
Материалы:167 878 ₽
Дни:10
stdClass Object
(
[id] => 157
[attribute_id] => 33
[name] => ОСБ на пол
[material_modifier] => 1
[work_modifier] => 1
[options] => Array
(
)
[days] => [7]
[material_price] => [580]
[work_price] => [350]
[image] => https://akademik-stroy.ru/wp-content/uploads/materials/osb-1.jpg
[area_modifier] => 127.18
[parent_name] => Черновая отделка полов
[parent_id] => 33
[material_sum] => 97369
[work_sum] => 48964
[total_sum] => 146333
[total_days] => 7
[display_material_sum] => 97 369
[display_work_sum] => 48 964
[display_total_sum] => 146 333
)
1
146 333₽
Работа:48 964 ₽
Материалы:97 369 ₽
Дни:7
stdClass Object
(
[id] => 67
[attribute_id] => 34
[name] => Нет
[material_modifier] => 1
[work_modifier] => 1
[options] => Array
(
)
[days] => [0]
[material_price] => [0]
[work_price] => [0]
[image] => https://akademik-stroy.ru/wp-content/uploads/materials/chistovaya-otdelka.jpg
[area_modifier] => 127.18
[parent_name] => Чистовая отделка стен и полов
[parent_id] => 34
[material_sum] => 0
[work_sum] => 0
[total_sum] => 0
[total_days] => 0
[display_material_sum] => 0
[display_work_sum] => 0
[display_total_sum] => 0
)
1
0₽
Работа:0 ₽
Материалы:0 ₽
Дни:0
stdClass Object
(
[id] => 68
[attribute_id] => 34
[name] => Есть
[material_modifier] => 1
[work_modifier] => 1
[options] => Array
(
)
[days] => [50]
[material_price] => [6000]
[work_price] => [3500]
[image] => https://akademik-stroy.ru/wp-content/uploads/materials/chistovaya-otdelka.jpg
[area_modifier] => 127.18
[parent_name] => Чистовая отделка стен и полов
[parent_id] => 34
[material_sum] => 1007266
[work_sum] => 489643
[total_sum] => 1496909
[total_days] => 50
[display_material_sum] => 1 007 266
[display_work_sum] => 489 643
[display_total_sum] => 1 496 909
)
1
1 496 909₽
Работа:489 643 ₽
Материалы:1 007 266 ₽
Дни:50
stdClass Object
(
[id] => 69
[attribute_id] => 35
[name] => Нет
[material_modifier] => 1
[work_modifier] => 1
[options] => Array
(
)
[days] => [0]
[material_price] => [0]
[work_price] => [0]
[image] => https://akademik-stroy.ru/wp-content/uploads/materials/mnogourovnevyj-gkl.jpg
[area_modifier] => 127.18
[parent_name] => Отделка потолка
[parent_id] => 35
[material_sum] => 0
[work_sum] => 0
[total_sum] => 0
[total_days] => 0
[display_material_sum] => 0
[display_work_sum] => 0
[display_total_sum] => 0
)
1
0₽
Работа:0 ₽
Материалы:0 ₽
Дни:0
stdClass Object
(
[id] => 70
[attribute_id] => 35
[name] => Есть
[material_modifier] => 1
[work_modifier] => 1
[options] => Array
(
[0] => Многоуровневый потолок из гипсокартона
[1] => Многоуровневый потолок из гипсокартона и натяжного потолка
[2] => Одноуровневый потолок из гипсокартона
[3] => Одноуровневый натяжной потолок
)
[days] => [10,10,1,1]
[material_price] => [900,700,700,600]
[work_price] => [1000,800,500,300]
[image] => https://akademik-stroy.ru/wp-content/uploads/materials/mnogourovnevyj-gkl.jpg
[area_modifier] => 127.18
[parent_name] => Отделка потолка
[parent_id] => 35
[material_sum] => 151090
[work_sum] => 139898
[total_sum] => 290988
[total_days] => 10
[display_material_sum] => 151 090
[display_work_sum] => 139 898
[display_total_sum] => 290 988
)
1
290 988₽
Работа:139 898 ₽
Материалы:151 090 ₽
Дни:10
Преимущества работы с нами
7 этапов оплаты
Независимый строительный надзор
Экологически чистые материалы
16 лет гарантии
Онлайн-кабинет с веб-камерой
Строители с опытом более 15 лет
Собственное производство










