Одноэтажный дом 17x24 - 235.8 м2 за руб.
Планировки
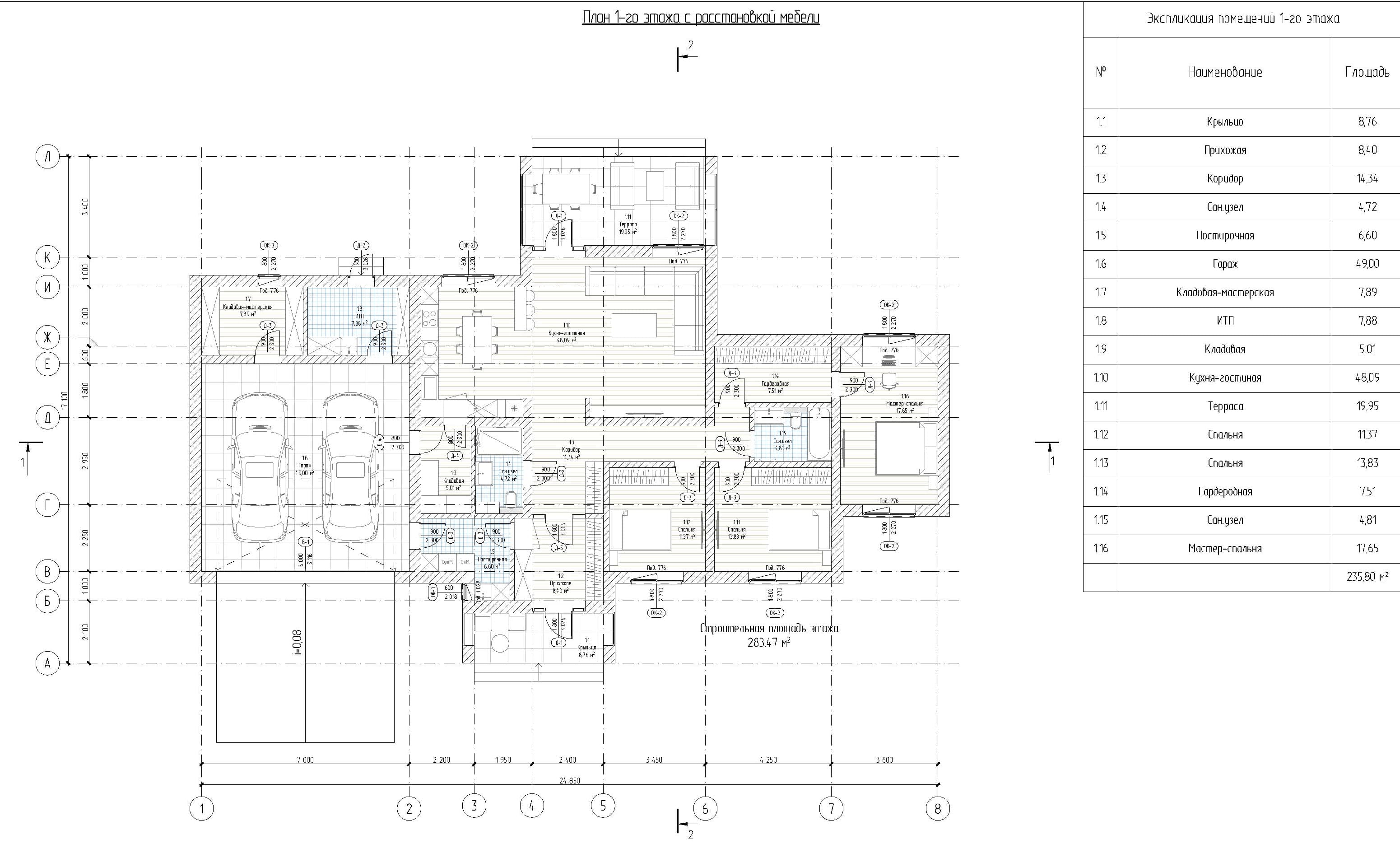
План первого этажа
- 1. Крыльцо 8,76 м²
- 2. Прихожая 8,40 м²
- 3. Коридор 14,34 м²
- 4. С/У 4,72 м²
- 5. Постирочная 6,60 м²
- 6. Гараж 49,00 м²
- 7. Кладовая-мастерская 7,89 м²
- 8. ИТП 7,88 м²
- 9. Кладовая 5,01 м²
- 10. Кухня-гостиная 48,09 м²
- 11. Терраса 19,95 м²
- 12. Спальня 11,37 м²
- 13. Спальня 13,83 м²
- 14. Гардеробная 7,51 м²
- 15. С/У 4,81 м²
- 16. Мастер-спальня 17,65 м²
- Общая площадь 1 этажа 235,80 м²
Площади дома
| № п/п | Наименование | Ед. из. | Строительная площадь | Полезная площадь |
| 1 | 1 этаж | м2 | 290.58 | 235.8 |
| 2 | Итого | м2 | 290.58 | 235.8 |
154 м2
Полезная
площадь
площадь
17 x 24 м
Размеры
1 этаж
Этажей
26 м2
Террасы
и балконы
и балконы
2Без
гаража
гаража
3
Количество
спален
спален
2
Количество
санузлов
санузлов
Калькулятор опций
0₽
В ипотеку от 31 645 ₽/мес.
0₽
0 дней
stdClass Object
(
[id] => 1
[attribute_id] => 1
[name] => Ленточный монолитный ж/б
[material_modifier] => 1
[work_modifier] => 1
[options] => Array
(
[0] => размер 200 х 700 мм
[1] => размер 300 х 900 мм
[2] => размер 400 х 1 000 мм
[3] => размер 500 х 1 100 мм
[4] => размер 600 х 1 200 мм
)
[days] => [20,21,22,25,30]
[material_price] => [2823,3630,4475,5210,12047]
[work_price] => [2154,2826,3731,4577,5293]
[image] => https://akademik-stroy.ru/wp-content/uploads/materials/lentochnyj-monolitnyj-zh-b.jpg
[area_modifier] => 290.58
[parent_name] => Фундамент
[parent_id] => 1
[material_sum] => 1033587
[work_sum] => 657205
[total_sum] => 1690792
[total_days] => 20
[display_material_sum] => 1 033 587
[display_work_sum] => 657 205
[display_total_sum] => 1 690 792
)
1
1 690 792₽
Работа:657 205 ₽
Материалы:1 033 587 ₽
Дни:20
stdClass Object
(
[id] => 2
[attribute_id] => 1
[name] => Забивные Ж/Б сваи
[material_modifier] => 1
[work_modifier] => 1
[options] => Array
(
[0] => 150х150х3000мм
[1] => 150х150х4000мм
[2] => 200х200х3000мм
[3] => 200х200х4000мм
[4] => 200х200х5000мм
[5] => 200х200х6000мм
)
[days] => [2,2,2,2,2,2]
[material_price] => [1990,2850,3255,4360,5120,6837]
[work_price] => [1002,1185,1336,1438,1574,1839]
[image] => https://akademik-stroy.ru/wp-content/uploads/materials/zabivnye-zh-b-svai.png
[area_modifier] => 290.58
[parent_name] => Фундамент
[parent_id] => 1
[material_sum] => 728600
[work_sum] => 305719
[total_sum] => 1034319
[total_days] => 2
[display_material_sum] => 728 600
[display_work_sum] => 305 719
[display_total_sum] => 1 034 319
)
1
1 034 319₽
Работа:305 719 ₽
Материалы:728 600 ₽
Дни:2
stdClass Object
(
[id] => 71
[attribute_id] => 1
[name] => Свайно-ростверковый ж/б
[material_modifier] => 1
[work_modifier] => 1
[options] => Array
(
[0] => ростверк 200х300 мм
[1] => ростверк 300х600 мм
[2] => ростверк 400х900 мм
[3] => ростверк 500х1200 мм
)
[days] => [20,23,25,27]
[material_price] => [3018,3474,7109,9792]
[work_price] => [2024,3012,5635,7022]
[image] => https://akademik-stroy.ru/wp-content/uploads/materials/svajno-rostverkovyj-monolitnyj-zh-b-3.png
[area_modifier] => 290.58
[parent_name] => Фундамент
[parent_id] => 1
[material_sum] => 1104983
[work_sum] => 617541
[total_sum] => 1722524
[total_days] => 20
[display_material_sum] => 1 104 983
[display_work_sum] => 617 541
[display_total_sum] => 1 722 524
)
1
1 722 524₽
Работа:617 541 ₽
Материалы:1 104 983 ₽
Дни:20
stdClass Object
(
[id] => 72
[attribute_id] => 1
[name] => Монолитная ж/б плита
[material_modifier] => 1
[work_modifier] => 1
[options] => Array
(
[0] => 200 мм
[1] => 300 мм
[2] => 400 мм
[3] => 500 мм
[4] => 600 мм
)
[days] => [30,33,35,37,40]
[material_price] => [5348,8555,12788,14388,15189]
[work_price] => [4314,4881,7037,8061,10230]
[image] => https://akademik-stroy.ru/wp-content/uploads/materials/monolitnaya-zhb-plita.png
[area_modifier] => 290.58
[parent_name] => Фундамент
[parent_id] => 1
[material_sum] => 1958068
[work_sum] => 1316240
[total_sum] => 3274308
[total_days] => 30
[display_material_sum] => 1 958 068
[display_work_sum] => 1 316 240
[display_total_sum] => 3 274 308
)
1
3 274 308₽
Работа:1 316 240 ₽
Материалы:1 958 068 ₽
Дни:30
stdClass Object
(
[id] => 73
[attribute_id] => 1
[name] => Утепленная шведская плита
[material_modifier] => 1
[work_modifier] => 1
[options] => Array
(
[0] => 200 мм
[1] => 300 мм
[2] => 400 мм
[3] => 500 мм
[4] => 600 мм
)
[days] => [32,37,39,42,45]
[material_price] => [10249,12692,13760,14936,16230]
[work_price] => [5960,7337,8072,8878,9765]
[image] => https://akademik-stroy.ru/wp-content/uploads/materials/uteplennaya-shvedskaya-plita.jpg
[area_modifier] => 290.58
[parent_name] => Фундамент
[parent_id] => 1
[material_sum] => 3752475
[work_sum] => 1818450
[total_sum] => 5570925
[total_days] => 32
[display_material_sum] => 3 752 475
[display_work_sum] => 1 818 450
[display_total_sum] => 5 570 925
)
1
5 570 925₽
Работа:1 818 450 ₽
Материалы:3 752 475 ₽
Дни:32
stdClass Object
(
[id] => 75
[attribute_id] => 1
[name] => Ленточный из ФБС
[material_modifier] => 1
[work_modifier] => 1
[options] => Array
(
[0] => толщ. 300 мм
[1] => толщ. 400 мм
[2] => толщ. 500 мм
[3] => толщ. 600 мм
)
[days] => [20,20,20,20]
[material_price] => [3675,4902,6126,7350]
[work_price] => [2451,3264,4083,4902]
[image] => https://akademik-stroy.ru/wp-content/uploads/materials/lentochnyj-iz-fbs.png
[area_modifier] => 290.58
[parent_name] => Фундамент
[parent_id] => 1
[material_sum] => 1345531
[work_sum] => 747822
[total_sum] => 2093353
[total_days] => 20
[display_material_sum] => 1 345 531
[display_work_sum] => 747 822
[display_total_sum] => 2 093 353
)
1
2 093 353₽
Работа:747 822 ₽
Материалы:1 345 531 ₽
Дни:20
stdClass Object
(
[id] => 76
[attribute_id] => 1
[name] => Цокольный этаж из ФБС
[material_modifier] => 1
[work_modifier] => 1
[options] => Array
(
[0] => толщ. 300 мм
[1] => толщ. 400 мм
[2] => толщ. 500 мм
[3] => толщ. 600 мм
)
[days] => [30,32,34,36]
[material_price] => [20916,23299,26680,29060]
[work_price] => [17524,18700,19873,21046]
[image] => https://akademik-stroy.ru/wp-content/uploads/materials/cokolnyj-ehtazh-iz-fbs.jpg
[area_modifier] => 290.58
[parent_name] => Фундамент
[parent_id] => 1
[material_sum] => 7657992
[work_sum] => 5346730
[total_sum] => 13004722
[total_days] => 30
[display_material_sum] => 7 657 992
[display_work_sum] => 5 346 730
[display_total_sum] => 13 004 722
)
1
13 004 722₽
Работа:5 346 730 ₽
Материалы:7 657 992 ₽
Дни:30
stdClass Object
(
[id] => 77
[attribute_id] => 1
[name] => Цокольный этаж монолитный ж/б
[material_modifier] => 1
[work_modifier] => 1
[options] => Array
(
[0] => толщ. 200 мм
[1] => толщ. 300 мм
[2] => толщ. 400 мм
[3] => толщ. 500 мм
[4] => толщ. 600 мм
)
[days] => [40,42,44,46,48]
[material_price] => [25421,29148,32275,35602,37326]
[work_price] => [20441,21907,23375,24841,26306]
[image] => https://akademik-stroy.ru/wp-content/uploads/materials/cokolnyj-etazh-zh-b.jpg
[area_modifier] => 290.58
[parent_name] => Фундамент
[parent_id] => 1
[material_sum] => 9307411
[work_sum] => 6236733
[total_sum] => 15544144
[total_days] => 40
[display_material_sum] => 9 307 411
[display_work_sum] => 6 236 733
[display_total_sum] => 15 544 144
)
1
15 544 144₽
Работа:6 236 733 ₽
Материалы:9 307 411 ₽
Дни:40
stdClass Object
(
[id] => 191
[attribute_id] => 1
[name] => Винтовые сваи
[material_modifier] => 1
[work_modifier] => 1
[options] => Array
(
[0] => 57х200мм
[1] => 76х250мм
[2] => 108х300мм
[3] => 133х350мм
)
[days] => [1,1,2,2]
[material_price] => [1200,1300,1450,1600]
[work_price] => [400,600,900,1100]
[image] => https://akademik-stroy.ru/wp-content/uploads/materials/vintovye-svai.png
[area_modifier] => 290.58
[parent_name] => Фундамент
[parent_id] => 1
[material_sum] => 439357
[work_sum] => 122044
[total_sum] => 561401
[total_days] => 1
[display_material_sum] => 439 357
[display_work_sum] => 122 044
[display_total_sum] => 561 401
)
1
561 401₽
Работа:122 044 ₽
Материалы:439 357 ₽
Дни:1
stdClass Object
(
[id] => 3
[attribute_id] => 2
[name] => Деревянные балки
[material_modifier] => 1
[work_modifier] => 1
[options] => Array
(
[0] => без утепления
[1] => утепление 200 мм
[2] => утепление 250 мм
[3] => утепление 300 мм
[4] => утепление 350 мм
[5] => утепление 400 мм
[6] => утепление 450 мм
[7] => утепление 500 мм
)
[days] => [8,9,9,9,11,12,13,14]
[material_price] => [1634,2042,2344,2947,3149,3652,3354,3557]
[work_price] => [1230,1339,1393,1426,1460,1513,1587,1620]
[image] => https://akademik-stroy.ru/wp-content/uploads/materials/derevyannye-balki.png
[area_modifier] => 290.58
[parent_name] => Перекрытие цоколя
[parent_id] => 2
[material_sum] => 598258
[work_sum] => 375284
[total_sum] => 973542
[total_days] => 8
[display_material_sum] => 598 258
[display_work_sum] => 375 284
[display_total_sum] => 973 542
)
1
973 542₽
Работа:375 284 ₽
Материалы:598 258 ₽
Дни:8
stdClass Object
(
[id] => 4
[attribute_id] => 2
[name] => Сборные ж/б плиты
[material_modifier] => 1
[work_modifier] => 1
[options] => Array
(
[0] => без утепления
[1] => утепление 150мм
[2] => утепление 200мм
[3] => утепление 250мм
[4] => утепление 300мм
[5] => утепление 350мм
[6] => утепление 400мм
[7] => утепление 450мм
[8] => утепление 500мм
)
[days] => [13,15,15,15,15,15,15,15,15]
[material_price] => [3067,5577,5928,6679,7730,8782,9833,10884,11935]
[work_price] => [1520,1956,2102,2247,2392,2537,2684,2829,2974]
[image] => https://akademik-stroy.ru/wp-content/uploads/materials/sbornye-zh-b-plity-2.jpg
[area_modifier] => 290.58
[parent_name] => Перекрытие цоколя
[parent_id] => 2
[material_sum] => 1122923
[work_sum] => 463766
[total_sum] => 1586689
[total_days] => 13
[display_material_sum] => 1 122 923
[display_work_sum] => 463 766
[display_total_sum] => 1 586 689
)
1
1 586 689₽
Работа:463 766 ₽
Материалы:1 122 923 ₽
Дни:13
stdClass Object
(
[id] => 78
[attribute_id] => 2
[name] => Монолитная ж/б плита
[material_modifier] => 1
[work_modifier] => 1
[options] => Array
(
[0] => без утепления
[1] => утепление 150 мм
[2] => утепление 200 мм
[3] => утепление 250 мм
[4] => утепление 300 мм
[5] => утепление 350 мм
[6] => утепление 400 мм
[7] => утепление 450 мм
[8] => утепление 500 мм
)
[days] => [18,20,20,20,20,20,20,20,20]
[material_price] => [4837,6572,7224,7375,79426,8177,8728,9180,10031]
[work_price] => [3348,3921,4112,4302,4493,4684,4875,5066,5256]
[image] => https://akademik-stroy.ru/wp-content/uploads/materials/monolitnaya-zh-b-plita-2.jpg
[area_modifier] => 290.58
[parent_name] => Перекрытие цоколя
[parent_id] => 2
[material_sum] => 1770975
[work_sum] => 1021505
[total_sum] => 2792480
[total_days] => 18
[display_material_sum] => 1 770 975
[display_work_sum] => 1 021 505
[display_total_sum] => 2 792 480
)
1
2 792 480₽
Работа:1 021 505 ₽
Материалы:1 770 975 ₽
Дни:18
stdClass Object
(
[id] => 6
[attribute_id] => 3
[name] => Пеноблок
[material_modifier] => 1
[work_modifier] => 1
[options] => Array
(
[0] => 300 мм
[1] => 400 мм
[2] => 500 мм
[3] => 600 мм
)
[days] => [29,31,34,39]
[material_price] => [3000,4000,4500,4937]
[work_price] => [5033,5805,6400,8710]
[image] => https://akademik-stroy.ru/wp-content/uploads/materials/penoblok.jpg
[area_modifier] => 290.58
[parent_name] => Стены 1 этаж (несущие)
[parent_id] => 3
[material_sum] => 1098392
[work_sum] => 1535614
[total_sum] => 2634006
[total_days] => 29
[display_material_sum] => 1 098 392
[display_work_sum] => 1 535 614
[display_total_sum] => 2 634 006
)
1
2 634 006₽
Работа:1 535 614 ₽
Материалы:1 098 392 ₽
Дни:29
stdClass Object
(
[id] => 79
[attribute_id] => 3
[name] => Керамический блок
[material_modifier] => 1
[work_modifier] => 1
[options] => Array
(
[0] => 380 мм
[1] => 380 мм Thermo
[2] => 440 мм
[3] => 510 мм
)
[days] => [23,23,24,25]
[material_price] => [4510,5098,6093,8013]
[work_price] => [4737,4937,5903,6958]
[image] => https://akademik-stroy.ru/wp-content/uploads/materials/keramicheskij-blok.jpg
[area_modifier] => 290.58
[parent_name] => Стены 1 этаж (несущие)
[parent_id] => 3
[material_sum] => 1651250
[work_sum] => 1445301
[total_sum] => 3096551
[total_days] => 23
[display_material_sum] => 1 651 250
[display_work_sum] => 1 445 301
[display_total_sum] => 3 096 551
)
1
3 096 551₽
Работа:1 445 301 ₽
Материалы:1 651 250 ₽
Дни:23
stdClass Object
(
[id] => 80
[attribute_id] => 3
[name] => Кирпич
[material_modifier] => 1
[work_modifier] => 1
[options] => Array
(
[0] => Кирпич 250 мм
[1] => Кирпич 380 мм
[2] => Кирпич 510 мм
[3] => Кирпич 640 мм
[4] => Кирпич 770 мм
)
[days] => [30,30,31,33,36]
[material_price] => [5500,7142,9206,10171,12235]
[work_price] => [8736,10041,12018,15240,18462]
[image] => https://akademik-stroy.ru/wp-content/uploads/materials/kirpich.jpg
[area_modifier] => 290.58
[parent_name] => Стены 1 этаж (несущие)
[parent_id] => 3
[material_sum] => 2013719
[work_sum] => 2665432
[total_sum] => 4679151
[total_days] => 30
[display_material_sum] => 2 013 719
[display_work_sum] => 2 665 432
[display_total_sum] => 4 679 151
)
1
4 679 151₽
Работа:2 665 432 ₽
Материалы:2 013 719 ₽
Дни:30
stdClass Object
(
[id] => 81
[attribute_id] => 3
[name] => Монолитные
[material_modifier] => 1
[work_modifier] => 1
[options] => Array
(
[0] => 150 мм
[1] => 200 мм
[2] => 250 мм
[3] => 300 мм
[4] => 350 мм
[5] => 400 мм
)
[days] => [45,46,47,49,50,53]
[material_price] => [6545,7876,10175,12011,13908,15204]
[work_price] => [5106,6444,7698,8552,9807,11461]
[image] => https://akademik-stroy.ru/wp-content/uploads/materials/monolitnye.jpg
[area_modifier] => 290.58
[parent_name] => Стены 1 этаж (несущие)
[parent_id] => 3
[material_sum] => 2396326
[work_sum] => 1557887
[total_sum] => 3954213
[total_days] => 45
[display_material_sum] => 2 396 326
[display_work_sum] => 1 557 887
[display_total_sum] => 3 954 213
)
1
3 954 213₽
Работа:1 557 887 ₽
Материалы:2 396 326 ₽
Дни:45
stdClass Object
(
[id] => 82
[attribute_id] => 3
[name] => Клееный брус
[material_modifier] => 1
[work_modifier] => 1
[options] => Array
(
[0] => 160 мм
[1] => 175 мм
[2] => 200 мм
[3] => 215 мм
[4] => 240 мм
[5] => 270 мм
[6] => 282 мм
)
[days] => [24,28,32,37,40,42,48]
[material_price] => [16975,18773,19950,20545,21599,22159,23275]
[work_price] => [4806,5287,5815,6397,7036,7740,8514]
[image] => https://akademik-stroy.ru/wp-content/uploads/materials/kleenyj-brus.jpg
[area_modifier] => 290.58
[parent_name] => Стены 1 этаж (несущие)
[parent_id] => 3
[material_sum] => 6215070
[work_sum] => 1466354
[total_sum] => 7681424
[total_days] => 24
[display_material_sum] => 6 215 070
[display_work_sum] => 1 466 354
[display_total_sum] => 7 681 424
)
1
7 681 424₽
Работа:1 466 354 ₽
Материалы:6 215 070 ₽
Дни:24
stdClass Object
(
[id] => 83
[attribute_id] => 3
[name] => Каркасные
[material_modifier] => 1
[work_modifier] => 1
[options] => Array
(
[0] => 150 мм
[1] => 200 мм
[2] => 250 мм
[3] => 300 мм
)
[days] => [15,16,17,18]
[material_price] => [2379,2639,2898,3258]
[work_price] => [2418,2686,2985,3716]
[image] => https://akademik-stroy.ru/wp-content/uploads/materials/karkasnye.jpg
[area_modifier] => 290.58
[parent_name] => Стены 1 этаж (несущие)
[parent_id] => 3
[material_sum] => 871025
[work_sum] => 737754
[total_sum] => 1608779
[total_days] => 15
[display_material_sum] => 871 025
[display_work_sum] => 737 754
[display_total_sum] => 1 608 779
)
1
1 608 779₽
Работа:737 754 ₽
Материалы:871 025 ₽
Дни:15
stdClass Object
(
[id] => 84
[attribute_id] => 3
[name] => СИП-панели
[material_modifier] => 1
[work_modifier] => 1
[options] => Array
(
[0] => 120 мм
[1] => 170 мм
[2] => 220 мм
)
[days] => [7,7,7]
[material_price] => [1210,1856,2292]
[work_price] => [1410,1551,1706]
[image] => https://akademik-stroy.ru/wp-content/uploads/materials/sip-paneli.jpg
[area_modifier] => 290.58
[parent_name] => Стены 1 этаж (несущие)
[parent_id] => 3
[material_sum] => 443018
[work_sum] => 430204
[total_sum] => 873222
[total_days] => 7
[display_material_sum] => 443 018
[display_work_sum] => 430 204
[display_total_sum] => 873 222
)
1
873 222₽
Работа:430 204 ₽
Материалы:443 018 ₽
Дни:7
stdClass Object
(
[id] => 85
[attribute_id] => 3
[name] => Сухой брус
[material_modifier] => 1
[work_modifier] => 1
[options] => Array
(
[0] => 150 мм
[1] => 180 мм
[2] => 200 мм
)
[days] => [7,8,9]
[material_price] => [6010,7190,8709]
[work_price] => [3204,3845,4229]
[image] => https://akademik-stroy.ru/wp-content/uploads/materials/suhoj-brus.jpg
[area_modifier] => 290.58
[parent_name] => Стены 1 этаж (несущие)
[parent_id] => 3
[material_sum] => 2200446
[work_sum] => 977569
[total_sum] => 3178015
[total_days] => 7
[display_material_sum] => 2 200 446
[display_work_sum] => 977 569
[display_total_sum] => 3 178 015
)
1
3 178 015₽
Работа:977 569 ₽
Материалы:2 200 446 ₽
Дни:7
stdClass Object
(
[id] => 86
[attribute_id] => 3
[name] => Профилированный брус
[material_modifier] => 1
[work_modifier] => 1
[options] => Array
(
[0] => 150 мм
[1] => 180 мм
[2] => 200 мм
)
[days] => [7,8,9]
[material_price] => [8190,9228,10051]
[work_price] => [3845,4614,5075]
[image] => https://akademik-stroy.ru/wp-content/uploads/materials/profilirovannyj-brus.jpg
[area_modifier] => 290.58
[parent_name] => Стены 1 этаж (несущие)
[parent_id] => 3
[material_sum] => 2998611
[work_sum] => 1173144
[total_sum] => 4171755
[total_days] => 7
[display_material_sum] => 2 998 611
[display_work_sum] => 1 173 144
[display_total_sum] => 4 171 755
)
1
4 171 755₽
Работа:1 173 144 ₽
Материалы:2 998 611 ₽
Дни:7
stdClass Object
(
[id] => 87
[attribute_id] => 3
[name] => Оцилиндрованное бревно
[material_modifier] => 1
[work_modifier] => 1
[options] => Array
(
[0] => 180 мм
[1] => 220 мм
[2] => 260 мм
[3] => 320 мм
)
[days] => [7,8,9,10]
[material_price] => [75190,9532,10868,13116]
[work_price] => [3845,4691,5535,6863]
[image] => https://akademik-stroy.ru/wp-content/uploads/materials/ocilindrovannoe-brevno-1.jpg
[area_modifier] => 290.58
[parent_name] => Стены 1 этаж (несущие)
[parent_id] => 3
[material_sum] => 27529375
[work_sum] => 1173144
[total_sum] => 28702519
[total_days] => 7
[display_material_sum] => 27 529 375
[display_work_sum] => 1 173 144
[display_total_sum] => 28 702 519
)
1
28 702 519₽
Работа:1 173 144 ₽
Материалы:27 529 375 ₽
Дни:7
stdClass Object
(
[id] => 88
[attribute_id] => 3
[name] => Срубы
[material_modifier] => 1
[work_modifier] => 1
[options] => Array
(
[0] => 260 мм
[1] => 320 мм
[2] => 360 мм
[3] => 400 мм
[4] => 500 мм
)
[days] => [7,8,9,10,11]
[material_price] => [37975,46709,52314,58069,73167]
[work_price] => [4806,5911,6621,7349,9260]
[image] => https://akademik-stroy.ru/wp-content/uploads/materials/sruby.jpg
[area_modifier] => 290.58
[parent_name] => Стены 1 этаж (несущие)
[parent_id] => 3
[material_sum] => 13903817
[work_sum] => 1466354
[total_sum] => 15370171
[total_days] => 7
[display_material_sum] => 13 903 817
[display_work_sum] => 1 466 354
[display_total_sum] => 15 370 171
)
1
15 370 171₽
Работа:1 466 354 ₽
Материалы:13 903 817 ₽
Дни:7
stdClass Object
(
[id] => 174
[attribute_id] => 3
[name] => Брус
[material_modifier] => 1
[work_modifier] => 1
[options] => Array
(
[0] => 150 мм
[1] => 180 мм
[2] => 200 мм
)
[days] => [7,8,9]
[material_price] => [5127,6152,7367]
[work_price] => [1602,1922,2115]
[image] => https://akademik-stroy.ru/wp-content/uploads/materials/brus.jpg
[area_modifier] => 290.58
[parent_name] => Стены 1 этаж (несущие)
[parent_id] => 3
[material_sum] => 1877153
[work_sum] => 488785
[total_sum] => 2365938
[total_days] => 7
[display_material_sum] => 1 877 153
[display_work_sum] => 488 785
[display_total_sum] => 2 365 938
)
1
2 365 938₽
Работа:488 785 ₽
Материалы:1 877 153 ₽
Дни:7
stdClass Object
(
[id] => 175
[attribute_id] => 3
[name] => Газобетон
[material_modifier] => 1
[work_modifier] => 1
[options] => Array
(
[0] => 300 мм
[1] => 375 мм
[2] => 400 мм
[3] => 500 мм
[4] => 600 мм
)
[days] => [29,31,35,37,44]
[material_price] => [4298,5573,6356,7288,9119]
[work_price] => [4538,5251,5926,6733,7195]
[image] => https://akademik-stroy.ru/wp-content/uploads/materials/gazobeton.jpg
[area_modifier] => 290.58
[parent_name] => Стены 1 этаж (несущие)
[parent_id] => 3
[material_sum] => 1573630
[work_sum] => 1384585
[total_sum] => 2958215
[total_days] => 29
[display_material_sum] => 1 573 630
[display_work_sum] => 1 384 585
[display_total_sum] => 2 958 215
)
1
2 958 215₽
Работа:1 384 585 ₽
Материалы:1 573 630 ₽
Дни:29
stdClass Object
(
[id] => 176
[attribute_id] => 3
[name] => Блок
[material_modifier] => 1
[work_modifier] => 1
[options] => Array
(
[0] => 300 мм
[1] => 375 мм
[2] => 400 мм
[3] => 500 мм
[4] => 600 мм
)
[days] => [29,31,35,37,44]
[material_price] => [2698,3973,4356,6588,7119]
[work_price] => [5038,5851,6426,8733,9195]
[image] => https://akademik-stroy.ru/wp-content/uploads/materials/blok.jpg
[area_modifier] => 290.58
[parent_name] => Стены 1 этаж (несущие)
[parent_id] => 3
[material_sum] => 987821
[work_sum] => 1537139
[total_sum] => 2524960
[total_days] => 29
[display_material_sum] => 987 821
[display_work_sum] => 1 537 139
[display_total_sum] => 2 524 960
)
1
2 524 960₽
Работа:1 537 139 ₽
Материалы:987 821 ₽
Дни:29
stdClass Object
(
[id] => 177
[attribute_id] => 3
[name] => Газосиликатный блок
[material_modifier] => 1
[work_modifier] => 1
[options] => Array
(
[0] => 300 мм
[1] => 375 мм
[2] => 400 мм
[3] => 500 мм
[4] => 600 мм
)
[days] => [29,31,35,37,44]
[material_price] => [4298,5573,6356,7288,9119]
[work_price] => [4538,5251,5926,6733,7195]
[image] => https://akademik-stroy.ru/wp-content/uploads/materials/gazosilikatnyj-blok.jpg
[area_modifier] => 290.58
[parent_name] => Стены 1 этаж (несущие)
[parent_id] => 3
[material_sum] => 1573630
[work_sum] => 1384585
[total_sum] => 2958215
[total_days] => 29
[display_material_sum] => 1 573 630
[display_work_sum] => 1 384 585
[display_total_sum] => 2 958 215
)
1
2 958 215₽
Работа:1 384 585 ₽
Материалы:1 573 630 ₽
Дни:29
stdClass Object
(
[id] => 178
[attribute_id] => 3
[name] => Керамзитобетонный блок
[material_modifier] => 1
[work_modifier] => 1
[options] => Array
(
[0] => 300 мм
[1] => 375 мм
[2] => 400 мм
[3] => 500 мм
[4] => 600 мм
)
[days] => [23,23,24,25,28]
[material_price] => [3641,4298,5693,7613,9612]
[work_price] => [5737,5737,6903,7958,8901]
[image] => https://akademik-stroy.ru/wp-content/uploads/materials/keramzitobetonnyj-blok.jpg
[area_modifier] => 290.58
[parent_name] => Стены 1 этаж (несущие)
[parent_id] => 3
[material_sum] => 1333082
[work_sum] => 1750410
[total_sum] => 3083492
[total_days] => 23
[display_material_sum] => 1 333 082
[display_work_sum] => 1 750 410
[display_total_sum] => 3 083 492
)
1
3 083 492₽
Работа:1 750 410 ₽
Материалы:1 333 082 ₽
Дни:23
stdClass Object
(
[id] => 179
[attribute_id] => 3
[name] => Деревянные
[material_modifier] => 1
[work_modifier] => 1
[options] => Array
(
[0] => 180 мм
[1] => 220 мм
[2] => 260 мм
[3] => 320 мм
)
[days] => [7,8,9,10]
[material_price] => [7950,9458,11961,14472]
[work_price] => [4037,4925,5812,7207]
[image] => https://akademik-stroy.ru/wp-content/uploads/materials/derevyannye.jpg
[area_modifier] => 290.58
[parent_name] => Стены 1 этаж (несущие)
[parent_id] => 3
[material_sum] => 2910740
[work_sum] => 1231725
[total_sum] => 4142465
[total_days] => 7
[display_material_sum] => 2 910 740
[display_work_sum] => 1 231 725
[display_total_sum] => 4 142 465
)
1
4 142 465₽
Работа:1 231 725 ₽
Материалы:2 910 740 ₽
Дни:7
stdClass Object
(
[id] => 181
[attribute_id] => 3
[name] => Камень
[material_modifier] => 1
[work_modifier] => 1
[options] => Array
(
[0] => 300 мм
[1] => 400 мм
[2] => 500 мм
[3] => 600 мм
)
[days] => [25,27,31,34]
[material_price] => [5262,6844,8330,9815]
[work_price] => [8331,9135,10427,11069]
[image] => https://akademik-stroy.ru/wp-content/uploads/materials/kamen.jpg
[area_modifier] => 290.58
[parent_name] => Стены 1 этаж (несущие)
[parent_id] => 3
[material_sum] => 1926580
[work_sum] => 2541863
[total_sum] => 4468443
[total_days] => 25
[display_material_sum] => 1 926 580
[display_work_sum] => 2 541 863
[display_total_sum] => 4 468 443
)
1
4 468 443₽
Работа:2 541 863 ₽
Материалы:1 926 580 ₽
Дни:25
stdClass Object
(
[id] => 182
[attribute_id] => 3
[name] => Каркасно-щитовые
[material_modifier] => 1
[work_modifier] => 1
[options] => Array
(
[0] => 150 мм
[1] => 200 мм
[2] => 250 мм
[3] => 300 мм
[4] => 350 мм
[5] => 400 мм
)
[days] => [15,16,17,18,19,20]
[material_price] => [2379,2639,2898,3458,3601,4175]
[work_price] => [2538,2820,3134,3483,4062,5642]
[image] => https://akademik-stroy.ru/wp-content/uploads/materials/karkasno-shchitovye.jpg
[area_modifier] => 290.58
[parent_name] => Стены 1 этаж (несущие)
[parent_id] => 3
[material_sum] => 871025
[work_sum] => 774367
[total_sum] => 1645392
[total_days] => 15
[display_material_sum] => 871 025
[display_work_sum] => 774 367
[display_total_sum] => 1 645 392
)
1
1 645 392₽
Работа:774 367 ₽
Материалы:871 025 ₽
Дни:15
stdClass Object
(
[id] => 183
[attribute_id] => 3
[name] => Рубленные
[material_modifier] => 1
[work_modifier] => 1
[options] => Array
(
[0] => 150 мм
[1] => 200 мм
[2] => 250 мм
[3] => 300 мм
[4] => 350 мм
[5] => 400 мм
)
[days] => [15,16,17,18,17,18]
[material_price] => [35950,50267,60583,75900,80217,100533]
[work_price] => [9612,12816,16020,19224,22428,25632]
[image] => https://akademik-stroy.ru/wp-content/uploads/materials/rublennye.jpg
[area_modifier] => 290.58
[parent_name] => Стены 1 этаж (несущие)
[parent_id] => 3
[material_sum] => 13162402
[work_sum] => 2932708
[total_sum] => 16095110
[total_days] => 15
[display_material_sum] => 13 162 402
[display_work_sum] => 2 932 708
[display_total_sum] => 16 095 110
)
1
16 095 110₽
Работа:2 932 708 ₽
Материалы:13 162 402 ₽
Дни:15
stdClass Object
(
[id] => 185
[attribute_id] => 3
[name] => Теплоблок
[material_modifier] => 1
[work_modifier] => 1
[options] => Array
(
[0] => 300 мм (с облицовкой, не покрашенный)
[1] => 400 мм (с облицовкой, не покрашенный)
[2] => 300 мм (с облицовкой, покрашенный)
[3] => 400 мм (с облицовкой, покрашенный)
)
[days] => [15,16,15,16]
[material_price] => [2888,3729,3957,4258]
[work_price] => [2564,3229,2949,3713]
[image] => https://akademik-stroy.ru/wp-content/uploads/materials/teploblok.jpg
[area_modifier] => 290.58
[parent_name] => Стены 1 этаж (несущие)
[parent_id] => 3
[material_sum] => 1057386
[work_sum] => 782299
[total_sum] => 1839685
[total_days] => 15
[display_material_sum] => 1 057 386
[display_work_sum] => 782 299
[display_total_sum] => 1 839 685
)
1
1 839 685₽
Работа:782 299 ₽
Материалы:1 057 386 ₽
Дни:15
stdClass Object
(
[id] => 186
[attribute_id] => 3
[name] => Арболитовые блоки
[material_modifier] => 1
[work_modifier] => 1
[options] => Array
(
[0] => 300 мм
[1] => 400 мм
[2] => 600 мм
)
[days] => [19,22,27]
[material_price] => [3210,4475,5852]
[work_price] => [4214,4788,5866]
[image] => https://akademik-stroy.ru/wp-content/uploads/materials/arbolitovye-bloki.png
[area_modifier] => 290.58
[parent_name] => Стены 1 этаж (несущие)
[parent_id] => 3
[material_sum] => 1175280
[work_sum] => 1285729
[total_sum] => 2461009
[total_days] => 19
[display_material_sum] => 1 175 280
[display_work_sum] => 1 285 729
[display_total_sum] => 2 461 009
)
1
2 461 009₽
Работа:1 285 729 ₽
Материалы:1 175 280 ₽
Дни:19
stdClass Object
(
[id] => 187
[attribute_id] => 3
[name] => Полистиролбетон
[material_modifier] => 1
[work_modifier] => 1
[options] => Array
(
[0] => 300 мм
[1] => 400 мм
[2] => 600 мм
)
[days] => [29,31,35]
[material_price] => [2798,4573,5256]
[work_price] => [5038,5851,6426]
[image] => https://akademik-stroy.ru/wp-content/uploads/materials/polistirolbeton.jpg
[area_modifier] => 290.58
[parent_name] => Стены 1 этаж (несущие)
[parent_id] => 3
[material_sum] => 1024434
[work_sum] => 1537139
[total_sum] => 2561573
[total_days] => 29
[display_material_sum] => 1 024 434
[display_work_sum] => 1 537 139
[display_total_sum] => 2 561 573
)
1
2 561 573₽
Работа:1 537 139 ₽
Материалы:1 024 434 ₽
Дни:29
stdClass Object
(
[id] => 188
[attribute_id] => 3
[name] => Шлакоблок
[material_modifier] => 1
[work_modifier] => 1
[options] => Array
(
[0] => 400 мм
[1] => 600 мм
)
[days] => [15,16]
[material_price] => [2391,3471]
[work_price] => [2642,3662]
[image] => https://akademik-stroy.ru/wp-content/uploads/materials/shlakoblok.jpg
[area_modifier] => 290.58
[parent_name] => Стены 1 этаж (несущие)
[parent_id] => 3
[material_sum] => 875419
[work_sum] => 806098
[total_sum] => 1681517
[total_days] => 15
[display_material_sum] => 875 419
[display_work_sum] => 806 098
[display_total_sum] => 1 681 517
)
1
1 681 517₽
Работа:806 098 ₽
Материалы:875 419 ₽
Дни:15
stdClass Object
(
[id] => 189
[attribute_id] => 3
[name] => Теплая керамика
[material_modifier] => 1
[work_modifier] => 1
[options] => Array
(
[0] => 380 мм
[1] => 380 мм Thermo
[2] => 440 мм
[3] => 510 мм
)
[days] => [23,23,24,25]
[material_price] => [4510,5098,6093,8013]
[work_price] => [4737,4937,5903,6958]
[image] => https://akademik-stroy.ru/wp-content/uploads/materials/teplaya-keramika.jpg
[area_modifier] => 290.58
[parent_name] => Стены 1 этаж (несущие)
[parent_id] => 3
[material_sum] => 1651250
[work_sum] => 1445301
[total_sum] => 3096551
[total_days] => 23
[display_material_sum] => 1 651 250
[display_work_sum] => 1 445 301
[display_total_sum] => 3 096 551
)
1
3 096 551₽
Работа:1 445 301 ₽
Материалы:1 651 250 ₽
Дни:23
stdClass Object
(
[id] => 190
[attribute_id] => 3
[name] => Несъемная опалубка
[material_modifier] => 1
[work_modifier] => 1
[options] => Array
(
[0] => 200 мм
[1] => 250 мм
[2] => 300 мм
[3] => 350 мм
)
[days] => [15,17,19,21]
[material_price] => [3302,3902,4108,5008]
[work_price] => [2100,2100,2300,2534]
[image] => https://akademik-stroy.ru/wp-content/uploads/materials/nesemnaya-opalubka.jpg
[area_modifier] => 290.58
[parent_name] => Стены 1 этаж (несущие)
[parent_id] => 3
[material_sum] => 1208964
[work_sum] => 640729
[total_sum] => 1849693
[total_days] => 15
[display_material_sum] => 1 208 964
[display_work_sum] => 640 729
[display_total_sum] => 1 849 693
)
1
1 849 693₽
Работа:640 729 ₽
Материалы:1 208 964 ₽
Дни:15
stdClass Object
(
[id] => 251
[attribute_id] => 3
[name] => Бревно
[material_modifier] => 1
[work_modifier] => 1
[options] => Array
(
[0] => 260 мм
[1] => 320 мм
[2] => 360 мм
[3] => 400 мм
[4] => 500 мм
)
[days] => [7,8,9,10,11]
[material_price] => [1874,24045,26930,30972,38825]
[work_price] => [5046,6207,6952,7716,9723]
[image] => https://akademik-stroy.ru/wp-content/uploads/materials/sruby.jpg
[area_modifier] => 290.58
[parent_name] => Стены 1 этаж (несущие)
[parent_id] => 3
[material_sum] => 686129
[work_sum] => 1539580
[total_sum] => 2225709
[total_days] => 7
[display_material_sum] => 686 129
[display_work_sum] => 1 539 580
[display_total_sum] => 2 225 709
)
1
2 225 709₽
Работа:1 539 580 ₽
Материалы:686 129 ₽
Дни:7
stdClass Object
(
[id] => 7
[attribute_id] => 4
[name] => Деревянные балки
[material_modifier] => 1
[work_modifier] => 1
[options] => Array
(
[0] => без утепления
[1] => утепление 200 мм
[2] => утепление 250 мм
[3] => утепление 300 мм
[4] => утепление 350 мм
[5] => утепление 400 мм
[6] => утепление 450 мм
[7] => утепление 500 мм
)
[days] => [8,9,9,9,11,12,13,14]
[material_price] => [1634,2042,2344,2947,3149,3652,3354,3557]
[work_price] => [1230,1339,1393,1426,1460,1513,1587,1620]
[image] => https://akademik-stroy.ru/wp-content/uploads/materials/derevyannye-balki.png
[area_modifier] => 290.58
[parent_name] => Перекрытие первого этажа
[parent_id] => 4
[material_sum] => 598258
[work_sum] => 375284
[total_sum] => 973542
[total_days] => 8
[display_material_sum] => 598 258
[display_work_sum] => 375 284
[display_total_sum] => 973 542
)
1
973 542₽
Работа:375 284 ₽
Материалы:598 258 ₽
Дни:8
stdClass Object
(
[id] => 8
[attribute_id] => 4
[name] => Сборные ж/б плиты
[material_modifier] => 1
[work_modifier] => 1
[options] => Array
(
[0] => без утепления
[1] => утепление 150 мм
[2] => утепление 200 мм
[3] => утепление 250 мм
[4] => утепление 300 мм
[5] => утепление 350 мм
[6] => утепление 400 мм
[7] => утепление 450 мм
[8] => утепление 500 мм
)
[days] => [13,15,15,15,15,15,15,15,15]
[material_price] => [3067,5577,5928,6679,7730,8782,9833,10884,11935]
[work_price] => [1520,1956,2102,2247,2392,2537,2684,2829,2974]
[image] => https://akademik-stroy.ru/wp-content/uploads/materials/sbornye-zh-b-plity-2.jpg
[area_modifier] => 290.58
[parent_name] => Перекрытие первого этажа
[parent_id] => 4
[material_sum] => 1122923
[work_sum] => 463766
[total_sum] => 1586689
[total_days] => 13
[display_material_sum] => 1 122 923
[display_work_sum] => 463 766
[display_total_sum] => 1 586 689
)
1
1 586 689₽
Работа:463 766 ₽
Материалы:1 122 923 ₽
Дни:13
stdClass Object
(
[id] => 89
[attribute_id] => 4
[name] => Монолитная ж/б плита
[material_modifier] => 1
[work_modifier] => 1
[options] => Array
(
[0] => без утепления
[1] => утепление 150 мм
[2] => утепление 200 мм
[3] => утепление 250 мм
[4] => утепление 300 мм
[5] => утепление 350 мм
[6] => утепление 400 мм
[7] => утепление 450 мм
[8] => утепление 500 мм
)
[days] => [18,20,20,20,20,20,20,20,20]
[material_price] => [4837,6572,7224,7375,79426,8177,8728,9180,10031]
[work_price] => [3348,3921,4112,4302,4493,4684,4875,5066,5256]
[image] => https://akademik-stroy.ru/wp-content/uploads/materials/monolitnaya-zh-b-plita-2.jpg
[area_modifier] => 290.58
[parent_name] => Перекрытие первого этажа
[parent_id] => 4
[material_sum] => 1770975
[work_sum] => 1021505
[total_sum] => 2792480
[total_days] => 18
[display_material_sum] => 1 770 975
[display_work_sum] => 1 021 505
[display_total_sum] => 2 792 480
)
1
2 792 480₽
Работа:1 021 505 ₽
Материалы:1 770 975 ₽
Дни:18
stdClass Object
(
[id] => 164
[attribute_id] => 37
[name] => Металлочерепица
[material_modifier] => 1
[work_modifier] => 1
[options] => Array
(
)
[days] => [20]
[material_price] => [6112]
[work_price] => [5726]
[image] => https://akademik-stroy.ru/wp-content/uploads/materials/metallocherepica.jpg
[area_modifier] => 290.58
[parent_name] => Крыша (Скатная)
[parent_id] => 37
[material_sum] => 2237791
[work_sum] => 1747054
[total_sum] => 3984845
[total_days] => 20
[display_material_sum] => 2 237 791
[display_work_sum] => 1 747 054
[display_total_sum] => 3 984 845
)
1
3 984 845₽
Работа:1 747 054 ₽
Материалы:2 237 791 ₽
Дни:20
stdClass Object
(
[id] => 165
[attribute_id] => 37
[name] => Гибкая черепица
[material_modifier] => 1
[work_modifier] => 1
[options] => Array
(
)
[days] => [20]
[material_price] => [6980]
[work_price] => [5950]
[image] => https://akademik-stroy.ru/wp-content/uploads/materials/gibkaya-cherepica.jpg
[area_modifier] => 290.58
[parent_name] => Крыша (Скатная)
[parent_id] => 37
[material_sum] => 2555593
[work_sum] => 1815399
[total_sum] => 4370992
[total_days] => 20
[display_material_sum] => 2 555 593
[display_work_sum] => 1 815 399
[display_total_sum] => 4 370 992
)
1
4 370 992₽
Работа:1 815 399 ₽
Материалы:2 555 593 ₽
Дни:20
stdClass Object
(
[id] => 166
[attribute_id] => 37
[name] => Цементно-песчаная черепица
[material_modifier] => 1
[work_modifier] => 1
[options] => Array
(
)
[days] => [20]
[material_price] => [10560]
[work_price] => [9456]
[image] => https://akademik-stroy.ru/wp-content/uploads/materials/cementno-peschanaya-cherepica.jpg
[area_modifier] => 290.58
[parent_name] => Крыша (Скатная)
[parent_id] => 37
[material_sum] => 3866341
[work_sum] => 2885111
[total_sum] => 6751452
[total_days] => 20
[display_material_sum] => 3 866 341
[display_work_sum] => 2 885 111
[display_total_sum] => 6 751 452
)
1
6 751 452₽
Работа:2 885 111 ₽
Материалы:3 866 341 ₽
Дни:20
stdClass Object
(
[id] => 167
[attribute_id] => 37
[name] => Композитная черепица
[material_modifier] => 1
[work_modifier] => 1
[options] => Array
(
)
[days] => [20]
[material_price] => [9506]
[work_price] => [8905]
[image] => https://akademik-stroy.ru/wp-content/uploads/materials/kompozitnaya-cherepica.jpg
[area_modifier] => 290.58
[parent_name] => Крыша (Скатная)
[parent_id] => 37
[material_sum] => 3480439
[work_sum] => 2716996
[total_sum] => 6197435
[total_days] => 20
[display_material_sum] => 3 480 439
[display_work_sum] => 2 716 996
[display_total_sum] => 6 197 435
)
1
6 197 435₽
Работа:2 716 996 ₽
Материалы:3 480 439 ₽
Дни:20
stdClass Object
(
[id] => 168
[attribute_id] => 37
[name] => Керамическая черепица
[material_modifier] => 1
[work_modifier] => 1
[options] => Array
(
)
[days] => [20]
[material_price] => [12750]
[work_price] => [9456]
[image] => https://akademik-stroy.ru/wp-content/uploads/materials/keramicheskaya-cherepica.jpg
[area_modifier] => 290.58
[parent_name] => Крыша (Скатная)
[parent_id] => 37
[material_sum] => 4668168
[work_sum] => 2885111
[total_sum] => 7553279
[total_days] => 20
[display_material_sum] => 4 668 168
[display_work_sum] => 2 885 111
[display_total_sum] => 7 553 279
)
1
7 553 279₽
Работа:2 885 111 ₽
Материалы:4 668 168 ₽
Дни:20
stdClass Object
(
[id] => 169
[attribute_id] => 37
[name] => Металлическая фальцевая
[material_modifier] => 1
[work_modifier] => 1
[options] => Array
(
)
[days] => [20]
[material_price] => [8550]
[work_price] => [8190]
[image] => https://akademik-stroy.ru/wp-content/uploads/materials/metallicheskaya-falcevaya.jpg
[area_modifier] => 290.58
[parent_name] => Крыша (Скатная)
[parent_id] => 37
[material_sum] => 3130418
[work_sum] => 2498843
[total_sum] => 5629261
[total_days] => 20
[display_material_sum] => 3 130 418
[display_work_sum] => 2 498 843
[display_total_sum] => 5 629 261
)
1
5 629 261₽
Работа:2 498 843 ₽
Материалы:3 130 418 ₽
Дни:20
stdClass Object
(
[id] => 170
[attribute_id] => 37
[name] => Медная фальцевая
[material_modifier] => 1
[work_modifier] => 1
[options] => Array
(
)
[days] => [20]
[material_price] => [20450]
[work_price] => [16750]
[image] => https://akademik-stroy.ru/wp-content/uploads/materials/mednaya-falcevaya.jpg
[area_modifier] => 290.58
[parent_name] => Крыша (Скатная)
[parent_id] => 37
[material_sum] => 7487375
[work_sum] => 5110576
[total_sum] => 12597951
[total_days] => 20
[display_material_sum] => 7 487 375
[display_work_sum] => 5 110 576
[display_total_sum] => 12 597 951
)
1
12 597 951₽
Работа:5 110 576 ₽
Материалы:7 487 375 ₽
Дни:20
stdClass Object
(
[id] => 171
[attribute_id] => 37
[name] => Зеленая кровля
[material_modifier] => 1
[work_modifier] => 1
[options] => Array
(
)
[days] => [20]
[material_price] => [19850]
[work_price] => [16780]
[image] => https://akademik-stroy.ru/wp-content/uploads/materials/zelenaya-krovlya.jpg
[area_modifier] => 290.58
[parent_name] => Крыша (Скатная)
[parent_id] => 37
[material_sum] => 7267696
[work_sum] => 5119729
[total_sum] => 12387425
[total_days] => 20
[display_material_sum] => 7 267 696
[display_work_sum] => 5 119 729
[display_total_sum] => 12 387 425
)
1
12 387 425₽
Работа:5 119 729 ₽
Материалы:7 267 696 ₽
Дни:20
stdClass Object
(
[id] => 172
[attribute_id] => 37
[name] => Профлист
[material_modifier] => 1
[work_modifier] => 1
[options] => Array
(
)
[days] => [20]
[material_price] => [3450]
[work_price] => [3750]
[image] => https://akademik-stroy.ru/wp-content/uploads/materials/proflist.jpg
[area_modifier] => 290.58
[parent_name] => Крыша (Скатная)
[parent_id] => 37
[material_sum] => 1263151
[work_sum] => 1144159
[total_sum] => 2407310
[total_days] => 20
[display_material_sum] => 1 263 151
[display_work_sum] => 1 144 159
[display_total_sum] => 2 407 310
)
1
2 407 310₽
Работа:1 144 159 ₽
Материалы:1 263 151 ₽
Дни:20
stdClass Object
(
[id] => 51
[attribute_id] => 26
[name] => Есть
[material_modifier] => 1
[work_modifier] => 1
[options] => Array
(
[0] => Профиль 58 мм, 3-камерный, стеклопакет 2-камерный до 32 мм
[1] => Профиль 60 мм, 4-камерный, стеклопакет 2-камерный до 32 мм
[2] => Профиль 70 мм, 5-камерный, стеклопакет 2-камерный до 40 мм
[3] => Профиль 72 мм, 5-камерный, стеклопакет 2-камерный до 40 мм
[4] => Алюминиевые окна Alutech профиль 72 мм, стеклопакет 2-камерный
)
[days] => [3,3,3,3,3]
[material_price] => [1339,2124,2867,3023,29596]
[work_price] => [635,647,659,668,2579]
[image] => https://akademik-stroy.ru/wp-content/uploads/materials/okna.jpg
[area_modifier] => 235.8
[parent_name] => Окна
[parent_id] => 26
[material_sum] => 397828
[work_sum] => 157220
[total_sum] => 555048
[total_days] => 3
[display_material_sum] => 397 828
[display_work_sum] => 157 220
[display_total_sum] => 555 048
)
1
555 048₽
Работа:157 220 ₽
Материалы:397 828 ₽
Дни:3
stdClass Object
(
[id] => 52
[attribute_id] => 26
[name] => Нет
[material_modifier] => 2
[work_modifier] => 1
[options] =>
[days] => null
[material_price] => null
[work_price] => null
[image] => https://akademik-stroy.ru/wp-content/uploads/materials/okna.jpg
[area_modifier] => 235.8
[parent_name] => Окна
[parent_id] => 26
[material_sum] => 0
[work_sum] => 0
[total_sum] => 0
[total_days] => 0
[display_material_sum] => 0
[display_work_sum] => 0
[display_total_sum] => 0
)
1
0₽
Работа:0 ₽
Материалы:0 ₽
Дни:0
stdClass Object
(
[id] => 53
[attribute_id] => 27
[name] => Есть
[material_modifier] => 1
[work_modifier] => 1
[options] => Array
(
)
[days] => [1]
[material_price] => [10000]
[work_price] => [5500]
[image] => https://akademik-stroy.ru/wp-content/uploads/materials/dveri.jpg
[area_modifier] => 1
[parent_name] => Двери входные
[parent_id] => 27
[material_sum] => 12600
[work_sum] => 5775
[total_sum] => 18375
[total_days] => 1
[display_material_sum] => 12 600
[display_work_sum] => 5 775
[display_total_sum] => 18 375
)
1
18 375₽
Работа:5 775 ₽
Материалы:12 600 ₽
Дни:1
stdClass Object
(
[id] => 54
[attribute_id] => 27
[name] => Нет
[material_modifier] => 1
[work_modifier] => 1
[options] => Array
(
)
[days] => [0]
[material_price] => [0]
[work_price] => [0]
[image] => https://akademik-stroy.ru/wp-content/uploads/materials/dveri.jpg
[area_modifier] => 1
[parent_name] => Двери входные
[parent_id] => 27
[material_sum] => 0
[work_sum] => 0
[total_sum] => 0
[total_days] => 0
[display_material_sum] => 0
[display_work_sum] => 0
[display_total_sum] => 0
)
1
0₽
Работа:0 ₽
Материалы:0 ₽
Дни:0
stdClass Object
(
[id] => 25
[attribute_id] => 13
[name] => Нет
[material_modifier] => 1
[work_modifier] => 1
[options] => Array
(
)
[days] => [0]
[material_price] => [0]
[work_price] => [0]
[image] => https://akademik-stroy.ru/wp-content/uploads/materials/mineralovata-krov.jpg
[area_modifier] => 290.58
[parent_name] => Утепление кровли (Мансарда)
[parent_id] => 13
[material_sum] => 0
[work_sum] => 0
[total_sum] => 0
[total_days] => 0
[display_material_sum] => 0
[display_work_sum] => 0
[display_total_sum] => 0
)
1
0₽
Работа:0 ₽
Материалы:0 ₽
Дни:0
stdClass Object
(
[id] => 26
[attribute_id] => 13
[name] => Минераловатный
[material_modifier] => 1
[work_modifier] => 1
[options] => Array
(
[0] => 50 мм
[1] => 100 мм
[2] => 150 мм
[3] => 200 мм
[4] => 250 мм
[5] => 300 мм
[6] => 350 мм
[7] => 400 мм
[8] => 450 мм
[9] => 500 мм
)
[days] => [5,5,6,6,6,7,7,7,8,8]
[material_price] => [1158,1414,1772,2230,3602,4060,4974,5890,6408,7718]
[work_price] => [650,846,846,1098,1318,1450,1596,1754,1930,2122]
[image] => https://akademik-stroy.ru/wp-content/uploads/materials/mineralovata-krov.jpg
[area_modifier] => 290.58
[parent_name] => Утепление кровли (Мансарда)
[parent_id] => 13
[material_sum] => 423979
[work_sum] => 198321
[total_sum] => 622300
[total_days] => 5
[display_material_sum] => 423 979
[display_work_sum] => 198 321
[display_total_sum] => 622 300
)
1
622 300₽
Работа:198 321 ₽
Материалы:423 979 ₽
Дни:5
stdClass Object
(
[id] => 123
[attribute_id] => 13
[name] => Эковата (целлюлозная вата)
[material_modifier] => 1
[work_modifier] => 1
[options] => Array
(
[0] => 50 мм
[1] => 100 мм
[2] => 150 мм
[3] => 200 мм
[4] => 250 мм
[5] => 300 мм
[6] => 350 мм
[7] => 400 мм
[8] => 450 мм
[9] => 500 мм
)
[days] => [3,3,4,4,4,5,5,5,5,5]
[material_price] => [820,1638,2458,3276,5734,6552,8190,9828,11466,13104]
[work_price] => [234,304,304,396,474,522,574,632,694,764]
[image] => https://akademik-stroy.ru/wp-content/uploads/materials/ehkovata-krov.jpg
[area_modifier] => 290.58
[parent_name] => Утепление кровли (Мансарда)
[parent_id] => 13
[material_sum] => 300227
[work_sum] => 71396
[total_sum] => 371623
[total_days] => 3
[display_material_sum] => 300 227
[display_work_sum] => 71 396
[display_total_sum] => 371 623
)
1
371 623₽
Работа:71 396 ₽
Материалы:300 227 ₽
Дни:3
stdClass Object
(
[id] => 124
[attribute_id] => 13
[name] => Экструдированный пенополистирол
[material_modifier] => 1
[work_modifier] => 1
[options] => Array
(
[0] => 50 мм
[1] => 100 мм
[2] => 150 мм
[3] => 200 мм
[4] => 250 мм
[5] => 300 мм
[6] => 350 мм
[7] => 400 мм
[8] => 450 мм
[9] => 500 мм
)
[days] => [3,3,4,4,4,5,5,5,5,6]
[material_price] => [1146,2292,3438,4584,8020,9166,11458,13750,16040,18332]
[work_price] => [390,508,508,660,790,870,958,1052,1158,1274]
[image] => https://akademik-stroy.ru/wp-content/uploads/materials/epps-krov.jpg
[area_modifier] => 290.58
[parent_name] => Утепление кровли (Мансарда)
[parent_id] => 13
[material_sum] => 419586
[work_sum] => 118993
[total_sum] => 538579
[total_days] => 3
[display_material_sum] => 419 586
[display_work_sum] => 118 993
[display_total_sum] => 538 579
)
1
538 579₽
Работа:118 993 ₽
Материалы:419 586 ₽
Дни:3
stdClass Object
(
[id] => 125
[attribute_id] => 13
[name] => ПСБ (ППС-пенополистирол)
[material_modifier] => 1
[work_modifier] => 1
[options] => Array
(
[0] => 50 мм
[1] => 100 мм
[2] => 150 мм
[3] => 200 мм
[4] => 250 мм
[5] => 300 мм
[6] => 350 мм
[7] => 400 мм
[8] => 450 мм
[9] => 500 мм
)
[days] => [3,3,4,4,4,5,5,5,5,6]
[material_price] => [476,954,1430,1906,3336,3814,4766,5720,6674,7626]
[work_price] => [390,508,508,660,790,870,958,1052,1158,1274]
[image] => https://akademik-stroy.ru/wp-content/uploads/materials/psb-krov.jpg
[area_modifier] => 290.58
[parent_name] => Утепление кровли (Мансарда)
[parent_id] => 13
[material_sum] => 174278
[work_sum] => 118993
[total_sum] => 293271
[total_days] => 3
[display_material_sum] => 174 278
[display_work_sum] => 118 993
[display_total_sum] => 293 271
)
1
293 271₽
Работа:118 993 ₽
Материалы:174 278 ₽
Дни:3
stdClass Object
(
[id] => 126
[attribute_id] => 13
[name] => ППУ (Пенополиуретан)
[material_modifier] => 1
[work_modifier] => 1
[options] => Array
(
[0] => 50 мм
[1] => 100 мм
[2] => 150 мм
[3] => 200 мм
[4] => 250 мм
[5] => 300 мм
[6] => 350 мм
[7] => 400 мм
[8] => 450 мм
[9] => 500 мм
)
[days] => [2,2,3,3,3,3,4,4,4,4]
[material_price] => [2080,4160,6240,8320,14560,16640,20800,24960,29120,33280]
[work_price] => [234,304,304,396,474,522,574,632,694,764]
[image] => https://akademik-stroy.ru/wp-content/uploads/materials/ppu-krov.jpg
[area_modifier] => 290.58
[parent_name] => Утепление кровли (Мансарда)
[parent_id] => 13
[material_sum] => 761552
[work_sum] => 71396
[total_sum] => 832948
[total_days] => 2
[display_material_sum] => 761 552
[display_work_sum] => 71 396
[display_total_sum] => 832 948
)
1
832 948₽
Работа:71 396 ₽
Материалы:761 552 ₽
Дни:2
stdClass Object
(
[id] => 127
[attribute_id] => 13
[name] => PIR-плиты (пенополиизоцианурат)
[material_modifier] => 1
[work_modifier] => 1
[options] => Array
(
[0] => 50 мм
[1] => 100 мм
[2] => 150 мм
[3] => 200 мм
[4] => 250 мм
[5] => 300 мм
[6] => 350 мм
[7] => 400 мм
[8] => 450 мм
[9] => 500 мм
)
[days] => [3,3,4,4,4,5,5,5,5,6]
[material_price] => [2646,5290,7936,10580,18516,21162,26452,31742,37032,42324]
[work_price] => [390,508,508,660,790,870,958,1052,1158,1274]
[image] => https://akademik-stroy.ru/wp-content/uploads/materials/pir-krov.jpg
[area_modifier] => 290.58
[parent_name] => Утепление кровли (Мансарда)
[parent_id] => 13
[material_sum] => 968782
[work_sum] => 118993
[total_sum] => 1087775
[total_days] => 3
[display_material_sum] => 968 782
[display_work_sum] => 118 993
[display_total_sum] => 1 087 775
)
1
1 087 775₽
Работа:118 993 ₽
Материалы:968 782 ₽
Дни:3
stdClass Object
(
[id] => 27
[attribute_id] => 14
[name] => Нет
[material_modifier] => 1
[work_modifier] => 1
[options] => Array
(
)
[days] => [0]
[material_price] => [0]
[work_price] => [0]
[image] => https://akademik-stroy.ru/wp-content/uploads/materials/mansardnye-okna-2.jpg
[area_modifier] => 1
[parent_name] => Мансардные окна
[parent_id] => 14
[material_sum] => 0
[work_sum] => 0
[total_sum] => 0
[total_days] => 0
[display_material_sum] => 0
[display_work_sum] => 0
[display_total_sum] => 0
)
1
0₽
Работа:0 ₽
Материалы:0 ₽
Дни:0
stdClass Object
(
[id] => 28
[attribute_id] => 14
[name] => Есть
[material_modifier] => 1
[work_modifier] => 1
[options] => Array
(
[0] => 55x78
[1] => 55x98
)
[days] => [6,7]
[material_price] => [47480,68700]
[work_price] => [17900,19500]
[image] => https://akademik-stroy.ru/wp-content/uploads/materials/mansardnye-okna-2.jpg
[area_modifier] => 1
[parent_name] => Мансардные окна
[parent_id] => 14
[material_sum] => 59825
[work_sum] => 18795
[total_sum] => 78620
[total_days] => 6
[display_material_sum] => 59 825
[display_work_sum] => 18 795
[display_total_sum] => 78 620
)
1
78 620₽
Работа:18 795 ₽
Материалы:59 825 ₽
Дни:6
stdClass Object
(
[id] => 29
[attribute_id] => 15
[name] => Нет
[material_modifier] => 1
[work_modifier] => 1
[options] => Array
(
)
[days] => [0]
[material_price] => [0]
[work_price] => [0]
[image] => https://akademik-stroy.ru/wp-content/uploads/materials/sofit.jpg
[area_modifier] => 290.58
[parent_name] => Подшивка кровли
[parent_id] => 15
[material_sum] => 0
[work_sum] => 0
[total_sum] => 0
[total_days] => 0
[display_material_sum] => 0
[display_work_sum] => 0
[display_total_sum] => 0
)
1
0₽
Работа:0 ₽
Материалы:0 ₽
Дни:0
stdClass Object
(
[id] => 30
[attribute_id] => 15
[name] => Есть
[material_modifier] => 1
[work_modifier] => 1
[options] => Array
(
[0] => Софиты (ПВХ)
[1] => Cedral
[2] => ДПК
[3] => Планкен
)
[days] => [7,10,9,8]
[material_price] => [1803,3213,3025,3150]
[work_price] => [1529,2188,2075,1923]
[image] => https://akademik-stroy.ru/wp-content/uploads/materials/sofit.jpg
[area_modifier] => 290.58
[parent_name] => Подшивка кровли
[parent_id] => 15
[material_sum] => 660134
[work_sum] => 466512
[total_sum] => 1126646
[total_days] => 7
[display_material_sum] => 660 134
[display_work_sum] => 466 512
[display_total_sum] => 1 126 646
)
1
1 126 646₽
Работа:466 512 ₽
Материалы:660 134 ₽
Дни:7
stdClass Object
(
[id] => 31
[attribute_id] => 16
[name] => Нет
[material_modifier] => 1
[work_modifier] => 1
[options] => Array
(
)
[days] => [0]
[material_price] => [0]
[work_price] => [0]
[image] => https://akademik-stroy.ru/wp-content/uploads/materials/docke-standard-pvh.jpg
[area_modifier] => 290.58
[parent_name] => Водосточная система
[parent_id] => 16
[material_sum] => 0
[work_sum] => 0
[total_sum] => 0
[total_days] => 0
[display_material_sum] => 0
[display_work_sum] => 0
[display_total_sum] => 0
)
1
0₽
Работа:0 ₽
Материалы:0 ₽
Дни:0
stdClass Object
(
[id] => 32
[attribute_id] => 16
[name] => Есть
[material_modifier] => 1
[work_modifier] => 1
[options] => Array
(
[0] => Döcke Standard (ПВХ)
[1] => Металлические Grand Line
)
[days] => [7,7]
[material_price] => [1842,2703]
[work_price] => [1491,1529]
[image] => https://akademik-stroy.ru/wp-content/uploads/materials/docke-standard-pvh.jpg
[area_modifier] => 290.58
[parent_name] => Водосточная система
[parent_id] => 16
[material_sum] => 674413
[work_sum] => 454918
[total_sum] => 1129331
[total_days] => 7
[display_material_sum] => 674 413
[display_work_sum] => 454 918
[display_total_sum] => 1 129 331
)
1
1 129 331₽
Работа:454 918 ₽
Материалы:674 413 ₽
Дни:7
stdClass Object
(
[id] => 33
[attribute_id] => 17
[name] => Нет
[material_modifier] => 1
[work_modifier] => 1
[options] => Array
(
)
[days] => [0]
[material_price] => [0]
[work_price] => [0]
[image] => https://akademik-stroy.ru/wp-content/uploads/materials/mineralovata.jpg
[area_modifier] => 290.58
[parent_name] => Дополнительное утепление наружных стен
[parent_id] => 17
[material_sum] => 0
[work_sum] => 0
[total_sum] => 0
[total_days] => 0
[display_material_sum] => 0
[display_work_sum] => 0
[display_total_sum] => 0
)
1
0₽
Работа:0 ₽
Материалы:0 ₽
Дни:0
stdClass Object
(
[id] => 34
[attribute_id] => 17
[name] => Минераловатный
[material_modifier] => 1
[work_modifier] => 1
[options] => Array
(
[0] => 50 мм
[1] => 100 мм
[2] => 150 мм
[3] => 200 мм
[4] => 250 мм
[5] => 300 мм
)
[days] => [7,8,10,12,14,15]
[material_price] => [3437,3613,3803,3915,4601,4830]
[work_price] => [2325,2423,2523,2749,2859,3025]
[image] => https://akademik-stroy.ru/wp-content/uploads/materials/mineralovata.jpg
[area_modifier] => 290.58
[parent_name] => Дополнительное утепление наружных стен
[parent_id] => 17
[material_sum] => 1258392
[work_sum] => 709378
[total_sum] => 1967770
[total_days] => 7
[display_material_sum] => 1 258 392
[display_work_sum] => 709 378
[display_total_sum] => 1 967 770
)
1
1 967 770₽
Работа:709 378 ₽
Материалы:1 258 392 ₽
Дни:7
stdClass Object
(
[id] => 128
[attribute_id] => 17
[name] => Эковата (целлюлозная вата)
[material_modifier] => 1
[work_modifier] => 1
[options] => Array
(
[0] => 50 мм
[1] => 100 мм
[2] => 150 мм
[3] => 200 мм
[4] => 250 мм
[5] => 300 мм
)
[days] => [3,4,5,6,7,8]
[material_price] => [810,1319,1629,1838,2267,2676]
[work_price] => [1225,1323,1423,1549,1659,1725]
[image] => https://akademik-stroy.ru/wp-content/uploads/materials/ehkovata.jpg
[area_modifier] => 290.58
[parent_name] => Дополнительное утепление наружных стен
[parent_id] => 17
[material_sum] => 296566
[work_sum] => 373759
[total_sum] => 670325
[total_days] => 3
[display_material_sum] => 296 566
[display_work_sum] => 373 759
[display_total_sum] => 670 325
)
1
670 325₽
Работа:373 759 ₽
Материалы:296 566 ₽
Дни:3
stdClass Object
(
[id] => 129
[attribute_id] => 17
[name] => Экструдированный пенополистирол
[material_modifier] => 1
[work_modifier] => 1
[options] => Array
(
[0] => 50 мм
[1] => 100 мм
[2] => 150 мм
[3] => 200 мм
[4] => 250 мм
[5] => 300 мм
)
[days] => [5,6,7,8,9,10]
[material_price] => [4560,4300,5119,6292,7010,8583]
[work_price] => [1795,1954,2254,2330,2595,2735]
[image] => https://akademik-stroy.ru/wp-content/uploads/materials/epps.jpg
[area_modifier] => 290.58
[parent_name] => Дополнительное утепление наружных стен
[parent_id] => 17
[material_sum] => 1669556
[work_sum] => 547671
[total_sum] => 2217227
[total_days] => 5
[display_material_sum] => 1 669 556
[display_work_sum] => 547 671
[display_total_sum] => 2 217 227
)
1
2 217 227₽
Работа:547 671 ₽
Материалы:1 669 556 ₽
Дни:5
stdClass Object
(
[id] => 130
[attribute_id] => 17
[name] => ПСБ (ППС-пенополистирол)
[material_modifier] => 1
[work_modifier] => 1
[options] => Array
(
[0] => 50 мм
[1] => 100 мм
[2] => 150 мм
[3] => 200 мм
[4] => 250 мм
[5] => 300 мм
)
[days] => [5,6,7,8,9,10]
[material_price] => [4822,5200,5819,6292,7010,7583]
[work_price] => [1795,1954,2254,2330,2595,2735]
[image] => https://akademik-stroy.ru/wp-content/uploads/materials/psb.jpg
[area_modifier] => 290.58
[parent_name] => Дополнительное утепление наружных стен
[parent_id] => 17
[material_sum] => 1765483
[work_sum] => 547671
[total_sum] => 2313154
[total_days] => 5
[display_material_sum] => 1 765 483
[display_work_sum] => 547 671
[display_total_sum] => 2 313 154
)
1
2 313 154₽
Работа:547 671 ₽
Материалы:1 765 483 ₽
Дни:5
stdClass Object
(
[id] => 131
[attribute_id] => 17
[name] => ППУ (Пенополиуретан)
[material_modifier] => 1
[work_modifier] => 1
[options] => Array
(
[0] => 50 мм
[1] => 100 мм
[2] => 150 мм
[3] => 200 мм
[4] => 250 мм
[5] => 300 мм
)
[days] => [3,4,5,6,7,8]
[material_price] => [2860,3400,4219,4592,5010,5583]
[work_price] => [729,900,980,1120,1280,1530]
[image] => https://akademik-stroy.ru/wp-content/uploads/materials/ppu.jpg
[area_modifier] => 290.58
[parent_name] => Дополнительное утепление наружных стен
[parent_id] => 17
[material_sum] => 1047134
[work_sum] => 222424
[total_sum] => 1269558
[total_days] => 3
[display_material_sum] => 1 047 134
[display_work_sum] => 222 424
[display_total_sum] => 1 269 558
)
1
1 269 558₽
Работа:222 424 ₽
Материалы:1 047 134 ₽
Дни:3
stdClass Object
(
[id] => 132
[attribute_id] => 17
[name] => PIR-плиты (пенополиизоцианурат)
[material_modifier] => 1
[work_modifier] => 1
[options] => Array
(
[0] => 50 мм
[1] => 100 мм
[2] => 150 мм
[3] => 200 мм
[4] => 250 мм
[5] => 300 мм
)
[days] => [5,6,7,8,9,10]
[material_price] => [8323,15645,20968,25900,29258,30581]
[work_price] => [800,900,970,1150,1280,1330]
[image] => https://akademik-stroy.ru/wp-content/uploads/materials/pir.jpg
[area_modifier] => 290.58
[parent_name] => Дополнительное утепление наружных стен
[parent_id] => 17
[material_sum] => 3047307
[work_sum] => 244087
[total_sum] => 3291394
[total_days] => 5
[display_material_sum] => 3 047 307
[display_work_sum] => 244 087
[display_total_sum] => 3 291 394
)
1
3 291 394₽
Работа:244 087 ₽
Материалы:3 047 307 ₽
Дни:5
stdClass Object
(
[id] => 37
[attribute_id] => 19
[name] => Нет
[material_modifier] => 1
[work_modifier] => 1
[options] => Array
(
)
[days] => [0]
[material_price] => [0]
[work_price] => [0]
[image] => https://akademik-stroy.ru/wp-content/uploads/materials/imitaciya-brusa.jpg
[area_modifier] => 290.58
[parent_name] => Наружная отделка фасада
[parent_id] => 19
[material_sum] => 0
[work_sum] => 0
[total_sum] => 0
[total_days] => 0
[display_material_sum] => 0
[display_work_sum] => 0
[display_total_sum] => 0
)
1
0₽
Работа:0 ₽
Материалы:0 ₽
Дни:0
stdClass Object
(
[id] => 38
[attribute_id] => 19
[name] => Имитация бруса
[material_modifier] => 1
[work_modifier] => 1
[options] => Array
(
[0] => Сосна
[1] => Ель
[2] => Лиственница
)
[days] => [20,20,20]
[material_price] => [2994,2762,4954]
[work_price] => [1397,1231,1577]
[image] => https://akademik-stroy.ru/wp-content/uploads/materials/imitaciya-brusa.jpg
[area_modifier] => 290.58
[parent_name] => Наружная отделка фасада
[parent_id] => 19
[material_sum] => 1096196
[work_sum] => 426237
[total_sum] => 1522433
[total_days] => 20
[display_material_sum] => 1 096 196
[display_work_sum] => 426 237
[display_total_sum] => 1 522 433
)
1
1 522 433₽
Работа:426 237 ₽
Материалы:1 096 196 ₽
Дни:20
stdClass Object
(
[id] => 136
[attribute_id] => 19
[name] => Планкен
[material_modifier] => 1
[work_modifier] => 1
[options] => Array
(
[0] => Сосна
[1] => Ель
[2] => Лиственница
)
[days] => [20,20,20]
[material_price] => [3194,2862,5154]
[work_price] => [1537,1354,1735]
[image] => https://akademik-stroy.ru/wp-content/uploads/materials/planken.jpg
[area_modifier] => 290.58
[parent_name] => Наружная отделка фасада
[parent_id] => 19
[material_sum] => 1169422
[work_sum] => 468953
[total_sum] => 1638375
[total_days] => 20
[display_material_sum] => 1 169 422
[display_work_sum] => 468 953
[display_total_sum] => 1 638 375
)
1
1 638 375₽
Работа:468 953 ₽
Материалы:1 169 422 ₽
Дни:20
stdClass Object
(
[id] => 137
[attribute_id] => 19
[name] => Штукатурка
[material_modifier] => 1
[work_modifier] => 1
[options] => Array
(
[0] => Цементно-песчаная (минеральная)
[1] => Мокрый фасад
)
[days] => [35,35]
[material_price] => [2231,3938]
[work_price] => [1202,2422]
[image] => https://akademik-stroy.ru/wp-content/uploads/materials/shtukaturka.jpg
[area_modifier] => 290.58
[parent_name] => Наружная отделка фасада
[parent_id] => 19
[material_sum] => 816838
[work_sum] => 366741
[total_sum] => 1183579
[total_days] => 35
[display_material_sum] => 816 838
[display_work_sum] => 366 741
[display_total_sum] => 1 183 579
)
1
1 183 579₽
Работа:366 741 ₽
Материалы:816 838 ₽
Дни:35
stdClass Object
(
[id] => 138
[attribute_id] => 19
[name] => Облицовочный кирпич
[material_modifier] => 1
[work_modifier] => 1
[options] => Array
(
[0] => Керамический
[1] => Клинкерный
[2] => Ручной формовки
[3] => Гиперпрессованный
[4] => Силикатный кирпич
)
[days] => [45,45,45,45,45]
[material_price] => [8174,9148,1040,1257,5876]
[work_price] => [3240,3758,4536,4017,3369]
[image] => https://akademik-stroy.ru/wp-content/uploads/materials/oblicovochnyj-kirpich.jpg
[area_modifier] => 290.58
[parent_name] => Наружная отделка фасада
[parent_id] => 19
[material_sum] => 2992753
[work_sum] => 988553
[total_sum] => 3981306
[total_days] => 45
[display_material_sum] => 2 992 753
[display_work_sum] => 988 553
[display_total_sum] => 3 981 306
)
1
3 981 306₽
Работа:988 553 ₽
Материалы:2 992 753 ₽
Дни:45
stdClass Object
(
[id] => 139
[attribute_id] => 19
[name] => Фасадная плитка
[material_modifier] => 1
[work_modifier] => 1
[options] => Array
(
[0] => Клинкерная
[1] => Керамическая
[2] => Плитка ручной формовки
)
[days] => [40,40,40]
[material_price] => [2974,1487,3470]
[work_price] => [3007,2592,3629]
[image] => https://akademik-stroy.ru/wp-content/uploads/materials/fasadnaya-plitka.jpg
[area_modifier] => 290.58
[parent_name] => Наружная отделка фасада
[parent_id] => 19
[material_sum] => 1088873
[work_sum] => 917463
[total_sum] => 2006336
[total_days] => 40
[display_material_sum] => 1 088 873
[display_work_sum] => 917 463
[display_total_sum] => 2 006 336
)
1
2 006 336₽
Работа:917 463 ₽
Материалы:1 088 873 ₽
Дни:40
stdClass Object
(
[id] => 140
[attribute_id] => 19
[name] => Сайдинг
[material_modifier] => 1
[work_modifier] => 1
[options] => Array
(
[0] => Виниловый
[1] => Металлический
[2] => Фиброцементный
)
[days] => [20,20,20]
[material_price] => [1263,1944,4147]
[work_price] => [1263,1944,2074]
[image] => https://akademik-stroy.ru/wp-content/uploads/materials/sajding.jpg
[area_modifier] => 290.58
[parent_name] => Наружная отделка фасада
[parent_id] => 19
[material_sum] => 462423
[work_sum] => 385353
[total_sum] => 847776
[total_days] => 20
[display_material_sum] => 462 423
[display_work_sum] => 385 353
[display_total_sum] => 847 776
)
1
847 776₽
Работа:385 353 ₽
Материалы:462 423 ₽
Дни:20
stdClass Object
(
[id] => 141
[attribute_id] => 19
[name] => Камень
[material_modifier] => 1
[work_modifier] => 1
[options] => Array
(
[0] => Травертин
[1] => Дагестанский
[2] => Искусственный
[3] => Натуральный
[4] => Керамогранит
)
[days] => [45,45,45,45,45]
[material_price] => [4536,3888,2592,3240,2462]
[work_price] => [3240,3240,2462,3110,1944]
[image] => https://akademik-stroy.ru/wp-content/uploads/materials/kamen-1.jpg
[area_modifier] => 290.58
[parent_name] => Наружная отделка фасада
[parent_id] => 19
[material_sum] => 1660769
[work_sum] => 988553
[total_sum] => 2649322
[total_days] => 45
[display_material_sum] => 1 660 769
[display_work_sum] => 988 553
[display_total_sum] => 2 649 322
)
1
2 649 322₽
Работа:988 553 ₽
Материалы:1 660 769 ₽
Дни:45
stdClass Object
(
[id] => 142
[attribute_id] => 19
[name] => Термопанели
[material_modifier] => 1
[work_modifier] => 1
[options] => Array
(
)
[days] => [20]
[material_price] => [6221]
[work_price] => [2333]
[image] => https://akademik-stroy.ru/wp-content/uploads/materials/termo.png
[area_modifier] => 290.58
[parent_name] => Наружная отделка фасада
[parent_id] => 19
[material_sum] => 2277700
[work_sum] => 711819
[total_sum] => 2989519
[total_days] => 20
[display_material_sum] => 2 277 700
[display_work_sum] => 711 819
[display_total_sum] => 2 989 519
)
1
2 989 519₽
Работа:711 819 ₽
Материалы:2 277 700 ₽
Дни:20
stdClass Object
(
[id] => 143
[attribute_id] => 19
[name] => Плитка HAUBERK
[material_modifier] => 1
[work_modifier] => 1
[options] => Array
(
)
[days] => [20]
[material_price] => [2786]
[work_price] => [1944]
[image] => https://akademik-stroy.ru/wp-content/uploads/materials/hauberk.jpg
[area_modifier] => 290.58
[parent_name] => Наружная отделка фасада
[parent_id] => 19
[material_sum] => 1020040
[work_sum] => 593132
[total_sum] => 1613172
[total_days] => 20
[display_material_sum] => 1 020 040
[display_work_sum] => 593 132
[display_total_sum] => 1 613 172
)
1
1 613 172₽
Работа:593 132 ₽
Материалы:1 020 040 ₽
Дни:20
stdClass Object
(
[id] => 144
[attribute_id] => 19
[name] => Фальцевый фасад
[material_modifier] => 1
[work_modifier] => 1
[options] => Array
(
)
[days] => [20]
[material_price] => [3240]
[work_price] => [2592]
[image] => https://akademik-stroy.ru/wp-content/uploads/materials/falcevyj-fasad.jpg
[area_modifier] => 290.58
[parent_name] => Наружная отделка фасада
[parent_id] => 19
[material_sum] => 1186264
[work_sum] => 790843
[total_sum] => 1977107
[total_days] => 20
[display_material_sum] => 1 186 264
[display_work_sum] => 790 843
[display_total_sum] => 1 977 107
)
1
1 977 107₽
Работа:790 843 ₽
Материалы:1 186 264 ₽
Дни:20
stdClass Object
(
[id] => 145
[attribute_id] => 19
[name] => Комбинированный
[material_modifier] => 1
[work_modifier] => 1
[options] => Array
(
)
[days] => [20]
[material_price] => [4629]
[work_price] => [3499]
[image] => https://akademik-stroy.ru/wp-content/uploads/materials/Kombinirovannyj.jpg
[area_modifier] => 290.58
[parent_name] => Наружная отделка фасада
[parent_id] => 19
[material_sum] => 1694819
[work_sum] => 1067576
[total_sum] => 2762395
[total_days] => 20
[display_material_sum] => 1 694 819
[display_work_sum] => 1 067 576
[display_total_sum] => 2 762 395
)
1
2 762 395₽
Работа:1 067 576 ₽
Материалы:1 694 819 ₽
Дни:20
stdClass Object
(
[id] => 257
[attribute_id] => 19
[name] => Японские фиброцементные
[material_modifier] => 1
[work_modifier] => 1
[options] => Array
(
)
[days] => [20]
[material_price] => [7043]
[work_price] => [2993]
[image] => https://akademik-stroy.ru/wp-content/uploads/materials/paneli.jpg
[area_modifier] => 290.58
[parent_name] => Наружная отделка фасада
[parent_id] => 19
[material_sum] => 2578659
[work_sum] => 913191
[total_sum] => 3491850
[total_days] => 20
[display_material_sum] => 2 578 659
[display_work_sum] => 913 191
[display_total_sum] => 3 491 850
)
1
3 491 850₽
Работа:913 191 ₽
Материалы:2 578 659 ₽
Дни:20
stdClass Object
(
[id] => 258
[attribute_id] => 19
[name] => Панели Каньон
[material_modifier] => 1
[work_modifier] => 1
[options] => Array
(
)
[days] => [20]
[material_price] => [4543]
[work_price] => [2592]
[image] => https://akademik-stroy.ru/wp-content/uploads/materials/kanon.png
[area_modifier] => 290.58
[parent_name] => Наружная отделка фасада
[parent_id] => 19
[material_sum] => 1663332
[work_sum] => 790843
[total_sum] => 2454175
[total_days] => 20
[display_material_sum] => 1 663 332
[display_work_sum] => 790 843
[display_total_sum] => 2 454 175
)
1
2 454 175₽
Работа:790 843 ₽
Материалы:1 663 332 ₽
Дни:20
stdClass Object
(
[id] => 39
[attribute_id] => 20
[name] => Нет
[material_modifier] => 1
[work_modifier] => 1
[options] => Array
(
)
[days] => [0]
[material_price] => [0]
[work_price] => [0]
[image] => https://akademik-stroy.ru/wp-content/uploads/materials/terrasy.jpg
[area_modifier] => 30
[parent_name] => Террасы, крыльца, навесы
[parent_id] => 20
[material_sum] => 0
[work_sum] => 0
[total_sum] => 0
[total_days] => 0
[display_material_sum] => 0
[display_work_sum] => 0
[display_total_sum] => 0
)
1
0₽
Работа:0 ₽
Материалы:0 ₽
Дни:0
stdClass Object
(
[id] => 40
[attribute_id] => 20
[name] => Есть
[material_modifier] => 1
[work_modifier] => 1
[options] => Array
(
)
[days] => [5]
[material_price] => [10450]
[work_price] => [1950]
[image] => https://akademik-stroy.ru/wp-content/uploads/materials/terrasy.jpg
[area_modifier] => 30
[parent_name] => Террасы, крыльца, навесы
[parent_id] => 20
[material_sum] => 395010
[work_sum] => 61425
[total_sum] => 456435
[total_days] => 5
[display_material_sum] => 395 010
[display_work_sum] => 61 425
[display_total_sum] => 456 435
)
1
456 435₽
Работа:61 425 ₽
Материалы:395 010 ₽
Дни:5
stdClass Object
(
[id] => 41
[attribute_id] => 21
[name] => Нет
[material_modifier] => 1
[work_modifier] => 1
[options] => Array
(
)
[days] => [0]
[material_price] => [0]
[work_price] => [0]
[image] => https://akademik-stroy.ru/wp-content/uploads/materials/balkony.jpg
[area_modifier] => 30
[parent_name] => Балконы
[parent_id] => 21
[material_sum] => 0
[work_sum] => 0
[total_sum] => 0
[total_days] => 0
[display_material_sum] => 0
[display_work_sum] => 0
[display_total_sum] => 0
)
1
0₽
Работа:0 ₽
Материалы:0 ₽
Дни:0
stdClass Object
(
[id] => 42
[attribute_id] => 21
[name] => Есть
[material_modifier] => 1
[work_modifier] => 1
[options] => Array
(
)
[days] => [12]
[material_price] => [3600]
[work_price] => [1950]
[image] => https://akademik-stroy.ru/wp-content/uploads/materials/balkony.jpg
[area_modifier] => 30
[parent_name] => Балконы
[parent_id] => 21
[material_sum] => 136080
[work_sum] => 61425
[total_sum] => 197505
[total_days] => 12
[display_material_sum] => 136 080
[display_work_sum] => 61 425
[display_total_sum] => 197 505
)
1
197 505₽
Работа:61 425 ₽
Материалы:136 080 ₽
Дни:12
stdClass Object
(
[id] => 43
[attribute_id] => 22
[name] => Нет
[material_modifier] => 1
[work_modifier] => 1
[options] => Array
(
)
[days] => [0]
[material_price] => [0]
[work_price] => [0]
[image] => https://akademik-stroy.ru/wp-content/uploads/materials/uteplennaya.jpg
[area_modifier] => 290.58
[parent_name] => Отмостка
[parent_id] => 22
[material_sum] => 0
[work_sum] => 0
[total_sum] => 0
[total_days] => 0
[display_material_sum] => 0
[display_work_sum] => 0
[display_total_sum] => 0
)
1
0₽
Работа:0 ₽
Материалы:0 ₽
Дни:0
stdClass Object
(
[id] => 44
[attribute_id] => 22
[name] => Утепленная отмостка
[material_modifier] => 1
[work_modifier] => 1
[options] => Array
(
)
[days] => [15]
[material_price] => [2550]
[work_price] => [1750]
[image] => https://akademik-stroy.ru/wp-content/uploads/materials/uteplennaya.jpg
[area_modifier] => 290.58
[parent_name] => Отмостка
[parent_id] => 22
[material_sum] => 933634
[work_sum] => 533941
[total_sum] => 1467575
[total_days] => 15
[display_material_sum] => 933 634
[display_work_sum] => 533 941
[display_total_sum] => 1 467 575
)
1
1 467 575₽
Работа:533 941 ₽
Материалы:933 634 ₽
Дни:15
stdClass Object
(
[id] => 146
[attribute_id] => 22
[name] => Не утепленная отмостка
[material_modifier] => 1
[work_modifier] => 1
[options] => Array
(
)
[days] => [10]
[material_price] => [1650]
[work_price] => [1450]
[image] => https://akademik-stroy.ru/wp-content/uploads/materials/ne-uteplennaya.jpg
[area_modifier] => 290.58
[parent_name] => Отмостка
[parent_id] => 22
[material_sum] => 604116
[work_sum] => 442408
[total_sum] => 1046524
[total_days] => 10
[display_material_sum] => 604 116
[display_work_sum] => 442 408
[display_total_sum] => 1 046 524
)
1
1 046 524₽
Работа:442 408 ₽
Материалы:604 116 ₽
Дни:10
stdClass Object
(
[id] => 45
[attribute_id] => 23
[name] => Нет
[material_modifier] => 1
[work_modifier] => 1
[options] => Array
(
)
[days] => [0]
[material_price] => [0]
[work_price] => [0]
[image] => https://akademik-stroy.ru/wp-content/uploads/materials/drenazh-2.jpg
[area_modifier] => 290.58
[parent_name] => Дренаж вокруг дома
[parent_id] => 23
[material_sum] => 0
[work_sum] => 0
[total_sum] => 0
[total_days] => 0
[display_material_sum] => 0
[display_work_sum] => 0
[display_total_sum] => 0
)
1
0₽
Работа:0 ₽
Материалы:0 ₽
Дни:0
stdClass Object
(
[id] => 46
[attribute_id] => 23
[name] => Есть
[material_modifier] => 1
[work_modifier] => 1
[options] => Array
(
)
[days] => [5]
[material_price] => [2366]
[work_price] => [1911]
[image] => https://akademik-stroy.ru/wp-content/uploads/materials/drenazh-2.jpg
[area_modifier] => 290.58
[parent_name] => Дренаж вокруг дома
[parent_id] => 23
[material_sum] => 866265
[work_sum] => 583063
[total_sum] => 1449328
[total_days] => 5
[display_material_sum] => 866 265
[display_work_sum] => 583 063
[display_total_sum] => 1 449 328
)
1
1 449 328₽
Работа:583 063 ₽
Материалы:866 265 ₽
Дни:5
stdClass Object
(
[id] => 47
[attribute_id] => 24
[name] => Нет
[material_modifier] => 1
[work_modifier] => 1
[options] => Array
(
)
[days] => [0]
[material_price] => [0]
[work_price] => [0]
[image] => https://akademik-stroy.ru/wp-content/uploads/materials/septik.jpg
[area_modifier] => 1
[parent_name] => Автономная канализация (септики)
[parent_id] => 24
[material_sum] => 0
[work_sum] => 0
[total_sum] => 0
[total_days] => 0
[display_material_sum] => 0
[display_work_sum] => 0
[display_total_sum] => 0
)
1
0₽
Работа:0 ₽
Материалы:0 ₽
Дни:0
stdClass Object
(
[id] => 48
[attribute_id] => 24
[name] => Есть
[material_modifier] => 1
[work_modifier] => 1
[options] => Array
(
[0] => Для дачи на 4 человека
[1] => Для дома на 5 человек
[2] => Для дома на 6 человек
[3] => Для дома на 7 человек
[4] => Для дома на 10 человек
)
[days] => [7,7,7,8,8]
[material_price] => [196340,220500,240940,264200,293340]
[work_price] => [50000,55000,60500,66550,73206]
[image] => https://akademik-stroy.ru/wp-content/uploads/materials/septik.jpg
[area_modifier] => 1
[parent_name] => Автономная канализация (септики)
[parent_id] => 24
[material_sum] => 247388
[work_sum] => 52500
[total_sum] => 299888
[total_days] => 7
[display_material_sum] => 247 388
[display_work_sum] => 52 500
[display_total_sum] => 299 888
)
1
299 888₽
Работа:52 500 ₽
Материалы:247 388 ₽
Дни:7
stdClass Object
(
[id] => 49
[attribute_id] => 25
[name] => Нет
[material_modifier] => 1
[work_modifier] => 1
[options] => Array
(
)
[days] => [0]
[material_price] => [0]
[work_price] => [0]
[image] => https://akademik-stroy.ru/wp-content/uploads/materials/gkl.jpg
[area_modifier] => 290.58
[parent_name] => Внутренние (не несущие) перегородки
[parent_id] => 25
[material_sum] => 0
[work_sum] => 0
[total_sum] => 0
[total_days] => 0
[display_material_sum] => 0
[display_work_sum] => 0
[display_total_sum] => 0
)
1
0₽
Работа:0 ₽
Материалы:0 ₽
Дни:0
stdClass Object
(
[id] => 147
[attribute_id] => 25
[name] => Каркасно-обшивные
[material_modifier] => 1
[work_modifier] => 1
[options] => Array
(
[0] => 75 мм (без шумоизоляции)
[1] => 75 мм (с шумоизоляцией)
)
[days] => [11,11]
[material_price] => [580,970]
[work_price] => [380,570]
[image] => https://akademik-stroy.ru/wp-content/uploads/materials/gkl.jpg
[area_modifier] => 290.58
[parent_name] => Внутренние (не несущие) перегородки
[parent_id] => 25
[material_sum] => 212356
[work_sum] => 115941
[total_sum] => 328297
[total_days] => 11
[display_material_sum] => 212 356
[display_work_sum] => 115 941
[display_total_sum] => 328 297
)
1
328 297₽
Работа:115 941 ₽
Материалы:212 356 ₽
Дни:11
stdClass Object
(
[id] => 148
[attribute_id] => 25
[name] => Пазогребневые
[material_modifier] => 1
[work_modifier] => 1
[options] => Array
(
[0] => 80 мм
[1] => 100 мм
)
[days] => [5,5]
[material_price] => [1022,1313]
[work_price] => [600,700]
[image] => https://akademik-stroy.ru/wp-content/uploads/materials/pazogrebnevye-bloki.jpg
[area_modifier] => 290.58
[parent_name] => Внутренние (не несущие) перегородки
[parent_id] => 25
[material_sum] => 374186
[work_sum] => 183065
[total_sum] => 557251
[total_days] => 5
[display_material_sum] => 374 186
[display_work_sum] => 183 065
[display_total_sum] => 557 251
)
1
557 251₽
Работа:183 065 ₽
Материалы:374 186 ₽
Дни:5
stdClass Object
(
[id] => 149
[attribute_id] => 25
[name] => Газобетонные
[material_modifier] => 1
[work_modifier] => 1
[options] => Array
(
[0] => 100 мм
[1] => 200 мм
)
[days] => [11,11]
[material_price] => [1160,1920]
[work_price] => [700,900]
[image] => https://akademik-stroy.ru/wp-content/uploads/materials/gazobeton-2.jpg
[area_modifier] => 290.58
[parent_name] => Внутренние (не несущие) перегородки
[parent_id] => 25
[material_sum] => 424712
[work_sum] => 213576
[total_sum] => 638288
[total_days] => 11
[display_material_sum] => 424 712
[display_work_sum] => 213 576
[display_total_sum] => 638 288
)
1
638 288₽
Работа:213 576 ₽
Материалы:424 712 ₽
Дни:11
stdClass Object
(
[id] => 150
[attribute_id] => 25
[name] => Кирпичные
[material_modifier] => 1
[work_modifier] => 1
[options] => Array
(
[0] => 120 мм
[1] => 250 мм
[2] => 360 мм
)
[days] => [7,7,7]
[material_price] => [1785,3570,5355]
[work_price] => [900,1600,1800]
[image] => https://akademik-stroy.ru/wp-content/uploads/materials/kirpich-1.jpg
[area_modifier] => 290.58
[parent_name] => Внутренние (не несущие) перегородки
[parent_id] => 25
[material_sum] => 653543
[work_sum] => 274598
[total_sum] => 928141
[total_days] => 7
[display_material_sum] => 653 543
[display_work_sum] => 274 598
[display_total_sum] => 928 141
)
1
928 141₽
Работа:274 598 ₽
Материалы:653 543 ₽
Дни:7
stdClass Object
(
[id] => 55
[attribute_id] => 28
[name] => Нет
[material_modifier] => 1
[work_modifier] => 1
[options] => Array
(
)
[days] => [0]
[material_price] => [0]
[work_price] => [0]
[image] => https://akademik-stroy.ru/wp-content/uploads/materials/ehlektrika.jpg
[area_modifier] => 235.8
[parent_name] => Электрика
[parent_id] => 28
[material_sum] => 0
[work_sum] => 0
[total_sum] => 0
[total_days] => 0
[display_material_sum] => 0
[display_work_sum] => 0
[display_total_sum] => 0
)
1
0₽
Работа:0 ₽
Материалы:0 ₽
Дни:0
stdClass Object
(
[id] => 56
[attribute_id] => 28
[name] => Есть
[material_modifier] => 1
[work_modifier] => 1
[options] => Array
(
)
[days] => [10]
[material_price] => [650]
[work_price] => [950]
[image] => https://akademik-stroy.ru/wp-content/uploads/materials/ehlektrika.jpg
[area_modifier] => 235.8
[parent_name] => Электрика
[parent_id] => 28
[material_sum] => 193120
[work_sum] => 235211
[total_sum] => 428331
[total_days] => 10
[display_material_sum] => 193 120
[display_work_sum] => 235 211
[display_total_sum] => 428 331
)
1
428 331₽
Работа:235 211 ₽
Материалы:193 120 ₽
Дни:10
stdClass Object
(
[id] => 57
[attribute_id] => 29
[name] => Нет
[material_modifier] => 1
[work_modifier] => 1
[options] => Array
(
)
[days] => [0]
[material_price] => [0]
[work_price] => [0]
[image] => https://akademik-stroy.ru/wp-content/uploads/materials/santekhnika-kanalizaciya-1.jpg
[area_modifier] => 235.8
[parent_name] => Сантехника, канализация в доме
[parent_id] => 29
[material_sum] => 0
[work_sum] => 0
[total_sum] => 0
[total_days] => 0
[display_material_sum] => 0
[display_work_sum] => 0
[display_total_sum] => 0
)
1
0₽
Работа:0 ₽
Материалы:0 ₽
Дни:0
stdClass Object
(
[id] => 58
[attribute_id] => 29
[name] => Есть
[material_modifier] => 1
[work_modifier] => 1
[options] => Array
(
)
[days] => [10]
[material_price] => [600]
[work_price] => [730]
[image] => https://akademik-stroy.ru/wp-content/uploads/materials/santekhnika-kanalizaciya-1.jpg
[area_modifier] => 235.8
[parent_name] => Сантехника, канализация в доме
[parent_id] => 29
[material_sum] => 178265
[work_sum] => 180741
[total_sum] => 359006
[total_days] => 10
[display_material_sum] => 178 265
[display_work_sum] => 180 741
[display_total_sum] => 359 006
)
1
359 006₽
Работа:180 741 ₽
Материалы:178 265 ₽
Дни:10
stdClass Object
(
[id] => 59
[attribute_id] => 30
[name] => Нет
[material_modifier] => 1
[work_modifier] => 1
[options] => Array
(
)
[days] => [0]
[material_price] => [0]
[work_price] => [0]
[image] => https://akademik-stroy.ru/wp-content/uploads/materials/otoplenie-1.jpg
[area_modifier] => 235.8
[parent_name] => Отопление
[parent_id] => 30
[material_sum] => 0
[work_sum] => 0
[total_sum] => 0
[total_days] => 0
[display_material_sum] => 0
[display_work_sum] => 0
[display_total_sum] => 0
)
1
0₽
Работа:0 ₽
Материалы:0 ₽
Дни:0
stdClass Object
(
[id] => 60
[attribute_id] => 30
[name] => Есть
[material_modifier] => 1
[work_modifier] => 1
[options] => Array
(
)
[days] => [5]
[material_price] => [610]
[work_price] => [560]
[image] => https://akademik-stroy.ru/wp-content/uploads/materials/otoplenie-1.jpg
[area_modifier] => 235.8
[parent_name] => Отопление
[parent_id] => 30
[material_sum] => 181236
[work_sum] => 138650
[total_sum] => 319886
[total_days] => 5
[display_material_sum] => 181 236
[display_work_sum] => 138 650
[display_total_sum] => 319 886
)
1
319 886₽
Работа:138 650 ₽
Материалы:181 236 ₽
Дни:5
stdClass Object
(
[id] => 61
[attribute_id] => 31
[name] => Нет
[material_modifier] => 1
[work_modifier] => 1
[options] => Array
(
)
[days] => [0]
[material_price] => [0]
[work_price] => [0]
[image] => https://akademik-stroy.ru/wp-content/uploads/materials/vodyanye.jpg
[area_modifier] => 30
[parent_name] => Теплые полы
[parent_id] => 31
[material_sum] => 0
[work_sum] => 0
[total_sum] => 0
[total_days] => 0
[display_material_sum] => 0
[display_work_sum] => 0
[display_total_sum] => 0
)
1
0₽
Работа:0 ₽
Материалы:0 ₽
Дни:0
stdClass Object
(
[id] => 151
[attribute_id] => 31
[name] => Водяные
[material_modifier] => 1
[work_modifier] => 1
[options] => Array
(
)
[days] => [9]
[material_price] => [10200]
[work_price] => [2500]
[image] => https://akademik-stroy.ru/wp-content/uploads/materials/vodyanye.jpg
[area_modifier] => 30
[parent_name] => Теплые полы
[parent_id] => 31
[material_sum] => 385560
[work_sum] => 78750
[total_sum] => 464310
[total_days] => 9
[display_material_sum] => 385 560
[display_work_sum] => 78 750
[display_total_sum] => 464 310
)
1
464 310₽
Работа:78 750 ₽
Материалы:385 560 ₽
Дни:9
stdClass Object
(
[id] => 152
[attribute_id] => 31
[name] => Электро
[material_modifier] => 1
[work_modifier] => 1
[options] => Array
(
)
[days] => [5]
[material_price] => [6300]
[work_price] => [1500]
[image] => https://akademik-stroy.ru/wp-content/uploads/materials/ehlektricheskij.jpg
[area_modifier] => 30
[parent_name] => Теплые полы
[parent_id] => 31
[material_sum] => 238140
[work_sum] => 47250
[total_sum] => 285390
[total_days] => 5
[display_material_sum] => 238 140
[display_work_sum] => 47 250
[display_total_sum] => 285 390
)
1
285 390₽
Работа:47 250 ₽
Материалы:238 140 ₽
Дни:5
stdClass Object
(
[id] => 63
[attribute_id] => 32
[name] => Нет
[material_modifier] => 1
[work_modifier] => 1
[options] => Array
(
)
[days] => [0]
[material_price] => [0]
[work_price] => [0]
[image] => https://akademik-stroy.ru/wp-content/uploads/materials/shtukaturka-shpatlevka-1.jpg
[area_modifier] => 235.8
[parent_name] => Черновая отделка стен
[parent_id] => 32
[material_sum] => 0
[work_sum] => 0
[total_sum] => 0
[total_days] => 0
[display_material_sum] => 0
[display_work_sum] => 0
[display_total_sum] => 0
)
1
0₽
Работа:0 ₽
Материалы:0 ₽
Дни:0
stdClass Object
(
[id] => 153
[attribute_id] => 32
[name] => Штукатурка и шпатлевка
[material_modifier] => 1
[work_modifier] => 1
[options] => Array
(
)
[days] => [20]
[material_price] => [1850]
[work_price] => [2600]
[image] => https://akademik-stroy.ru/wp-content/uploads/materials/shtukaturka-shpatlevka-1.jpg
[area_modifier] => 235.8
[parent_name] => Черновая отделка стен
[parent_id] => 32
[material_sum] => 549650
[work_sum] => 643734
[total_sum] => 1193384
[total_days] => 20
[display_material_sum] => 549 650
[display_work_sum] => 643 734
[display_total_sum] => 1 193 384
)
1
1 193 384₽
Работа:643 734 ₽
Материалы:549 650 ₽
Дни:20
stdClass Object
(
[id] => 154
[attribute_id] => 32
[name] => Гипсокортон на стены
[material_modifier] => 1
[work_modifier] => 1
[options] => Array
(
)
[days] => [15]
[material_price] => [950]
[work_price] => [2100]
[image] => https://akademik-stroy.ru/wp-content/uploads/materials/gkl-1.jpg
[area_modifier] => 235.8
[parent_name] => Черновая отделка стен
[parent_id] => 32
[material_sum] => 282253
[work_sum] => 519939
[total_sum] => 802192
[total_days] => 15
[display_material_sum] => 282 253
[display_work_sum] => 519 939
[display_total_sum] => 802 192
)
1
802 192₽
Работа:519 939 ₽
Материалы:282 253 ₽
Дни:15
stdClass Object
(
[id] => 155
[attribute_id] => 32
[name] => Вагонка
[material_modifier] => 1
[work_modifier] => 1
[options] => Array
(
)
[days] => [15]
[material_price] => [1250]
[work_price] => [950]
[image] => https://akademik-stroy.ru/wp-content/uploads/materials/vagonka.jpg
[area_modifier] => 235.8
[parent_name] => Черновая отделка стен
[parent_id] => 32
[material_sum] => 371385
[work_sum] => 235211
[total_sum] => 606596
[total_days] => 15
[display_material_sum] => 371 385
[display_work_sum] => 235 211
[display_total_sum] => 606 596
)
1
606 596₽
Работа:235 211 ₽
Материалы:371 385 ₽
Дни:15
stdClass Object
(
[id] => 65
[attribute_id] => 33
[name] => Нет
[material_modifier] => 1
[work_modifier] => 1
[options] => Array
(
)
[days] => [0]
[material_price] => [0]
[work_price] => [0]
[image] => https://akademik-stroy.ru/wp-content/uploads/materials/styazhka.jpg
[area_modifier] => 235.8
[parent_name] => Черновая отделка полов
[parent_id] => 33
[material_sum] => 0
[work_sum] => 0
[total_sum] => 0
[total_days] => 0
[display_material_sum] => 0
[display_work_sum] => 0
[display_total_sum] => 0
)
1
0₽
Работа:0 ₽
Материалы:0 ₽
Дни:0
stdClass Object
(
[id] => 156
[attribute_id] => 33
[name] => Стяжка + наливные полы
[material_modifier] => 1
[work_modifier] => 1
[options] => Array
(
)
[days] => [10]
[material_price] => [1000]
[work_price] => [900]
[image] => https://akademik-stroy.ru/wp-content/uploads/materials/styazhka.jpg
[area_modifier] => 235.8
[parent_name] => Черновая отделка полов
[parent_id] => 33
[material_sum] => 297108
[work_sum] => 222831
[total_sum] => 519939
[total_days] => 10
[display_material_sum] => 297 108
[display_work_sum] => 222 831
[display_total_sum] => 519 939
)
1
519 939₽
Работа:222 831 ₽
Материалы:297 108 ₽
Дни:10
stdClass Object
(
[id] => 157
[attribute_id] => 33
[name] => ОСБ на пол
[material_modifier] => 1
[work_modifier] => 1
[options] => Array
(
)
[days] => [7]
[material_price] => [580]
[work_price] => [350]
[image] => https://akademik-stroy.ru/wp-content/uploads/materials/osb-1.jpg
[area_modifier] => 235.8
[parent_name] => Черновая отделка полов
[parent_id] => 33
[material_sum] => 172323
[work_sum] => 86657
[total_sum] => 258980
[total_days] => 7
[display_material_sum] => 172 323
[display_work_sum] => 86 657
[display_total_sum] => 258 980
)
1
258 980₽
Работа:86 657 ₽
Материалы:172 323 ₽
Дни:7
stdClass Object
(
[id] => 67
[attribute_id] => 34
[name] => Нет
[material_modifier] => 1
[work_modifier] => 1
[options] => Array
(
)
[days] => [0]
[material_price] => [0]
[work_price] => [0]
[image] => https://akademik-stroy.ru/wp-content/uploads/materials/chistovaya-otdelka.jpg
[area_modifier] => 235.8
[parent_name] => Чистовая отделка стен и полов
[parent_id] => 34
[material_sum] => 0
[work_sum] => 0
[total_sum] => 0
[total_days] => 0
[display_material_sum] => 0
[display_work_sum] => 0
[display_total_sum] => 0
)
1
0₽
Работа:0 ₽
Материалы:0 ₽
Дни:0
stdClass Object
(
[id] => 68
[attribute_id] => 34
[name] => Есть
[material_modifier] => 1
[work_modifier] => 1
[options] => Array
(
)
[days] => [50]
[material_price] => [6000]
[work_price] => [3500]
[image] => https://akademik-stroy.ru/wp-content/uploads/materials/chistovaya-otdelka.jpg
[area_modifier] => 235.8
[parent_name] => Чистовая отделка стен и полов
[parent_id] => 34
[material_sum] => 1782648
[work_sum] => 866565
[total_sum] => 2649213
[total_days] => 50
[display_material_sum] => 1 782 648
[display_work_sum] => 866 565
[display_total_sum] => 2 649 213
)
1
2 649 213₽
Работа:866 565 ₽
Материалы:1 782 648 ₽
Дни:50
stdClass Object
(
[id] => 69
[attribute_id] => 35
[name] => Нет
[material_modifier] => 1
[work_modifier] => 1
[options] => Array
(
)
[days] => [0]
[material_price] => [0]
[work_price] => [0]
[image] => https://akademik-stroy.ru/wp-content/uploads/materials/mnogourovnevyj-gkl.jpg
[area_modifier] => 235.8
[parent_name] => Отделка потолка
[parent_id] => 35
[material_sum] => 0
[work_sum] => 0
[total_sum] => 0
[total_days] => 0
[display_material_sum] => 0
[display_work_sum] => 0
[display_total_sum] => 0
)
1
0₽
Работа:0 ₽
Материалы:0 ₽
Дни:0
stdClass Object
(
[id] => 70
[attribute_id] => 35
[name] => Есть
[material_modifier] => 1
[work_modifier] => 1
[options] => Array
(
[0] => Многоуровневый потолок из гипсокартона
[1] => Многоуровневый потолок из гипсокартона и натяжного потолка
[2] => Одноуровневый потолок из гипсокартона
[3] => Одноуровневый натяжной потолок
)
[days] => [10,10,1,1]
[material_price] => [900,700,700,600]
[work_price] => [1000,800,500,300]
[image] => https://akademik-stroy.ru/wp-content/uploads/materials/mnogourovnevyj-gkl.jpg
[area_modifier] => 235.8
[parent_name] => Отделка потолка
[parent_id] => 35
[material_sum] => 267397
[work_sum] => 247590
[total_sum] => 514987
[total_days] => 10
[display_material_sum] => 267 397
[display_work_sum] => 247 590
[display_total_sum] => 514 987
)
1
514 987₽
Работа:247 590 ₽
Материалы:267 397 ₽
Дни:10
Преимущества работы с нами
7 этапов оплаты
Независимый строительный надзор
Экологически чистые материалы
16 лет гарантии
Онлайн-кабинет с веб-камерой
Строители с опытом более 15 лет
Собственное производство










