Одноэтажный дом 21x14 - 291.59 м2 за руб.
Планировки
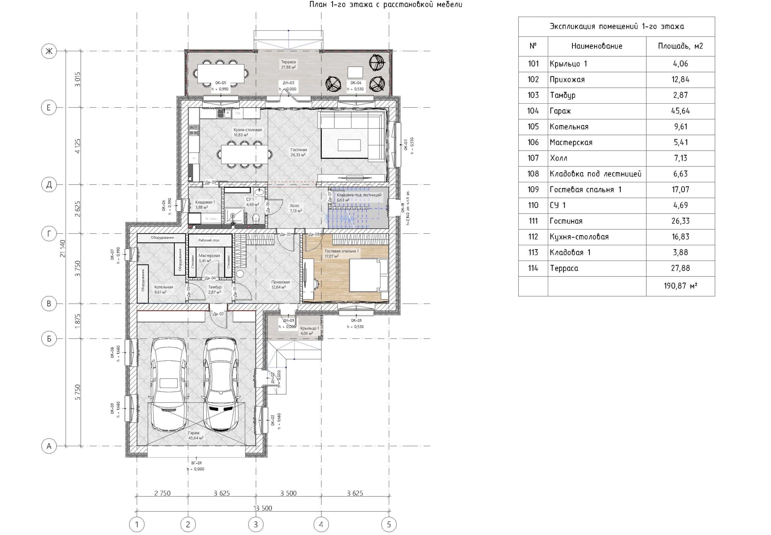
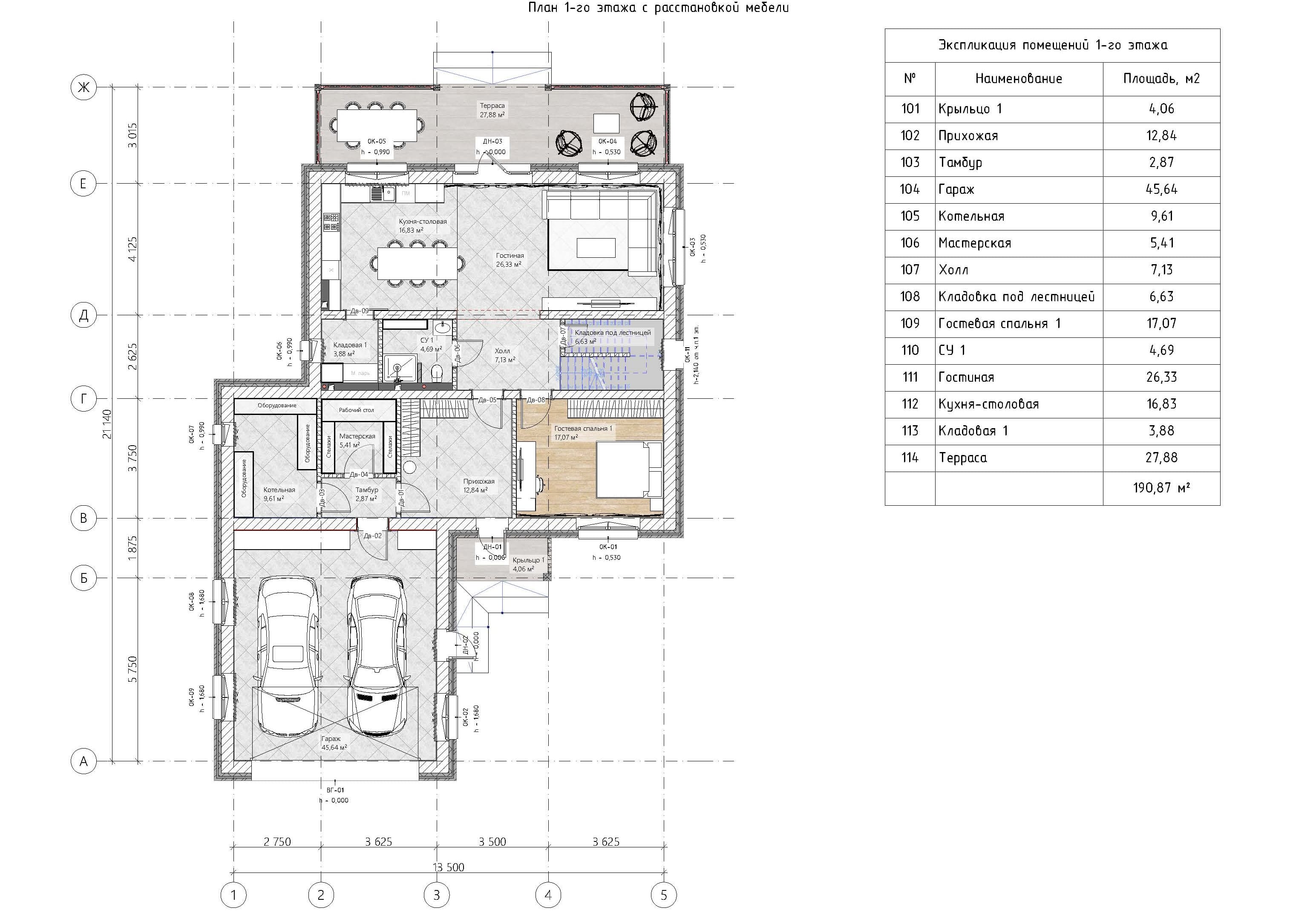
План первого этажа
- 1. Крыльцо 1,06 м²
- 2. Прихожая 12,84 м²
- 3. Тамбур 2,87 м²
- 4. Гараж 45,64 м²
- 5. Котельная 9,61 м²
- 6. Мастерская 5,41 м²
- 7. Холл 7,13 м²
- 8. Кладовка под лестницей 6,63 м²
- 9. Спальня 17,07 м²
- 10. С/У 4,69 м²
- 11. Гостиная 26,33 м²
- 12. Кухня-столовая 16,83 м²
- 13. Кладовая 3,88 м²
- 14. Терраса 27,88 м²
- Общая площадь 1 этажа 190,87 м²
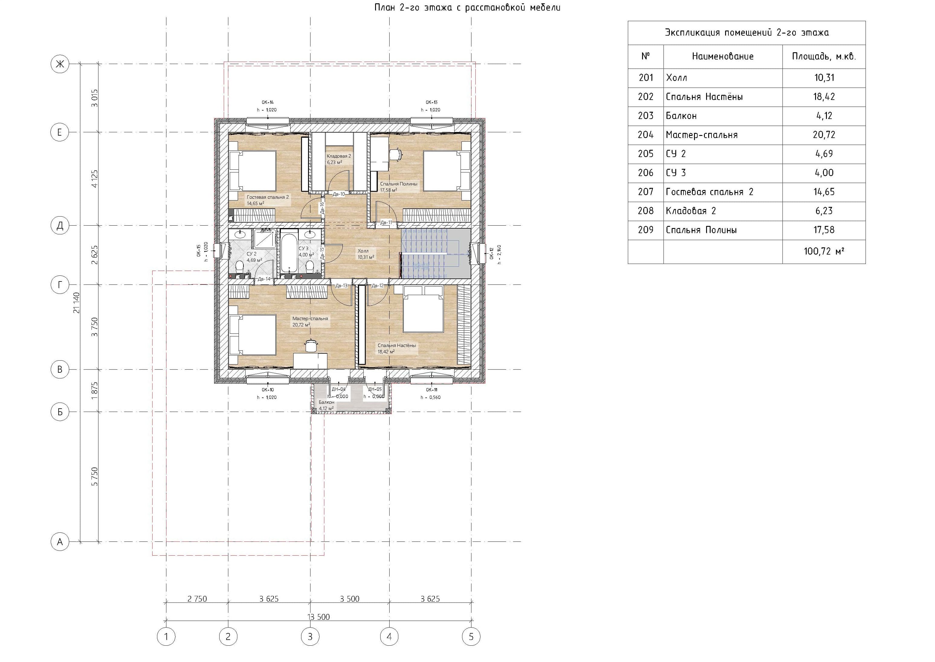
План второго этажа
- 1. Холл 10,31 м²
- 2. Спальня 18,42 м²
- 3. Балкон 4,12 м²
- 4. Мастер-спальня 20,72 м²
- 5. С/У 4,69 м²
- 6. С/У 4,00 м²
- 7. Спальня 14,65 м²
- 8. Кладовая 6,23 м²
- 9. Спальня 17,58 м²
- Общая площадь 2 этажа 100,72 м²
Площади дома
| № п/п | Наименование | Ед. из. | Строительная площадь | Полезная площадь |
| 1 | 1 этаж | м2 | 235.21 | 190.87 |
| 2 | 2 этаж | м2 | 124.12 | 100.72 |
| 3 | Итого | м2 | 359.33 | 291.59 |
154 м2
Полезная
площадь
площадь
21 x 14 м
Размеры
1 этаж
Этажей
26 м2
Террасы
и балконы
и балконы
2Без
гаража
гаража
5+
Количество
спален
спален
3
Количество
санузлов
санузлов
Калькулятор опций
0₽
В ипотеку от 31 645 ₽/мес.
0₽
0 дней
stdClass Object
(
[id] => 1
[attribute_id] => 1
[name] => Ленточный монолитный ж/б
[material_modifier] => 1
[work_modifier] => 1
[options] => Array
(
[0] => размер 200 х 700 мм
[1] => размер 300 х 900 мм
[2] => размер 400 х 1 000 мм
[3] => размер 500 х 1 100 мм
[4] => размер 600 х 1 200 мм
)
[days] => [20,21,22,25,30]
[material_price] => [2823,3630,4475,5210,12047]
[work_price] => [2154,2826,3731,4577,5293]
[image] => https://akademik-stroy.ru/wp-content/uploads/materials/lentochnyj-monolitnyj-zh-b.jpg
[area_modifier] => 235.21
[parent_name] => Фундамент
[parent_id] => 1
[material_sum] => 796797
[work_sum] => 506642
[total_sum] => 1303439
[total_days] => 20
[display_material_sum] => 796 797
[display_work_sum] => 506 642
[display_total_sum] => 1 303 439
)
1
1 303 439₽
Работа:506 642 ₽
Материалы:796 797 ₽
Дни:20
stdClass Object
(
[id] => 2
[attribute_id] => 1
[name] => Забивные Ж/Б сваи
[material_modifier] => 1
[work_modifier] => 1
[options] => Array
(
[0] => 150х150х3000мм
[1] => 150х150х4000мм
[2] => 200х200х3000мм
[3] => 200х200х4000мм
[4] => 200х200х5000мм
[5] => 200х200х6000мм
)
[days] => [2,2,2,2,2,2]
[material_price] => [1990,2850,3255,4360,5120,6837]
[work_price] => [1002,1185,1336,1438,1574,1839]
[image] => https://akademik-stroy.ru/wp-content/uploads/materials/zabivnye-zh-b-svai.png
[area_modifier] => 235.21
[parent_name] => Фундамент
[parent_id] => 1
[material_sum] => 561681
[work_sum] => 235680
[total_sum] => 797361
[total_days] => 2
[display_material_sum] => 561 681
[display_work_sum] => 235 680
[display_total_sum] => 797 361
)
1
797 361₽
Работа:235 680 ₽
Материалы:561 681 ₽
Дни:2
stdClass Object
(
[id] => 71
[attribute_id] => 1
[name] => Свайно-ростверковый ж/б
[material_modifier] => 1
[work_modifier] => 1
[options] => Array
(
[0] => ростверк 200х300 мм
[1] => ростверк 300х600 мм
[2] => ростверк 400х900 мм
[3] => ростверк 500х1200 мм
)
[days] => [20,23,25,27]
[material_price] => [3018,3474,7109,9792]
[work_price] => [2024,3012,5635,7022]
[image] => https://akademik-stroy.ru/wp-content/uploads/materials/svajno-rostverkovyj-monolitnyj-zh-b-3.png
[area_modifier] => 235.21
[parent_name] => Фундамент
[parent_id] => 1
[material_sum] => 851837
[work_sum] => 476065
[total_sum] => 1327902
[total_days] => 20
[display_material_sum] => 851 837
[display_work_sum] => 476 065
[display_total_sum] => 1 327 902
)
1
1 327 902₽
Работа:476 065 ₽
Материалы:851 837 ₽
Дни:20
stdClass Object
(
[id] => 72
[attribute_id] => 1
[name] => Монолитная ж/б плита
[material_modifier] => 1
[work_modifier] => 1
[options] => Array
(
[0] => 200 мм
[1] => 300 мм
[2] => 400 мм
[3] => 500 мм
[4] => 600 мм
)
[days] => [30,33,35,37,40]
[material_price] => [5348,8555,12788,14388,15189]
[work_price] => [4314,4881,7037,8061,10230]
[image] => https://akademik-stroy.ru/wp-content/uploads/materials/monolitnaya-zhb-plita.png
[area_modifier] => 235.21
[parent_name] => Фундамент
[parent_id] => 1
[material_sum] => 1509484
[work_sum] => 1014696
[total_sum] => 2524180
[total_days] => 30
[display_material_sum] => 1 509 484
[display_work_sum] => 1 014 696
[display_total_sum] => 2 524 180
)
1
2 524 180₽
Работа:1 014 696 ₽
Материалы:1 509 484 ₽
Дни:30
stdClass Object
(
[id] => 73
[attribute_id] => 1
[name] => Утепленная шведская плита
[material_modifier] => 1
[work_modifier] => 1
[options] => Array
(
[0] => 200 мм
[1] => 300 мм
[2] => 400 мм
[3] => 500 мм
[4] => 600 мм
)
[days] => [32,37,39,42,45]
[material_price] => [10249,12692,13760,14936,16230]
[work_price] => [5960,7337,8072,8878,9765]
[image] => https://akademik-stroy.ru/wp-content/uploads/materials/uteplennaya-shvedskaya-plita.jpg
[area_modifier] => 235.21
[parent_name] => Фундамент
[parent_id] => 1
[material_sum] => 2892801
[work_sum] => 1401852
[total_sum] => 4294653
[total_days] => 32
[display_material_sum] => 2 892 801
[display_work_sum] => 1 401 852
[display_total_sum] => 4 294 653
)
1
4 294 653₽
Работа:1 401 852 ₽
Материалы:2 892 801 ₽
Дни:32
stdClass Object
(
[id] => 75
[attribute_id] => 1
[name] => Ленточный из ФБС
[material_modifier] => 1
[work_modifier] => 1
[options] => Array
(
[0] => толщ. 300 мм
[1] => толщ. 400 мм
[2] => толщ. 500 мм
[3] => толщ. 600 мм
)
[days] => [20,20,20,20]
[material_price] => [3675,4902,6126,7350]
[work_price] => [2451,3264,4083,4902]
[image] => https://akademik-stroy.ru/wp-content/uploads/materials/lentochnyj-iz-fbs.png
[area_modifier] => 235.21
[parent_name] => Фундамент
[parent_id] => 1
[material_sum] => 1037276
[work_sum] => 576500
[total_sum] => 1613776
[total_days] => 20
[display_material_sum] => 1 037 276
[display_work_sum] => 576 500
[display_total_sum] => 1 613 776
)
1
1 613 776₽
Работа:576 500 ₽
Материалы:1 037 276 ₽
Дни:20
stdClass Object
(
[id] => 76
[attribute_id] => 1
[name] => Цокольный этаж из ФБС
[material_modifier] => 1
[work_modifier] => 1
[options] => Array
(
[0] => толщ. 300 мм
[1] => толщ. 400 мм
[2] => толщ. 500 мм
[3] => толщ. 600 мм
)
[days] => [30,32,34,36]
[material_price] => [20916,23299,26680,29060]
[work_price] => [17524,18700,19873,21046]
[image] => https://akademik-stroy.ru/wp-content/uploads/materials/cokolnyj-ehtazh-iz-fbs.jpg
[area_modifier] => 235.21
[parent_name] => Фундамент
[parent_id] => 1
[material_sum] => 5903583
[work_sum] => 4121820
[total_sum] => 10025403
[total_days] => 30
[display_material_sum] => 5 903 583
[display_work_sum] => 4 121 820
[display_total_sum] => 10 025 403
)
1
10 025 403₽
Работа:4 121 820 ₽
Материалы:5 903 583 ₽
Дни:30
stdClass Object
(
[id] => 77
[attribute_id] => 1
[name] => Цокольный этаж монолитный ж/б
[material_modifier] => 1
[work_modifier] => 1
[options] => Array
(
[0] => толщ. 200 мм
[1] => толщ. 300 мм
[2] => толщ. 400 мм
[3] => толщ. 500 мм
[4] => толщ. 600 мм
)
[days] => [40,42,44,46,48]
[material_price] => [25421,29148,32275,35602,37326]
[work_price] => [20441,21907,23375,24841,26306]
[image] => https://akademik-stroy.ru/wp-content/uploads/materials/cokolnyj-etazh-zh-b.jpg
[area_modifier] => 235.21
[parent_name] => Фундамент
[parent_id] => 1
[material_sum] => 7175128
[work_sum] => 4807928
[total_sum] => 11983056
[total_days] => 40
[display_material_sum] => 7 175 128
[display_work_sum] => 4 807 928
[display_total_sum] => 11 983 056
)
1
11 983 056₽
Работа:4 807 928 ₽
Материалы:7 175 128 ₽
Дни:40
stdClass Object
(
[id] => 191
[attribute_id] => 1
[name] => Винтовые сваи
[material_modifier] => 1
[work_modifier] => 1
[options] => Array
(
[0] => 57х200мм
[1] => 76х250мм
[2] => 108х300мм
[3] => 133х350мм
)
[days] => [1,1,2,2]
[material_price] => [1200,1300,1450,1600]
[work_price] => [400,600,900,1100]
[image] => https://akademik-stroy.ru/wp-content/uploads/materials/vintovye-svai.png
[area_modifier] => 235.21
[parent_name] => Фундамент
[parent_id] => 1
[material_sum] => 338702
[work_sum] => 94084
[total_sum] => 432786
[total_days] => 1
[display_material_sum] => 338 702
[display_work_sum] => 94 084
[display_total_sum] => 432 786
)
1
432 786₽
Работа:94 084 ₽
Материалы:338 702 ₽
Дни:1
stdClass Object
(
[id] => 3
[attribute_id] => 2
[name] => Деревянные балки
[material_modifier] => 1
[work_modifier] => 1
[options] => Array
(
[0] => без утепления
[1] => утепление 200 мм
[2] => утепление 250 мм
[3] => утепление 300 мм
[4] => утепление 350 мм
[5] => утепление 400 мм
[6] => утепление 450 мм
[7] => утепление 500 мм
)
[days] => [8,9,9,9,11,12,13,14]
[material_price] => [1634,2042,2344,2947,3149,3652,3354,3557]
[work_price] => [1230,1339,1393,1426,1460,1513,1587,1620]
[image] => https://akademik-stroy.ru/wp-content/uploads/materials/derevyannye-balki.png
[area_modifier] => 235.21
[parent_name] => Перекрытие цоколя
[parent_id] => 2
[material_sum] => 461200
[work_sum] => 289308
[total_sum] => 750508
[total_days] => 8
[display_material_sum] => 461 200
[display_work_sum] => 289 308
[display_total_sum] => 750 508
)
1
750 508₽
Работа:289 308 ₽
Материалы:461 200 ₽
Дни:8
stdClass Object
(
[id] => 4
[attribute_id] => 2
[name] => Сборные ж/б плиты
[material_modifier] => 1
[work_modifier] => 1
[options] => Array
(
[0] => без утепления
[1] => утепление 150мм
[2] => утепление 200мм
[3] => утепление 250мм
[4] => утепление 300мм
[5] => утепление 350мм
[6] => утепление 400мм
[7] => утепление 450мм
[8] => утепление 500мм
)
[days] => [13,15,15,15,15,15,15,15,15]
[material_price] => [3067,5577,5928,6679,7730,8782,9833,10884,11935]
[work_price] => [1520,1956,2102,2247,2392,2537,2684,2829,2974]
[image] => https://akademik-stroy.ru/wp-content/uploads/materials/sbornye-zh-b-plity-2.jpg
[area_modifier] => 235.21
[parent_name] => Перекрытие цоколя
[parent_id] => 2
[material_sum] => 865667
[work_sum] => 357519
[total_sum] => 1223186
[total_days] => 13
[display_material_sum] => 865 667
[display_work_sum] => 357 519
[display_total_sum] => 1 223 186
)
1
1 223 186₽
Работа:357 519 ₽
Материалы:865 667 ₽
Дни:13
stdClass Object
(
[id] => 78
[attribute_id] => 2
[name] => Монолитная ж/б плита
[material_modifier] => 1
[work_modifier] => 1
[options] => Array
(
[0] => без утепления
[1] => утепление 150 мм
[2] => утепление 200 мм
[3] => утепление 250 мм
[4] => утепление 300 мм
[5] => утепление 350 мм
[6] => утепление 400 мм
[7] => утепление 450 мм
[8] => утепление 500 мм
)
[days] => [18,20,20,20,20,20,20,20,20]
[material_price] => [4837,6572,7224,7375,79426,8177,8728,9180,10031]
[work_price] => [3348,3921,4112,4302,4493,4684,4875,5066,5256]
[image] => https://akademik-stroy.ru/wp-content/uploads/materials/monolitnaya-zh-b-plita-2.jpg
[area_modifier] => 235.21
[parent_name] => Перекрытие цоколя
[parent_id] => 2
[material_sum] => 1365253
[work_sum] => 787483
[total_sum] => 2152736
[total_days] => 18
[display_material_sum] => 1 365 253
[display_work_sum] => 787 483
[display_total_sum] => 2 152 736
)
1
2 152 736₽
Работа:787 483 ₽
Материалы:1 365 253 ₽
Дни:18
stdClass Object
(
[id] => 6
[attribute_id] => 3
[name] => Пеноблок
[material_modifier] => 1
[work_modifier] => 1
[options] => Array
(
[0] => 300 мм
[1] => 400 мм
[2] => 500 мм
[3] => 600 мм
)
[days] => [29,31,34,39]
[material_price] => [3000,4000,4500,4937]
[work_price] => [5033,5805,6400,8710]
[image] => https://akademik-stroy.ru/wp-content/uploads/materials/penoblok.jpg
[area_modifier] => 235.21
[parent_name] => Стены 1 этаж (несущие)
[parent_id] => 3
[material_sum] => 846756
[work_sum] => 1183812
[total_sum] => 2030568
[total_days] => 29
[display_material_sum] => 846 756
[display_work_sum] => 1 183 812
[display_total_sum] => 2 030 568
)
1
2 030 568₽
Работа:1 183 812 ₽
Материалы:846 756 ₽
Дни:29
stdClass Object
(
[id] => 79
[attribute_id] => 3
[name] => Керамический блок
[material_modifier] => 1
[work_modifier] => 1
[options] => Array
(
[0] => 380 мм
[1] => 380 мм Thermo
[2] => 440 мм
[3] => 510 мм
)
[days] => [23,23,24,25]
[material_price] => [4510,5098,6093,8013]
[work_price] => [4737,4937,5903,6958]
[image] => https://akademik-stroy.ru/wp-content/uploads/materials/keramicheskij-blok.jpg
[area_modifier] => 235.21
[parent_name] => Стены 1 этаж (несущие)
[parent_id] => 3
[material_sum] => 1272957
[work_sum] => 1114190
[total_sum] => 2387147
[total_days] => 23
[display_material_sum] => 1 272 957
[display_work_sum] => 1 114 190
[display_total_sum] => 2 387 147
)
1
2 387 147₽
Работа:1 114 190 ₽
Материалы:1 272 957 ₽
Дни:23
stdClass Object
(
[id] => 80
[attribute_id] => 3
[name] => Кирпич
[material_modifier] => 1
[work_modifier] => 1
[options] => Array
(
[0] => Кирпич 250 мм
[1] => Кирпич 380 мм
[2] => Кирпич 510 мм
[3] => Кирпич 640 мм
[4] => Кирпич 770 мм
)
[days] => [30,30,31,33,36]
[material_price] => [5500,7142,9206,10171,12235]
[work_price] => [8736,10041,12018,15240,18462]
[image] => https://akademik-stroy.ru/wp-content/uploads/materials/kirpich.jpg
[area_modifier] => 235.21
[parent_name] => Стены 1 этаж (несущие)
[parent_id] => 3
[material_sum] => 1552386
[work_sum] => 2054795
[total_sum] => 3607181
[total_days] => 30
[display_material_sum] => 1 552 386
[display_work_sum] => 2 054 795
[display_total_sum] => 3 607 181
)
1
3 607 181₽
Работа:2 054 795 ₽
Материалы:1 552 386 ₽
Дни:30
stdClass Object
(
[id] => 81
[attribute_id] => 3
[name] => Монолитные
[material_modifier] => 1
[work_modifier] => 1
[options] => Array
(
[0] => 150 мм
[1] => 200 мм
[2] => 250 мм
[3] => 300 мм
[4] => 350 мм
[5] => 400 мм
)
[days] => [45,46,47,49,50,53]
[material_price] => [6545,7876,10175,12011,13908,15204]
[work_price] => [5106,6444,7698,8552,9807,11461]
[image] => https://akademik-stroy.ru/wp-content/uploads/materials/monolitnye.jpg
[area_modifier] => 235.21
[parent_name] => Стены 1 этаж (несущие)
[parent_id] => 3
[material_sum] => 1847339
[work_sum] => 1200982
[total_sum] => 3048321
[total_days] => 45
[display_material_sum] => 1 847 339
[display_work_sum] => 1 200 982
[display_total_sum] => 3 048 321
)
1
3 048 321₽
Работа:1 200 982 ₽
Материалы:1 847 339 ₽
Дни:45
stdClass Object
(
[id] => 82
[attribute_id] => 3
[name] => Клееный брус
[material_modifier] => 1
[work_modifier] => 1
[options] => Array
(
[0] => 160 мм
[1] => 175 мм
[2] => 200 мм
[3] => 215 мм
[4] => 240 мм
[5] => 270 мм
[6] => 282 мм
)
[days] => [24,28,32,37,40,42,48]
[material_price] => [16975,18773,19950,20545,21599,22159,23275]
[work_price] => [4806,5287,5815,6397,7036,7740,8514]
[image] => https://akademik-stroy.ru/wp-content/uploads/materials/kleenyj-brus.jpg
[area_modifier] => 235.21
[parent_name] => Стены 1 этаж (несущие)
[parent_id] => 3
[material_sum] => 4791228
[work_sum] => 1130419
[total_sum] => 5921647
[total_days] => 24
[display_material_sum] => 4 791 228
[display_work_sum] => 1 130 419
[display_total_sum] => 5 921 647
)
1
5 921 647₽
Работа:1 130 419 ₽
Материалы:4 791 228 ₽
Дни:24
stdClass Object
(
[id] => 83
[attribute_id] => 3
[name] => Каркасные
[material_modifier] => 1
[work_modifier] => 1
[options] => Array
(
[0] => 150 мм
[1] => 200 мм
[2] => 250 мм
[3] => 300 мм
)
[days] => [15,16,17,18]
[material_price] => [2379,2639,2898,3258]
[work_price] => [2418,2686,2985,3716]
[image] => https://akademik-stroy.ru/wp-content/uploads/materials/karkasnye.jpg
[area_modifier] => 235.21
[parent_name] => Стены 1 этаж (несущие)
[parent_id] => 3
[material_sum] => 671478
[work_sum] => 568738
[total_sum] => 1240216
[total_days] => 15
[display_material_sum] => 671 478
[display_work_sum] => 568 738
[display_total_sum] => 1 240 216
)
1
1 240 216₽
Работа:568 738 ₽
Материалы:671 478 ₽
Дни:15
stdClass Object
(
[id] => 84
[attribute_id] => 3
[name] => СИП-панели
[material_modifier] => 1
[work_modifier] => 1
[options] => Array
(
[0] => 120 мм
[1] => 170 мм
[2] => 220 мм
)
[days] => [7,7,7]
[material_price] => [1210,1856,2292]
[work_price] => [1410,1551,1706]
[image] => https://akademik-stroy.ru/wp-content/uploads/materials/sip-paneli.jpg
[area_modifier] => 235.21
[parent_name] => Стены 1 этаж (несущие)
[parent_id] => 3
[material_sum] => 341525
[work_sum] => 331646
[total_sum] => 673171
[total_days] => 7
[display_material_sum] => 341 525
[display_work_sum] => 331 646
[display_total_sum] => 673 171
)
1
673 171₽
Работа:331 646 ₽
Материалы:341 525 ₽
Дни:7
stdClass Object
(
[id] => 85
[attribute_id] => 3
[name] => Сухой брус
[material_modifier] => 1
[work_modifier] => 1
[options] => Array
(
[0] => 150 мм
[1] => 180 мм
[2] => 200 мм
)
[days] => [7,8,9]
[material_price] => [6010,7190,8709]
[work_price] => [3204,3845,4229]
[image] => https://akademik-stroy.ru/wp-content/uploads/materials/suhoj-brus.jpg
[area_modifier] => 235.21
[parent_name] => Стены 1 этаж (несущие)
[parent_id] => 3
[material_sum] => 1696335
[work_sum] => 753613
[total_sum] => 2449948
[total_days] => 7
[display_material_sum] => 1 696 335
[display_work_sum] => 753 613
[display_total_sum] => 2 449 948
)
1
2 449 948₽
Работа:753 613 ₽
Материалы:1 696 335 ₽
Дни:7
stdClass Object
(
[id] => 86
[attribute_id] => 3
[name] => Профилированный брус
[material_modifier] => 1
[work_modifier] => 1
[options] => Array
(
[0] => 150 мм
[1] => 180 мм
[2] => 200 мм
)
[days] => [7,8,9]
[material_price] => [8190,9228,10051]
[work_price] => [3845,4614,5075]
[image] => https://akademik-stroy.ru/wp-content/uploads/materials/profilirovannyj-brus.jpg
[area_modifier] => 235.21
[parent_name] => Стены 1 этаж (несущие)
[parent_id] => 3
[material_sum] => 2311644
[work_sum] => 904382
[total_sum] => 3216026
[total_days] => 7
[display_material_sum] => 2 311 644
[display_work_sum] => 904 382
[display_total_sum] => 3 216 026
)
1
3 216 026₽
Работа:904 382 ₽
Материалы:2 311 644 ₽
Дни:7
stdClass Object
(
[id] => 87
[attribute_id] => 3
[name] => Оцилиндрованное бревно
[material_modifier] => 1
[work_modifier] => 1
[options] => Array
(
[0] => 180 мм
[1] => 220 мм
[2] => 260 мм
[3] => 320 мм
)
[days] => [7,8,9,10]
[material_price] => [75190,9532,10868,13116]
[work_price] => [3845,4691,5535,6863]
[image] => https://akademik-stroy.ru/wp-content/uploads/materials/ocilindrovannoe-brevno-1.jpg
[area_modifier] => 235.21
[parent_name] => Стены 1 этаж (несущие)
[parent_id] => 3
[material_sum] => 21222528
[work_sum] => 904382
[total_sum] => 22126910
[total_days] => 7
[display_material_sum] => 21 222 528
[display_work_sum] => 904 382
[display_total_sum] => 22 126 910
)
1
22 126 910₽
Работа:904 382 ₽
Материалы:21 222 528 ₽
Дни:7
stdClass Object
(
[id] => 88
[attribute_id] => 3
[name] => Срубы
[material_modifier] => 1
[work_modifier] => 1
[options] => Array
(
[0] => 260 мм
[1] => 320 мм
[2] => 360 мм
[3] => 400 мм
[4] => 500 мм
)
[days] => [7,8,9,10,11]
[material_price] => [37975,46709,52314,58069,73167]
[work_price] => [4806,5911,6621,7349,9260]
[image] => https://akademik-stroy.ru/wp-content/uploads/materials/sruby.jpg
[area_modifier] => 235.21
[parent_name] => Стены 1 этаж (несущие)
[parent_id] => 3
[material_sum] => 10718520
[work_sum] => 1130419
[total_sum] => 11848939
[total_days] => 7
[display_material_sum] => 10 718 520
[display_work_sum] => 1 130 419
[display_total_sum] => 11 848 939
)
1
11 848 939₽
Работа:1 130 419 ₽
Материалы:10 718 520 ₽
Дни:7
stdClass Object
(
[id] => 174
[attribute_id] => 3
[name] => Брус
[material_modifier] => 1
[work_modifier] => 1
[options] => Array
(
[0] => 150 мм
[1] => 180 мм
[2] => 200 мм
)
[days] => [7,8,9]
[material_price] => [5127,6152,7367]
[work_price] => [1602,1922,2115]
[image] => https://akademik-stroy.ru/wp-content/uploads/materials/brus.jpg
[area_modifier] => 235.21
[parent_name] => Стены 1 этаж (несущие)
[parent_id] => 3
[material_sum] => 1447106
[work_sum] => 376806
[total_sum] => 1823912
[total_days] => 7
[display_material_sum] => 1 447 106
[display_work_sum] => 376 806
[display_total_sum] => 1 823 912
)
1
1 823 912₽
Работа:376 806 ₽
Материалы:1 447 106 ₽
Дни:7
stdClass Object
(
[id] => 175
[attribute_id] => 3
[name] => Газобетон
[material_modifier] => 1
[work_modifier] => 1
[options] => Array
(
[0] => 300 мм
[1] => 375 мм
[2] => 400 мм
[3] => 500 мм
[4] => 600 мм
)
[days] => [29,31,35,37,44]
[material_price] => [4298,5573,6356,7288,9119]
[work_price] => [4538,5251,5926,6733,7195]
[image] => https://akademik-stroy.ru/wp-content/uploads/materials/gazobeton.jpg
[area_modifier] => 235.21
[parent_name] => Стены 1 этаж (несущие)
[parent_id] => 3
[material_sum] => 1213119
[work_sum] => 1067383
[total_sum] => 2280502
[total_days] => 29
[display_material_sum] => 1 213 119
[display_work_sum] => 1 067 383
[display_total_sum] => 2 280 502
)
1
2 280 502₽
Работа:1 067 383 ₽
Материалы:1 213 119 ₽
Дни:29
stdClass Object
(
[id] => 176
[attribute_id] => 3
[name] => Блок
[material_modifier] => 1
[work_modifier] => 1
[options] => Array
(
[0] => 300 мм
[1] => 375 мм
[2] => 400 мм
[3] => 500 мм
[4] => 600 мм
)
[days] => [29,31,35,37,44]
[material_price] => [2698,3973,4356,6588,7119]
[work_price] => [5038,5851,6426,8733,9195]
[image] => https://akademik-stroy.ru/wp-content/uploads/materials/blok.jpg
[area_modifier] => 235.21
[parent_name] => Стены 1 этаж (несущие)
[parent_id] => 3
[material_sum] => 761516
[work_sum] => 1184988
[total_sum] => 1946504
[total_days] => 29
[display_material_sum] => 761 516
[display_work_sum] => 1 184 988
[display_total_sum] => 1 946 504
)
1
1 946 504₽
Работа:1 184 988 ₽
Материалы:761 516 ₽
Дни:29
stdClass Object
(
[id] => 177
[attribute_id] => 3
[name] => Газосиликатный блок
[material_modifier] => 1
[work_modifier] => 1
[options] => Array
(
[0] => 300 мм
[1] => 375 мм
[2] => 400 мм
[3] => 500 мм
[4] => 600 мм
)
[days] => [29,31,35,37,44]
[material_price] => [4298,5573,6356,7288,9119]
[work_price] => [4538,5251,5926,6733,7195]
[image] => https://akademik-stroy.ru/wp-content/uploads/materials/gazosilikatnyj-blok.jpg
[area_modifier] => 235.21
[parent_name] => Стены 1 этаж (несущие)
[parent_id] => 3
[material_sum] => 1213119
[work_sum] => 1067383
[total_sum] => 2280502
[total_days] => 29
[display_material_sum] => 1 213 119
[display_work_sum] => 1 067 383
[display_total_sum] => 2 280 502
)
1
2 280 502₽
Работа:1 067 383 ₽
Материалы:1 213 119 ₽
Дни:29
stdClass Object
(
[id] => 178
[attribute_id] => 3
[name] => Керамзитобетонный блок
[material_modifier] => 1
[work_modifier] => 1
[options] => Array
(
[0] => 300 мм
[1] => 375 мм
[2] => 400 мм
[3] => 500 мм
[4] => 600 мм
)
[days] => [23,23,24,25,28]
[material_price] => [3641,4298,5693,7613,9612]
[work_price] => [5737,5737,6903,7958,8901]
[image] => https://akademik-stroy.ru/wp-content/uploads/materials/keramzitobetonnyj-blok.jpg
[area_modifier] => 235.21
[parent_name] => Стены 1 этаж (несущие)
[parent_id] => 3
[material_sum] => 1027680
[work_sum] => 1349400
[total_sum] => 2377080
[total_days] => 23
[display_material_sum] => 1 027 680
[display_work_sum] => 1 349 400
[display_total_sum] => 2 377 080
)
1
2 377 080₽
Работа:1 349 400 ₽
Материалы:1 027 680 ₽
Дни:23
stdClass Object
(
[id] => 179
[attribute_id] => 3
[name] => Деревянные
[material_modifier] => 1
[work_modifier] => 1
[options] => Array
(
[0] => 180 мм
[1] => 220 мм
[2] => 260 мм
[3] => 320 мм
)
[days] => [7,8,9,10]
[material_price] => [7950,9458,11961,14472]
[work_price] => [4037,4925,5812,7207]
[image] => https://akademik-stroy.ru/wp-content/uploads/materials/derevyannye.jpg
[area_modifier] => 235.21
[parent_name] => Стены 1 этаж (несущие)
[parent_id] => 3
[material_sum] => 2243903
[work_sum] => 949543
[total_sum] => 3193446
[total_days] => 7
[display_material_sum] => 2 243 903
[display_work_sum] => 949 543
[display_total_sum] => 3 193 446
)
1
3 193 446₽
Работа:949 543 ₽
Материалы:2 243 903 ₽
Дни:7
stdClass Object
(
[id] => 181
[attribute_id] => 3
[name] => Камень
[material_modifier] => 1
[work_modifier] => 1
[options] => Array
(
[0] => 300 мм
[1] => 400 мм
[2] => 500 мм
[3] => 600 мм
)
[days] => [25,27,31,34]
[material_price] => [5262,6844,8330,9815]
[work_price] => [8331,9135,10427,11069]
[image] => https://akademik-stroy.ru/wp-content/uploads/materials/kamen.jpg
[area_modifier] => 235.21
[parent_name] => Стены 1 этаж (несущие)
[parent_id] => 3
[material_sum] => 1485210
[work_sum] => 1959535
[total_sum] => 3444745
[total_days] => 25
[display_material_sum] => 1 485 210
[display_work_sum] => 1 959 535
[display_total_sum] => 3 444 745
)
1
3 444 745₽
Работа:1 959 535 ₽
Материалы:1 485 210 ₽
Дни:25
stdClass Object
(
[id] => 182
[attribute_id] => 3
[name] => Каркасно-щитовые
[material_modifier] => 1
[work_modifier] => 1
[options] => Array
(
[0] => 150 мм
[1] => 200 мм
[2] => 250 мм
[3] => 300 мм
[4] => 350 мм
[5] => 400 мм
)
[days] => [15,16,17,18,19,20]
[material_price] => [2379,2639,2898,3458,3601,4175]
[work_price] => [2538,2820,3134,3483,4062,5642]
[image] => https://akademik-stroy.ru/wp-content/uploads/materials/karkasno-shchitovye.jpg
[area_modifier] => 235.21
[parent_name] => Стены 1 этаж (несущие)
[parent_id] => 3
[material_sum] => 671478
[work_sum] => 596963
[total_sum] => 1268441
[total_days] => 15
[display_material_sum] => 671 478
[display_work_sum] => 596 963
[display_total_sum] => 1 268 441
)
1
1 268 441₽
Работа:596 963 ₽
Материалы:671 478 ₽
Дни:15
stdClass Object
(
[id] => 183
[attribute_id] => 3
[name] => Рубленные
[material_modifier] => 1
[work_modifier] => 1
[options] => Array
(
[0] => 150 мм
[1] => 200 мм
[2] => 250 мм
[3] => 300 мм
[4] => 350 мм
[5] => 400 мм
)
[days] => [15,16,17,18,17,18]
[material_price] => [35950,50267,60583,75900,80217,100533]
[work_price] => [9612,12816,16020,19224,22428,25632]
[image] => https://akademik-stroy.ru/wp-content/uploads/materials/rublennye.jpg
[area_modifier] => 235.21
[parent_name] => Стены 1 этаж (несущие)
[parent_id] => 3
[material_sum] => 10146959
[work_sum] => 2260839
[total_sum] => 12407798
[total_days] => 15
[display_material_sum] => 10 146 959
[display_work_sum] => 2 260 839
[display_total_sum] => 12 407 798
)
1
12 407 798₽
Работа:2 260 839 ₽
Материалы:10 146 959 ₽
Дни:15
stdClass Object
(
[id] => 185
[attribute_id] => 3
[name] => Теплоблок
[material_modifier] => 1
[work_modifier] => 1
[options] => Array
(
[0] => 300 мм (с облицовкой, не покрашенный)
[1] => 400 мм (с облицовкой, не покрашенный)
[2] => 300 мм (с облицовкой, покрашенный)
[3] => 400 мм (с облицовкой, покрашенный)
)
[days] => [15,16,15,16]
[material_price] => [2888,3729,3957,4258]
[work_price] => [2564,3229,2949,3713]
[image] => https://akademik-stroy.ru/wp-content/uploads/materials/teploblok.jpg
[area_modifier] => 235.21
[parent_name] => Стены 1 этаж (несущие)
[parent_id] => 3
[material_sum] => 815144
[work_sum] => 603078
[total_sum] => 1418222
[total_days] => 15
[display_material_sum] => 815 144
[display_work_sum] => 603 078
[display_total_sum] => 1 418 222
)
1
1 418 222₽
Работа:603 078 ₽
Материалы:815 144 ₽
Дни:15
stdClass Object
(
[id] => 186
[attribute_id] => 3
[name] => Арболитовые блоки
[material_modifier] => 1
[work_modifier] => 1
[options] => Array
(
[0] => 300 мм
[1] => 400 мм
[2] => 600 мм
)
[days] => [19,22,27]
[material_price] => [3210,4475,5852]
[work_price] => [4214,4788,5866]
[image] => https://akademik-stroy.ru/wp-content/uploads/materials/arbolitovye-bloki.png
[area_modifier] => 235.21
[parent_name] => Стены 1 этаж (несущие)
[parent_id] => 3
[material_sum] => 906029
[work_sum] => 991175
[total_sum] => 1897204
[total_days] => 19
[display_material_sum] => 906 029
[display_work_sum] => 991 175
[display_total_sum] => 1 897 204
)
1
1 897 204₽
Работа:991 175 ₽
Материалы:906 029 ₽
Дни:19
stdClass Object
(
[id] => 187
[attribute_id] => 3
[name] => Полистиролбетон
[material_modifier] => 1
[work_modifier] => 1
[options] => Array
(
[0] => 300 мм
[1] => 400 мм
[2] => 600 мм
)
[days] => [29,31,35]
[material_price] => [2798,4573,5256]
[work_price] => [5038,5851,6426]
[image] => https://akademik-stroy.ru/wp-content/uploads/materials/polistirolbeton.jpg
[area_modifier] => 235.21
[parent_name] => Стены 1 этаж (несущие)
[parent_id] => 3
[material_sum] => 789741
[work_sum] => 1184988
[total_sum] => 1974729
[total_days] => 29
[display_material_sum] => 789 741
[display_work_sum] => 1 184 988
[display_total_sum] => 1 974 729
)
1
1 974 729₽
Работа:1 184 988 ₽
Материалы:789 741 ₽
Дни:29
stdClass Object
(
[id] => 188
[attribute_id] => 3
[name] => Шлакоблок
[material_modifier] => 1
[work_modifier] => 1
[options] => Array
(
[0] => 400 мм
[1] => 600 мм
)
[days] => [15,16]
[material_price] => [2391,3471]
[work_price] => [2642,3662]
[image] => https://akademik-stroy.ru/wp-content/uploads/materials/shlakoblok.jpg
[area_modifier] => 235.21
[parent_name] => Стены 1 этаж (несущие)
[parent_id] => 3
[material_sum] => 674865
[work_sum] => 621425
[total_sum] => 1296290
[total_days] => 15
[display_material_sum] => 674 865
[display_work_sum] => 621 425
[display_total_sum] => 1 296 290
)
1
1 296 290₽
Работа:621 425 ₽
Материалы:674 865 ₽
Дни:15
stdClass Object
(
[id] => 189
[attribute_id] => 3
[name] => Теплая керамика
[material_modifier] => 1
[work_modifier] => 1
[options] => Array
(
[0] => 380 мм
[1] => 380 мм Thermo
[2] => 440 мм
[3] => 510 мм
)
[days] => [23,23,24,25]
[material_price] => [4510,5098,6093,8013]
[work_price] => [4737,4937,5903,6958]
[image] => https://akademik-stroy.ru/wp-content/uploads/materials/teplaya-keramika.jpg
[area_modifier] => 235.21
[parent_name] => Стены 1 этаж (несущие)
[parent_id] => 3
[material_sum] => 1272957
[work_sum] => 1114190
[total_sum] => 2387147
[total_days] => 23
[display_material_sum] => 1 272 957
[display_work_sum] => 1 114 190
[display_total_sum] => 2 387 147
)
1
2 387 147₽
Работа:1 114 190 ₽
Материалы:1 272 957 ₽
Дни:23
stdClass Object
(
[id] => 190
[attribute_id] => 3
[name] => Несъемная опалубка
[material_modifier] => 1
[work_modifier] => 1
[options] => Array
(
[0] => 200 мм
[1] => 250 мм
[2] => 300 мм
[3] => 350 мм
)
[days] => [15,17,19,21]
[material_price] => [3302,3902,4108,5008]
[work_price] => [2100,2100,2300,2534]
[image] => https://akademik-stroy.ru/wp-content/uploads/materials/nesemnaya-opalubka.jpg
[area_modifier] => 235.21
[parent_name] => Стены 1 этаж (несущие)
[parent_id] => 3
[material_sum] => 931996
[work_sum] => 493941
[total_sum] => 1425937
[total_days] => 15
[display_material_sum] => 931 996
[display_work_sum] => 493 941
[display_total_sum] => 1 425 937
)
1
1 425 937₽
Работа:493 941 ₽
Материалы:931 996 ₽
Дни:15
stdClass Object
(
[id] => 251
[attribute_id] => 3
[name] => Бревно
[material_modifier] => 1
[work_modifier] => 1
[options] => Array
(
[0] => 260 мм
[1] => 320 мм
[2] => 360 мм
[3] => 400 мм
[4] => 500 мм
)
[days] => [7,8,9,10,11]
[material_price] => [1874,24045,26930,30972,38825]
[work_price] => [5046,6207,6952,7716,9723]
[image] => https://akademik-stroy.ru/wp-content/uploads/materials/sruby.jpg
[area_modifier] => 235.21
[parent_name] => Стены 1 этаж (несущие)
[parent_id] => 3
[material_sum] => 528940
[work_sum] => 1186870
[total_sum] => 1715810
[total_days] => 7
[display_material_sum] => 528 940
[display_work_sum] => 1 186 870
[display_total_sum] => 1 715 810
)
1
1 715 810₽
Работа:1 186 870 ₽
Материалы:528 940 ₽
Дни:7
stdClass Object
(
[id] => 7
[attribute_id] => 4
[name] => Деревянные балки
[material_modifier] => 1
[work_modifier] => 1
[options] => Array
(
[0] => без утепления
[1] => утепление 200 мм
[2] => утепление 250 мм
[3] => утепление 300 мм
[4] => утепление 350 мм
[5] => утепление 400 мм
[6] => утепление 450 мм
[7] => утепление 500 мм
)
[days] => [8,9,9,9,11,12,13,14]
[material_price] => [1634,2042,2344,2947,3149,3652,3354,3557]
[work_price] => [1230,1339,1393,1426,1460,1513,1587,1620]
[image] => https://akademik-stroy.ru/wp-content/uploads/materials/derevyannye-balki.png
[area_modifier] => 235.21
[parent_name] => Перекрытие первого этажа
[parent_id] => 4
[material_sum] => 461200
[work_sum] => 289308
[total_sum] => 750508
[total_days] => 8
[display_material_sum] => 461 200
[display_work_sum] => 289 308
[display_total_sum] => 750 508
)
1
750 508₽
Работа:289 308 ₽
Материалы:461 200 ₽
Дни:8
stdClass Object
(
[id] => 8
[attribute_id] => 4
[name] => Сборные ж/б плиты
[material_modifier] => 1
[work_modifier] => 1
[options] => Array
(
[0] => без утепления
[1] => утепление 150 мм
[2] => утепление 200 мм
[3] => утепление 250 мм
[4] => утепление 300 мм
[5] => утепление 350 мм
[6] => утепление 400 мм
[7] => утепление 450 мм
[8] => утепление 500 мм
)
[days] => [13,15,15,15,15,15,15,15,15]
[material_price] => [3067,5577,5928,6679,7730,8782,9833,10884,11935]
[work_price] => [1520,1956,2102,2247,2392,2537,2684,2829,2974]
[image] => https://akademik-stroy.ru/wp-content/uploads/materials/sbornye-zh-b-plity-2.jpg
[area_modifier] => 235.21
[parent_name] => Перекрытие первого этажа
[parent_id] => 4
[material_sum] => 865667
[work_sum] => 357519
[total_sum] => 1223186
[total_days] => 13
[display_material_sum] => 865 667
[display_work_sum] => 357 519
[display_total_sum] => 1 223 186
)
1
1 223 186₽
Работа:357 519 ₽
Материалы:865 667 ₽
Дни:13
stdClass Object
(
[id] => 89
[attribute_id] => 4
[name] => Монолитная ж/б плита
[material_modifier] => 1
[work_modifier] => 1
[options] => Array
(
[0] => без утепления
[1] => утепление 150 мм
[2] => утепление 200 мм
[3] => утепление 250 мм
[4] => утепление 300 мм
[5] => утепление 350 мм
[6] => утепление 400 мм
[7] => утепление 450 мм
[8] => утепление 500 мм
)
[days] => [18,20,20,20,20,20,20,20,20]
[material_price] => [4837,6572,7224,7375,79426,8177,8728,9180,10031]
[work_price] => [3348,3921,4112,4302,4493,4684,4875,5066,5256]
[image] => https://akademik-stroy.ru/wp-content/uploads/materials/monolitnaya-zh-b-plita-2.jpg
[area_modifier] => 235.21
[parent_name] => Перекрытие первого этажа
[parent_id] => 4
[material_sum] => 1365253
[work_sum] => 787483
[total_sum] => 2152736
[total_days] => 18
[display_material_sum] => 1 365 253
[display_work_sum] => 787 483
[display_total_sum] => 2 152 736
)
1
2 152 736₽
Работа:787 483 ₽
Материалы:1 365 253 ₽
Дни:18
stdClass Object
(
[id] => 10
[attribute_id] => 5
[name] => Пеноблок
[material_modifier] => 1
[work_modifier] => 1
[options] => Array
(
[0] => 300 мм
[1] => 400 мм
[2] => 500 мм
[3] => 600 мм
)
[days] => [29,31,34,39]
[material_price] => [3000,4000,4500,4937]
[work_price] => [5033,5805,6400,8710]
[image] => https://akademik-stroy.ru/wp-content/uploads/materials/penoblok.jpg
[area_modifier] => 124.12
[parent_name] => Стены 2 этаж (несущие)
[parent_id] => 5
[material_sum] => 446832
[work_sum] => 624696
[total_sum] => 1071528
[total_days] => 29
[display_material_sum] => 446 832
[display_work_sum] => 624 696
[display_total_sum] => 1 071 528
)
1
1 071 528₽
Работа:624 696 ₽
Материалы:446 832 ₽
Дни:29
stdClass Object
(
[id] => 90
[attribute_id] => 5
[name] => Керамический блок
[material_modifier] => 1
[work_modifier] => 1
[options] => Array
(
[0] => 380 мм
[1] => 380 мм Thermo
[2] => 440 мм
[3] => 510 мм
)
[days] => [23,23,24,25]
[material_price] => [4510,5098,6093,8013]
[work_price] => [4737,4937,5903,6958]
[image] => https://akademik-stroy.ru/wp-content/uploads/materials/keramicheskij-blok.jpg
[area_modifier] => 124.12
[parent_name] => Стены 2 этаж (несущие)
[parent_id] => 5
[material_sum] => 671737
[work_sum] => 587956
[total_sum] => 1259693
[total_days] => 23
[display_material_sum] => 671 737
[display_work_sum] => 587 956
[display_total_sum] => 1 259 693
)
1
1 259 693₽
Работа:587 956 ₽
Материалы:671 737 ₽
Дни:23
stdClass Object
(
[id] => 91
[attribute_id] => 5
[name] => Кирпич
[material_modifier] => 1
[work_modifier] => 1
[options] => Array
(
[0] => Кирпич 250 мм
[1] => Кирпич 380 мм
[2] => Кирпич 510 мм
[3] => Кирпич 640 мм
[4] => Кирпич 770 мм
)
[days] => [30,30,31,33,36]
[material_price] => [5500,7142,9206,10171,12235]
[work_price] => [8736,10041,12018,15240,18462]
[image] => https://akademik-stroy.ru/wp-content/uploads/materials/kirpich.jpg
[area_modifier] => 124.12
[parent_name] => Стены 2 этаж (несущие)
[parent_id] => 5
[material_sum] => 819192
[work_sum] => 1084312
[total_sum] => 1903504
[total_days] => 30
[display_material_sum] => 819 192
[display_work_sum] => 1 084 312
[display_total_sum] => 1 903 504
)
1
1 903 504₽
Работа:1 084 312 ₽
Материалы:819 192 ₽
Дни:30
stdClass Object
(
[id] => 92
[attribute_id] => 5
[name] => Монолитные
[material_modifier] => 1
[work_modifier] => 1
[options] => Array
(
[0] => 150 мм
[1] => 200 мм
[2] => 250 мм
[3] => 300 мм
[4] => 350 мм
[5] => 400 мм
)
[days] => [45,46,47,49,50,53]
[material_price] => [6545,7876,10175,12011,13908,15204]
[work_price] => [5106,6444,7698,8552,9807,11461]
[image] => https://akademik-stroy.ru/wp-content/uploads/materials/monolitnye.jpg
[area_modifier] => 124.12
[parent_name] => Стены 2 этаж (несущие)
[parent_id] => 5
[material_sum] => 974838
[work_sum] => 633757
[total_sum] => 1608595
[total_days] => 45
[display_material_sum] => 974 838
[display_work_sum] => 633 757
[display_total_sum] => 1 608 595
)
1
1 608 595₽
Работа:633 757 ₽
Материалы:974 838 ₽
Дни:45
stdClass Object
(
[id] => 93
[attribute_id] => 5
[name] => Клееный брус
[material_modifier] => 1
[work_modifier] => 1
[options] => Array
(
[0] => 160 мм
[1] => 175 мм
[2] => 200 мм
[3] => 215 мм
[4] => 240 мм
[5] => 270 мм
[6] => 282 мм
)
[days] => [24,28,32,37,40,42,48]
[material_price] => [16975,18773,19950,20545,21599,22159,23275]
[work_price] => [4806,5287,5815,6397,7036,7740,8514]
[image] => https://akademik-stroy.ru/wp-content/uploads/materials/kleenyj-brus.jpg
[area_modifier] => 124.12
[parent_name] => Стены 2 этаж (несущие)
[parent_id] => 5
[material_sum] => 2528324
[work_sum] => 596521
[total_sum] => 3124845
[total_days] => 24
[display_material_sum] => 2 528 324
[display_work_sum] => 596 521
[display_total_sum] => 3 124 845
)
1
3 124 845₽
Работа:596 521 ₽
Материалы:2 528 324 ₽
Дни:24
stdClass Object
(
[id] => 94
[attribute_id] => 5
[name] => Каркасные
[material_modifier] => 1
[work_modifier] => 1
[options] => Array
(
[0] => 150 мм
[1] => 200 мм
[2] => 250 мм
[3] => 300 мм
)
[days] => [15,16,17,18]
[material_price] => [2379,2639,2898,3258]
[work_price] => [2418,2686,2985,3716]
[image] => https://akademik-stroy.ru/wp-content/uploads/materials/karkasnye.jpg
[area_modifier] => 124.12
[parent_name] => Стены 2 этаж (несущие)
[parent_id] => 5
[material_sum] => 354338
[work_sum] => 300122
[total_sum] => 654460
[total_days] => 15
[display_material_sum] => 354 338
[display_work_sum] => 300 122
[display_total_sum] => 654 460
)
1
654 460₽
Работа:300 122 ₽
Материалы:354 338 ₽
Дни:15
stdClass Object
(
[id] => 95
[attribute_id] => 5
[name] => СИП-панели
[material_modifier] => 1
[work_modifier] => 1
[options] => Array
(
[0] => 120 мм
[1] => 170 мм
[2] => 220 мм
)
[days] => [7,7,7]
[material_price] => [1210,1856,2292]
[work_price] => [1410,1551,1706]
[image] => https://akademik-stroy.ru/wp-content/uploads/materials/sip-paneli.jpg
[area_modifier] => 124.12
[parent_name] => Стены 2 этаж (несущие)
[parent_id] => 5
[material_sum] => 180222
[work_sum] => 175009
[total_sum] => 355231
[total_days] => 7
[display_material_sum] => 180 222
[display_work_sum] => 175 009
[display_total_sum] => 355 231
)
1
355 231₽
Работа:175 009 ₽
Материалы:180 222 ₽
Дни:7
stdClass Object
(
[id] => 96
[attribute_id] => 5
[name] => Сухой брус
[material_modifier] => 1
[work_modifier] => 1
[options] => Array
(
[0] => 150 мм
[1] => 180 мм
[2] => 200 мм
)
[days] => [7,8,9]
[material_price] => [6010,7190,8709]
[work_price] => [3204,3845,4229]
[image] => https://akademik-stroy.ru/wp-content/uploads/materials/suhoj-brus.jpg
[area_modifier] => 124.12
[parent_name] => Стены 2 этаж (несущие)
[parent_id] => 5
[material_sum] => 895153
[work_sum] => 397680
[total_sum] => 1292833
[total_days] => 7
[display_material_sum] => 895 153
[display_work_sum] => 397 680
[display_total_sum] => 1 292 833
)
1
1 292 833₽
Работа:397 680 ₽
Материалы:895 153 ₽
Дни:7
stdClass Object
(
[id] => 97
[attribute_id] => 5
[name] => Профилированный брус
[material_modifier] => 1
[work_modifier] => 1
[options] => Array
(
[0] => 150 мм
[1] => 180 мм
[2] => 200 мм
)
[days] => [7,8,9]
[material_price] => [8190,9228,10051]
[work_price] => [3845,4614,5075]
[image] => https://akademik-stroy.ru/wp-content/uploads/materials/profilirovannyj-brus.jpg
[area_modifier] => 124.12
[parent_name] => Стены 2 этаж (несущие)
[parent_id] => 5
[material_sum] => 1219851
[work_sum] => 477241
[total_sum] => 1697092
[total_days] => 7
[display_material_sum] => 1 219 851
[display_work_sum] => 477 241
[display_total_sum] => 1 697 092
)
1
1 697 092₽
Работа:477 241 ₽
Материалы:1 219 851 ₽
Дни:7
stdClass Object
(
[id] => 98
[attribute_id] => 5
[name] => Оцилиндрованное бревно
[material_modifier] => 1
[work_modifier] => 1
[options] => Array
(
[0] => 180 мм
[1] => 220 мм
[2] => 260 мм
[3] => 320 мм
)
[days] => [7,8,9,10]
[material_price] => [75190,9532,10868,13116]
[work_price] => [3845,4691,5535,6863]
[image] => https://akademik-stroy.ru/wp-content/uploads/materials/ocilindrovannoe-brevno-1.jpg
[area_modifier] => 124.12
[parent_name] => Стены 2 этаж (несущие)
[parent_id] => 5
[material_sum] => 11199099
[work_sum] => 477241
[total_sum] => 11676340
[total_days] => 7
[display_material_sum] => 11 199 099
[display_work_sum] => 477 241
[display_total_sum] => 11 676 340
)
1
11 676 340₽
Работа:477 241 ₽
Материалы:11 199 099 ₽
Дни:7
stdClass Object
(
[id] => 99
[attribute_id] => 5
[name] => Срубы
[material_modifier] => 1
[work_modifier] => 1
[options] => Array
(
[0] => 260 мм
[1] => 320 мм
[2] => 360 мм
[3] => 400 мм
[4] => 500 мм
)
[days] => [7,8,9,10,11]
[material_price] => [16175,23709,26314,29069,32167]
[work_price] => [4806,5911,6621,7349,9260]
[image] => https://akademik-stroy.ru/wp-content/uploads/materials/suhoj-brus.jpg
[area_modifier] => 124.12
[parent_name] => Стены 2 этаж (несущие)
[parent_id] => 5
[material_sum] => 2409169
[work_sum] => 596521
[total_sum] => 3005690
[total_days] => 7
[display_material_sum] => 2 409 169
[display_work_sum] => 596 521
[display_total_sum] => 3 005 690
)
1
3 005 690₽
Работа:596 521 ₽
Материалы:2 409 169 ₽
Дни:7
stdClass Object
(
[id] => 194
[attribute_id] => 5
[name] => Брус
[material_modifier] => 1
[work_modifier] => 1
[options] => Array
(
[0] => 150 мм
[1] => 180 мм
[2] => 200 мм
)
[days] => [10,13,15]
[material_price] => [5127,6152,7367]
[work_price] => [1602,1922,2115]
[image] => https://akademik-stroy.ru/wp-content/uploads/materials/brus.jpg
[area_modifier] => 124.12
[parent_name] => Стены 2 этаж (несущие)
[parent_id] => 5
[material_sum] => 763636
[work_sum] => 198840
[total_sum] => 962476
[total_days] => 10
[display_material_sum] => 763 636
[display_work_sum] => 198 840
[display_total_sum] => 962 476
)
1
962 476₽
Работа:198 840 ₽
Материалы:763 636 ₽
Дни:10
stdClass Object
(
[id] => 195
[attribute_id] => 5
[name] => Газобетон
[material_modifier] => 1
[work_modifier] => 1
[options] => Array
(
[0] => 300 мм
[1] => 375 мм
[2] => 400 мм
[3] => 500 мм
[4] => 600 мм
)
[days] => [29,31,35,37,44]
[material_price] => [4298,5573,6356,7288,9119]
[work_price] => [4538,5251,5926,6733,7195]
[image] => https://akademik-stroy.ru/wp-content/uploads/materials/gazobeton.jpg
[area_modifier] => 124.12
[parent_name] => Стены 2 этаж (несущие)
[parent_id] => 5
[material_sum] => 640161
[work_sum] => 563257
[total_sum] => 1203418
[total_days] => 29
[display_material_sum] => 640 161
[display_work_sum] => 563 257
[display_total_sum] => 1 203 418
)
1
1 203 418₽
Работа:563 257 ₽
Материалы:640 161 ₽
Дни:29
stdClass Object
(
[id] => 196
[attribute_id] => 5
[name] => Блок
[material_modifier] => 1
[work_modifier] => 1
[options] => Array
(
[0] => 300 мм
[1] => 375 мм
[2] => 400 мм
[3] => 500 мм
[4] => 600 мм
)
[days] => [29,31,35,37,44]
[material_price] => [2698,3973,4356,6588,7119]
[work_price] => [5038,5851,6426,8733,9195]
[image] => https://akademik-stroy.ru/wp-content/uploads/materials/blok.jpg
[area_modifier] => 124.12
[parent_name] => Стены 2 этаж (несущие)
[parent_id] => 5
[material_sum] => 401851
[work_sum] => 625317
[total_sum] => 1027168
[total_days] => 29
[display_material_sum] => 401 851
[display_work_sum] => 625 317
[display_total_sum] => 1 027 168
)
1
1 027 168₽
Работа:625 317 ₽
Материалы:401 851 ₽
Дни:29
stdClass Object
(
[id] => 197
[attribute_id] => 5
[name] => Газосиликатный блок
[material_modifier] => 1
[work_modifier] => 1
[options] => Array
(
[0] => 300 мм
[1] => 375 мм
[2] => 400 мм
[3] => 500 мм
[4] => 600 мм
)
[days] => [29,31,35,37,44]
[material_price] => [4298,5573,6356,7288,9119]
[work_price] => [4538,5251,5926,6733,7195]
[image] => https://akademik-stroy.ru/wp-content/uploads/materials/gazosilikatnyj-blok.jpg
[area_modifier] => 124.12
[parent_name] => Стены 2 этаж (несущие)
[parent_id] => 5
[material_sum] => 640161
[work_sum] => 563257
[total_sum] => 1203418
[total_days] => 29
[display_material_sum] => 640 161
[display_work_sum] => 563 257
[display_total_sum] => 1 203 418
)
1
1 203 418₽
Работа:563 257 ₽
Материалы:640 161 ₽
Дни:29
stdClass Object
(
[id] => 198
[attribute_id] => 5
[name] => Керамзитобетонный блок
[material_modifier] => 1
[work_modifier] => 1
[options] => Array
(
[0] => 300 мм
[1] => 375 мм
[2] => 400 мм
[3] => 500 мм
[4] => 600 мм
)
[days] => [23,23,24,25,28]
[material_price] => [3641,4298,5693,7613,9612]
[work_price] => [5737,5737,6903,7958,8901]
[image] => https://akademik-stroy.ru/wp-content/uploads/materials/keramzitobetonnyj-blok.jpg
[area_modifier] => 124.12
[parent_name] => Стены 2 этаж (несущие)
[parent_id] => 5
[material_sum] => 542305
[work_sum] => 712076
[total_sum] => 1254381
[total_days] => 23
[display_material_sum] => 542 305
[display_work_sum] => 712 076
[display_total_sum] => 1 254 381
)
1
1 254 381₽
Работа:712 076 ₽
Материалы:542 305 ₽
Дни:23
stdClass Object
(
[id] => 199
[attribute_id] => 5
[name] => Деревянные
[material_modifier] => 1
[work_modifier] => 1
[options] => Array
(
[0] => 180 мм
[1] => 220 мм
[2] => 260 мм
[3] => 320 мм
)
[days] => [7,8,9,10]
[material_price] => [7950,9458,11961,14472]
[work_price] => [4037,4925,5812,7207]
[image] => https://akademik-stroy.ru/wp-content/uploads/materials/derevyannye.jpg
[area_modifier] => 124.12
[parent_name] => Стены 2 этаж (несущие)
[parent_id] => 5
[material_sum] => 1184105
[work_sum] => 501072
[total_sum] => 1685177
[total_days] => 7
[display_material_sum] => 1 184 105
[display_work_sum] => 501 072
[display_total_sum] => 1 685 177
)
1
1 685 177₽
Работа:501 072 ₽
Материалы:1 184 105 ₽
Дни:7
stdClass Object
(
[id] => 200
[attribute_id] => 5
[name] => Камень
[material_modifier] => 1
[work_modifier] => 1
[options] => Array
(
[0] => 300 мм
[1] => 400 мм
[2] => 500 мм
[3] => 600 мм
)
[days] => [25,27,31,34]
[material_price] => [5262,6844,8330,9815]
[work_price] => [8331,9135,10427,11069]
[image] => https://akademik-stroy.ru/wp-content/uploads/materials/kamen.jpg
[area_modifier] => 124.12
[parent_name] => Стены 2 этаж (несущие)
[parent_id] => 5
[material_sum] => 783743
[work_sum] => 1034044
[total_sum] => 1817787
[total_days] => 25
[display_material_sum] => 783 743
[display_work_sum] => 1 034 044
[display_total_sum] => 1 817 787
)
1
1 817 787₽
Работа:1 034 044 ₽
Материалы:783 743 ₽
Дни:25
stdClass Object
(
[id] => 201
[attribute_id] => 5
[name] => Каркасно-щитовые
[material_modifier] => 1
[work_modifier] => 1
[options] => Array
(
[0] => 150 мм
[1] => 200 мм
[2] => 250 мм
[3] => 300 мм
[4] => 350 мм
[5] => 400 мм
)
[days] => [15,16,17,18,19,20]
[material_price] => [2379,2639,2898,3458,3601,4175]
[work_price] => [2538,2820,3134,3483,4062,5642]
[image] => https://akademik-stroy.ru/wp-content/uploads/materials/karkasno-shchitovye.jpg
[area_modifier] => 124.12
[parent_name] => Стены 2 этаж (несущие)
[parent_id] => 5
[material_sum] => 354338
[work_sum] => 315017
[total_sum] => 669355
[total_days] => 15
[display_material_sum] => 354 338
[display_work_sum] => 315 017
[display_total_sum] => 669 355
)
1
669 355₽
Работа:315 017 ₽
Материалы:354 338 ₽
Дни:15
stdClass Object
(
[id] => 202
[attribute_id] => 5
[name] => Рубленные
[material_modifier] => 1
[work_modifier] => 1
[options] => Array
(
[0] => 150 мм
[1] => 200 мм
[2] => 250 мм
[3] => 300 мм
[4] => 350 мм
[5] => 400 мм
)
[days] => [15,16,17,18,17,18]
[material_price] => [35950,50267,60583,75900,80217,100533]
[work_price] => [9612,12816,16020,19224,22428,25632]
[image] => https://akademik-stroy.ru/wp-content/uploads/materials/rublennye.jpg
[area_modifier] => 124.12
[parent_name] => Стены 2 этаж (несущие)
[parent_id] => 5
[material_sum] => 5354537
[work_sum] => 1193041
[total_sum] => 6547578
[total_days] => 15
[display_material_sum] => 5 354 537
[display_work_sum] => 1 193 041
[display_total_sum] => 6 547 578
)
1
6 547 578₽
Работа:1 193 041 ₽
Материалы:5 354 537 ₽
Дни:15
stdClass Object
(
[id] => 203
[attribute_id] => 5
[name] => Теплоблок
[material_modifier] => 1
[work_modifier] => 1
[options] => Array
(
[0] => 300 мм (с облицовкой, не покрашенный)
[1] => 400 мм (с облицовкой, не покрашенный)
[2] => 300 мм (с облицовкой, покрашенный)
[3] => 400 мм (с облицовкой, покрашенный)
)
[days] => [15,16,15,16]
[material_price] => [2888,3729,3957,4258]
[work_price] => [2564,3229,2949,3713]
[image] => https://akademik-stroy.ru/wp-content/uploads/materials/teploblok.jpg
[area_modifier] => 124.12
[parent_name] => Стены 2 этаж (несущие)
[parent_id] => 5
[material_sum] => 430150
[work_sum] => 318244
[total_sum] => 748394
[total_days] => 15
[display_material_sum] => 430 150
[display_work_sum] => 318 244
[display_total_sum] => 748 394
)
1
748 394₽
Работа:318 244 ₽
Материалы:430 150 ₽
Дни:15
stdClass Object
(
[id] => 204
[attribute_id] => 5
[name] => Арболитовые блоки
[material_modifier] => 1
[work_modifier] => 1
[options] => Array
(
[0] => 300 мм
[1] => 400 мм
[2] => 600 мм
)
[days] => [19,22,27]
[material_price] => [3210,4475,5852]
[work_price] => [4214,4788,5866]
[image] => https://akademik-stroy.ru/wp-content/uploads/materials/arbolitovye-bloki.png
[area_modifier] => 124.12
[parent_name] => Стены 2 этаж (несущие)
[parent_id] => 5
[material_sum] => 478110
[work_sum] => 523042
[total_sum] => 1001152
[total_days] => 19
[display_material_sum] => 478 110
[display_work_sum] => 523 042
[display_total_sum] => 1 001 152
)
1
1 001 152₽
Работа:523 042 ₽
Материалы:478 110 ₽
Дни:19
stdClass Object
(
[id] => 205
[attribute_id] => 5
[name] => Полистиролбетон
[material_modifier] => 1
[work_modifier] => 1
[options] => Array
(
[0] => 300 мм
[1] => 400 мм
[2] => 600 мм
)
[days] => [29,31,35]
[material_price] => [2798,4573,5256]
[work_price] => [5038,5851,6426]
[image] => https://akademik-stroy.ru/wp-content/uploads/materials/polistirolbeton.jpg
[area_modifier] => 124.12
[parent_name] => Стены 2 этаж (несущие)
[parent_id] => 5
[material_sum] => 416745
[work_sum] => 625317
[total_sum] => 1042062
[total_days] => 29
[display_material_sum] => 416 745
[display_work_sum] => 625 317
[display_total_sum] => 1 042 062
)
1
1 042 062₽
Работа:625 317 ₽
Материалы:416 745 ₽
Дни:29
stdClass Object
(
[id] => 206
[attribute_id] => 5
[name] => Шлакоблок
[material_modifier] => 1
[work_modifier] => 1
[options] => Array
(
[0] => 400 мм
[1] => 600 мм
)
[days] => [15,16]
[material_price] => [2391,3471]
[work_price] => [2642,3662]
[image] => https://akademik-stroy.ru/wp-content/uploads/materials/shlakoblok.jpg
[area_modifier] => 124.12
[parent_name] => Стены 2 этаж (несущие)
[parent_id] => 5
[material_sum] => 356125
[work_sum] => 327925
[total_sum] => 684050
[total_days] => 15
[display_material_sum] => 356 125
[display_work_sum] => 327 925
[display_total_sum] => 684 050
)
1
684 050₽
Работа:327 925 ₽
Материалы:356 125 ₽
Дни:15
stdClass Object
(
[id] => 245
[attribute_id] => 5
[name] => Теплая керамика
[material_modifier] => 1
[work_modifier] => 1
[options] => Array
(
[0] => 380 мм
[1] => 380 мм Thermo
[2] => 440 мм
[3] => 510 мм
)
[days] => [10,10,11,12]
[material_price] => [4510,5098,6093,8013]
[work_price] => [4737,4937,5903,6958]
[image] => https://akademik-stroy.ru/wp-content/uploads/materials/teplaya-keramika.jpg
[area_modifier] => 124.12
[parent_name] => Стены 2 этаж (несущие)
[parent_id] => 5
[material_sum] => 671737
[work_sum] => 587956
[total_sum] => 1259693
[total_days] => 10
[display_material_sum] => 671 737
[display_work_sum] => 587 956
[display_total_sum] => 1 259 693
)
1
1 259 693₽
Работа:587 956 ₽
Материалы:671 737 ₽
Дни:10
stdClass Object
(
[id] => 246
[attribute_id] => 5
[name] => Несъемная опалубка
[material_modifier] => 1
[work_modifier] => 1
[options] => Array
(
[0] => 380 мм
[1] => 380 мм Thermo
[2] => 440 мм
[3] => 510 мм
)
[days] => [10,10,11,12]
[material_price] => [3302,3902,4108,5008]
[work_price] => [2100,2100,2300,2534]
[image] => https://akademik-stroy.ru/wp-content/uploads/materials/nesemnaya-opalubka.jpg
[area_modifier] => 124.12
[parent_name] => Стены 2 этаж (несущие)
[parent_id] => 5
[material_sum] => 491813
[work_sum] => 260652
[total_sum] => 752465
[total_days] => 10
[display_material_sum] => 491 813
[display_work_sum] => 260 652
[display_total_sum] => 752 465
)
1
752 465₽
Работа:260 652 ₽
Материалы:491 813 ₽
Дни:10
stdClass Object
(
[id] => 254
[attribute_id] => 5
[name] => Бревно
[material_modifier] => 1
[work_modifier] => 1
[options] => Array
(
[0] => 260 мм
[1] => 320 мм
[2] => 360 мм
[3] => 400 мм
[4] => 500 мм
)
[days] => [7,8,9,10,11]
[material_price] => [1874,24045,26930,30972,38825]
[work_price] => [5046,6207,6952,7716,9723]
[image] => https://akademik-stroy.ru/wp-content/uploads/materials/sruby.jpg
[area_modifier] => 124.12
[parent_name] => Стены 2 этаж (несущие)
[parent_id] => 5
[material_sum] => 279121
[work_sum] => 626310
[total_sum] => 905431
[total_days] => 7
[display_material_sum] => 279 121
[display_work_sum] => 626 310
[display_total_sum] => 905 431
)
1
905 431₽
Работа:626 310 ₽
Материалы:279 121 ₽
Дни:7
stdClass Object
(
[id] => 11
[attribute_id] => 6
[name] => Деревянные балки
[material_modifier] => 1
[work_modifier] => 1
[options] => Array
(
[0] => без утепления
[1] => утепление 200 мм
[2] => утепление 250 мм
[3] => утепление 300 мм
[4] => утепление 350 мм
[5] => утепление 400 мм
[6] => утепление 450 мм
[7] => утепление 500 мм
)
[days] => [8,9,9,9,11,12,13,14]
[material_price] => [1634,2042,2344,2947,3149,3652,3354,3557]
[work_price] => [1230,1339,1393,1426,1460,1513,1587,1620]
[image] => https://akademik-stroy.ru/wp-content/uploads/materials/derevyannye-balki.png
[area_modifier] => 124.12
[parent_name] => Перекрытие второго этажа
[parent_id] => 6
[material_sum] => 243374
[work_sum] => 152668
[total_sum] => 396042
[total_days] => 8
[display_material_sum] => 243 374
[display_work_sum] => 152 668
[display_total_sum] => 396 042
)
1
396 042₽
Работа:152 668 ₽
Материалы:243 374 ₽
Дни:8
stdClass Object
(
[id] => 12
[attribute_id] => 6
[name] => Сборные ж/б плиты
[material_modifier] => 1
[work_modifier] => 1
[options] => Array
(
[0] => без утепления
[1] => утепление 150 мм
[2] => утепление 200 мм
[3] => утепление 250 мм
[4] => утепление 300 мм
[5] => утепление 350 мм
[6] => утепление 400 мм
[7] => утепление 450 мм
[8] => утепление 500 мм
)
[days] => [13,15,15,15,15,15,15,15,15]
[material_price] => [3067,5577,5928,6679,7730,8782,9833,10884,11935]
[work_price] => [1520,1956,2102,2247,2392,2537,2684,2829,2974]
[image] => https://akademik-stroy.ru/wp-content/uploads/materials/sbornye-zh-b-plity-2.jpg
[area_modifier] => 124.12
[parent_name] => Перекрытие второго этажа
[parent_id] => 6
[material_sum] => 456811
[work_sum] => 188662
[total_sum] => 645473
[total_days] => 13
[display_material_sum] => 456 811
[display_work_sum] => 188 662
[display_total_sum] => 645 473
)
1
645 473₽
Работа:188 662 ₽
Материалы:456 811 ₽
Дни:13
stdClass Object
(
[id] => 100
[attribute_id] => 6
[name] => Монолитная ж/б плита
[material_modifier] => 1
[work_modifier] => 1
[options] => Array
(
[0] => без утепления
[1] => утепление 150 мм
[2] => утепление 200 мм
[3] => утепление 250 мм
[4] => утепление 300 мм
[5] => утепление 350 мм
[6] => утепление 400 мм
[7] => утепление 450 мм
[8] => утепление 500 мм
)
[days] => [18,20,20,20,20,20,20,20,20]
[material_price] => [4837,6572,7224,7375,79426,8177,8728,9180,10031]
[work_price] => [3348,3921,4112,4302,4493,4684,4875,5066,5256]
[image] => https://akademik-stroy.ru/wp-content/uploads/materials/monolitnaya-zh-b-plita-2.jpg
[area_modifier] => 124.12
[parent_name] => Перекрытие второго этажа
[parent_id] => 6
[material_sum] => 720442
[work_sum] => 415554
[total_sum] => 1135996
[total_days] => 18
[display_material_sum] => 720 442
[display_work_sum] => 415 554
[display_total_sum] => 1 135 996
)
1
1 135 996₽
Работа:415 554 ₽
Материалы:720 442 ₽
Дни:18
stdClass Object
(
[id] => 164
[attribute_id] => 37
[name] => Металлочерепица
[material_modifier] => 1
[work_modifier] => 1
[options] => Array
(
)
[days] => [20]
[material_price] => [6112]
[work_price] => [5726]
[image] => https://akademik-stroy.ru/wp-content/uploads/materials/metallocherepica.jpg
[area_modifier] => 235.21
[parent_name] => Крыша (Скатная)
[parent_id] => 37
[material_sum] => 1725124
[work_sum] => 1346812
[total_sum] => 3071936
[total_days] => 20
[display_material_sum] => 1 725 124
[display_work_sum] => 1 346 812
[display_total_sum] => 3 071 936
)
1
3 071 936₽
Работа:1 346 812 ₽
Материалы:1 725 124 ₽
Дни:20
stdClass Object
(
[id] => 165
[attribute_id] => 37
[name] => Гибкая черепица
[material_modifier] => 1
[work_modifier] => 1
[options] => Array
(
)
[days] => [20]
[material_price] => [6980]
[work_price] => [5950]
[image] => https://akademik-stroy.ru/wp-content/uploads/materials/gibkaya-cherepica.jpg
[area_modifier] => 235.21
[parent_name] => Крыша (Скатная)
[parent_id] => 37
[material_sum] => 1970119
[work_sum] => 1399500
[total_sum] => 3369619
[total_days] => 20
[display_material_sum] => 1 970 119
[display_work_sum] => 1 399 500
[display_total_sum] => 3 369 619
)
1
3 369 619₽
Работа:1 399 500 ₽
Материалы:1 970 119 ₽
Дни:20
stdClass Object
(
[id] => 166
[attribute_id] => 37
[name] => Цементно-песчаная черепица
[material_modifier] => 1
[work_modifier] => 1
[options] => Array
(
)
[days] => [20]
[material_price] => [10560]
[work_price] => [9456]
[image] => https://akademik-stroy.ru/wp-content/uploads/materials/cementno-peschanaya-cherepica.jpg
[area_modifier] => 235.21
[parent_name] => Крыша (Скатная)
[parent_id] => 37
[material_sum] => 2980581
[work_sum] => 2224146
[total_sum] => 5204727
[total_days] => 20
[display_material_sum] => 2 980 581
[display_work_sum] => 2 224 146
[display_total_sum] => 5 204 727
)
1
5 204 727₽
Работа:2 224 146 ₽
Материалы:2 980 581 ₽
Дни:20
stdClass Object
(
[id] => 167
[attribute_id] => 37
[name] => Композитная черепица
[material_modifier] => 1
[work_modifier] => 1
[options] => Array
(
)
[days] => [20]
[material_price] => [9506]
[work_price] => [8905]
[image] => https://akademik-stroy.ru/wp-content/uploads/materials/kompozitnaya-cherepica.jpg
[area_modifier] => 235.21
[parent_name] => Крыша (Скатная)
[parent_id] => 37
[material_sum] => 2683088
[work_sum] => 2094545
[total_sum] => 4777633
[total_days] => 20
[display_material_sum] => 2 683 088
[display_work_sum] => 2 094 545
[display_total_sum] => 4 777 633
)
1
4 777 633₽
Работа:2 094 545 ₽
Материалы:2 683 088 ₽
Дни:20
stdClass Object
(
[id] => 168
[attribute_id] => 37
[name] => Керамическая черепица
[material_modifier] => 1
[work_modifier] => 1
[options] => Array
(
)
[days] => [20]
[material_price] => [12750]
[work_price] => [9456]
[image] => https://akademik-stroy.ru/wp-content/uploads/materials/keramicheskaya-cherepica.jpg
[area_modifier] => 235.21
[parent_name] => Крыша (Скатная)
[parent_id] => 37
[material_sum] => 3598713
[work_sum] => 2224146
[total_sum] => 5822859
[total_days] => 20
[display_material_sum] => 3 598 713
[display_work_sum] => 2 224 146
[display_total_sum] => 5 822 859
)
1
5 822 859₽
Работа:2 224 146 ₽
Материалы:3 598 713 ₽
Дни:20
stdClass Object
(
[id] => 169
[attribute_id] => 37
[name] => Металлическая фальцевая
[material_modifier] => 1
[work_modifier] => 1
[options] => Array
(
)
[days] => [20]
[material_price] => [8550]
[work_price] => [8190]
[image] => https://akademik-stroy.ru/wp-content/uploads/materials/metallicheskaya-falcevaya.jpg
[area_modifier] => 235.21
[parent_name] => Крыша (Скатная)
[parent_id] => 37
[material_sum] => 2413255
[work_sum] => 1926370
[total_sum] => 4339625
[total_days] => 20
[display_material_sum] => 2 413 255
[display_work_sum] => 1 926 370
[display_total_sum] => 4 339 625
)
1
4 339 625₽
Работа:1 926 370 ₽
Материалы:2 413 255 ₽
Дни:20
stdClass Object
(
[id] => 170
[attribute_id] => 37
[name] => Медная фальцевая
[material_modifier] => 1
[work_modifier] => 1
[options] => Array
(
)
[days] => [20]
[material_price] => [20450]
[work_price] => [16750]
[image] => https://akademik-stroy.ru/wp-content/uploads/materials/mednaya-falcevaya.jpg
[area_modifier] => 235.21
[parent_name] => Крыша (Скатная)
[parent_id] => 37
[material_sum] => 5772053
[work_sum] => 3939768
[total_sum] => 9711821
[total_days] => 20
[display_material_sum] => 5 772 053
[display_work_sum] => 3 939 768
[display_total_sum] => 9 711 821
)
1
9 711 821₽
Работа:3 939 768 ₽
Материалы:5 772 053 ₽
Дни:20
stdClass Object
(
[id] => 171
[attribute_id] => 37
[name] => Зеленая кровля
[material_modifier] => 1
[work_modifier] => 1
[options] => Array
(
)
[days] => [20]
[material_price] => [19850]
[work_price] => [16780]
[image] => https://akademik-stroy.ru/wp-content/uploads/materials/zelenaya-krovlya.jpg
[area_modifier] => 235.21
[parent_name] => Крыша (Скатная)
[parent_id] => 37
[material_sum] => 5602702
[work_sum] => 3946824
[total_sum] => 9549526
[total_days] => 20
[display_material_sum] => 5 602 702
[display_work_sum] => 3 946 824
[display_total_sum] => 9 549 526
)
1
9 549 526₽
Работа:3 946 824 ₽
Материалы:5 602 702 ₽
Дни:20
stdClass Object
(
[id] => 172
[attribute_id] => 37
[name] => Профлист
[material_modifier] => 1
[work_modifier] => 1
[options] => Array
(
)
[days] => [20]
[material_price] => [3450]
[work_price] => [3750]
[image] => https://akademik-stroy.ru/wp-content/uploads/materials/proflist.jpg
[area_modifier] => 235.21
[parent_name] => Крыша (Скатная)
[parent_id] => 37
[material_sum] => 973769
[work_sum] => 882038
[total_sum] => 1855807
[total_days] => 20
[display_material_sum] => 973 769
[display_work_sum] => 882 038
[display_total_sum] => 1 855 807
)
1
1 855 807₽
Работа:882 038 ₽
Материалы:973 769 ₽
Дни:20
stdClass Object
(
[id] => 51
[attribute_id] => 26
[name] => Есть
[material_modifier] => 1
[work_modifier] => 1
[options] => Array
(
[0] => Профиль 58 мм, 3-камерный, стеклопакет 2-камерный до 32 мм
[1] => Профиль 60 мм, 4-камерный, стеклопакет 2-камерный до 32 мм
[2] => Профиль 70 мм, 5-камерный, стеклопакет 2-камерный до 40 мм
[3] => Профиль 72 мм, 5-камерный, стеклопакет 2-камерный до 40 мм
[4] => Алюминиевые окна Alutech профиль 72 мм, стеклопакет 2-камерный
)
[days] => [3,3,3,3,3]
[material_price] => [1339,2124,2867,3023,29596]
[work_price] => [635,647,659,668,2579]
[image] => https://akademik-stroy.ru/wp-content/uploads/materials/okna.jpg
[area_modifier] => 291.59
[parent_name] => Окна
[parent_id] => 26
[material_sum] => 468527
[work_sum] => 185160
[total_sum] => 653687
[total_days] => 3
[display_material_sum] => 468 527
[display_work_sum] => 185 160
[display_total_sum] => 653 687
)
1
653 687₽
Работа:185 160 ₽
Материалы:468 527 ₽
Дни:3
stdClass Object
(
[id] => 52
[attribute_id] => 26
[name] => Нет
[material_modifier] => 2
[work_modifier] => 1
[options] =>
[days] => null
[material_price] => null
[work_price] => null
[image] => https://akademik-stroy.ru/wp-content/uploads/materials/okna.jpg
[area_modifier] => 291.59
[parent_name] => Окна
[parent_id] => 26
[material_sum] => 0
[work_sum] => 0
[total_sum] => 0
[total_days] => 0
[display_material_sum] => 0
[display_work_sum] => 0
[display_total_sum] => 0
)
1
0₽
Работа:0 ₽
Материалы:0 ₽
Дни:0
stdClass Object
(
[id] => 53
[attribute_id] => 27
[name] => Есть
[material_modifier] => 1
[work_modifier] => 1
[options] => Array
(
)
[days] => [1]
[material_price] => [10000]
[work_price] => [5500]
[image] => https://akademik-stroy.ru/wp-content/uploads/materials/dveri.jpg
[area_modifier] => 1
[parent_name] => Двери входные
[parent_id] => 27
[material_sum] => 12000
[work_sum] => 5500
[total_sum] => 17500
[total_days] => 1
[display_material_sum] => 12 000
[display_work_sum] => 5 500
[display_total_sum] => 17 500
)
1
17 500₽
Работа:5 500 ₽
Материалы:12 000 ₽
Дни:1
stdClass Object
(
[id] => 54
[attribute_id] => 27
[name] => Нет
[material_modifier] => 1
[work_modifier] => 1
[options] => Array
(
)
[days] => [0]
[material_price] => [0]
[work_price] => [0]
[image] => https://akademik-stroy.ru/wp-content/uploads/materials/dveri.jpg
[area_modifier] => 1
[parent_name] => Двери входные
[parent_id] => 27
[material_sum] => 0
[work_sum] => 0
[total_sum] => 0
[total_days] => 0
[display_material_sum] => 0
[display_work_sum] => 0
[display_total_sum] => 0
)
1
0₽
Работа:0 ₽
Материалы:0 ₽
Дни:0
stdClass Object
(
[id] => 25
[attribute_id] => 13
[name] => Нет
[material_modifier] => 1
[work_modifier] => 1
[options] => Array
(
)
[days] => [0]
[material_price] => [0]
[work_price] => [0]
[image] => https://akademik-stroy.ru/wp-content/uploads/materials/mineralovata-krov.jpg
[area_modifier] => 235.21
[parent_name] => Утепление кровли (Мансарда)
[parent_id] => 13
[material_sum] => 0
[work_sum] => 0
[total_sum] => 0
[total_days] => 0
[display_material_sum] => 0
[display_work_sum] => 0
[display_total_sum] => 0
)
1
0₽
Работа:0 ₽
Материалы:0 ₽
Дни:0
stdClass Object
(
[id] => 26
[attribute_id] => 13
[name] => Минераловатный
[material_modifier] => 1
[work_modifier] => 1
[options] => Array
(
[0] => 50 мм
[1] => 100 мм
[2] => 150 мм
[3] => 200 мм
[4] => 250 мм
[5] => 300 мм
[6] => 350 мм
[7] => 400 мм
[8] => 450 мм
[9] => 500 мм
)
[days] => [5,5,6,6,6,7,7,7,8,8]
[material_price] => [1158,1414,1772,2230,3602,4060,4974,5890,6408,7718]
[work_price] => [650,846,846,1098,1318,1450,1596,1754,1930,2122]
[image] => https://akademik-stroy.ru/wp-content/uploads/materials/mineralovata-krov.jpg
[area_modifier] => 235.21
[parent_name] => Утепление кровли (Мансарда)
[parent_id] => 13
[material_sum] => 326848
[work_sum] => 152887
[total_sum] => 479735
[total_days] => 5
[display_material_sum] => 326 848
[display_work_sum] => 152 887
[display_total_sum] => 479 735
)
1
479 735₽
Работа:152 887 ₽
Материалы:326 848 ₽
Дни:5
stdClass Object
(
[id] => 123
[attribute_id] => 13
[name] => Эковата (целлюлозная вата)
[material_modifier] => 1
[work_modifier] => 1
[options] => Array
(
[0] => 50 мм
[1] => 100 мм
[2] => 150 мм
[3] => 200 мм
[4] => 250 мм
[5] => 300 мм
[6] => 350 мм
[7] => 400 мм
[8] => 450 мм
[9] => 500 мм
)
[days] => [3,3,4,4,4,5,5,5,5,5]
[material_price] => [820,1638,2458,3276,5734,6552,8190,9828,11466,13104]
[work_price] => [234,304,304,396,474,522,574,632,694,764]
[image] => https://akademik-stroy.ru/wp-content/uploads/materials/ehkovata-krov.jpg
[area_modifier] => 235.21
[parent_name] => Утепление кровли (Мансарда)
[parent_id] => 13
[material_sum] => 231447
[work_sum] => 55039
[total_sum] => 286486
[total_days] => 3
[display_material_sum] => 231 447
[display_work_sum] => 55 039
[display_total_sum] => 286 486
)
1
286 486₽
Работа:55 039 ₽
Материалы:231 447 ₽
Дни:3
stdClass Object
(
[id] => 124
[attribute_id] => 13
[name] => Экструдированный пенополистирол
[material_modifier] => 1
[work_modifier] => 1
[options] => Array
(
[0] => 50 мм
[1] => 100 мм
[2] => 150 мм
[3] => 200 мм
[4] => 250 мм
[5] => 300 мм
[6] => 350 мм
[7] => 400 мм
[8] => 450 мм
[9] => 500 мм
)
[days] => [3,3,4,4,4,5,5,5,5,6]
[material_price] => [1146,2292,3438,4584,8020,9166,11458,13750,16040,18332]
[work_price] => [390,508,508,660,790,870,958,1052,1158,1274]
[image] => https://akademik-stroy.ru/wp-content/uploads/materials/epps-krov.jpg
[area_modifier] => 235.21
[parent_name] => Утепление кровли (Мансарда)
[parent_id] => 13
[material_sum] => 323461
[work_sum] => 91732
[total_sum] => 415193
[total_days] => 3
[display_material_sum] => 323 461
[display_work_sum] => 91 732
[display_total_sum] => 415 193
)
1
415 193₽
Работа:91 732 ₽
Материалы:323 461 ₽
Дни:3
stdClass Object
(
[id] => 125
[attribute_id] => 13
[name] => ПСБ (ППС-пенополистирол)
[material_modifier] => 1
[work_modifier] => 1
[options] => Array
(
[0] => 50 мм
[1] => 100 мм
[2] => 150 мм
[3] => 200 мм
[4] => 250 мм
[5] => 300 мм
[6] => 350 мм
[7] => 400 мм
[8] => 450 мм
[9] => 500 мм
)
[days] => [3,3,4,4,4,5,5,5,5,6]
[material_price] => [476,954,1430,1906,3336,3814,4766,5720,6674,7626]
[work_price] => [390,508,508,660,790,870,958,1052,1158,1274]
[image] => https://akademik-stroy.ru/wp-content/uploads/materials/psb-krov.jpg
[area_modifier] => 235.21
[parent_name] => Утепление кровли (Мансарда)
[parent_id] => 13
[material_sum] => 134352
[work_sum] => 91732
[total_sum] => 226084
[total_days] => 3
[display_material_sum] => 134 352
[display_work_sum] => 91 732
[display_total_sum] => 226 084
)
1
226 084₽
Работа:91 732 ₽
Материалы:134 352 ₽
Дни:3
stdClass Object
(
[id] => 126
[attribute_id] => 13
[name] => ППУ (Пенополиуретан)
[material_modifier] => 1
[work_modifier] => 1
[options] => Array
(
[0] => 50 мм
[1] => 100 мм
[2] => 150 мм
[3] => 200 мм
[4] => 250 мм
[5] => 300 мм
[6] => 350 мм
[7] => 400 мм
[8] => 450 мм
[9] => 500 мм
)
[days] => [2,2,3,3,3,3,4,4,4,4]
[material_price] => [2080,4160,6240,8320,14560,16640,20800,24960,29120,33280]
[work_price] => [234,304,304,396,474,522,574,632,694,764]
[image] => https://akademik-stroy.ru/wp-content/uploads/materials/ppu-krov.jpg
[area_modifier] => 235.21
[parent_name] => Утепление кровли (Мансарда)
[parent_id] => 13
[material_sum] => 587084
[work_sum] => 55039
[total_sum] => 642123
[total_days] => 2
[display_material_sum] => 587 084
[display_work_sum] => 55 039
[display_total_sum] => 642 123
)
1
642 123₽
Работа:55 039 ₽
Материалы:587 084 ₽
Дни:2
stdClass Object
(
[id] => 127
[attribute_id] => 13
[name] => PIR-плиты (пенополиизоцианурат)
[material_modifier] => 1
[work_modifier] => 1
[options] => Array
(
[0] => 50 мм
[1] => 100 мм
[2] => 150 мм
[3] => 200 мм
[4] => 250 мм
[5] => 300 мм
[6] => 350 мм
[7] => 400 мм
[8] => 450 мм
[9] => 500 мм
)
[days] => [3,3,4,4,4,5,5,5,5,6]
[material_price] => [2646,5290,7936,10580,18516,21162,26452,31742,37032,42324]
[work_price] => [390,508,508,660,790,870,958,1052,1158,1274]
[image] => https://akademik-stroy.ru/wp-content/uploads/materials/pir-krov.jpg
[area_modifier] => 235.21
[parent_name] => Утепление кровли (Мансарда)
[parent_id] => 13
[material_sum] => 746839
[work_sum] => 91732
[total_sum] => 838571
[total_days] => 3
[display_material_sum] => 746 839
[display_work_sum] => 91 732
[display_total_sum] => 838 571
)
1
838 571₽
Работа:91 732 ₽
Материалы:746 839 ₽
Дни:3
stdClass Object
(
[id] => 27
[attribute_id] => 14
[name] => Нет
[material_modifier] => 1
[work_modifier] => 1
[options] => Array
(
)
[days] => [0]
[material_price] => [0]
[work_price] => [0]
[image] => https://akademik-stroy.ru/wp-content/uploads/materials/mansardnye-okna-2.jpg
[area_modifier] => 1
[parent_name] => Мансардные окна
[parent_id] => 14
[material_sum] => 0
[work_sum] => 0
[total_sum] => 0
[total_days] => 0
[display_material_sum] => 0
[display_work_sum] => 0
[display_total_sum] => 0
)
1
0₽
Работа:0 ₽
Материалы:0 ₽
Дни:0
stdClass Object
(
[id] => 28
[attribute_id] => 14
[name] => Есть
[material_modifier] => 1
[work_modifier] => 1
[options] => Array
(
[0] => 55x78
[1] => 55x98
)
[days] => [6,7]
[material_price] => [47480,68700]
[work_price] => [17900,19500]
[image] => https://akademik-stroy.ru/wp-content/uploads/materials/mansardnye-okna-2.jpg
[area_modifier] => 1
[parent_name] => Мансардные окна
[parent_id] => 14
[material_sum] => 56976
[work_sum] => 17900
[total_sum] => 74876
[total_days] => 6
[display_material_sum] => 56 976
[display_work_sum] => 17 900
[display_total_sum] => 74 876
)
1
74 876₽
Работа:17 900 ₽
Материалы:56 976 ₽
Дни:6
stdClass Object
(
[id] => 29
[attribute_id] => 15
[name] => Нет
[material_modifier] => 1
[work_modifier] => 1
[options] => Array
(
)
[days] => [0]
[material_price] => [0]
[work_price] => [0]
[image] => https://akademik-stroy.ru/wp-content/uploads/materials/sofit.jpg
[area_modifier] => 235.21
[parent_name] => Подшивка кровли
[parent_id] => 15
[material_sum] => 0
[work_sum] => 0
[total_sum] => 0
[total_days] => 0
[display_material_sum] => 0
[display_work_sum] => 0
[display_total_sum] => 0
)
1
0₽
Работа:0 ₽
Материалы:0 ₽
Дни:0
stdClass Object
(
[id] => 30
[attribute_id] => 15
[name] => Есть
[material_modifier] => 1
[work_modifier] => 1
[options] => Array
(
[0] => Софиты (ПВХ)
[1] => Cedral
[2] => ДПК
[3] => Планкен
)
[days] => [7,10,9,8]
[material_price] => [1803,3213,3025,3150]
[work_price] => [1529,2188,2075,1923]
[image] => https://akademik-stroy.ru/wp-content/uploads/materials/sofit.jpg
[area_modifier] => 235.21
[parent_name] => Подшивка кровли
[parent_id] => 15
[material_sum] => 508900
[work_sum] => 359636
[total_sum] => 868536
[total_days] => 7
[display_material_sum] => 508 900
[display_work_sum] => 359 636
[display_total_sum] => 868 536
)
1
868 536₽
Работа:359 636 ₽
Материалы:508 900 ₽
Дни:7
stdClass Object
(
[id] => 31
[attribute_id] => 16
[name] => Нет
[material_modifier] => 1
[work_modifier] => 1
[options] => Array
(
)
[days] => [0]
[material_price] => [0]
[work_price] => [0]
[image] => https://akademik-stroy.ru/wp-content/uploads/materials/docke-standard-pvh.jpg
[area_modifier] => 235.21
[parent_name] => Водосточная система
[parent_id] => 16
[material_sum] => 0
[work_sum] => 0
[total_sum] => 0
[total_days] => 0
[display_material_sum] => 0
[display_work_sum] => 0
[display_total_sum] => 0
)
1
0₽
Работа:0 ₽
Материалы:0 ₽
Дни:0
stdClass Object
(
[id] => 32
[attribute_id] => 16
[name] => Есть
[material_modifier] => 1
[work_modifier] => 1
[options] => Array
(
[0] => Döcke Standard (ПВХ)
[1] => Металлические Grand Line
)
[days] => [7,7]
[material_price] => [1842,2703]
[work_price] => [1491,1529]
[image] => https://akademik-stroy.ru/wp-content/uploads/materials/docke-standard-pvh.jpg
[area_modifier] => 235.21
[parent_name] => Водосточная система
[parent_id] => 16
[material_sum] => 519908
[work_sum] => 350698
[total_sum] => 870606
[total_days] => 7
[display_material_sum] => 519 908
[display_work_sum] => 350 698
[display_total_sum] => 870 606
)
1
870 606₽
Работа:350 698 ₽
Материалы:519 908 ₽
Дни:7
stdClass Object
(
[id] => 33
[attribute_id] => 17
[name] => Нет
[material_modifier] => 1
[work_modifier] => 1
[options] => Array
(
)
[days] => [0]
[material_price] => [0]
[work_price] => [0]
[image] => https://akademik-stroy.ru/wp-content/uploads/materials/mineralovata.jpg
[area_modifier] => 359.33
[parent_name] => Дополнительное утепление наружных стен
[parent_id] => 17
[material_sum] => 0
[work_sum] => 0
[total_sum] => 0
[total_days] => 0
[display_material_sum] => 0
[display_work_sum] => 0
[display_total_sum] => 0
)
1
0₽
Работа:0 ₽
Материалы:0 ₽
Дни:0
stdClass Object
(
[id] => 34
[attribute_id] => 17
[name] => Минераловатный
[material_modifier] => 1
[work_modifier] => 1
[options] => Array
(
[0] => 50 мм
[1] => 100 мм
[2] => 150 мм
[3] => 200 мм
[4] => 250 мм
[5] => 300 мм
)
[days] => [7,8,10,12,14,15]
[material_price] => [3437,3613,3803,3915,4601,4830]
[work_price] => [2325,2423,2523,2749,2859,3025]
[image] => https://akademik-stroy.ru/wp-content/uploads/materials/mineralovata.jpg
[area_modifier] => 359.33
[parent_name] => Дополнительное утепление наружных стен
[parent_id] => 17
[material_sum] => 1482021
[work_sum] => 835442
[total_sum] => 2317463
[total_days] => 7
[display_material_sum] => 1 482 021
[display_work_sum] => 835 442
[display_total_sum] => 2 317 463
)
1
2 317 463₽
Работа:835 442 ₽
Материалы:1 482 021 ₽
Дни:7
stdClass Object
(
[id] => 128
[attribute_id] => 17
[name] => Эковата (целлюлозная вата)
[material_modifier] => 1
[work_modifier] => 1
[options] => Array
(
[0] => 50 мм
[1] => 100 мм
[2] => 150 мм
[3] => 200 мм
[4] => 250 мм
[5] => 300 мм
)
[days] => [3,4,5,6,7,8]
[material_price] => [810,1319,1629,1838,2267,2676]
[work_price] => [1225,1323,1423,1549,1659,1725]
[image] => https://akademik-stroy.ru/wp-content/uploads/materials/ehkovata.jpg
[area_modifier] => 359.33
[parent_name] => Дополнительное утепление наружных стен
[parent_id] => 17
[material_sum] => 349269
[work_sum] => 440179
[total_sum] => 789448
[total_days] => 3
[display_material_sum] => 349 269
[display_work_sum] => 440 179
[display_total_sum] => 789 448
)
1
789 448₽
Работа:440 179 ₽
Материалы:349 269 ₽
Дни:3
stdClass Object
(
[id] => 129
[attribute_id] => 17
[name] => Экструдированный пенополистирол
[material_modifier] => 1
[work_modifier] => 1
[options] => Array
(
[0] => 50 мм
[1] => 100 мм
[2] => 150 мм
[3] => 200 мм
[4] => 250 мм
[5] => 300 мм
)
[days] => [5,6,7,8,9,10]
[material_price] => [4560,4300,5119,6292,7010,8583]
[work_price] => [1795,1954,2254,2330,2595,2735]
[image] => https://akademik-stroy.ru/wp-content/uploads/materials/epps.jpg
[area_modifier] => 359.33
[parent_name] => Дополнительное утепление наружных стен
[parent_id] => 17
[material_sum] => 1966254
[work_sum] => 644997
[total_sum] => 2611251
[total_days] => 5
[display_material_sum] => 1 966 254
[display_work_sum] => 644 997
[display_total_sum] => 2 611 251
)
1
2 611 251₽
Работа:644 997 ₽
Материалы:1 966 254 ₽
Дни:5
stdClass Object
(
[id] => 130
[attribute_id] => 17
[name] => ПСБ (ППС-пенополистирол)
[material_modifier] => 1
[work_modifier] => 1
[options] => Array
(
[0] => 50 мм
[1] => 100 мм
[2] => 150 мм
[3] => 200 мм
[4] => 250 мм
[5] => 300 мм
)
[days] => [5,6,7,8,9,10]
[material_price] => [4822,5200,5819,6292,7010,7583]
[work_price] => [1795,1954,2254,2330,2595,2735]
[image] => https://akademik-stroy.ru/wp-content/uploads/materials/psb.jpg
[area_modifier] => 359.33
[parent_name] => Дополнительное утепление наружных стен
[parent_id] => 17
[material_sum] => 2079227
[work_sum] => 644997
[total_sum] => 2724224
[total_days] => 5
[display_material_sum] => 2 079 227
[display_work_sum] => 644 997
[display_total_sum] => 2 724 224
)
1
2 724 224₽
Работа:644 997 ₽
Материалы:2 079 227 ₽
Дни:5
stdClass Object
(
[id] => 131
[attribute_id] => 17
[name] => ППУ (Пенополиуретан)
[material_modifier] => 1
[work_modifier] => 1
[options] => Array
(
[0] => 50 мм
[1] => 100 мм
[2] => 150 мм
[3] => 200 мм
[4] => 250 мм
[5] => 300 мм
)
[days] => [3,4,5,6,7,8]
[material_price] => [2860,3400,4219,4592,5010,5583]
[work_price] => [729,900,980,1120,1280,1530]
[image] => https://akademik-stroy.ru/wp-content/uploads/materials/ppu.jpg
[area_modifier] => 359.33
[parent_name] => Дополнительное утепление наружных стен
[parent_id] => 17
[material_sum] => 1233221
[work_sum] => 261952
[total_sum] => 1495173
[total_days] => 3
[display_material_sum] => 1 233 221
[display_work_sum] => 261 952
[display_total_sum] => 1 495 173
)
1
1 495 173₽
Работа:261 952 ₽
Материалы:1 233 221 ₽
Дни:3
stdClass Object
(
[id] => 132
[attribute_id] => 17
[name] => PIR-плиты (пенополиизоцианурат)
[material_modifier] => 1
[work_modifier] => 1
[options] => Array
(
[0] => 50 мм
[1] => 100 мм
[2] => 150 мм
[3] => 200 мм
[4] => 250 мм
[5] => 300 мм
)
[days] => [5,6,7,8,9,10]
[material_price] => [8323,15645,20968,25900,29258,30581]
[work_price] => [800,900,970,1150,1280,1330]
[image] => https://akademik-stroy.ru/wp-content/uploads/materials/pir.jpg
[area_modifier] => 359.33
[parent_name] => Дополнительное утепление наружных стен
[parent_id] => 17
[material_sum] => 3588844
[work_sum] => 287464
[total_sum] => 3876308
[total_days] => 5
[display_material_sum] => 3 588 844
[display_work_sum] => 287 464
[display_total_sum] => 3 876 308
)
1
3 876 308₽
Работа:287 464 ₽
Материалы:3 588 844 ₽
Дни:5
stdClass Object
(
[id] => 37
[attribute_id] => 19
[name] => Нет
[material_modifier] => 1
[work_modifier] => 1
[options] => Array
(
)
[days] => [0]
[material_price] => [0]
[work_price] => [0]
[image] => https://akademik-stroy.ru/wp-content/uploads/materials/imitaciya-brusa.jpg
[area_modifier] => 359.33
[parent_name] => Наружная отделка фасада
[parent_id] => 19
[material_sum] => 0
[work_sum] => 0
[total_sum] => 0
[total_days] => 0
[display_material_sum] => 0
[display_work_sum] => 0
[display_total_sum] => 0
)
1
0₽
Работа:0 ₽
Материалы:0 ₽
Дни:0
stdClass Object
(
[id] => 38
[attribute_id] => 19
[name] => Имитация бруса
[material_modifier] => 1
[work_modifier] => 1
[options] => Array
(
[0] => Сосна
[1] => Ель
[2] => Лиственница
)
[days] => [20,20,20]
[material_price] => [2994,2762,4954]
[work_price] => [1397,1231,1577]
[image] => https://akademik-stroy.ru/wp-content/uploads/materials/imitaciya-brusa.jpg
[area_modifier] => 359.33
[parent_name] => Наружная отделка фасада
[parent_id] => 19
[material_sum] => 1291001
[work_sum] => 501984
[total_sum] => 1792985
[total_days] => 20
[display_material_sum] => 1 291 001
[display_work_sum] => 501 984
[display_total_sum] => 1 792 985
)
1
1 792 985₽
Работа:501 984 ₽
Материалы:1 291 001 ₽
Дни:20
stdClass Object
(
[id] => 136
[attribute_id] => 19
[name] => Планкен
[material_modifier] => 1
[work_modifier] => 1
[options] => Array
(
[0] => Сосна
[1] => Ель
[2] => Лиственница
)
[days] => [20,20,20]
[material_price] => [3194,2862,5154]
[work_price] => [1537,1354,1735]
[image] => https://akademik-stroy.ru/wp-content/uploads/materials/planken.jpg
[area_modifier] => 359.33
[parent_name] => Наружная отделка фасада
[parent_id] => 19
[material_sum] => 1377240
[work_sum] => 552290
[total_sum] => 1929530
[total_days] => 20
[display_material_sum] => 1 377 240
[display_work_sum] => 552 290
[display_total_sum] => 1 929 530
)
1
1 929 530₽
Работа:552 290 ₽
Материалы:1 377 240 ₽
Дни:20
stdClass Object
(
[id] => 137
[attribute_id] => 19
[name] => Штукатурка
[material_modifier] => 1
[work_modifier] => 1
[options] => Array
(
[0] => Цементно-песчаная (минеральная)
[1] => Мокрый фасад
)
[days] => [35,35]
[material_price] => [2231,3938]
[work_price] => [1202,2422]
[image] => https://akademik-stroy.ru/wp-content/uploads/materials/shtukaturka.jpg
[area_modifier] => 359.33
[parent_name] => Наружная отделка фасада
[parent_id] => 19
[material_sum] => 961998
[work_sum] => 431915
[total_sum] => 1393913
[total_days] => 35
[display_material_sum] => 961 998
[display_work_sum] => 431 915
[display_total_sum] => 1 393 913
)
1
1 393 913₽
Работа:431 915 ₽
Материалы:961 998 ₽
Дни:35
stdClass Object
(
[id] => 138
[attribute_id] => 19
[name] => Облицовочный кирпич
[material_modifier] => 1
[work_modifier] => 1
[options] => Array
(
[0] => Керамический
[1] => Клинкерный
[2] => Ручной формовки
[3] => Гиперпрессованный
[4] => Силикатный кирпич
)
[days] => [45,45,45,45,45]
[material_price] => [8174,9148,1040,1257,5876]
[work_price] => [3240,3758,4536,4017,3369]
[image] => https://akademik-stroy.ru/wp-content/uploads/materials/oblicovochnyj-kirpich.jpg
[area_modifier] => 359.33
[parent_name] => Наружная отделка фасада
[parent_id] => 19
[material_sum] => 3524596
[work_sum] => 1164229
[total_sum] => 4688825
[total_days] => 45
[display_material_sum] => 3 524 596
[display_work_sum] => 1 164 229
[display_total_sum] => 4 688 825
)
1
4 688 825₽
Работа:1 164 229 ₽
Материалы:3 524 596 ₽
Дни:45
stdClass Object
(
[id] => 139
[attribute_id] => 19
[name] => Фасадная плитка
[material_modifier] => 1
[work_modifier] => 1
[options] => Array
(
[0] => Клинкерная
[1] => Керамическая
[2] => Плитка ручной формовки
)
[days] => [40,40,40]
[material_price] => [2974,1487,3470]
[work_price] => [3007,2592,3629]
[image] => https://akademik-stroy.ru/wp-content/uploads/materials/fasadnaya-plitka.jpg
[area_modifier] => 359.33
[parent_name] => Наружная отделка фасада
[parent_id] => 19
[material_sum] => 1282377
[work_sum] => 1080505
[total_sum] => 2362882
[total_days] => 40
[display_material_sum] => 1 282 377
[display_work_sum] => 1 080 505
[display_total_sum] => 2 362 882
)
1
2 362 882₽
Работа:1 080 505 ₽
Материалы:1 282 377 ₽
Дни:40
stdClass Object
(
[id] => 140
[attribute_id] => 19
[name] => Сайдинг
[material_modifier] => 1
[work_modifier] => 1
[options] => Array
(
[0] => Виниловый
[1] => Металлический
[2] => Фиброцементный
)
[days] => [20,20,20]
[material_price] => [1263,1944,4147]
[work_price] => [1263,1944,2074]
[image] => https://akademik-stroy.ru/wp-content/uploads/materials/sajding.jpg
[area_modifier] => 359.33
[parent_name] => Наружная отделка фасада
[parent_id] => 19
[material_sum] => 544601
[work_sum] => 453834
[total_sum] => 998435
[total_days] => 20
[display_material_sum] => 544 601
[display_work_sum] => 453 834
[display_total_sum] => 998 435
)
1
998 435₽
Работа:453 834 ₽
Материалы:544 601 ₽
Дни:20
stdClass Object
(
[id] => 141
[attribute_id] => 19
[name] => Камень
[material_modifier] => 1
[work_modifier] => 1
[options] => Array
(
[0] => Травертин
[1] => Дагестанский
[2] => Искусственный
[3] => Натуральный
[4] => Керамогранит
)
[days] => [45,45,45,45,45]
[material_price] => [4536,3888,2592,3240,2462]
[work_price] => [3240,3240,2462,3110,1944]
[image] => https://akademik-stroy.ru/wp-content/uploads/materials/kamen-1.jpg
[area_modifier] => 359.33
[parent_name] => Наружная отделка фасада
[parent_id] => 19
[material_sum] => 1955905
[work_sum] => 1164229
[total_sum] => 3120134
[total_days] => 45
[display_material_sum] => 1 955 905
[display_work_sum] => 1 164 229
[display_total_sum] => 3 120 134
)
1
3 120 134₽
Работа:1 164 229 ₽
Материалы:1 955 905 ₽
Дни:45
stdClass Object
(
[id] => 142
[attribute_id] => 19
[name] => Термопанели
[material_modifier] => 1
[work_modifier] => 1
[options] => Array
(
)
[days] => [20]
[material_price] => [6221]
[work_price] => [2333]
[image] => https://akademik-stroy.ru/wp-content/uploads/materials/termo.png
[area_modifier] => 359.33
[parent_name] => Наружная отделка фасада
[parent_id] => 19
[material_sum] => 2682470
[work_sum] => 838317
[total_sum] => 3520787
[total_days] => 20
[display_material_sum] => 2 682 470
[display_work_sum] => 838 317
[display_total_sum] => 3 520 787
)
1
3 520 787₽
Работа:838 317 ₽
Материалы:2 682 470 ₽
Дни:20
stdClass Object
(
[id] => 143
[attribute_id] => 19
[name] => Плитка HAUBERK
[material_modifier] => 1
[work_modifier] => 1
[options] => Array
(
)
[days] => [20]
[material_price] => [2786]
[work_price] => [1944]
[image] => https://akademik-stroy.ru/wp-content/uploads/materials/hauberk.jpg
[area_modifier] => 359.33
[parent_name] => Наружная отделка фасада
[parent_id] => 19
[material_sum] => 1201312
[work_sum] => 698538
[total_sum] => 1899850
[total_days] => 20
[display_material_sum] => 1 201 312
[display_work_sum] => 698 538
[display_total_sum] => 1 899 850
)
1
1 899 850₽
Работа:698 538 ₽
Материалы:1 201 312 ₽
Дни:20
stdClass Object
(
[id] => 144
[attribute_id] => 19
[name] => Фальцевый фасад
[material_modifier] => 1
[work_modifier] => 1
[options] => Array
(
)
[days] => [20]
[material_price] => [3240]
[work_price] => [2592]
[image] => https://akademik-stroy.ru/wp-content/uploads/materials/falcevyj-fasad.jpg
[area_modifier] => 359.33
[parent_name] => Наружная отделка фасада
[parent_id] => 19
[material_sum] => 1397075
[work_sum] => 931383
[total_sum] => 2328458
[total_days] => 20
[display_material_sum] => 1 397 075
[display_work_sum] => 931 383
[display_total_sum] => 2 328 458
)
1
2 328 458₽
Работа:931 383 ₽
Материалы:1 397 075 ₽
Дни:20
stdClass Object
(
[id] => 145
[attribute_id] => 19
[name] => Комбинированный
[material_modifier] => 1
[work_modifier] => 1
[options] => Array
(
)
[days] => [20]
[material_price] => [4629]
[work_price] => [3499]
[image] => https://akademik-stroy.ru/wp-content/uploads/materials/Kombinirovannyj.jpg
[area_modifier] => 359.33
[parent_name] => Наружная отделка фасада
[parent_id] => 19
[material_sum] => 1996006
[work_sum] => 1257296
[total_sum] => 3253302
[total_days] => 20
[display_material_sum] => 1 996 006
[display_work_sum] => 1 257 296
[display_total_sum] => 3 253 302
)
1
3 253 302₽
Работа:1 257 296 ₽
Материалы:1 996 006 ₽
Дни:20
stdClass Object
(
[id] => 257
[attribute_id] => 19
[name] => Японские фиброцементные
[material_modifier] => 1
[work_modifier] => 1
[options] => Array
(
)
[days] => [20]
[material_price] => [7043]
[work_price] => [2993]
[image] => https://akademik-stroy.ru/wp-content/uploads/materials/paneli.jpg
[area_modifier] => 359.33
[parent_name] => Наружная отделка фасада
[parent_id] => 19
[material_sum] => 3036913
[work_sum] => 1075475
[total_sum] => 4112388
[total_days] => 20
[display_material_sum] => 3 036 913
[display_work_sum] => 1 075 475
[display_total_sum] => 4 112 388
)
1
4 112 388₽
Работа:1 075 475 ₽
Материалы:3 036 913 ₽
Дни:20
stdClass Object
(
[id] => 258
[attribute_id] => 19
[name] => Панели Каньон
[material_modifier] => 1
[work_modifier] => 1
[options] => Array
(
)
[days] => [20]
[material_price] => [4543]
[work_price] => [2592]
[image] => https://akademik-stroy.ru/wp-content/uploads/materials/kanon.png
[area_modifier] => 359.33
[parent_name] => Наружная отделка фасада
[parent_id] => 19
[material_sum] => 1958923
[work_sum] => 931383
[total_sum] => 2890306
[total_days] => 20
[display_material_sum] => 1 958 923
[display_work_sum] => 931 383
[display_total_sum] => 2 890 306
)
1
2 890 306₽
Работа:931 383 ₽
Материалы:1 958 923 ₽
Дни:20
stdClass Object
(
[id] => 39
[attribute_id] => 20
[name] => Нет
[material_modifier] => 1
[work_modifier] => 1
[options] => Array
(
)
[days] => [0]
[material_price] => [0]
[work_price] => [0]
[image] => https://akademik-stroy.ru/wp-content/uploads/materials/terrasy.jpg
[area_modifier] => 30
[parent_name] => Террасы, крыльца, навесы
[parent_id] => 20
[material_sum] => 0
[work_sum] => 0
[total_sum] => 0
[total_days] => 0
[display_material_sum] => 0
[display_work_sum] => 0
[display_total_sum] => 0
)
1
0₽
Работа:0 ₽
Материалы:0 ₽
Дни:0
stdClass Object
(
[id] => 40
[attribute_id] => 20
[name] => Есть
[material_modifier] => 1
[work_modifier] => 1
[options] => Array
(
)
[days] => [5]
[material_price] => [10450]
[work_price] => [1950]
[image] => https://akademik-stroy.ru/wp-content/uploads/materials/terrasy.jpg
[area_modifier] => 30
[parent_name] => Террасы, крыльца, навесы
[parent_id] => 20
[material_sum] => 376200
[work_sum] => 58500
[total_sum] => 434700
[total_days] => 5
[display_material_sum] => 376 200
[display_work_sum] => 58 500
[display_total_sum] => 434 700
)
1
434 700₽
Работа:58 500 ₽
Материалы:376 200 ₽
Дни:5
stdClass Object
(
[id] => 41
[attribute_id] => 21
[name] => Нет
[material_modifier] => 1
[work_modifier] => 1
[options] => Array
(
)
[days] => [0]
[material_price] => [0]
[work_price] => [0]
[image] => https://akademik-stroy.ru/wp-content/uploads/materials/balkony.jpg
[area_modifier] => 30
[parent_name] => Балконы
[parent_id] => 21
[material_sum] => 0
[work_sum] => 0
[total_sum] => 0
[total_days] => 0
[display_material_sum] => 0
[display_work_sum] => 0
[display_total_sum] => 0
)
1
0₽
Работа:0 ₽
Материалы:0 ₽
Дни:0
stdClass Object
(
[id] => 42
[attribute_id] => 21
[name] => Есть
[material_modifier] => 1
[work_modifier] => 1
[options] => Array
(
)
[days] => [12]
[material_price] => [3600]
[work_price] => [1950]
[image] => https://akademik-stroy.ru/wp-content/uploads/materials/balkony.jpg
[area_modifier] => 30
[parent_name] => Балконы
[parent_id] => 21
[material_sum] => 129600
[work_sum] => 58500
[total_sum] => 188100
[total_days] => 12
[display_material_sum] => 129 600
[display_work_sum] => 58 500
[display_total_sum] => 188 100
)
1
188 100₽
Работа:58 500 ₽
Материалы:129 600 ₽
Дни:12
stdClass Object
(
[id] => 43
[attribute_id] => 22
[name] => Нет
[material_modifier] => 1
[work_modifier] => 1
[options] => Array
(
)
[days] => [0]
[material_price] => [0]
[work_price] => [0]
[image] => https://akademik-stroy.ru/wp-content/uploads/materials/uteplennaya.jpg
[area_modifier] => 235.21
[parent_name] => Отмостка
[parent_id] => 22
[material_sum] => 0
[work_sum] => 0
[total_sum] => 0
[total_days] => 0
[display_material_sum] => 0
[display_work_sum] => 0
[display_total_sum] => 0
)
1
0₽
Работа:0 ₽
Материалы:0 ₽
Дни:0
stdClass Object
(
[id] => 44
[attribute_id] => 22
[name] => Утепленная отмостка
[material_modifier] => 1
[work_modifier] => 1
[options] => Array
(
)
[days] => [15]
[material_price] => [2550]
[work_price] => [1750]
[image] => https://akademik-stroy.ru/wp-content/uploads/materials/uteplennaya.jpg
[area_modifier] => 235.21
[parent_name] => Отмостка
[parent_id] => 22
[material_sum] => 719743
[work_sum] => 411618
[total_sum] => 1131361
[total_days] => 15
[display_material_sum] => 719 743
[display_work_sum] => 411 618
[display_total_sum] => 1 131 361
)
1
1 131 361₽
Работа:411 618 ₽
Материалы:719 743 ₽
Дни:15
stdClass Object
(
[id] => 146
[attribute_id] => 22
[name] => Не утепленная отмостка
[material_modifier] => 1
[work_modifier] => 1
[options] => Array
(
)
[days] => [10]
[material_price] => [1650]
[work_price] => [1450]
[image] => https://akademik-stroy.ru/wp-content/uploads/materials/ne-uteplennaya.jpg
[area_modifier] => 235.21
[parent_name] => Отмостка
[parent_id] => 22
[material_sum] => 465716
[work_sum] => 341055
[total_sum] => 806771
[total_days] => 10
[display_material_sum] => 465 716
[display_work_sum] => 341 055
[display_total_sum] => 806 771
)
1
806 771₽
Работа:341 055 ₽
Материалы:465 716 ₽
Дни:10
stdClass Object
(
[id] => 45
[attribute_id] => 23
[name] => Нет
[material_modifier] => 1
[work_modifier] => 1
[options] => Array
(
)
[days] => [0]
[material_price] => [0]
[work_price] => [0]
[image] => https://akademik-stroy.ru/wp-content/uploads/materials/drenazh-2.jpg
[area_modifier] => 235.21
[parent_name] => Дренаж вокруг дома
[parent_id] => 23
[material_sum] => 0
[work_sum] => 0
[total_sum] => 0
[total_days] => 0
[display_material_sum] => 0
[display_work_sum] => 0
[display_total_sum] => 0
)
1
0₽
Работа:0 ₽
Материалы:0 ₽
Дни:0
stdClass Object
(
[id] => 46
[attribute_id] => 23
[name] => Есть
[material_modifier] => 1
[work_modifier] => 1
[options] => Array
(
)
[days] => [5]
[material_price] => [2366]
[work_price] => [1911]
[image] => https://akademik-stroy.ru/wp-content/uploads/materials/drenazh-2.jpg
[area_modifier] => 235.21
[parent_name] => Дренаж вокруг дома
[parent_id] => 23
[material_sum] => 667808
[work_sum] => 449486
[total_sum] => 1117294
[total_days] => 5
[display_material_sum] => 667 808
[display_work_sum] => 449 486
[display_total_sum] => 1 117 294
)
1
1 117 294₽
Работа:449 486 ₽
Материалы:667 808 ₽
Дни:5
stdClass Object
(
[id] => 47
[attribute_id] => 24
[name] => Нет
[material_modifier] => 1
[work_modifier] => 1
[options] => Array
(
)
[days] => [0]
[material_price] => [0]
[work_price] => [0]
[image] => https://akademik-stroy.ru/wp-content/uploads/materials/septik.jpg
[area_modifier] => 1
[parent_name] => Автономная канализация (септики)
[parent_id] => 24
[material_sum] => 0
[work_sum] => 0
[total_sum] => 0
[total_days] => 0
[display_material_sum] => 0
[display_work_sum] => 0
[display_total_sum] => 0
)
1
0₽
Работа:0 ₽
Материалы:0 ₽
Дни:0
stdClass Object
(
[id] => 48
[attribute_id] => 24
[name] => Есть
[material_modifier] => 1
[work_modifier] => 1
[options] => Array
(
[0] => Для дачи на 4 человека
[1] => Для дома на 5 человек
[2] => Для дома на 6 человек
[3] => Для дома на 7 человек
[4] => Для дома на 10 человек
)
[days] => [7,7,7,8,8]
[material_price] => [196340,220500,240940,264200,293340]
[work_price] => [50000,55000,60500,66550,73206]
[image] => https://akademik-stroy.ru/wp-content/uploads/materials/septik.jpg
[area_modifier] => 1
[parent_name] => Автономная канализация (септики)
[parent_id] => 24
[material_sum] => 235608
[work_sum] => 50000
[total_sum] => 285608
[total_days] => 7
[display_material_sum] => 235 608
[display_work_sum] => 50 000
[display_total_sum] => 285 608
)
1
285 608₽
Работа:50 000 ₽
Материалы:235 608 ₽
Дни:7
stdClass Object
(
[id] => 49
[attribute_id] => 25
[name] => Нет
[material_modifier] => 1
[work_modifier] => 1
[options] => Array
(
)
[days] => [0]
[material_price] => [0]
[work_price] => [0]
[image] => https://akademik-stroy.ru/wp-content/uploads/materials/gkl.jpg
[area_modifier] => 359.33
[parent_name] => Внутренние (не несущие) перегородки
[parent_id] => 25
[material_sum] => 0
[work_sum] => 0
[total_sum] => 0
[total_days] => 0
[display_material_sum] => 0
[display_work_sum] => 0
[display_total_sum] => 0
)
1
0₽
Работа:0 ₽
Материалы:0 ₽
Дни:0
stdClass Object
(
[id] => 147
[attribute_id] => 25
[name] => Каркасно-обшивные
[material_modifier] => 1
[work_modifier] => 1
[options] => Array
(
[0] => 75 мм (без шумоизоляции)
[1] => 75 мм (с шумоизоляцией)
)
[days] => [11,11]
[material_price] => [580,970]
[work_price] => [380,570]
[image] => https://akademik-stroy.ru/wp-content/uploads/materials/gkl.jpg
[area_modifier] => 359.33
[parent_name] => Внутренние (не несущие) перегородки
[parent_id] => 25
[material_sum] => 250094
[work_sum] => 136545
[total_sum] => 386639
[total_days] => 11
[display_material_sum] => 250 094
[display_work_sum] => 136 545
[display_total_sum] => 386 639
)
1
386 639₽
Работа:136 545 ₽
Материалы:250 094 ₽
Дни:11
stdClass Object
(
[id] => 148
[attribute_id] => 25
[name] => Пазогребневые
[material_modifier] => 1
[work_modifier] => 1
[options] => Array
(
[0] => 80 мм
[1] => 100 мм
)
[days] => [5,5]
[material_price] => [1022,1313]
[work_price] => [600,700]
[image] => https://akademik-stroy.ru/wp-content/uploads/materials/pazogrebnevye-bloki.jpg
[area_modifier] => 359.33
[parent_name] => Внутренние (не несущие) перегородки
[parent_id] => 25
[material_sum] => 440682
[work_sum] => 215598
[total_sum] => 656280
[total_days] => 5
[display_material_sum] => 440 682
[display_work_sum] => 215 598
[display_total_sum] => 656 280
)
1
656 280₽
Работа:215 598 ₽
Материалы:440 682 ₽
Дни:5
stdClass Object
(
[id] => 149
[attribute_id] => 25
[name] => Газобетонные
[material_modifier] => 1
[work_modifier] => 1
[options] => Array
(
[0] => 100 мм
[1] => 200 мм
)
[days] => [11,11]
[material_price] => [1160,1920]
[work_price] => [700,900]
[image] => https://akademik-stroy.ru/wp-content/uploads/materials/gazobeton-2.jpg
[area_modifier] => 359.33
[parent_name] => Внутренние (не несущие) перегородки
[parent_id] => 25
[material_sum] => 500187
[work_sum] => 251531
[total_sum] => 751718
[total_days] => 11
[display_material_sum] => 500 187
[display_work_sum] => 251 531
[display_total_sum] => 751 718
)
1
751 718₽
Работа:251 531 ₽
Материалы:500 187 ₽
Дни:11
stdClass Object
(
[id] => 150
[attribute_id] => 25
[name] => Кирпичные
[material_modifier] => 1
[work_modifier] => 1
[options] => Array
(
[0] => 120 мм
[1] => 250 мм
[2] => 360 мм
)
[days] => [7,7,7]
[material_price] => [1785,3570,5355]
[work_price] => [900,1600,1800]
[image] => https://akademik-stroy.ru/wp-content/uploads/materials/kirpich-1.jpg
[area_modifier] => 359.33
[parent_name] => Внутренние (не несущие) перегородки
[parent_id] => 25
[material_sum] => 769685
[work_sum] => 323397
[total_sum] => 1093082
[total_days] => 7
[display_material_sum] => 769 685
[display_work_sum] => 323 397
[display_total_sum] => 1 093 082
)
1
1 093 082₽
Работа:323 397 ₽
Материалы:769 685 ₽
Дни:7
stdClass Object
(
[id] => 55
[attribute_id] => 28
[name] => Нет
[material_modifier] => 1
[work_modifier] => 1
[options] => Array
(
)
[days] => [0]
[material_price] => [0]
[work_price] => [0]
[image] => https://akademik-stroy.ru/wp-content/uploads/materials/ehlektrika.jpg
[area_modifier] => 291.59
[parent_name] => Электрика
[parent_id] => 28
[material_sum] => 0
[work_sum] => 0
[total_sum] => 0
[total_days] => 0
[display_material_sum] => 0
[display_work_sum] => 0
[display_total_sum] => 0
)
1
0₽
Работа:0 ₽
Материалы:0 ₽
Дни:0
stdClass Object
(
[id] => 56
[attribute_id] => 28
[name] => Есть
[material_modifier] => 1
[work_modifier] => 1
[options] => Array
(
)
[days] => [10]
[material_price] => [650]
[work_price] => [950]
[image] => https://akademik-stroy.ru/wp-content/uploads/materials/ehlektrika.jpg
[area_modifier] => 291.59
[parent_name] => Электрика
[parent_id] => 28
[material_sum] => 227440
[work_sum] => 277011
[total_sum] => 504451
[total_days] => 10
[display_material_sum] => 227 440
[display_work_sum] => 277 011
[display_total_sum] => 504 451
)
1
504 451₽
Работа:277 011 ₽
Материалы:227 440 ₽
Дни:10
stdClass Object
(
[id] => 57
[attribute_id] => 29
[name] => Нет
[material_modifier] => 1
[work_modifier] => 1
[options] => Array
(
)
[days] => [0]
[material_price] => [0]
[work_price] => [0]
[image] => https://akademik-stroy.ru/wp-content/uploads/materials/santekhnika-kanalizaciya-1.jpg
[area_modifier] => 291.59
[parent_name] => Сантехника, канализация в доме
[parent_id] => 29
[material_sum] => 0
[work_sum] => 0
[total_sum] => 0
[total_days] => 0
[display_material_sum] => 0
[display_work_sum] => 0
[display_total_sum] => 0
)
1
0₽
Работа:0 ₽
Материалы:0 ₽
Дни:0
stdClass Object
(
[id] => 58
[attribute_id] => 29
[name] => Есть
[material_modifier] => 1
[work_modifier] => 1
[options] => Array
(
)
[days] => [10]
[material_price] => [600]
[work_price] => [730]
[image] => https://akademik-stroy.ru/wp-content/uploads/materials/santekhnika-kanalizaciya-1.jpg
[area_modifier] => 291.59
[parent_name] => Сантехника, канализация в доме
[parent_id] => 29
[material_sum] => 209945
[work_sum] => 212861
[total_sum] => 422806
[total_days] => 10
[display_material_sum] => 209 945
[display_work_sum] => 212 861
[display_total_sum] => 422 806
)
1
422 806₽
Работа:212 861 ₽
Материалы:209 945 ₽
Дни:10
stdClass Object
(
[id] => 59
[attribute_id] => 30
[name] => Нет
[material_modifier] => 1
[work_modifier] => 1
[options] => Array
(
)
[days] => [0]
[material_price] => [0]
[work_price] => [0]
[image] => https://akademik-stroy.ru/wp-content/uploads/materials/otoplenie-1.jpg
[area_modifier] => 291.59
[parent_name] => Отопление
[parent_id] => 30
[material_sum] => 0
[work_sum] => 0
[total_sum] => 0
[total_days] => 0
[display_material_sum] => 0
[display_work_sum] => 0
[display_total_sum] => 0
)
1
0₽
Работа:0 ₽
Материалы:0 ₽
Дни:0
stdClass Object
(
[id] => 60
[attribute_id] => 30
[name] => Есть
[material_modifier] => 1
[work_modifier] => 1
[options] => Array
(
)
[days] => [5]
[material_price] => [610]
[work_price] => [560]
[image] => https://akademik-stroy.ru/wp-content/uploads/materials/otoplenie-1.jpg
[area_modifier] => 291.59
[parent_name] => Отопление
[parent_id] => 30
[material_sum] => 213444
[work_sum] => 163290
[total_sum] => 376734
[total_days] => 5
[display_material_sum] => 213 444
[display_work_sum] => 163 290
[display_total_sum] => 376 734
)
1
376 734₽
Работа:163 290 ₽
Материалы:213 444 ₽
Дни:5
stdClass Object
(
[id] => 61
[attribute_id] => 31
[name] => Нет
[material_modifier] => 1
[work_modifier] => 1
[options] => Array
(
)
[days] => [0]
[material_price] => [0]
[work_price] => [0]
[image] => https://akademik-stroy.ru/wp-content/uploads/materials/vodyanye.jpg
[area_modifier] => 30
[parent_name] => Теплые полы
[parent_id] => 31
[material_sum] => 0
[work_sum] => 0
[total_sum] => 0
[total_days] => 0
[display_material_sum] => 0
[display_work_sum] => 0
[display_total_sum] => 0
)
1
0₽
Работа:0 ₽
Материалы:0 ₽
Дни:0
stdClass Object
(
[id] => 151
[attribute_id] => 31
[name] => Водяные
[material_modifier] => 1
[work_modifier] => 1
[options] => Array
(
)
[days] => [9]
[material_price] => [10200]
[work_price] => [2500]
[image] => https://akademik-stroy.ru/wp-content/uploads/materials/vodyanye.jpg
[area_modifier] => 30
[parent_name] => Теплые полы
[parent_id] => 31
[material_sum] => 367200
[work_sum] => 75000
[total_sum] => 442200
[total_days] => 9
[display_material_sum] => 367 200
[display_work_sum] => 75 000
[display_total_sum] => 442 200
)
1
442 200₽
Работа:75 000 ₽
Материалы:367 200 ₽
Дни:9
stdClass Object
(
[id] => 152
[attribute_id] => 31
[name] => Электро
[material_modifier] => 1
[work_modifier] => 1
[options] => Array
(
)
[days] => [5]
[material_price] => [6300]
[work_price] => [1500]
[image] => https://akademik-stroy.ru/wp-content/uploads/materials/ehlektricheskij.jpg
[area_modifier] => 30
[parent_name] => Теплые полы
[parent_id] => 31
[material_sum] => 226800
[work_sum] => 45000
[total_sum] => 271800
[total_days] => 5
[display_material_sum] => 226 800
[display_work_sum] => 45 000
[display_total_sum] => 271 800
)
1
271 800₽
Работа:45 000 ₽
Материалы:226 800 ₽
Дни:5
stdClass Object
(
[id] => 63
[attribute_id] => 32
[name] => Нет
[material_modifier] => 1
[work_modifier] => 1
[options] => Array
(
)
[days] => [0]
[material_price] => [0]
[work_price] => [0]
[image] => https://akademik-stroy.ru/wp-content/uploads/materials/shtukaturka-shpatlevka-1.jpg
[area_modifier] => 291.59
[parent_name] => Черновая отделка стен
[parent_id] => 32
[material_sum] => 0
[work_sum] => 0
[total_sum] => 0
[total_days] => 0
[display_material_sum] => 0
[display_work_sum] => 0
[display_total_sum] => 0
)
1
0₽
Работа:0 ₽
Материалы:0 ₽
Дни:0
stdClass Object
(
[id] => 153
[attribute_id] => 32
[name] => Штукатурка и шпатлевка
[material_modifier] => 1
[work_modifier] => 1
[options] => Array
(
)
[days] => [20]
[material_price] => [1850]
[work_price] => [2600]
[image] => https://akademik-stroy.ru/wp-content/uploads/materials/shtukaturka-shpatlevka-1.jpg
[area_modifier] => 291.59
[parent_name] => Черновая отделка стен
[parent_id] => 32
[material_sum] => 647330
[work_sum] => 758134
[total_sum] => 1405464
[total_days] => 20
[display_material_sum] => 647 330
[display_work_sum] => 758 134
[display_total_sum] => 1 405 464
)
1
1 405 464₽
Работа:758 134 ₽
Материалы:647 330 ₽
Дни:20
stdClass Object
(
[id] => 154
[attribute_id] => 32
[name] => Гипсокортон на стены
[material_modifier] => 1
[work_modifier] => 1
[options] => Array
(
)
[days] => [15]
[material_price] => [950]
[work_price] => [2100]
[image] => https://akademik-stroy.ru/wp-content/uploads/materials/gkl-1.jpg
[area_modifier] => 291.59
[parent_name] => Черновая отделка стен
[parent_id] => 32
[material_sum] => 332413
[work_sum] => 612339
[total_sum] => 944752
[total_days] => 15
[display_material_sum] => 332 413
[display_work_sum] => 612 339
[display_total_sum] => 944 752
)
1
944 752₽
Работа:612 339 ₽
Материалы:332 413 ₽
Дни:15
stdClass Object
(
[id] => 155
[attribute_id] => 32
[name] => Вагонка
[material_modifier] => 1
[work_modifier] => 1
[options] => Array
(
)
[days] => [15]
[material_price] => [1250]
[work_price] => [950]
[image] => https://akademik-stroy.ru/wp-content/uploads/materials/vagonka.jpg
[area_modifier] => 291.59
[parent_name] => Черновая отделка стен
[parent_id] => 32
[material_sum] => 437385
[work_sum] => 277011
[total_sum] => 714396
[total_days] => 15
[display_material_sum] => 437 385
[display_work_sum] => 277 011
[display_total_sum] => 714 396
)
1
714 396₽
Работа:277 011 ₽
Материалы:437 385 ₽
Дни:15
stdClass Object
(
[id] => 65
[attribute_id] => 33
[name] => Нет
[material_modifier] => 1
[work_modifier] => 1
[options] => Array
(
)
[days] => [0]
[material_price] => [0]
[work_price] => [0]
[image] => https://akademik-stroy.ru/wp-content/uploads/materials/styazhka.jpg
[area_modifier] => 291.59
[parent_name] => Черновая отделка полов
[parent_id] => 33
[material_sum] => 0
[work_sum] => 0
[total_sum] => 0
[total_days] => 0
[display_material_sum] => 0
[display_work_sum] => 0
[display_total_sum] => 0
)
1
0₽
Работа:0 ₽
Материалы:0 ₽
Дни:0
stdClass Object
(
[id] => 156
[attribute_id] => 33
[name] => Стяжка + наливные полы
[material_modifier] => 1
[work_modifier] => 1
[options] => Array
(
)
[days] => [10]
[material_price] => [1000]
[work_price] => [900]
[image] => https://akademik-stroy.ru/wp-content/uploads/materials/styazhka.jpg
[area_modifier] => 291.59
[parent_name] => Черновая отделка полов
[parent_id] => 33
[material_sum] => 349908
[work_sum] => 262431
[total_sum] => 612339
[total_days] => 10
[display_material_sum] => 349 908
[display_work_sum] => 262 431
[display_total_sum] => 612 339
)
1
612 339₽
Работа:262 431 ₽
Материалы:349 908 ₽
Дни:10
stdClass Object
(
[id] => 157
[attribute_id] => 33
[name] => ОСБ на пол
[material_modifier] => 1
[work_modifier] => 1
[options] => Array
(
)
[days] => [7]
[material_price] => [580]
[work_price] => [350]
[image] => https://akademik-stroy.ru/wp-content/uploads/materials/osb-1.jpg
[area_modifier] => 291.59
[parent_name] => Черновая отделка полов
[parent_id] => 33
[material_sum] => 202947
[work_sum] => 102057
[total_sum] => 305004
[total_days] => 7
[display_material_sum] => 202 947
[display_work_sum] => 102 057
[display_total_sum] => 305 004
)
1
305 004₽
Работа:102 057 ₽
Материалы:202 947 ₽
Дни:7
stdClass Object
(
[id] => 67
[attribute_id] => 34
[name] => Нет
[material_modifier] => 1
[work_modifier] => 1
[options] => Array
(
)
[days] => [0]
[material_price] => [0]
[work_price] => [0]
[image] => https://akademik-stroy.ru/wp-content/uploads/materials/chistovaya-otdelka.jpg
[area_modifier] => 291.59
[parent_name] => Чистовая отделка стен и полов
[parent_id] => 34
[material_sum] => 0
[work_sum] => 0
[total_sum] => 0
[total_days] => 0
[display_material_sum] => 0
[display_work_sum] => 0
[display_total_sum] => 0
)
1
0₽
Работа:0 ₽
Материалы:0 ₽
Дни:0
stdClass Object
(
[id] => 68
[attribute_id] => 34
[name] => Есть
[material_modifier] => 1
[work_modifier] => 1
[options] => Array
(
)
[days] => [50]
[material_price] => [6000]
[work_price] => [3500]
[image] => https://akademik-stroy.ru/wp-content/uploads/materials/chistovaya-otdelka.jpg
[area_modifier] => 291.59
[parent_name] => Чистовая отделка стен и полов
[parent_id] => 34
[material_sum] => 2099448
[work_sum] => 1020565
[total_sum] => 3120013
[total_days] => 50
[display_material_sum] => 2 099 448
[display_work_sum] => 1 020 565
[display_total_sum] => 3 120 013
)
1
3 120 013₽
Работа:1 020 565 ₽
Материалы:2 099 448 ₽
Дни:50
stdClass Object
(
[id] => 69
[attribute_id] => 35
[name] => Нет
[material_modifier] => 1
[work_modifier] => 1
[options] => Array
(
)
[days] => [0]
[material_price] => [0]
[work_price] => [0]
[image] => https://akademik-stroy.ru/wp-content/uploads/materials/mnogourovnevyj-gkl.jpg
[area_modifier] => 291.59
[parent_name] => Отделка потолка
[parent_id] => 35
[material_sum] => 0
[work_sum] => 0
[total_sum] => 0
[total_days] => 0
[display_material_sum] => 0
[display_work_sum] => 0
[display_total_sum] => 0
)
1
0₽
Работа:0 ₽
Материалы:0 ₽
Дни:0
stdClass Object
(
[id] => 70
[attribute_id] => 35
[name] => Есть
[material_modifier] => 1
[work_modifier] => 1
[options] => Array
(
[0] => Многоуровневый потолок из гипсокартона
[1] => Многоуровневый потолок из гипсокартона и натяжного потолка
[2] => Одноуровневый потолок из гипсокартона
[3] => Одноуровневый натяжной потолок
)
[days] => [10,10,1,1]
[material_price] => [900,700,700,600]
[work_price] => [1000,800,500,300]
[image] => https://akademik-stroy.ru/wp-content/uploads/materials/mnogourovnevyj-gkl.jpg
[area_modifier] => 291.59
[parent_name] => Отделка потолка
[parent_id] => 35
[material_sum] => 314917
[work_sum] => 291590
[total_sum] => 606507
[total_days] => 10
[display_material_sum] => 314 917
[display_work_sum] => 291 590
[display_total_sum] => 606 507
)
1
606 507₽
Работа:291 590 ₽
Материалы:314 917 ₽
Дни:10
Преимущества работы с нами
7 этапов оплаты
Независимый строительный надзор
Экологически чистые материалы
16 лет гарантии
Онлайн-кабинет с веб-камерой
Строители с опытом более 15 лет
Собственное производство











