Одноэтажный дом 22x17 - 280.74 м2 за руб.
Планировки
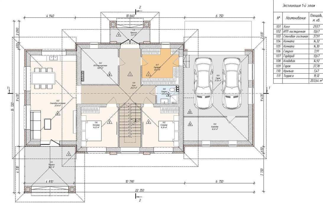
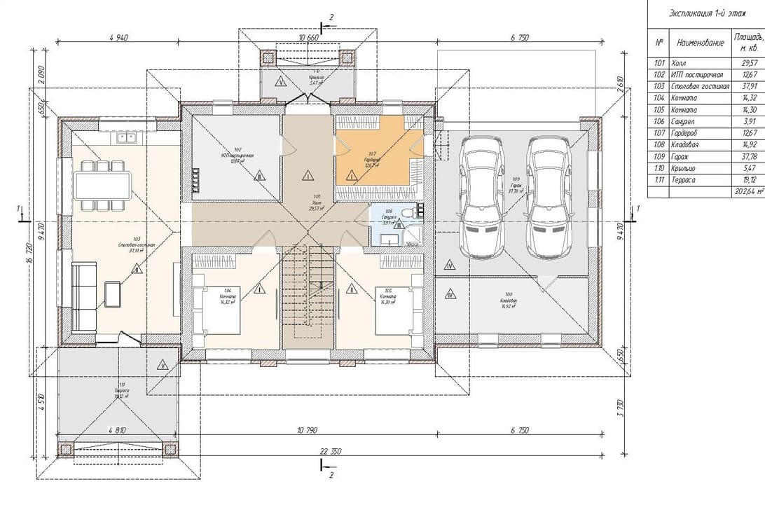
План первого этажа
- 1. Холл 29,57 м²
- 2. ИТП 12,67 м²
- 3. Столовая-гостиная 37,91 м²
- 4. Спальня 14,32 м²
- 5. Спальня 14,30 м²
- 6. С/У 3,91 м²
- 7. Гардеробная 12,67 м²
- 8. Кладовая 14,92 м²
- 9. Гараж 37,78 м²
- 10. Крыльцо 5,47 м²
- 11. Терраса 19,12 м²
- Общая площадь 1 этажа 202,64 м²
План второго этажа
- 1. Холл 6,58 м²
- 2. Спальня 14,30 м²
- 3. Гардеробная 6,15 м²
- 4. Гардеробная 6,15 м²
- 5. Спальня 18,33 м²
- 6. Кабинет 4,87 м²
- 7. С/У 7,42 м²
- 8. Спальня 14,30 м²
- Общая площадь 2 этажа 78,10 м²
Площади дома
| № п/п | Наименование | Ед. из. | Строительная площадь | Полезная площадь |
| 1 | 1 этаж | м2 | 249.71 | 202.64 |
| 2 | 2 этаж | м2 | 96.24 | 78.1 |
| 3 | Итого | м2 | 345.95 | 280.74 |
154 м2
Полезная
площадь
площадь
22 x 17 м
Размеры
1 этаж
Этажей
26 м2
Террасы
и балконы
и балконы
2Без
гаража
гаража
5+
Количество
спален
спален
2
Количество
санузлов
санузлов
Калькулятор опций
0₽
В ипотеку от 31 645 ₽/мес.
0₽
0 дней
stdClass Object
(
[id] => 1
[attribute_id] => 1
[name] => Ленточный монолитный ж/б
[material_modifier] => 1
[work_modifier] => 1
[options] => Array
(
[0] => размер 200 х 700 мм
[1] => размер 300 х 900 мм
[2] => размер 400 х 1 000 мм
[3] => размер 500 х 1 100 мм
[4] => размер 600 х 1 200 мм
)
[days] => [20,21,22,25,30]
[material_price] => [2823,3630,4475,5210,12047]
[work_price] => [2154,2826,3731,4577,5293]
[image] => https://akademik-stroy.ru/wp-content/uploads/materials/lentochnyj-monolitnyj-zh-b.jpg
[area_modifier] => 249.71
[parent_name] => Фундамент
[parent_id] => 1
[material_sum] => 845918
[work_sum] => 537875
[total_sum] => 1383793
[total_days] => 20
[display_material_sum] => 845 918
[display_work_sum] => 537 875
[display_total_sum] => 1 383 793
)
1
1 383 793₽
Работа:537 875 ₽
Материалы:845 918 ₽
Дни:20
stdClass Object
(
[id] => 2
[attribute_id] => 1
[name] => Забивные Ж/Б сваи
[material_modifier] => 1
[work_modifier] => 1
[options] => Array
(
[0] => 150х150х3000мм
[1] => 150х150х4000мм
[2] => 200х200х3000мм
[3] => 200х200х4000мм
[4] => 200х200х5000мм
[5] => 200х200х6000мм
)
[days] => [2,2,2,2,2,2]
[material_price] => [1990,2850,3255,4360,5120,6837]
[work_price] => [1002,1185,1336,1438,1574,1839]
[image] => https://akademik-stroy.ru/wp-content/uploads/materials/zabivnye-zh-b-svai.png
[area_modifier] => 249.71
[parent_name] => Фундамент
[parent_id] => 1
[material_sum] => 596307
[work_sum] => 250209
[total_sum] => 846516
[total_days] => 2
[display_material_sum] => 596 307
[display_work_sum] => 250 209
[display_total_sum] => 846 516
)
1
846 516₽
Работа:250 209 ₽
Материалы:596 307 ₽
Дни:2
stdClass Object
(
[id] => 71
[attribute_id] => 1
[name] => Свайно-ростверковый ж/б
[material_modifier] => 1
[work_modifier] => 1
[options] => Array
(
[0] => ростверк 200х300 мм
[1] => ростверк 300х600 мм
[2] => ростверк 400х900 мм
[3] => ростверк 500х1200 мм
)
[days] => [20,23,25,27]
[material_price] => [3018,3474,7109,9792]
[work_price] => [2024,3012,5635,7022]
[image] => https://akademik-stroy.ru/wp-content/uploads/materials/svajno-rostverkovyj-monolitnyj-zh-b-3.png
[area_modifier] => 249.71
[parent_name] => Фундамент
[parent_id] => 1
[material_sum] => 904350
[work_sum] => 505413
[total_sum] => 1409763
[total_days] => 20
[display_material_sum] => 904 350
[display_work_sum] => 505 413
[display_total_sum] => 1 409 763
)
1
1 409 763₽
Работа:505 413 ₽
Материалы:904 350 ₽
Дни:20
stdClass Object
(
[id] => 72
[attribute_id] => 1
[name] => Монолитная ж/б плита
[material_modifier] => 1
[work_modifier] => 1
[options] => Array
(
[0] => 200 мм
[1] => 300 мм
[2] => 400 мм
[3] => 500 мм
[4] => 600 мм
)
[days] => [30,33,35,37,40]
[material_price] => [5348,8555,12788,14388,15189]
[work_price] => [4314,4881,7037,8061,10230]
[image] => https://akademik-stroy.ru/wp-content/uploads/materials/monolitnaya-zhb-plita.png
[area_modifier] => 249.71
[parent_name] => Фундамент
[parent_id] => 1
[material_sum] => 1602539
[work_sum] => 1077249
[total_sum] => 2679788
[total_days] => 30
[display_material_sum] => 1 602 539
[display_work_sum] => 1 077 249
[display_total_sum] => 2 679 788
)
1
2 679 788₽
Работа:1 077 249 ₽
Материалы:1 602 539 ₽
Дни:30
stdClass Object
(
[id] => 73
[attribute_id] => 1
[name] => Утепленная шведская плита
[material_modifier] => 1
[work_modifier] => 1
[options] => Array
(
[0] => 200 мм
[1] => 300 мм
[2] => 400 мм
[3] => 500 мм
[4] => 600 мм
)
[days] => [32,37,39,42,45]
[material_price] => [10249,12692,13760,14936,16230]
[work_price] => [5960,7337,8072,8878,9765]
[image] => https://akademik-stroy.ru/wp-content/uploads/materials/uteplennaya-shvedskaya-plita.jpg
[area_modifier] => 249.71
[parent_name] => Фундамент
[parent_id] => 1
[material_sum] => 3071133
[work_sum] => 1488272
[total_sum] => 4559405
[total_days] => 32
[display_material_sum] => 3 071 133
[display_work_sum] => 1 488 272
[display_total_sum] => 4 559 405
)
1
4 559 405₽
Работа:1 488 272 ₽
Материалы:3 071 133 ₽
Дни:32
stdClass Object
(
[id] => 75
[attribute_id] => 1
[name] => Ленточный из ФБС
[material_modifier] => 1
[work_modifier] => 1
[options] => Array
(
[0] => толщ. 300 мм
[1] => толщ. 400 мм
[2] => толщ. 500 мм
[3] => толщ. 600 мм
)
[days] => [20,20,20,20]
[material_price] => [3675,4902,6126,7350]
[work_price] => [2451,3264,4083,4902]
[image] => https://akademik-stroy.ru/wp-content/uploads/materials/lentochnyj-iz-fbs.png
[area_modifier] => 249.71
[parent_name] => Фундамент
[parent_id] => 1
[material_sum] => 1101221
[work_sum] => 612039
[total_sum] => 1713260
[total_days] => 20
[display_material_sum] => 1 101 221
[display_work_sum] => 612 039
[display_total_sum] => 1 713 260
)
1
1 713 260₽
Работа:612 039 ₽
Материалы:1 101 221 ₽
Дни:20
stdClass Object
(
[id] => 76
[attribute_id] => 1
[name] => Цокольный этаж из ФБС
[material_modifier] => 1
[work_modifier] => 1
[options] => Array
(
[0] => толщ. 300 мм
[1] => толщ. 400 мм
[2] => толщ. 500 мм
[3] => толщ. 600 мм
)
[days] => [30,32,34,36]
[material_price] => [20916,23299,26680,29060]
[work_price] => [17524,18700,19873,21046]
[image] => https://akademik-stroy.ru/wp-content/uploads/materials/cokolnyj-ehtazh-iz-fbs.jpg
[area_modifier] => 249.71
[parent_name] => Фундамент
[parent_id] => 1
[material_sum] => 6267521
[work_sum] => 4375918
[total_sum] => 10643439
[total_days] => 30
[display_material_sum] => 6 267 521
[display_work_sum] => 4 375 918
[display_total_sum] => 10 643 439
)
1
10 643 439₽
Работа:4 375 918 ₽
Материалы:6 267 521 ₽
Дни:30
stdClass Object
(
[id] => 77
[attribute_id] => 1
[name] => Цокольный этаж монолитный ж/б
[material_modifier] => 1
[work_modifier] => 1
[options] => Array
(
[0] => толщ. 200 мм
[1] => толщ. 300 мм
[2] => толщ. 400 мм
[3] => толщ. 500 мм
[4] => толщ. 600 мм
)
[days] => [40,42,44,46,48]
[material_price] => [25421,29148,32275,35602,37326]
[work_price] => [20441,21907,23375,24841,26306]
[image] => https://akademik-stroy.ru/wp-content/uploads/materials/cokolnyj-etazh-zh-b.jpg
[area_modifier] => 249.71
[parent_name] => Фундамент
[parent_id] => 1
[material_sum] => 7617453
[work_sum] => 5104322
[total_sum] => 12721775
[total_days] => 40
[display_material_sum] => 7 617 453
[display_work_sum] => 5 104 322
[display_total_sum] => 12 721 775
)
1
12 721 775₽
Работа:5 104 322 ₽
Материалы:7 617 453 ₽
Дни:40
stdClass Object
(
[id] => 191
[attribute_id] => 1
[name] => Винтовые сваи
[material_modifier] => 1
[work_modifier] => 1
[options] => Array
(
[0] => 57х200мм
[1] => 76х250мм
[2] => 108х300мм
[3] => 133х350мм
)
[days] => [1,1,2,2]
[material_price] => [1200,1300,1450,1600]
[work_price] => [400,600,900,1100]
[image] => https://akademik-stroy.ru/wp-content/uploads/materials/vintovye-svai.png
[area_modifier] => 249.71
[parent_name] => Фундамент
[parent_id] => 1
[material_sum] => 359582
[work_sum] => 99884
[total_sum] => 459466
[total_days] => 1
[display_material_sum] => 359 582
[display_work_sum] => 99 884
[display_total_sum] => 459 466
)
1
459 466₽
Работа:99 884 ₽
Материалы:359 582 ₽
Дни:1
stdClass Object
(
[id] => 3
[attribute_id] => 2
[name] => Деревянные балки
[material_modifier] => 1
[work_modifier] => 1
[options] => Array
(
[0] => без утепления
[1] => утепление 200 мм
[2] => утепление 250 мм
[3] => утепление 300 мм
[4] => утепление 350 мм
[5] => утепление 400 мм
[6] => утепление 450 мм
[7] => утепление 500 мм
)
[days] => [8,9,9,9,11,12,13,14]
[material_price] => [1634,2042,2344,2947,3149,3652,3354,3557]
[work_price] => [1230,1339,1393,1426,1460,1513,1587,1620]
[image] => https://akademik-stroy.ru/wp-content/uploads/materials/derevyannye-balki.png
[area_modifier] => 249.71
[parent_name] => Перекрытие цоколя
[parent_id] => 2
[material_sum] => 489631
[work_sum] => 307143
[total_sum] => 796774
[total_days] => 8
[display_material_sum] => 489 631
[display_work_sum] => 307 143
[display_total_sum] => 796 774
)
1
796 774₽
Работа:307 143 ₽
Материалы:489 631 ₽
Дни:8
stdClass Object
(
[id] => 4
[attribute_id] => 2
[name] => Сборные ж/б плиты
[material_modifier] => 1
[work_modifier] => 1
[options] => Array
(
[0] => без утепления
[1] => утепление 150мм
[2] => утепление 200мм
[3] => утепление 250мм
[4] => утепление 300мм
[5] => утепление 350мм
[6] => утепление 400мм
[7] => утепление 450мм
[8] => утепление 500мм
)
[days] => [13,15,15,15,15,15,15,15,15]
[material_price] => [3067,5577,5928,6679,7730,8782,9833,10884,11935]
[work_price] => [1520,1956,2102,2247,2392,2537,2684,2829,2974]
[image] => https://akademik-stroy.ru/wp-content/uploads/materials/sbornye-zh-b-plity-2.jpg
[area_modifier] => 249.71
[parent_name] => Перекрытие цоколя
[parent_id] => 2
[material_sum] => 919033
[work_sum] => 379559
[total_sum] => 1298592
[total_days] => 13
[display_material_sum] => 919 033
[display_work_sum] => 379 559
[display_total_sum] => 1 298 592
)
1
1 298 592₽
Работа:379 559 ₽
Материалы:919 033 ₽
Дни:13
stdClass Object
(
[id] => 78
[attribute_id] => 2
[name] => Монолитная ж/б плита
[material_modifier] => 1
[work_modifier] => 1
[options] => Array
(
[0] => без утепления
[1] => утепление 150 мм
[2] => утепление 200 мм
[3] => утепление 250 мм
[4] => утепление 300 мм
[5] => утепление 350 мм
[6] => утепление 400 мм
[7] => утепление 450 мм
[8] => утепление 500 мм
)
[days] => [18,20,20,20,20,20,20,20,20]
[material_price] => [4837,6572,7224,7375,79426,8177,8728,9180,10031]
[work_price] => [3348,3921,4112,4302,4493,4684,4875,5066,5256]
[image] => https://akademik-stroy.ru/wp-content/uploads/materials/monolitnaya-zh-b-plita-2.jpg
[area_modifier] => 249.71
[parent_name] => Перекрытие цоколя
[parent_id] => 2
[material_sum] => 1449417
[work_sum] => 836029
[total_sum] => 2285446
[total_days] => 18
[display_material_sum] => 1 449 417
[display_work_sum] => 836 029
[display_total_sum] => 2 285 446
)
1
2 285 446₽
Работа:836 029 ₽
Материалы:1 449 417 ₽
Дни:18
stdClass Object
(
[id] => 6
[attribute_id] => 3
[name] => Пеноблок
[material_modifier] => 1
[work_modifier] => 1
[options] => Array
(
[0] => 300 мм
[1] => 400 мм
[2] => 500 мм
[3] => 600 мм
)
[days] => [29,31,34,39]
[material_price] => [3000,4000,4500,4937]
[work_price] => [5033,5805,6400,8710]
[image] => https://akademik-stroy.ru/wp-content/uploads/materials/penoblok.jpg
[area_modifier] => 249.71
[parent_name] => Стены 1 этаж (несущие)
[parent_id] => 3
[material_sum] => 898956
[work_sum] => 1256790
[total_sum] => 2155746
[total_days] => 29
[display_material_sum] => 898 956
[display_work_sum] => 1 256 790
[display_total_sum] => 2 155 746
)
1
2 155 746₽
Работа:1 256 790 ₽
Материалы:898 956 ₽
Дни:29
stdClass Object
(
[id] => 79
[attribute_id] => 3
[name] => Керамический блок
[material_modifier] => 1
[work_modifier] => 1
[options] => Array
(
[0] => 380 мм
[1] => 380 мм Thermo
[2] => 440 мм
[3] => 510 мм
)
[days] => [23,23,24,25]
[material_price] => [4510,5098,6093,8013]
[work_price] => [4737,4937,5903,6958]
[image] => https://akademik-stroy.ru/wp-content/uploads/materials/keramicheskij-blok.jpg
[area_modifier] => 249.71
[parent_name] => Стены 1 этаж (несущие)
[parent_id] => 3
[material_sum] => 1351431
[work_sum] => 1182876
[total_sum] => 2534307
[total_days] => 23
[display_material_sum] => 1 351 431
[display_work_sum] => 1 182 876
[display_total_sum] => 2 534 307
)
1
2 534 307₽
Работа:1 182 876 ₽
Материалы:1 351 431 ₽
Дни:23
stdClass Object
(
[id] => 80
[attribute_id] => 3
[name] => Кирпич
[material_modifier] => 1
[work_modifier] => 1
[options] => Array
(
[0] => Кирпич 250 мм
[1] => Кирпич 380 мм
[2] => Кирпич 510 мм
[3] => Кирпич 640 мм
[4] => Кирпич 770 мм
)
[days] => [30,30,31,33,36]
[material_price] => [5500,7142,9206,10171,12235]
[work_price] => [8736,10041,12018,15240,18462]
[image] => https://akademik-stroy.ru/wp-content/uploads/materials/kirpich.jpg
[area_modifier] => 249.71
[parent_name] => Стены 1 этаж (несущие)
[parent_id] => 3
[material_sum] => 1648086
[work_sum] => 2181467
[total_sum] => 3829553
[total_days] => 30
[display_material_sum] => 1 648 086
[display_work_sum] => 2 181 467
[display_total_sum] => 3 829 553
)
1
3 829 553₽
Работа:2 181 467 ₽
Материалы:1 648 086 ₽
Дни:30
stdClass Object
(
[id] => 81
[attribute_id] => 3
[name] => Монолитные
[material_modifier] => 1
[work_modifier] => 1
[options] => Array
(
[0] => 150 мм
[1] => 200 мм
[2] => 250 мм
[3] => 300 мм
[4] => 350 мм
[5] => 400 мм
)
[days] => [45,46,47,49,50,53]
[material_price] => [6545,7876,10175,12011,13908,15204]
[work_price] => [5106,6444,7698,8552,9807,11461]
[image] => https://akademik-stroy.ru/wp-content/uploads/materials/monolitnye.jpg
[area_modifier] => 249.71
[parent_name] => Стены 1 этаж (несущие)
[parent_id] => 3
[material_sum] => 1961222
[work_sum] => 1275019
[total_sum] => 3236241
[total_days] => 45
[display_material_sum] => 1 961 222
[display_work_sum] => 1 275 019
[display_total_sum] => 3 236 241
)
1
3 236 241₽
Работа:1 275 019 ₽
Материалы:1 961 222 ₽
Дни:45
stdClass Object
(
[id] => 82
[attribute_id] => 3
[name] => Клееный брус
[material_modifier] => 1
[work_modifier] => 1
[options] => Array
(
[0] => 160 мм
[1] => 175 мм
[2] => 200 мм
[3] => 215 мм
[4] => 240 мм
[5] => 270 мм
[6] => 282 мм
)
[days] => [24,28,32,37,40,42,48]
[material_price] => [16975,18773,19950,20545,21599,22159,23275]
[work_price] => [4806,5287,5815,6397,7036,7740,8514]
[image] => https://akademik-stroy.ru/wp-content/uploads/materials/kleenyj-brus.jpg
[area_modifier] => 249.71
[parent_name] => Стены 1 этаж (несущие)
[parent_id] => 3
[material_sum] => 5086593
[work_sum] => 1200106
[total_sum] => 6286699
[total_days] => 24
[display_material_sum] => 5 086 593
[display_work_sum] => 1 200 106
[display_total_sum] => 6 286 699
)
1
6 286 699₽
Работа:1 200 106 ₽
Материалы:5 086 593 ₽
Дни:24
stdClass Object
(
[id] => 83
[attribute_id] => 3
[name] => Каркасные
[material_modifier] => 1
[work_modifier] => 1
[options] => Array
(
[0] => 150 мм
[1] => 200 мм
[2] => 250 мм
[3] => 300 мм
)
[days] => [15,16,17,18]
[material_price] => [2379,2639,2898,3258]
[work_price] => [2418,2686,2985,3716]
[image] => https://akademik-stroy.ru/wp-content/uploads/materials/karkasnye.jpg
[area_modifier] => 249.71
[parent_name] => Стены 1 этаж (несущие)
[parent_id] => 3
[material_sum] => 712872
[work_sum] => 603799
[total_sum] => 1316671
[total_days] => 15
[display_material_sum] => 712 872
[display_work_sum] => 603 799
[display_total_sum] => 1 316 671
)
1
1 316 671₽
Работа:603 799 ₽
Материалы:712 872 ₽
Дни:15
stdClass Object
(
[id] => 84
[attribute_id] => 3
[name] => СИП-панели
[material_modifier] => 1
[work_modifier] => 1
[options] => Array
(
[0] => 120 мм
[1] => 170 мм
[2] => 220 мм
)
[days] => [7,7,7]
[material_price] => [1210,1856,2292]
[work_price] => [1410,1551,1706]
[image] => https://akademik-stroy.ru/wp-content/uploads/materials/sip-paneli.jpg
[area_modifier] => 249.71
[parent_name] => Стены 1 этаж (несущие)
[parent_id] => 3
[material_sum] => 362579
[work_sum] => 352091
[total_sum] => 714670
[total_days] => 7
[display_material_sum] => 362 579
[display_work_sum] => 352 091
[display_total_sum] => 714 670
)
1
714 670₽
Работа:352 091 ₽
Материалы:362 579 ₽
Дни:7
stdClass Object
(
[id] => 85
[attribute_id] => 3
[name] => Сухой брус
[material_modifier] => 1
[work_modifier] => 1
[options] => Array
(
[0] => 150 мм
[1] => 180 мм
[2] => 200 мм
)
[days] => [7,8,9]
[material_price] => [6010,7190,8709]
[work_price] => [3204,3845,4229]
[image] => https://akademik-stroy.ru/wp-content/uploads/materials/suhoj-brus.jpg
[area_modifier] => 249.71
[parent_name] => Стены 1 этаж (несущие)
[parent_id] => 3
[material_sum] => 1800909
[work_sum] => 800071
[total_sum] => 2600980
[total_days] => 7
[display_material_sum] => 1 800 909
[display_work_sum] => 800 071
[display_total_sum] => 2 600 980
)
1
2 600 980₽
Работа:800 071 ₽
Материалы:1 800 909 ₽
Дни:7
stdClass Object
(
[id] => 86
[attribute_id] => 3
[name] => Профилированный брус
[material_modifier] => 1
[work_modifier] => 1
[options] => Array
(
[0] => 150 мм
[1] => 180 мм
[2] => 200 мм
)
[days] => [7,8,9]
[material_price] => [8190,9228,10051]
[work_price] => [3845,4614,5075]
[image] => https://akademik-stroy.ru/wp-content/uploads/materials/profilirovannyj-brus.jpg
[area_modifier] => 249.71
[parent_name] => Стены 1 этаж (несущие)
[parent_id] => 3
[material_sum] => 2454150
[work_sum] => 960135
[total_sum] => 3414285
[total_days] => 7
[display_material_sum] => 2 454 150
[display_work_sum] => 960 135
[display_total_sum] => 3 414 285
)
1
3 414 285₽
Работа:960 135 ₽
Материалы:2 454 150 ₽
Дни:7
stdClass Object
(
[id] => 87
[attribute_id] => 3
[name] => Оцилиндрованное бревно
[material_modifier] => 1
[work_modifier] => 1
[options] => Array
(
[0] => 180 мм
[1] => 220 мм
[2] => 260 мм
[3] => 320 мм
)
[days] => [7,8,9,10]
[material_price] => [75190,9532,10868,13116]
[work_price] => [3845,4691,5535,6863]
[image] => https://akademik-stroy.ru/wp-content/uploads/materials/ocilindrovannoe-brevno-1.jpg
[area_modifier] => 249.71
[parent_name] => Стены 1 этаж (несущие)
[parent_id] => 3
[material_sum] => 22530834
[work_sum] => 960135
[total_sum] => 23490969
[total_days] => 7
[display_material_sum] => 22 530 834
[display_work_sum] => 960 135
[display_total_sum] => 23 490 969
)
1
23 490 969₽
Работа:960 135 ₽
Материалы:22 530 834 ₽
Дни:7
stdClass Object
(
[id] => 88
[attribute_id] => 3
[name] => Срубы
[material_modifier] => 1
[work_modifier] => 1
[options] => Array
(
[0] => 260 мм
[1] => 320 мм
[2] => 360 мм
[3] => 400 мм
[4] => 500 мм
)
[days] => [7,8,9,10,11]
[material_price] => [37975,46709,52314,58069,73167]
[work_price] => [4806,5911,6621,7349,9260]
[image] => https://akademik-stroy.ru/wp-content/uploads/materials/sruby.jpg
[area_modifier] => 249.71
[parent_name] => Стены 1 этаж (несущие)
[parent_id] => 3
[material_sum] => 11379285
[work_sum] => 1200106
[total_sum] => 12579391
[total_days] => 7
[display_material_sum] => 11 379 285
[display_work_sum] => 1 200 106
[display_total_sum] => 12 579 391
)
1
12 579 391₽
Работа:1 200 106 ₽
Материалы:11 379 285 ₽
Дни:7
stdClass Object
(
[id] => 174
[attribute_id] => 3
[name] => Брус
[material_modifier] => 1
[work_modifier] => 1
[options] => Array
(
[0] => 150 мм
[1] => 180 мм
[2] => 200 мм
)
[days] => [7,8,9]
[material_price] => [5127,6152,7367]
[work_price] => [1602,1922,2115]
[image] => https://akademik-stroy.ru/wp-content/uploads/materials/brus.jpg
[area_modifier] => 249.71
[parent_name] => Стены 1 этаж (несущие)
[parent_id] => 3
[material_sum] => 1536316
[work_sum] => 400035
[total_sum] => 1936351
[total_days] => 7
[display_material_sum] => 1 536 316
[display_work_sum] => 400 035
[display_total_sum] => 1 936 351
)
1
1 936 351₽
Работа:400 035 ₽
Материалы:1 536 316 ₽
Дни:7
stdClass Object
(
[id] => 175
[attribute_id] => 3
[name] => Газобетон
[material_modifier] => 1
[work_modifier] => 1
[options] => Array
(
[0] => 300 мм
[1] => 375 мм
[2] => 400 мм
[3] => 500 мм
[4] => 600 мм
)
[days] => [29,31,35,37,44]
[material_price] => [4298,5573,6356,7288,9119]
[work_price] => [4538,5251,5926,6733,7195]
[image] => https://akademik-stroy.ru/wp-content/uploads/materials/gazobeton.jpg
[area_modifier] => 249.71
[parent_name] => Стены 1 этаж (несущие)
[parent_id] => 3
[material_sum] => 1287904
[work_sum] => 1133184
[total_sum] => 2421088
[total_days] => 29
[display_material_sum] => 1 287 904
[display_work_sum] => 1 133 184
[display_total_sum] => 2 421 088
)
1
2 421 088₽
Работа:1 133 184 ₽
Материалы:1 287 904 ₽
Дни:29
stdClass Object
(
[id] => 176
[attribute_id] => 3
[name] => Блок
[material_modifier] => 1
[work_modifier] => 1
[options] => Array
(
[0] => 300 мм
[1] => 375 мм
[2] => 400 мм
[3] => 500 мм
[4] => 600 мм
)
[days] => [29,31,35,37,44]
[material_price] => [2698,3973,4356,6588,7119]
[work_price] => [5038,5851,6426,8733,9195]
[image] => https://akademik-stroy.ru/wp-content/uploads/materials/blok.jpg
[area_modifier] => 249.71
[parent_name] => Стены 1 этаж (несущие)
[parent_id] => 3
[material_sum] => 808461
[work_sum] => 1258039
[total_sum] => 2066500
[total_days] => 29
[display_material_sum] => 808 461
[display_work_sum] => 1 258 039
[display_total_sum] => 2 066 500
)
1
2 066 500₽
Работа:1 258 039 ₽
Материалы:808 461 ₽
Дни:29
stdClass Object
(
[id] => 177
[attribute_id] => 3
[name] => Газосиликатный блок
[material_modifier] => 1
[work_modifier] => 1
[options] => Array
(
[0] => 300 мм
[1] => 375 мм
[2] => 400 мм
[3] => 500 мм
[4] => 600 мм
)
[days] => [29,31,35,37,44]
[material_price] => [4298,5573,6356,7288,9119]
[work_price] => [4538,5251,5926,6733,7195]
[image] => https://akademik-stroy.ru/wp-content/uploads/materials/gazosilikatnyj-blok.jpg
[area_modifier] => 249.71
[parent_name] => Стены 1 этаж (несущие)
[parent_id] => 3
[material_sum] => 1287904
[work_sum] => 1133184
[total_sum] => 2421088
[total_days] => 29
[display_material_sum] => 1 287 904
[display_work_sum] => 1 133 184
[display_total_sum] => 2 421 088
)
1
2 421 088₽
Работа:1 133 184 ₽
Материалы:1 287 904 ₽
Дни:29
stdClass Object
(
[id] => 178
[attribute_id] => 3
[name] => Керамзитобетонный блок
[material_modifier] => 1
[work_modifier] => 1
[options] => Array
(
[0] => 300 мм
[1] => 375 мм
[2] => 400 мм
[3] => 500 мм
[4] => 600 мм
)
[days] => [23,23,24,25,28]
[material_price] => [3641,4298,5693,7613,9612]
[work_price] => [5737,5737,6903,7958,8901]
[image] => https://akademik-stroy.ru/wp-content/uploads/materials/keramzitobetonnyj-blok.jpg
[area_modifier] => 249.71
[parent_name] => Стены 1 этаж (несущие)
[parent_id] => 3
[material_sum] => 1091033
[work_sum] => 1432586
[total_sum] => 2523619
[total_days] => 23
[display_material_sum] => 1 091 033
[display_work_sum] => 1 432 586
[display_total_sum] => 2 523 619
)
1
2 523 619₽
Работа:1 432 586 ₽
Материалы:1 091 033 ₽
Дни:23
stdClass Object
(
[id] => 179
[attribute_id] => 3
[name] => Деревянные
[material_modifier] => 1
[work_modifier] => 1
[options] => Array
(
[0] => 180 мм
[1] => 220 мм
[2] => 260 мм
[3] => 320 мм
)
[days] => [7,8,9,10]
[material_price] => [7950,9458,11961,14472]
[work_price] => [4037,4925,5812,7207]
[image] => https://akademik-stroy.ru/wp-content/uploads/materials/derevyannye.jpg
[area_modifier] => 249.71
[parent_name] => Стены 1 этаж (несущие)
[parent_id] => 3
[material_sum] => 2382233
[work_sum] => 1008079
[total_sum] => 3390312
[total_days] => 7
[display_material_sum] => 2 382 233
[display_work_sum] => 1 008 079
[display_total_sum] => 3 390 312
)
1
3 390 312₽
Работа:1 008 079 ₽
Материалы:2 382 233 ₽
Дни:7
stdClass Object
(
[id] => 181
[attribute_id] => 3
[name] => Камень
[material_modifier] => 1
[work_modifier] => 1
[options] => Array
(
[0] => 300 мм
[1] => 400 мм
[2] => 500 мм
[3] => 600 мм
)
[days] => [25,27,31,34]
[material_price] => [5262,6844,8330,9815]
[work_price] => [8331,9135,10427,11069]
[image] => https://akademik-stroy.ru/wp-content/uploads/materials/kamen.jpg
[area_modifier] => 249.71
[parent_name] => Стены 1 этаж (несущие)
[parent_id] => 3
[material_sum] => 1576769
[work_sum] => 2080334
[total_sum] => 3657103
[total_days] => 25
[display_material_sum] => 1 576 769
[display_work_sum] => 2 080 334
[display_total_sum] => 3 657 103
)
1
3 657 103₽
Работа:2 080 334 ₽
Материалы:1 576 769 ₽
Дни:25
stdClass Object
(
[id] => 182
[attribute_id] => 3
[name] => Каркасно-щитовые
[material_modifier] => 1
[work_modifier] => 1
[options] => Array
(
[0] => 150 мм
[1] => 200 мм
[2] => 250 мм
[3] => 300 мм
[4] => 350 мм
[5] => 400 мм
)
[days] => [15,16,17,18,19,20]
[material_price] => [2379,2639,2898,3458,3601,4175]
[work_price] => [2538,2820,3134,3483,4062,5642]
[image] => https://akademik-stroy.ru/wp-content/uploads/materials/karkasno-shchitovye.jpg
[area_modifier] => 249.71
[parent_name] => Стены 1 этаж (несущие)
[parent_id] => 3
[material_sum] => 712872
[work_sum] => 633764
[total_sum] => 1346636
[total_days] => 15
[display_material_sum] => 712 872
[display_work_sum] => 633 764
[display_total_sum] => 1 346 636
)
1
1 346 636₽
Работа:633 764 ₽
Материалы:712 872 ₽
Дни:15
stdClass Object
(
[id] => 183
[attribute_id] => 3
[name] => Рубленные
[material_modifier] => 1
[work_modifier] => 1
[options] => Array
(
[0] => 150 мм
[1] => 200 мм
[2] => 250 мм
[3] => 300 мм
[4] => 350 мм
[5] => 400 мм
)
[days] => [15,16,17,18,17,18]
[material_price] => [35950,50267,60583,75900,80217,100533]
[work_price] => [9612,12816,16020,19224,22428,25632]
[image] => https://akademik-stroy.ru/wp-content/uploads/materials/rublennye.jpg
[area_modifier] => 249.71
[parent_name] => Стены 1 этаж (несущие)
[parent_id] => 3
[material_sum] => 10772489
[work_sum] => 2400213
[total_sum] => 13172702
[total_days] => 15
[display_material_sum] => 10 772 489
[display_work_sum] => 2 400 213
[display_total_sum] => 13 172 702
)
1
13 172 702₽
Работа:2 400 213 ₽
Материалы:10 772 489 ₽
Дни:15
stdClass Object
(
[id] => 185
[attribute_id] => 3
[name] => Теплоблок
[material_modifier] => 1
[work_modifier] => 1
[options] => Array
(
[0] => 300 мм (с облицовкой, не покрашенный)
[1] => 400 мм (с облицовкой, не покрашенный)
[2] => 300 мм (с облицовкой, покрашенный)
[3] => 400 мм (с облицовкой, покрашенный)
)
[days] => [15,16,15,16]
[material_price] => [2888,3729,3957,4258]
[work_price] => [2564,3229,2949,3713]
[image] => https://akademik-stroy.ru/wp-content/uploads/materials/teploblok.jpg
[area_modifier] => 249.71
[parent_name] => Стены 1 этаж (несущие)
[parent_id] => 3
[material_sum] => 865395
[work_sum] => 640256
[total_sum] => 1505651
[total_days] => 15
[display_material_sum] => 865 395
[display_work_sum] => 640 256
[display_total_sum] => 1 505 651
)
1
1 505 651₽
Работа:640 256 ₽
Материалы:865 395 ₽
Дни:15
stdClass Object
(
[id] => 186
[attribute_id] => 3
[name] => Арболитовые блоки
[material_modifier] => 1
[work_modifier] => 1
[options] => Array
(
[0] => 300 мм
[1] => 400 мм
[2] => 600 мм
)
[days] => [19,22,27]
[material_price] => [3210,4475,5852]
[work_price] => [4214,4788,5866]
[image] => https://akademik-stroy.ru/wp-content/uploads/materials/arbolitovye-bloki.png
[area_modifier] => 249.71
[parent_name] => Стены 1 этаж (несущие)
[parent_id] => 3
[material_sum] => 961883
[work_sum] => 1052278
[total_sum] => 2014161
[total_days] => 19
[display_material_sum] => 961 883
[display_work_sum] => 1 052 278
[display_total_sum] => 2 014 161
)
1
2 014 161₽
Работа:1 052 278 ₽
Материалы:961 883 ₽
Дни:19
stdClass Object
(
[id] => 187
[attribute_id] => 3
[name] => Полистиролбетон
[material_modifier] => 1
[work_modifier] => 1
[options] => Array
(
[0] => 300 мм
[1] => 400 мм
[2] => 600 мм
)
[days] => [29,31,35]
[material_price] => [2798,4573,5256]
[work_price] => [5038,5851,6426]
[image] => https://akademik-stroy.ru/wp-content/uploads/materials/polistirolbeton.jpg
[area_modifier] => 249.71
[parent_name] => Стены 1 этаж (несущие)
[parent_id] => 3
[material_sum] => 838426
[work_sum] => 1258039
[total_sum] => 2096465
[total_days] => 29
[display_material_sum] => 838 426
[display_work_sum] => 1 258 039
[display_total_sum] => 2 096 465
)
1
2 096 465₽
Работа:1 258 039 ₽
Материалы:838 426 ₽
Дни:29
stdClass Object
(
[id] => 188
[attribute_id] => 3
[name] => Шлакоблок
[material_modifier] => 1
[work_modifier] => 1
[options] => Array
(
[0] => 400 мм
[1] => 600 мм
)
[days] => [15,16]
[material_price] => [2391,3471]
[work_price] => [2642,3662]
[image] => https://akademik-stroy.ru/wp-content/uploads/materials/shlakoblok.jpg
[area_modifier] => 249.71
[parent_name] => Стены 1 этаж (несущие)
[parent_id] => 3
[material_sum] => 716468
[work_sum] => 659734
[total_sum] => 1376202
[total_days] => 15
[display_material_sum] => 716 468
[display_work_sum] => 659 734
[display_total_sum] => 1 376 202
)
1
1 376 202₽
Работа:659 734 ₽
Материалы:716 468 ₽
Дни:15
stdClass Object
(
[id] => 189
[attribute_id] => 3
[name] => Теплая керамика
[material_modifier] => 1
[work_modifier] => 1
[options] => Array
(
[0] => 380 мм
[1] => 380 мм Thermo
[2] => 440 мм
[3] => 510 мм
)
[days] => [23,23,24,25]
[material_price] => [4510,5098,6093,8013]
[work_price] => [4737,4937,5903,6958]
[image] => https://akademik-stroy.ru/wp-content/uploads/materials/teplaya-keramika.jpg
[area_modifier] => 249.71
[parent_name] => Стены 1 этаж (несущие)
[parent_id] => 3
[material_sum] => 1351431
[work_sum] => 1182876
[total_sum] => 2534307
[total_days] => 23
[display_material_sum] => 1 351 431
[display_work_sum] => 1 182 876
[display_total_sum] => 2 534 307
)
1
2 534 307₽
Работа:1 182 876 ₽
Материалы:1 351 431 ₽
Дни:23
stdClass Object
(
[id] => 190
[attribute_id] => 3
[name] => Несъемная опалубка
[material_modifier] => 1
[work_modifier] => 1
[options] => Array
(
[0] => 200 мм
[1] => 250 мм
[2] => 300 мм
[3] => 350 мм
)
[days] => [15,17,19,21]
[material_price] => [3302,3902,4108,5008]
[work_price] => [2100,2100,2300,2534]
[image] => https://akademik-stroy.ru/wp-content/uploads/materials/nesemnaya-opalubka.jpg
[area_modifier] => 249.71
[parent_name] => Стены 1 этаж (несущие)
[parent_id] => 3
[material_sum] => 989451
[work_sum] => 524391
[total_sum] => 1513842
[total_days] => 15
[display_material_sum] => 989 451
[display_work_sum] => 524 391
[display_total_sum] => 1 513 842
)
1
1 513 842₽
Работа:524 391 ₽
Материалы:989 451 ₽
Дни:15
stdClass Object
(
[id] => 251
[attribute_id] => 3
[name] => Бревно
[material_modifier] => 1
[work_modifier] => 1
[options] => Array
(
[0] => 260 мм
[1] => 320 мм
[2] => 360 мм
[3] => 400 мм
[4] => 500 мм
)
[days] => [7,8,9,10,11]
[material_price] => [1874,24045,26930,30972,38825]
[work_price] => [5046,6207,6952,7716,9723]
[image] => https://akademik-stroy.ru/wp-content/uploads/materials/sruby.jpg
[area_modifier] => 249.71
[parent_name] => Стены 1 этаж (несущие)
[parent_id] => 3
[material_sum] => 561548
[work_sum] => 1260037
[total_sum] => 1821585
[total_days] => 7
[display_material_sum] => 561 548
[display_work_sum] => 1 260 037
[display_total_sum] => 1 821 585
)
1
1 821 585₽
Работа:1 260 037 ₽
Материалы:561 548 ₽
Дни:7
stdClass Object
(
[id] => 7
[attribute_id] => 4
[name] => Деревянные балки
[material_modifier] => 1
[work_modifier] => 1
[options] => Array
(
[0] => без утепления
[1] => утепление 200 мм
[2] => утепление 250 мм
[3] => утепление 300 мм
[4] => утепление 350 мм
[5] => утепление 400 мм
[6] => утепление 450 мм
[7] => утепление 500 мм
)
[days] => [8,9,9,9,11,12,13,14]
[material_price] => [1634,2042,2344,2947,3149,3652,3354,3557]
[work_price] => [1230,1339,1393,1426,1460,1513,1587,1620]
[image] => https://akademik-stroy.ru/wp-content/uploads/materials/derevyannye-balki.png
[area_modifier] => 249.71
[parent_name] => Перекрытие первого этажа
[parent_id] => 4
[material_sum] => 489631
[work_sum] => 307143
[total_sum] => 796774
[total_days] => 8
[display_material_sum] => 489 631
[display_work_sum] => 307 143
[display_total_sum] => 796 774
)
1
796 774₽
Работа:307 143 ₽
Материалы:489 631 ₽
Дни:8
stdClass Object
(
[id] => 8
[attribute_id] => 4
[name] => Сборные ж/б плиты
[material_modifier] => 1
[work_modifier] => 1
[options] => Array
(
[0] => без утепления
[1] => утепление 150 мм
[2] => утепление 200 мм
[3] => утепление 250 мм
[4] => утепление 300 мм
[5] => утепление 350 мм
[6] => утепление 400 мм
[7] => утепление 450 мм
[8] => утепление 500 мм
)
[days] => [13,15,15,15,15,15,15,15,15]
[material_price] => [3067,5577,5928,6679,7730,8782,9833,10884,11935]
[work_price] => [1520,1956,2102,2247,2392,2537,2684,2829,2974]
[image] => https://akademik-stroy.ru/wp-content/uploads/materials/sbornye-zh-b-plity-2.jpg
[area_modifier] => 249.71
[parent_name] => Перекрытие первого этажа
[parent_id] => 4
[material_sum] => 919033
[work_sum] => 379559
[total_sum] => 1298592
[total_days] => 13
[display_material_sum] => 919 033
[display_work_sum] => 379 559
[display_total_sum] => 1 298 592
)
1
1 298 592₽
Работа:379 559 ₽
Материалы:919 033 ₽
Дни:13
stdClass Object
(
[id] => 89
[attribute_id] => 4
[name] => Монолитная ж/б плита
[material_modifier] => 1
[work_modifier] => 1
[options] => Array
(
[0] => без утепления
[1] => утепление 150 мм
[2] => утепление 200 мм
[3] => утепление 250 мм
[4] => утепление 300 мм
[5] => утепление 350 мм
[6] => утепление 400 мм
[7] => утепление 450 мм
[8] => утепление 500 мм
)
[days] => [18,20,20,20,20,20,20,20,20]
[material_price] => [4837,6572,7224,7375,79426,8177,8728,9180,10031]
[work_price] => [3348,3921,4112,4302,4493,4684,4875,5066,5256]
[image] => https://akademik-stroy.ru/wp-content/uploads/materials/monolitnaya-zh-b-plita-2.jpg
[area_modifier] => 249.71
[parent_name] => Перекрытие первого этажа
[parent_id] => 4
[material_sum] => 1449417
[work_sum] => 836029
[total_sum] => 2285446
[total_days] => 18
[display_material_sum] => 1 449 417
[display_work_sum] => 836 029
[display_total_sum] => 2 285 446
)
1
2 285 446₽
Работа:836 029 ₽
Материалы:1 449 417 ₽
Дни:18
stdClass Object
(
[id] => 10
[attribute_id] => 5
[name] => Пеноблок
[material_modifier] => 1
[work_modifier] => 1
[options] => Array
(
[0] => 300 мм
[1] => 400 мм
[2] => 500 мм
[3] => 600 мм
)
[days] => [29,31,34,39]
[material_price] => [3000,4000,4500,4937]
[work_price] => [5033,5805,6400,8710]
[image] => https://akademik-stroy.ru/wp-content/uploads/materials/penoblok.jpg
[area_modifier] => 96.24
[parent_name] => Стены 2 этаж (несущие)
[parent_id] => 5
[material_sum] => 346464
[work_sum] => 484376
[total_sum] => 830840
[total_days] => 29
[display_material_sum] => 346 464
[display_work_sum] => 484 376
[display_total_sum] => 830 840
)
1
830 840₽
Работа:484 376 ₽
Материалы:346 464 ₽
Дни:29
stdClass Object
(
[id] => 90
[attribute_id] => 5
[name] => Керамический блок
[material_modifier] => 1
[work_modifier] => 1
[options] => Array
(
[0] => 380 мм
[1] => 380 мм Thermo
[2] => 440 мм
[3] => 510 мм
)
[days] => [23,23,24,25]
[material_price] => [4510,5098,6093,8013]
[work_price] => [4737,4937,5903,6958]
[image] => https://akademik-stroy.ru/wp-content/uploads/materials/keramicheskij-blok.jpg
[area_modifier] => 96.24
[parent_name] => Стены 2 этаж (несущие)
[parent_id] => 5
[material_sum] => 520851
[work_sum] => 455889
[total_sum] => 976740
[total_days] => 23
[display_material_sum] => 520 851
[display_work_sum] => 455 889
[display_total_sum] => 976 740
)
1
976 740₽
Работа:455 889 ₽
Материалы:520 851 ₽
Дни:23
stdClass Object
(
[id] => 91
[attribute_id] => 5
[name] => Кирпич
[material_modifier] => 1
[work_modifier] => 1
[options] => Array
(
[0] => Кирпич 250 мм
[1] => Кирпич 380 мм
[2] => Кирпич 510 мм
[3] => Кирпич 640 мм
[4] => Кирпич 770 мм
)
[days] => [30,30,31,33,36]
[material_price] => [5500,7142,9206,10171,12235]
[work_price] => [8736,10041,12018,15240,18462]
[image] => https://akademik-stroy.ru/wp-content/uploads/materials/kirpich.jpg
[area_modifier] => 96.24
[parent_name] => Стены 2 этаж (несущие)
[parent_id] => 5
[material_sum] => 635184
[work_sum] => 840753
[total_sum] => 1475937
[total_days] => 30
[display_material_sum] => 635 184
[display_work_sum] => 840 753
[display_total_sum] => 1 475 937
)
1
1 475 937₽
Работа:840 753 ₽
Материалы:635 184 ₽
Дни:30
stdClass Object
(
[id] => 92
[attribute_id] => 5
[name] => Монолитные
[material_modifier] => 1
[work_modifier] => 1
[options] => Array
(
[0] => 150 мм
[1] => 200 мм
[2] => 250 мм
[3] => 300 мм
[4] => 350 мм
[5] => 400 мм
)
[days] => [45,46,47,49,50,53]
[material_price] => [6545,7876,10175,12011,13908,15204]
[work_price] => [5106,6444,7698,8552,9807,11461]
[image] => https://akademik-stroy.ru/wp-content/uploads/materials/monolitnye.jpg
[area_modifier] => 96.24
[parent_name] => Стены 2 этаж (несущие)
[parent_id] => 5
[material_sum] => 755869
[work_sum] => 491401
[total_sum] => 1247270
[total_days] => 45
[display_material_sum] => 755 869
[display_work_sum] => 491 401
[display_total_sum] => 1 247 270
)
1
1 247 270₽
Работа:491 401 ₽
Материалы:755 869 ₽
Дни:45
stdClass Object
(
[id] => 93
[attribute_id] => 5
[name] => Клееный брус
[material_modifier] => 1
[work_modifier] => 1
[options] => Array
(
[0] => 160 мм
[1] => 175 мм
[2] => 200 мм
[3] => 215 мм
[4] => 240 мм
[5] => 270 мм
[6] => 282 мм
)
[days] => [24,28,32,37,40,42,48]
[material_price] => [16975,18773,19950,20545,21599,22159,23275]
[work_price] => [4806,5287,5815,6397,7036,7740,8514]
[image] => https://akademik-stroy.ru/wp-content/uploads/materials/kleenyj-brus.jpg
[area_modifier] => 96.24
[parent_name] => Стены 2 этаж (несущие)
[parent_id] => 5
[material_sum] => 1960409
[work_sum] => 462529
[total_sum] => 2422938
[total_days] => 24
[display_material_sum] => 1 960 409
[display_work_sum] => 462 529
[display_total_sum] => 2 422 938
)
1
2 422 938₽
Работа:462 529 ₽
Материалы:1 960 409 ₽
Дни:24
stdClass Object
(
[id] => 94
[attribute_id] => 5
[name] => Каркасные
[material_modifier] => 1
[work_modifier] => 1
[options] => Array
(
[0] => 150 мм
[1] => 200 мм
[2] => 250 мм
[3] => 300 мм
)
[days] => [15,16,17,18]
[material_price] => [2379,2639,2898,3258]
[work_price] => [2418,2686,2985,3716]
[image] => https://akademik-stroy.ru/wp-content/uploads/materials/karkasnye.jpg
[area_modifier] => 96.24
[parent_name] => Стены 2 этаж (несущие)
[parent_id] => 5
[material_sum] => 274746
[work_sum] => 232708
[total_sum] => 507454
[total_days] => 15
[display_material_sum] => 274 746
[display_work_sum] => 232 708
[display_total_sum] => 507 454
)
1
507 454₽
Работа:232 708 ₽
Материалы:274 746 ₽
Дни:15
stdClass Object
(
[id] => 95
[attribute_id] => 5
[name] => СИП-панели
[material_modifier] => 1
[work_modifier] => 1
[options] => Array
(
[0] => 120 мм
[1] => 170 мм
[2] => 220 мм
)
[days] => [7,7,7]
[material_price] => [1210,1856,2292]
[work_price] => [1410,1551,1706]
[image] => https://akademik-stroy.ru/wp-content/uploads/materials/sip-paneli.jpg
[area_modifier] => 96.24
[parent_name] => Стены 2 этаж (несущие)
[parent_id] => 5
[material_sum] => 139740
[work_sum] => 135698
[total_sum] => 275438
[total_days] => 7
[display_material_sum] => 139 740
[display_work_sum] => 135 698
[display_total_sum] => 275 438
)
1
275 438₽
Работа:135 698 ₽
Материалы:139 740 ₽
Дни:7
stdClass Object
(
[id] => 96
[attribute_id] => 5
[name] => Сухой брус
[material_modifier] => 1
[work_modifier] => 1
[options] => Array
(
[0] => 150 мм
[1] => 180 мм
[2] => 200 мм
)
[days] => [7,8,9]
[material_price] => [6010,7190,8709]
[work_price] => [3204,3845,4229]
[image] => https://akademik-stroy.ru/wp-content/uploads/materials/suhoj-brus.jpg
[area_modifier] => 96.24
[parent_name] => Стены 2 этаж (несущие)
[parent_id] => 5
[material_sum] => 694083
[work_sum] => 308353
[total_sum] => 1002436
[total_days] => 7
[display_material_sum] => 694 083
[display_work_sum] => 308 353
[display_total_sum] => 1 002 436
)
1
1 002 436₽
Работа:308 353 ₽
Материалы:694 083 ₽
Дни:7
stdClass Object
(
[id] => 97
[attribute_id] => 5
[name] => Профилированный брус
[material_modifier] => 1
[work_modifier] => 1
[options] => Array
(
[0] => 150 мм
[1] => 180 мм
[2] => 200 мм
)
[days] => [7,8,9]
[material_price] => [8190,9228,10051]
[work_price] => [3845,4614,5075]
[image] => https://akademik-stroy.ru/wp-content/uploads/materials/profilirovannyj-brus.jpg
[area_modifier] => 96.24
[parent_name] => Стены 2 этаж (несущие)
[parent_id] => 5
[material_sum] => 945847
[work_sum] => 370043
[total_sum] => 1315890
[total_days] => 7
[display_material_sum] => 945 847
[display_work_sum] => 370 043
[display_total_sum] => 1 315 890
)
1
1 315 890₽
Работа:370 043 ₽
Материалы:945 847 ₽
Дни:7
stdClass Object
(
[id] => 98
[attribute_id] => 5
[name] => Оцилиндрованное бревно
[material_modifier] => 1
[work_modifier] => 1
[options] => Array
(
[0] => 180 мм
[1] => 220 мм
[2] => 260 мм
[3] => 320 мм
)
[days] => [7,8,9,10]
[material_price] => [75190,9532,10868,13116]
[work_price] => [3845,4691,5535,6863]
[image] => https://akademik-stroy.ru/wp-content/uploads/materials/ocilindrovannoe-brevno-1.jpg
[area_modifier] => 96.24
[parent_name] => Стены 2 этаж (несущие)
[parent_id] => 5
[material_sum] => 8683543
[work_sum] => 370043
[total_sum] => 9053586
[total_days] => 7
[display_material_sum] => 8 683 543
[display_work_sum] => 370 043
[display_total_sum] => 9 053 586
)
1
9 053 586₽
Работа:370 043 ₽
Материалы:8 683 543 ₽
Дни:7
stdClass Object
(
[id] => 99
[attribute_id] => 5
[name] => Срубы
[material_modifier] => 1
[work_modifier] => 1
[options] => Array
(
[0] => 260 мм
[1] => 320 мм
[2] => 360 мм
[3] => 400 мм
[4] => 500 мм
)
[days] => [7,8,9,10,11]
[material_price] => [16175,23709,26314,29069,32167]
[work_price] => [4806,5911,6621,7349,9260]
[image] => https://akademik-stroy.ru/wp-content/uploads/materials/suhoj-brus.jpg
[area_modifier] => 96.24
[parent_name] => Стены 2 этаж (несущие)
[parent_id] => 5
[material_sum] => 1868018
[work_sum] => 462529
[total_sum] => 2330547
[total_days] => 7
[display_material_sum] => 1 868 018
[display_work_sum] => 462 529
[display_total_sum] => 2 330 547
)
1
2 330 547₽
Работа:462 529 ₽
Материалы:1 868 018 ₽
Дни:7
stdClass Object
(
[id] => 194
[attribute_id] => 5
[name] => Брус
[material_modifier] => 1
[work_modifier] => 1
[options] => Array
(
[0] => 150 мм
[1] => 180 мм
[2] => 200 мм
)
[days] => [10,13,15]
[material_price] => [5127,6152,7367]
[work_price] => [1602,1922,2115]
[image] => https://akademik-stroy.ru/wp-content/uploads/materials/brus.jpg
[area_modifier] => 96.24
[parent_name] => Стены 2 этаж (несущие)
[parent_id] => 5
[material_sum] => 592107
[work_sum] => 154176
[total_sum] => 746283
[total_days] => 10
[display_material_sum] => 592 107
[display_work_sum] => 154 176
[display_total_sum] => 746 283
)
1
746 283₽
Работа:154 176 ₽
Материалы:592 107 ₽
Дни:10
stdClass Object
(
[id] => 195
[attribute_id] => 5
[name] => Газобетон
[material_modifier] => 1
[work_modifier] => 1
[options] => Array
(
[0] => 300 мм
[1] => 375 мм
[2] => 400 мм
[3] => 500 мм
[4] => 600 мм
)
[days] => [29,31,35,37,44]
[material_price] => [4298,5573,6356,7288,9119]
[work_price] => [4538,5251,5926,6733,7195]
[image] => https://akademik-stroy.ru/wp-content/uploads/materials/gazobeton.jpg
[area_modifier] => 96.24
[parent_name] => Стены 2 этаж (несущие)
[parent_id] => 5
[material_sum] => 496367
[work_sum] => 436737
[total_sum] => 933104
[total_days] => 29
[display_material_sum] => 496 367
[display_work_sum] => 436 737
[display_total_sum] => 933 104
)
1
933 104₽
Работа:436 737 ₽
Материалы:496 367 ₽
Дни:29
stdClass Object
(
[id] => 196
[attribute_id] => 5
[name] => Блок
[material_modifier] => 1
[work_modifier] => 1
[options] => Array
(
[0] => 300 мм
[1] => 375 мм
[2] => 400 мм
[3] => 500 мм
[4] => 600 мм
)
[days] => [29,31,35,37,44]
[material_price] => [2698,3973,4356,6588,7119]
[work_price] => [5038,5851,6426,8733,9195]
[image] => https://akademik-stroy.ru/wp-content/uploads/materials/blok.jpg
[area_modifier] => 96.24
[parent_name] => Стены 2 этаж (несущие)
[parent_id] => 5
[material_sum] => 311587
[work_sum] => 484857
[total_sum] => 796444
[total_days] => 29
[display_material_sum] => 311 587
[display_work_sum] => 484 857
[display_total_sum] => 796 444
)
1
796 444₽
Работа:484 857 ₽
Материалы:311 587 ₽
Дни:29
stdClass Object
(
[id] => 197
[attribute_id] => 5
[name] => Газосиликатный блок
[material_modifier] => 1
[work_modifier] => 1
[options] => Array
(
[0] => 300 мм
[1] => 375 мм
[2] => 400 мм
[3] => 500 мм
[4] => 600 мм
)
[days] => [29,31,35,37,44]
[material_price] => [4298,5573,6356,7288,9119]
[work_price] => [4538,5251,5926,6733,7195]
[image] => https://akademik-stroy.ru/wp-content/uploads/materials/gazosilikatnyj-blok.jpg
[area_modifier] => 96.24
[parent_name] => Стены 2 этаж (несущие)
[parent_id] => 5
[material_sum] => 496367
[work_sum] => 436737
[total_sum] => 933104
[total_days] => 29
[display_material_sum] => 496 367
[display_work_sum] => 436 737
[display_total_sum] => 933 104
)
1
933 104₽
Работа:436 737 ₽
Материалы:496 367 ₽
Дни:29
stdClass Object
(
[id] => 198
[attribute_id] => 5
[name] => Керамзитобетонный блок
[material_modifier] => 1
[work_modifier] => 1
[options] => Array
(
[0] => 300 мм
[1] => 375 мм
[2] => 400 мм
[3] => 500 мм
[4] => 600 мм
)
[days] => [23,23,24,25,28]
[material_price] => [3641,4298,5693,7613,9612]
[work_price] => [5737,5737,6903,7958,8901]
[image] => https://akademik-stroy.ru/wp-content/uploads/materials/keramzitobetonnyj-blok.jpg
[area_modifier] => 96.24
[parent_name] => Стены 2 этаж (несущие)
[parent_id] => 5
[material_sum] => 420492
[work_sum] => 552129
[total_sum] => 972621
[total_days] => 23
[display_material_sum] => 420 492
[display_work_sum] => 552 129
[display_total_sum] => 972 621
)
1
972 621₽
Работа:552 129 ₽
Материалы:420 492 ₽
Дни:23
stdClass Object
(
[id] => 199
[attribute_id] => 5
[name] => Деревянные
[material_modifier] => 1
[work_modifier] => 1
[options] => Array
(
[0] => 180 мм
[1] => 220 мм
[2] => 260 мм
[3] => 320 мм
)
[days] => [7,8,9,10]
[material_price] => [7950,9458,11961,14472]
[work_price] => [4037,4925,5812,7207]
[image] => https://akademik-stroy.ru/wp-content/uploads/materials/derevyannye.jpg
[area_modifier] => 96.24
[parent_name] => Стены 2 этаж (несущие)
[parent_id] => 5
[material_sum] => 918130
[work_sum] => 388521
[total_sum] => 1306651
[total_days] => 7
[display_material_sum] => 918 130
[display_work_sum] => 388 521
[display_total_sum] => 1 306 651
)
1
1 306 651₽
Работа:388 521 ₽
Материалы:918 130 ₽
Дни:7
stdClass Object
(
[id] => 200
[attribute_id] => 5
[name] => Камень
[material_modifier] => 1
[work_modifier] => 1
[options] => Array
(
[0] => 300 мм
[1] => 400 мм
[2] => 500 мм
[3] => 600 мм
)
[days] => [25,27,31,34]
[material_price] => [5262,6844,8330,9815]
[work_price] => [8331,9135,10427,11069]
[image] => https://akademik-stroy.ru/wp-content/uploads/materials/kamen.jpg
[area_modifier] => 96.24
[parent_name] => Стены 2 этаж (несущие)
[parent_id] => 5
[material_sum] => 607698
[work_sum] => 801775
[total_sum] => 1409473
[total_days] => 25
[display_material_sum] => 607 698
[display_work_sum] => 801 775
[display_total_sum] => 1 409 473
)
1
1 409 473₽
Работа:801 775 ₽
Материалы:607 698 ₽
Дни:25
stdClass Object
(
[id] => 201
[attribute_id] => 5
[name] => Каркасно-щитовые
[material_modifier] => 1
[work_modifier] => 1
[options] => Array
(
[0] => 150 мм
[1] => 200 мм
[2] => 250 мм
[3] => 300 мм
[4] => 350 мм
[5] => 400 мм
)
[days] => [15,16,17,18,19,20]
[material_price] => [2379,2639,2898,3458,3601,4175]
[work_price] => [2538,2820,3134,3483,4062,5642]
[image] => https://akademik-stroy.ru/wp-content/uploads/materials/karkasno-shchitovye.jpg
[area_modifier] => 96.24
[parent_name] => Стены 2 этаж (несущие)
[parent_id] => 5
[material_sum] => 274746
[work_sum] => 244257
[total_sum] => 519003
[total_days] => 15
[display_material_sum] => 274 746
[display_work_sum] => 244 257
[display_total_sum] => 519 003
)
1
519 003₽
Работа:244 257 ₽
Материалы:274 746 ₽
Дни:15
stdClass Object
(
[id] => 202
[attribute_id] => 5
[name] => Рубленные
[material_modifier] => 1
[work_modifier] => 1
[options] => Array
(
[0] => 150 мм
[1] => 200 мм
[2] => 250 мм
[3] => 300 мм
[4] => 350 мм
[5] => 400 мм
)
[days] => [15,16,17,18,17,18]
[material_price] => [35950,50267,60583,75900,80217,100533]
[work_price] => [9612,12816,16020,19224,22428,25632]
[image] => https://akademik-stroy.ru/wp-content/uploads/materials/rublennye.jpg
[area_modifier] => 96.24
[parent_name] => Стены 2 этаж (несущие)
[parent_id] => 5
[material_sum] => 4151794
[work_sum] => 925059
[total_sum] => 5076853
[total_days] => 15
[display_material_sum] => 4 151 794
[display_work_sum] => 925 059
[display_total_sum] => 5 076 853
)
1
5 076 853₽
Работа:925 059 ₽
Материалы:4 151 794 ₽
Дни:15
stdClass Object
(
[id] => 203
[attribute_id] => 5
[name] => Теплоблок
[material_modifier] => 1
[work_modifier] => 1
[options] => Array
(
[0] => 300 мм (с облицовкой, не покрашенный)
[1] => 400 мм (с облицовкой, не покрашенный)
[2] => 300 мм (с облицовкой, покрашенный)
[3] => 400 мм (с облицовкой, покрашенный)
)
[days] => [15,16,15,16]
[material_price] => [2888,3729,3957,4258]
[work_price] => [2564,3229,2949,3713]
[image] => https://akademik-stroy.ru/wp-content/uploads/materials/teploblok.jpg
[area_modifier] => 96.24
[parent_name] => Стены 2 этаж (несущие)
[parent_id] => 5
[material_sum] => 333529
[work_sum] => 246759
[total_sum] => 580288
[total_days] => 15
[display_material_sum] => 333 529
[display_work_sum] => 246 759
[display_total_sum] => 580 288
)
1
580 288₽
Работа:246 759 ₽
Материалы:333 529 ₽
Дни:15
stdClass Object
(
[id] => 204
[attribute_id] => 5
[name] => Арболитовые блоки
[material_modifier] => 1
[work_modifier] => 1
[options] => Array
(
[0] => 300 мм
[1] => 400 мм
[2] => 600 мм
)
[days] => [19,22,27]
[material_price] => [3210,4475,5852]
[work_price] => [4214,4788,5866]
[image] => https://akademik-stroy.ru/wp-content/uploads/materials/arbolitovye-bloki.png
[area_modifier] => 96.24
[parent_name] => Стены 2 этаж (несущие)
[parent_id] => 5
[material_sum] => 370716
[work_sum] => 405555
[total_sum] => 776271
[total_days] => 19
[display_material_sum] => 370 716
[display_work_sum] => 405 555
[display_total_sum] => 776 271
)
1
776 271₽
Работа:405 555 ₽
Материалы:370 716 ₽
Дни:19
stdClass Object
(
[id] => 205
[attribute_id] => 5
[name] => Полистиролбетон
[material_modifier] => 1
[work_modifier] => 1
[options] => Array
(
[0] => 300 мм
[1] => 400 мм
[2] => 600 мм
)
[days] => [29,31,35]
[material_price] => [2798,4573,5256]
[work_price] => [5038,5851,6426]
[image] => https://akademik-stroy.ru/wp-content/uploads/materials/polistirolbeton.jpg
[area_modifier] => 96.24
[parent_name] => Стены 2 этаж (несущие)
[parent_id] => 5
[material_sum] => 323135
[work_sum] => 484857
[total_sum] => 807992
[total_days] => 29
[display_material_sum] => 323 135
[display_work_sum] => 484 857
[display_total_sum] => 807 992
)
1
807 992₽
Работа:484 857 ₽
Материалы:323 135 ₽
Дни:29
stdClass Object
(
[id] => 206
[attribute_id] => 5
[name] => Шлакоблок
[material_modifier] => 1
[work_modifier] => 1
[options] => Array
(
[0] => 400 мм
[1] => 600 мм
)
[days] => [15,16]
[material_price] => [2391,3471]
[work_price] => [2642,3662]
[image] => https://akademik-stroy.ru/wp-content/uploads/materials/shlakoblok.jpg
[area_modifier] => 96.24
[parent_name] => Стены 2 этаж (несущие)
[parent_id] => 5
[material_sum] => 276132
[work_sum] => 254266
[total_sum] => 530398
[total_days] => 15
[display_material_sum] => 276 132
[display_work_sum] => 254 266
[display_total_sum] => 530 398
)
1
530 398₽
Работа:254 266 ₽
Материалы:276 132 ₽
Дни:15
stdClass Object
(
[id] => 245
[attribute_id] => 5
[name] => Теплая керамика
[material_modifier] => 1
[work_modifier] => 1
[options] => Array
(
[0] => 380 мм
[1] => 380 мм Thermo
[2] => 440 мм
[3] => 510 мм
)
[days] => [10,10,11,12]
[material_price] => [4510,5098,6093,8013]
[work_price] => [4737,4937,5903,6958]
[image] => https://akademik-stroy.ru/wp-content/uploads/materials/teplaya-keramika.jpg
[area_modifier] => 96.24
[parent_name] => Стены 2 этаж (несущие)
[parent_id] => 5
[material_sum] => 520851
[work_sum] => 455889
[total_sum] => 976740
[total_days] => 10
[display_material_sum] => 520 851
[display_work_sum] => 455 889
[display_total_sum] => 976 740
)
1
976 740₽
Работа:455 889 ₽
Материалы:520 851 ₽
Дни:10
stdClass Object
(
[id] => 246
[attribute_id] => 5
[name] => Несъемная опалубка
[material_modifier] => 1
[work_modifier] => 1
[options] => Array
(
[0] => 380 мм
[1] => 380 мм Thermo
[2] => 440 мм
[3] => 510 мм
)
[days] => [10,10,11,12]
[material_price] => [3302,3902,4108,5008]
[work_price] => [2100,2100,2300,2534]
[image] => https://akademik-stroy.ru/wp-content/uploads/materials/nesemnaya-opalubka.jpg
[area_modifier] => 96.24
[parent_name] => Стены 2 этаж (несущие)
[parent_id] => 5
[material_sum] => 381341
[work_sum] => 202104
[total_sum] => 583445
[total_days] => 10
[display_material_sum] => 381 341
[display_work_sum] => 202 104
[display_total_sum] => 583 445
)
1
583 445₽
Работа:202 104 ₽
Материалы:381 341 ₽
Дни:10
stdClass Object
(
[id] => 254
[attribute_id] => 5
[name] => Бревно
[material_modifier] => 1
[work_modifier] => 1
[options] => Array
(
[0] => 260 мм
[1] => 320 мм
[2] => 360 мм
[3] => 400 мм
[4] => 500 мм
)
[days] => [7,8,9,10,11]
[material_price] => [1874,24045,26930,30972,38825]
[work_price] => [5046,6207,6952,7716,9723]
[image] => https://akademik-stroy.ru/wp-content/uploads/materials/sruby.jpg
[area_modifier] => 96.24
[parent_name] => Стены 2 этаж (несущие)
[parent_id] => 5
[material_sum] => 216425
[work_sum] => 485627
[total_sum] => 702052
[total_days] => 7
[display_material_sum] => 216 425
[display_work_sum] => 485 627
[display_total_sum] => 702 052
)
1
702 052₽
Работа:485 627 ₽
Материалы:216 425 ₽
Дни:7
stdClass Object
(
[id] => 11
[attribute_id] => 6
[name] => Деревянные балки
[material_modifier] => 1
[work_modifier] => 1
[options] => Array
(
[0] => без утепления
[1] => утепление 200 мм
[2] => утепление 250 мм
[3] => утепление 300 мм
[4] => утепление 350 мм
[5] => утепление 400 мм
[6] => утепление 450 мм
[7] => утепление 500 мм
)
[days] => [8,9,9,9,11,12,13,14]
[material_price] => [1634,2042,2344,2947,3149,3652,3354,3557]
[work_price] => [1230,1339,1393,1426,1460,1513,1587,1620]
[image] => https://akademik-stroy.ru/wp-content/uploads/materials/derevyannye-balki.png
[area_modifier] => 96.24
[parent_name] => Перекрытие второго этажа
[parent_id] => 6
[material_sum] => 188707
[work_sum] => 118375
[total_sum] => 307082
[total_days] => 8
[display_material_sum] => 188 707
[display_work_sum] => 118 375
[display_total_sum] => 307 082
)
1
307 082₽
Работа:118 375 ₽
Материалы:188 707 ₽
Дни:8
stdClass Object
(
[id] => 12
[attribute_id] => 6
[name] => Сборные ж/б плиты
[material_modifier] => 1
[work_modifier] => 1
[options] => Array
(
[0] => без утепления
[1] => утепление 150 мм
[2] => утепление 200 мм
[3] => утепление 250 мм
[4] => утепление 300 мм
[5] => утепление 350 мм
[6] => утепление 400 мм
[7] => утепление 450 мм
[8] => утепление 500 мм
)
[days] => [13,15,15,15,15,15,15,15,15]
[material_price] => [3067,5577,5928,6679,7730,8782,9833,10884,11935]
[work_price] => [1520,1956,2102,2247,2392,2537,2684,2829,2974]
[image] => https://akademik-stroy.ru/wp-content/uploads/materials/sbornye-zh-b-plity-2.jpg
[area_modifier] => 96.24
[parent_name] => Перекрытие второго этажа
[parent_id] => 6
[material_sum] => 354202
[work_sum] => 146285
[total_sum] => 500487
[total_days] => 13
[display_material_sum] => 354 202
[display_work_sum] => 146 285
[display_total_sum] => 500 487
)
1
500 487₽
Работа:146 285 ₽
Материалы:354 202 ₽
Дни:13
stdClass Object
(
[id] => 100
[attribute_id] => 6
[name] => Монолитная ж/б плита
[material_modifier] => 1
[work_modifier] => 1
[options] => Array
(
[0] => без утепления
[1] => утепление 150 мм
[2] => утепление 200 мм
[3] => утепление 250 мм
[4] => утепление 300 мм
[5] => утепление 350 мм
[6] => утепление 400 мм
[7] => утепление 450 мм
[8] => утепление 500 мм
)
[days] => [18,20,20,20,20,20,20,20,20]
[material_price] => [4837,6572,7224,7375,79426,8177,8728,9180,10031]
[work_price] => [3348,3921,4112,4302,4493,4684,4875,5066,5256]
[image] => https://akademik-stroy.ru/wp-content/uploads/materials/monolitnaya-zh-b-plita-2.jpg
[area_modifier] => 96.24
[parent_name] => Перекрытие второго этажа
[parent_id] => 6
[material_sum] => 558615
[work_sum] => 322212
[total_sum] => 880827
[total_days] => 18
[display_material_sum] => 558 615
[display_work_sum] => 322 212
[display_total_sum] => 880 827
)
1
880 827₽
Работа:322 212 ₽
Материалы:558 615 ₽
Дни:18
stdClass Object
(
[id] => 164
[attribute_id] => 37
[name] => Металлочерепица
[material_modifier] => 1
[work_modifier] => 1
[options] => Array
(
)
[days] => [20]
[material_price] => [6112]
[work_price] => [5726]
[image] => https://akademik-stroy.ru/wp-content/uploads/materials/metallocherepica.jpg
[area_modifier] => 249.71
[parent_name] => Крыша (Скатная)
[parent_id] => 37
[material_sum] => 1831473
[work_sum] => 1429839
[total_sum] => 3261312
[total_days] => 20
[display_material_sum] => 1 831 473
[display_work_sum] => 1 429 839
[display_total_sum] => 3 261 312
)
1
3 261 312₽
Работа:1 429 839 ₽
Материалы:1 831 473 ₽
Дни:20
stdClass Object
(
[id] => 165
[attribute_id] => 37
[name] => Гибкая черепица
[material_modifier] => 1
[work_modifier] => 1
[options] => Array
(
)
[days] => [20]
[material_price] => [6980]
[work_price] => [5950]
[image] => https://akademik-stroy.ru/wp-content/uploads/materials/gibkaya-cherepica.jpg
[area_modifier] => 249.71
[parent_name] => Крыша (Скатная)
[parent_id] => 37
[material_sum] => 2091571
[work_sum] => 1485775
[total_sum] => 3577346
[total_days] => 20
[display_material_sum] => 2 091 571
[display_work_sum] => 1 485 775
[display_total_sum] => 3 577 346
)
1
3 577 346₽
Работа:1 485 775 ₽
Материалы:2 091 571 ₽
Дни:20
stdClass Object
(
[id] => 166
[attribute_id] => 37
[name] => Цементно-песчаная черепица
[material_modifier] => 1
[work_modifier] => 1
[options] => Array
(
)
[days] => [20]
[material_price] => [10560]
[work_price] => [9456]
[image] => https://akademik-stroy.ru/wp-content/uploads/materials/cementno-peschanaya-cherepica.jpg
[area_modifier] => 249.71
[parent_name] => Крыша (Скатная)
[parent_id] => 37
[material_sum] => 3164325
[work_sum] => 2361258
[total_sum] => 5525583
[total_days] => 20
[display_material_sum] => 3 164 325
[display_work_sum] => 2 361 258
[display_total_sum] => 5 525 583
)
1
5 525 583₽
Работа:2 361 258 ₽
Материалы:3 164 325 ₽
Дни:20
stdClass Object
(
[id] => 167
[attribute_id] => 37
[name] => Композитная черепица
[material_modifier] => 1
[work_modifier] => 1
[options] => Array
(
)
[days] => [20]
[material_price] => [9506]
[work_price] => [8905]
[image] => https://akademik-stroy.ru/wp-content/uploads/materials/kompozitnaya-cherepica.jpg
[area_modifier] => 249.71
[parent_name] => Крыша (Скатная)
[parent_id] => 37
[material_sum] => 2848492
[work_sum] => 2223668
[total_sum] => 5072160
[total_days] => 20
[display_material_sum] => 2 848 492
[display_work_sum] => 2 223 668
[display_total_sum] => 5 072 160
)
1
5 072 160₽
Работа:2 223 668 ₽
Материалы:2 848 492 ₽
Дни:20
stdClass Object
(
[id] => 168
[attribute_id] => 37
[name] => Керамическая черепица
[material_modifier] => 1
[work_modifier] => 1
[options] => Array
(
)
[days] => [20]
[material_price] => [12750]
[work_price] => [9456]
[image] => https://akademik-stroy.ru/wp-content/uploads/materials/keramicheskaya-cherepica.jpg
[area_modifier] => 249.71
[parent_name] => Крыша (Скатная)
[parent_id] => 37
[material_sum] => 3820563
[work_sum] => 2361258
[total_sum] => 6181821
[total_days] => 20
[display_material_sum] => 3 820 563
[display_work_sum] => 2 361 258
[display_total_sum] => 6 181 821
)
1
6 181 821₽
Работа:2 361 258 ₽
Материалы:3 820 563 ₽
Дни:20
stdClass Object
(
[id] => 169
[attribute_id] => 37
[name] => Металлическая фальцевая
[material_modifier] => 1
[work_modifier] => 1
[options] => Array
(
)
[days] => [20]
[material_price] => [8550]
[work_price] => [8190]
[image] => https://akademik-stroy.ru/wp-content/uploads/materials/metallicheskaya-falcevaya.jpg
[area_modifier] => 249.71
[parent_name] => Крыша (Скатная)
[parent_id] => 37
[material_sum] => 2562025
[work_sum] => 2045125
[total_sum] => 4607150
[total_days] => 20
[display_material_sum] => 2 562 025
[display_work_sum] => 2 045 125
[display_total_sum] => 4 607 150
)
1
4 607 150₽
Работа:2 045 125 ₽
Материалы:2 562 025 ₽
Дни:20
stdClass Object
(
[id] => 170
[attribute_id] => 37
[name] => Медная фальцевая
[material_modifier] => 1
[work_modifier] => 1
[options] => Array
(
)
[days] => [20]
[material_price] => [20450]
[work_price] => [16750]
[image] => https://akademik-stroy.ru/wp-content/uploads/materials/mednaya-falcevaya.jpg
[area_modifier] => 249.71
[parent_name] => Крыша (Скатная)
[parent_id] => 37
[material_sum] => 6127883
[work_sum] => 4182643
[total_sum] => 10310526
[total_days] => 20
[display_material_sum] => 6 127 883
[display_work_sum] => 4 182 643
[display_total_sum] => 10 310 526
)
1
10 310 526₽
Работа:4 182 643 ₽
Материалы:6 127 883 ₽
Дни:20
stdClass Object
(
[id] => 171
[attribute_id] => 37
[name] => Зеленая кровля
[material_modifier] => 1
[work_modifier] => 1
[options] => Array
(
)
[days] => [20]
[material_price] => [19850]
[work_price] => [16780]
[image] => https://akademik-stroy.ru/wp-content/uploads/materials/zelenaya-krovlya.jpg
[area_modifier] => 249.71
[parent_name] => Крыша (Скатная)
[parent_id] => 37
[material_sum] => 5948092
[work_sum] => 4190134
[total_sum] => 10138226
[total_days] => 20
[display_material_sum] => 5 948 092
[display_work_sum] => 4 190 134
[display_total_sum] => 10 138 226
)
1
10 138 226₽
Работа:4 190 134 ₽
Материалы:5 948 092 ₽
Дни:20
stdClass Object
(
[id] => 172
[attribute_id] => 37
[name] => Профлист
[material_modifier] => 1
[work_modifier] => 1
[options] => Array
(
)
[days] => [20]
[material_price] => [3450]
[work_price] => [3750]
[image] => https://akademik-stroy.ru/wp-content/uploads/materials/proflist.jpg
[area_modifier] => 249.71
[parent_name] => Крыша (Скатная)
[parent_id] => 37
[material_sum] => 1033799
[work_sum] => 936413
[total_sum] => 1970212
[total_days] => 20
[display_material_sum] => 1 033 799
[display_work_sum] => 936 413
[display_total_sum] => 1 970 212
)
1
1 970 212₽
Работа:936 413 ₽
Материалы:1 033 799 ₽
Дни:20
stdClass Object
(
[id] => 51
[attribute_id] => 26
[name] => Есть
[material_modifier] => 1
[work_modifier] => 1
[options] => Array
(
[0] => Профиль 58 мм, 3-камерный, стеклопакет 2-камерный до 32 мм
[1] => Профиль 60 мм, 4-камерный, стеклопакет 2-камерный до 32 мм
[2] => Профиль 70 мм, 5-камерный, стеклопакет 2-камерный до 40 мм
[3] => Профиль 72 мм, 5-камерный, стеклопакет 2-камерный до 40 мм
[4] => Алюминиевые окна Alutech профиль 72 мм, стеклопакет 2-камерный
)
[days] => [3,3,3,3,3]
[material_price] => [1339,2124,2867,3023,29596]
[work_price] => [635,647,659,668,2579]
[image] => https://akademik-stroy.ru/wp-content/uploads/materials/okna.jpg
[area_modifier] => 280.74
[parent_name] => Окна
[parent_id] => 26
[material_sum] => 451093
[work_sum] => 178270
[total_sum] => 629363
[total_days] => 3
[display_material_sum] => 451 093
[display_work_sum] => 178 270
[display_total_sum] => 629 363
)
1
629 363₽
Работа:178 270 ₽
Материалы:451 093 ₽
Дни:3
stdClass Object
(
[id] => 52
[attribute_id] => 26
[name] => Нет
[material_modifier] => 2
[work_modifier] => 1
[options] =>
[days] => null
[material_price] => null
[work_price] => null
[image] => https://akademik-stroy.ru/wp-content/uploads/materials/okna.jpg
[area_modifier] => 280.74
[parent_name] => Окна
[parent_id] => 26
[material_sum] => 0
[work_sum] => 0
[total_sum] => 0
[total_days] => 0
[display_material_sum] => 0
[display_work_sum] => 0
[display_total_sum] => 0
)
1
0₽
Работа:0 ₽
Материалы:0 ₽
Дни:0
stdClass Object
(
[id] => 53
[attribute_id] => 27
[name] => Есть
[material_modifier] => 1
[work_modifier] => 1
[options] => Array
(
)
[days] => [1]
[material_price] => [10000]
[work_price] => [5500]
[image] => https://akademik-stroy.ru/wp-content/uploads/materials/dveri.jpg
[area_modifier] => 1
[parent_name] => Двери входные
[parent_id] => 27
[material_sum] => 12000
[work_sum] => 5500
[total_sum] => 17500
[total_days] => 1
[display_material_sum] => 12 000
[display_work_sum] => 5 500
[display_total_sum] => 17 500
)
1
17 500₽
Работа:5 500 ₽
Материалы:12 000 ₽
Дни:1
stdClass Object
(
[id] => 54
[attribute_id] => 27
[name] => Нет
[material_modifier] => 1
[work_modifier] => 1
[options] => Array
(
)
[days] => [0]
[material_price] => [0]
[work_price] => [0]
[image] => https://akademik-stroy.ru/wp-content/uploads/materials/dveri.jpg
[area_modifier] => 1
[parent_name] => Двери входные
[parent_id] => 27
[material_sum] => 0
[work_sum] => 0
[total_sum] => 0
[total_days] => 0
[display_material_sum] => 0
[display_work_sum] => 0
[display_total_sum] => 0
)
1
0₽
Работа:0 ₽
Материалы:0 ₽
Дни:0
stdClass Object
(
[id] => 25
[attribute_id] => 13
[name] => Нет
[material_modifier] => 1
[work_modifier] => 1
[options] => Array
(
)
[days] => [0]
[material_price] => [0]
[work_price] => [0]
[image] => https://akademik-stroy.ru/wp-content/uploads/materials/mineralovata-krov.jpg
[area_modifier] => 249.71
[parent_name] => Утепление кровли (Мансарда)
[parent_id] => 13
[material_sum] => 0
[work_sum] => 0
[total_sum] => 0
[total_days] => 0
[display_material_sum] => 0
[display_work_sum] => 0
[display_total_sum] => 0
)
1
0₽
Работа:0 ₽
Материалы:0 ₽
Дни:0
stdClass Object
(
[id] => 26
[attribute_id] => 13
[name] => Минераловатный
[material_modifier] => 1
[work_modifier] => 1
[options] => Array
(
[0] => 50 мм
[1] => 100 мм
[2] => 150 мм
[3] => 200 мм
[4] => 250 мм
[5] => 300 мм
[6] => 350 мм
[7] => 400 мм
[8] => 450 мм
[9] => 500 мм
)
[days] => [5,5,6,6,6,7,7,7,8,8]
[material_price] => [1158,1414,1772,2230,3602,4060,4974,5890,6408,7718]
[work_price] => [650,846,846,1098,1318,1450,1596,1754,1930,2122]
[image] => https://akademik-stroy.ru/wp-content/uploads/materials/mineralovata-krov.jpg
[area_modifier] => 249.71
[parent_name] => Утепление кровли (Мансарда)
[parent_id] => 13
[material_sum] => 346997
[work_sum] => 162312
[total_sum] => 509309
[total_days] => 5
[display_material_sum] => 346 997
[display_work_sum] => 162 312
[display_total_sum] => 509 309
)
1
509 309₽
Работа:162 312 ₽
Материалы:346 997 ₽
Дни:5
stdClass Object
(
[id] => 123
[attribute_id] => 13
[name] => Эковата (целлюлозная вата)
[material_modifier] => 1
[work_modifier] => 1
[options] => Array
(
[0] => 50 мм
[1] => 100 мм
[2] => 150 мм
[3] => 200 мм
[4] => 250 мм
[5] => 300 мм
[6] => 350 мм
[7] => 400 мм
[8] => 450 мм
[9] => 500 мм
)
[days] => [3,3,4,4,4,5,5,5,5,5]
[material_price] => [820,1638,2458,3276,5734,6552,8190,9828,11466,13104]
[work_price] => [234,304,304,396,474,522,574,632,694,764]
[image] => https://akademik-stroy.ru/wp-content/uploads/materials/ehkovata-krov.jpg
[area_modifier] => 249.71
[parent_name] => Утепление кровли (Мансарда)
[parent_id] => 13
[material_sum] => 245715
[work_sum] => 58432
[total_sum] => 304147
[total_days] => 3
[display_material_sum] => 245 715
[display_work_sum] => 58 432
[display_total_sum] => 304 147
)
1
304 147₽
Работа:58 432 ₽
Материалы:245 715 ₽
Дни:3
stdClass Object
(
[id] => 124
[attribute_id] => 13
[name] => Экструдированный пенополистирол
[material_modifier] => 1
[work_modifier] => 1
[options] => Array
(
[0] => 50 мм
[1] => 100 мм
[2] => 150 мм
[3] => 200 мм
[4] => 250 мм
[5] => 300 мм
[6] => 350 мм
[7] => 400 мм
[8] => 450 мм
[9] => 500 мм
)
[days] => [3,3,4,4,4,5,5,5,5,6]
[material_price] => [1146,2292,3438,4584,8020,9166,11458,13750,16040,18332]
[work_price] => [390,508,508,660,790,870,958,1052,1158,1274]
[image] => https://akademik-stroy.ru/wp-content/uploads/materials/epps-krov.jpg
[area_modifier] => 249.71
[parent_name] => Утепление кровли (Мансарда)
[parent_id] => 13
[material_sum] => 343401
[work_sum] => 97387
[total_sum] => 440788
[total_days] => 3
[display_material_sum] => 343 401
[display_work_sum] => 97 387
[display_total_sum] => 440 788
)
1
440 788₽
Работа:97 387 ₽
Материалы:343 401 ₽
Дни:3
stdClass Object
(
[id] => 125
[attribute_id] => 13
[name] => ПСБ (ППС-пенополистирол)
[material_modifier] => 1
[work_modifier] => 1
[options] => Array
(
[0] => 50 мм
[1] => 100 мм
[2] => 150 мм
[3] => 200 мм
[4] => 250 мм
[5] => 300 мм
[6] => 350 мм
[7] => 400 мм
[8] => 450 мм
[9] => 500 мм
)
[days] => [3,3,4,4,4,5,5,5,5,6]
[material_price] => [476,954,1430,1906,3336,3814,4766,5720,6674,7626]
[work_price] => [390,508,508,660,790,870,958,1052,1158,1274]
[image] => https://akademik-stroy.ru/wp-content/uploads/materials/psb-krov.jpg
[area_modifier] => 249.71
[parent_name] => Утепление кровли (Мансарда)
[parent_id] => 13
[material_sum] => 142634
[work_sum] => 97387
[total_sum] => 240021
[total_days] => 3
[display_material_sum] => 142 634
[display_work_sum] => 97 387
[display_total_sum] => 240 021
)
1
240 021₽
Работа:97 387 ₽
Материалы:142 634 ₽
Дни:3
stdClass Object
(
[id] => 126
[attribute_id] => 13
[name] => ППУ (Пенополиуретан)
[material_modifier] => 1
[work_modifier] => 1
[options] => Array
(
[0] => 50 мм
[1] => 100 мм
[2] => 150 мм
[3] => 200 мм
[4] => 250 мм
[5] => 300 мм
[6] => 350 мм
[7] => 400 мм
[8] => 450 мм
[9] => 500 мм
)
[days] => [2,2,3,3,3,3,4,4,4,4]
[material_price] => [2080,4160,6240,8320,14560,16640,20800,24960,29120,33280]
[work_price] => [234,304,304,396,474,522,574,632,694,764]
[image] => https://akademik-stroy.ru/wp-content/uploads/materials/ppu-krov.jpg
[area_modifier] => 249.71
[parent_name] => Утепление кровли (Мансарда)
[parent_id] => 13
[material_sum] => 623276
[work_sum] => 58432
[total_sum] => 681708
[total_days] => 2
[display_material_sum] => 623 276
[display_work_sum] => 58 432
[display_total_sum] => 681 708
)
1
681 708₽
Работа:58 432 ₽
Материалы:623 276 ₽
Дни:2
stdClass Object
(
[id] => 127
[attribute_id] => 13
[name] => PIR-плиты (пенополиизоцианурат)
[material_modifier] => 1
[work_modifier] => 1
[options] => Array
(
[0] => 50 мм
[1] => 100 мм
[2] => 150 мм
[3] => 200 мм
[4] => 250 мм
[5] => 300 мм
[6] => 350 мм
[7] => 400 мм
[8] => 450 мм
[9] => 500 мм
)
[days] => [3,3,4,4,4,5,5,5,5,6]
[material_price] => [2646,5290,7936,10580,18516,21162,26452,31742,37032,42324]
[work_price] => [390,508,508,660,790,870,958,1052,1158,1274]
[image] => https://akademik-stroy.ru/wp-content/uploads/materials/pir-krov.jpg
[area_modifier] => 249.71
[parent_name] => Утепление кровли (Мансарда)
[parent_id] => 13
[material_sum] => 792879
[work_sum] => 97387
[total_sum] => 890266
[total_days] => 3
[display_material_sum] => 792 879
[display_work_sum] => 97 387
[display_total_sum] => 890 266
)
1
890 266₽
Работа:97 387 ₽
Материалы:792 879 ₽
Дни:3
stdClass Object
(
[id] => 27
[attribute_id] => 14
[name] => Нет
[material_modifier] => 1
[work_modifier] => 1
[options] => Array
(
)
[days] => [0]
[material_price] => [0]
[work_price] => [0]
[image] => https://akademik-stroy.ru/wp-content/uploads/materials/mansardnye-okna-2.jpg
[area_modifier] => 1
[parent_name] => Мансардные окна
[parent_id] => 14
[material_sum] => 0
[work_sum] => 0
[total_sum] => 0
[total_days] => 0
[display_material_sum] => 0
[display_work_sum] => 0
[display_total_sum] => 0
)
1
0₽
Работа:0 ₽
Материалы:0 ₽
Дни:0
stdClass Object
(
[id] => 28
[attribute_id] => 14
[name] => Есть
[material_modifier] => 1
[work_modifier] => 1
[options] => Array
(
[0] => 55x78
[1] => 55x98
)
[days] => [6,7]
[material_price] => [47480,68700]
[work_price] => [17900,19500]
[image] => https://akademik-stroy.ru/wp-content/uploads/materials/mansardnye-okna-2.jpg
[area_modifier] => 1
[parent_name] => Мансардные окна
[parent_id] => 14
[material_sum] => 56976
[work_sum] => 17900
[total_sum] => 74876
[total_days] => 6
[display_material_sum] => 56 976
[display_work_sum] => 17 900
[display_total_sum] => 74 876
)
1
74 876₽
Работа:17 900 ₽
Материалы:56 976 ₽
Дни:6
stdClass Object
(
[id] => 29
[attribute_id] => 15
[name] => Нет
[material_modifier] => 1
[work_modifier] => 1
[options] => Array
(
)
[days] => [0]
[material_price] => [0]
[work_price] => [0]
[image] => https://akademik-stroy.ru/wp-content/uploads/materials/sofit.jpg
[area_modifier] => 249.71
[parent_name] => Подшивка кровли
[parent_id] => 15
[material_sum] => 0
[work_sum] => 0
[total_sum] => 0
[total_days] => 0
[display_material_sum] => 0
[display_work_sum] => 0
[display_total_sum] => 0
)
1
0₽
Работа:0 ₽
Материалы:0 ₽
Дни:0
stdClass Object
(
[id] => 30
[attribute_id] => 15
[name] => Есть
[material_modifier] => 1
[work_modifier] => 1
[options] => Array
(
[0] => Софиты (ПВХ)
[1] => Cedral
[2] => ДПК
[3] => Планкен
)
[days] => [7,10,9,8]
[material_price] => [1803,3213,3025,3150]
[work_price] => [1529,2188,2075,1923]
[image] => https://akademik-stroy.ru/wp-content/uploads/materials/sofit.jpg
[area_modifier] => 249.71
[parent_name] => Подшивка кровли
[parent_id] => 15
[material_sum] => 540273
[work_sum] => 381807
[total_sum] => 922080
[total_days] => 7
[display_material_sum] => 540 273
[display_work_sum] => 381 807
[display_total_sum] => 922 080
)
1
922 080₽
Работа:381 807 ₽
Материалы:540 273 ₽
Дни:7
stdClass Object
(
[id] => 31
[attribute_id] => 16
[name] => Нет
[material_modifier] => 1
[work_modifier] => 1
[options] => Array
(
)
[days] => [0]
[material_price] => [0]
[work_price] => [0]
[image] => https://akademik-stroy.ru/wp-content/uploads/materials/docke-standard-pvh.jpg
[area_modifier] => 249.71
[parent_name] => Водосточная система
[parent_id] => 16
[material_sum] => 0
[work_sum] => 0
[total_sum] => 0
[total_days] => 0
[display_material_sum] => 0
[display_work_sum] => 0
[display_total_sum] => 0
)
1
0₽
Работа:0 ₽
Материалы:0 ₽
Дни:0
stdClass Object
(
[id] => 32
[attribute_id] => 16
[name] => Есть
[material_modifier] => 1
[work_modifier] => 1
[options] => Array
(
[0] => Döcke Standard (ПВХ)
[1] => Металлические Grand Line
)
[days] => [7,7]
[material_price] => [1842,2703]
[work_price] => [1491,1529]
[image] => https://akademik-stroy.ru/wp-content/uploads/materials/docke-standard-pvh.jpg
[area_modifier] => 249.71
[parent_name] => Водосточная система
[parent_id] => 16
[material_sum] => 551959
[work_sum] => 372318
[total_sum] => 924277
[total_days] => 7
[display_material_sum] => 551 959
[display_work_sum] => 372 318
[display_total_sum] => 924 277
)
1
924 277₽
Работа:372 318 ₽
Материалы:551 959 ₽
Дни:7
stdClass Object
(
[id] => 33
[attribute_id] => 17
[name] => Нет
[material_modifier] => 1
[work_modifier] => 1
[options] => Array
(
)
[days] => [0]
[material_price] => [0]
[work_price] => [0]
[image] => https://akademik-stroy.ru/wp-content/uploads/materials/mineralovata.jpg
[area_modifier] => 345.96
[parent_name] => Дополнительное утепление наружных стен
[parent_id] => 17
[material_sum] => 0
[work_sum] => 0
[total_sum] => 0
[total_days] => 0
[display_material_sum] => 0
[display_work_sum] => 0
[display_total_sum] => 0
)
1
0₽
Работа:0 ₽
Материалы:0 ₽
Дни:0
stdClass Object
(
[id] => 34
[attribute_id] => 17
[name] => Минераловатный
[material_modifier] => 1
[work_modifier] => 1
[options] => Array
(
[0] => 50 мм
[1] => 100 мм
[2] => 150 мм
[3] => 200 мм
[4] => 250 мм
[5] => 300 мм
)
[days] => [7,8,10,12,14,15]
[material_price] => [3437,3613,3803,3915,4601,4830]
[work_price] => [2325,2423,2523,2749,2859,3025]
[image] => https://akademik-stroy.ru/wp-content/uploads/materials/mineralovata.jpg
[area_modifier] => 345.96
[parent_name] => Дополнительное утепление наружных стен
[parent_id] => 17
[material_sum] => 1426877
[work_sum] => 804357
[total_sum] => 2231234
[total_days] => 7
[display_material_sum] => 1 426 877
[display_work_sum] => 804 357
[display_total_sum] => 2 231 234
)
1
2 231 234₽
Работа:804 357 ₽
Материалы:1 426 877 ₽
Дни:7
stdClass Object
(
[id] => 128
[attribute_id] => 17
[name] => Эковата (целлюлозная вата)
[material_modifier] => 1
[work_modifier] => 1
[options] => Array
(
[0] => 50 мм
[1] => 100 мм
[2] => 150 мм
[3] => 200 мм
[4] => 250 мм
[5] => 300 мм
)
[days] => [3,4,5,6,7,8]
[material_price] => [810,1319,1629,1838,2267,2676]
[work_price] => [1225,1323,1423,1549,1659,1725]
[image] => https://akademik-stroy.ru/wp-content/uploads/materials/ehkovata.jpg
[area_modifier] => 345.96
[parent_name] => Дополнительное утепление наружных стен
[parent_id] => 17
[material_sum] => 336273
[work_sum] => 423801
[total_sum] => 760074
[total_days] => 3
[display_material_sum] => 336 273
[display_work_sum] => 423 801
[display_total_sum] => 760 074
)
1
760 074₽
Работа:423 801 ₽
Материалы:336 273 ₽
Дни:3
stdClass Object
(
[id] => 129
[attribute_id] => 17
[name] => Экструдированный пенополистирол
[material_modifier] => 1
[work_modifier] => 1
[options] => Array
(
[0] => 50 мм
[1] => 100 мм
[2] => 150 мм
[3] => 200 мм
[4] => 250 мм
[5] => 300 мм
)
[days] => [5,6,7,8,9,10]
[material_price] => [4560,4300,5119,6292,7010,8583]
[work_price] => [1795,1954,2254,2330,2595,2735]
[image] => https://akademik-stroy.ru/wp-content/uploads/materials/epps.jpg
[area_modifier] => 345.96
[parent_name] => Дополнительное утепление наружных стен
[parent_id] => 17
[material_sum] => 1893093
[work_sum] => 620998
[total_sum] => 2514091
[total_days] => 5
[display_material_sum] => 1 893 093
[display_work_sum] => 620 998
[display_total_sum] => 2 514 091
)
1
2 514 091₽
Работа:620 998 ₽
Материалы:1 893 093 ₽
Дни:5
stdClass Object
(
[id] => 130
[attribute_id] => 17
[name] => ПСБ (ППС-пенополистирол)
[material_modifier] => 1
[work_modifier] => 1
[options] => Array
(
[0] => 50 мм
[1] => 100 мм
[2] => 150 мм
[3] => 200 мм
[4] => 250 мм
[5] => 300 мм
)
[days] => [5,6,7,8,9,10]
[material_price] => [4822,5200,5819,6292,7010,7583]
[work_price] => [1795,1954,2254,2330,2595,2735]
[image] => https://akademik-stroy.ru/wp-content/uploads/materials/psb.jpg
[area_modifier] => 345.96
[parent_name] => Дополнительное утепление наружных стен
[parent_id] => 17
[material_sum] => 2001863
[work_sum] => 620998
[total_sum] => 2622861
[total_days] => 5
[display_material_sum] => 2 001 863
[display_work_sum] => 620 998
[display_total_sum] => 2 622 861
)
1
2 622 861₽
Работа:620 998 ₽
Материалы:2 001 863 ₽
Дни:5
stdClass Object
(
[id] => 131
[attribute_id] => 17
[name] => ППУ (Пенополиуретан)
[material_modifier] => 1
[work_modifier] => 1
[options] => Array
(
[0] => 50 мм
[1] => 100 мм
[2] => 150 мм
[3] => 200 мм
[4] => 250 мм
[5] => 300 мм
)
[days] => [3,4,5,6,7,8]
[material_price] => [2860,3400,4219,4592,5010,5583]
[work_price] => [729,900,980,1120,1280,1530]
[image] => https://akademik-stroy.ru/wp-content/uploads/materials/ppu.jpg
[area_modifier] => 345.96
[parent_name] => Дополнительное утепление наружных стен
[parent_id] => 17
[material_sum] => 1187335
[work_sum] => 252205
[total_sum] => 1439540
[total_days] => 3
[display_material_sum] => 1 187 335
[display_work_sum] => 252 205
[display_total_sum] => 1 439 540
)
1
1 439 540₽
Работа:252 205 ₽
Материалы:1 187 335 ₽
Дни:3
stdClass Object
(
[id] => 132
[attribute_id] => 17
[name] => PIR-плиты (пенополиизоцианурат)
[material_modifier] => 1
[work_modifier] => 1
[options] => Array
(
[0] => 50 мм
[1] => 100 мм
[2] => 150 мм
[3] => 200 мм
[4] => 250 мм
[5] => 300 мм
)
[days] => [5,6,7,8,9,10]
[material_price] => [8323,15645,20968,25900,29258,30581]
[work_price] => [800,900,970,1150,1280,1330]
[image] => https://akademik-stroy.ru/wp-content/uploads/materials/pir.jpg
[area_modifier] => 345.96
[parent_name] => Дополнительное утепление наружных стен
[parent_id] => 17
[material_sum] => 3455310
[work_sum] => 276768
[total_sum] => 3732078
[total_days] => 5
[display_material_sum] => 3 455 310
[display_work_sum] => 276 768
[display_total_sum] => 3 732 078
)
1
3 732 078₽
Работа:276 768 ₽
Материалы:3 455 310 ₽
Дни:5
stdClass Object
(
[id] => 37
[attribute_id] => 19
[name] => Нет
[material_modifier] => 1
[work_modifier] => 1
[options] => Array
(
)
[days] => [0]
[material_price] => [0]
[work_price] => [0]
[image] => https://akademik-stroy.ru/wp-content/uploads/materials/imitaciya-brusa.jpg
[area_modifier] => 345.96
[parent_name] => Наружная отделка фасада
[parent_id] => 19
[material_sum] => 0
[work_sum] => 0
[total_sum] => 0
[total_days] => 0
[display_material_sum] => 0
[display_work_sum] => 0
[display_total_sum] => 0
)
1
0₽
Работа:0 ₽
Материалы:0 ₽
Дни:0
stdClass Object
(
[id] => 38
[attribute_id] => 19
[name] => Имитация бруса
[material_modifier] => 1
[work_modifier] => 1
[options] => Array
(
[0] => Сосна
[1] => Ель
[2] => Лиственница
)
[days] => [20,20,20]
[material_price] => [2994,2762,4954]
[work_price] => [1397,1231,1577]
[image] => https://akademik-stroy.ru/wp-content/uploads/materials/imitaciya-brusa.jpg
[area_modifier] => 345.96
[parent_name] => Наружная отделка фасада
[parent_id] => 19
[material_sum] => 1242965
[work_sum] => 483306
[total_sum] => 1726271
[total_days] => 20
[display_material_sum] => 1 242 965
[display_work_sum] => 483 306
[display_total_sum] => 1 726 271
)
1
1 726 271₽
Работа:483 306 ₽
Материалы:1 242 965 ₽
Дни:20
stdClass Object
(
[id] => 136
[attribute_id] => 19
[name] => Планкен
[material_modifier] => 1
[work_modifier] => 1
[options] => Array
(
[0] => Сосна
[1] => Ель
[2] => Лиственница
)
[days] => [20,20,20]
[material_price] => [3194,2862,5154]
[work_price] => [1537,1354,1735]
[image] => https://akademik-stroy.ru/wp-content/uploads/materials/planken.jpg
[area_modifier] => 345.96
[parent_name] => Наружная отделка фасада
[parent_id] => 19
[material_sum] => 1325995
[work_sum] => 531741
[total_sum] => 1857736
[total_days] => 20
[display_material_sum] => 1 325 995
[display_work_sum] => 531 741
[display_total_sum] => 1 857 736
)
1
1 857 736₽
Работа:531 741 ₽
Материалы:1 325 995 ₽
Дни:20
stdClass Object
(
[id] => 137
[attribute_id] => 19
[name] => Штукатурка
[material_modifier] => 1
[work_modifier] => 1
[options] => Array
(
[0] => Цементно-песчаная (минеральная)
[1] => Мокрый фасад
)
[days] => [35,35]
[material_price] => [2231,3938]
[work_price] => [1202,2422]
[image] => https://akademik-stroy.ru/wp-content/uploads/materials/shtukaturka.jpg
[area_modifier] => 345.96
[parent_name] => Наружная отделка фасада
[parent_id] => 19
[material_sum] => 926204
[work_sum] => 415844
[total_sum] => 1342048
[total_days] => 35
[display_material_sum] => 926 204
[display_work_sum] => 415 844
[display_total_sum] => 1 342 048
)
1
1 342 048₽
Работа:415 844 ₽
Материалы:926 204 ₽
Дни:35
stdClass Object
(
[id] => 138
[attribute_id] => 19
[name] => Облицовочный кирпич
[material_modifier] => 1
[work_modifier] => 1
[options] => Array
(
[0] => Керамический
[1] => Клинкерный
[2] => Ручной формовки
[3] => Гиперпрессованный
[4] => Силикатный кирпич
)
[days] => [45,45,45,45,45]
[material_price] => [8174,9148,1040,1257,5876]
[work_price] => [3240,3758,4536,4017,3369]
[image] => https://akademik-stroy.ru/wp-content/uploads/materials/oblicovochnyj-kirpich.jpg
[area_modifier] => 345.96
[parent_name] => Наружная отделка фасада
[parent_id] => 19
[material_sum] => 3393452
[work_sum] => 1120910
[total_sum] => 4514362
[total_days] => 45
[display_material_sum] => 3 393 452
[display_work_sum] => 1 120 910
[display_total_sum] => 4 514 362
)
1
4 514 362₽
Работа:1 120 910 ₽
Материалы:3 393 452 ₽
Дни:45
stdClass Object
(
[id] => 139
[attribute_id] => 19
[name] => Фасадная плитка
[material_modifier] => 1
[work_modifier] => 1
[options] => Array
(
[0] => Клинкерная
[1] => Керамическая
[2] => Плитка ручной формовки
)
[days] => [40,40,40]
[material_price] => [2974,1487,3470]
[work_price] => [3007,2592,3629]
[image] => https://akademik-stroy.ru/wp-content/uploads/materials/fasadnaya-plitka.jpg
[area_modifier] => 345.96
[parent_name] => Наружная отделка фасада
[parent_id] => 19
[material_sum] => 1234662
[work_sum] => 1040302
[total_sum] => 2274964
[total_days] => 40
[display_material_sum] => 1 234 662
[display_work_sum] => 1 040 302
[display_total_sum] => 2 274 964
)
1
2 274 964₽
Работа:1 040 302 ₽
Материалы:1 234 662 ₽
Дни:40
stdClass Object
(
[id] => 140
[attribute_id] => 19
[name] => Сайдинг
[material_modifier] => 1
[work_modifier] => 1
[options] => Array
(
[0] => Виниловый
[1] => Металлический
[2] => Фиброцементный
)
[days] => [20,20,20]
[material_price] => [1263,1944,4147]
[work_price] => [1263,1944,2074]
[image] => https://akademik-stroy.ru/wp-content/uploads/materials/sajding.jpg
[area_modifier] => 345.96
[parent_name] => Наружная отделка фасада
[parent_id] => 19
[material_sum] => 524337
[work_sum] => 436947
[total_sum] => 961284
[total_days] => 20
[display_material_sum] => 524 337
[display_work_sum] => 436 947
[display_total_sum] => 961 284
)
1
961 284₽
Работа:436 947 ₽
Материалы:524 337 ₽
Дни:20
stdClass Object
(
[id] => 141
[attribute_id] => 19
[name] => Камень
[material_modifier] => 1
[work_modifier] => 1
[options] => Array
(
[0] => Травертин
[1] => Дагестанский
[2] => Искусственный
[3] => Натуральный
[4] => Керамогранит
)
[days] => [45,45,45,45,45]
[material_price] => [4536,3888,2592,3240,2462]
[work_price] => [3240,3240,2462,3110,1944]
[image] => https://akademik-stroy.ru/wp-content/uploads/materials/kamen-1.jpg
[area_modifier] => 345.96
[parent_name] => Наружная отделка фасада
[parent_id] => 19
[material_sum] => 1883129
[work_sum] => 1120910
[total_sum] => 3004039
[total_days] => 45
[display_material_sum] => 1 883 129
[display_work_sum] => 1 120 910
[display_total_sum] => 3 004 039
)
1
3 004 039₽
Работа:1 120 910 ₽
Материалы:1 883 129 ₽
Дни:45
stdClass Object
(
[id] => 142
[attribute_id] => 19
[name] => Термопанели
[material_modifier] => 1
[work_modifier] => 1
[options] => Array
(
)
[days] => [20]
[material_price] => [6221]
[work_price] => [2333]
[image] => https://akademik-stroy.ru/wp-content/uploads/materials/termo.png
[area_modifier] => 345.96
[parent_name] => Наружная отделка фасада
[parent_id] => 19
[material_sum] => 2582661
[work_sum] => 807125
[total_sum] => 3389786
[total_days] => 20
[display_material_sum] => 2 582 661
[display_work_sum] => 807 125
[display_total_sum] => 3 389 786
)
1
3 389 786₽
Работа:807 125 ₽
Материалы:2 582 661 ₽
Дни:20
stdClass Object
(
[id] => 143
[attribute_id] => 19
[name] => Плитка HAUBERK
[material_modifier] => 1
[work_modifier] => 1
[options] => Array
(
)
[days] => [20]
[material_price] => [2786]
[work_price] => [1944]
[image] => https://akademik-stroy.ru/wp-content/uploads/materials/hauberk.jpg
[area_modifier] => 345.96
[parent_name] => Наружная отделка фасада
[parent_id] => 19
[material_sum] => 1156613
[work_sum] => 672546
[total_sum] => 1829159
[total_days] => 20
[display_material_sum] => 1 156 613
[display_work_sum] => 672 546
[display_total_sum] => 1 829 159
)
1
1 829 159₽
Работа:672 546 ₽
Материалы:1 156 613 ₽
Дни:20
stdClass Object
(
[id] => 144
[attribute_id] => 19
[name] => Фальцевый фасад
[material_modifier] => 1
[work_modifier] => 1
[options] => Array
(
)
[days] => [20]
[material_price] => [3240]
[work_price] => [2592]
[image] => https://akademik-stroy.ru/wp-content/uploads/materials/falcevyj-fasad.jpg
[area_modifier] => 345.96
[parent_name] => Наружная отделка фасада
[parent_id] => 19
[material_sum] => 1345092
[work_sum] => 896728
[total_sum] => 2241820
[total_days] => 20
[display_material_sum] => 1 345 092
[display_work_sum] => 896 728
[display_total_sum] => 2 241 820
)
1
2 241 820₽
Работа:896 728 ₽
Материалы:1 345 092 ₽
Дни:20
stdClass Object
(
[id] => 145
[attribute_id] => 19
[name] => Комбинированный
[material_modifier] => 1
[work_modifier] => 1
[options] => Array
(
)
[days] => [20]
[material_price] => [4629]
[work_price] => [3499]
[image] => https://akademik-stroy.ru/wp-content/uploads/materials/Kombinirovannyj.jpg
[area_modifier] => 345.96
[parent_name] => Наружная отделка фасада
[parent_id] => 19
[material_sum] => 1921739
[work_sum] => 1210514
[total_sum] => 3132253
[total_days] => 20
[display_material_sum] => 1 921 739
[display_work_sum] => 1 210 514
[display_total_sum] => 3 132 253
)
1
3 132 253₽
Работа:1 210 514 ₽
Материалы:1 921 739 ₽
Дни:20
stdClass Object
(
[id] => 257
[attribute_id] => 19
[name] => Японские фиброцементные
[material_modifier] => 1
[work_modifier] => 1
[options] => Array
(
)
[days] => [20]
[material_price] => [7043]
[work_price] => [2993]
[image] => https://akademik-stroy.ru/wp-content/uploads/materials/paneli.jpg
[area_modifier] => 345.96
[parent_name] => Наружная отделка фасада
[parent_id] => 19
[material_sum] => 2923916
[work_sum] => 1035458
[total_sum] => 3959374
[total_days] => 20
[display_material_sum] => 2 923 916
[display_work_sum] => 1 035 458
[display_total_sum] => 3 959 374
)
1
3 959 374₽
Работа:1 035 458 ₽
Материалы:2 923 916 ₽
Дни:20
stdClass Object
(
[id] => 258
[attribute_id] => 19
[name] => Панели Каньон
[material_modifier] => 1
[work_modifier] => 1
[options] => Array
(
)
[days] => [20]
[material_price] => [4543]
[work_price] => [2592]
[image] => https://akademik-stroy.ru/wp-content/uploads/materials/kanon.png
[area_modifier] => 345.96
[parent_name] => Наружная отделка фасада
[parent_id] => 19
[material_sum] => 1886036
[work_sum] => 896728
[total_sum] => 2782764
[total_days] => 20
[display_material_sum] => 1 886 036
[display_work_sum] => 896 728
[display_total_sum] => 2 782 764
)
1
2 782 764₽
Работа:896 728 ₽
Материалы:1 886 036 ₽
Дни:20
stdClass Object
(
[id] => 39
[attribute_id] => 20
[name] => Нет
[material_modifier] => 1
[work_modifier] => 1
[options] => Array
(
)
[days] => [0]
[material_price] => [0]
[work_price] => [0]
[image] => https://akademik-stroy.ru/wp-content/uploads/materials/terrasy.jpg
[area_modifier] => 30
[parent_name] => Террасы, крыльца, навесы
[parent_id] => 20
[material_sum] => 0
[work_sum] => 0
[total_sum] => 0
[total_days] => 0
[display_material_sum] => 0
[display_work_sum] => 0
[display_total_sum] => 0
)
1
0₽
Работа:0 ₽
Материалы:0 ₽
Дни:0
stdClass Object
(
[id] => 40
[attribute_id] => 20
[name] => Есть
[material_modifier] => 1
[work_modifier] => 1
[options] => Array
(
)
[days] => [5]
[material_price] => [10450]
[work_price] => [1950]
[image] => https://akademik-stroy.ru/wp-content/uploads/materials/terrasy.jpg
[area_modifier] => 30
[parent_name] => Террасы, крыльца, навесы
[parent_id] => 20
[material_sum] => 376200
[work_sum] => 58500
[total_sum] => 434700
[total_days] => 5
[display_material_sum] => 376 200
[display_work_sum] => 58 500
[display_total_sum] => 434 700
)
1
434 700₽
Работа:58 500 ₽
Материалы:376 200 ₽
Дни:5
stdClass Object
(
[id] => 41
[attribute_id] => 21
[name] => Нет
[material_modifier] => 1
[work_modifier] => 1
[options] => Array
(
)
[days] => [0]
[material_price] => [0]
[work_price] => [0]
[image] => https://akademik-stroy.ru/wp-content/uploads/materials/balkony.jpg
[area_modifier] => 30
[parent_name] => Балконы
[parent_id] => 21
[material_sum] => 0
[work_sum] => 0
[total_sum] => 0
[total_days] => 0
[display_material_sum] => 0
[display_work_sum] => 0
[display_total_sum] => 0
)
1
0₽
Работа:0 ₽
Материалы:0 ₽
Дни:0
stdClass Object
(
[id] => 42
[attribute_id] => 21
[name] => Есть
[material_modifier] => 1
[work_modifier] => 1
[options] => Array
(
)
[days] => [12]
[material_price] => [3600]
[work_price] => [1950]
[image] => https://akademik-stroy.ru/wp-content/uploads/materials/balkony.jpg
[area_modifier] => 30
[parent_name] => Балконы
[parent_id] => 21
[material_sum] => 129600
[work_sum] => 58500
[total_sum] => 188100
[total_days] => 12
[display_material_sum] => 129 600
[display_work_sum] => 58 500
[display_total_sum] => 188 100
)
1
188 100₽
Работа:58 500 ₽
Материалы:129 600 ₽
Дни:12
stdClass Object
(
[id] => 43
[attribute_id] => 22
[name] => Нет
[material_modifier] => 1
[work_modifier] => 1
[options] => Array
(
)
[days] => [0]
[material_price] => [0]
[work_price] => [0]
[image] => https://akademik-stroy.ru/wp-content/uploads/materials/uteplennaya.jpg
[area_modifier] => 249.71
[parent_name] => Отмостка
[parent_id] => 22
[material_sum] => 0
[work_sum] => 0
[total_sum] => 0
[total_days] => 0
[display_material_sum] => 0
[display_work_sum] => 0
[display_total_sum] => 0
)
1
0₽
Работа:0 ₽
Материалы:0 ₽
Дни:0
stdClass Object
(
[id] => 44
[attribute_id] => 22
[name] => Утепленная отмостка
[material_modifier] => 1
[work_modifier] => 1
[options] => Array
(
)
[days] => [15]
[material_price] => [2550]
[work_price] => [1750]
[image] => https://akademik-stroy.ru/wp-content/uploads/materials/uteplennaya.jpg
[area_modifier] => 249.71
[parent_name] => Отмостка
[parent_id] => 22
[material_sum] => 764113
[work_sum] => 436993
[total_sum] => 1201106
[total_days] => 15
[display_material_sum] => 764 113
[display_work_sum] => 436 993
[display_total_sum] => 1 201 106
)
1
1 201 106₽
Работа:436 993 ₽
Материалы:764 113 ₽
Дни:15
stdClass Object
(
[id] => 146
[attribute_id] => 22
[name] => Не утепленная отмостка
[material_modifier] => 1
[work_modifier] => 1
[options] => Array
(
)
[days] => [10]
[material_price] => [1650]
[work_price] => [1450]
[image] => https://akademik-stroy.ru/wp-content/uploads/materials/ne-uteplennaya.jpg
[area_modifier] => 249.71
[parent_name] => Отмостка
[parent_id] => 22
[material_sum] => 494426
[work_sum] => 362080
[total_sum] => 856506
[total_days] => 10
[display_material_sum] => 494 426
[display_work_sum] => 362 080
[display_total_sum] => 856 506
)
1
856 506₽
Работа:362 080 ₽
Материалы:494 426 ₽
Дни:10
stdClass Object
(
[id] => 45
[attribute_id] => 23
[name] => Нет
[material_modifier] => 1
[work_modifier] => 1
[options] => Array
(
)
[days] => [0]
[material_price] => [0]
[work_price] => [0]
[image] => https://akademik-stroy.ru/wp-content/uploads/materials/drenazh-2.jpg
[area_modifier] => 249.71
[parent_name] => Дренаж вокруг дома
[parent_id] => 23
[material_sum] => 0
[work_sum] => 0
[total_sum] => 0
[total_days] => 0
[display_material_sum] => 0
[display_work_sum] => 0
[display_total_sum] => 0
)
1
0₽
Работа:0 ₽
Материалы:0 ₽
Дни:0
stdClass Object
(
[id] => 46
[attribute_id] => 23
[name] => Есть
[material_modifier] => 1
[work_modifier] => 1
[options] => Array
(
)
[days] => [5]
[material_price] => [2366]
[work_price] => [1911]
[image] => https://akademik-stroy.ru/wp-content/uploads/materials/drenazh-2.jpg
[area_modifier] => 249.71
[parent_name] => Дренаж вокруг дома
[parent_id] => 23
[material_sum] => 708977
[work_sum] => 477196
[total_sum] => 1186173
[total_days] => 5
[display_material_sum] => 708 977
[display_work_sum] => 477 196
[display_total_sum] => 1 186 173
)
1
1 186 173₽
Работа:477 196 ₽
Материалы:708 977 ₽
Дни:5
stdClass Object
(
[id] => 47
[attribute_id] => 24
[name] => Нет
[material_modifier] => 1
[work_modifier] => 1
[options] => Array
(
)
[days] => [0]
[material_price] => [0]
[work_price] => [0]
[image] => https://akademik-stroy.ru/wp-content/uploads/materials/septik.jpg
[area_modifier] => 1
[parent_name] => Автономная канализация (септики)
[parent_id] => 24
[material_sum] => 0
[work_sum] => 0
[total_sum] => 0
[total_days] => 0
[display_material_sum] => 0
[display_work_sum] => 0
[display_total_sum] => 0
)
1
0₽
Работа:0 ₽
Материалы:0 ₽
Дни:0
stdClass Object
(
[id] => 48
[attribute_id] => 24
[name] => Есть
[material_modifier] => 1
[work_modifier] => 1
[options] => Array
(
[0] => Для дачи на 4 человека
[1] => Для дома на 5 человек
[2] => Для дома на 6 человек
[3] => Для дома на 7 человек
[4] => Для дома на 10 человек
)
[days] => [7,7,7,8,8]
[material_price] => [196340,220500,240940,264200,293340]
[work_price] => [50000,55000,60500,66550,73206]
[image] => https://akademik-stroy.ru/wp-content/uploads/materials/septik.jpg
[area_modifier] => 1
[parent_name] => Автономная канализация (септики)
[parent_id] => 24
[material_sum] => 235608
[work_sum] => 50000
[total_sum] => 285608
[total_days] => 7
[display_material_sum] => 235 608
[display_work_sum] => 50 000
[display_total_sum] => 285 608
)
1
285 608₽
Работа:50 000 ₽
Материалы:235 608 ₽
Дни:7
stdClass Object
(
[id] => 49
[attribute_id] => 25
[name] => Нет
[material_modifier] => 1
[work_modifier] => 1
[options] => Array
(
)
[days] => [0]
[material_price] => [0]
[work_price] => [0]
[image] => https://akademik-stroy.ru/wp-content/uploads/materials/gkl.jpg
[area_modifier] => 345.96
[parent_name] => Внутренние (не несущие) перегородки
[parent_id] => 25
[material_sum] => 0
[work_sum] => 0
[total_sum] => 0
[total_days] => 0
[display_material_sum] => 0
[display_work_sum] => 0
[display_total_sum] => 0
)
1
0₽
Работа:0 ₽
Материалы:0 ₽
Дни:0
stdClass Object
(
[id] => 147
[attribute_id] => 25
[name] => Каркасно-обшивные
[material_modifier] => 1
[work_modifier] => 1
[options] => Array
(
[0] => 75 мм (без шумоизоляции)
[1] => 75 мм (с шумоизоляцией)
)
[days] => [11,11]
[material_price] => [580,970]
[work_price] => [380,570]
[image] => https://akademik-stroy.ru/wp-content/uploads/materials/gkl.jpg
[area_modifier] => 345.96
[parent_name] => Внутренние (не несущие) перегородки
[parent_id] => 25
[material_sum] => 240788
[work_sum] => 131465
[total_sum] => 372253
[total_days] => 11
[display_material_sum] => 240 788
[display_work_sum] => 131 465
[display_total_sum] => 372 253
)
1
372 253₽
Работа:131 465 ₽
Материалы:240 788 ₽
Дни:11
stdClass Object
(
[id] => 148
[attribute_id] => 25
[name] => Пазогребневые
[material_modifier] => 1
[work_modifier] => 1
[options] => Array
(
[0] => 80 мм
[1] => 100 мм
)
[days] => [5,5]
[material_price] => [1022,1313]
[work_price] => [600,700]
[image] => https://akademik-stroy.ru/wp-content/uploads/materials/pazogrebnevye-bloki.jpg
[area_modifier] => 345.96
[parent_name] => Внутренние (не несущие) перегородки
[parent_id] => 25
[material_sum] => 424285
[work_sum] => 207576
[total_sum] => 631861
[total_days] => 5
[display_material_sum] => 424 285
[display_work_sum] => 207 576
[display_total_sum] => 631 861
)
1
631 861₽
Работа:207 576 ₽
Материалы:424 285 ₽
Дни:5
stdClass Object
(
[id] => 149
[attribute_id] => 25
[name] => Газобетонные
[material_modifier] => 1
[work_modifier] => 1
[options] => Array
(
[0] => 100 мм
[1] => 200 мм
)
[days] => [11,11]
[material_price] => [1160,1920]
[work_price] => [700,900]
[image] => https://akademik-stroy.ru/wp-content/uploads/materials/gazobeton-2.jpg
[area_modifier] => 345.96
[parent_name] => Внутренние (не несущие) перегородки
[parent_id] => 25
[material_sum] => 481576
[work_sum] => 242172
[total_sum] => 723748
[total_days] => 11
[display_material_sum] => 481 576
[display_work_sum] => 242 172
[display_total_sum] => 723 748
)
1
723 748₽
Работа:242 172 ₽
Материалы:481 576 ₽
Дни:11
stdClass Object
(
[id] => 150
[attribute_id] => 25
[name] => Кирпичные
[material_modifier] => 1
[work_modifier] => 1
[options] => Array
(
[0] => 120 мм
[1] => 250 мм
[2] => 360 мм
)
[days] => [7,7,7]
[material_price] => [1785,3570,5355]
[work_price] => [900,1600,1800]
[image] => https://akademik-stroy.ru/wp-content/uploads/materials/kirpich-1.jpg
[area_modifier] => 345.96
[parent_name] => Внутренние (не несущие) перегородки
[parent_id] => 25
[material_sum] => 741046
[work_sum] => 311364
[total_sum] => 1052410
[total_days] => 7
[display_material_sum] => 741 046
[display_work_sum] => 311 364
[display_total_sum] => 1 052 410
)
1
1 052 410₽
Работа:311 364 ₽
Материалы:741 046 ₽
Дни:7
stdClass Object
(
[id] => 55
[attribute_id] => 28
[name] => Нет
[material_modifier] => 1
[work_modifier] => 1
[options] => Array
(
)
[days] => [0]
[material_price] => [0]
[work_price] => [0]
[image] => https://akademik-stroy.ru/wp-content/uploads/materials/ehlektrika.jpg
[area_modifier] => 280.74
[parent_name] => Электрика
[parent_id] => 28
[material_sum] => 0
[work_sum] => 0
[total_sum] => 0
[total_days] => 0
[display_material_sum] => 0
[display_work_sum] => 0
[display_total_sum] => 0
)
1
0₽
Работа:0 ₽
Материалы:0 ₽
Дни:0
stdClass Object
(
[id] => 56
[attribute_id] => 28
[name] => Есть
[material_modifier] => 1
[work_modifier] => 1
[options] => Array
(
)
[days] => [10]
[material_price] => [650]
[work_price] => [950]
[image] => https://akademik-stroy.ru/wp-content/uploads/materials/ehlektrika.jpg
[area_modifier] => 280.74
[parent_name] => Электрика
[parent_id] => 28
[material_sum] => 218977
[work_sum] => 266703
[total_sum] => 485680
[total_days] => 10
[display_material_sum] => 218 977
[display_work_sum] => 266 703
[display_total_sum] => 485 680
)
1
485 680₽
Работа:266 703 ₽
Материалы:218 977 ₽
Дни:10
stdClass Object
(
[id] => 57
[attribute_id] => 29
[name] => Нет
[material_modifier] => 1
[work_modifier] => 1
[options] => Array
(
)
[days] => [0]
[material_price] => [0]
[work_price] => [0]
[image] => https://akademik-stroy.ru/wp-content/uploads/materials/santekhnika-kanalizaciya-1.jpg
[area_modifier] => 280.74
[parent_name] => Сантехника, канализация в доме
[parent_id] => 29
[material_sum] => 0
[work_sum] => 0
[total_sum] => 0
[total_days] => 0
[display_material_sum] => 0
[display_work_sum] => 0
[display_total_sum] => 0
)
1
0₽
Работа:0 ₽
Материалы:0 ₽
Дни:0
stdClass Object
(
[id] => 58
[attribute_id] => 29
[name] => Есть
[material_modifier] => 1
[work_modifier] => 1
[options] => Array
(
)
[days] => [10]
[material_price] => [600]
[work_price] => [730]
[image] => https://akademik-stroy.ru/wp-content/uploads/materials/santekhnika-kanalizaciya-1.jpg
[area_modifier] => 280.74
[parent_name] => Сантехника, канализация в доме
[parent_id] => 29
[material_sum] => 202133
[work_sum] => 204940
[total_sum] => 407073
[total_days] => 10
[display_material_sum] => 202 133
[display_work_sum] => 204 940
[display_total_sum] => 407 073
)
1
407 073₽
Работа:204 940 ₽
Материалы:202 133 ₽
Дни:10
stdClass Object
(
[id] => 59
[attribute_id] => 30
[name] => Нет
[material_modifier] => 1
[work_modifier] => 1
[options] => Array
(
)
[days] => [0]
[material_price] => [0]
[work_price] => [0]
[image] => https://akademik-stroy.ru/wp-content/uploads/materials/otoplenie-1.jpg
[area_modifier] => 280.74
[parent_name] => Отопление
[parent_id] => 30
[material_sum] => 0
[work_sum] => 0
[total_sum] => 0
[total_days] => 0
[display_material_sum] => 0
[display_work_sum] => 0
[display_total_sum] => 0
)
1
0₽
Работа:0 ₽
Материалы:0 ₽
Дни:0
stdClass Object
(
[id] => 60
[attribute_id] => 30
[name] => Есть
[material_modifier] => 1
[work_modifier] => 1
[options] => Array
(
)
[days] => [5]
[material_price] => [610]
[work_price] => [560]
[image] => https://akademik-stroy.ru/wp-content/uploads/materials/otoplenie-1.jpg
[area_modifier] => 280.74
[parent_name] => Отопление
[parent_id] => 30
[material_sum] => 205502
[work_sum] => 157214
[total_sum] => 362716
[total_days] => 5
[display_material_sum] => 205 502
[display_work_sum] => 157 214
[display_total_sum] => 362 716
)
1
362 716₽
Работа:157 214 ₽
Материалы:205 502 ₽
Дни:5
stdClass Object
(
[id] => 61
[attribute_id] => 31
[name] => Нет
[material_modifier] => 1
[work_modifier] => 1
[options] => Array
(
)
[days] => [0]
[material_price] => [0]
[work_price] => [0]
[image] => https://akademik-stroy.ru/wp-content/uploads/materials/vodyanye.jpg
[area_modifier] => 30
[parent_name] => Теплые полы
[parent_id] => 31
[material_sum] => 0
[work_sum] => 0
[total_sum] => 0
[total_days] => 0
[display_material_sum] => 0
[display_work_sum] => 0
[display_total_sum] => 0
)
1
0₽
Работа:0 ₽
Материалы:0 ₽
Дни:0
stdClass Object
(
[id] => 151
[attribute_id] => 31
[name] => Водяные
[material_modifier] => 1
[work_modifier] => 1
[options] => Array
(
)
[days] => [9]
[material_price] => [10200]
[work_price] => [2500]
[image] => https://akademik-stroy.ru/wp-content/uploads/materials/vodyanye.jpg
[area_modifier] => 30
[parent_name] => Теплые полы
[parent_id] => 31
[material_sum] => 367200
[work_sum] => 75000
[total_sum] => 442200
[total_days] => 9
[display_material_sum] => 367 200
[display_work_sum] => 75 000
[display_total_sum] => 442 200
)
1
442 200₽
Работа:75 000 ₽
Материалы:367 200 ₽
Дни:9
stdClass Object
(
[id] => 152
[attribute_id] => 31
[name] => Электро
[material_modifier] => 1
[work_modifier] => 1
[options] => Array
(
)
[days] => [5]
[material_price] => [6300]
[work_price] => [1500]
[image] => https://akademik-stroy.ru/wp-content/uploads/materials/ehlektricheskij.jpg
[area_modifier] => 30
[parent_name] => Теплые полы
[parent_id] => 31
[material_sum] => 226800
[work_sum] => 45000
[total_sum] => 271800
[total_days] => 5
[display_material_sum] => 226 800
[display_work_sum] => 45 000
[display_total_sum] => 271 800
)
1
271 800₽
Работа:45 000 ₽
Материалы:226 800 ₽
Дни:5
stdClass Object
(
[id] => 63
[attribute_id] => 32
[name] => Нет
[material_modifier] => 1
[work_modifier] => 1
[options] => Array
(
)
[days] => [0]
[material_price] => [0]
[work_price] => [0]
[image] => https://akademik-stroy.ru/wp-content/uploads/materials/shtukaturka-shpatlevka-1.jpg
[area_modifier] => 280.74
[parent_name] => Черновая отделка стен
[parent_id] => 32
[material_sum] => 0
[work_sum] => 0
[total_sum] => 0
[total_days] => 0
[display_material_sum] => 0
[display_work_sum] => 0
[display_total_sum] => 0
)
1
0₽
Работа:0 ₽
Материалы:0 ₽
Дни:0
stdClass Object
(
[id] => 153
[attribute_id] => 32
[name] => Штукатурка и шпатлевка
[material_modifier] => 1
[work_modifier] => 1
[options] => Array
(
)
[days] => [20]
[material_price] => [1850]
[work_price] => [2600]
[image] => https://akademik-stroy.ru/wp-content/uploads/materials/shtukaturka-shpatlevka-1.jpg
[area_modifier] => 280.74
[parent_name] => Черновая отделка стен
[parent_id] => 32
[material_sum] => 623243
[work_sum] => 729924
[total_sum] => 1353167
[total_days] => 20
[display_material_sum] => 623 243
[display_work_sum] => 729 924
[display_total_sum] => 1 353 167
)
1
1 353 167₽
Работа:729 924 ₽
Материалы:623 243 ₽
Дни:20
stdClass Object
(
[id] => 154
[attribute_id] => 32
[name] => Гипсокортон на стены
[material_modifier] => 1
[work_modifier] => 1
[options] => Array
(
)
[days] => [15]
[material_price] => [950]
[work_price] => [2100]
[image] => https://akademik-stroy.ru/wp-content/uploads/materials/gkl-1.jpg
[area_modifier] => 280.74
[parent_name] => Черновая отделка стен
[parent_id] => 32
[material_sum] => 320044
[work_sum] => 589554
[total_sum] => 909598
[total_days] => 15
[display_material_sum] => 320 044
[display_work_sum] => 589 554
[display_total_sum] => 909 598
)
1
909 598₽
Работа:589 554 ₽
Материалы:320 044 ₽
Дни:15
stdClass Object
(
[id] => 155
[attribute_id] => 32
[name] => Вагонка
[material_modifier] => 1
[work_modifier] => 1
[options] => Array
(
)
[days] => [15]
[material_price] => [1250]
[work_price] => [950]
[image] => https://akademik-stroy.ru/wp-content/uploads/materials/vagonka.jpg
[area_modifier] => 280.74
[parent_name] => Черновая отделка стен
[parent_id] => 32
[material_sum] => 421110
[work_sum] => 266703
[total_sum] => 687813
[total_days] => 15
[display_material_sum] => 421 110
[display_work_sum] => 266 703
[display_total_sum] => 687 813
)
1
687 813₽
Работа:266 703 ₽
Материалы:421 110 ₽
Дни:15
stdClass Object
(
[id] => 65
[attribute_id] => 33
[name] => Нет
[material_modifier] => 1
[work_modifier] => 1
[options] => Array
(
)
[days] => [0]
[material_price] => [0]
[work_price] => [0]
[image] => https://akademik-stroy.ru/wp-content/uploads/materials/styazhka.jpg
[area_modifier] => 280.74
[parent_name] => Черновая отделка полов
[parent_id] => 33
[material_sum] => 0
[work_sum] => 0
[total_sum] => 0
[total_days] => 0
[display_material_sum] => 0
[display_work_sum] => 0
[display_total_sum] => 0
)
1
0₽
Работа:0 ₽
Материалы:0 ₽
Дни:0
stdClass Object
(
[id] => 156
[attribute_id] => 33
[name] => Стяжка + наливные полы
[material_modifier] => 1
[work_modifier] => 1
[options] => Array
(
)
[days] => [10]
[material_price] => [1000]
[work_price] => [900]
[image] => https://akademik-stroy.ru/wp-content/uploads/materials/styazhka.jpg
[area_modifier] => 280.74
[parent_name] => Черновая отделка полов
[parent_id] => 33
[material_sum] => 336888
[work_sum] => 252666
[total_sum] => 589554
[total_days] => 10
[display_material_sum] => 336 888
[display_work_sum] => 252 666
[display_total_sum] => 589 554
)
1
589 554₽
Работа:252 666 ₽
Материалы:336 888 ₽
Дни:10
stdClass Object
(
[id] => 157
[attribute_id] => 33
[name] => ОСБ на пол
[material_modifier] => 1
[work_modifier] => 1
[options] => Array
(
)
[days] => [7]
[material_price] => [580]
[work_price] => [350]
[image] => https://akademik-stroy.ru/wp-content/uploads/materials/osb-1.jpg
[area_modifier] => 280.74
[parent_name] => Черновая отделка полов
[parent_id] => 33
[material_sum] => 195395
[work_sum] => 98259
[total_sum] => 293654
[total_days] => 7
[display_material_sum] => 195 395
[display_work_sum] => 98 259
[display_total_sum] => 293 654
)
1
293 654₽
Работа:98 259 ₽
Материалы:195 395 ₽
Дни:7
stdClass Object
(
[id] => 67
[attribute_id] => 34
[name] => Нет
[material_modifier] => 1
[work_modifier] => 1
[options] => Array
(
)
[days] => [0]
[material_price] => [0]
[work_price] => [0]
[image] => https://akademik-stroy.ru/wp-content/uploads/materials/chistovaya-otdelka.jpg
[area_modifier] => 280.74
[parent_name] => Чистовая отделка стен и полов
[parent_id] => 34
[material_sum] => 0
[work_sum] => 0
[total_sum] => 0
[total_days] => 0
[display_material_sum] => 0
[display_work_sum] => 0
[display_total_sum] => 0
)
1
0₽
Работа:0 ₽
Материалы:0 ₽
Дни:0
stdClass Object
(
[id] => 68
[attribute_id] => 34
[name] => Есть
[material_modifier] => 1
[work_modifier] => 1
[options] => Array
(
)
[days] => [50]
[material_price] => [6000]
[work_price] => [3500]
[image] => https://akademik-stroy.ru/wp-content/uploads/materials/chistovaya-otdelka.jpg
[area_modifier] => 280.74
[parent_name] => Чистовая отделка стен и полов
[parent_id] => 34
[material_sum] => 2021328
[work_sum] => 982590
[total_sum] => 3003918
[total_days] => 50
[display_material_sum] => 2 021 328
[display_work_sum] => 982 590
[display_total_sum] => 3 003 918
)
1
3 003 918₽
Работа:982 590 ₽
Материалы:2 021 328 ₽
Дни:50
stdClass Object
(
[id] => 69
[attribute_id] => 35
[name] => Нет
[material_modifier] => 1
[work_modifier] => 1
[options] => Array
(
)
[days] => [0]
[material_price] => [0]
[work_price] => [0]
[image] => https://akademik-stroy.ru/wp-content/uploads/materials/mnogourovnevyj-gkl.jpg
[area_modifier] => 280.74
[parent_name] => Отделка потолка
[parent_id] => 35
[material_sum] => 0
[work_sum] => 0
[total_sum] => 0
[total_days] => 0
[display_material_sum] => 0
[display_work_sum] => 0
[display_total_sum] => 0
)
1
0₽
Работа:0 ₽
Материалы:0 ₽
Дни:0
stdClass Object
(
[id] => 70
[attribute_id] => 35
[name] => Есть
[material_modifier] => 1
[work_modifier] => 1
[options] => Array
(
[0] => Многоуровневый потолок из гипсокартона
[1] => Многоуровневый потолок из гипсокартона и натяжного потолка
[2] => Одноуровневый потолок из гипсокартона
[3] => Одноуровневый натяжной потолок
)
[days] => [10,10,1,1]
[material_price] => [900,700,700,600]
[work_price] => [1000,800,500,300]
[image] => https://akademik-stroy.ru/wp-content/uploads/materials/mnogourovnevyj-gkl.jpg
[area_modifier] => 280.74
[parent_name] => Отделка потолка
[parent_id] => 35
[material_sum] => 303199
[work_sum] => 280740
[total_sum] => 583939
[total_days] => 10
[display_material_sum] => 303 199
[display_work_sum] => 280 740
[display_total_sum] => 583 939
)
1
583 939₽
Работа:280 740 ₽
Материалы:303 199 ₽
Дни:10
Преимущества работы с нами
7 этапов оплаты
Независимый строительный надзор
Экологически чистые материалы
16 лет гарантии
Онлайн-кабинет с веб-камерой
Строители с опытом более 15 лет
Собственное производство









