Одноэтажный дом 9x9 - 129.49 м2 за руб.
Планировки
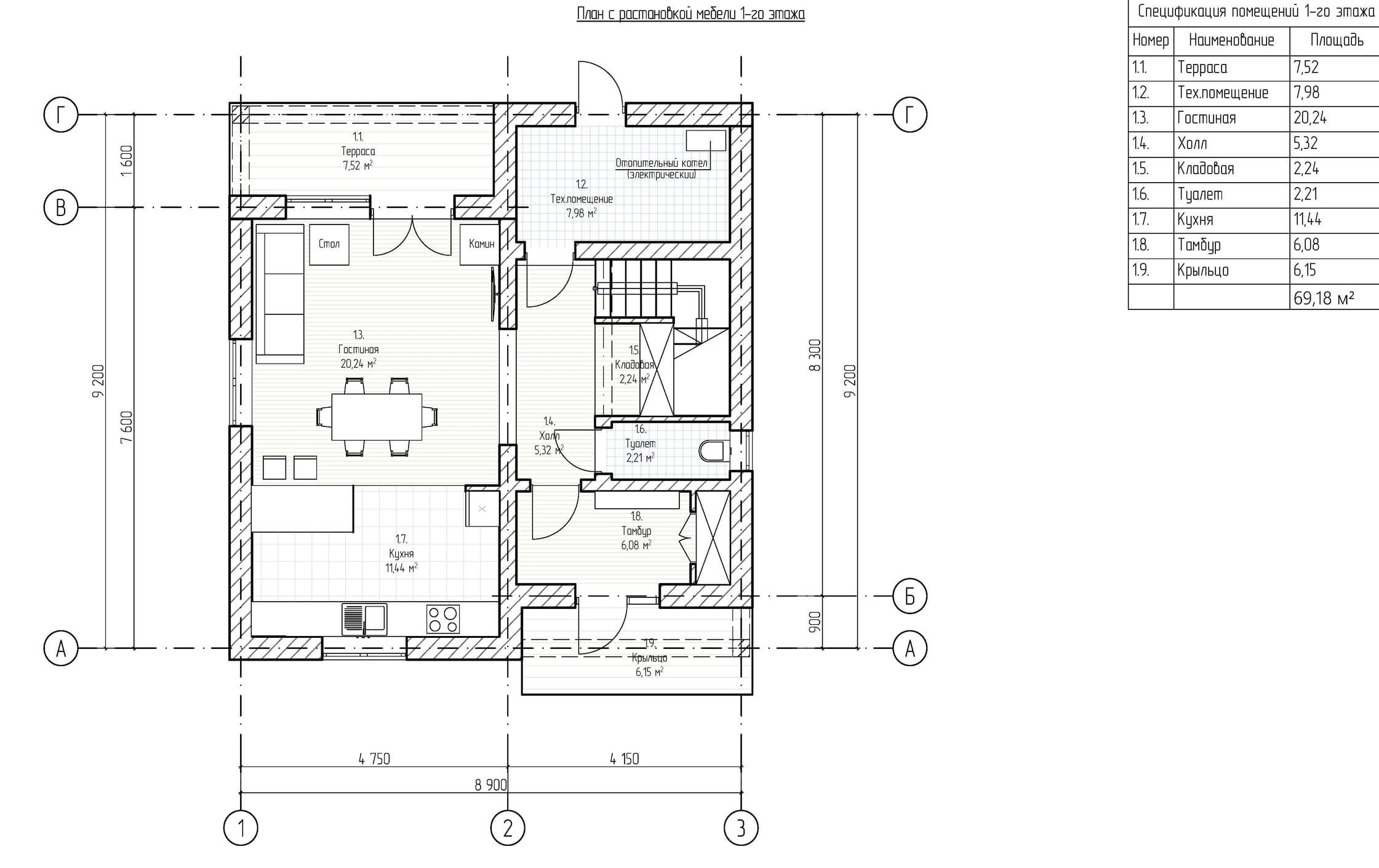
План первого этажа
- 1. Терраса 7,52 м²
- 2. Тех. Помещение 7,98 м²
- 3. Гостиная 20,24 м²
- 4. Холл 5,32 м²
- 5. Кладовая 2,24 м²
- 6. С/У 2,21 м²
- 7. Кухня 11,44 м²
- 8. Тамбур 6,08 м²
- 9. Крыльцо 6,15 м²
- Общая площадь 1 этажа 69,18 м²
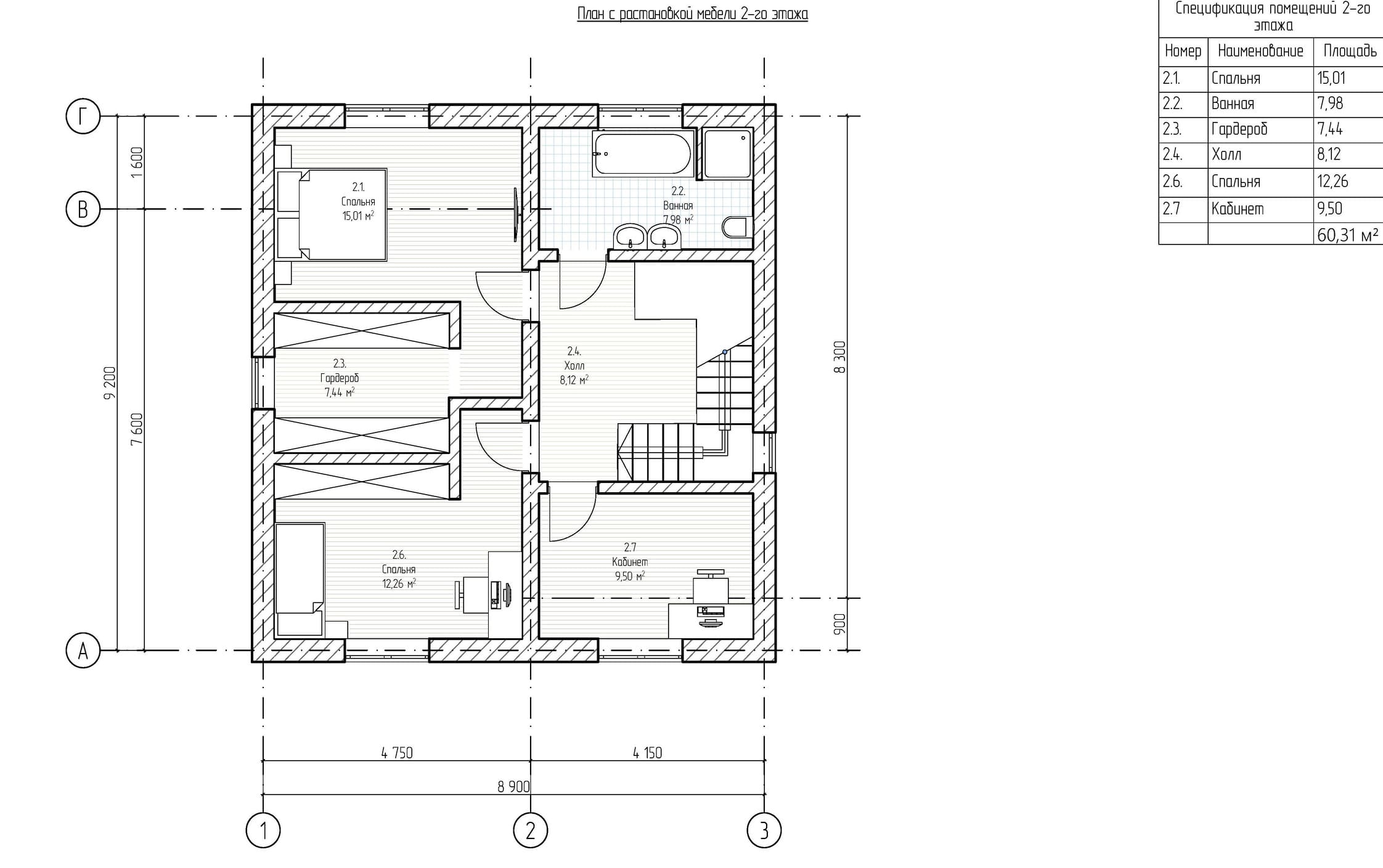
План второго этажа
- 1. Спальня 15,01 м²
- 2. С/У 7,98 м²
- 3. Гардеробная 7,44 м²
- 4. Холл 8,12 м²
- 5. Спальня 12,26 м²
- 6. Кабинет 9,50 м²
- Общая площадь 2 этажа 60,31 м²
Площади дома
| № п/п | Наименование | Ед. из. | Строительная площадь | Полезная площадь |
| 1 | 1 этаж | м2 | 85.25 | 69.18 |
| 2 | 2 этаж | м2 | 74.32 | 60.31 |
| 3 | Итого | м2 | 159.57 | 129.49 |
154 м2
Полезная
площадь
площадь
9 x 9 м
Размеры
1 этаж
Этажей
26 м2
Террасы
и балконы
и балконы
0Без
гаража
гаража
2
Количество
спален
спален
2
Количество
санузлов
санузлов
Калькулятор опций
0₽
В ипотеку от 15 826 ₽/мес.
0₽
0 дней
stdClass Object
(
[id] => 1
[attribute_id] => 1
[name] => Ленточный монолитный ж/б
[material_modifier] => 1
[work_modifier] => 1
[options] => Array
(
[0] => размер 200 х 700 мм
[1] => размер 300 х 900 мм
[2] => размер 400 х 1 000 мм
[3] => размер 500 х 1 100 мм
[4] => размер 600 х 1 200 мм
)
[days] => [20,21,22,25,30]
[material_price] => [2823,3630,4475,5210,12047]
[work_price] => [2154,2826,3731,4577,5293]
[image] => https://akademik-stroy.ru/wp-content/uploads/materials/lentochnyj-monolitnyj-zh-b.jpg
[area_modifier] => 85.25
[parent_name] => Фундамент
[parent_id] => 1
[material_sum] => 317672
[work_sum] => 201991
[total_sum] => 519663
[total_days] => 20
[display_material_sum] => 317 672
[display_work_sum] => 201 991
[display_total_sum] => 519 663
)
1
519 663₽
Работа:201 991 ₽
Материалы:317 672 ₽
Дни:20
stdClass Object
(
[id] => 2
[attribute_id] => 1
[name] => Забивные Ж/Б сваи
[material_modifier] => 1
[work_modifier] => 1
[options] => Array
(
[0] => 150х150х3000мм
[1] => 150х150х4000мм
[2] => 200х200х3000мм
[3] => 200х200х4000мм
[4] => 200х200х5000мм
[5] => 200х200х6000мм
)
[days] => [2,2,2,2,2,2]
[material_price] => [1990,2850,3255,4360,5120,6837]
[work_price] => [1002,1185,1336,1438,1574,1839]
[image] => https://akademik-stroy.ru/wp-content/uploads/materials/zabivnye-zh-b-svai.png
[area_modifier] => 85.25
[parent_name] => Фундамент
[parent_id] => 1
[material_sum] => 223935
[work_sum] => 93963
[total_sum] => 317898
[total_days] => 2
[display_material_sum] => 223 935
[display_work_sum] => 93 963
[display_total_sum] => 317 898
)
1
317 898₽
Работа:93 963 ₽
Материалы:223 935 ₽
Дни:2
stdClass Object
(
[id] => 71
[attribute_id] => 1
[name] => Свайно-ростверковый ж/б
[material_modifier] => 1
[work_modifier] => 1
[options] => Array
(
[0] => ростверк 200х300 мм
[1] => ростверк 300х600 мм
[2] => ростверк 400х900 мм
[3] => ростверк 500х1200 мм
)
[days] => [20,23,25,27]
[material_price] => [3018,3474,7109,9792]
[work_price] => [2024,3012,5635,7022]
[image] => https://akademik-stroy.ru/wp-content/uploads/materials/svajno-rostverkovyj-monolitnyj-zh-b-3.png
[area_modifier] => 85.25
[parent_name] => Фундамент
[parent_id] => 1
[material_sum] => 339616
[work_sum] => 189801
[total_sum] => 529417
[total_days] => 20
[display_material_sum] => 339 616
[display_work_sum] => 189 801
[display_total_sum] => 529 417
)
1
529 417₽
Работа:189 801 ₽
Материалы:339 616 ₽
Дни:20
stdClass Object
(
[id] => 72
[attribute_id] => 1
[name] => Монолитная ж/б плита
[material_modifier] => 1
[work_modifier] => 1
[options] => Array
(
[0] => 200 мм
[1] => 300 мм
[2] => 400 мм
[3] => 500 мм
[4] => 600 мм
)
[days] => [30,33,35,37,40]
[material_price] => [5348,8555,12788,14388,15189]
[work_price] => [4314,4881,7037,8061,10230]
[image] => https://akademik-stroy.ru/wp-content/uploads/materials/monolitnaya-zhb-plita.png
[area_modifier] => 85.25
[parent_name] => Фундамент
[parent_id] => 1
[material_sum] => 601810
[work_sum] => 404545
[total_sum] => 1006355
[total_days] => 30
[display_material_sum] => 601 810
[display_work_sum] => 404 545
[display_total_sum] => 1 006 355
)
1
1 006 355₽
Работа:404 545 ₽
Материалы:601 810 ₽
Дни:30
stdClass Object
(
[id] => 73
[attribute_id] => 1
[name] => Утепленная шведская плита
[material_modifier] => 1
[work_modifier] => 1
[options] => Array
(
[0] => 200 мм
[1] => 300 мм
[2] => 400 мм
[3] => 500 мм
[4] => 600 мм
)
[days] => [32,37,39,42,45]
[material_price] => [10249,12692,13760,14936,16230]
[work_price] => [5960,7337,8072,8878,9765]
[image] => https://akademik-stroy.ru/wp-content/uploads/materials/uteplennaya-shvedskaya-plita.jpg
[area_modifier] => 85.25
[parent_name] => Фундамент
[parent_id] => 1
[material_sum] => 1153320
[work_sum] => 558899
[total_sum] => 1712219
[total_days] => 32
[display_material_sum] => 1 153 320
[display_work_sum] => 558 899
[display_total_sum] => 1 712 219
)
1
1 712 219₽
Работа:558 899 ₽
Материалы:1 153 320 ₽
Дни:32
stdClass Object
(
[id] => 75
[attribute_id] => 1
[name] => Ленточный из ФБС
[material_modifier] => 1
[work_modifier] => 1
[options] => Array
(
[0] => толщ. 300 мм
[1] => толщ. 400 мм
[2] => толщ. 500 мм
[3] => толщ. 600 мм
)
[days] => [20,20,20,20]
[material_price] => [3675,4902,6126,7350]
[work_price] => [2451,3264,4083,4902]
[image] => https://akademik-stroy.ru/wp-content/uploads/materials/lentochnyj-iz-fbs.png
[area_modifier] => 85.25
[parent_name] => Фундамент
[parent_id] => 1
[material_sum] => 413548
[work_sum] => 229843
[total_sum] => 643391
[total_days] => 20
[display_material_sum] => 413 548
[display_work_sum] => 229 843
[display_total_sum] => 643 391
)
1
643 391₽
Работа:229 843 ₽
Материалы:413 548 ₽
Дни:20
stdClass Object
(
[id] => 76
[attribute_id] => 1
[name] => Цокольный этаж из ФБС
[material_modifier] => 1
[work_modifier] => 1
[options] => Array
(
[0] => толщ. 300 мм
[1] => толщ. 400 мм
[2] => толщ. 500 мм
[3] => толщ. 600 мм
)
[days] => [30,32,34,36]
[material_price] => [20916,23299,26680,29060]
[work_price] => [17524,18700,19873,21046]
[image] => https://akademik-stroy.ru/wp-content/uploads/materials/cokolnyj-ehtazh-iz-fbs.jpg
[area_modifier] => 85.25
[parent_name] => Фундамент
[parent_id] => 1
[material_sum] => 2353677
[work_sum] => 1643313
[total_sum] => 3996990
[total_days] => 30
[display_material_sum] => 2 353 677
[display_work_sum] => 1 643 313
[display_total_sum] => 3 996 990
)
1
3 996 990₽
Работа:1 643 313 ₽
Материалы:2 353 677 ₽
Дни:30
stdClass Object
(
[id] => 77
[attribute_id] => 1
[name] => Цокольный этаж монолитный ж/б
[material_modifier] => 1
[work_modifier] => 1
[options] => Array
(
[0] => толщ. 200 мм
[1] => толщ. 300 мм
[2] => толщ. 400 мм
[3] => толщ. 500 мм
[4] => толщ. 600 мм
)
[days] => [40,42,44,46,48]
[material_price] => [25421,29148,32275,35602,37326]
[work_price] => [20441,21907,23375,24841,26306]
[image] => https://akademik-stroy.ru/wp-content/uploads/materials/cokolnyj-etazh-zh-b.jpg
[area_modifier] => 85.25
[parent_name] => Фундамент
[parent_id] => 1
[material_sum] => 2860625
[work_sum] => 1916855
[total_sum] => 4777480
[total_days] => 40
[display_material_sum] => 2 860 625
[display_work_sum] => 1 916 855
[display_total_sum] => 4 777 480
)
1
4 777 480₽
Работа:1 916 855 ₽
Материалы:2 860 625 ₽
Дни:40
stdClass Object
(
[id] => 191
[attribute_id] => 1
[name] => Винтовые сваи
[material_modifier] => 1
[work_modifier] => 1
[options] => Array
(
[0] => 57х200мм
[1] => 76х250мм
[2] => 108х300мм
[3] => 133х350мм
)
[days] => [1,1,2,2]
[material_price] => [1200,1300,1450,1600]
[work_price] => [400,600,900,1100]
[image] => https://akademik-stroy.ru/wp-content/uploads/materials/vintovye-svai.png
[area_modifier] => 85.25
[parent_name] => Фундамент
[parent_id] => 1
[material_sum] => 135036
[work_sum] => 37510
[total_sum] => 172546
[total_days] => 1
[display_material_sum] => 135 036
[display_work_sum] => 37 510
[display_total_sum] => 172 546
)
1
172 546₽
Работа:37 510 ₽
Материалы:135 036 ₽
Дни:1
stdClass Object
(
[id] => 3
[attribute_id] => 2
[name] => Деревянные балки
[material_modifier] => 1
[work_modifier] => 1
[options] => Array
(
[0] => без утепления
[1] => утепление 200 мм
[2] => утепление 250 мм
[3] => утепление 300 мм
[4] => утепление 350 мм
[5] => утепление 400 мм
[6] => утепление 450 мм
[7] => утепление 500 мм
)
[days] => [8,9,9,9,11,12,13,14]
[material_price] => [1634,2042,2344,2947,3149,3652,3354,3557]
[work_price] => [1230,1339,1393,1426,1460,1513,1587,1620]
[image] => https://akademik-stroy.ru/wp-content/uploads/materials/derevyannye-balki.png
[area_modifier] => 85.25
[parent_name] => Перекрытие цоколя
[parent_id] => 2
[material_sum] => 183874
[work_sum] => 115343
[total_sum] => 299217
[total_days] => 8
[display_material_sum] => 183 874
[display_work_sum] => 115 343
[display_total_sum] => 299 217
)
1
299 217₽
Работа:115 343 ₽
Материалы:183 874 ₽
Дни:8
stdClass Object
(
[id] => 4
[attribute_id] => 2
[name] => Сборные ж/б плиты
[material_modifier] => 1
[work_modifier] => 1
[options] => Array
(
[0] => без утепления
[1] => утепление 150мм
[2] => утепление 200мм
[3] => утепление 250мм
[4] => утепление 300мм
[5] => утепление 350мм
[6] => утепление 400мм
[7] => утепление 450мм
[8] => утепление 500мм
)
[days] => [13,15,15,15,15,15,15,15,15]
[material_price] => [3067,5577,5928,6679,7730,8782,9833,10884,11935]
[work_price] => [1520,1956,2102,2247,2392,2537,2684,2829,2974]
[image] => https://akademik-stroy.ru/wp-content/uploads/materials/sbornye-zh-b-plity-2.jpg
[area_modifier] => 85.25
[parent_name] => Перекрытие цоколя
[parent_id] => 2
[material_sum] => 345130
[work_sum] => 142538
[total_sum] => 487668
[total_days] => 13
[display_material_sum] => 345 130
[display_work_sum] => 142 538
[display_total_sum] => 487 668
)
1
487 668₽
Работа:142 538 ₽
Материалы:345 130 ₽
Дни:13
stdClass Object
(
[id] => 78
[attribute_id] => 2
[name] => Монолитная ж/б плита
[material_modifier] => 1
[work_modifier] => 1
[options] => Array
(
[0] => без утепления
[1] => утепление 150 мм
[2] => утепление 200 мм
[3] => утепление 250 мм
[4] => утепление 300 мм
[5] => утепление 350 мм
[6] => утепление 400 мм
[7] => утепление 450 мм
[8] => утепление 500 мм
)
[days] => [18,20,20,20,20,20,20,20,20]
[material_price] => [4837,6572,7224,7375,79426,8177,8728,9180,10031]
[work_price] => [3348,3921,4112,4302,4493,4684,4875,5066,5256]
[image] => https://akademik-stroy.ru/wp-content/uploads/materials/monolitnaya-zh-b-plita-2.jpg
[area_modifier] => 85.25
[parent_name] => Перекрытие цоколя
[parent_id] => 2
[material_sum] => 544308
[work_sum] => 313959
[total_sum] => 858267
[total_days] => 18
[display_material_sum] => 544 308
[display_work_sum] => 313 959
[display_total_sum] => 858 267
)
1
858 267₽
Работа:313 959 ₽
Материалы:544 308 ₽
Дни:18
stdClass Object
(
[id] => 6
[attribute_id] => 3
[name] => Пеноблок
[material_modifier] => 1
[work_modifier] => 1
[options] => Array
(
[0] => 300 мм
[1] => 400 мм
[2] => 500 мм
[3] => 600 мм
)
[days] => [29,31,34,39]
[material_price] => [3000,4000,4500,4937]
[work_price] => [5033,5805,6400,8710]
[image] => https://akademik-stroy.ru/wp-content/uploads/materials/penoblok.jpg
[area_modifier] => 85.25
[parent_name] => Стены 1 этаж (несущие)
[parent_id] => 3
[material_sum] => 337590
[work_sum] => 471970
[total_sum] => 809560
[total_days] => 29
[display_material_sum] => 337 590
[display_work_sum] => 471 970
[display_total_sum] => 809 560
)
1
809 560₽
Работа:471 970 ₽
Материалы:337 590 ₽
Дни:29
stdClass Object
(
[id] => 79
[attribute_id] => 3
[name] => Керамический блок
[material_modifier] => 1
[work_modifier] => 1
[options] => Array
(
[0] => 380 мм
[1] => 380 мм Thermo
[2] => 440 мм
[3] => 510 мм
)
[days] => [23,23,24,25]
[material_price] => [4510,5098,6093,8013]
[work_price] => [4737,4937,5903,6958]
[image] => https://akademik-stroy.ru/wp-content/uploads/materials/keramicheskij-blok.jpg
[area_modifier] => 85.25
[parent_name] => Стены 1 этаж (несущие)
[parent_id] => 3
[material_sum] => 507510
[work_sum] => 444212
[total_sum] => 951722
[total_days] => 23
[display_material_sum] => 507 510
[display_work_sum] => 444 212
[display_total_sum] => 951 722
)
1
951 722₽
Работа:444 212 ₽
Материалы:507 510 ₽
Дни:23
stdClass Object
(
[id] => 80
[attribute_id] => 3
[name] => Кирпич
[material_modifier] => 1
[work_modifier] => 1
[options] => Array
(
[0] => Кирпич 250 мм
[1] => Кирпич 380 мм
[2] => Кирпич 510 мм
[3] => Кирпич 640 мм
[4] => Кирпич 770 мм
)
[days] => [30,30,31,33,36]
[material_price] => [5500,7142,9206,10171,12235]
[work_price] => [8736,10041,12018,15240,18462]
[image] => https://akademik-stroy.ru/wp-content/uploads/materials/kirpich.jpg
[area_modifier] => 85.25
[parent_name] => Стены 1 этаж (несущие)
[parent_id] => 3
[material_sum] => 618915
[work_sum] => 819218
[total_sum] => 1438133
[total_days] => 30
[display_material_sum] => 618 915
[display_work_sum] => 819 218
[display_total_sum] => 1 438 133
)
1
1 438 133₽
Работа:819 218 ₽
Материалы:618 915 ₽
Дни:30
stdClass Object
(
[id] => 81
[attribute_id] => 3
[name] => Монолитные
[material_modifier] => 1
[work_modifier] => 1
[options] => Array
(
[0] => 150 мм
[1] => 200 мм
[2] => 250 мм
[3] => 300 мм
[4] => 350 мм
[5] => 400 мм
)
[days] => [45,46,47,49,50,53]
[material_price] => [6545,7876,10175,12011,13908,15204]
[work_price] => [5106,6444,7698,8552,9807,11461]
[image] => https://akademik-stroy.ru/wp-content/uploads/materials/monolitnye.jpg
[area_modifier] => 85.25
[parent_name] => Стены 1 этаж (несущие)
[parent_id] => 3
[material_sum] => 736509
[work_sum] => 478815
[total_sum] => 1215324
[total_days] => 45
[display_material_sum] => 736 509
[display_work_sum] => 478 815
[display_total_sum] => 1 215 324
)
1
1 215 324₽
Работа:478 815 ₽
Материалы:736 509 ₽
Дни:45
stdClass Object
(
[id] => 82
[attribute_id] => 3
[name] => Клееный брус
[material_modifier] => 1
[work_modifier] => 1
[options] => Array
(
[0] => 160 мм
[1] => 175 мм
[2] => 200 мм
[3] => 215 мм
[4] => 240 мм
[5] => 270 мм
[6] => 282 мм
)
[days] => [24,28,32,37,40,42,48]
[material_price] => [16975,18773,19950,20545,21599,22159,23275]
[work_price] => [4806,5287,5815,6397,7036,7740,8514]
[image] => https://akademik-stroy.ru/wp-content/uploads/materials/kleenyj-brus.jpg
[area_modifier] => 85.25
[parent_name] => Стены 1 этаж (несущие)
[parent_id] => 3
[material_sum] => 1910197
[work_sum] => 450683
[total_sum] => 2360880
[total_days] => 24
[display_material_sum] => 1 910 197
[display_work_sum] => 450 683
[display_total_sum] => 2 360 880
)
1
2 360 880₽
Работа:450 683 ₽
Материалы:1 910 197 ₽
Дни:24
stdClass Object
(
[id] => 83
[attribute_id] => 3
[name] => Каркасные
[material_modifier] => 1
[work_modifier] => 1
[options] => Array
(
[0] => 150 мм
[1] => 200 мм
[2] => 250 мм
[3] => 300 мм
)
[days] => [15,16,17,18]
[material_price] => [2379,2639,2898,3258]
[work_price] => [2418,2686,2985,3716]
[image] => https://akademik-stroy.ru/wp-content/uploads/materials/karkasnye.jpg
[area_modifier] => 85.25
[parent_name] => Стены 1 этаж (несущие)
[parent_id] => 3
[material_sum] => 267709
[work_sum] => 226748
[total_sum] => 494457
[total_days] => 15
[display_material_sum] => 267 709
[display_work_sum] => 226 748
[display_total_sum] => 494 457
)
1
494 457₽
Работа:226 748 ₽
Материалы:267 709 ₽
Дни:15
stdClass Object
(
[id] => 84
[attribute_id] => 3
[name] => СИП-панели
[material_modifier] => 1
[work_modifier] => 1
[options] => Array
(
[0] => 120 мм
[1] => 170 мм
[2] => 220 мм
)
[days] => [7,7,7]
[material_price] => [1210,1856,2292]
[work_price] => [1410,1551,1706]
[image] => https://akademik-stroy.ru/wp-content/uploads/materials/sip-paneli.jpg
[area_modifier] => 85.25
[parent_name] => Стены 1 этаж (несущие)
[parent_id] => 3
[material_sum] => 136161
[work_sum] => 132223
[total_sum] => 268384
[total_days] => 7
[display_material_sum] => 136 161
[display_work_sum] => 132 223
[display_total_sum] => 268 384
)
1
268 384₽
Работа:132 223 ₽
Материалы:136 161 ₽
Дни:7
stdClass Object
(
[id] => 85
[attribute_id] => 3
[name] => Сухой брус
[material_modifier] => 1
[work_modifier] => 1
[options] => Array
(
[0] => 150 мм
[1] => 180 мм
[2] => 200 мм
)
[days] => [7,8,9]
[material_price] => [6010,7190,8709]
[work_price] => [3204,3845,4229]
[image] => https://akademik-stroy.ru/wp-content/uploads/materials/suhoj-brus.jpg
[area_modifier] => 85.25
[parent_name] => Стены 1 этаж (несущие)
[parent_id] => 3
[material_sum] => 676305
[work_sum] => 300455
[total_sum] => 976760
[total_days] => 7
[display_material_sum] => 676 305
[display_work_sum] => 300 455
[display_total_sum] => 976 760
)
1
976 760₽
Работа:300 455 ₽
Материалы:676 305 ₽
Дни:7
stdClass Object
(
[id] => 86
[attribute_id] => 3
[name] => Профилированный брус
[material_modifier] => 1
[work_modifier] => 1
[options] => Array
(
[0] => 150 мм
[1] => 180 мм
[2] => 200 мм
)
[days] => [7,8,9]
[material_price] => [8190,9228,10051]
[work_price] => [3845,4614,5075]
[image] => https://akademik-stroy.ru/wp-content/uploads/materials/profilirovannyj-brus.jpg
[area_modifier] => 85.25
[parent_name] => Стены 1 этаж (несущие)
[parent_id] => 3
[material_sum] => 921621
[work_sum] => 360565
[total_sum] => 1282186
[total_days] => 7
[display_material_sum] => 921 621
[display_work_sum] => 360 565
[display_total_sum] => 1 282 186
)
1
1 282 186₽
Работа:360 565 ₽
Материалы:921 621 ₽
Дни:7
stdClass Object
(
[id] => 87
[attribute_id] => 3
[name] => Оцилиндрованное бревно
[material_modifier] => 1
[work_modifier] => 1
[options] => Array
(
[0] => 180 мм
[1] => 220 мм
[2] => 260 мм
[3] => 320 мм
)
[days] => [7,8,9,10]
[material_price] => [75190,9532,10868,13116]
[work_price] => [3845,4691,5535,6863]
[image] => https://akademik-stroy.ru/wp-content/uploads/materials/ocilindrovannoe-brevno-1.jpg
[area_modifier] => 85.25
[parent_name] => Стены 1 этаж (несущие)
[parent_id] => 3
[material_sum] => 8461131
[work_sum] => 360565
[total_sum] => 8821696
[total_days] => 7
[display_material_sum] => 8 461 131
[display_work_sum] => 360 565
[display_total_sum] => 8 821 696
)
1
8 821 696₽
Работа:360 565 ₽
Материалы:8 461 131 ₽
Дни:7
stdClass Object
(
[id] => 88
[attribute_id] => 3
[name] => Срубы
[material_modifier] => 1
[work_modifier] => 1
[options] => Array
(
[0] => 260 мм
[1] => 320 мм
[2] => 360 мм
[3] => 400 мм
[4] => 500 мм
)
[days] => [7,8,9,10,11]
[material_price] => [37975,46709,52314,58069,73167]
[work_price] => [4806,5911,6621,7349,9260]
[image] => https://akademik-stroy.ru/wp-content/uploads/materials/sruby.jpg
[area_modifier] => 85.25
[parent_name] => Стены 1 этаж (несущие)
[parent_id] => 3
[material_sum] => 4273327
[work_sum] => 450683
[total_sum] => 4724010
[total_days] => 7
[display_material_sum] => 4 273 327
[display_work_sum] => 450 683
[display_total_sum] => 4 724 010
)
1
4 724 010₽
Работа:450 683 ₽
Материалы:4 273 327 ₽
Дни:7
stdClass Object
(
[id] => 174
[attribute_id] => 3
[name] => Брус
[material_modifier] => 1
[work_modifier] => 1
[options] => Array
(
[0] => 150 мм
[1] => 180 мм
[2] => 200 мм
)
[days] => [7,8,9]
[material_price] => [5127,6152,7367]
[work_price] => [1602,1922,2115]
[image] => https://akademik-stroy.ru/wp-content/uploads/materials/brus.jpg
[area_modifier] => 85.25
[parent_name] => Стены 1 этаж (несущие)
[parent_id] => 3
[material_sum] => 576941
[work_sum] => 150228
[total_sum] => 727169
[total_days] => 7
[display_material_sum] => 576 941
[display_work_sum] => 150 228
[display_total_sum] => 727 169
)
1
727 169₽
Работа:150 228 ₽
Материалы:576 941 ₽
Дни:7
stdClass Object
(
[id] => 175
[attribute_id] => 3
[name] => Газобетон
[material_modifier] => 1
[work_modifier] => 1
[options] => Array
(
[0] => 300 мм
[1] => 375 мм
[2] => 400 мм
[3] => 500 мм
[4] => 600 мм
)
[days] => [29,31,35,37,44]
[material_price] => [4298,5573,6356,7288,9119]
[work_price] => [4538,5251,5926,6733,7195]
[image] => https://akademik-stroy.ru/wp-content/uploads/materials/gazobeton.jpg
[area_modifier] => 85.25
[parent_name] => Стены 1 этаж (несущие)
[parent_id] => 3
[material_sum] => 483654
[work_sum] => 425551
[total_sum] => 909205
[total_days] => 29
[display_material_sum] => 483 654
[display_work_sum] => 425 551
[display_total_sum] => 909 205
)
1
909 205₽
Работа:425 551 ₽
Материалы:483 654 ₽
Дни:29
stdClass Object
(
[id] => 176
[attribute_id] => 3
[name] => Блок
[material_modifier] => 1
[work_modifier] => 1
[options] => Array
(
[0] => 300 мм
[1] => 375 мм
[2] => 400 мм
[3] => 500 мм
[4] => 600 мм
)
[days] => [29,31,35,37,44]
[material_price] => [2698,3973,4356,6588,7119]
[work_price] => [5038,5851,6426,8733,9195]
[image] => https://akademik-stroy.ru/wp-content/uploads/materials/blok.jpg
[area_modifier] => 85.25
[parent_name] => Стены 1 этаж (несущие)
[parent_id] => 3
[material_sum] => 303606
[work_sum] => 472438
[total_sum] => 776044
[total_days] => 29
[display_material_sum] => 303 606
[display_work_sum] => 472 438
[display_total_sum] => 776 044
)
1
776 044₽
Работа:472 438 ₽
Материалы:303 606 ₽
Дни:29
stdClass Object
(
[id] => 177
[attribute_id] => 3
[name] => Газосиликатный блок
[material_modifier] => 1
[work_modifier] => 1
[options] => Array
(
[0] => 300 мм
[1] => 375 мм
[2] => 400 мм
[3] => 500 мм
[4] => 600 мм
)
[days] => [29,31,35,37,44]
[material_price] => [4298,5573,6356,7288,9119]
[work_price] => [4538,5251,5926,6733,7195]
[image] => https://akademik-stroy.ru/wp-content/uploads/materials/gazosilikatnyj-blok.jpg
[area_modifier] => 85.25
[parent_name] => Стены 1 этаж (несущие)
[parent_id] => 3
[material_sum] => 483654
[work_sum] => 425551
[total_sum] => 909205
[total_days] => 29
[display_material_sum] => 483 654
[display_work_sum] => 425 551
[display_total_sum] => 909 205
)
1
909 205₽
Работа:425 551 ₽
Материалы:483 654 ₽
Дни:29
stdClass Object
(
[id] => 178
[attribute_id] => 3
[name] => Керамзитобетонный блок
[material_modifier] => 1
[work_modifier] => 1
[options] => Array
(
[0] => 300 мм
[1] => 375 мм
[2] => 400 мм
[3] => 500 мм
[4] => 600 мм
)
[days] => [23,23,24,25,28]
[material_price] => [3641,4298,5693,7613,9612]
[work_price] => [5737,5737,6903,7958,8901]
[image] => https://akademik-stroy.ru/wp-content/uploads/materials/keramzitobetonnyj-blok.jpg
[area_modifier] => 85.25
[parent_name] => Стены 1 этаж (несущие)
[parent_id] => 3
[material_sum] => 409722
[work_sum] => 537987
[total_sum] => 947709
[total_days] => 23
[display_material_sum] => 409 722
[display_work_sum] => 537 987
[display_total_sum] => 947 709
)
1
947 709₽
Работа:537 987 ₽
Материалы:409 722 ₽
Дни:23
stdClass Object
(
[id] => 179
[attribute_id] => 3
[name] => Деревянные
[material_modifier] => 1
[work_modifier] => 1
[options] => Array
(
[0] => 180 мм
[1] => 220 мм
[2] => 260 мм
[3] => 320 мм
)
[days] => [7,8,9,10]
[material_price] => [7950,9458,11961,14472]
[work_price] => [4037,4925,5812,7207]
[image] => https://akademik-stroy.ru/wp-content/uploads/materials/derevyannye.jpg
[area_modifier] => 85.25
[parent_name] => Стены 1 этаж (несущие)
[parent_id] => 3
[material_sum] => 894614
[work_sum] => 378570
[total_sum] => 1273184
[total_days] => 7
[display_material_sum] => 894 614
[display_work_sum] => 378 570
[display_total_sum] => 1 273 184
)
1
1 273 184₽
Работа:378 570 ₽
Материалы:894 614 ₽
Дни:7
stdClass Object
(
[id] => 181
[attribute_id] => 3
[name] => Камень
[material_modifier] => 1
[work_modifier] => 1
[options] => Array
(
[0] => 300 мм
[1] => 400 мм
[2] => 500 мм
[3] => 600 мм
)
[days] => [25,27,31,34]
[material_price] => [5262,6844,8330,9815]
[work_price] => [8331,9135,10427,11069]
[image] => https://akademik-stroy.ru/wp-content/uploads/materials/kamen.jpg
[area_modifier] => 85.25
[parent_name] => Стены 1 этаж (несущие)
[parent_id] => 3
[material_sum] => 592133
[work_sum] => 781240
[total_sum] => 1373373
[total_days] => 25
[display_material_sum] => 592 133
[display_work_sum] => 781 240
[display_total_sum] => 1 373 373
)
1
1 373 373₽
Работа:781 240 ₽
Материалы:592 133 ₽
Дни:25
stdClass Object
(
[id] => 182
[attribute_id] => 3
[name] => Каркасно-щитовые
[material_modifier] => 1
[work_modifier] => 1
[options] => Array
(
[0] => 150 мм
[1] => 200 мм
[2] => 250 мм
[3] => 300 мм
[4] => 350 мм
[5] => 400 мм
)
[days] => [15,16,17,18,19,20]
[material_price] => [2379,2639,2898,3458,3601,4175]
[work_price] => [2538,2820,3134,3483,4062,5642]
[image] => https://akademik-stroy.ru/wp-content/uploads/materials/karkasno-shchitovye.jpg
[area_modifier] => 85.25
[parent_name] => Стены 1 этаж (несущие)
[parent_id] => 3
[material_sum] => 267709
[work_sum] => 238001
[total_sum] => 505710
[total_days] => 15
[display_material_sum] => 267 709
[display_work_sum] => 238 001
[display_total_sum] => 505 710
)
1
505 710₽
Работа:238 001 ₽
Материалы:267 709 ₽
Дни:15
stdClass Object
(
[id] => 183
[attribute_id] => 3
[name] => Рубленные
[material_modifier] => 1
[work_modifier] => 1
[options] => Array
(
[0] => 150 мм
[1] => 200 мм
[2] => 250 мм
[3] => 300 мм
[4] => 350 мм
[5] => 400 мм
)
[days] => [15,16,17,18,17,18]
[material_price] => [35950,50267,60583,75900,80217,100533]
[work_price] => [9612,12816,16020,19224,22428,25632]
[image] => https://akademik-stroy.ru/wp-content/uploads/materials/rublennye.jpg
[area_modifier] => 85.25
[parent_name] => Стены 1 этаж (несущие)
[parent_id] => 3
[material_sum] => 4045454
[work_sum] => 901365
[total_sum] => 4946819
[total_days] => 15
[display_material_sum] => 4 045 454
[display_work_sum] => 901 365
[display_total_sum] => 4 946 819
)
1
4 946 819₽
Работа:901 365 ₽
Материалы:4 045 454 ₽
Дни:15
stdClass Object
(
[id] => 185
[attribute_id] => 3
[name] => Теплоблок
[material_modifier] => 1
[work_modifier] => 1
[options] => Array
(
[0] => 300 мм (с облицовкой, не покрашенный)
[1] => 400 мм (с облицовкой, не покрашенный)
[2] => 300 мм (с облицовкой, покрашенный)
[3] => 400 мм (с облицовкой, покрашенный)
)
[days] => [15,16,15,16]
[material_price] => [2888,3729,3957,4258]
[work_price] => [2564,3229,2949,3713]
[image] => https://akademik-stroy.ru/wp-content/uploads/materials/teploblok.jpg
[area_modifier] => 85.25
[parent_name] => Стены 1 этаж (несущие)
[parent_id] => 3
[material_sum] => 324987
[work_sum] => 240439
[total_sum] => 565426
[total_days] => 15
[display_material_sum] => 324 987
[display_work_sum] => 240 439
[display_total_sum] => 565 426
)
1
565 426₽
Работа:240 439 ₽
Материалы:324 987 ₽
Дни:15
stdClass Object
(
[id] => 186
[attribute_id] => 3
[name] => Арболитовые блоки
[material_modifier] => 1
[work_modifier] => 1
[options] => Array
(
[0] => 300 мм
[1] => 400 мм
[2] => 600 мм
)
[days] => [19,22,27]
[material_price] => [3210,4475,5852]
[work_price] => [4214,4788,5866]
[image] => https://akademik-stroy.ru/wp-content/uploads/materials/arbolitovye-bloki.png
[area_modifier] => 85.25
[parent_name] => Стены 1 этаж (несущие)
[parent_id] => 3
[material_sum] => 361221
[work_sum] => 395168
[total_sum] => 756389
[total_days] => 19
[display_material_sum] => 361 221
[display_work_sum] => 395 168
[display_total_sum] => 756 389
)
1
756 389₽
Работа:395 168 ₽
Материалы:361 221 ₽
Дни:19
stdClass Object
(
[id] => 187
[attribute_id] => 3
[name] => Полистиролбетон
[material_modifier] => 1
[work_modifier] => 1
[options] => Array
(
[0] => 300 мм
[1] => 400 мм
[2] => 600 мм
)
[days] => [29,31,35]
[material_price] => [2798,4573,5256]
[work_price] => [5038,5851,6426]
[image] => https://akademik-stroy.ru/wp-content/uploads/materials/polistirolbeton.jpg
[area_modifier] => 85.25
[parent_name] => Стены 1 этаж (несущие)
[parent_id] => 3
[material_sum] => 314859
[work_sum] => 472438
[total_sum] => 787297
[total_days] => 29
[display_material_sum] => 314 859
[display_work_sum] => 472 438
[display_total_sum] => 787 297
)
1
787 297₽
Работа:472 438 ₽
Материалы:314 859 ₽
Дни:29
stdClass Object
(
[id] => 188
[attribute_id] => 3
[name] => Шлакоблок
[material_modifier] => 1
[work_modifier] => 1
[options] => Array
(
[0] => 400 мм
[1] => 600 мм
)
[days] => [15,16]
[material_price] => [2391,3471]
[work_price] => [2642,3662]
[image] => https://akademik-stroy.ru/wp-content/uploads/materials/shlakoblok.jpg
[area_modifier] => 85.25
[parent_name] => Стены 1 этаж (несущие)
[parent_id] => 3
[material_sum] => 269059
[work_sum] => 247754
[total_sum] => 516813
[total_days] => 15
[display_material_sum] => 269 059
[display_work_sum] => 247 754
[display_total_sum] => 516 813
)
1
516 813₽
Работа:247 754 ₽
Материалы:269 059 ₽
Дни:15
stdClass Object
(
[id] => 189
[attribute_id] => 3
[name] => Теплая керамика
[material_modifier] => 1
[work_modifier] => 1
[options] => Array
(
[0] => 380 мм
[1] => 380 мм Thermo
[2] => 440 мм
[3] => 510 мм
)
[days] => [23,23,24,25]
[material_price] => [4510,5098,6093,8013]
[work_price] => [4737,4937,5903,6958]
[image] => https://akademik-stroy.ru/wp-content/uploads/materials/teplaya-keramika.jpg
[area_modifier] => 85.25
[parent_name] => Стены 1 этаж (несущие)
[parent_id] => 3
[material_sum] => 507510
[work_sum] => 444212
[total_sum] => 951722
[total_days] => 23
[display_material_sum] => 507 510
[display_work_sum] => 444 212
[display_total_sum] => 951 722
)
1
951 722₽
Работа:444 212 ₽
Материалы:507 510 ₽
Дни:23
stdClass Object
(
[id] => 190
[attribute_id] => 3
[name] => Несъемная опалубка
[material_modifier] => 1
[work_modifier] => 1
[options] => Array
(
[0] => 200 мм
[1] => 250 мм
[2] => 300 мм
[3] => 350 мм
)
[days] => [15,17,19,21]
[material_price] => [3302,3902,4108,5008]
[work_price] => [2100,2100,2300,2534]
[image] => https://akademik-stroy.ru/wp-content/uploads/materials/nesemnaya-opalubka.jpg
[area_modifier] => 85.25
[parent_name] => Стены 1 этаж (несущие)
[parent_id] => 3
[material_sum] => 371574
[work_sum] => 196928
[total_sum] => 568502
[total_days] => 15
[display_material_sum] => 371 574
[display_work_sum] => 196 928
[display_total_sum] => 568 502
)
1
568 502₽
Работа:196 928 ₽
Материалы:371 574 ₽
Дни:15
stdClass Object
(
[id] => 251
[attribute_id] => 3
[name] => Бревно
[material_modifier] => 1
[work_modifier] => 1
[options] => Array
(
[0] => 260 мм
[1] => 320 мм
[2] => 360 мм
[3] => 400 мм
[4] => 500 мм
)
[days] => [7,8,9,10,11]
[material_price] => [1874,24045,26930,30972,38825]
[work_price] => [5046,6207,6952,7716,9723]
[image] => https://akademik-stroy.ru/wp-content/uploads/materials/sruby.jpg
[area_modifier] => 85.25
[parent_name] => Стены 1 этаж (несущие)
[parent_id] => 3
[material_sum] => 210881
[work_sum] => 473189
[total_sum] => 684070
[total_days] => 7
[display_material_sum] => 210 881
[display_work_sum] => 473 189
[display_total_sum] => 684 070
)
1
684 070₽
Работа:473 189 ₽
Материалы:210 881 ₽
Дни:7
stdClass Object
(
[id] => 7
[attribute_id] => 4
[name] => Деревянные балки
[material_modifier] => 1
[work_modifier] => 1
[options] => Array
(
[0] => без утепления
[1] => утепление 200 мм
[2] => утепление 250 мм
[3] => утепление 300 мм
[4] => утепление 350 мм
[5] => утепление 400 мм
[6] => утепление 450 мм
[7] => утепление 500 мм
)
[days] => [8,9,9,9,11,12,13,14]
[material_price] => [1634,2042,2344,2947,3149,3652,3354,3557]
[work_price] => [1230,1339,1393,1426,1460,1513,1587,1620]
[image] => https://akademik-stroy.ru/wp-content/uploads/materials/derevyannye-balki.png
[area_modifier] => 85.25
[parent_name] => Перекрытие первого этажа
[parent_id] => 4
[material_sum] => 183874
[work_sum] => 115343
[total_sum] => 299217
[total_days] => 8
[display_material_sum] => 183 874
[display_work_sum] => 115 343
[display_total_sum] => 299 217
)
1
299 217₽
Работа:115 343 ₽
Материалы:183 874 ₽
Дни:8
stdClass Object
(
[id] => 8
[attribute_id] => 4
[name] => Сборные ж/б плиты
[material_modifier] => 1
[work_modifier] => 1
[options] => Array
(
[0] => без утепления
[1] => утепление 150 мм
[2] => утепление 200 мм
[3] => утепление 250 мм
[4] => утепление 300 мм
[5] => утепление 350 мм
[6] => утепление 400 мм
[7] => утепление 450 мм
[8] => утепление 500 мм
)
[days] => [13,15,15,15,15,15,15,15,15]
[material_price] => [3067,5577,5928,6679,7730,8782,9833,10884,11935]
[work_price] => [1520,1956,2102,2247,2392,2537,2684,2829,2974]
[image] => https://akademik-stroy.ru/wp-content/uploads/materials/sbornye-zh-b-plity-2.jpg
[area_modifier] => 85.25
[parent_name] => Перекрытие первого этажа
[parent_id] => 4
[material_sum] => 345130
[work_sum] => 142538
[total_sum] => 487668
[total_days] => 13
[display_material_sum] => 345 130
[display_work_sum] => 142 538
[display_total_sum] => 487 668
)
1
487 668₽
Работа:142 538 ₽
Материалы:345 130 ₽
Дни:13
stdClass Object
(
[id] => 89
[attribute_id] => 4
[name] => Монолитная ж/б плита
[material_modifier] => 1
[work_modifier] => 1
[options] => Array
(
[0] => без утепления
[1] => утепление 150 мм
[2] => утепление 200 мм
[3] => утепление 250 мм
[4] => утепление 300 мм
[5] => утепление 350 мм
[6] => утепление 400 мм
[7] => утепление 450 мм
[8] => утепление 500 мм
)
[days] => [18,20,20,20,20,20,20,20,20]
[material_price] => [4837,6572,7224,7375,79426,8177,8728,9180,10031]
[work_price] => [3348,3921,4112,4302,4493,4684,4875,5066,5256]
[image] => https://akademik-stroy.ru/wp-content/uploads/materials/monolitnaya-zh-b-plita-2.jpg
[area_modifier] => 85.25
[parent_name] => Перекрытие первого этажа
[parent_id] => 4
[material_sum] => 544308
[work_sum] => 313959
[total_sum] => 858267
[total_days] => 18
[display_material_sum] => 544 308
[display_work_sum] => 313 959
[display_total_sum] => 858 267
)
1
858 267₽
Работа:313 959 ₽
Материалы:544 308 ₽
Дни:18
stdClass Object
(
[id] => 10
[attribute_id] => 5
[name] => Пеноблок
[material_modifier] => 1
[work_modifier] => 1
[options] => Array
(
[0] => 300 мм
[1] => 400 мм
[2] => 500 мм
[3] => 600 мм
)
[days] => [29,31,34,39]
[material_price] => [3000,4000,4500,4937]
[work_price] => [5033,5805,6400,8710]
[image] => https://akademik-stroy.ru/wp-content/uploads/materials/penoblok.jpg
[area_modifier] => 74.32
[parent_name] => Стены 2 этаж (несущие)
[parent_id] => 5
[material_sum] => 294307
[work_sum] => 411458
[total_sum] => 705765
[total_days] => 29
[display_material_sum] => 294 307
[display_work_sum] => 411 458
[display_total_sum] => 705 765
)
1
705 765₽
Работа:411 458 ₽
Материалы:294 307 ₽
Дни:29
stdClass Object
(
[id] => 90
[attribute_id] => 5
[name] => Керамический блок
[material_modifier] => 1
[work_modifier] => 1
[options] => Array
(
[0] => 380 мм
[1] => 380 мм Thermo
[2] => 440 мм
[3] => 510 мм
)
[days] => [23,23,24,25]
[material_price] => [4510,5098,6093,8013]
[work_price] => [4737,4937,5903,6958]
[image] => https://akademik-stroy.ru/wp-content/uploads/materials/keramicheskij-blok.jpg
[area_modifier] => 74.32
[parent_name] => Стены 2 этаж (несущие)
[parent_id] => 5
[material_sum] => 442442
[work_sum] => 387259
[total_sum] => 829701
[total_days] => 23
[display_material_sum] => 442 442
[display_work_sum] => 387 259
[display_total_sum] => 829 701
)
1
829 701₽
Работа:387 259 ₽
Материалы:442 442 ₽
Дни:23
stdClass Object
(
[id] => 91
[attribute_id] => 5
[name] => Кирпич
[material_modifier] => 1
[work_modifier] => 1
[options] => Array
(
[0] => Кирпич 250 мм
[1] => Кирпич 380 мм
[2] => Кирпич 510 мм
[3] => Кирпич 640 мм
[4] => Кирпич 770 мм
)
[days] => [30,30,31,33,36]
[material_price] => [5500,7142,9206,10171,12235]
[work_price] => [8736,10041,12018,15240,18462]
[image] => https://akademik-stroy.ru/wp-content/uploads/materials/kirpich.jpg
[area_modifier] => 74.32
[parent_name] => Стены 2 этаж (несущие)
[parent_id] => 5
[material_sum] => 539563
[work_sum] => 714185
[total_sum] => 1253748
[total_days] => 30
[display_material_sum] => 539 563
[display_work_sum] => 714 185
[display_total_sum] => 1 253 748
)
1
1 253 748₽
Работа:714 185 ₽
Материалы:539 563 ₽
Дни:30
stdClass Object
(
[id] => 92
[attribute_id] => 5
[name] => Монолитные
[material_modifier] => 1
[work_modifier] => 1
[options] => Array
(
[0] => 150 мм
[1] => 200 мм
[2] => 250 мм
[3] => 300 мм
[4] => 350 мм
[5] => 400 мм
)
[days] => [45,46,47,49,50,53]
[material_price] => [6545,7876,10175,12011,13908,15204]
[work_price] => [5106,6444,7698,8552,9807,11461]
[image] => https://akademik-stroy.ru/wp-content/uploads/materials/monolitnye.jpg
[area_modifier] => 74.32
[parent_name] => Стены 2 этаж (несущие)
[parent_id] => 5
[material_sum] => 642080
[work_sum] => 417426
[total_sum] => 1059506
[total_days] => 45
[display_material_sum] => 642 080
[display_work_sum] => 417 426
[display_total_sum] => 1 059 506
)
1
1 059 506₽
Работа:417 426 ₽
Материалы:642 080 ₽
Дни:45
stdClass Object
(
[id] => 93
[attribute_id] => 5
[name] => Клееный брус
[material_modifier] => 1
[work_modifier] => 1
[options] => Array
(
[0] => 160 мм
[1] => 175 мм
[2] => 200 мм
[3] => 215 мм
[4] => 240 мм
[5] => 270 мм
[6] => 282 мм
)
[days] => [24,28,32,37,40,42,48]
[material_price] => [16975,18773,19950,20545,21599,22159,23275]
[work_price] => [4806,5287,5815,6397,7036,7740,8514]
[image] => https://akademik-stroy.ru/wp-content/uploads/materials/kleenyj-brus.jpg
[area_modifier] => 74.32
[parent_name] => Стены 2 этаж (несущие)
[parent_id] => 5
[material_sum] => 1665288
[work_sum] => 392900
[total_sum] => 2058188
[total_days] => 24
[display_material_sum] => 1 665 288
[display_work_sum] => 392 900
[display_total_sum] => 2 058 188
)
1
2 058 188₽
Работа:392 900 ₽
Материалы:1 665 288 ₽
Дни:24
stdClass Object
(
[id] => 94
[attribute_id] => 5
[name] => Каркасные
[material_modifier] => 1
[work_modifier] => 1
[options] => Array
(
[0] => 150 мм
[1] => 200 мм
[2] => 250 мм
[3] => 300 мм
)
[days] => [15,16,17,18]
[material_price] => [2379,2639,2898,3258]
[work_price] => [2418,2686,2985,3716]
[image] => https://akademik-stroy.ru/wp-content/uploads/materials/karkasnye.jpg
[area_modifier] => 74.32
[parent_name] => Стены 2 этаж (несущие)
[parent_id] => 5
[material_sum] => 233386
[work_sum] => 197676
[total_sum] => 431062
[total_days] => 15
[display_material_sum] => 233 386
[display_work_sum] => 197 676
[display_total_sum] => 431 062
)
1
431 062₽
Работа:197 676 ₽
Материалы:233 386 ₽
Дни:15
stdClass Object
(
[id] => 95
[attribute_id] => 5
[name] => СИП-панели
[material_modifier] => 1
[work_modifier] => 1
[options] => Array
(
[0] => 120 мм
[1] => 170 мм
[2] => 220 мм
)
[days] => [7,7,7]
[material_price] => [1210,1856,2292]
[work_price] => [1410,1551,1706]
[image] => https://akademik-stroy.ru/wp-content/uploads/materials/sip-paneli.jpg
[area_modifier] => 74.32
[parent_name] => Стены 2 этаж (несущие)
[parent_id] => 5
[material_sum] => 118704
[work_sum] => 115270
[total_sum] => 233974
[total_days] => 7
[display_material_sum] => 118 704
[display_work_sum] => 115 270
[display_total_sum] => 233 974
)
1
233 974₽
Работа:115 270 ₽
Материалы:118 704 ₽
Дни:7
stdClass Object
(
[id] => 96
[attribute_id] => 5
[name] => Сухой брус
[material_modifier] => 1
[work_modifier] => 1
[options] => Array
(
[0] => 150 мм
[1] => 180 мм
[2] => 200 мм
)
[days] => [7,8,9]
[material_price] => [6010,7190,8709]
[work_price] => [3204,3845,4229]
[image] => https://akademik-stroy.ru/wp-content/uploads/materials/suhoj-brus.jpg
[area_modifier] => 74.32
[parent_name] => Стены 2 этаж (несущие)
[parent_id] => 5
[material_sum] => 589595
[work_sum] => 261933
[total_sum] => 851528
[total_days] => 7
[display_material_sum] => 589 595
[display_work_sum] => 261 933
[display_total_sum] => 851 528
)
1
851 528₽
Работа:261 933 ₽
Материалы:589 595 ₽
Дни:7
stdClass Object
(
[id] => 97
[attribute_id] => 5
[name] => Профилированный брус
[material_modifier] => 1
[work_modifier] => 1
[options] => Array
(
[0] => 150 мм
[1] => 180 мм
[2] => 200 мм
)
[days] => [7,8,9]
[material_price] => [8190,9228,10051]
[work_price] => [3845,4614,5075]
[image] => https://akademik-stroy.ru/wp-content/uploads/materials/profilirovannyj-brus.jpg
[area_modifier] => 74.32
[parent_name] => Стены 2 этаж (несущие)
[parent_id] => 5
[material_sum] => 803459
[work_sum] => 314336
[total_sum] => 1117795
[total_days] => 7
[display_material_sum] => 803 459
[display_work_sum] => 314 336
[display_total_sum] => 1 117 795
)
1
1 117 795₽
Работа:314 336 ₽
Материалы:803 459 ₽
Дни:7
stdClass Object
(
[id] => 98
[attribute_id] => 5
[name] => Оцилиндрованное бревно
[material_modifier] => 1
[work_modifier] => 1
[options] => Array
(
[0] => 180 мм
[1] => 220 мм
[2] => 260 мм
[3] => 320 мм
)
[days] => [7,8,9,10]
[material_price] => [75190,9532,10868,13116]
[work_price] => [3845,4691,5535,6863]
[image] => https://akademik-stroy.ru/wp-content/uploads/materials/ocilindrovannoe-brevno-1.jpg
[area_modifier] => 74.32
[parent_name] => Стены 2 этаж (несущие)
[parent_id] => 5
[material_sum] => 7376319
[work_sum] => 314336
[total_sum] => 7690655
[total_days] => 7
[display_material_sum] => 7 376 319
[display_work_sum] => 314 336
[display_total_sum] => 7 690 655
)
1
7 690 655₽
Работа:314 336 ₽
Материалы:7 376 319 ₽
Дни:7
stdClass Object
(
[id] => 99
[attribute_id] => 5
[name] => Срубы
[material_modifier] => 1
[work_modifier] => 1
[options] => Array
(
[0] => 260 мм
[1] => 320 мм
[2] => 360 мм
[3] => 400 мм
[4] => 500 мм
)
[days] => [7,8,9,10,11]
[material_price] => [16175,23709,26314,29069,32167]
[work_price] => [4806,5911,6621,7349,9260]
[image] => https://akademik-stroy.ru/wp-content/uploads/materials/suhoj-brus.jpg
[area_modifier] => 74.32
[parent_name] => Стены 2 этаж (несущие)
[parent_id] => 5
[material_sum] => 1586806
[work_sum] => 392900
[total_sum] => 1979706
[total_days] => 7
[display_material_sum] => 1 586 806
[display_work_sum] => 392 900
[display_total_sum] => 1 979 706
)
1
1 979 706₽
Работа:392 900 ₽
Материалы:1 586 806 ₽
Дни:7
stdClass Object
(
[id] => 194
[attribute_id] => 5
[name] => Брус
[material_modifier] => 1
[work_modifier] => 1
[options] => Array
(
[0] => 150 мм
[1] => 180 мм
[2] => 200 мм
)
[days] => [10,13,15]
[material_price] => [5127,6152,7367]
[work_price] => [1602,1922,2115]
[image] => https://akademik-stroy.ru/wp-content/uploads/materials/brus.jpg
[area_modifier] => 74.32
[parent_name] => Стены 2 этаж (несущие)
[parent_id] => 5
[material_sum] => 502971
[work_sum] => 130967
[total_sum] => 633938
[total_days] => 10
[display_material_sum] => 502 971
[display_work_sum] => 130 967
[display_total_sum] => 633 938
)
1
633 938₽
Работа:130 967 ₽
Материалы:502 971 ₽
Дни:10
stdClass Object
(
[id] => 195
[attribute_id] => 5
[name] => Газобетон
[material_modifier] => 1
[work_modifier] => 1
[options] => Array
(
[0] => 300 мм
[1] => 375 мм
[2] => 400 мм
[3] => 500 мм
[4] => 600 мм
)
[days] => [29,31,35,37,44]
[material_price] => [4298,5573,6356,7288,9119]
[work_price] => [4538,5251,5926,6733,7195]
[image] => https://akademik-stroy.ru/wp-content/uploads/materials/gazobeton.jpg
[area_modifier] => 74.32
[parent_name] => Стены 2 этаж (несущие)
[parent_id] => 5
[material_sum] => 421644
[work_sum] => 370991
[total_sum] => 792635
[total_days] => 29
[display_material_sum] => 421 644
[display_work_sum] => 370 991
[display_total_sum] => 792 635
)
1
792 635₽
Работа:370 991 ₽
Материалы:421 644 ₽
Дни:29
stdClass Object
(
[id] => 196
[attribute_id] => 5
[name] => Блок
[material_modifier] => 1
[work_modifier] => 1
[options] => Array
(
[0] => 300 мм
[1] => 375 мм
[2] => 400 мм
[3] => 500 мм
[4] => 600 мм
)
[days] => [29,31,35,37,44]
[material_price] => [2698,3973,4356,6588,7119]
[work_price] => [5038,5851,6426,8733,9195]
[image] => https://akademik-stroy.ru/wp-content/uploads/materials/blok.jpg
[area_modifier] => 74.32
[parent_name] => Стены 2 этаж (несущие)
[parent_id] => 5
[material_sum] => 264680
[work_sum] => 411867
[total_sum] => 676547
[total_days] => 29
[display_material_sum] => 264 680
[display_work_sum] => 411 867
[display_total_sum] => 676 547
)
1
676 547₽
Работа:411 867 ₽
Материалы:264 680 ₽
Дни:29
stdClass Object
(
[id] => 197
[attribute_id] => 5
[name] => Газосиликатный блок
[material_modifier] => 1
[work_modifier] => 1
[options] => Array
(
[0] => 300 мм
[1] => 375 мм
[2] => 400 мм
[3] => 500 мм
[4] => 600 мм
)
[days] => [29,31,35,37,44]
[material_price] => [4298,5573,6356,7288,9119]
[work_price] => [4538,5251,5926,6733,7195]
[image] => https://akademik-stroy.ru/wp-content/uploads/materials/gazosilikatnyj-blok.jpg
[area_modifier] => 74.32
[parent_name] => Стены 2 этаж (несущие)
[parent_id] => 5
[material_sum] => 421644
[work_sum] => 370991
[total_sum] => 792635
[total_days] => 29
[display_material_sum] => 421 644
[display_work_sum] => 370 991
[display_total_sum] => 792 635
)
1
792 635₽
Работа:370 991 ₽
Материалы:421 644 ₽
Дни:29
stdClass Object
(
[id] => 198
[attribute_id] => 5
[name] => Керамзитобетонный блок
[material_modifier] => 1
[work_modifier] => 1
[options] => Array
(
[0] => 300 мм
[1] => 375 мм
[2] => 400 мм
[3] => 500 мм
[4] => 600 мм
)
[days] => [23,23,24,25,28]
[material_price] => [3641,4298,5693,7613,9612]
[work_price] => [5737,5737,6903,7958,8901]
[image] => https://akademik-stroy.ru/wp-content/uploads/materials/keramzitobetonnyj-blok.jpg
[area_modifier] => 74.32
[parent_name] => Стены 2 этаж (несущие)
[parent_id] => 5
[material_sum] => 357191
[work_sum] => 469011
[total_sum] => 826202
[total_days] => 23
[display_material_sum] => 357 191
[display_work_sum] => 469 011
[display_total_sum] => 826 202
)
1
826 202₽
Работа:469 011 ₽
Материалы:357 191 ₽
Дни:23
stdClass Object
(
[id] => 199
[attribute_id] => 5
[name] => Деревянные
[material_modifier] => 1
[work_modifier] => 1
[options] => Array
(
[0] => 180 мм
[1] => 220 мм
[2] => 260 мм
[3] => 320 мм
)
[days] => [7,8,9,10]
[material_price] => [7950,9458,11961,14472]
[work_price] => [4037,4925,5812,7207]
[image] => https://akademik-stroy.ru/wp-content/uploads/materials/derevyannye.jpg
[area_modifier] => 74.32
[parent_name] => Стены 2 этаж (несущие)
[parent_id] => 5
[material_sum] => 779914
[work_sum] => 330033
[total_sum] => 1109947
[total_days] => 7
[display_material_sum] => 779 914
[display_work_sum] => 330 033
[display_total_sum] => 1 109 947
)
1
1 109 947₽
Работа:330 033 ₽
Материалы:779 914 ₽
Дни:7
stdClass Object
(
[id] => 200
[attribute_id] => 5
[name] => Камень
[material_modifier] => 1
[work_modifier] => 1
[options] => Array
(
[0] => 300 мм
[1] => 400 мм
[2] => 500 мм
[3] => 600 мм
)
[days] => [25,27,31,34]
[material_price] => [5262,6844,8330,9815]
[work_price] => [8331,9135,10427,11069]
[image] => https://akademik-stroy.ru/wp-content/uploads/materials/kamen.jpg
[area_modifier] => 74.32
[parent_name] => Стены 2 этаж (несущие)
[parent_id] => 5
[material_sum] => 516215
[work_sum] => 681076
[total_sum] => 1197291
[total_days] => 25
[display_material_sum] => 516 215
[display_work_sum] => 681 076
[display_total_sum] => 1 197 291
)
1
1 197 291₽
Работа:681 076 ₽
Материалы:516 215 ₽
Дни:25
stdClass Object
(
[id] => 201
[attribute_id] => 5
[name] => Каркасно-щитовые
[material_modifier] => 1
[work_modifier] => 1
[options] => Array
(
[0] => 150 мм
[1] => 200 мм
[2] => 250 мм
[3] => 300 мм
[4] => 350 мм
[5] => 400 мм
)
[days] => [15,16,17,18,19,20]
[material_price] => [2379,2639,2898,3458,3601,4175]
[work_price] => [2538,2820,3134,3483,4062,5642]
[image] => https://akademik-stroy.ru/wp-content/uploads/materials/karkasno-shchitovye.jpg
[area_modifier] => 74.32
[parent_name] => Стены 2 этаж (несущие)
[parent_id] => 5
[material_sum] => 233386
[work_sum] => 207487
[total_sum] => 440873
[total_days] => 15
[display_material_sum] => 233 386
[display_work_sum] => 207 487
[display_total_sum] => 440 873
)
1
440 873₽
Работа:207 487 ₽
Материалы:233 386 ₽
Дни:15
stdClass Object
(
[id] => 202
[attribute_id] => 5
[name] => Рубленные
[material_modifier] => 1
[work_modifier] => 1
[options] => Array
(
[0] => 150 мм
[1] => 200 мм
[2] => 250 мм
[3] => 300 мм
[4] => 350 мм
[5] => 400 мм
)
[days] => [15,16,17,18,17,18]
[material_price] => [35950,50267,60583,75900,80217,100533]
[work_price] => [9612,12816,16020,19224,22428,25632]
[image] => https://akademik-stroy.ru/wp-content/uploads/materials/rublennye.jpg
[area_modifier] => 74.32
[parent_name] => Стены 2 этаж (несущие)
[parent_id] => 5
[material_sum] => 3526781
[work_sum] => 785800
[total_sum] => 4312581
[total_days] => 15
[display_material_sum] => 3 526 781
[display_work_sum] => 785 800
[display_total_sum] => 4 312 581
)
1
4 312 581₽
Работа:785 800 ₽
Материалы:3 526 781 ₽
Дни:15
stdClass Object
(
[id] => 203
[attribute_id] => 5
[name] => Теплоблок
[material_modifier] => 1
[work_modifier] => 1
[options] => Array
(
[0] => 300 мм (с облицовкой, не покрашенный)
[1] => 400 мм (с облицовкой, не покрашенный)
[2] => 300 мм (с облицовкой, покрашенный)
[3] => 400 мм (с облицовкой, покрашенный)
)
[days] => [15,16,15,16]
[material_price] => [2888,3729,3957,4258]
[work_price] => [2564,3229,2949,3713]
[image] => https://akademik-stroy.ru/wp-content/uploads/materials/teploblok.jpg
[area_modifier] => 74.32
[parent_name] => Стены 2 этаж (несущие)
[parent_id] => 5
[material_sum] => 283320
[work_sum] => 209612
[total_sum] => 492932
[total_days] => 15
[display_material_sum] => 283 320
[display_work_sum] => 209 612
[display_total_sum] => 492 932
)
1
492 932₽
Работа:209 612 ₽
Материалы:283 320 ₽
Дни:15
stdClass Object
(
[id] => 204
[attribute_id] => 5
[name] => Арболитовые блоки
[material_modifier] => 1
[work_modifier] => 1
[options] => Array
(
[0] => 300 мм
[1] => 400 мм
[2] => 600 мм
)
[days] => [19,22,27]
[material_price] => [3210,4475,5852]
[work_price] => [4214,4788,5866]
[image] => https://akademik-stroy.ru/wp-content/uploads/materials/arbolitovye-bloki.png
[area_modifier] => 74.32
[parent_name] => Стены 2 этаж (несущие)
[parent_id] => 5
[material_sum] => 314909
[work_sum] => 344503
[total_sum] => 659412
[total_days] => 19
[display_material_sum] => 314 909
[display_work_sum] => 344 503
[display_total_sum] => 659 412
)
1
659 412₽
Работа:344 503 ₽
Материалы:314 909 ₽
Дни:19
stdClass Object
(
[id] => 205
[attribute_id] => 5
[name] => Полистиролбетон
[material_modifier] => 1
[work_modifier] => 1
[options] => Array
(
[0] => 300 мм
[1] => 400 мм
[2] => 600 мм
)
[days] => [29,31,35]
[material_price] => [2798,4573,5256]
[work_price] => [5038,5851,6426]
[image] => https://akademik-stroy.ru/wp-content/uploads/materials/polistirolbeton.jpg
[area_modifier] => 74.32
[parent_name] => Стены 2 этаж (несущие)
[parent_id] => 5
[material_sum] => 274491
[work_sum] => 411867
[total_sum] => 686358
[total_days] => 29
[display_material_sum] => 274 491
[display_work_sum] => 411 867
[display_total_sum] => 686 358
)
1
686 358₽
Работа:411 867 ₽
Материалы:274 491 ₽
Дни:29
stdClass Object
(
[id] => 206
[attribute_id] => 5
[name] => Шлакоблок
[material_modifier] => 1
[work_modifier] => 1
[options] => Array
(
[0] => 400 мм
[1] => 600 мм
)
[days] => [15,16]
[material_price] => [2391,3471]
[work_price] => [2642,3662]
[image] => https://akademik-stroy.ru/wp-content/uploads/materials/shlakoblok.jpg
[area_modifier] => 74.32
[parent_name] => Стены 2 этаж (несущие)
[parent_id] => 5
[material_sum] => 234563
[work_sum] => 215989
[total_sum] => 450552
[total_days] => 15
[display_material_sum] => 234 563
[display_work_sum] => 215 989
[display_total_sum] => 450 552
)
1
450 552₽
Работа:215 989 ₽
Материалы:234 563 ₽
Дни:15
stdClass Object
(
[id] => 245
[attribute_id] => 5
[name] => Теплая керамика
[material_modifier] => 1
[work_modifier] => 1
[options] => Array
(
[0] => 380 мм
[1] => 380 мм Thermo
[2] => 440 мм
[3] => 510 мм
)
[days] => [10,10,11,12]
[material_price] => [4510,5098,6093,8013]
[work_price] => [4737,4937,5903,6958]
[image] => https://akademik-stroy.ru/wp-content/uploads/materials/teplaya-keramika.jpg
[area_modifier] => 74.32
[parent_name] => Стены 2 этаж (несущие)
[parent_id] => 5
[material_sum] => 442442
[work_sum] => 387259
[total_sum] => 829701
[total_days] => 10
[display_material_sum] => 442 442
[display_work_sum] => 387 259
[display_total_sum] => 829 701
)
1
829 701₽
Работа:387 259 ₽
Материалы:442 442 ₽
Дни:10
stdClass Object
(
[id] => 246
[attribute_id] => 5
[name] => Несъемная опалубка
[material_modifier] => 1
[work_modifier] => 1
[options] => Array
(
[0] => 380 мм
[1] => 380 мм Thermo
[2] => 440 мм
[3] => 510 мм
)
[days] => [10,10,11,12]
[material_price] => [3302,3902,4108,5008]
[work_price] => [2100,2100,2300,2534]
[image] => https://akademik-stroy.ru/wp-content/uploads/materials/nesemnaya-opalubka.jpg
[area_modifier] => 74.32
[parent_name] => Стены 2 этаж (несущие)
[parent_id] => 5
[material_sum] => 323934
[work_sum] => 171679
[total_sum] => 495613
[total_days] => 10
[display_material_sum] => 323 934
[display_work_sum] => 171 679
[display_total_sum] => 495 613
)
1
495 613₽
Работа:171 679 ₽
Материалы:323 934 ₽
Дни:10
stdClass Object
(
[id] => 254
[attribute_id] => 5
[name] => Бревно
[material_modifier] => 1
[work_modifier] => 1
[options] => Array
(
[0] => 260 мм
[1] => 320 мм
[2] => 360 мм
[3] => 400 мм
[4] => 500 мм
)
[days] => [7,8,9,10,11]
[material_price] => [1874,24045,26930,30972,38825]
[work_price] => [5046,6207,6952,7716,9723]
[image] => https://akademik-stroy.ru/wp-content/uploads/materials/sruby.jpg
[area_modifier] => 74.32
[parent_name] => Стены 2 этаж (несущие)
[parent_id] => 5
[material_sum] => 183844
[work_sum] => 412521
[total_sum] => 596365
[total_days] => 7
[display_material_sum] => 183 844
[display_work_sum] => 412 521
[display_total_sum] => 596 365
)
1
596 365₽
Работа:412 521 ₽
Материалы:183 844 ₽
Дни:7
stdClass Object
(
[id] => 11
[attribute_id] => 6
[name] => Деревянные балки
[material_modifier] => 1
[work_modifier] => 1
[options] => Array
(
[0] => без утепления
[1] => утепление 200 мм
[2] => утепление 250 мм
[3] => утепление 300 мм
[4] => утепление 350 мм
[5] => утепление 400 мм
[6] => утепление 450 мм
[7] => утепление 500 мм
)
[days] => [8,9,9,9,11,12,13,14]
[material_price] => [1634,2042,2344,2947,3149,3652,3354,3557]
[work_price] => [1230,1339,1393,1426,1460,1513,1587,1620]
[image] => https://akademik-stroy.ru/wp-content/uploads/materials/derevyannye-balki.png
[area_modifier] => 74.32
[parent_name] => Перекрытие второго этажа
[parent_id] => 6
[material_sum] => 160299
[work_sum] => 100555
[total_sum] => 260854
[total_days] => 8
[display_material_sum] => 160 299
[display_work_sum] => 100 555
[display_total_sum] => 260 854
)
1
260 854₽
Работа:100 555 ₽
Материалы:160 299 ₽
Дни:8
stdClass Object
(
[id] => 12
[attribute_id] => 6
[name] => Сборные ж/б плиты
[material_modifier] => 1
[work_modifier] => 1
[options] => Array
(
[0] => без утепления
[1] => утепление 150 мм
[2] => утепление 200 мм
[3] => утепление 250 мм
[4] => утепление 300 мм
[5] => утепление 350 мм
[6] => утепление 400 мм
[7] => утепление 450 мм
[8] => утепление 500 мм
)
[days] => [13,15,15,15,15,15,15,15,15]
[material_price] => [3067,5577,5928,6679,7730,8782,9833,10884,11935]
[work_price] => [1520,1956,2102,2247,2392,2537,2684,2829,2974]
[image] => https://akademik-stroy.ru/wp-content/uploads/materials/sbornye-zh-b-plity-2.jpg
[area_modifier] => 74.32
[parent_name] => Перекрытие второго этажа
[parent_id] => 6
[material_sum] => 300880
[work_sum] => 124263
[total_sum] => 425143
[total_days] => 13
[display_material_sum] => 300 880
[display_work_sum] => 124 263
[display_total_sum] => 425 143
)
1
425 143₽
Работа:124 263 ₽
Материалы:300 880 ₽
Дни:13
stdClass Object
(
[id] => 100
[attribute_id] => 6
[name] => Монолитная ж/б плита
[material_modifier] => 1
[work_modifier] => 1
[options] => Array
(
[0] => без утепления
[1] => утепление 150 мм
[2] => утепление 200 мм
[3] => утепление 250 мм
[4] => утепление 300 мм
[5] => утепление 350 мм
[6] => утепление 400 мм
[7] => утепление 450 мм
[8] => утепление 500 мм
)
[days] => [18,20,20,20,20,20,20,20,20]
[material_price] => [4837,6572,7224,7375,79426,8177,8728,9180,10031]
[work_price] => [3348,3921,4112,4302,4493,4684,4875,5066,5256]
[image] => https://akademik-stroy.ru/wp-content/uploads/materials/monolitnaya-zh-b-plita-2.jpg
[area_modifier] => 74.32
[parent_name] => Перекрытие второго этажа
[parent_id] => 6
[material_sum] => 474521
[work_sum] => 273706
[total_sum] => 748227
[total_days] => 18
[display_material_sum] => 474 521
[display_work_sum] => 273 706
[display_total_sum] => 748 227
)
1
748 227₽
Работа:273 706 ₽
Материалы:474 521 ₽
Дни:18
stdClass Object
(
[id] => 164
[attribute_id] => 37
[name] => Металлочерепица
[material_modifier] => 1
[work_modifier] => 1
[options] => Array
(
)
[days] => [20]
[material_price] => [6112]
[work_price] => [5726]
[image] => https://akademik-stroy.ru/wp-content/uploads/materials/metallocherepica.jpg
[area_modifier] => 85.25
[parent_name] => Крыша (Скатная)
[parent_id] => 37
[material_sum] => 687783
[work_sum] => 536956
[total_sum] => 1224739
[total_days] => 20
[display_material_sum] => 687 783
[display_work_sum] => 536 956
[display_total_sum] => 1 224 739
)
1
1 224 739₽
Работа:536 956 ₽
Материалы:687 783 ₽
Дни:20
stdClass Object
(
[id] => 165
[attribute_id] => 37
[name] => Гибкая черепица
[material_modifier] => 1
[work_modifier] => 1
[options] => Array
(
)
[days] => [20]
[material_price] => [6980]
[work_price] => [5950]
[image] => https://akademik-stroy.ru/wp-content/uploads/materials/gibkaya-cherepica.jpg
[area_modifier] => 85.25
[parent_name] => Крыша (Скатная)
[parent_id] => 37
[material_sum] => 785459
[work_sum] => 557961
[total_sum] => 1343420
[total_days] => 20
[display_material_sum] => 785 459
[display_work_sum] => 557 961
[display_total_sum] => 1 343 420
)
1
1 343 420₽
Работа:557 961 ₽
Материалы:785 459 ₽
Дни:20
stdClass Object
(
[id] => 166
[attribute_id] => 37
[name] => Цементно-песчаная черепица
[material_modifier] => 1
[work_modifier] => 1
[options] => Array
(
)
[days] => [20]
[material_price] => [10560]
[work_price] => [9456]
[image] => https://akademik-stroy.ru/wp-content/uploads/materials/cementno-peschanaya-cherepica.jpg
[area_modifier] => 85.25
[parent_name] => Крыша (Скатная)
[parent_id] => 37
[material_sum] => 1188317
[work_sum] => 886736
[total_sum] => 2075053
[total_days] => 20
[display_material_sum] => 1 188 317
[display_work_sum] => 886 736
[display_total_sum] => 2 075 053
)
1
2 075 053₽
Работа:886 736 ₽
Материалы:1 188 317 ₽
Дни:20
stdClass Object
(
[id] => 167
[attribute_id] => 37
[name] => Композитная черепица
[material_modifier] => 1
[work_modifier] => 1
[options] => Array
(
)
[days] => [20]
[material_price] => [9506]
[work_price] => [8905]
[image] => https://akademik-stroy.ru/wp-content/uploads/materials/kompozitnaya-cherepica.jpg
[area_modifier] => 85.25
[parent_name] => Крыша (Скатная)
[parent_id] => 37
[material_sum] => 1069710
[work_sum] => 835066
[total_sum] => 1904776
[total_days] => 20
[display_material_sum] => 1 069 710
[display_work_sum] => 835 066
[display_total_sum] => 1 904 776
)
1
1 904 776₽
Работа:835 066 ₽
Материалы:1 069 710 ₽
Дни:20
stdClass Object
(
[id] => 168
[attribute_id] => 37
[name] => Керамическая черепица
[material_modifier] => 1
[work_modifier] => 1
[options] => Array
(
)
[days] => [20]
[material_price] => [12750]
[work_price] => [9456]
[image] => https://akademik-stroy.ru/wp-content/uploads/materials/keramicheskaya-cherepica.jpg
[area_modifier] => 85.25
[parent_name] => Крыша (Скатная)
[parent_id] => 37
[material_sum] => 1434758
[work_sum] => 886736
[total_sum] => 2321494
[total_days] => 20
[display_material_sum] => 1 434 758
[display_work_sum] => 886 736
[display_total_sum] => 2 321 494
)
1
2 321 494₽
Работа:886 736 ₽
Материалы:1 434 758 ₽
Дни:20
stdClass Object
(
[id] => 169
[attribute_id] => 37
[name] => Металлическая фальцевая
[material_modifier] => 1
[work_modifier] => 1
[options] => Array
(
)
[days] => [20]
[material_price] => [8550]
[work_price] => [8190]
[image] => https://akademik-stroy.ru/wp-content/uploads/materials/metallicheskaya-falcevaya.jpg
[area_modifier] => 85.25
[parent_name] => Крыша (Скатная)
[parent_id] => 37
[material_sum] => 962132
[work_sum] => 768017
[total_sum] => 1730149
[total_days] => 20
[display_material_sum] => 962 132
[display_work_sum] => 768 017
[display_total_sum] => 1 730 149
)
1
1 730 149₽
Работа:768 017 ₽
Материалы:962 132 ₽
Дни:20
stdClass Object
(
[id] => 170
[attribute_id] => 37
[name] => Медная фальцевая
[material_modifier] => 1
[work_modifier] => 1
[options] => Array
(
)
[days] => [20]
[material_price] => [20450]
[work_price] => [16750]
[image] => https://akademik-stroy.ru/wp-content/uploads/materials/mednaya-falcevaya.jpg
[area_modifier] => 85.25
[parent_name] => Крыша (Скатная)
[parent_id] => 37
[material_sum] => 2301239
[work_sum] => 1570731
[total_sum] => 3871970
[total_days] => 20
[display_material_sum] => 2 301 239
[display_work_sum] => 1 570 731
[display_total_sum] => 3 871 970
)
1
3 871 970₽
Работа:1 570 731 ₽
Материалы:2 301 239 ₽
Дни:20
stdClass Object
(
[id] => 171
[attribute_id] => 37
[name] => Зеленая кровля
[material_modifier] => 1
[work_modifier] => 1
[options] => Array
(
)
[days] => [20]
[material_price] => [19850]
[work_price] => [16780]
[image] => https://akademik-stroy.ru/wp-content/uploads/materials/zelenaya-krovlya.jpg
[area_modifier] => 85.25
[parent_name] => Крыша (Скатная)
[parent_id] => 37
[material_sum] => 2233721
[work_sum] => 1573545
[total_sum] => 3807266
[total_days] => 20
[display_material_sum] => 2 233 721
[display_work_sum] => 1 573 545
[display_total_sum] => 3 807 266
)
1
3 807 266₽
Работа:1 573 545 ₽
Материалы:2 233 721 ₽
Дни:20
stdClass Object
(
[id] => 172
[attribute_id] => 37
[name] => Профлист
[material_modifier] => 1
[work_modifier] => 1
[options] => Array
(
)
[days] => [20]
[material_price] => [3450]
[work_price] => [3750]
[image] => https://akademik-stroy.ru/wp-content/uploads/materials/proflist.jpg
[area_modifier] => 85.25
[parent_name] => Крыша (Скатная)
[parent_id] => 37
[material_sum] => 388229
[work_sum] => 351656
[total_sum] => 739885
[total_days] => 20
[display_material_sum] => 388 229
[display_work_sum] => 351 656
[display_total_sum] => 739 885
)
1
739 885₽
Работа:351 656 ₽
Материалы:388 229 ₽
Дни:20
stdClass Object
(
[id] => 51
[attribute_id] => 26
[name] => Есть
[material_modifier] => 1
[work_modifier] => 1
[options] => Array
(
[0] => Профиль 58 мм, 3-камерный, стеклопакет 2-камерный до 32 мм
[1] => Профиль 60 мм, 4-камерный, стеклопакет 2-камерный до 32 мм
[2] => Профиль 70 мм, 5-камерный, стеклопакет 2-камерный до 40 мм
[3] => Профиль 72 мм, 5-камерный, стеклопакет 2-камерный до 40 мм
[4] => Алюминиевые окна Alutech профиль 72 мм, стеклопакет 2-камерный
)
[days] => [3,3,3,3,3]
[material_price] => [1339,2124,2867,3023,29596]
[work_price] => [635,647,659,668,2579]
[image] => https://akademik-stroy.ru/wp-content/uploads/materials/okna.jpg
[area_modifier] => 129.49
[parent_name] => Окна
[parent_id] => 26
[material_sum] => 228871
[work_sum] => 90449
[total_sum] => 319320
[total_days] => 3
[display_material_sum] => 228 871
[display_work_sum] => 90 449
[display_total_sum] => 319 320
)
1
319 320₽
Работа:90 449 ₽
Материалы:228 871 ₽
Дни:3
stdClass Object
(
[id] => 52
[attribute_id] => 26
[name] => Нет
[material_modifier] => 2
[work_modifier] => 1
[options] =>
[days] => null
[material_price] => null
[work_price] => null
[image] => https://akademik-stroy.ru/wp-content/uploads/materials/okna.jpg
[area_modifier] => 129.49
[parent_name] => Окна
[parent_id] => 26
[material_sum] => 0
[work_sum] => 0
[total_sum] => 0
[total_days] => 0
[display_material_sum] => 0
[display_work_sum] => 0
[display_total_sum] => 0
)
1
0₽
Работа:0 ₽
Материалы:0 ₽
Дни:0
stdClass Object
(
[id] => 53
[attribute_id] => 27
[name] => Есть
[material_modifier] => 1
[work_modifier] => 1
[options] => Array
(
)
[days] => [1]
[material_price] => [10000]
[work_price] => [5500]
[image] => https://akademik-stroy.ru/wp-content/uploads/materials/dveri.jpg
[area_modifier] => 1
[parent_name] => Двери входные
[parent_id] => 27
[material_sum] => 13200
[work_sum] => 6050
[total_sum] => 19250
[total_days] => 1
[display_material_sum] => 13 200
[display_work_sum] => 6 050
[display_total_sum] => 19 250
)
1
19 250₽
Работа:6 050 ₽
Материалы:13 200 ₽
Дни:1
stdClass Object
(
[id] => 54
[attribute_id] => 27
[name] => Нет
[material_modifier] => 1
[work_modifier] => 1
[options] => Array
(
)
[days] => [0]
[material_price] => [0]
[work_price] => [0]
[image] => https://akademik-stroy.ru/wp-content/uploads/materials/dveri.jpg
[area_modifier] => 1
[parent_name] => Двери входные
[parent_id] => 27
[material_sum] => 0
[work_sum] => 0
[total_sum] => 0
[total_days] => 0
[display_material_sum] => 0
[display_work_sum] => 0
[display_total_sum] => 0
)
1
0₽
Работа:0 ₽
Материалы:0 ₽
Дни:0
stdClass Object
(
[id] => 25
[attribute_id] => 13
[name] => Нет
[material_modifier] => 1
[work_modifier] => 1
[options] => Array
(
)
[days] => [0]
[material_price] => [0]
[work_price] => [0]
[image] => https://akademik-stroy.ru/wp-content/uploads/materials/mineralovata-krov.jpg
[area_modifier] => 85.25
[parent_name] => Утепление кровли (Мансарда)
[parent_id] => 13
[material_sum] => 0
[work_sum] => 0
[total_sum] => 0
[total_days] => 0
[display_material_sum] => 0
[display_work_sum] => 0
[display_total_sum] => 0
)
1
0₽
Работа:0 ₽
Материалы:0 ₽
Дни:0
stdClass Object
(
[id] => 26
[attribute_id] => 13
[name] => Минераловатный
[material_modifier] => 1
[work_modifier] => 1
[options] => Array
(
[0] => 50 мм
[1] => 100 мм
[2] => 150 мм
[3] => 200 мм
[4] => 250 мм
[5] => 300 мм
[6] => 350 мм
[7] => 400 мм
[8] => 450 мм
[9] => 500 мм
)
[days] => [5,5,6,6,6,7,7,7,8,8]
[material_price] => [1158,1414,1772,2230,3602,4060,4974,5890,6408,7718]
[work_price] => [650,846,846,1098,1318,1450,1596,1754,1930,2122]
[image] => https://akademik-stroy.ru/wp-content/uploads/materials/mineralovata-krov.jpg
[area_modifier] => 85.25
[parent_name] => Утепление кровли (Мансарда)
[parent_id] => 13
[material_sum] => 130310
[work_sum] => 60954
[total_sum] => 191264
[total_days] => 5
[display_material_sum] => 130 310
[display_work_sum] => 60 954
[display_total_sum] => 191 264
)
1
191 264₽
Работа:60 954 ₽
Материалы:130 310 ₽
Дни:5
stdClass Object
(
[id] => 123
[attribute_id] => 13
[name] => Эковата (целлюлозная вата)
[material_modifier] => 1
[work_modifier] => 1
[options] => Array
(
[0] => 50 мм
[1] => 100 мм
[2] => 150 мм
[3] => 200 мм
[4] => 250 мм
[5] => 300 мм
[6] => 350 мм
[7] => 400 мм
[8] => 450 мм
[9] => 500 мм
)
[days] => [3,3,4,4,4,5,5,5,5,5]
[material_price] => [820,1638,2458,3276,5734,6552,8190,9828,11466,13104]
[work_price] => [234,304,304,396,474,522,574,632,694,764]
[image] => https://akademik-stroy.ru/wp-content/uploads/materials/ehkovata-krov.jpg
[area_modifier] => 85.25
[parent_name] => Утепление кровли (Мансарда)
[parent_id] => 13
[material_sum] => 92275
[work_sum] => 21943
[total_sum] => 114218
[total_days] => 3
[display_material_sum] => 92 275
[display_work_sum] => 21 943
[display_total_sum] => 114 218
)
1
114 218₽
Работа:21 943 ₽
Материалы:92 275 ₽
Дни:3
stdClass Object
(
[id] => 124
[attribute_id] => 13
[name] => Экструдированный пенополистирол
[material_modifier] => 1
[work_modifier] => 1
[options] => Array
(
[0] => 50 мм
[1] => 100 мм
[2] => 150 мм
[3] => 200 мм
[4] => 250 мм
[5] => 300 мм
[6] => 350 мм
[7] => 400 мм
[8] => 450 мм
[9] => 500 мм
)
[days] => [3,3,4,4,4,5,5,5,5,6]
[material_price] => [1146,2292,3438,4584,8020,9166,11458,13750,16040,18332]
[work_price] => [390,508,508,660,790,870,958,1052,1158,1274]
[image] => https://akademik-stroy.ru/wp-content/uploads/materials/epps-krov.jpg
[area_modifier] => 85.25
[parent_name] => Утепление кровли (Мансарда)
[parent_id] => 13
[material_sum] => 128959
[work_sum] => 36572
[total_sum] => 165531
[total_days] => 3
[display_material_sum] => 128 959
[display_work_sum] => 36 572
[display_total_sum] => 165 531
)
1
165 531₽
Работа:36 572 ₽
Материалы:128 959 ₽
Дни:3
stdClass Object
(
[id] => 125
[attribute_id] => 13
[name] => ПСБ (ППС-пенополистирол)
[material_modifier] => 1
[work_modifier] => 1
[options] => Array
(
[0] => 50 мм
[1] => 100 мм
[2] => 150 мм
[3] => 200 мм
[4] => 250 мм
[5] => 300 мм
[6] => 350 мм
[7] => 400 мм
[8] => 450 мм
[9] => 500 мм
)
[days] => [3,3,4,4,4,5,5,5,5,6]
[material_price] => [476,954,1430,1906,3336,3814,4766,5720,6674,7626]
[work_price] => [390,508,508,660,790,870,958,1052,1158,1274]
[image] => https://akademik-stroy.ru/wp-content/uploads/materials/psb-krov.jpg
[area_modifier] => 85.25
[parent_name] => Утепление кровли (Мансарда)
[parent_id] => 13
[material_sum] => 53564
[work_sum] => 36572
[total_sum] => 90136
[total_days] => 3
[display_material_sum] => 53 564
[display_work_sum] => 36 572
[display_total_sum] => 90 136
)
1
90 136₽
Работа:36 572 ₽
Материалы:53 564 ₽
Дни:3
stdClass Object
(
[id] => 126
[attribute_id] => 13
[name] => ППУ (Пенополиуретан)
[material_modifier] => 1
[work_modifier] => 1
[options] => Array
(
[0] => 50 мм
[1] => 100 мм
[2] => 150 мм
[3] => 200 мм
[4] => 250 мм
[5] => 300 мм
[6] => 350 мм
[7] => 400 мм
[8] => 450 мм
[9] => 500 мм
)
[days] => [2,2,3,3,3,3,4,4,4,4]
[material_price] => [2080,4160,6240,8320,14560,16640,20800,24960,29120,33280]
[work_price] => [234,304,304,396,474,522,574,632,694,764]
[image] => https://akademik-stroy.ru/wp-content/uploads/materials/ppu-krov.jpg
[area_modifier] => 85.25
[parent_name] => Утепление кровли (Мансарда)
[parent_id] => 13
[material_sum] => 234062
[work_sum] => 21943
[total_sum] => 256005
[total_days] => 2
[display_material_sum] => 234 062
[display_work_sum] => 21 943
[display_total_sum] => 256 005
)
1
256 005₽
Работа:21 943 ₽
Материалы:234 062 ₽
Дни:2
stdClass Object
(
[id] => 127
[attribute_id] => 13
[name] => PIR-плиты (пенополиизоцианурат)
[material_modifier] => 1
[work_modifier] => 1
[options] => Array
(
[0] => 50 мм
[1] => 100 мм
[2] => 150 мм
[3] => 200 мм
[4] => 250 мм
[5] => 300 мм
[6] => 350 мм
[7] => 400 мм
[8] => 450 мм
[9] => 500 мм
)
[days] => [3,3,4,4,4,5,5,5,5,6]
[material_price] => [2646,5290,7936,10580,18516,21162,26452,31742,37032,42324]
[work_price] => [390,508,508,660,790,870,958,1052,1158,1274]
[image] => https://akademik-stroy.ru/wp-content/uploads/materials/pir-krov.jpg
[area_modifier] => 85.25
[parent_name] => Утепление кровли (Мансарда)
[parent_id] => 13
[material_sum] => 297754
[work_sum] => 36572
[total_sum] => 334326
[total_days] => 3
[display_material_sum] => 297 754
[display_work_sum] => 36 572
[display_total_sum] => 334 326
)
1
334 326₽
Работа:36 572 ₽
Материалы:297 754 ₽
Дни:3
stdClass Object
(
[id] => 27
[attribute_id] => 14
[name] => Нет
[material_modifier] => 1
[work_modifier] => 1
[options] => Array
(
)
[days] => [0]
[material_price] => [0]
[work_price] => [0]
[image] => https://akademik-stroy.ru/wp-content/uploads/materials/mansardnye-okna-2.jpg
[area_modifier] => 1
[parent_name] => Мансардные окна
[parent_id] => 14
[material_sum] => 0
[work_sum] => 0
[total_sum] => 0
[total_days] => 0
[display_material_sum] => 0
[display_work_sum] => 0
[display_total_sum] => 0
)
1
0₽
Работа:0 ₽
Материалы:0 ₽
Дни:0
stdClass Object
(
[id] => 28
[attribute_id] => 14
[name] => Есть
[material_modifier] => 1
[work_modifier] => 1
[options] => Array
(
[0] => 55x78
[1] => 55x98
)
[days] => [6,7]
[material_price] => [47480,68700]
[work_price] => [17900,19500]
[image] => https://akademik-stroy.ru/wp-content/uploads/materials/mansardnye-okna-2.jpg
[area_modifier] => 1
[parent_name] => Мансардные окна
[parent_id] => 14
[material_sum] => 62674
[work_sum] => 19690
[total_sum] => 82364
[total_days] => 6
[display_material_sum] => 62 674
[display_work_sum] => 19 690
[display_total_sum] => 82 364
)
1
82 364₽
Работа:19 690 ₽
Материалы:62 674 ₽
Дни:6
stdClass Object
(
[id] => 29
[attribute_id] => 15
[name] => Нет
[material_modifier] => 1
[work_modifier] => 1
[options] => Array
(
)
[days] => [0]
[material_price] => [0]
[work_price] => [0]
[image] => https://akademik-stroy.ru/wp-content/uploads/materials/sofit.jpg
[area_modifier] => 85.25
[parent_name] => Подшивка кровли
[parent_id] => 15
[material_sum] => 0
[work_sum] => 0
[total_sum] => 0
[total_days] => 0
[display_material_sum] => 0
[display_work_sum] => 0
[display_total_sum] => 0
)
1
0₽
Работа:0 ₽
Материалы:0 ₽
Дни:0
stdClass Object
(
[id] => 30
[attribute_id] => 15
[name] => Есть
[material_modifier] => 1
[work_modifier] => 1
[options] => Array
(
[0] => Софиты (ПВХ)
[1] => Cedral
[2] => ДПК
[3] => Планкен
)
[days] => [7,10,9,8]
[material_price] => [1803,3213,3025,3150]
[work_price] => [1529,2188,2075,1923]
[image] => https://akademik-stroy.ru/wp-content/uploads/materials/sofit.jpg
[area_modifier] => 85.25
[parent_name] => Подшивка кровли
[parent_id] => 15
[material_sum] => 202892
[work_sum] => 143382
[total_sum] => 346274
[total_days] => 7
[display_material_sum] => 202 892
[display_work_sum] => 143 382
[display_total_sum] => 346 274
)
1
346 274₽
Работа:143 382 ₽
Материалы:202 892 ₽
Дни:7
stdClass Object
(
[id] => 31
[attribute_id] => 16
[name] => Нет
[material_modifier] => 1
[work_modifier] => 1
[options] => Array
(
)
[days] => [0]
[material_price] => [0]
[work_price] => [0]
[image] => https://akademik-stroy.ru/wp-content/uploads/materials/docke-standard-pvh.jpg
[area_modifier] => 85.25
[parent_name] => Водосточная система
[parent_id] => 16
[material_sum] => 0
[work_sum] => 0
[total_sum] => 0
[total_days] => 0
[display_material_sum] => 0
[display_work_sum] => 0
[display_total_sum] => 0
)
1
0₽
Работа:0 ₽
Материалы:0 ₽
Дни:0
stdClass Object
(
[id] => 32
[attribute_id] => 16
[name] => Есть
[material_modifier] => 1
[work_modifier] => 1
[options] => Array
(
[0] => Döcke Standard (ПВХ)
[1] => Металлические Grand Line
)
[days] => [7,7]
[material_price] => [1842,2703]
[work_price] => [1491,1529]
[image] => https://akademik-stroy.ru/wp-content/uploads/materials/docke-standard-pvh.jpg
[area_modifier] => 85.25
[parent_name] => Водосточная система
[parent_id] => 16
[material_sum] => 207280
[work_sum] => 139819
[total_sum] => 347099
[total_days] => 7
[display_material_sum] => 207 280
[display_work_sum] => 139 819
[display_total_sum] => 347 099
)
1
347 099₽
Работа:139 819 ₽
Материалы:207 280 ₽
Дни:7
stdClass Object
(
[id] => 33
[attribute_id] => 17
[name] => Нет
[material_modifier] => 1
[work_modifier] => 1
[options] => Array
(
)
[days] => [0]
[material_price] => [0]
[work_price] => [0]
[image] => https://akademik-stroy.ru/wp-content/uploads/materials/mineralovata.jpg
[area_modifier] => 159.57
[parent_name] => Дополнительное утепление наружных стен
[parent_id] => 17
[material_sum] => 0
[work_sum] => 0
[total_sum] => 0
[total_days] => 0
[display_material_sum] => 0
[display_work_sum] => 0
[display_total_sum] => 0
)
1
0₽
Работа:0 ₽
Материалы:0 ₽
Дни:0
stdClass Object
(
[id] => 34
[attribute_id] => 17
[name] => Минераловатный
[material_modifier] => 1
[work_modifier] => 1
[options] => Array
(
[0] => 50 мм
[1] => 100 мм
[2] => 150 мм
[3] => 200 мм
[4] => 250 мм
[5] => 300 мм
)
[days] => [7,8,10,12,14,15]
[material_price] => [3437,3613,3803,3915,4601,4830]
[work_price] => [2325,2423,2523,2749,2859,3025]
[image] => https://akademik-stroy.ru/wp-content/uploads/materials/mineralovata.jpg
[area_modifier] => 159.57
[parent_name] => Дополнительное утепление наружных стен
[parent_id] => 17
[material_sum] => 723944
[work_sum] => 408100
[total_sum] => 1132044
[total_days] => 7
[display_material_sum] => 723 944
[display_work_sum] => 408 100
[display_total_sum] => 1 132 044
)
1
1 132 044₽
Работа:408 100 ₽
Материалы:723 944 ₽
Дни:7
stdClass Object
(
[id] => 128
[attribute_id] => 17
[name] => Эковата (целлюлозная вата)
[material_modifier] => 1
[work_modifier] => 1
[options] => Array
(
[0] => 50 мм
[1] => 100 мм
[2] => 150 мм
[3] => 200 мм
[4] => 250 мм
[5] => 300 мм
)
[days] => [3,4,5,6,7,8]
[material_price] => [810,1319,1629,1838,2267,2676]
[work_price] => [1225,1323,1423,1549,1659,1725]
[image] => https://akademik-stroy.ru/wp-content/uploads/materials/ehkovata.jpg
[area_modifier] => 159.57
[parent_name] => Дополнительное утепление наружных стен
[parent_id] => 17
[material_sum] => 170612
[work_sum] => 215021
[total_sum] => 385633
[total_days] => 3
[display_material_sum] => 170 612
[display_work_sum] => 215 021
[display_total_sum] => 385 633
)
1
385 633₽
Работа:215 021 ₽
Материалы:170 612 ₽
Дни:3
stdClass Object
(
[id] => 129
[attribute_id] => 17
[name] => Экструдированный пенополистирол
[material_modifier] => 1
[work_modifier] => 1
[options] => Array
(
[0] => 50 мм
[1] => 100 мм
[2] => 150 мм
[3] => 200 мм
[4] => 250 мм
[5] => 300 мм
)
[days] => [5,6,7,8,9,10]
[material_price] => [4560,4300,5119,6292,7010,8583]
[work_price] => [1795,1954,2254,2330,2595,2735]
[image] => https://akademik-stroy.ru/wp-content/uploads/materials/epps.jpg
[area_modifier] => 159.57
[parent_name] => Дополнительное утепление наружных стен
[parent_id] => 17
[material_sum] => 960484
[work_sum] => 315071
[total_sum] => 1275555
[total_days] => 5
[display_material_sum] => 960 484
[display_work_sum] => 315 071
[display_total_sum] => 1 275 555
)
1
1 275 555₽
Работа:315 071 ₽
Материалы:960 484 ₽
Дни:5
stdClass Object
(
[id] => 130
[attribute_id] => 17
[name] => ПСБ (ППС-пенополистирол)
[material_modifier] => 1
[work_modifier] => 1
[options] => Array
(
[0] => 50 мм
[1] => 100 мм
[2] => 150 мм
[3] => 200 мм
[4] => 250 мм
[5] => 300 мм
)
[days] => [5,6,7,8,9,10]
[material_price] => [4822,5200,5819,6292,7010,7583]
[work_price] => [1795,1954,2254,2330,2595,2735]
[image] => https://akademik-stroy.ru/wp-content/uploads/materials/psb.jpg
[area_modifier] => 159.57
[parent_name] => Дополнительное утепление наружных стен
[parent_id] => 17
[material_sum] => 1015669
[work_sum] => 315071
[total_sum] => 1330740
[total_days] => 5
[display_material_sum] => 1 015 669
[display_work_sum] => 315 071
[display_total_sum] => 1 330 740
)
1
1 330 740₽
Работа:315 071 ₽
Материалы:1 015 669 ₽
Дни:5
stdClass Object
(
[id] => 131
[attribute_id] => 17
[name] => ППУ (Пенополиуретан)
[material_modifier] => 1
[work_modifier] => 1
[options] => Array
(
[0] => 50 мм
[1] => 100 мм
[2] => 150 мм
[3] => 200 мм
[4] => 250 мм
[5] => 300 мм
)
[days] => [3,4,5,6,7,8]
[material_price] => [2860,3400,4219,4592,5010,5583]
[work_price] => [729,900,980,1120,1280,1530]
[image] => https://akademik-stroy.ru/wp-content/uploads/materials/ppu.jpg
[area_modifier] => 159.57
[parent_name] => Дополнительное утепление наружных стен
[parent_id] => 17
[material_sum] => 602409
[work_sum] => 127959
[total_sum] => 730368
[total_days] => 3
[display_material_sum] => 602 409
[display_work_sum] => 127 959
[display_total_sum] => 730 368
)
1
730 368₽
Работа:127 959 ₽
Материалы:602 409 ₽
Дни:3
stdClass Object
(
[id] => 132
[attribute_id] => 17
[name] => PIR-плиты (пенополиизоцианурат)
[material_modifier] => 1
[work_modifier] => 1
[options] => Array
(
[0] => 50 мм
[1] => 100 мм
[2] => 150 мм
[3] => 200 мм
[4] => 250 мм
[5] => 300 мм
)
[days] => [5,6,7,8,9,10]
[material_price] => [8323,15645,20968,25900,29258,30581]
[work_price] => [800,900,970,1150,1280,1330]
[image] => https://akademik-stroy.ru/wp-content/uploads/materials/pir.jpg
[area_modifier] => 159.57
[parent_name] => Дополнительное утепление наружных стен
[parent_id] => 17
[material_sum] => 1753093
[work_sum] => 140422
[total_sum] => 1893515
[total_days] => 5
[display_material_sum] => 1 753 093
[display_work_sum] => 140 422
[display_total_sum] => 1 893 515
)
1
1 893 515₽
Работа:140 422 ₽
Материалы:1 753 093 ₽
Дни:5
stdClass Object
(
[id] => 37
[attribute_id] => 19
[name] => Нет
[material_modifier] => 1
[work_modifier] => 1
[options] => Array
(
)
[days] => [0]
[material_price] => [0]
[work_price] => [0]
[image] => https://akademik-stroy.ru/wp-content/uploads/materials/imitaciya-brusa.jpg
[area_modifier] => 159.57
[parent_name] => Наружная отделка фасада
[parent_id] => 19
[material_sum] => 0
[work_sum] => 0
[total_sum] => 0
[total_days] => 0
[display_material_sum] => 0
[display_work_sum] => 0
[display_total_sum] => 0
)
1
0₽
Работа:0 ₽
Материалы:0 ₽
Дни:0
stdClass Object
(
[id] => 38
[attribute_id] => 19
[name] => Имитация бруса
[material_modifier] => 1
[work_modifier] => 1
[options] => Array
(
[0] => Сосна
[1] => Ель
[2] => Лиственница
)
[days] => [20,20,20]
[material_price] => [2994,2762,4954]
[work_price] => [1397,1231,1577]
[image] => https://akademik-stroy.ru/wp-content/uploads/materials/imitaciya-brusa.jpg
[area_modifier] => 159.57
[parent_name] => Наружная отделка фасада
[parent_id] => 19
[material_sum] => 630633
[work_sum] => 245211
[total_sum] => 875844
[total_days] => 20
[display_material_sum] => 630 633
[display_work_sum] => 245 211
[display_total_sum] => 875 844
)
1
875 844₽
Работа:245 211 ₽
Материалы:630 633 ₽
Дни:20
stdClass Object
(
[id] => 136
[attribute_id] => 19
[name] => Планкен
[material_modifier] => 1
[work_modifier] => 1
[options] => Array
(
[0] => Сосна
[1] => Ель
[2] => Лиственница
)
[days] => [20,20,20]
[material_price] => [3194,2862,5154]
[work_price] => [1537,1354,1735]
[image] => https://akademik-stroy.ru/wp-content/uploads/materials/planken.jpg
[area_modifier] => 159.57
[parent_name] => Наружная отделка фасада
[parent_id] => 19
[material_sum] => 672760
[work_sum] => 269785
[total_sum] => 942545
[total_days] => 20
[display_material_sum] => 672 760
[display_work_sum] => 269 785
[display_total_sum] => 942 545
)
1
942 545₽
Работа:269 785 ₽
Материалы:672 760 ₽
Дни:20
stdClass Object
(
[id] => 137
[attribute_id] => 19
[name] => Штукатурка
[material_modifier] => 1
[work_modifier] => 1
[options] => Array
(
[0] => Цементно-песчаная (минеральная)
[1] => Мокрый фасад
)
[days] => [35,35]
[material_price] => [2231,3938]
[work_price] => [1202,2422]
[image] => https://akademik-stroy.ru/wp-content/uploads/materials/shtukaturka.jpg
[area_modifier] => 159.57
[parent_name] => Наружная отделка фасада
[parent_id] => 19
[material_sum] => 469921
[work_sum] => 210983
[total_sum] => 680904
[total_days] => 35
[display_material_sum] => 469 921
[display_work_sum] => 210 983
[display_total_sum] => 680 904
)
1
680 904₽
Работа:210 983 ₽
Материалы:469 921 ₽
Дни:35
stdClass Object
(
[id] => 138
[attribute_id] => 19
[name] => Облицовочный кирпич
[material_modifier] => 1
[work_modifier] => 1
[options] => Array
(
[0] => Керамический
[1] => Клинкерный
[2] => Ручной формовки
[3] => Гиперпрессованный
[4] => Силикатный кирпич
)
[days] => [45,45,45,45,45]
[material_price] => [8174,9148,1040,1257,5876]
[work_price] => [3240,3758,4536,4017,3369]
[image] => https://akademik-stroy.ru/wp-content/uploads/materials/oblicovochnyj-kirpich.jpg
[area_modifier] => 159.57
[parent_name] => Наружная отделка фасада
[parent_id] => 19
[material_sum] => 1721709
[work_sum] => 568707
[total_sum] => 2290416
[total_days] => 45
[display_material_sum] => 1 721 709
[display_work_sum] => 568 707
[display_total_sum] => 2 290 416
)
1
2 290 416₽
Работа:568 707 ₽
Материалы:1 721 709 ₽
Дни:45
stdClass Object
(
[id] => 139
[attribute_id] => 19
[name] => Фасадная плитка
[material_modifier] => 1
[work_modifier] => 1
[options] => Array
(
[0] => Клинкерная
[1] => Керамическая
[2] => Плитка ручной формовки
)
[days] => [40,40,40]
[material_price] => [2974,1487,3470]
[work_price] => [3007,2592,3629]
[image] => https://akademik-stroy.ru/wp-content/uploads/materials/fasadnaya-plitka.jpg
[area_modifier] => 159.57
[parent_name] => Наружная отделка фасада
[parent_id] => 19
[material_sum] => 626421
[work_sum] => 527810
[total_sum] => 1154231
[total_days] => 40
[display_material_sum] => 626 421
[display_work_sum] => 527 810
[display_total_sum] => 1 154 231
)
1
1 154 231₽
Работа:527 810 ₽
Материалы:626 421 ₽
Дни:40
stdClass Object
(
[id] => 140
[attribute_id] => 19
[name] => Сайдинг
[material_modifier] => 1
[work_modifier] => 1
[options] => Array
(
[0] => Виниловый
[1] => Металлический
[2] => Фиброцементный
)
[days] => [20,20,20]
[material_price] => [1263,1944,4147]
[work_price] => [1263,1944,2074]
[image] => https://akademik-stroy.ru/wp-content/uploads/materials/sajding.jpg
[area_modifier] => 159.57
[parent_name] => Наружная отделка фасада
[parent_id] => 19
[material_sum] => 266029
[work_sum] => 221691
[total_sum] => 487720
[total_days] => 20
[display_material_sum] => 266 029
[display_work_sum] => 221 691
[display_total_sum] => 487 720
)
1
487 720₽
Работа:221 691 ₽
Материалы:266 029 ₽
Дни:20
stdClass Object
(
[id] => 141
[attribute_id] => 19
[name] => Камень
[material_modifier] => 1
[work_modifier] => 1
[options] => Array
(
[0] => Травертин
[1] => Дагестанский
[2] => Искусственный
[3] => Натуральный
[4] => Керамогранит
)
[days] => [45,45,45,45,45]
[material_price] => [4536,3888,2592,3240,2462]
[work_price] => [3240,3240,2462,3110,1944]
[image] => https://akademik-stroy.ru/wp-content/uploads/materials/kamen-1.jpg
[area_modifier] => 159.57
[parent_name] => Наружная отделка фасада
[parent_id] => 19
[material_sum] => 955429
[work_sum] => 568707
[total_sum] => 1524136
[total_days] => 45
[display_material_sum] => 955 429
[display_work_sum] => 568 707
[display_total_sum] => 1 524 136
)
1
1 524 136₽
Работа:568 707 ₽
Материалы:955 429 ₽
Дни:45
stdClass Object
(
[id] => 142
[attribute_id] => 19
[name] => Термопанели
[material_modifier] => 1
[work_modifier] => 1
[options] => Array
(
)
[days] => [20]
[material_price] => [6221]
[work_price] => [2333]
[image] => https://akademik-stroy.ru/wp-content/uploads/materials/termo.png
[area_modifier] => 159.57
[parent_name] => Наружная отделка фасада
[parent_id] => 19
[material_sum] => 1310344
[work_sum] => 409504
[total_sum] => 1719848
[total_days] => 20
[display_material_sum] => 1 310 344
[display_work_sum] => 409 504
[display_total_sum] => 1 719 848
)
1
1 719 848₽
Работа:409 504 ₽
Материалы:1 310 344 ₽
Дни:20
stdClass Object
(
[id] => 143
[attribute_id] => 19
[name] => Плитка HAUBERK
[material_modifier] => 1
[work_modifier] => 1
[options] => Array
(
)
[days] => [20]
[material_price] => [2786]
[work_price] => [1944]
[image] => https://akademik-stroy.ru/wp-content/uploads/materials/hauberk.jpg
[area_modifier] => 159.57
[parent_name] => Наружная отделка фасада
[parent_id] => 19
[material_sum] => 586822
[work_sum] => 341224
[total_sum] => 928046
[total_days] => 20
[display_material_sum] => 586 822
[display_work_sum] => 341 224
[display_total_sum] => 928 046
)
1
928 046₽
Работа:341 224 ₽
Материалы:586 822 ₽
Дни:20
stdClass Object
(
[id] => 144
[attribute_id] => 19
[name] => Фальцевый фасад
[material_modifier] => 1
[work_modifier] => 1
[options] => Array
(
)
[days] => [20]
[material_price] => [3240]
[work_price] => [2592]
[image] => https://akademik-stroy.ru/wp-content/uploads/materials/falcevyj-fasad.jpg
[area_modifier] => 159.57
[parent_name] => Наружная отделка фасада
[parent_id] => 19
[material_sum] => 682449
[work_sum] => 454966
[total_sum] => 1137415
[total_days] => 20
[display_material_sum] => 682 449
[display_work_sum] => 454 966
[display_total_sum] => 1 137 415
)
1
1 137 415₽
Работа:454 966 ₽
Материалы:682 449 ₽
Дни:20
stdClass Object
(
[id] => 145
[attribute_id] => 19
[name] => Комбинированный
[material_modifier] => 1
[work_modifier] => 1
[options] => Array
(
)
[days] => [20]
[material_price] => [4629]
[work_price] => [3499]
[image] => https://akademik-stroy.ru/wp-content/uploads/materials/Kombinirovannyj.jpg
[area_modifier] => 159.57
[parent_name] => Наружная отделка фасада
[parent_id] => 19
[material_sum] => 975017
[work_sum] => 614169
[total_sum] => 1589186
[total_days] => 20
[display_material_sum] => 975 017
[display_work_sum] => 614 169
[display_total_sum] => 1 589 186
)
1
1 589 186₽
Работа:614 169 ₽
Материалы:975 017 ₽
Дни:20
stdClass Object
(
[id] => 257
[attribute_id] => 19
[name] => Японские фиброцементные
[material_modifier] => 1
[work_modifier] => 1
[options] => Array
(
)
[days] => [20]
[material_price] => [7043]
[work_price] => [2993]
[image] => https://akademik-stroy.ru/wp-content/uploads/materials/paneli.jpg
[area_modifier] => 159.57
[parent_name] => Наружная отделка фасада
[parent_id] => 19
[material_sum] => 1483484
[work_sum] => 525352
[total_sum] => 2008836
[total_days] => 20
[display_material_sum] => 1 483 484
[display_work_sum] => 525 352
[display_total_sum] => 2 008 836
)
1
2 008 836₽
Работа:525 352 ₽
Материалы:1 483 484 ₽
Дни:20
stdClass Object
(
[id] => 258
[attribute_id] => 19
[name] => Панели Каньон
[material_modifier] => 1
[work_modifier] => 1
[options] => Array
(
)
[days] => [20]
[material_price] => [4543]
[work_price] => [2592]
[image] => https://akademik-stroy.ru/wp-content/uploads/materials/kanon.png
[area_modifier] => 159.57
[parent_name] => Наружная отделка фасада
[parent_id] => 19
[material_sum] => 956903
[work_sum] => 454966
[total_sum] => 1411869
[total_days] => 20
[display_material_sum] => 956 903
[display_work_sum] => 454 966
[display_total_sum] => 1 411 869
)
1
1 411 869₽
Работа:454 966 ₽
Материалы:956 903 ₽
Дни:20
stdClass Object
(
[id] => 39
[attribute_id] => 20
[name] => Нет
[material_modifier] => 1
[work_modifier] => 1
[options] => Array
(
)
[days] => [0]
[material_price] => [0]
[work_price] => [0]
[image] => https://akademik-stroy.ru/wp-content/uploads/materials/terrasy.jpg
[area_modifier] => 30
[parent_name] => Террасы, крыльца, навесы
[parent_id] => 20
[material_sum] => 0
[work_sum] => 0
[total_sum] => 0
[total_days] => 0
[display_material_sum] => 0
[display_work_sum] => 0
[display_total_sum] => 0
)
1
0₽
Работа:0 ₽
Материалы:0 ₽
Дни:0
stdClass Object
(
[id] => 40
[attribute_id] => 20
[name] => Есть
[material_modifier] => 1
[work_modifier] => 1
[options] => Array
(
)
[days] => [5]
[material_price] => [10450]
[work_price] => [1950]
[image] => https://akademik-stroy.ru/wp-content/uploads/materials/terrasy.jpg
[area_modifier] => 30
[parent_name] => Террасы, крыльца, навесы
[parent_id] => 20
[material_sum] => 413820
[work_sum] => 64350
[total_sum] => 478170
[total_days] => 5
[display_material_sum] => 413 820
[display_work_sum] => 64 350
[display_total_sum] => 478 170
)
1
478 170₽
Работа:64 350 ₽
Материалы:413 820 ₽
Дни:5
stdClass Object
(
[id] => 41
[attribute_id] => 21
[name] => Нет
[material_modifier] => 1
[work_modifier] => 1
[options] => Array
(
)
[days] => [0]
[material_price] => [0]
[work_price] => [0]
[image] => https://akademik-stroy.ru/wp-content/uploads/materials/balkony.jpg
[area_modifier] => 30
[parent_name] => Балконы
[parent_id] => 21
[material_sum] => 0
[work_sum] => 0
[total_sum] => 0
[total_days] => 0
[display_material_sum] => 0
[display_work_sum] => 0
[display_total_sum] => 0
)
1
0₽
Работа:0 ₽
Материалы:0 ₽
Дни:0
stdClass Object
(
[id] => 42
[attribute_id] => 21
[name] => Есть
[material_modifier] => 1
[work_modifier] => 1
[options] => Array
(
)
[days] => [12]
[material_price] => [3600]
[work_price] => [1950]
[image] => https://akademik-stroy.ru/wp-content/uploads/materials/balkony.jpg
[area_modifier] => 30
[parent_name] => Балконы
[parent_id] => 21
[material_sum] => 142560
[work_sum] => 64350
[total_sum] => 206910
[total_days] => 12
[display_material_sum] => 142 560
[display_work_sum] => 64 350
[display_total_sum] => 206 910
)
1
206 910₽
Работа:64 350 ₽
Материалы:142 560 ₽
Дни:12
stdClass Object
(
[id] => 43
[attribute_id] => 22
[name] => Нет
[material_modifier] => 1
[work_modifier] => 1
[options] => Array
(
)
[days] => [0]
[material_price] => [0]
[work_price] => [0]
[image] => https://akademik-stroy.ru/wp-content/uploads/materials/uteplennaya.jpg
[area_modifier] => 85.25
[parent_name] => Отмостка
[parent_id] => 22
[material_sum] => 0
[work_sum] => 0
[total_sum] => 0
[total_days] => 0
[display_material_sum] => 0
[display_work_sum] => 0
[display_total_sum] => 0
)
1
0₽
Работа:0 ₽
Материалы:0 ₽
Дни:0
stdClass Object
(
[id] => 44
[attribute_id] => 22
[name] => Утепленная отмостка
[material_modifier] => 1
[work_modifier] => 1
[options] => Array
(
)
[days] => [15]
[material_price] => [2550]
[work_price] => [1750]
[image] => https://akademik-stroy.ru/wp-content/uploads/materials/uteplennaya.jpg
[area_modifier] => 85.25
[parent_name] => Отмостка
[parent_id] => 22
[material_sum] => 286952
[work_sum] => 164106
[total_sum] => 451058
[total_days] => 15
[display_material_sum] => 286 952
[display_work_sum] => 164 106
[display_total_sum] => 451 058
)
1
451 058₽
Работа:164 106 ₽
Материалы:286 952 ₽
Дни:15
stdClass Object
(
[id] => 146
[attribute_id] => 22
[name] => Не утепленная отмостка
[material_modifier] => 1
[work_modifier] => 1
[options] => Array
(
)
[days] => [10]
[material_price] => [1650]
[work_price] => [1450]
[image] => https://akademik-stroy.ru/wp-content/uploads/materials/ne-uteplennaya.jpg
[area_modifier] => 85.25
[parent_name] => Отмостка
[parent_id] => 22
[material_sum] => 185675
[work_sum] => 135974
[total_sum] => 321649
[total_days] => 10
[display_material_sum] => 185 675
[display_work_sum] => 135 974
[display_total_sum] => 321 649
)
1
321 649₽
Работа:135 974 ₽
Материалы:185 675 ₽
Дни:10
stdClass Object
(
[id] => 45
[attribute_id] => 23
[name] => Нет
[material_modifier] => 1
[work_modifier] => 1
[options] => Array
(
)
[days] => [0]
[material_price] => [0]
[work_price] => [0]
[image] => https://akademik-stroy.ru/wp-content/uploads/materials/drenazh-2.jpg
[area_modifier] => 85.25
[parent_name] => Дренаж вокруг дома
[parent_id] => 23
[material_sum] => 0
[work_sum] => 0
[total_sum] => 0
[total_days] => 0
[display_material_sum] => 0
[display_work_sum] => 0
[display_total_sum] => 0
)
1
0₽
Работа:0 ₽
Материалы:0 ₽
Дни:0
stdClass Object
(
[id] => 46
[attribute_id] => 23
[name] => Есть
[material_modifier] => 1
[work_modifier] => 1
[options] => Array
(
)
[days] => [5]
[material_price] => [2366]
[work_price] => [1911]
[image] => https://akademik-stroy.ru/wp-content/uploads/materials/drenazh-2.jpg
[area_modifier] => 85.25
[parent_name] => Дренаж вокруг дома
[parent_id] => 23
[material_sum] => 266246
[work_sum] => 179204
[total_sum] => 445450
[total_days] => 5
[display_material_sum] => 266 246
[display_work_sum] => 179 204
[display_total_sum] => 445 450
)
1
445 450₽
Работа:179 204 ₽
Материалы:266 246 ₽
Дни:5
stdClass Object
(
[id] => 47
[attribute_id] => 24
[name] => Нет
[material_modifier] => 1
[work_modifier] => 1
[options] => Array
(
)
[days] => [0]
[material_price] => [0]
[work_price] => [0]
[image] => https://akademik-stroy.ru/wp-content/uploads/materials/septik.jpg
[area_modifier] => 1
[parent_name] => Автономная канализация (септики)
[parent_id] => 24
[material_sum] => 0
[work_sum] => 0
[total_sum] => 0
[total_days] => 0
[display_material_sum] => 0
[display_work_sum] => 0
[display_total_sum] => 0
)
1
0₽
Работа:0 ₽
Материалы:0 ₽
Дни:0
stdClass Object
(
[id] => 48
[attribute_id] => 24
[name] => Есть
[material_modifier] => 1
[work_modifier] => 1
[options] => Array
(
[0] => Для дачи на 4 человека
[1] => Для дома на 5 человек
[2] => Для дома на 6 человек
[3] => Для дома на 7 человек
[4] => Для дома на 10 человек
)
[days] => [7,7,7,8,8]
[material_price] => [196340,220500,240940,264200,293340]
[work_price] => [50000,55000,60500,66550,73206]
[image] => https://akademik-stroy.ru/wp-content/uploads/materials/septik.jpg
[area_modifier] => 1
[parent_name] => Автономная канализация (септики)
[parent_id] => 24
[material_sum] => 259169
[work_sum] => 55000
[total_sum] => 314169
[total_days] => 7
[display_material_sum] => 259 169
[display_work_sum] => 55 000
[display_total_sum] => 314 169
)
1
314 169₽
Работа:55 000 ₽
Материалы:259 169 ₽
Дни:7
stdClass Object
(
[id] => 49
[attribute_id] => 25
[name] => Нет
[material_modifier] => 1
[work_modifier] => 1
[options] => Array
(
)
[days] => [0]
[material_price] => [0]
[work_price] => [0]
[image] => https://akademik-stroy.ru/wp-content/uploads/materials/gkl.jpg
[area_modifier] => 159.57
[parent_name] => Внутренние (не несущие) перегородки
[parent_id] => 25
[material_sum] => 0
[work_sum] => 0
[total_sum] => 0
[total_days] => 0
[display_material_sum] => 0
[display_work_sum] => 0
[display_total_sum] => 0
)
1
0₽
Работа:0 ₽
Материалы:0 ₽
Дни:0
stdClass Object
(
[id] => 147
[attribute_id] => 25
[name] => Каркасно-обшивные
[material_modifier] => 1
[work_modifier] => 1
[options] => Array
(
[0] => 75 мм (без шумоизоляции)
[1] => 75 мм (с шумоизоляцией)
)
[days] => [11,11]
[material_price] => [580,970]
[work_price] => [380,570]
[image] => https://akademik-stroy.ru/wp-content/uploads/materials/gkl.jpg
[area_modifier] => 159.57
[parent_name] => Внутренние (не несущие) перегородки
[parent_id] => 25
[material_sum] => 122167
[work_sum] => 66700
[total_sum] => 188867
[total_days] => 11
[display_material_sum] => 122 167
[display_work_sum] => 66 700
[display_total_sum] => 188 867
)
1
188 867₽
Работа:66 700 ₽
Материалы:122 167 ₽
Дни:11
stdClass Object
(
[id] => 148
[attribute_id] => 25
[name] => Пазогребневые
[material_modifier] => 1
[work_modifier] => 1
[options] => Array
(
[0] => 80 мм
[1] => 100 мм
)
[days] => [5,5]
[material_price] => [1022,1313]
[work_price] => [600,700]
[image] => https://akademik-stroy.ru/wp-content/uploads/materials/pazogrebnevye-bloki.jpg
[area_modifier] => 159.57
[parent_name] => Внутренние (не несущие) перегородки
[parent_id] => 25
[material_sum] => 215266
[work_sum] => 105316
[total_sum] => 320582
[total_days] => 5
[display_material_sum] => 215 266
[display_work_sum] => 105 316
[display_total_sum] => 320 582
)
1
320 582₽
Работа:105 316 ₽
Материалы:215 266 ₽
Дни:5
stdClass Object
(
[id] => 149
[attribute_id] => 25
[name] => Газобетонные
[material_modifier] => 1
[work_modifier] => 1
[options] => Array
(
[0] => 100 мм
[1] => 200 мм
)
[days] => [11,11]
[material_price] => [1160,1920]
[work_price] => [700,900]
[image] => https://akademik-stroy.ru/wp-content/uploads/materials/gazobeton-2.jpg
[area_modifier] => 159.57
[parent_name] => Внутренние (не несущие) перегородки
[parent_id] => 25
[material_sum] => 244334
[work_sum] => 122869
[total_sum] => 367203
[total_days] => 11
[display_material_sum] => 244 334
[display_work_sum] => 122 869
[display_total_sum] => 367 203
)
1
367 203₽
Работа:122 869 ₽
Материалы:244 334 ₽
Дни:11
stdClass Object
(
[id] => 150
[attribute_id] => 25
[name] => Кирпичные
[material_modifier] => 1
[work_modifier] => 1
[options] => Array
(
[0] => 120 мм
[1] => 250 мм
[2] => 360 мм
)
[days] => [7,7,7]
[material_price] => [1785,3570,5355]
[work_price] => [900,1600,1800]
[image] => https://akademik-stroy.ru/wp-content/uploads/materials/kirpich-1.jpg
[area_modifier] => 159.57
[parent_name] => Внутренние (не несущие) перегородки
[parent_id] => 25
[material_sum] => 375979
[work_sum] => 157974
[total_sum] => 533953
[total_days] => 7
[display_material_sum] => 375 979
[display_work_sum] => 157 974
[display_total_sum] => 533 953
)
1
533 953₽
Работа:157 974 ₽
Материалы:375 979 ₽
Дни:7
stdClass Object
(
[id] => 55
[attribute_id] => 28
[name] => Нет
[material_modifier] => 1
[work_modifier] => 1
[options] => Array
(
)
[days] => [0]
[material_price] => [0]
[work_price] => [0]
[image] => https://akademik-stroy.ru/wp-content/uploads/materials/ehlektrika.jpg
[area_modifier] => 129.49
[parent_name] => Электрика
[parent_id] => 28
[material_sum] => 0
[work_sum] => 0
[total_sum] => 0
[total_days] => 0
[display_material_sum] => 0
[display_work_sum] => 0
[display_total_sum] => 0
)
1
0₽
Работа:0 ₽
Материалы:0 ₽
Дни:0
stdClass Object
(
[id] => 56
[attribute_id] => 28
[name] => Есть
[material_modifier] => 1
[work_modifier] => 1
[options] => Array
(
)
[days] => [10]
[material_price] => [650]
[work_price] => [950]
[image] => https://akademik-stroy.ru/wp-content/uploads/materials/ehlektrika.jpg
[area_modifier] => 129.49
[parent_name] => Электрика
[parent_id] => 28
[material_sum] => 111102
[work_sum] => 135317
[total_sum] => 246419
[total_days] => 10
[display_material_sum] => 111 102
[display_work_sum] => 135 317
[display_total_sum] => 246 419
)
1
246 419₽
Работа:135 317 ₽
Материалы:111 102 ₽
Дни:10
stdClass Object
(
[id] => 57
[attribute_id] => 29
[name] => Нет
[material_modifier] => 1
[work_modifier] => 1
[options] => Array
(
)
[days] => [0]
[material_price] => [0]
[work_price] => [0]
[image] => https://akademik-stroy.ru/wp-content/uploads/materials/santekhnika-kanalizaciya-1.jpg
[area_modifier] => 129.49
[parent_name] => Сантехника, канализация в доме
[parent_id] => 29
[material_sum] => 0
[work_sum] => 0
[total_sum] => 0
[total_days] => 0
[display_material_sum] => 0
[display_work_sum] => 0
[display_total_sum] => 0
)
1
0₽
Работа:0 ₽
Материалы:0 ₽
Дни:0
stdClass Object
(
[id] => 58
[attribute_id] => 29
[name] => Есть
[material_modifier] => 1
[work_modifier] => 1
[options] => Array
(
)
[days] => [10]
[material_price] => [600]
[work_price] => [730]
[image] => https://akademik-stroy.ru/wp-content/uploads/materials/santekhnika-kanalizaciya-1.jpg
[area_modifier] => 129.49
[parent_name] => Сантехника, канализация в доме
[parent_id] => 29
[material_sum] => 102556
[work_sum] => 103980
[total_sum] => 206536
[total_days] => 10
[display_material_sum] => 102 556
[display_work_sum] => 103 980
[display_total_sum] => 206 536
)
1
206 536₽
Работа:103 980 ₽
Материалы:102 556 ₽
Дни:10
stdClass Object
(
[id] => 59
[attribute_id] => 30
[name] => Нет
[material_modifier] => 1
[work_modifier] => 1
[options] => Array
(
)
[days] => [0]
[material_price] => [0]
[work_price] => [0]
[image] => https://akademik-stroy.ru/wp-content/uploads/materials/otoplenie-1.jpg
[area_modifier] => 129.49
[parent_name] => Отопление
[parent_id] => 30
[material_sum] => 0
[work_sum] => 0
[total_sum] => 0
[total_days] => 0
[display_material_sum] => 0
[display_work_sum] => 0
[display_total_sum] => 0
)
1
0₽
Работа:0 ₽
Материалы:0 ₽
Дни:0
stdClass Object
(
[id] => 60
[attribute_id] => 30
[name] => Есть
[material_modifier] => 1
[work_modifier] => 1
[options] => Array
(
)
[days] => [5]
[material_price] => [610]
[work_price] => [560]
[image] => https://akademik-stroy.ru/wp-content/uploads/materials/otoplenie-1.jpg
[area_modifier] => 129.49
[parent_name] => Отопление
[parent_id] => 30
[material_sum] => 104265
[work_sum] => 79766
[total_sum] => 184031
[total_days] => 5
[display_material_sum] => 104 265
[display_work_sum] => 79 766
[display_total_sum] => 184 031
)
1
184 031₽
Работа:79 766 ₽
Материалы:104 265 ₽
Дни:5
stdClass Object
(
[id] => 61
[attribute_id] => 31
[name] => Нет
[material_modifier] => 1
[work_modifier] => 1
[options] => Array
(
)
[days] => [0]
[material_price] => [0]
[work_price] => [0]
[image] => https://akademik-stroy.ru/wp-content/uploads/materials/vodyanye.jpg
[area_modifier] => 30
[parent_name] => Теплые полы
[parent_id] => 31
[material_sum] => 0
[work_sum] => 0
[total_sum] => 0
[total_days] => 0
[display_material_sum] => 0
[display_work_sum] => 0
[display_total_sum] => 0
)
1
0₽
Работа:0 ₽
Материалы:0 ₽
Дни:0
stdClass Object
(
[id] => 151
[attribute_id] => 31
[name] => Водяные
[material_modifier] => 1
[work_modifier] => 1
[options] => Array
(
)
[days] => [9]
[material_price] => [10200]
[work_price] => [2500]
[image] => https://akademik-stroy.ru/wp-content/uploads/materials/vodyanye.jpg
[area_modifier] => 30
[parent_name] => Теплые полы
[parent_id] => 31
[material_sum] => 403920
[work_sum] => 82500
[total_sum] => 486420
[total_days] => 9
[display_material_sum] => 403 920
[display_work_sum] => 82 500
[display_total_sum] => 486 420
)
1
486 420₽
Работа:82 500 ₽
Материалы:403 920 ₽
Дни:9
stdClass Object
(
[id] => 152
[attribute_id] => 31
[name] => Электро
[material_modifier] => 1
[work_modifier] => 1
[options] => Array
(
)
[days] => [5]
[material_price] => [6300]
[work_price] => [1500]
[image] => https://akademik-stroy.ru/wp-content/uploads/materials/ehlektricheskij.jpg
[area_modifier] => 30
[parent_name] => Теплые полы
[parent_id] => 31
[material_sum] => 249480
[work_sum] => 49500
[total_sum] => 298980
[total_days] => 5
[display_material_sum] => 249 480
[display_work_sum] => 49 500
[display_total_sum] => 298 980
)
1
298 980₽
Работа:49 500 ₽
Материалы:249 480 ₽
Дни:5
stdClass Object
(
[id] => 63
[attribute_id] => 32
[name] => Нет
[material_modifier] => 1
[work_modifier] => 1
[options] => Array
(
)
[days] => [0]
[material_price] => [0]
[work_price] => [0]
[image] => https://akademik-stroy.ru/wp-content/uploads/materials/shtukaturka-shpatlevka-1.jpg
[area_modifier] => 129.49
[parent_name] => Черновая отделка стен
[parent_id] => 32
[material_sum] => 0
[work_sum] => 0
[total_sum] => 0
[total_days] => 0
[display_material_sum] => 0
[display_work_sum] => 0
[display_total_sum] => 0
)
1
0₽
Работа:0 ₽
Материалы:0 ₽
Дни:0
stdClass Object
(
[id] => 153
[attribute_id] => 32
[name] => Штукатурка и шпатлевка
[material_modifier] => 1
[work_modifier] => 1
[options] => Array
(
)
[days] => [20]
[material_price] => [1850]
[work_price] => [2600]
[image] => https://akademik-stroy.ru/wp-content/uploads/materials/shtukaturka-shpatlevka-1.jpg
[area_modifier] => 129.49
[parent_name] => Черновая отделка стен
[parent_id] => 32
[material_sum] => 316215
[work_sum] => 370341
[total_sum] => 686556
[total_days] => 20
[display_material_sum] => 316 215
[display_work_sum] => 370 341
[display_total_sum] => 686 556
)
1
686 556₽
Работа:370 341 ₽
Материалы:316 215 ₽
Дни:20
stdClass Object
(
[id] => 154
[attribute_id] => 32
[name] => Гипсокортон на стены
[material_modifier] => 1
[work_modifier] => 1
[options] => Array
(
)
[days] => [15]
[material_price] => [950]
[work_price] => [2100]
[image] => https://akademik-stroy.ru/wp-content/uploads/materials/gkl-1.jpg
[area_modifier] => 129.49
[parent_name] => Черновая отделка стен
[parent_id] => 32
[material_sum] => 162380
[work_sum] => 299122
[total_sum] => 461502
[total_days] => 15
[display_material_sum] => 162 380
[display_work_sum] => 299 122
[display_total_sum] => 461 502
)
1
461 502₽
Работа:299 122 ₽
Материалы:162 380 ₽
Дни:15
stdClass Object
(
[id] => 155
[attribute_id] => 32
[name] => Вагонка
[material_modifier] => 1
[work_modifier] => 1
[options] => Array
(
)
[days] => [15]
[material_price] => [1250]
[work_price] => [950]
[image] => https://akademik-stroy.ru/wp-content/uploads/materials/vagonka.jpg
[area_modifier] => 129.49
[parent_name] => Черновая отделка стен
[parent_id] => 32
[material_sum] => 213659
[work_sum] => 135317
[total_sum] => 348976
[total_days] => 15
[display_material_sum] => 213 659
[display_work_sum] => 135 317
[display_total_sum] => 348 976
)
1
348 976₽
Работа:135 317 ₽
Материалы:213 659 ₽
Дни:15
stdClass Object
(
[id] => 65
[attribute_id] => 33
[name] => Нет
[material_modifier] => 1
[work_modifier] => 1
[options] => Array
(
)
[days] => [0]
[material_price] => [0]
[work_price] => [0]
[image] => https://akademik-stroy.ru/wp-content/uploads/materials/styazhka.jpg
[area_modifier] => 129.49
[parent_name] => Черновая отделка полов
[parent_id] => 33
[material_sum] => 0
[work_sum] => 0
[total_sum] => 0
[total_days] => 0
[display_material_sum] => 0
[display_work_sum] => 0
[display_total_sum] => 0
)
1
0₽
Работа:0 ₽
Материалы:0 ₽
Дни:0
stdClass Object
(
[id] => 156
[attribute_id] => 33
[name] => Стяжка + наливные полы
[material_modifier] => 1
[work_modifier] => 1
[options] => Array
(
)
[days] => [10]
[material_price] => [1000]
[work_price] => [900]
[image] => https://akademik-stroy.ru/wp-content/uploads/materials/styazhka.jpg
[area_modifier] => 129.49
[parent_name] => Черновая отделка полов
[parent_id] => 33
[material_sum] => 170927
[work_sum] => 128195
[total_sum] => 299122
[total_days] => 10
[display_material_sum] => 170 927
[display_work_sum] => 128 195
[display_total_sum] => 299 122
)
1
299 122₽
Работа:128 195 ₽
Материалы:170 927 ₽
Дни:10
stdClass Object
(
[id] => 157
[attribute_id] => 33
[name] => ОСБ на пол
[material_modifier] => 1
[work_modifier] => 1
[options] => Array
(
)
[days] => [7]
[material_price] => [580]
[work_price] => [350]
[image] => https://akademik-stroy.ru/wp-content/uploads/materials/osb-1.jpg
[area_modifier] => 129.49
[parent_name] => Черновая отделка полов
[parent_id] => 33
[material_sum] => 99138
[work_sum] => 49854
[total_sum] => 148992
[total_days] => 7
[display_material_sum] => 99 138
[display_work_sum] => 49 854
[display_total_sum] => 148 992
)
1
148 992₽
Работа:49 854 ₽
Материалы:99 138 ₽
Дни:7
stdClass Object
(
[id] => 67
[attribute_id] => 34
[name] => Нет
[material_modifier] => 1
[work_modifier] => 1
[options] => Array
(
)
[days] => [0]
[material_price] => [0]
[work_price] => [0]
[image] => https://akademik-stroy.ru/wp-content/uploads/materials/chistovaya-otdelka.jpg
[area_modifier] => 129.49
[parent_name] => Чистовая отделка стен и полов
[parent_id] => 34
[material_sum] => 0
[work_sum] => 0
[total_sum] => 0
[total_days] => 0
[display_material_sum] => 0
[display_work_sum] => 0
[display_total_sum] => 0
)
1
0₽
Работа:0 ₽
Материалы:0 ₽
Дни:0
stdClass Object
(
[id] => 68
[attribute_id] => 34
[name] => Есть
[material_modifier] => 1
[work_modifier] => 1
[options] => Array
(
)
[days] => [50]
[material_price] => [6000]
[work_price] => [3500]
[image] => https://akademik-stroy.ru/wp-content/uploads/materials/chistovaya-otdelka.jpg
[area_modifier] => 129.49
[parent_name] => Чистовая отделка стен и полов
[parent_id] => 34
[material_sum] => 1025561
[work_sum] => 498537
[total_sum] => 1524098
[total_days] => 50
[display_material_sum] => 1 025 561
[display_work_sum] => 498 537
[display_total_sum] => 1 524 098
)
1
1 524 098₽
Работа:498 537 ₽
Материалы:1 025 561 ₽
Дни:50
stdClass Object
(
[id] => 69
[attribute_id] => 35
[name] => Нет
[material_modifier] => 1
[work_modifier] => 1
[options] => Array
(
)
[days] => [0]
[material_price] => [0]
[work_price] => [0]
[image] => https://akademik-stroy.ru/wp-content/uploads/materials/mnogourovnevyj-gkl.jpg
[area_modifier] => 129.49
[parent_name] => Отделка потолка
[parent_id] => 35
[material_sum] => 0
[work_sum] => 0
[total_sum] => 0
[total_days] => 0
[display_material_sum] => 0
[display_work_sum] => 0
[display_total_sum] => 0
)
1
0₽
Работа:0 ₽
Материалы:0 ₽
Дни:0
stdClass Object
(
[id] => 70
[attribute_id] => 35
[name] => Есть
[material_modifier] => 1
[work_modifier] => 1
[options] => Array
(
[0] => Многоуровневый потолок из гипсокартона
[1] => Многоуровневый потолок из гипсокартона и натяжного потолка
[2] => Одноуровневый потолок из гипсокартона
[3] => Одноуровневый натяжной потолок
)
[days] => [10,10,1,1]
[material_price] => [900,700,700,600]
[work_price] => [1000,800,500,300]
[image] => https://akademik-stroy.ru/wp-content/uploads/materials/mnogourovnevyj-gkl.jpg
[area_modifier] => 129.49
[parent_name] => Отделка потолка
[parent_id] => 35
[material_sum] => 153834
[work_sum] => 142439
[total_sum] => 296273
[total_days] => 10
[display_material_sum] => 153 834
[display_work_sum] => 142 439
[display_total_sum] => 296 273
)
1
296 273₽
Работа:142 439 ₽
Материалы:153 834 ₽
Дни:10
Преимущества работы с нами
7 этапов оплаты
Независимый строительный надзор
Экологически чистые материалы
16 лет гарантии
Онлайн-кабинет с веб-камерой
Строители с опытом более 15 лет
Собственное производство








