Двухэтажный дом 10x9 - 109.28 м2 за руб.

ID-24242

Стоимость дома 3746968 руб.
154 м2 Полезная
площадь
10 x 9 м Размеры
2 этажа Этажей
26 м2 Террасы
и балконы
1Без
гаража
4 Количество
спален
2 Количество
санузлов

Планировки

План подвала

floor image
  • 1. Коридор 4,35 m² (0 m²)
  • 2. Кладовая 9,33 m² (0 m²)
  • 3. Гараж на 1 машину 28,30 m² (0 m²)
  • 4. Котельная 13,90 m² (0 m²)
  • План подвала 55,88 m²

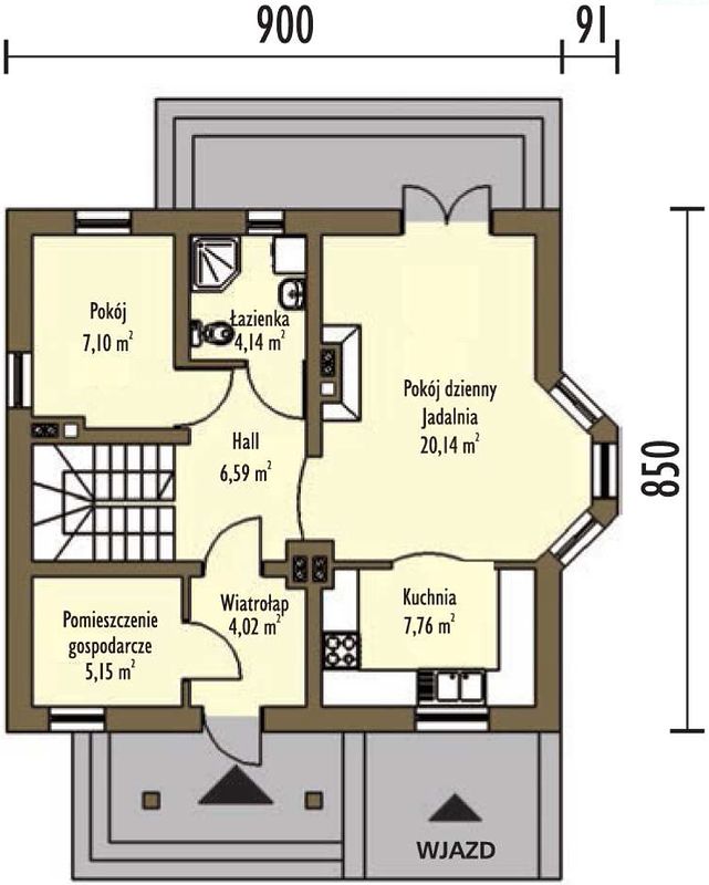
План первого этажа

floor image
  • 1. Прихожая 4,02 m² (0 m²)
  • 2. Холл 6,59 m² (0 m²)
  • 3. Кухня 7,76 m² (0 m²)
  • 4. Гостиная + столовая 20,14 m² (0 m²)
  • 5. Ванная комната 4,14 m² (0 m²)
  • 6. Комната 7,10 m² (0 m²)
  • 7. Кладовая 5,15 m² (0 m²)
  • План первого этажа 54,90 m²

План мансарды

floor image
  • 1. Коридор 6,34 m²
  • 2. Комната 10,01 m²
  • 3. Комната 13,25 m²
  • 4. Комната 13,09 m²
  • 5. Гардероб 4,40 m²
  • 6. Ванная комната 7,29 m²
  • План мансарды 54,38 m²

Фасады

Передний
Задний
Левый
Правый
Передний
Задний
Левый
Правый

Подробная информация

Жилая площадь
163 m²
icon

Сумма площади всех жилых помещений, за вычетом пов. гараж, котельная, чердак, подвал. Учитывается в 100%, для помещений высотой более 2,2 м, в 50% для помещений с высотой 2,2-1,4 м и не включается для более низких помещений (меньше 1,4 м).

Площадь застройки
78,62 m²
icon

Площадь застройки здания определяется как площадь горизонтального сечения по внешнему обводу здания на уровне цоколя, включая выступающие части.

Угол наклона крыши
45°
icon

Наклон ската крыши в градусах. Внимание! В некоторых проектах возникает более чем один наклон крыши.

Высота здания
8,70 m
icon

Высота измеряется от поверхности земли до самой высокой точки кровли (конька), за исключением дымоходов.

Мин. ширина участка
18 m
icon

Наименьшая возможная ширина участка, необходимая для строительства выбранного дома. Состоит из длины фасада дома плюс с обеих сторон три метра отступ.

Мин. длина участка
16,50 m
icon

Наименьшая возможная длина участка, необходимая для строительства выбранного дома. Состоит из длины фасада дома плюс с обеих сторон три метра отступ.

Материалы и опции
Общие
Цена, руб.
Площадь м²
140
Площадь от и до
Ежемесячный платёж, руб
Количество спален
4
Гараж
1
Количество санузлов
2
Тип крыши
Ширина
10
Форма
Глубина
9

Площади дома

№ п/п Наименование Ед. из. Строительная площадь Полезная площадь
1 1 этаж м2 67.65 54.9
2 2 этаж м2 67.01 54.38
3 Итого м2 134.66 109.28

ПРИГЛАШАЕМ НА ДЕНЬ ОТКРЫТЫХ ДВЕРЕЙ СТРОЯЩЕГОСЯ ДОМА

ХОЧУ ПОЕХАТЬ
День открытых дверей

Калькулятор опций

0

В ипотеку от 13 176 ₽/мес.

Фундамент
stdClass Object ( [id] => 1 [attribute_id] => 1 [name] => Ленточный монолитный ж/б [material_modifier] => 1 [work_modifier] => 1 [options] => Array ( [0] => размер 200 х 700 мм [1] => размер 300 х 900 мм [2] => размер 400 х 1 000 мм [3] => размер 500 х 1 100 мм [4] => размер 600 х 1 200 мм ) [days] => [20,21,22,25,30] [material_price] => [2823,3630,4475,5210,12047] [work_price] => [2154,2826,3731,4577,5293] [image] => https://akademik-stroy.ru/wp-content/uploads/materials/lentochnyj-monolitnyj-zh-b.jpg [area_modifier] => 67.65 [parent_name] => Фундамент [parent_id] => 1 [material_sum] => 263547 [work_sum] => 167576 [total_sum] => 431123 [total_days] => 20 [display_material_sum] => 263 547 [display_work_sum] => 167 576 [display_total_sum] => 431 123 ) 1
431 123
Работа:167 576
Материалы:263 547
Дни:20
stdClass Object ( [id] => 2 [attribute_id] => 1 [name] => Забивные Ж/Б сваи [material_modifier] => 1 [work_modifier] => 1 [options] => Array ( [0] => 150х150х3000мм [1] => 150х150х4000мм [2] => 200х200х3000мм [3] => 200х200х4000мм [4] => 200х200х5000мм [5] => 200х200х6000мм ) [days] => [2,2,2,2,2,2] [material_price] => [1990,2850,3255,4360,5120,6837] [work_price] => [1002,1185,1336,1438,1574,1839] [image] => https://akademik-stroy.ru/wp-content/uploads/materials/zabivnye-zh-b-svai.png [area_modifier] => 67.65 [parent_name] => Фундамент [parent_id] => 1 [material_sum] => 185780 [work_sum] => 77953 [total_sum] => 263733 [total_days] => 2 [display_material_sum] => 185 780 [display_work_sum] => 77 953 [display_total_sum] => 263 733 ) 1
263 733
Работа:77 953
Материалы:185 780
Дни:2
stdClass Object ( [id] => 71 [attribute_id] => 1 [name] => Свайно-ростверковый ж/б [material_modifier] => 1 [work_modifier] => 1 [options] => Array ( [0] => ростверк 200х300 мм [1] => ростверк 300х600 мм [2] => ростверк 400х900 мм [3] => ростверк 500х1200 мм ) [days] => [20,23,25,27] [material_price] => [3018,3474,7109,9792] [work_price] => [2024,3012,5635,7022] [image] => https://akademik-stroy.ru/wp-content/uploads/materials/svajno-rostverkovyj-monolitnyj-zh-b-3.png [area_modifier] => 67.65 [parent_name] => Фундамент [parent_id] => 1 [material_sum] => 281751 [work_sum] => 157462 [total_sum] => 439213 [total_days] => 20 [display_material_sum] => 281 751 [display_work_sum] => 157 462 [display_total_sum] => 439 213 ) 1
439 213
Работа:157 462
Материалы:281 751
Дни:20
stdClass Object ( [id] => 72 [attribute_id] => 1 [name] => Монолитная ж/б плита [material_modifier] => 1 [work_modifier] => 1 [options] => Array ( [0] => 200 мм [1] => 300 мм [2] => 400 мм [3] => 500 мм [4] => 600 мм ) [days] => [30,33,35,37,40] [material_price] => [5348,8555,12788,14388,15189] [work_price] => [4314,4881,7037,8061,10230] [image] => https://akademik-stroy.ru/wp-content/uploads/materials/monolitnaya-zhb-plita.png [area_modifier] => 67.65 [parent_name] => Фундамент [parent_id] => 1 [material_sum] => 499273 [work_sum] => 335618 [total_sum] => 834891 [total_days] => 30 [display_material_sum] => 499 273 [display_work_sum] => 335 618 [display_total_sum] => 834 891 ) 1
834 891
Работа:335 618
Материалы:499 273
Дни:30
stdClass Object ( [id] => 73 [attribute_id] => 1 [name] => Утепленная шведская плита [material_modifier] => 1 [work_modifier] => 1 [options] => Array ( [0] => 200 мм [1] => 300 мм [2] => 400 мм [3] => 500 мм [4] => 600 мм ) [days] => [32,37,39,42,45] [material_price] => [10249,12692,13760,14936,16230] [work_price] => [5960,7337,8072,8878,9765] [image] => https://akademik-stroy.ru/wp-content/uploads/materials/uteplennaya-shvedskaya-plita.jpg [area_modifier] => 67.65 [parent_name] => Фундамент [parent_id] => 1 [material_sum] => 956816 [work_sum] => 463673 [total_sum] => 1420489 [total_days] => 32 [display_material_sum] => 956 816 [display_work_sum] => 463 673 [display_total_sum] => 1 420 489 ) 1
1 420 489
Работа:463 673
Материалы:956 816
Дни:32
stdClass Object ( [id] => 75 [attribute_id] => 1 [name] => Ленточный из ФБС [material_modifier] => 1 [work_modifier] => 1 [options] => Array ( [0] => толщ. 300 мм [1] => толщ. 400 мм [2] => толщ. 500 мм [3] => толщ. 600 мм ) [days] => [20,20,20,20] [material_price] => [3675,4902,6126,7350] [work_price] => [2451,3264,4083,4902] [image] => https://akademik-stroy.ru/wp-content/uploads/materials/lentochnyj-iz-fbs.png [area_modifier] => 67.65 [parent_name] => Фундамент [parent_id] => 1 [material_sum] => 343087 [work_sum] => 190682 [total_sum] => 533769 [total_days] => 20 [display_material_sum] => 343 087 [display_work_sum] => 190 682 [display_total_sum] => 533 769 ) 1
533 769
Работа:190 682
Материалы:343 087
Дни:20
stdClass Object ( [id] => 76 [attribute_id] => 1 [name] => Цокольный этаж из ФБС [material_modifier] => 1 [work_modifier] => 1 [options] => Array ( [0] => толщ. 300 мм [1] => толщ. 400 мм [2] => толщ. 500 мм [3] => толщ. 600 мм ) [days] => [30,32,34,36] [material_price] => [20916,23299,26680,29060] [work_price] => [17524,18700,19873,21046] [image] => https://akademik-stroy.ru/wp-content/uploads/materials/cokolnyj-ehtazh-iz-fbs.jpg [area_modifier] => 67.65 [parent_name] => Фундамент [parent_id] => 1 [material_sum] => 1952655 [work_sum] => 1363323 [total_sum] => 3315978 [total_days] => 30 [display_material_sum] => 1 952 655 [display_work_sum] => 1 363 323 [display_total_sum] => 3 315 978 ) 1
3 315 978
Работа:1 363 323
Материалы:1 952 655
Дни:30
stdClass Object ( [id] => 77 [attribute_id] => 1 [name] => Цокольный этаж монолитный ж/б [material_modifier] => 1 [work_modifier] => 1 [options] => Array ( [0] => толщ. 200 мм [1] => толщ. 300 мм [2] => толщ. 400 мм [3] => толщ. 500 мм [4] => толщ. 600 мм ) [days] => [40,42,44,46,48] [material_price] => [25421,29148,32275,35602,37326] [work_price] => [20441,21907,23375,24841,26306] [image] => https://akademik-stroy.ru/wp-content/uploads/materials/cokolnyj-etazh-zh-b.jpg [area_modifier] => 67.65 [parent_name] => Фундамент [parent_id] => 1 [material_sum] => 2373228 [work_sum] => 1590259 [total_sum] => 3963487 [total_days] => 40 [display_material_sum] => 2 373 228 [display_work_sum] => 1 590 259 [display_total_sum] => 3 963 487 ) 1
3 963 487
Работа:1 590 259
Материалы:2 373 228
Дни:40
stdClass Object ( [id] => 191 [attribute_id] => 1 [name] => Винтовые сваи [material_modifier] => 1 [work_modifier] => 1 [options] => Array ( [0] => 57х200мм [1] => 76х250мм [2] => 108х300мм [3] => 133х350мм ) [days] => [1,1,2,2] [material_price] => [1200,1300,1450,1600] [work_price] => [400,600,900,1100] [image] => https://akademik-stroy.ru/wp-content/uploads/materials/vintovye-svai.png [area_modifier] => 67.65 [parent_name] => Фундамент [parent_id] => 1 [material_sum] => 112028 [work_sum] => 31119 [total_sum] => 143147 [total_days] => 1 [display_material_sum] => 112 028 [display_work_sum] => 31 119 [display_total_sum] => 143 147 ) 1
143 147
Работа:31 119
Материалы:112 028
Дни:1
Перекрытие цоколя
stdClass Object ( [id] => 3 [attribute_id] => 2 [name] => Деревянные балки [material_modifier] => 1 [work_modifier] => 1 [options] => Array ( [0] => без утепления [1] => утепление 200 мм [2] => утепление 250 мм [3] => утепление 300 мм [4] => утепление 350 мм [5] => утепление 400 мм [6] => утепление 450 мм [7] => утепление 500 мм ) [days] => [8,9,9,9,11,12,13,14] [material_price] => [1634,2042,2344,2947,3149,3652,3354,3557] [work_price] => [1230,1339,1393,1426,1460,1513,1587,1620] [image] => https://akademik-stroy.ru/wp-content/uploads/materials/derevyannye-balki.png [area_modifier] => 67.65 [parent_name] => Перекрытие цоколя [parent_id] => 2 [material_sum] => 152545 [work_sum] => 95691 [total_sum] => 248236 [total_days] => 8 [display_material_sum] => 152 545 [display_work_sum] => 95 691 [display_total_sum] => 248 236 ) 1
248 236
Работа:95 691
Материалы:152 545
Дни:8
stdClass Object ( [id] => 4 [attribute_id] => 2 [name] => Сборные ж/б плиты [material_modifier] => 1 [work_modifier] => 1 [options] => Array ( [0] => без утепления [1] => утепление 150мм [2] => утепление 200мм [3] => утепление 250мм [4] => утепление 300мм [5] => утепление 350мм [6] => утепление 400мм [7] => утепление 450мм [8] => утепление 500мм ) [days] => [13,15,15,15,15,15,15,15,15] [material_price] => [3067,5577,5928,6679,7730,8782,9833,10884,11935] [work_price] => [1520,1956,2102,2247,2392,2537,2684,2829,2974] [image] => https://akademik-stroy.ru/wp-content/uploads/materials/sbornye-zh-b-plity-2.jpg [area_modifier] => 67.65 [parent_name] => Перекрытие цоколя [parent_id] => 2 [material_sum] => 286326 [work_sum] => 118252 [total_sum] => 404578 [total_days] => 13 [display_material_sum] => 286 326 [display_work_sum] => 118 252 [display_total_sum] => 404 578 ) 1
404 578
Работа:118 252
Материалы:286 326
Дни:13
stdClass Object ( [id] => 78 [attribute_id] => 2 [name] => Монолитная ж/б плита [material_modifier] => 1 [work_modifier] => 1 [options] => Array ( [0] => без утепления [1] => утепление 150 мм [2] => утепление 200 мм [3] => утепление 250 мм [4] => утепление 300 мм [5] => утепление 350 мм [6] => утепление 400 мм [7] => утепление 450 мм [8] => утепление 500 мм ) [days] => [18,20,20,20,20,20,20,20,20] [material_price] => [4837,6572,7224,7375,79426,8177,8728,9180,10031] [work_price] => [3348,3921,4112,4302,4493,4684,4875,5066,5256] [image] => https://akademik-stroy.ru/wp-content/uploads/materials/monolitnaya-zh-b-plita-2.jpg [area_modifier] => 67.65 [parent_name] => Перекрытие цоколя [parent_id] => 2 [material_sum] => 451568 [work_sum] => 260466 [total_sum] => 712034 [total_days] => 18 [display_material_sum] => 451 568 [display_work_sum] => 260 466 [display_total_sum] => 712 034 ) 1
712 034
Работа:260 466
Материалы:451 568
Дни:18
Стены 1 этаж (несущие)
stdClass Object ( [id] => 6 [attribute_id] => 3 [name] => Пеноблок [material_modifier] => 1 [work_modifier] => 1 [options] => Array ( [0] => 300 мм [1] => 400 мм [2] => 500 мм [3] => 600 мм ) [days] => [29,31,34,39] [material_price] => [3000,4000,4500,4937] [work_price] => [5033,5805,6400,8710] [image] => https://akademik-stroy.ru/wp-content/uploads/materials/penoblok.jpg [area_modifier] => 67.65 [parent_name] => Стены 1 этаж (несущие) [parent_id] => 3 [material_sum] => 280071 [work_sum] => 391555 [total_sum] => 671626 [total_days] => 29 [display_material_sum] => 280 071 [display_work_sum] => 391 555 [display_total_sum] => 671 626 ) 1
671 626
Работа:391 555
Материалы:280 071
Дни:29
stdClass Object ( [id] => 79 [attribute_id] => 3 [name] => Керамический блок [material_modifier] => 1 [work_modifier] => 1 [options] => Array ( [0] => 380 мм [1] => 380 мм Thermo [2] => 440 мм [3] => 510 мм ) [days] => [23,23,24,25] [material_price] => [4510,5098,6093,8013] [work_price] => [4737,4937,5903,6958] [image] => https://akademik-stroy.ru/wp-content/uploads/materials/keramicheskij-blok.jpg [area_modifier] => 67.65 [parent_name] => Стены 1 этаж (несущие) [parent_id] => 3 [material_sum] => 421040 [work_sum] => 368527 [total_sum] => 789567 [total_days] => 23 [display_material_sum] => 421 040 [display_work_sum] => 368 527 [display_total_sum] => 789 567 ) 1
789 567
Работа:368 527
Материалы:421 040
Дни:23
stdClass Object ( [id] => 80 [attribute_id] => 3 [name] => Кирпич [material_modifier] => 1 [work_modifier] => 1 [options] => Array ( [0] => Кирпич 250 мм [1] => Кирпич 380 мм [2] => Кирпич 510 мм [3] => Кирпич 640 мм [4] => Кирпич 770 мм ) [days] => [30,30,31,33,36] [material_price] => [5500,7142,9206,10171,12235] [work_price] => [8736,10041,12018,15240,18462] [image] => https://akademik-stroy.ru/wp-content/uploads/materials/kirpich.jpg [area_modifier] => 67.65 [parent_name] => Стены 1 этаж (несущие) [parent_id] => 3 [material_sum] => 513464 [work_sum] => 679639 [total_sum] => 1193103 [total_days] => 30 [display_material_sum] => 513 464 [display_work_sum] => 679 639 [display_total_sum] => 1 193 103 ) 1
1 193 103
Работа:679 639
Материалы:513 464
Дни:30
stdClass Object ( [id] => 81 [attribute_id] => 3 [name] => Монолитные [material_modifier] => 1 [work_modifier] => 1 [options] => Array ( [0] => 150 мм [1] => 200 мм [2] => 250 мм [3] => 300 мм [4] => 350 мм [5] => 400 мм ) [days] => [45,46,47,49,50,53] [material_price] => [6545,7876,10175,12011,13908,15204] [work_price] => [5106,6444,7698,8552,9807,11461] [image] => https://akademik-stroy.ru/wp-content/uploads/materials/monolitnye.jpg [area_modifier] => 67.65 [parent_name] => Стены 1 этаж (несущие) [parent_id] => 3 [material_sum] => 611022 [work_sum] => 397234 [total_sum] => 1008256 [total_days] => 45 [display_material_sum] => 611 022 [display_work_sum] => 397 234 [display_total_sum] => 1 008 256 ) 1
1 008 256
Работа:397 234
Материалы:611 022
Дни:45
stdClass Object ( [id] => 82 [attribute_id] => 3 [name] => Клееный брус [material_modifier] => 1 [work_modifier] => 1 [options] => Array ( [0] => 160 мм [1] => 175 мм [2] => 200 мм [3] => 215 мм [4] => 240 мм [5] => 270 мм [6] => 282 мм ) [days] => [24,28,32,37,40,42,48] [material_price] => [16975,18773,19950,20545,21599,22159,23275] [work_price] => [4806,5287,5815,6397,7036,7740,8514] [image] => https://akademik-stroy.ru/wp-content/uploads/materials/kleenyj-brus.jpg [area_modifier] => 67.65 [parent_name] => Стены 1 этаж (несущие) [parent_id] => 3 [material_sum] => 1584735 [work_sum] => 373895 [total_sum] => 1958630 [total_days] => 24 [display_material_sum] => 1 584 735 [display_work_sum] => 373 895 [display_total_sum] => 1 958 630 ) 1
1 958 630
Работа:373 895
Материалы:1 584 735
Дни:24
stdClass Object ( [id] => 83 [attribute_id] => 3 [name] => Каркасные [material_modifier] => 1 [work_modifier] => 1 [options] => Array ( [0] => 150 мм [1] => 200 мм [2] => 250 мм [3] => 300 мм ) [days] => [15,16,17,18] [material_price] => [2379,2639,2898,3258] [work_price] => [2418,2686,2985,3716] [image] => https://akademik-stroy.ru/wp-content/uploads/materials/karkasnye.jpg [area_modifier] => 67.65 [parent_name] => Стены 1 этаж (несущие) [parent_id] => 3 [material_sum] => 222096 [work_sum] => 188114 [total_sum] => 410210 [total_days] => 15 [display_material_sum] => 222 096 [display_work_sum] => 188 114 [display_total_sum] => 410 210 ) 1
410 210
Работа:188 114
Материалы:222 096
Дни:15
stdClass Object ( [id] => 84 [attribute_id] => 3 [name] => СИП-панели [material_modifier] => 1 [work_modifier] => 1 [options] => Array ( [0] => 120 мм [1] => 170 мм [2] => 220 мм ) [days] => [7,7,7] [material_price] => [1210,1856,2292] [work_price] => [1410,1551,1706] [image] => https://akademik-stroy.ru/wp-content/uploads/materials/sip-paneli.jpg [area_modifier] => 67.65 [parent_name] => Стены 1 этаж (несущие) [parent_id] => 3 [material_sum] => 112962 [work_sum] => 109694 [total_sum] => 222656 [total_days] => 7 [display_material_sum] => 112 962 [display_work_sum] => 109 694 [display_total_sum] => 222 656 ) 1
222 656
Работа:109 694
Материалы:112 962
Дни:7
stdClass Object ( [id] => 85 [attribute_id] => 3 [name] => Сухой брус [material_modifier] => 1 [work_modifier] => 1 [options] => Array ( [0] => 150 мм [1] => 180 мм [2] => 200 мм ) [days] => [7,8,9] [material_price] => [6010,7190,8709] [work_price] => [3204,3845,4229] [image] => https://akademik-stroy.ru/wp-content/uploads/materials/suhoj-brus.jpg [area_modifier] => 67.65 [parent_name] => Стены 1 этаж (несущие) [parent_id] => 3 [material_sum] => 561076 [work_sum] => 249263 [total_sum] => 810339 [total_days] => 7 [display_material_sum] => 561 076 [display_work_sum] => 249 263 [display_total_sum] => 810 339 ) 1
810 339
Работа:249 263
Материалы:561 076
Дни:7
stdClass Object ( [id] => 86 [attribute_id] => 3 [name] => Профилированный брус [material_modifier] => 1 [work_modifier] => 1 [options] => Array ( [0] => 150 мм [1] => 180 мм [2] => 200 мм ) [days] => [7,8,9] [material_price] => [8190,9228,10051] [work_price] => [3845,4614,5075] [image] => https://akademik-stroy.ru/wp-content/uploads/materials/profilirovannyj-brus.jpg [area_modifier] => 67.65 [parent_name] => Стены 1 этаж (несущие) [parent_id] => 3 [material_sum] => 764594 [work_sum] => 299131 [total_sum] => 1063725 [total_days] => 7 [display_material_sum] => 764 594 [display_work_sum] => 299 131 [display_total_sum] => 1 063 725 ) 1
1 063 725
Работа:299 131
Материалы:764 594
Дни:7
stdClass Object ( [id] => 87 [attribute_id] => 3 [name] => Оцилиндрованное бревно [material_modifier] => 1 [work_modifier] => 1 [options] => Array ( [0] => 180 мм [1] => 220 мм [2] => 260 мм [3] => 320 мм ) [days] => [7,8,9,10] [material_price] => [75190,9532,10868,13116] [work_price] => [3845,4691,5535,6863] [image] => https://akademik-stroy.ru/wp-content/uploads/materials/ocilindrovannoe-brevno-1.jpg [area_modifier] => 67.65 [parent_name] => Стены 1 этаж (несущие) [parent_id] => 3 [material_sum] => 7019513 [work_sum] => 299131 [total_sum] => 7318644 [total_days] => 7 [display_material_sum] => 7 019 513 [display_work_sum] => 299 131 [display_total_sum] => 7 318 644 ) 1
7 318 644
Работа:299 131
Материалы:7 019 513
Дни:7
stdClass Object ( [id] => 88 [attribute_id] => 3 [name] => Срубы [material_modifier] => 1 [work_modifier] => 1 [options] => Array ( [0] => 260 мм [1] => 320 мм [2] => 360 мм [3] => 400 мм [4] => 500 мм ) [days] => [7,8,9,10,11] [material_price] => [37975,46709,52314,58069,73167] [work_price] => [4806,5911,6621,7349,9260] [image] => https://akademik-stroy.ru/wp-content/uploads/materials/sruby.jpg [area_modifier] => 67.65 [parent_name] => Стены 1 этаж (несущие) [parent_id] => 3 [material_sum] => 3545232 [work_sum] => 373895 [total_sum] => 3919127 [total_days] => 7 [display_material_sum] => 3 545 232 [display_work_sum] => 373 895 [display_total_sum] => 3 919 127 ) 1
3 919 127
Работа:373 895
Материалы:3 545 232
Дни:7
stdClass Object ( [id] => 174 [attribute_id] => 3 [name] => Брус [material_modifier] => 1 [work_modifier] => 1 [options] => Array ( [0] => 150 мм [1] => 180 мм [2] => 200 мм ) [days] => [7,8,9] [material_price] => [5127,6152,7367] [work_price] => [1602,1922,2115] [image] => https://akademik-stroy.ru/wp-content/uploads/materials/brus.jpg [area_modifier] => 67.65 [parent_name] => Стены 1 этаж (несущие) [parent_id] => 3 [material_sum] => 478641 [work_sum] => 124632 [total_sum] => 603273 [total_days] => 7 [display_material_sum] => 478 641 [display_work_sum] => 124 632 [display_total_sum] => 603 273 ) 1
603 273
Работа:124 632
Материалы:478 641
Дни:7
stdClass Object ( [id] => 175 [attribute_id] => 3 [name] => Газобетон [material_modifier] => 1 [work_modifier] => 1 [options] => Array ( [0] => 300 мм [1] => 375 мм [2] => 400 мм [3] => 500 мм [4] => 600 мм ) [days] => [29,31,35,37,44] [material_price] => [4298,5573,6356,7288,9119] [work_price] => [4538,5251,5926,6733,7195] [image] => https://akademik-stroy.ru/wp-content/uploads/materials/gazobeton.jpg [area_modifier] => 67.65 [parent_name] => Стены 1 этаж (несущие) [parent_id] => 3 [material_sum] => 401248 [work_sum] => 353045 [total_sum] => 754293 [total_days] => 29 [display_material_sum] => 401 248 [display_work_sum] => 353 045 [display_total_sum] => 754 293 ) 1
754 293
Работа:353 045
Материалы:401 248
Дни:29
stdClass Object ( [id] => 176 [attribute_id] => 3 [name] => Блок [material_modifier] => 1 [work_modifier] => 1 [options] => Array ( [0] => 300 мм [1] => 375 мм [2] => 400 мм [3] => 500 мм [4] => 600 мм ) [days] => [29,31,35,37,44] [material_price] => [2698,3973,4356,6588,7119] [work_price] => [5038,5851,6426,8733,9195] [image] => https://akademik-stroy.ru/wp-content/uploads/materials/blok.jpg [area_modifier] => 67.65 [parent_name] => Стены 1 этаж (несущие) [parent_id] => 3 [material_sum] => 251877 [work_sum] => 391944 [total_sum] => 643821 [total_days] => 29 [display_material_sum] => 251 877 [display_work_sum] => 391 944 [display_total_sum] => 643 821 ) 1
643 821
Работа:391 944
Материалы:251 877
Дни:29
stdClass Object ( [id] => 177 [attribute_id] => 3 [name] => Газосиликатный блок [material_modifier] => 1 [work_modifier] => 1 [options] => Array ( [0] => 300 мм [1] => 375 мм [2] => 400 мм [3] => 500 мм [4] => 600 мм ) [days] => [29,31,35,37,44] [material_price] => [4298,5573,6356,7288,9119] [work_price] => [4538,5251,5926,6733,7195] [image] => https://akademik-stroy.ru/wp-content/uploads/materials/gazosilikatnyj-blok.jpg [area_modifier] => 67.65 [parent_name] => Стены 1 этаж (несущие) [parent_id] => 3 [material_sum] => 401248 [work_sum] => 353045 [total_sum] => 754293 [total_days] => 29 [display_material_sum] => 401 248 [display_work_sum] => 353 045 [display_total_sum] => 754 293 ) 1
754 293
Работа:353 045
Материалы:401 248
Дни:29
stdClass Object ( [id] => 178 [attribute_id] => 3 [name] => Керамзитобетонный блок [material_modifier] => 1 [work_modifier] => 1 [options] => Array ( [0] => 300 мм [1] => 375 мм [2] => 400 мм [3] => 500 мм [4] => 600 мм ) [days] => [23,23,24,25,28] [material_price] => [3641,4298,5693,7613,9612] [work_price] => [5737,5737,6903,7958,8901] [image] => https://akademik-stroy.ru/wp-content/uploads/materials/keramzitobetonnyj-blok.jpg [area_modifier] => 67.65 [parent_name] => Стены 1 этаж (несущие) [parent_id] => 3 [material_sum] => 339913 [work_sum] => 446324 [total_sum] => 786237 [total_days] => 23 [display_material_sum] => 339 913 [display_work_sum] => 446 324 [display_total_sum] => 786 237 ) 1
786 237
Работа:446 324
Материалы:339 913
Дни:23
stdClass Object ( [id] => 179 [attribute_id] => 3 [name] => Деревянные [material_modifier] => 1 [work_modifier] => 1 [options] => Array ( [0] => 180 мм [1] => 220 мм [2] => 260 мм [3] => 320 мм ) [days] => [7,8,9,10] [material_price] => [7950,9458,11961,14472] [work_price] => [4037,4925,5812,7207] [image] => https://akademik-stroy.ru/wp-content/uploads/materials/derevyannye.jpg [area_modifier] => 67.65 [parent_name] => Стены 1 этаж (несущие) [parent_id] => 3 [material_sum] => 742188 [work_sum] => 314069 [total_sum] => 1056257 [total_days] => 7 [display_material_sum] => 742 188 [display_work_sum] => 314 069 [display_total_sum] => 1 056 257 ) 1
1 056 257
Работа:314 069
Материалы:742 188
Дни:7
stdClass Object ( [id] => 181 [attribute_id] => 3 [name] => Камень [material_modifier] => 1 [work_modifier] => 1 [options] => Array ( [0] => 300 мм [1] => 400 мм [2] => 500 мм [3] => 600 мм ) [days] => [25,27,31,34] [material_price] => [5262,6844,8330,9815] [work_price] => [8331,9135,10427,11069] [image] => https://akademik-stroy.ru/wp-content/uploads/materials/kamen.jpg [area_modifier] => 67.65 [parent_name] => Стены 1 этаж (несущие) [parent_id] => 3 [material_sum] => 491245 [work_sum] => 648131 [total_sum] => 1139376 [total_days] => 25 [display_material_sum] => 491 245 [display_work_sum] => 648 131 [display_total_sum] => 1 139 376 ) 1
1 139 376
Работа:648 131
Материалы:491 245
Дни:25
stdClass Object ( [id] => 182 [attribute_id] => 3 [name] => Каркасно-щитовые [material_modifier] => 1 [work_modifier] => 1 [options] => Array ( [0] => 150 мм [1] => 200 мм [2] => 250 мм [3] => 300 мм [4] => 350 мм [5] => 400 мм ) [days] => [15,16,17,18,19,20] [material_price] => [2379,2639,2898,3458,3601,4175] [work_price] => [2538,2820,3134,3483,4062,5642] [image] => https://akademik-stroy.ru/wp-content/uploads/materials/karkasno-shchitovye.jpg [area_modifier] => 67.65 [parent_name] => Стены 1 этаж (несущие) [parent_id] => 3 [material_sum] => 222096 [work_sum] => 197450 [total_sum] => 419546 [total_days] => 15 [display_material_sum] => 222 096 [display_work_sum] => 197 450 [display_total_sum] => 419 546 ) 1
419 546
Работа:197 450
Материалы:222 096
Дни:15
stdClass Object ( [id] => 183 [attribute_id] => 3 [name] => Рубленные [material_modifier] => 1 [work_modifier] => 1 [options] => Array ( [0] => 150 мм [1] => 200 мм [2] => 250 мм [3] => 300 мм [4] => 350 мм [5] => 400 мм ) [days] => [15,16,17,18,17,18] [material_price] => [35950,50267,60583,75900,80217,100533] [work_price] => [9612,12816,16020,19224,22428,25632] [image] => https://akademik-stroy.ru/wp-content/uploads/materials/rublennye.jpg [area_modifier] => 67.65 [parent_name] => Стены 1 этаж (несущие) [parent_id] => 3 [material_sum] => 3356184 [work_sum] => 747790 [total_sum] => 4103974 [total_days] => 15 [display_material_sum] => 3 356 184 [display_work_sum] => 747 790 [display_total_sum] => 4 103 974 ) 1
4 103 974
Работа:747 790
Материалы:3 356 184
Дни:15
stdClass Object ( [id] => 185 [attribute_id] => 3 [name] => Теплоблок [material_modifier] => 1 [work_modifier] => 1 [options] => Array ( [0] => 300 мм (с облицовкой, не покрашенный) [1] => 400 мм (с облицовкой, не покрашенный) [2] => 300 мм (с облицовкой, покрашенный) [3] => 400 мм (с облицовкой, покрашенный) ) [days] => [15,16,15,16] [material_price] => [2888,3729,3957,4258] [work_price] => [2564,3229,2949,3713] [image] => https://akademik-stroy.ru/wp-content/uploads/materials/teploblok.jpg [area_modifier] => 67.65 [parent_name] => Стены 1 этаж (несущие) [parent_id] => 3 [material_sum] => 269615 [work_sum] => 199473 [total_sum] => 469088 [total_days] => 15 [display_material_sum] => 269 615 [display_work_sum] => 199 473 [display_total_sum] => 469 088 ) 1
469 088
Работа:199 473
Материалы:269 615
Дни:15
stdClass Object ( [id] => 186 [attribute_id] => 3 [name] => Арболитовые блоки [material_modifier] => 1 [work_modifier] => 1 [options] => Array ( [0] => 300 мм [1] => 400 мм [2] => 600 мм ) [days] => [19,22,27] [material_price] => [3210,4475,5852] [work_price] => [4214,4788,5866] [image] => https://akademik-stroy.ru/wp-content/uploads/materials/arbolitovye-bloki.png [area_modifier] => 67.65 [parent_name] => Стены 1 этаж (несущие) [parent_id] => 3 [material_sum] => 299676 [work_sum] => 327839 [total_sum] => 627515 [total_days] => 19 [display_material_sum] => 299 676 [display_work_sum] => 327 839 [display_total_sum] => 627 515 ) 1
627 515
Работа:327 839
Материалы:299 676
Дни:19
stdClass Object ( [id] => 187 [attribute_id] => 3 [name] => Полистиролбетон [material_modifier] => 1 [work_modifier] => 1 [options] => Array ( [0] => 300 мм [1] => 400 мм [2] => 600 мм ) [days] => [29,31,35] [material_price] => [2798,4573,5256] [work_price] => [5038,5851,6426] [image] => https://akademik-stroy.ru/wp-content/uploads/materials/polistirolbeton.jpg [area_modifier] => 67.65 [parent_name] => Стены 1 этаж (несущие) [parent_id] => 3 [material_sum] => 261213 [work_sum] => 391944 [total_sum] => 653157 [total_days] => 29 [display_material_sum] => 261 213 [display_work_sum] => 391 944 [display_total_sum] => 653 157 ) 1
653 157
Работа:391 944
Материалы:261 213
Дни:29
stdClass Object ( [id] => 188 [attribute_id] => 3 [name] => Шлакоблок [material_modifier] => 1 [work_modifier] => 1 [options] => Array ( [0] => 400 мм [1] => 600 мм ) [days] => [15,16] [material_price] => [2391,3471] [work_price] => [2642,3662] [image] => https://akademik-stroy.ru/wp-content/uploads/materials/shlakoblok.jpg [area_modifier] => 67.65 [parent_name] => Стены 1 этаж (несущие) [parent_id] => 3 [material_sum] => 223217 [work_sum] => 205541 [total_sum] => 428758 [total_days] => 15 [display_material_sum] => 223 217 [display_work_sum] => 205 541 [display_total_sum] => 428 758 ) 1
428 758
Работа:205 541
Материалы:223 217
Дни:15
stdClass Object ( [id] => 189 [attribute_id] => 3 [name] => Теплая керамика [material_modifier] => 1 [work_modifier] => 1 [options] => Array ( [0] => 380 мм [1] => 380 мм Thermo [2] => 440 мм [3] => 510 мм ) [days] => [23,23,24,25] [material_price] => [4510,5098,6093,8013] [work_price] => [4737,4937,5903,6958] [image] => https://akademik-stroy.ru/wp-content/uploads/materials/teplaya-keramika.jpg [area_modifier] => 67.65 [parent_name] => Стены 1 этаж (несущие) [parent_id] => 3 [material_sum] => 421040 [work_sum] => 368527 [total_sum] => 789567 [total_days] => 23 [display_material_sum] => 421 040 [display_work_sum] => 368 527 [display_total_sum] => 789 567 ) 1
789 567
Работа:368 527
Материалы:421 040
Дни:23
stdClass Object ( [id] => 190 [attribute_id] => 3 [name] => Несъемная опалубка [material_modifier] => 1 [work_modifier] => 1 [options] => Array ( [0] => 200 мм [1] => 250 мм [2] => 300 мм [3] => 350 мм ) [days] => [15,17,19,21] [material_price] => [3302,3902,4108,5008] [work_price] => [2100,2100,2300,2534] [image] => https://akademik-stroy.ru/wp-content/uploads/materials/nesemnaya-opalubka.jpg [area_modifier] => 67.65 [parent_name] => Стены 1 этаж (несущие) [parent_id] => 3 [material_sum] => 308265 [work_sum] => 163375 [total_sum] => 471640 [total_days] => 15 [display_material_sum] => 308 265 [display_work_sum] => 163 375 [display_total_sum] => 471 640 ) 1
471 640
Работа:163 375
Материалы:308 265
Дни:15
stdClass Object ( [id] => 251 [attribute_id] => 3 [name] => Бревно [material_modifier] => 1 [work_modifier] => 1 [options] => Array ( [0] => 260 мм [1] => 320 мм [2] => 360 мм [3] => 400 мм [4] => 500 мм ) [days] => [7,8,9,10,11] [material_price] => [1874,24045,26930,30972,38825] [work_price] => [5046,6207,6952,7716,9723] [image] => https://akademik-stroy.ru/wp-content/uploads/materials/sruby.jpg [area_modifier] => 67.65 [parent_name] => Стены 1 этаж (несущие) [parent_id] => 3 [material_sum] => 174951 [work_sum] => 392566 [total_sum] => 567517 [total_days] => 7 [display_material_sum] => 174 951 [display_work_sum] => 392 566 [display_total_sum] => 567 517 ) 1
567 517
Работа:392 566
Материалы:174 951
Дни:7
Перекрытие первого этажа
stdClass Object ( [id] => 7 [attribute_id] => 4 [name] => Деревянные балки [material_modifier] => 1 [work_modifier] => 1 [options] => Array ( [0] => без утепления [1] => утепление 200 мм [2] => утепление 250 мм [3] => утепление 300 мм [4] => утепление 350 мм [5] => утепление 400 мм [6] => утепление 450 мм [7] => утепление 500 мм ) [days] => [8,9,9,9,11,12,13,14] [material_price] => [1634,2042,2344,2947,3149,3652,3354,3557] [work_price] => [1230,1339,1393,1426,1460,1513,1587,1620] [image] => https://akademik-stroy.ru/wp-content/uploads/materials/derevyannye-balki.png [area_modifier] => 67.65 [parent_name] => Перекрытие первого этажа [parent_id] => 4 [material_sum] => 152545 [work_sum] => 95691 [total_sum] => 248236 [total_days] => 8 [display_material_sum] => 152 545 [display_work_sum] => 95 691 [display_total_sum] => 248 236 ) 1
248 236
Работа:95 691
Материалы:152 545
Дни:8
stdClass Object ( [id] => 8 [attribute_id] => 4 [name] => Сборные ж/б плиты [material_modifier] => 1 [work_modifier] => 1 [options] => Array ( [0] => без утепления [1] => утепление 150 мм [2] => утепление 200 мм [3] => утепление 250 мм [4] => утепление 300 мм [5] => утепление 350 мм [6] => утепление 400 мм [7] => утепление 450 мм [8] => утепление 500 мм ) [days] => [13,15,15,15,15,15,15,15,15] [material_price] => [3067,5577,5928,6679,7730,8782,9833,10884,11935] [work_price] => [1520,1956,2102,2247,2392,2537,2684,2829,2974] [image] => https://akademik-stroy.ru/wp-content/uploads/materials/sbornye-zh-b-plity-2.jpg [area_modifier] => 67.65 [parent_name] => Перекрытие первого этажа [parent_id] => 4 [material_sum] => 286326 [work_sum] => 118252 [total_sum] => 404578 [total_days] => 13 [display_material_sum] => 286 326 [display_work_sum] => 118 252 [display_total_sum] => 404 578 ) 1
404 578
Работа:118 252
Материалы:286 326
Дни:13
stdClass Object ( [id] => 89 [attribute_id] => 4 [name] => Монолитная ж/б плита [material_modifier] => 1 [work_modifier] => 1 [options] => Array ( [0] => без утепления [1] => утепление 150 мм [2] => утепление 200 мм [3] => утепление 250 мм [4] => утепление 300 мм [5] => утепление 350 мм [6] => утепление 400 мм [7] => утепление 450 мм [8] => утепление 500 мм ) [days] => [18,20,20,20,20,20,20,20,20] [material_price] => [4837,6572,7224,7375,79426,8177,8728,9180,10031] [work_price] => [3348,3921,4112,4302,4493,4684,4875,5066,5256] [image] => https://akademik-stroy.ru/wp-content/uploads/materials/monolitnaya-zh-b-plita-2.jpg [area_modifier] => 67.65 [parent_name] => Перекрытие первого этажа [parent_id] => 4 [material_sum] => 451568 [work_sum] => 260466 [total_sum] => 712034 [total_days] => 18 [display_material_sum] => 451 568 [display_work_sum] => 260 466 [display_total_sum] => 712 034 ) 1
712 034
Работа:260 466
Материалы:451 568
Дни:18
Стены 2 этаж (несущие)
stdClass Object ( [id] => 10 [attribute_id] => 5 [name] => Пеноблок [material_modifier] => 1 [work_modifier] => 1 [options] => Array ( [0] => 300 мм [1] => 400 мм [2] => 500 мм [3] => 600 мм ) [days] => [29,31,34,39] [material_price] => [3000,4000,4500,4937] [work_price] => [5033,5805,6400,8710] [image] => https://akademik-stroy.ru/wp-content/uploads/materials/penoblok.jpg [area_modifier] => 67.01 [parent_name] => Стены 2 этаж (несущие) [parent_id] => 5 [material_sum] => 277421 [work_sum] => 387851 [total_sum] => 665272 [total_days] => 29 [display_material_sum] => 277 421 [display_work_sum] => 387 851 [display_total_sum] => 665 272 ) 1
665 272
Работа:387 851
Материалы:277 421
Дни:29
stdClass Object ( [id] => 90 [attribute_id] => 5 [name] => Керамический блок [material_modifier] => 1 [work_modifier] => 1 [options] => Array ( [0] => 380 мм [1] => 380 мм Thermo [2] => 440 мм [3] => 510 мм ) [days] => [23,23,24,25] [material_price] => [4510,5098,6093,8013] [work_price] => [4737,4937,5903,6958] [image] => https://akademik-stroy.ru/wp-content/uploads/materials/keramicheskij-blok.jpg [area_modifier] => 67.01 [parent_name] => Стены 2 этаж (несущие) [parent_id] => 5 [material_sum] => 417057 [work_sum] => 365040 [total_sum] => 782097 [total_days] => 23 [display_material_sum] => 417 057 [display_work_sum] => 365 040 [display_total_sum] => 782 097 ) 1
782 097
Работа:365 040
Материалы:417 057
Дни:23
stdClass Object ( [id] => 91 [attribute_id] => 5 [name] => Кирпич [material_modifier] => 1 [work_modifier] => 1 [options] => Array ( [0] => Кирпич 250 мм [1] => Кирпич 380 мм [2] => Кирпич 510 мм [3] => Кирпич 640 мм [4] => Кирпич 770 мм ) [days] => [30,30,31,33,36] [material_price] => [5500,7142,9206,10171,12235] [work_price] => [8736,10041,12018,15240,18462] [image] => https://akademik-stroy.ru/wp-content/uploads/materials/kirpich.jpg [area_modifier] => 67.01 [parent_name] => Стены 2 этаж (несущие) [parent_id] => 5 [material_sum] => 508606 [work_sum] => 673209 [total_sum] => 1181815 [total_days] => 30 [display_material_sum] => 508 606 [display_work_sum] => 673 209 [display_total_sum] => 1 181 815 ) 1
1 181 815
Работа:673 209
Материалы:508 606
Дни:30
stdClass Object ( [id] => 92 [attribute_id] => 5 [name] => Монолитные [material_modifier] => 1 [work_modifier] => 1 [options] => Array ( [0] => 150 мм [1] => 200 мм [2] => 250 мм [3] => 300 мм [4] => 350 мм [5] => 400 мм ) [days] => [45,46,47,49,50,53] [material_price] => [6545,7876,10175,12011,13908,15204] [work_price] => [5106,6444,7698,8552,9807,11461] [image] => https://akademik-stroy.ru/wp-content/uploads/materials/monolitnye.jpg [area_modifier] => 67.01 [parent_name] => Стены 2 этаж (несущие) [parent_id] => 5 [material_sum] => 605241 [work_sum] => 393476 [total_sum] => 998717 [total_days] => 45 [display_material_sum] => 605 241 [display_work_sum] => 393 476 [display_total_sum] => 998 717 ) 1
998 717
Работа:393 476
Материалы:605 241
Дни:45
stdClass Object ( [id] => 93 [attribute_id] => 5 [name] => Клееный брус [material_modifier] => 1 [work_modifier] => 1 [options] => Array ( [0] => 160 мм [1] => 175 мм [2] => 200 мм [3] => 215 мм [4] => 240 мм [5] => 270 мм [6] => 282 мм ) [days] => [24,28,32,37,40,42,48] [material_price] => [16975,18773,19950,20545,21599,22159,23275] [work_price] => [4806,5287,5815,6397,7036,7740,8514] [image] => https://akademik-stroy.ru/wp-content/uploads/materials/kleenyj-brus.jpg [area_modifier] => 67.01 [parent_name] => Стены 2 этаж (несущие) [parent_id] => 5 [material_sum] => 1569743 [work_sum] => 370358 [total_sum] => 1940101 [total_days] => 24 [display_material_sum] => 1 569 743 [display_work_sum] => 370 358 [display_total_sum] => 1 940 101 ) 1
1 940 101
Работа:370 358
Материалы:1 569 743
Дни:24
stdClass Object ( [id] => 94 [attribute_id] => 5 [name] => Каркасные [material_modifier] => 1 [work_modifier] => 1 [options] => Array ( [0] => 150 мм [1] => 200 мм [2] => 250 мм [3] => 300 мм ) [days] => [15,16,17,18] [material_price] => [2379,2639,2898,3258] [work_price] => [2418,2686,2985,3716] [image] => https://akademik-stroy.ru/wp-content/uploads/materials/karkasnye.jpg [area_modifier] => 67.01 [parent_name] => Стены 2 этаж (несущие) [parent_id] => 5 [material_sum] => 219995 [work_sum] => 186335 [total_sum] => 406330 [total_days] => 15 [display_material_sum] => 219 995 [display_work_sum] => 186 335 [display_total_sum] => 406 330 ) 1
406 330
Работа:186 335
Материалы:219 995
Дни:15
stdClass Object ( [id] => 95 [attribute_id] => 5 [name] => СИП-панели [material_modifier] => 1 [work_modifier] => 1 [options] => Array ( [0] => 120 мм [1] => 170 мм [2] => 220 мм ) [days] => [7,7,7] [material_price] => [1210,1856,2292] [work_price] => [1410,1551,1706] [image] => https://akademik-stroy.ru/wp-content/uploads/materials/sip-paneli.jpg [area_modifier] => 67.01 [parent_name] => Стены 2 этаж (несущие) [parent_id] => 5 [material_sum] => 111893 [work_sum] => 108657 [total_sum] => 220550 [total_days] => 7 [display_material_sum] => 111 893 [display_work_sum] => 108 657 [display_total_sum] => 220 550 ) 1
220 550
Работа:108 657
Материалы:111 893
Дни:7
stdClass Object ( [id] => 96 [attribute_id] => 5 [name] => Сухой брус [material_modifier] => 1 [work_modifier] => 1 [options] => Array ( [0] => 150 мм [1] => 180 мм [2] => 200 мм ) [days] => [7,8,9] [material_price] => [6010,7190,8709] [work_price] => [3204,3845,4229] [image] => https://akademik-stroy.ru/wp-content/uploads/materials/suhoj-brus.jpg [area_modifier] => 67.01 [parent_name] => Стены 2 этаж (несущие) [parent_id] => 5 [material_sum] => 555768 [work_sum] => 246905 [total_sum] => 802673 [total_days] => 7 [display_material_sum] => 555 768 [display_work_sum] => 246 905 [display_total_sum] => 802 673 ) 1
802 673
Работа:246 905
Материалы:555 768
Дни:7
stdClass Object ( [id] => 97 [attribute_id] => 5 [name] => Профилированный брус [material_modifier] => 1 [work_modifier] => 1 [options] => Array ( [0] => 150 мм [1] => 180 мм [2] => 200 мм ) [days] => [7,8,9] [material_price] => [8190,9228,10051] [work_price] => [3845,4614,5075] [image] => https://akademik-stroy.ru/wp-content/uploads/materials/profilirovannyj-brus.jpg [area_modifier] => 67.01 [parent_name] => Стены 2 этаж (несущие) [parent_id] => 5 [material_sum] => 757360 [work_sum] => 296301 [total_sum] => 1053661 [total_days] => 7 [display_material_sum] => 757 360 [display_work_sum] => 296 301 [display_total_sum] => 1 053 661 ) 1
1 053 661
Работа:296 301
Материалы:757 360
Дни:7
stdClass Object ( [id] => 98 [attribute_id] => 5 [name] => Оцилиндрованное бревно [material_modifier] => 1 [work_modifier] => 1 [options] => Array ( [0] => 180 мм [1] => 220 мм [2] => 260 мм [3] => 320 мм ) [days] => [7,8,9,10] [material_price] => [75190,9532,10868,13116] [work_price] => [3845,4691,5535,6863] [image] => https://akademik-stroy.ru/wp-content/uploads/materials/ocilindrovannoe-brevno-1.jpg [area_modifier] => 67.01 [parent_name] => Стены 2 этаж (несущие) [parent_id] => 5 [material_sum] => 6953105 [work_sum] => 296301 [total_sum] => 7249406 [total_days] => 7 [display_material_sum] => 6 953 105 [display_work_sum] => 296 301 [display_total_sum] => 7 249 406 ) 1
7 249 406
Работа:296 301
Материалы:6 953 105
Дни:7
stdClass Object ( [id] => 99 [attribute_id] => 5 [name] => Срубы [material_modifier] => 1 [work_modifier] => 1 [options] => Array ( [0] => 260 мм [1] => 320 мм [2] => 360 мм [3] => 400 мм [4] => 500 мм ) [days] => [7,8,9,10,11] [material_price] => [16175,23709,26314,29069,32167] [work_price] => [4806,5911,6621,7349,9260] [image] => https://akademik-stroy.ru/wp-content/uploads/materials/suhoj-brus.jpg [area_modifier] => 67.01 [parent_name] => Стены 2 этаж (несущие) [parent_id] => 5 [material_sum] => 1495764 [work_sum] => 370358 [total_sum] => 1866122 [total_days] => 7 [display_material_sum] => 1 495 764 [display_work_sum] => 370 358 [display_total_sum] => 1 866 122 ) 1
1 866 122
Работа:370 358
Материалы:1 495 764
Дни:7
stdClass Object ( [id] => 194 [attribute_id] => 5 [name] => Брус [material_modifier] => 1 [work_modifier] => 1 [options] => Array ( [0] => 150 мм [1] => 180 мм [2] => 200 мм ) [days] => [10,13,15] [material_price] => [5127,6152,7367] [work_price] => [1602,1922,2115] [image] => https://akademik-stroy.ru/wp-content/uploads/materials/brus.jpg [area_modifier] => 67.01 [parent_name] => Стены 2 этаж (несущие) [parent_id] => 5 [material_sum] => 474113 [work_sum] => 123453 [total_sum] => 597566 [total_days] => 10 [display_material_sum] => 474 113 [display_work_sum] => 123 453 [display_total_sum] => 597 566 ) 1
597 566
Работа:123 453
Материалы:474 113
Дни:10
stdClass Object ( [id] => 195 [attribute_id] => 5 [name] => Газобетон [material_modifier] => 1 [work_modifier] => 1 [options] => Array ( [0] => 300 мм [1] => 375 мм [2] => 400 мм [3] => 500 мм [4] => 600 мм ) [days] => [29,31,35,37,44] [material_price] => [4298,5573,6356,7288,9119] [work_price] => [4538,5251,5926,6733,7195] [image] => https://akademik-stroy.ru/wp-content/uploads/materials/gazobeton.jpg [area_modifier] => 67.01 [parent_name] => Стены 2 этаж (несущие) [parent_id] => 5 [material_sum] => 397452 [work_sum] => 349705 [total_sum] => 747157 [total_days] => 29 [display_material_sum] => 397 452 [display_work_sum] => 349 705 [display_total_sum] => 747 157 ) 1
747 157
Работа:349 705
Материалы:397 452
Дни:29
stdClass Object ( [id] => 196 [attribute_id] => 5 [name] => Блок [material_modifier] => 1 [work_modifier] => 1 [options] => Array ( [0] => 300 мм [1] => 375 мм [2] => 400 мм [3] => 500 мм [4] => 600 мм ) [days] => [29,31,35,37,44] [material_price] => [2698,3973,4356,6588,7119] [work_price] => [5038,5851,6426,8733,9195] [image] => https://akademik-stroy.ru/wp-content/uploads/materials/blok.jpg [area_modifier] => 67.01 [parent_name] => Стены 2 этаж (несущие) [parent_id] => 5 [material_sum] => 249494 [work_sum] => 388236 [total_sum] => 637730 [total_days] => 29 [display_material_sum] => 249 494 [display_work_sum] => 388 236 [display_total_sum] => 637 730 ) 1
637 730
Работа:388 236
Материалы:249 494
Дни:29
stdClass Object ( [id] => 197 [attribute_id] => 5 [name] => Газосиликатный блок [material_modifier] => 1 [work_modifier] => 1 [options] => Array ( [0] => 300 мм [1] => 375 мм [2] => 400 мм [3] => 500 мм [4] => 600 мм ) [days] => [29,31,35,37,44] [material_price] => [4298,5573,6356,7288,9119] [work_price] => [4538,5251,5926,6733,7195] [image] => https://akademik-stroy.ru/wp-content/uploads/materials/gazosilikatnyj-blok.jpg [area_modifier] => 67.01 [parent_name] => Стены 2 этаж (несущие) [parent_id] => 5 [material_sum] => 397452 [work_sum] => 349705 [total_sum] => 747157 [total_days] => 29 [display_material_sum] => 397 452 [display_work_sum] => 349 705 [display_total_sum] => 747 157 ) 1
747 157
Работа:349 705
Материалы:397 452
Дни:29
stdClass Object ( [id] => 198 [attribute_id] => 5 [name] => Керамзитобетонный блок [material_modifier] => 1 [work_modifier] => 1 [options] => Array ( [0] => 300 мм [1] => 375 мм [2] => 400 мм [3] => 500 мм [4] => 600 мм ) [days] => [23,23,24,25,28] [material_price] => [3641,4298,5693,7613,9612] [work_price] => [5737,5737,6903,7958,8901] [image] => https://akademik-stroy.ru/wp-content/uploads/materials/keramzitobetonnyj-blok.jpg [area_modifier] => 67.01 [parent_name] => Стены 2 этаж (несущие) [parent_id] => 5 [material_sum] => 336697 [work_sum] => 442102 [total_sum] => 778799 [total_days] => 23 [display_material_sum] => 336 697 [display_work_sum] => 442 102 [display_total_sum] => 778 799 ) 1
778 799
Работа:442 102
Материалы:336 697
Дни:23
stdClass Object ( [id] => 199 [attribute_id] => 5 [name] => Деревянные [material_modifier] => 1 [work_modifier] => 1 [options] => Array ( [0] => 180 мм [1] => 220 мм [2] => 260 мм [3] => 320 мм ) [days] => [7,8,9,10] [material_price] => [7950,9458,11961,14472] [work_price] => [4037,4925,5812,7207] [image] => https://akademik-stroy.ru/wp-content/uploads/materials/derevyannye.jpg [area_modifier] => 67.01 [parent_name] => Стены 2 этаж (несущие) [parent_id] => 5 [material_sum] => 735167 [work_sum] => 311097 [total_sum] => 1046264 [total_days] => 7 [display_material_sum] => 735 167 [display_work_sum] => 311 097 [display_total_sum] => 1 046 264 ) 1
1 046 264
Работа:311 097
Материалы:735 167
Дни:7
stdClass Object ( [id] => 200 [attribute_id] => 5 [name] => Камень [material_modifier] => 1 [work_modifier] => 1 [options] => Array ( [0] => 300 мм [1] => 400 мм [2] => 500 мм [3] => 600 мм ) [days] => [25,27,31,34] [material_price] => [5262,6844,8330,9815] [work_price] => [8331,9135,10427,11069] [image] => https://akademik-stroy.ru/wp-content/uploads/materials/kamen.jpg [area_modifier] => 67.01 [parent_name] => Стены 2 этаж (несущие) [parent_id] => 5 [material_sum] => 486597 [work_sum] => 641999 [total_sum] => 1128596 [total_days] => 25 [display_material_sum] => 486 597 [display_work_sum] => 641 999 [display_total_sum] => 1 128 596 ) 1
1 128 596
Работа:641 999
Материалы:486 597
Дни:25
stdClass Object ( [id] => 201 [attribute_id] => 5 [name] => Каркасно-щитовые [material_modifier] => 1 [work_modifier] => 1 [options] => Array ( [0] => 150 мм [1] => 200 мм [2] => 250 мм [3] => 300 мм [4] => 350 мм [5] => 400 мм ) [days] => [15,16,17,18,19,20] [material_price] => [2379,2639,2898,3458,3601,4175] [work_price] => [2538,2820,3134,3483,4062,5642] [image] => https://akademik-stroy.ru/wp-content/uploads/materials/karkasno-shchitovye.jpg [area_modifier] => 67.01 [parent_name] => Стены 2 этаж (несущие) [parent_id] => 5 [material_sum] => 219995 [work_sum] => 195582 [total_sum] => 415577 [total_days] => 15 [display_material_sum] => 219 995 [display_work_sum] => 195 582 [display_total_sum] => 415 577 ) 1
415 577
Работа:195 582
Материалы:219 995
Дни:15
stdClass Object ( [id] => 202 [attribute_id] => 5 [name] => Рубленные [material_modifier] => 1 [work_modifier] => 1 [options] => Array ( [0] => 150 мм [1] => 200 мм [2] => 250 мм [3] => 300 мм [4] => 350 мм [5] => 400 мм ) [days] => [15,16,17,18,17,18] [material_price] => [35950,50267,60583,75900,80217,100533] [work_price] => [9612,12816,16020,19224,22428,25632] [image] => https://akademik-stroy.ru/wp-content/uploads/materials/rublennye.jpg [area_modifier] => 67.01 [parent_name] => Стены 2 этаж (несущие) [parent_id] => 5 [material_sum] => 3324433 [work_sum] => 740715 [total_sum] => 4065148 [total_days] => 15 [display_material_sum] => 3 324 433 [display_work_sum] => 740 715 [display_total_sum] => 4 065 148 ) 1
4 065 148
Работа:740 715
Материалы:3 324 433
Дни:15
stdClass Object ( [id] => 203 [attribute_id] => 5 [name] => Теплоблок [material_modifier] => 1 [work_modifier] => 1 [options] => Array ( [0] => 300 мм (с облицовкой, не покрашенный) [1] => 400 мм (с облицовкой, не покрашенный) [2] => 300 мм (с облицовкой, покрашенный) [3] => 400 мм (с облицовкой, покрашенный) ) [days] => [15,16,15,16] [material_price] => [2888,3729,3957,4258] [work_price] => [2564,3229,2949,3713] [image] => https://akademik-stroy.ru/wp-content/uploads/materials/teploblok.jpg [area_modifier] => 67.01 [parent_name] => Стены 2 этаж (несущие) [parent_id] => 5 [material_sum] => 267064 [work_sum] => 197586 [total_sum] => 464650 [total_days] => 15 [display_material_sum] => 267 064 [display_work_sum] => 197 586 [display_total_sum] => 464 650 ) 1
464 650
Работа:197 586
Материалы:267 064
Дни:15
stdClass Object ( [id] => 204 [attribute_id] => 5 [name] => Арболитовые блоки [material_modifier] => 1 [work_modifier] => 1 [options] => Array ( [0] => 300 мм [1] => 400 мм [2] => 600 мм ) [days] => [19,22,27] [material_price] => [3210,4475,5852] [work_price] => [4214,4788,5866] [image] => https://akademik-stroy.ru/wp-content/uploads/materials/arbolitovye-bloki.png [area_modifier] => 67.01 [parent_name] => Стены 2 этаж (несущие) [parent_id] => 5 [material_sum] => 296841 [work_sum] => 324737 [total_sum] => 621578 [total_days] => 19 [display_material_sum] => 296 841 [display_work_sum] => 324 737 [display_total_sum] => 621 578 ) 1
621 578
Работа:324 737
Материалы:296 841
Дни:19
stdClass Object ( [id] => 205 [attribute_id] => 5 [name] => Полистиролбетон [material_modifier] => 1 [work_modifier] => 1 [options] => Array ( [0] => 300 мм [1] => 400 мм [2] => 600 мм ) [days] => [29,31,35] [material_price] => [2798,4573,5256] [work_price] => [5038,5851,6426] [image] => https://akademik-stroy.ru/wp-content/uploads/materials/polistirolbeton.jpg [area_modifier] => 67.01 [parent_name] => Стены 2 этаж (несущие) [parent_id] => 5 [material_sum] => 258742 [work_sum] => 388236 [total_sum] => 646978 [total_days] => 29 [display_material_sum] => 258 742 [display_work_sum] => 388 236 [display_total_sum] => 646 978 ) 1
646 978
Работа:388 236
Материалы:258 742
Дни:29
stdClass Object ( [id] => 206 [attribute_id] => 5 [name] => Шлакоблок [material_modifier] => 1 [work_modifier] => 1 [options] => Array ( [0] => 400 мм [1] => 600 мм ) [days] => [15,16] [material_price] => [2391,3471] [work_price] => [2642,3662] [image] => https://akademik-stroy.ru/wp-content/uploads/materials/shlakoblok.jpg [area_modifier] => 67.01 [parent_name] => Стены 2 этаж (несущие) [parent_id] => 5 [material_sum] => 221105 [work_sum] => 203596 [total_sum] => 424701 [total_days] => 15 [display_material_sum] => 221 105 [display_work_sum] => 203 596 [display_total_sum] => 424 701 ) 1
424 701
Работа:203 596
Материалы:221 105
Дни:15
stdClass Object ( [id] => 245 [attribute_id] => 5 [name] => Теплая керамика [material_modifier] => 1 [work_modifier] => 1 [options] => Array ( [0] => 380 мм [1] => 380 мм Thermo [2] => 440 мм [3] => 510 мм ) [days] => [10,10,11,12] [material_price] => [4510,5098,6093,8013] [work_price] => [4737,4937,5903,6958] [image] => https://akademik-stroy.ru/wp-content/uploads/materials/teplaya-keramika.jpg [area_modifier] => 67.01 [parent_name] => Стены 2 этаж (несущие) [parent_id] => 5 [material_sum] => 417057 [work_sum] => 365040 [total_sum] => 782097 [total_days] => 10 [display_material_sum] => 417 057 [display_work_sum] => 365 040 [display_total_sum] => 782 097 ) 1
782 097
Работа:365 040
Материалы:417 057
Дни:10
stdClass Object ( [id] => 246 [attribute_id] => 5 [name] => Несъемная опалубка [material_modifier] => 1 [work_modifier] => 1 [options] => Array ( [0] => 380 мм [1] => 380 мм Thermo [2] => 440 мм [3] => 510 мм ) [days] => [10,10,11,12] [material_price] => [3302,3902,4108,5008] [work_price] => [2100,2100,2300,2534] [image] => https://akademik-stroy.ru/wp-content/uploads/materials/nesemnaya-opalubka.jpg [area_modifier] => 67.01 [parent_name] => Стены 2 этаж (несущие) [parent_id] => 5 [material_sum] => 305348 [work_sum] => 161829 [total_sum] => 467177 [total_days] => 10 [display_material_sum] => 305 348 [display_work_sum] => 161 829 [display_total_sum] => 467 177 ) 1
467 177
Работа:161 829
Материалы:305 348
Дни:10
stdClass Object ( [id] => 254 [attribute_id] => 5 [name] => Бревно [material_modifier] => 1 [work_modifier] => 1 [options] => Array ( [0] => 260 мм [1] => 320 мм [2] => 360 мм [3] => 400 мм [4] => 500 мм ) [days] => [7,8,9,10,11] [material_price] => [1874,24045,26930,30972,38825] [work_price] => [5046,6207,6952,7716,9723] [image] => https://akademik-stroy.ru/wp-content/uploads/materials/sruby.jpg [area_modifier] => 67.01 [parent_name] => Стены 2 этаж (несущие) [parent_id] => 5 [material_sum] => 173296 [work_sum] => 388852 [total_sum] => 562148 [total_days] => 7 [display_material_sum] => 173 296 [display_work_sum] => 388 852 [display_total_sum] => 562 148 ) 1
562 148
Работа:388 852
Материалы:173 296
Дни:7
Крыша (Скатная)
stdClass Object ( [id] => 164 [attribute_id] => 37 [name] => Металлочерепица [material_modifier] => 1 [work_modifier] => 1 [options] => Array ( ) [days] => [20] [material_price] => [6112] [work_price] => [5726] [image] => https://akademik-stroy.ru/wp-content/uploads/materials/metallocherepica.jpg [area_modifier] => 67.65 [parent_name] => Крыша (Скатная) [parent_id] => 37 [material_sum] => 570598 [work_sum] => 445468 [total_sum] => 1016066 [total_days] => 20 [display_material_sum] => 570 598 [display_work_sum] => 445 468 [display_total_sum] => 1 016 066 ) 1
1 016 066
Работа:445 468
Материалы:570 598
Дни:20
stdClass Object ( [id] => 165 [attribute_id] => 37 [name] => Гибкая черепица [material_modifier] => 1 [work_modifier] => 1 [options] => Array ( ) [days] => [20] [material_price] => [6980] [work_price] => [5950] [image] => https://akademik-stroy.ru/wp-content/uploads/materials/gibkaya-cherepica.jpg [area_modifier] => 67.65 [parent_name] => Крыша (Скатная) [parent_id] => 37 [material_sum] => 651632 [work_sum] => 462895 [total_sum] => 1114527 [total_days] => 20 [display_material_sum] => 651 632 [display_work_sum] => 462 895 [display_total_sum] => 1 114 527 ) 1
1 114 527
Работа:462 895
Материалы:651 632
Дни:20
stdClass Object ( [id] => 166 [attribute_id] => 37 [name] => Цементно-песчаная черепица [material_modifier] => 1 [work_modifier] => 1 [options] => Array ( ) [days] => [20] [material_price] => [10560] [work_price] => [9456] [image] => https://akademik-stroy.ru/wp-content/uploads/materials/cementno-peschanaya-cherepica.jpg [area_modifier] => 67.65 [parent_name] => Крыша (Скатная) [parent_id] => 37 [material_sum] => 985850 [work_sum] => 735653 [total_sum] => 1721503 [total_days] => 20 [display_material_sum] => 985 850 [display_work_sum] => 735 653 [display_total_sum] => 1 721 503 ) 1
1 721 503
Работа:735 653
Материалы:985 850
Дни:20
stdClass Object ( [id] => 167 [attribute_id] => 37 [name] => Композитная черепица [material_modifier] => 1 [work_modifier] => 1 [options] => Array ( ) [days] => [20] [material_price] => [9506] [work_price] => [8905] [image] => https://akademik-stroy.ru/wp-content/uploads/materials/kompozitnaya-cherepica.jpg [area_modifier] => 67.65 [parent_name] => Крыша (Скатная) [parent_id] => 37 [material_sum] => 887452 [work_sum] => 692787 [total_sum] => 1580239 [total_days] => 20 [display_material_sum] => 887 452 [display_work_sum] => 692 787 [display_total_sum] => 1 580 239 ) 1
1 580 239
Работа:692 787
Материалы:887 452
Дни:20
stdClass Object ( [id] => 168 [attribute_id] => 37 [name] => Керамическая черепица [material_modifier] => 1 [work_modifier] => 1 [options] => Array ( ) [days] => [20] [material_price] => [12750] [work_price] => [9456] [image] => https://akademik-stroy.ru/wp-content/uploads/materials/keramicheskaya-cherepica.jpg [area_modifier] => 67.65 [parent_name] => Крыша (Скатная) [parent_id] => 37 [material_sum] => 1190302 [work_sum] => 735653 [total_sum] => 1925955 [total_days] => 20 [display_material_sum] => 1 190 302 [display_work_sum] => 735 653 [display_total_sum] => 1 925 955 ) 1
1 925 955
Работа:735 653
Материалы:1 190 302
Дни:20
stdClass Object ( [id] => 169 [attribute_id] => 37 [name] => Металлическая фальцевая [material_modifier] => 1 [work_modifier] => 1 [options] => Array ( ) [days] => [20] [material_price] => [8550] [work_price] => [8190] [image] => https://akademik-stroy.ru/wp-content/uploads/materials/metallicheskaya-falcevaya.jpg [area_modifier] => 67.65 [parent_name] => Крыша (Скатная) [parent_id] => 37 [material_sum] => 798202 [work_sum] => 637162 [total_sum] => 1435364 [total_days] => 20 [display_material_sum] => 798 202 [display_work_sum] => 637 162 [display_total_sum] => 1 435 364 ) 1
1 435 364
Работа:637 162
Материалы:798 202
Дни:20
stdClass Object ( [id] => 170 [attribute_id] => 37 [name] => Медная фальцевая [material_modifier] => 1 [work_modifier] => 1 [options] => Array ( ) [days] => [20] [material_price] => [20450] [work_price] => [16750] [image] => https://akademik-stroy.ru/wp-content/uploads/materials/mednaya-falcevaya.jpg [area_modifier] => 67.65 [parent_name] => Крыша (Скатная) [parent_id] => 37 [material_sum] => 1909151 [work_sum] => 1303108 [total_sum] => 3212259 [total_days] => 20 [display_material_sum] => 1 909 151 [display_work_sum] => 1 303 108 [display_total_sum] => 3 212 259 ) 1
3 212 259
Работа:1 303 108
Материалы:1 909 151
Дни:20
stdClass Object ( [id] => 171 [attribute_id] => 37 [name] => Зеленая кровля [material_modifier] => 1 [work_modifier] => 1 [options] => Array ( ) [days] => [20] [material_price] => [19850] [work_price] => [16780] [image] => https://akademik-stroy.ru/wp-content/uploads/materials/zelenaya-krovlya.jpg [area_modifier] => 67.65 [parent_name] => Крыша (Скатная) [parent_id] => 37 [material_sum] => 1853136 [work_sum] => 1305442 [total_sum] => 3158578 [total_days] => 20 [display_material_sum] => 1 853 136 [display_work_sum] => 1 305 442 [display_total_sum] => 3 158 578 ) 1
3 158 578
Работа:1 305 442
Материалы:1 853 136
Дни:20
stdClass Object ( [id] => 172 [attribute_id] => 37 [name] => Профлист [material_modifier] => 1 [work_modifier] => 1 [options] => Array ( ) [days] => [20] [material_price] => [3450] [work_price] => [3750] [image] => https://akademik-stroy.ru/wp-content/uploads/materials/proflist.jpg [area_modifier] => 67.65 [parent_name] => Крыша (Скатная) [parent_id] => 37 [material_sum] => 322082 [work_sum] => 291741 [total_sum] => 613823 [total_days] => 20 [display_material_sum] => 322 082 [display_work_sum] => 291 741 [display_total_sum] => 613 823 ) 1
613 823
Работа:291 741
Материалы:322 082
Дни:20
Окна
stdClass Object ( [id] => 51 [attribute_id] => 26 [name] => Есть [material_modifier] => 1 [work_modifier] => 1 [options] => Array ( [0] => Профиль 58 мм, 3-камерный, стеклопакет 2-камерный до 32 мм [1] => Профиль 60 мм, 4-камерный, стеклопакет 2-камерный до 32 мм [2] => Профиль 70 мм, 5-камерный, стеклопакет 2-камерный до 40 мм [3] => Профиль 72 мм, 5-камерный, стеклопакет 2-камерный до 40 мм [4] => Алюминиевые окна Alutech профиль 72 мм, стеклопакет 2-камерный ) [days] => [3,3,3,3,3] [material_price] => [1339,2124,2867,3023,29596] [work_price] => [635,647,659,668,2579] [image] => https://akademik-stroy.ru/wp-content/uploads/materials/okna.jpg [area_modifier] => 109.28 [parent_name] => Окна [parent_id] => 26 [material_sum] => 201930 [work_sum] => 79802 [total_sum] => 281732 [total_days] => 3 [display_material_sum] => 201 930 [display_work_sum] => 79 802 [display_total_sum] => 281 732 ) 1
281 732
Работа:79 802
Материалы:201 930
Дни:3
stdClass Object ( [id] => 52 [attribute_id] => 26 [name] => Нет [material_modifier] => 2 [work_modifier] => 1 [options] => [days] => null [material_price] => null [work_price] => null [image] => https://akademik-stroy.ru/wp-content/uploads/materials/okna.jpg [area_modifier] => 109.28 [parent_name] => Окна [parent_id] => 26 [material_sum] => 0 [work_sum] => 0 [total_sum] => 0 [total_days] => 0 [display_material_sum] => 0 [display_work_sum] => 0 [display_total_sum] => 0 ) 1
0
Работа:0
Материалы:0
Дни:0
Двери входные
stdClass Object ( [id] => 53 [attribute_id] => 27 [name] => Есть [material_modifier] => 1 [work_modifier] => 1 [options] => Array ( ) [days] => [1] [material_price] => [10000] [work_price] => [5500] [image] => https://akademik-stroy.ru/wp-content/uploads/materials/dveri.jpg [area_modifier] => 1 [parent_name] => Двери входные [parent_id] => 27 [material_sum] => 13800 [work_sum] => 6325 [total_sum] => 20125 [total_days] => 1 [display_material_sum] => 13 800 [display_work_sum] => 6 325 [display_total_sum] => 20 125 ) 1
20 125
Работа:6 325
Материалы:13 800
Дни:1
stdClass Object ( [id] => 54 [attribute_id] => 27 [name] => Нет [material_modifier] => 1 [work_modifier] => 1 [options] => Array ( ) [days] => [0] [material_price] => [0] [work_price] => [0] [image] => https://akademik-stroy.ru/wp-content/uploads/materials/dveri.jpg [area_modifier] => 1 [parent_name] => Двери входные [parent_id] => 27 [material_sum] => 0 [work_sum] => 0 [total_sum] => 0 [total_days] => 0 [display_material_sum] => 0 [display_work_sum] => 0 [display_total_sum] => 0 ) 1
0
Работа:0
Материалы:0
Дни:0
Утепление кровли (Мансарда)
stdClass Object ( [id] => 25 [attribute_id] => 13 [name] => Нет [material_modifier] => 1 [work_modifier] => 1 [options] => Array ( ) [days] => [0] [material_price] => [0] [work_price] => [0] [image] => https://akademik-stroy.ru/wp-content/uploads/materials/mineralovata-krov.jpg [area_modifier] => 67.65 [parent_name] => Утепление кровли (Мансарда) [parent_id] => 13 [material_sum] => 0 [work_sum] => 0 [total_sum] => 0 [total_days] => 0 [display_material_sum] => 0 [display_work_sum] => 0 [display_total_sum] => 0 ) 1
0
Работа:0
Материалы:0
Дни:0
stdClass Object ( [id] => 26 [attribute_id] => 13 [name] => Минераловатный [material_modifier] => 1 [work_modifier] => 1 [options] => Array ( [0] => 50 мм [1] => 100 мм [2] => 150 мм [3] => 200 мм [4] => 250 мм [5] => 300 мм [6] => 350 мм [7] => 400 мм [8] => 450 мм [9] => 500 мм ) [days] => [5,5,6,6,6,7,7,7,8,8] [material_price] => [1158,1414,1772,2230,3602,4060,4974,5890,6408,7718] [work_price] => [650,846,846,1098,1318,1450,1596,1754,1930,2122] [image] => https://akademik-stroy.ru/wp-content/uploads/materials/mineralovata-krov.jpg [area_modifier] => 67.65 [parent_name] => Утепление кровли (Мансарда) [parent_id] => 13 [material_sum] => 108107 [work_sum] => 50568 [total_sum] => 158675 [total_days] => 5 [display_material_sum] => 108 107 [display_work_sum] => 50 568 [display_total_sum] => 158 675 ) 1
158 675
Работа:50 568
Материалы:108 107
Дни:5
stdClass Object ( [id] => 123 [attribute_id] => 13 [name] => Эковата (целлюлозная вата) [material_modifier] => 1 [work_modifier] => 1 [options] => Array ( [0] => 50 мм [1] => 100 мм [2] => 150 мм [3] => 200 мм [4] => 250 мм [5] => 300 мм [6] => 350 мм [7] => 400 мм [8] => 450 мм [9] => 500 мм ) [days] => [3,3,4,4,4,5,5,5,5,5] [material_price] => [820,1638,2458,3276,5734,6552,8190,9828,11466,13104] [work_price] => [234,304,304,396,474,522,574,632,694,764] [image] => https://akademik-stroy.ru/wp-content/uploads/materials/ehkovata-krov.jpg [area_modifier] => 67.65 [parent_name] => Утепление кровли (Мансарда) [parent_id] => 13 [material_sum] => 76553 [work_sum] => 18205 [total_sum] => 94758 [total_days] => 3 [display_material_sum] => 76 553 [display_work_sum] => 18 205 [display_total_sum] => 94 758 ) 1
94 758
Работа:18 205
Материалы:76 553
Дни:3
stdClass Object ( [id] => 124 [attribute_id] => 13 [name] => Экструдированный пенополистирол [material_modifier] => 1 [work_modifier] => 1 [options] => Array ( [0] => 50 мм [1] => 100 мм [2] => 150 мм [3] => 200 мм [4] => 250 мм [5] => 300 мм [6] => 350 мм [7] => 400 мм [8] => 450 мм [9] => 500 мм ) [days] => [3,3,4,4,4,5,5,5,5,6] [material_price] => [1146,2292,3438,4584,8020,9166,11458,13750,16040,18332] [work_price] => [390,508,508,660,790,870,958,1052,1158,1274] [image] => https://akademik-stroy.ru/wp-content/uploads/materials/epps-krov.jpg [area_modifier] => 67.65 [parent_name] => Утепление кровли (Мансарда) [parent_id] => 13 [material_sum] => 106987 [work_sum] => 30341 [total_sum] => 137328 [total_days] => 3 [display_material_sum] => 106 987 [display_work_sum] => 30 341 [display_total_sum] => 137 328 ) 1
137 328
Работа:30 341
Материалы:106 987
Дни:3
stdClass Object ( [id] => 125 [attribute_id] => 13 [name] => ПСБ (ППС-пенополистирол) [material_modifier] => 1 [work_modifier] => 1 [options] => Array ( [0] => 50 мм [1] => 100 мм [2] => 150 мм [3] => 200 мм [4] => 250 мм [5] => 300 мм [6] => 350 мм [7] => 400 мм [8] => 450 мм [9] => 500 мм ) [days] => [3,3,4,4,4,5,5,5,5,6] [material_price] => [476,954,1430,1906,3336,3814,4766,5720,6674,7626] [work_price] => [390,508,508,660,790,870,958,1052,1158,1274] [image] => https://akademik-stroy.ru/wp-content/uploads/materials/psb-krov.jpg [area_modifier] => 67.65 [parent_name] => Утепление кровли (Мансарда) [parent_id] => 13 [material_sum] => 44438 [work_sum] => 30341 [total_sum] => 74779 [total_days] => 3 [display_material_sum] => 44 438 [display_work_sum] => 30 341 [display_total_sum] => 74 779 ) 1
74 779
Работа:30 341
Материалы:44 438
Дни:3
stdClass Object ( [id] => 126 [attribute_id] => 13 [name] => ППУ (Пенополиуретан) [material_modifier] => 1 [work_modifier] => 1 [options] => Array ( [0] => 50 мм [1] => 100 мм [2] => 150 мм [3] => 200 мм [4] => 250 мм [5] => 300 мм [6] => 350 мм [7] => 400 мм [8] => 450 мм [9] => 500 мм ) [days] => [2,2,3,3,3,3,4,4,4,4] [material_price] => [2080,4160,6240,8320,14560,16640,20800,24960,29120,33280] [work_price] => [234,304,304,396,474,522,574,632,694,764] [image] => https://akademik-stroy.ru/wp-content/uploads/materials/ppu-krov.jpg [area_modifier] => 67.65 [parent_name] => Утепление кровли (Мансарда) [parent_id] => 13 [material_sum] => 194183 [work_sum] => 18205 [total_sum] => 212388 [total_days] => 2 [display_material_sum] => 194 183 [display_work_sum] => 18 205 [display_total_sum] => 212 388 ) 1
212 388
Работа:18 205
Материалы:194 183
Дни:2
stdClass Object ( [id] => 127 [attribute_id] => 13 [name] => PIR-плиты (пенополиизоцианурат) [material_modifier] => 1 [work_modifier] => 1 [options] => Array ( [0] => 50 мм [1] => 100 мм [2] => 150 мм [3] => 200 мм [4] => 250 мм [5] => 300 мм [6] => 350 мм [7] => 400 мм [8] => 450 мм [9] => 500 мм ) [days] => [3,3,4,4,4,5,5,5,5,6] [material_price] => [2646,5290,7936,10580,18516,21162,26452,31742,37032,42324] [work_price] => [390,508,508,660,790,870,958,1052,1158,1274] [image] => https://akademik-stroy.ru/wp-content/uploads/materials/pir-krov.jpg [area_modifier] => 67.65 [parent_name] => Утепление кровли (Мансарда) [parent_id] => 13 [material_sum] => 247023 [work_sum] => 30341 [total_sum] => 277364 [total_days] => 3 [display_material_sum] => 247 023 [display_work_sum] => 30 341 [display_total_sum] => 277 364 ) 1
277 364
Работа:30 341
Материалы:247 023
Дни:3
Мансардные окна
stdClass Object ( [id] => 27 [attribute_id] => 14 [name] => Нет [material_modifier] => 1 [work_modifier] => 1 [options] => Array ( ) [days] => [0] [material_price] => [0] [work_price] => [0] [image] => https://akademik-stroy.ru/wp-content/uploads/materials/mansardnye-okna-2.jpg [area_modifier] => 1 [parent_name] => Мансардные окна [parent_id] => 14 [material_sum] => 0 [work_sum] => 0 [total_sum] => 0 [total_days] => 0 [display_material_sum] => 0 [display_work_sum] => 0 [display_total_sum] => 0 ) 1
0
Работа:0
Материалы:0
Дни:0
stdClass Object ( [id] => 28 [attribute_id] => 14 [name] => Есть [material_modifier] => 1 [work_modifier] => 1 [options] => Array ( [0] => 55x78 [1] => 55x98 ) [days] => [6,7] [material_price] => [47480,68700] [work_price] => [17900,19500] [image] => https://akademik-stroy.ru/wp-content/uploads/materials/mansardnye-okna-2.jpg [area_modifier] => 1 [parent_name] => Мансардные окна [parent_id] => 14 [material_sum] => 65522 [work_sum] => 20585 [total_sum] => 86107 [total_days] => 6 [display_material_sum] => 65 522 [display_work_sum] => 20 585 [display_total_sum] => 86 107 ) 1
86 107
Работа:20 585
Материалы:65 522
Дни:6
Подшивка кровли
stdClass Object ( [id] => 29 [attribute_id] => 15 [name] => Нет [material_modifier] => 1 [work_modifier] => 1 [options] => Array ( ) [days] => [0] [material_price] => [0] [work_price] => [0] [image] => https://akademik-stroy.ru/wp-content/uploads/materials/sofit.jpg [area_modifier] => 67.65 [parent_name] => Подшивка кровли [parent_id] => 15 [material_sum] => 0 [work_sum] => 0 [total_sum] => 0 [total_days] => 0 [display_material_sum] => 0 [display_work_sum] => 0 [display_total_sum] => 0 ) 1
0
Работа:0
Материалы:0
Дни:0
stdClass Object ( [id] => 30 [attribute_id] => 15 [name] => Есть [material_modifier] => 1 [work_modifier] => 1 [options] => Array ( [0] => Софиты (ПВХ) [1] => Cedral [2] => ДПК [3] => Планкен ) [days] => [7,10,9,8] [material_price] => [1803,3213,3025,3150] [work_price] => [1529,2188,2075,1923] [image] => https://akademik-stroy.ru/wp-content/uploads/materials/sofit.jpg [area_modifier] => 67.65 [parent_name] => Подшивка кровли [parent_id] => 15 [material_sum] => 168323 [work_sum] => 118952 [total_sum] => 287275 [total_days] => 7 [display_material_sum] => 168 323 [display_work_sum] => 118 952 [display_total_sum] => 287 275 ) 1
287 275
Работа:118 952
Материалы:168 323
Дни:7
Водосточная система
stdClass Object ( [id] => 31 [attribute_id] => 16 [name] => Нет [material_modifier] => 1 [work_modifier] => 1 [options] => Array ( ) [days] => [0] [material_price] => [0] [work_price] => [0] [image] => https://akademik-stroy.ru/wp-content/uploads/materials/docke-standard-pvh.jpg [area_modifier] => 67.65 [parent_name] => Водосточная система [parent_id] => 16 [material_sum] => 0 [work_sum] => 0 [total_sum] => 0 [total_days] => 0 [display_material_sum] => 0 [display_work_sum] => 0 [display_total_sum] => 0 ) 1
0
Работа:0
Материалы:0
Дни:0
stdClass Object ( [id] => 32 [attribute_id] => 16 [name] => Есть [material_modifier] => 1 [work_modifier] => 1 [options] => Array ( [0] => Döcke Standard (ПВХ) [1] => Металлические Grand Line ) [days] => [7,7] [material_price] => [1842,2703] [work_price] => [1491,1529] [image] => https://akademik-stroy.ru/wp-content/uploads/materials/docke-standard-pvh.jpg [area_modifier] => 67.65 [parent_name] => Водосточная система [parent_id] => 16 [material_sum] => 171964 [work_sum] => 115996 [total_sum] => 287960 [total_days] => 7 [display_material_sum] => 171 964 [display_work_sum] => 115 996 [display_total_sum] => 287 960 ) 1
287 960
Работа:115 996
Материалы:171 964
Дни:7
Дополнительное утепление наружных стен
stdClass Object ( [id] => 33 [attribute_id] => 17 [name] => Нет [material_modifier] => 1 [work_modifier] => 1 [options] => Array ( ) [days] => [0] [material_price] => [0] [work_price] => [0] [image] => https://akademik-stroy.ru/wp-content/uploads/materials/mineralovata.jpg [area_modifier] => 134.67 [parent_name] => Дополнительное утепление наружных стен [parent_id] => 17 [material_sum] => 0 [work_sum] => 0 [total_sum] => 0 [total_days] => 0 [display_material_sum] => 0 [display_work_sum] => 0 [display_total_sum] => 0 ) 1
0
Работа:0
Материалы:0
Дни:0
stdClass Object ( [id] => 34 [attribute_id] => 17 [name] => Минераловатный [material_modifier] => 1 [work_modifier] => 1 [options] => Array ( [0] => 50 мм [1] => 100 мм [2] => 150 мм [3] => 200 мм [4] => 250 мм [5] => 300 мм ) [days] => [7,8,10,12,14,15] [material_price] => [3437,3613,3803,3915,4601,4830] [work_price] => [2325,2423,2523,2749,2859,3025] [image] => https://akademik-stroy.ru/wp-content/uploads/materials/mineralovata.jpg [area_modifier] => 134.67 [parent_name] => Дополнительное утепление наружных стен [parent_id] => 17 [material_sum] => 638748 [work_sum] => 360074 [total_sum] => 998822 [total_days] => 7 [display_material_sum] => 638 748 [display_work_sum] => 360 074 [display_total_sum] => 998 822 ) 1
998 822
Работа:360 074
Материалы:638 748
Дни:7
stdClass Object ( [id] => 128 [attribute_id] => 17 [name] => Эковата (целлюлозная вата) [material_modifier] => 1 [work_modifier] => 1 [options] => Array ( [0] => 50 мм [1] => 100 мм [2] => 150 мм [3] => 200 мм [4] => 250 мм [5] => 300 мм ) [days] => [3,4,5,6,7,8] [material_price] => [810,1319,1629,1838,2267,2676] [work_price] => [1225,1323,1423,1549,1659,1725] [image] => https://akademik-stroy.ru/wp-content/uploads/materials/ehkovata.jpg [area_modifier] => 134.67 [parent_name] => Дополнительное утепление наружных стен [parent_id] => 17 [material_sum] => 150534 [work_sum] => 189716 [total_sum] => 340250 [total_days] => 3 [display_material_sum] => 150 534 [display_work_sum] => 189 716 [display_total_sum] => 340 250 ) 1
340 250
Работа:189 716
Материалы:150 534
Дни:3
stdClass Object ( [id] => 129 [attribute_id] => 17 [name] => Экструдированный пенополистирол [material_modifier] => 1 [work_modifier] => 1 [options] => Array ( [0] => 50 мм [1] => 100 мм [2] => 150 мм [3] => 200 мм [4] => 250 мм [5] => 300 мм ) [days] => [5,6,7,8,9,10] [material_price] => [4560,4300,5119,6292,7010,8583] [work_price] => [1795,1954,2254,2330,2595,2735] [image] => https://akademik-stroy.ru/wp-content/uploads/materials/epps.jpg [area_modifier] => 134.67 [parent_name] => Дополнительное утепление наружных стен [parent_id] => 17 [material_sum] => 847451 [work_sum] => 277993 [total_sum] => 1125444 [total_days] => 5 [display_material_sum] => 847 451 [display_work_sum] => 277 993 [display_total_sum] => 1 125 444 ) 1
1 125 444
Работа:277 993
Материалы:847 451
Дни:5
stdClass Object ( [id] => 130 [attribute_id] => 17 [name] => ПСБ (ППС-пенополистирол) [material_modifier] => 1 [work_modifier] => 1 [options] => Array ( [0] => 50 мм [1] => 100 мм [2] => 150 мм [3] => 200 мм [4] => 250 мм [5] => 300 мм ) [days] => [5,6,7,8,9,10] [material_price] => [4822,5200,5819,6292,7010,7583] [work_price] => [1795,1954,2254,2330,2595,2735] [image] => https://akademik-stroy.ru/wp-content/uploads/materials/psb.jpg [area_modifier] => 134.67 [parent_name] => Дополнительное утепление наружных стен [parent_id] => 17 [material_sum] => 896143 [work_sum] => 277993 [total_sum] => 1174136 [total_days] => 5 [display_material_sum] => 896 143 [display_work_sum] => 277 993 [display_total_sum] => 1 174 136 ) 1
1 174 136
Работа:277 993
Материалы:896 143
Дни:5
stdClass Object ( [id] => 131 [attribute_id] => 17 [name] => ППУ (Пенополиуретан) [material_modifier] => 1 [work_modifier] => 1 [options] => Array ( [0] => 50 мм [1] => 100 мм [2] => 150 мм [3] => 200 мм [4] => 250 мм [5] => 300 мм ) [days] => [3,4,5,6,7,8] [material_price] => [2860,3400,4219,4592,5010,5583] [work_price] => [729,900,980,1120,1280,1530] [image] => https://akademik-stroy.ru/wp-content/uploads/materials/ppu.jpg [area_modifier] => 134.67 [parent_name] => Дополнительное утепление наружных стен [parent_id] => 17 [material_sum] => 531516 [work_sum] => 112901 [total_sum] => 644417 [total_days] => 3 [display_material_sum] => 531 516 [display_work_sum] => 112 901 [display_total_sum] => 644 417 ) 1
644 417
Работа:112 901
Материалы:531 516
Дни:3
stdClass Object ( [id] => 132 [attribute_id] => 17 [name] => PIR-плиты (пенополиизоцианурат) [material_modifier] => 1 [work_modifier] => 1 [options] => Array ( [0] => 50 мм [1] => 100 мм [2] => 150 мм [3] => 200 мм [4] => 250 мм [5] => 300 мм ) [days] => [5,6,7,8,9,10] [material_price] => [8323,15645,20968,25900,29258,30581] [work_price] => [800,900,970,1150,1280,1330] [image] => https://akademik-stroy.ru/wp-content/uploads/materials/pir.jpg [area_modifier] => 134.67 [parent_name] => Дополнительное утепление наружных стен [parent_id] => 17 [material_sum] => 1546785 [work_sum] => 123896 [total_sum] => 1670681 [total_days] => 5 [display_material_sum] => 1 546 785 [display_work_sum] => 123 896 [display_total_sum] => 1 670 681 ) 1
1 670 681
Работа:123 896
Материалы:1 546 785
Дни:5
Наружная отделка фасада
stdClass Object ( [id] => 37 [attribute_id] => 19 [name] => Нет [material_modifier] => 1 [work_modifier] => 1 [options] => Array ( ) [days] => [0] [material_price] => [0] [work_price] => [0] [image] => https://akademik-stroy.ru/wp-content/uploads/materials/imitaciya-brusa.jpg [area_modifier] => 134.67 [parent_name] => Наружная отделка фасада [parent_id] => 19 [material_sum] => 0 [work_sum] => 0 [total_sum] => 0 [total_days] => 0 [display_material_sum] => 0 [display_work_sum] => 0 [display_total_sum] => 0 ) 1
0
Работа:0
Материалы:0
Дни:0
stdClass Object ( [id] => 38 [attribute_id] => 19 [name] => Имитация бруса [material_modifier] => 1 [work_modifier] => 1 [options] => Array ( [0] => Сосна [1] => Ель [2] => Лиственница ) [days] => [20,20,20] [material_price] => [2994,2762,4954] [work_price] => [1397,1231,1577] [image] => https://akademik-stroy.ru/wp-content/uploads/materials/imitaciya-brusa.jpg [area_modifier] => 134.67 [parent_name] => Наружная отделка фасада [parent_id] => 19 [material_sum] => 556419 [work_sum] => 216354 [total_sum] => 772773 [total_days] => 20 [display_material_sum] => 556 419 [display_work_sum] => 216 354 [display_total_sum] => 772 773 ) 1
772 773
Работа:216 354
Материалы:556 419
Дни:20
stdClass Object ( [id] => 136 [attribute_id] => 19 [name] => Планкен [material_modifier] => 1 [work_modifier] => 1 [options] => Array ( [0] => Сосна [1] => Ель [2] => Лиственница ) [days] => [20,20,20] [material_price] => [3194,2862,5154] [work_price] => [1537,1354,1735] [image] => https://akademik-stroy.ru/wp-content/uploads/materials/planken.jpg [area_modifier] => 134.67 [parent_name] => Наружная отделка фасада [parent_id] => 19 [material_sum] => 593588 [work_sum] => 238036 [total_sum] => 831624 [total_days] => 20 [display_material_sum] => 593 588 [display_work_sum] => 238 036 [display_total_sum] => 831 624 ) 1
831 624
Работа:238 036
Материалы:593 588
Дни:20
stdClass Object ( [id] => 137 [attribute_id] => 19 [name] => Штукатурка [material_modifier] => 1 [work_modifier] => 1 [options] => Array ( [0] => Цементно-песчаная (минеральная) [1] => Мокрый фасад ) [days] => [35,35] [material_price] => [2231,3938] [work_price] => [1202,2422] [image] => https://akademik-stroy.ru/wp-content/uploads/materials/shtukaturka.jpg [area_modifier] => 134.67 [parent_name] => Наружная отделка фасада [parent_id] => 19 [material_sum] => 414619 [work_sum] => 186154 [total_sum] => 600773 [total_days] => 35 [display_material_sum] => 414 619 [display_work_sum] => 186 154 [display_total_sum] => 600 773 ) 1
600 773
Работа:186 154
Материалы:414 619
Дни:35
stdClass Object ( [id] => 138 [attribute_id] => 19 [name] => Облицовочный кирпич [material_modifier] => 1 [work_modifier] => 1 [options] => Array ( [0] => Керамический [1] => Клинкерный [2] => Ручной формовки [3] => Гиперпрессованный [4] => Силикатный кирпич ) [days] => [45,45,45,45,45] [material_price] => [8174,9148,1040,1257,5876] [work_price] => [3240,3758,4536,4017,3369] [image] => https://akademik-stroy.ru/wp-content/uploads/materials/oblicovochnyj-kirpich.jpg [area_modifier] => 134.67 [parent_name] => Наружная отделка фасада [parent_id] => 19 [material_sum] => 1519094 [work_sum] => 501780 [total_sum] => 2020874 [total_days] => 45 [display_material_sum] => 1 519 094 [display_work_sum] => 501 780 [display_total_sum] => 2 020 874 ) 1
2 020 874
Работа:501 780
Материалы:1 519 094
Дни:45
stdClass Object ( [id] => 139 [attribute_id] => 19 [name] => Фасадная плитка [material_modifier] => 1 [work_modifier] => 1 [options] => Array ( [0] => Клинкерная [1] => Керамическая [2] => Плитка ручной формовки ) [days] => [40,40,40] [material_price] => [2974,1487,3470] [work_price] => [3007,2592,3629] [image] => https://akademik-stroy.ru/wp-content/uploads/materials/fasadnaya-plitka.jpg [area_modifier] => 134.67 [parent_name] => Наружная отделка фасада [parent_id] => 19 [material_sum] => 552702 [work_sum] => 465696 [total_sum] => 1018398 [total_days] => 40 [display_material_sum] => 552 702 [display_work_sum] => 465 696 [display_total_sum] => 1 018 398 ) 1
1 018 398
Работа:465 696
Материалы:552 702
Дни:40
stdClass Object ( [id] => 140 [attribute_id] => 19 [name] => Сайдинг [material_modifier] => 1 [work_modifier] => 1 [options] => Array ( [0] => Виниловый [1] => Металлический [2] => Фиброцементный ) [days] => [20,20,20] [material_price] => [1263,1944,4147] [work_price] => [1263,1944,2074] [image] => https://akademik-stroy.ru/wp-content/uploads/materials/sajding.jpg [area_modifier] => 134.67 [parent_name] => Наружная отделка фасада [parent_id] => 19 [material_sum] => 234722 [work_sum] => 195601 [total_sum] => 430323 [total_days] => 20 [display_material_sum] => 234 722 [display_work_sum] => 195 601 [display_total_sum] => 430 323 ) 1
430 323
Работа:195 601
Материалы:234 722
Дни:20
stdClass Object ( [id] => 141 [attribute_id] => 19 [name] => Камень [material_modifier] => 1 [work_modifier] => 1 [options] => Array ( [0] => Травертин [1] => Дагестанский [2] => Искусственный [3] => Натуральный [4] => Керамогранит ) [days] => [45,45,45,45,45] [material_price] => [4536,3888,2592,3240,2462] [work_price] => [3240,3240,2462,3110,1944] [image] => https://akademik-stroy.ru/wp-content/uploads/materials/kamen-1.jpg [area_modifier] => 134.67 [parent_name] => Наружная отделка фасада [parent_id] => 19 [material_sum] => 842991 [work_sum] => 501780 [total_sum] => 1344771 [total_days] => 45 [display_material_sum] => 842 991 [display_work_sum] => 501 780 [display_total_sum] => 1 344 771 ) 1
1 344 771
Работа:501 780
Материалы:842 991
Дни:45
stdClass Object ( [id] => 142 [attribute_id] => 19 [name] => Термопанели [material_modifier] => 1 [work_modifier] => 1 [options] => Array ( ) [days] => [20] [material_price] => [6221] [work_price] => [2333] [image] => https://akademik-stroy.ru/wp-content/uploads/materials/termo.png [area_modifier] => 134.67 [parent_name] => Наружная отделка фасада [parent_id] => 19 [material_sum] => 1156139 [work_sum] => 361313 [total_sum] => 1517452 [total_days] => 20 [display_material_sum] => 1 156 139 [display_work_sum] => 361 313 [display_total_sum] => 1 517 452 ) 1
1 517 452
Работа:361 313
Материалы:1 156 139
Дни:20
stdClass Object ( [id] => 143 [attribute_id] => 19 [name] => Плитка HAUBERK [material_modifier] => 1 [work_modifier] => 1 [options] => Array ( ) [days] => [20] [material_price] => [2786] [work_price] => [1944] [image] => https://akademik-stroy.ru/wp-content/uploads/materials/hauberk.jpg [area_modifier] => 134.67 [parent_name] => Наружная отделка фасада [parent_id] => 19 [material_sum] => 517763 [work_sum] => 301068 [total_sum] => 818831 [total_days] => 20 [display_material_sum] => 517 763 [display_work_sum] => 301 068 [display_total_sum] => 818 831 ) 1
818 831
Работа:301 068
Материалы:517 763
Дни:20
stdClass Object ( [id] => 144 [attribute_id] => 19 [name] => Фальцевый фасад [material_modifier] => 1 [work_modifier] => 1 [options] => Array ( ) [days] => [20] [material_price] => [3240] [work_price] => [2592] [image] => https://akademik-stroy.ru/wp-content/uploads/materials/falcevyj-fasad.jpg [area_modifier] => 134.67 [parent_name] => Наружная отделка фасада [parent_id] => 19 [material_sum] => 602137 [work_sum] => 401424 [total_sum] => 1003561 [total_days] => 20 [display_material_sum] => 602 137 [display_work_sum] => 401 424 [display_total_sum] => 1 003 561 ) 1
1 003 561
Работа:401 424
Материалы:602 137
Дни:20
stdClass Object ( [id] => 145 [attribute_id] => 19 [name] => Комбинированный [material_modifier] => 1 [work_modifier] => 1 [options] => Array ( ) [days] => [20] [material_price] => [4629] [work_price] => [3499] [image] => https://akademik-stroy.ru/wp-content/uploads/materials/Kombinirovannyj.jpg [area_modifier] => 134.67 [parent_name] => Наружная отделка фасада [parent_id] => 19 [material_sum] => 860275 [work_sum] => 541892 [total_sum] => 1402167 [total_days] => 20 [display_material_sum] => 860 275 [display_work_sum] => 541 892 [display_total_sum] => 1 402 167 ) 1
1 402 167
Работа:541 892
Материалы:860 275
Дни:20
stdClass Object ( [id] => 257 [attribute_id] => 19 [name] => Японские фиброцементные [material_modifier] => 1 [work_modifier] => 1 [options] => Array ( ) [days] => [20] [material_price] => [7043] [work_price] => [2993] [image] => https://akademik-stroy.ru/wp-content/uploads/materials/paneli.jpg [area_modifier] => 134.67 [parent_name] => Наружная отделка фасада [parent_id] => 19 [material_sum] => 1308904 [work_sum] => 463527 [total_sum] => 1772431 [total_days] => 20 [display_material_sum] => 1 308 904 [display_work_sum] => 463 527 [display_total_sum] => 1 772 431 ) 1
1 772 431
Работа:463 527
Материалы:1 308 904
Дни:20
stdClass Object ( [id] => 258 [attribute_id] => 19 [name] => Панели Каньон [material_modifier] => 1 [work_modifier] => 1 [options] => Array ( ) [days] => [20] [material_price] => [4543] [work_price] => [2592] [image] => https://akademik-stroy.ru/wp-content/uploads/materials/kanon.png [area_modifier] => 134.67 [parent_name] => Наружная отделка фасада [parent_id] => 19 [material_sum] => 844292 [work_sum] => 401424 [total_sum] => 1245716 [total_days] => 20 [display_material_sum] => 844 292 [display_work_sum] => 401 424 [display_total_sum] => 1 245 716 ) 1
1 245 716
Работа:401 424
Материалы:844 292
Дни:20
Террасы, крыльца, навесы
stdClass Object ( [id] => 39 [attribute_id] => 20 [name] => Нет [material_modifier] => 1 [work_modifier] => 1 [options] => Array ( ) [days] => [0] [material_price] => [0] [work_price] => [0] [image] => https://akademik-stroy.ru/wp-content/uploads/materials/terrasy.jpg [area_modifier] => 30 [parent_name] => Террасы, крыльца, навесы [parent_id] => 20 [material_sum] => 0 [work_sum] => 0 [total_sum] => 0 [total_days] => 0 [display_material_sum] => 0 [display_work_sum] => 0 [display_total_sum] => 0 ) 1
0
Работа:0
Материалы:0
Дни:0
stdClass Object ( [id] => 40 [attribute_id] => 20 [name] => Есть [material_modifier] => 1 [work_modifier] => 1 [options] => Array ( ) [days] => [5] [material_price] => [10450] [work_price] => [1950] [image] => https://akademik-stroy.ru/wp-content/uploads/materials/terrasy.jpg [area_modifier] => 30 [parent_name] => Террасы, крыльца, навесы [parent_id] => 20 [material_sum] => 432630 [work_sum] => 67275 [total_sum] => 499905 [total_days] => 5 [display_material_sum] => 432 630 [display_work_sum] => 67 275 [display_total_sum] => 499 905 ) 1
499 905
Работа:67 275
Материалы:432 630
Дни:5
Балконы
stdClass Object ( [id] => 41 [attribute_id] => 21 [name] => Нет [material_modifier] => 1 [work_modifier] => 1 [options] => Array ( ) [days] => [0] [material_price] => [0] [work_price] => [0] [image] => https://akademik-stroy.ru/wp-content/uploads/materials/balkony.jpg [area_modifier] => 30 [parent_name] => Балконы [parent_id] => 21 [material_sum] => 0 [work_sum] => 0 [total_sum] => 0 [total_days] => 0 [display_material_sum] => 0 [display_work_sum] => 0 [display_total_sum] => 0 ) 1
0
Работа:0
Материалы:0
Дни:0
stdClass Object ( [id] => 42 [attribute_id] => 21 [name] => Есть [material_modifier] => 1 [work_modifier] => 1 [options] => Array ( ) [days] => [12] [material_price] => [3600] [work_price] => [1950] [image] => https://akademik-stroy.ru/wp-content/uploads/materials/balkony.jpg [area_modifier] => 30 [parent_name] => Балконы [parent_id] => 21 [material_sum] => 149040 [work_sum] => 67275 [total_sum] => 216315 [total_days] => 12 [display_material_sum] => 149 040 [display_work_sum] => 67 275 [display_total_sum] => 216 315 ) 1
216 315
Работа:67 275
Материалы:149 040
Дни:12
Отмостка
stdClass Object ( [id] => 43 [attribute_id] => 22 [name] => Нет [material_modifier] => 1 [work_modifier] => 1 [options] => Array ( ) [days] => [0] [material_price] => [0] [work_price] => [0] [image] => https://akademik-stroy.ru/wp-content/uploads/materials/uteplennaya.jpg [area_modifier] => 67.65 [parent_name] => Отмостка [parent_id] => 22 [material_sum] => 0 [work_sum] => 0 [total_sum] => 0 [total_days] => 0 [display_material_sum] => 0 [display_work_sum] => 0 [display_total_sum] => 0 ) 1
0
Работа:0
Материалы:0
Дни:0
stdClass Object ( [id] => 44 [attribute_id] => 22 [name] => Утепленная отмостка [material_modifier] => 1 [work_modifier] => 1 [options] => Array ( ) [days] => [15] [material_price] => [2550] [work_price] => [1750] [image] => https://akademik-stroy.ru/wp-content/uploads/materials/uteplennaya.jpg [area_modifier] => 67.65 [parent_name] => Отмостка [parent_id] => 22 [material_sum] => 238060 [work_sum] => 136146 [total_sum] => 374206 [total_days] => 15 [display_material_sum] => 238 060 [display_work_sum] => 136 146 [display_total_sum] => 374 206 ) 1
374 206
Работа:136 146
Материалы:238 060
Дни:15
stdClass Object ( [id] => 146 [attribute_id] => 22 [name] => Не утепленная отмостка [material_modifier] => 1 [work_modifier] => 1 [options] => Array ( ) [days] => [10] [material_price] => [1650] [work_price] => [1450] [image] => https://akademik-stroy.ru/wp-content/uploads/materials/ne-uteplennaya.jpg [area_modifier] => 67.65 [parent_name] => Отмостка [parent_id] => 22 [material_sum] => 154039 [work_sum] => 112806 [total_sum] => 266845 [total_days] => 10 [display_material_sum] => 154 039 [display_work_sum] => 112 806 [display_total_sum] => 266 845 ) 1
266 845
Работа:112 806
Материалы:154 039
Дни:10
Дренаж вокруг дома
stdClass Object ( [id] => 45 [attribute_id] => 23 [name] => Нет [material_modifier] => 1 [work_modifier] => 1 [options] => Array ( ) [days] => [0] [material_price] => [0] [work_price] => [0] [image] => https://akademik-stroy.ru/wp-content/uploads/materials/drenazh-2.jpg [area_modifier] => 67.65 [parent_name] => Дренаж вокруг дома [parent_id] => 23 [material_sum] => 0 [work_sum] => 0 [total_sum] => 0 [total_days] => 0 [display_material_sum] => 0 [display_work_sum] => 0 [display_total_sum] => 0 ) 1
0
Работа:0
Материалы:0
Дни:0
stdClass Object ( [id] => 46 [attribute_id] => 23 [name] => Есть [material_modifier] => 1 [work_modifier] => 1 [options] => Array ( ) [days] => [5] [material_price] => [2366] [work_price] => [1911] [image] => https://akademik-stroy.ru/wp-content/uploads/materials/drenazh-2.jpg [area_modifier] => 67.65 [parent_name] => Дренаж вокруг дома [parent_id] => 23 [material_sum] => 220883 [work_sum] => 148671 [total_sum] => 369554 [total_days] => 5 [display_material_sum] => 220 883 [display_work_sum] => 148 671 [display_total_sum] => 369 554 ) 1
369 554
Работа:148 671
Материалы:220 883
Дни:5
Автономная канализация (септики)
stdClass Object ( [id] => 47 [attribute_id] => 24 [name] => Нет [material_modifier] => 1 [work_modifier] => 1 [options] => Array ( ) [days] => [0] [material_price] => [0] [work_price] => [0] [image] => https://akademik-stroy.ru/wp-content/uploads/materials/septik.jpg [area_modifier] => 1 [parent_name] => Автономная канализация (септики) [parent_id] => 24 [material_sum] => 0 [work_sum] => 0 [total_sum] => 0 [total_days] => 0 [display_material_sum] => 0 [display_work_sum] => 0 [display_total_sum] => 0 ) 1
0
Работа:0
Материалы:0
Дни:0
stdClass Object ( [id] => 48 [attribute_id] => 24 [name] => Есть [material_modifier] => 1 [work_modifier] => 1 [options] => Array ( [0] => Для дачи на 4 человека [1] => Для дома на 5 человек [2] => Для дома на 6 человек [3] => Для дома на 7 человек [4] => Для дома на 10 человек ) [days] => [7,7,7,8,8] [material_price] => [196340,220500,240940,264200,293340] [work_price] => [50000,55000,60500,66550,73206] [image] => https://akademik-stroy.ru/wp-content/uploads/materials/septik.jpg [area_modifier] => 1 [parent_name] => Автономная канализация (септики) [parent_id] => 24 [material_sum] => 270949 [work_sum] => 57500 [total_sum] => 328449 [total_days] => 7 [display_material_sum] => 270 949 [display_work_sum] => 57 500 [display_total_sum] => 328 449 ) 1
328 449
Работа:57 500
Материалы:270 949
Дни:7
Внутренние (не несущие) перегородки
stdClass Object ( [id] => 49 [attribute_id] => 25 [name] => Нет [material_modifier] => 1 [work_modifier] => 1 [options] => Array ( ) [days] => [0] [material_price] => [0] [work_price] => [0] [image] => https://akademik-stroy.ru/wp-content/uploads/materials/gkl.jpg [area_modifier] => 134.67 [parent_name] => Внутренние (не несущие) перегородки [parent_id] => 25 [material_sum] => 0 [work_sum] => 0 [total_sum] => 0 [total_days] => 0 [display_material_sum] => 0 [display_work_sum] => 0 [display_total_sum] => 0 ) 1
0
Работа:0
Материалы:0
Дни:0
stdClass Object ( [id] => 147 [attribute_id] => 25 [name] => Каркасно-обшивные [material_modifier] => 1 [work_modifier] => 1 [options] => Array ( [0] => 75 мм (без шумоизоляции) [1] => 75 мм (с шумоизоляцией) ) [days] => [11,11] [material_price] => [580,970] [work_price] => [380,570] [image] => https://akademik-stroy.ru/wp-content/uploads/materials/gkl.jpg [area_modifier] => 134.67 [parent_name] => Внутренние (не несущие) перегородки [parent_id] => 25 [material_sum] => 107790 [work_sum] => 58851 [total_sum] => 166641 [total_days] => 11 [display_material_sum] => 107 790 [display_work_sum] => 58 851 [display_total_sum] => 166 641 ) 1
166 641
Работа:58 851
Материалы:107 790
Дни:11
stdClass Object ( [id] => 148 [attribute_id] => 25 [name] => Пазогребневые [material_modifier] => 1 [work_modifier] => 1 [options] => Array ( [0] => 80 мм [1] => 100 мм ) [days] => [5,5] [material_price] => [1022,1313] [work_price] => [600,700] [image] => https://akademik-stroy.ru/wp-content/uploads/materials/pazogrebnevye-bloki.jpg [area_modifier] => 134.67 [parent_name] => Внутренние (не несущие) перегородки [parent_id] => 25 [material_sum] => 189933 [work_sum] => 92922 [total_sum] => 282855 [total_days] => 5 [display_material_sum] => 189 933 [display_work_sum] => 92 922 [display_total_sum] => 282 855 ) 1
282 855
Работа:92 922
Материалы:189 933
Дни:5
stdClass Object ( [id] => 149 [attribute_id] => 25 [name] => Газобетонные [material_modifier] => 1 [work_modifier] => 1 [options] => Array ( [0] => 100 мм [1] => 200 мм ) [days] => [11,11] [material_price] => [1160,1920] [work_price] => [700,900] [image] => https://akademik-stroy.ru/wp-content/uploads/materials/gazobeton-2.jpg [area_modifier] => 134.67 [parent_name] => Внутренние (не несущие) перегородки [parent_id] => 25 [material_sum] => 215580 [work_sum] => 108409 [total_sum] => 323989 [total_days] => 11 [display_material_sum] => 215 580 [display_work_sum] => 108 409 [display_total_sum] => 323 989 ) 1
323 989
Работа:108 409
Материалы:215 580
Дни:11
stdClass Object ( [id] => 150 [attribute_id] => 25 [name] => Кирпичные [material_modifier] => 1 [work_modifier] => 1 [options] => Array ( [0] => 120 мм [1] => 250 мм [2] => 360 мм ) [days] => [7,7,7] [material_price] => [1785,3570,5355] [work_price] => [900,1600,1800] [image] => https://akademik-stroy.ru/wp-content/uploads/materials/kirpich-1.jpg [area_modifier] => 134.67 [parent_name] => Внутренние (не несущие) перегородки [parent_id] => 25 [material_sum] => 331733 [work_sum] => 139383 [total_sum] => 471116 [total_days] => 7 [display_material_sum] => 331 733 [display_work_sum] => 139 383 [display_total_sum] => 471 116 ) 1
471 116
Работа:139 383
Материалы:331 733
Дни:7
Электрика
stdClass Object ( [id] => 55 [attribute_id] => 28 [name] => Нет [material_modifier] => 1 [work_modifier] => 1 [options] => Array ( ) [days] => [0] [material_price] => [0] [work_price] => [0] [image] => https://akademik-stroy.ru/wp-content/uploads/materials/ehlektrika.jpg [area_modifier] => 109.28 [parent_name] => Электрика [parent_id] => 28 [material_sum] => 0 [work_sum] => 0 [total_sum] => 0 [total_days] => 0 [display_material_sum] => 0 [display_work_sum] => 0 [display_total_sum] => 0 ) 1
0
Работа:0
Материалы:0
Дни:0
stdClass Object ( [id] => 56 [attribute_id] => 28 [name] => Есть [material_modifier] => 1 [work_modifier] => 1 [options] => Array ( ) [days] => [10] [material_price] => [650] [work_price] => [950] [image] => https://akademik-stroy.ru/wp-content/uploads/materials/ehlektrika.jpg [area_modifier] => 109.28 [parent_name] => Электрика [parent_id] => 28 [material_sum] => 98024 [work_sum] => 119388 [total_sum] => 217412 [total_days] => 10 [display_material_sum] => 98 024 [display_work_sum] => 119 388 [display_total_sum] => 217 412 ) 1
217 412
Работа:119 388
Материалы:98 024
Дни:10
Сантехника, канализация в доме
stdClass Object ( [id] => 57 [attribute_id] => 29 [name] => Нет [material_modifier] => 1 [work_modifier] => 1 [options] => Array ( ) [days] => [0] [material_price] => [0] [work_price] => [0] [image] => https://akademik-stroy.ru/wp-content/uploads/materials/santekhnika-kanalizaciya-1.jpg [area_modifier] => 109.28 [parent_name] => Сантехника, канализация в доме [parent_id] => 29 [material_sum] => 0 [work_sum] => 0 [total_sum] => 0 [total_days] => 0 [display_material_sum] => 0 [display_work_sum] => 0 [display_total_sum] => 0 ) 1
0
Работа:0
Материалы:0
Дни:0
stdClass Object ( [id] => 58 [attribute_id] => 29 [name] => Есть [material_modifier] => 1 [work_modifier] => 1 [options] => Array ( ) [days] => [10] [material_price] => [600] [work_price] => [730] [image] => https://akademik-stroy.ru/wp-content/uploads/materials/santekhnika-kanalizaciya-1.jpg [area_modifier] => 109.28 [parent_name] => Сантехника, канализация в доме [parent_id] => 29 [material_sum] => 90484 [work_sum] => 91741 [total_sum] => 182225 [total_days] => 10 [display_material_sum] => 90 484 [display_work_sum] => 91 741 [display_total_sum] => 182 225 ) 1
182 225
Работа:91 741
Материалы:90 484
Дни:10
Отопление
stdClass Object ( [id] => 59 [attribute_id] => 30 [name] => Нет [material_modifier] => 1 [work_modifier] => 1 [options] => Array ( ) [days] => [0] [material_price] => [0] [work_price] => [0] [image] => https://akademik-stroy.ru/wp-content/uploads/materials/otoplenie-1.jpg [area_modifier] => 109.28 [parent_name] => Отопление [parent_id] => 30 [material_sum] => 0 [work_sum] => 0 [total_sum] => 0 [total_days] => 0 [display_material_sum] => 0 [display_work_sum] => 0 [display_total_sum] => 0 ) 1
0
Работа:0
Материалы:0
Дни:0
stdClass Object ( [id] => 60 [attribute_id] => 30 [name] => Есть [material_modifier] => 1 [work_modifier] => 1 [options] => Array ( ) [days] => [5] [material_price] => [610] [work_price] => [560] [image] => https://akademik-stroy.ru/wp-content/uploads/materials/otoplenie-1.jpg [area_modifier] => 109.28 [parent_name] => Отопление [parent_id] => 30 [material_sum] => 91992 [work_sum] => 70376 [total_sum] => 162368 [total_days] => 5 [display_material_sum] => 91 992 [display_work_sum] => 70 376 [display_total_sum] => 162 368 ) 1
162 368
Работа:70 376
Материалы:91 992
Дни:5
Теплые полы
stdClass Object ( [id] => 61 [attribute_id] => 31 [name] => Нет [material_modifier] => 1 [work_modifier] => 1 [options] => Array ( ) [days] => [0] [material_price] => [0] [work_price] => [0] [image] => https://akademik-stroy.ru/wp-content/uploads/materials/vodyanye.jpg [area_modifier] => 30 [parent_name] => Теплые полы [parent_id] => 31 [material_sum] => 0 [work_sum] => 0 [total_sum] => 0 [total_days] => 0 [display_material_sum] => 0 [display_work_sum] => 0 [display_total_sum] => 0 ) 1
0
Работа:0
Материалы:0
Дни:0
stdClass Object ( [id] => 151 [attribute_id] => 31 [name] => Водяные [material_modifier] => 1 [work_modifier] => 1 [options] => Array ( ) [days] => [9] [material_price] => [10200] [work_price] => [2500] [image] => https://akademik-stroy.ru/wp-content/uploads/materials/vodyanye.jpg [area_modifier] => 30 [parent_name] => Теплые полы [parent_id] => 31 [material_sum] => 422280 [work_sum] => 86250 [total_sum] => 508530 [total_days] => 9 [display_material_sum] => 422 280 [display_work_sum] => 86 250 [display_total_sum] => 508 530 ) 1
508 530
Работа:86 250
Материалы:422 280
Дни:9
stdClass Object ( [id] => 152 [attribute_id] => 31 [name] => Электро [material_modifier] => 1 [work_modifier] => 1 [options] => Array ( ) [days] => [5] [material_price] => [6300] [work_price] => [1500] [image] => https://akademik-stroy.ru/wp-content/uploads/materials/ehlektricheskij.jpg [area_modifier] => 30 [parent_name] => Теплые полы [parent_id] => 31 [material_sum] => 260820 [work_sum] => 51750 [total_sum] => 312570 [total_days] => 5 [display_material_sum] => 260 820 [display_work_sum] => 51 750 [display_total_sum] => 312 570 ) 1
312 570
Работа:51 750
Материалы:260 820
Дни:5
Черновая отделка стен
stdClass Object ( [id] => 63 [attribute_id] => 32 [name] => Нет [material_modifier] => 1 [work_modifier] => 1 [options] => Array ( ) [days] => [0] [material_price] => [0] [work_price] => [0] [image] => https://akademik-stroy.ru/wp-content/uploads/materials/shtukaturka-shpatlevka-1.jpg [area_modifier] => 109.28 [parent_name] => Черновая отделка стен [parent_id] => 32 [material_sum] => 0 [work_sum] => 0 [total_sum] => 0 [total_days] => 0 [display_material_sum] => 0 [display_work_sum] => 0 [display_total_sum] => 0 ) 1
0
Работа:0
Материалы:0
Дни:0
stdClass Object ( [id] => 153 [attribute_id] => 32 [name] => Штукатурка и шпатлевка [material_modifier] => 1 [work_modifier] => 1 [options] => Array ( ) [days] => [20] [material_price] => [1850] [work_price] => [2600] [image] => https://akademik-stroy.ru/wp-content/uploads/materials/shtukaturka-shpatlevka-1.jpg [area_modifier] => 109.28 [parent_name] => Черновая отделка стен [parent_id] => 32 [material_sum] => 278992 [work_sum] => 326747 [total_sum] => 605739 [total_days] => 20 [display_material_sum] => 278 992 [display_work_sum] => 326 747 [display_total_sum] => 605 739 ) 1
605 739
Работа:326 747
Материалы:278 992
Дни:20
stdClass Object ( [id] => 154 [attribute_id] => 32 [name] => Гипсокортон на стены [material_modifier] => 1 [work_modifier] => 1 [options] => Array ( ) [days] => [15] [material_price] => [950] [work_price] => [2100] [image] => https://akademik-stroy.ru/wp-content/uploads/materials/gkl-1.jpg [area_modifier] => 109.28 [parent_name] => Черновая отделка стен [parent_id] => 32 [material_sum] => 143266 [work_sum] => 263911 [total_sum] => 407177 [total_days] => 15 [display_material_sum] => 143 266 [display_work_sum] => 263 911 [display_total_sum] => 407 177 ) 1
407 177
Работа:263 911
Материалы:143 266
Дни:15
stdClass Object ( [id] => 155 [attribute_id] => 32 [name] => Вагонка [material_modifier] => 1 [work_modifier] => 1 [options] => Array ( ) [days] => [15] [material_price] => [1250] [work_price] => [950] [image] => https://akademik-stroy.ru/wp-content/uploads/materials/vagonka.jpg [area_modifier] => 109.28 [parent_name] => Черновая отделка стен [parent_id] => 32 [material_sum] => 188508 [work_sum] => 119388 [total_sum] => 307896 [total_days] => 15 [display_material_sum] => 188 508 [display_work_sum] => 119 388 [display_total_sum] => 307 896 ) 1
307 896
Работа:119 388
Материалы:188 508
Дни:15
Черновая отделка полов
stdClass Object ( [id] => 65 [attribute_id] => 33 [name] => Нет [material_modifier] => 1 [work_modifier] => 1 [options] => Array ( ) [days] => [0] [material_price] => [0] [work_price] => [0] [image] => https://akademik-stroy.ru/wp-content/uploads/materials/styazhka.jpg [area_modifier] => 109.28 [parent_name] => Черновая отделка полов [parent_id] => 33 [material_sum] => 0 [work_sum] => 0 [total_sum] => 0 [total_days] => 0 [display_material_sum] => 0 [display_work_sum] => 0 [display_total_sum] => 0 ) 1
0
Работа:0
Материалы:0
Дни:0
stdClass Object ( [id] => 156 [attribute_id] => 33 [name] => Стяжка + наливные полы [material_modifier] => 1 [work_modifier] => 1 [options] => Array ( ) [days] => [10] [material_price] => [1000] [work_price] => [900] [image] => https://akademik-stroy.ru/wp-content/uploads/materials/styazhka.jpg [area_modifier] => 109.28 [parent_name] => Черновая отделка полов [parent_id] => 33 [material_sum] => 150806 [work_sum] => 113105 [total_sum] => 263911 [total_days] => 10 [display_material_sum] => 150 806 [display_work_sum] => 113 105 [display_total_sum] => 263 911 ) 1
263 911
Работа:113 105
Материалы:150 806
Дни:10
stdClass Object ( [id] => 157 [attribute_id] => 33 [name] => ОСБ на пол [material_modifier] => 1 [work_modifier] => 1 [options] => Array ( ) [days] => [7] [material_price] => [580] [work_price] => [350] [image] => https://akademik-stroy.ru/wp-content/uploads/materials/osb-1.jpg [area_modifier] => 109.28 [parent_name] => Черновая отделка полов [parent_id] => 33 [material_sum] => 87468 [work_sum] => 43985 [total_sum] => 131453 [total_days] => 7 [display_material_sum] => 87 468 [display_work_sum] => 43 985 [display_total_sum] => 131 453 ) 1
131 453
Работа:43 985
Материалы:87 468
Дни:7
Чистовая отделка стен и полов
stdClass Object ( [id] => 67 [attribute_id] => 34 [name] => Нет [material_modifier] => 1 [work_modifier] => 1 [options] => Array ( ) [days] => [0] [material_price] => [0] [work_price] => [0] [image] => https://akademik-stroy.ru/wp-content/uploads/materials/chistovaya-otdelka.jpg [area_modifier] => 109.28 [parent_name] => Чистовая отделка стен и полов [parent_id] => 34 [material_sum] => 0 [work_sum] => 0 [total_sum] => 0 [total_days] => 0 [display_material_sum] => 0 [display_work_sum] => 0 [display_total_sum] => 0 ) 1
0
Работа:0
Материалы:0
Дни:0
stdClass Object ( [id] => 68 [attribute_id] => 34 [name] => Есть [material_modifier] => 1 [work_modifier] => 1 [options] => Array ( ) [days] => [50] [material_price] => [6000] [work_price] => [3500] [image] => https://akademik-stroy.ru/wp-content/uploads/materials/chistovaya-otdelka.jpg [area_modifier] => 109.28 [parent_name] => Чистовая отделка стен и полов [parent_id] => 34 [material_sum] => 904838 [work_sum] => 439852 [total_sum] => 1344690 [total_days] => 50 [display_material_sum] => 904 838 [display_work_sum] => 439 852 [display_total_sum] => 1 344 690 ) 1
1 344 690
Работа:439 852
Материалы:904 838
Дни:50
Отделка потолка
stdClass Object ( [id] => 69 [attribute_id] => 35 [name] => Нет [material_modifier] => 1 [work_modifier] => 1 [options] => Array ( ) [days] => [0] [material_price] => [0] [work_price] => [0] [image] => https://akademik-stroy.ru/wp-content/uploads/materials/mnogourovnevyj-gkl.jpg [area_modifier] => 109.28 [parent_name] => Отделка потолка [parent_id] => 35 [material_sum] => 0 [work_sum] => 0 [total_sum] => 0 [total_days] => 0 [display_material_sum] => 0 [display_work_sum] => 0 [display_total_sum] => 0 ) 1
0
Работа:0
Материалы:0
Дни:0
stdClass Object ( [id] => 70 [attribute_id] => 35 [name] => Есть [material_modifier] => 1 [work_modifier] => 1 [options] => Array ( [0] => Многоуровневый потолок из гипсокартона [1] => Многоуровневый потолок из гипсокартона и натяжного потолка [2] => Одноуровневый потолок из гипсокартона [3] => Одноуровневый натяжной потолок ) [days] => [10,10,1,1] [material_price] => [900,700,700,600] [work_price] => [1000,800,500,300] [image] => https://akademik-stroy.ru/wp-content/uploads/materials/mnogourovnevyj-gkl.jpg [area_modifier] => 109.28 [parent_name] => Отделка потолка [parent_id] => 35 [material_sum] => 135726 [work_sum] => 125672 [total_sum] => 261398 [total_days] => 10 [display_material_sum] => 135 726 [display_work_sum] => 125 672 [display_total_sum] => 261 398 ) 1
261 398
Работа:125 672
Материалы:135 726
Дни:10

Преимущества работы с нами

icon

7 этапов оплаты

icon

Независимый строительный надзор

icon

Экологически чистые материалы

icon

16 лет гарантии

icon

Онлайн-кабинет с веб-камерой

icon

Строители с опытом более 15 лет

icon

Собственное производство

Двухэтажный дом 10х9 - идеальный выбор для комфортной жизни

Двухэтажный дом размером 10 на 9 метров, общей полезной площадью 109.28 квадратных метров, представляет собой замечательный выбор для тех, кто ценит комфорт и функциональность. Это просторное жилище идеально подойдет для среднестатистической семьи, которая хочет наслаждаться всеми прелестями загородной жизни без потери в удобствах городского образа жизни. Такой дом можно построить на земельном участке минимальной шириной 18 метров и длиной 16,50 метров, что делает его достаточно доступным решением даже для небольших участков. Компания "Академик Строй" в Москве предлагает заказать проект этого дома по отличной цене, что станет выгодным вложением в ваше будущее. Позвоните по телефону +7 (980) 800-47-93, чтобы получить более подробную информацию.

Функциональная планировка для семейного уюта

Дом включает в себя два этажа, жилая площадь которых составляет 163 квадратных метра, присутствует четыре спальни и два санузла — все для того, чтобы каждому члену семьи было уютно и комфортно. Особое внимание заслуживают опции, такие как камин и комната на первом этаже, что гарантирует не только удобство, но и уютную атмосферу. На первом этаже можно расположить просторную гостиную с камином, где вся семья может собираться за вечерними посиделками или отдыхать в компании друзей. Также на первом этаже предусмотрена комната, которую можно использовать по вашему усмотрению — в качестве гостевой спальни, кабинета или игровой комнаты для детей. Два санузла в доме обеспечат отсутствие утренних очередей, ведь каждому так важно успеть подготовиться к рабочему или учебному дню.

Применение двускатной крыши под углом 45°

Двускатная крыша с углом наклона 45 градусов делает этот дом классическим и прекрасно вписывающимся в любые ландшафты. Такая крыша не только эстетична, но и практична — она способствует лучшему отведению дождевой и талой воды, предотвращая образование протечек и связанных с ними проблем. Высота здания составляет 8,70 метров, что делает его достаточно впечатляющим и обширным. Важно отметить, что при такой высоте дома нет необходимости использовать краны и другое тяжелое оборудование для монтажа крыши, что снижает строительные затраты.

Таблица параметров дома

Параметр Значение
Полезная площадь 109.28 м²
Размеры дома 10 x 9 м
Этажей 2 этажа
Количество спален 4
Количество санузлов 2
Жилая площадь 163 м²
Площадь застройки 78,62 м²
Угол наклона крыши 45°
Высота здания 8,70 м
Минимальная ширина участка 18 м
Минимальная длина участка 16,50 м
Площадь 140 м²
Тип крыши двускатная
Опции камин, комната на первом этаже, терраса

Экологичность и энергоэффективность

В современном мире экологичность и энергоэффективность являются одними из главных критериев при выборе дома. Данный проект позволяет воплотить эти принципы в жизнь. Материалы, используемые в строительстве, отвечают всем стандартам безопасности и качества, что позволяет поддерживать здоровую атмосферу внутри жилища. Кроме того, продуманная система утепления стен и крыши гарантирует оптимальные температурные условия в любое время года. Это, в свою очередь, позволяет экономить на отоплении зимой и кондиционировании летом, что значительно сокращает затраты на коммунальные услуги и делает проживание более комфортным.

Преимущества сотрудничества с компанией "Академик Строй"

Выбирая проект от компании "Академик Строй", вы получаете не просто чертежи и схемы, но и полную поддержку на всех этапах возведения вашего дома. Наши специалисты обладают обширным опытом в проектировании и строительстве девелоперских объектов и всегда готовы предложить оптимальные решения под ваш бюджет и запросы. Преимущества работы с нами:
  • Высококачественные материалы и доступные цены
  • Индивидуальный подход и адаптация проекта под ваши пожелания
  • Полная консультационная поддержка
  • Соблюдение сроков и качественное выполнение всех этапов работы

Инвестируйте в свой комфорт сейчас

Не упустите возможность сделать свою жизнь более уютной и комфортной благодаря современному и функциональному двухэтажному дому. Свяжитесь с компанией "Академик Строй" уже сегодня и закажите проект вашего будущего жилища по телефону +7 (980) 800-47-93. Специалисты помогут вам воплотить мечту об идеальном загородном доме в реальность.