Введение в проект двухэтажного дома 9х10 - 104.2 м²
Проект дома 9 на 10 метров с общей полезной площадью 104.2 квадратных метра привлекает все больше внимания среди тех, кто стремится построить комфортное и функциональное жилье для своей семьи. Этот двухэтажный дом отличается оптимальной планировкой, позволяющей разместить всю необходимую жилую инфраструктуру даже для большой семьи — четырёх спален и двух санузлов. При этом благодаря своей компактности он отлично вписывается в участок средних размеров, а разумная стоимость строительства — всего 4 128 825 рублей — делает проект доступным и привлекательным.
В данной статье мы подробно рассмотрим конструктивные особенности, внутреннюю планировку и архитектурные решения, а также рассмотрим преимущества этого проекта, которые делают его идеальным выбором для проживания в современных условиях. Особое внимание уделим параметрам, связанным с размером, использованием пространства и инженерным решениям, позволяющим сделать дом удобным и энергоэффективным.
Основные характеристики дома 9х10 м
Дом представляется двухэтажным зданием с габаритами 9 на 10 метров, что является классическим форматом для частных домов средней площади. Этот размер позволяет рационально использовать участок и при этом получить комфортные помещения для всех членов семьи. Общая полезная площадь составляет 104.2 м² — достаточно большое пространство, позволяющее организовать жилую, гостиную и техническую зоны без ограничений.
Для наглядности обратим внимание на основные параметры дома в следующей таблице:
| Параметр | Значение |
|---|---|
| Размер дома | 9 x 10 м |
| Полезная площадь | 104.2 м² |
| Этажность | 2 этажа |
| Жилая площадь | 104.2 м² |
| Площадь застройки | 81.9 м² |
| Количество спален | 4 |
| Количество санузлов | 2 |
| Минимальная ширина участка | 16.55 м |
| Минимальная длина участка | 17.95 м |
| Угол наклона крыши | 40° |
| Тип крыши | Двускатная |
| Опции | Камин, комната на первом этаже, терраса |
Необходимо отметить, что именно сочетание компактности и сбалансированности планировки позволяет получить максимально полезное пространство, избежать пустующих или недостаточно использованных зон, а также обеспечить удобство проживания для семьи из четырех и более человек.
Планировка и функциональность помещений
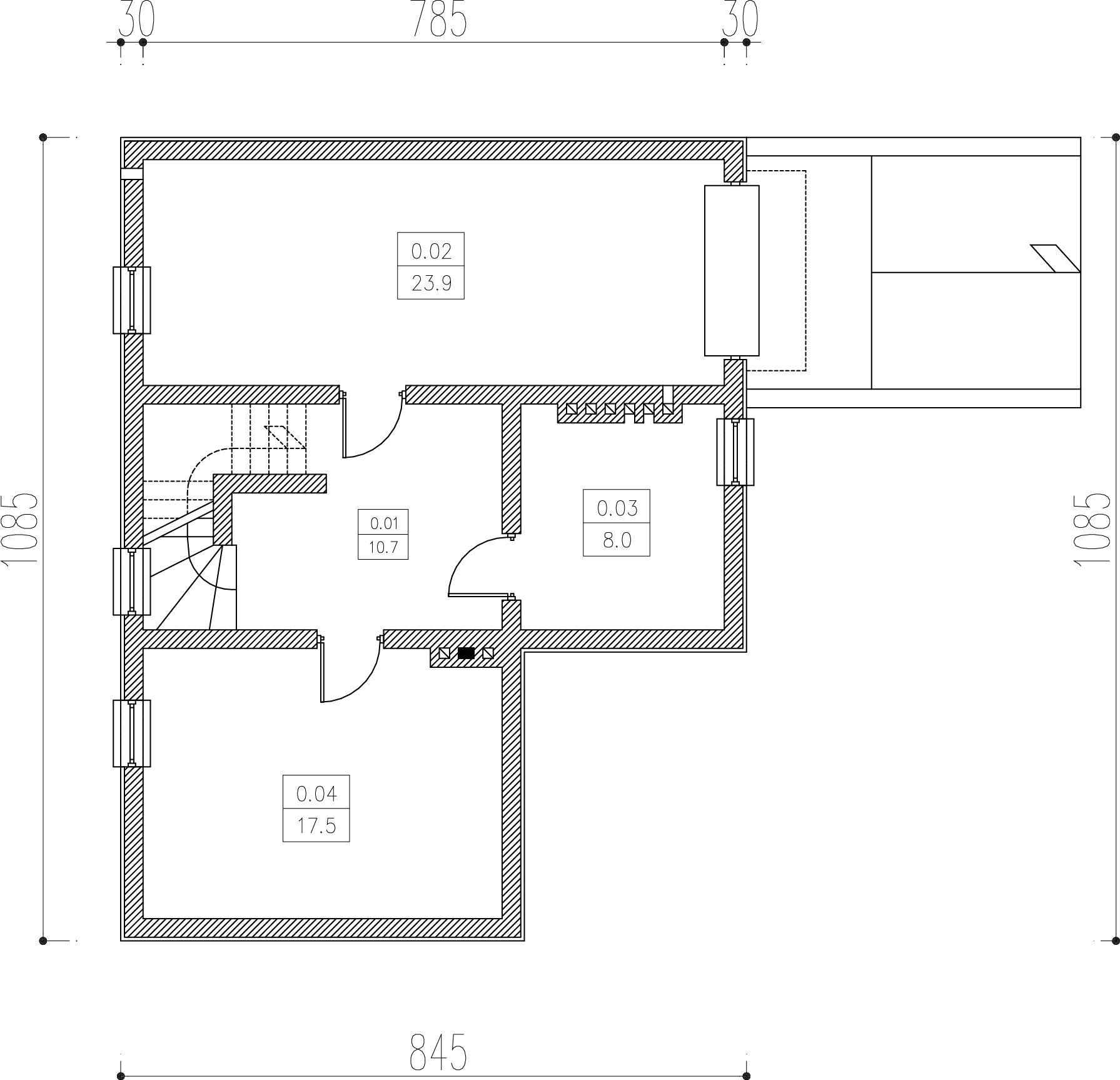
Четыре отдельные спальни — это значимая особенность данного проекта, позволяющая комфортно разместить членов семьи и сохранить приватность для каждого. При этом две ванные комнаты рационально распределены между этажами, что обеспечивает удобство и экономит время в часы пик.
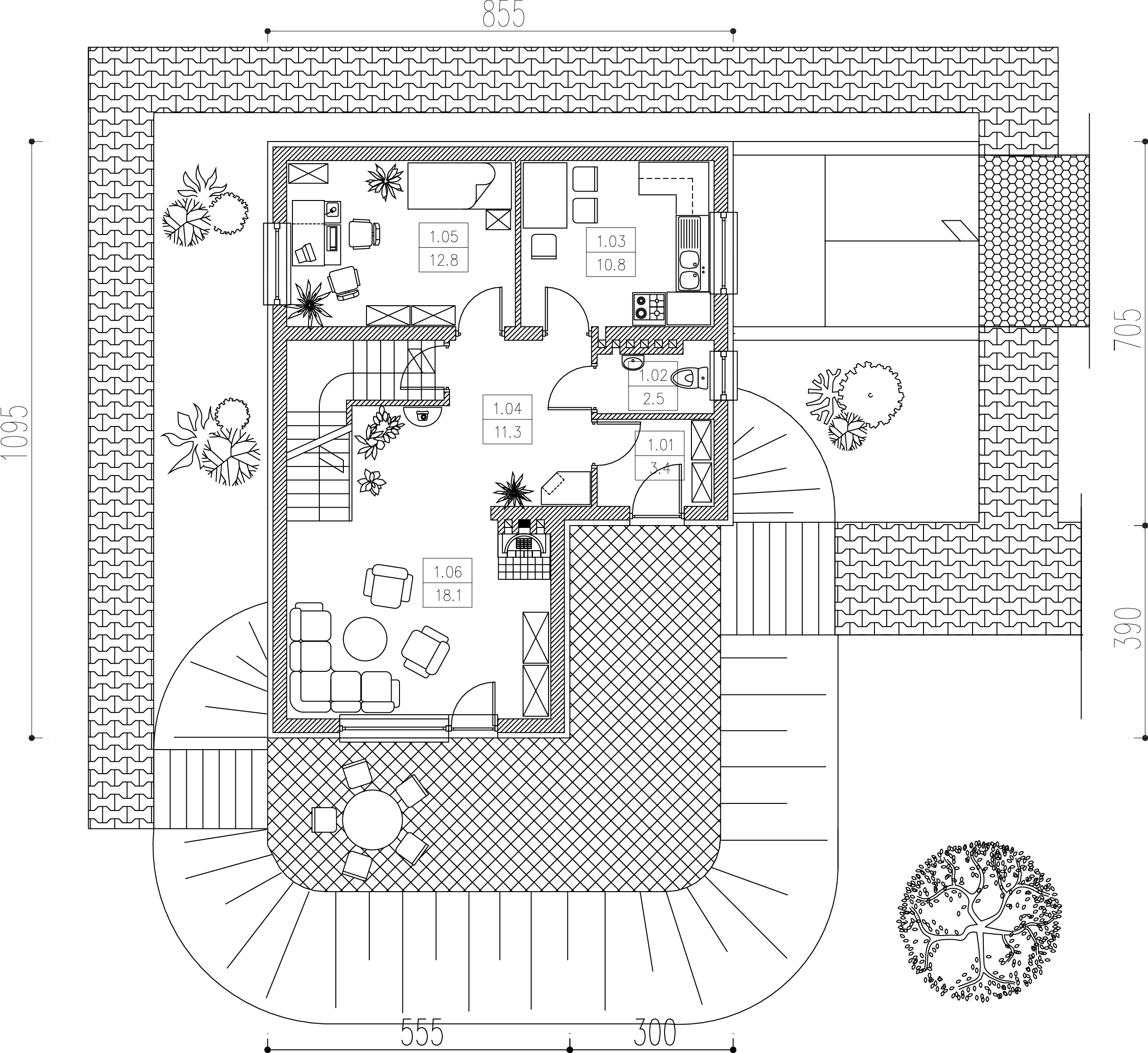
Огромное преимущество двухэтажного дома — возможность четко разделить зоны для отдыха и повседневной активности. На первом этаже располагаются общие зоны: просторная гостиная с камином, кухня и столовая, а также комната, которая может быть использована как кабинет, игровая или гостевая.
Второй этаж отведен полностью для спален и санузлов, что создает спокойную атмосферу и минимизирует шум от коммуникаций первого этажа. Отсутствие гаража компенсируется достаточной площадью вокруг дома, где можно организовать открытую парковку или зонную площадку отдыха.
Распределение помещений по этажам
| Этаж | Помещения |
|---|---|
| Первый этаж | Гостиная с камином, кухня-столовая, дополнительная комната (кабинет/гостевая), санузел, терраса |
| Второй этаж | 4 спальни, 1 санузел, зона для хранения |
Наличие террасы — это не только дополнительная зона отдыха, но и возможность расширить жилое пространство летом, наслаждаясь природой и свежим воздухом. Камин в гостиной создаёт уютную атмосферу в холодное время года и служит дополнительным источником тепла.
Архитектурные особенности и конструктивные решения
Проект дома предусматривает двускатную кровлю с углом наклона 40°. Это классическое решение, которое обеспечивает эффективный сток осадков, защищает здание от накопления снежных масс и способствует естественной вентиляции чердачного пространства. Двускатная крыша также облегчает монтаж мансардных окон при необходимости дальнейшего расширения жилого пространства.
Площадь застройки составляет 81.9 м² — это более чем комфортный «след» дома на участке, позволяющий организовать вокруг здания зоны отдыха, детские площадки, сады или грядки. Минимальные размеры необходимого участка — 16.55 м по ширине и 17.95 м по длине — делают проект приемлемым для средних по размеру земельных участков в пригородной зоне или в черте города.
Важной составляющей является компоновка жилых помещений и наличие дополнительных опций, таких как камин и терраса. Так, камин не только эстетически привлекательный элемент дизайна, но и влияет на микроклимат в доме. Терраса расширяет возможности устройства мероприятий на свежем воздухе и подчеркивает стиль дома, делая его более уютным и индивидуальным.
Материалы и энергоэффективность
Для строительства выбран оптимальный набор современных материалов, сочетающих в себе прочность, теплоизоляцию и эстетическую привлекательность. Как правило, стены возводятся из блоков или кирпича с дополнительным утеплением, что гарантирует высокие показатели энергоэффективности. Качественные окна с двойным или тройным остеклением дополнительно снижают теплопотери.
Отделка фасада может быть выполнена в классическом или современном стиле с применением декоративных штукатурок, сайдинга или натурального дерева, что придает дому особый шарм и индивидуальность.
Преимущества и особенности эксплуатации данного проекта
Одним из главных плюсов дома 9×10 является то, что он идеально подходит под различные климатические условия. Двухэтажная конструкция обеспечивает компактное размещение на участке, что особенно важно в условиях ограниченного пространства.
Четыре спальни позволяют обеспечить личное пространство каждому члену семьи, что актуально для семей с детьми или тех, кто часто принимает гостей. Наличие двух санузлов существенно повышает уровень комфорта и экономит время в утренние часы.
Угол наклона крыши 40° — оптимальный для большинства регионов России, с точки зрения предотвращения накопления снега и дождевой воды. Также данный угол крыши позволяет размещать чердачные помещения или систему вентиляции без сложных инженерных решений.
Сводный список основных преимуществ
- Оптимальные габариты дома для семейного проживания.
- Рациональная планировка с четырьмя спальнями и двумя санузлами.
- Наличие камина и террасы для комфорта и уюта.
- Высокая энергоэффективность благодаря грамотному подбору материалов.
- Двускатная крыша с углом 40° — надежная и проверенная конструкция.
- Экономичноe строительство с общей стоимостью около 4 128 825 рублей.
Экономическая составляющая и бюджет строительства
Стоимость строительства дома является одним из ключевых факторов при выборе проекта. Данный двухэтажный дом 9×10 с площадью 104.2 м², построенный с учетом современных технологий и материалов, реализуется по цене порядка 4 128 825 рублей. Это весьма конкурентная цена, учитывая качество и функциональность объекта.
Экономия достигается за счет компактных размеров здания, эффективной планировки и использования материалов с хорошим соотношением цена/качество. При этом за выделенную сумму заказчик получает дом, полностью готовый к вводу в эксплуатацию, с учётом всех инженерных систем и отделочных работ.
Для большей наглядности рассмотрим потенциальные расходы по основным статьям бюджета:
| Статья расходов | Примерная доля в бюджете | Сумма (руб.) |
|---|---|---|
| Фундамент и земляные работы | 20% | 825 765 |
| Стены, каркас, крыша | 35% | 1 444 089 |
| Инженерные системы (электрика, водоснабжение, отопление) | 15% | 619 324 |
| Отделка и внутренняя отделка | 20% | 825 765 |
| Прочие расходы (проект, документальное сопровождение и др.) | 10% | 412 883 |
Вышеуказанные показатели являются ориентировочными, но позволяют наглядно понять, как распределяются основные затраты и почему проект является выгодным с финансовой точки зрения.
Требования к участку и расположение дома
Минимальные размеры участка, необходимого для размещения дома 9 на 10 метров, составляют 16.55 метра по ширине и 17.95 метра по длине. Эти параметры обеспечивают достаточно места для организации подъездных путей, зон отдыха, зеленых насаждений и прочих элементов благоустройства.
Расположение дома на участке должно учитывать ориентацию по сторонам света: предпочтительно размещать гостиную и террасу с южной или юго-западной стороны для получения максимального уровня естественного освещения и тепла. Спальные комнаты можно расположить с северной стороны для создания прохлады в тёплое время года.
Также важно предусмотреть достаточное пространство для подъезда строительной техники и коммуникаций, что влияет на сроки и стоимость строительства.
Дополнительные опции и возможности расширения
Проект предусматривает наличие камина — одного из главных украшений дома и удобного источника дополнительного тепла. Камин не только создаёт эстетическую атмосферу, но и способствует созданию микроклимата, который повышает комфорт проживания в холодные месяцы.
Терраса служит приятным дополнением к жилым помещениям: это отличное место для вечернего отдыха, проведения семейных встреч или утреннего завтрака на свежем воздухе. Терраса позволяет расширить площадь дома без значительных затрат на строительство.
Кроме того, проект можно модернизировать и адаптировать под индивидуальные запросы: добавить гараж, изменить планировку комнат, увеличить площадь, построить дополнительные пристройки. Это делает проект гибким и востребованным среди различных категорий заказчиков.
Возможные направления развития проекта
- Увеличение площади первого этажа за счёт расширения гостиной или кухни.
- Добавление гаража с сохранением общей аккуратности внешнего вида.
- Конструкция мансарды или оборудованного чердака с дополнительными комнатами.
- Инсталляция современных систем умного дома и энергоэффективных технологий.
Заключительные рекомендации при выборе и строительстве дома 9х10
При выборе проекта двухэтажного дома 9 на 10 с площадью 104.2 м² и стоимостью около 4,1 млн рублей важно учитывать множество факторов: расположение участка, потребности семьи и будущая эксплуатация здания. Представленный проект оптимально сочетает комфорт, эргономику и экономичность, что делает его превосходным решением для жизни долгие годы.
Не менее значимы этапы подготовки — выбор подрядчиков, планирование бюджета и контроль качества строительства. Специалисты рекомендуют обращать внимание на качество материалов, соблюдать проектные решения и иметь на руках технический надзор для предотвращения ошибок при возведении.
Проект отвечает современным стандартам и обеспечивает высокий уровень комфорта, что выгодно выделяет его среди конкурентов на рынке частного домостроения.




