Двухэтажный дом 17x11 - 185.4 м2 за руб.

ID-57832

Стоимость дома 6074750 руб.
154 м2 Полезная
площадь
17 x 11 м Размеры
2 этажа Этажей
26 м2 Террасы
и балконы
1Без
гаража
3 Количество
спален
3 Количество
санузлов

Планировки

План первого этажа

floor image
  • 1. Прихожая 3,70 m²
  • 2. Котельная 3,50 m²
  • 3. Туалет 2,20 m²
  • 4. Кухня 10,10 m²
  • 5. Столовая 20,40 m²
  • 6. Гостиная 30,60 m²
  • 7. Коридор 10,50 m²
  • 8. Гараж на 1 машину 20,90 m²
  • 9. Терраса (20 m²)
  • План первого этажа 101,90 m²

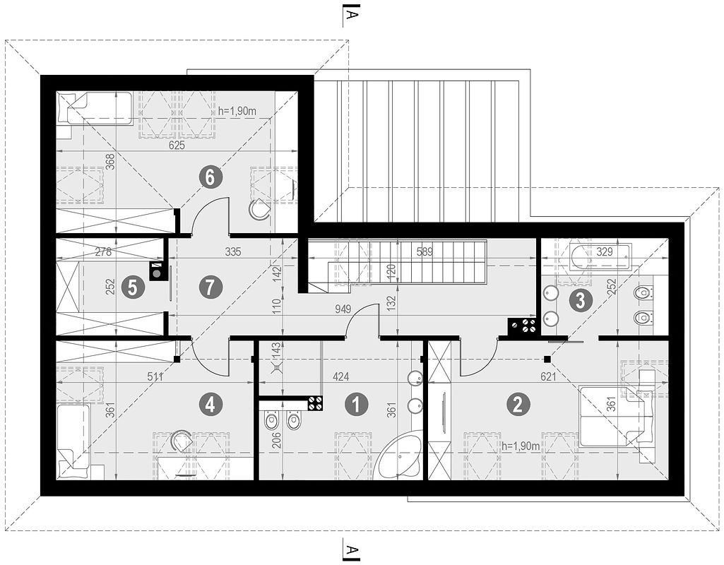
План мансарды

floor image
  • 1. Ванная комната 4,60 m² (8,20 m²)
  • 2. Комната 15,50 m² (22,20 m²)
  • 3. Ванная комната 12 m² (15 m²)
  • 4. Комната 12,60 m² (18,30 m²)
  • 5. Гардероб 5 m² (6,80 m²)
  • 6. Комната 14,30 m² (22,90 m²)
  • 7. Коридор 19,50 m² (21,10 m²)
  • План мансарды 83,50 m²

Разрезы

Вертикальный разрез
Вертикальный разрез

Фасады

Передний
Задний
Левый
Правый
Передний
Задний
Левый
Правый

Подробная информация

Жилая площадь
164,35 m²
icon

Сумма площади всех жилых помещений, за вычетом пов. гараж, котельная, чердак, подвал. Учитывается в 100%, для помещений высотой более 2,2 м, в 50% для помещений с высотой 2,2-1,4 м и не включается для более низких помещений (меньше 1,4 м).

Площадь застройки
145,64 m²
icon

Площадь застройки здания определяется как площадь горизонтального сечения по внешнему обводу здания на уровне цоколя, включая выступающие части.

Общая площадь
279,35 m²
icon

Общая площадь всех этажей здания, в том числе с несущими конструкциями, такими как наружные стены (с утеплением), столбы, террасы, и т. д.

Объем брутто
742 m³
icon

Как правило, это сумма объема всех помещений в здании, подсчитанных по внешнему контуру стены (с утеплением).

Площадь крыши
239 m²
icon

Угол наклона крыши
35°
icon

Наклон ската крыши в градусах. Внимание! В некоторых проектах возникает более чем один наклон крыши.

Высота здания
7,40 m
icon

Высота измеряется от поверхности земли до самой высокой точки кровли (конька), за исключением дымоходов.

Ширина фасада
16,75 m
icon

Длина фасада
11,15 m
icon

Мин. ширина участка
24,60 m
icon

Наименьшая возможная ширина участка, необходимая для строительства выбранного дома. Состоит из длины фасада дома плюс с обеих сторон три метра отступ.

Мин. длина участка
18,85 m
icon

Наименьшая возможная длина участка, необходимая для строительства выбранного дома. Состоит из длины фасада дома плюс с обеих сторон три метра отступ.

Материалы и опции
Общие
Цена, руб.
Площадь м²
230
Площадь от и до
Ежемесячный платёж, руб
Количество спален
3
Гараж
1
Количество санузлов
3
Ширина
17
Глубина
11
Форма

Площади дома

№ п/п Наименование Ед. из. Строительная площадь Полезная площадь
1 1 этаж м2 125.57 101.9
2 2 этаж м2 102.9 83.5
3 Итого м2 228.47 185.4

ПРИГЛАШАЕМ НА ДЕНЬ ОТКРЫТЫХ ДВЕРЕЙ СТРОЯЩЕГОСЯ ДОМА

ХОЧУ ПОЕХАТЬ
День открытых дверей

Калькулятор опций

0

В ипотеку от 20 051 ₽/мес.

Фундамент
stdClass Object ( [id] => 1 [attribute_id] => 1 [name] => Ленточный монолитный ж/б [material_modifier] => 1 [work_modifier] => 1 [options] => Array ( [0] => размер 200 х 700 мм [1] => размер 300 х 900 мм [2] => размер 400 х 1 000 мм [3] => размер 500 х 1 100 мм [4] => размер 600 х 1 200 мм ) [days] => [20,21,22,25,30] [material_price] => [2823,3630,4475,5210,12047] [work_price] => [2154,2826,3731,4577,5293] [image] => https://akademik-stroy.ru/wp-content/uploads/materials/lentochnyj-monolitnyj-zh-b.jpg [area_modifier] => 125.57 [parent_name] => Фундамент [parent_id] => 1 [material_sum] => 446650 [work_sum] => 284002 [total_sum] => 730652 [total_days] => 20 [display_material_sum] => 446 650 [display_work_sum] => 284 002 [display_total_sum] => 730 652 ) 1
730 652
Работа:284 002
Материалы:446 650
Дни:20
stdClass Object ( [id] => 2 [attribute_id] => 1 [name] => Забивные Ж/Б сваи [material_modifier] => 1 [work_modifier] => 1 [options] => Array ( [0] => 150х150х3000мм [1] => 150х150х4000мм [2] => 200х200х3000мм [3] => 200х200х4000мм [4] => 200х200х5000мм [5] => 200х200х6000мм ) [days] => [2,2,2,2,2,2] [material_price] => [1990,2850,3255,4360,5120,6837] [work_price] => [1002,1185,1336,1438,1574,1839] [image] => https://akademik-stroy.ru/wp-content/uploads/materials/zabivnye-zh-b-svai.png [area_modifier] => 125.57 [parent_name] => Фундамент [parent_id] => 1 [material_sum] => 314854 [work_sum] => 132112 [total_sum] => 446966 [total_days] => 2 [display_material_sum] => 314 854 [display_work_sum] => 132 112 [display_total_sum] => 446 966 ) 1
446 966
Работа:132 112
Материалы:314 854
Дни:2
stdClass Object ( [id] => 71 [attribute_id] => 1 [name] => Свайно-ростверковый ж/б [material_modifier] => 1 [work_modifier] => 1 [options] => Array ( [0] => ростверк 200х300 мм [1] => ростверк 300х600 мм [2] => ростверк 400х900 мм [3] => ростверк 500х1200 мм ) [days] => [20,23,25,27] [material_price] => [3018,3474,7109,9792] [work_price] => [2024,3012,5635,7022] [image] => https://akademik-stroy.ru/wp-content/uploads/materials/svajno-rostverkovyj-monolitnyj-zh-b-3.png [area_modifier] => 125.57 [parent_name] => Фундамент [parent_id] => 1 [material_sum] => 477503 [work_sum] => 266861 [total_sum] => 744364 [total_days] => 20 [display_material_sum] => 477 503 [display_work_sum] => 266 861 [display_total_sum] => 744 364 ) 1
744 364
Работа:266 861
Материалы:477 503
Дни:20
stdClass Object ( [id] => 72 [attribute_id] => 1 [name] => Монолитная ж/б плита [material_modifier] => 1 [work_modifier] => 1 [options] => Array ( [0] => 200 мм [1] => 300 мм [2] => 400 мм [3] => 500 мм [4] => 600 мм ) [days] => [30,33,35,37,40] [material_price] => [5348,8555,12788,14388,15189] [work_price] => [4314,4881,7037,8061,10230] [image] => https://akademik-stroy.ru/wp-content/uploads/materials/monolitnaya-zhb-plita.png [area_modifier] => 125.57 [parent_name] => Фундамент [parent_id] => 1 [material_sum] => 846151 [work_sum] => 568794 [total_sum] => 1414945 [total_days] => 30 [display_material_sum] => 846 151 [display_work_sum] => 568 794 [display_total_sum] => 1 414 945 ) 1
1 414 945
Работа:568 794
Материалы:846 151
Дни:30
stdClass Object ( [id] => 73 [attribute_id] => 1 [name] => Утепленная шведская плита [material_modifier] => 1 [work_modifier] => 1 [options] => Array ( [0] => 200 мм [1] => 300 мм [2] => 400 мм [3] => 500 мм [4] => 600 мм ) [days] => [32,37,39,42,45] [material_price] => [10249,12692,13760,14936,16230] [work_price] => [5960,7337,8072,8878,9765] [image] => https://akademik-stroy.ru/wp-content/uploads/materials/uteplennaya-shvedskaya-plita.jpg [area_modifier] => 125.57 [parent_name] => Фундамент [parent_id] => 1 [material_sum] => 1621578 [work_sum] => 785817 [total_sum] => 2407395 [total_days] => 32 [display_material_sum] => 1 621 578 [display_work_sum] => 785 817 [display_total_sum] => 2 407 395 ) 1
2 407 395
Работа:785 817
Материалы:1 621 578
Дни:32
stdClass Object ( [id] => 75 [attribute_id] => 1 [name] => Ленточный из ФБС [material_modifier] => 1 [work_modifier] => 1 [options] => Array ( [0] => толщ. 300 мм [1] => толщ. 400 мм [2] => толщ. 500 мм [3] => толщ. 600 мм ) [days] => [20,20,20,20] [material_price] => [3675,4902,6126,7350] [work_price] => [2451,3264,4083,4902] [image] => https://akademik-stroy.ru/wp-content/uploads/materials/lentochnyj-iz-fbs.png [area_modifier] => 125.57 [parent_name] => Фундамент [parent_id] => 1 [material_sum] => 581452 [work_sum] => 323161 [total_sum] => 904613 [total_days] => 20 [display_material_sum] => 581 452 [display_work_sum] => 323 161 [display_total_sum] => 904 613 ) 1
904 613
Работа:323 161
Материалы:581 452
Дни:20
stdClass Object ( [id] => 76 [attribute_id] => 1 [name] => Цокольный этаж из ФБС [material_modifier] => 1 [work_modifier] => 1 [options] => Array ( [0] => толщ. 300 мм [1] => толщ. 400 мм [2] => толщ. 500 мм [3] => толщ. 600 мм ) [days] => [30,32,34,36] [material_price] => [20916,23299,26680,29060] [work_price] => [17524,18700,19873,21046] [image] => https://akademik-stroy.ru/wp-content/uploads/materials/cokolnyj-ehtazh-iz-fbs.jpg [area_modifier] => 125.57 [parent_name] => Фундамент [parent_id] => 1 [material_sum] => 3309292 [work_sum] => 2310513 [total_sum] => 5619805 [total_days] => 30 [display_material_sum] => 3 309 292 [display_work_sum] => 2 310 513 [display_total_sum] => 5 619 805 ) 1
5 619 805
Работа:2 310 513
Материалы:3 309 292
Дни:30
stdClass Object ( [id] => 77 [attribute_id] => 1 [name] => Цокольный этаж монолитный ж/б [material_modifier] => 1 [work_modifier] => 1 [options] => Array ( [0] => толщ. 200 мм [1] => толщ. 300 мм [2] => толщ. 400 мм [3] => толщ. 500 мм [4] => толщ. 600 мм ) [days] => [40,42,44,46,48] [material_price] => [25421,29148,32275,35602,37326] [work_price] => [20441,21907,23375,24841,26306] [image] => https://akademik-stroy.ru/wp-content/uploads/materials/cokolnyj-etazh-zh-b.jpg [area_modifier] => 125.57 [parent_name] => Фундамент [parent_id] => 1 [material_sum] => 4022065 [work_sum] => 2695115 [total_sum] => 6717180 [total_days] => 40 [display_material_sum] => 4 022 065 [display_work_sum] => 2 695 115 [display_total_sum] => 6 717 180 ) 1
6 717 180
Работа:2 695 115
Материалы:4 022 065
Дни:40
stdClass Object ( [id] => 191 [attribute_id] => 1 [name] => Винтовые сваи [material_modifier] => 1 [work_modifier] => 1 [options] => Array ( [0] => 57х200мм [1] => 76х250мм [2] => 108х300мм [3] => 133х350мм ) [days] => [1,1,2,2] [material_price] => [1200,1300,1450,1600] [work_price] => [400,600,900,1100] [image] => https://akademik-stroy.ru/wp-content/uploads/materials/vintovye-svai.png [area_modifier] => 125.57 [parent_name] => Фундамент [parent_id] => 1 [material_sum] => 189862 [work_sum] => 52739 [total_sum] => 242601 [total_days] => 1 [display_material_sum] => 189 862 [display_work_sum] => 52 739 [display_total_sum] => 242 601 ) 1
242 601
Работа:52 739
Материалы:189 862
Дни:1
Перекрытие цоколя
stdClass Object ( [id] => 3 [attribute_id] => 2 [name] => Деревянные балки [material_modifier] => 1 [work_modifier] => 1 [options] => Array ( [0] => без утепления [1] => утепление 200 мм [2] => утепление 250 мм [3] => утепление 300 мм [4] => утепление 350 мм [5] => утепление 400 мм [6] => утепление 450 мм [7] => утепление 500 мм ) [days] => [8,9,9,9,11,12,13,14] [material_price] => [1634,2042,2344,2947,3149,3652,3354,3557] [work_price] => [1230,1339,1393,1426,1460,1513,1587,1620] [image] => https://akademik-stroy.ru/wp-content/uploads/materials/derevyannye-balki.png [area_modifier] => 125.57 [parent_name] => Перекрытие цоколя [parent_id] => 2 [material_sum] => 258529 [work_sum] => 162174 [total_sum] => 420703 [total_days] => 8 [display_material_sum] => 258 529 [display_work_sum] => 162 174 [display_total_sum] => 420 703 ) 1
420 703
Работа:162 174
Материалы:258 529
Дни:8
stdClass Object ( [id] => 4 [attribute_id] => 2 [name] => Сборные ж/б плиты [material_modifier] => 1 [work_modifier] => 1 [options] => Array ( [0] => без утепления [1] => утепление 150мм [2] => утепление 200мм [3] => утепление 250мм [4] => утепление 300мм [5] => утепление 350мм [6] => утепление 400мм [7] => утепление 450мм [8] => утепление 500мм ) [days] => [13,15,15,15,15,15,15,15,15] [material_price] => [3067,5577,5928,6679,7730,8782,9833,10884,11935] [work_price] => [1520,1956,2102,2247,2392,2537,2684,2829,2974] [image] => https://akademik-stroy.ru/wp-content/uploads/materials/sbornye-zh-b-plity-2.jpg [area_modifier] => 125.57 [parent_name] => Перекрытие цоколя [parent_id] => 2 [material_sum] => 485255 [work_sum] => 200410 [total_sum] => 685665 [total_days] => 13 [display_material_sum] => 485 255 [display_work_sum] => 200 410 [display_total_sum] => 685 665 ) 1
685 665
Работа:200 410
Материалы:485 255
Дни:13
stdClass Object ( [id] => 78 [attribute_id] => 2 [name] => Монолитная ж/б плита [material_modifier] => 1 [work_modifier] => 1 [options] => Array ( [0] => без утепления [1] => утепление 150 мм [2] => утепление 200 мм [3] => утепление 250 мм [4] => утепление 300 мм [5] => утепление 350 мм [6] => утепление 400 мм [7] => утепление 450 мм [8] => утепление 500 мм ) [days] => [18,20,20,20,20,20,20,20,20] [material_price] => [4837,6572,7224,7375,79426,8177,8728,9180,10031] [work_price] => [3348,3921,4112,4302,4493,4684,4875,5066,5256] [image] => https://akademik-stroy.ru/wp-content/uploads/materials/monolitnaya-zh-b-plita-2.jpg [area_modifier] => 125.57 [parent_name] => Перекрытие цоколя [parent_id] => 2 [material_sum] => 765301 [work_sum] => 441429 [total_sum] => 1206730 [total_days] => 18 [display_material_sum] => 765 301 [display_work_sum] => 441 429 [display_total_sum] => 1 206 730 ) 1
1 206 730
Работа:441 429
Материалы:765 301
Дни:18
Стены 1 этаж (несущие)
stdClass Object ( [id] => 6 [attribute_id] => 3 [name] => Пеноблок [material_modifier] => 1 [work_modifier] => 1 [options] => Array ( [0] => 300 мм [1] => 400 мм [2] => 500 мм [3] => 600 мм ) [days] => [29,31,34,39] [material_price] => [3000,4000,4500,4937] [work_price] => [5033,5805,6400,8710] [image] => https://akademik-stroy.ru/wp-content/uploads/materials/penoblok.jpg [area_modifier] => 125.57 [parent_name] => Стены 1 этаж (несущие) [parent_id] => 3 [material_sum] => 474655 [work_sum] => 663594 [total_sum] => 1138249 [total_days] => 29 [display_material_sum] => 474 655 [display_work_sum] => 663 594 [display_total_sum] => 1 138 249 ) 1
1 138 249
Работа:663 594
Материалы:474 655
Дни:29
stdClass Object ( [id] => 79 [attribute_id] => 3 [name] => Керамический блок [material_modifier] => 1 [work_modifier] => 1 [options] => Array ( [0] => 380 мм [1] => 380 мм Thermo [2] => 440 мм [3] => 510 мм ) [days] => [23,23,24,25] [material_price] => [4510,5098,6093,8013] [work_price] => [4737,4937,5903,6958] [image] => https://akademik-stroy.ru/wp-content/uploads/materials/keramicheskij-blok.jpg [area_modifier] => 125.57 [parent_name] => Стены 1 этаж (несущие) [parent_id] => 3 [material_sum] => 713564 [work_sum] => 624566 [total_sum] => 1338130 [total_days] => 23 [display_material_sum] => 713 564 [display_work_sum] => 624 566 [display_total_sum] => 1 338 130 ) 1
1 338 130
Работа:624 566
Материалы:713 564
Дни:23
stdClass Object ( [id] => 80 [attribute_id] => 3 [name] => Кирпич [material_modifier] => 1 [work_modifier] => 1 [options] => Array ( [0] => Кирпич 250 мм [1] => Кирпич 380 мм [2] => Кирпич 510 мм [3] => Кирпич 640 мм [4] => Кирпич 770 мм ) [days] => [30,30,31,33,36] [material_price] => [5500,7142,9206,10171,12235] [work_price] => [8736,10041,12018,15240,18462] [image] => https://akademik-stroy.ru/wp-content/uploads/materials/kirpich.jpg [area_modifier] => 125.57 [parent_name] => Стены 1 этаж (несущие) [parent_id] => 3 [material_sum] => 870200 [work_sum] => 1151828 [total_sum] => 2022028 [total_days] => 30 [display_material_sum] => 870 200 [display_work_sum] => 1 151 828 [display_total_sum] => 2 022 028 ) 1
2 022 028
Работа:1 151 828
Материалы:870 200
Дни:30
stdClass Object ( [id] => 81 [attribute_id] => 3 [name] => Монолитные [material_modifier] => 1 [work_modifier] => 1 [options] => Array ( [0] => 150 мм [1] => 200 мм [2] => 250 мм [3] => 300 мм [4] => 350 мм [5] => 400 мм ) [days] => [45,46,47,49,50,53] [material_price] => [6545,7876,10175,12011,13908,15204] [work_price] => [5106,6444,7698,8552,9807,11461] [image] => https://akademik-stroy.ru/wp-content/uploads/materials/monolitnye.jpg [area_modifier] => 125.57 [parent_name] => Стены 1 этаж (несущие) [parent_id] => 3 [material_sum] => 1035538 [work_sum] => 673218 [total_sum] => 1708756 [total_days] => 45 [display_material_sum] => 1 035 538 [display_work_sum] => 673 218 [display_total_sum] => 1 708 756 ) 1
1 708 756
Работа:673 218
Материалы:1 035 538
Дни:45
stdClass Object ( [id] => 82 [attribute_id] => 3 [name] => Клееный брус [material_modifier] => 1 [work_modifier] => 1 [options] => Array ( [0] => 160 мм [1] => 175 мм [2] => 200 мм [3] => 215 мм [4] => 240 мм [5] => 270 мм [6] => 282 мм ) [days] => [24,28,32,37,40,42,48] [material_price] => [16975,18773,19950,20545,21599,22159,23275] [work_price] => [4806,5287,5815,6397,7036,7740,8514] [image] => https://akademik-stroy.ru/wp-content/uploads/materials/kleenyj-brus.jpg [area_modifier] => 125.57 [parent_name] => Стены 1 этаж (несущие) [parent_id] => 3 [material_sum] => 2685754 [work_sum] => 633664 [total_sum] => 3319418 [total_days] => 24 [display_material_sum] => 2 685 754 [display_work_sum] => 633 664 [display_total_sum] => 3 319 418 ) 1
3 319 418
Работа:633 664
Материалы:2 685 754
Дни:24
stdClass Object ( [id] => 83 [attribute_id] => 3 [name] => Каркасные [material_modifier] => 1 [work_modifier] => 1 [options] => Array ( [0] => 150 мм [1] => 200 мм [2] => 250 мм [3] => 300 мм ) [days] => [15,16,17,18] [material_price] => [2379,2639,2898,3258] [work_price] => [2418,2686,2985,3716] [image] => https://akademik-stroy.ru/wp-content/uploads/materials/karkasnye.jpg [area_modifier] => 125.57 [parent_name] => Стены 1 этаж (несущие) [parent_id] => 3 [material_sum] => 376401 [work_sum] => 318810 [total_sum] => 695211 [total_days] => 15 [display_material_sum] => 376 401 [display_work_sum] => 318 810 [display_total_sum] => 695 211 ) 1
695 211
Работа:318 810
Материалы:376 401
Дни:15
stdClass Object ( [id] => 84 [attribute_id] => 3 [name] => СИП-панели [material_modifier] => 1 [work_modifier] => 1 [options] => Array ( [0] => 120 мм [1] => 170 мм [2] => 220 мм ) [days] => [7,7,7] [material_price] => [1210,1856,2292] [work_price] => [1410,1551,1706] [image] => https://akademik-stroy.ru/wp-content/uploads/materials/sip-paneli.jpg [area_modifier] => 125.57 [parent_name] => Стены 1 этаж (несущие) [parent_id] => 3 [material_sum] => 191444 [work_sum] => 185906 [total_sum] => 377350 [total_days] => 7 [display_material_sum] => 191 444 [display_work_sum] => 185 906 [display_total_sum] => 377 350 ) 1
377 350
Работа:185 906
Материалы:191 444
Дни:7
stdClass Object ( [id] => 85 [attribute_id] => 3 [name] => Сухой брус [material_modifier] => 1 [work_modifier] => 1 [options] => Array ( [0] => 150 мм [1] => 180 мм [2] => 200 мм ) [days] => [7,8,9] [material_price] => [6010,7190,8709] [work_price] => [3204,3845,4229] [image] => https://akademik-stroy.ru/wp-content/uploads/materials/suhoj-brus.jpg [area_modifier] => 125.57 [parent_name] => Стены 1 этаж (несущие) [parent_id] => 3 [material_sum] => 950891 [work_sum] => 422443 [total_sum] => 1373334 [total_days] => 7 [display_material_sum] => 950 891 [display_work_sum] => 422 443 [display_total_sum] => 1 373 334 ) 1
1 373 334
Работа:422 443
Материалы:950 891
Дни:7
stdClass Object ( [id] => 86 [attribute_id] => 3 [name] => Профилированный брус [material_modifier] => 1 [work_modifier] => 1 [options] => Array ( [0] => 150 мм [1] => 180 мм [2] => 200 мм ) [days] => [7,8,9] [material_price] => [8190,9228,10051] [work_price] => [3845,4614,5075] [image] => https://akademik-stroy.ru/wp-content/uploads/materials/profilirovannyj-brus.jpg [area_modifier] => 125.57 [parent_name] => Стены 1 этаж (несущие) [parent_id] => 3 [material_sum] => 1295807 [work_sum] => 506957 [total_sum] => 1802764 [total_days] => 7 [display_material_sum] => 1 295 807 [display_work_sum] => 506 957 [display_total_sum] => 1 802 764 ) 1
1 802 764
Работа:506 957
Материалы:1 295 807
Дни:7
stdClass Object ( [id] => 87 [attribute_id] => 3 [name] => Оцилиндрованное бревно [material_modifier] => 1 [work_modifier] => 1 [options] => Array ( [0] => 180 мм [1] => 220 мм [2] => 260 мм [3] => 320 мм ) [days] => [7,8,9,10] [material_price] => [75190,9532,10868,13116] [work_price] => [3845,4691,5535,6863] [image] => https://akademik-stroy.ru/wp-content/uploads/materials/ocilindrovannoe-brevno-1.jpg [area_modifier] => 125.57 [parent_name] => Стены 1 этаж (несущие) [parent_id] => 3 [material_sum] => 11896426 [work_sum] => 506957 [total_sum] => 12403383 [total_days] => 7 [display_material_sum] => 11 896 426 [display_work_sum] => 506 957 [display_total_sum] => 12 403 383 ) 1
12 403 383
Работа:506 957
Материалы:11 896 426
Дни:7
stdClass Object ( [id] => 88 [attribute_id] => 3 [name] => Срубы [material_modifier] => 1 [work_modifier] => 1 [options] => Array ( [0] => 260 мм [1] => 320 мм [2] => 360 мм [3] => 400 мм [4] => 500 мм ) [days] => [7,8,9,10,11] [material_price] => [37975,46709,52314,58069,73167] [work_price] => [4806,5911,6621,7349,9260] [image] => https://akademik-stroy.ru/wp-content/uploads/materials/sruby.jpg [area_modifier] => 125.57 [parent_name] => Стены 1 этаж (несущие) [parent_id] => 3 [material_sum] => 6008336 [work_sum] => 633664 [total_sum] => 6642000 [total_days] => 7 [display_material_sum] => 6 008 336 [display_work_sum] => 633 664 [display_total_sum] => 6 642 000 ) 1
6 642 000
Работа:633 664
Материалы:6 008 336
Дни:7
stdClass Object ( [id] => 174 [attribute_id] => 3 [name] => Брус [material_modifier] => 1 [work_modifier] => 1 [options] => Array ( [0] => 150 мм [1] => 180 мм [2] => 200 мм ) [days] => [7,8,9] [material_price] => [5127,6152,7367] [work_price] => [1602,1922,2115] [image] => https://akademik-stroy.ru/wp-content/uploads/materials/brus.jpg [area_modifier] => 125.57 [parent_name] => Стены 1 этаж (несущие) [parent_id] => 3 [material_sum] => 811185 [work_sum] => 211221 [total_sum] => 1022406 [total_days] => 7 [display_material_sum] => 811 185 [display_work_sum] => 211 221 [display_total_sum] => 1 022 406 ) 1
1 022 406
Работа:211 221
Материалы:811 185
Дни:7
stdClass Object ( [id] => 175 [attribute_id] => 3 [name] => Газобетон [material_modifier] => 1 [work_modifier] => 1 [options] => Array ( [0] => 300 мм [1] => 375 мм [2] => 400 мм [3] => 500 мм [4] => 600 мм ) [days] => [29,31,35,37,44] [material_price] => [4298,5573,6356,7288,9119] [work_price] => [4538,5251,5926,6733,7195] [image] => https://akademik-stroy.ru/wp-content/uploads/materials/gazobeton.jpg [area_modifier] => 125.57 [parent_name] => Стены 1 этаж (несущие) [parent_id] => 3 [material_sum] => 680022 [work_sum] => 598328 [total_sum] => 1278350 [total_days] => 29 [display_material_sum] => 680 022 [display_work_sum] => 598 328 [display_total_sum] => 1 278 350 ) 1
1 278 350
Работа:598 328
Материалы:680 022
Дни:29
stdClass Object ( [id] => 176 [attribute_id] => 3 [name] => Блок [material_modifier] => 1 [work_modifier] => 1 [options] => Array ( [0] => 300 мм [1] => 375 мм [2] => 400 мм [3] => 500 мм [4] => 600 мм ) [days] => [29,31,35,37,44] [material_price] => [2698,3973,4356,6588,7119] [work_price] => [5038,5851,6426,8733,9195] [image] => https://akademik-stroy.ru/wp-content/uploads/materials/blok.jpg [area_modifier] => 125.57 [parent_name] => Стены 1 этаж (несущие) [parent_id] => 3 [material_sum] => 426873 [work_sum] => 664253 [total_sum] => 1091126 [total_days] => 29 [display_material_sum] => 426 873 [display_work_sum] => 664 253 [display_total_sum] => 1 091 126 ) 1
1 091 126
Работа:664 253
Материалы:426 873
Дни:29
stdClass Object ( [id] => 177 [attribute_id] => 3 [name] => Газосиликатный блок [material_modifier] => 1 [work_modifier] => 1 [options] => Array ( [0] => 300 мм [1] => 375 мм [2] => 400 мм [3] => 500 мм [4] => 600 мм ) [days] => [29,31,35,37,44] [material_price] => [4298,5573,6356,7288,9119] [work_price] => [4538,5251,5926,6733,7195] [image] => https://akademik-stroy.ru/wp-content/uploads/materials/gazosilikatnyj-blok.jpg [area_modifier] => 125.57 [parent_name] => Стены 1 этаж (несущие) [parent_id] => 3 [material_sum] => 680022 [work_sum] => 598328 [total_sum] => 1278350 [total_days] => 29 [display_material_sum] => 680 022 [display_work_sum] => 598 328 [display_total_sum] => 1 278 350 ) 1
1 278 350
Работа:598 328
Материалы:680 022
Дни:29
stdClass Object ( [id] => 178 [attribute_id] => 3 [name] => Керамзитобетонный блок [material_modifier] => 1 [work_modifier] => 1 [options] => Array ( [0] => 300 мм [1] => 375 мм [2] => 400 мм [3] => 500 мм [4] => 600 мм ) [days] => [23,23,24,25,28] [material_price] => [3641,4298,5693,7613,9612] [work_price] => [5737,5737,6903,7958,8901] [image] => https://akademik-stroy.ru/wp-content/uploads/materials/keramzitobetonnyj-blok.jpg [area_modifier] => 125.57 [parent_name] => Стены 1 этаж (несущие) [parent_id] => 3 [material_sum] => 576072 [work_sum] => 756415 [total_sum] => 1332487 [total_days] => 23 [display_material_sum] => 576 072 [display_work_sum] => 756 415 [display_total_sum] => 1 332 487 ) 1
1 332 487
Работа:756 415
Материалы:576 072
Дни:23
stdClass Object ( [id] => 179 [attribute_id] => 3 [name] => Деревянные [material_modifier] => 1 [work_modifier] => 1 [options] => Array ( [0] => 180 мм [1] => 220 мм [2] => 260 мм [3] => 320 мм ) [days] => [7,8,9,10] [material_price] => [7950,9458,11961,14472] [work_price] => [4037,4925,5812,7207] [image] => https://akademik-stroy.ru/wp-content/uploads/materials/derevyannye.jpg [area_modifier] => 125.57 [parent_name] => Стены 1 этаж (несущие) [parent_id] => 3 [material_sum] => 1257835 [work_sum] => 532272 [total_sum] => 1790107 [total_days] => 7 [display_material_sum] => 1 257 835 [display_work_sum] => 532 272 [display_total_sum] => 1 790 107 ) 1
1 790 107
Работа:532 272
Материалы:1 257 835
Дни:7
stdClass Object ( [id] => 181 [attribute_id] => 3 [name] => Камень [material_modifier] => 1 [work_modifier] => 1 [options] => Array ( [0] => 300 мм [1] => 400 мм [2] => 500 мм [3] => 600 мм ) [days] => [25,27,31,34] [material_price] => [5262,6844,8330,9815] [work_price] => [8331,9135,10427,11069] [image] => https://akademik-stroy.ru/wp-content/uploads/materials/kamen.jpg [area_modifier] => 125.57 [parent_name] => Стены 1 этаж (несущие) [parent_id] => 3 [material_sum] => 832544 [work_sum] => 1098430 [total_sum] => 1930974 [total_days] => 25 [display_material_sum] => 832 544 [display_work_sum] => 1 098 430 [display_total_sum] => 1 930 974 ) 1
1 930 974
Работа:1 098 430
Материалы:832 544
Дни:25
stdClass Object ( [id] => 182 [attribute_id] => 3 [name] => Каркасно-щитовые [material_modifier] => 1 [work_modifier] => 1 [options] => Array ( [0] => 150 мм [1] => 200 мм [2] => 250 мм [3] => 300 мм [4] => 350 мм [5] => 400 мм ) [days] => [15,16,17,18,19,20] [material_price] => [2379,2639,2898,3458,3601,4175] [work_price] => [2538,2820,3134,3483,4062,5642] [image] => https://akademik-stroy.ru/wp-content/uploads/materials/karkasno-shchitovye.jpg [area_modifier] => 125.57 [parent_name] => Стены 1 этаж (несущие) [parent_id] => 3 [material_sum] => 376401 [work_sum] => 334631 [total_sum] => 711032 [total_days] => 15 [display_material_sum] => 376 401 [display_work_sum] => 334 631 [display_total_sum] => 711 032 ) 1
711 032
Работа:334 631
Материалы:376 401
Дни:15
stdClass Object ( [id] => 183 [attribute_id] => 3 [name] => Рубленные [material_modifier] => 1 [work_modifier] => 1 [options] => Array ( [0] => 150 мм [1] => 200 мм [2] => 250 мм [3] => 300 мм [4] => 350 мм [5] => 400 мм ) [days] => [15,16,17,18,17,18] [material_price] => [35950,50267,60583,75900,80217,100533] [work_price] => [9612,12816,16020,19224,22428,25632] [image] => https://akademik-stroy.ru/wp-content/uploads/materials/rublennye.jpg [area_modifier] => 125.57 [parent_name] => Стены 1 этаж (несущие) [parent_id] => 3 [material_sum] => 5687944 [work_sum] => 1267328 [total_sum] => 6955272 [total_days] => 15 [display_material_sum] => 5 687 944 [display_work_sum] => 1 267 328 [display_total_sum] => 6 955 272 ) 1
6 955 272
Работа:1 267 328
Материалы:5 687 944
Дни:15
stdClass Object ( [id] => 185 [attribute_id] => 3 [name] => Теплоблок [material_modifier] => 1 [work_modifier] => 1 [options] => Array ( [0] => 300 мм (с облицовкой, не покрашенный) [1] => 400 мм (с облицовкой, не покрашенный) [2] => 300 мм (с облицовкой, покрашенный) [3] => 400 мм (с облицовкой, покрашенный) ) [days] => [15,16,15,16] [material_price] => [2888,3729,3957,4258] [work_price] => [2564,3229,2949,3713] [image] => https://akademik-stroy.ru/wp-content/uploads/materials/teploblok.jpg [area_modifier] => 125.57 [parent_name] => Стены 1 этаж (несущие) [parent_id] => 3 [material_sum] => 456934 [work_sum] => 338060 [total_sum] => 794994 [total_days] => 15 [display_material_sum] => 456 934 [display_work_sum] => 338 060 [display_total_sum] => 794 994 ) 1
794 994
Работа:338 060
Материалы:456 934
Дни:15
stdClass Object ( [id] => 186 [attribute_id] => 3 [name] => Арболитовые блоки [material_modifier] => 1 [work_modifier] => 1 [options] => Array ( [0] => 300 мм [1] => 400 мм [2] => 600 мм ) [days] => [19,22,27] [material_price] => [3210,4475,5852] [work_price] => [4214,4788,5866] [image] => https://akademik-stroy.ru/wp-content/uploads/materials/arbolitovye-bloki.png [area_modifier] => 125.57 [parent_name] => Стены 1 этаж (несущие) [parent_id] => 3 [material_sum] => 507880 [work_sum] => 555610 [total_sum] => 1063490 [total_days] => 19 [display_material_sum] => 507 880 [display_work_sum] => 555 610 [display_total_sum] => 1 063 490 ) 1
1 063 490
Работа:555 610
Материалы:507 880
Дни:19
stdClass Object ( [id] => 187 [attribute_id] => 3 [name] => Полистиролбетон [material_modifier] => 1 [work_modifier] => 1 [options] => Array ( [0] => 300 мм [1] => 400 мм [2] => 600 мм ) [days] => [29,31,35] [material_price] => [2798,4573,5256] [work_price] => [5038,5851,6426] [image] => https://akademik-stroy.ru/wp-content/uploads/materials/polistirolbeton.jpg [area_modifier] => 125.57 [parent_name] => Стены 1 этаж (несущие) [parent_id] => 3 [material_sum] => 442695 [work_sum] => 664253 [total_sum] => 1106948 [total_days] => 29 [display_material_sum] => 442 695 [display_work_sum] => 664 253 [display_total_sum] => 1 106 948 ) 1
1 106 948
Работа:664 253
Материалы:442 695
Дни:29
stdClass Object ( [id] => 188 [attribute_id] => 3 [name] => Шлакоблок [material_modifier] => 1 [work_modifier] => 1 [options] => Array ( [0] => 400 мм [1] => 600 мм ) [days] => [15,16] [material_price] => [2391,3471] [work_price] => [2642,3662] [image] => https://akademik-stroy.ru/wp-content/uploads/materials/shlakoblok.jpg [area_modifier] => 125.57 [parent_name] => Стены 1 этаж (несущие) [parent_id] => 3 [material_sum] => 378300 [work_sum] => 348344 [total_sum] => 726644 [total_days] => 15 [display_material_sum] => 378 300 [display_work_sum] => 348 344 [display_total_sum] => 726 644 ) 1
726 644
Работа:348 344
Материалы:378 300
Дни:15
stdClass Object ( [id] => 189 [attribute_id] => 3 [name] => Теплая керамика [material_modifier] => 1 [work_modifier] => 1 [options] => Array ( [0] => 380 мм [1] => 380 мм Thermo [2] => 440 мм [3] => 510 мм ) [days] => [23,23,24,25] [material_price] => [4510,5098,6093,8013] [work_price] => [4737,4937,5903,6958] [image] => https://akademik-stroy.ru/wp-content/uploads/materials/teplaya-keramika.jpg [area_modifier] => 125.57 [parent_name] => Стены 1 этаж (несущие) [parent_id] => 3 [material_sum] => 713564 [work_sum] => 624566 [total_sum] => 1338130 [total_days] => 23 [display_material_sum] => 713 564 [display_work_sum] => 624 566 [display_total_sum] => 1 338 130 ) 1
1 338 130
Работа:624 566
Материалы:713 564
Дни:23
stdClass Object ( [id] => 190 [attribute_id] => 3 [name] => Несъемная опалубка [material_modifier] => 1 [work_modifier] => 1 [options] => Array ( [0] => 200 мм [1] => 250 мм [2] => 300 мм [3] => 350 мм ) [days] => [15,17,19,21] [material_price] => [3302,3902,4108,5008] [work_price] => [2100,2100,2300,2534] [image] => https://akademik-stroy.ru/wp-content/uploads/materials/nesemnaya-opalubka.jpg [area_modifier] => 125.57 [parent_name] => Стены 1 этаж (несущие) [parent_id] => 3 [material_sum] => 522436 [work_sum] => 276882 [total_sum] => 799318 [total_days] => 15 [display_material_sum] => 522 436 [display_work_sum] => 276 882 [display_total_sum] => 799 318 ) 1
799 318
Работа:276 882
Материалы:522 436
Дни:15
stdClass Object ( [id] => 251 [attribute_id] => 3 [name] => Бревно [material_modifier] => 1 [work_modifier] => 1 [options] => Array ( [0] => 260 мм [1] => 320 мм [2] => 360 мм [3] => 400 мм [4] => 500 мм ) [days] => [7,8,9,10,11] [material_price] => [1874,24045,26930,30972,38825] [work_price] => [5046,6207,6952,7716,9723] [image] => https://akademik-stroy.ru/wp-content/uploads/materials/sruby.jpg [area_modifier] => 125.57 [parent_name] => Стены 1 этаж (несущие) [parent_id] => 3 [material_sum] => 296501 [work_sum] => 665308 [total_sum] => 961809 [total_days] => 7 [display_material_sum] => 296 501 [display_work_sum] => 665 308 [display_total_sum] => 961 809 ) 1
961 809
Работа:665 308
Материалы:296 501
Дни:7
Перекрытие первого этажа
stdClass Object ( [id] => 7 [attribute_id] => 4 [name] => Деревянные балки [material_modifier] => 1 [work_modifier] => 1 [options] => Array ( [0] => без утепления [1] => утепление 200 мм [2] => утепление 250 мм [3] => утепление 300 мм [4] => утепление 350 мм [5] => утепление 400 мм [6] => утепление 450 мм [7] => утепление 500 мм ) [days] => [8,9,9,9,11,12,13,14] [material_price] => [1634,2042,2344,2947,3149,3652,3354,3557] [work_price] => [1230,1339,1393,1426,1460,1513,1587,1620] [image] => https://akademik-stroy.ru/wp-content/uploads/materials/derevyannye-balki.png [area_modifier] => 125.57 [parent_name] => Перекрытие первого этажа [parent_id] => 4 [material_sum] => 258529 [work_sum] => 162174 [total_sum] => 420703 [total_days] => 8 [display_material_sum] => 258 529 [display_work_sum] => 162 174 [display_total_sum] => 420 703 ) 1
420 703
Работа:162 174
Материалы:258 529
Дни:8
stdClass Object ( [id] => 8 [attribute_id] => 4 [name] => Сборные ж/б плиты [material_modifier] => 1 [work_modifier] => 1 [options] => Array ( [0] => без утепления [1] => утепление 150 мм [2] => утепление 200 мм [3] => утепление 250 мм [4] => утепление 300 мм [5] => утепление 350 мм [6] => утепление 400 мм [7] => утепление 450 мм [8] => утепление 500 мм ) [days] => [13,15,15,15,15,15,15,15,15] [material_price] => [3067,5577,5928,6679,7730,8782,9833,10884,11935] [work_price] => [1520,1956,2102,2247,2392,2537,2684,2829,2974] [image] => https://akademik-stroy.ru/wp-content/uploads/materials/sbornye-zh-b-plity-2.jpg [area_modifier] => 125.57 [parent_name] => Перекрытие первого этажа [parent_id] => 4 [material_sum] => 485255 [work_sum] => 200410 [total_sum] => 685665 [total_days] => 13 [display_material_sum] => 485 255 [display_work_sum] => 200 410 [display_total_sum] => 685 665 ) 1
685 665
Работа:200 410
Материалы:485 255
Дни:13
stdClass Object ( [id] => 89 [attribute_id] => 4 [name] => Монолитная ж/б плита [material_modifier] => 1 [work_modifier] => 1 [options] => Array ( [0] => без утепления [1] => утепление 150 мм [2] => утепление 200 мм [3] => утепление 250 мм [4] => утепление 300 мм [5] => утепление 350 мм [6] => утепление 400 мм [7] => утепление 450 мм [8] => утепление 500 мм ) [days] => [18,20,20,20,20,20,20,20,20] [material_price] => [4837,6572,7224,7375,79426,8177,8728,9180,10031] [work_price] => [3348,3921,4112,4302,4493,4684,4875,5066,5256] [image] => https://akademik-stroy.ru/wp-content/uploads/materials/monolitnaya-zh-b-plita-2.jpg [area_modifier] => 125.57 [parent_name] => Перекрытие первого этажа [parent_id] => 4 [material_sum] => 765301 [work_sum] => 441429 [total_sum] => 1206730 [total_days] => 18 [display_material_sum] => 765 301 [display_work_sum] => 441 429 [display_total_sum] => 1 206 730 ) 1
1 206 730
Работа:441 429
Материалы:765 301
Дни:18
Стены 2 этаж (несущие)
stdClass Object ( [id] => 10 [attribute_id] => 5 [name] => Пеноблок [material_modifier] => 1 [work_modifier] => 1 [options] => Array ( [0] => 300 мм [1] => 400 мм [2] => 500 мм [3] => 600 мм ) [days] => [29,31,34,39] [material_price] => [3000,4000,4500,4937] [work_price] => [5033,5805,6400,8710] [image] => https://akademik-stroy.ru/wp-content/uploads/materials/penoblok.jpg [area_modifier] => 102.9 [parent_name] => Стены 2 этаж (несущие) [parent_id] => 5 [material_sum] => 388962 [work_sum] => 543790 [total_sum] => 932752 [total_days] => 29 [display_material_sum] => 388 962 [display_work_sum] => 543 790 [display_total_sum] => 932 752 ) 1
932 752
Работа:543 790
Материалы:388 962
Дни:29
stdClass Object ( [id] => 90 [attribute_id] => 5 [name] => Керамический блок [material_modifier] => 1 [work_modifier] => 1 [options] => Array ( [0] => 380 мм [1] => 380 мм Thermo [2] => 440 мм [3] => 510 мм ) [days] => [23,23,24,25] [material_price] => [4510,5098,6093,8013] [work_price] => [4737,4937,5903,6958] [image] => https://akademik-stroy.ru/wp-content/uploads/materials/keramicheskij-blok.jpg [area_modifier] => 102.9 [parent_name] => Стены 2 этаж (несущие) [parent_id] => 5 [material_sum] => 584740 [work_sum] => 511809 [total_sum] => 1096549 [total_days] => 23 [display_material_sum] => 584 740 [display_work_sum] => 511 809 [display_total_sum] => 1 096 549 ) 1
1 096 549
Работа:511 809
Материалы:584 740
Дни:23
stdClass Object ( [id] => 91 [attribute_id] => 5 [name] => Кирпич [material_modifier] => 1 [work_modifier] => 1 [options] => Array ( [0] => Кирпич 250 мм [1] => Кирпич 380 мм [2] => Кирпич 510 мм [3] => Кирпич 640 мм [4] => Кирпич 770 мм ) [days] => [30,30,31,33,36] [material_price] => [5500,7142,9206,10171,12235] [work_price] => [8736,10041,12018,15240,18462] [image] => https://akademik-stroy.ru/wp-content/uploads/materials/kirpich.jpg [area_modifier] => 102.9 [parent_name] => Стены 2 этаж (несущие) [parent_id] => 5 [material_sum] => 713097 [work_sum] => 943881 [total_sum] => 1656978 [total_days] => 30 [display_material_sum] => 713 097 [display_work_sum] => 943 881 [display_total_sum] => 1 656 978 ) 1
1 656 978
Работа:943 881
Материалы:713 097
Дни:30
stdClass Object ( [id] => 92 [attribute_id] => 5 [name] => Монолитные [material_modifier] => 1 [work_modifier] => 1 [options] => Array ( [0] => 150 мм [1] => 200 мм [2] => 250 мм [3] => 300 мм [4] => 350 мм [5] => 400 мм ) [days] => [45,46,47,49,50,53] [material_price] => [6545,7876,10175,12011,13908,15204] [work_price] => [5106,6444,7698,8552,9807,11461] [image] => https://akademik-stroy.ru/wp-content/uploads/materials/monolitnye.jpg [area_modifier] => 102.9 [parent_name] => Стены 2 этаж (несущие) [parent_id] => 5 [material_sum] => 848585 [work_sum] => 551678 [total_sum] => 1400263 [total_days] => 45 [display_material_sum] => 848 585 [display_work_sum] => 551 678 [display_total_sum] => 1 400 263 ) 1
1 400 263
Работа:551 678
Материалы:848 585
Дни:45
stdClass Object ( [id] => 93 [attribute_id] => 5 [name] => Клееный брус [material_modifier] => 1 [work_modifier] => 1 [options] => Array ( [0] => 160 мм [1] => 175 мм [2] => 200 мм [3] => 215 мм [4] => 240 мм [5] => 270 мм [6] => 282 мм ) [days] => [24,28,32,37,40,42,48] [material_price] => [16975,18773,19950,20545,21599,22159,23275] [work_price] => [4806,5287,5815,6397,7036,7740,8514] [image] => https://akademik-stroy.ru/wp-content/uploads/materials/kleenyj-brus.jpg [area_modifier] => 102.9 [parent_name] => Стены 2 этаж (несущие) [parent_id] => 5 [material_sum] => 2200877 [work_sum] => 519264 [total_sum] => 2720141 [total_days] => 24 [display_material_sum] => 2 200 877 [display_work_sum] => 519 264 [display_total_sum] => 2 720 141 ) 1
2 720 141
Работа:519 264
Материалы:2 200 877
Дни:24
stdClass Object ( [id] => 94 [attribute_id] => 5 [name] => Каркасные [material_modifier] => 1 [work_modifier] => 1 [options] => Array ( [0] => 150 мм [1] => 200 мм [2] => 250 мм [3] => 300 мм ) [days] => [15,16,17,18] [material_price] => [2379,2639,2898,3258] [work_price] => [2418,2686,2985,3716] [image] => https://akademik-stroy.ru/wp-content/uploads/materials/karkasnye.jpg [area_modifier] => 102.9 [parent_name] => Стены 2 этаж (несущие) [parent_id] => 5 [material_sum] => 308447 [work_sum] => 261253 [total_sum] => 569700 [total_days] => 15 [display_material_sum] => 308 447 [display_work_sum] => 261 253 [display_total_sum] => 569 700 ) 1
569 700
Работа:261 253
Материалы:308 447
Дни:15
stdClass Object ( [id] => 95 [attribute_id] => 5 [name] => СИП-панели [material_modifier] => 1 [work_modifier] => 1 [options] => Array ( [0] => 120 мм [1] => 170 мм [2] => 220 мм ) [days] => [7,7,7] [material_price] => [1210,1856,2292] [work_price] => [1410,1551,1706] [image] => https://akademik-stroy.ru/wp-content/uploads/materials/sip-paneli.jpg [area_modifier] => 102.9 [parent_name] => Стены 2 этаж (несущие) [parent_id] => 5 [material_sum] => 156881 [work_sum] => 152343 [total_sum] => 309224 [total_days] => 7 [display_material_sum] => 156 881 [display_work_sum] => 152 343 [display_total_sum] => 309 224 ) 1
309 224
Работа:152 343
Материалы:156 881
Дни:7
stdClass Object ( [id] => 96 [attribute_id] => 5 [name] => Сухой брус [material_modifier] => 1 [work_modifier] => 1 [options] => Array ( [0] => 150 мм [1] => 180 мм [2] => 200 мм ) [days] => [7,8,9] [material_price] => [6010,7190,8709] [work_price] => [3204,3845,4229] [image] => https://akademik-stroy.ru/wp-content/uploads/materials/suhoj-brus.jpg [area_modifier] => 102.9 [parent_name] => Стены 2 этаж (несущие) [parent_id] => 5 [material_sum] => 779221 [work_sum] => 346176 [total_sum] => 1125397 [total_days] => 7 [display_material_sum] => 779 221 [display_work_sum] => 346 176 [display_total_sum] => 1 125 397 ) 1
1 125 397
Работа:346 176
Материалы:779 221
Дни:7
stdClass Object ( [id] => 97 [attribute_id] => 5 [name] => Профилированный брус [material_modifier] => 1 [work_modifier] => 1 [options] => Array ( [0] => 150 мм [1] => 180 мм [2] => 200 мм ) [days] => [7,8,9] [material_price] => [8190,9228,10051] [work_price] => [3845,4614,5075] [image] => https://akademik-stroy.ru/wp-content/uploads/materials/profilirovannyj-brus.jpg [area_modifier] => 102.9 [parent_name] => Стены 2 этаж (несущие) [parent_id] => 5 [material_sum] => 1061866 [work_sum] => 415433 [total_sum] => 1477299 [total_days] => 7 [display_material_sum] => 1 061 866 [display_work_sum] => 415 433 [display_total_sum] => 1 477 299 ) 1
1 477 299
Работа:415 433
Материалы:1 061 866
Дни:7
stdClass Object ( [id] => 98 [attribute_id] => 5 [name] => Оцилиндрованное бревно [material_modifier] => 1 [work_modifier] => 1 [options] => Array ( [0] => 180 мм [1] => 220 мм [2] => 260 мм [3] => 320 мм ) [days] => [7,8,9,10] [material_price] => [75190,9532,10868,13116] [work_price] => [3845,4691,5535,6863] [image] => https://akademik-stroy.ru/wp-content/uploads/materials/ocilindrovannoe-brevno-1.jpg [area_modifier] => 102.9 [parent_name] => Стены 2 этаж (несущие) [parent_id] => 5 [material_sum] => 9748684 [work_sum] => 415433 [total_sum] => 10164117 [total_days] => 7 [display_material_sum] => 9 748 684 [display_work_sum] => 415 433 [display_total_sum] => 10 164 117 ) 1
10 164 117
Работа:415 433
Материалы:9 748 684
Дни:7
stdClass Object ( [id] => 99 [attribute_id] => 5 [name] => Срубы [material_modifier] => 1 [work_modifier] => 1 [options] => Array ( [0] => 260 мм [1] => 320 мм [2] => 360 мм [3] => 400 мм [4] => 500 мм ) [days] => [7,8,9,10,11] [material_price] => [16175,23709,26314,29069,32167] [work_price] => [4806,5911,6621,7349,9260] [image] => https://akademik-stroy.ru/wp-content/uploads/materials/suhoj-brus.jpg [area_modifier] => 102.9 [parent_name] => Стены 2 этаж (несущие) [parent_id] => 5 [material_sum] => 2097153 [work_sum] => 519264 [total_sum] => 2616417 [total_days] => 7 [display_material_sum] => 2 097 153 [display_work_sum] => 519 264 [display_total_sum] => 2 616 417 ) 1
2 616 417
Работа:519 264
Материалы:2 097 153
Дни:7
stdClass Object ( [id] => 194 [attribute_id] => 5 [name] => Брус [material_modifier] => 1 [work_modifier] => 1 [options] => Array ( [0] => 150 мм [1] => 180 мм [2] => 200 мм ) [days] => [10,13,15] [material_price] => [5127,6152,7367] [work_price] => [1602,1922,2115] [image] => https://akademik-stroy.ru/wp-content/uploads/materials/brus.jpg [area_modifier] => 102.9 [parent_name] => Стены 2 этаж (несущие) [parent_id] => 5 [material_sum] => 664736 [work_sum] => 173088 [total_sum] => 837824 [total_days] => 10 [display_material_sum] => 664 736 [display_work_sum] => 173 088 [display_total_sum] => 837 824 ) 1
837 824
Работа:173 088
Материалы:664 736
Дни:10
stdClass Object ( [id] => 195 [attribute_id] => 5 [name] => Газобетон [material_modifier] => 1 [work_modifier] => 1 [options] => Array ( [0] => 300 мм [1] => 375 мм [2] => 400 мм [3] => 500 мм [4] => 600 мм ) [days] => [29,31,35,37,44] [material_price] => [4298,5573,6356,7288,9119] [work_price] => [4538,5251,5926,6733,7195] [image] => https://akademik-stroy.ru/wp-content/uploads/materials/gazobeton.jpg [area_modifier] => 102.9 [parent_name] => Стены 2 этаж (несущие) [parent_id] => 5 [material_sum] => 557253 [work_sum] => 490308 [total_sum] => 1047561 [total_days] => 29 [display_material_sum] => 557 253 [display_work_sum] => 490 308 [display_total_sum] => 1 047 561 ) 1
1 047 561
Работа:490 308
Материалы:557 253
Дни:29
stdClass Object ( [id] => 196 [attribute_id] => 5 [name] => Блок [material_modifier] => 1 [work_modifier] => 1 [options] => Array ( [0] => 300 мм [1] => 375 мм [2] => 400 мм [3] => 500 мм [4] => 600 мм ) [days] => [29,31,35,37,44] [material_price] => [2698,3973,4356,6588,7119] [work_price] => [5038,5851,6426,8733,9195] [image] => https://akademik-stroy.ru/wp-content/uploads/materials/blok.jpg [area_modifier] => 102.9 [parent_name] => Стены 2 этаж (несущие) [parent_id] => 5 [material_sum] => 349806 [work_sum] => 544331 [total_sum] => 894137 [total_days] => 29 [display_material_sum] => 349 806 [display_work_sum] => 544 331 [display_total_sum] => 894 137 ) 1
894 137
Работа:544 331
Материалы:349 806
Дни:29
stdClass Object ( [id] => 197 [attribute_id] => 5 [name] => Газосиликатный блок [material_modifier] => 1 [work_modifier] => 1 [options] => Array ( [0] => 300 мм [1] => 375 мм [2] => 400 мм [3] => 500 мм [4] => 600 мм ) [days] => [29,31,35,37,44] [material_price] => [4298,5573,6356,7288,9119] [work_price] => [4538,5251,5926,6733,7195] [image] => https://akademik-stroy.ru/wp-content/uploads/materials/gazosilikatnyj-blok.jpg [area_modifier] => 102.9 [parent_name] => Стены 2 этаж (несущие) [parent_id] => 5 [material_sum] => 557253 [work_sum] => 490308 [total_sum] => 1047561 [total_days] => 29 [display_material_sum] => 557 253 [display_work_sum] => 490 308 [display_total_sum] => 1 047 561 ) 1
1 047 561
Работа:490 308
Материалы:557 253
Дни:29
stdClass Object ( [id] => 198 [attribute_id] => 5 [name] => Керамзитобетонный блок [material_modifier] => 1 [work_modifier] => 1 [options] => Array ( [0] => 300 мм [1] => 375 мм [2] => 400 мм [3] => 500 мм [4] => 600 мм ) [days] => [23,23,24,25,28] [material_price] => [3641,4298,5693,7613,9612] [work_price] => [5737,5737,6903,7958,8901] [image] => https://akademik-stroy.ru/wp-content/uploads/materials/keramzitobetonnyj-blok.jpg [area_modifier] => 102.9 [parent_name] => Стены 2 этаж (несущие) [parent_id] => 5 [material_sum] => 472070 [work_sum] => 619854 [total_sum] => 1091924 [total_days] => 23 [display_material_sum] => 472 070 [display_work_sum] => 619 854 [display_total_sum] => 1 091 924 ) 1
1 091 924
Работа:619 854
Материалы:472 070
Дни:23
stdClass Object ( [id] => 199 [attribute_id] => 5 [name] => Деревянные [material_modifier] => 1 [work_modifier] => 1 [options] => Array ( [0] => 180 мм [1] => 220 мм [2] => 260 мм [3] => 320 мм ) [days] => [7,8,9,10] [material_price] => [7950,9458,11961,14472] [work_price] => [4037,4925,5812,7207] [image] => https://akademik-stroy.ru/wp-content/uploads/materials/derevyannye.jpg [area_modifier] => 102.9 [parent_name] => Стены 2 этаж (несущие) [parent_id] => 5 [material_sum] => 1030749 [work_sum] => 436178 [total_sum] => 1466927 [total_days] => 7 [display_material_sum] => 1 030 749 [display_work_sum] => 436 178 [display_total_sum] => 1 466 927 ) 1
1 466 927
Работа:436 178
Материалы:1 030 749
Дни:7
stdClass Object ( [id] => 200 [attribute_id] => 5 [name] => Камень [material_modifier] => 1 [work_modifier] => 1 [options] => Array ( [0] => 300 мм [1] => 400 мм [2] => 500 мм [3] => 600 мм ) [days] => [25,27,31,34] [material_price] => [5262,6844,8330,9815] [work_price] => [8331,9135,10427,11069] [image] => https://akademik-stroy.ru/wp-content/uploads/materials/kamen.jpg [area_modifier] => 102.9 [parent_name] => Стены 2 этаж (несущие) [parent_id] => 5 [material_sum] => 682239 [work_sum] => 900123 [total_sum] => 1582362 [total_days] => 25 [display_material_sum] => 682 239 [display_work_sum] => 900 123 [display_total_sum] => 1 582 362 ) 1
1 582 362
Работа:900 123
Материалы:682 239
Дни:25
stdClass Object ( [id] => 201 [attribute_id] => 5 [name] => Каркасно-щитовые [material_modifier] => 1 [work_modifier] => 1 [options] => Array ( [0] => 150 мм [1] => 200 мм [2] => 250 мм [3] => 300 мм [4] => 350 мм [5] => 400 мм ) [days] => [15,16,17,18,19,20] [material_price] => [2379,2639,2898,3458,3601,4175] [work_price] => [2538,2820,3134,3483,4062,5642] [image] => https://akademik-stroy.ru/wp-content/uploads/materials/karkasno-shchitovye.jpg [area_modifier] => 102.9 [parent_name] => Стены 2 этаж (несущие) [parent_id] => 5 [material_sum] => 308447 [work_sum] => 274218 [total_sum] => 582665 [total_days] => 15 [display_material_sum] => 308 447 [display_work_sum] => 274 218 [display_total_sum] => 582 665 ) 1
582 665
Работа:274 218
Материалы:308 447
Дни:15
stdClass Object ( [id] => 202 [attribute_id] => 5 [name] => Рубленные [material_modifier] => 1 [work_modifier] => 1 [options] => Array ( [0] => 150 мм [1] => 200 мм [2] => 250 мм [3] => 300 мм [4] => 350 мм [5] => 400 мм ) [days] => [15,16,17,18,17,18] [material_price] => [35950,50267,60583,75900,80217,100533] [work_price] => [9612,12816,16020,19224,22428,25632] [image] => https://akademik-stroy.ru/wp-content/uploads/materials/rublennye.jpg [area_modifier] => 102.9 [parent_name] => Стены 2 этаж (несущие) [parent_id] => 5 [material_sum] => 4661061 [work_sum] => 1038529 [total_sum] => 5699590 [total_days] => 15 [display_material_sum] => 4 661 061 [display_work_sum] => 1 038 529 [display_total_sum] => 5 699 590 ) 1
5 699 590
Работа:1 038 529
Материалы:4 661 061
Дни:15
stdClass Object ( [id] => 203 [attribute_id] => 5 [name] => Теплоблок [material_modifier] => 1 [work_modifier] => 1 [options] => Array ( [0] => 300 мм (с облицовкой, не покрашенный) [1] => 400 мм (с облицовкой, не покрашенный) [2] => 300 мм (с облицовкой, покрашенный) [3] => 400 мм (с облицовкой, покрашенный) ) [days] => [15,16,15,16] [material_price] => [2888,3729,3957,4258] [work_price] => [2564,3229,2949,3713] [image] => https://akademik-stroy.ru/wp-content/uploads/materials/teploblok.jpg [area_modifier] => 102.9 [parent_name] => Стены 2 этаж (несущие) [parent_id] => 5 [material_sum] => 374441 [work_sum] => 277027 [total_sum] => 651468 [total_days] => 15 [display_material_sum] => 374 441 [display_work_sum] => 277 027 [display_total_sum] => 651 468 ) 1
651 468
Работа:277 027
Материалы:374 441
Дни:15
stdClass Object ( [id] => 204 [attribute_id] => 5 [name] => Арболитовые блоки [material_modifier] => 1 [work_modifier] => 1 [options] => Array ( [0] => 300 мм [1] => 400 мм [2] => 600 мм ) [days] => [19,22,27] [material_price] => [3210,4475,5852] [work_price] => [4214,4788,5866] [image] => https://akademik-stroy.ru/wp-content/uploads/materials/arbolitovye-bloki.png [area_modifier] => 102.9 [parent_name] => Стены 2 этаж (несущие) [parent_id] => 5 [material_sum] => 416189 [work_sum] => 455302 [total_sum] => 871491 [total_days] => 19 [display_material_sum] => 416 189 [display_work_sum] => 455 302 [display_total_sum] => 871 491 ) 1
871 491
Работа:455 302
Материалы:416 189
Дни:19
stdClass Object ( [id] => 205 [attribute_id] => 5 [name] => Полистиролбетон [material_modifier] => 1 [work_modifier] => 1 [options] => Array ( [0] => 300 мм [1] => 400 мм [2] => 600 мм ) [days] => [29,31,35] [material_price] => [2798,4573,5256] [work_price] => [5038,5851,6426] [image] => https://akademik-stroy.ru/wp-content/uploads/materials/polistirolbeton.jpg [area_modifier] => 102.9 [parent_name] => Стены 2 этаж (несущие) [parent_id] => 5 [material_sum] => 362772 [work_sum] => 544331 [total_sum] => 907103 [total_days] => 29 [display_material_sum] => 362 772 [display_work_sum] => 544 331 [display_total_sum] => 907 103 ) 1
907 103
Работа:544 331
Материалы:362 772
Дни:29
stdClass Object ( [id] => 206 [attribute_id] => 5 [name] => Шлакоблок [material_modifier] => 1 [work_modifier] => 1 [options] => Array ( [0] => 400 мм [1] => 600 мм ) [days] => [15,16] [material_price] => [2391,3471] [work_price] => [2642,3662] [image] => https://akademik-stroy.ru/wp-content/uploads/materials/shlakoblok.jpg [area_modifier] => 102.9 [parent_name] => Стены 2 этаж (несущие) [parent_id] => 5 [material_sum] => 310003 [work_sum] => 285455 [total_sum] => 595458 [total_days] => 15 [display_material_sum] => 310 003 [display_work_sum] => 285 455 [display_total_sum] => 595 458 ) 1
595 458
Работа:285 455
Материалы:310 003
Дни:15
stdClass Object ( [id] => 245 [attribute_id] => 5 [name] => Теплая керамика [material_modifier] => 1 [work_modifier] => 1 [options] => Array ( [0] => 380 мм [1] => 380 мм Thermo [2] => 440 мм [3] => 510 мм ) [days] => [10,10,11,12] [material_price] => [4510,5098,6093,8013] [work_price] => [4737,4937,5903,6958] [image] => https://akademik-stroy.ru/wp-content/uploads/materials/teplaya-keramika.jpg [area_modifier] => 102.9 [parent_name] => Стены 2 этаж (несущие) [parent_id] => 5 [material_sum] => 584740 [work_sum] => 511809 [total_sum] => 1096549 [total_days] => 10 [display_material_sum] => 584 740 [display_work_sum] => 511 809 [display_total_sum] => 1 096 549 ) 1
1 096 549
Работа:511 809
Материалы:584 740
Дни:10
stdClass Object ( [id] => 246 [attribute_id] => 5 [name] => Несъемная опалубка [material_modifier] => 1 [work_modifier] => 1 [options] => Array ( [0] => 380 мм [1] => 380 мм Thermo [2] => 440 мм [3] => 510 мм ) [days] => [10,10,11,12] [material_price] => [3302,3902,4108,5008] [work_price] => [2100,2100,2300,2534] [image] => https://akademik-stroy.ru/wp-content/uploads/materials/nesemnaya-opalubka.jpg [area_modifier] => 102.9 [parent_name] => Стены 2 этаж (несущие) [parent_id] => 5 [material_sum] => 428118 [work_sum] => 226895 [total_sum] => 655013 [total_days] => 10 [display_material_sum] => 428 118 [display_work_sum] => 226 895 [display_total_sum] => 655 013 ) 1
655 013
Работа:226 895
Материалы:428 118
Дни:10
stdClass Object ( [id] => 254 [attribute_id] => 5 [name] => Бревно [material_modifier] => 1 [work_modifier] => 1 [options] => Array ( [0] => 260 мм [1] => 320 мм [2] => 360 мм [3] => 400 мм [4] => 500 мм ) [days] => [7,8,9,10,11] [material_price] => [1874,24045,26930,30972,38825] [work_price] => [5046,6207,6952,7716,9723] [image] => https://akademik-stroy.ru/wp-content/uploads/materials/sruby.jpg [area_modifier] => 102.9 [parent_name] => Стены 2 этаж (несущие) [parent_id] => 5 [material_sum] => 242972 [work_sum] => 545195 [total_sum] => 788167 [total_days] => 7 [display_material_sum] => 242 972 [display_work_sum] => 545 195 [display_total_sum] => 788 167 ) 1
788 167
Работа:545 195
Материалы:242 972
Дни:7
Крыша (Скатная)
stdClass Object ( [id] => 164 [attribute_id] => 37 [name] => Металлочерепица [material_modifier] => 1 [work_modifier] => 1 [options] => Array ( ) [days] => [20] [material_price] => [6112] [work_price] => [5726] [image] => https://akademik-stroy.ru/wp-content/uploads/materials/metallocherepica.jpg [area_modifier] => 125.57 [parent_name] => Крыша (Скатная) [parent_id] => 37 [material_sum] => 967030 [work_sum] => 754965 [total_sum] => 1721995 [total_days] => 20 [display_material_sum] => 967 030 [display_work_sum] => 754 965 [display_total_sum] => 1 721 995 ) 1
1 721 995
Работа:754 965
Материалы:967 030
Дни:20
stdClass Object ( [id] => 165 [attribute_id] => 37 [name] => Гибкая черепица [material_modifier] => 1 [work_modifier] => 1 [options] => Array ( ) [days] => [20] [material_price] => [6980] [work_price] => [5950] [image] => https://akademik-stroy.ru/wp-content/uploads/materials/gibkaya-cherepica.jpg [area_modifier] => 125.57 [parent_name] => Крыша (Скатная) [parent_id] => 37 [material_sum] => 1104363 [work_sum] => 784499 [total_sum] => 1888862 [total_days] => 20 [display_material_sum] => 1 104 363 [display_work_sum] => 784 499 [display_total_sum] => 1 888 862 ) 1
1 888 862
Работа:784 499
Материалы:1 104 363
Дни:20
stdClass Object ( [id] => 166 [attribute_id] => 37 [name] => Цементно-песчаная черепица [material_modifier] => 1 [work_modifier] => 1 [options] => Array ( ) [days] => [20] [material_price] => [10560] [work_price] => [9456] [image] => https://akademik-stroy.ru/wp-content/uploads/materials/cementno-peschanaya-cherepica.jpg [area_modifier] => 125.57 [parent_name] => Крыша (Скатная) [parent_id] => 37 [material_sum] => 1670784 [work_sum] => 1246759 [total_sum] => 2917543 [total_days] => 20 [display_material_sum] => 1 670 784 [display_work_sum] => 1 246 759 [display_total_sum] => 2 917 543 ) 1
2 917 543
Работа:1 246 759
Материалы:1 670 784
Дни:20
stdClass Object ( [id] => 167 [attribute_id] => 37 [name] => Композитная черепица [material_modifier] => 1 [work_modifier] => 1 [options] => Array ( ) [days] => [20] [material_price] => [9506] [work_price] => [8905] [image] => https://akademik-stroy.ru/wp-content/uploads/materials/kompozitnaya-cherepica.jpg [area_modifier] => 125.57 [parent_name] => Крыша (Скатная) [parent_id] => 37 [material_sum] => 1504022 [work_sum] => 1174111 [total_sum] => 2678133 [total_days] => 20 [display_material_sum] => 1 504 022 [display_work_sum] => 1 174 111 [display_total_sum] => 2 678 133 ) 1
2 678 133
Работа:1 174 111
Материалы:1 504 022
Дни:20
stdClass Object ( [id] => 168 [attribute_id] => 37 [name] => Керамическая черепица [material_modifier] => 1 [work_modifier] => 1 [options] => Array ( ) [days] => [20] [material_price] => [12750] [work_price] => [9456] [image] => https://akademik-stroy.ru/wp-content/uploads/materials/keramicheskaya-cherepica.jpg [area_modifier] => 125.57 [parent_name] => Крыша (Скатная) [parent_id] => 37 [material_sum] => 2017282 [work_sum] => 1246759 [total_sum] => 3264041 [total_days] => 20 [display_material_sum] => 2 017 282 [display_work_sum] => 1 246 759 [display_total_sum] => 3 264 041 ) 1
3 264 041
Работа:1 246 759
Материалы:2 017 282
Дни:20
stdClass Object ( [id] => 169 [attribute_id] => 37 [name] => Металлическая фальцевая [material_modifier] => 1 [work_modifier] => 1 [options] => Array ( ) [days] => [20] [material_price] => [8550] [work_price] => [8190] [image] => https://akademik-stroy.ru/wp-content/uploads/materials/metallicheskaya-falcevaya.jpg [area_modifier] => 125.57 [parent_name] => Крыша (Скатная) [parent_id] => 37 [material_sum] => 1352766 [work_sum] => 1079839 [total_sum] => 2432605 [total_days] => 20 [display_material_sum] => 1 352 766 [display_work_sum] => 1 079 839 [display_total_sum] => 2 432 605 ) 1
2 432 605
Работа:1 079 839
Материалы:1 352 766
Дни:20
stdClass Object ( [id] => 170 [attribute_id] => 37 [name] => Медная фальцевая [material_modifier] => 1 [work_modifier] => 1 [options] => Array ( ) [days] => [20] [material_price] => [20450] [work_price] => [16750] [image] => https://akademik-stroy.ru/wp-content/uploads/materials/mednaya-falcevaya.jpg [area_modifier] => 125.57 [parent_name] => Крыша (Скатная) [parent_id] => 37 [material_sum] => 3235562 [work_sum] => 2208462 [total_sum] => 5444024 [total_days] => 20 [display_material_sum] => 3 235 562 [display_work_sum] => 2 208 462 [display_total_sum] => 5 444 024 ) 1
5 444 024
Работа:2 208 462
Материалы:3 235 562
Дни:20
stdClass Object ( [id] => 171 [attribute_id] => 37 [name] => Зеленая кровля [material_modifier] => 1 [work_modifier] => 1 [options] => Array ( ) [days] => [20] [material_price] => [19850] [work_price] => [16780] [image] => https://akademik-stroy.ru/wp-content/uploads/materials/zelenaya-krovlya.jpg [area_modifier] => 125.57 [parent_name] => Крыша (Скатная) [parent_id] => 37 [material_sum] => 3140631 [work_sum] => 2212418 [total_sum] => 5353049 [total_days] => 20 [display_material_sum] => 3 140 631 [display_work_sum] => 2 212 418 [display_total_sum] => 5 353 049 ) 1
5 353 049
Работа:2 212 418
Материалы:3 140 631
Дни:20
stdClass Object ( [id] => 172 [attribute_id] => 37 [name] => Профлист [material_modifier] => 1 [work_modifier] => 1 [options] => Array ( ) [days] => [20] [material_price] => [3450] [work_price] => [3750] [image] => https://akademik-stroy.ru/wp-content/uploads/materials/proflist.jpg [area_modifier] => 125.57 [parent_name] => Крыша (Скатная) [parent_id] => 37 [material_sum] => 545853 [work_sum] => 494432 [total_sum] => 1040285 [total_days] => 20 [display_material_sum] => 545 853 [display_work_sum] => 494 432 [display_total_sum] => 1 040 285 ) 1
1 040 285
Работа:494 432
Материалы:545 853
Дни:20
Окна
stdClass Object ( [id] => 51 [attribute_id] => 26 [name] => Есть [material_modifier] => 1 [work_modifier] => 1 [options] => Array ( [0] => Профиль 58 мм, 3-камерный, стеклопакет 2-камерный до 32 мм [1] => Профиль 60 мм, 4-камерный, стеклопакет 2-камерный до 32 мм [2] => Профиль 70 мм, 5-камерный, стеклопакет 2-камерный до 40 мм [3] => Профиль 72 мм, 5-камерный, стеклопакет 2-камерный до 40 мм [4] => Алюминиевые окна Alutech профиль 72 мм, стеклопакет 2-камерный ) [days] => [3,3,3,3,3] [material_price] => [1339,2124,2867,3023,29596] [work_price] => [635,647,659,668,2579] [image] => https://akademik-stroy.ru/wp-content/uploads/materials/okna.jpg [area_modifier] => 185.4 [parent_name] => Окна [parent_id] => 26 [material_sum] => 312796 [work_sum] => 123615 [total_sum] => 436411 [total_days] => 3 [display_material_sum] => 312 796 [display_work_sum] => 123 615 [display_total_sum] => 436 411 ) 1
436 411
Работа:123 615
Материалы:312 796
Дни:3
stdClass Object ( [id] => 52 [attribute_id] => 26 [name] => Нет [material_modifier] => 2 [work_modifier] => 1 [options] => [days] => null [material_price] => null [work_price] => null [image] => https://akademik-stroy.ru/wp-content/uploads/materials/okna.jpg [area_modifier] => 185.4 [parent_name] => Окна [parent_id] => 26 [material_sum] => 0 [work_sum] => 0 [total_sum] => 0 [total_days] => 0 [display_material_sum] => 0 [display_work_sum] => 0 [display_total_sum] => 0 ) 1
0
Работа:0
Материалы:0
Дни:0
Двери входные
stdClass Object ( [id] => 53 [attribute_id] => 27 [name] => Есть [material_modifier] => 1 [work_modifier] => 1 [options] => Array ( ) [days] => [1] [material_price] => [10000] [work_price] => [5500] [image] => https://akademik-stroy.ru/wp-content/uploads/materials/dveri.jpg [area_modifier] => 1 [parent_name] => Двери входные [parent_id] => 27 [material_sum] => 12600 [work_sum] => 5775 [total_sum] => 18375 [total_days] => 1 [display_material_sum] => 12 600 [display_work_sum] => 5 775 [display_total_sum] => 18 375 ) 1
18 375
Работа:5 775
Материалы:12 600
Дни:1
stdClass Object ( [id] => 54 [attribute_id] => 27 [name] => Нет [material_modifier] => 1 [work_modifier] => 1 [options] => Array ( ) [days] => [0] [material_price] => [0] [work_price] => [0] [image] => https://akademik-stroy.ru/wp-content/uploads/materials/dveri.jpg [area_modifier] => 1 [parent_name] => Двери входные [parent_id] => 27 [material_sum] => 0 [work_sum] => 0 [total_sum] => 0 [total_days] => 0 [display_material_sum] => 0 [display_work_sum] => 0 [display_total_sum] => 0 ) 1
0
Работа:0
Материалы:0
Дни:0
Утепление кровли (Мансарда)
stdClass Object ( [id] => 25 [attribute_id] => 13 [name] => Нет [material_modifier] => 1 [work_modifier] => 1 [options] => Array ( ) [days] => [0] [material_price] => [0] [work_price] => [0] [image] => https://akademik-stroy.ru/wp-content/uploads/materials/mineralovata-krov.jpg [area_modifier] => 125.57 [parent_name] => Утепление кровли (Мансарда) [parent_id] => 13 [material_sum] => 0 [work_sum] => 0 [total_sum] => 0 [total_days] => 0 [display_material_sum] => 0 [display_work_sum] => 0 [display_total_sum] => 0 ) 1
0
Работа:0
Материалы:0
Дни:0
stdClass Object ( [id] => 26 [attribute_id] => 13 [name] => Минераловатный [material_modifier] => 1 [work_modifier] => 1 [options] => Array ( [0] => 50 мм [1] => 100 мм [2] => 150 мм [3] => 200 мм [4] => 250 мм [5] => 300 мм [6] => 350 мм [7] => 400 мм [8] => 450 мм [9] => 500 мм ) [days] => [5,5,6,6,6,7,7,7,8,8] [material_price] => [1158,1414,1772,2230,3602,4060,4974,5890,6408,7718] [work_price] => [650,846,846,1098,1318,1450,1596,1754,1930,2122] [image] => https://akademik-stroy.ru/wp-content/uploads/materials/mineralovata-krov.jpg [area_modifier] => 125.57 [parent_name] => Утепление кровли (Мансарда) [parent_id] => 13 [material_sum] => 183217 [work_sum] => 85702 [total_sum] => 268919 [total_days] => 5 [display_material_sum] => 183 217 [display_work_sum] => 85 702 [display_total_sum] => 268 919 ) 1
268 919
Работа:85 702
Материалы:183 217
Дни:5
stdClass Object ( [id] => 123 [attribute_id] => 13 [name] => Эковата (целлюлозная вата) [material_modifier] => 1 [work_modifier] => 1 [options] => Array ( [0] => 50 мм [1] => 100 мм [2] => 150 мм [3] => 200 мм [4] => 250 мм [5] => 300 мм [6] => 350 мм [7] => 400 мм [8] => 450 мм [9] => 500 мм ) [days] => [3,3,4,4,4,5,5,5,5,5] [material_price] => [820,1638,2458,3276,5734,6552,8190,9828,11466,13104] [work_price] => [234,304,304,396,474,522,574,632,694,764] [image] => https://akademik-stroy.ru/wp-content/uploads/materials/ehkovata-krov.jpg [area_modifier] => 125.57 [parent_name] => Утепление кровли (Мансарда) [parent_id] => 13 [material_sum] => 129739 [work_sum] => 30853 [total_sum] => 160592 [total_days] => 3 [display_material_sum] => 129 739 [display_work_sum] => 30 853 [display_total_sum] => 160 592 ) 1
160 592
Работа:30 853
Материалы:129 739
Дни:3
stdClass Object ( [id] => 124 [attribute_id] => 13 [name] => Экструдированный пенополистирол [material_modifier] => 1 [work_modifier] => 1 [options] => Array ( [0] => 50 мм [1] => 100 мм [2] => 150 мм [3] => 200 мм [4] => 250 мм [5] => 300 мм [6] => 350 мм [7] => 400 мм [8] => 450 мм [9] => 500 мм ) [days] => [3,3,4,4,4,5,5,5,5,6] [material_price] => [1146,2292,3438,4584,8020,9166,11458,13750,16040,18332] [work_price] => [390,508,508,660,790,870,958,1052,1158,1274] [image] => https://akademik-stroy.ru/wp-content/uploads/materials/epps-krov.jpg [area_modifier] => 125.57 [parent_name] => Утепление кровли (Мансарда) [parent_id] => 13 [material_sum] => 181318 [work_sum] => 51421 [total_sum] => 232739 [total_days] => 3 [display_material_sum] => 181 318 [display_work_sum] => 51 421 [display_total_sum] => 232 739 ) 1
232 739
Работа:51 421
Материалы:181 318
Дни:3
stdClass Object ( [id] => 125 [attribute_id] => 13 [name] => ПСБ (ППС-пенополистирол) [material_modifier] => 1 [work_modifier] => 1 [options] => Array ( [0] => 50 мм [1] => 100 мм [2] => 150 мм [3] => 200 мм [4] => 250 мм [5] => 300 мм [6] => 350 мм [7] => 400 мм [8] => 450 мм [9] => 500 мм ) [days] => [3,3,4,4,4,5,5,5,5,6] [material_price] => [476,954,1430,1906,3336,3814,4766,5720,6674,7626] [work_price] => [390,508,508,660,790,870,958,1052,1158,1274] [image] => https://akademik-stroy.ru/wp-content/uploads/materials/psb-krov.jpg [area_modifier] => 125.57 [parent_name] => Утепление кровли (Мансарда) [parent_id] => 13 [material_sum] => 75312 [work_sum] => 51421 [total_sum] => 126733 [total_days] => 3 [display_material_sum] => 75 312 [display_work_sum] => 51 421 [display_total_sum] => 126 733 ) 1
126 733
Работа:51 421
Материалы:75 312
Дни:3
stdClass Object ( [id] => 126 [attribute_id] => 13 [name] => ППУ (Пенополиуретан) [material_modifier] => 1 [work_modifier] => 1 [options] => Array ( [0] => 50 мм [1] => 100 мм [2] => 150 мм [3] => 200 мм [4] => 250 мм [5] => 300 мм [6] => 350 мм [7] => 400 мм [8] => 450 мм [9] => 500 мм ) [days] => [2,2,3,3,3,3,4,4,4,4] [material_price] => [2080,4160,6240,8320,14560,16640,20800,24960,29120,33280] [work_price] => [234,304,304,396,474,522,574,632,694,764] [image] => https://akademik-stroy.ru/wp-content/uploads/materials/ppu-krov.jpg [area_modifier] => 125.57 [parent_name] => Утепление кровли (Мансарда) [parent_id] => 13 [material_sum] => 329094 [work_sum] => 30853 [total_sum] => 359947 [total_days] => 2 [display_material_sum] => 329 094 [display_work_sum] => 30 853 [display_total_sum] => 359 947 ) 1
359 947
Работа:30 853
Материалы:329 094
Дни:2
stdClass Object ( [id] => 127 [attribute_id] => 13 [name] => PIR-плиты (пенополиизоцианурат) [material_modifier] => 1 [work_modifier] => 1 [options] => Array ( [0] => 50 мм [1] => 100 мм [2] => 150 мм [3] => 200 мм [4] => 250 мм [5] => 300 мм [6] => 350 мм [7] => 400 мм [8] => 450 мм [9] => 500 мм ) [days] => [3,3,4,4,4,5,5,5,5,6] [material_price] => [2646,5290,7936,10580,18516,21162,26452,31742,37032,42324] [work_price] => [390,508,508,660,790,870,958,1052,1158,1274] [image] => https://akademik-stroy.ru/wp-content/uploads/materials/pir-krov.jpg [area_modifier] => 125.57 [parent_name] => Утепление кровли (Мансарда) [parent_id] => 13 [material_sum] => 418645 [work_sum] => 51421 [total_sum] => 470066 [total_days] => 3 [display_material_sum] => 418 645 [display_work_sum] => 51 421 [display_total_sum] => 470 066 ) 1
470 066
Работа:51 421
Материалы:418 645
Дни:3
Мансардные окна
stdClass Object ( [id] => 27 [attribute_id] => 14 [name] => Нет [material_modifier] => 1 [work_modifier] => 1 [options] => Array ( ) [days] => [0] [material_price] => [0] [work_price] => [0] [image] => https://akademik-stroy.ru/wp-content/uploads/materials/mansardnye-okna-2.jpg [area_modifier] => 1 [parent_name] => Мансардные окна [parent_id] => 14 [material_sum] => 0 [work_sum] => 0 [total_sum] => 0 [total_days] => 0 [display_material_sum] => 0 [display_work_sum] => 0 [display_total_sum] => 0 ) 1
0
Работа:0
Материалы:0
Дни:0
stdClass Object ( [id] => 28 [attribute_id] => 14 [name] => Есть [material_modifier] => 1 [work_modifier] => 1 [options] => Array ( [0] => 55x78 [1] => 55x98 ) [days] => [6,7] [material_price] => [47480,68700] [work_price] => [17900,19500] [image] => https://akademik-stroy.ru/wp-content/uploads/materials/mansardnye-okna-2.jpg [area_modifier] => 1 [parent_name] => Мансардные окна [parent_id] => 14 [material_sum] => 59825 [work_sum] => 18795 [total_sum] => 78620 [total_days] => 6 [display_material_sum] => 59 825 [display_work_sum] => 18 795 [display_total_sum] => 78 620 ) 1
78 620
Работа:18 795
Материалы:59 825
Дни:6
Подшивка кровли
stdClass Object ( [id] => 29 [attribute_id] => 15 [name] => Нет [material_modifier] => 1 [work_modifier] => 1 [options] => Array ( ) [days] => [0] [material_price] => [0] [work_price] => [0] [image] => https://akademik-stroy.ru/wp-content/uploads/materials/sofit.jpg [area_modifier] => 125.57 [parent_name] => Подшивка кровли [parent_id] => 15 [material_sum] => 0 [work_sum] => 0 [total_sum] => 0 [total_days] => 0 [display_material_sum] => 0 [display_work_sum] => 0 [display_total_sum] => 0 ) 1
0
Работа:0
Материалы:0
Дни:0
stdClass Object ( [id] => 30 [attribute_id] => 15 [name] => Есть [material_modifier] => 1 [work_modifier] => 1 [options] => Array ( [0] => Софиты (ПВХ) [1] => Cedral [2] => ДПК [3] => Планкен ) [days] => [7,10,9,8] [material_price] => [1803,3213,3025,3150] [work_price] => [1529,2188,2075,1923] [image] => https://akademik-stroy.ru/wp-content/uploads/materials/sofit.jpg [area_modifier] => 125.57 [parent_name] => Подшивка кровли [parent_id] => 15 [material_sum] => 285267 [work_sum] => 201596 [total_sum] => 486863 [total_days] => 7 [display_material_sum] => 285 267 [display_work_sum] => 201 596 [display_total_sum] => 486 863 ) 1
486 863
Работа:201 596
Материалы:285 267
Дни:7
Водосточная система
stdClass Object ( [id] => 31 [attribute_id] => 16 [name] => Нет [material_modifier] => 1 [work_modifier] => 1 [options] => Array ( ) [days] => [0] [material_price] => [0] [work_price] => [0] [image] => https://akademik-stroy.ru/wp-content/uploads/materials/docke-standard-pvh.jpg [area_modifier] => 125.57 [parent_name] => Водосточная система [parent_id] => 16 [material_sum] => 0 [work_sum] => 0 [total_sum] => 0 [total_days] => 0 [display_material_sum] => 0 [display_work_sum] => 0 [display_total_sum] => 0 ) 1
0
Работа:0
Материалы:0
Дни:0
stdClass Object ( [id] => 32 [attribute_id] => 16 [name] => Есть [material_modifier] => 1 [work_modifier] => 1 [options] => Array ( [0] => Döcke Standard (ПВХ) [1] => Металлические Grand Line ) [days] => [7,7] [material_price] => [1842,2703] [work_price] => [1491,1529] [image] => https://akademik-stroy.ru/wp-content/uploads/materials/docke-standard-pvh.jpg [area_modifier] => 125.57 [parent_name] => Водосточная система [parent_id] => 16 [material_sum] => 291438 [work_sum] => 196586 [total_sum] => 488024 [total_days] => 7 [display_material_sum] => 291 438 [display_work_sum] => 196 586 [display_total_sum] => 488 024 ) 1
488 024
Работа:196 586
Материалы:291 438
Дни:7
Дополнительное утепление наружных стен
stdClass Object ( [id] => 33 [attribute_id] => 17 [name] => Нет [material_modifier] => 1 [work_modifier] => 1 [options] => Array ( ) [days] => [0] [material_price] => [0] [work_price] => [0] [image] => https://akademik-stroy.ru/wp-content/uploads/materials/mineralovata.jpg [area_modifier] => 228.47 [parent_name] => Дополнительное утепление наружных стен [parent_id] => 17 [material_sum] => 0 [work_sum] => 0 [total_sum] => 0 [total_days] => 0 [display_material_sum] => 0 [display_work_sum] => 0 [display_total_sum] => 0 ) 1
0
Работа:0
Материалы:0
Дни:0
stdClass Object ( [id] => 34 [attribute_id] => 17 [name] => Минераловатный [material_modifier] => 1 [work_modifier] => 1 [options] => Array ( [0] => 50 мм [1] => 100 мм [2] => 150 мм [3] => 200 мм [4] => 250 мм [5] => 300 мм ) [days] => [7,8,10,12,14,15] [material_price] => [3437,3613,3803,3915,4601,4830] [work_price] => [2325,2423,2523,2749,2859,3025] [image] => https://akademik-stroy.ru/wp-content/uploads/materials/mineralovata.jpg [area_modifier] => 228.47 [parent_name] => Дополнительное утепление наружных стен [parent_id] => 17 [material_sum] => 989417 [work_sum] => 557752 [total_sum] => 1547169 [total_days] => 7 [display_material_sum] => 989 417 [display_work_sum] => 557 752 [display_total_sum] => 1 547 169 ) 1
1 547 169
Работа:557 752
Материалы:989 417
Дни:7
stdClass Object ( [id] => 128 [attribute_id] => 17 [name] => Эковата (целлюлозная вата) [material_modifier] => 1 [work_modifier] => 1 [options] => Array ( [0] => 50 мм [1] => 100 мм [2] => 150 мм [3] => 200 мм [4] => 250 мм [5] => 300 мм ) [days] => [3,4,5,6,7,8] [material_price] => [810,1319,1629,1838,2267,2676] [work_price] => [1225,1323,1423,1549,1659,1725] [image] => https://akademik-stroy.ru/wp-content/uploads/materials/ehkovata.jpg [area_modifier] => 228.47 [parent_name] => Дополнительное утепление наружных стен [parent_id] => 17 [material_sum] => 233176 [work_sum] => 293870 [total_sum] => 527046 [total_days] => 3 [display_material_sum] => 233 176 [display_work_sum] => 293 870 [display_total_sum] => 527 046 ) 1
527 046
Работа:293 870
Материалы:233 176
Дни:3
stdClass Object ( [id] => 129 [attribute_id] => 17 [name] => Экструдированный пенополистирол [material_modifier] => 1 [work_modifier] => 1 [options] => Array ( [0] => 50 мм [1] => 100 мм [2] => 150 мм [3] => 200 мм [4] => 250 мм [5] => 300 мм ) [days] => [5,6,7,8,9,10] [material_price] => [4560,4300,5119,6292,7010,8583] [work_price] => [1795,1954,2254,2330,2595,2735] [image] => https://akademik-stroy.ru/wp-content/uploads/materials/epps.jpg [area_modifier] => 228.47 [parent_name] => Дополнительное утепление наружных стен [parent_id] => 17 [material_sum] => 1312697 [work_sum] => 430609 [total_sum] => 1743306 [total_days] => 5 [display_material_sum] => 1 312 697 [display_work_sum] => 430 609 [display_total_sum] => 1 743 306 ) 1
1 743 306
Работа:430 609
Материалы:1 312 697
Дни:5
stdClass Object ( [id] => 130 [attribute_id] => 17 [name] => ПСБ (ППС-пенополистирол) [material_modifier] => 1 [work_modifier] => 1 [options] => Array ( [0] => 50 мм [1] => 100 мм [2] => 150 мм [3] => 200 мм [4] => 250 мм [5] => 300 мм ) [days] => [5,6,7,8,9,10] [material_price] => [4822,5200,5819,6292,7010,7583] [work_price] => [1795,1954,2254,2330,2595,2735] [image] => https://akademik-stroy.ru/wp-content/uploads/materials/psb.jpg [area_modifier] => 228.47 [parent_name] => Дополнительное утепление наружных стен [parent_id] => 17 [material_sum] => 1388120 [work_sum] => 430609 [total_sum] => 1818729 [total_days] => 5 [display_material_sum] => 1 388 120 [display_work_sum] => 430 609 [display_total_sum] => 1 818 729 ) 1
1 818 729
Работа:430 609
Материалы:1 388 120
Дни:5
stdClass Object ( [id] => 131 [attribute_id] => 17 [name] => ППУ (Пенополиуретан) [material_modifier] => 1 [work_modifier] => 1 [options] => Array ( [0] => 50 мм [1] => 100 мм [2] => 150 мм [3] => 200 мм [4] => 250 мм [5] => 300 мм ) [days] => [3,4,5,6,7,8] [material_price] => [2860,3400,4219,4592,5010,5583] [work_price] => [729,900,980,1120,1280,1530] [image] => https://akademik-stroy.ru/wp-content/uploads/materials/ppu.jpg [area_modifier] => 228.47 [parent_name] => Дополнительное утепление наружных стен [parent_id] => 17 [material_sum] => 823314 [work_sum] => 174882 [total_sum] => 998196 [total_days] => 3 [display_material_sum] => 823 314 [display_work_sum] => 174 882 [display_total_sum] => 998 196 ) 1
998 196
Работа:174 882
Материалы:823 314
Дни:3
stdClass Object ( [id] => 132 [attribute_id] => 17 [name] => PIR-плиты (пенополиизоцианурат) [material_modifier] => 1 [work_modifier] => 1 [options] => Array ( [0] => 50 мм [1] => 100 мм [2] => 150 мм [3] => 200 мм [4] => 250 мм [5] => 300 мм ) [days] => [5,6,7,8,9,10] [material_price] => [8323,15645,20968,25900,29258,30581] [work_price] => [800,900,970,1150,1280,1330] [image] => https://akademik-stroy.ru/wp-content/uploads/materials/pir.jpg [area_modifier] => 228.47 [parent_name] => Дополнительное утепление наружных стен [parent_id] => 17 [material_sum] => 2395960 [work_sum] => 191915 [total_sum] => 2587875 [total_days] => 5 [display_material_sum] => 2 395 960 [display_work_sum] => 191 915 [display_total_sum] => 2 587 875 ) 1
2 587 875
Работа:191 915
Материалы:2 395 960
Дни:5
Наружная отделка фасада
stdClass Object ( [id] => 37 [attribute_id] => 19 [name] => Нет [material_modifier] => 1 [work_modifier] => 1 [options] => Array ( ) [days] => [0] [material_price] => [0] [work_price] => [0] [image] => https://akademik-stroy.ru/wp-content/uploads/materials/imitaciya-brusa.jpg [area_modifier] => 228.47 [parent_name] => Наружная отделка фасада [parent_id] => 19 [material_sum] => 0 [work_sum] => 0 [total_sum] => 0 [total_days] => 0 [display_material_sum] => 0 [display_work_sum] => 0 [display_total_sum] => 0 ) 1
0
Работа:0
Материалы:0
Дни:0
stdClass Object ( [id] => 38 [attribute_id] => 19 [name] => Имитация бруса [material_modifier] => 1 [work_modifier] => 1 [options] => Array ( [0] => Сосна [1] => Ель [2] => Лиственница ) [days] => [20,20,20] [material_price] => [2994,2762,4954] [work_price] => [1397,1231,1577] [image] => https://akademik-stroy.ru/wp-content/uploads/materials/imitaciya-brusa.jpg [area_modifier] => 228.47 [parent_name] => Наружная отделка фасада [parent_id] => 19 [material_sum] => 861889 [work_sum] => 335131 [total_sum] => 1197020 [total_days] => 20 [display_material_sum] => 861 889 [display_work_sum] => 335 131 [display_total_sum] => 1 197 020 ) 1
1 197 020
Работа:335 131
Материалы:861 889
Дни:20
stdClass Object ( [id] => 136 [attribute_id] => 19 [name] => Планкен [material_modifier] => 1 [work_modifier] => 1 [options] => Array ( [0] => Сосна [1] => Ель [2] => Лиственница ) [days] => [20,20,20] [material_price] => [3194,2862,5154] [work_price] => [1537,1354,1735] [image] => https://akademik-stroy.ru/wp-content/uploads/materials/planken.jpg [area_modifier] => 228.47 [parent_name] => Наружная отделка фасада [parent_id] => 19 [material_sum] => 919464 [work_sum] => 368716 [total_sum] => 1288180 [total_days] => 20 [display_material_sum] => 919 464 [display_work_sum] => 368 716 [display_total_sum] => 1 288 180 ) 1
1 288 180
Работа:368 716
Материалы:919 464
Дни:20
stdClass Object ( [id] => 137 [attribute_id] => 19 [name] => Штукатурка [material_modifier] => 1 [work_modifier] => 1 [options] => Array ( [0] => Цементно-песчаная (минеральная) [1] => Мокрый фасад ) [days] => [35,35] [material_price] => [2231,3938] [work_price] => [1202,2422] [image] => https://akademik-stroy.ru/wp-content/uploads/materials/shtukaturka.jpg [area_modifier] => 228.47 [parent_name] => Наружная отделка фасада [parent_id] => 19 [material_sum] => 642243 [work_sum] => 288352 [total_sum] => 930595 [total_days] => 35 [display_material_sum] => 642 243 [display_work_sum] => 288 352 [display_total_sum] => 930 595 ) 1
930 595
Работа:288 352
Материалы:642 243
Дни:35
stdClass Object ( [id] => 138 [attribute_id] => 19 [name] => Облицовочный кирпич [material_modifier] => 1 [work_modifier] => 1 [options] => Array ( [0] => Керамический [1] => Клинкерный [2] => Ручной формовки [3] => Гиперпрессованный [4] => Силикатный кирпич ) [days] => [45,45,45,45,45] [material_price] => [8174,9148,1040,1257,5876] [work_price] => [3240,3758,4536,4017,3369] [image] => https://akademik-stroy.ru/wp-content/uploads/materials/oblicovochnyj-kirpich.jpg [area_modifier] => 228.47 [parent_name] => Наружная отделка фасада [parent_id] => 19 [material_sum] => 2353067 [work_sum] => 777255 [total_sum] => 3130322 [total_days] => 45 [display_material_sum] => 2 353 067 [display_work_sum] => 777 255 [display_total_sum] => 3 130 322 ) 1
3 130 322
Работа:777 255
Материалы:2 353 067
Дни:45
stdClass Object ( [id] => 139 [attribute_id] => 19 [name] => Фасадная плитка [material_modifier] => 1 [work_modifier] => 1 [options] => Array ( [0] => Клинкерная [1] => Керамическая [2] => Плитка ручной формовки ) [days] => [40,40,40] [material_price] => [2974,1487,3470] [work_price] => [3007,2592,3629] [image] => https://akademik-stroy.ru/wp-content/uploads/materials/fasadnaya-plitka.jpg [area_modifier] => 228.47 [parent_name] => Наружная отделка фасада [parent_id] => 19 [material_sum] => 856132 [work_sum] => 721360 [total_sum] => 1577492 [total_days] => 40 [display_material_sum] => 856 132 [display_work_sum] => 721 360 [display_total_sum] => 1 577 492 ) 1
1 577 492
Работа:721 360
Материалы:856 132
Дни:40
stdClass Object ( [id] => 140 [attribute_id] => 19 [name] => Сайдинг [material_modifier] => 1 [work_modifier] => 1 [options] => Array ( [0] => Виниловый [1] => Металлический [2] => Фиброцементный ) [days] => [20,20,20] [material_price] => [1263,1944,4147] [work_price] => [1263,1944,2074] [image] => https://akademik-stroy.ru/wp-content/uploads/materials/sajding.jpg [area_modifier] => 228.47 [parent_name] => Наружная отделка фасада [parent_id] => 19 [material_sum] => 363583 [work_sum] => 302985 [total_sum] => 666568 [total_days] => 20 [display_material_sum] => 363 583 [display_work_sum] => 302 985 [display_total_sum] => 666 568 ) 1
666 568
Работа:302 985
Материалы:363 583
Дни:20
stdClass Object ( [id] => 141 [attribute_id] => 19 [name] => Камень [material_modifier] => 1 [work_modifier] => 1 [options] => Array ( [0] => Травертин [1] => Дагестанский [2] => Искусственный [3] => Натуральный [4] => Керамогранит ) [days] => [45,45,45,45,45] [material_price] => [4536,3888,2592,3240,2462] [work_price] => [3240,3240,2462,3110,1944] [image] => https://akademik-stroy.ru/wp-content/uploads/materials/kamen-1.jpg [area_modifier] => 228.47 [parent_name] => Наружная отделка фасада [parent_id] => 19 [material_sum] => 1305788 [work_sum] => 777255 [total_sum] => 2083043 [total_days] => 45 [display_material_sum] => 1 305 788 [display_work_sum] => 777 255 [display_total_sum] => 2 083 043 ) 1
2 083 043
Работа:777 255
Материалы:1 305 788
Дни:45
stdClass Object ( [id] => 142 [attribute_id] => 19 [name] => Термопанели [material_modifier] => 1 [work_modifier] => 1 [options] => Array ( ) [days] => [20] [material_price] => [6221] [work_price] => [2333] [image] => https://akademik-stroy.ru/wp-content/uploads/materials/termo.png [area_modifier] => 228.47 [parent_name] => Наружная отделка фасада [parent_id] => 19 [material_sum] => 1790853 [work_sum] => 559672 [total_sum] => 2350525 [total_days] => 20 [display_material_sum] => 1 790 853 [display_work_sum] => 559 672 [display_total_sum] => 2 350 525 ) 1
2 350 525
Работа:559 672
Материалы:1 790 853
Дни:20
stdClass Object ( [id] => 143 [attribute_id] => 19 [name] => Плитка HAUBERK [material_modifier] => 1 [work_modifier] => 1 [options] => Array ( ) [days] => [20] [material_price] => [2786] [work_price] => [1944] [image] => https://akademik-stroy.ru/wp-content/uploads/materials/hauberk.jpg [area_modifier] => 228.47 [parent_name] => Наружная отделка фасада [parent_id] => 19 [material_sum] => 802012 [work_sum] => 466353 [total_sum] => 1268365 [total_days] => 20 [display_material_sum] => 802 012 [display_work_sum] => 466 353 [display_total_sum] => 1 268 365 ) 1
1 268 365
Работа:466 353
Материалы:802 012
Дни:20
stdClass Object ( [id] => 144 [attribute_id] => 19 [name] => Фальцевый фасад [material_modifier] => 1 [work_modifier] => 1 [options] => Array ( ) [days] => [20] [material_price] => [3240] [work_price] => [2592] [image] => https://akademik-stroy.ru/wp-content/uploads/materials/falcevyj-fasad.jpg [area_modifier] => 228.47 [parent_name] => Наружная отделка фасада [parent_id] => 19 [material_sum] => 932706 [work_sum] => 621804 [total_sum] => 1554510 [total_days] => 20 [display_material_sum] => 932 706 [display_work_sum] => 621 804 [display_total_sum] => 1 554 510 ) 1
1 554 510
Работа:621 804
Материалы:932 706
Дни:20
stdClass Object ( [id] => 145 [attribute_id] => 19 [name] => Комбинированный [material_modifier] => 1 [work_modifier] => 1 [options] => Array ( ) [days] => [20] [material_price] => [4629] [work_price] => [3499] [image] => https://akademik-stroy.ru/wp-content/uploads/materials/Kombinirovannyj.jpg [area_modifier] => 228.47 [parent_name] => Наружная отделка фасада [parent_id] => 19 [material_sum] => 1332560 [work_sum] => 839387 [total_sum] => 2171947 [total_days] => 20 [display_material_sum] => 1 332 560 [display_work_sum] => 839 387 [display_total_sum] => 2 171 947 ) 1
2 171 947
Работа:839 387
Материалы:1 332 560
Дни:20
stdClass Object ( [id] => 257 [attribute_id] => 19 [name] => Японские фиброцементные [material_modifier] => 1 [work_modifier] => 1 [options] => Array ( ) [days] => [20] [material_price] => [7043] [work_price] => [2993] [image] => https://akademik-stroy.ru/wp-content/uploads/materials/paneli.jpg [area_modifier] => 228.47 [parent_name] => Наружная отделка фасада [parent_id] => 19 [material_sum] => 2027484 [work_sum] => 718001 [total_sum] => 2745485 [total_days] => 20 [display_material_sum] => 2 027 484 [display_work_sum] => 718 001 [display_total_sum] => 2 745 485 ) 1
2 745 485
Работа:718 001
Материалы:2 027 484
Дни:20
stdClass Object ( [id] => 258 [attribute_id] => 19 [name] => Панели Каньон [material_modifier] => 1 [work_modifier] => 1 [options] => Array ( ) [days] => [20] [material_price] => [4543] [work_price] => [2592] [image] => https://akademik-stroy.ru/wp-content/uploads/materials/kanon.png [area_modifier] => 228.47 [parent_name] => Наружная отделка фасада [parent_id] => 19 [material_sum] => 1307803 [work_sum] => 621804 [total_sum] => 1929607 [total_days] => 20 [display_material_sum] => 1 307 803 [display_work_sum] => 621 804 [display_total_sum] => 1 929 607 ) 1
1 929 607
Работа:621 804
Материалы:1 307 803
Дни:20
Террасы, крыльца, навесы
stdClass Object ( [id] => 39 [attribute_id] => 20 [name] => Нет [material_modifier] => 1 [work_modifier] => 1 [options] => Array ( ) [days] => [0] [material_price] => [0] [work_price] => [0] [image] => https://akademik-stroy.ru/wp-content/uploads/materials/terrasy.jpg [area_modifier] => 30 [parent_name] => Террасы, крыльца, навесы [parent_id] => 20 [material_sum] => 0 [work_sum] => 0 [total_sum] => 0 [total_days] => 0 [display_material_sum] => 0 [display_work_sum] => 0 [display_total_sum] => 0 ) 1
0
Работа:0
Материалы:0
Дни:0
stdClass Object ( [id] => 40 [attribute_id] => 20 [name] => Есть [material_modifier] => 1 [work_modifier] => 1 [options] => Array ( ) [days] => [5] [material_price] => [10450] [work_price] => [1950] [image] => https://akademik-stroy.ru/wp-content/uploads/materials/terrasy.jpg [area_modifier] => 30 [parent_name] => Террасы, крыльца, навесы [parent_id] => 20 [material_sum] => 395010 [work_sum] => 61425 [total_sum] => 456435 [total_days] => 5 [display_material_sum] => 395 010 [display_work_sum] => 61 425 [display_total_sum] => 456 435 ) 1
456 435
Работа:61 425
Материалы:395 010
Дни:5
Балконы
stdClass Object ( [id] => 41 [attribute_id] => 21 [name] => Нет [material_modifier] => 1 [work_modifier] => 1 [options] => Array ( ) [days] => [0] [material_price] => [0] [work_price] => [0] [image] => https://akademik-stroy.ru/wp-content/uploads/materials/balkony.jpg [area_modifier] => 30 [parent_name] => Балконы [parent_id] => 21 [material_sum] => 0 [work_sum] => 0 [total_sum] => 0 [total_days] => 0 [display_material_sum] => 0 [display_work_sum] => 0 [display_total_sum] => 0 ) 1
0
Работа:0
Материалы:0
Дни:0
stdClass Object ( [id] => 42 [attribute_id] => 21 [name] => Есть [material_modifier] => 1 [work_modifier] => 1 [options] => Array ( ) [days] => [12] [material_price] => [3600] [work_price] => [1950] [image] => https://akademik-stroy.ru/wp-content/uploads/materials/balkony.jpg [area_modifier] => 30 [parent_name] => Балконы [parent_id] => 21 [material_sum] => 136080 [work_sum] => 61425 [total_sum] => 197505 [total_days] => 12 [display_material_sum] => 136 080 [display_work_sum] => 61 425 [display_total_sum] => 197 505 ) 1
197 505
Работа:61 425
Материалы:136 080
Дни:12
Отмостка
stdClass Object ( [id] => 43 [attribute_id] => 22 [name] => Нет [material_modifier] => 1 [work_modifier] => 1 [options] => Array ( ) [days] => [0] [material_price] => [0] [work_price] => [0] [image] => https://akademik-stroy.ru/wp-content/uploads/materials/uteplennaya.jpg [area_modifier] => 125.57 [parent_name] => Отмостка [parent_id] => 22 [material_sum] => 0 [work_sum] => 0 [total_sum] => 0 [total_days] => 0 [display_material_sum] => 0 [display_work_sum] => 0 [display_total_sum] => 0 ) 1
0
Работа:0
Материалы:0
Дни:0
stdClass Object ( [id] => 44 [attribute_id] => 22 [name] => Утепленная отмостка [material_modifier] => 1 [work_modifier] => 1 [options] => Array ( ) [days] => [15] [material_price] => [2550] [work_price] => [1750] [image] => https://akademik-stroy.ru/wp-content/uploads/materials/uteplennaya.jpg [area_modifier] => 125.57 [parent_name] => Отмостка [parent_id] => 22 [material_sum] => 403456 [work_sum] => 230735 [total_sum] => 634191 [total_days] => 15 [display_material_sum] => 403 456 [display_work_sum] => 230 735 [display_total_sum] => 634 191 ) 1
634 191
Работа:230 735
Материалы:403 456
Дни:15
stdClass Object ( [id] => 146 [attribute_id] => 22 [name] => Не утепленная отмостка [material_modifier] => 1 [work_modifier] => 1 [options] => Array ( ) [days] => [10] [material_price] => [1650] [work_price] => [1450] [image] => https://akademik-stroy.ru/wp-content/uploads/materials/ne-uteplennaya.jpg [area_modifier] => 125.57 [parent_name] => Отмостка [parent_id] => 22 [material_sum] => 261060 [work_sum] => 191180 [total_sum] => 452240 [total_days] => 10 [display_material_sum] => 261 060 [display_work_sum] => 191 180 [display_total_sum] => 452 240 ) 1
452 240
Работа:191 180
Материалы:261 060
Дни:10
Дренаж вокруг дома
stdClass Object ( [id] => 45 [attribute_id] => 23 [name] => Нет [material_modifier] => 1 [work_modifier] => 1 [options] => Array ( ) [days] => [0] [material_price] => [0] [work_price] => [0] [image] => https://akademik-stroy.ru/wp-content/uploads/materials/drenazh-2.jpg [area_modifier] => 125.57 [parent_name] => Дренаж вокруг дома [parent_id] => 23 [material_sum] => 0 [work_sum] => 0 [total_sum] => 0 [total_days] => 0 [display_material_sum] => 0 [display_work_sum] => 0 [display_total_sum] => 0 ) 1
0
Работа:0
Материалы:0
Дни:0
stdClass Object ( [id] => 46 [attribute_id] => 23 [name] => Есть [material_modifier] => 1 [work_modifier] => 1 [options] => Array ( ) [days] => [5] [material_price] => [2366] [work_price] => [1911] [image] => https://akademik-stroy.ru/wp-content/uploads/materials/drenazh-2.jpg [area_modifier] => 125.57 [parent_name] => Дренаж вокруг дома [parent_id] => 23 [material_sum] => 374344 [work_sum] => 251962 [total_sum] => 626306 [total_days] => 5 [display_material_sum] => 374 344 [display_work_sum] => 251 962 [display_total_sum] => 626 306 ) 1
626 306
Работа:251 962
Материалы:374 344
Дни:5
Автономная канализация (септики)
stdClass Object ( [id] => 47 [attribute_id] => 24 [name] => Нет [material_modifier] => 1 [work_modifier] => 1 [options] => Array ( ) [days] => [0] [material_price] => [0] [work_price] => [0] [image] => https://akademik-stroy.ru/wp-content/uploads/materials/septik.jpg [area_modifier] => 1 [parent_name] => Автономная канализация (септики) [parent_id] => 24 [material_sum] => 0 [work_sum] => 0 [total_sum] => 0 [total_days] => 0 [display_material_sum] => 0 [display_work_sum] => 0 [display_total_sum] => 0 ) 1
0
Работа:0
Материалы:0
Дни:0
stdClass Object ( [id] => 48 [attribute_id] => 24 [name] => Есть [material_modifier] => 1 [work_modifier] => 1 [options] => Array ( [0] => Для дачи на 4 человека [1] => Для дома на 5 человек [2] => Для дома на 6 человек [3] => Для дома на 7 человек [4] => Для дома на 10 человек ) [days] => [7,7,7,8,8] [material_price] => [196340,220500,240940,264200,293340] [work_price] => [50000,55000,60500,66550,73206] [image] => https://akademik-stroy.ru/wp-content/uploads/materials/septik.jpg [area_modifier] => 1 [parent_name] => Автономная канализация (септики) [parent_id] => 24 [material_sum] => 247388 [work_sum] => 52500 [total_sum] => 299888 [total_days] => 7 [display_material_sum] => 247 388 [display_work_sum] => 52 500 [display_total_sum] => 299 888 ) 1
299 888
Работа:52 500
Материалы:247 388
Дни:7
Внутренние (не несущие) перегородки
stdClass Object ( [id] => 49 [attribute_id] => 25 [name] => Нет [material_modifier] => 1 [work_modifier] => 1 [options] => Array ( ) [days] => [0] [material_price] => [0] [work_price] => [0] [image] => https://akademik-stroy.ru/wp-content/uploads/materials/gkl.jpg [area_modifier] => 228.47 [parent_name] => Внутренние (не несущие) перегородки [parent_id] => 25 [material_sum] => 0 [work_sum] => 0 [total_sum] => 0 [total_days] => 0 [display_material_sum] => 0 [display_work_sum] => 0 [display_total_sum] => 0 ) 1
0
Работа:0
Материалы:0
Дни:0
stdClass Object ( [id] => 147 [attribute_id] => 25 [name] => Каркасно-обшивные [material_modifier] => 1 [work_modifier] => 1 [options] => Array ( [0] => 75 мм (без шумоизоляции) [1] => 75 мм (с шумоизоляцией) ) [days] => [11,11] [material_price] => [580,970] [work_price] => [380,570] [image] => https://akademik-stroy.ru/wp-content/uploads/materials/gkl.jpg [area_modifier] => 228.47 [parent_name] => Внутренние (не несущие) перегородки [parent_id] => 25 [material_sum] => 166966 [work_sum] => 91160 [total_sum] => 258126 [total_days] => 11 [display_material_sum] => 166 966 [display_work_sum] => 91 160 [display_total_sum] => 258 126 ) 1
258 126
Работа:91 160
Материалы:166 966
Дни:11
stdClass Object ( [id] => 148 [attribute_id] => 25 [name] => Пазогребневые [material_modifier] => 1 [work_modifier] => 1 [options] => Array ( [0] => 80 мм [1] => 100 мм ) [days] => [5,5] [material_price] => [1022,1313] [work_price] => [600,700] [image] => https://akademik-stroy.ru/wp-content/uploads/materials/pazogrebnevye-bloki.jpg [area_modifier] => 228.47 [parent_name] => Внутренние (не несущие) перегородки [parent_id] => 25 [material_sum] => 294205 [work_sum] => 143936 [total_sum] => 438141 [total_days] => 5 [display_material_sum] => 294 205 [display_work_sum] => 143 936 [display_total_sum] => 438 141 ) 1
438 141
Работа:143 936
Материалы:294 205
Дни:5
stdClass Object ( [id] => 149 [attribute_id] => 25 [name] => Газобетонные [material_modifier] => 1 [work_modifier] => 1 [options] => Array ( [0] => 100 мм [1] => 200 мм ) [days] => [11,11] [material_price] => [1160,1920] [work_price] => [700,900] [image] => https://akademik-stroy.ru/wp-content/uploads/materials/gazobeton-2.jpg [area_modifier] => 228.47 [parent_name] => Внутренние (не несущие) перегородки [parent_id] => 25 [material_sum] => 333932 [work_sum] => 167925 [total_sum] => 501857 [total_days] => 11 [display_material_sum] => 333 932 [display_work_sum] => 167 925 [display_total_sum] => 501 857 ) 1
501 857
Работа:167 925
Материалы:333 932
Дни:11
stdClass Object ( [id] => 150 [attribute_id] => 25 [name] => Кирпичные [material_modifier] => 1 [work_modifier] => 1 [options] => Array ( [0] => 120 мм [1] => 250 мм [2] => 360 мм ) [days] => [7,7,7] [material_price] => [1785,3570,5355] [work_price] => [900,1600,1800] [image] => https://akademik-stroy.ru/wp-content/uploads/materials/kirpich-1.jpg [area_modifier] => 228.47 [parent_name] => Внутренние (не несущие) перегородки [parent_id] => 25 [material_sum] => 513852 [work_sum] => 215904 [total_sum] => 729756 [total_days] => 7 [display_material_sum] => 513 852 [display_work_sum] => 215 904 [display_total_sum] => 729 756 ) 1
729 756
Работа:215 904
Материалы:513 852
Дни:7
Электрика
stdClass Object ( [id] => 55 [attribute_id] => 28 [name] => Нет [material_modifier] => 1 [work_modifier] => 1 [options] => Array ( ) [days] => [0] [material_price] => [0] [work_price] => [0] [image] => https://akademik-stroy.ru/wp-content/uploads/materials/ehlektrika.jpg [area_modifier] => 185.4 [parent_name] => Электрика [parent_id] => 28 [material_sum] => 0 [work_sum] => 0 [total_sum] => 0 [total_days] => 0 [display_material_sum] => 0 [display_work_sum] => 0 [display_total_sum] => 0 ) 1
0
Работа:0
Материалы:0
Дни:0
stdClass Object ( [id] => 56 [attribute_id] => 28 [name] => Есть [material_modifier] => 1 [work_modifier] => 1 [options] => Array ( ) [days] => [10] [material_price] => [650] [work_price] => [950] [image] => https://akademik-stroy.ru/wp-content/uploads/materials/ehlektrika.jpg [area_modifier] => 185.4 [parent_name] => Электрика [parent_id] => 28 [material_sum] => 151843 [work_sum] => 184937 [total_sum] => 336780 [total_days] => 10 [display_material_sum] => 151 843 [display_work_sum] => 184 937 [display_total_sum] => 336 780 ) 1
336 780
Работа:184 937
Материалы:151 843
Дни:10
Сантехника, канализация в доме
stdClass Object ( [id] => 57 [attribute_id] => 29 [name] => Нет [material_modifier] => 1 [work_modifier] => 1 [options] => Array ( ) [days] => [0] [material_price] => [0] [work_price] => [0] [image] => https://akademik-stroy.ru/wp-content/uploads/materials/santekhnika-kanalizaciya-1.jpg [area_modifier] => 185.4 [parent_name] => Сантехника, канализация в доме [parent_id] => 29 [material_sum] => 0 [work_sum] => 0 [total_sum] => 0 [total_days] => 0 [display_material_sum] => 0 [display_work_sum] => 0 [display_total_sum] => 0 ) 1
0
Работа:0
Материалы:0
Дни:0
stdClass Object ( [id] => 58 [attribute_id] => 29 [name] => Есть [material_modifier] => 1 [work_modifier] => 1 [options] => Array ( ) [days] => [10] [material_price] => [600] [work_price] => [730] [image] => https://akademik-stroy.ru/wp-content/uploads/materials/santekhnika-kanalizaciya-1.jpg [area_modifier] => 185.4 [parent_name] => Сантехника, канализация в доме [parent_id] => 29 [material_sum] => 140162 [work_sum] => 142109 [total_sum] => 282271 [total_days] => 10 [display_material_sum] => 140 162 [display_work_sum] => 142 109 [display_total_sum] => 282 271 ) 1
282 271
Работа:142 109
Материалы:140 162
Дни:10
Отопление
stdClass Object ( [id] => 59 [attribute_id] => 30 [name] => Нет [material_modifier] => 1 [work_modifier] => 1 [options] => Array ( ) [days] => [0] [material_price] => [0] [work_price] => [0] [image] => https://akademik-stroy.ru/wp-content/uploads/materials/otoplenie-1.jpg [area_modifier] => 185.4 [parent_name] => Отопление [parent_id] => 30 [material_sum] => 0 [work_sum] => 0 [total_sum] => 0 [total_days] => 0 [display_material_sum] => 0 [display_work_sum] => 0 [display_total_sum] => 0 ) 1
0
Работа:0
Материалы:0
Дни:0
stdClass Object ( [id] => 60 [attribute_id] => 30 [name] => Есть [material_modifier] => 1 [work_modifier] => 1 [options] => Array ( ) [days] => [5] [material_price] => [610] [work_price] => [560] [image] => https://akademik-stroy.ru/wp-content/uploads/materials/otoplenie-1.jpg [area_modifier] => 185.4 [parent_name] => Отопление [parent_id] => 30 [material_sum] => 142498 [work_sum] => 109015 [total_sum] => 251513 [total_days] => 5 [display_material_sum] => 142 498 [display_work_sum] => 109 015 [display_total_sum] => 251 513 ) 1
251 513
Работа:109 015
Материалы:142 498
Дни:5
Теплые полы
stdClass Object ( [id] => 61 [attribute_id] => 31 [name] => Нет [material_modifier] => 1 [work_modifier] => 1 [options] => Array ( ) [days] => [0] [material_price] => [0] [work_price] => [0] [image] => https://akademik-stroy.ru/wp-content/uploads/materials/vodyanye.jpg [area_modifier] => 30 [parent_name] => Теплые полы [parent_id] => 31 [material_sum] => 0 [work_sum] => 0 [total_sum] => 0 [total_days] => 0 [display_material_sum] => 0 [display_work_sum] => 0 [display_total_sum] => 0 ) 1
0
Работа:0
Материалы:0
Дни:0
stdClass Object ( [id] => 151 [attribute_id] => 31 [name] => Водяные [material_modifier] => 1 [work_modifier] => 1 [options] => Array ( ) [days] => [9] [material_price] => [10200] [work_price] => [2500] [image] => https://akademik-stroy.ru/wp-content/uploads/materials/vodyanye.jpg [area_modifier] => 30 [parent_name] => Теплые полы [parent_id] => 31 [material_sum] => 385560 [work_sum] => 78750 [total_sum] => 464310 [total_days] => 9 [display_material_sum] => 385 560 [display_work_sum] => 78 750 [display_total_sum] => 464 310 ) 1
464 310
Работа:78 750
Материалы:385 560
Дни:9
stdClass Object ( [id] => 152 [attribute_id] => 31 [name] => Электро [material_modifier] => 1 [work_modifier] => 1 [options] => Array ( ) [days] => [5] [material_price] => [6300] [work_price] => [1500] [image] => https://akademik-stroy.ru/wp-content/uploads/materials/ehlektricheskij.jpg [area_modifier] => 30 [parent_name] => Теплые полы [parent_id] => 31 [material_sum] => 238140 [work_sum] => 47250 [total_sum] => 285390 [total_days] => 5 [display_material_sum] => 238 140 [display_work_sum] => 47 250 [display_total_sum] => 285 390 ) 1
285 390
Работа:47 250
Материалы:238 140
Дни:5
Черновая отделка стен
stdClass Object ( [id] => 63 [attribute_id] => 32 [name] => Нет [material_modifier] => 1 [work_modifier] => 1 [options] => Array ( ) [days] => [0] [material_price] => [0] [work_price] => [0] [image] => https://akademik-stroy.ru/wp-content/uploads/materials/shtukaturka-shpatlevka-1.jpg [area_modifier] => 185.4 [parent_name] => Черновая отделка стен [parent_id] => 32 [material_sum] => 0 [work_sum] => 0 [total_sum] => 0 [total_days] => 0 [display_material_sum] => 0 [display_work_sum] => 0 [display_total_sum] => 0 ) 1
0
Работа:0
Материалы:0
Дни:0
stdClass Object ( [id] => 153 [attribute_id] => 32 [name] => Штукатурка и шпатлевка [material_modifier] => 1 [work_modifier] => 1 [options] => Array ( ) [days] => [20] [material_price] => [1850] [work_price] => [2600] [image] => https://akademik-stroy.ru/wp-content/uploads/materials/shtukaturka-shpatlevka-1.jpg [area_modifier] => 185.4 [parent_name] => Черновая отделка стен [parent_id] => 32 [material_sum] => 432167 [work_sum] => 506142 [total_sum] => 938309 [total_days] => 20 [display_material_sum] => 432 167 [display_work_sum] => 506 142 [display_total_sum] => 938 309 ) 1
938 309
Работа:506 142
Материалы:432 167
Дни:20
stdClass Object ( [id] => 154 [attribute_id] => 32 [name] => Гипсокортон на стены [material_modifier] => 1 [work_modifier] => 1 [options] => Array ( ) [days] => [15] [material_price] => [950] [work_price] => [2100] [image] => https://akademik-stroy.ru/wp-content/uploads/materials/gkl-1.jpg [area_modifier] => 185.4 [parent_name] => Черновая отделка стен [parent_id] => 32 [material_sum] => 221924 [work_sum] => 408807 [total_sum] => 630731 [total_days] => 15 [display_material_sum] => 221 924 [display_work_sum] => 408 807 [display_total_sum] => 630 731 ) 1
630 731
Работа:408 807
Материалы:221 924
Дни:15
stdClass Object ( [id] => 155 [attribute_id] => 32 [name] => Вагонка [material_modifier] => 1 [work_modifier] => 1 [options] => Array ( ) [days] => [15] [material_price] => [1250] [work_price] => [950] [image] => https://akademik-stroy.ru/wp-content/uploads/materials/vagonka.jpg [area_modifier] => 185.4 [parent_name] => Черновая отделка стен [parent_id] => 32 [material_sum] => 292005 [work_sum] => 184937 [total_sum] => 476942 [total_days] => 15 [display_material_sum] => 292 005 [display_work_sum] => 184 937 [display_total_sum] => 476 942 ) 1
476 942
Работа:184 937
Материалы:292 005
Дни:15
Черновая отделка полов
stdClass Object ( [id] => 65 [attribute_id] => 33 [name] => Нет [material_modifier] => 1 [work_modifier] => 1 [options] => Array ( ) [days] => [0] [material_price] => [0] [work_price] => [0] [image] => https://akademik-stroy.ru/wp-content/uploads/materials/styazhka.jpg [area_modifier] => 185.4 [parent_name] => Черновая отделка полов [parent_id] => 33 [material_sum] => 0 [work_sum] => 0 [total_sum] => 0 [total_days] => 0 [display_material_sum] => 0 [display_work_sum] => 0 [display_total_sum] => 0 ) 1
0
Работа:0
Материалы:0
Дни:0
stdClass Object ( [id] => 156 [attribute_id] => 33 [name] => Стяжка + наливные полы [material_modifier] => 1 [work_modifier] => 1 [options] => Array ( ) [days] => [10] [material_price] => [1000] [work_price] => [900] [image] => https://akademik-stroy.ru/wp-content/uploads/materials/styazhka.jpg [area_modifier] => 185.4 [parent_name] => Черновая отделка полов [parent_id] => 33 [material_sum] => 233604 [work_sum] => 175203 [total_sum] => 408807 [total_days] => 10 [display_material_sum] => 233 604 [display_work_sum] => 175 203 [display_total_sum] => 408 807 ) 1
408 807
Работа:175 203
Материалы:233 604
Дни:10
stdClass Object ( [id] => 157 [attribute_id] => 33 [name] => ОСБ на пол [material_modifier] => 1 [work_modifier] => 1 [options] => Array ( ) [days] => [7] [material_price] => [580] [work_price] => [350] [image] => https://akademik-stroy.ru/wp-content/uploads/materials/osb-1.jpg [area_modifier] => 185.4 [parent_name] => Черновая отделка полов [parent_id] => 33 [material_sum] => 135490 [work_sum] => 68135 [total_sum] => 203625 [total_days] => 7 [display_material_sum] => 135 490 [display_work_sum] => 68 135 [display_total_sum] => 203 625 ) 1
203 625
Работа:68 135
Материалы:135 490
Дни:7
Чистовая отделка стен и полов
stdClass Object ( [id] => 67 [attribute_id] => 34 [name] => Нет [material_modifier] => 1 [work_modifier] => 1 [options] => Array ( ) [days] => [0] [material_price] => [0] [work_price] => [0] [image] => https://akademik-stroy.ru/wp-content/uploads/materials/chistovaya-otdelka.jpg [area_modifier] => 185.4 [parent_name] => Чистовая отделка стен и полов [parent_id] => 34 [material_sum] => 0 [work_sum] => 0 [total_sum] => 0 [total_days] => 0 [display_material_sum] => 0 [display_work_sum] => 0 [display_total_sum] => 0 ) 1
0
Работа:0
Материалы:0
Дни:0
stdClass Object ( [id] => 68 [attribute_id] => 34 [name] => Есть [material_modifier] => 1 [work_modifier] => 1 [options] => Array ( ) [days] => [50] [material_price] => [6000] [work_price] => [3500] [image] => https://akademik-stroy.ru/wp-content/uploads/materials/chistovaya-otdelka.jpg [area_modifier] => 185.4 [parent_name] => Чистовая отделка стен и полов [parent_id] => 34 [material_sum] => 1401624 [work_sum] => 681345 [total_sum] => 2082969 [total_days] => 50 [display_material_sum] => 1 401 624 [display_work_sum] => 681 345 [display_total_sum] => 2 082 969 ) 1
2 082 969
Работа:681 345
Материалы:1 401 624
Дни:50
Отделка потолка
stdClass Object ( [id] => 69 [attribute_id] => 35 [name] => Нет [material_modifier] => 1 [work_modifier] => 1 [options] => Array ( ) [days] => [0] [material_price] => [0] [work_price] => [0] [image] => https://akademik-stroy.ru/wp-content/uploads/materials/mnogourovnevyj-gkl.jpg [area_modifier] => 185.4 [parent_name] => Отделка потолка [parent_id] => 35 [material_sum] => 0 [work_sum] => 0 [total_sum] => 0 [total_days] => 0 [display_material_sum] => 0 [display_work_sum] => 0 [display_total_sum] => 0 ) 1
0
Работа:0
Материалы:0
Дни:0
stdClass Object ( [id] => 70 [attribute_id] => 35 [name] => Есть [material_modifier] => 1 [work_modifier] => 1 [options] => Array ( [0] => Многоуровневый потолок из гипсокартона [1] => Многоуровневый потолок из гипсокартона и натяжного потолка [2] => Одноуровневый потолок из гипсокартона [3] => Одноуровневый натяжной потолок ) [days] => [10,10,1,1] [material_price] => [900,700,700,600] [work_price] => [1000,800,500,300] [image] => https://akademik-stroy.ru/wp-content/uploads/materials/mnogourovnevyj-gkl.jpg [area_modifier] => 185.4 [parent_name] => Отделка потолка [parent_id] => 35 [material_sum] => 210244 [work_sum] => 194670 [total_sum] => 404914 [total_days] => 10 [display_material_sum] => 210 244 [display_work_sum] => 194 670 [display_total_sum] => 404 914 ) 1
404 914
Работа:194 670
Материалы:210 244
Дни:10

Преимущества работы с нами

icon

7 этапов оплаты

icon

Независимый строительный надзор

icon

Экологически чистые материалы

icon

16 лет гарантии

icon

Онлайн-кабинет с веб-камерой

icon

Строители с опытом более 15 лет

icon

Собственное производство

Планируя дом мечты в Москве: почему стоит обратить внимание на проект двухэтажного дома 17x11 м

Москва — город, где традиции соседствуют с современностью, а каждому хочется иметь собственный уютный уголок вдали от городской суеты. Построить дом – амбициозная задача, особенно, если вы подходите к вопросу с умом и душой. И если вы сейчас находитесь в поисках идеального проекта для семьи, обратите внимание на двухэтажный дом размером 17x11 метров, общей полезной площадью 185,4 м² от компании "Академик Строй". Почему именно этот проект так востребован, как распределить пространство, какие преимущества двухэтажной планировки, и что вы получите, заказав проект в "Академик Строй", — давайте разбираться вместе.

Удобная планировка для семейной жизни

Планировка дома – это не только функциональность, но и эмоции, которые вы будете испытывать, возвращаясь домой день за днем. При проектировании данного дома компания «Академик Строй» уделила особое внимание удобству: полезная площадь 185,4 м² позволяет разместить все необходимое для беззаботной жизни большой семьи. В этом проекте уютно уживаются три просторные спальни, три санузла — это обеспечивает удобство для всех членов семьи, даже когда гости остаются на ночь. Жилая площадь впечатляет — сразу 164,35 м²! Вам не придется жертвовать обеденной зоной ради большой гостиной или искать место для домашнего кабинета — здесь хватает пространства на всё и сразу.

Возможности для каждого члена семьи

Часто мы сталкиваемся с тем, что дети мечтают о собственной комнате, родители хотят уединения вечером, а гостиная должна собирать всю семью за ужином. В этом проекте всё продумано до мелочей, вплоть до размещения камина для уютных зимних вечеров, достойной террасы для летних чаепитий и лёгких посиделок.

Рациональное использование площади и отличное зонирование

Всегда интересно исследовать, как архитекторы умело распределяют пространство дома. Данный проект выгодно отличается тщательно продуманной планировкой и зонированием:
Параметр Значение
Жилая площадь 164,35 м²
Площадь застройки 145,64 м²
Полезная площадь 185,4 м²
Общая площадь 279,35 м²
Объем брутто 742 м³
Площадь крыши 239 м²
Это не просто «двухэтажка» — каждый метр выверен. Ощущается легкость, нет темных или бесполезных коридоров, а сами комнаты пронизаны светом и воздухом. На первом этаже разумно объединены общие помещения — просторная гостиная с камином, кухня-столовая, санузел. На втором — приватное пространство с тремя спальнями и еще двумя санузлами, чтобы каждое утро проходило легко и без суеты.

Особенности участка и формата дома

Часто выбор проекта ограничивается размерами участка. Для двухэтажного дома 17x11 метров потребуется минимум 24,6 м по ширине и 18,85 м по длине. Это не так много для Московской области, и даже на компактном участке можно создать свой оазис гармонии. Дому не требуется гараж, что увеличивает возможности ландшафтного дизайна: ваш двор останется просторным, даже если вы захотите разместить беседку или площадку для детей. К тому же проект отлично подходит для семей, которые предпочитают хранить машину под навесом или вовсе обходятся без личного транспорта.

Преимущества двухэтажного дома 17x11 от "Академик Строй"

Выбор подрядчика — важнейший шаг на пути к дому своей мечты. "Академик Строй" — компания с безупречной репутацией, основательным подходом к деталям и современным видением комфорта. Подчеркну важнейшие преимущества этого проекта:
  • Современные планировочные решения — продуманная структура, много света, роскошная гостиная с камином, просторная кухня-столовая.
  • Три спальни идеальны для семьи из 4-6 человек и позволяют комфортно принимать гостей на ночлег.
  • Три санузла — больше никакой утренней суеты, очередей и компромиссов!
  • Двускатная крыша сложной формы с оптимальным углом наклона 35°, что отлично подходит под капризный столичный климат.
  • Камин и терраса создают атмосферу уюта и бесконечно расширяют возможности для отдыха круглый год.
  • Экономия на эксплуатации — за счет энергоэффективности и продуманной системы отопления и вентиляции.
  • Уверенность в качестве — проект создается инженерами с опытом, все решения адаптированы под московские погодные реалии.
  • Минимальные ограничения по участку — дом впишется даже в относительно скромные для Подмосковья владения.

Почему проект без балконов и гаража — это плюс?

Многие привыкли к мысли, что дом без балконов и гаража — это минус. Но зачем балкон, если вас ждёт просторная, уютная терраса на первом этаже, где можно устраивать летние ужины и праздники? А гараж всё чаще заменяют красивыми навесами или удобными подъездными путями — это и экономичнее, и современнее! Такой подход расширяет ваши возможности по оформлению ландшафта.

Визуальная выразительность: стиль и архитектурные решения

Этот двухэтажный дом — не просто коробка с крышей. Двускатная крыша сложной формы придает зданию индивидуальность, а правильный угол наклона 35° обеспечивает оптимальное стекание осадков и дополнительную высоту внутри помещений. Высота здания — 7,4 м, что добавляет объема, делая интерьер воздушнее, а фасады — выразительнее. При разработке дизайн-проекта можно выбрать любые современные или классические отделочные материалы: декоративную штукатурку, натуральное дерево, облицовочный кирпич. Благодаря крупным окнам комнаты будут залиты дневным светом. Терраса гармонично «встраивается» в архитектуру, а зона камина выступает акцентом гостиной и фасада.

Технические нюансы для выбора проекта

Архитекторы Академик Строй детально просчитали параметры дома:
Параметр Значение
Высота здания 7,40 м
Угол наклона крыши 35°
Площадь крыши 239 м²
Объем брутто 742 м³
Количество этажей 2
Такие параметры обеспечивают удобство не только при эксплуатации, но и при последующем обслуживании дома. Например, правильный уклон крыши препятствует задержке снега и образования наледи зимой, а высокие потолки делают комнаты просторными, что особенно ценно для любителей светлых интерьеров.

Для каких семей и участков подходит дом 17x11 м.

Давайте посмотрим, кому особенно подойдет такой вариант дома. Современный двухэтажный проект оптимален для:
  • Молодых семей с детьми — отдельные спальни обеспечат каждому личное пространство.
  • Семей с пожилыми родственниками — первый этаж можно адаптировать под их нужды, оборудовав одну из комнат как спальню.
  • Любителей уединения — наличие террасы позволяет организовать пространство для отдыха на свежем воздухе, даже встречи с друзьями остаются особенно уютными.
  • Тех, кто ценит комфорт — обилие площадей и помещений решат любые бытовые вопросы.
Размер минимального участка для подобного дома – 24,60 на 18,85 м – подходит для стандартных наделов в Подмосковье.

Что учитывать при выборе участка

Прежде чем окончательно остановиться на этом проекте, важно определиться, соответствует ли ваш участок параметрам дома: по ширине и длине. Не забывайте и о дополнительных зонах — сад, парковка, возможно, небольшая хозяйственная постройка. Хорошо, если часть участка открыта для солнечного света — тогда терраса будет по-настоящему функциональной.

Инженерные коммуникации: предусмотрены до мелочей

Компания «Академик Строй» разрабатывает не только архитектурную, но и инженерную часть: в проект уже заложены места для центральных и автономных систем отопления, водоснабжения, канализации. Благодаря этому вы избежите сложных перепланировок и экономите деньги во время строительства. Проект включает все современные инженерные решения: вентиляцию, систему кондиционирования, разводку электричества, места под бойлер и котел. Всё это облегчает получение разрешения на строительство и ускоряет процесс.

Особенности коммуникаций

  • В здании предусмотрены отдельные санузлы на каждом этаже — это удобно для большой семьи.
  • Свободная планировка первого этажа позволит разместить кухню, столовую и гостиную в одном большом помещении, где камин станет настоящим центром притяжения вечерами.
  • Терраса соединяет дом с природой и может работать как отдельная летняя столовая или лаунж-зона.
Такой подход к проектированию гарантирует, что строительные работы пройдут легко, а жить в таком доме — настоящее удовольствие.

Преимущества сотрудничества с «Академик Строй»

Выбирая проект из каталога компании "Академик Строй", вы получаете больше, чем просто чертеж. Команда экспертов сопровождает вас на каждом этапе: от первичной консультации до сдачи готового объекта. С "Академик Строй" вы можете быть уверены в:
  • Прозрачности ценообразования.
  • Индивидуальной доработке проекта под ваши пожелания.
  • Помощи в подборе строительных материалов и подрядчиков.
  • Гарантированных сроках и качестве исполнения.
Инженеры учтут все детали: особенности грунтов, пожелания по фасаду, современное энергоэффективное остекление, отделочные решения.

Как заказать проект?

Связаться с менеджерами можно по телефону: +7 (980) 800-47-93. Консультанты оперативно отправят примеры готовых проектов, рассчитают стоимость с учетом ваших запросов и особенностей будущего участка, помогут сделать выбор фасадных материалов, дадут полезные рекомендации по обустройству коммуникаций. Вы сэкономите массу времени на поиски подрядчика и самостоятельные расчеты — специалисты всегда на связи.

Стоимость и гибкость проектирования

Одно из главных преимуществ — привлекательная стоимость и возможность корректировки проекта под индивидуальные потребности без существенной переплаты. Благодаря отработанным решениям компания снижает издержки, а значит, клиенты получают современный комфортный дом по выгодной цене.

Дополнительные опции и персонализация

Каждая семья уникальна — и проект двухэтажного дома может быть адаптирован под ваши желания. Возможна замена материалов, внесение изменений в планировку (например, увеличение площади кухни или гостиной), добавление дополнительной кладовой, даже оформление фасада в вашем стиле — всё это обсуждается и согласовывается индивидуально.

Интерьерные решения: уют, свет и воздух

Внутреннее пространство этого дома — особенный повод для гордости. Большая площадь первого этажа позволяет экспериментировать с мебельными композициями: здесь помещается вместительная кухня-столовая, гостиная с мягкой зоной вокруг камина, отдельное помещение под кабинет или игровую для детей. Светлые стены, панорамные окна, выход на террасу — всё это создает ощущение простора. Высота потолков придаёт ощущения свободы, а наличие трех санузлов облегчает быт даже большой семьи. На втором этаже можно организовать не только спальни, но и уютную библиотеку или уголок для занятий спортом.

Терраса — место для жизни вне дома

Террасы московских домов — это настоящая находка для тех, кто ценит перемену обстановки. На террасе удобно организовать завтрак в летнее утро, встречу друзей или даже тихие семейные вечера с книгой и пледом. Это пространство, которое работает и как лаунж, и как обеденная зона — выбор за вами.

Строительство дома: этапы и сроки

"С чего начать?" — этот вопрос волнует каждого. Компания "Академик Строй" помогает пройти все шаги быстро и без стресса.
  • Первичная консультация и подбор проекта.
  • Заключение договора и предоплата.
  • Корректировка проекта под участок, согласование с заказчиком.
  • Подготовка рабочей документации.
  • Получение разрешения на строительство.
  • Строительство и контроль за соблюдением технологий.
  • Завершение проекта, сдача дома «под ключ».
Весь путь сопровождается консультацией по телефону: +7 (980) 800-47-93 — вам всегда помогут советом и делом.

Какой дом вы получите?

В результате — теплый, красивый, функциональный дом с настоящим семейным духом. Просторные комнаты, много света, удобные санузлы и уютная терраса подарят ощущение европейского комфорта и свободы.

Итак, почему дом 17x11 от "Академик Строй" — лучший выбор для вашей семьи?

- Рациональная площадь — все комнаты большие, светлые, не потеряно ни одного метра. - Три спальни и три санузла — идеальный формат для семьи с детьми и гостями. - Комфорт на всех уровнях: просторная кухня-столовая, гостевая с камином, выход на уютную террасу. - Оптимальный для большинства участков Подмосковья. - Привлекательная цена, открытость условий, профессионализм подрядчика. Наш дом — наш космос. Превратите мечты о собственном уютном пространстве в реальность: двухэтажный дом 17x11 — это правильное начало для новой жизни вашей семьи. Звоните прямо сейчас: +7 (980) 800-47-93, и специалисты компании "Академик Строй" помогут сделать выбор, который станет основой вашего семейного счастья.

Часто задаваемые вопросы

Вопрос Ответ
Можно ли изменить планировку? Да, проект можно адаптировать под ваши пожелания, увеличить или уменьшить комнаты, добавить помещения.
Включена ли в проект инженерная часть? Да, инженеры компании "Академик Строй" разрабатывают коммуникации для дома, исходя из реалий Московской области.
Насколько энергоэффективен дом? Энергосберегающие решения закладываются в каждый проект: современные окна, утепленные стены, оптимальный утеплитель крыши.
Во сколько обойдется типовой проект? Цена обсуждается индивидуально, но всегда остается конкурентоспособной на рынке Москвы и Подмосковья.
Сколько времени занимает строительство? В среднем от 6 до 12 месяцев в зависимости от сложности пожеланий и сезона.
Это ваш шанс создать собственный гармоничный мир, в который приятно возвращаться каждый день. Достаточно просто сделать первый шаг — выбрать надежный проект и хорошую команду. Позвоните по телефону +7 (980) 800-47-93 и узнайте все подробности!