Обзор проекта двухэтажного дома 13x11 — идеальное сочетание комфорта и функциональности
Проект двухэтажного дома размером 13 на 11 метров — это современное и практичное решение для семей, которые ценят комфорт, удобство и рациональное использование пространства. Общая полезная площадь дома составляет 176,06 м², что обеспечивает достаточно места для жизни, отдыха и организации индивидуальных зон для каждого члена семьи.
Дом рассчитан на две полноценных жилых этажа, что позволяет оптимально разделить зоны общественного и личного пользования. Благодаря такому планировочному решению, жизнь в доме становится более удобной и функциональной, а также дает возможность выделить пространство для различных потребностей всех членов семьи.
Размеры дома и оптимальное использование территории
Габариты здания 13 на 11 метров обеспечивают компактность, но при этом не ограничивают внутреннюю свободу пространства. Эти пропорции позволяют легко разместить дом даже на участке средних размеров, при этом оставляя место для сада, зоны отдыха или дополнительных построек.
Минимальные размеры участка, на котором может быть реализован данный проект, составляют 20,99 метров в ширину и 18,54 метров в длину. Эти параметры гарантируют комфортное расположение дома и возможность организовать полноценное внешнее пространство, не ощущая тесноты.
Таблица основных габаритов и параметров участка
| Параметр | Значение |
|---|---|
| Размеры дома | 13 x 11 метров |
| Полезная площадь | 176,06 м² |
| Количество этажей | 2 |
| Минимальная ширина участка | 20,99 м |
| Минимальная длина участка | 18,54 м |
Внутреннее пространство: грамотное распределение зон и комнат
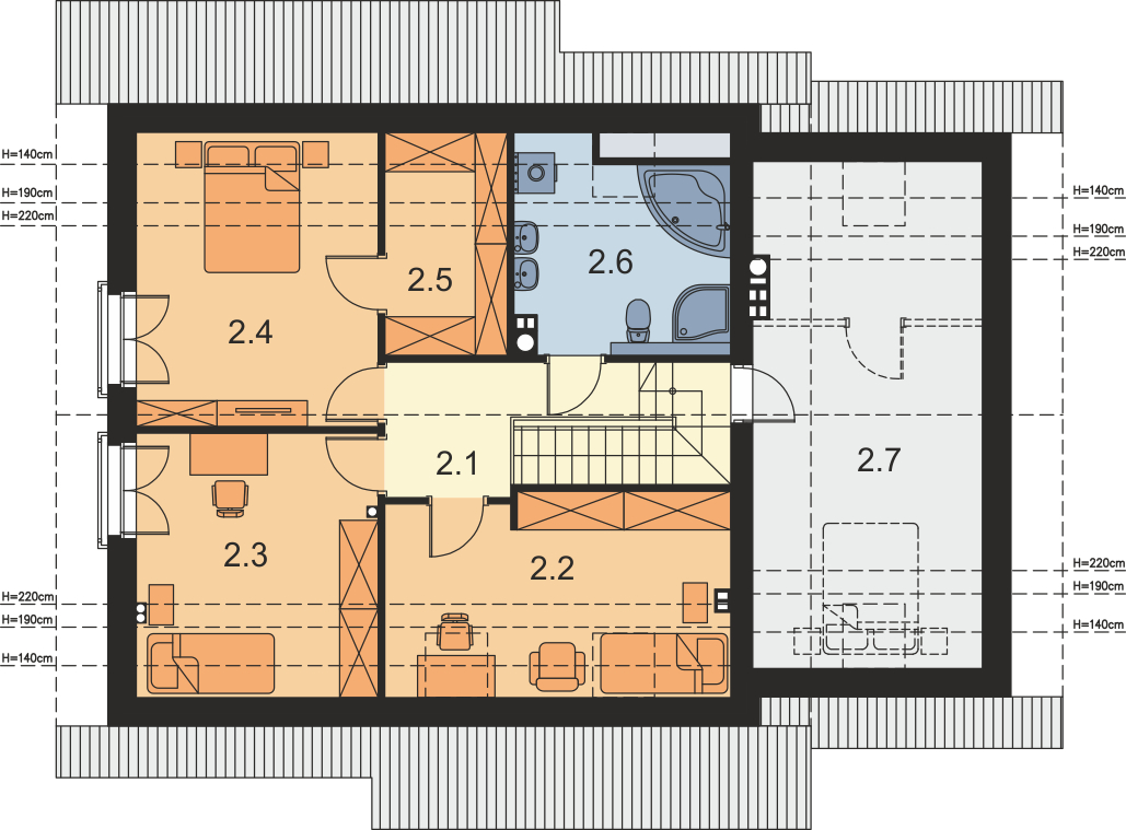
Внутри дома предусмотрено четыре спальни, что идеально подходит для семьи с детьми или для тех, кто хочет иметь дополнительные комнаты для гостей, домашнего офиса или хобби. Четыре спальни позволяют организовать комфортные спальные места, а также создать зоны личного пространства, что особенно важно для гармоничных отношений в семье.
Количество санузлов — два, что отвечает современным тенденциям комфорта. Ведь наличие нескольких ванн и туалетов значительно упрощает утренние и вечерние процедуры, особенно если дом населен несколькими людьми. Это позволяет избежать неудобств и очередей в самое напряженное время суток.
Примерное распределение комнат на этажах:
- Первый этаж: гостинная, кухня-столовая, одна спальня или кабинет, санузел, технические помещения.
- Второй этаж: три спальни, санузел, возможно, зона отдыха или гардеробная.
Общая площадь и жилая площадь – разница и назначение
Общая площадь дома составляет внушительные 262,70 м², что учитывает не только жилые помещения, но также технические комнаты, коридоры, лестницы и стены. Такая площадь позволяет создавать комфортные условия для жизни и воплощать в жизнь разнообразные дизайнерские решения.
Жилая площадь дома — 136,26 м². Это именно та площадь, которая занята спальнями, гостиными и прочими комнатами, где вы будете проводить основное время. Остальная полезная площадь распределена под хозяйственные нужды, что улучшает эксплуатационные качества дома и повышает уровень комфорта.
Таблица площадей дома
| Описание | Площадь (м²) |
|---|---|
| Полезная площадь | 176,06 |
| Жилая площадь | 136,26 |
| Общая площадь | 262,70 |
| Площадь застройки | 131,35 |
| Площадь нетто | 200,16 |
Архитектурные особенности и конструктивные параметры здания
Двухэтажная конструкция дома достигает высоты 8,77 метров, что обеспечивает в помещениях вторго этажа достаточный объем и ощущение простора. Высота здания, вместе с углом наклона двускатной крыши в 40°, предопределяет классический и уютный вид дома, а также минимизирует проблемы с накоплением снега и влаги зимой.
Площадь крыши составляет 250,21 м² — это просторная кровля, покрывающая все здание с оптимальным уклоном, что упрощает эксплуатацию и обслуживание. Тип крыши — двускатная, что считается одним из наиболее надежных и проверенных вариантов для частных домов.
Параметры конструкции в цифрах
- Высота дома: 8,77 м
- Угол наклона крыши: 40°
- Тип крыши: двускатная
- Объем здания (брутто): 853,47 м³
- Площадь крыши: 250,21 м²
Дополнительные опции и особенности проекта
В проекте учтены разнообразные опции, которые делают жизнь в доме более комфортной и приятной. Среди них — наличие камина, создающего в гостиной неповторимую атмосферу уюта и тепла, особенно в холодное время года. Комната на первом этаже делает дом более функциональным, предлагая возможность организовать домашний офис, гостевую спальню или просторный кабинет.
Терраса стала еще одним преимуществом жилья, позволяя наслаждаться свежим воздухом и отдыхать на открытом пространстве не выходя за пределы дома. Терраса отлично подходит для семейных обедов, вечеринок и тихих вечеров в кругу близких.
Основные преимущества проекта
- Камин — эстетика и дополнительный источник тепла
- Комната на первом этаже — гибкость использования пространства
- Терраса — зона отдыха на свежем воздухе
Стоимость строительства и экономическая эффективность
Цена реализации данного проекта составляет приблизительно 6 426 292 рублей. Эта сумма включает все ключевые этапы: от подготовки проекта, закупки материалов, до монтажа и отделочных работ. При таком соотношении цена-площадь вы получаете не просто дом, а гармоничное пространство, которое способно обеспечить качественную и комфортную жизнь вашей семье на долгие годы.
Инвестиции в этот дом оправданы с учетом его функциональности — четырех просторных спален, двух санузлов, а также дополнительных удобств. При правильном подборе подрядчиков и грамотном управлении строительством возможно корректировать стоимость, сохраняя основные преимущества проекта.
Планирование и подготовка к строительству
Перед началом строительных работ важно тщательно подготовить участок с учетом минимальных параметров: учитывая, что минимальная ширина участка должна быть не меньше 20,99 метров, а длина — 18,54 метров. Это позволит разместить дом согласно строительным нормам и сохранить комфортное расстояние до соседних построек и границ участка.
Также необходима правильная разработка фундамента с учетом параметров дома и типа грунтов. Правильно выполненный фундамент залог долговечности и прочности дома, что особенно важно при двухэтажной конструкции.
Основные этапы подготовки к строительству
- Выбор и подготовка участка под застройку
- Проектирование инженерных систем
- Разработка и согласование строительного плана
- Закладка фундамента и возведение коробки дома
- Строительство крыши и установка кровли
- Внутренняя отделка и монтаж коммуникаций
Особенности эксплуатации двухэтажного дома 13x11
Эксплуатация такого дома достаточно проста и удобна благодаря продуманному планированию и надежным материалам. Двухэтажная структура позволяет разумно распределять потоки жильцов и гарантирует приватность. Полезная площадь в 176 м² обеспечивает возможность разместить всю необходимую мебель и бытовую технику без ощущения тесноты.
Поскольку дома не оснащены встроенным гаражом, стоит заранее предусмотреть места для парковки на территории участка. Отсутствие гаража упрощает архитектурный облик здания, а наличие террасы позволяет сконцентрировать внимание на комфортной организации внешнего пространства.
Преимущества и недостатки двухэтажного дома 13x11
Важно понимать, что у данного проекта есть и свои преимущества, и некоторые особенности, которые стоит учитывать перед началом строительства.
Преимущества
- Оптимальное использование земельного участка
- Квадратные пропорции дома позволяют легко планировать внутренние пространства
- Наличие четырех спален для большой семьи
- Два санузла для комфорта всех жильцов
- Возможность оборудования уютной террасы и камина
- Красивый классический внешний вид с двускатной крышей
Недостатки
- Отсутствие встроенного гаража требует организации парковочного места вне дома
- Высота здания почти 9 метров требует соответствующих инженерных решений
- Требования к участку могут ограничить выбор места для строительства
Как сделать выбор и подготовиться к строительству?
При выборе проекта дома важно оценить размеры участка, бюджет, а также собственные потребности. Дом 13х11 — это компромисс, который сочетает достаточную площадь и удобный формат для семьи любого размера. Перед началом строительства рекомендуется проконсультироваться со специалистами, чтобы учесть все нюансы расположения здания, коммуникаций и ландшафтного дизайна.
Важным этапом станет детальное изучение строительных норм и правил, чтобы дом был безопасным и долговечным. Качественная проработка каждого этапа строительства позволяет избежать ошибок и дополнительных затрат в будущем.
Выводы о проекте дома 13x11 с полезной площадью 176,06 м²
Данный проект представляет собой современное, функциональное и эстетически привлекательное решение для жизни в частном доме. Оптимальные размеры, продуманная планировка, достаточное количество спален и санузлов, наличие камина и террасы делают этот дом комфортным и уютным для большой семьи. Стоимость строительства в размере около 6,4 миллионов рублей соответствует предлагаемым возможностям и качеству.
Это отличный выбор для тех, кто хочет сочетать традиции частной застройки с современными стандартами комфорта и функциональности.





