Одноэтажный дом 216.71 м2 за руб.
Планировки
План цоколя
- 1. Гараж 49,37 м²
- 2. Мастерская 47,47 м²
- 3. Санузел 3,18 м²
- 4. Тех.помещение 8,43 м²
- Общая площадь цокольный этаж 108,45 м²
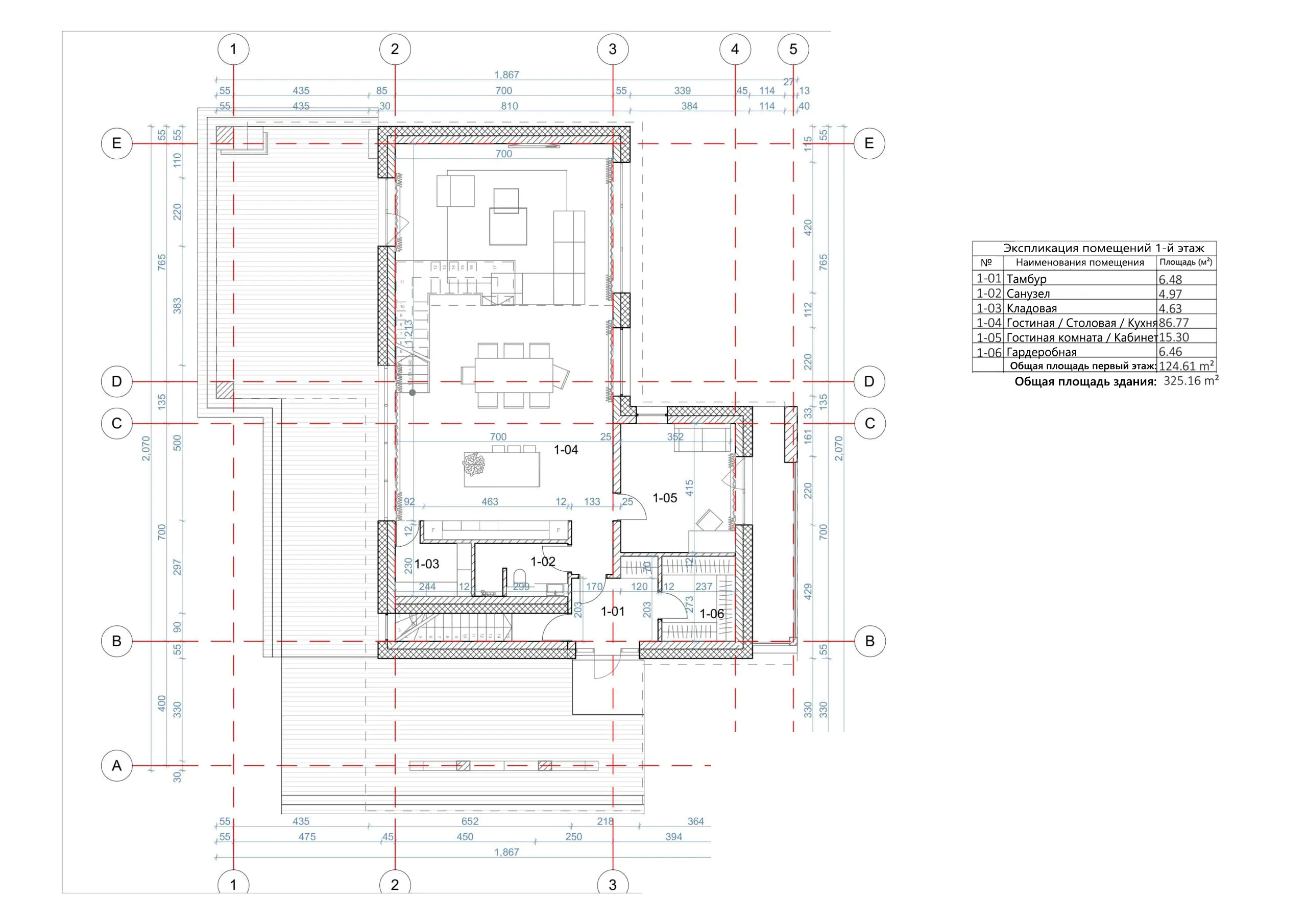
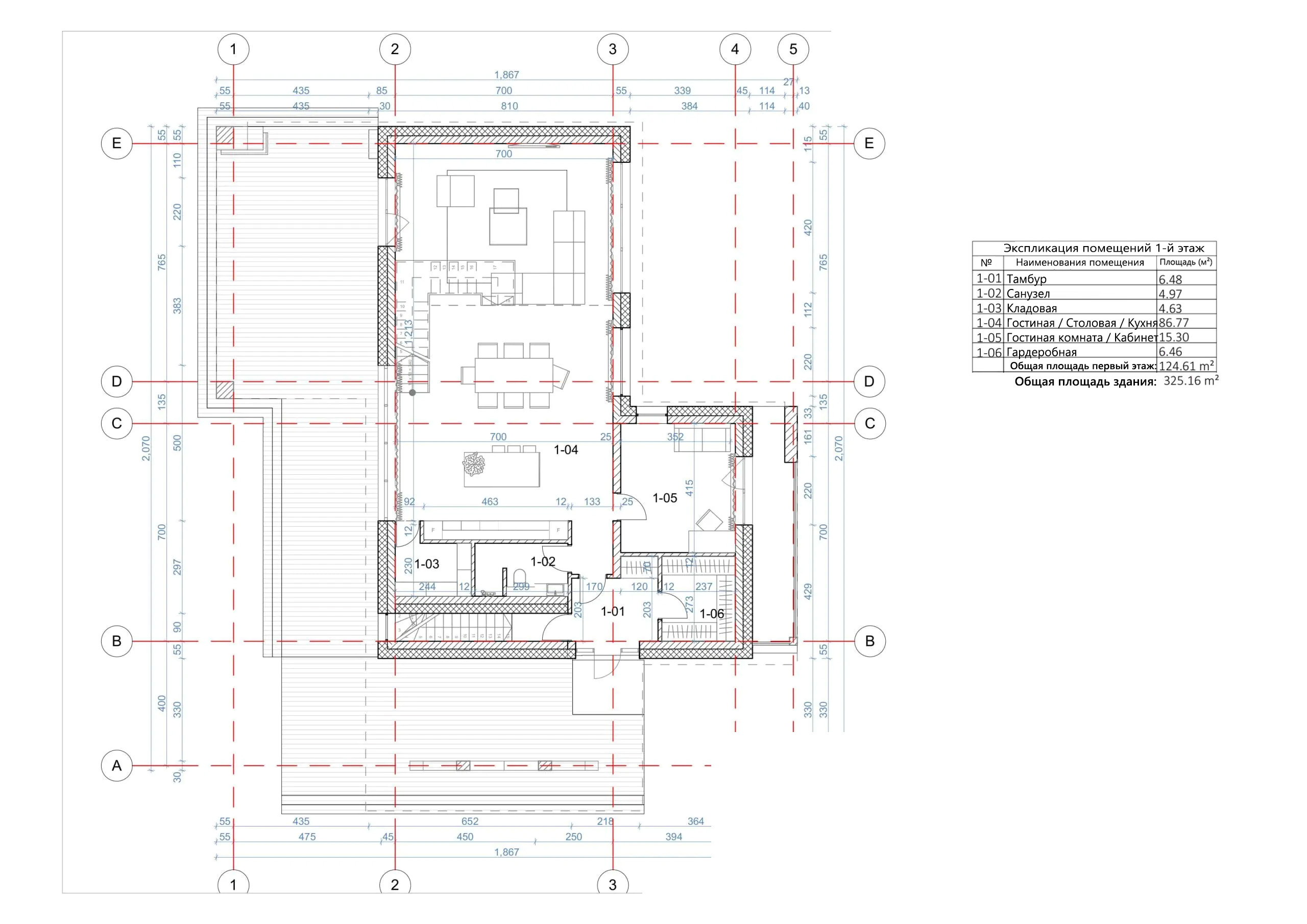
План первого этажа
- 1. Тамбур 6,48 м²
- 2. Санузел 4,97 м²
- 3. Кладовая 4,63 м²
- 4. Гостиная-Кухня-Столовая 86,77 м²
- 5. Гостевая комната 15,30 м²
- 6. Гардероб 6,46 м²
- Общая площадь первый этаж 124,61 м²
План второго этажа
- 1. Холл 14,09 м²
- 2. Комната 11,26 м²
- 3. Санузел 4,59 м²
- 4. Спальня 16,70 м²
- 5. Ванная комната 8,54 м²
- 6. Гардероб 8,41 м²
- 7. Кладовая 4,59 м²
- 8. Комната 11,93 м²
- 9. Кабинет 11,99 м²
- Общая площадь второй этаж 92,10 м²
Площади дома
| № п/п | Наименование | Ед. из. | Строительная площадь | Полезная площадь |
| 1 | 1 этаж | м2 | 153.56 | 124.61 |
| 2 | 2 этаж | м2 | 113.49 | 92.1 |
| 3 | Итого | м2 | 267.05 | 216.71 |
154 м2
Полезная
площадь
площадь
1 этаж
Этажей
26 м2
Террасы
и балконы
и балконы
1Без
гаража
гаража
5+
Количество
спален
спален
4
Количество
санузлов
санузлов
Калькулятор опций
0₽
В ипотеку от 25 094 ₽/мес.
0₽
0 дней
stdClass Object
(
[id] => 1
[attribute_id] => 1
[name] => Ленточный монолитный ж/б
[material_modifier] => 1
[work_modifier] => 1
[options] => Array
(
[0] => размер 200 х 700 мм
[1] => размер 300 х 900 мм
[2] => размер 400 х 1 000 мм
[3] => размер 500 х 1 100 мм
[4] => размер 600 х 1 200 мм
)
[days] => [20,21,22,25,30]
[material_price] => [2823,3630,4475,5210,12047]
[work_price] => [2154,2826,3731,4577,5293]
[image] => https://akademik-stroy.ru/wp-content/uploads/materials/lentochnyj-monolitnyj-zh-b.jpg
[area_modifier] => 153.56
[parent_name] => Фундамент
[parent_id] => 1
[material_sum] => 546210
[work_sum] => 347307
[total_sum] => 893517
[total_days] => 20
[display_material_sum] => 546 210
[display_work_sum] => 347 307
[display_total_sum] => 893 517
)
1
893 517₽
Работа:347 307 ₽
Материалы:546 210 ₽
Дни:20
stdClass Object
(
[id] => 2
[attribute_id] => 1
[name] => Забивные Ж/Б сваи
[material_modifier] => 1
[work_modifier] => 1
[options] => Array
(
[0] => 150х150х3000мм
[1] => 150х150х4000мм
[2] => 200х200х3000мм
[3] => 200х200х4000мм
[4] => 200х200х5000мм
[5] => 200х200х6000мм
)
[days] => [2,2,2,2,2,2]
[material_price] => [1990,2850,3255,4360,5120,6837]
[work_price] => [1002,1185,1336,1438,1574,1839]
[image] => https://akademik-stroy.ru/wp-content/uploads/materials/zabivnye-zh-b-svai.png
[area_modifier] => 153.56
[parent_name] => Фундамент
[parent_id] => 1
[material_sum] => 385036
[work_sum] => 161560
[total_sum] => 546596
[total_days] => 2
[display_material_sum] => 385 036
[display_work_sum] => 161 560
[display_total_sum] => 546 596
)
1
546 596₽
Работа:161 560 ₽
Материалы:385 036 ₽
Дни:2
stdClass Object
(
[id] => 71
[attribute_id] => 1
[name] => Свайно-ростверковый ж/б
[material_modifier] => 1
[work_modifier] => 1
[options] => Array
(
[0] => ростверк 200х300 мм
[1] => ростверк 300х600 мм
[2] => ростверк 400х900 мм
[3] => ростверк 500х1200 мм
)
[days] => [20,23,25,27]
[material_price] => [3018,3474,7109,9792]
[work_price] => [2024,3012,5635,7022]
[image] => https://akademik-stroy.ru/wp-content/uploads/materials/svajno-rostverkovyj-monolitnyj-zh-b-3.png
[area_modifier] => 153.56
[parent_name] => Фундамент
[parent_id] => 1
[material_sum] => 583940
[work_sum] => 326346
[total_sum] => 910286
[total_days] => 20
[display_material_sum] => 583 940
[display_work_sum] => 326 346
[display_total_sum] => 910 286
)
1
910 286₽
Работа:326 346 ₽
Материалы:583 940 ₽
Дни:20
stdClass Object
(
[id] => 72
[attribute_id] => 1
[name] => Монолитная ж/б плита
[material_modifier] => 1
[work_modifier] => 1
[options] => Array
(
[0] => 200 мм
[1] => 300 мм
[2] => 400 мм
[3] => 500 мм
[4] => 600 мм
)
[days] => [30,33,35,37,40]
[material_price] => [5348,8555,12788,14388,15189]
[work_price] => [4314,4881,7037,8061,10230]
[image] => https://akademik-stroy.ru/wp-content/uploads/materials/monolitnaya-zhb-plita.png
[area_modifier] => 153.56
[parent_name] => Фундамент
[parent_id] => 1
[material_sum] => 1034761
[work_sum] => 695581
[total_sum] => 1730342
[total_days] => 30
[display_material_sum] => 1 034 761
[display_work_sum] => 695 581
[display_total_sum] => 1 730 342
)
1
1 730 342₽
Работа:695 581 ₽
Материалы:1 034 761 ₽
Дни:30
stdClass Object
(
[id] => 73
[attribute_id] => 1
[name] => Утепленная шведская плита
[material_modifier] => 1
[work_modifier] => 1
[options] => Array
(
[0] => 200 мм
[1] => 300 мм
[2] => 400 мм
[3] => 500 мм
[4] => 600 мм
)
[days] => [32,37,39,42,45]
[material_price] => [10249,12692,13760,14936,16230]
[work_price] => [5960,7337,8072,8878,9765]
[image] => https://akademik-stroy.ru/wp-content/uploads/materials/uteplennaya-shvedskaya-plita.jpg
[area_modifier] => 153.56
[parent_name] => Фундамент
[parent_id] => 1
[material_sum] => 1983034
[work_sum] => 960978
[total_sum] => 2944012
[total_days] => 32
[display_material_sum] => 1 983 034
[display_work_sum] => 960 978
[display_total_sum] => 2 944 012
)
1
2 944 012₽
Работа:960 978 ₽
Материалы:1 983 034 ₽
Дни:32
stdClass Object
(
[id] => 75
[attribute_id] => 1
[name] => Ленточный из ФБС
[material_modifier] => 1
[work_modifier] => 1
[options] => Array
(
[0] => толщ. 300 мм
[1] => толщ. 400 мм
[2] => толщ. 500 мм
[3] => толщ. 600 мм
)
[days] => [20,20,20,20]
[material_price] => [3675,4902,6126,7350]
[work_price] => [2451,3264,4083,4902]
[image] => https://akademik-stroy.ru/wp-content/uploads/materials/lentochnyj-iz-fbs.png
[area_modifier] => 153.56
[parent_name] => Фундамент
[parent_id] => 1
[material_sum] => 711060
[work_sum] => 395194
[total_sum] => 1106254
[total_days] => 20
[display_material_sum] => 711 060
[display_work_sum] => 395 194
[display_total_sum] => 1 106 254
)
1
1 106 254₽
Работа:395 194 ₽
Материалы:711 060 ₽
Дни:20
stdClass Object
(
[id] => 76
[attribute_id] => 1
[name] => Цокольный этаж из ФБС
[material_modifier] => 1
[work_modifier] => 1
[options] => Array
(
[0] => толщ. 300 мм
[1] => толщ. 400 мм
[2] => толщ. 500 мм
[3] => толщ. 600 мм
)
[days] => [30,32,34,36]
[material_price] => [20916,23299,26680,29060]
[work_price] => [17524,18700,19873,21046]
[image] => https://akademik-stroy.ru/wp-content/uploads/materials/cokolnyj-ehtazh-iz-fbs.jpg
[area_modifier] => 153.56
[parent_name] => Фундамент
[parent_id] => 1
[material_sum] => 4046945
[work_sum] => 2825535
[total_sum] => 6872480
[total_days] => 30
[display_material_sum] => 4 046 945
[display_work_sum] => 2 825 535
[display_total_sum] => 6 872 480
)
1
6 872 480₽
Работа:2 825 535 ₽
Материалы:4 046 945 ₽
Дни:30
stdClass Object
(
[id] => 77
[attribute_id] => 1
[name] => Цокольный этаж монолитный ж/б
[material_modifier] => 1
[work_modifier] => 1
[options] => Array
(
[0] => толщ. 200 мм
[1] => толщ. 300 мм
[2] => толщ. 400 мм
[3] => толщ. 500 мм
[4] => толщ. 600 мм
)
[days] => [40,42,44,46,48]
[material_price] => [25421,29148,32275,35602,37326]
[work_price] => [20441,21907,23375,24841,26306]
[image] => https://akademik-stroy.ru/wp-content/uploads/materials/cokolnyj-etazh-zh-b.jpg
[area_modifier] => 153.56
[parent_name] => Фундамент
[parent_id] => 1
[material_sum] => 4918597
[work_sum] => 3295866
[total_sum] => 8214463
[total_days] => 40
[display_material_sum] => 4 918 597
[display_work_sum] => 3 295 866
[display_total_sum] => 8 214 463
)
1
8 214 463₽
Работа:3 295 866 ₽
Материалы:4 918 597 ₽
Дни:40
stdClass Object
(
[id] => 191
[attribute_id] => 1
[name] => Винтовые сваи
[material_modifier] => 1
[work_modifier] => 1
[options] => Array
(
[0] => 57х200мм
[1] => 76х250мм
[2] => 108х300мм
[3] => 133х350мм
)
[days] => [1,1,2,2]
[material_price] => [1200,1300,1450,1600]
[work_price] => [400,600,900,1100]
[image] => https://akademik-stroy.ru/wp-content/uploads/materials/vintovye-svai.png
[area_modifier] => 153.56
[parent_name] => Фундамент
[parent_id] => 1
[material_sum] => 232183
[work_sum] => 64495
[total_sum] => 296678
[total_days] => 1
[display_material_sum] => 232 183
[display_work_sum] => 64 495
[display_total_sum] => 296 678
)
1
296 678₽
Работа:64 495 ₽
Материалы:232 183 ₽
Дни:1
stdClass Object
(
[id] => 3
[attribute_id] => 2
[name] => Деревянные балки
[material_modifier] => 1
[work_modifier] => 1
[options] => Array
(
[0] => без утепления
[1] => утепление 200 мм
[2] => утепление 250 мм
[3] => утепление 300 мм
[4] => утепление 350 мм
[5] => утепление 400 мм
[6] => утепление 450 мм
[7] => утепление 500 мм
)
[days] => [8,9,9,9,11,12,13,14]
[material_price] => [1634,2042,2344,2947,3149,3652,3354,3557]
[work_price] => [1230,1339,1393,1426,1460,1513,1587,1620]
[image] => https://akademik-stroy.ru/wp-content/uploads/materials/derevyannye-balki.png
[area_modifier] => 153.56
[parent_name] => Перекрытие цоколя
[parent_id] => 2
[material_sum] => 316155
[work_sum] => 198323
[total_sum] => 514478
[total_days] => 8
[display_material_sum] => 316 155
[display_work_sum] => 198 323
[display_total_sum] => 514 478
)
1
514 478₽
Работа:198 323 ₽
Материалы:316 155 ₽
Дни:8
stdClass Object
(
[id] => 4
[attribute_id] => 2
[name] => Сборные ж/б плиты
[material_modifier] => 1
[work_modifier] => 1
[options] => Array
(
[0] => без утепления
[1] => утепление 150мм
[2] => утепление 200мм
[3] => утепление 250мм
[4] => утепление 300мм
[5] => утепление 350мм
[6] => утепление 400мм
[7] => утепление 450мм
[8] => утепление 500мм
)
[days] => [13,15,15,15,15,15,15,15,15]
[material_price] => [3067,5577,5928,6679,7730,8782,9833,10884,11935]
[work_price] => [1520,1956,2102,2247,2392,2537,2684,2829,2974]
[image] => https://akademik-stroy.ru/wp-content/uploads/materials/sbornye-zh-b-plity-2.jpg
[area_modifier] => 153.56
[parent_name] => Перекрытие цоколя
[parent_id] => 2
[material_sum] => 593420
[work_sum] => 245082
[total_sum] => 838502
[total_days] => 13
[display_material_sum] => 593 420
[display_work_sum] => 245 082
[display_total_sum] => 838 502
)
1
838 502₽
Работа:245 082 ₽
Материалы:593 420 ₽
Дни:13
stdClass Object
(
[id] => 78
[attribute_id] => 2
[name] => Монолитная ж/б плита
[material_modifier] => 1
[work_modifier] => 1
[options] => Array
(
[0] => без утепления
[1] => утепление 150 мм
[2] => утепление 200 мм
[3] => утепление 250 мм
[4] => утепление 300 мм
[5] => утепление 350 мм
[6] => утепление 400 мм
[7] => утепление 450 мм
[8] => утепление 500 мм
)
[days] => [18,20,20,20,20,20,20,20,20]
[material_price] => [4837,6572,7224,7375,79426,8177,8728,9180,10031]
[work_price] => [3348,3921,4112,4302,4493,4684,4875,5066,5256]
[image] => https://akademik-stroy.ru/wp-content/uploads/materials/monolitnaya-zh-b-plita-2.jpg
[area_modifier] => 153.56
[parent_name] => Перекрытие цоколя
[parent_id] => 2
[material_sum] => 935890
[work_sum] => 539825
[total_sum] => 1475715
[total_days] => 18
[display_material_sum] => 935 890
[display_work_sum] => 539 825
[display_total_sum] => 1 475 715
)
1
1 475 715₽
Работа:539 825 ₽
Материалы:935 890 ₽
Дни:18
stdClass Object
(
[id] => 6
[attribute_id] => 3
[name] => Пеноблок
[material_modifier] => 1
[work_modifier] => 1
[options] => Array
(
[0] => 300 мм
[1] => 400 мм
[2] => 500 мм
[3] => 600 мм
)
[days] => [29,31,34,39]
[material_price] => [3000,4000,4500,4937]
[work_price] => [5033,5805,6400,8710]
[image] => https://akademik-stroy.ru/wp-content/uploads/materials/penoblok.jpg
[area_modifier] => 153.56
[parent_name] => Стены 1 этаж (несущие)
[parent_id] => 3
[material_sum] => 580457
[work_sum] => 811511
[total_sum] => 1391968
[total_days] => 29
[display_material_sum] => 580 457
[display_work_sum] => 811 511
[display_total_sum] => 1 391 968
)
1
1 391 968₽
Работа:811 511 ₽
Материалы:580 457 ₽
Дни:29
stdClass Object
(
[id] => 79
[attribute_id] => 3
[name] => Керамический блок
[material_modifier] => 1
[work_modifier] => 1
[options] => Array
(
[0] => 380 мм
[1] => 380 мм Thermo
[2] => 440 мм
[3] => 510 мм
)
[days] => [23,23,24,25]
[material_price] => [4510,5098,6093,8013]
[work_price] => [4737,4937,5903,6958]
[image] => https://akademik-stroy.ru/wp-content/uploads/materials/keramicheskij-blok.jpg
[area_modifier] => 153.56
[parent_name] => Стены 1 этаж (несущие)
[parent_id] => 3
[material_sum] => 872620
[work_sum] => 763784
[total_sum] => 1636404
[total_days] => 23
[display_material_sum] => 872 620
[display_work_sum] => 763 784
[display_total_sum] => 1 636 404
)
1
1 636 404₽
Работа:763 784 ₽
Материалы:872 620 ₽
Дни:23
stdClass Object
(
[id] => 80
[attribute_id] => 3
[name] => Кирпич
[material_modifier] => 1
[work_modifier] => 1
[options] => Array
(
[0] => Кирпич 250 мм
[1] => Кирпич 380 мм
[2] => Кирпич 510 мм
[3] => Кирпич 640 мм
[4] => Кирпич 770 мм
)
[days] => [30,30,31,33,36]
[material_price] => [5500,7142,9206,10171,12235]
[work_price] => [8736,10041,12018,15240,18462]
[image] => https://akademik-stroy.ru/wp-content/uploads/materials/kirpich.jpg
[area_modifier] => 153.56
[parent_name] => Стены 1 этаж (несущие)
[parent_id] => 3
[material_sum] => 1064171
[work_sum] => 1408575
[total_sum] => 2472746
[total_days] => 30
[display_material_sum] => 1 064 171
[display_work_sum] => 1 408 575
[display_total_sum] => 2 472 746
)
1
2 472 746₽
Работа:1 408 575 ₽
Материалы:1 064 171 ₽
Дни:30
stdClass Object
(
[id] => 81
[attribute_id] => 3
[name] => Монолитные
[material_modifier] => 1
[work_modifier] => 1
[options] => Array
(
[0] => 150 мм
[1] => 200 мм
[2] => 250 мм
[3] => 300 мм
[4] => 350 мм
[5] => 400 мм
)
[days] => [45,46,47,49,50,53]
[material_price] => [6545,7876,10175,12011,13908,15204]
[work_price] => [5106,6444,7698,8552,9807,11461]
[image] => https://akademik-stroy.ru/wp-content/uploads/materials/monolitnye.jpg
[area_modifier] => 153.56
[parent_name] => Стены 1 этаж (несущие)
[parent_id] => 3
[material_sum] => 1266363
[work_sum] => 823281
[total_sum] => 2089644
[total_days] => 45
[display_material_sum] => 1 266 363
[display_work_sum] => 823 281
[display_total_sum] => 2 089 644
)
1
2 089 644₽
Работа:823 281 ₽
Материалы:1 266 363 ₽
Дни:45
stdClass Object
(
[id] => 82
[attribute_id] => 3
[name] => Клееный брус
[material_modifier] => 1
[work_modifier] => 1
[options] => Array
(
[0] => 160 мм
[1] => 175 мм
[2] => 200 мм
[3] => 215 мм
[4] => 240 мм
[5] => 270 мм
[6] => 282 мм
)
[days] => [24,28,32,37,40,42,48]
[material_price] => [16975,18773,19950,20545,21599,22159,23275]
[work_price] => [4806,5287,5815,6397,7036,7740,8514]
[image] => https://akademik-stroy.ru/wp-content/uploads/materials/kleenyj-brus.jpg
[area_modifier] => 153.56
[parent_name] => Стены 1 этаж (несущие)
[parent_id] => 3
[material_sum] => 3284418
[work_sum] => 774910
[total_sum] => 4059328
[total_days] => 24
[display_material_sum] => 3 284 418
[display_work_sum] => 774 910
[display_total_sum] => 4 059 328
)
1
4 059 328₽
Работа:774 910 ₽
Материалы:3 284 418 ₽
Дни:24
stdClass Object
(
[id] => 83
[attribute_id] => 3
[name] => Каркасные
[material_modifier] => 1
[work_modifier] => 1
[options] => Array
(
[0] => 150 мм
[1] => 200 мм
[2] => 250 мм
[3] => 300 мм
)
[days] => [15,16,17,18]
[material_price] => [2379,2639,2898,3258]
[work_price] => [2418,2686,2985,3716]
[image] => https://akademik-stroy.ru/wp-content/uploads/materials/karkasnye.jpg
[area_modifier] => 153.56
[parent_name] => Стены 1 этаж (несущие)
[parent_id] => 3
[material_sum] => 460302
[work_sum] => 389873
[total_sum] => 850175
[total_days] => 15
[display_material_sum] => 460 302
[display_work_sum] => 389 873
[display_total_sum] => 850 175
)
1
850 175₽
Работа:389 873 ₽
Материалы:460 302 ₽
Дни:15
stdClass Object
(
[id] => 84
[attribute_id] => 3
[name] => СИП-панели
[material_modifier] => 1
[work_modifier] => 1
[options] => Array
(
[0] => 120 мм
[1] => 170 мм
[2] => 220 мм
)
[days] => [7,7,7]
[material_price] => [1210,1856,2292]
[work_price] => [1410,1551,1706]
[image] => https://akademik-stroy.ru/wp-content/uploads/materials/sip-paneli.jpg
[area_modifier] => 153.56
[parent_name] => Стены 1 этаж (несущие)
[parent_id] => 3
[material_sum] => 234118
[work_sum] => 227346
[total_sum] => 461464
[total_days] => 7
[display_material_sum] => 234 118
[display_work_sum] => 227 346
[display_total_sum] => 461 464
)
1
461 464₽
Работа:227 346 ₽
Материалы:234 118 ₽
Дни:7
stdClass Object
(
[id] => 85
[attribute_id] => 3
[name] => Сухой брус
[material_modifier] => 1
[work_modifier] => 1
[options] => Array
(
[0] => 150 мм
[1] => 180 мм
[2] => 200 мм
)
[days] => [7,8,9]
[material_price] => [6010,7190,8709]
[work_price] => [3204,3845,4229]
[image] => https://akademik-stroy.ru/wp-content/uploads/materials/suhoj-brus.jpg
[area_modifier] => 153.56
[parent_name] => Стены 1 этаж (несущие)
[parent_id] => 3
[material_sum] => 1162848
[work_sum] => 516607
[total_sum] => 1679455
[total_days] => 7
[display_material_sum] => 1 162 848
[display_work_sum] => 516 607
[display_total_sum] => 1 679 455
)
1
1 679 455₽
Работа:516 607 ₽
Материалы:1 162 848 ₽
Дни:7
stdClass Object
(
[id] => 86
[attribute_id] => 3
[name] => Профилированный брус
[material_modifier] => 1
[work_modifier] => 1
[options] => Array
(
[0] => 150 мм
[1] => 180 мм
[2] => 200 мм
)
[days] => [7,8,9]
[material_price] => [8190,9228,10051]
[work_price] => [3845,4614,5075]
[image] => https://akademik-stroy.ru/wp-content/uploads/materials/profilirovannyj-brus.jpg
[area_modifier] => 153.56
[parent_name] => Стены 1 этаж (несущие)
[parent_id] => 3
[material_sum] => 1584647
[work_sum] => 619960
[total_sum] => 2204607
[total_days] => 7
[display_material_sum] => 1 584 647
[display_work_sum] => 619 960
[display_total_sum] => 2 204 607
)
1
2 204 607₽
Работа:619 960 ₽
Материалы:1 584 647 ₽
Дни:7
stdClass Object
(
[id] => 87
[attribute_id] => 3
[name] => Оцилиндрованное бревно
[material_modifier] => 1
[work_modifier] => 1
[options] => Array
(
[0] => 180 мм
[1] => 220 мм
[2] => 260 мм
[3] => 320 мм
)
[days] => [7,8,9,10]
[material_price] => [75190,9532,10868,13116]
[work_price] => [3845,4691,5535,6863]
[image] => https://akademik-stroy.ru/wp-content/uploads/materials/ocilindrovannoe-brevno-1.jpg
[area_modifier] => 153.56
[parent_name] => Стены 1 этаж (несущие)
[parent_id] => 3
[material_sum] => 14548182
[work_sum] => 619960
[total_sum] => 15168142
[total_days] => 7
[display_material_sum] => 14 548 182
[display_work_sum] => 619 960
[display_total_sum] => 15 168 142
)
1
15 168 142₽
Работа:619 960 ₽
Материалы:14 548 182 ₽
Дни:7
stdClass Object
(
[id] => 88
[attribute_id] => 3
[name] => Срубы
[material_modifier] => 1
[work_modifier] => 1
[options] => Array
(
[0] => 260 мм
[1] => 320 мм
[2] => 360 мм
[3] => 400 мм
[4] => 500 мм
)
[days] => [7,8,9,10,11]
[material_price] => [37975,46709,52314,58069,73167]
[work_price] => [4806,5911,6621,7349,9260]
[image] => https://akademik-stroy.ru/wp-content/uploads/materials/sruby.jpg
[area_modifier] => 153.56
[parent_name] => Стены 1 этаж (несущие)
[parent_id] => 3
[material_sum] => 7347616
[work_sum] => 774910
[total_sum] => 8122526
[total_days] => 7
[display_material_sum] => 7 347 616
[display_work_sum] => 774 910
[display_total_sum] => 8 122 526
)
1
8 122 526₽
Работа:774 910 ₽
Материалы:7 347 616 ₽
Дни:7
stdClass Object
(
[id] => 174
[attribute_id] => 3
[name] => Брус
[material_modifier] => 1
[work_modifier] => 1
[options] => Array
(
[0] => 150 мм
[1] => 180 мм
[2] => 200 мм
)
[days] => [7,8,9]
[material_price] => [5127,6152,7367]
[work_price] => [1602,1922,2115]
[image] => https://akademik-stroy.ru/wp-content/uploads/materials/brus.jpg
[area_modifier] => 153.56
[parent_name] => Стены 1 этаж (несущие)
[parent_id] => 3
[material_sum] => 992001
[work_sum] => 258303
[total_sum] => 1250304
[total_days] => 7
[display_material_sum] => 992 001
[display_work_sum] => 258 303
[display_total_sum] => 1 250 304
)
1
1 250 304₽
Работа:258 303 ₽
Материалы:992 001 ₽
Дни:7
stdClass Object
(
[id] => 175
[attribute_id] => 3
[name] => Газобетон
[material_modifier] => 1
[work_modifier] => 1
[options] => Array
(
[0] => 300 мм
[1] => 375 мм
[2] => 400 мм
[3] => 500 мм
[4] => 600 мм
)
[days] => [29,31,35,37,44]
[material_price] => [4298,5573,6356,7288,9119]
[work_price] => [4538,5251,5926,6733,7195]
[image] => https://akademik-stroy.ru/wp-content/uploads/materials/gazobeton.jpg
[area_modifier] => 153.56
[parent_name] => Стены 1 этаж (несущие)
[parent_id] => 3
[material_sum] => 831601
[work_sum] => 731698
[total_sum] => 1563299
[total_days] => 29
[display_material_sum] => 831 601
[display_work_sum] => 731 698
[display_total_sum] => 1 563 299
)
1
1 563 299₽
Работа:731 698 ₽
Материалы:831 601 ₽
Дни:29
stdClass Object
(
[id] => 176
[attribute_id] => 3
[name] => Блок
[material_modifier] => 1
[work_modifier] => 1
[options] => Array
(
[0] => 300 мм
[1] => 375 мм
[2] => 400 мм
[3] => 500 мм
[4] => 600 мм
)
[days] => [29,31,35,37,44]
[material_price] => [2698,3973,4356,6588,7119]
[work_price] => [5038,5851,6426,8733,9195]
[image] => https://akademik-stroy.ru/wp-content/uploads/materials/blok.jpg
[area_modifier] => 153.56
[parent_name] => Стены 1 этаж (несущие)
[parent_id] => 3
[material_sum] => 522024
[work_sum] => 812317
[total_sum] => 1334341
[total_days] => 29
[display_material_sum] => 522 024
[display_work_sum] => 812 317
[display_total_sum] => 1 334 341
)
1
1 334 341₽
Работа:812 317 ₽
Материалы:522 024 ₽
Дни:29
stdClass Object
(
[id] => 177
[attribute_id] => 3
[name] => Газосиликатный блок
[material_modifier] => 1
[work_modifier] => 1
[options] => Array
(
[0] => 300 мм
[1] => 375 мм
[2] => 400 мм
[3] => 500 мм
[4] => 600 мм
)
[days] => [29,31,35,37,44]
[material_price] => [4298,5573,6356,7288,9119]
[work_price] => [4538,5251,5926,6733,7195]
[image] => https://akademik-stroy.ru/wp-content/uploads/materials/gazosilikatnyj-blok.jpg
[area_modifier] => 153.56
[parent_name] => Стены 1 этаж (несущие)
[parent_id] => 3
[material_sum] => 831601
[work_sum] => 731698
[total_sum] => 1563299
[total_days] => 29
[display_material_sum] => 831 601
[display_work_sum] => 731 698
[display_total_sum] => 1 563 299
)
1
1 563 299₽
Работа:731 698 ₽
Материалы:831 601 ₽
Дни:29
stdClass Object
(
[id] => 178
[attribute_id] => 3
[name] => Керамзитобетонный блок
[material_modifier] => 1
[work_modifier] => 1
[options] => Array
(
[0] => 300 мм
[1] => 375 мм
[2] => 400 мм
[3] => 500 мм
[4] => 600 мм
)
[days] => [23,23,24,25,28]
[material_price] => [3641,4298,5693,7613,9612]
[work_price] => [5737,5737,6903,7958,8901]
[image] => https://akademik-stroy.ru/wp-content/uploads/materials/keramzitobetonnyj-blok.jpg
[area_modifier] => 153.56
[parent_name] => Стены 1 этаж (несущие)
[parent_id] => 3
[material_sum] => 704481
[work_sum] => 925022
[total_sum] => 1629503
[total_days] => 23
[display_material_sum] => 704 481
[display_work_sum] => 925 022
[display_total_sum] => 1 629 503
)
1
1 629 503₽
Работа:925 022 ₽
Материалы:704 481 ₽
Дни:23
stdClass Object
(
[id] => 179
[attribute_id] => 3
[name] => Деревянные
[material_modifier] => 1
[work_modifier] => 1
[options] => Array
(
[0] => 180 мм
[1] => 220 мм
[2] => 260 мм
[3] => 320 мм
)
[days] => [7,8,9,10]
[material_price] => [7950,9458,11961,14472]
[work_price] => [4037,4925,5812,7207]
[image] => https://akademik-stroy.ru/wp-content/uploads/materials/derevyannye.jpg
[area_modifier] => 153.56
[parent_name] => Стены 1 этаж (несущие)
[parent_id] => 3
[material_sum] => 1538211
[work_sum] => 650918
[total_sum] => 2189129
[total_days] => 7
[display_material_sum] => 1 538 211
[display_work_sum] => 650 918
[display_total_sum] => 2 189 129
)
1
2 189 129₽
Работа:650 918 ₽
Материалы:1 538 211 ₽
Дни:7
stdClass Object
(
[id] => 181
[attribute_id] => 3
[name] => Камень
[material_modifier] => 1
[work_modifier] => 1
[options] => Array
(
[0] => 300 мм
[1] => 400 мм
[2] => 500 мм
[3] => 600 мм
)
[days] => [25,27,31,34]
[material_price] => [5262,6844,8330,9815]
[work_price] => [8331,9135,10427,11069]
[image] => https://akademik-stroy.ru/wp-content/uploads/materials/kamen.jpg
[area_modifier] => 153.56
[parent_name] => Стены 1 этаж (несущие)
[parent_id] => 3
[material_sum] => 1018121
[work_sum] => 1343274
[total_sum] => 2361395
[total_days] => 25
[display_material_sum] => 1 018 121
[display_work_sum] => 1 343 274
[display_total_sum] => 2 361 395
)
1
2 361 395₽
Работа:1 343 274 ₽
Материалы:1 018 121 ₽
Дни:25
stdClass Object
(
[id] => 182
[attribute_id] => 3
[name] => Каркасно-щитовые
[material_modifier] => 1
[work_modifier] => 1
[options] => Array
(
[0] => 150 мм
[1] => 200 мм
[2] => 250 мм
[3] => 300 мм
[4] => 350 мм
[5] => 400 мм
)
[days] => [15,16,17,18,19,20]
[material_price] => [2379,2639,2898,3458,3601,4175]
[work_price] => [2538,2820,3134,3483,4062,5642]
[image] => https://akademik-stroy.ru/wp-content/uploads/materials/karkasno-shchitovye.jpg
[area_modifier] => 153.56
[parent_name] => Стены 1 этаж (несущие)
[parent_id] => 3
[material_sum] => 460302
[work_sum] => 409222
[total_sum] => 869524
[total_days] => 15
[display_material_sum] => 460 302
[display_work_sum] => 409 222
[display_total_sum] => 869 524
)
1
869 524₽
Работа:409 222 ₽
Материалы:460 302 ₽
Дни:15
stdClass Object
(
[id] => 183
[attribute_id] => 3
[name] => Рубленные
[material_modifier] => 1
[work_modifier] => 1
[options] => Array
(
[0] => 150 мм
[1] => 200 мм
[2] => 250 мм
[3] => 300 мм
[4] => 350 мм
[5] => 400 мм
)
[days] => [15,16,17,18,17,18]
[material_price] => [35950,50267,60583,75900,80217,100533]
[work_price] => [9612,12816,16020,19224,22428,25632]
[image] => https://akademik-stroy.ru/wp-content/uploads/materials/rublennye.jpg
[area_modifier] => 153.56
[parent_name] => Стены 1 этаж (несущие)
[parent_id] => 3
[material_sum] => 6955807
[work_sum] => 1549820
[total_sum] => 8505627
[total_days] => 15
[display_material_sum] => 6 955 807
[display_work_sum] => 1 549 820
[display_total_sum] => 8 505 627
)
1
8 505 627₽
Работа:1 549 820 ₽
Материалы:6 955 807 ₽
Дни:15
stdClass Object
(
[id] => 185
[attribute_id] => 3
[name] => Теплоблок
[material_modifier] => 1
[work_modifier] => 1
[options] => Array
(
[0] => 300 мм (с облицовкой, не покрашенный)
[1] => 400 мм (с облицовкой, не покрашенный)
[2] => 300 мм (с облицовкой, покрашенный)
[3] => 400 мм (с облицовкой, покрашенный)
)
[days] => [15,16,15,16]
[material_price] => [2888,3729,3957,4258]
[work_price] => [2564,3229,2949,3713]
[image] => https://akademik-stroy.ru/wp-content/uploads/materials/teploblok.jpg
[area_modifier] => 153.56
[parent_name] => Стены 1 этаж (несущие)
[parent_id] => 3
[material_sum] => 558786
[work_sum] => 413414
[total_sum] => 972200
[total_days] => 15
[display_material_sum] => 558 786
[display_work_sum] => 413 414
[display_total_sum] => 972 200
)
1
972 200₽
Работа:413 414 ₽
Материалы:558 786 ₽
Дни:15
stdClass Object
(
[id] => 186
[attribute_id] => 3
[name] => Арболитовые блоки
[material_modifier] => 1
[work_modifier] => 1
[options] => Array
(
[0] => 300 мм
[1] => 400 мм
[2] => 600 мм
)
[days] => [19,22,27]
[material_price] => [3210,4475,5852]
[work_price] => [4214,4788,5866]
[image] => https://akademik-stroy.ru/wp-content/uploads/materials/arbolitovye-bloki.png
[area_modifier] => 153.56
[parent_name] => Стены 1 этаж (несущие)
[parent_id] => 3
[material_sum] => 621089
[work_sum] => 679457
[total_sum] => 1300546
[total_days] => 19
[display_material_sum] => 621 089
[display_work_sum] => 679 457
[display_total_sum] => 1 300 546
)
1
1 300 546₽
Работа:679 457 ₽
Материалы:621 089 ₽
Дни:19
stdClass Object
(
[id] => 187
[attribute_id] => 3
[name] => Полистиролбетон
[material_modifier] => 1
[work_modifier] => 1
[options] => Array
(
[0] => 300 мм
[1] => 400 мм
[2] => 600 мм
)
[days] => [29,31,35]
[material_price] => [2798,4573,5256]
[work_price] => [5038,5851,6426]
[image] => https://akademik-stroy.ru/wp-content/uploads/materials/polistirolbeton.jpg
[area_modifier] => 153.56
[parent_name] => Стены 1 этаж (несущие)
[parent_id] => 3
[material_sum] => 541373
[work_sum] => 812317
[total_sum] => 1353690
[total_days] => 29
[display_material_sum] => 541 373
[display_work_sum] => 812 317
[display_total_sum] => 1 353 690
)
1
1 353 690₽
Работа:812 317 ₽
Материалы:541 373 ₽
Дни:29
stdClass Object
(
[id] => 188
[attribute_id] => 3
[name] => Шлакоблок
[material_modifier] => 1
[work_modifier] => 1
[options] => Array
(
[0] => 400 мм
[1] => 600 мм
)
[days] => [15,16]
[material_price] => [2391,3471]
[work_price] => [2642,3662]
[image] => https://akademik-stroy.ru/wp-content/uploads/materials/shlakoblok.jpg
[area_modifier] => 153.56
[parent_name] => Стены 1 этаж (несущие)
[parent_id] => 3
[material_sum] => 462624
[work_sum] => 425991
[total_sum] => 888615
[total_days] => 15
[display_material_sum] => 462 624
[display_work_sum] => 425 991
[display_total_sum] => 888 615
)
1
888 615₽
Работа:425 991 ₽
Материалы:462 624 ₽
Дни:15
stdClass Object
(
[id] => 189
[attribute_id] => 3
[name] => Теплая керамика
[material_modifier] => 1
[work_modifier] => 1
[options] => Array
(
[0] => 380 мм
[1] => 380 мм Thermo
[2] => 440 мм
[3] => 510 мм
)
[days] => [23,23,24,25]
[material_price] => [4510,5098,6093,8013]
[work_price] => [4737,4937,5903,6958]
[image] => https://akademik-stroy.ru/wp-content/uploads/materials/teplaya-keramika.jpg
[area_modifier] => 153.56
[parent_name] => Стены 1 этаж (несущие)
[parent_id] => 3
[material_sum] => 872620
[work_sum] => 763784
[total_sum] => 1636404
[total_days] => 23
[display_material_sum] => 872 620
[display_work_sum] => 763 784
[display_total_sum] => 1 636 404
)
1
1 636 404₽
Работа:763 784 ₽
Материалы:872 620 ₽
Дни:23
stdClass Object
(
[id] => 190
[attribute_id] => 3
[name] => Несъемная опалубка
[material_modifier] => 1
[work_modifier] => 1
[options] => Array
(
[0] => 200 мм
[1] => 250 мм
[2] => 300 мм
[3] => 350 мм
)
[days] => [15,17,19,21]
[material_price] => [3302,3902,4108,5008]
[work_price] => [2100,2100,2300,2534]
[image] => https://akademik-stroy.ru/wp-content/uploads/materials/nesemnaya-opalubka.jpg
[area_modifier] => 153.56
[parent_name] => Стены 1 этаж (несущие)
[parent_id] => 3
[material_sum] => 638889
[work_sum] => 338600
[total_sum] => 977489
[total_days] => 15
[display_material_sum] => 638 889
[display_work_sum] => 338 600
[display_total_sum] => 977 489
)
1
977 489₽
Работа:338 600 ₽
Материалы:638 889 ₽
Дни:15
stdClass Object
(
[id] => 251
[attribute_id] => 3
[name] => Бревно
[material_modifier] => 1
[work_modifier] => 1
[options] => Array
(
[0] => 260 мм
[1] => 320 мм
[2] => 360 мм
[3] => 400 мм
[4] => 500 мм
)
[days] => [7,8,9,10,11]
[material_price] => [1874,24045,26930,30972,38825]
[work_price] => [5046,6207,6952,7716,9723]
[image] => https://akademik-stroy.ru/wp-content/uploads/materials/sruby.jpg
[area_modifier] => 153.56
[parent_name] => Стены 1 этаж (несущие)
[parent_id] => 3
[material_sum] => 362592
[work_sum] => 813607
[total_sum] => 1176199
[total_days] => 7
[display_material_sum] => 362 592
[display_work_sum] => 813 607
[display_total_sum] => 1 176 199
)
1
1 176 199₽
Работа:813 607 ₽
Материалы:362 592 ₽
Дни:7
stdClass Object
(
[id] => 7
[attribute_id] => 4
[name] => Деревянные балки
[material_modifier] => 1
[work_modifier] => 1
[options] => Array
(
[0] => без утепления
[1] => утепление 200 мм
[2] => утепление 250 мм
[3] => утепление 300 мм
[4] => утепление 350 мм
[5] => утепление 400 мм
[6] => утепление 450 мм
[7] => утепление 500 мм
)
[days] => [8,9,9,9,11,12,13,14]
[material_price] => [1634,2042,2344,2947,3149,3652,3354,3557]
[work_price] => [1230,1339,1393,1426,1460,1513,1587,1620]
[image] => https://akademik-stroy.ru/wp-content/uploads/materials/derevyannye-balki.png
[area_modifier] => 153.56
[parent_name] => Перекрытие первого этажа
[parent_id] => 4
[material_sum] => 316155
[work_sum] => 198323
[total_sum] => 514478
[total_days] => 8
[display_material_sum] => 316 155
[display_work_sum] => 198 323
[display_total_sum] => 514 478
)
1
514 478₽
Работа:198 323 ₽
Материалы:316 155 ₽
Дни:8
stdClass Object
(
[id] => 8
[attribute_id] => 4
[name] => Сборные ж/б плиты
[material_modifier] => 1
[work_modifier] => 1
[options] => Array
(
[0] => без утепления
[1] => утепление 150 мм
[2] => утепление 200 мм
[3] => утепление 250 мм
[4] => утепление 300 мм
[5] => утепление 350 мм
[6] => утепление 400 мм
[7] => утепление 450 мм
[8] => утепление 500 мм
)
[days] => [13,15,15,15,15,15,15,15,15]
[material_price] => [3067,5577,5928,6679,7730,8782,9833,10884,11935]
[work_price] => [1520,1956,2102,2247,2392,2537,2684,2829,2974]
[image] => https://akademik-stroy.ru/wp-content/uploads/materials/sbornye-zh-b-plity-2.jpg
[area_modifier] => 153.56
[parent_name] => Перекрытие первого этажа
[parent_id] => 4
[material_sum] => 593420
[work_sum] => 245082
[total_sum] => 838502
[total_days] => 13
[display_material_sum] => 593 420
[display_work_sum] => 245 082
[display_total_sum] => 838 502
)
1
838 502₽
Работа:245 082 ₽
Материалы:593 420 ₽
Дни:13
stdClass Object
(
[id] => 89
[attribute_id] => 4
[name] => Монолитная ж/б плита
[material_modifier] => 1
[work_modifier] => 1
[options] => Array
(
[0] => без утепления
[1] => утепление 150 мм
[2] => утепление 200 мм
[3] => утепление 250 мм
[4] => утепление 300 мм
[5] => утепление 350 мм
[6] => утепление 400 мм
[7] => утепление 450 мм
[8] => утепление 500 мм
)
[days] => [18,20,20,20,20,20,20,20,20]
[material_price] => [4837,6572,7224,7375,79426,8177,8728,9180,10031]
[work_price] => [3348,3921,4112,4302,4493,4684,4875,5066,5256]
[image] => https://akademik-stroy.ru/wp-content/uploads/materials/monolitnaya-zh-b-plita-2.jpg
[area_modifier] => 153.56
[parent_name] => Перекрытие первого этажа
[parent_id] => 4
[material_sum] => 935890
[work_sum] => 539825
[total_sum] => 1475715
[total_days] => 18
[display_material_sum] => 935 890
[display_work_sum] => 539 825
[display_total_sum] => 1 475 715
)
1
1 475 715₽
Работа:539 825 ₽
Материалы:935 890 ₽
Дни:18
stdClass Object
(
[id] => 10
[attribute_id] => 5
[name] => Пеноблок
[material_modifier] => 1
[work_modifier] => 1
[options] => Array
(
[0] => 300 мм
[1] => 400 мм
[2] => 500 мм
[3] => 600 мм
)
[days] => [29,31,34,39]
[material_price] => [3000,4000,4500,4937]
[work_price] => [5033,5805,6400,8710]
[image] => https://akademik-stroy.ru/wp-content/uploads/materials/penoblok.jpg
[area_modifier] => 113.49
[parent_name] => Стены 2 этаж (несущие)
[parent_id] => 5
[material_sum] => 428992
[work_sum] => 599755
[total_sum] => 1028747
[total_days] => 29
[display_material_sum] => 428 992
[display_work_sum] => 599 755
[display_total_sum] => 1 028 747
)
1
1 028 747₽
Работа:599 755 ₽
Материалы:428 992 ₽
Дни:29
stdClass Object
(
[id] => 90
[attribute_id] => 5
[name] => Керамический блок
[material_modifier] => 1
[work_modifier] => 1
[options] => Array
(
[0] => 380 мм
[1] => 380 мм Thermo
[2] => 440 мм
[3] => 510 мм
)
[days] => [23,23,24,25]
[material_price] => [4510,5098,6093,8013]
[work_price] => [4737,4937,5903,6958]
[image] => https://akademik-stroy.ru/wp-content/uploads/materials/keramicheskij-blok.jpg
[area_modifier] => 113.49
[parent_name] => Стены 2 этаж (несущие)
[parent_id] => 5
[material_sum] => 644918
[work_sum] => 564482
[total_sum] => 1209400
[total_days] => 23
[display_material_sum] => 644 918
[display_work_sum] => 564 482
[display_total_sum] => 1 209 400
)
1
1 209 400₽
Работа:564 482 ₽
Материалы:644 918 ₽
Дни:23
stdClass Object
(
[id] => 91
[attribute_id] => 5
[name] => Кирпич
[material_modifier] => 1
[work_modifier] => 1
[options] => Array
(
[0] => Кирпич 250 мм
[1] => Кирпич 380 мм
[2] => Кирпич 510 мм
[3] => Кирпич 640 мм
[4] => Кирпич 770 мм
)
[days] => [30,30,31,33,36]
[material_price] => [5500,7142,9206,10171,12235]
[work_price] => [8736,10041,12018,15240,18462]
[image] => https://akademik-stroy.ru/wp-content/uploads/materials/kirpich.jpg
[area_modifier] => 113.49
[parent_name] => Стены 2 этаж (несущие)
[parent_id] => 5
[material_sum] => 786486
[work_sum] => 1041021
[total_sum] => 1827507
[total_days] => 30
[display_material_sum] => 786 486
[display_work_sum] => 1 041 021
[display_total_sum] => 1 827 507
)
1
1 827 507₽
Работа:1 041 021 ₽
Материалы:786 486 ₽
Дни:30
stdClass Object
(
[id] => 92
[attribute_id] => 5
[name] => Монолитные
[material_modifier] => 1
[work_modifier] => 1
[options] => Array
(
[0] => 150 мм
[1] => 200 мм
[2] => 250 мм
[3] => 300 мм
[4] => 350 мм
[5] => 400 мм
)
[days] => [45,46,47,49,50,53]
[material_price] => [6545,7876,10175,12011,13908,15204]
[work_price] => [5106,6444,7698,8552,9807,11461]
[image] => https://akademik-stroy.ru/wp-content/uploads/materials/monolitnye.jpg
[area_modifier] => 113.49
[parent_name] => Стены 2 этаж (несущие)
[parent_id] => 5
[material_sum] => 935918
[work_sum] => 608454
[total_sum] => 1544372
[total_days] => 45
[display_material_sum] => 935 918
[display_work_sum] => 608 454
[display_total_sum] => 1 544 372
)
1
1 544 372₽
Работа:608 454 ₽
Материалы:935 918 ₽
Дни:45
stdClass Object
(
[id] => 93
[attribute_id] => 5
[name] => Клееный брус
[material_modifier] => 1
[work_modifier] => 1
[options] => Array
(
[0] => 160 мм
[1] => 175 мм
[2] => 200 мм
[3] => 215 мм
[4] => 240 мм
[5] => 270 мм
[6] => 282 мм
)
[days] => [24,28,32,37,40,42,48]
[material_price] => [16975,18773,19950,20545,21599,22159,23275]
[work_price] => [4806,5287,5815,6397,7036,7740,8514]
[image] => https://akademik-stroy.ru/wp-content/uploads/materials/kleenyj-brus.jpg
[area_modifier] => 113.49
[parent_name] => Стены 2 этаж (несущие)
[parent_id] => 5
[material_sum] => 2427381
[work_sum] => 572705
[total_sum] => 3000086
[total_days] => 24
[display_material_sum] => 2 427 381
[display_work_sum] => 572 705
[display_total_sum] => 3 000 086
)
1
3 000 086₽
Работа:572 705 ₽
Материалы:2 427 381 ₽
Дни:24
stdClass Object
(
[id] => 94
[attribute_id] => 5
[name] => Каркасные
[material_modifier] => 1
[work_modifier] => 1
[options] => Array
(
[0] => 150 мм
[1] => 200 мм
[2] => 250 мм
[3] => 300 мм
)
[days] => [15,16,17,18]
[material_price] => [2379,2639,2898,3258]
[work_price] => [2418,2686,2985,3716]
[image] => https://akademik-stroy.ru/wp-content/uploads/materials/karkasnye.jpg
[area_modifier] => 113.49
[parent_name] => Стены 2 этаж (несущие)
[parent_id] => 5
[material_sum] => 340191
[work_sum] => 288140
[total_sum] => 628331
[total_days] => 15
[display_material_sum] => 340 191
[display_work_sum] => 288 140
[display_total_sum] => 628 331
)
1
628 331₽
Работа:288 140 ₽
Материалы:340 191 ₽
Дни:15
stdClass Object
(
[id] => 95
[attribute_id] => 5
[name] => СИП-панели
[material_modifier] => 1
[work_modifier] => 1
[options] => Array
(
[0] => 120 мм
[1] => 170 мм
[2] => 220 мм
)
[days] => [7,7,7]
[material_price] => [1210,1856,2292]
[work_price] => [1410,1551,1706]
[image] => https://akademik-stroy.ru/wp-content/uploads/materials/sip-paneli.jpg
[area_modifier] => 113.49
[parent_name] => Стены 2 этаж (несущие)
[parent_id] => 5
[material_sum] => 173027
[work_sum] => 168022
[total_sum] => 341049
[total_days] => 7
[display_material_sum] => 173 027
[display_work_sum] => 168 022
[display_total_sum] => 341 049
)
1
341 049₽
Работа:168 022 ₽
Материалы:173 027 ₽
Дни:7
stdClass Object
(
[id] => 96
[attribute_id] => 5
[name] => Сухой брус
[material_modifier] => 1
[work_modifier] => 1
[options] => Array
(
[0] => 150 мм
[1] => 180 мм
[2] => 200 мм
)
[days] => [7,8,9]
[material_price] => [6010,7190,8709]
[work_price] => [3204,3845,4229]
[image] => https://akademik-stroy.ru/wp-content/uploads/materials/suhoj-brus.jpg
[area_modifier] => 113.49
[parent_name] => Стены 2 этаж (несущие)
[parent_id] => 5
[material_sum] => 859414
[work_sum] => 381803
[total_sum] => 1241217
[total_days] => 7
[display_material_sum] => 859 414
[display_work_sum] => 381 803
[display_total_sum] => 1 241 217
)
1
1 241 217₽
Работа:381 803 ₽
Материалы:859 414 ₽
Дни:7
stdClass Object
(
[id] => 97
[attribute_id] => 5
[name] => Профилированный брус
[material_modifier] => 1
[work_modifier] => 1
[options] => Array
(
[0] => 150 мм
[1] => 180 мм
[2] => 200 мм
)
[days] => [7,8,9]
[material_price] => [8190,9228,10051]
[work_price] => [3845,4614,5075]
[image] => https://akademik-stroy.ru/wp-content/uploads/materials/profilirovannyj-brus.jpg
[area_modifier] => 113.49
[parent_name] => Стены 2 этаж (несущие)
[parent_id] => 5
[material_sum] => 1171149
[work_sum] => 458188
[total_sum] => 1629337
[total_days] => 7
[display_material_sum] => 1 171 149
[display_work_sum] => 458 188
[display_total_sum] => 1 629 337
)
1
1 629 337₽
Работа:458 188 ₽
Материалы:1 171 149 ₽
Дни:7
stdClass Object
(
[id] => 98
[attribute_id] => 5
[name] => Оцилиндрованное бревно
[material_modifier] => 1
[work_modifier] => 1
[options] => Array
(
[0] => 180 мм
[1] => 220 мм
[2] => 260 мм
[3] => 320 мм
)
[days] => [7,8,9,10]
[material_price] => [75190,9532,10868,13116]
[work_price] => [3845,4691,5535,6863]
[image] => https://akademik-stroy.ru/wp-content/uploads/materials/ocilindrovannoe-brevno-1.jpg
[area_modifier] => 113.49
[parent_name] => Стены 2 этаж (несущие)
[parent_id] => 5
[material_sum] => 10751975
[work_sum] => 458188
[total_sum] => 11210163
[total_days] => 7
[display_material_sum] => 10 751 975
[display_work_sum] => 458 188
[display_total_sum] => 11 210 163
)
1
11 210 163₽
Работа:458 188 ₽
Материалы:10 751 975 ₽
Дни:7
stdClass Object
(
[id] => 99
[attribute_id] => 5
[name] => Срубы
[material_modifier] => 1
[work_modifier] => 1
[options] => Array
(
[0] => 260 мм
[1] => 320 мм
[2] => 360 мм
[3] => 400 мм
[4] => 500 мм
)
[days] => [7,8,9,10,11]
[material_price] => [16175,23709,26314,29069,32167]
[work_price] => [4806,5911,6621,7349,9260]
[image] => https://akademik-stroy.ru/wp-content/uploads/materials/suhoj-brus.jpg
[area_modifier] => 113.49
[parent_name] => Стены 2 этаж (несущие)
[parent_id] => 5
[material_sum] => 2312983
[work_sum] => 572705
[total_sum] => 2885688
[total_days] => 7
[display_material_sum] => 2 312 983
[display_work_sum] => 572 705
[display_total_sum] => 2 885 688
)
1
2 885 688₽
Работа:572 705 ₽
Материалы:2 312 983 ₽
Дни:7
stdClass Object
(
[id] => 194
[attribute_id] => 5
[name] => Брус
[material_modifier] => 1
[work_modifier] => 1
[options] => Array
(
[0] => 150 мм
[1] => 180 мм
[2] => 200 мм
)
[days] => [10,13,15]
[material_price] => [5127,6152,7367]
[work_price] => [1602,1922,2115]
[image] => https://akademik-stroy.ru/wp-content/uploads/materials/brus.jpg
[area_modifier] => 113.49
[parent_name] => Стены 2 этаж (несущие)
[parent_id] => 5
[material_sum] => 733148
[work_sum] => 190902
[total_sum] => 924050
[total_days] => 10
[display_material_sum] => 733 148
[display_work_sum] => 190 902
[display_total_sum] => 924 050
)
1
924 050₽
Работа:190 902 ₽
Материалы:733 148 ₽
Дни:10
stdClass Object
(
[id] => 195
[attribute_id] => 5
[name] => Газобетон
[material_modifier] => 1
[work_modifier] => 1
[options] => Array
(
[0] => 300 мм
[1] => 375 мм
[2] => 400 мм
[3] => 500 мм
[4] => 600 мм
)
[days] => [29,31,35,37,44]
[material_price] => [4298,5573,6356,7288,9119]
[work_price] => [4538,5251,5926,6733,7195]
[image] => https://akademik-stroy.ru/wp-content/uploads/materials/gazobeton.jpg
[area_modifier] => 113.49
[parent_name] => Стены 2 этаж (несущие)
[parent_id] => 5
[material_sum] => 614603
[work_sum] => 540769
[total_sum] => 1155372
[total_days] => 29
[display_material_sum] => 614 603
[display_work_sum] => 540 769
[display_total_sum] => 1 155 372
)
1
1 155 372₽
Работа:540 769 ₽
Материалы:614 603 ₽
Дни:29
stdClass Object
(
[id] => 196
[attribute_id] => 5
[name] => Блок
[material_modifier] => 1
[work_modifier] => 1
[options] => Array
(
[0] => 300 мм
[1] => 375 мм
[2] => 400 мм
[3] => 500 мм
[4] => 600 мм
)
[days] => [29,31,35,37,44]
[material_price] => [2698,3973,4356,6588,7119]
[work_price] => [5038,5851,6426,8733,9195]
[image] => https://akademik-stroy.ru/wp-content/uploads/materials/blok.jpg
[area_modifier] => 113.49
[parent_name] => Стены 2 этаж (несущие)
[parent_id] => 5
[material_sum] => 385807
[work_sum] => 600351
[total_sum] => 986158
[total_days] => 29
[display_material_sum] => 385 807
[display_work_sum] => 600 351
[display_total_sum] => 986 158
)
1
986 158₽
Работа:600 351 ₽
Материалы:385 807 ₽
Дни:29
stdClass Object
(
[id] => 197
[attribute_id] => 5
[name] => Газосиликатный блок
[material_modifier] => 1
[work_modifier] => 1
[options] => Array
(
[0] => 300 мм
[1] => 375 мм
[2] => 400 мм
[3] => 500 мм
[4] => 600 мм
)
[days] => [29,31,35,37,44]
[material_price] => [4298,5573,6356,7288,9119]
[work_price] => [4538,5251,5926,6733,7195]
[image] => https://akademik-stroy.ru/wp-content/uploads/materials/gazosilikatnyj-blok.jpg
[area_modifier] => 113.49
[parent_name] => Стены 2 этаж (несущие)
[parent_id] => 5
[material_sum] => 614603
[work_sum] => 540769
[total_sum] => 1155372
[total_days] => 29
[display_material_sum] => 614 603
[display_work_sum] => 540 769
[display_total_sum] => 1 155 372
)
1
1 155 372₽
Работа:540 769 ₽
Материалы:614 603 ₽
Дни:29
stdClass Object
(
[id] => 198
[attribute_id] => 5
[name] => Керамзитобетонный блок
[material_modifier] => 1
[work_modifier] => 1
[options] => Array
(
[0] => 300 мм
[1] => 375 мм
[2] => 400 мм
[3] => 500 мм
[4] => 600 мм
)
[days] => [23,23,24,25,28]
[material_price] => [3641,4298,5693,7613,9612]
[work_price] => [5737,5737,6903,7958,8901]
[image] => https://akademik-stroy.ru/wp-content/uploads/materials/keramzitobetonnyj-blok.jpg
[area_modifier] => 113.49
[parent_name] => Стены 2 этаж (несущие)
[parent_id] => 5
[material_sum] => 520654
[work_sum] => 683647
[total_sum] => 1204301
[total_days] => 23
[display_material_sum] => 520 654
[display_work_sum] => 683 647
[display_total_sum] => 1 204 301
)
1
1 204 301₽
Работа:683 647 ₽
Материалы:520 654 ₽
Дни:23
stdClass Object
(
[id] => 199
[attribute_id] => 5
[name] => Деревянные
[material_modifier] => 1
[work_modifier] => 1
[options] => Array
(
[0] => 180 мм
[1] => 220 мм
[2] => 260 мм
[3] => 320 мм
)
[days] => [7,8,9,10]
[material_price] => [7950,9458,11961,14472]
[work_price] => [4037,4925,5812,7207]
[image] => https://akademik-stroy.ru/wp-content/uploads/materials/derevyannye.jpg
[area_modifier] => 113.49
[parent_name] => Стены 2 этаж (несущие)
[parent_id] => 5
[material_sum] => 1136829
[work_sum] => 481067
[total_sum] => 1617896
[total_days] => 7
[display_material_sum] => 1 136 829
[display_work_sum] => 481 067
[display_total_sum] => 1 617 896
)
1
1 617 896₽
Работа:481 067 ₽
Материалы:1 136 829 ₽
Дни:7
stdClass Object
(
[id] => 200
[attribute_id] => 5
[name] => Камень
[material_modifier] => 1
[work_modifier] => 1
[options] => Array
(
[0] => 300 мм
[1] => 400 мм
[2] => 500 мм
[3] => 600 мм
)
[days] => [25,27,31,34]
[material_price] => [5262,6844,8330,9815]
[work_price] => [8331,9135,10427,11069]
[image] => https://akademik-stroy.ru/wp-content/uploads/materials/kamen.jpg
[area_modifier] => 113.49
[parent_name] => Стены 2 этаж (несущие)
[parent_id] => 5
[material_sum] => 752452
[work_sum] => 992759
[total_sum] => 1745211
[total_days] => 25
[display_material_sum] => 752 452
[display_work_sum] => 992 759
[display_total_sum] => 1 745 211
)
1
1 745 211₽
Работа:992 759 ₽
Материалы:752 452 ₽
Дни:25
stdClass Object
(
[id] => 201
[attribute_id] => 5
[name] => Каркасно-щитовые
[material_modifier] => 1
[work_modifier] => 1
[options] => Array
(
[0] => 150 мм
[1] => 200 мм
[2] => 250 мм
[3] => 300 мм
[4] => 350 мм
[5] => 400 мм
)
[days] => [15,16,17,18,19,20]
[material_price] => [2379,2639,2898,3458,3601,4175]
[work_price] => [2538,2820,3134,3483,4062,5642]
[image] => https://akademik-stroy.ru/wp-content/uploads/materials/karkasno-shchitovye.jpg
[area_modifier] => 113.49
[parent_name] => Стены 2 этаж (несущие)
[parent_id] => 5
[material_sum] => 340191
[work_sum] => 302440
[total_sum] => 642631
[total_days] => 15
[display_material_sum] => 340 191
[display_work_sum] => 302 440
[display_total_sum] => 642 631
)
1
642 631₽
Работа:302 440 ₽
Материалы:340 191 ₽
Дни:15
stdClass Object
(
[id] => 202
[attribute_id] => 5
[name] => Рубленные
[material_modifier] => 1
[work_modifier] => 1
[options] => Array
(
[0] => 150 мм
[1] => 200 мм
[2] => 250 мм
[3] => 300 мм
[4] => 350 мм
[5] => 400 мм
)
[days] => [15,16,17,18,17,18]
[material_price] => [35950,50267,60583,75900,80217,100533]
[work_price] => [9612,12816,16020,19224,22428,25632]
[image] => https://akademik-stroy.ru/wp-content/uploads/materials/rublennye.jpg
[area_modifier] => 113.49
[parent_name] => Стены 2 этаж (несущие)
[parent_id] => 5
[material_sum] => 5140757
[work_sum] => 1145409
[total_sum] => 6286166
[total_days] => 15
[display_material_sum] => 5 140 757
[display_work_sum] => 1 145 409
[display_total_sum] => 6 286 166
)
1
6 286 166₽
Работа:1 145 409 ₽
Материалы:5 140 757 ₽
Дни:15
stdClass Object
(
[id] => 203
[attribute_id] => 5
[name] => Теплоблок
[material_modifier] => 1
[work_modifier] => 1
[options] => Array
(
[0] => 300 мм (с облицовкой, не покрашенный)
[1] => 400 мм (с облицовкой, не покрашенный)
[2] => 300 мм (с облицовкой, покрашенный)
[3] => 400 мм (с облицовкой, покрашенный)
)
[days] => [15,16,15,16]
[material_price] => [2888,3729,3957,4258]
[work_price] => [2564,3229,2949,3713]
[image] => https://akademik-stroy.ru/wp-content/uploads/materials/teploblok.jpg
[area_modifier] => 113.49
[parent_name] => Стены 2 этаж (несущие)
[parent_id] => 5
[material_sum] => 412976
[work_sum] => 305538
[total_sum] => 718514
[total_days] => 15
[display_material_sum] => 412 976
[display_work_sum] => 305 538
[display_total_sum] => 718 514
)
1
718 514₽
Работа:305 538 ₽
Материалы:412 976 ₽
Дни:15
stdClass Object
(
[id] => 204
[attribute_id] => 5
[name] => Арболитовые блоки
[material_modifier] => 1
[work_modifier] => 1
[options] => Array
(
[0] => 300 мм
[1] => 400 мм
[2] => 600 мм
)
[days] => [19,22,27]
[material_price] => [3210,4475,5852]
[work_price] => [4214,4788,5866]
[image] => https://akademik-stroy.ru/wp-content/uploads/materials/arbolitovye-bloki.png
[area_modifier] => 113.49
[parent_name] => Стены 2 этаж (несущие)
[parent_id] => 5
[material_sum] => 459022
[work_sum] => 502159
[total_sum] => 961181
[total_days] => 19
[display_material_sum] => 459 022
[display_work_sum] => 502 159
[display_total_sum] => 961 181
)
1
961 181₽
Работа:502 159 ₽
Материалы:459 022 ₽
Дни:19
stdClass Object
(
[id] => 205
[attribute_id] => 5
[name] => Полистиролбетон
[material_modifier] => 1
[work_modifier] => 1
[options] => Array
(
[0] => 300 мм
[1] => 400 мм
[2] => 600 мм
)
[days] => [29,31,35]
[material_price] => [2798,4573,5256]
[work_price] => [5038,5851,6426]
[image] => https://akademik-stroy.ru/wp-content/uploads/materials/polistirolbeton.jpg
[area_modifier] => 113.49
[parent_name] => Стены 2 этаж (несущие)
[parent_id] => 5
[material_sum] => 400107
[work_sum] => 600351
[total_sum] => 1000458
[total_days] => 29
[display_material_sum] => 400 107
[display_work_sum] => 600 351
[display_total_sum] => 1 000 458
)
1
1 000 458₽
Работа:600 351 ₽
Материалы:400 107 ₽
Дни:29
stdClass Object
(
[id] => 206
[attribute_id] => 5
[name] => Шлакоблок
[material_modifier] => 1
[work_modifier] => 1
[options] => Array
(
[0] => 400 мм
[1] => 600 мм
)
[days] => [15,16]
[material_price] => [2391,3471]
[work_price] => [2642,3662]
[image] => https://akademik-stroy.ru/wp-content/uploads/materials/shlakoblok.jpg
[area_modifier] => 113.49
[parent_name] => Стены 2 этаж (несущие)
[parent_id] => 5
[material_sum] => 341907
[work_sum] => 314833
[total_sum] => 656740
[total_days] => 15
[display_material_sum] => 341 907
[display_work_sum] => 314 833
[display_total_sum] => 656 740
)
1
656 740₽
Работа:314 833 ₽
Материалы:341 907 ₽
Дни:15
stdClass Object
(
[id] => 245
[attribute_id] => 5
[name] => Теплая керамика
[material_modifier] => 1
[work_modifier] => 1
[options] => Array
(
[0] => 380 мм
[1] => 380 мм Thermo
[2] => 440 мм
[3] => 510 мм
)
[days] => [10,10,11,12]
[material_price] => [4510,5098,6093,8013]
[work_price] => [4737,4937,5903,6958]
[image] => https://akademik-stroy.ru/wp-content/uploads/materials/teplaya-keramika.jpg
[area_modifier] => 113.49
[parent_name] => Стены 2 этаж (несущие)
[parent_id] => 5
[material_sum] => 644918
[work_sum] => 564482
[total_sum] => 1209400
[total_days] => 10
[display_material_sum] => 644 918
[display_work_sum] => 564 482
[display_total_sum] => 1 209 400
)
1
1 209 400₽
Работа:564 482 ₽
Материалы:644 918 ₽
Дни:10
stdClass Object
(
[id] => 246
[attribute_id] => 5
[name] => Несъемная опалубка
[material_modifier] => 1
[work_modifier] => 1
[options] => Array
(
[0] => 380 мм
[1] => 380 мм Thermo
[2] => 440 мм
[3] => 510 мм
)
[days] => [10,10,11,12]
[material_price] => [3302,3902,4108,5008]
[work_price] => [2100,2100,2300,2534]
[image] => https://akademik-stroy.ru/wp-content/uploads/materials/nesemnaya-opalubka.jpg
[area_modifier] => 113.49
[parent_name] => Стены 2 этаж (несущие)
[parent_id] => 5
[material_sum] => 472177
[work_sum] => 250245
[total_sum] => 722422
[total_days] => 10
[display_material_sum] => 472 177
[display_work_sum] => 250 245
[display_total_sum] => 722 422
)
1
722 422₽
Работа:250 245 ₽
Материалы:472 177 ₽
Дни:10
stdClass Object
(
[id] => 254
[attribute_id] => 5
[name] => Бревно
[material_modifier] => 1
[work_modifier] => 1
[options] => Array
(
[0] => 260 мм
[1] => 320 мм
[2] => 360 мм
[3] => 400 мм
[4] => 500 мм
)
[days] => [7,8,9,10,11]
[material_price] => [1874,24045,26930,30972,38825]
[work_price] => [5046,6207,6952,7716,9723]
[image] => https://akademik-stroy.ru/wp-content/uploads/materials/sruby.jpg
[area_modifier] => 113.49
[parent_name] => Стены 2 этаж (несущие)
[parent_id] => 5
[material_sum] => 267977
[work_sum] => 601304
[total_sum] => 869281
[total_days] => 7
[display_material_sum] => 267 977
[display_work_sum] => 601 304
[display_total_sum] => 869 281
)
1
869 281₽
Работа:601 304 ₽
Материалы:267 977 ₽
Дни:7
stdClass Object
(
[id] => 11
[attribute_id] => 6
[name] => Деревянные балки
[material_modifier] => 1
[work_modifier] => 1
[options] => Array
(
[0] => без утепления
[1] => утепление 200 мм
[2] => утепление 250 мм
[3] => утепление 300 мм
[4] => утепление 350 мм
[5] => утепление 400 мм
[6] => утепление 450 мм
[7] => утепление 500 мм
)
[days] => [8,9,9,9,11,12,13,14]
[material_price] => [1634,2042,2344,2947,3149,3652,3354,3557]
[work_price] => [1230,1339,1393,1426,1460,1513,1587,1620]
[image] => https://akademik-stroy.ru/wp-content/uploads/materials/derevyannye-balki.png
[area_modifier] => 113.49
[parent_name] => Перекрытие второго этажа
[parent_id] => 6
[material_sum] => 233658
[work_sum] => 146572
[total_sum] => 380230
[total_days] => 8
[display_material_sum] => 233 658
[display_work_sum] => 146 572
[display_total_sum] => 380 230
)
1
380 230₽
Работа:146 572 ₽
Материалы:233 658 ₽
Дни:8
stdClass Object
(
[id] => 12
[attribute_id] => 6
[name] => Сборные ж/б плиты
[material_modifier] => 1
[work_modifier] => 1
[options] => Array
(
[0] => без утепления
[1] => утепление 150 мм
[2] => утепление 200 мм
[3] => утепление 250 мм
[4] => утепление 300 мм
[5] => утепление 350 мм
[6] => утепление 400 мм
[7] => утепление 450 мм
[8] => утепление 500 мм
)
[days] => [13,15,15,15,15,15,15,15,15]
[material_price] => [3067,5577,5928,6679,7730,8782,9833,10884,11935]
[work_price] => [1520,1956,2102,2247,2392,2537,2684,2829,2974]
[image] => https://akademik-stroy.ru/wp-content/uploads/materials/sbornye-zh-b-plity-2.jpg
[area_modifier] => 113.49
[parent_name] => Перекрытие второго этажа
[parent_id] => 6
[material_sum] => 438573
[work_sum] => 181130
[total_sum] => 619703
[total_days] => 13
[display_material_sum] => 438 573
[display_work_sum] => 181 130
[display_total_sum] => 619 703
)
1
619 703₽
Работа:181 130 ₽
Материалы:438 573 ₽
Дни:13
stdClass Object
(
[id] => 100
[attribute_id] => 6
[name] => Монолитная ж/б плита
[material_modifier] => 1
[work_modifier] => 1
[options] => Array
(
[0] => без утепления
[1] => утепление 150 мм
[2] => утепление 200 мм
[3] => утепление 250 мм
[4] => утепление 300 мм
[5] => утепление 350 мм
[6] => утепление 400 мм
[7] => утепление 450 мм
[8] => утепление 500 мм
)
[days] => [18,20,20,20,20,20,20,20,20]
[material_price] => [4837,6572,7224,7375,79426,8177,8728,9180,10031]
[work_price] => [3348,3921,4112,4302,4493,4684,4875,5066,5256]
[image] => https://akademik-stroy.ru/wp-content/uploads/materials/monolitnaya-zh-b-plita-2.jpg
[area_modifier] => 113.49
[parent_name] => Перекрытие второго этажа
[parent_id] => 6
[material_sum] => 691678
[work_sum] => 398963
[total_sum] => 1090641
[total_days] => 18
[display_material_sum] => 691 678
[display_work_sum] => 398 963
[display_total_sum] => 1 090 641
)
1
1 090 641₽
Работа:398 963 ₽
Материалы:691 678 ₽
Дни:18
stdClass Object
(
[id] => 160
[attribute_id] => 36
[name] => Не эксплуатируемая
[material_modifier] => 1
[work_modifier] => 1
[options] => Array
(
)
[days] => [10]
[material_price] => [8068]
[work_price] => [4163]
[image] => https://akademik-stroy.ru/wp-content/uploads/materials/ne-ehkspluatiruemaya-3.jpg
[area_modifier] => 153.56
[parent_name] => Плоская крыша
[parent_id] => 36
[material_sum] => 1561042
[work_sum] => 671234
[total_sum] => 2232276
[total_days] => 10
[display_material_sum] => 1 561 042
[display_work_sum] => 671 234
[display_total_sum] => 2 232 276
)
1
2 232 276₽
Работа:671 234 ₽
Материалы:1 561 042 ₽
Дни:10
stdClass Object
(
[id] => 161
[attribute_id] => 36
[name] => Зеленая кровля (Эксплуатируемая)
[material_modifier] => 1
[work_modifier] => 1
[options] => Array
(
)
[days] => [10]
[material_price] => [10056]
[work_price] => [8446]
[image] => https://akademik-stroy.ru/wp-content/uploads/materials/zelenaya-krovlya-2.jpg
[area_modifier] => 153.56
[parent_name] => Плоская крыша
[parent_id] => 36
[material_sum] => 1945691
[work_sum] => 1361816
[total_sum] => 3307507
[total_days] => 10
[display_material_sum] => 1 945 691
[display_work_sum] => 1 361 816
[display_total_sum] => 3 307 507
)
1
3 307 507₽
Работа:1 361 816 ₽
Материалы:1 945 691 ₽
Дни:10
stdClass Object
(
[id] => 162
[attribute_id] => 36
[name] => Эксплуатируемая
[material_modifier] => 1
[work_modifier] => 1
[options] => Array
(
)
[days] => [10]
[material_price] => [9593]
[work_price] => [7459]
[image] => https://akademik-stroy.ru/wp-content/uploads/materials/ehkspluatiruemaya-2.jpg
[area_modifier] => 153.56
[parent_name] => Плоская крыша
[parent_id] => 36
[material_sum] => 1856107
[work_sum] => 1202674
[total_sum] => 3058781
[total_days] => 10
[display_material_sum] => 1 856 107
[display_work_sum] => 1 202 674
[display_total_sum] => 3 058 781
)
1
3 058 781₽
Работа:1 202 674 ₽
Материалы:1 856 107 ₽
Дни:10
stdClass Object
(
[id] => 163
[attribute_id] => 36
[name] => Нет
[material_modifier] => 1
[work_modifier] => 1
[options] => Array
(
)
[days] => [0]
[material_price] => [0]
[work_price] => [0]
[image] => https://akademik-stroy.ru/wp-content/uploads/materials/ne-ehkspluatiruemaya-3.jpg
[area_modifier] => 153.56
[parent_name] => Плоская крыша
[parent_id] => 36
[material_sum] => 0
[work_sum] => 0
[total_sum] => 0
[total_days] => 0
[display_material_sum] => 0
[display_work_sum] => 0
[display_total_sum] => 0
)
1
0₽
Работа:0 ₽
Материалы:0 ₽
Дни:0
stdClass Object
(
[id] => 51
[attribute_id] => 26
[name] => Есть
[material_modifier] => 1
[work_modifier] => 1
[options] => Array
(
[0] => Профиль 58 мм, 3-камерный, стеклопакет 2-камерный до 32 мм
[1] => Профиль 60 мм, 4-камерный, стеклопакет 2-камерный до 32 мм
[2] => Профиль 70 мм, 5-камерный, стеклопакет 2-камерный до 40 мм
[3] => Профиль 72 мм, 5-камерный, стеклопакет 2-камерный до 40 мм
[4] => Алюминиевые окна Alutech профиль 72 мм, стеклопакет 2-камерный
)
[days] => [3,3,3,3,3]
[material_price] => [1339,2124,2867,3023,29596]
[work_price] => [635,647,659,668,2579]
[image] => https://akademik-stroy.ru/wp-content/uploads/materials/okna.jpg
[area_modifier] => 216.71
[parent_name] => Окна
[parent_id] => 26
[material_sum] => 365620
[work_sum] => 144491
[total_sum] => 510111
[total_days] => 3
[display_material_sum] => 365 620
[display_work_sum] => 144 491
[display_total_sum] => 510 111
)
1
510 111₽
Работа:144 491 ₽
Материалы:365 620 ₽
Дни:3
stdClass Object
(
[id] => 52
[attribute_id] => 26
[name] => Нет
[material_modifier] => 2
[work_modifier] => 1
[options] =>
[days] => null
[material_price] => null
[work_price] => null
[image] => https://akademik-stroy.ru/wp-content/uploads/materials/okna.jpg
[area_modifier] => 216.71
[parent_name] => Окна
[parent_id] => 26
[material_sum] => 0
[work_sum] => 0
[total_sum] => 0
[total_days] => 0
[display_material_sum] => 0
[display_work_sum] => 0
[display_total_sum] => 0
)
1
0₽
Работа:0 ₽
Материалы:0 ₽
Дни:0
stdClass Object
(
[id] => 53
[attribute_id] => 27
[name] => Есть
[material_modifier] => 1
[work_modifier] => 1
[options] => Array
(
)
[days] => [1]
[material_price] => [10000]
[work_price] => [5500]
[image] => https://akademik-stroy.ru/wp-content/uploads/materials/dveri.jpg
[area_modifier] => 1
[parent_name] => Двери входные
[parent_id] => 27
[material_sum] => 12600
[work_sum] => 5775
[total_sum] => 18375
[total_days] => 1
[display_material_sum] => 12 600
[display_work_sum] => 5 775
[display_total_sum] => 18 375
)
1
18 375₽
Работа:5 775 ₽
Материалы:12 600 ₽
Дни:1
stdClass Object
(
[id] => 54
[attribute_id] => 27
[name] => Нет
[material_modifier] => 1
[work_modifier] => 1
[options] => Array
(
)
[days] => [0]
[material_price] => [0]
[work_price] => [0]
[image] => https://akademik-stroy.ru/wp-content/uploads/materials/dveri.jpg
[area_modifier] => 1
[parent_name] => Двери входные
[parent_id] => 27
[material_sum] => 0
[work_sum] => 0
[total_sum] => 0
[total_days] => 0
[display_material_sum] => 0
[display_work_sum] => 0
[display_total_sum] => 0
)
1
0₽
Работа:0 ₽
Материалы:0 ₽
Дни:0
stdClass Object
(
[id] => 31
[attribute_id] => 16
[name] => Нет
[material_modifier] => 1
[work_modifier] => 1
[options] => Array
(
)
[days] => [0]
[material_price] => [0]
[work_price] => [0]
[image] => https://akademik-stroy.ru/wp-content/uploads/materials/docke-standard-pvh.jpg
[area_modifier] => 153.56
[parent_name] => Водосточная система
[parent_id] => 16
[material_sum] => 0
[work_sum] => 0
[total_sum] => 0
[total_days] => 0
[display_material_sum] => 0
[display_work_sum] => 0
[display_total_sum] => 0
)
1
0₽
Работа:0 ₽
Материалы:0 ₽
Дни:0
stdClass Object
(
[id] => 32
[attribute_id] => 16
[name] => Есть
[material_modifier] => 1
[work_modifier] => 1
[options] => Array
(
[0] => Döcke Standard (ПВХ)
[1] => Металлические Grand Line
)
[days] => [7,7]
[material_price] => [1842,2703]
[work_price] => [1491,1529]
[image] => https://akademik-stroy.ru/wp-content/uploads/materials/docke-standard-pvh.jpg
[area_modifier] => 153.56
[parent_name] => Водосточная система
[parent_id] => 16
[material_sum] => 356400
[work_sum] => 240406
[total_sum] => 596806
[total_days] => 7
[display_material_sum] => 356 400
[display_work_sum] => 240 406
[display_total_sum] => 596 806
)
1
596 806₽
Работа:240 406 ₽
Материалы:356 400 ₽
Дни:7
stdClass Object
(
[id] => 33
[attribute_id] => 17
[name] => Нет
[material_modifier] => 1
[work_modifier] => 1
[options] => Array
(
)
[days] => [0]
[material_price] => [0]
[work_price] => [0]
[image] => https://akademik-stroy.ru/wp-content/uploads/materials/mineralovata.jpg
[area_modifier] => 267.05
[parent_name] => Дополнительное утепление наружных стен
[parent_id] => 17
[material_sum] => 0
[work_sum] => 0
[total_sum] => 0
[total_days] => 0
[display_material_sum] => 0
[display_work_sum] => 0
[display_total_sum] => 0
)
1
0₽
Работа:0 ₽
Материалы:0 ₽
Дни:0
stdClass Object
(
[id] => 34
[attribute_id] => 17
[name] => Минераловатный
[material_modifier] => 1
[work_modifier] => 1
[options] => Array
(
[0] => 50 мм
[1] => 100 мм
[2] => 150 мм
[3] => 200 мм
[4] => 250 мм
[5] => 300 мм
)
[days] => [7,8,10,12,14,15]
[material_price] => [3437,3613,3803,3915,4601,4830]
[work_price] => [2325,2423,2523,2749,2859,3025]
[image] => https://akademik-stroy.ru/wp-content/uploads/materials/mineralovata.jpg
[area_modifier] => 267.05
[parent_name] => Дополнительное утепление наружных стен
[parent_id] => 17
[material_sum] => 1156492
[work_sum] => 651936
[total_sum] => 1808428
[total_days] => 7
[display_material_sum] => 1 156 492
[display_work_sum] => 651 936
[display_total_sum] => 1 808 428
)
1
1 808 428₽
Работа:651 936 ₽
Материалы:1 156 492 ₽
Дни:7
stdClass Object
(
[id] => 128
[attribute_id] => 17
[name] => Эковата (целлюлозная вата)
[material_modifier] => 1
[work_modifier] => 1
[options] => Array
(
[0] => 50 мм
[1] => 100 мм
[2] => 150 мм
[3] => 200 мм
[4] => 250 мм
[5] => 300 мм
)
[days] => [3,4,5,6,7,8]
[material_price] => [810,1319,1629,1838,2267,2676]
[work_price] => [1225,1323,1423,1549,1659,1725]
[image] => https://akademik-stroy.ru/wp-content/uploads/materials/ehkovata.jpg
[area_modifier] => 267.05
[parent_name] => Дополнительное утепление наружных стен
[parent_id] => 17
[material_sum] => 272551
[work_sum] => 343493
[total_sum] => 616044
[total_days] => 3
[display_material_sum] => 272 551
[display_work_sum] => 343 493
[display_total_sum] => 616 044
)
1
616 044₽
Работа:343 493 ₽
Материалы:272 551 ₽
Дни:3
stdClass Object
(
[id] => 129
[attribute_id] => 17
[name] => Экструдированный пенополистирол
[material_modifier] => 1
[work_modifier] => 1
[options] => Array
(
[0] => 50 мм
[1] => 100 мм
[2] => 150 мм
[3] => 200 мм
[4] => 250 мм
[5] => 300 мм
)
[days] => [5,6,7,8,9,10]
[material_price] => [4560,4300,5119,6292,7010,8583]
[work_price] => [1795,1954,2254,2330,2595,2735]
[image] => https://akademik-stroy.ru/wp-content/uploads/materials/epps.jpg
[area_modifier] => 267.05
[parent_name] => Дополнительное утепление наружных стен
[parent_id] => 17
[material_sum] => 1534362
[work_sum] => 503322
[total_sum] => 2037684
[total_days] => 5
[display_material_sum] => 1 534 362
[display_work_sum] => 503 322
[display_total_sum] => 2 037 684
)
1
2 037 684₽
Работа:503 322 ₽
Материалы:1 534 362 ₽
Дни:5
stdClass Object
(
[id] => 130
[attribute_id] => 17
[name] => ПСБ (ППС-пенополистирол)
[material_modifier] => 1
[work_modifier] => 1
[options] => Array
(
[0] => 50 мм
[1] => 100 мм
[2] => 150 мм
[3] => 200 мм
[4] => 250 мм
[5] => 300 мм
)
[days] => [5,6,7,8,9,10]
[material_price] => [4822,5200,5819,6292,7010,7583]
[work_price] => [1795,1954,2254,2330,2595,2735]
[image] => https://akademik-stroy.ru/wp-content/uploads/materials/psb.jpg
[area_modifier] => 267.05
[parent_name] => Дополнительное утепление наружных стен
[parent_id] => 17
[material_sum] => 1622521
[work_sum] => 503322
[total_sum] => 2125843
[total_days] => 5
[display_material_sum] => 1 622 521
[display_work_sum] => 503 322
[display_total_sum] => 2 125 843
)
1
2 125 843₽
Работа:503 322 ₽
Материалы:1 622 521 ₽
Дни:5
stdClass Object
(
[id] => 131
[attribute_id] => 17
[name] => ППУ (Пенополиуретан)
[material_modifier] => 1
[work_modifier] => 1
[options] => Array
(
[0] => 50 мм
[1] => 100 мм
[2] => 150 мм
[3] => 200 мм
[4] => 250 мм
[5] => 300 мм
)
[days] => [3,4,5,6,7,8]
[material_price] => [2860,3400,4219,4592,5010,5583]
[work_price] => [729,900,980,1120,1280,1530]
[image] => https://akademik-stroy.ru/wp-content/uploads/materials/ppu.jpg
[area_modifier] => 267.05
[parent_name] => Дополнительное утепление наружных стен
[parent_id] => 17
[material_sum] => 962341
[work_sum] => 204413
[total_sum] => 1166754
[total_days] => 3
[display_material_sum] => 962 341
[display_work_sum] => 204 413
[display_total_sum] => 1 166 754
)
1
1 166 754₽
Работа:204 413 ₽
Материалы:962 341 ₽
Дни:3
stdClass Object
(
[id] => 132
[attribute_id] => 17
[name] => PIR-плиты (пенополиизоцианурат)
[material_modifier] => 1
[work_modifier] => 1
[options] => Array
(
[0] => 50 мм
[1] => 100 мм
[2] => 150 мм
[3] => 200 мм
[4] => 250 мм
[5] => 300 мм
)
[days] => [5,6,7,8,9,10]
[material_price] => [8323,15645,20968,25900,29258,30581]
[work_price] => [800,900,970,1150,1280,1330]
[image] => https://akademik-stroy.ru/wp-content/uploads/materials/pir.jpg
[area_modifier] => 267.05
[parent_name] => Дополнительное утепление наружных стен
[parent_id] => 17
[material_sum] => 2800548
[work_sum] => 224322
[total_sum] => 3024870
[total_days] => 5
[display_material_sum] => 2 800 548
[display_work_sum] => 224 322
[display_total_sum] => 3 024 870
)
1
3 024 870₽
Работа:224 322 ₽
Материалы:2 800 548 ₽
Дни:5
stdClass Object
(
[id] => 37
[attribute_id] => 19
[name] => Нет
[material_modifier] => 1
[work_modifier] => 1
[options] => Array
(
)
[days] => [0]
[material_price] => [0]
[work_price] => [0]
[image] => https://akademik-stroy.ru/wp-content/uploads/materials/imitaciya-brusa.jpg
[area_modifier] => 267.05
[parent_name] => Наружная отделка фасада
[parent_id] => 19
[material_sum] => 0
[work_sum] => 0
[total_sum] => 0
[total_days] => 0
[display_material_sum] => 0
[display_work_sum] => 0
[display_total_sum] => 0
)
1
0₽
Работа:0 ₽
Материалы:0 ₽
Дни:0
stdClass Object
(
[id] => 38
[attribute_id] => 19
[name] => Имитация бруса
[material_modifier] => 1
[work_modifier] => 1
[options] => Array
(
[0] => Сосна
[1] => Ель
[2] => Лиственница
)
[days] => [20,20,20]
[material_price] => [2994,2762,4954]
[work_price] => [1397,1231,1577]
[image] => https://akademik-stroy.ru/wp-content/uploads/materials/imitaciya-brusa.jpg
[area_modifier] => 267.05
[parent_name] => Наружная отделка фасада
[parent_id] => 19
[material_sum] => 1007430
[work_sum] => 391722
[total_sum] => 1399152
[total_days] => 20
[display_material_sum] => 1 007 430
[display_work_sum] => 391 722
[display_total_sum] => 1 399 152
)
1
1 399 152₽
Работа:391 722 ₽
Материалы:1 007 430 ₽
Дни:20
stdClass Object
(
[id] => 136
[attribute_id] => 19
[name] => Планкен
[material_modifier] => 1
[work_modifier] => 1
[options] => Array
(
[0] => Сосна
[1] => Ель
[2] => Лиственница
)
[days] => [20,20,20]
[material_price] => [3194,2862,5154]
[work_price] => [1537,1354,1735]
[image] => https://akademik-stroy.ru/wp-content/uploads/materials/planken.jpg
[area_modifier] => 267.05
[parent_name] => Наружная отделка фасада
[parent_id] => 19
[material_sum] => 1074727
[work_sum] => 430979
[total_sum] => 1505706
[total_days] => 20
[display_material_sum] => 1 074 727
[display_work_sum] => 430 979
[display_total_sum] => 1 505 706
)
1
1 505 706₽
Работа:430 979 ₽
Материалы:1 074 727 ₽
Дни:20
stdClass Object
(
[id] => 137
[attribute_id] => 19
[name] => Штукатурка
[material_modifier] => 1
[work_modifier] => 1
[options] => Array
(
[0] => Цементно-песчаная (минеральная)
[1] => Мокрый фасад
)
[days] => [35,35]
[material_price] => [2231,3938]
[work_price] => [1202,2422]
[image] => https://akademik-stroy.ru/wp-content/uploads/materials/shtukaturka.jpg
[area_modifier] => 267.05
[parent_name] => Наружная отделка фасада
[parent_id] => 19
[material_sum] => 750694
[work_sum] => 337044
[total_sum] => 1087738
[total_days] => 35
[display_material_sum] => 750 694
[display_work_sum] => 337 044
[display_total_sum] => 1 087 738
)
1
1 087 738₽
Работа:337 044 ₽
Материалы:750 694 ₽
Дни:35
stdClass Object
(
[id] => 138
[attribute_id] => 19
[name] => Облицовочный кирпич
[material_modifier] => 1
[work_modifier] => 1
[options] => Array
(
[0] => Керамический
[1] => Клинкерный
[2] => Ручной формовки
[3] => Гиперпрессованный
[4] => Силикатный кирпич
)
[days] => [45,45,45,45,45]
[material_price] => [8174,9148,1040,1257,5876]
[work_price] => [3240,3758,4536,4017,3369]
[image] => https://akademik-stroy.ru/wp-content/uploads/materials/oblicovochnyj-kirpich.jpg
[area_modifier] => 267.05
[parent_name] => Наружная отделка фасада
[parent_id] => 19
[material_sum] => 2750412
[work_sum] => 908504
[total_sum] => 3658916
[total_days] => 45
[display_material_sum] => 2 750 412
[display_work_sum] => 908 504
[display_total_sum] => 3 658 916
)
1
3 658 916₽
Работа:908 504 ₽
Материалы:2 750 412 ₽
Дни:45
stdClass Object
(
[id] => 139
[attribute_id] => 19
[name] => Фасадная плитка
[material_modifier] => 1
[work_modifier] => 1
[options] => Array
(
[0] => Клинкерная
[1] => Керамическая
[2] => Плитка ручной формовки
)
[days] => [40,40,40]
[material_price] => [2974,1487,3470]
[work_price] => [3007,2592,3629]
[image] => https://akademik-stroy.ru/wp-content/uploads/materials/fasadnaya-plitka.jpg
[area_modifier] => 267.05
[parent_name] => Наружная отделка фасада
[parent_id] => 19
[material_sum] => 1000700
[work_sum] => 843170
[total_sum] => 1843870
[total_days] => 40
[display_material_sum] => 1 000 700
[display_work_sum] => 843 170
[display_total_sum] => 1 843 870
)
1
1 843 870₽
Работа:843 170 ₽
Материалы:1 000 700 ₽
Дни:40
stdClass Object
(
[id] => 140
[attribute_id] => 19
[name] => Сайдинг
[material_modifier] => 1
[work_modifier] => 1
[options] => Array
(
[0] => Виниловый
[1] => Металлический
[2] => Фиброцементный
)
[days] => [20,20,20]
[material_price] => [1263,1944,4147]
[work_price] => [1263,1944,2074]
[image] => https://akademik-stroy.ru/wp-content/uploads/materials/sajding.jpg
[area_modifier] => 267.05
[parent_name] => Наружная отделка фасада
[parent_id] => 19
[material_sum] => 424978
[work_sum] => 354148
[total_sum] => 779126
[total_days] => 20
[display_material_sum] => 424 978
[display_work_sum] => 354 148
[display_total_sum] => 779 126
)
1
779 126₽
Работа:354 148 ₽
Материалы:424 978 ₽
Дни:20
stdClass Object
(
[id] => 141
[attribute_id] => 19
[name] => Камень
[material_modifier] => 1
[work_modifier] => 1
[options] => Array
(
[0] => Травертин
[1] => Дагестанский
[2] => Искусственный
[3] => Натуральный
[4] => Керамогранит
)
[days] => [45,45,45,45,45]
[material_price] => [4536,3888,2592,3240,2462]
[work_price] => [3240,3240,2462,3110,1944]
[image] => https://akademik-stroy.ru/wp-content/uploads/materials/kamen-1.jpg
[area_modifier] => 267.05
[parent_name] => Наружная отделка фасада
[parent_id] => 19
[material_sum] => 1526287
[work_sum] => 908504
[total_sum] => 2434791
[total_days] => 45
[display_material_sum] => 1 526 287
[display_work_sum] => 908 504
[display_total_sum] => 2 434 791
)
1
2 434 791₽
Работа:908 504 ₽
Материалы:1 526 287 ₽
Дни:45
stdClass Object
(
[id] => 142
[attribute_id] => 19
[name] => Термопанели
[material_modifier] => 1
[work_modifier] => 1
[options] => Array
(
)
[days] => [20]
[material_price] => [6221]
[work_price] => [2333]
[image] => https://akademik-stroy.ru/wp-content/uploads/materials/termo.png
[area_modifier] => 267.05
[parent_name] => Наружная отделка фасада
[parent_id] => 19
[material_sum] => 2093261
[work_sum] => 654179
[total_sum] => 2747440
[total_days] => 20
[display_material_sum] => 2 093 261
[display_work_sum] => 654 179
[display_total_sum] => 2 747 440
)
1
2 747 440₽
Работа:654 179 ₽
Материалы:2 093 261 ₽
Дни:20
stdClass Object
(
[id] => 143
[attribute_id] => 19
[name] => Плитка HAUBERK
[material_modifier] => 1
[work_modifier] => 1
[options] => Array
(
)
[days] => [20]
[material_price] => [2786]
[work_price] => [1944]
[image] => https://akademik-stroy.ru/wp-content/uploads/materials/hauberk.jpg
[area_modifier] => 267.05
[parent_name] => Наружная отделка фасада
[parent_id] => 19
[material_sum] => 937442
[work_sum] => 545102
[total_sum] => 1482544
[total_days] => 20
[display_material_sum] => 937 442
[display_work_sum] => 545 102
[display_total_sum] => 1 482 544
)
1
1 482 544₽
Работа:545 102 ₽
Материалы:937 442 ₽
Дни:20
stdClass Object
(
[id] => 144
[attribute_id] => 19
[name] => Фальцевый фасад
[material_modifier] => 1
[work_modifier] => 1
[options] => Array
(
)
[days] => [20]
[material_price] => [3240]
[work_price] => [2592]
[image] => https://akademik-stroy.ru/wp-content/uploads/materials/falcevyj-fasad.jpg
[area_modifier] => 267.05
[parent_name] => Наружная отделка фасада
[parent_id] => 19
[material_sum] => 1090205
[work_sum] => 726803
[total_sum] => 1817008
[total_days] => 20
[display_material_sum] => 1 090 205
[display_work_sum] => 726 803
[display_total_sum] => 1 817 008
)
1
1 817 008₽
Работа:726 803 ₽
Материалы:1 090 205 ₽
Дни:20
stdClass Object
(
[id] => 145
[attribute_id] => 19
[name] => Комбинированный
[material_modifier] => 1
[work_modifier] => 1
[options] => Array
(
)
[days] => [20]
[material_price] => [4629]
[work_price] => [3499]
[image] => https://akademik-stroy.ru/wp-content/uploads/materials/Kombinirovannyj.jpg
[area_modifier] => 267.05
[parent_name] => Наружная отделка фасада
[parent_id] => 19
[material_sum] => 1557580
[work_sum] => 981128
[total_sum] => 2538708
[total_days] => 20
[display_material_sum] => 1 557 580
[display_work_sum] => 981 128
[display_total_sum] => 2 538 708
)
1
2 538 708₽
Работа:981 128 ₽
Материалы:1 557 580 ₽
Дни:20
stdClass Object
(
[id] => 257
[attribute_id] => 19
[name] => Японские фиброцементные
[material_modifier] => 1
[work_modifier] => 1
[options] => Array
(
)
[days] => [20]
[material_price] => [7043]
[work_price] => [2993]
[image] => https://akademik-stroy.ru/wp-content/uploads/materials/paneli.jpg
[area_modifier] => 267.05
[parent_name] => Наружная отделка фасада
[parent_id] => 19
[material_sum] => 2369850
[work_sum] => 839245
[total_sum] => 3209095
[total_days] => 20
[display_material_sum] => 2 369 850
[display_work_sum] => 839 245
[display_total_sum] => 3 209 095
)
1
3 209 095₽
Работа:839 245 ₽
Материалы:2 369 850 ₽
Дни:20
stdClass Object
(
[id] => 258
[attribute_id] => 19
[name] => Панели Каньон
[material_modifier] => 1
[work_modifier] => 1
[options] => Array
(
)
[days] => [20]
[material_price] => [4543]
[work_price] => [2592]
[image] => https://akademik-stroy.ru/wp-content/uploads/materials/kanon.png
[area_modifier] => 267.05
[parent_name] => Наружная отделка фасада
[parent_id] => 19
[material_sum] => 1528642
[work_sum] => 726803
[total_sum] => 2255445
[total_days] => 20
[display_material_sum] => 1 528 642
[display_work_sum] => 726 803
[display_total_sum] => 2 255 445
)
1
2 255 445₽
Работа:726 803 ₽
Материалы:1 528 642 ₽
Дни:20
stdClass Object
(
[id] => 39
[attribute_id] => 20
[name] => Нет
[material_modifier] => 1
[work_modifier] => 1
[options] => Array
(
)
[days] => [0]
[material_price] => [0]
[work_price] => [0]
[image] => https://akademik-stroy.ru/wp-content/uploads/materials/terrasy.jpg
[area_modifier] => 30
[parent_name] => Террасы, крыльца, навесы
[parent_id] => 20
[material_sum] => 0
[work_sum] => 0
[total_sum] => 0
[total_days] => 0
[display_material_sum] => 0
[display_work_sum] => 0
[display_total_sum] => 0
)
1
0₽
Работа:0 ₽
Материалы:0 ₽
Дни:0
stdClass Object
(
[id] => 40
[attribute_id] => 20
[name] => Есть
[material_modifier] => 1
[work_modifier] => 1
[options] => Array
(
)
[days] => [5]
[material_price] => [10450]
[work_price] => [1950]
[image] => https://akademik-stroy.ru/wp-content/uploads/materials/terrasy.jpg
[area_modifier] => 30
[parent_name] => Террасы, крыльца, навесы
[parent_id] => 20
[material_sum] => 395010
[work_sum] => 61425
[total_sum] => 456435
[total_days] => 5
[display_material_sum] => 395 010
[display_work_sum] => 61 425
[display_total_sum] => 456 435
)
1
456 435₽
Работа:61 425 ₽
Материалы:395 010 ₽
Дни:5
stdClass Object
(
[id] => 41
[attribute_id] => 21
[name] => Нет
[material_modifier] => 1
[work_modifier] => 1
[options] => Array
(
)
[days] => [0]
[material_price] => [0]
[work_price] => [0]
[image] => https://akademik-stroy.ru/wp-content/uploads/materials/balkony.jpg
[area_modifier] => 30
[parent_name] => Балконы
[parent_id] => 21
[material_sum] => 0
[work_sum] => 0
[total_sum] => 0
[total_days] => 0
[display_material_sum] => 0
[display_work_sum] => 0
[display_total_sum] => 0
)
1
0₽
Работа:0 ₽
Материалы:0 ₽
Дни:0
stdClass Object
(
[id] => 42
[attribute_id] => 21
[name] => Есть
[material_modifier] => 1
[work_modifier] => 1
[options] => Array
(
)
[days] => [12]
[material_price] => [3600]
[work_price] => [1950]
[image] => https://akademik-stroy.ru/wp-content/uploads/materials/balkony.jpg
[area_modifier] => 30
[parent_name] => Балконы
[parent_id] => 21
[material_sum] => 136080
[work_sum] => 61425
[total_sum] => 197505
[total_days] => 12
[display_material_sum] => 136 080
[display_work_sum] => 61 425
[display_total_sum] => 197 505
)
1
197 505₽
Работа:61 425 ₽
Материалы:136 080 ₽
Дни:12
stdClass Object
(
[id] => 43
[attribute_id] => 22
[name] => Нет
[material_modifier] => 1
[work_modifier] => 1
[options] => Array
(
)
[days] => [0]
[material_price] => [0]
[work_price] => [0]
[image] => https://akademik-stroy.ru/wp-content/uploads/materials/uteplennaya.jpg
[area_modifier] => 153.56
[parent_name] => Отмостка
[parent_id] => 22
[material_sum] => 0
[work_sum] => 0
[total_sum] => 0
[total_days] => 0
[display_material_sum] => 0
[display_work_sum] => 0
[display_total_sum] => 0
)
1
0₽
Работа:0 ₽
Материалы:0 ₽
Дни:0
stdClass Object
(
[id] => 44
[attribute_id] => 22
[name] => Утепленная отмостка
[material_modifier] => 1
[work_modifier] => 1
[options] => Array
(
)
[days] => [15]
[material_price] => [2550]
[work_price] => [1750]
[image] => https://akademik-stroy.ru/wp-content/uploads/materials/uteplennaya.jpg
[area_modifier] => 153.56
[parent_name] => Отмостка
[parent_id] => 22
[material_sum] => 493388
[work_sum] => 282167
[total_sum] => 775555
[total_days] => 15
[display_material_sum] => 493 388
[display_work_sum] => 282 167
[display_total_sum] => 775 555
)
1
775 555₽
Работа:282 167 ₽
Материалы:493 388 ₽
Дни:15
stdClass Object
(
[id] => 146
[attribute_id] => 22
[name] => Не утепленная отмостка
[material_modifier] => 1
[work_modifier] => 1
[options] => Array
(
)
[days] => [10]
[material_price] => [1650]
[work_price] => [1450]
[image] => https://akademik-stroy.ru/wp-content/uploads/materials/ne-uteplennaya.jpg
[area_modifier] => 153.56
[parent_name] => Отмостка
[parent_id] => 22
[material_sum] => 319251
[work_sum] => 233795
[total_sum] => 553046
[total_days] => 10
[display_material_sum] => 319 251
[display_work_sum] => 233 795
[display_total_sum] => 553 046
)
1
553 046₽
Работа:233 795 ₽
Материалы:319 251 ₽
Дни:10
stdClass Object
(
[id] => 45
[attribute_id] => 23
[name] => Нет
[material_modifier] => 1
[work_modifier] => 1
[options] => Array
(
)
[days] => [0]
[material_price] => [0]
[work_price] => [0]
[image] => https://akademik-stroy.ru/wp-content/uploads/materials/drenazh-2.jpg
[area_modifier] => 153.56
[parent_name] => Дренаж вокруг дома
[parent_id] => 23
[material_sum] => 0
[work_sum] => 0
[total_sum] => 0
[total_days] => 0
[display_material_sum] => 0
[display_work_sum] => 0
[display_total_sum] => 0
)
1
0₽
Работа:0 ₽
Материалы:0 ₽
Дни:0
stdClass Object
(
[id] => 46
[attribute_id] => 23
[name] => Есть
[material_modifier] => 1
[work_modifier] => 1
[options] => Array
(
)
[days] => [5]
[material_price] => [2366]
[work_price] => [1911]
[image] => https://akademik-stroy.ru/wp-content/uploads/materials/drenazh-2.jpg
[area_modifier] => 153.56
[parent_name] => Дренаж вокруг дома
[parent_id] => 23
[material_sum] => 457787
[work_sum] => 308126
[total_sum] => 765913
[total_days] => 5
[display_material_sum] => 457 787
[display_work_sum] => 308 126
[display_total_sum] => 765 913
)
1
765 913₽
Работа:308 126 ₽
Материалы:457 787 ₽
Дни:5
stdClass Object
(
[id] => 47
[attribute_id] => 24
[name] => Нет
[material_modifier] => 1
[work_modifier] => 1
[options] => Array
(
)
[days] => [0]
[material_price] => [0]
[work_price] => [0]
[image] => https://akademik-stroy.ru/wp-content/uploads/materials/septik.jpg
[area_modifier] => 1
[parent_name] => Автономная канализация (септики)
[parent_id] => 24
[material_sum] => 0
[work_sum] => 0
[total_sum] => 0
[total_days] => 0
[display_material_sum] => 0
[display_work_sum] => 0
[display_total_sum] => 0
)
1
0₽
Работа:0 ₽
Материалы:0 ₽
Дни:0
stdClass Object
(
[id] => 48
[attribute_id] => 24
[name] => Есть
[material_modifier] => 1
[work_modifier] => 1
[options] => Array
(
[0] => Для дачи на 4 человека
[1] => Для дома на 5 человек
[2] => Для дома на 6 человек
[3] => Для дома на 7 человек
[4] => Для дома на 10 человек
)
[days] => [7,7,7,8,8]
[material_price] => [196340,220500,240940,264200,293340]
[work_price] => [50000,55000,60500,66550,73206]
[image] => https://akademik-stroy.ru/wp-content/uploads/materials/septik.jpg
[area_modifier] => 1
[parent_name] => Автономная канализация (септики)
[parent_id] => 24
[material_sum] => 247388
[work_sum] => 52500
[total_sum] => 299888
[total_days] => 7
[display_material_sum] => 247 388
[display_work_sum] => 52 500
[display_total_sum] => 299 888
)
1
299 888₽
Работа:52 500 ₽
Материалы:247 388 ₽
Дни:7
stdClass Object
(
[id] => 49
[attribute_id] => 25
[name] => Нет
[material_modifier] => 1
[work_modifier] => 1
[options] => Array
(
)
[days] => [0]
[material_price] => [0]
[work_price] => [0]
[image] => https://akademik-stroy.ru/wp-content/uploads/materials/gkl.jpg
[area_modifier] => 267.05
[parent_name] => Внутренние (не несущие) перегородки
[parent_id] => 25
[material_sum] => 0
[work_sum] => 0
[total_sum] => 0
[total_days] => 0
[display_material_sum] => 0
[display_work_sum] => 0
[display_total_sum] => 0
)
1
0₽
Работа:0 ₽
Материалы:0 ₽
Дни:0
stdClass Object
(
[id] => 147
[attribute_id] => 25
[name] => Каркасно-обшивные
[material_modifier] => 1
[work_modifier] => 1
[options] => Array
(
[0] => 75 мм (без шумоизоляции)
[1] => 75 мм (с шумоизоляцией)
)
[days] => [11,11]
[material_price] => [580,970]
[work_price] => [380,570]
[image] => https://akademik-stroy.ru/wp-content/uploads/materials/gkl.jpg
[area_modifier] => 267.05
[parent_name] => Внутренние (не несущие) перегородки
[parent_id] => 25
[material_sum] => 195160
[work_sum] => 106553
[total_sum] => 301713
[total_days] => 11
[display_material_sum] => 195 160
[display_work_sum] => 106 553
[display_total_sum] => 301 713
)
1
301 713₽
Работа:106 553 ₽
Материалы:195 160 ₽
Дни:11
stdClass Object
(
[id] => 148
[attribute_id] => 25
[name] => Пазогребневые
[material_modifier] => 1
[work_modifier] => 1
[options] => Array
(
[0] => 80 мм
[1] => 100 мм
)
[days] => [5,5]
[material_price] => [1022,1313]
[work_price] => [600,700]
[image] => https://akademik-stroy.ru/wp-content/uploads/materials/pazogrebnevye-bloki.jpg
[area_modifier] => 267.05
[parent_name] => Внутренние (не несущие) перегородки
[parent_id] => 25
[material_sum] => 343886
[work_sum] => 168242
[total_sum] => 512128
[total_days] => 5
[display_material_sum] => 343 886
[display_work_sum] => 168 242
[display_total_sum] => 512 128
)
1
512 128₽
Работа:168 242 ₽
Материалы:343 886 ₽
Дни:5
stdClass Object
(
[id] => 149
[attribute_id] => 25
[name] => Газобетонные
[material_modifier] => 1
[work_modifier] => 1
[options] => Array
(
[0] => 100 мм
[1] => 200 мм
)
[days] => [11,11]
[material_price] => [1160,1920]
[work_price] => [700,900]
[image] => https://akademik-stroy.ru/wp-content/uploads/materials/gazobeton-2.jpg
[area_modifier] => 267.05
[parent_name] => Внутренние (не несущие) перегородки
[parent_id] => 25
[material_sum] => 390320
[work_sum] => 196282
[total_sum] => 586602
[total_days] => 11
[display_material_sum] => 390 320
[display_work_sum] => 196 282
[display_total_sum] => 586 602
)
1
586 602₽
Работа:196 282 ₽
Материалы:390 320 ₽
Дни:11
stdClass Object
(
[id] => 150
[attribute_id] => 25
[name] => Кирпичные
[material_modifier] => 1
[work_modifier] => 1
[options] => Array
(
[0] => 120 мм
[1] => 250 мм
[2] => 360 мм
)
[days] => [7,7,7]
[material_price] => [1785,3570,5355]
[work_price] => [900,1600,1800]
[image] => https://akademik-stroy.ru/wp-content/uploads/materials/kirpich-1.jpg
[area_modifier] => 267.05
[parent_name] => Внутренние (не несущие) перегородки
[parent_id] => 25
[material_sum] => 600622
[work_sum] => 252362
[total_sum] => 852984
[total_days] => 7
[display_material_sum] => 600 622
[display_work_sum] => 252 362
[display_total_sum] => 852 984
)
1
852 984₽
Работа:252 362 ₽
Материалы:600 622 ₽
Дни:7
stdClass Object
(
[id] => 55
[attribute_id] => 28
[name] => Нет
[material_modifier] => 1
[work_modifier] => 1
[options] => Array
(
)
[days] => [0]
[material_price] => [0]
[work_price] => [0]
[image] => https://akademik-stroy.ru/wp-content/uploads/materials/ehlektrika.jpg
[area_modifier] => 216.71
[parent_name] => Электрика
[parent_id] => 28
[material_sum] => 0
[work_sum] => 0
[total_sum] => 0
[total_days] => 0
[display_material_sum] => 0
[display_work_sum] => 0
[display_total_sum] => 0
)
1
0₽
Работа:0 ₽
Материалы:0 ₽
Дни:0
stdClass Object
(
[id] => 56
[attribute_id] => 28
[name] => Есть
[material_modifier] => 1
[work_modifier] => 1
[options] => Array
(
)
[days] => [10]
[material_price] => [650]
[work_price] => [950]
[image] => https://akademik-stroy.ru/wp-content/uploads/materials/ehlektrika.jpg
[area_modifier] => 216.71
[parent_name] => Электрика
[parent_id] => 28
[material_sum] => 177485
[work_sum] => 216168
[total_sum] => 393653
[total_days] => 10
[display_material_sum] => 177 485
[display_work_sum] => 216 168
[display_total_sum] => 393 653
)
1
393 653₽
Работа:216 168 ₽
Материалы:177 485 ₽
Дни:10
stdClass Object
(
[id] => 57
[attribute_id] => 29
[name] => Нет
[material_modifier] => 1
[work_modifier] => 1
[options] => Array
(
)
[days] => [0]
[material_price] => [0]
[work_price] => [0]
[image] => https://akademik-stroy.ru/wp-content/uploads/materials/santekhnika-kanalizaciya-1.jpg
[area_modifier] => 216.71
[parent_name] => Сантехника, канализация в доме
[parent_id] => 29
[material_sum] => 0
[work_sum] => 0
[total_sum] => 0
[total_days] => 0
[display_material_sum] => 0
[display_work_sum] => 0
[display_total_sum] => 0
)
1
0₽
Работа:0 ₽
Материалы:0 ₽
Дни:0
stdClass Object
(
[id] => 58
[attribute_id] => 29
[name] => Есть
[material_modifier] => 1
[work_modifier] => 1
[options] => Array
(
)
[days] => [10]
[material_price] => [600]
[work_price] => [730]
[image] => https://akademik-stroy.ru/wp-content/uploads/materials/santekhnika-kanalizaciya-1.jpg
[area_modifier] => 216.71
[parent_name] => Сантехника, канализация в доме
[parent_id] => 29
[material_sum] => 163833
[work_sum] => 166108
[total_sum] => 329941
[total_days] => 10
[display_material_sum] => 163 833
[display_work_sum] => 166 108
[display_total_sum] => 329 941
)
1
329 941₽
Работа:166 108 ₽
Материалы:163 833 ₽
Дни:10
stdClass Object
(
[id] => 59
[attribute_id] => 30
[name] => Нет
[material_modifier] => 1
[work_modifier] => 1
[options] => Array
(
)
[days] => [0]
[material_price] => [0]
[work_price] => [0]
[image] => https://akademik-stroy.ru/wp-content/uploads/materials/otoplenie-1.jpg
[area_modifier] => 216.71
[parent_name] => Отопление
[parent_id] => 30
[material_sum] => 0
[work_sum] => 0
[total_sum] => 0
[total_days] => 0
[display_material_sum] => 0
[display_work_sum] => 0
[display_total_sum] => 0
)
1
0₽
Работа:0 ₽
Материалы:0 ₽
Дни:0
stdClass Object
(
[id] => 60
[attribute_id] => 30
[name] => Есть
[material_modifier] => 1
[work_modifier] => 1
[options] => Array
(
)
[days] => [5]
[material_price] => [610]
[work_price] => [560]
[image] => https://akademik-stroy.ru/wp-content/uploads/materials/otoplenie-1.jpg
[area_modifier] => 216.71
[parent_name] => Отопление
[parent_id] => 30
[material_sum] => 166563
[work_sum] => 127425
[total_sum] => 293988
[total_days] => 5
[display_material_sum] => 166 563
[display_work_sum] => 127 425
[display_total_sum] => 293 988
)
1
293 988₽
Работа:127 425 ₽
Материалы:166 563 ₽
Дни:5
stdClass Object
(
[id] => 61
[attribute_id] => 31
[name] => Нет
[material_modifier] => 1
[work_modifier] => 1
[options] => Array
(
)
[days] => [0]
[material_price] => [0]
[work_price] => [0]
[image] => https://akademik-stroy.ru/wp-content/uploads/materials/vodyanye.jpg
[area_modifier] => 30
[parent_name] => Теплые полы
[parent_id] => 31
[material_sum] => 0
[work_sum] => 0
[total_sum] => 0
[total_days] => 0
[display_material_sum] => 0
[display_work_sum] => 0
[display_total_sum] => 0
)
1
0₽
Работа:0 ₽
Материалы:0 ₽
Дни:0
stdClass Object
(
[id] => 151
[attribute_id] => 31
[name] => Водяные
[material_modifier] => 1
[work_modifier] => 1
[options] => Array
(
)
[days] => [9]
[material_price] => [10200]
[work_price] => [2500]
[image] => https://akademik-stroy.ru/wp-content/uploads/materials/vodyanye.jpg
[area_modifier] => 30
[parent_name] => Теплые полы
[parent_id] => 31
[material_sum] => 385560
[work_sum] => 78750
[total_sum] => 464310
[total_days] => 9
[display_material_sum] => 385 560
[display_work_sum] => 78 750
[display_total_sum] => 464 310
)
1
464 310₽
Работа:78 750 ₽
Материалы:385 560 ₽
Дни:9
stdClass Object
(
[id] => 152
[attribute_id] => 31
[name] => Электро
[material_modifier] => 1
[work_modifier] => 1
[options] => Array
(
)
[days] => [5]
[material_price] => [6300]
[work_price] => [1500]
[image] => https://akademik-stroy.ru/wp-content/uploads/materials/ehlektricheskij.jpg
[area_modifier] => 30
[parent_name] => Теплые полы
[parent_id] => 31
[material_sum] => 238140
[work_sum] => 47250
[total_sum] => 285390
[total_days] => 5
[display_material_sum] => 238 140
[display_work_sum] => 47 250
[display_total_sum] => 285 390
)
1
285 390₽
Работа:47 250 ₽
Материалы:238 140 ₽
Дни:5
stdClass Object
(
[id] => 63
[attribute_id] => 32
[name] => Нет
[material_modifier] => 1
[work_modifier] => 1
[options] => Array
(
)
[days] => [0]
[material_price] => [0]
[work_price] => [0]
[image] => https://akademik-stroy.ru/wp-content/uploads/materials/shtukaturka-shpatlevka-1.jpg
[area_modifier] => 216.71
[parent_name] => Черновая отделка стен
[parent_id] => 32
[material_sum] => 0
[work_sum] => 0
[total_sum] => 0
[total_days] => 0
[display_material_sum] => 0
[display_work_sum] => 0
[display_total_sum] => 0
)
1
0₽
Работа:0 ₽
Материалы:0 ₽
Дни:0
stdClass Object
(
[id] => 153
[attribute_id] => 32
[name] => Штукатурка и шпатлевка
[material_modifier] => 1
[work_modifier] => 1
[options] => Array
(
)
[days] => [20]
[material_price] => [1850]
[work_price] => [2600]
[image] => https://akademik-stroy.ru/wp-content/uploads/materials/shtukaturka-shpatlevka-1.jpg
[area_modifier] => 216.71
[parent_name] => Черновая отделка стен
[parent_id] => 32
[material_sum] => 505151
[work_sum] => 591618
[total_sum] => 1096769
[total_days] => 20
[display_material_sum] => 505 151
[display_work_sum] => 591 618
[display_total_sum] => 1 096 769
)
1
1 096 769₽
Работа:591 618 ₽
Материалы:505 151 ₽
Дни:20
stdClass Object
(
[id] => 154
[attribute_id] => 32
[name] => Гипсокортон на стены
[material_modifier] => 1
[work_modifier] => 1
[options] => Array
(
)
[days] => [15]
[material_price] => [950]
[work_price] => [2100]
[image] => https://akademik-stroy.ru/wp-content/uploads/materials/gkl-1.jpg
[area_modifier] => 216.71
[parent_name] => Черновая отделка стен
[parent_id] => 32
[material_sum] => 259402
[work_sum] => 477846
[total_sum] => 737248
[total_days] => 15
[display_material_sum] => 259 402
[display_work_sum] => 477 846
[display_total_sum] => 737 248
)
1
737 248₽
Работа:477 846 ₽
Материалы:259 402 ₽
Дни:15
stdClass Object
(
[id] => 155
[attribute_id] => 32
[name] => Вагонка
[material_modifier] => 1
[work_modifier] => 1
[options] => Array
(
)
[days] => [15]
[material_price] => [1250]
[work_price] => [950]
[image] => https://akademik-stroy.ru/wp-content/uploads/materials/vagonka.jpg
[area_modifier] => 216.71
[parent_name] => Черновая отделка стен
[parent_id] => 32
[material_sum] => 341318
[work_sum] => 216168
[total_sum] => 557486
[total_days] => 15
[display_material_sum] => 341 318
[display_work_sum] => 216 168
[display_total_sum] => 557 486
)
1
557 486₽
Работа:216 168 ₽
Материалы:341 318 ₽
Дни:15
stdClass Object
(
[id] => 65
[attribute_id] => 33
[name] => Нет
[material_modifier] => 1
[work_modifier] => 1
[options] => Array
(
)
[days] => [0]
[material_price] => [0]
[work_price] => [0]
[image] => https://akademik-stroy.ru/wp-content/uploads/materials/styazhka.jpg
[area_modifier] => 216.71
[parent_name] => Черновая отделка полов
[parent_id] => 33
[material_sum] => 0
[work_sum] => 0
[total_sum] => 0
[total_days] => 0
[display_material_sum] => 0
[display_work_sum] => 0
[display_total_sum] => 0
)
1
0₽
Работа:0 ₽
Материалы:0 ₽
Дни:0
stdClass Object
(
[id] => 156
[attribute_id] => 33
[name] => Стяжка + наливные полы
[material_modifier] => 1
[work_modifier] => 1
[options] => Array
(
)
[days] => [10]
[material_price] => [1000]
[work_price] => [900]
[image] => https://akademik-stroy.ru/wp-content/uploads/materials/styazhka.jpg
[area_modifier] => 216.71
[parent_name] => Черновая отделка полов
[parent_id] => 33
[material_sum] => 273055
[work_sum] => 204791
[total_sum] => 477846
[total_days] => 10
[display_material_sum] => 273 055
[display_work_sum] => 204 791
[display_total_sum] => 477 846
)
1
477 846₽
Работа:204 791 ₽
Материалы:273 055 ₽
Дни:10
stdClass Object
(
[id] => 157
[attribute_id] => 33
[name] => ОСБ на пол
[material_modifier] => 1
[work_modifier] => 1
[options] => Array
(
)
[days] => [7]
[material_price] => [580]
[work_price] => [350]
[image] => https://akademik-stroy.ru/wp-content/uploads/materials/osb-1.jpg
[area_modifier] => 216.71
[parent_name] => Черновая отделка полов
[parent_id] => 33
[material_sum] => 158372
[work_sum] => 79641
[total_sum] => 238013
[total_days] => 7
[display_material_sum] => 158 372
[display_work_sum] => 79 641
[display_total_sum] => 238 013
)
1
238 013₽
Работа:79 641 ₽
Материалы:158 372 ₽
Дни:7
stdClass Object
(
[id] => 67
[attribute_id] => 34
[name] => Нет
[material_modifier] => 1
[work_modifier] => 1
[options] => Array
(
)
[days] => [0]
[material_price] => [0]
[work_price] => [0]
[image] => https://akademik-stroy.ru/wp-content/uploads/materials/chistovaya-otdelka.jpg
[area_modifier] => 216.71
[parent_name] => Чистовая отделка стен и полов
[parent_id] => 34
[material_sum] => 0
[work_sum] => 0
[total_sum] => 0
[total_days] => 0
[display_material_sum] => 0
[display_work_sum] => 0
[display_total_sum] => 0
)
1
0₽
Работа:0 ₽
Материалы:0 ₽
Дни:0
stdClass Object
(
[id] => 68
[attribute_id] => 34
[name] => Есть
[material_modifier] => 1
[work_modifier] => 1
[options] => Array
(
)
[days] => [50]
[material_price] => [6000]
[work_price] => [3500]
[image] => https://akademik-stroy.ru/wp-content/uploads/materials/chistovaya-otdelka.jpg
[area_modifier] => 216.71
[parent_name] => Чистовая отделка стен и полов
[parent_id] => 34
[material_sum] => 1638328
[work_sum] => 796409
[total_sum] => 2434737
[total_days] => 50
[display_material_sum] => 1 638 328
[display_work_sum] => 796 409
[display_total_sum] => 2 434 737
)
1
2 434 737₽
Работа:796 409 ₽
Материалы:1 638 328 ₽
Дни:50
stdClass Object
(
[id] => 69
[attribute_id] => 35
[name] => Нет
[material_modifier] => 1
[work_modifier] => 1
[options] => Array
(
)
[days] => [0]
[material_price] => [0]
[work_price] => [0]
[image] => https://akademik-stroy.ru/wp-content/uploads/materials/mnogourovnevyj-gkl.jpg
[area_modifier] => 216.71
[parent_name] => Отделка потолка
[parent_id] => 35
[material_sum] => 0
[work_sum] => 0
[total_sum] => 0
[total_days] => 0
[display_material_sum] => 0
[display_work_sum] => 0
[display_total_sum] => 0
)
1
0₽
Работа:0 ₽
Материалы:0 ₽
Дни:0
stdClass Object
(
[id] => 70
[attribute_id] => 35
[name] => Есть
[material_modifier] => 1
[work_modifier] => 1
[options] => Array
(
[0] => Многоуровневый потолок из гипсокартона
[1] => Многоуровневый потолок из гипсокартона и натяжного потолка
[2] => Одноуровневый потолок из гипсокартона
[3] => Одноуровневый натяжной потолок
)
[days] => [10,10,1,1]
[material_price] => [900,700,700,600]
[work_price] => [1000,800,500,300]
[image] => https://akademik-stroy.ru/wp-content/uploads/materials/mnogourovnevyj-gkl.jpg
[area_modifier] => 216.71
[parent_name] => Отделка потолка
[parent_id] => 35
[material_sum] => 245749
[work_sum] => 227546
[total_sum] => 473295
[total_days] => 10
[display_material_sum] => 245 749
[display_work_sum] => 227 546
[display_total_sum] => 473 295
)
1
473 295₽
Работа:227 546 ₽
Материалы:245 749 ₽
Дни:10
Преимущества работы с нами
7 этапов оплаты
Независимый строительный надзор
Экологически чистые материалы
16 лет гарантии
Онлайн-кабинет с веб-камерой
Строители с опытом более 15 лет
Собственное производство









