Одноэтажный дом 264.27 м2 за руб.
Планировки
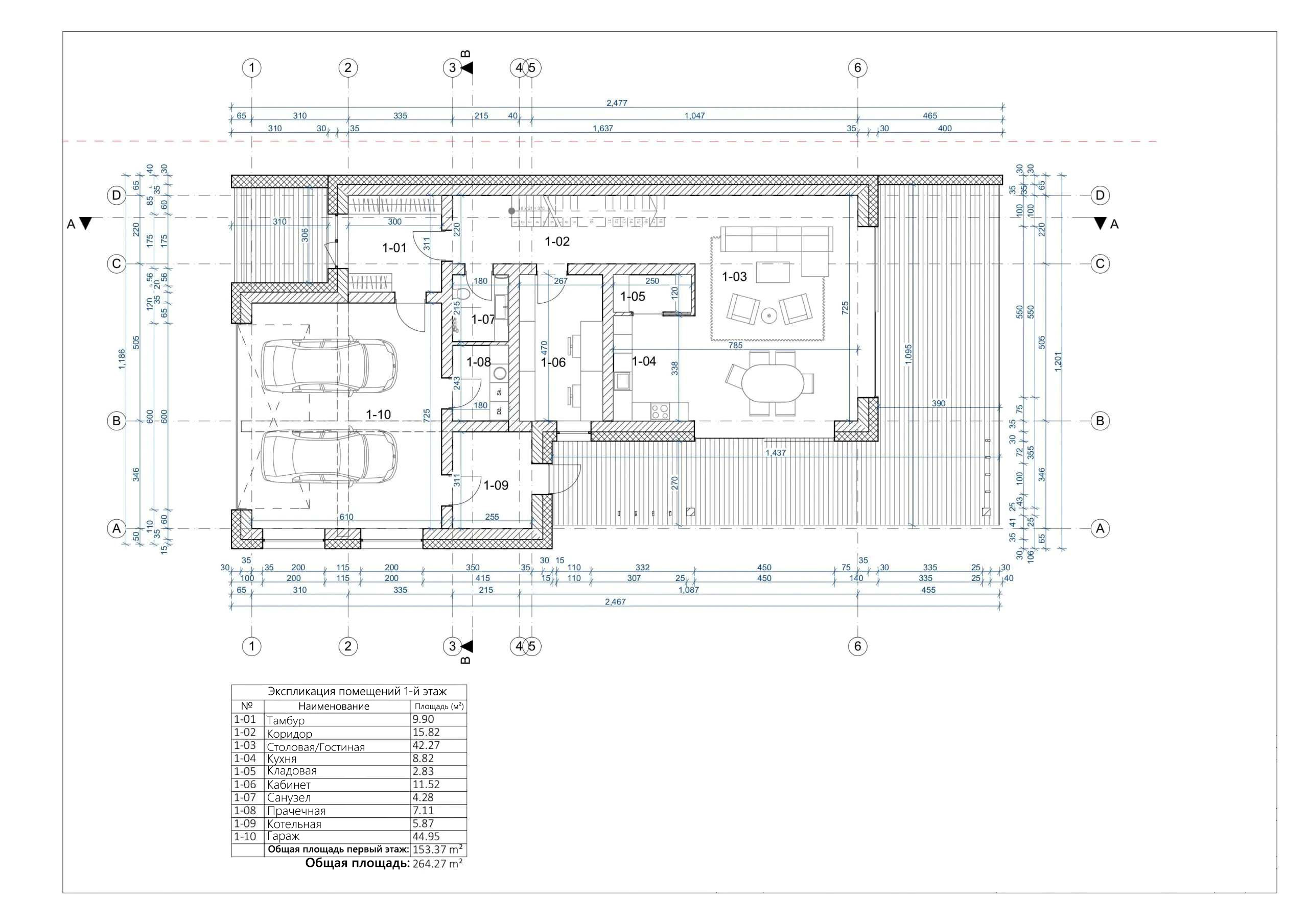
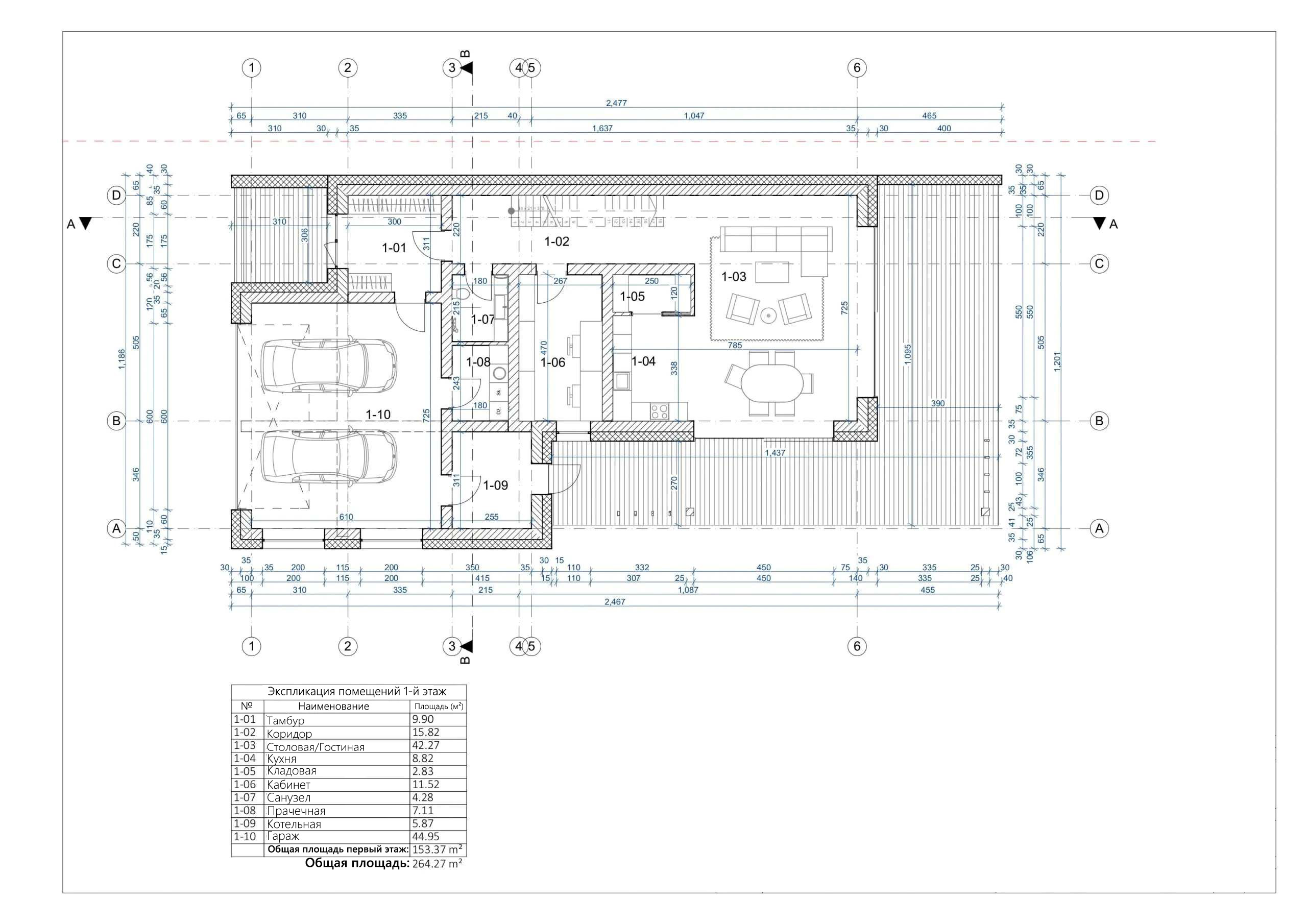
План первого этажа
- 1. Тамбур 9,90 м²
- 2. Коридор 15,82 м²
- 3. Столовая-Гостиная 42,27 м²
- 4. Кухня 8,82 м²
- 5. Кладовая 2,83 м²
- 6. Кабинет 11,52 м²
- 7. Санузел 4,28 м²
- 8. Прачечная 7,11 м²
- 9. Котельная 5,87 м²
- 10. Гараж 44,95 м²
- Общая площадь первый этаж 153,37 м²
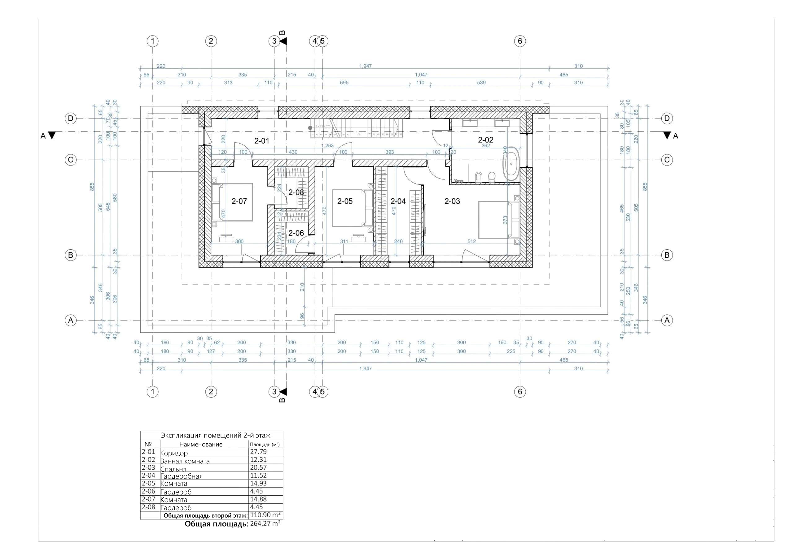
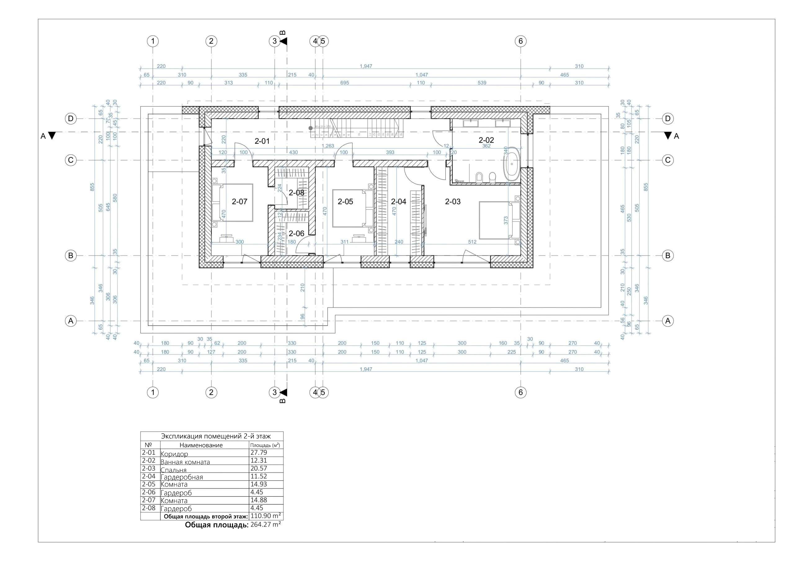
План второго этажа
- 1. Коридор 27,79 м²
- 2. Ванная комната 12,21 м²
- 3. Спальня 20,57 м²
- 4. Гардеробная 11,52 м²
- 5. Комната 14,93 м²
- 6. Гардероб 4,45 м²
- 7. Комната 14,88 м²
- 8. Гардероб 4,45 м²
- Общая площадь второй этаж 110,90 м²
Площади дома
| № п/п | Наименование | Ед. из. | Строительная площадь | Полезная площадь |
| 1 | 1 этаж | м2 | 189 | 153.37 |
| 2 | 2 этаж | м2 | 136.66 | 110.9 |
| 3 | Итого | м2 | 325.66 | 264.27 |
154 м2
Полезная
площадь
площадь
1 этаж
Этажей
26 м2
Террасы
и балконы
и балконы
2Без
гаража
гаража
4
Количество
спален
спален
2
Количество
санузлов
санузлов
Калькулятор опций
0₽
В ипотеку от 28 908 ₽/мес.
0₽
0 дней
stdClass Object
(
[id] => 1
[attribute_id] => 1
[name] => Ленточный монолитный ж/б
[material_modifier] => 1
[work_modifier] => 1
[options] => Array
(
[0] => размер 200 х 700 мм
[1] => размер 300 х 900 мм
[2] => размер 400 х 1 000 мм
[3] => размер 500 х 1 100 мм
[4] => размер 600 х 1 200 мм
)
[days] => [20,21,22,25,30]
[material_price] => [2823,3630,4475,5210,12047]
[work_price] => [2154,2826,3731,4577,5293]
[image] => https://akademik-stroy.ru/wp-content/uploads/materials/lentochnyj-monolitnyj-zh-b.jpg
[area_modifier] => 189
[parent_name] => Фундамент
[parent_id] => 1
[material_sum] => 640256
[work_sum] => 407106
[total_sum] => 1047362
[total_days] => 20
[display_material_sum] => 640 256
[display_work_sum] => 407 106
[display_total_sum] => 1 047 362
)
1
1 047 362₽
Работа:407 106 ₽
Материалы:640 256 ₽
Дни:20
stdClass Object
(
[id] => 2
[attribute_id] => 1
[name] => Забивные Ж/Б сваи
[material_modifier] => 1
[work_modifier] => 1
[options] => Array
(
[0] => 150х150х3000мм
[1] => 150х150х4000мм
[2] => 200х200х3000мм
[3] => 200х200х4000мм
[4] => 200х200х5000мм
[5] => 200х200х6000мм
)
[days] => [2,2,2,2,2,2]
[material_price] => [1990,2850,3255,4360,5120,6837]
[work_price] => [1002,1185,1336,1438,1574,1839]
[image] => https://akademik-stroy.ru/wp-content/uploads/materials/zabivnye-zh-b-svai.png
[area_modifier] => 189
[parent_name] => Фундамент
[parent_id] => 1
[material_sum] => 451332
[work_sum] => 189378
[total_sum] => 640710
[total_days] => 2
[display_material_sum] => 451 332
[display_work_sum] => 189 378
[display_total_sum] => 640 710
)
1
640 710₽
Работа:189 378 ₽
Материалы:451 332 ₽
Дни:2
stdClass Object
(
[id] => 71
[attribute_id] => 1
[name] => Свайно-ростверковый ж/б
[material_modifier] => 1
[work_modifier] => 1
[options] => Array
(
[0] => ростверк 200х300 мм
[1] => ростверк 300х600 мм
[2] => ростверк 400х900 мм
[3] => ростверк 500х1200 мм
)
[days] => [20,23,25,27]
[material_price] => [3018,3474,7109,9792]
[work_price] => [2024,3012,5635,7022]
[image] => https://akademik-stroy.ru/wp-content/uploads/materials/svajno-rostverkovyj-monolitnyj-zh-b-3.png
[area_modifier] => 189
[parent_name] => Фундамент
[parent_id] => 1
[material_sum] => 684482
[work_sum] => 382536
[total_sum] => 1067018
[total_days] => 20
[display_material_sum] => 684 482
[display_work_sum] => 382 536
[display_total_sum] => 1 067 018
)
1
1 067 018₽
Работа:382 536 ₽
Материалы:684 482 ₽
Дни:20
stdClass Object
(
[id] => 72
[attribute_id] => 1
[name] => Монолитная ж/б плита
[material_modifier] => 1
[work_modifier] => 1
[options] => Array
(
[0] => 200 мм
[1] => 300 мм
[2] => 400 мм
[3] => 500 мм
[4] => 600 мм
)
[days] => [30,33,35,37,40]
[material_price] => [5348,8555,12788,14388,15189]
[work_price] => [4314,4881,7037,8061,10230]
[image] => https://akademik-stroy.ru/wp-content/uploads/materials/monolitnaya-zhb-plita.png
[area_modifier] => 189
[parent_name] => Фундамент
[parent_id] => 1
[material_sum] => 1212926
[work_sum] => 815346
[total_sum] => 2028272
[total_days] => 30
[display_material_sum] => 1 212 926
[display_work_sum] => 815 346
[display_total_sum] => 2 028 272
)
1
2 028 272₽
Работа:815 346 ₽
Материалы:1 212 926 ₽
Дни:30
stdClass Object
(
[id] => 73
[attribute_id] => 1
[name] => Утепленная шведская плита
[material_modifier] => 1
[work_modifier] => 1
[options] => Array
(
[0] => 200 мм
[1] => 300 мм
[2] => 400 мм
[3] => 500 мм
[4] => 600 мм
)
[days] => [32,37,39,42,45]
[material_price] => [10249,12692,13760,14936,16230]
[work_price] => [5960,7337,8072,8878,9765]
[image] => https://akademik-stroy.ru/wp-content/uploads/materials/uteplennaya-shvedskaya-plita.jpg
[area_modifier] => 189
[parent_name] => Фундамент
[parent_id] => 1
[material_sum] => 2324473
[work_sum] => 1126440
[total_sum] => 3450913
[total_days] => 32
[display_material_sum] => 2 324 473
[display_work_sum] => 1 126 440
[display_total_sum] => 3 450 913
)
1
3 450 913₽
Работа:1 126 440 ₽
Материалы:2 324 473 ₽
Дни:32
stdClass Object
(
[id] => 75
[attribute_id] => 1
[name] => Ленточный из ФБС
[material_modifier] => 1
[work_modifier] => 1
[options] => Array
(
[0] => толщ. 300 мм
[1] => толщ. 400 мм
[2] => толщ. 500 мм
[3] => толщ. 600 мм
)
[days] => [20,20,20,20]
[material_price] => [3675,4902,6126,7350]
[work_price] => [2451,3264,4083,4902]
[image] => https://akademik-stroy.ru/wp-content/uploads/materials/lentochnyj-iz-fbs.png
[area_modifier] => 189
[parent_name] => Фундамент
[parent_id] => 1
[material_sum] => 833490
[work_sum] => 463239
[total_sum] => 1296729
[total_days] => 20
[display_material_sum] => 833 490
[display_work_sum] => 463 239
[display_total_sum] => 1 296 729
)
1
1 296 729₽
Работа:463 239 ₽
Материалы:833 490 ₽
Дни:20
stdClass Object
(
[id] => 76
[attribute_id] => 1
[name] => Цокольный этаж из ФБС
[material_modifier] => 1
[work_modifier] => 1
[options] => Array
(
[0] => толщ. 300 мм
[1] => толщ. 400 мм
[2] => толщ. 500 мм
[3] => толщ. 600 мм
)
[days] => [30,32,34,36]
[material_price] => [20916,23299,26680,29060]
[work_price] => [17524,18700,19873,21046]
[image] => https://akademik-stroy.ru/wp-content/uploads/materials/cokolnyj-ehtazh-iz-fbs.jpg
[area_modifier] => 189
[parent_name] => Фундамент
[parent_id] => 1
[material_sum] => 4743749
[work_sum] => 3312036
[total_sum] => 8055785
[total_days] => 30
[display_material_sum] => 4 743 749
[display_work_sum] => 3 312 036
[display_total_sum] => 8 055 785
)
1
8 055 785₽
Работа:3 312 036 ₽
Материалы:4 743 749 ₽
Дни:30
stdClass Object
(
[id] => 77
[attribute_id] => 1
[name] => Цокольный этаж монолитный ж/б
[material_modifier] => 1
[work_modifier] => 1
[options] => Array
(
[0] => толщ. 200 мм
[1] => толщ. 300 мм
[2] => толщ. 400 мм
[3] => толщ. 500 мм
[4] => толщ. 600 мм
)
[days] => [40,42,44,46,48]
[material_price] => [25421,29148,32275,35602,37326]
[work_price] => [20441,21907,23375,24841,26306]
[image] => https://akademik-stroy.ru/wp-content/uploads/materials/cokolnyj-etazh-zh-b.jpg
[area_modifier] => 189
[parent_name] => Фундамент
[parent_id] => 1
[material_sum] => 5765483
[work_sum] => 3863349
[total_sum] => 9628832
[total_days] => 40
[display_material_sum] => 5 765 483
[display_work_sum] => 3 863 349
[display_total_sum] => 9 628 832
)
1
9 628 832₽
Работа:3 863 349 ₽
Материалы:5 765 483 ₽
Дни:40
stdClass Object
(
[id] => 191
[attribute_id] => 1
[name] => Винтовые сваи
[material_modifier] => 1
[work_modifier] => 1
[options] => Array
(
[0] => 57х200мм
[1] => 76х250мм
[2] => 108х300мм
[3] => 133х350мм
)
[days] => [1,1,2,2]
[material_price] => [1200,1300,1450,1600]
[work_price] => [400,600,900,1100]
[image] => https://akademik-stroy.ru/wp-content/uploads/materials/vintovye-svai.png
[area_modifier] => 189
[parent_name] => Фундамент
[parent_id] => 1
[material_sum] => 272160
[work_sum] => 75600
[total_sum] => 347760
[total_days] => 1
[display_material_sum] => 272 160
[display_work_sum] => 75 600
[display_total_sum] => 347 760
)
1
347 760₽
Работа:75 600 ₽
Материалы:272 160 ₽
Дни:1
stdClass Object
(
[id] => 3
[attribute_id] => 2
[name] => Деревянные балки
[material_modifier] => 1
[work_modifier] => 1
[options] => Array
(
[0] => без утепления
[1] => утепление 200 мм
[2] => утепление 250 мм
[3] => утепление 300 мм
[4] => утепление 350 мм
[5] => утепление 400 мм
[6] => утепление 450 мм
[7] => утепление 500 мм
)
[days] => [8,9,9,9,11,12,13,14]
[material_price] => [1634,2042,2344,2947,3149,3652,3354,3557]
[work_price] => [1230,1339,1393,1426,1460,1513,1587,1620]
[image] => https://akademik-stroy.ru/wp-content/uploads/materials/derevyannye-balki.png
[area_modifier] => 189
[parent_name] => Перекрытие цоколя
[parent_id] => 2
[material_sum] => 370591
[work_sum] => 232470
[total_sum] => 603061
[total_days] => 8
[display_material_sum] => 370 591
[display_work_sum] => 232 470
[display_total_sum] => 603 061
)
1
603 061₽
Работа:232 470 ₽
Материалы:370 591 ₽
Дни:8
stdClass Object
(
[id] => 4
[attribute_id] => 2
[name] => Сборные ж/б плиты
[material_modifier] => 1
[work_modifier] => 1
[options] => Array
(
[0] => без утепления
[1] => утепление 150мм
[2] => утепление 200мм
[3] => утепление 250мм
[4] => утепление 300мм
[5] => утепление 350мм
[6] => утепление 400мм
[7] => утепление 450мм
[8] => утепление 500мм
)
[days] => [13,15,15,15,15,15,15,15,15]
[material_price] => [3067,5577,5928,6679,7730,8782,9833,10884,11935]
[work_price] => [1520,1956,2102,2247,2392,2537,2684,2829,2974]
[image] => https://akademik-stroy.ru/wp-content/uploads/materials/sbornye-zh-b-plity-2.jpg
[area_modifier] => 189
[parent_name] => Перекрытие цоколя
[parent_id] => 2
[material_sum] => 695596
[work_sum] => 287280
[total_sum] => 982876
[total_days] => 13
[display_material_sum] => 695 596
[display_work_sum] => 287 280
[display_total_sum] => 982 876
)
1
982 876₽
Работа:287 280 ₽
Материалы:695 596 ₽
Дни:13
stdClass Object
(
[id] => 78
[attribute_id] => 2
[name] => Монолитная ж/б плита
[material_modifier] => 1
[work_modifier] => 1
[options] => Array
(
[0] => без утепления
[1] => утепление 150 мм
[2] => утепление 200 мм
[3] => утепление 250 мм
[4] => утепление 300 мм
[5] => утепление 350 мм
[6] => утепление 400 мм
[7] => утепление 450 мм
[8] => утепление 500 мм
)
[days] => [18,20,20,20,20,20,20,20,20]
[material_price] => [4837,6572,7224,7375,79426,8177,8728,9180,10031]
[work_price] => [3348,3921,4112,4302,4493,4684,4875,5066,5256]
[image] => https://akademik-stroy.ru/wp-content/uploads/materials/monolitnaya-zh-b-plita-2.jpg
[area_modifier] => 189
[parent_name] => Перекрытие цоколя
[parent_id] => 2
[material_sum] => 1097032
[work_sum] => 632772
[total_sum] => 1729804
[total_days] => 18
[display_material_sum] => 1 097 032
[display_work_sum] => 632 772
[display_total_sum] => 1 729 804
)
1
1 729 804₽
Работа:632 772 ₽
Материалы:1 097 032 ₽
Дни:18
stdClass Object
(
[id] => 6
[attribute_id] => 3
[name] => Пеноблок
[material_modifier] => 1
[work_modifier] => 1
[options] => Array
(
[0] => 300 мм
[1] => 400 мм
[2] => 500 мм
[3] => 600 мм
)
[days] => [29,31,34,39]
[material_price] => [3000,4000,4500,4937]
[work_price] => [5033,5805,6400,8710]
[image] => https://akademik-stroy.ru/wp-content/uploads/materials/penoblok.jpg
[area_modifier] => 189
[parent_name] => Стены 1 этаж (несущие)
[parent_id] => 3
[material_sum] => 680400
[work_sum] => 951237
[total_sum] => 1631637
[total_days] => 29
[display_material_sum] => 680 400
[display_work_sum] => 951 237
[display_total_sum] => 1 631 637
)
1
1 631 637₽
Работа:951 237 ₽
Материалы:680 400 ₽
Дни:29
stdClass Object
(
[id] => 79
[attribute_id] => 3
[name] => Керамический блок
[material_modifier] => 1
[work_modifier] => 1
[options] => Array
(
[0] => 380 мм
[1] => 380 мм Thermo
[2] => 440 мм
[3] => 510 мм
)
[days] => [23,23,24,25]
[material_price] => [4510,5098,6093,8013]
[work_price] => [4737,4937,5903,6958]
[image] => https://akademik-stroy.ru/wp-content/uploads/materials/keramicheskij-blok.jpg
[area_modifier] => 189
[parent_name] => Стены 1 этаж (несущие)
[parent_id] => 3
[material_sum] => 1022868
[work_sum] => 895293
[total_sum] => 1918161
[total_days] => 23
[display_material_sum] => 1 022 868
[display_work_sum] => 895 293
[display_total_sum] => 1 918 161
)
1
1 918 161₽
Работа:895 293 ₽
Материалы:1 022 868 ₽
Дни:23
stdClass Object
(
[id] => 80
[attribute_id] => 3
[name] => Кирпич
[material_modifier] => 1
[work_modifier] => 1
[options] => Array
(
[0] => Кирпич 250 мм
[1] => Кирпич 380 мм
[2] => Кирпич 510 мм
[3] => Кирпич 640 мм
[4] => Кирпич 770 мм
)
[days] => [30,30,31,33,36]
[material_price] => [5500,7142,9206,10171,12235]
[work_price] => [8736,10041,12018,15240,18462]
[image] => https://akademik-stroy.ru/wp-content/uploads/materials/kirpich.jpg
[area_modifier] => 189
[parent_name] => Стены 1 этаж (несущие)
[parent_id] => 3
[material_sum] => 1247400
[work_sum] => 1651104
[total_sum] => 2898504
[total_days] => 30
[display_material_sum] => 1 247 400
[display_work_sum] => 1 651 104
[display_total_sum] => 2 898 504
)
1
2 898 504₽
Работа:1 651 104 ₽
Материалы:1 247 400 ₽
Дни:30
stdClass Object
(
[id] => 81
[attribute_id] => 3
[name] => Монолитные
[material_modifier] => 1
[work_modifier] => 1
[options] => Array
(
[0] => 150 мм
[1] => 200 мм
[2] => 250 мм
[3] => 300 мм
[4] => 350 мм
[5] => 400 мм
)
[days] => [45,46,47,49,50,53]
[material_price] => [6545,7876,10175,12011,13908,15204]
[work_price] => [5106,6444,7698,8552,9807,11461]
[image] => https://akademik-stroy.ru/wp-content/uploads/materials/monolitnye.jpg
[area_modifier] => 189
[parent_name] => Стены 1 этаж (несущие)
[parent_id] => 3
[material_sum] => 1484406
[work_sum] => 965034
[total_sum] => 2449440
[total_days] => 45
[display_material_sum] => 1 484 406
[display_work_sum] => 965 034
[display_total_sum] => 2 449 440
)
1
2 449 440₽
Работа:965 034 ₽
Материалы:1 484 406 ₽
Дни:45
stdClass Object
(
[id] => 82
[attribute_id] => 3
[name] => Клееный брус
[material_modifier] => 1
[work_modifier] => 1
[options] => Array
(
[0] => 160 мм
[1] => 175 мм
[2] => 200 мм
[3] => 215 мм
[4] => 240 мм
[5] => 270 мм
[6] => 282 мм
)
[days] => [24,28,32,37,40,42,48]
[material_price] => [16975,18773,19950,20545,21599,22159,23275]
[work_price] => [4806,5287,5815,6397,7036,7740,8514]
[image] => https://akademik-stroy.ru/wp-content/uploads/materials/kleenyj-brus.jpg
[area_modifier] => 189
[parent_name] => Стены 1 этаж (несущие)
[parent_id] => 3
[material_sum] => 3849930
[work_sum] => 908334
[total_sum] => 4758264
[total_days] => 24
[display_material_sum] => 3 849 930
[display_work_sum] => 908 334
[display_total_sum] => 4 758 264
)
1
4 758 264₽
Работа:908 334 ₽
Материалы:3 849 930 ₽
Дни:24
stdClass Object
(
[id] => 83
[attribute_id] => 3
[name] => Каркасные
[material_modifier] => 1
[work_modifier] => 1
[options] => Array
(
[0] => 150 мм
[1] => 200 мм
[2] => 250 мм
[3] => 300 мм
)
[days] => [15,16,17,18]
[material_price] => [2379,2639,2898,3258]
[work_price] => [2418,2686,2985,3716]
[image] => https://akademik-stroy.ru/wp-content/uploads/materials/karkasnye.jpg
[area_modifier] => 189
[parent_name] => Стены 1 этаж (несущие)
[parent_id] => 3
[material_sum] => 539557
[work_sum] => 457002
[total_sum] => 996559
[total_days] => 15
[display_material_sum] => 539 557
[display_work_sum] => 457 002
[display_total_sum] => 996 559
)
1
996 559₽
Работа:457 002 ₽
Материалы:539 557 ₽
Дни:15
stdClass Object
(
[id] => 84
[attribute_id] => 3
[name] => СИП-панели
[material_modifier] => 1
[work_modifier] => 1
[options] => Array
(
[0] => 120 мм
[1] => 170 мм
[2] => 220 мм
)
[days] => [7,7,7]
[material_price] => [1210,1856,2292]
[work_price] => [1410,1551,1706]
[image] => https://akademik-stroy.ru/wp-content/uploads/materials/sip-paneli.jpg
[area_modifier] => 189
[parent_name] => Стены 1 этаж (несущие)
[parent_id] => 3
[material_sum] => 274428
[work_sum] => 266490
[total_sum] => 540918
[total_days] => 7
[display_material_sum] => 274 428
[display_work_sum] => 266 490
[display_total_sum] => 540 918
)
1
540 918₽
Работа:266 490 ₽
Материалы:274 428 ₽
Дни:7
stdClass Object
(
[id] => 85
[attribute_id] => 3
[name] => Сухой брус
[material_modifier] => 1
[work_modifier] => 1
[options] => Array
(
[0] => 150 мм
[1] => 180 мм
[2] => 200 мм
)
[days] => [7,8,9]
[material_price] => [6010,7190,8709]
[work_price] => [3204,3845,4229]
[image] => https://akademik-stroy.ru/wp-content/uploads/materials/suhoj-brus.jpg
[area_modifier] => 189
[parent_name] => Стены 1 этаж (несущие)
[parent_id] => 3
[material_sum] => 1363068
[work_sum] => 605556
[total_sum] => 1968624
[total_days] => 7
[display_material_sum] => 1 363 068
[display_work_sum] => 605 556
[display_total_sum] => 1 968 624
)
1
1 968 624₽
Работа:605 556 ₽
Материалы:1 363 068 ₽
Дни:7
stdClass Object
(
[id] => 86
[attribute_id] => 3
[name] => Профилированный брус
[material_modifier] => 1
[work_modifier] => 1
[options] => Array
(
[0] => 150 мм
[1] => 180 мм
[2] => 200 мм
)
[days] => [7,8,9]
[material_price] => [8190,9228,10051]
[work_price] => [3845,4614,5075]
[image] => https://akademik-stroy.ru/wp-content/uploads/materials/profilirovannyj-brus.jpg
[area_modifier] => 189
[parent_name] => Стены 1 этаж (несущие)
[parent_id] => 3
[material_sum] => 1857492
[work_sum] => 726705
[total_sum] => 2584197
[total_days] => 7
[display_material_sum] => 1 857 492
[display_work_sum] => 726 705
[display_total_sum] => 2 584 197
)
1
2 584 197₽
Работа:726 705 ₽
Материалы:1 857 492 ₽
Дни:7
stdClass Object
(
[id] => 87
[attribute_id] => 3
[name] => Оцилиндрованное бревно
[material_modifier] => 1
[work_modifier] => 1
[options] => Array
(
[0] => 180 мм
[1] => 220 мм
[2] => 260 мм
[3] => 320 мм
)
[days] => [7,8,9,10]
[material_price] => [75190,9532,10868,13116]
[work_price] => [3845,4691,5535,6863]
[image] => https://akademik-stroy.ru/wp-content/uploads/materials/ocilindrovannoe-brevno-1.jpg
[area_modifier] => 189
[parent_name] => Стены 1 этаж (несущие)
[parent_id] => 3
[material_sum] => 17053092
[work_sum] => 726705
[total_sum] => 17779797
[total_days] => 7
[display_material_sum] => 17 053 092
[display_work_sum] => 726 705
[display_total_sum] => 17 779 797
)
1
17 779 797₽
Работа:726 705 ₽
Материалы:17 053 092 ₽
Дни:7
stdClass Object
(
[id] => 88
[attribute_id] => 3
[name] => Срубы
[material_modifier] => 1
[work_modifier] => 1
[options] => Array
(
[0] => 260 мм
[1] => 320 мм
[2] => 360 мм
[3] => 400 мм
[4] => 500 мм
)
[days] => [7,8,9,10,11]
[material_price] => [37975,46709,52314,58069,73167]
[work_price] => [4806,5911,6621,7349,9260]
[image] => https://akademik-stroy.ru/wp-content/uploads/materials/sruby.jpg
[area_modifier] => 189
[parent_name] => Стены 1 этаж (несущие)
[parent_id] => 3
[material_sum] => 8612730
[work_sum] => 908334
[total_sum] => 9521064
[total_days] => 7
[display_material_sum] => 8 612 730
[display_work_sum] => 908 334
[display_total_sum] => 9 521 064
)
1
9 521 064₽
Работа:908 334 ₽
Материалы:8 612 730 ₽
Дни:7
stdClass Object
(
[id] => 174
[attribute_id] => 3
[name] => Брус
[material_modifier] => 1
[work_modifier] => 1
[options] => Array
(
[0] => 150 мм
[1] => 180 мм
[2] => 200 мм
)
[days] => [7,8,9]
[material_price] => [5127,6152,7367]
[work_price] => [1602,1922,2115]
[image] => https://akademik-stroy.ru/wp-content/uploads/materials/brus.jpg
[area_modifier] => 189
[parent_name] => Стены 1 этаж (несущие)
[parent_id] => 3
[material_sum] => 1162804
[work_sum] => 302778
[total_sum] => 1465582
[total_days] => 7
[display_material_sum] => 1 162 804
[display_work_sum] => 302 778
[display_total_sum] => 1 465 582
)
1
1 465 582₽
Работа:302 778 ₽
Материалы:1 162 804 ₽
Дни:7
stdClass Object
(
[id] => 175
[attribute_id] => 3
[name] => Газобетон
[material_modifier] => 1
[work_modifier] => 1
[options] => Array
(
[0] => 300 мм
[1] => 375 мм
[2] => 400 мм
[3] => 500 мм
[4] => 600 мм
)
[days] => [29,31,35,37,44]
[material_price] => [4298,5573,6356,7288,9119]
[work_price] => [4538,5251,5926,6733,7195]
[image] => https://akademik-stroy.ru/wp-content/uploads/materials/gazobeton.jpg
[area_modifier] => 189
[parent_name] => Стены 1 этаж (несущие)
[parent_id] => 3
[material_sum] => 974786
[work_sum] => 857682
[total_sum] => 1832468
[total_days] => 29
[display_material_sum] => 974 786
[display_work_sum] => 857 682
[display_total_sum] => 1 832 468
)
1
1 832 468₽
Работа:857 682 ₽
Материалы:974 786 ₽
Дни:29
stdClass Object
(
[id] => 176
[attribute_id] => 3
[name] => Блок
[material_modifier] => 1
[work_modifier] => 1
[options] => Array
(
[0] => 300 мм
[1] => 375 мм
[2] => 400 мм
[3] => 500 мм
[4] => 600 мм
)
[days] => [29,31,35,37,44]
[material_price] => [2698,3973,4356,6588,7119]
[work_price] => [5038,5851,6426,8733,9195]
[image] => https://akademik-stroy.ru/wp-content/uploads/materials/blok.jpg
[area_modifier] => 189
[parent_name] => Стены 1 этаж (несущие)
[parent_id] => 3
[material_sum] => 611906
[work_sum] => 952182
[total_sum] => 1564088
[total_days] => 29
[display_material_sum] => 611 906
[display_work_sum] => 952 182
[display_total_sum] => 1 564 088
)
1
1 564 088₽
Работа:952 182 ₽
Материалы:611 906 ₽
Дни:29
stdClass Object
(
[id] => 177
[attribute_id] => 3
[name] => Газосиликатный блок
[material_modifier] => 1
[work_modifier] => 1
[options] => Array
(
[0] => 300 мм
[1] => 375 мм
[2] => 400 мм
[3] => 500 мм
[4] => 600 мм
)
[days] => [29,31,35,37,44]
[material_price] => [4298,5573,6356,7288,9119]
[work_price] => [4538,5251,5926,6733,7195]
[image] => https://akademik-stroy.ru/wp-content/uploads/materials/gazosilikatnyj-blok.jpg
[area_modifier] => 189
[parent_name] => Стены 1 этаж (несущие)
[parent_id] => 3
[material_sum] => 974786
[work_sum] => 857682
[total_sum] => 1832468
[total_days] => 29
[display_material_sum] => 974 786
[display_work_sum] => 857 682
[display_total_sum] => 1 832 468
)
1
1 832 468₽
Работа:857 682 ₽
Материалы:974 786 ₽
Дни:29
stdClass Object
(
[id] => 178
[attribute_id] => 3
[name] => Керамзитобетонный блок
[material_modifier] => 1
[work_modifier] => 1
[options] => Array
(
[0] => 300 мм
[1] => 375 мм
[2] => 400 мм
[3] => 500 мм
[4] => 600 мм
)
[days] => [23,23,24,25,28]
[material_price] => [3641,4298,5693,7613,9612]
[work_price] => [5737,5737,6903,7958,8901]
[image] => https://akademik-stroy.ru/wp-content/uploads/materials/keramzitobetonnyj-blok.jpg
[area_modifier] => 189
[parent_name] => Стены 1 этаж (несущие)
[parent_id] => 3
[material_sum] => 825779
[work_sum] => 1084293
[total_sum] => 1910072
[total_days] => 23
[display_material_sum] => 825 779
[display_work_sum] => 1 084 293
[display_total_sum] => 1 910 072
)
1
1 910 072₽
Работа:1 084 293 ₽
Материалы:825 779 ₽
Дни:23
stdClass Object
(
[id] => 179
[attribute_id] => 3
[name] => Деревянные
[material_modifier] => 1
[work_modifier] => 1
[options] => Array
(
[0] => 180 мм
[1] => 220 мм
[2] => 260 мм
[3] => 320 мм
)
[days] => [7,8,9,10]
[material_price] => [7950,9458,11961,14472]
[work_price] => [4037,4925,5812,7207]
[image] => https://akademik-stroy.ru/wp-content/uploads/materials/derevyannye.jpg
[area_modifier] => 189
[parent_name] => Стены 1 этаж (несущие)
[parent_id] => 3
[material_sum] => 1803060
[work_sum] => 762993
[total_sum] => 2566053
[total_days] => 7
[display_material_sum] => 1 803 060
[display_work_sum] => 762 993
[display_total_sum] => 2 566 053
)
1
2 566 053₽
Работа:762 993 ₽
Материалы:1 803 060 ₽
Дни:7
stdClass Object
(
[id] => 181
[attribute_id] => 3
[name] => Камень
[material_modifier] => 1
[work_modifier] => 1
[options] => Array
(
[0] => 300 мм
[1] => 400 мм
[2] => 500 мм
[3] => 600 мм
)
[days] => [25,27,31,34]
[material_price] => [5262,6844,8330,9815]
[work_price] => [8331,9135,10427,11069]
[image] => https://akademik-stroy.ru/wp-content/uploads/materials/kamen.jpg
[area_modifier] => 189
[parent_name] => Стены 1 этаж (несущие)
[parent_id] => 3
[material_sum] => 1193422
[work_sum] => 1574559
[total_sum] => 2767981
[total_days] => 25
[display_material_sum] => 1 193 422
[display_work_sum] => 1 574 559
[display_total_sum] => 2 767 981
)
1
2 767 981₽
Работа:1 574 559 ₽
Материалы:1 193 422 ₽
Дни:25
stdClass Object
(
[id] => 182
[attribute_id] => 3
[name] => Каркасно-щитовые
[material_modifier] => 1
[work_modifier] => 1
[options] => Array
(
[0] => 150 мм
[1] => 200 мм
[2] => 250 мм
[3] => 300 мм
[4] => 350 мм
[5] => 400 мм
)
[days] => [15,16,17,18,19,20]
[material_price] => [2379,2639,2898,3458,3601,4175]
[work_price] => [2538,2820,3134,3483,4062,5642]
[image] => https://akademik-stroy.ru/wp-content/uploads/materials/karkasno-shchitovye.jpg
[area_modifier] => 189
[parent_name] => Стены 1 этаж (несущие)
[parent_id] => 3
[material_sum] => 539557
[work_sum] => 479682
[total_sum] => 1019239
[total_days] => 15
[display_material_sum] => 539 557
[display_work_sum] => 479 682
[display_total_sum] => 1 019 239
)
1
1 019 239₽
Работа:479 682 ₽
Материалы:539 557 ₽
Дни:15
stdClass Object
(
[id] => 183
[attribute_id] => 3
[name] => Рубленные
[material_modifier] => 1
[work_modifier] => 1
[options] => Array
(
[0] => 150 мм
[1] => 200 мм
[2] => 250 мм
[3] => 300 мм
[4] => 350 мм
[5] => 400 мм
)
[days] => [15,16,17,18,17,18]
[material_price] => [35950,50267,60583,75900,80217,100533]
[work_price] => [9612,12816,16020,19224,22428,25632]
[image] => https://akademik-stroy.ru/wp-content/uploads/materials/rublennye.jpg
[area_modifier] => 189
[parent_name] => Стены 1 этаж (несущие)
[parent_id] => 3
[material_sum] => 8153460
[work_sum] => 1816668
[total_sum] => 9970128
[total_days] => 15
[display_material_sum] => 8 153 460
[display_work_sum] => 1 816 668
[display_total_sum] => 9 970 128
)
1
9 970 128₽
Работа:1 816 668 ₽
Материалы:8 153 460 ₽
Дни:15
stdClass Object
(
[id] => 185
[attribute_id] => 3
[name] => Теплоблок
[material_modifier] => 1
[work_modifier] => 1
[options] => Array
(
[0] => 300 мм (с облицовкой, не покрашенный)
[1] => 400 мм (с облицовкой, не покрашенный)
[2] => 300 мм (с облицовкой, покрашенный)
[3] => 400 мм (с облицовкой, покрашенный)
)
[days] => [15,16,15,16]
[material_price] => [2888,3729,3957,4258]
[work_price] => [2564,3229,2949,3713]
[image] => https://akademik-stroy.ru/wp-content/uploads/materials/teploblok.jpg
[area_modifier] => 189
[parent_name] => Стены 1 этаж (несущие)
[parent_id] => 3
[material_sum] => 654998
[work_sum] => 484596
[total_sum] => 1139594
[total_days] => 15
[display_material_sum] => 654 998
[display_work_sum] => 484 596
[display_total_sum] => 1 139 594
)
1
1 139 594₽
Работа:484 596 ₽
Материалы:654 998 ₽
Дни:15
stdClass Object
(
[id] => 186
[attribute_id] => 3
[name] => Арболитовые блоки
[material_modifier] => 1
[work_modifier] => 1
[options] => Array
(
[0] => 300 мм
[1] => 400 мм
[2] => 600 мм
)
[days] => [19,22,27]
[material_price] => [3210,4475,5852]
[work_price] => [4214,4788,5866]
[image] => https://akademik-stroy.ru/wp-content/uploads/materials/arbolitovye-bloki.png
[area_modifier] => 189
[parent_name] => Стены 1 этаж (несущие)
[parent_id] => 3
[material_sum] => 728028
[work_sum] => 796446
[total_sum] => 1524474
[total_days] => 19
[display_material_sum] => 728 028
[display_work_sum] => 796 446
[display_total_sum] => 1 524 474
)
1
1 524 474₽
Работа:796 446 ₽
Материалы:728 028 ₽
Дни:19
stdClass Object
(
[id] => 187
[attribute_id] => 3
[name] => Полистиролбетон
[material_modifier] => 1
[work_modifier] => 1
[options] => Array
(
[0] => 300 мм
[1] => 400 мм
[2] => 600 мм
)
[days] => [29,31,35]
[material_price] => [2798,4573,5256]
[work_price] => [5038,5851,6426]
[image] => https://akademik-stroy.ru/wp-content/uploads/materials/polistirolbeton.jpg
[area_modifier] => 189
[parent_name] => Стены 1 этаж (несущие)
[parent_id] => 3
[material_sum] => 634586
[work_sum] => 952182
[total_sum] => 1586768
[total_days] => 29
[display_material_sum] => 634 586
[display_work_sum] => 952 182
[display_total_sum] => 1 586 768
)
1
1 586 768₽
Работа:952 182 ₽
Материалы:634 586 ₽
Дни:29
stdClass Object
(
[id] => 188
[attribute_id] => 3
[name] => Шлакоблок
[material_modifier] => 1
[work_modifier] => 1
[options] => Array
(
[0] => 400 мм
[1] => 600 мм
)
[days] => [15,16]
[material_price] => [2391,3471]
[work_price] => [2642,3662]
[image] => https://akademik-stroy.ru/wp-content/uploads/materials/shlakoblok.jpg
[area_modifier] => 189
[parent_name] => Стены 1 этаж (несущие)
[parent_id] => 3
[material_sum] => 542279
[work_sum] => 499338
[total_sum] => 1041617
[total_days] => 15
[display_material_sum] => 542 279
[display_work_sum] => 499 338
[display_total_sum] => 1 041 617
)
1
1 041 617₽
Работа:499 338 ₽
Материалы:542 279 ₽
Дни:15
stdClass Object
(
[id] => 189
[attribute_id] => 3
[name] => Теплая керамика
[material_modifier] => 1
[work_modifier] => 1
[options] => Array
(
[0] => 380 мм
[1] => 380 мм Thermo
[2] => 440 мм
[3] => 510 мм
)
[days] => [23,23,24,25]
[material_price] => [4510,5098,6093,8013]
[work_price] => [4737,4937,5903,6958]
[image] => https://akademik-stroy.ru/wp-content/uploads/materials/teplaya-keramika.jpg
[area_modifier] => 189
[parent_name] => Стены 1 этаж (несущие)
[parent_id] => 3
[material_sum] => 1022868
[work_sum] => 895293
[total_sum] => 1918161
[total_days] => 23
[display_material_sum] => 1 022 868
[display_work_sum] => 895 293
[display_total_sum] => 1 918 161
)
1
1 918 161₽
Работа:895 293 ₽
Материалы:1 022 868 ₽
Дни:23
stdClass Object
(
[id] => 190
[attribute_id] => 3
[name] => Несъемная опалубка
[material_modifier] => 1
[work_modifier] => 1
[options] => Array
(
[0] => 200 мм
[1] => 250 мм
[2] => 300 мм
[3] => 350 мм
)
[days] => [15,17,19,21]
[material_price] => [3302,3902,4108,5008]
[work_price] => [2100,2100,2300,2534]
[image] => https://akademik-stroy.ru/wp-content/uploads/materials/nesemnaya-opalubka.jpg
[area_modifier] => 189
[parent_name] => Стены 1 этаж (несущие)
[parent_id] => 3
[material_sum] => 748894
[work_sum] => 396900
[total_sum] => 1145794
[total_days] => 15
[display_material_sum] => 748 894
[display_work_sum] => 396 900
[display_total_sum] => 1 145 794
)
1
1 145 794₽
Работа:396 900 ₽
Материалы:748 894 ₽
Дни:15
stdClass Object
(
[id] => 251
[attribute_id] => 3
[name] => Бревно
[material_modifier] => 1
[work_modifier] => 1
[options] => Array
(
[0] => 260 мм
[1] => 320 мм
[2] => 360 мм
[3] => 400 мм
[4] => 500 мм
)
[days] => [7,8,9,10,11]
[material_price] => [1874,24045,26930,30972,38825]
[work_price] => [5046,6207,6952,7716,9723]
[image] => https://akademik-stroy.ru/wp-content/uploads/materials/sruby.jpg
[area_modifier] => 189
[parent_name] => Стены 1 этаж (несущие)
[parent_id] => 3
[material_sum] => 425023
[work_sum] => 953694
[total_sum] => 1378717
[total_days] => 7
[display_material_sum] => 425 023
[display_work_sum] => 953 694
[display_total_sum] => 1 378 717
)
1
1 378 717₽
Работа:953 694 ₽
Материалы:425 023 ₽
Дни:7
stdClass Object
(
[id] => 7
[attribute_id] => 4
[name] => Деревянные балки
[material_modifier] => 1
[work_modifier] => 1
[options] => Array
(
[0] => без утепления
[1] => утепление 200 мм
[2] => утепление 250 мм
[3] => утепление 300 мм
[4] => утепление 350 мм
[5] => утепление 400 мм
[6] => утепление 450 мм
[7] => утепление 500 мм
)
[days] => [8,9,9,9,11,12,13,14]
[material_price] => [1634,2042,2344,2947,3149,3652,3354,3557]
[work_price] => [1230,1339,1393,1426,1460,1513,1587,1620]
[image] => https://akademik-stroy.ru/wp-content/uploads/materials/derevyannye-balki.png
[area_modifier] => 189
[parent_name] => Перекрытие первого этажа
[parent_id] => 4
[material_sum] => 370591
[work_sum] => 232470
[total_sum] => 603061
[total_days] => 8
[display_material_sum] => 370 591
[display_work_sum] => 232 470
[display_total_sum] => 603 061
)
1
603 061₽
Работа:232 470 ₽
Материалы:370 591 ₽
Дни:8
stdClass Object
(
[id] => 8
[attribute_id] => 4
[name] => Сборные ж/б плиты
[material_modifier] => 1
[work_modifier] => 1
[options] => Array
(
[0] => без утепления
[1] => утепление 150 мм
[2] => утепление 200 мм
[3] => утепление 250 мм
[4] => утепление 300 мм
[5] => утепление 350 мм
[6] => утепление 400 мм
[7] => утепление 450 мм
[8] => утепление 500 мм
)
[days] => [13,15,15,15,15,15,15,15,15]
[material_price] => [3067,5577,5928,6679,7730,8782,9833,10884,11935]
[work_price] => [1520,1956,2102,2247,2392,2537,2684,2829,2974]
[image] => https://akademik-stroy.ru/wp-content/uploads/materials/sbornye-zh-b-plity-2.jpg
[area_modifier] => 189
[parent_name] => Перекрытие первого этажа
[parent_id] => 4
[material_sum] => 695596
[work_sum] => 287280
[total_sum] => 982876
[total_days] => 13
[display_material_sum] => 695 596
[display_work_sum] => 287 280
[display_total_sum] => 982 876
)
1
982 876₽
Работа:287 280 ₽
Материалы:695 596 ₽
Дни:13
stdClass Object
(
[id] => 89
[attribute_id] => 4
[name] => Монолитная ж/б плита
[material_modifier] => 1
[work_modifier] => 1
[options] => Array
(
[0] => без утепления
[1] => утепление 150 мм
[2] => утепление 200 мм
[3] => утепление 250 мм
[4] => утепление 300 мм
[5] => утепление 350 мм
[6] => утепление 400 мм
[7] => утепление 450 мм
[8] => утепление 500 мм
)
[days] => [18,20,20,20,20,20,20,20,20]
[material_price] => [4837,6572,7224,7375,79426,8177,8728,9180,10031]
[work_price] => [3348,3921,4112,4302,4493,4684,4875,5066,5256]
[image] => https://akademik-stroy.ru/wp-content/uploads/materials/monolitnaya-zh-b-plita-2.jpg
[area_modifier] => 189
[parent_name] => Перекрытие первого этажа
[parent_id] => 4
[material_sum] => 1097032
[work_sum] => 632772
[total_sum] => 1729804
[total_days] => 18
[display_material_sum] => 1 097 032
[display_work_sum] => 632 772
[display_total_sum] => 1 729 804
)
1
1 729 804₽
Работа:632 772 ₽
Материалы:1 097 032 ₽
Дни:18
stdClass Object
(
[id] => 10
[attribute_id] => 5
[name] => Пеноблок
[material_modifier] => 1
[work_modifier] => 1
[options] => Array
(
[0] => 300 мм
[1] => 400 мм
[2] => 500 мм
[3] => 600 мм
)
[days] => [29,31,34,39]
[material_price] => [3000,4000,4500,4937]
[work_price] => [5033,5805,6400,8710]
[image] => https://akademik-stroy.ru/wp-content/uploads/materials/penoblok.jpg
[area_modifier] => 136.66
[parent_name] => Стены 2 этаж (несущие)
[parent_id] => 5
[material_sum] => 491976
[work_sum] => 687810
[total_sum] => 1179786
[total_days] => 29
[display_material_sum] => 491 976
[display_work_sum] => 687 810
[display_total_sum] => 1 179 786
)
1
1 179 786₽
Работа:687 810 ₽
Материалы:491 976 ₽
Дни:29
stdClass Object
(
[id] => 90
[attribute_id] => 5
[name] => Керамический блок
[material_modifier] => 1
[work_modifier] => 1
[options] => Array
(
[0] => 380 мм
[1] => 380 мм Thermo
[2] => 440 мм
[3] => 510 мм
)
[days] => [23,23,24,25]
[material_price] => [4510,5098,6093,8013]
[work_price] => [4737,4937,5903,6958]
[image] => https://akademik-stroy.ru/wp-content/uploads/materials/keramicheskij-blok.jpg
[area_modifier] => 136.66
[parent_name] => Стены 2 этаж (несущие)
[parent_id] => 5
[material_sum] => 739604
[work_sum] => 647358
[total_sum] => 1386962
[total_days] => 23
[display_material_sum] => 739 604
[display_work_sum] => 647 358
[display_total_sum] => 1 386 962
)
1
1 386 962₽
Работа:647 358 ₽
Материалы:739 604 ₽
Дни:23
stdClass Object
(
[id] => 91
[attribute_id] => 5
[name] => Кирпич
[material_modifier] => 1
[work_modifier] => 1
[options] => Array
(
[0] => Кирпич 250 мм
[1] => Кирпич 380 мм
[2] => Кирпич 510 мм
[3] => Кирпич 640 мм
[4] => Кирпич 770 мм
)
[days] => [30,30,31,33,36]
[material_price] => [5500,7142,9206,10171,12235]
[work_price] => [8736,10041,12018,15240,18462]
[image] => https://akademik-stroy.ru/wp-content/uploads/materials/kirpich.jpg
[area_modifier] => 136.66
[parent_name] => Стены 2 этаж (несущие)
[parent_id] => 5
[material_sum] => 901956
[work_sum] => 1193862
[total_sum] => 2095818
[total_days] => 30
[display_material_sum] => 901 956
[display_work_sum] => 1 193 862
[display_total_sum] => 2 095 818
)
1
2 095 818₽
Работа:1 193 862 ₽
Материалы:901 956 ₽
Дни:30
stdClass Object
(
[id] => 92
[attribute_id] => 5
[name] => Монолитные
[material_modifier] => 1
[work_modifier] => 1
[options] => Array
(
[0] => 150 мм
[1] => 200 мм
[2] => 250 мм
[3] => 300 мм
[4] => 350 мм
[5] => 400 мм
)
[days] => [45,46,47,49,50,53]
[material_price] => [6545,7876,10175,12011,13908,15204]
[work_price] => [5106,6444,7698,8552,9807,11461]
[image] => https://akademik-stroy.ru/wp-content/uploads/materials/monolitnye.jpg
[area_modifier] => 136.66
[parent_name] => Стены 2 этаж (несущие)
[parent_id] => 5
[material_sum] => 1073328
[work_sum] => 697786
[total_sum] => 1771114
[total_days] => 45
[display_material_sum] => 1 073 328
[display_work_sum] => 697 786
[display_total_sum] => 1 771 114
)
1
1 771 114₽
Работа:697 786 ₽
Материалы:1 073 328 ₽
Дни:45
stdClass Object
(
[id] => 93
[attribute_id] => 5
[name] => Клееный брус
[material_modifier] => 1
[work_modifier] => 1
[options] => Array
(
[0] => 160 мм
[1] => 175 мм
[2] => 200 мм
[3] => 215 мм
[4] => 240 мм
[5] => 270 мм
[6] => 282 мм
)
[days] => [24,28,32,37,40,42,48]
[material_price] => [16975,18773,19950,20545,21599,22159,23275]
[work_price] => [4806,5287,5815,6397,7036,7740,8514]
[image] => https://akademik-stroy.ru/wp-content/uploads/materials/kleenyj-brus.jpg
[area_modifier] => 136.66
[parent_name] => Стены 2 этаж (несущие)
[parent_id] => 5
[material_sum] => 2783764
[work_sum] => 656788
[total_sum] => 3440552
[total_days] => 24
[display_material_sum] => 2 783 764
[display_work_sum] => 656 788
[display_total_sum] => 3 440 552
)
1
3 440 552₽
Работа:656 788 ₽
Материалы:2 783 764 ₽
Дни:24
stdClass Object
(
[id] => 94
[attribute_id] => 5
[name] => Каркасные
[material_modifier] => 1
[work_modifier] => 1
[options] => Array
(
[0] => 150 мм
[1] => 200 мм
[2] => 250 мм
[3] => 300 мм
)
[days] => [15,16,17,18]
[material_price] => [2379,2639,2898,3258]
[work_price] => [2418,2686,2985,3716]
[image] => https://akademik-stroy.ru/wp-content/uploads/materials/karkasnye.jpg
[area_modifier] => 136.66
[parent_name] => Стены 2 этаж (несущие)
[parent_id] => 5
[material_sum] => 390137
[work_sum] => 330444
[total_sum] => 720581
[total_days] => 15
[display_material_sum] => 390 137
[display_work_sum] => 330 444
[display_total_sum] => 720 581
)
1
720 581₽
Работа:330 444 ₽
Материалы:390 137 ₽
Дни:15
stdClass Object
(
[id] => 95
[attribute_id] => 5
[name] => СИП-панели
[material_modifier] => 1
[work_modifier] => 1
[options] => Array
(
[0] => 120 мм
[1] => 170 мм
[2] => 220 мм
)
[days] => [7,7,7]
[material_price] => [1210,1856,2292]
[work_price] => [1410,1551,1706]
[image] => https://akademik-stroy.ru/wp-content/uploads/materials/sip-paneli.jpg
[area_modifier] => 136.66
[parent_name] => Стены 2 этаж (несущие)
[parent_id] => 5
[material_sum] => 198430
[work_sum] => 192691
[total_sum] => 391121
[total_days] => 7
[display_material_sum] => 198 430
[display_work_sum] => 192 691
[display_total_sum] => 391 121
)
1
391 121₽
Работа:192 691 ₽
Материалы:198 430 ₽
Дни:7
stdClass Object
(
[id] => 96
[attribute_id] => 5
[name] => Сухой брус
[material_modifier] => 1
[work_modifier] => 1
[options] => Array
(
[0] => 150 мм
[1] => 180 мм
[2] => 200 мм
)
[days] => [7,8,9]
[material_price] => [6010,7190,8709]
[work_price] => [3204,3845,4229]
[image] => https://akademik-stroy.ru/wp-content/uploads/materials/suhoj-brus.jpg
[area_modifier] => 136.66
[parent_name] => Стены 2 этаж (несущие)
[parent_id] => 5
[material_sum] => 985592
[work_sum] => 437859
[total_sum] => 1423451
[total_days] => 7
[display_material_sum] => 985 592
[display_work_sum] => 437 859
[display_total_sum] => 1 423 451
)
1
1 423 451₽
Работа:437 859 ₽
Материалы:985 592 ₽
Дни:7
stdClass Object
(
[id] => 97
[attribute_id] => 5
[name] => Профилированный брус
[material_modifier] => 1
[work_modifier] => 1
[options] => Array
(
[0] => 150 мм
[1] => 180 мм
[2] => 200 мм
)
[days] => [7,8,9]
[material_price] => [8190,9228,10051]
[work_price] => [3845,4614,5075]
[image] => https://akademik-stroy.ru/wp-content/uploads/materials/profilirovannyj-brus.jpg
[area_modifier] => 136.66
[parent_name] => Стены 2 этаж (несущие)
[parent_id] => 5
[material_sum] => 1343094
[work_sum] => 525458
[total_sum] => 1868552
[total_days] => 7
[display_material_sum] => 1 343 094
[display_work_sum] => 525 458
[display_total_sum] => 1 868 552
)
1
1 868 552₽
Работа:525 458 ₽
Материалы:1 343 094 ₽
Дни:7
stdClass Object
(
[id] => 98
[attribute_id] => 5
[name] => Оцилиндрованное бревно
[material_modifier] => 1
[work_modifier] => 1
[options] => Array
(
[0] => 180 мм
[1] => 220 мм
[2] => 260 мм
[3] => 320 мм
)
[days] => [7,8,9,10]
[material_price] => [75190,9532,10868,13116]
[work_price] => [3845,4691,5535,6863]
[image] => https://akademik-stroy.ru/wp-content/uploads/materials/ocilindrovannoe-brevno-1.jpg
[area_modifier] => 136.66
[parent_name] => Стены 2 этаж (несущие)
[parent_id] => 5
[material_sum] => 12330558
[work_sum] => 525458
[total_sum] => 12856016
[total_days] => 7
[display_material_sum] => 12 330 558
[display_work_sum] => 525 458
[display_total_sum] => 12 856 016
)
1
12 856 016₽
Работа:525 458 ₽
Материалы:12 330 558 ₽
Дни:7
stdClass Object
(
[id] => 99
[attribute_id] => 5
[name] => Срубы
[material_modifier] => 1
[work_modifier] => 1
[options] => Array
(
[0] => 260 мм
[1] => 320 мм
[2] => 360 мм
[3] => 400 мм
[4] => 500 мм
)
[days] => [7,8,9,10,11]
[material_price] => [16175,23709,26314,29069,32167]
[work_price] => [4806,5911,6621,7349,9260]
[image] => https://akademik-stroy.ru/wp-content/uploads/materials/suhoj-brus.jpg
[area_modifier] => 136.66
[parent_name] => Стены 2 этаж (несущие)
[parent_id] => 5
[material_sum] => 2652571
[work_sum] => 656788
[total_sum] => 3309359
[total_days] => 7
[display_material_sum] => 2 652 571
[display_work_sum] => 656 788
[display_total_sum] => 3 309 359
)
1
3 309 359₽
Работа:656 788 ₽
Материалы:2 652 571 ₽
Дни:7
stdClass Object
(
[id] => 194
[attribute_id] => 5
[name] => Брус
[material_modifier] => 1
[work_modifier] => 1
[options] => Array
(
[0] => 150 мм
[1] => 180 мм
[2] => 200 мм
)
[days] => [10,13,15]
[material_price] => [5127,6152,7367]
[work_price] => [1602,1922,2115]
[image] => https://akademik-stroy.ru/wp-content/uploads/materials/brus.jpg
[area_modifier] => 136.66
[parent_name] => Стены 2 этаж (несущие)
[parent_id] => 5
[material_sum] => 840787
[work_sum] => 218929
[total_sum] => 1059716
[total_days] => 10
[display_material_sum] => 840 787
[display_work_sum] => 218 929
[display_total_sum] => 1 059 716
)
1
1 059 716₽
Работа:218 929 ₽
Материалы:840 787 ₽
Дни:10
stdClass Object
(
[id] => 195
[attribute_id] => 5
[name] => Газобетон
[material_modifier] => 1
[work_modifier] => 1
[options] => Array
(
[0] => 300 мм
[1] => 375 мм
[2] => 400 мм
[3] => 500 мм
[4] => 600 мм
)
[days] => [29,31,35,37,44]
[material_price] => [4298,5573,6356,7288,9119]
[work_price] => [4538,5251,5926,6733,7195]
[image] => https://akademik-stroy.ru/wp-content/uploads/materials/gazobeton.jpg
[area_modifier] => 136.66
[parent_name] => Стены 2 этаж (несущие)
[parent_id] => 5
[material_sum] => 704838
[work_sum] => 620163
[total_sum] => 1325001
[total_days] => 29
[display_material_sum] => 704 838
[display_work_sum] => 620 163
[display_total_sum] => 1 325 001
)
1
1 325 001₽
Работа:620 163 ₽
Материалы:704 838 ₽
Дни:29
stdClass Object
(
[id] => 196
[attribute_id] => 5
[name] => Блок
[material_modifier] => 1
[work_modifier] => 1
[options] => Array
(
[0] => 300 мм
[1] => 375 мм
[2] => 400 мм
[3] => 500 мм
[4] => 600 мм
)
[days] => [29,31,35,37,44]
[material_price] => [2698,3973,4356,6588,7119]
[work_price] => [5038,5851,6426,8733,9195]
[image] => https://akademik-stroy.ru/wp-content/uploads/materials/blok.jpg
[area_modifier] => 136.66
[parent_name] => Стены 2 этаж (несущие)
[parent_id] => 5
[material_sum] => 442450
[work_sum] => 688493
[total_sum] => 1130943
[total_days] => 29
[display_material_sum] => 442 450
[display_work_sum] => 688 493
[display_total_sum] => 1 130 943
)
1
1 130 943₽
Работа:688 493 ₽
Материалы:442 450 ₽
Дни:29
stdClass Object
(
[id] => 197
[attribute_id] => 5
[name] => Газосиликатный блок
[material_modifier] => 1
[work_modifier] => 1
[options] => Array
(
[0] => 300 мм
[1] => 375 мм
[2] => 400 мм
[3] => 500 мм
[4] => 600 мм
)
[days] => [29,31,35,37,44]
[material_price] => [4298,5573,6356,7288,9119]
[work_price] => [4538,5251,5926,6733,7195]
[image] => https://akademik-stroy.ru/wp-content/uploads/materials/gazosilikatnyj-blok.jpg
[area_modifier] => 136.66
[parent_name] => Стены 2 этаж (несущие)
[parent_id] => 5
[material_sum] => 704838
[work_sum] => 620163
[total_sum] => 1325001
[total_days] => 29
[display_material_sum] => 704 838
[display_work_sum] => 620 163
[display_total_sum] => 1 325 001
)
1
1 325 001₽
Работа:620 163 ₽
Материалы:704 838 ₽
Дни:29
stdClass Object
(
[id] => 198
[attribute_id] => 5
[name] => Керамзитобетонный блок
[material_modifier] => 1
[work_modifier] => 1
[options] => Array
(
[0] => 300 мм
[1] => 375 мм
[2] => 400 мм
[3] => 500 мм
[4] => 600 мм
)
[days] => [23,23,24,25,28]
[material_price] => [3641,4298,5693,7613,9612]
[work_price] => [5737,5737,6903,7958,8901]
[image] => https://akademik-stroy.ru/wp-content/uploads/materials/keramzitobetonnyj-blok.jpg
[area_modifier] => 136.66
[parent_name] => Стены 2 этаж (несущие)
[parent_id] => 5
[material_sum] => 597095
[work_sum] => 784018
[total_sum] => 1381113
[total_days] => 23
[display_material_sum] => 597 095
[display_work_sum] => 784 018
[display_total_sum] => 1 381 113
)
1
1 381 113₽
Работа:784 018 ₽
Материалы:597 095 ₽
Дни:23
stdClass Object
(
[id] => 199
[attribute_id] => 5
[name] => Деревянные
[material_modifier] => 1
[work_modifier] => 1
[options] => Array
(
[0] => 180 мм
[1] => 220 мм
[2] => 260 мм
[3] => 320 мм
)
[days] => [7,8,9,10]
[material_price] => [7950,9458,11961,14472]
[work_price] => [4037,4925,5812,7207]
[image] => https://akademik-stroy.ru/wp-content/uploads/materials/derevyannye.jpg
[area_modifier] => 136.66
[parent_name] => Стены 2 этаж (несущие)
[parent_id] => 5
[material_sum] => 1303736
[work_sum] => 551696
[total_sum] => 1855432
[total_days] => 7
[display_material_sum] => 1 303 736
[display_work_sum] => 551 696
[display_total_sum] => 1 855 432
)
1
1 855 432₽
Работа:551 696 ₽
Материалы:1 303 736 ₽
Дни:7
stdClass Object
(
[id] => 200
[attribute_id] => 5
[name] => Камень
[material_modifier] => 1
[work_modifier] => 1
[options] => Array
(
[0] => 300 мм
[1] => 400 мм
[2] => 500 мм
[3] => 600 мм
)
[days] => [25,27,31,34]
[material_price] => [5262,6844,8330,9815]
[work_price] => [8331,9135,10427,11069]
[image] => https://akademik-stroy.ru/wp-content/uploads/materials/kamen.jpg
[area_modifier] => 136.66
[parent_name] => Стены 2 этаж (несущие)
[parent_id] => 5
[material_sum] => 862926
[work_sum] => 1138514
[total_sum] => 2001440
[total_days] => 25
[display_material_sum] => 862 926
[display_work_sum] => 1 138 514
[display_total_sum] => 2 001 440
)
1
2 001 440₽
Работа:1 138 514 ₽
Материалы:862 926 ₽
Дни:25
stdClass Object
(
[id] => 201
[attribute_id] => 5
[name] => Каркасно-щитовые
[material_modifier] => 1
[work_modifier] => 1
[options] => Array
(
[0] => 150 мм
[1] => 200 мм
[2] => 250 мм
[3] => 300 мм
[4] => 350 мм
[5] => 400 мм
)
[days] => [15,16,17,18,19,20]
[material_price] => [2379,2639,2898,3458,3601,4175]
[work_price] => [2538,2820,3134,3483,4062,5642]
[image] => https://akademik-stroy.ru/wp-content/uploads/materials/karkasno-shchitovye.jpg
[area_modifier] => 136.66
[parent_name] => Стены 2 этаж (несущие)
[parent_id] => 5
[material_sum] => 390137
[work_sum] => 346843
[total_sum] => 736980
[total_days] => 15
[display_material_sum] => 390 137
[display_work_sum] => 346 843
[display_total_sum] => 736 980
)
1
736 980₽
Работа:346 843 ₽
Материалы:390 137 ₽
Дни:15
stdClass Object
(
[id] => 202
[attribute_id] => 5
[name] => Рубленные
[material_modifier] => 1
[work_modifier] => 1
[options] => Array
(
[0] => 150 мм
[1] => 200 мм
[2] => 250 мм
[3] => 300 мм
[4] => 350 мм
[5] => 400 мм
)
[days] => [15,16,17,18,17,18]
[material_price] => [35950,50267,60583,75900,80217,100533]
[work_price] => [9612,12816,16020,19224,22428,25632]
[image] => https://akademik-stroy.ru/wp-content/uploads/materials/rublennye.jpg
[area_modifier] => 136.66
[parent_name] => Стены 2 этаж (несущие)
[parent_id] => 5
[material_sum] => 5895512
[work_sum] => 1313576
[total_sum] => 7209088
[total_days] => 15
[display_material_sum] => 5 895 512
[display_work_sum] => 1 313 576
[display_total_sum] => 7 209 088
)
1
7 209 088₽
Работа:1 313 576 ₽
Материалы:5 895 512 ₽
Дни:15
stdClass Object
(
[id] => 203
[attribute_id] => 5
[name] => Теплоблок
[material_modifier] => 1
[work_modifier] => 1
[options] => Array
(
[0] => 300 мм (с облицовкой, не покрашенный)
[1] => 400 мм (с облицовкой, не покрашенный)
[2] => 300 мм (с облицовкой, покрашенный)
[3] => 400 мм (с облицовкой, покрашенный)
)
[days] => [15,16,15,16]
[material_price] => [2888,3729,3957,4258]
[work_price] => [2564,3229,2949,3713]
[image] => https://akademik-stroy.ru/wp-content/uploads/materials/teploblok.jpg
[area_modifier] => 136.66
[parent_name] => Стены 2 этаж (несущие)
[parent_id] => 5
[material_sum] => 473609
[work_sum] => 350396
[total_sum] => 824005
[total_days] => 15
[display_material_sum] => 473 609
[display_work_sum] => 350 396
[display_total_sum] => 824 005
)
1
824 005₽
Работа:350 396 ₽
Материалы:473 609 ₽
Дни:15
stdClass Object
(
[id] => 204
[attribute_id] => 5
[name] => Арболитовые блоки
[material_modifier] => 1
[work_modifier] => 1
[options] => Array
(
[0] => 300 мм
[1] => 400 мм
[2] => 600 мм
)
[days] => [19,22,27]
[material_price] => [3210,4475,5852]
[work_price] => [4214,4788,5866]
[image] => https://akademik-stroy.ru/wp-content/uploads/materials/arbolitovye-bloki.png
[area_modifier] => 136.66
[parent_name] => Стены 2 этаж (несущие)
[parent_id] => 5
[material_sum] => 526414
[work_sum] => 575885
[total_sum] => 1102299
[total_days] => 19
[display_material_sum] => 526 414
[display_work_sum] => 575 885
[display_total_sum] => 1 102 299
)
1
1 102 299₽
Работа:575 885 ₽
Материалы:526 414 ₽
Дни:19
stdClass Object
(
[id] => 205
[attribute_id] => 5
[name] => Полистиролбетон
[material_modifier] => 1
[work_modifier] => 1
[options] => Array
(
[0] => 300 мм
[1] => 400 мм
[2] => 600 мм
)
[days] => [29,31,35]
[material_price] => [2798,4573,5256]
[work_price] => [5038,5851,6426]
[image] => https://akademik-stroy.ru/wp-content/uploads/materials/polistirolbeton.jpg
[area_modifier] => 136.66
[parent_name] => Стены 2 этаж (несущие)
[parent_id] => 5
[material_sum] => 458850
[work_sum] => 688493
[total_sum] => 1147343
[total_days] => 29
[display_material_sum] => 458 850
[display_work_sum] => 688 493
[display_total_sum] => 1 147 343
)
1
1 147 343₽
Работа:688 493 ₽
Материалы:458 850 ₽
Дни:29
stdClass Object
(
[id] => 206
[attribute_id] => 5
[name] => Шлакоблок
[material_modifier] => 1
[work_modifier] => 1
[options] => Array
(
[0] => 400 мм
[1] => 600 мм
)
[days] => [15,16]
[material_price] => [2391,3471]
[work_price] => [2642,3662]
[image] => https://akademik-stroy.ru/wp-content/uploads/materials/shlakoblok.jpg
[area_modifier] => 136.66
[parent_name] => Стены 2 этаж (несущие)
[parent_id] => 5
[material_sum] => 392105
[work_sum] => 361056
[total_sum] => 753161
[total_days] => 15
[display_material_sum] => 392 105
[display_work_sum] => 361 056
[display_total_sum] => 753 161
)
1
753 161₽
Работа:361 056 ₽
Материалы:392 105 ₽
Дни:15
stdClass Object
(
[id] => 245
[attribute_id] => 5
[name] => Теплая керамика
[material_modifier] => 1
[work_modifier] => 1
[options] => Array
(
[0] => 380 мм
[1] => 380 мм Thermo
[2] => 440 мм
[3] => 510 мм
)
[days] => [10,10,11,12]
[material_price] => [4510,5098,6093,8013]
[work_price] => [4737,4937,5903,6958]
[image] => https://akademik-stroy.ru/wp-content/uploads/materials/teplaya-keramika.jpg
[area_modifier] => 136.66
[parent_name] => Стены 2 этаж (несущие)
[parent_id] => 5
[material_sum] => 739604
[work_sum] => 647358
[total_sum] => 1386962
[total_days] => 10
[display_material_sum] => 739 604
[display_work_sum] => 647 358
[display_total_sum] => 1 386 962
)
1
1 386 962₽
Работа:647 358 ₽
Материалы:739 604 ₽
Дни:10
stdClass Object
(
[id] => 246
[attribute_id] => 5
[name] => Несъемная опалубка
[material_modifier] => 1
[work_modifier] => 1
[options] => Array
(
[0] => 380 мм
[1] => 380 мм Thermo
[2] => 440 мм
[3] => 510 мм
)
[days] => [10,10,11,12]
[material_price] => [3302,3902,4108,5008]
[work_price] => [2100,2100,2300,2534]
[image] => https://akademik-stroy.ru/wp-content/uploads/materials/nesemnaya-opalubka.jpg
[area_modifier] => 136.66
[parent_name] => Стены 2 этаж (несущие)
[parent_id] => 5
[material_sum] => 541502
[work_sum] => 286986
[total_sum] => 828488
[total_days] => 10
[display_material_sum] => 541 502
[display_work_sum] => 286 986
[display_total_sum] => 828 488
)
1
828 488₽
Работа:286 986 ₽
Материалы:541 502 ₽
Дни:10
stdClass Object
(
[id] => 254
[attribute_id] => 5
[name] => Бревно
[material_modifier] => 1
[work_modifier] => 1
[options] => Array
(
[0] => 260 мм
[1] => 320 мм
[2] => 360 мм
[3] => 400 мм
[4] => 500 мм
)
[days] => [7,8,9,10,11]
[material_price] => [1874,24045,26930,30972,38825]
[work_price] => [5046,6207,6952,7716,9723]
[image] => https://akademik-stroy.ru/wp-content/uploads/materials/sruby.jpg
[area_modifier] => 136.66
[parent_name] => Стены 2 этаж (несущие)
[parent_id] => 5
[material_sum] => 307321
[work_sum] => 689586
[total_sum] => 996907
[total_days] => 7
[display_material_sum] => 307 321
[display_work_sum] => 689 586
[display_total_sum] => 996 907
)
1
996 907₽
Работа:689 586 ₽
Материалы:307 321 ₽
Дни:7
stdClass Object
(
[id] => 11
[attribute_id] => 6
[name] => Деревянные балки
[material_modifier] => 1
[work_modifier] => 1
[options] => Array
(
[0] => без утепления
[1] => утепление 200 мм
[2] => утепление 250 мм
[3] => утепление 300 мм
[4] => утепление 350 мм
[5] => утепление 400 мм
[6] => утепление 450 мм
[7] => утепление 500 мм
)
[days] => [8,9,9,9,11,12,13,14]
[material_price] => [1634,2042,2344,2947,3149,3652,3354,3557]
[work_price] => [1230,1339,1393,1426,1460,1513,1587,1620]
[image] => https://akademik-stroy.ru/wp-content/uploads/materials/derevyannye-balki.png
[area_modifier] => 136.66
[parent_name] => Перекрытие второго этажа
[parent_id] => 6
[material_sum] => 267963
[work_sum] => 168092
[total_sum] => 436055
[total_days] => 8
[display_material_sum] => 267 963
[display_work_sum] => 168 092
[display_total_sum] => 436 055
)
1
436 055₽
Работа:168 092 ₽
Материалы:267 963 ₽
Дни:8
stdClass Object
(
[id] => 12
[attribute_id] => 6
[name] => Сборные ж/б плиты
[material_modifier] => 1
[work_modifier] => 1
[options] => Array
(
[0] => без утепления
[1] => утепление 150 мм
[2] => утепление 200 мм
[3] => утепление 250 мм
[4] => утепление 300 мм
[5] => утепление 350 мм
[6] => утепление 400 мм
[7] => утепление 450 мм
[8] => утепление 500 мм
)
[days] => [13,15,15,15,15,15,15,15,15]
[material_price] => [3067,5577,5928,6679,7730,8782,9833,10884,11935]
[work_price] => [1520,1956,2102,2247,2392,2537,2684,2829,2974]
[image] => https://akademik-stroy.ru/wp-content/uploads/materials/sbornye-zh-b-plity-2.jpg
[area_modifier] => 136.66
[parent_name] => Перекрытие второго этажа
[parent_id] => 6
[material_sum] => 502963
[work_sum] => 207723
[total_sum] => 710686
[total_days] => 13
[display_material_sum] => 502 963
[display_work_sum] => 207 723
[display_total_sum] => 710 686
)
1
710 686₽
Работа:207 723 ₽
Материалы:502 963 ₽
Дни:13
stdClass Object
(
[id] => 100
[attribute_id] => 6
[name] => Монолитная ж/б плита
[material_modifier] => 1
[work_modifier] => 1
[options] => Array
(
[0] => без утепления
[1] => утепление 150 мм
[2] => утепление 200 мм
[3] => утепление 250 мм
[4] => утепление 300 мм
[5] => утепление 350 мм
[6] => утепление 400 мм
[7] => утепление 450 мм
[8] => утепление 500 мм
)
[days] => [18,20,20,20,20,20,20,20,20]
[material_price] => [4837,6572,7224,7375,79426,8177,8728,9180,10031]
[work_price] => [3348,3921,4112,4302,4493,4684,4875,5066,5256]
[image] => https://akademik-stroy.ru/wp-content/uploads/materials/monolitnaya-zh-b-plita-2.jpg
[area_modifier] => 136.66
[parent_name] => Перекрытие второго этажа
[parent_id] => 6
[material_sum] => 793229
[work_sum] => 457538
[total_sum] => 1250767
[total_days] => 18
[display_material_sum] => 793 229
[display_work_sum] => 457 538
[display_total_sum] => 1 250 767
)
1
1 250 767₽
Работа:457 538 ₽
Материалы:793 229 ₽
Дни:18
stdClass Object
(
[id] => 160
[attribute_id] => 36
[name] => Не эксплуатируемая
[material_modifier] => 1
[work_modifier] => 1
[options] => Array
(
)
[days] => [10]
[material_price] => [8068]
[work_price] => [4163]
[image] => https://akademik-stroy.ru/wp-content/uploads/materials/ne-ehkspluatiruemaya-3.jpg
[area_modifier] => 189
[parent_name] => Плоская крыша
[parent_id] => 36
[material_sum] => 1829822
[work_sum] => 786807
[total_sum] => 2616629
[total_days] => 10
[display_material_sum] => 1 829 822
[display_work_sum] => 786 807
[display_total_sum] => 2 616 629
)
1
2 616 629₽
Работа:786 807 ₽
Материалы:1 829 822 ₽
Дни:10
stdClass Object
(
[id] => 161
[attribute_id] => 36
[name] => Зеленая кровля (Эксплуатируемая)
[material_modifier] => 1
[work_modifier] => 1
[options] => Array
(
)
[days] => [10]
[material_price] => [10056]
[work_price] => [8446]
[image] => https://akademik-stroy.ru/wp-content/uploads/materials/zelenaya-krovlya-2.jpg
[area_modifier] => 189
[parent_name] => Плоская крыша
[parent_id] => 36
[material_sum] => 2280701
[work_sum] => 1596294
[total_sum] => 3876995
[total_days] => 10
[display_material_sum] => 2 280 701
[display_work_sum] => 1 596 294
[display_total_sum] => 3 876 995
)
1
3 876 995₽
Работа:1 596 294 ₽
Материалы:2 280 701 ₽
Дни:10
stdClass Object
(
[id] => 162
[attribute_id] => 36
[name] => Эксплуатируемая
[material_modifier] => 1
[work_modifier] => 1
[options] => Array
(
)
[days] => [10]
[material_price] => [9593]
[work_price] => [7459]
[image] => https://akademik-stroy.ru/wp-content/uploads/materials/ehkspluatiruemaya-2.jpg
[area_modifier] => 189
[parent_name] => Плоская крыша
[parent_id] => 36
[material_sum] => 2175692
[work_sum] => 1409751
[total_sum] => 3585443
[total_days] => 10
[display_material_sum] => 2 175 692
[display_work_sum] => 1 409 751
[display_total_sum] => 3 585 443
)
1
3 585 443₽
Работа:1 409 751 ₽
Материалы:2 175 692 ₽
Дни:10
stdClass Object
(
[id] => 163
[attribute_id] => 36
[name] => Нет
[material_modifier] => 1
[work_modifier] => 1
[options] => Array
(
)
[days] => [0]
[material_price] => [0]
[work_price] => [0]
[image] => https://akademik-stroy.ru/wp-content/uploads/materials/ne-ehkspluatiruemaya-3.jpg
[area_modifier] => 189
[parent_name] => Плоская крыша
[parent_id] => 36
[material_sum] => 0
[work_sum] => 0
[total_sum] => 0
[total_days] => 0
[display_material_sum] => 0
[display_work_sum] => 0
[display_total_sum] => 0
)
1
0₽
Работа:0 ₽
Материалы:0 ₽
Дни:0
stdClass Object
(
[id] => 51
[attribute_id] => 26
[name] => Есть
[material_modifier] => 1
[work_modifier] => 1
[options] => Array
(
[0] => Профиль 58 мм, 3-камерный, стеклопакет 2-камерный до 32 мм
[1] => Профиль 60 мм, 4-камерный, стеклопакет 2-камерный до 32 мм
[2] => Профиль 70 мм, 5-камерный, стеклопакет 2-камерный до 40 мм
[3] => Профиль 72 мм, 5-камерный, стеклопакет 2-камерный до 40 мм
[4] => Алюминиевые окна Alutech профиль 72 мм, стеклопакет 2-камерный
)
[days] => [3,3,3,3,3]
[material_price] => [1339,2124,2867,3023,29596]
[work_price] => [635,647,659,668,2579]
[image] => https://akademik-stroy.ru/wp-content/uploads/materials/okna.jpg
[area_modifier] => 264.27
[parent_name] => Окна
[parent_id] => 26
[material_sum] => 424629
[work_sum] => 167811
[total_sum] => 592440
[total_days] => 3
[display_material_sum] => 424 629
[display_work_sum] => 167 811
[display_total_sum] => 592 440
)
1
592 440₽
Работа:167 811 ₽
Материалы:424 629 ₽
Дни:3
stdClass Object
(
[id] => 52
[attribute_id] => 26
[name] => Нет
[material_modifier] => 2
[work_modifier] => 1
[options] =>
[days] => null
[material_price] => null
[work_price] => null
[image] => https://akademik-stroy.ru/wp-content/uploads/materials/okna.jpg
[area_modifier] => 264.27
[parent_name] => Окна
[parent_id] => 26
[material_sum] => 0
[work_sum] => 0
[total_sum] => 0
[total_days] => 0
[display_material_sum] => 0
[display_work_sum] => 0
[display_total_sum] => 0
)
1
0₽
Работа:0 ₽
Материалы:0 ₽
Дни:0
stdClass Object
(
[id] => 53
[attribute_id] => 27
[name] => Есть
[material_modifier] => 1
[work_modifier] => 1
[options] => Array
(
)
[days] => [1]
[material_price] => [10000]
[work_price] => [5500]
[image] => https://akademik-stroy.ru/wp-content/uploads/materials/dveri.jpg
[area_modifier] => 1
[parent_name] => Двери входные
[parent_id] => 27
[material_sum] => 12000
[work_sum] => 5500
[total_sum] => 17500
[total_days] => 1
[display_material_sum] => 12 000
[display_work_sum] => 5 500
[display_total_sum] => 17 500
)
1
17 500₽
Работа:5 500 ₽
Материалы:12 000 ₽
Дни:1
stdClass Object
(
[id] => 54
[attribute_id] => 27
[name] => Нет
[material_modifier] => 1
[work_modifier] => 1
[options] => Array
(
)
[days] => [0]
[material_price] => [0]
[work_price] => [0]
[image] => https://akademik-stroy.ru/wp-content/uploads/materials/dveri.jpg
[area_modifier] => 1
[parent_name] => Двери входные
[parent_id] => 27
[material_sum] => 0
[work_sum] => 0
[total_sum] => 0
[total_days] => 0
[display_material_sum] => 0
[display_work_sum] => 0
[display_total_sum] => 0
)
1
0₽
Работа:0 ₽
Материалы:0 ₽
Дни:0
stdClass Object
(
[id] => 31
[attribute_id] => 16
[name] => Нет
[material_modifier] => 1
[work_modifier] => 1
[options] => Array
(
)
[days] => [0]
[material_price] => [0]
[work_price] => [0]
[image] => https://akademik-stroy.ru/wp-content/uploads/materials/docke-standard-pvh.jpg
[area_modifier] => 189
[parent_name] => Водосточная система
[parent_id] => 16
[material_sum] => 0
[work_sum] => 0
[total_sum] => 0
[total_days] => 0
[display_material_sum] => 0
[display_work_sum] => 0
[display_total_sum] => 0
)
1
0₽
Работа:0 ₽
Материалы:0 ₽
Дни:0
stdClass Object
(
[id] => 32
[attribute_id] => 16
[name] => Есть
[material_modifier] => 1
[work_modifier] => 1
[options] => Array
(
[0] => Döcke Standard (ПВХ)
[1] => Металлические Grand Line
)
[days] => [7,7]
[material_price] => [1842,2703]
[work_price] => [1491,1529]
[image] => https://akademik-stroy.ru/wp-content/uploads/materials/docke-standard-pvh.jpg
[area_modifier] => 189
[parent_name] => Водосточная система
[parent_id] => 16
[material_sum] => 417766
[work_sum] => 281799
[total_sum] => 699565
[total_days] => 7
[display_material_sum] => 417 766
[display_work_sum] => 281 799
[display_total_sum] => 699 565
)
1
699 565₽
Работа:281 799 ₽
Материалы:417 766 ₽
Дни:7
stdClass Object
(
[id] => 33
[attribute_id] => 17
[name] => Нет
[material_modifier] => 1
[work_modifier] => 1
[options] => Array
(
)
[days] => [0]
[material_price] => [0]
[work_price] => [0]
[image] => https://akademik-stroy.ru/wp-content/uploads/materials/mineralovata.jpg
[area_modifier] => 325.66
[parent_name] => Дополнительное утепление наружных стен
[parent_id] => 17
[material_sum] => 0
[work_sum] => 0
[total_sum] => 0
[total_days] => 0
[display_material_sum] => 0
[display_work_sum] => 0
[display_total_sum] => 0
)
1
0₽
Работа:0 ₽
Материалы:0 ₽
Дни:0
stdClass Object
(
[id] => 34
[attribute_id] => 17
[name] => Минераловатный
[material_modifier] => 1
[work_modifier] => 1
[options] => Array
(
[0] => 50 мм
[1] => 100 мм
[2] => 150 мм
[3] => 200 мм
[4] => 250 мм
[5] => 300 мм
)
[days] => [7,8,10,12,14,15]
[material_price] => [3437,3613,3803,3915,4601,4830]
[work_price] => [2325,2423,2523,2749,2859,3025]
[image] => https://akademik-stroy.ru/wp-content/uploads/materials/mineralovata.jpg
[area_modifier] => 325.66
[parent_name] => Дополнительное утепление наружных стен
[parent_id] => 17
[material_sum] => 1343152
[work_sum] => 757160
[total_sum] => 2100312
[total_days] => 7
[display_material_sum] => 1 343 152
[display_work_sum] => 757 160
[display_total_sum] => 2 100 312
)
1
2 100 312₽
Работа:757 160 ₽
Материалы:1 343 152 ₽
Дни:7
stdClass Object
(
[id] => 128
[attribute_id] => 17
[name] => Эковата (целлюлозная вата)
[material_modifier] => 1
[work_modifier] => 1
[options] => Array
(
[0] => 50 мм
[1] => 100 мм
[2] => 150 мм
[3] => 200 мм
[4] => 250 мм
[5] => 300 мм
)
[days] => [3,4,5,6,7,8]
[material_price] => [810,1319,1629,1838,2267,2676]
[work_price] => [1225,1323,1423,1549,1659,1725]
[image] => https://akademik-stroy.ru/wp-content/uploads/materials/ehkovata.jpg
[area_modifier] => 325.66
[parent_name] => Дополнительное утепление наружных стен
[parent_id] => 17
[material_sum] => 316542
[work_sum] => 398934
[total_sum] => 715476
[total_days] => 3
[display_material_sum] => 316 542
[display_work_sum] => 398 934
[display_total_sum] => 715 476
)
1
715 476₽
Работа:398 934 ₽
Материалы:316 542 ₽
Дни:3
stdClass Object
(
[id] => 129
[attribute_id] => 17
[name] => Экструдированный пенополистирол
[material_modifier] => 1
[work_modifier] => 1
[options] => Array
(
[0] => 50 мм
[1] => 100 мм
[2] => 150 мм
[3] => 200 мм
[4] => 250 мм
[5] => 300 мм
)
[days] => [5,6,7,8,9,10]
[material_price] => [4560,4300,5119,6292,7010,8583]
[work_price] => [1795,1954,2254,2330,2595,2735]
[image] => https://akademik-stroy.ru/wp-content/uploads/materials/epps.jpg
[area_modifier] => 325.66
[parent_name] => Дополнительное утепление наружных стен
[parent_id] => 17
[material_sum] => 1782012
[work_sum] => 584560
[total_sum] => 2366572
[total_days] => 5
[display_material_sum] => 1 782 012
[display_work_sum] => 584 560
[display_total_sum] => 2 366 572
)
1
2 366 572₽
Работа:584 560 ₽
Материалы:1 782 012 ₽
Дни:5
stdClass Object
(
[id] => 130
[attribute_id] => 17
[name] => ПСБ (ППС-пенополистирол)
[material_modifier] => 1
[work_modifier] => 1
[options] => Array
(
[0] => 50 мм
[1] => 100 мм
[2] => 150 мм
[3] => 200 мм
[4] => 250 мм
[5] => 300 мм
)
[days] => [5,6,7,8,9,10]
[material_price] => [4822,5200,5819,6292,7010,7583]
[work_price] => [1795,1954,2254,2330,2595,2735]
[image] => https://akademik-stroy.ru/wp-content/uploads/materials/psb.jpg
[area_modifier] => 325.66
[parent_name] => Дополнительное утепление наружных стен
[parent_id] => 17
[material_sum] => 1884399
[work_sum] => 584560
[total_sum] => 2468959
[total_days] => 5
[display_material_sum] => 1 884 399
[display_work_sum] => 584 560
[display_total_sum] => 2 468 959
)
1
2 468 959₽
Работа:584 560 ₽
Материалы:1 884 399 ₽
Дни:5
stdClass Object
(
[id] => 131
[attribute_id] => 17
[name] => ППУ (Пенополиуретан)
[material_modifier] => 1
[work_modifier] => 1
[options] => Array
(
[0] => 50 мм
[1] => 100 мм
[2] => 150 мм
[3] => 200 мм
[4] => 250 мм
[5] => 300 мм
)
[days] => [3,4,5,6,7,8]
[material_price] => [2860,3400,4219,4592,5010,5583]
[work_price] => [729,900,980,1120,1280,1530]
[image] => https://akademik-stroy.ru/wp-content/uploads/materials/ppu.jpg
[area_modifier] => 325.66
[parent_name] => Дополнительное утепление наружных стен
[parent_id] => 17
[material_sum] => 1117665
[work_sum] => 237406
[total_sum] => 1355071
[total_days] => 3
[display_material_sum] => 1 117 665
[display_work_sum] => 237 406
[display_total_sum] => 1 355 071
)
1
1 355 071₽
Работа:237 406 ₽
Материалы:1 117 665 ₽
Дни:3
stdClass Object
(
[id] => 132
[attribute_id] => 17
[name] => PIR-плиты (пенополиизоцианурат)
[material_modifier] => 1
[work_modifier] => 1
[options] => Array
(
[0] => 50 мм
[1] => 100 мм
[2] => 150 мм
[3] => 200 мм
[4] => 250 мм
[5] => 300 мм
)
[days] => [5,6,7,8,9,10]
[material_price] => [8323,15645,20968,25900,29258,30581]
[work_price] => [800,900,970,1150,1280,1330]
[image] => https://akademik-stroy.ru/wp-content/uploads/materials/pir.jpg
[area_modifier] => 325.66
[parent_name] => Дополнительное утепление наружных стен
[parent_id] => 17
[material_sum] => 3252562
[work_sum] => 260528
[total_sum] => 3513090
[total_days] => 5
[display_material_sum] => 3 252 562
[display_work_sum] => 260 528
[display_total_sum] => 3 513 090
)
1
3 513 090₽
Работа:260 528 ₽
Материалы:3 252 562 ₽
Дни:5
stdClass Object
(
[id] => 37
[attribute_id] => 19
[name] => Нет
[material_modifier] => 1
[work_modifier] => 1
[options] => Array
(
)
[days] => [0]
[material_price] => [0]
[work_price] => [0]
[image] => https://akademik-stroy.ru/wp-content/uploads/materials/imitaciya-brusa.jpg
[area_modifier] => 325.66
[parent_name] => Наружная отделка фасада
[parent_id] => 19
[material_sum] => 0
[work_sum] => 0
[total_sum] => 0
[total_days] => 0
[display_material_sum] => 0
[display_work_sum] => 0
[display_total_sum] => 0
)
1
0₽
Работа:0 ₽
Материалы:0 ₽
Дни:0
stdClass Object
(
[id] => 38
[attribute_id] => 19
[name] => Имитация бруса
[material_modifier] => 1
[work_modifier] => 1
[options] => Array
(
[0] => Сосна
[1] => Ель
[2] => Лиственница
)
[days] => [20,20,20]
[material_price] => [2994,2762,4954]
[work_price] => [1397,1231,1577]
[image] => https://akademik-stroy.ru/wp-content/uploads/materials/imitaciya-brusa.jpg
[area_modifier] => 325.66
[parent_name] => Наружная отделка фасада
[parent_id] => 19
[material_sum] => 1170031
[work_sum] => 454947
[total_sum] => 1624978
[total_days] => 20
[display_material_sum] => 1 170 031
[display_work_sum] => 454 947
[display_total_sum] => 1 624 978
)
1
1 624 978₽
Работа:454 947 ₽
Материалы:1 170 031 ₽
Дни:20
stdClass Object
(
[id] => 136
[attribute_id] => 19
[name] => Планкен
[material_modifier] => 1
[work_modifier] => 1
[options] => Array
(
[0] => Сосна
[1] => Ель
[2] => Лиственница
)
[days] => [20,20,20]
[material_price] => [3194,2862,5154]
[work_price] => [1537,1354,1735]
[image] => https://akademik-stroy.ru/wp-content/uploads/materials/planken.jpg
[area_modifier] => 325.66
[parent_name] => Наружная отделка фасада
[parent_id] => 19
[material_sum] => 1248190
[work_sum] => 500539
[total_sum] => 1748729
[total_days] => 20
[display_material_sum] => 1 248 190
[display_work_sum] => 500 539
[display_total_sum] => 1 748 729
)
1
1 748 729₽
Работа:500 539 ₽
Материалы:1 248 190 ₽
Дни:20
stdClass Object
(
[id] => 137
[attribute_id] => 19
[name] => Штукатурка
[material_modifier] => 1
[work_modifier] => 1
[options] => Array
(
[0] => Цементно-песчаная (минеральная)
[1] => Мокрый фасад
)
[days] => [35,35]
[material_price] => [2231,3938]
[work_price] => [1202,2422]
[image] => https://akademik-stroy.ru/wp-content/uploads/materials/shtukaturka.jpg
[area_modifier] => 325.66
[parent_name] => Наружная отделка фасада
[parent_id] => 19
[material_sum] => 871857
[work_sum] => 391443
[total_sum] => 1263300
[total_days] => 35
[display_material_sum] => 871 857
[display_work_sum] => 391 443
[display_total_sum] => 1 263 300
)
1
1 263 300₽
Работа:391 443 ₽
Материалы:871 857 ₽
Дни:35
stdClass Object
(
[id] => 138
[attribute_id] => 19
[name] => Облицовочный кирпич
[material_modifier] => 1
[work_modifier] => 1
[options] => Array
(
[0] => Керамический
[1] => Клинкерный
[2] => Ручной формовки
[3] => Гиперпрессованный
[4] => Силикатный кирпич
)
[days] => [45,45,45,45,45]
[material_price] => [8174,9148,1040,1257,5876]
[work_price] => [3240,3758,4536,4017,3369]
[image] => https://akademik-stroy.ru/wp-content/uploads/materials/oblicovochnyj-kirpich.jpg
[area_modifier] => 325.66
[parent_name] => Наружная отделка фасада
[parent_id] => 19
[material_sum] => 3194334
[work_sum] => 1055138
[total_sum] => 4249472
[total_days] => 45
[display_material_sum] => 3 194 334
[display_work_sum] => 1 055 138
[display_total_sum] => 4 249 472
)
1
4 249 472₽
Работа:1 055 138 ₽
Материалы:3 194 334 ₽
Дни:45
stdClass Object
(
[id] => 139
[attribute_id] => 19
[name] => Фасадная плитка
[material_modifier] => 1
[work_modifier] => 1
[options] => Array
(
[0] => Клинкерная
[1] => Керамическая
[2] => Плитка ручной формовки
)
[days] => [40,40,40]
[material_price] => [2974,1487,3470]
[work_price] => [3007,2592,3629]
[image] => https://akademik-stroy.ru/wp-content/uploads/materials/fasadnaya-plitka.jpg
[area_modifier] => 325.66
[parent_name] => Наружная отделка фасада
[parent_id] => 19
[material_sum] => 1162215
[work_sum] => 979260
[total_sum] => 2141475
[total_days] => 40
[display_material_sum] => 1 162 215
[display_work_sum] => 979 260
[display_total_sum] => 2 141 475
)
1
2 141 475₽
Работа:979 260 ₽
Материалы:1 162 215 ₽
Дни:40
stdClass Object
(
[id] => 140
[attribute_id] => 19
[name] => Сайдинг
[material_modifier] => 1
[work_modifier] => 1
[options] => Array
(
[0] => Виниловый
[1] => Металлический
[2] => Фиброцементный
)
[days] => [20,20,20]
[material_price] => [1263,1944,4147]
[work_price] => [1263,1944,2074]
[image] => https://akademik-stroy.ru/wp-content/uploads/materials/sajding.jpg
[area_modifier] => 325.66
[parent_name] => Наружная отделка фасада
[parent_id] => 19
[material_sum] => 493570
[work_sum] => 411309
[total_sum] => 904879
[total_days] => 20
[display_material_sum] => 493 570
[display_work_sum] => 411 309
[display_total_sum] => 904 879
)
1
904 879₽
Работа:411 309 ₽
Материалы:493 570 ₽
Дни:20
stdClass Object
(
[id] => 141
[attribute_id] => 19
[name] => Камень
[material_modifier] => 1
[work_modifier] => 1
[options] => Array
(
[0] => Травертин
[1] => Дагестанский
[2] => Искусственный
[3] => Натуральный
[4] => Керамогранит
)
[days] => [45,45,45,45,45]
[material_price] => [4536,3888,2592,3240,2462]
[work_price] => [3240,3240,2462,3110,1944]
[image] => https://akademik-stroy.ru/wp-content/uploads/materials/kamen-1.jpg
[area_modifier] => 325.66
[parent_name] => Наружная отделка фасада
[parent_id] => 19
[material_sum] => 1772633
[work_sum] => 1055138
[total_sum] => 2827771
[total_days] => 45
[display_material_sum] => 1 772 633
[display_work_sum] => 1 055 138
[display_total_sum] => 2 827 771
)
1
2 827 771₽
Работа:1 055 138 ₽
Материалы:1 772 633 ₽
Дни:45
stdClass Object
(
[id] => 142
[attribute_id] => 19
[name] => Термопанели
[material_modifier] => 1
[work_modifier] => 1
[options] => Array
(
)
[days] => [20]
[material_price] => [6221]
[work_price] => [2333]
[image] => https://akademik-stroy.ru/wp-content/uploads/materials/termo.png
[area_modifier] => 325.66
[parent_name] => Наружная отделка фасада
[parent_id] => 19
[material_sum] => 2431117
[work_sum] => 759765
[total_sum] => 3190882
[total_days] => 20
[display_material_sum] => 2 431 117
[display_work_sum] => 759 765
[display_total_sum] => 3 190 882
)
1
3 190 882₽
Работа:759 765 ₽
Материалы:2 431 117 ₽
Дни:20
stdClass Object
(
[id] => 143
[attribute_id] => 19
[name] => Плитка HAUBERK
[material_modifier] => 1
[work_modifier] => 1
[options] => Array
(
)
[days] => [20]
[material_price] => [2786]
[work_price] => [1944]
[image] => https://akademik-stroy.ru/wp-content/uploads/materials/hauberk.jpg
[area_modifier] => 325.66
[parent_name] => Наружная отделка фасада
[parent_id] => 19
[material_sum] => 1088747
[work_sum] => 633083
[total_sum] => 1721830
[total_days] => 20
[display_material_sum] => 1 088 747
[display_work_sum] => 633 083
[display_total_sum] => 1 721 830
)
1
1 721 830₽
Работа:633 083 ₽
Материалы:1 088 747 ₽
Дни:20
stdClass Object
(
[id] => 144
[attribute_id] => 19
[name] => Фальцевый фасад
[material_modifier] => 1
[work_modifier] => 1
[options] => Array
(
)
[days] => [20]
[material_price] => [3240]
[work_price] => [2592]
[image] => https://akademik-stroy.ru/wp-content/uploads/materials/falcevyj-fasad.jpg
[area_modifier] => 325.66
[parent_name] => Наружная отделка фасада
[parent_id] => 19
[material_sum] => 1266166
[work_sum] => 844111
[total_sum] => 2110277
[total_days] => 20
[display_material_sum] => 1 266 166
[display_work_sum] => 844 111
[display_total_sum] => 2 110 277
)
1
2 110 277₽
Работа:844 111 ₽
Материалы:1 266 166 ₽
Дни:20
stdClass Object
(
[id] => 145
[attribute_id] => 19
[name] => Комбинированный
[material_modifier] => 1
[work_modifier] => 1
[options] => Array
(
)
[days] => [20]
[material_price] => [4629]
[work_price] => [3499]
[image] => https://akademik-stroy.ru/wp-content/uploads/materials/Kombinirovannyj.jpg
[area_modifier] => 325.66
[parent_name] => Наружная отделка фасада
[parent_id] => 19
[material_sum] => 1808976
[work_sum] => 1139484
[total_sum] => 2948460
[total_days] => 20
[display_material_sum] => 1 808 976
[display_work_sum] => 1 139 484
[display_total_sum] => 2 948 460
)
1
2 948 460₽
Работа:1 139 484 ₽
Материалы:1 808 976 ₽
Дни:20
stdClass Object
(
[id] => 257
[attribute_id] => 19
[name] => Японские фиброцементные
[material_modifier] => 1
[work_modifier] => 1
[options] => Array
(
)
[days] => [20]
[material_price] => [7043]
[work_price] => [2993]
[image] => https://akademik-stroy.ru/wp-content/uploads/materials/paneli.jpg
[area_modifier] => 325.66
[parent_name] => Наружная отделка фасада
[parent_id] => 19
[material_sum] => 2752348
[work_sum] => 974700
[total_sum] => 3727048
[total_days] => 20
[display_material_sum] => 2 752 348
[display_work_sum] => 974 700
[display_total_sum] => 3 727 048
)
1
3 727 048₽
Работа:974 700 ₽
Материалы:2 752 348 ₽
Дни:20
stdClass Object
(
[id] => 258
[attribute_id] => 19
[name] => Панели Каньон
[material_modifier] => 1
[work_modifier] => 1
[options] => Array
(
)
[days] => [20]
[material_price] => [4543]
[work_price] => [2592]
[image] => https://akademik-stroy.ru/wp-content/uploads/materials/kanon.png
[area_modifier] => 325.66
[parent_name] => Наружная отделка фасада
[parent_id] => 19
[material_sum] => 1775368
[work_sum] => 844111
[total_sum] => 2619479
[total_days] => 20
[display_material_sum] => 1 775 368
[display_work_sum] => 844 111
[display_total_sum] => 2 619 479
)
1
2 619 479₽
Работа:844 111 ₽
Материалы:1 775 368 ₽
Дни:20
stdClass Object
(
[id] => 39
[attribute_id] => 20
[name] => Нет
[material_modifier] => 1
[work_modifier] => 1
[options] => Array
(
)
[days] => [0]
[material_price] => [0]
[work_price] => [0]
[image] => https://akademik-stroy.ru/wp-content/uploads/materials/terrasy.jpg
[area_modifier] => 30
[parent_name] => Террасы, крыльца, навесы
[parent_id] => 20
[material_sum] => 0
[work_sum] => 0
[total_sum] => 0
[total_days] => 0
[display_material_sum] => 0
[display_work_sum] => 0
[display_total_sum] => 0
)
1
0₽
Работа:0 ₽
Материалы:0 ₽
Дни:0
stdClass Object
(
[id] => 40
[attribute_id] => 20
[name] => Есть
[material_modifier] => 1
[work_modifier] => 1
[options] => Array
(
)
[days] => [5]
[material_price] => [10450]
[work_price] => [1950]
[image] => https://akademik-stroy.ru/wp-content/uploads/materials/terrasy.jpg
[area_modifier] => 30
[parent_name] => Террасы, крыльца, навесы
[parent_id] => 20
[material_sum] => 376200
[work_sum] => 58500
[total_sum] => 434700
[total_days] => 5
[display_material_sum] => 376 200
[display_work_sum] => 58 500
[display_total_sum] => 434 700
)
1
434 700₽
Работа:58 500 ₽
Материалы:376 200 ₽
Дни:5
stdClass Object
(
[id] => 41
[attribute_id] => 21
[name] => Нет
[material_modifier] => 1
[work_modifier] => 1
[options] => Array
(
)
[days] => [0]
[material_price] => [0]
[work_price] => [0]
[image] => https://akademik-stroy.ru/wp-content/uploads/materials/balkony.jpg
[area_modifier] => 30
[parent_name] => Балконы
[parent_id] => 21
[material_sum] => 0
[work_sum] => 0
[total_sum] => 0
[total_days] => 0
[display_material_sum] => 0
[display_work_sum] => 0
[display_total_sum] => 0
)
1
0₽
Работа:0 ₽
Материалы:0 ₽
Дни:0
stdClass Object
(
[id] => 42
[attribute_id] => 21
[name] => Есть
[material_modifier] => 1
[work_modifier] => 1
[options] => Array
(
)
[days] => [12]
[material_price] => [3600]
[work_price] => [1950]
[image] => https://akademik-stroy.ru/wp-content/uploads/materials/balkony.jpg
[area_modifier] => 30
[parent_name] => Балконы
[parent_id] => 21
[material_sum] => 129600
[work_sum] => 58500
[total_sum] => 188100
[total_days] => 12
[display_material_sum] => 129 600
[display_work_sum] => 58 500
[display_total_sum] => 188 100
)
1
188 100₽
Работа:58 500 ₽
Материалы:129 600 ₽
Дни:12
stdClass Object
(
[id] => 43
[attribute_id] => 22
[name] => Нет
[material_modifier] => 1
[work_modifier] => 1
[options] => Array
(
)
[days] => [0]
[material_price] => [0]
[work_price] => [0]
[image] => https://akademik-stroy.ru/wp-content/uploads/materials/uteplennaya.jpg
[area_modifier] => 189
[parent_name] => Отмостка
[parent_id] => 22
[material_sum] => 0
[work_sum] => 0
[total_sum] => 0
[total_days] => 0
[display_material_sum] => 0
[display_work_sum] => 0
[display_total_sum] => 0
)
1
0₽
Работа:0 ₽
Материалы:0 ₽
Дни:0
stdClass Object
(
[id] => 44
[attribute_id] => 22
[name] => Утепленная отмостка
[material_modifier] => 1
[work_modifier] => 1
[options] => Array
(
)
[days] => [15]
[material_price] => [2550]
[work_price] => [1750]
[image] => https://akademik-stroy.ru/wp-content/uploads/materials/uteplennaya.jpg
[area_modifier] => 189
[parent_name] => Отмостка
[parent_id] => 22
[material_sum] => 578340
[work_sum] => 330750
[total_sum] => 909090
[total_days] => 15
[display_material_sum] => 578 340
[display_work_sum] => 330 750
[display_total_sum] => 909 090
)
1
909 090₽
Работа:330 750 ₽
Материалы:578 340 ₽
Дни:15
stdClass Object
(
[id] => 146
[attribute_id] => 22
[name] => Не утепленная отмостка
[material_modifier] => 1
[work_modifier] => 1
[options] => Array
(
)
[days] => [10]
[material_price] => [1650]
[work_price] => [1450]
[image] => https://akademik-stroy.ru/wp-content/uploads/materials/ne-uteplennaya.jpg
[area_modifier] => 189
[parent_name] => Отмостка
[parent_id] => 22
[material_sum] => 374220
[work_sum] => 274050
[total_sum] => 648270
[total_days] => 10
[display_material_sum] => 374 220
[display_work_sum] => 274 050
[display_total_sum] => 648 270
)
1
648 270₽
Работа:274 050 ₽
Материалы:374 220 ₽
Дни:10
stdClass Object
(
[id] => 45
[attribute_id] => 23
[name] => Нет
[material_modifier] => 1
[work_modifier] => 1
[options] => Array
(
)
[days] => [0]
[material_price] => [0]
[work_price] => [0]
[image] => https://akademik-stroy.ru/wp-content/uploads/materials/drenazh-2.jpg
[area_modifier] => 189
[parent_name] => Дренаж вокруг дома
[parent_id] => 23
[material_sum] => 0
[work_sum] => 0
[total_sum] => 0
[total_days] => 0
[display_material_sum] => 0
[display_work_sum] => 0
[display_total_sum] => 0
)
1
0₽
Работа:0 ₽
Материалы:0 ₽
Дни:0
stdClass Object
(
[id] => 46
[attribute_id] => 23
[name] => Есть
[material_modifier] => 1
[work_modifier] => 1
[options] => Array
(
)
[days] => [5]
[material_price] => [2366]
[work_price] => [1911]
[image] => https://akademik-stroy.ru/wp-content/uploads/materials/drenazh-2.jpg
[area_modifier] => 189
[parent_name] => Дренаж вокруг дома
[parent_id] => 23
[material_sum] => 536609
[work_sum] => 361179
[total_sum] => 897788
[total_days] => 5
[display_material_sum] => 536 609
[display_work_sum] => 361 179
[display_total_sum] => 897 788
)
1
897 788₽
Работа:361 179 ₽
Материалы:536 609 ₽
Дни:5
stdClass Object
(
[id] => 47
[attribute_id] => 24
[name] => Нет
[material_modifier] => 1
[work_modifier] => 1
[options] => Array
(
)
[days] => [0]
[material_price] => [0]
[work_price] => [0]
[image] => https://akademik-stroy.ru/wp-content/uploads/materials/septik.jpg
[area_modifier] => 1
[parent_name] => Автономная канализация (септики)
[parent_id] => 24
[material_sum] => 0
[work_sum] => 0
[total_sum] => 0
[total_days] => 0
[display_material_sum] => 0
[display_work_sum] => 0
[display_total_sum] => 0
)
1
0₽
Работа:0 ₽
Материалы:0 ₽
Дни:0
stdClass Object
(
[id] => 48
[attribute_id] => 24
[name] => Есть
[material_modifier] => 1
[work_modifier] => 1
[options] => Array
(
[0] => Для дачи на 4 человека
[1] => Для дома на 5 человек
[2] => Для дома на 6 человек
[3] => Для дома на 7 человек
[4] => Для дома на 10 человек
)
[days] => [7,7,7,8,8]
[material_price] => [196340,220500,240940,264200,293340]
[work_price] => [50000,55000,60500,66550,73206]
[image] => https://akademik-stroy.ru/wp-content/uploads/materials/septik.jpg
[area_modifier] => 1
[parent_name] => Автономная канализация (септики)
[parent_id] => 24
[material_sum] => 235608
[work_sum] => 50000
[total_sum] => 285608
[total_days] => 7
[display_material_sum] => 235 608
[display_work_sum] => 50 000
[display_total_sum] => 285 608
)
1
285 608₽
Работа:50 000 ₽
Материалы:235 608 ₽
Дни:7
stdClass Object
(
[id] => 49
[attribute_id] => 25
[name] => Нет
[material_modifier] => 1
[work_modifier] => 1
[options] => Array
(
)
[days] => [0]
[material_price] => [0]
[work_price] => [0]
[image] => https://akademik-stroy.ru/wp-content/uploads/materials/gkl.jpg
[area_modifier] => 325.66
[parent_name] => Внутренние (не несущие) перегородки
[parent_id] => 25
[material_sum] => 0
[work_sum] => 0
[total_sum] => 0
[total_days] => 0
[display_material_sum] => 0
[display_work_sum] => 0
[display_total_sum] => 0
)
1
0₽
Работа:0 ₽
Материалы:0 ₽
Дни:0
stdClass Object
(
[id] => 147
[attribute_id] => 25
[name] => Каркасно-обшивные
[material_modifier] => 1
[work_modifier] => 1
[options] => Array
(
[0] => 75 мм (без шумоизоляции)
[1] => 75 мм (с шумоизоляцией)
)
[days] => [11,11]
[material_price] => [580,970]
[work_price] => [380,570]
[image] => https://akademik-stroy.ru/wp-content/uploads/materials/gkl.jpg
[area_modifier] => 325.66
[parent_name] => Внутренние (не несущие) перегородки
[parent_id] => 25
[material_sum] => 226659
[work_sum] => 123751
[total_sum] => 350410
[total_days] => 11
[display_material_sum] => 226 659
[display_work_sum] => 123 751
[display_total_sum] => 350 410
)
1
350 410₽
Работа:123 751 ₽
Материалы:226 659 ₽
Дни:11
stdClass Object
(
[id] => 148
[attribute_id] => 25
[name] => Пазогребневые
[material_modifier] => 1
[work_modifier] => 1
[options] => Array
(
[0] => 80 мм
[1] => 100 мм
)
[days] => [5,5]
[material_price] => [1022,1313]
[work_price] => [600,700]
[image] => https://akademik-stroy.ru/wp-content/uploads/materials/pazogrebnevye-bloki.jpg
[area_modifier] => 325.66
[parent_name] => Внутренние (не несущие) перегородки
[parent_id] => 25
[material_sum] => 399389
[work_sum] => 195396
[total_sum] => 594785
[total_days] => 5
[display_material_sum] => 399 389
[display_work_sum] => 195 396
[display_total_sum] => 594 785
)
1
594 785₽
Работа:195 396 ₽
Материалы:399 389 ₽
Дни:5
stdClass Object
(
[id] => 149
[attribute_id] => 25
[name] => Газобетонные
[material_modifier] => 1
[work_modifier] => 1
[options] => Array
(
[0] => 100 мм
[1] => 200 мм
)
[days] => [11,11]
[material_price] => [1160,1920]
[work_price] => [700,900]
[image] => https://akademik-stroy.ru/wp-content/uploads/materials/gazobeton-2.jpg
[area_modifier] => 325.66
[parent_name] => Внутренние (не несущие) перегородки
[parent_id] => 25
[material_sum] => 453319
[work_sum] => 227962
[total_sum] => 681281
[total_days] => 11
[display_material_sum] => 453 319
[display_work_sum] => 227 962
[display_total_sum] => 681 281
)
1
681 281₽
Работа:227 962 ₽
Материалы:453 319 ₽
Дни:11
stdClass Object
(
[id] => 150
[attribute_id] => 25
[name] => Кирпичные
[material_modifier] => 1
[work_modifier] => 1
[options] => Array
(
[0] => 120 мм
[1] => 250 мм
[2] => 360 мм
)
[days] => [7,7,7]
[material_price] => [1785,3570,5355]
[work_price] => [900,1600,1800]
[image] => https://akademik-stroy.ru/wp-content/uploads/materials/kirpich-1.jpg
[area_modifier] => 325.66
[parent_name] => Внутренние (не несущие) перегородки
[parent_id] => 25
[material_sum] => 697564
[work_sum] => 293094
[total_sum] => 990658
[total_days] => 7
[display_material_sum] => 697 564
[display_work_sum] => 293 094
[display_total_sum] => 990 658
)
1
990 658₽
Работа:293 094 ₽
Материалы:697 564 ₽
Дни:7
stdClass Object
(
[id] => 55
[attribute_id] => 28
[name] => Нет
[material_modifier] => 1
[work_modifier] => 1
[options] => Array
(
)
[days] => [0]
[material_price] => [0]
[work_price] => [0]
[image] => https://akademik-stroy.ru/wp-content/uploads/materials/ehlektrika.jpg
[area_modifier] => 264.27
[parent_name] => Электрика
[parent_id] => 28
[material_sum] => 0
[work_sum] => 0
[total_sum] => 0
[total_days] => 0
[display_material_sum] => 0
[display_work_sum] => 0
[display_total_sum] => 0
)
1
0₽
Работа:0 ₽
Материалы:0 ₽
Дни:0
stdClass Object
(
[id] => 56
[attribute_id] => 28
[name] => Есть
[material_modifier] => 1
[work_modifier] => 1
[options] => Array
(
)
[days] => [10]
[material_price] => [650]
[work_price] => [950]
[image] => https://akademik-stroy.ru/wp-content/uploads/materials/ehlektrika.jpg
[area_modifier] => 264.27
[parent_name] => Электрика
[parent_id] => 28
[material_sum] => 206131
[work_sum] => 251057
[total_sum] => 457188
[total_days] => 10
[display_material_sum] => 206 131
[display_work_sum] => 251 057
[display_total_sum] => 457 188
)
1
457 188₽
Работа:251 057 ₽
Материалы:206 131 ₽
Дни:10
stdClass Object
(
[id] => 57
[attribute_id] => 29
[name] => Нет
[material_modifier] => 1
[work_modifier] => 1
[options] => Array
(
)
[days] => [0]
[material_price] => [0]
[work_price] => [0]
[image] => https://akademik-stroy.ru/wp-content/uploads/materials/santekhnika-kanalizaciya-1.jpg
[area_modifier] => 264.27
[parent_name] => Сантехника, канализация в доме
[parent_id] => 29
[material_sum] => 0
[work_sum] => 0
[total_sum] => 0
[total_days] => 0
[display_material_sum] => 0
[display_work_sum] => 0
[display_total_sum] => 0
)
1
0₽
Работа:0 ₽
Материалы:0 ₽
Дни:0
stdClass Object
(
[id] => 58
[attribute_id] => 29
[name] => Есть
[material_modifier] => 1
[work_modifier] => 1
[options] => Array
(
)
[days] => [10]
[material_price] => [600]
[work_price] => [730]
[image] => https://akademik-stroy.ru/wp-content/uploads/materials/santekhnika-kanalizaciya-1.jpg
[area_modifier] => 264.27
[parent_name] => Сантехника, канализация в доме
[parent_id] => 29
[material_sum] => 190274
[work_sum] => 192917
[total_sum] => 383191
[total_days] => 10
[display_material_sum] => 190 274
[display_work_sum] => 192 917
[display_total_sum] => 383 191
)
1
383 191₽
Работа:192 917 ₽
Материалы:190 274 ₽
Дни:10
stdClass Object
(
[id] => 59
[attribute_id] => 30
[name] => Нет
[material_modifier] => 1
[work_modifier] => 1
[options] => Array
(
)
[days] => [0]
[material_price] => [0]
[work_price] => [0]
[image] => https://akademik-stroy.ru/wp-content/uploads/materials/otoplenie-1.jpg
[area_modifier] => 264.27
[parent_name] => Отопление
[parent_id] => 30
[material_sum] => 0
[work_sum] => 0
[total_sum] => 0
[total_days] => 0
[display_material_sum] => 0
[display_work_sum] => 0
[display_total_sum] => 0
)
1
0₽
Работа:0 ₽
Материалы:0 ₽
Дни:0
stdClass Object
(
[id] => 60
[attribute_id] => 30
[name] => Есть
[material_modifier] => 1
[work_modifier] => 1
[options] => Array
(
)
[days] => [5]
[material_price] => [610]
[work_price] => [560]
[image] => https://akademik-stroy.ru/wp-content/uploads/materials/otoplenie-1.jpg
[area_modifier] => 264.27
[parent_name] => Отопление
[parent_id] => 30
[material_sum] => 193446
[work_sum] => 147991
[total_sum] => 341437
[total_days] => 5
[display_material_sum] => 193 446
[display_work_sum] => 147 991
[display_total_sum] => 341 437
)
1
341 437₽
Работа:147 991 ₽
Материалы:193 446 ₽
Дни:5
stdClass Object
(
[id] => 61
[attribute_id] => 31
[name] => Нет
[material_modifier] => 1
[work_modifier] => 1
[options] => Array
(
)
[days] => [0]
[material_price] => [0]
[work_price] => [0]
[image] => https://akademik-stroy.ru/wp-content/uploads/materials/vodyanye.jpg
[area_modifier] => 30
[parent_name] => Теплые полы
[parent_id] => 31
[material_sum] => 0
[work_sum] => 0
[total_sum] => 0
[total_days] => 0
[display_material_sum] => 0
[display_work_sum] => 0
[display_total_sum] => 0
)
1
0₽
Работа:0 ₽
Материалы:0 ₽
Дни:0
stdClass Object
(
[id] => 151
[attribute_id] => 31
[name] => Водяные
[material_modifier] => 1
[work_modifier] => 1
[options] => Array
(
)
[days] => [9]
[material_price] => [10200]
[work_price] => [2500]
[image] => https://akademik-stroy.ru/wp-content/uploads/materials/vodyanye.jpg
[area_modifier] => 30
[parent_name] => Теплые полы
[parent_id] => 31
[material_sum] => 367200
[work_sum] => 75000
[total_sum] => 442200
[total_days] => 9
[display_material_sum] => 367 200
[display_work_sum] => 75 000
[display_total_sum] => 442 200
)
1
442 200₽
Работа:75 000 ₽
Материалы:367 200 ₽
Дни:9
stdClass Object
(
[id] => 152
[attribute_id] => 31
[name] => Электро
[material_modifier] => 1
[work_modifier] => 1
[options] => Array
(
)
[days] => [5]
[material_price] => [6300]
[work_price] => [1500]
[image] => https://akademik-stroy.ru/wp-content/uploads/materials/ehlektricheskij.jpg
[area_modifier] => 30
[parent_name] => Теплые полы
[parent_id] => 31
[material_sum] => 226800
[work_sum] => 45000
[total_sum] => 271800
[total_days] => 5
[display_material_sum] => 226 800
[display_work_sum] => 45 000
[display_total_sum] => 271 800
)
1
271 800₽
Работа:45 000 ₽
Материалы:226 800 ₽
Дни:5
stdClass Object
(
[id] => 63
[attribute_id] => 32
[name] => Нет
[material_modifier] => 1
[work_modifier] => 1
[options] => Array
(
)
[days] => [0]
[material_price] => [0]
[work_price] => [0]
[image] => https://akademik-stroy.ru/wp-content/uploads/materials/shtukaturka-shpatlevka-1.jpg
[area_modifier] => 264.27
[parent_name] => Черновая отделка стен
[parent_id] => 32
[material_sum] => 0
[work_sum] => 0
[total_sum] => 0
[total_days] => 0
[display_material_sum] => 0
[display_work_sum] => 0
[display_total_sum] => 0
)
1
0₽
Работа:0 ₽
Материалы:0 ₽
Дни:0
stdClass Object
(
[id] => 153
[attribute_id] => 32
[name] => Штукатурка и шпатлевка
[material_modifier] => 1
[work_modifier] => 1
[options] => Array
(
)
[days] => [20]
[material_price] => [1850]
[work_price] => [2600]
[image] => https://akademik-stroy.ru/wp-content/uploads/materials/shtukaturka-shpatlevka-1.jpg
[area_modifier] => 264.27
[parent_name] => Черновая отделка стен
[parent_id] => 32
[material_sum] => 586679
[work_sum] => 687102
[total_sum] => 1273781
[total_days] => 20
[display_material_sum] => 586 679
[display_work_sum] => 687 102
[display_total_sum] => 1 273 781
)
1
1 273 781₽
Работа:687 102 ₽
Материалы:586 679 ₽
Дни:20
stdClass Object
(
[id] => 154
[attribute_id] => 32
[name] => Гипсокортон на стены
[material_modifier] => 1
[work_modifier] => 1
[options] => Array
(
)
[days] => [15]
[material_price] => [950]
[work_price] => [2100]
[image] => https://akademik-stroy.ru/wp-content/uploads/materials/gkl-1.jpg
[area_modifier] => 264.27
[parent_name] => Черновая отделка стен
[parent_id] => 32
[material_sum] => 301268
[work_sum] => 554967
[total_sum] => 856235
[total_days] => 15
[display_material_sum] => 301 268
[display_work_sum] => 554 967
[display_total_sum] => 856 235
)
1
856 235₽
Работа:554 967 ₽
Материалы:301 268 ₽
Дни:15
stdClass Object
(
[id] => 155
[attribute_id] => 32
[name] => Вагонка
[material_modifier] => 1
[work_modifier] => 1
[options] => Array
(
)
[days] => [15]
[material_price] => [1250]
[work_price] => [950]
[image] => https://akademik-stroy.ru/wp-content/uploads/materials/vagonka.jpg
[area_modifier] => 264.27
[parent_name] => Черновая отделка стен
[parent_id] => 32
[material_sum] => 396405
[work_sum] => 251057
[total_sum] => 647462
[total_days] => 15
[display_material_sum] => 396 405
[display_work_sum] => 251 057
[display_total_sum] => 647 462
)
1
647 462₽
Работа:251 057 ₽
Материалы:396 405 ₽
Дни:15
stdClass Object
(
[id] => 65
[attribute_id] => 33
[name] => Нет
[material_modifier] => 1
[work_modifier] => 1
[options] => Array
(
)
[days] => [0]
[material_price] => [0]
[work_price] => [0]
[image] => https://akademik-stroy.ru/wp-content/uploads/materials/styazhka.jpg
[area_modifier] => 264.27
[parent_name] => Черновая отделка полов
[parent_id] => 33
[material_sum] => 0
[work_sum] => 0
[total_sum] => 0
[total_days] => 0
[display_material_sum] => 0
[display_work_sum] => 0
[display_total_sum] => 0
)
1
0₽
Работа:0 ₽
Материалы:0 ₽
Дни:0
stdClass Object
(
[id] => 156
[attribute_id] => 33
[name] => Стяжка + наливные полы
[material_modifier] => 1
[work_modifier] => 1
[options] => Array
(
)
[days] => [10]
[material_price] => [1000]
[work_price] => [900]
[image] => https://akademik-stroy.ru/wp-content/uploads/materials/styazhka.jpg
[area_modifier] => 264.27
[parent_name] => Черновая отделка полов
[parent_id] => 33
[material_sum] => 317124
[work_sum] => 237843
[total_sum] => 554967
[total_days] => 10
[display_material_sum] => 317 124
[display_work_sum] => 237 843
[display_total_sum] => 554 967
)
1
554 967₽
Работа:237 843 ₽
Материалы:317 124 ₽
Дни:10
stdClass Object
(
[id] => 157
[attribute_id] => 33
[name] => ОСБ на пол
[material_modifier] => 1
[work_modifier] => 1
[options] => Array
(
)
[days] => [7]
[material_price] => [580]
[work_price] => [350]
[image] => https://akademik-stroy.ru/wp-content/uploads/materials/osb-1.jpg
[area_modifier] => 264.27
[parent_name] => Черновая отделка полов
[parent_id] => 33
[material_sum] => 183932
[work_sum] => 92495
[total_sum] => 276427
[total_days] => 7
[display_material_sum] => 183 932
[display_work_sum] => 92 495
[display_total_sum] => 276 427
)
1
276 427₽
Работа:92 495 ₽
Материалы:183 932 ₽
Дни:7
stdClass Object
(
[id] => 67
[attribute_id] => 34
[name] => Нет
[material_modifier] => 1
[work_modifier] => 1
[options] => Array
(
)
[days] => [0]
[material_price] => [0]
[work_price] => [0]
[image] => https://akademik-stroy.ru/wp-content/uploads/materials/chistovaya-otdelka.jpg
[area_modifier] => 264.27
[parent_name] => Чистовая отделка стен и полов
[parent_id] => 34
[material_sum] => 0
[work_sum] => 0
[total_sum] => 0
[total_days] => 0
[display_material_sum] => 0
[display_work_sum] => 0
[display_total_sum] => 0
)
1
0₽
Работа:0 ₽
Материалы:0 ₽
Дни:0
stdClass Object
(
[id] => 68
[attribute_id] => 34
[name] => Есть
[material_modifier] => 1
[work_modifier] => 1
[options] => Array
(
)
[days] => [50]
[material_price] => [6000]
[work_price] => [3500]
[image] => https://akademik-stroy.ru/wp-content/uploads/materials/chistovaya-otdelka.jpg
[area_modifier] => 264.27
[parent_name] => Чистовая отделка стен и полов
[parent_id] => 34
[material_sum] => 1902744
[work_sum] => 924945
[total_sum] => 2827689
[total_days] => 50
[display_material_sum] => 1 902 744
[display_work_sum] => 924 945
[display_total_sum] => 2 827 689
)
1
2 827 689₽
Работа:924 945 ₽
Материалы:1 902 744 ₽
Дни:50
stdClass Object
(
[id] => 69
[attribute_id] => 35
[name] => Нет
[material_modifier] => 1
[work_modifier] => 1
[options] => Array
(
)
[days] => [0]
[material_price] => [0]
[work_price] => [0]
[image] => https://akademik-stroy.ru/wp-content/uploads/materials/mnogourovnevyj-gkl.jpg
[area_modifier] => 264.27
[parent_name] => Отделка потолка
[parent_id] => 35
[material_sum] => 0
[work_sum] => 0
[total_sum] => 0
[total_days] => 0
[display_material_sum] => 0
[display_work_sum] => 0
[display_total_sum] => 0
)
1
0₽
Работа:0 ₽
Материалы:0 ₽
Дни:0
stdClass Object
(
[id] => 70
[attribute_id] => 35
[name] => Есть
[material_modifier] => 1
[work_modifier] => 1
[options] => Array
(
[0] => Многоуровневый потолок из гипсокартона
[1] => Многоуровневый потолок из гипсокартона и натяжного потолка
[2] => Одноуровневый потолок из гипсокартона
[3] => Одноуровневый натяжной потолок
)
[days] => [10,10,1,1]
[material_price] => [900,700,700,600]
[work_price] => [1000,800,500,300]
[image] => https://akademik-stroy.ru/wp-content/uploads/materials/mnogourovnevyj-gkl.jpg
[area_modifier] => 264.27
[parent_name] => Отделка потолка
[parent_id] => 35
[material_sum] => 285412
[work_sum] => 264270
[total_sum] => 549682
[total_days] => 10
[display_material_sum] => 285 412
[display_work_sum] => 264 270
[display_total_sum] => 549 682
)
1
549 682₽
Работа:264 270 ₽
Материалы:285 412 ₽
Дни:10
Преимущества работы с нами
7 этапов оплаты
Независимый строительный надзор
Экологически чистые материалы
16 лет гарантии
Онлайн-кабинет с веб-камерой
Строители с опытом более 15 лет
Собственное производство










